Информационная система
«Ёшкин Кот»

XXXecatmenu

ГОССТРОЙ СССР

ГЛАВПРОМСТРОЙПРОЕКТ

ВСЕСОЮЗНОЕ ОБЪЕДИНЕНИЕ
СОЮЗМЕТАЛЛОСТРОЙНИИПРОЕКТ

УТВЕРЖДАЮ:

Директор Объединения

_______Н.П. Мельников

31 мая 1979 г.

ВРЕМЕННАЯ ИНСТРУКЦИЯ
О СОСТАВЕ И ОФОРМЛЕНИИ СТРОИТЕЛЬНЫХ
РАБОЧИХ ЧЕРТЕЖЕЙ ЗДАНИЙ И СООРУЖЕНИЙ

Конструкции металлические

Чертежи КМД

Москва - 1979

Временная инструкция разработана ГПИ Днепрпроектстальконструкция В.О. Союзметаллостройниипроекта Госстроя СССР

Разработчики: инженеры Ю.В. Куренной, Ю.В. Рождественский, В.П. Шелегов, А.А. Тарнопольский

СОДЕРЖАНИЕ

1. Общие положения. 2

2. Форматы листов, линии, основные надписи. 2

3. Шрифты.. 2

4. Масштабы.. 3

5. Условные обозначения. 3

6. Простановка размеров сварных швов. 6

7. Изображение конструкций. 6

8. Расположение надписей и текстовых указаний. 11

9. Маркировка отправочных элементов. 11

10. Заглавный лист (общие данные) 12

11. Монтажные схемы.. 13

12. Чертежи отправочных элементов. 16

13. Простановка размеров. 18

14. Обозначение деталей. 23

15. Дополнительные рабочие чертежи. 23

16. Внесение изменений в техническую документацию.. 24

17. Нумерация листов. 25

ВРЕМЕННАЯ ИНСТРУКЦИЯ
о составе и оформлении строительных
рабочих чертежей зданий и сооружений

Конструкции металлические

Чертежи КМД

1. Общие положения

1.1. Рабочие деталировочные чертежи металлических конструкций являются самостоятельным основным комплектом рабочих чертежей, обозначаемым КМД.

1.2. Настоящая инструкция устанавливает состав и правила оформления чертежей КМД.

1.3. Чертежи КМД являются единым документом для изготовления и монтажа строительных металлоконструкций и должны содержать все необходимые данные для разметки, обработки, сборки, сварки, контроля и монтажа конструкций.

1.4. Организация, разрабатывающая чертежи КМД, несет ответственность за соответствие их чертежам КМ, за расчетную прочность всех заводских и монтажных соединений, не разработанных в чертежах КМ, за правильность размеров элементов конструкций и увязку их между собой, а также за правильность технологических требований изготовления и монтажа металлических конструкций.

Отступления от чертежей КМ, как правило, не допускаются. В случае необходимости отступлений они должны быть согласованы с составителями чертежей КМ.

1.5. В состав чертежей КМД входит:

- заглавный лист (общие данные);

- чертежи монтажных схем;

- чертежи монтажных узлов;

- чертежи отправочных элементов;

- дополнительные чертежи (в случае их необходимости).

1.6. Указания настоящей инструкции по оформлению чертежей распространяются также на чертежи мелких металлических конструкций, включаемых в состав рабочих чертежей марок АР, КЖ и др., по которым ведется их изготовление.

1.7. В чертежах КМД типовых конструкций, распространяемых Центральным институтом типового проектирования, необходимо учитывать специальные указания по оформлению, издаваемые этим институтом.

1.8. Для зарубежных объектов необходимо соблюдать требования настоящей инструкции с учетом специальных указаний по оформлению чертежей на экспорт и дополнительных технических требований по изготовлению и приемке конструкций.

1.9. Приведенные в приложении чертежи следует рассматривать как примеры оформления чертежей, а не как примеры технических решений.

2. Форматы листов, линии, основные надписи

2.1. Размеры форматов листов, применяемых при разработке чертежей КМД, должны соответствовать ГОСТу 2.301-68. Преимущественно следует пользоваться форматом 24.

2.2. Наименование, начертание, толщина и основное назначение линий, применяемых в чертежах КМД, должно соответствовать ГОСТ 2.303-68.

2.3. Содержание, расположение и размеры основных надписей и дополнительных граф к ним см. формы 1 ÷ 12.

3. Шрифты

3.1. В чертежах применяются стандартные шрифты по ГОСТ 2.304-68.

3.2. Рекомендуемые размеры шрифтов:

2,5; 3,5 - для текстовых указаний и поясняющих надписей при изображениях элементов и деталей;

3,5; 5,0 - для названий изображений заголовков текстовых указаний в ведомостях;

5,0 - для названий марок в ведомостях и спецификации,

7,0; 10,0 - для написания номеров листов и марки над изображением конструкции.

4. Масштабы

4.1. Выбор масштабов следует производить с учетом сложности изображения и применять возможно меньший масштаб, обеспечивающий четкость чертежа и копий с него.

Для чертежей рекомендуются следующие масштабы:

Таблица 1

Наименование

Масштаба

1.

Несущие стальные конструкции:

а) монтажные планы и схемы

1:100, 1:200, 1:400

б) сечения сплошностенчатых и решетчатых элементов конструкций

1:10, 1:15 , 1:20, 1:25 (масштаб 1:10 применяется для мелких профилей)

в) схемы решетчатых конструкций

1:15, 1:20, 1:25

2.

Ограждающие конструкции из стали и легких сплавов:

а) монтажные схемы

1:100, 1:200

б) сечения элементов

1:1, 1:10

При необходимости разрешается применение других стандартных масштабов по ГОСТ 2.302-68

4.2. В целях сокращения размеров изображения конструкций длинные сплошностенчатые конструкции (балки, колонны) разрешается вычерчивать без соблюдения масштаба по длине, сохраняя при этом взаимное расположение деталей и отверстий.

4.3. Решетчатые конструкции (ферма, связи и т.п.) вычерчивают, как правило, в двух масштабах, больше сокращая схему осей элементов, чем их поперечные размера и сохраняя один масштаб изображения в пределах узлов и для мелких деталей (фасонок, прокладок и пр.).

4.4. Для однотипных конструкций, изображаемых на одном листе, должен применяться один и тот же масштаб.

4.5. Геометрические схемы пространственных решетчатых конструкций (башни, элементы мостов и т.п.) вычерчиваются в одном для всех трех измерений масштабе (длина, ширина, высота).

4.6. Масштабы не должны указываться в чертежах. Исключение составляют чертежи КМД, выполняемые для зарубежных стран. В этом случае масштаб указывается в основной надписи чертежа.

5. Условные обозначения

5.1. В чертежах КМД применяются следующие условные обозначения:

Таблица 2

Условные обозначения в тексте и на чертежах

Наименование

Примеры обозначения

Прокатные профили

Сталь угловая равнополочная

∟100×10

Сталь угловая неравнополочная

∟100×68×6

Балка двутавровая

I 36

Балка двутавровая для подвесных путей

I 36M

Балка двутавровая тонкостенная

I T20

Двутавры и тавры с параллельными гранями полок

нормальные

I 40Б

I 20БТ

широкополочные

I 40Ш

I 20ШТ

колонные

I 40K

I 20KТ

Швеллер с уклоном внутренних граней полок

[ 24

Швеллер с параллельными гранями полок

[ 24 II

Швеллер тонкостенный

[ T 20

Рельс железнодорожный

Р 43

Рельс крановый

КР 120

Труба

O 102×3,5

Сталь круглая

Æ 20

Сталь квадратная

■ 20×120

Сталь листовая, полосовая и широкополосная (обозначение сечения)

- 200×8

Сталь листовая (Обозначение толщины)

δ 12

Сталь рифленная

- Рифл. 800×6

То же, условное графическое обозначение

Сталь листовая просечно-вытяжная

- ПВ 508×710

То же, условное графическое обозначение

Сталь листовая волнистая

 1,2×670×130

Гнутые профили

Уголок равнополочный

ГН  100×4

Уголок неравнополочный

ГН  100×80×5

Швеллер равнополочный

ГН  180×50×4

Швеллер неравнополочный

ГН  100×80×50×4

С-образный

ГН  100×50×10×2

Корытный равнополочный

ГН  80×60×32×3

Корытный неравнополочный

ГН  140×100×65×40×8

Зетовый равнополочный

ГН  80×40×3

Зетовый неравнополочный

ГН  65×45×40×25

Замкнутая

ГН  180×120×4

Замкнутый сварной квадратного сечения

ГН  100×5

Замкнутый сварной прямоугольного сечения

ГН  180×75×5

Профилированный настил

 Н 60-845-I,0

Отверстие круглое

Отверстие круглое, зенкованное с ближней (видимой) стороны

Отверстие круглое, зенкованное с дальней (невидимой) стороны

Отверстие круглое, зенкованное с обеих сторон

Отверстие овальное

а - расстояние между центрами;

в - диаметр

Заклепки

Заклепка с полукруглыми головками

Заклепка с потайной головкой с ближней (видимой) стороны

Заклепка с потайной головкой с дальней (невидимой) стороны

Заклепка с потайной головкой с обеих сторон

Заклепка с полупотайной головкой с ближней (видимой) стороны

Заклепка с полупотайной головкой с дальней (невидимой) стороны

Заклепка с полупотайной головкой с обеих сторон

Болты

Болт постоянный:

Болт временный

Болт постоянный высокопрочный

Швы сварных соединений

Шов стыковой с ближней (видимой) стороны

Заводской

 

Монтажный

 

Шов стыковой с дальней (невидимой) стороны

Шов углевой, а также стыковой в тавровых и угловых соединениях с ближней (видимой) стороны

Шов угловой, а также стыковой в тавровых и угловых соединениях с дальней (невидимой) стороны

Заводской

 

Монтажный

 

Шов угловой, прерывистый с ближней (видимой) стороны

h - толщина шва

l - длина шва

a - промежуток между швами

Шов угловой, прерывистый с дальней (невидимой) стороны

Шов точечный (а - шаг точек)

Прочие обозначения

Обозначение разреза

Линия (ось) симметрии

Отметка

Размер повышенной точности (с указанием допуска)

Место маркировки на видимой стороне

То же, на невидимой стороне

Выделение группы отверстий, отличающихся от других (диаметром или видом технологической обработки)

Группа отверстий на одной риске, отличающаяся по диаметрам на данном чертеже

Элементы из круглой стала (тяжи и т.п.) на схематических чертежах

Проекция плоскости связей на схематических чертежах (напр. вертикальных связей в плане); ограждения в плане.

Линия обрыва конструкции

Маркировка узлов у места маркировки. В числителе указывают номер узла, в знаменателе - номер листа, где узел изображен

Маркировка узлов у их изображения

Примечание: Обозначение узлов в различных случаях см. СН 460-74 «Временная инструкция о составе и оформлении строительных рабочих чертежей зданий и сооружений». Раздел I «Общие положения».

6. Простановка размеров сварных швов

Таблица 3

Проставляемый размер

Графическое обозначение

Толщина углового шва

Толщина стыкового шва

Толщина углового шва «по контуру»

Размеры (толщина и проектная длина) углового шва

Примечание: Проектная длина шва учитывает кратер и не провар шва по концам.

7. Изображение конструкций

7.1. На листах отправочных элементов вычерчиваю отдельные элементы конструкций, на которые конструкции расчленяются по условиям изготовления, транспортирования и монтажа. Для полного представления об отправочном элементе дают необходимое количество проекций (видов и разрезов), располагая их так, как это показано на рис. 1. Обозначение видов можно производить двумя стрелками с цифрами или одной стрелкой с буквой, если простановка двух стрелок излишне затемняет чертеж.

Рис. 1

7.2. Разрезы, которые незначительно различаются между собой, следует совмещать в одном изображении с поясняющими надписями (рис. 1 разрезы 5-5 и 6-6).

Рис. 2

7.3. Отправочные элементы нужно изображать так, чтобы основная проекция соответствовала их рабочему положению и давала наиболее полное представление об их форме и размерах, а именно: горизонтальные элементы - в горизонтальном положении, вертикальные - в вертикальном, наклонные - в наклонном. Вертикальные элементы большой длины (колонны, стойки и т.д.) разрешается изображать в горизонтальном положении. При этом низ элемента следует располагать в левой части листа (Рис. 2).

7.4. Основную проекцию отправочного элемента нужно располагать на листе так, чтобы левая сторона его была обращена к левой стороне листа. Левая сторона отправочного элемента определяется по монтажной схеме при взгляде по стрелкам, направление которых дано на рис. 3.

7.5. При изображении конструкции показывают сплошными линиями все видимые детали, расположенные на ближайшей по направлению взгляда грани, а невидимые - только те, которые располагаются вплотную к видимым. Видимые детали, расположенные в глубине за передней гранью, и невидимые, отделенные от видимых воздушной прослойкой, на чертеже не показывают. Для изображения последних в заслоняющих частях конструкции делают условный «вырыв» (рис. 4).

Рис. 3

Рис. 4

Рис. 5

7.6. Для сокращения площади листа, занятой изображениями отправочных элементов применяет следующие способы:

флажки;

изображение до оси симметрии;

совмещение изображений.

7.7. Флажки применяют при изображении сходных отправочных элементов, отличающихся отдельными частями. При этом элемент принятый за основной, изображается полностью, а у остальных вычерчивают только отличающиеся части.

Флажки направляются в сторону неотличающейся части элементов. Для частично изображенного элемента дается ссылка на марку основного элемента, например: «от флажков по Н2».

Размеры флажков и их применение при изображении отправочных марок см. на рис. 5.

Рис. 6

7.8. Симметричные отправочные элементы рекомендуется изображать до линии (оси) симметрии.

При этом контуры изображаемого отправочного элемента следует обрывать несколько дальше линии симметрии, как это показано на рис. 6.

7.9. Отправочные элементы, имеющие сходное изображение, но отличающиеся размерами, количеством деталей или отверстий, а так же их привязкой, рекомендуется совмещать на одном изображении с соответствующими текстовыми объяснениями (рис. 7).

7.10. Фасонные детали, размерные линии которых затемняют основное изображение, рекомендуется изображать отдельно и при необходимости в более крупном масштабе (рис. 8).

Рис. 7

Рис. 8

8. Расположение надписей и текстовых указаний

8.1. Текст на поле чертежа, таблицы и надписи, как правило, располагают параллельно основной надписи чертежа.

8.2. Около изображений отправочных элементов на ножках выносок наносят только краткие надписи, относящиеся непосредственно к изображению, например, указания о строжке, фрезеровке. Остальные надписи помещают в текстовой части на поле чертежа. Линию - выноску, пересекающую контур изображения и не отводимую от какой-либо линии, заканчивают точкой (рис. 9). Линию - выноску, отводимую от линии видимого и невидимого контура заканчивают стрелкой (рис. 10).

Рис. 9

Рис. 10

8.3. Текстовую часть, помещенную на поле чертежа, располагают над основной надписью. На чертежах формата более 12 допускается размещение текста в две и более колонки. Ширина колонок должна быть не более 185 мм. На чертеже оставляют место над основной надписью, высотой не менее 50 мм, для продолжения таблицы изменений и других необходимых текстовых указаний.

8.4. При необходимости изображения отправочного элемента или монтажной схемы на двух и более кистах текстовую часть помещают на одном листе со спецификацией. На всех листах в таком случае пишут! «Работать совместно с черт. ...».

8.5. Над изображением отправочного элемента помещают его марку (рис. 5, 6, 7).

9. Маркировка отправочных элементов

9.1. Существует три типа маркировки отправочных элементов:

а) общая (обычная)

б) индивидуальная

в) фиксирующая.

9.2. При общей маркировке марка является условным обозначением взаимозаменяемых элементов. В этом случае элементы конструкций обозначаются марками, состоящими из буквы, присвоенной монтажной схеме, на которой схематически изображен данный элемент, и порядкового номера (например: A1, А2, ...).

9.3. Взаимно обратные (зеркальные) отправочные элементы обозначаются разными марками.

При совмещении в одном изображении взаимно обратных (полностью или частично) отправочных элементов, над изображением сначала пишут марку основного («такого») элемента, затем марку обратного элемента, рядом с которой в скобках пишут «обратно чертежу». Например, A1; A2 (обратно чертежу). Запись в скобках допускается записывать сокращенно (обр. черт.).

9.4. Совмещение в одном изображении «таких» и «обратных» отправочных элементов допускается и при каких-то отличиях между ними, например, при разном числе мелких деталей или отверстий, при разных размерах отдельных частей элемента и т.д. При этом отличия должны быть оговорены на чертеже. Например, на выноске из сборочной детали может быть записано «только для A1».

9.5. В случае, если сходные отправочные элементы отличается друг от друга небольшим количеством мелких деталей или отверстий, разрешается с целью уменьшения количества марок объединять их в одну марку, добавляя лишние мелкие детали или отверстия к другим элементам.

9.6. Индивидуальной маркировке подлежат отправочные элементы, проходящие общую сборку с выполнением подгоночных работ, в результате которых элементы перестают быть взаимозаменяемыми. В этом случае к марке элемента добавляется буква или цифра, выделяющие каждый отправочный элемент. Например, элементы марки A1 после контрольной сборки маркируют A1A, или А1Б или 1А1, 2A1 и т.д. Такое же обозначение дают элементам на монтажной схеме и в ведомостях отправочных элементов, но на чертежах отправочных элементов проставляют общие марки (A1 и т.д.), а в текстовых указаниях к чертежам отмечают какие из элементов должны проходить общую сборку.

9.7. Фиксирующая маркировка служит для обеспечения определенного положения отправочного элемента в конструкции и применяется в тех случаях, когда по виду элемента трудно судить о его правильном положении. При фиксирующей маркировке марка отправочного элемента остается такой же как и при общей маркировке, но наносится она на элементе в определенном месте, а если этого недостаточно, то производится дополнительное кернение или наносится поясняющая надпись масляной краской, привязывающая сторону элемента в оси, конструкции и т.д.

Указание о фиксирующей маркировке дают на чертеже отправочного элемента (место марки на элементе, кернение, поясняющие надписи, текстовые указания на необходимость фиксирующей маркировки и пр.) и на монтажной схеме, на которой должно быть ясно определено положение элемента соответственно его маркировке.

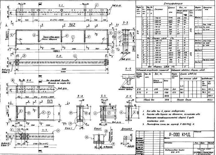
10. Заглавный лист (общие данные)

10.1. Заглавный лист должен содержать:

ведомость монтажных схем (форма 1, рис. 11);

ведомость листов отправочных элементов (форма 2, рис. 11);

ведомость дополнительных чертежей, если они имеются (по форме 1);

текстовые указания;

заглавный лист при необходимости может располагаться на нескольких листах.

10.2. Текстовые указания должны содержать:

а) указания о чертежах КМ, на основании которых разработаны чертежи КМД;

б) данные о внесенных в чертежах КМ изменениях и согласовании их с проектными организациями;

в) общую характеристику конструкций, заводских и монтажных соединений;

г) указания о защите от коррозии;

д) указания о дополнительных технических требованиях монтажной организации на изготовление, поставку и монтаж конструкций.

Форма 1

Форма 2

Рис. 11

11. Монтажные схемы

11.1. Монтажные схемы составляются для металлических конструкций проектируемого здания или сооружения и должны содержать следующие данные, необходимые для монтажа конструкций:

а) схему расположения элементов конструкций с указанием их марок, а также тех размеров и отметок, которые необходимы для установки и выверки конструкций;

б) ведомость отправочных элементов, входящих в данную схему (форма 3, Рис. 12);

в) ведомость монтажных швов (форма, Рис. 12);

г) ведомость монтажных (постоялых) метизов (форма 5, Рис. 12);

д) укрупнительные стыки и узлы, сварные или болтовые соединения которых выполняются на монтаже;

е) текстовые указания.

В случаях, если ведомость отправочных элементов не умещается на одном листе со схемами конструкций, ее можно делать на отдельном листе. Также на отдельных листах можно показывать узлы монтажных соединений и разрезы по схемам конструкций. В таких случаях, на каждом из этих листов надо давать ссыпку типа «работать совместно с черт. ...».

11.2. Конструкции зданий и сооружений в соответствии с последовательностью монтажа членятся на группы, помещаемые на отдельных монтажных схемах. Например, для промышленных зданий рекомендуется компановать вместе следующие монтажные схемы:

а) колонны, подстропильные фермы, связи по колоннам;

б) подкрановые банки, тормозные конструкции и упоры;

в) стропильные фермы, прогоны и связи по фермам;

г) фонари, прогоны и связи по фонарям;

д) фахверк (продольный и торцевой);

е) монорельсовые пути;

ж) рабочие площадки;

з) лестницы, переходные и посадочные площадки;

и) площадки для обслуживания механизмов открывания фонарей.

Форма 3

Форма 4

Форма 5

Рис. 12

Рис. 13

11.3. Отправочные элементы конструкций изображают схематично в виде отрезков сплошных линий, а также контуров (площадки, настилы и т.п.). Линии и контуры прерываются в местах монтажных (укрупнительных) стыков и сопряжений (рис. 13).

11.4. Обозначение разбивочных осей здания или сооружения принимают по чертежам КМ.

11.5. Каждой монтажной схеме присваивается одна заглавная буква русского алфавита, которая составляет буквенную часть марки всех отправочных элементов данной монтажной схемы. Буквы З, О, Ч, Й, X, Ц, Щ, Ы, Ъ, Ь применять не рекомендуется. При большом количестве схем допускается маркировать их двумя буквами (например, ББ1). Двумя буквами рекомендуется также маркировать монтажные схемы в тех случаях, когда на одной стройплощадке возводится несколько объектов с металлическими конструкциями. Тогда первая буква относится к объекту, а вторая к схеме конструкций.

11.6. Отправочные элементы на схеме рекомендуется маркировать в определенной последовательности по группам однотипных конструкций, например: колонны, подстропильные фермы, вертикальные связи.

11.7. На монтажной схеме у изображений элементов пишется только цифровая часть марки (рис. 14). Элементы рекомендуется маркировать только один раз, на основной проекции. В случае, если необходимо замаркировать этот элемент на других изображениях (разрезах, видах, узлах), марку пишут полностью с буквенным индексом. Такую марку при подсчете количества элементов не учитывают.

Рис. 14

11.8. При членении конструкций на отправочные элементы надо учитывать возможность пакетирования элементов (крестовые связи, стыковые накладки ферм, ограждение и т.п.).

12. Чертежи отправочных элементов

12.1. На каждом листе помещает чертеж одного или нескольких отправочных элементов, обладающих однотипностью сечений и технологических операций.

12.2. Рекомендуется объединять на отдельных листах чертежи следующих отправочных элементов:

а) элементы, не требующие сборки и сварки (из одиночных профилей);

б) элементы составного сечения из профильного металла;

в) конструкции из гнутых профилей;

д) решетчатые конструкции из горячекатанного или холодногнутого профиля;

е) листовые конструкции;

ж) элементы, в которых преобладает механическая обработка.

12.3. Во избежание ошибок, при разработке чертежей элементов конструкций рекомендуется соблюдать следующие условия:

а) помещать на одном листе элементы, содержащие однотипные детали из сталей разных марок, разрешается при условии существенного отличия размеров этих деталей;

б) для одного отправочного элемента, свариваемого ручной сваркой, не должно предусматриваться более двух марок электродов; для элементов, свариваемых автоматом или полуавтоматом более одной марки электродной проволоки;

в) фасонные детали следует предусматривать с минимальным количеством резов и минимальными отходами.

12.4. В состав листа с элементами конструкций входят:

а) графическое изображение отправочных элементов со всеми размерами и указаниями, необходимыми для изготовления каждой детали, а также сборки и сварки всех деталей;

б) спецификация (форма 6, рис. 15);

в) ведомость отправочных элементов (форма 7, рис. 15);

г) ведомость сварных заводских швов (форма 8, рис. 15);

д) текстовые указания.

12.5. Спецификация (форма 6) располагается, как правило, в правом верхнем углу листа.

12.6. В графе спецификации «Марка элемента» указывается буквенно-цифровое обозначение отправочного элемента.

12.7. В графе спецификации «№ детали» указывается цифровое обозначение детали без индексов «Т» и «Н» (см. п. 13.2)

12.8. В графе спецификации «Количество» указывается количество «деталей», «так» и «наоборот».

12.9. В графе спецификации «Сечение» указывается условное обозначение и размер профиля детали в мм.

12.10. В графе спецификации «Длина» указывается длина детали в мм.

12.11. В спецификации указываются окончательные размеры деталей, получаемые после всех технологических операций (резки, строжки, гнутья и т.д.). Припуски на строжку и другие операции, а также на усадку после сварки на чертеже не указываются, а задаются технологами завода-изготовителя.

12.12. Для деталей, получаемых путем продольной обрезки прокатных профилей, в графе «Примечание», необходимо указать, из какого профиля изготавливается деталь, за исключением тавров, получаемых роспускам широкополочных двутавров.

Форма 6

Форма 7

Рис. 15

Форма 8

х Тип сечения шва и его толщина.

Например: 8 (угловой шов),  10 (стыковой шов)

хх Длина швов приводится к толщине 6 мм

Рис. 15

12.13. В графе спецификации «Вес, кгс» указывается вес одной детали, вес всех деталей и общий вес элемента с учетом веса сварных швов (заводских), который принимается в размере 1 % от веса всех деталей марки.

12.15. Вес одной детали подсчитывается с точностью до 0,1 кгс, всех деталей и отправочного элемента - с точностью до 1 кгс.

При подсчете веса листовых деталей, площадь которых более 0,1 м2, следует учитывать их фактическую площадь.

Листовые фасонные детали (с прямыми и криволинейными срезами), площадь которых не более 0,1 м2, принимаются прямоугольными (при толщине до 12 мм). При толщине деталей, более 12 мм, следует определять их вес по фактической площади.

Вес фланцев и подобных им криволинейных листовых деталей следует определять по фактической площади. При подсчете веса деталей удельный вес стали принимается равной 7,85 тс/м3.

12.16. В графе спецификации «Марка стали» указывается полная марка стали с категорией.

12.17. Детали обратной марки в спецификацию заносятся в следующем порядке:

а) записываются вместе все детали, которые следует изготовить по прямой марке и их общий вес с указанием «по марке (такой-то»);

б) записываются последовательно и отдельно детали, которые имеются в прямой марке, но количество которых отличается от указанного в прямой марке;

в) записываются последовательно детали, которых нет в прямой марке.

12.18. В графе спецификации «Примечание» даются указания о технологических операциях: вальцовке, гнутье, малковке, строжке, фрезеровке, снятии фасок и др.).

12.19. Рекомендуется предусматривать для каждой отправочной марки при заполнении спецификации несколько свободных строк для возможных дополнений.

12.20. Место нанесения маркировки, поясняющих положение элемента надписей и кернения, на отправочных элементах указывается при наличии требования о фиксирующей маркировке.

13. Простановка размеров

13.1. Все размеры на деталировочных чертежах металлических конструкций проставляются в миниметрах.

13.2. Размеры делятся на следующие категории:

а) размеры, определяющие положение конструкций в сооружении (монтажные размеры);

б) размеры, необходимые для перехода от монтажных размеров к размерам для изготовления (увязочные размеры);

в) размеры, необходимые для изготовления деталей;

г) размеры, определяющие взаимное расположение деталей, необходимые для сборки;

д) контрольные - для марок, имеющих сложную геометрию.

Указанные категории размеров приведены на рис. 16 с соответствующими буквенными обозначениями.

Рис. 16

13.3. Размерные числа наносят над размерной линией возможно ближе к ее середине.

13.4. Размерные линии должны быть параллельными отрезку, размер которого указывается. Расстояние между параллельными размерными линиями должно быть 7 - 10 мм, а расстояние от размерных линий до параллельных им линий контура должно быть около 15 мм, когда размерная линия ниже или правее контурной, и 7 - 10 мм, когда размерная линия выше или левее контурной. На пересечении размерной и выносной линий ставятся засечки. При этом выносная линия должна выступать за крайнюю размерную на 1 - 3 мм.

13.5. Цифры линейных размеров при различных наклонах размерных линий располагают, как показано на рис. 17. Если необходимо нанести размер в заштрихованной зоне, соответствующее размерное число наносят на полке линии-выноски (рис. 18).

Рис. 17

Рис. 18

13.6. Размеры элемента следует привязать к осям и рядам сооружения или к осям примыкающих элементов.

13.7. При нанесении размеров, определяющих расстояние между крайними отверстиями или деталями, расположенными на равных расстояниях (шагах) рекомендуется указывать один размер, состоящий из произведения количества расстояний на их величину.

При этом, дополнительно проставляют размер одного шага (рис. 19).

Рис. 19

Рис. 20

13.8. Преобладающие для большинства деталей на чертеже расстояния от торца или кромки до первого отверстия или ряда отверстий (обрезы), а также диаметры отверстий, как правило, оговаривают в текстовых указаниях и на чертеже не проставляются. Остальные обрезы и диаметры должны быть проставлены на чертеже.

13.9. При простановке размеров по высоте или ширине сечения прокатных профилей (уголков, двутавров, швеллеров) размерная цепочка не замыкается. При этом размеры привязываются к той плоскости или грани, отметка или привязка которой должна быть соблюдена в сооружении. Риски прокатных и гнутых уголков привязываются к обушку (рис. 20).

13.10. В сварных балках указывается полная высота опорной части, то есть тот размер, который должен быть строго выдержан. Такие размеры помещают в рамку и указывают размер допуска. Указывается также толщина полок и высота стенки, но не указывается размер между нижней поверхностью нижнего пояса и низом опорного ребра, за счет которых компенсируется неточности при сборке балки (рис. 21).

Рис. 21

13.11. При изображении неравнополочного уголка необходимо указывать его положение, проставляя ширину одной из полок уголков.

13.12. Размеры, необходимые для разметки и изготовления одинаковых деталей, проставляются на одной из них, а для других указываются только привязочные размеры, необходимые для сборки.

13.13. Следует набегать пересечения размеров какими-либо линиями. В случае, если выносная линия пересекает отверстия, к которым она не относится, необходимо выносную линию в местах пересечения изогнуть, чтобы обойти отверстие.

13.14. При изображении радиуса дуги окружности стрелку линии радиуса необходимо показывать только у дуги. Перед размером радиуса следует ставить букву R. Радиусы гнутых элементов проставляются на концентрических размерных линиях с указанием на них величин соответствующих радиусов (рис. 22).

Рис. 22

Рис. 23

Рис. 24

Рис. 25

13.15. Размеры мелких радиусов и срезов углов ребер проставляют так, как это показано на рис. 23.

13.16. При большой величине радиуса и необходимости показать центр дуги допускается размерную линию радиуса показывать с изломом под углом 90° (рис. 24).

13.17. Размеры контура криволинейного профиля и дуг большого радиуса рекомендуется указывать координатами. При этом количество координат и степень точности размеров устанавливается в зависимости от конкретных условий (рис. 25).

13.18. Для решетчатых конструкций (ферм и т.п.) помещают, как правило, в левом верхнем углу листа, геометрическую схему в масштабе удобном для чтения, на которой проставляют размеры и усилия. Для симметричных ферм рекомендуется геометрические длины элементов проставлять на левой половине, а усилия на правой.

Рис. 26

Геометрические схемы сложных конструкций можно выносить на отдельный чертеж. У сложных пространственных конструкций необходимо давать развертки геометрических схем всех граней. При отсутствии специально вычерченной геометрической схемы наклон элементов указывают прямоугольными треугольниками, на сторонах которого проставляет действительные размеры (рис. 26).

13.19. Для ориентация при сборке прямоугольных фасонок с малоотличающимися углами между разметочными осями необходимо один угол фасонки срезать (рис. 26).

13.20. В гнутых деталях размеры проставляется от линии гиба. При определении размеров разверток гнутых и вальцованных деталей следует иметь в виду следующее:

1) длины изгибаемых или вальцуемых элементов (листов, уголков, балок и швеллеров) следует определять по их нейтральной оси;

2) разметку и образование отверстий в изгибаемых уголках, балках и швеллерах следует производить после их гибки.

13.21. Отметки уровней помещают на выносных линиях (или линиях контару) и обозначают знаком . Отметки уровней указываются в метрах, с точностью до миллиметра.

На чертежах указываются отметки:

а) на изображении вертикальных элементов (колонн, стоек) - верха плиты базы при раздельном монтаже плиты и колонны и низа плиты, когда она приварена к колонне; верха подкрановой части колонны, столиков - для колонн многоэтажных зданий; верха междуэтажных перекрытий;

б) на изображении балок, ригелей и т.п. рекомендуется указывать отметку конструкции (верха или низа);

в) на изображении ферм - низа опорной части;

г) на изображении трубопроводов - оси труб и точек их перелома.

13.22. Изображение симметричных монтажных схем до линии симметрии не допускается.

13.23. Рекомендуется увязывать основные изготовительные и сборочные размеры в разных плоскостях.

13.24. В элементах составного сечения (привязку профилей) следует производить:

- двутавровых - по оси стенок двутавров;

- уголков - по обушкам;

- швеллеров - по наружной грани стенки.

14. Обозначение деталей

14.1. Детали на чертежах обозначается цифрами, помещенными в кружках. Кружок для обозначения деталей соединяется с изображением детали волнистой линией со стрелкой у контура или точкой на конце внутри контура (рис. 26).

14.2. Взаимно-зеркальные детали обозначается индексами «Т» (так) и «Н» (наоборот). При этом индекс «Т» пишется около номера детали вверху справа, а индекс «Н» - внизу справа (рис. 26).

14.3. Одинаковые детали, встречающиеся в разных отправочных элементах, изображенных на одном листе, обозначаются одним номером.

14.4. Часто встречающиеся одинаковые детали в различных отправочных элементах, изображенных на разных листах, рекомендуется обозначать одинаковыми цифрами.

14.5. Нумерацию следует начинать с основных деталей. При этом рекомендуется соблюдать группировку деталей по профилям и толщинам.

В решетчатых конструкциях вначале нумеруется детали поясов, раскосов и стоек, а затем фасонок других мелких деталей.

В сплошностенчатых конструкциях вначале нумеруются детали поясов, стенки, а затем опорные ребра, ребра жесткости и другие детали.

15. Дополнительные рабочие чертежи

15.1. На заводах-изготовителях для производства отдельных операций могут выполняться дополнительные рабочие чертежи.

15.2. Дополнительные рабочие чертежи делят на две группы:

- чертежи для использования только на заводе-изготовителе;

- чертежи для использования на заводе-изготовителе и на монтаже.

15.3. К чертежам для внутризаводского использования относятся:

- чертежи эскизов раскроя металла для деталей;

- чертежи эскизов деталей, требующих механической обработки, фасонной резки, кузнечных работ;

- чертежи схем погрузки конструкций на железнодорожные платформы;

- чертежи шаблонов кривых при больших радиусах, если их выполняют как дополнение к основному чертежу;

- чертежи рекомендаций методов и мест контроля качества сварных швов;

- чертежи копиров, кондукторов и приспособлений для обработки деталей, для сборки и сварки конструкций;

- чертежи схем контрольных замеров;

- чертежи типовых деталей.

15.4. К чертежам, необходимым для использования монтажной организацией и заводом-изготовителем, относятся:

- чертежи дополнительных стыков отдельных деталей;

- чертежи монтажных сборочных приспособлений, применяемых при сборке листовых конструкций на монтаже и схем их расположения и установки;

- чертежи общих геометрических схем пространственных сооружений;

- чертежи шаблонов кривых при больших радиусах, выполненных на целое сооружение (например: на весь кожух доменной печи);

- чертежи схем контрольных сборок.

Все изготовленные в соответствии с этим пунктом чертежи должны направляться заказчику.

15.5. Чертежи типовых деталей выполняют для конструкций; в которых имеется массовая повторяемость каких-либо деталей.

15.6. Чертежи схем контрольных замеров выполняют для специальных сооружений с целью фиксация фактических размеров и данных нивелировки, для определения точности изготовления. При их нумерации в отличие от других чертежей применяют индекс «КР», например: КР-3.

15.7. Чертежи общих геометрических схем пространственных сооружений (кожухи доменных печей, сложные бункера, башни и т.п.) являются дополнительным материалом для разработки отправочных элементов.

15.8. Чертежи схем общих контрольных сборок выполняют для производства работ на заводе-изготовителе, как целого сооружения, так и отдельных характерных его частей для проверки точности изготовления конструкций.

На данных чертежах приводят:

- графическое (схематическое) изображение конструкций проходящих общую сборку;

- количество элементов, проходящих общую оборку;

- данные о результатах совпадения монтажных отверстий в узлах;

- текстовые указания по производству работ, также пояснения принятых обозначений узлов и плоскостей, ссылки на монтажные схемы.

Чертежи схем сборки получают номер по порядку за монтажными схемами и буквенный индекс «ОС», например: ОC-1.

16. Внесение изменений в техническую документацию

16.1. В выданные рабочие чертежи могут вноситься изменения только в следующем порядке.

16.2. Каждое изменение должно сопровождаться карточкой изменения. Измененные места изображения, таблиц, текста, должны быть обведены замкнутой волнистой линией, около которой ставится знак изменения.

В качестве знака изменения рекомендуется ромб. Первое изменение отмечают цифрой один, проставленной в ромбике - 1.

Второе изменение отмечают цифрой два - 2 и т.д.

16.3. Изменения, внесенные в рабочий чертеж, отмечаются в основной надписи знаком изменения, датой и подписью руководителя.

16.4. При значительном объеме изменений чертеж может быть аннулирован и заменен новым, выпускаемым за тем же номером, но с добавлением индекса «н» и порядкового номера изменения. Индекс ставится у номера чертежа. Например: 24и1, 24и2 и т.д.

Около основной надписи помещается дополнительная:

«Данный чертеж выпускается взамен черт. КМД-24», дата ...

На аннулированных чертежах делают надпись: «Аннулирован, дата. Заменен черт. КВД-24и1».

16.5. Измененные чертежи заносятся в ведомость чертежей с соответствующим индексом изменения.

17. Нумерация листов

В целях упорядочения маркировки элементов, на заводах-изготовителях применяется пообъектная нумерация, в которой каждому номеру объекта (заводского заказа) присваивается порядковая нумерация листов, начиная с № 1 (заглавный лист), затем монтажные схемы, затем - деталировочные чертежи отправочных элементов. В марке наносимой заводом-изготовителем на каждом отправочном элементе указывают:

К6

780-28

К6 - марка элемента

780 - шифр объекта (заводского заказа)

28 - номер чертежа.

СОКРАЩЕНИЕ СЛОВ, ТЕРМИНОВ

Ближняя сторона

б.с.

Дальняя сторона

д.с.

Гнуть маркой внутрь

ГМВ

Гнуть маркой наружу

ГМН

Гнуть фаской наружу

ГФН

Гнуть фаской внутрь

ГФВ

Линия гиба

Л.Г.

Деталь

дет.

Диаметр

диам.

Обратно, обратная

обр.

Отверстие

отв.

Равные расстояния

p.p.

Размалковать

размалк.

Смалковать

смалк.

Строгать обушок

стр. об.

Фасонный лист

ф.л.

Строгать одну кромку

стр. 1 кр.

Строгать по периметру

стр. пер.

Строгать одну плоскость

стр. 1 пл.

Строгать один торец

стр. 1 тор.

Фрезеровать один торец

фр. 1 тор.

Срез угла

ср. угла

Срез полки

ср. полки.

 





© 2013 Ёшкин Кот :-)