Gerontological centers, nursing homes, hospices. Design rules 

Информационная система
«Ёшкин Кот»

XXXecatmenu

МИНИСТЕРСТВО СТРОИТЕЛЬСТВА
И ЖИЛИЩНО-КОММУНАЛЬНОГО ХОЗЯЙСТВА
РОССИЙСКОЙ ФЕДЕРАЦИИ

СВОД ПРАВИЛ

СП 146.13330.2012

ГЕРОНТОЛОГИЧЕСКИЕ ЦЕНТРЫ,
ДОМА СЕСТРИНСКОГО УХОДА,
ХОСПИСЫ

ПРАВИЛА ПРОЕКТИРОВАНИЯ

Москва 2016

Предисловие

Сведения о своде правил

1 ИСПОЛНИТЕЛИ - ОАО «Институт общественных зданий», ЗАО «Гипроздрав» - научно-проектный центр по объектам здравоохранения и отдыха, ОАО «ЦНИИЭП жилища».

Изменение № 1 к СП 146.13330.2012 - НИИСФ РААСН

2 ВНЕСЕН Техническим комитетом по стандартизации ТК465 «Строительство»

3 ПОДГОТОВЛЕН к утверждению Управлением градостроительной политики. Изменение № 1 к СП 146.13330.2012 подготовлено к утверждению Департаментом градостроительной деятельности и архитектуры Министерства строительства и жилищно-коммунального хозяйства Российской Федерации (Минстрой России)

4 УТВЕРЖДЕН приказом Федерального агентства по строительству и жилищно-коммунальному хозяйству (Госстрой) от 27 декабря 2012 г. № 133/ГС и введен в действие с 1 июля 2013 г. В СП 146.13330.2012 «Геронтологические центры. Дома сестринского ухода. Хосписы. Правила проектирования» внесено и утверждено изменение № 1 приказом Министерства строительства и жилищно-коммунального хозяйства Российской Федерации от 30 декабря 2015 г. № 985/пр и введено в действие с 25 марта 2016 г.

5 ЗАРЕГИСТРИРОВАН Федеральным агентством по техническому регулированию и метрологии (Росстандарт)

В случае пересмотра (замены) или отмены настоящего свода правил соответствующее уведомление будет опубликовано в установленном порядке. Соответствующая информация, уведомление и тексты размещаются также в информационной системе общего пользования - на официальном сайте разработчика (Минстрой России) в сети Интернет.

Пункты, таблицы, приложения, в которые внесены изменения, отмечены в настоящем своде правил звездочкой.

СОДЕРЖАНИЕ

1 Область применения. 2

2* Нормативные ссылки. 3

3 Термины и определения. 3

4 Общие положения. 4

5 Требования к размещению и территории участка. 4

6 Требования к функционально-планировочной структуре. 6

6.1* Общие требования. 6

6.2* Геронтологический центр. 6

6.3 Геронтопсихиатрический центр. 9

6.4 Дом сестринского ухода. 10

6.5 Хоспис. 11

7 Требования к архитектурно-планировочным решениям.. 12

8* Инженерные системы.. 18

9* Противопожарные требования. 18

Приложение А (рекомендуемое). Габаритные схемы кабинетов и помещений с расстановкой технологического оборудования. 18

 

Введение*

Настоящий свод правил разработан в соответствии с Федеральным законом от 30.12.2009 г. № 384-ФЗ «Технический регламент о безопасности зданий и сооружений».

Свод правил разработан в развитие положений СП 59.13330 в соответствии с принципами Конвенции ООН о правах инвалидов, подписанной Российской Федерацией в сентябре 2008 года и ратифицированной 3 мая 2012 г. - Федеральный закон от 3 мая 2012 г. № 46-ФЗ «О ратификации Конвенции о правах инвалидов», содержит нормы и правила по проектированию среды, адаптированной для инвалидов и других маломобильных групп населения.

Свод правил учитывает отечественный и международный опыт создания среды для категории населения, требующей медицинского ухода, а также предложения и замечания специалистов НИИ экологии человека и гигиены окружающей среды им. А.Н. Сысина.

Свод правил выполнен: ООО «Институт общественных зданий» (руководитель работы - канд. арх. А.М. Гарнец); ЗАО «Гипроздрав» (ответственный исполнитель - канд. арх. Л.Ф. Сидоркова, медицинские технологи: М.В. Толмачева, М.А. Шумилова, Т.В. Майорова, архитекторы: М.Е. Короткова, Е.В. Шулякевич); ОАО «ЦНИИЭП жилища» (канд. арх. А.А. Магай, канд. арх. Н.В. Дубинин).

Изменение № 1 разработано: НИИСФ РААСН, при участии канд. архит., проф. А.М. Гарнеца, канд. архит. Л.Ф. Сидорковой, д-ра техн. наук М.М. Мирфатуллаева, д-ра техн. наук, проф. Ю.М. Глуховенко, В.В. Коноваловой.

СВОД ПРАВИЛ

ГЕРОНТОЛОГИЧЕСКИЕ ЦЕНТРЫ,
ДОМА СЕСТРИНСКОГО УХОДА, ХОСПИСЫ
ПРАВИЛА ПРОЕКТИРОВАНИЯ

Gerontological centres, nursing homes, hospices
Design rules

Дата введения 2013-07-01

1 Область применения

1.1 Настоящий свод правил устанавливает основные положения и требования к размещению, участку, функциональной организации и архитектурно-планировочным решениям стационарных учреждений медико-социального обслуживания: геронтологических центров (учреждений), домов (отделений) сестринского ухода и хосписов.

1.2 Настоящий свод правил распространяется на проектирование новых, реконструируемых, капитально ремонтируемых зданий гериатрических организаций и отделений.

2* Нормативные ссылки

В настоящем своде правил приведены ссылки на следующие нормативные документы:

СП 59.13330.2012 «СНиП 35-01-2001 Доступность зданий и сооружений для маломобильных групп населения» (с изменением № 1)

СП 158.13330.2014 Здания и помещения медицинских организаций. Правила проектирования

Примечание - При пользовании настоящим сводом правил целесообразно проверить действие ссылочных стандартов (сводов правил и/или классификаторов) в информационной системе общего пользования - на официальном сайте национального органа Российской Федерации по стандартизации в сети Интернет или по ежегодно издаваемому информационному указателю «Национальные стандарты», который опубликован по состоянию на 1 января текущего года, и по выпускам ежемесячно издаваемого информационного указателя «Национальные стандарты» за текущий год. Если заменен ссылочный стандарт (документ), на который дана недатированная ссылка, то рекомендуется использовать действующую версию этого стандарта (документа) с учетом всех внесенных в данную версию изменений. Если заменен ссылочный стандарт (документ), на который дана датированная ссылка, то рекомендуется использовать версию этого стандарта (документа) с указанным выше годом утверждения (принятия). Если после утверждения настоящего стандарта в ссылочный стандарт (документ), на который дана датированная ссылка, внесено изменение, затрагивающее положение, на которое дана ссылка, то это положение рекомендуется применять без учета данного изменения. Если ссылочный стандарт (документ) отменен без замены, то положение, в котором дана ссылка на него, рекомендуется применять в части, не затрагивающей эту ссылку. Сведения о действии сводов правил можно проверить в Федеральном информационном фонде технических регламентов и стандартов.

3 Термины и определения

В настоящем своде правил использованы следующие термины с соответствующими определениями:

3.1* геронтологический центр (далее - ГРЦ): Социально-медицинское учреждение, предназначенное для постоянного, временного (сроком до шести месяцев) или пятидневного в неделю проживания граждан пожилого возраста (мужчин старше 60 лет и женщин старше 55 лет), а также инвалидов, частично или полностью утративших способность к самообслуживанию и нуждающихся в постоянном постороннем уходе, обеспечивающее условия жизнедеятельности, соответствующие их возрасту и состоянию здоровья, проведения мероприятий медицинского, психологического, социального характера.

3.2 дом (отделение) сестринского ухода: Стационарное учреждение, предназначенное для проведения курса поддерживающего лечения больным преимущественно пожилого и старческого возраста и одиноким, страдающим хроническими заболеваниями и нуждающимся в медицинском уходе и социальной помощи.

3.3* хоспис: Стационарное учреждение здравоохранения, обеспечивающее паллиативную помощь преимущественно инкурабельным онкологическим больным, в том числе обезболивающую терапию и уход, а также психологическую поддержку больных и родственников.

3.4* паллиативная помощь: Направление здравоохранения, цель которого улучшить качество жизни пациентов (преимущественно в терминальной стадии развития заболевания) в ситуации, когда возможности лечения ограничены или исчерпаны.

3.5 инкурабельный больной: Неизлечимый больной.

4 Общие положения

4.1* Увеличение доли людей нетрудоспособного возраста на территории России обусловливает необходимость создания системы специализированных медико-социальных организаций, обеспечивающих проживание, обслуживание и медицинский уход людям старше 75 лет. В настоящем своде правил рассматриваются вопросы функционально-планировочной организации учреждений (отделений), предназначенных для оказания стационарной медико-социальной помощи людям, постоянно или временно проживающим, по социальным или медицинским показаниям, в медико-социальных учреждениях (геронтологические центры, дома сестринского ухода, хосписы). Функционально-планировочная структура этих учреждений должна соответствовать задачам, которые ими решаются.

4.2* Мощность геронтологических центров (ГРЦ), домов сестринского ухода и хосписов определяется расчетом исходя из численности взрослого населения и доли лиц старше 75 лет в зоне обслуживания и показателей потребности. В крупных и крупнейших городах России ориентировочный показатель потребности в учреждениях медико-социальной помощи 10 коек на 100 тысяч взрослого населения.

4.3* ГРЦ предназначены для постоянного проживания и временного пребывания лиц от 65 лет и старше, а геронтопсихиатрические центры (ГРПЦ) - от 55 лет и старше.

4.4* Рекомендуемая мощность геронтологических центров и домов сестринского ухода в пределах от 100 до 200 коек. Вместимость жилых групп и палатных отделений рекомендуется в пределах от 25 до 50 коек.

4.5* Рекомендуемая мощность стационаров хосписов определяется из расчета 30 коек на 300 - 400 тысяч населения и принимается не более 50 коек.

5 Требования к размещению и территории участка

5.1* Геронтологические центры следует максимально приближать к местам проживания потенциальных пациентов для обеспечения доступности возможно большему числу лиц пожилого возраста, нуждающихся в реабилитации в амбулаторных условиях, отделениях дневного пребывания, отделениях 5-дневного пребывания и консультативного приема.

5.2* Дома сестринского ухода и хосписы рекомендуется размещать на территориях или поблизости от действующих многопрофильных больниц, а ухода - в составе этих больниц, поскольку пациентам этих учреждений специалистами больниц оказывается консультативно-диагностическая помощь и экстренная медицинская помощь, а лабораториями проводятся необходимые лабораторные исследования.

До домов сестринского ухода и хосписов, размещаемых в отдалении от больниц, при выборе участков рекомендуется предусматривать удобную транспортную доступность. Участки этих организаций рекомендуется размещать в жилой застройке, облегчая сохранение связей с друзьями и родственниками.

При организации домов сестринского ухода и геронтологических центров на базе участковых больниц необходимо сохранить врачебные амбулатории с возложением на них функций медицинского обслуживания территориального населения.

5.3* Размеры земельных участков геронтологических центров следует принимать из расчета 150 м2 на 1 койку, домов сестринского ухода и хосписов - не менее 60 м2 на 1 койку.

5.4* На земельных участках геронтологических центров, домов сестринского ухода и хосписов следует предусматривать следующие основные зоны:

жилую, включающую основное здание геронтологического центра, дома сестринского ухода или хосписа, и подходы и подъезды к нему (перед главным входом следует предусматривать площадки для посетителей не менее 50 м2);

садово-парковую с местами для отдыха;

хозяйственную с гаражом для служебных автомобилей и стоянкой автомобилей для сотрудников и посетителей.

Зонирование участка необходимо проводить с учетом организации удобных кратчайших связей от отдельных групп помещений в здании с соответствующими зонами и площадками на участке.

5.5* Земельные участки стационарных учреждений для пожилых людей должны иметь сплошное ограждение высотой не менее 2,5 м.

По периметру ограждения с внутренней стороны рекомендуется полоса зеленых насаждений.

Допускается не ограждать земельные участки рассматриваемых типов зданий, расположенных на территории больниц.

5.6* Площадь под зелеными насаждениями и газонами (включая участки овощных, плодово-ягодных культур и цветочно-декоративных растений, теплиц) должна составлять не менее 60 % площади участка геронтологического центра, 40 % участка дома сестринского ухода и 20 % хосписа, свободной от застройки.

При озеленении участка нужно учитывать местные условия, применять наиболее распространенные в данной местности породы деревьев, кустарников, трав и цветов, подбирая их по разному времени цветения.

5.7 Исключен.

5.8* По заданию на проектирование может быть предусмотрена спортивная площадка. При этом минимальная площадь должна обеспечивать размещение универсальной игровой площадки (30×15) с сетчатым ограждением для игр в минифутбол, баскетбол, волейбол, бадминтон, а также для проведения лечебной гимнастики. Сетчатое ограждение должно быть установлено по всему периметру площадки высотой не менее 3000 мм. В ограждении площадки должно быть предусмотрено две калитки для входа и выхода, по периметру установлены мачты освещения. Покрытие такой площадки может быть асфальтовым, из отсева гранитной крошки или из искусственного материала. Вокруг площадки должны быть предусмотрены лавочки для отдыха.

5.9* Требования к зонам отдыха геронтологических центров аналогичны требованиям настоящего свода правил к гериатрическим центрам.

5.10* Проектные решения прогулочных маршрутов и мест для отдыха должны учитывать возможность использования кресел-колясок и другие требования, обеспечивающие доступ маломобильных групп населения.

Ширину пешеходных дорожек следует принимать не менее 1,8 м, уклон - не более 5°. На поворотах и через каждые 6 м необходимо устраивать площадки для отдыха. Вдоль дорожек, обеспечивающих жизнедеятельность пациентов (в случае, если пациенты вынуждены передвигаться между корпусами), рекомендуется устанавливать перила.

5.11* На земельных участках геронтологических центров, домов сестринского ухода и хосписов следует размещать только функционально связанные с ними здания и сооружения.

По заданию на проектирование допускается размещение гостиниц для пациентов, приезжающих на консультации и обследования, а также для родственников проживающих.

На участке геронтологических центров допускается размещать плодовый сад, огород, теплицу.

5.12 При расположении хозяйственных площадок следует учитывать ориентацию спальных комнат, чтобы шум от площадок не мешал пациентам.

5.13 На земельных участках следует предусматривать подъездные пути к главному входу, хозяйственной зоне, службе приготовления пищи, выездной службе домов сестринского ухода и хосписов, помещению для временного хранения трупов и другим службам, требующим транспортного обеспечения.

Подъезд к наружному выходу помещения для хранения трупов и площадка перед этим выходом должны находиться вне зоны видимости из жилых помещений и палат.

5.14* При наличии в составе геронтологического центра, дома сестринского ухода или хосписа выездной бригады, обеспечивающей проведение лечения и ухода за больными на дому, следует рассчитывать дополнительные места на территории теплой стоянки служебных автомашин.

6 Требования к функционально-планировочной структуре

6.1* Общие требования

В соответствии с назначением учреждений в них осуществляют:

прием и размещение пациентов с учетом профиля заболевания и тяжести состояния;

наблюдение врачебным персоналом и назначение необходимых процедур;

квалифицированный сестринский уход; в том числе своевременное выполнение врачебных назначений и процедур;

социальное обслуживание пациентов;

медицинскую реабилитацию с элементами трудотерапии;

динамическое наблюдение за состоянием пациентов;

своевременную диагностику осложнений или обострений хронических заболеваний.

Структура и состав учреждений определяются заданием на проектирование с учетом назначения этих учреждений.

Функционально-планировочное решение должно быть простым, четким и обеспечивать комфортные и безопасные условия для проживающих и пациентов, а также удобные технологические взаимосвязи, сокращающие протяженность путей пациентов и персонала.

6.2* Геронтологический центр

В геронтологическом центре должно осуществляться социальное обслуживание лиц старших возрастных групп, дифференцированное в соответствии с их возрастом, состоянием здоровья, социальным положением и с учетом необходимости постороннего ухода в стационарных, полустационарных и надомных условиях.

6.2.1* Функциональная структура геронтологического центра должна соответствовать его задачам, должны быть предусмотрены служебные помещения для обеспечения ухода в стационарных, полустационарных и надомных условиях.

Схема функциональных связей групп помещений геронтологического центра с наиболее полным числом функциональных служб представлена на рисунке 1.

Рисунок 1 - Функциональные связи групп помещений геронтологического центра

6.2.2* Прием пожилых людей осуществляется через приемное отделение.

В состав геронтологических центров могут входить:

отделение постоянного проживания;

геронтопсихиатрическое отделение;

отделение «Милосердие»;

реабилитационное отделение временного пребывания;

отделение 5-дневного пребывания;

отделение дневного пребывания;

надомное отделение.

Палатные отделения (жилые группы) дифференцируются с учетом тяжести состояния пожилых людей и потребности в социальном и медицинском уходе.

6.2.3* Отделение постоянного проживания предназначено для пожилых людей с сохранившейся двигательной активностью и способностью к самообслуживанию. Вместимость отделения постоянного проживания рекомендуется в пределах от 20 до 60 коек. Отделение должно включать: жилые комнаты на одного и 2-х человек с приближенными санузлами и душевыми (рисунки А.1 - А.3), гостиную, бытовую комнату, комнату сестры-хозяйки, комнату медсестры, процедурную, пост дежурной медсестры, столовую, которая может быть совмещена с местом проведения досуга (рисунок А.4) вспомогательные помещения: комната персонала, кладовые чистого белья, санитарные комнаты (временное хранение грязного белья, хранение уборочного инвентаря и дезсредств), комната хранения личных вещей.

По заданию на проектирование в здании с отделениями постоянного проживания могут быть предусмотрены комнаты для иногородних родственников с приближенными санузлами.

6.2.4 Геронтопсихиатрическое отделение предназначено для оказания медико-социальных услуг гражданам старших возрастных групп, страдающим психическими расстройствами в сочетании с множественной соматической патологией, проведения их медико-социальной реабилитации. При значительной численности обслуживаемого населения, геронтопсихиатрические отделения выделяются в самостоятельные геронтопсихиатрические центры.

6.2.5* Отделение «Милосердие» предназначено для пожилых людей с ограниченной подвижностью и не способных к самообслуживанию. В отделении «Милосердие» рекомендуется предусмотреть палату интенсивной терапии, кабинет подготовки инфузионных систем для проведения процедур в палатах, кабинет врача, ванную с подъемником, буфетную с моечной посуды, пост дежурной медсестры, комнату временного хранения использованного белья. Вместимость такого отделения рекомендуется от 25 до 50 коек при количестве коек в палате - не более двух, что позволяет учесть психологическую совместимость, тяжесть состояния и другие факторы при длительном совместном нахождении в одном помещении.

6.2.6 Реабилитационное отделение временного пребывания (около 30 дней) и отделение 5-дневного пребывания состоят из жилых комнат на одного и 2-х человек с приближенными санузлами и душевыми, комнат дневного пребывания, комнаты медсестры и вспомогательных помещений.

6.2.7 Отделение дневного пребывания, входящее в состав ГРЦ, включает комнаты отдыха на одного и 2-х человек, гостиную для дневного пребывания, буфет-раздаточную, столовую, комнату медсестры, помещения для проведения различных форм досуга. Отделение дневного пребывания рекомендуется организовывать на 20 - 30 чел.

6.2.8 Надомное отделение должно иметь помещения для выездных бригад социальных работников, хранения необходимых предметов ухода и медикаментов.

Стационарные подразделения ГРЦ должны быть планировочно связаны с отделениями и помещениями: медицинского обслуживания, социально-реабилитационного, лечебно-реабилитационного, лечебно-трудовой реабилитации, пищеблоком, административно-хозяйственными и научно-исследовательскими.

6.2.9 Помещения отделения медицинского обслуживания обеспечивают своевременную диагностику скрыто протекающих патологий, осложнений и обострений хронических заболеваний и первичную помощь. Это могут быть следующие кабинеты: врачей-консультантов (гериатра, кардиолога, невропатолога, офтальмолога, невролога, психиатра, стоматолога, сурдолога, хирурга, физиотерапевта, эндокринолога и др.), диагностические кабинеты (ультразвуковой диагностики, ЭКГ и др.), изолятор, кабинеты восстановительного лечения (зал ЛФК, кабинет массажа на две кушетки, помещение приготовления инфузионных систем, кабинет галотерапии, ингаляторий, кабинет физиотерапии, фитобар и др. (рисунки А.10 - А.13)). Конкретный набор помещений определяется заданием на проектирование и зависит от мощности геронтологического центра. Рекомендуемые планировочные схемы приведены в приложении А. В небольших центрах целесообразно, помимо нескольких кабинетов гериатров, предусматривать 1 - 2 консультационных кабинета, в котором специалисты могут вести прием по графику.

Для обслуживания лежачих пациентов предусматривается помещение хранения переносного медицинского оборудования.

6.2.10 Социально-психологическое отделение включает в себя кабинеты психотерапии, психологической релаксации, социальных работников и юристов для оказания психологической помощи и помощи в реализации социальных льгот, служба «Телефон доверия для пожилых людей».

6.2.11 Помещения социально-реабилитационного отделения предназначены для совместного проведения стационарными пациентами свободного времени (зал просмотра видеофильмов, настольных игр, танцев, праздников, библиотека-читальня, кружковые комнаты).

6.2.12 Помещения отделения лечебно-трудовой реабилитации стационарных пациентов - творческие мастерские (гончарная, плетения, шитья и др.), компьютерный кабинет и другие, направлены на реабилитацию пациентов и пробуждение их интереса к жизни.

6.2.13 Вспомогательные службы: центральная стерилизационная и аптечный распределительный пункт, ритуальная группа помещений.

6.2.14* Хозяйственные службы могут включать в себя:

пищеблок с кабинетом диетсестры для организации питания проживающих с учетом требований геродиетики. Прием пищи может осуществляться как в жилых комнатах, так и в столовой, количество мест которой составляет до 40 % мест от числа проживающих;

дезинфекционное отделение для обработки постельных принадлежностей;

прачечную для стирки одежды персонала, постельного и другого белья;

теплую стоянку для машин выездных бригад и другие помещения.

6.2.15 Научно-исследовательские, методические и информационные помещения для проведения учебных семинаров, конференций по повышению квалификации и первичной специализации сотрудников стационарных учреждений социально-медицинского обслуживания могут включать: кабинет заведующего кафедрой, кабинеты профессоров, доцентов, учебные кабинеты, аудитории для занятий, учебные и лабораторные помещения, конференц-залы и другие помещения. Состав и площади этих помещений определяются заданием на проектирование.

6.2.16 Административно-служебные помещения (кабинеты директора, заместителей директора и др.) служат для обеспечения работы администрации, бухгалтерии, службы социально-медицинской статистики, архива. Наличие и площадь определяются с учетом штатного расписания. В состав административно-служебных помещений входит вестибюльная группа, предназначенная для входа посетителей, персонала и пациентов.

6.2.17 Отделения дневного пребывания могут организовываться и размещаться отдельно от ГРЦ. Они относятся к организациям полустационарного типа и предназначены для преодоления одиночества, социального, культурного, медицинского обслуживания граждан, сохранивших способность к самообслуживанию и активному передвижению, организации их питания и отдыха и поддержания активного образа жизни.

Рекомендуемая вместимость отделения от 15 до 30 чел.

В состав такого отделения дневного пребывания могут включаться следующие помещения:

лечебно-профилактические (зал ЛФК, тренажерный зал, кабинет доврачебной помощи, массажный кабинет);

питания (столовая с возможностью проведения праздничных чаепитий и буфетной с моечной посуды, рисунок А.5);

досуговые (библиотека (рисунок А.6), бильярдная, зал для проведения лекций, концертов, музыкальных и поэтических вечеров, танцев);

трудотерапии (швейные мастерские, рисунок А.7), занятий по интересам (кружки, творческие мастерские, кабинет компьютерных технологий с выходом в Интернет (рисунок А.8);

спальные помещения для дневного отдыха с кладовой индивидуальных постельных принадлежностей;

кабинеты консультирования по правовым и психологическим вопросам;

административно-служебные кабинеты (кабинет заведующего, кладовые, уборные и др.).

6.3 Геронтопсихиатрический центр

6.3.1* В состав центра включают следующие основные группы помещений, выполняющие в основном те же функции, что и в геронтологическом центре:

приемное отделение;

профильные жилые отделения: отделение постоянного проживания на 100 - 150 мест, включая 4 - 6 отделений «Милосердие» на 25 коек каждое; реабилитационное отделение временного пребывания на 30 - 50 мест; отделение 5-дневного пребывания на 20 - 30 мест; отделение дневного пребывания на 20 - 30 мест;

медицинская группа помещений;

социально-реабилитационное отделение;

отделение лечебно-трудовой реабилитации;

научно-исследовательские, методические и информационные помещения;

административно-служебные помещения;

вспомогательные службы: центральная стерилизационная, аптечный распределительный пункт, ритуальная группа помещений;

хозяйственные службы: пищеблок, дезотделение, прачечная;

лечебно-реабилитационное и социально-реабилитационное отделения.

Схема функциональных связей групп помещений геронтопсихиатрического центра аналогична схеме, представленной на рисунке 1.

6.4 Дом сестринского ухода

6.4.1* Мощность домов и отделений сестринского ухода определяется исходя из особенностей демографической структуры региона и рекомендуется в пределах от 100 до 150 коек.

6.4.2* Дома сестринского ухода обеспечивают проживающим: неотложную медицинскую помощь; врачебные осмотры и консультативную помощь; психологическую помощь и симптоматическую терапию; питание, в том числе диетическое.

6.4.3* Вместимость палатных отделений сестринского ухода, в том числе в составе многопрофильных и специализированных больниц рекомендуется в пределах от 25 до 50 коек.

6.4.4* Дом сестринского ухода включает следующие основные группы помещений:

вестибюльная (вестибюль, гардероб уличной одежды посетителей и персонала, помещения для встреч посетителей с лечащими врачами и др.);

приемное отделение (вестибюль-ожидальная, регистратура, смотровые);

помещения санитарной обработки пациентов, помещение хранения каталок и кресел-колясок, уборные;

палатные отделения (где осуществляются лечение, наблюдение и уход за больными), включающие: 1 - 2-коечные палаты с санузлами и возможностью пребывания родственников; пространства социальной активности: комнаты отдыха или дневные комнаты, врачебные медицинские консультационные кабинеты, помещения сестринской деятельности (пост, помещение подготовки инфузионных систем (процедурная), перевязочная, клизменная), кладовые медицинского оборудования, вспомогательных средств передвижения и пр.; санитарные комнаты, ванная с подъемником и другие помещения;

лечебные отделения, включающие диагностические, физиотерапевтические, консультационные кабинеты, в том числе психотерапевта, социальных работников;

служебно-бытовые помещения;

помещения вспомогательных служб (центральное стерилизационное отделение, аптечный распределительный пункт, ритуальные помещения);

помещения хозяйственных служб (пищеблоков, прачечных и других).

6.4.5* В состав общих помещений палатного отделения могут входить: кабинет заведующего, ординаторская, кабинет психотерапевта, комната старшей медсестры, бытовые помещения медперсонала, буфетная с моечной столовой посуды, помещение приготовления пищи больным родственниками.

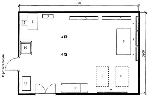
Рисунок 2 - Принципиальная схема функциональных связей основных групп
помещений «дома сестринского ухода»

6.5 Хоспис

6.5.1* Мощность хосписов не должна превышать 50 коек. Оптимальной считается мощность на 30 - 40 коек. Такой хоспис рассчитан ориентировочно на 300 - 400 тыс. населения.

6.5.2* Структура хосписа определяется основными функциями этого медико-социального учреждения, потребностями пациентов, их родственников и других посетителей, а также медицинского и обслуживающего персонала.

6.5.3* Основные задачи хосписа:

медицинское и социальное обслуживание инкурабельных (преимущественно онкологических) больных в стационарных условиях;

улучшение этим пациентам медицинской помощи на дому;

оказание социально-психологической помощи больным и их родственникам,

обучение родственников навыкам ухода за тяжелобольными.

6.5.4* Выполнение функций хосписа предусматривает наличие в его структуре стационарной и выездной служб.

6.5.5* В соответствии с заданием на проектирование в структуру хосписа могут входить следующие группы помещений:

помещения выездной службы (хоспис на дому);

вестибюльная группа помещений;

приемное отделение;

стационар;

служебно-административные помещения, в том числе помещения медицинского персонала;

вспомогательные службы (стерилизационная др.);

хозяйственные службы (пищеблок, прачечная и др.);

дневной стационар.

6.5.6* Отделение (группа помещений) выездной службы «хоспис на дому» может включать: кабинеты заведующего, старшей медсестры, выездных бригад, комнаты шоферов, санузлы.

6.5.7* Приемное отделение включает следующие основные помещения и группы помещений: смотровая комната, помещения санитарной обработки пациентов, помещение хранения каталок и кресел-колясок).

6.5.8* Стационар состоит из палатных отделений, в которые входят палатные секции и общие помещения отделения.

6.5.9* В состав палатных секций могут входить: 1 - 2-коечные палаты с уборными и возможностью пребывания родственников, пост дежурной медсестры, клизменная, помещение подготовки инфузионных систем (процедурная), перевязочная, санитарные комнаты, ванная с подъемником и другие помещения.

6.5.10* В состав общих помещений отделения могут входить: кабинет заведующего, ординаторская, кабинет психотерапевта, комната старшей медсестры, бытовые помещения медперсонала, буфетная с моечной столовой посуды, помещение приготовления пищи больным родственниками и другие помещения.

6.5.11* В состав общих помещений хосписа могут входить:

помещения отдыха и психорелаксации пациентов, родственников и добровольных помощников (молельные комнаты, помещение отдыха, зимний сад и др.);

ритуальные помещения (помещение для хранения трупов с холодильной установкой, траурный зал);

административно-служебные помещения;

хозяйственные службы (приготовление пищи, дезотделение, прачечная, теплая стоянка для машин и др.).

6.5.12* Уточненный перечень кабинетов и помещений определяется с учетом задания на проектирование.

6.5.13* Принципиальная схема функциональной взаимосвязи отдельных групп помещений хосписов аналогична схеме функциональной взаимосвязи групп помещений домов сестринского ухода.

6.5.14* Ритуальные помещения не должны находиться в зоне видимости пациентов.

6.5.15* При организации новых или реконструкции существующих зданий под хосписы или дома (отделения) сестринского ухода желательно создавать в них условия, приближенные к домашним.

6.5.16* В случае, если хоспис предполагается использовать для научных или образовательных целей, при нем может организовываться соответствующая группа помещений.

6.6* Наличие в структуре геронтологических центров, домов сестринского ухода и хосписов пищеблока, прачечной, центральной стерилизационной, аптечного распределительного пункта, а также конкретный набор помещений социально-психологического, социально-реабилитационного отделений, отделений лечебно-трудовой реабилитации, дневного пребывания, научно-исследовательских, методических и информационных помещений определяется заданием на проектирование.

7 Требования к архитектурно-планировочным решениям

7.1* Палатные отделения и жилые группы не должны быть проходными. В подвальных и цокольных этажах помещения размещают в соответствии с СП 158.13330.

7.2* В случае размещения подразделений (помещений), рассматриваемых данным сводом правил, в нескольких зданиях, между ними предусматриваются теплые переходы.

7.3 Входы в здания, пандусы и лестницы, лифты и подъемники, вспомогательные средства и приспособления (поручни, ручки, рычаги и т.д.) геронтологических центров, домов сестринского ухода и хосписов следует проектировать в соответствии с СП 59.13330.

7.4 Внутренняя отделка помещений должна быть выполнена из материалов, разрешенных к применению в Российской Федерации, соответствовать функциональному назначению и способствовать созданию условий, максимально приближенных к домашним.

При выборе материалов внутренней отделки помещений отдыха, помещений социально-трудовой реабилитации, залов ЛФК, гардеробных помещений следует учитывать необходимость снижения шума с помощью звукопоглощающей облицовки и штучных звукопоглотителей.

7.5 В III и IV климатических районах проемы окон и балконных дверей помещений долговременного пребывания проживающих, кабинетов врачей и помещений медицинского персонала, обращенных на сектор горизонта от 200 до 290°, должны быть оборудованы солнцезащитными устройствами.

При жилых комнатах желательно предусматривать лоджии и балконы глубиной не менее 1,6 м.

Ручки штанговых затворов фрамуг в жилых комнатах должны располагаться на высоте не более 1,2 м от пола.

7.6* Структура подразделений и состав помещений рассматриваемых организаций определяется в программе на проектирование, разрабатываемой проектировщиком с учетом нормативных требований и медицинского задания заказчика.

7.7 Площадь вестибюля-гардеробной для посетителей рекомендуется принимать из расчета не менее 0,5 м2 на койку.

7.8* Для санитарной обработки поступающих в приемных отделениях рекомендуется предусматривать ванны с подъемниками. Помимо помещений планового приема, в структуру приемного отделения геронтологического центра и больницы сестринской помощи могут включаться изоляторы и диагностические палаты, процедурная.

7.9* Жилые комнаты геронтологических центров и отделений сестринского ухода рекомендуется принимать одноместными (12 м2) или двухместными (16 м2). И в тех и в других жилых комнатах предусматриваются прихожие с санузлами (унитаз, раковина, душ). Соотношение одноместных и двухместных комнат определяется заданием на проектирование.

7.10* В жилом помещении выделяются несколько основных функциональных зон: сна, дневного пребывания и отдыха, санитарно-гигиеническая, приема пищи, пользования шкафами и полками.

Зона дневного пребывания и отдыха должна быть приспособлена для приема друзей и знакомых, а также для занятий каким-либо домашним трудом (вязанье, вышивание, шитье). Необходимо обеспечить возможность проживающим подхода к окну и выхода на балкон.

7.11 В состав общих помещений отделений геронтологических центров, как правило входят: кабинет заведующего (врача-гериатра), комнаты старшей медицинской сестры и сестры-хозяйки, процедурная, кладовая чистого белья, помещение дневного пребывания, столовая, буфетная с моечной столовой посуды, помещение хранения каталок и колясок, кладовая мягкого инвентаря, комната сушки верхней одежды и обуви, комната персонала, уборная персонала, кладовая переносной медицинской аппаратуры, помещение встречи с родственниками.

7.12 В случае если отделение делится на жилые группы, то в составе каждой могут предусматриваться: кухня (для самостоятельного приготовления пищи (рисунок А.9), бытовая комната (для стирки и сушки мелких вещей, сушки одежды и обуви, глажки), комната санитарки, санитарная комната (хранение грязного белья, предметов уборки и др.). Если отделение не делится на жилые группы, то перечисленные помещения могут входить в состав общих помещений отделения.

7.13 Поэтажное размещение пациентов рассматриваемых типов зданий должно осуществляться с учетом степени их подвижности. Отделения по уходу за лежачими пациентами - не выше 2-го этажа, остальные - не выше 4-го этажа.

Отделение постоянного проживания геронтологического центра (100 - 150 чел.)

7.14* Отделение постоянного проживания геронтологического центра делится на жилые группы вместимостью по 10 чел. На каждые две жилые группы предусматриваются: пост дежурного персонала, комната дежурной медсестры, процедурная, ванная комната с подъемником, помещение дневного пребывания.

Отделение 5-дневного пребывания (20 чел.)

7.15* В отделении 5-дневного пребывания (20 чел.) предусматривается: кабинет заведующего, комнаты старшей медицинской сестры и сестры-хозяйки, пост медицинской сестры, процедурная, санитарная комната, кладовая чистого белья, помещение дневного пребывания, помещение столовой, буфетная с моечной столовой посуды.

Отделение дневного пребывания

7.16* В отделении предусматриваются: кабинет заведующего, комнаты старшей медицинской сестры и сестры хозяйки, кабинеты психолога и социального работника, комнаты отдыха пациентов на одного и 2-х человек, 9 и 14 м2, уборные для персонала и пациентов, душевые кабины пациентов, буфетная с моечной кухонной посуды, столовая, комната персонала, процедурная, кабинет инструктора по трудотерапии.

7.17 Площадь помещения гостиной для дневного пребывания следует принимать из расчета 3,6 м2 на одного человека, площади помещений терапии занятостью и арттерапии принимаются из расчета 1,6 м2 на одного человека, площадь умывальных принимается из расчета 1 умывальник на 5 мест.

Геронтопсихиатрическое отделение

7.18 В составе предусматривается две секции: секция для острых больных и секция «Милосердие». Количество коек в секциях принимается по заданию на проектирование.

7.19 В секции для острых больных примерно половина коек выделяется в отсек для больных с ограниченным режимом, который состоит из 4-местных палат, комнаты приема пищи, уборной с умывальной и поста медицинской сестры.

7.20 Остальные помещения секции состоят из палат, поста медицинской сестры, процедурной, клизменной, ванной комнаты с подъемником, уборных, санитарной комнаты, бельевой, помещения дневного пребывания, курительной, столовой, блока усиленного наблюдения, зала ЛФК, массажного кабинета.

7.21 Секция «Милосердие» имеет стандартный набор помещений для палатной секции.

7.22* В состав общих помещений отделения, помимо стандартного набора по заданию на проектирование, включаются помещения психотерапии (кабинет врача-психотерапевта, кабинет психотерапии со шлюзом, процедурная (22 м2), аминозиновая процедурная, помещение для бесед родственников с лечащими врачами, кабинеты врача-психиатра, психолога, социального работника, помещение бытовой реабилитации (макет жилой квартиры со стендами для восстановления бытовых навыков, кабинет с имитацией входов в общественный транспорт).

7.23 Медицинская группа помещений, обслуживающая все структурные подразделения, состоит из отделения врачебно-консультативного приема, диагностического (кабинета) отделения и лечебно-восстановительного отделения.

7.24 Состав помещений отделения определяются заданием и программой на проектирование для каждого конкретного случая.

7.25* Палатное отделение. Во вновь проектируемых зданиях рекомендуемая вместимость палат - две койки. Это обеспечивает их гибкое использование в трех вариантах (двухместные, одноместные с сопровождающим родственником (дежурным персоналом), одноместные). Для таких палат площадь (без учета площади шлюзов и санузлов) желательно принимать не менее 14 м2. Варианты расстановки мебели и оборудования в палате на 1 койку приведены на рисунках 3, 4.

Палаты следует проектировать с санитарным узлом, состоящим из уборной, умывальника и душа, имеющим площадь не менее 4 м2, обеспечивающую возможность пользования инвалидом-колясочником.

При реконструкции и приспособлении существующих зданий максимальная вместимость палат - 4 койки.

1 - кровать функциональная; 2 - тумбочка прикроватная; 3 - шкаф для личных вещей; 4 - стол палатный;
5 - стул; 6 - кресло-кровать; 7 - кресло-коляска

Рисунок 3 - Палата на 1 койку с местом отдыха сопровождающего

1 - кровать функциональная; 2 - тумбочка прикроватная; 3 - шкаф для личных вещей; 4 - стол палатный;
5 - стул

Рисунок 4 - Палата на 2 койки

7.26 Посты дежурных медицинских сестер следует принимать не менее 6 м2 каждый. Число постов определяется штатным расписанием.

7.27 Площадь помещения для дневного пребывания больных следует принимать из расчета 1 м2 на 1 койку палатной секции.

7.28 В состав палатного отделения геронтологического центра или отделения сестринского захода могут быть включены кабинет массажа и кабинет лечебной физкультуры для индивидуальных занятий.

7.29 Площадь столовой для больных следует принимать из расчета 1,2 м2 на одно посадочное место. Количество посадочных мест в столовой рекомендуется принимать не более 50 % количества коек в палатном отделении.

При организации питания больных в палатах допускается проектирование палатного отделения без столовой.

7.30 В структуре палатного отделения предусматривается ванная комната с подъемником.

7.31 При проектировании палатного отделения следует предусмотреть место хранения колясок и каталок.

7.32 В домах сестринского ухода и хосписах следует предусмотреть помещение для отдыха добровольных помощников и разогрева домашней пищи (рисунок А.9).

Специализированные и вспомогательные кабинеты и помещения

7.33 В состав помещений, общих для медико-социальной организации, желательно включить: комнату психоэмоциональной разгрузки персонала и родственников (со шлюзом) и помещение богослужения (молельная), минимальной площадью 16 м2, доступное пациентам и родственникам.

7.34 Примерный состав и площади специализированных и вспомогательных кабинетов и помещений, общих для всех подразделений медико-социальных организаций приведены в таблице 1.

Таблица 1

№ п.п.

Наименование помещений

Площадь, м2 (не менее)

1

Лаборатория срочных анализов

16

2

Кабинет функциональной (ЭКГ) диагностики

18

3

Кабинет врача-консультанта

12

4

Централизованная стерилизационная*:

 

помещение приема и разборки инструментов и материалов

9

стерилизационная

12

помещение хранения и выдачи материалов

9

5

Аптечный распределительный пункт*:

 

распаковочная

8

комната для хранения и выдачи лекарственных средств

12

помещение для хранения наркотических средств

4

6

Помещение для временного хранения трупов с холодильной установкой (с отдельным наружным выходом)*

18

* Предусматривается для домов сестринского ухода и хосписов, расположенных вне территории больниц.

7.35 Службу приготовления пищи следует проектировать в обособленных отсеках зданий хосписов с отдельными служебными и хозяйственными входами и технологической связью с палатами.

7.36* Для обеспечения безопасности и предупреждения травматизма лиц с ограниченной подвижностью, немощностью и неадекватным поведением одним из основных требований к организации предназначенных для них групп помещений является требование обеспечения наблюдения пожилых людей персоналом при организации их проживания и получения процедур. С точки зрения комфорта пребывания проживающих (пациентов) для обеспечения наблюдения предпочтительна установка видеокамер.

7.37 Кабинеты и помещения административно-хозяйственного назначения принимаются в соответствии со штатным расписанием (6 м2 на 1 рабочее место, но не менее 10 м2). Гардеробные домашней и рабочей одежды персонала с душевыми и уборными желательно предусматривать едиными для всей организации с делением на мужские и женские.

В составе административных помещений предусматривается буфет персонала с залом для приема пищи и моечной столовой посуды. Площадь зала приема пищи определяется из расчета 1 место на 4-х работающих в наиболее многочисленной смене и не менее 1 м2 на 1 место. Кроме того предусматриваются: комната благотворительных организаций (12 м2), центральная бельевая, кладовая временного хранения грязного белья, мастерская ремонтно-эксплуатационной службы, централизованное помещение временного хранения и обработки медицинских отходов.

7.38 Примерный состав и площади помещений стационара на дому приведены в таблице 2.

Таблица 2

№ п.п.

Наименование помещений

Площадь, м2 (не менее)

1

Кабинет заведующего

16

2

Комната старшей медицинской сестры с местом для хранения медикаментов

12

3

Комната выездных бригад с местом для диспетчера:

 

на 1 бригаду

14

на 2 бригады

24

на 3 бригады

38

4

Комната шоферов

10

5

Уборная для персонала

3

Лечебно-восстановительное отделение

7.39 Набор кабинетов отделения лечебно-восстановительного лечения определяется по заданию на проектирование с учетом заболеваемости людей пожилого возраста.

7.40 При проектировании лечебно-восстановительного отделения помещения целесообразно группировать в следующие три группы:

помещения физиотерапии;

помещения водолечения и грязелечения;

помещения кинезотерапии (ЛФК, массаж и др.)

7.41 При установке гидромассажной ванны или лечебного бассейна целесообразно устанавливать подъемник для помещения в ванну (бассейн) больных с ограниченной подвижностью.

Социально-реабилитационное отделение

7.42* В структуре социально-реабилитационного отделения рекомендуется предусматривать зрительный зал с фойе, библиотеку-читальню, клубные помещения, кружковые комнаты.

7.43* Ограничение подвижности лиц старшего возраста и снижение их возможности контактов с природой обусловливает необходимость организации внутри здания «зимнего сада», размещения в помещениях общего пользования аквариумов и других элементов живой природы.

7.44* Рекомендуется предусматривать универсальную кружковую комнату для хоровых занятий и для различных видов ручного творчества (лепка, рисование, резьба, вышивка и др.).

7.45* Библиотека-читальня должна обеспечивать открытый доступ к книгам и организовываться с возможностью продвижения посетителей (в том числе на креслах-колясках) вдоль стеллажей с книгами. Расстояние между стеллажами должно быть не менее 160 см.

7.46 Количество мест в зрительном зале геронтологических организаций необходимо принимать с учетом потенциальной численности людей, способных к самообслуживанию, то есть примерно на 70 % от численности проживающих.

В зрительном зале должны быть установлены полумягкие кресла с не откидными сиденьями, неподвижно прикрепленные к полу. Для передвигающихся на креслах-колясках следует устраивать свободные площадки перед эстрадой или в конце зала и дополнительный проем-выезд из зала шириной не менее 160 см.

7.47 В составе учреждения может предусматриваться гостиная с фитобаром и спортивный зал.

7.48 Количество мест в лечебно-трудовых мастерских, их профиль, состав и площади помещений определяются заданием на проектирование.

Площади помещений мастерских следует принимать из расчета 4,5 м2 на одно место, но не менее 15 м2. Площади кладовых готовой продукции, материалов и инструментов следует принимать из расчета 1 м2 на одно место в мастерской, но не менее 10 м2.

8* Инженерные системы

8.1* Поскольку геронтологические центры, дома сестринского обслуживания и хосписы относятся к зданиям медицинских организаций, на их проектирование полностью распространяются инженерные требования, изложенные в СП 158.13330. Медицинское газоснабжение в зданиях геронтологических центров, домов сестринского ухода и хосписов не предусматривается.

9* Противопожарные требования

9.1* Поскольку геронтологические центры, дома сестринского обслуживания и хосписы относятся к зданиям медицинских организаций, на их проектирование полностью распространяются противопожарные требования, изложенные в СП 158.13330.

Приложение А
(рекомендуемое)
Габаритные схемы кабинетов и помещений с расстановкой
технологического оборудования

1 - кровать; 2 - полка для книг; 3 - тумбочка; 4 - стол; 5 - стул; 6 - кресло; 7 - торшер;
8 - инвалидное кресло-коляска; 9 - комбинированный шкаф

Рисунок А.1 - Одноместная жилая комната

1 - кровать; 2 - полка для книг; 3 - тумбочка; 4 - комбинированный шкаф; 5 - стол; 6 - стул;
7 - кресло; 8 - торшер; 9 - инвалидное кресло-коляска

Рисунок А.2 - Жилые комнаты на 2 и 3 человека

1 - поручень настенный; 2 - унитаз; 3 - душ; 4 - умывальник керамический; 5 - инвалидное кресло-
коляска; 6 - стул настенный складной для ванны; 7 - полка настенная; 8 - каталка медицинская;
9 - душ на гибком шланге; 10 - ванна для купания маломобильного больного; 11 - подъемник
для перемещения больного в ванну

Рисунок А.3 - Планировочные схемы санузлов и ванных комнат

1 - кресло для отдыха; 2 - диван; 3 - стул с подлокотниками; 4 - стол обеденный; 5 - телевизор
с видеоплеером; 6 - подцветочница; 7 - журнальный столик; 8 - комплект кухонной мебели
(столы рабочие с отсеком для электроплиты, встроенная мойка, шкафы навесные, шкаф высокий);
9 - электроплита; 10 - холодильник; 11 - посудомоечная машина; 12 - зонт вытяжной

Рисунок А.4 - Общая комната-столовая и кухня

1 - стол обеденный; - стол резервный; 2 - стул с подлокотниками; 3 - инвалидное кресло-коляска;
4 - комбинированная стенка; 5 - холодильник; 6 - стол-шкаф с двухсекционной мойкой;
7 - электроплита; 8 - стол-шкаф кухонный; 9 - сервировочная стойка; 10 - табурет; 11 - зонт вытяжной

Рисунок А. 5 - Столовая с возможностью проведения праздничных чаепитий

1 - стеллаж для открытого хранения книг; 2 - стол для занятий; - стол для занятий
инвалида-колясочника; 3 - стул с подлокотниками; 4 - стол для абонементного обслуживания; 5 - кресло
рабочее; 6 - полки подвесные; 7 - инвалидное кресло-коляска

Рисунок А.6 - Библиотека с читальным залом

1 - швейная машина; 2 - стул с подлокотниками; 3 - стол раскроечный; 4 - гладильный стол;
5 - гладильный пресс; 6 - рабочий стол; 7 - умывальник керамический; 8 - стол инструктора; 9 - стул;
10 - инвалидное кресло-коляска

Рисунок А.7 - Швейная мастерская

1 - стол рабочий компьютерный; 2 - стол, регулируемый по высоте; 3 - стул; 4 - доска;
5 - стол преподавателя; 6- стул преподавателя; 7 - шкаф-стеллаж для учебной литературы;
8 - инвалидное кресло-коляска; 9 - компьютер персональный (системный блок с монитором,
клавиатурой и мышью)

Рисунок А.8 - Кабинет компьютерных технологий

1 - комплект кухонной мебели (столы рабочие с отсеком для электроплиты, встроенная мойка, шкафы
навесные, шкаф высокий); 2 - стол производственный; 3 - зонт вытяжной; 4 - тележка сервировочная;
5 - стол обеденный; 6 - стул с подлокотником; 7 - контейнер для отходов с крышкой и педалью;
8 - холодильник; 9 - электроплита; 10 - тележка, подогреваемая для перевозки пищи;
11 - посудомоечная машина

Рисунок А.9 - Кухня для приготовления и приема домашней пищи
родственниками и добровольными помощниками

Помещения медицинского назначения

1 - стол врача; 2 - стул офисный; 3 - инвалидное кресло-коляска; 4 - столик инструментальный;
5 - кушетка смотровая; 6 - весы электронные с ростомером; 7 - шкаф медицинский; 8 - умывальник
керамический; 9 - негатоскоп

Рисунок А.10 - Кабинет врача-гериатра

В раздевальную

1 - стол врача; 2 - стул с подлокотниками; 3 - весы электронные с ростомером; 4 - снаряды подвесные
гимнастические; 5 - скамья гимнастическая универсальная; 6 - мат гимнастический;
7 - стенка гимнастическая; 8 - место для тренажера; 9 - зеркало настенное пленочное для спортзалов;
10 - тележка с гимнастическими снарядами передвижная; 11 - комплект аппаратов для механотерапии;
12 - кушетка смотровая

Рисунок А.11 - Зал ЛФК

1 - стол врача; 2 - стул; 3 - инвалидное кресло-коляска; 4 - штора разделительная; 5 - стол массажный
трехсекционный; 6 - стул с подлокотниками; 7 - шкаф медицинский; 8 - умывальник керамический

Рисунок А.12 - Кабинет массажа на 2 кушетки

1 - стол-шкаф с мойкой; 2 - столик инструментальный; 3 - стул с подлокотниками; 4 - стол палатный;
5 - деструктор инъекционных игл электрический; 6 - шкаф вытяжной; 7 - шкаф медицинский
инструментальный; 8 - холодильник; 9 - умывальник керамический; 10 - стойка инфузионная
мобильная

Рисунок А.13 - Помещение приготовления инфузионных систем

Ключевые слова: функциональная структура гериатрических организаций, планировочные решения помещений, медико-социальное обслуживание, обеспечение надежности и безопасности

 



© 2013 Ёшкин Кот :-)