Plates of coverings and overlapping national teams ferro-concrete with preliminary intense armature for flights to 7,2 m.\rTechnical requirements to installation and control of their performance 

Информационная система
«Ёшкин Кот»

XXXecatmenu

НАЦИОНАЛЬНОЕ ОБЪЕДИНЕНИЕ СТРОИТЕЛЕЙ

Стандарт организации

ПЛИТЫ ПОКРЫТИЙ И ПЕРЕКРЫТИЙ
СБОРНЫЕ ЖЕЛЕЗОБЕТОННЫЕ С
ПРЕДВАРИТЕЛЬНО НАПРЯЖЕННОЙ
АРМАТУРОЙ ДЛЯ ПРОЛЕТОВ
ДО 7,2 М

Технические требования к монтажу
и контролю их выполнения

СТО НОСТРОЙ 2.7.55-2011

Москва 2012

Предисловие

1 РАЗРАБОТАН

«ЦНИИПромзданий»

2 ПРЕДСТАВЛЕН НА УТВЕРЖДЕНИЕ

Комитетом по промышленному строительству Национального объединения строителей, протокол от 23 декабря 2011 г. № 15

3 УТВЕРЖДЕН И ВВЕДЕН В ДЕЙСТВИЕ

Решением Совета Национального объединения строителей, протокол от 30 декабря 2011 г. № 24

4 ВВЕДЕН

ВПЕРВЫЕ

СОДЕРЖАНИЕ

Введение. 2

1 Область применения. 2

2 Нормативные ссылки. 3

3 Термины и определения. 4

4 Общие положения. 6

5 Входной контроль. 6

6 Транспортирование и хранение. 7

7 Монтаж плит перекрытия и покрытия. 10

8 Сдача-приемка монтажных работ и контроль качества их выполнения. 14

9 Демонтаж и утилизация плит перекрытия и покрытия. 15

10 Консервация объекта при временном прекращении монтажных работ. 16

11 Правила безопасного выполнения работ при монтаже плит перекрытий и покрытий. 17

Приложение А. (справочное) Примеры распространенных дефектов плит массового применения. 17

Приложение Б. (рекомендуемое) Выбор кранов для монтажа строительных конструкций. 20

Приложение В. (рекомендуемое) Строповочные приспособления для монтажа плит. 23

Приложение Г. (справочное) Номенклатура плит массового применения. 26

Приложение Д. (справочное) Краны для монтажа строительных конструкций. 27

Библиография. 29

Введение

Настоящий стандарт разработан в рамках Программы стандартизации Национального объединения строителей и направлен на реализацию Градостроительного кодекса Российской Федерации, Федерального закона от 27 декабря 2002 г. № 184-ФЗ «О техническом регулировании», Федерального закона от 30 декабря 2009 г. № 384-ФЗ «Технический регламент о безопасности зданий и сооружений», Федерального закона от 23 ноября 2009 г. № 261-ФЗ «Об энергосбережении и о повышении энергетической эффективности и о внесении изменений в отдельные законодательные акты Российской Федерации», приказа Министерства регионального развития Российской Федерации от 30 декабря 2009 г. № 624 «Об утверждении Перечня видов работ по инженерным изысканиям, по подготовке проектной документации, по строительству, реконструкции, капитальному ремонту объектов капитального строительства, которые оказывают влияние на безопасность объектов капитального строительства».

Целью разработки стандарта является конкретизация общих положений СП 48.13330.2011 «СНиП 12-01-2004 Организация строительства» и СП 70.13330.2011 «СНиП 3.03.01-87 Несущие и ограждающие конструкции» применительно к монтажу сборных железобетонных плит перекрытия и покрытия с предварительно напряженной арматурой.

При разработке стандарта использованы действующие нормативные документы, современные зарубежные и отечественные технологии (Э.Н. Кодыш «Учет влияния работы железобетонных конструкций в стадии монтажа на эксплуатационный период», А.Д. Киреев «Технология возведения зданий и специальных сооружений»), а также опыт и наработки авторов стандарта.

Авторский коллектив: канд. техн. наук Н.Г. Келасьев, докт. техн. наук, проф. Н.Н. Трекин, докт. техн. наук, проф. Э.Н. Кодыш, И.В. Гузь (ОАО «ЦНИИПромзданий») канд. техн. наук, проф. А.А. Гончаров (МГСУ).

СТАНДАРТ НАЦИОНАЛЬНОГО ОБЪЕДИНЕНИЯ СТРОИТЕЛЕЙ

ПЛИТЫ ПОКРЫТИЙ И ПЕРЕКРЫТИЙ СБОРНЫЕ
ЖЕЛЕЗОБЕТОННЫЕ С ПРЕДВАРИТЕЛЬНО НАПРЯЖЕННОЙ
АРМАТУРОЙ ДЛЯ ПРОЛЕТОВ ДО 7,2 М

Технические требования к монтажу и контролю их выполнения

Roof and floor precast reinforced concrete slabs
with prestressed reinfocement for span to 7,2 m.

Specification to erection and control of their performance.

1 Область применения

1.1 Настоящий стандарт распространяется на сборные железобетонные плиты покрытий и перекрытий многопустотные и ребристые пролетом до 7,2 м с предварительно напряженной арматурой.

1.2 Стандарт устанавливает основные нормы и правила входного контроля, транспортирования, складирования, монтажа, сдачи-приемки монтажных и демонтажных работ при возведении зданий и сооружений различного назначения, а также контроля качества их выполнения и консервации конструкций при временном прекращении монтажных работ.

2 Нормативные ссылки

В настоящем стандарте использованы нормативные ссылки на следующие стандарты и своды правил:

ГОСТ 2601-84 Сварка металлов. Термины и определения основных понятий

ГОСТ 3242-79 Соединения сварные. Методы контроля качества

ГОСТ 9561-91 Плиты перекрытий железобетонные многопустотные для зданий и сооружений. Технические условия

ГОСТ 10922-90 Арматурные и закладные изделия сварные, соединения сварные арматуры и закладных изделий железобетонных конструкций. Общие технические условия

ГОСТ 13015-2003 Изделия железобетонные и бетонные для строительства. Общие технические требования. Правила приемки, маркировки, транспортирования и хранения

ГОСТ 14098-91 Соединения сварные арматуры и закладных изделий железобетонных конструкций. Типы, конструкции и размеры

ГОСТ 16504-81 Система государственных испытаний продукции. Испытания и контроль качества продукции. Основные термины и определения

ГОСТ 17624-87 Бетоны. Ультразвуковой метод определения прочности

ГОСТ 18105-2010* Бетоны. Правила контроля и оценки прочности

___________

*Вводится в действие на территории Российской Федерации с 01.09.2012 вместо ГОСТ Р 53231-2008

ГОСТ 21506-87 Плиты перекрытий железобетонные ребристые высотой 300 мм для зданий и сооружений. Технические условия

ГОСТ 22690-88 Бетоны. Определение прочности механическими методами неразрушающего контроля

ГОСТ 23407-78 Ограждения инвентарные строительных площадок и участков производства строительно-монтажных работ. Технические условия

ГОСТ 23616-79 Система обеспечения точности геометрических параметров в строительстве. Контроль точности

ГОСТ 24258-88 Средства подмащивания. Общие технические условия

ГОСТ 24259-80 Оснастка монтажная для временного закрепления и выверки конструкций зданий. Классификация и общие технические требования

ГОСТ 26433.1-89 Система обеспечения точности геометрических параметров в строительстве. Правила выполнения измерений. Элементы заводского изготовления

ГОСТ 26433.2-94 Система обеспечения точности геометрических параметров в строительстве. Правила выполнения измерений параметров зданий и сооружений

ГОСТ 26887-86 Площадки и лестницы для строительно-монтажных работ. Общие технические условия

ГОСТ 27215-87 Плиты перекрытий железобетонные ребристые высотой 400 мм для производственных зданий промышленных предприятий. Технические условия

ГОСТ 28042-89 Плиты покрытий железобетонные для зданий предприятий. Технические условия

ГОСТ 28570-90 Бетоны. Методы определения прочности по образцам, отобранным из конструкций

ГОСТ Р 53778-2010 Здания и сооружения. Правила обследования и мониторинга технического состояния. Общие требования

СП 48.13330.2011 «СНиП 12-01-2004 Организация строительства»

СП 70.13330.2011 «СНиП 3.03.01-87 Несущие и ограждающие конструкции»

Примечание - При пользовании настоящим стандартом целесообразно проверить действие ссылочных стандартов и сводов правил в информационной системе общего пользования - на официальных сайтах национального органа Российской Федерации по стандартизации и НОСТРОЙ в сети Интернет или по ежегодно издаваемым информационным указателям, опубликованным по состоянию на 1 января текущего года. Если ссылочный документ заменен (изменен), то при пользовании настоящим стандартом следует руководствоваться новым (измененным) документом. Если ссылочный документ отменен без замены, то положение, в котором дана ссылка на него, применяется в части, не затрагивающей эту ссылку.

3 Термины и определения

В настоящем стандарте применены следующие термины с соответствующими определениями:

3.1 балка: Конструктивный элемент, обычно в виде бруса, работающий главным образом на изгиб.

3.2 входной контроль: Контроль продукции поставщика, поступающей к потребителю или заказчику и предназначаемой для использования при изготовлении, ремонте или эксплуатации.

[ГОСТ 16504-81, пункт 100]

3.3 выборочный контроль: Контроль партии продукции путем проверки каждой единицы продукции, входящей в одну или несколько специально отобранных выборок.

3.4 демонтаж: Разборка на отдельные части здания или сооружения.

3.5 дефект: Каждое отдельное несоответствие продукции установленным в стандартах, технических условиях и проектах требованиям на всех стадиях ее создания и использования.

3.6 закладная деталь в железобетоне: Металлическая деталь, устанавливаемая в железобетонных элементах до бетонирования.

Примечание - Закладные детали служат для соединения конструкций между собой, для установки и крепления к ним технологического оборудования и т.д.

3.7 колонна: Архитектурно обработанная вертикальная опора, поддерживающая балку, перекрытие или пяту арки.

3.8 кран подъемный: Подъемно-транспортный механизм для подъема, опускания и перемещения грузов в горизонтальном направлении.

3.9 мониторинг: Комплексная система наблюдений, оценки и прогноза изменений изделий и конструктивных систем.

3.10 монтаж: Сборка, установка в проектное положение с последующим постоянным закреплением конструкций или конструктивных элементов здания, сооружения, технологического оборудования.

3.11 операционный контроль: Контроль продукции или процесса во время выполнения или после завершения технологической операции.

[ГОСТ 16504-81, пункт 101]

3.12 перекрытие: Несущая, междуэтажная горизонтальная конструкция, являющаяся одновременно потолком нижележащего этажа и полом вышележащего.

Примечание - Перекрытие выполняется в виде монолитной железобетонной плиты или из сборных плит в балочном или безбалочном конструктивном варианте.

3.13 периодические испытания: Контрольные испытания выпускаемой продукции, проводимые в объемах и в сроки, установленные нормативно-технической документацией, с целью контроля стабильности качества продукции и возможности продолжения ее выпуска.

[ГОСТ 16504-81, пункт 48]

3.14 плита: Горизонтальный плоскостной элемент сооружения, предназначенный для восприятия вертикальных эксплуатационных нагрузок и передачи их на несущие элементы.

Примечания

1 Плиты применяются в строительстве зданий и сооружений различного назначения и выполняют разнообразные функции (несущую, ограждающую, звукопоглащающую и т. и.).

2 Несущими элементами сооружения являются балки, ригели, колонны, стены и т.д.

3.15 покрытие: Комплекс несущих и ограждающих элементов крыши, включающий плиты.

Примечание - Покрытия применяются главным образом для изоляция находящихся под ним помещений от внешних воздействий.

3.16 приемосдаточные испытания: Контрольные испытания продукции при приемочном контроле.

[ГОСТ 16504-81, пункт 47

 

3.17 приемочный контроль: Контроль продукции, по результатам которого принимается решение о ее пригодности к поставкам и (или) использованию.

[ГОСТ 16504-81, пункт 102]

Примечание - Решение о пригодности продукции к поставкам и (или) использованию принимается с учетом результатов входного и операционного контроля, а также приемо-сдаточных и периодических испытаний.

3.18 прокладка: Элемент, разделяющий конструкции при складировании и транспортировке.

Примечание - Прокладки используются для обеспечения фиксированной передачи нагрузки и снижения риска возникновения дефектов.

3.19 реконструкция здания (сооружения): Изменение параметров объекта капитального строительства, его частей (высоты, количества этажей, площади, объема), в том числе надстройка, перестройка, расширение объекта капитального строительства, а также замена и (или) восстановление несущих строительных конструкций объекта капитального строительства, за исключением замены отдельных элементов таких конструкций на аналогичные, или иные улучшающие показатели таких конструкций элементы и (или) восстановление указанных элементов (по статье 1 Федерального закона от 28 ноября 2011 г. № 337-РФ [1]).

3.20 ригель: Линейный несущий элемент строительных конструкций зданий или сооружений, расположенный горизонтально или наклонно, соединяющий вертикальные элементы и служащий опорой для прогонов или плит, устанавливаемых в перекрытиях или покрытиях зданий.

Примечание - Соединения ригелей с вертикальными элементами (стойками и колоннами) осуществляются жестко или шарнирно.

3.21 сварка: Получение неразъемных соединений посредством установления межатомных связей между соединяемыми частями при их нагревании и (или) пластическом деформировании.

[ГОСТ 2601-84, пункт 1]

3.22 строительный материал: Материал, предназначенный для создания строительных конструкций зданий и сооружений и изготовления строительных изделий.

3.23 строп: Грузозахватное приспособление, выполненное обычно из стального каната или цепи (одна или несколько ветвей), снабженное на конце крюком, скобой, кольцом и т.д.

3.24 технический контроль: Проверка соответствия объекта установленным техническим требованиям.

[ГОСТ 16504-81, пункт 81]

3.25 трещиностойкость: Способность железобетонных конструкций сопротивляться образованию трещин или их раскрытию под действием нагрузок и воздействий.

4 Общие положения

4.1 Плиты, применяемые при возведении здания или сооружения, должны соответствовать проекту и отвечать требованиям ГОСТ 9561, ГОСТ 21506, ГОСТ 27215.

4.2 Оформление исполнительной документации при производстве работ необходимо осуществлять в соответствии с РД-11-02-2006 [2] и РД-11-05-2007 [3].

4.3 Работы по монтажу плит, начиная с входного контроля материалов и заканчивая сдачей-приемкой здания в целом или его отдельных частей, а также консервации и демонтажу, следует выполнять в соответствии с требованиями настоящего стандарта.

5 Входной контроль

5.1 При поступлении плит на строительную площадку необходимо выполнить следующие операции входного контроля:

- проверку наличия сопроводительного документа о качестве плит и их соответствии заданному типу (марке) - ГОСТ 9561, ГОСТ 21506, ГОСТ 27215;

- проверку наличия маркировки на плитах (в соответствии с ГОСТ 13015) и ее соответствие данным, указанным в сопроводительном документе;

- предварительное визуальное обследование плит для установления отсутствия недопустимых дефектов и повреждений (трещин, повреждений бетона в зоне анкеровки напрягаемой арматуры, сколов, наплывов бетона и др., приведенных в приложении А).

5.2 После разгрузки плит должен быть выполнен сплошной визуальный контроль и выборочные измерения по определению геометрических параметров, качества поверхностей, наличия трещин раскрытием более 0,1 мм, прочности бетона плит.

5.2.1 Измерения по определению геометрических параметров, качества поверхностей, наличия трещин и прочности бетона плит должны проводиться не менее чем на 10 % конструкций, но не менее трех.

5.2.2 Отклонения от номинальных размеров плит, указанных в рабочих чертежах, не должны превышать следующих значений:

- по длине плит ±8 мм (при длине до 4 м) и ±10 мм (при длине свыше 4 м);

- по толщине плит ±5 мм;

- по ширине плит ±6 мм (при ширине до 2,5 м) и ±8 мм (при ширине свыше 2,5 м).

5.2.3 Отклонение от плоскостности лицевой нижней (потолочной) поверхности плиты при измерениях от условной плоскости, проходящей через три угловые точки плиты, не должно превышать 8 мм.

5.2.4 Отклонения от проектного положения стальных закладных изделий не должны превышать:

- в плоскости плиты - 10 мм;

- из плоскости плиты - 5 мм.

5.2.5 Качество поверхностей и внешний вид плит в зависимости от установленной категории поверхностей должны отвечать требованиям, приведенным в таблице 1.

5.2.6 Правила выбора средств измерения и выполнения измерений для контроля параметров, указанных в 5.2.2 - 5.2.5, установлены в ГОСТ 26433.1; ГОСТ 26433.2.

Таблица 1

в миллиметрах

 

Наименование бетонной поверхности

Категория поверхностей

Диаметр раковин

Высота (глубина) наплыва (впадин)

Глубина сколов

Длина сколов на 1 м ребра

Нижняя потолочная

А2

1

1

5

50

Верхняя, под линолеум

А4

10

1

5

50

Боковая

А7

20

-

20

-

5.2.7 Поставленные на монтаж плиты перекрытий не должны иметь: - жировых и ржавых пятен на лицевых поверхностях плит;

- трещин на поверхностях плит, за исключением усадочных и других поверхностных технологических трещин шириной более 0,1 мм;

- наплывов бетона на открытых поверхностях стальных закладных изделий, выпусках арматуры и монтажных петлях.

5.2.8 Выборочный контроль (см. 5.2.1) прочности бетона осуществляется путем определения класса бетона плит по прочности на сжатие по ГОСТ 18105.

5.2.8.1 Прочность бетона плит должна соответствовать отпускной, установленной в зависимости от времени года, но не менее 70 % от проектного значения.

5.2.8.2 Контроль прочности бетона выполняют с использованием метода упругого отскока (склерометры), метода ударного импульса и метода скалывания ребра по ГОСТ 22690 или ультразвукового метода по ГОСТ 17624.

5.2.8.3 В плите с наименьшими значениями прочности бетона, близкими к проектному или ниже проектного значения, используют дополнительно метод отрыва со скалыванием по ГОСТ 28570.

Примечание - Могут применяться другие методики определения прочности бетона методом отрыва со скалыванием, например, по СТО 02495307-005-2008 [4].

Класс бетона по прочности на сжатие вычисляют с учетом действительного среднего квадратического отклонения а, полученного по результатам не менее шести измерений, выполненных в одном изделии.

5.3 При обнаружении недопустимых дефектов или отклонений, превышающих установленные допуски, при входном контроле составляется акт с участием представителя строительной организации, завода изготовителя, автора проекта и заказчика (примеры наиболее распространенных дефектов приведены в приложении А).

Решение о возможности использования плиты (партии плит) при условии выполнения необходимого ремонта (усиления) принимается после проведения обследования и оценки соответствия требованиям ГОСТ 9561, ГОСТ 21506, ГОСТ 28042 и ГОСТ 27215.

6 Транспортирование и хранение

6.1 Транспортирование и хранение плит должны осуществляться в соответствии с требованиями настоящего стандарта и ГОСТ 13015.

Способы складирования и хранения детализируются в технических условиях заводов-изготовителей.

Выбор транспортных средств производят на стадии разработки проекта производства работ с учетом размеров плит, дальности перевозки, дорожных условий.

6.2 Доставка плит на строительную площадку осуществляется железнодорожным или автомобильным транспортом. При доставке железнодорожным транспортом разгрузку плит производят на прирельсовый склад, где осуществляется первичный входной контроль и сортировка плит с последующей подачей (по потребности) на приобъектный склад.

6.3 Плиты следует транспортировать и хранить в горизонтальном положении в штабелях высотой не более 2,5 м.

6.4 При перевозке на железнодорожных платформах плиты длиной до 6,5 м укладывают в два штабеля в один или более рядов по ширине платформы с горизонтальными прокладками.

6.4.1 Закрепление плит производится при помощи стоек и связевых поперечных брусков, закрепленных двумя парами растяжек из проволоки диаметром 6 мм в шесть нитей. Верхний и нижний поперечные бруски прибивают к стойкам, нижний брусок, кроме того, к полу платформы четырьмя гвоздями длиной не менее 150 мм, как показано на рисунке 1.

6.4.2 В таблице 2 приведены основные характеристики конструкций типовых серий и возможности погрузки их на платформы.

Таблица 2

Наименование

Погрузка на платформу

Погрузка в полувагон

Количество, шт.

Суммарная масса, т

Количество, шт.

Суммарная масса, т

Ребристые плиты покрытия размером 3×6 по ГОСТ 28042, серии 1.465.1-17 [5]

12

32,2

-

-

Ребристые плиты перекрытия размером 5,55×3 по ГОСТ 27215, серии 1.442.1-1 [6]

12

58,2

-

-

Многопустотные плиты размером 1,5×6 по ГОСТ 9561, серии 1.041.1-3 [7]

24

62,4

24

62,4

6.4.3 Для транспортировки плит также используют специальные составы, вагоны которых оборудованы кассетами, сварными каркасами и контейнерами. Конструкция такого каркаса показана на рисунке 2.

6.5 Автомобильный транспорт рекомендуется использовать при перевозках на расстояние до 500 км. Для перевозки плит используют, как правило, специализированные автотранспортные средства (панелевозы).

Примечания

1 Наибольшее распространение получили автопоезда, состоящие из седельного тягача и специализированного полуприцепа.

2 По погрузочной высоте (расстояние от плоскости, по которой осуществляется опирание перевозимого груза, до уровня земли) полуприцепы подразделяются на три типа: высокорамные, погрузочная высота которых больше высоты расположения седельно-сцепного устройства и больше диаметра колес полуприцепа; низкорамные, погрузочная высота которых меньше высоты расположения седельно-сцепного устройства и меньше диаметра колес полуприцепа; полунизкорамные, погрузочная высота которых меньше высоты расположения седельно-сцепного устройства и больше диаметра колес полуприцепа.

1 - боковые стойки; 2 - прокладка; 3 - поперечные бруски; 4 - торцовые стойки;
5 - подкладка; 6 - увязка стоек; 7 - растяжка

Рисунок 1 - Размещение и крепление железобетонных плит на платформе при перевозке их по железной дороге

Рисунок 2 - Схема контейнера для перевозки плит

Перевозку плит на большие расстояния рекомендуется производить в специально смонтированных контейнерах. При их отсутствии крепление плит производится при помощи специальных приспособлений (см. 6.4).

6.6 При перевозке и хранении плит деревянные подкладки и прокладки в штабеле должны устанавливаться строго по одной вертикали вблизи монтажных петель со стороны торцов плит. Ширина прокладки назначается с учетом прочности древесины на смятие. Толщина прокладки должна обеспечивать наличие зазора от верха монтажной петли не менее 20 мм.

6.7 Штабели плит (см. рисунок 3), рассортированные по маркам, располагают на приобъектном складе в зоне действия монтажного крана. Расстояние между соседними штабелями должно быть не менее 0,2 м, ширина прохода между рядами штабелей - не менее 1 м.

1 - плита перекрытия; 2 - брус деревянный 100×100 мм;
3 - брусок деревянный 60×40 мм

Рисунок 3 - Порядок складирования плит перекрытия и покрытия

6.8 При хранении и перевозке многопустотных плит, особенно в предзимний и зимний периоды, следует предохранять их от попадания влаги в пустоты.

7 Монтаж плит перекрытия и покрытия

7.1 Монтаж плит осуществляют с использованием монтажных кранов (башенных или самоходных стреловых) и необходимой монтажной оснастки. Выбор крана производится в соответствии с приведенными в приложении Б правилами.

Монтаж плит должен предусматривать выполнение:

- подготовительных работ;

- строповки плиты;

- подъема и перемещения плиты к месту укладки;

- установки плиты в положение, близкое к проектному;

- заключительных операций монтажа плит.

7.2 При отсутствии или ограниченных размерах стройплощадки (стесненные городские условия) монтаж конструкций может осуществляться непосредственно с транспортных средств - «с колес».

При этом необходимо:

- наличие проекта организации монтажных работ в условиях, затрудняющих складирование монтируемых конструкций;

- наличие почасового графика поставки монтируемых конструкций на строящийся объект, увязанного с технологической последовательностью их монтажа;

- выполнение требований раздела 5.

7.3 Подготовительные работы должны включать следующие операции и процессы:

- проверку соответствия маркировки проекту;

- визуальную проверку отсутствия механических повреждений;

- очистку закладных деталей и опорных зон;

- при необходимости нанесение на плиту монтажной разметки;

- проверку наличия акта освидетельствования (приемки) ранее выполненных работ;

- очистку опорных поверхностей ранее смонтированных конструкций (стен, ригелей);

- нанесение разметки, определяющей проектное положение плит на опорах.

7.3.1 До начала монтажа с помощью нивелира, рулетки или стального метра необходимо проверить соответствие отметок и площадок опирания проектным в соответствии с ГОСТ 26433.2.

7.3.2 Визуально должно быть проверено наличие антикоррозионного покрытия закладных деталей, особенно в зоне монтажной сварки, перед замоноличиванием швов.

7.4 Для строповки плит с монтажными петлями используют универсальный четырехветвевой строп с подвеской, обеспечивающей равномерность усилий в ветвях стропа.

7.4.1 Необходимая длина стропа определяется из условия обеспечения угла не менее 45° между горизонтальной поверхностью плиты и канатом. Разрывное усилие для используемого каната должно не менее чем в 6 раз превышать усилие, действующее в канате при подъеме плиты.

7.4.2 Для строповки многопустотных плит с беспетлевыми строповочными узлами используют балансирные четырехветвевые стропы со специальными захватными устройствами, согласно рекомендациям [8].

7.4.3 При применении специальных захватных устройств для плит с беспетлевыми строповочными узлами требуется разработка технологической карты на монтаж с применением данного устройства.

7.4.4 Конструкции строповочных устройств приведены в приложении В.

7.5 Укладка первых плит междуэтажных перекрытий или покрытий производится с тех же поэтажных подмостей, которые применялись для монтажа конструкций стен или ригелей каркасных зданий. Последующие плиты укладывают непосредственно с уже уложенных плит

7.5.1 В одноэтажных зданиях первой укладывают одну из крайних плит, для чего используют подмости, с которых устанавливали балки или фермы на колонны или подстропильные конструкции. Последующие плиты укладывают с ранее уложенных. Крайние плиты таких покрытий укладываются с закрепленными к ним конструкциями ограждения.

7.5.2 При реконструкции зданий производят укладку плит перекрытий в штрабы существующих стен с применением строповочных устройств, позволяющих поднимать плиты с регулируемым наклоном, как показано на рисунке 4.

Рисунок 4 - Способы подачи плит при опирании в штрабах существующих стен

7.5.3 Последовательность операций по монтажу плит перекрытия показана на рисунке 5. После заведения одного конца плиты в увеличенную штрабу (см. а) рисунка 5) плиту переводят в горизонтальное положение (см. б) рисунка 5) и перемещают в сторону противоположной штрабы, контролируя симметричность опирания (см. в) рисунка 5).

а) заведение одного конца плиты в увеличенную штрабу; б) переведение плиты в горизонтальное
положение; в) контроль симметричного опирания плиты

Рисунок 5 - Последовательность установки плиты перекрытия в проектное

7.5.4 Укладку плит в направлении перекрываемого пролета надлежит выполнять с соблюдением установленных размеров глубины опирания их на конструкции или зазоров между сопрягаемыми элементами.

Для плит длиной 6 м глубина опирания должна быть:

- при опирании на железобетонные конструкции - не менее 80 мм;

- при опирании на кирпичную кладку - не менее 120 мм (см. рисунки 6 - 11);

- при опирании на стальные конструкции - не менее 70 мм.

7.5.5 Установку плит в поперечном направлении перекрываемого пролета следует выполнять по разметке, определяющей их проектное положение.

7.5.6 При укладке многопустотных плит перекрытий и покрытий на раствор совмещают поверхности смежных плит вдоль шва со стороны потолка. Толщина слоя раствора должна быть не более 20 мм.

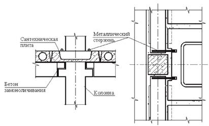
Рисунок 6 - Схема опирания сантехнической межколонной плиты многопустотного перекрытия на ригель по серии 1.020.1-4/91 [9]

Рисунок 7 - Схема опирания многопустотного перекрытия с многопустотной межколонной плитой на ригель по серии 1.020.1-4/91 [9]

Рисунок 8 - Схема опирания ребристого перекрытия на сборный ригель по серии 1.020.1-4/91 [9]

Рисунок 9 - Схема опирания ребристых плит на ригель по крайней оси

Рисунок 10 - Схема опирания многопустотных плит на ригель по крайней оси

Рисунок 11 - Схема опирания многопустотних плит на кирпичную кладку

7.5.7 Ребристые плиты перекрытий и покрытий укладывают по ригелям, фермам (балкам) насухо на опорные поверхности, приваривая к несущим конструкциям закладные детали в продольных ребрах в соответствиями с указаниями проекта.

7.5.8 Возможность применения подкладок для выравнивания укладываемых плит по отметкам должна быть согласована с проектной организацией.

7.6 Заключительные операции по монтажу плит включают в себя: закрепление плиты в проектном положении, проверку правильности установки плиты, приемку сварных соединений и (или) замоноличивание швов.

7.6.1 Для закрепления плиты в проектном положении должна выполняться сварка опорных закладных деталей плит с несущими конструкциями покрытия (перекрытия), а также закладных деталей связевых плит в соответствии с ГОСТ 10922.

7.6.2 Проверка правильности установки плиты в проектом положении должна производиться в соответствии с требованиями рабочей документации и 8.4.

7.6.3 Приемка сварных соединений должна производиться в соответствии с ГОСТ 3242 и ГОСТ 14098.

7.6.4 Замоноличивание стыков следует выполнять после проверки правильности установки плит, приемки сварных соединений элементов в узлах сопряжений и выполнения их антикоррозионного покрытия, а также закладных изделий на поврежденных участках покрытия.

7.6.4.1 Бетонные смеси, используемые для замоноличивания стыков, должны отвечать требованиям проекта. Наибольший размер зерен крупного заполнителя в бетонной смеси не должен превышать 1/3 наименьшего размера сечения стыка.

7.6.4.2 При монтаже многопустотных плит заделка пустот в торцах плит должна быть выполнена бетонными цилиндрами, а при их отсутствии - раствором.

Примечание - Заделка пустот в торцах плит бетонными цилиндрами выполняется для узлов опирания на торцевые зоны плит вышерасположенных стен, нагрузка от которых может вызвать смятие бетона в опорных зонах плит.

8 Сдача-приемка монтажных работ и контроль качества их выполнения

8.1 Сдача выполненных работ по монтажу плит производится в комплексе со сдачей-приемкой всех видов общестроительных работ по возведению здания в целом или его отдельных частей.

8.2 В ходе сдачи-приемки проверяются полнота и правильность оформления исполнительной документации в соответствии с РД-11-02-2006 [2] и РД-11-05-2007 [3]. Оценка качества выполненных работ на объекте производится с учетом имевших место нарушений, отраженных в исполнительной документации.

8.3 Оценка качества монтажа отдельных элементов производится по результатам измерений, позволяющих определить отклонения положения плит от проектных параметров с погрешностью, не превышающей 0,2 от значения предельного (допустимого) отклонения (см. 8.4). Выбор средств измерений осуществляют в соответствии с ГОСТ 23616 и ГОСТ 26433.1.

8.4 Разность отметок лицевых поверхностей двух смежных плит перекрытий в шве, несимметричность опирания плит (смещение в направлении перекрываемого пролета) не должны превышать значений, приведенных в таблице 3. Контролируемые параметры изображены на рисунке 12.

Таблица 3

В миллиметрах

Предельные отклонения

Величина

отклонения

Разности отметок лицевых поверхностей двух смежных непреднапряженных плит перекрытий в шве при длине плит:

- до 4000

- свыше 4000 до 7200

8

10

От симметричности (половина разности глубины опирания концов элемента) при установке плит в направлении перекрываемого пролета при длине

элемента:

- до 4000

- свыше 4000 до 7200

5

6

Рисунок 12 - Контролируемые геометрические параметры

9 Демонтаж и утилизация плит перекрытия и покрытия

9.1 Демонтаж плиты выполняется с учетом конструктивных, объемно-планировочных и других особенностей здания, должен сопровождаться мерами по обеспечению безопасности людей и исключать возможность повреждения инженерных сетей или строительных конструкций здания.

Примечание - Необходимость демонтажа плит (полная или частичная) может возникнуть при демонтаже или реконструкции здания, а также при повреждении одной или нескольких плит в процессе возведения или эксплуатации здания.

9.2 Демонтаж плиты выполняется в обязательном порядке на основе ППР, обеспечивающего безопасное ведение работ.

9.3 При демонтаже плиты с использованием крана целиком (без деления плиты на части) прорезают все швы омоноличивания и опорные сварные соединения. С помощью рычажного инструмента или домкрата создают вертикальное или горизонтальное смещение на величину от 1 до 2 см с целью проверки отсутствия креплений в опорных зонах.

9.4 При демонтаже плиты по частям предварительно должны быть установлены дополнительные опоры и инвентарные страховочные стойки для фиксации отделяемых по очереди с помощью стенорезной, дисковой или канатной алмазной резки и удаляемых отдельных частей плиты.

9.5 В проекте демонтажа железобетонных изделий должна быть предусмотрена утилизация железобетонных элементов.

Примечание - Утилизация железобетонных элементов осуществляется для:

- повышения экологичности строительных работ;

- получения строительного материала широкого спектра использования;

- получения металла для вторичной переработки.

9.5.1 В проекте следует предусматривать один из двух способов утилизации железобетонных конструкций:

- вывоз демонтированных железобетонных элементов на специализированный полигон, где производят их дальнейшую переработку;

- переработка железобетонных элементов непосредственно на строительной площадке, где производится разборка.

9.5.2 Процесс утилизации состоит из следующих операций:

- сортировка железобетонных элементов;

- очистка демонтированных железобетонных элементов от грунта, деревянных и полимерных включений;

- извлечение из перерабатываемой бетонной массы металлических закладных деталей, арматуры и элементов креплений;

- получение чистого щебня с возможностью регулировки фракций.

10 Консервация объекта при временном прекращении монтажных работ

10.1 Состав работ по консервации недостроенного объекта зависит от предполагаемого срока консервации, периода действия (зимний, летний и т.д.) и определяется в специально разработанном ППР.

10.2 До консервации объекта в обязательном порядке должна быть выполнена обратная засыпка пазух и защита от намокания материалов и конструкций, изменяющих свои свойства при насыщении водой, особенно в период ее замерзания.

10.3 При консервации на зимний период необходимы устройство временного кровельного покрытия и защита всех оконных и наружных дверных проемов изоляционным материалом от возможности попадания влаги внутрь здания.

Для перекрытий из многопустотных плит (их номенклатура приведена в приложении Г) не допускается заполнение одной или нескольких пустот водой с последующим воздействием отрицательных температур.

Для перекрытий из ребристых плит (их номенклатура приведена в приложении Г) не допускается скопление влаги в зонах расположения закладных деталей и сварных соединений с несущими конструкциями.

10.4 В зимний период должна быть организована еженедельная проверка сохранности защитных конструкций.

10.5 При расконсервации объекта до возобновления строительных работ необходимо выполнить обследование всех строительных конструкций в соответствии с ГОСТ Р 53778 с составлением дефектной ведомости, выполнением при необходимости поверочных расчетов, определением категории технического состояния конструкций и разработкой рекомендаций по устранению обнаруженных дефектов и повреждений.

11 Правила безопасного выполнения работ при монтаже плит перекрытий и покрытий

11.1 Монтажники и такелажники при производстве работ обязаны выполнять требования безопасности согласно СП 12-135-2003 [10].

11.2 Погрузочно-разгрузочные работы следует выполнять механизированным способом, используя подъемно-транспортное оборудование и средства малой механизации.

11.3 Строительная площадка, расположенная в населенном пункте, должна быть ограждена в соответствии с требованиями ГОСТ 23407.

11.4 Средства подмащивания, приставные лестницы и другие приспособления должны обеспечивать безопасность производства работ и отвечать требованиям ГОСТ 26887, ГОСТ 24259, ГОСТ 24258.

11.5 Рабочие места и проходы к ним, размещенные на перекрытиях или покрытиях, расположенных на высоте более 1,3 м и на расстоянии менее 2 м от границы перепада по высоте, должны иметь защитные или страховочные ограждения, а при расстоянии более 2 м - сигнальные ограждения.

11.6 После установки конструкции в проектное положение необходимо произвести ее закрепление (постоянное или временное) согласно требованиям проекта. При этом должна быть обеспечена устойчивость и неподвижность смонтированной конструкции при воздействии монтажных и ветровых нагрузок.

Крепление следует производить за ранее закрепленные анкера или конструкции, обеспечивая геометрическую неизменяемость строящегося здания (сооружения).

11.7 Монтаж плит на свежеуложенную кладку не допускается.

Приложение А
(справочное)

Примеры распространенных дефектов плит массового применения

А.1 В таблице А.1 приведены примеры наиболее часто встречающихся дефектов.

А.2 Причины возникновения дефектов плит, приведенных в таблице А.1, могут быть уточнены после проведения экспертизы.

Таблица А.1

Номер эскиза плиты

Эскиз

Описание дефекта

Причины возникновения

Примечания

Многопустотные плиты

1

Продольные трещины вдоль пустот между ребрами в верхней, нижней или обеих полках.

Усадочные деформации, недостаточная толщина полки, гибкость металлоформы, неравномерная плотность бетона, смещение и эксцентриситет напрягаемой арматуры, наполнение водой с последующем замерзанием в зимний период

Поврежденные полки плит и ближайший канал необходимо заделать бетоном с инъецированием в трещины. Допускается применять и без исправления только в плитах, работающих по балочной схеме. Не допускается их применение при возможности появления сосредоточенных нагрузок

2

Продольная трещина в верхней полке вдоль ребра

Усадка, дефекты при формовании

Отрубить часть плиты по ширине с уменьшением допустимой нагрузки или применять без заделки трещины и канала в плитах, работающих по балочной схеме. Нельзя допускать сосредоточенных нагрузок

3

Трещина идущая обычно по верхней полке, иногда пересекающая всю плиту. Трещина идет перпендикулярно к боковым граням или под углом 15° - 50°.

Усадка, дефекты при формовании, большие растягивающие напряжения в сжатой зоне бетона от усилия предварительного обжатия, дефекты строповки (неравномерное распределение усилий) или крепления при транспортировке

Если трещина в верхней зоне не превышает 0,1 мм, то пустоты, расположенные в зоне трещины, заделывают инъецированием бетона с целью уменьшения влияния поперечной силы в зоне трещины. Эти же трещины сверху или снизу в области положительных моментов могут не требовать заделки.

Если трещина превышает 0,1 мм, плита выбраковывается или может быть перепилена по трещине, а части плиты использованы для перекрытия уменьшенных пролетов. Плиты, применяемые после задел­ки пустот, должны быть проверены расчетом на поперечную силу, если трещина расположена у края плиты или следует учесть увеличение прогиба, если трещина в середине

4

Продольная трещина в промежуточном ребре, идущая вдоль арматуры

Наличие в бетоне крупного заполнителя больших размеров, застрявшего между пустотообразователями и вызвавшего образование пустот в зоне анкеровки арматуры

Предварительно напряженная арматура не имеет необходимой анкеровки, проскальзывает, и плита используется только после пересчета с понижением несущей способности и заделки трещин. Поперечная сила при этом воспринимается неповрежденными ребрами

5

Продольная трещина в крайнем ребре, расположенная вдоль арматуры

Неравномерная плотность бетона, наличие в бетоне крупного заполнителя больших размеров, недостаточная длина или большое расстояние между вертикальными стержнями в каркасах, воздействие агрессивной среды, коррозия арматуры, нарушение защитного слоя

Предварительно напряженная арматура не имеет необходимой анкеровки, проскальзывает, и плита используется только после пересчета с понижением несущей способности и заделки трещин. Поперечная сила при этом воспринимается неповрежденными ребрами

6

Диагональные трещины в углах плиты начинаются на торцах и могут тянуться до боковых граней. Они могут быть на верхней поверхности или на нижней, а также рассекать всю толщину плиты

Большие растягивающие напряжения в сжатой зоне бетона, дефекты строповки (неравномерное распределение усилий) и крепления при транспортировке

Плита должна быть проверена расчетом на поперечную силу и после заделки канала может быть применена

7

Мелкие локальные трещины, возникающие по верхней поверхности плиты

Усадка, дефекты при формовании

Заделка трещины затруднена, а вопрос условий применения должен решаться в индивидуальном порядке

8

Поперечные трещины, почти опоясывающие сечение плиты в дальнем конце при применении новых пустотообразователей

Повышенное трение новых пустообразователей о бетон, неправильное складирование или крепление при транспортировке

Плита получается короче на 5 - 10 мм. Нарушена анкеровка арматуры в бетоне. Плиты могут применяться только в уменьшенном пролете с пересчетом несущей способности

Ребристые плиты

9

Трещины вдоль рабочей арматуры продольных ребер

Коррозия арматуры, нарушение защитного слоя, влияние агрессивной и влажной сред, неравномерная плотность бетона, недостающая длина или большое расстояние между вертикальными стержнями в каркасах

Предварительно напряженная арматура не имеет необходимой анкеровки, плита используется только после пересчета с понижением несущей способности

10

Поперечные трещины в продольных ребрах в средней части пролета

Временная перегрузка плиты, снижение прочности бетона или площади продольной арматуры вследствие коррозии, дефекты строповки или крепления при транспортировке

Если трещина не превышает 0,1 мм, плита используется после пересчета со снижением несущей способности. Если превышает 0,1 мм, то требуется выявить причину и произвести усиление

11

Поперечные трещины в продольных ребрах у опор

Дефекты складирования или крепления при транспортировке, нарушение анкеровки продольной напрягаемой арматуры

При ширине раскрытия трещин менее 0,1 мм плита используется только после пересчета с понижением несущей способности. Если ширина раскрытия превышает 0,1 мм, требуется произвести усиление

12

Трещины в полке плиты

Снижение прочности бетона и площади арматуры, усадочные деформации, неправильное складирование, местная перегрузка, нарушение положения рабочей арматуры полки

Устройство армированной набетонки с пересчетом несущей способности

Приложение Б
(рекомендуемое)

Выбор кранов для монтажа строительных конструкций

Б.1 Исходными данными при выборе кранов являются габариты и объемно-планировочное решение здания, параметры и рабочее положение грузов, технология монтажа, условия производства работ. При этом рассматриваются как базовые модели кранов, так и их модификации с различными видами сменного оборудования (см. приложение Д).

Б.2 Выбору кранов предшествует определение организационных методов монтажа, характеризующих направление и последовательность установки элементов, установление мест расположения и схемы движения кранов.

Б.3 Выбор башенного крана начинают с предварительного определения трех основных предельных технических параметров: грузоподъемности, высоты подъема крюка и вылета стрелы. Расчетная схема приведена на рисунке Б.1.

Б.3.1 Грузоподъемность Q, т, определяется по формуле:

Q = qэл + qcnh,

(Б.1)

где q - масса наиболее тяжелого элемента, т;

qcnh - суммарная масса строповочного устройства, монтажных приспособлений, элементов усиления, т.

Б.3.2 Высота подъема крюка Н, м, определяется по формуле:

Н = h1 + h2 + h3+ h4,

(Б.2)

где h1 - высота последнего монтажного горизонта от уровня стоянки крана, м;

h2 - высота подъема элемента над опорой (h2 = 1 м);

h3 - высота (толщина) элемента, м;

h4 - высота строповки, м.

Б.3.3 Вылет стрелы L, м, определяется по формуле:

L = В + b + 1,

(Б.3)

где В - ширина здания, м;

b - расстояние от здания до оси рельсового пути, рассчитанное из условия обеспечения безопасного расстояния (не менее 1 м) от здания до наиболее выступающей части крана, м.

Б.3.4 После предварительного выбора крана в соответствии со схемой на рисунке Б.1 определяют вылеты при монтаже критических элементов (самого тяжелого, самого удаленного и др.) и по графику грузоподъемности выбранного крана проверяют возможность монтажа указанных элементов.

Б.4 Выбор самоходного стрелового крана для монтажа открытых конструкций осуществляют по двум параметрам - грузоподъемности и высоте подъема крюка, которые определяют так же, как при выборе башенного крана (см. Б.3.1 - Б.3.2). Вылет крана при этом близок к минимальному значению, при котором кран имеет минимальный запас по грузоподъемности и обеспечивает лучшие экономические показатели монтажного процесса.

Н - высота подъема крюка; (h1 - высота последнего монтажного горизонта от уровня стоянки крана;
h
2 - высота подъема элемента над опорой (h2 = 1 м); h3 - высота (толщина) элемента;
h
4 - высота строповки; В - ширина здания; b - расстояние от здания до оси рельсового пути,
рассчитанное из условия обеспечения безопасного расстояния (не менее 1 м) от здания
до наиболее выступающей части крана; L - вылет стрелы

Рисунок Б.1 Расчетная схема для выбора башенного крана

Б.5 При выборе самоходного стрелового крана для монтажа закрытых конструкций, плит покрытий и перекрытий наиболее простым является графический метод определения необходимых параметров крана (длина стрелы и вылет, при котором обеспечивается необходимая грузоподъемность).

Б.5.1 Для графического определения необходимой длины стрелы и вылета вычерчивают в любом масштабе контуры монтируемого сооружения (см. а) рисунка Б.2), проводят вертикальную ось М-М через центр тяжести монтируемой плиты и горизонтальную ось N-N через шарнир стрелы крана.

Ось стрелы крана (без гуська) проводят через точки А и В до пересечения с осью N-N. Точка А определяет безопасное расстояние стрелы до ранее смонтированных конструкций, точка В - наиболее низкое положение оголовка стрелы. Расстояние от крюка до оголовка стрелы (длина полиспаста), расстояние от уровня стоянки крана до шарнира стрелы, расстояние от шарнира до оси вращения крана, зависящие от конструктивных особенностей крана, принимают условно 1,5 м. Полученную необходимую длину стрелы ВС и вылет стрелы L измеряют линейкой.

Вращая ось стрелы вокруг точки А (см. пунктирные линии на а) рисунка Б.2), находят положения крана с уменьшенным вылетом стрелы. С учетом требуемых параметров Q и Н по графикам грузоподъемности, вылета и высоты выбирают технически пригодные краны наименьшей мощности (грузоподъемности).

Б.5.2 При выборе крана с гуськом (см. б) рисунка Б.2) от точки В по горизонтали откладывают размер гуська ВД и ось стрелы проводят через точки Д и А. Далее определение вылета и длины стрелы проводят по Б.5.1.

Б.6 Приведенный графический метод используется также в случае, когда самоходный кран для комплексного потока выбран предварительно по наиболее тяжелому элементу (например, стропильная ферма) и необходимо определить пригодность данного крана для монтажа плит покрытия.

а) схема графического определения необходимых параметров башенного крана;

б) схема графического определения необходимых параметров крана с гуськом

L - вылет стрелы; Н - высота подъема крюка; М-М - ось, проходящая через центр тяжести монтируемой
конструкции; N-N - ось, проходящая через шарнир стрелы крана; А - точка, определяющая безопасное
расстояние от стрелы до ранее смонтированных конструкций; В - наиболее низкое положение оголовка
стрелы; С - точка пересечения оси стрелы крана с осью N-N; ВД - отрезок, равный длине гуська крана

Рисунок Б.2 - Графическое определение вылета стрелы и подъема крючка

Приложение В
(рекомендуемое)

Строповочные приспособления для монтажа плит

В.1 Четырехветвевой строп типа 4СК с дополнительными овальными переходными звеньями (см. рисунок В.1) следует использовать для монтажа плит, снабженных монтажными петлями, и обеспечения равномерного распределения нагрузки по ветвям стропа.

В.2 Универсальный балансирный строп (см. рисунок В.2) со специальными захватами (см. рисунок В.3) рекомендуется использовать для монтажа многопустотных плит с беспетлевыми строповочными узлами в виде прямоугольных щелей.

В.3 Лапчатые строповочные устройства с петлями-подхватами (см. рисунки В.4, В.5) целесообразно использовать для монтажа плит, имеющих сквозные отверстия.

В.4 Зажимные захваты с автоматическим управлением (см. рисунок В.6) позволяют значительно сократить трудозатраты на строповку-расстроповку плит и не требуют оснащения плит приспособлениями для строповки.

Рисунок В.1 - Четырехветьевой строп

1 - подвеска разъемная; 2 - подвеска; 3 - блок; 4 - строп; 5 - строп страховочный;
6 - захват для строительных изделий с внутренней полостью; 7 - звено (крюк)

Рисунок В.2 Строп универсальный балансирный с захватками для строительных изделий с внутренней полостью

1 - многопустотная плита; 2 - внутренняя полость; 3 - подхватный элемент; 4 - фиксатор; 5 - упор

Рисунок В.3 - Захватное устройство для строительных изделий с внутренней полостью

а) коромыслового типа; б) стержневые (резьбовой вариант); в) стержневые (клиновой вариант)

Рисунок В.4 - Петли-подхваты для подъема плит, имеющих сквозные отверстия

1 - петля; 2 - плита перекрытия; 3 - ребро жесткости; 4 - ограничитель; 5 - противовес;
6 - поворотная планка

Рисунок В.5 - Подхват петлевой

1 - механизм фиксации; 2 - серьга; 3 - траверса; 4 - винтовой упор; 5 - рама; 6 - тяга;
7 - поворотный кронштейн; 8 - захватный орган

Рисунок В.6 - Грузозахватное устройство с автоматическим управлением

Приложение Г
(справочное)

Номенклатура плит массового применения

Г.1 В таблице Г.1 приведены характеристики универсальных плит межвидового применения для оценки их габаритов и весовых показателей.

Таблица Г.1

Эскиз

Марка плиты: из тяжелого бетона

из бетона на пористом заполнителе

Размеры, мм

Масса плиты, т:

из тяжелого бетона

из бетона на пористом заполнителе

L

b

Сборные железобетонные многопустотные плиты по ГОСТ 9561, серия 1.041.1-3 [7]

ПК56.30-5 ... ПК56.30-14

ПК56.30-6 ... ПК56.30-14

5650

2980

5,00

4,00

ПК56.15-6 ... ПК56.15-15

ПК56.15-7 ... ПК56.15-16

1490

2,60

2,10

ПК56.12-6 ... ПК56.12-11

ПК56.12-7 ... ПК56.12-12

1190

2,60

1,60

ПК68.15-5 ... ПК68.15-13

ПК68.15-5л ... ПК68.15-13

6850

1490

3,20

2,60

ПК68.15-5 ... ПК68.12-12

ПК68.12-5 ... ПК68.12-11

1190

2,50

2,00

Плиты перекрытий железобетонные ребристые высотой 400 мм по ГОСТ 27215, серия 1.442.1-1 [6]

1П1-1-В … 1П1-5

1П1-1-В … 1П1-3

5550

2985

4,85

3,88

1П2-1 1П2-5

1П2-1 1П2-3

5050

4,48

3,58

1П2-1 1П2-5

1П2-11П2-3

5550

1485

2,13

1,70

1П4-11П4-6

1П4-1 1П4-3

5050

2,10

1,70

1П5-11П5-6

1П5-11П5-3

5550

935

1,73

1,38

1П4-1 1П4-6

1П4-11П4-3

5050

1,60

1,28

Плиты перекрытий железобетонные ребристые высотой 400 мм по ГОСТ 27215, серия 1.442.1-2 [11]

2П1-12П1-5

2П1-12П1-3

5950

1485

2,40

1,90

2П1-12П1-5

2П1-12П1-3

5450

2,40

1,90

2П1-12П1-5

2П1-12П1-3

5950

1485

2,30

1,80

2П1-12П1-5

2П1-12П1-3

5950

1485

2,20

1,80

Плиты железобетонные ребристые высотой 500 мм, серия 1.442.1-3 [12]

П1-1 … П1-2

5550

1485

3,10

П2-1 … П2-2

5050

2,90

П3-2 … П3-2

5550

985

2,50

П4-1 … П4-2

5050

2,30

П5-1 … П5-2

5550

1485

3,10

П6-1 … П6-2

5050

2,90

П7-1 … П7-2

5450

1485

3,10

П8-1 … П8-2

4950

2,90

П9-1 … П9-2

5450

985

2,50

П10-1 … П10-2

4950

2,30

Плиты железобетонные ребристые размером 1,5×6 м по ГОСТ 28042, серия 1.465.1-20 [13]

4ПГ6-14ПГ6-6

4ПГ6-14ПГ6-4

5970

1480

1,50

1,30

Плиты железобетонные ребристые размером 3×6 м по ГОСТ 28042, серия 1.465.1-17 [5]

3ПГ6-13ПГ6-6

3ПГ6-13ПГ6-4

5970

2980

2,68

2,46

Плиты железо бетонные мелкоразмерные по ГОСТ 28042, серия 1.465.1-19 [14]

ПРЗ-1 … ПРЗ-5

2990

495

0,19

ПР-1

1490

0,09

Примечание - В качестве примера и для оценки габаритов и весовых показателей приведены универсальные плиты межвидового применения.

Приложение Д
(справочное)

Краны для монтажа строительных конструкций

Д.1 Типы и марки кранов.

Д.1.1 Краны разделяются на стреловые (автомобильные, пневмоколесные, гусеничные) и башенные (передвижные, приставные).

Примечание - Другие типы кранов применяются реже.

Д.1.2 Марка крана состоит из буквенной и цифровой частей и обычно отражает его отличительные особенности и грузоподъемность при минимальном вылете стрелы. Так, стреловые краны имеют следующие буквенные обозначения: К - кран; КА - кран автомобильный; МКГ, МКП, МКА - монтажный кран гусеничный, пневмоколесный, автомобильный; ДЭК - дизель-электрический кран; СКГ - специальный кран гусеничный; СМК - специальный монтажный кран; МКТ - монтажный кран на базе трактора и т.д.

Цифры чаще всего обозначают грузоподъемность крана.

Примеры

1 СКГ-63А - специальный кран гусеничный грузоподъемностью 63 т, модернизация А.

2 ДЭК-25 - дизель-электрический кран грузоподъемностью 25 т, первая модификация.

3 МКГ-40БС - монтажный кран гусеничный грузоподъемностью 40 т с башенно-стреловым оборудованием.

У кранов с буквенной индексацией КС первый цифровой индекс обозначает закодированную грузоподъемность (1 - 4 т; 2 - 6,3 т; 3 - 10 т; 4 - 16 т; 5 - 25 т; 6 - 40 т; 7 - 63 т; 8 - 100 т; 9 - свыше 100 т). Вторая цифра обозначает индекс ходового устройства, третья - стрелового оборудования и т.д.

Пример - КС-7471 представляет собой кран стреловой грузоподъемностью 63 т на шасси автомобильного типа.

Д.1.3 Наиболее многочисленной группой башенных кранов являются краны серии КБ - кран башенный. Первая цифра марки обозначает индекс грузоподъемного момента (3 - до 100 кНм; 4 - от 100 до 2000 кНм; 5 - от 2000 до 3000 кНм; 6 от 3000 до 5000 кНм), последующие цифры обозначают вид башни и номер исполнения.

Пример - КБк-503 представляет собой кран башенный с кареткой и поворотной башней, грузовой момент 2800 кНм.

У ряда кранов типа КБ цифровая индексация изменена.

Пример -КБ-160.2 (КБ-401); КБк250 (КБ-502) и т.д.

Д.1.4 Цифровой индекс группы кранов серии МСК (мобильный складывающийся кран) и КБ (башенный кран) означает грузоподъемность или грузовой момент и длину стрелы.

Примеры

1 МСК-8-20 - мобильный складывающийся кран грузоподъемностью 8 т с длиной стрелы 20 м.

2 БК-1000 - башенный кран с грузовым моментом 1000 кНм.

Имеются и другие обозначения кранов.

Д.1.5 В индексации импортных кранов также отражаются грузоподъемность или грузовой момент, вид шасси и другие особенности крана.

Пример - КАТО КА-800 есть кран фирмы КАТО на короткобазовом шасси повышенной проходимости грузоподъемностью 80 т, основная модель.

Д.2 Области применения кранов.

Д.2.1 Стреловые самоходные краны обладают общим основным достоинством - способностью быстро перебазироваться с одного объекта на другой и приступать к работе без специальной подготовки грунтового основания. Поэтому эти краны чаще используются для обслуживания рассредоточенных объектов сравнительно небольшой высоты, хотя по своим техническим возможностям некоторые типы таких кранов способны поднимать грузы на высоту до 70 м.

При монтаже плит покрытий или перекрытий в комплексном потоке используют, как правило, стреловой кран с гуськом, позволяющим значительно увеличить полезный вылет на вспомогательном крюке.

Главный недостаток стреловых кранов - значительные ограничения на передвижение с грузом. Повышенная устойчивость кранов при монтаже обеспечивается применением выносных опор (аутригеров), что резко снижает маневренность кранов и увеличивает время монтажного цикла.

Д.2.2 Башенные краны подразделяются на два основных вида: с поворотной и с неповоротной платформой. К первому типу относятся краны грузоподъемностью до 10 т, противовес у которых располагается внизу. Это облегчает монтаж крана, уменьшает размер опрокидывающего момента от ветровой нагрузки и позволяет уменьшить массу крана и ширину его колеи. Изменение вылета стрелы у таких кранов осуществляется за счет изменения наклона стрелы или перемещения по стреле грузовой каретки.

Краны, у которых противовес располагается вверху, оборудуются неповоротной башней и горизонтальной балочной стрелой с контргрузом на конце противовесной консоли. К такому типу относятся все модификации крана КБ-674 и большинство импортных кранов. Они применяются при монтаже зданий повышенной этажности.

Д.2.3 Для монтажа высотных зданий применяют также приставные краны, установленные на фундаменте и прикрепляемые к возводимому зданию жесткими связями.

Д.2.4 Одной из модификаций башенных кранов являются рельсовые стреловые краны (МСТК-90; МБСТК-80/100; КБ-404), используемые для работ «нулевого» цикла и для монтажа конструкций малоэтажных зданий. После их демонтажа на освободившиеся подкрановые пути могут быть установлены передвижные башенные краны.

Библиография

[1] Федеральный закон от 28 ноября 2011 г. № 337-РФ «О внесении изменений в Градостроительный кодекс Российской Федерации и отдельные законодательные акты Российской Федерации»

[2] Руководящий документ РД 11-02-2006 Требования к составу и порядку ведения исполнительной документации при строительстве, реконструкции, капитальном ремонте объектов капитального строительства и требования, предъявляемые к актам освидетельствования работ, конструкций, участков сетей инженерно-технического обеспечения

[3] Руководящий документ РД 11-05-2007 Порядок ведения общего и (или) специального журнала учета выполнения работ при строительстве, реконструкции, капитальном ремонте объектов капитального строительства

[4] Стандарт организации ОАО «Конструкторско-технологическое бюро бетона и железобетона» СТО 02495307-005-2008 Бетоны. Определение прочности методом отрыва со скалыванием

[5] Типовая РД серия 1.465.1-17 Плиты железобетонные ребристые размером 3×6 м для покрытий одноэтажных производственных зданий

[6] Типовая РД серия 1.442.1-1 Плиты перекрытий железобетонные ребристые высотой 400 мм, укладываемые на полки ригелей

[7] Типовая РД серия 1.041.1-3 Сборные железобетонные многопустотные плиты перекрытий многоэтажных общественных зданий, производственных и вспомогательных зданий промышленных предприятий

[8] Рекомендации по транспортированию и монтажу многопустотных плит перекрытий с беспетлевыми строповочными узлами. Утверждены НТС ЦНИИОМТП 01.01.1983. Опубликованы ВНИИИС Госстроя СССР, 1988 г.

[9] Типовая РД серия 1.020.1 -4/91 Конструкции рамного каркаса межвидового применения для многоэтажных общественных зданий, производственных и вспомогательных предприятий

[10] Свод правил СП 12-135-2003 Безопасность труда в строительстве. Отраслевые типовые инструкции по охране труда

[11] Типовая РД серия 1.442.1-2 Плиты перекрытий железобетонные ребристые высотой 400 мм, укладываемые на ригели прямоугольного сечения

[12] Типовая РД серия 1.442.1-3 Плиты железобетонные ребристые высотой 500 мм для перекрытий производственных зданий

[13] Типовая РД серия 1.465.1-20 Плиты железобетонные ребристые размером 5×6 м для покрытий одноэтажных производственных зданий

[14] Типовая РД серия 1.465.1-19 Плиты железобетонные мелкоразмерные для покрытий одноэтажных производственных зданий

 

Ключевые слова: плита покрытия, плита перекрытия, плита сборная железобетонная, предварительно напряженная арматура, технические требования, монтаж, контроль выполнения

 



© 2013 Ёшкин Кот :-)