Информационная система
«Ёшкин Кот»

XXXecatmenu

Ассоциация «Росэлектромонтаж»

ИНСТРУКЦИЯ О СОСТАВЕ И ОФОРМЛЕНИИ
ЭЛЕКТРОТЕХНИЧЕСКОЙ РАБОЧЕЙ ДОКУМЕНТАЦИИ
(ОБЩИЕ ТРЕБОВАНИЯ И РЕКОМЕНДАЦИИ)

И1.16-10

МОСКВА 2010

Ассоциация «Росэлектромонтаж»

ИНСТРУКЦИЯ О СОСТАВЕ И ОФОРМЛЕНИИ
ЭЛЕКТРОТЕХНИЧЕСКОЙ РАБОЧЕЙ ДОКУМЕНТАЦИИ

И1.16-10

Разработана: ОАО «НИПИ ТЯЖПРОМЭЛЕКТРОПРОЕКТ»

Разработчики: Астрахан В.Д. (руководитель темы)

Комиссаров А.А. (ответственный исполнитель)

Взамен: М788-1073 (документ выпущен взамен ВСН 381-85)

АННОТАЦИЯ

Настоящая Инструкция устанавливает состав и правила оформления электротехнической рабочей документации (ЭРД) индивидуальных проектов для строительства, расширения, реконструкции и технического перевооружения предприятий, зданий и сооружений различного назначения.

Требования Инструкции обязательны для всех проектных организаций, выполняющих ЭРД для производства электромонтажных работ организациями Ассоциации «Росэлектромонтаж», если иные требования не оговорены в договоре на выполнение ЭРД или в техническом задании к договору. В других случаях выполнения ЭРД материалы Инструкции являются рекомендуемыми.

Инструкция учитывает требования стандарта Российской Федерации ГОСТ Р 21.1101-2009, обширный опыт проектирования институтов «Тяжпромэлектропроект», прогрессивную технологию электромонтажных работ организаций, входящих в Ассоциацию «Росэлектромонтаж».

Перечень стандартов СПДС и ЕСКД, требования которых учтены в настоящей Инструкции, приведен в приложении 1.

В Инструкции использованы материалы работы М788-1073 ВНИПИ «Тяжпромэлектропроект» и ВСН 381-85.

Утверждаю

Президент Ассоциации

«Росэлектромонтаж»

Е.Ф. Хомицкий

Дата введения 03.08.2010 г.

1. ОБЩИЕ ПОЛОЖЕНИЯ

1.1. Электротехническая рабочая документация (ЭРД) предназначается для:

1) производства электромонтажных работ (далее именуемых монтажные работы);

2) изготовления электромонтажных конструкций в мастерских;

3) определения потребности в электрооборудовании, электромонтажных изделиях и материалах;

4) определения сметной стоимости электрооборудования, материалов и монтажных работ.

1.2. В соответствии со сложившейся в строительном проектировании практикой в ЭРД включается рабочая документация систем управления и автоматизации инженерным (цеховым) оборудованием, а в отдельных случаях и технологическим оборудованием (если разработка указанных систем не является частью создания оборудования и может быть выполнена в одну стадию). В связи с этим отдельные документы ЭРД, в дополнение к указанному в пункте 1.1, используются при наладке и эксплуатации электрооборудования и установок.

1.3. Разделы 2 ... 5 Инструкции определяют состав и правила оформления ЭРД на следующие виды работ:

1) подстанции и распределительные пункты 6 ... 500 кВ;

2) воздушные линии электропередачи напряжением до 500 кВ;

3) кабельные линии электропередачи напряжением до 500 кВ;

4) молниезащита и заземление;

5) сети тяговые электрифицированного промышленного железнодорожного транспорта;

6) силовое электрооборудование и электроосвещение промышленных предприятий, жилых и общественных зданий;

7) электрооборудование технологических механизмов и агрегатов;

8) системы управления энергоснабжением и инженерным оборудованием.

1.4. Требования Инструкции не распространяются:

1) на типовую электротехническую рабочую документацию на изделия и узлы;

2) на рабочую документацию для строительства электростанций;

3) на рабочую документацию электросвязи, радиосвязи, промышленного телевидения, СЦБ и КИП.

1.5. Наряду с ЭРД электротехническими проектными организациями (подразделениями) разрабатываются вне состава ЭРД задания смежным проектным организациям (подразделениям) на выполнение в архитектурно - строительных, сантехнических и других разделах рабочей документации проектов сооружений и устройств, необходимых для монтажа, размещения и эксплуатации электроустановок. Требования по выполнению строительных заданий приведены в приложении 2.

1.6. По отдельному договору выполняется документация, не входящая в состав ЭРД:

1) рабочая документация для временного электроснабжения электропотребителей на период строительства;

2) документация, передаваемая заводам - изготовителям, на изготовление низковольтных комплектных устройств (шкафов, щитов, ящиков, постов, пультов управления и т.п., далее именуемых НКУ);

3) конструкторская документация на электрооборудование единичного (индивидуального) производства (ранее именовавшегося нестандартизированным оборудованием);

4) рабочая документация на изготовление индивидуальных конструкций опорных и поддерживающих устройств электрифицированного транспорта и линий электропередачи;

5) конструкторская документация прокладки проводов и кабелей по технологическому оборудованию;

6) конструкторская документация на дополнительную установку, замену и удаление электроаппаратуры на комплектном электрооборудовании;

7) типовая проектная документация типовых конструкций, изделий и узлов (альбомы).

1.7. Внесение изменений в ЭРД, выданную заказчику, и привязку типовых проектов и повторно применяемых рабочих чертежей следует выполнять в соответствии с ГОСТ Р 21.1101-2009.

1.8. ЭРД, как правило, выполняется автоматизированным способом на бумажном носителе и/или в виде электронного документа.

При выполнении ЭРД в виде электронных документов и передаче документации на электронных носителях должны соблюдаться требования ГОСТ 2.051-2006. Взаимное соответствие между ЭРД в электронной и бумажной формах обеспечивает разработчик.

Структура и состав реквизитов электронных документов должны обеспечивать их обращение в рамках программных средств (отображение, внесение изменений, печать, учет и хранение в базах данных, а также передачу в другие автоматизированные системы) с соблюдением при этом нормативных требований по оформлению документов.

2. СОСТАВ ЭЛЕКТРОТЕХНИЧЕСКОЙ РАБОЧЕЙ ДОКУМЕНТАЦИИ

2.1. В состав ЭРД, передаваемой заказчику, включают:

1) рабочие чертежи, объединенные в комплекты по видам работ (далее именуемые основные комплекты рабочих чертежей);

2) прилагаемые к основным комплектам рабочих чертежей документы.

2.2. В основной комплект рабочих чертежей включают:

1) общие данные по рабочим чертежам;

2) чертежи, схемы, таблицы и т.п.

2.3. К прилагаемым документам относят:

1) повторно применяемые рабочие документы (чертежи, схемы, таблицы и т.п.);

2) эскизные чертежи общего вида НКУ;

3) локальную смету;

4) спецификацию оборудования, изделий и материалов;

5) опросные листы на электрооборудование (при необходимости);

6) задание МЭЗ (выполняется в необходимых случаях по просьбе монтажной организации);

7) другие документы, направляемые заказчику в соответствии с договором (контрактом).

2.4. Основной комплект рабочих чертежей и прилагаемые документы без текстовых документов имеют название «рабочие чертежи».

2.5. На рис. 1 приведен в табличной форме состав ЭРД с делением на основной комплект рабочих чертежей и прилагаемые документы, на рабочие чертежи и текстовые документы (на примере ЭРД электрооборудования технологических механизмов и агрегатов).

Электротехническая рабочая документация (ЭРД)

Рабочие чертежи

ОСНОВНОЙ КОМПЛЕКТ РАБОЧИХ ЧЕРТЕЖЕЙ

1. Общие данные: ведомость рабочих чертежей основного комплекта, ведомость ссылочных и прилагаемых документов, ведомость основных комплектов (в ведущей марке), общие указания, условные обозначения, не установленные государственными стандартами

2. Рабочие чертежи: схемы принципиальные, схемы или таблицы подключения, планы расположения электрооборудования, прокладки электрических сетей и сетей заземления, кабельный журнал, ведомость заполнения труб кабелями, разработанные для проектируемого объекта чертежи конструкций и деталей, изготавливаемых в монтажной зоне и т.п.

ПРИЛАГАЕМЫЕ ДОКУМЕНТЫ

1. Повторно применяемые рабочие документы: чертежи, схемы и т.п.

2. Рабочая документация задания МЭЗ: ведомость электромонтажных конструкций, ведомость материалов и изделий для изготовления электромонтажных конструкций, чертежи электромонтажных конструкций как разработанные для проектируемого объекта, так и повторно применяемые, трубозаготовительная ведомость

3. Эскизные чертежи общих видов НКУ

Текстовые документы

4. Локальные сметы

5. Спецификация оборудования, изделий и материалов

6. Опросные листы на электрооборудование (при необходимости)

8. Другие документы, направляемые заказчику в соответствии с договором (контрактом)

Рис. 1. Состав ЭРД электрооборудования технологических механизмов и агрегатов. Пример

2.6. Состав ЭРД в каждом конкретном случае может уточняться по договору заказчика с исполнителем работ.

2.7. Основным комплектам рабочих чертежей в зависимости от вида работ присваивают марки. Марки основных комплектов электротехнических рабочих чертежей приведены в приложении 3.

Состав рабочих чертежей и отдельные пояснения по их выполнению приведены в приложении 4.

2.8. Основной комплект рабочих чертежей любой марки может быть разделен на несколько основных комплектов по любым признакам (например, по очередям строительства, участкам здания, технологическим узлам и т.д.) с присвоением им той же марки и добавлением порядкового номера.

Например: ЭП1, ЭП2.

Для каждого из этих основных комплектов рабочей документации выполняют прилагаемые документы в полном объеме.

2.9. Основной комплект рабочих чертежей допускается оформлять отдельными документами с присвоением им марки основного комплекта и добавлением через точку порядкового номера документа, обозначенного арабскими цифрами (например, схемы принципиальные ЭП1.1, планы расположения электрооборудования и прокладки кабелей ЭП1.2).

Деление основного комплекта может осуществляться на следующие документы:

- общие данные;

- схемы электрические структурные, функциональные и принципиальные;

- схемы электрические подключения; планы расположения электрооборудования и прокладки электрических сетей;

- чертежи установки электрооборудования и конструкций для прокладки электрических сетей;

- чертежи защитного заземления электроустановок;

- кабельный журнал;

- трубозаготовительная ведомость;

- таблица заполнения труб кабелями и т.п.

Целесообразность деления основного комплекта рабочих чертежей на документы определяется при конкретном проектировании. Чертежи нескольких видов могут быть объединены в один документ. Например, планы расположения электрооборудования и прокладки электрических сетей могут быть объединены с чертежами установки электрооборудования и конструкций для прокладки электрических сетей и кабельным журналом.

2.10. Основной комплект рабочих чертежей допускается при небольших объемах документации объединять с другими основными комплектами рабочих чертежей. Объединенному основному комплекту рабочих чертежей присваивают одну марку.

2.11. Общие данные по рабочим чертежам.

2.11.1. В состав общих данных основного комплекта рабочих чертежей каждой марки включают:

1) ведомость рабочих чертежей основного комплекта по форме 1;

2) ведомость ссылочных и прилагаемых документов по форме 2;

3) ведомость основных комплектов рабочих чертежей по форме 2;

4) общие указания;

5) условные обозначения, не установленные национальными стандартами, и значения которых не указаны на других листах основного комплекта рабочих чертежей.

На первом листе общих данных каждого основного комплекта рабочих чертежей в прямоугольной рамке помещают запись главного инженера проекта, удостоверяющую соответствие ЭРД действующим нормам и правилам, а для зданий или сооружений с пожароопасным и взрывоопасным характером производства, кроме того, безопасную эксплуатацию их при соблюдении предусмотренных проектом мероприятий.

2.11.2. При оформлении основного комплекта рабочих чертежей отдельными документами в состав общих данных взамен ведомости рабочих чертежей включают «Ведомость документов основного комплекта», а в каждый из последующих документов включают только «Ведомость рабочих чертежей» документа.

Если в один документ включены общие данные совместно с частью чертежей основного комплекта, то в состав общих данных включают и «Ведомость документов основного комплекта» и «Ведомость рабочих чертежей», входящих в данный документ.

2.11.3. Ведомость ссылочных и прилагаемых документов составляют по разделам:

1) ссылочные документы;

2) прилагаемые документы.

В раздел «Ссылочные документы» включают чертежи типовых конструкций, изделий и узлов с указанием наименования серии и выпуска. Ссылочные документы проектная организация не выдает.

2.11.4. Ведомость основных комплектов рабочих чертежей приводят на листах общих данных основного комплекта ведущей марки, назначаемой генеральным проектировщиком.

2.11.5. Примеры выполнения ведомостей, включаемых в общие данные основного комплекта рабочих чертежей, приведены на рис. 2 ... 5.

2.11.6. В общих указаниях приводят:

1) основание для разработки рабочей документации;

2) запись о результатах проверки на патентоспособность и патентную чистоту впервые применяемых или разработанных в проекте оборудования, приборов, конструкций, материалов и изделий, а также номера патентов, авторских свидетельств и заявок, по которым приняты решения о выдаче патентов, авторских свидетельств. Проверку на патентную чистоту объектов капитального строительства проводят в соответствии с заданием генпроектировщиков по действующим нормативным документам;

3) перечень видов работ, для которых необходимо составление актов освидетельствования скрытых работ;

4) другие необходимые указания.

В общих указаниях не допускается повторять технические требования, помещенные на других листах основного комплекта рабочих чертежей, и давать описание принятых в рабочих чертежах технических решений.

2.12. Прилагаемые документы.

2.12.1. Повторно применяемая рабочая документация привязывается к условиям строительства объекта и записывается в раздел «Прилагаемые документы» с обозначением, указанным в штампе привязки.

Правила привязки повторно применяемой рабочей документации приведены, в ГОСТ Р 21.1101-2009.

Допускается применять рабочие чертежи конструкций и деталей, выполненные проектной организацией и утвержденные ее руководством для повторного применения, без штампа привязки, если в указанные чертежи не вносят изменений. Эти рабочие чертежи записываются в ведомость прилагаемых документов без изменения обозначения.

2.12.2. В рабочую документацию задания МЭЗ включают:

1) ведомость электромонтажных конструкций;

2) ведомость материалов и изделий для изготовления электромонтажных конструкций;

3) чертежи электромонтажных конструкций (разработанные для проектируемого объекта и повторно применяемые);

4) трубозаготовительную ведомость.

В задание МЭЗ не должны включаться чертежи:

на изготовление шкафов с электроаппаратурой; на установку дополнительной электроаппаратуры (реле, кнопок, клеммников и т.д.) и прокладку проводов на комплектном электрооборудовании заводского изготовления.

2.12.3. Эскизные чертежи общего вида НКУ составляют на нетиповые комплектные устройства.

Допускается взамен эскизных чертежей общего вида НКУ включать в состав ЭРД общие виды НКУ, разработанные в составе документации, передаваемой заводам-изготовителям НКУ, без изменения обозначения чертежа (без штампа привязки).

2.12.4. Локальные сметы составляют в соответствии с действующими Методическими рекомендациями по определению сметной стоимости и договорных цен в строительстве и капитальном ремонте на территории Российской Федерации.

2.12.5. Спецификацию оборудования, изделий и материалов выполняют в соответствии с требованиями ГОСТ 21.110-95.

2.12.6. Опросные листы на электрооборудование составляют на:

1) типовые комплектные устройства (КТП, КРУ, КСО);

2) силовые трансформаторы IV габарита и более;

3) тирристорные преобразовательные устройства;

4) распределительные панели, блоки резисторов, регуляторы возбуждения и другое электрооборудование, если это предусмотрено порядком оформления заказа.

Формы опросных листов применяются по согласованию с изготовителем оборудования.

3. ОБОЗНАЧЕНИЕ ЭРД

3.1. Основным комплектам рабочих чертежей, документам основных комплектов (при оформлении основных комплектов отдельными документами), чертежам и текстовым документам, прилагаемым к основным комплектам, присваивают самостоятельные обозначения.

3.2. В состав обозначения основного комплекта рабочих чертежей входит базовое обозначение и через дефис марка основного комплекта.

Примеры: ХХХХ - XX - ЭТХ,

ХХХХ - ХХ - ЭП1,

ХХХХ - XX - ЭП2,

где: ХХХХ - номер договора (контракта) или цифровой код объекта;

XX - номер здания или сооружения по генеральному плану (если необходимо);

ХХХХ - XX - базовое обозначение;

ЭТХ, ЭП1, ЭП2 - марки основных комплектов рабочих чертежей.

3.3. При оформлении основного комплекта рабочих чертежей отдельными документами обозначение каждого документа составляют из обозначения основного комплекта рабочих чертежей с добавлением через точку порядкового номера документа.

Примеры: ХХХХ - XX - ЭП1.1,

ХХХХ - ХХ - ЭП1.2.

3.4. Обозначения эскизных чертежей общего вида НКУ включают обозначение основного комплекта рабочих чертежей с добавлением через точку буквенно-цифровых индексов, состоящих из заглавной буквы «Н» и порядковых номеров чертежей.

Примеры: ХХХХ - XX - ЭП1.H1,

ХХХХ - ХХ - ЭП1.Н2.

3.5. Обозначения чертежей конструкций и трубозаготовительной ведомости рабочей документации задания МЭЗ, разработанных для проектируемого объекта, включают обозначение основного комплекта рабочих чертежей с добавлением через точку буквенно-цифровых индексов, состоящих из заглавной буквы «И» и порядковых номеров чертежей.

Примеры: ХХХХ - XX - ЭП1.И1,

ХХХХ - ХХ - ЭП1.И2.

В обозначении сборочного чертежа конструкции рабочей документации задания МЭЗ дополнительно в конце обозначения за порядковым номером чертежа конструкции подставляют буквенный индекс из заглавных букв «СБ».

Пример: ХХХХ - XX - ЭП1.И3СБ.

Обозначения ведомости электромонтажных конструкций и ведомости материалов и изделий для изготовления электромонтажных конструкций, входящих в рабочую документацию задания МЭЗ, включают обозначение основного комплекта рабочих чертежей с добавлением через точку буквенно-цифровых индексов, состоящих соответственно из заглавных букв «ИВК» и «ИВМ» и порядкового номера ведомости.

Примеры: ХХХХ - XX - ЭП1.ИВК1,

ХХХХ - XX - ЭП1.ИВК2,

ХХХХ - XX - ЭП1.ИВМ1,

ХХХХ - XX - ЭП1.ИВМ2.

3.6. Обозначение текстовых документов, входящих в прилагаемые документы к основному комплекту рабочих чертежей, включают обозначение основного комплекта рабочих чертежей с добавлением через точку буквенного индекса из заглавных букв.

Буквенные индексы применяют:

ЛС - для локальной сметы;

С - для спецификации оборудования, изделий и материалов;

ОЛ - для опросного листа.

Примеры: ХХХХ - XX - ЭП.ЛС,

ХХХХ - ХХ - ЭП.С.

При наличии в составе прилагаемых документов нескольких текстовых документов одного вида к буквенному индексу добавляется порядковый номер документа.

Примеры: ХХХХ - XX - ЭП1.С1,

ХХХХ - ХХ - ЭП1.С2.

3.7. Рабочим чертежам, разработанным как чертежи повторного применения, присваивают безобъектное обозначение.

4. ОБЩИЕ ПРАВИЛА ОФОРМЛЕНИЯ ЭРД

4.1. Каждый лист рабочего чертежа и текстового документа должен иметь основную надпись и дополнительные графы в соответствии с ГОСТ Р 21.1101-2009 (см. рис. 6). Исключения могут представлять документы, выполненные с помощью универсальных программ на ПЭВМ (например, сметы). На этих документах наносятся только обозначения на свободных местах листов, предпочтительно в нижнем правом углу.

Основная надпись по форме 3 ГОСТ Р 21.1101-2009 применяется:

1) для всех листов основного комплекта рабочих чертежей, за исключением последующих листов кабельного (кабельнотрубного) журнала;

2) для первого листа спецификации оборудования, изделий и материалов в том случае, когда не выполняют титульный лист (см. п. 4.4);

3) для первых листов ведомости электромонтажных конструкций, ведомости материалов и изделий для изготовления электромонтажных конструкций, трубозаготовительной ведомости, а также листов чертежей электромонтажных конструкций, разработанных для проектируемого объекта;

4) для эскизных чертежей общего вида НКУ.

Пример заполнения основной надписи по форме 3 см. рис. 7.

Основная надпись по форме 5 ГОСТ Р 21.1101-2009 применяется для листов чертежей электромонтажных конструкций, разработанных как чертежи повторного применения, и для первых листов текстовых документов, оформляемых с титульными листами (см. рис. 8).

Основная надпись по форме 6 ГОСТ Р 21.1101-2009 применяется для последующих листов прилагаемых текстовых документов, а также последующих листов кабельных (кабельнотрубных) журналов (см. рис. 9).

Дополнительные графы наносятся на поле подшивки листа и заполняются в зависимости от порядка согласования и хранения документации, принятого в проектной организации.

4.2. Характер выполненной работы (разработал, проверил, нормоконтроль), должности лиц, ответственных за выпуск документации (главный специалист или начальник отдела, главный инженер проекта), их фамилии и подписи указываются в соответствующих графах основной надписи и записываются в ней сверху вниз, начиная с разработчика (см. рисунки 7, 8).

4.3. В основной надписи:

1) графу «Лист» на документах, состоящих из одного листа, не заполняют. В этом случае заполняют только графу «Листов»;

2) графу «Листов» заполняют только на первом листе;

3) на первом листе текстового документа при двухсторонней печати в графе «Листов» указывают общее количество страниц;

4) все листы основных комплектов рабочих чертежей, документов основных комплектов (при оформлении основных комплектов отдельными документами), а также чертежей и текстовых документов нумеруются по порядку, начиная с единицы.

4.4. Первым листом спецификации оборудования, изделий и материалов является титульный лист.

Пример заполнения титульного листа см. рис. 25.

При небольшом объеме допускается титульный лист не выполнять. В этом случае на первом листе спецификации оборудования, изделий и материалов выполняют основную надпись по форме 3 ГОСТ Р 21.1101-2009 с подписью ГИПа.

4.5. Главный инженер проекта подписывает:

1) первый лист общих данных;

2) титульные листы рабочих документов;

3) задание смежным проектным организациям (подразделениям).

4.6. Рабочую документацию рекомендуется выполнять на листах форматов A3 и А4 и листах дополнительных форматов А4.

5. ПРАВИЛА ВЫПОЛНЕНИЯ РАБОЧИХ ЧЕРТЕЖЕЙ

5.1. Принципиальные схемы подключения выполняют в соответствии с ГОСТ 2.702-75*. Каждый элемент и (или) устройство, изображенные на принципиальной схеме и на схеме подключения, должны иметь буквенно-цифровое обозначение в соответствии с требованиями ГОСТ 2.710-81*. Взамен схем подключения допускается выполнять таблицы подключения.

В перечне элементов к принципиальной схеме наименование элементов следует записывать в соответствии с требованиями нормативных документов; при этом допускается не записывать обозначения государственных стандартов, технических условий и т.п., на основании которых применены эти элементы.

5.2. Планы расположения электрооборудования, прокладки электрических сетей и сетей заземления (далее планы расположения).

5.2.1. Планы расположения в зданиях и сооружениях выполняются на подосновах, которыми служат планы зданий и сооружений. Планы расположения вне зданий и сооружений выполняют на подосновах, которыми служат разбивочные планы или геоподосновы. Рекомендуемые масштабы изображений на планах указаны в приложении 5.

5.2.2. На планах расположения в зданиях и сооружениях наносятся:

1) координационные оси здания или сооружения и расстояния между ними;

2) отметки чистых полов этажей и основных площадок;

3) строительные и технологические конструкции - в виде контурных очертаний;

4) технологическое и инженерное оборудование - в виде упрощенных контурных очертании;

5) границы и классы взрывоопасных и пожароопасных зон, категории и группы взрывоопасных смесей по классификации Правил устройства электроустановок;

6) наименование отделений, участков цехов, помещений и т.п.;

7) наименования или обозначения электротехнических помещений, кабельных тоннелей и других электротехнических сооружений;

8) электрооборудование, электрические сети и сети заземления;

9) привязки электрооборудования, электрических сетей и сетей заземления;

10) места расположения фитингов и других разделительных уплотнений;

11) разрезы кабельных трасс с указанием расположения кабелей на полках при однослойной прокладке кабелей.

5.2.3. Контуры зданий, сооружений, элементов строительных и технологических конструкций выполняют на планах расположения сплошными тонкими линиями по ГОСТ 2.303-68*.

5.2.4. Электрооборудование и электропроводки в зданиях и сооружениях наносятся на планы расположения условными графическими изображениями по ГОСТ 21.614-88*. Размеры изображения шкафов, щитов, пультов, ящиков, электротехнических устройств и электрооборудования открытых распределительных устройств следует принимать по их фактическим размерам в масштабе чертежа.

Электропроводки вне зданий и сооружений наносят на планы расположения условными графическими изображениями и обозначают в соответствии с ГОСТ 21.204-93, раздел 7 «Условные графические обозначения инженерных сетей».

Обозначения электропомещений, электрооборудования и кабельных проводок (за исключением проводок вне зданий и сооружений) рекомендуется выполнять в соответствии с работой ВНИПИ Тяжпромэлектропроект «Указания по буквенно-цифровым обозначениям в электротехнической проектной и проектно-конструкторской документации» (РТМ 36.18.32.3-93).

5.2.5. Планы расположения электрооборудования, как правило, совмещают с планами прокладки электрических сетей и сетей защитного заземления. При необходимости приводят разрезы, нетиповые узлы установки электрооборудования и прокладки электрических сетей, схемы расположения шинопроводов, а также монтажные проемы, выезды, автодороги для транспортировки крупногабаритного электрооборудования.

5.2.6. Электрооборудование (за исключением электроприемников, комплектных устройств, аппаратов, установленных непосредственно на технологическом оборудовании) и трассы электрических сетей должны иметь привязки и отметки на плане. Допускается не указывать привязку одиночных устройств (например, пускателей, кнопок и т.п.) и открыто проложенных кабелей, если места их установки или прокладки ясны без привязки.

5.2.7. Привязку электрооборудования и электрических сетей производят, как правило, к координационным осям зданий и сооружений или к осям технологического оборудования при условии, что это оборудование монтируется до прокладки труб электропроводки, а его оси увязаны со строительными осями.

При скрытой прокладке электрических сетей в трубах (в полах, в земле, в фундаментах) привязывают концы труб и указывают отметки заложения и выхода. В фундаментах сложного оборудования дают дополнительные привязки концов труб к ближайшим фундаментным болтам.

При открытой прокладке электрических сетей по технологическим установкам, сооружениям и строительным конструкциям (галереи, фермы, колонны) привязку электрических сетей выполняют к указанным установкам, сооружениям и конструкциям.

5.2.8. На планах расположения у электрооборудования (за исключением электрооборудования, устанавливаемого на технологическом оборудовании механомонтажными организациями и (или) поступающего в сборе с механизмами), конструкций и изделий проставляют номера позиций в соответствии со спецификацией и наносят их на полке линии-выноски. Для электрооборудования под полкой линии-выноски проставляют буквенно-цифровые обозначения по принципиальным схемам управления (таблицам электроприводов).

Например:

У кабельных проводок и трубных прокладок проставляют буквенно-цифровые обозначения по кабельным и (или) кабельнотрубным журналам, а для труб проставляют также диаметр по стандарту.

5.2.9. На планах расположения приводят спецификации электрооборудования, изделий, конструкций, деталей и материалов, необходимых для производства монтажных работ по данным чертежам по форме 7 ГОСТ Р 21.1101-2009. При выполнении чертежей групповым методом (например, на группу технологических линий) составляют групповые спецификации по форме 8 ГОСТ Р 21.1101-2009.

5.2.10. Спецификацию на чертеже помещают над основной надписью, как правило, в верхнем углу. Если чертеж выполнен на листе формата А4, спецификацию располагают ниже графического изображения.

Допускается спецификацию располагать на отдельных листах. При этом в основной надписи приводят наименование данной спецификации.

5.2.11. Спецификацию составляют по разделам в следующей последовательности:

1) электрооборудование (за исключением электрооборудования, устанавливаемого на технологическом оборудовании механомонтажными организациями и (или) поступающего в сборе с механизмами);

2) электромонтажные изделия;

3) конструкции;

4) детали (по чертежу, без чертежа);

5) стандартные изделия;

6) материалы.

При общем количестве позиций до 20 наименование разделов допускается не указывать. Между разделами оставляют резервные строчки.

5.2.12. Запись электрооборудования в пределах первого раздела спецификации производят по группам одноименных элементов (в порядке возрастания типов, параметров, цифр, входящих в их обозначение) в следующей последовательности:

1) электрооборудование, на изготовление которого выдают опросные листы и задания заводам-изготовителям;

2) серийное электрооборудование.

5.2.13. Материалы в спецификации записываются в последовательности:

1) металлы черные (в том числе трубы);

2) металлы цветные;

3) материалы изоляционные.

5.2.14. В графах спецификации указывают:

1) в графе «Поз.» - порядковый номер позиций, указанных на изображениях;

2) в графе «Обозначение» - обозначение соответствующих рабочих чертежей конструкций и деталей как изготовляемых в МЭЗ, так и в монтажной зоне.

Допускаются, при необходимости, ссылки на заводские чертежи, технические условия и стандарты. Для деталей, не требующих чертежей ввиду простоты их изображения, в графе записывают: «без чертежа»;

3) в графе «Наименование» - краткое наименование по каталогу (для электрооборудования), наименование по номенклатуре изделий, наименование конструкций и деталей, указанное в основной надписи соответствующего рабочего чертежа.

Для деталей, изготовляемых без чертежа, стандартных изделий и материалов записывают наименование и условное обозначение, указанные в соответствующих стандартах. После наименования в графе указывают тип, приводят краткие характеристики;

4) в графе «Кол.» - количество (штук) на чертеже.

Для материалов, специфицируемых в метрах, в графе проставляется дополнительно буква «м»;

5) в графе «Масса ед., кг» - массу единицы, детали (без чертежа), материала;

6) в графе «Примечание» - дополнительные сведения, относящиеся к записанным в спецификации элементам. Например, допускается указывать полную массу в кг.

Примеры выполнения спецификации и групповой спецификации приведены на рис. 10 и рис. 11.

5.2.15. Расход материалов в спецификациях следует записывать с точностью, указанной в таблице приложения 6.

5.3. Кабельные журналы.

5.3.1. В зависимости от принятого вида и метода прокладки кабелей выполняют кабельный журнал для прокладки кабелей методом трасс, кабельнотрубный журнал или кабельный журнал.

5.3.2. В кабельном журнале для прокладки методом трасс предусматривают графу «Участок трассы кабеля, провода». В этой графе указывают обозначения и номера кабельных трасс и труб по плану расположения, а также номера полок кабельных конструкций, патрубков, лотков, коробов по всей длине трассы.

Пример выполнения кабельного журнала для прокладки кабелей методом трасс приведен на рис. 12. Форма кабельного журнала соответствует форме 7 ГОСТ 21.613-88*.

При выполнении в рабочей документации задания МЭЗ трубозаготовительной ведомости в кабельнотрубном журнале графы «Диаметр по стандарту» и «Длина», относящиеся к трубам, не заполняют.

Пример выполнения кабельнотрубного журнала приведен на рис. 13. Форма кабельнотрубного журнала соответствует форме 6 ГОСТ 21.613-88*.

Пример выполнения кабельного журнала приведен на рис. 14. Форма кабельного журнала соответствует форме 6 ГОСТ 21.608-84.

5.3.3. Силовые и контрольные кабели в кабельном журнале группируют, как правило, по приводам, роду тока, напряжению и т.п. и записывают в порядке возрастания номеров или буквенных кодов.

При подходе кабелей к щитам управления в графах «Начало» и «Конец» указывают обозначение щита управления и номер панели, к которой подходит кабель.

Длину кабелей, проводов, труб в графах «Длина» в кабельном и кабельнотрубном журналах записывают с учетом надбавки на изгибы, повороты и отходы с точностью, указанной в приложении 6.

Кабельный журнал не выполняют, если трасса и вся информация о кабелях (начало, конец, марка, сечение и длина) имеется на принципиальной схеме питающей или распределительной сети.

5.3.4. На последнем листе кабельного журнала приводят таблицу потребности кабелей и проводов, а в кабельнотрубном журнале, кроме того, приводят таблицу потребности труб.

При выполнении в задании МЭЗ трубозаготовительной ведомости таблицу потребности труб в кабельнотрубном журнале не приводят, а приводят ее в трубозаготовительной ведомости. Формы таблиц потребности кабелей и труб соответствуют формам 4 и 5 ГОСТ 21.613-88*.

Примеры выполнения таблиц потребности кабелей и труб приведены соответственно на рис. 15 и рис. 16.

5.4. При прокладке в трубах по два и более кабеля следует составлять ведомость заполнения труб кабелями. В графе «Труба» указывают обозначение трубы и через дефис - диаметр трубы, форма ведомости заполнения труб кабелями соответствует форме 9 ГОСТ 21.613-88*.

Пример выполнения ведомости приведен на рис. 17.

5.5. Эскизные чертежи общего вида нетиповых низковольтных комплектных устройств (НКУ) должны содержать изображение конструкции - вид спереди, вид сверху, количество и порядок расположения панелей, габаритные размеры, текстовые указания и надписи, необходимые для общего представления об устройстве.

Пример выполнения эскизного чертежа общего вида НКУ приведен на рис. 18.

5.6. Рабочая документация задания МЭЗ.

5.6.1. Чертежи электромонтажных конструкций, предназначенных для изготовления в МЭЗ, выполняют в случаях отсутствия соответствующих изделий заводского изготовления, типовых чертежей электромонтажных конструкций и чертежей электромонтажных конструкций повторного применения.

Чертежи электромонтажных конструкций выполняют, как правило, в масштабе 1:5, 1:10 или 1:20.

На чертежах электромонтажных конструкций помещают спецификацию на одну конструкцию или групповую спецификацию на несколько исполнений конструкции по формам 7 и 8 ГОСТ Р 21.1101-2009.

Примеры выполнения спецификации и групповой спецификации приведены на рис. 19 и рис. 20.

5.6.2. Все электромонтажные конструкции, подлежащие изготовлению в МЭЗ по типовым чертежам, чертежам повторного применения и вновь разработанным чертежам, включают в ведомость электромонтажных конструкций.

Форма ведомости соответствует форме 10 ГОСТ 21.613-88*.

Пример выполнения ведомости приведен на рис. 21.

5.6.3. Все материалы и изделия, необходимые для изготовления электромонтажных конструкций в МЭЗ, включают в ведомость материалов и изделий.

Пример выполнения ведомости приведен на рис. 22.

5.7. Трубозаготовительная ведомость.

5.7.1. Трубозаготовительная ведомость предназначена для заготовки элементов труб в МЭЗ. Трубозаготовительную ведомость составляют как для металлических труб, так и для пластмассовых (полиэтиленовых, поливинилхлоридных) труб.

5.7.2. Трубозаготовительную ведомость выполняют в следующих случаях:

1) для электрических сетей, где преобладает прокладка кабелей и проводов в трубах и где объем трубных прокладок определяет целесообразность заготовки элементов труб в МЭЗ;

2) для электрических сетей, прокладываемых в трубах в фундаментах сложного оборудования.

5.7.3. При заполнении трубозаготовительной ведомости в графе «Участок трассы трубы» указывают:

1) длины участков труб между вершинами углов в метрах;

2) значения углов в градусах и радиусы изгиба в миллиметрах;

3) обозначения протяжных ящиков и трубных блоков;

4) обозначение чертежа, на котором дано продолжение трубы.

При изготовлении трубы из нормализованных элементов в графе «Участок трассы трубы» указывают:

1) длины нормализованных прямых отрезков труб, а в необходимых случаях - длину добавочного отрезка в метрах;

2) типы соединительных углов с указанием угла изгиба в градусах;

3) обозначение протяжных ящиков и трубных блоков;

4) обозначение чертежа, на котором дано продолжение трубы.

В графе «Примечание», при необходимости, приводят эскиз трубы, а также другие дополнительные сведения.

5.7.5. На последнем листе трубозаготовительной ведомости приводят таблицу потребности труб (см. рис. 16).

5.7.6. При применении для электрических сетей только металлических труб трубозаготовительную ведомость выполняют по форме 8 ГОСТ 21.613-88*. При применении как металлических, так и пластмассовых труб трубозаготовительную ведомость выполняют по форме, показанной на рис. 23.

6. РЕКОМЕНДАЦИИ ПО КОМПЛЕКТОВАНИЮ ЭРД

6.1. Копии документов рабочей документации для передачи заказчику комплектуют в папки полистно, сложенными на формат А4, как правило, по основным комплектам рабочих чертежей.

Допускается брошюровать* копии рабочих документов в тома, сложенными на формат А4.

* Примечание - Под брошюровкой понимается размещение материалов рабочей документации в переплетах или в твердых папках с легкоразъемными креплениями (замками).

Количество листов, включаемых в папку (том), определяют из необходимости обеспечения удобства работы, но не более 300 листов формата А4 или эквивалентного количества листов других форматов.

6.2. Каждый документ, том, а также папку со сложенными в нее документами оформляют обложкой. Обложку не нумеруют и не включают в общее количество листов.

6.3. Первым листом сброшюрованного документа, тома, состоящего из нескольких документов, папки с рабочей документацией является титульный лист. Титульный лист выполняется по форме 12 ГОСТ Р 21.1101-2009.

Примеры выполнения титульных листов приведены на рисунках 24 и 25.

6.4. Все листы сброшюрованного тома нумеруют сквозной нумерацией листов, начиная с титульного листа. При этом титульный лист не нумеруют. Номер листа на листах текстовых и графических документов указывают в правом верхнем углу рабочего поля листа. Данное требование является обязательным только для ЭРД, подлежащей государственной экспертизе.

Кроме того, текстовые и графические документы, включенные в том и имеющие самостоятельное обозначение, должны иметь порядковую нумерацию листов в основной надписи в пределах документа с одним обозначением.

6.5. При комплектовании нескольких документов в виде тома или в папку, после титульного листа приводят содержание тома (папки), которое является перечнем документов, входящих в том (папку).

Содержание выполняют на листах формата А4 по форме 2 ГОСТ Р 21.1101-2009.

Документы в содержании записывают в последовательности их комплектования в том (папку). Обложку и титульный лист в содержание не записывают.

Первый лист содержания тома (папки) оформляют основной надписью по форме 5 ГОСТ Р 21.1101-2009, последующие - по форме 6 ГОСТ Р 21.1101-2009.

Содержанию присваивают обозначение, состоящее из обозначения тома (папки) и шифра «С».

Пример - ХХХХ - XX - ЭПС.

В основной надписи в графе наименование документа указывают «Содержание тома» или, соответственно, «Содержание папки».

Пример выполнения содержания тома приведен на рисунке 26.

ПРИЛОЖЕНИЕ 1

Справочное

ПЕРЕЧЕНЬ СТАНДАРТОВ СПДС И ЕСКД,
ТРЕБОВАНИЯ КОТОРЫХ ПОДЛЕЖАТ УЧЕТУ ПРИ ВЫПОЛНЕНИИ
ЭЛЕКТРОТЕХНИЧЕСКОЙ РАБОЧЕЙ ДОКУМЕНТАЦИИ

СТАНДАРТЫ СПДС

ГОСТ Р 21.1001-2009

Общие положения

ГОСТ Р 21.1002-2008

Нормоконтроль проектной и рабочей документации

ГОСТ Р 21.1101-2009

Основные требования к проектной и рабочей документации

ГОСТ 21.206-93

Условные обозначения трубопроводов

ГОСТ 21.204-93

Условные графические обозначения и изображения элементов генеральных планов и сооружений транспорта

ГОСТ 21.110-95

Правила выполнения спецификации оборудования, изделий и материалов

ГОСТ 21.112-87

Подъемно-транспортное оборудование. Условные изображения

ГОСТ 21.113-88

Обозначения характеристик точности

ГОСТ 21.501-93

Правила выполнения архитектурно-строительных рабочих чертежей

ГОСТ Р 21.1003-2009

Учет и хранение проектной документации

ГОСТ 21.403-80

Обозначения условные графические в схемах. Оборудование энергетическое

ГОСТ 21.404-85

Автоматизация технологических процессов. Обозначения условные приборов и средств автоматизации в схемах

ГОСТ Р 21.1703-2000

Правила выполнения рабочей документации проводных средств связи

ГОСТ 21.607-82

Электрическое освещение территорий промышленных предприятий. Рабочие чертежи

ГОСТ 21.608-84

Внутреннее электрическое освещение. Рабочие чертежи

ГОСТ 21.611-85

Централизованное управление энергосбережением. Условные графические и буквенные обозначения вида и содержания информации

ГОСТ 21.613-88*

Силовое электрооборудование. Рабочие чертежи

ГОСТ 21.614-88*

Изображения условные графические электрооборудования и проводок на планах

ГОСТ 21.901-80

Требования к оформлению проектной документации для строительства за границей

СТАНДАРТЫ ЕСКД

ГОСТ 2.051-2006

Электронные документы. Общие положения

ГОСТ 2.105-95*

Общие требования к текстовым документам

ГОСТ 2.106-96*

Текстовые документы

ГОСТ 2.109-73*

Основные требования к чертежам

ГОСТ 2.113-75*

Групповые и базовые конструкторские документы

ГОСТ 2.301-68*

Форматы

ГОСТ 2.303-68*

Линии

ГОСТ 2.304-81*

Шрифты чертежные

ГОСТ 2.305-2008

Изображения - виды, разрезы, сечения

ГОСТ 2.306-68*

Обозначения графические материалов и правила их нанесения на чертежах

ГОСТ 2.307-68*

Нанесение размеров и предельных отклонений

ГОСТ 2.308-79*

Указание на чертежах допусков формы и расположения поверхностей

ГОСТ 2.313-82

Условные изображения и обозначения неразъемных соединений

ГОСТ 2.314-68*

Указания на чертежах о маркировании и клеймении изделий

ГОСТ 2.316-2008

Правила нанесения надписей, технических требований и таблиц на графических документах

ГОСТ 2.321-84

Обозначения буквенные

ГОСТ 2.410-68*

Правила выполнения чертежей металлических конструкций

ГОСТ 2.701-2008

Схемы. Виды и типы. Общие требования к выполнению

ГОСТ 2.702-75*

Правила выполнения электрических схем

ГОСТ 2.708-81

Правила выполнения электрических схем цифровой вычислительной техники

ГОСТ 2.709-89

Обозначения условные проводов и контактных соединений электрических элементов, оборудования и участков цепей в электрических схемах

ГОСТ 2.710-81*

Обозначения буквенно-цифровые в электрических схемах

ГОСТ 2.721-74*

Обозначения условные графические в схемах. Обозначения общего применения

ГОСТ 15.012-84

Патентный формуляр

Примечание. Стандарты ЕСКД применяются с учетом требований стандартов СПДС.

ПРИЛОЖЕНИЕ 2

Рекомендуемое

ТРЕБОВАНИЯ К ВЫПОЛНЕНИЮ СТРОИТЕЛЬНЫХ ЗАДАНИЙ

1. Строительные задания (чертежи и текстовые указания) содержат требования к строительным решениям. Как правило, в строительные задания на помещения включают также требования к выполнению вентиляционных, сантехнических, противопожарных и других устройств для этих помещений и сооружений.

2. Строительное задание выполняют на части здания (сооружения), соответствующее одному или нескольким основным комплектам рабочих чертежей или на здание (сооружение) в целом, соответствующее всей электротехнической рабочей документации.

3. Строительное задание выдается на устройство электротехнических помещений, включая средства для транспортировки крупногабаритного электрооборудования (тележки, тали, краны подвесные однобалочные, краны мостовые), фундаменты под электрооборудование, закладные детали, отверстия, ниши, молниезащитные устройства и т.п.

4. Строительные задания должны содержать необходимые для разработки строительных рабочих чертежей данные, как-то: габариты помещений, диаметры отверстий, размеры проемов, ниш, нагрузки на элементы сооружений от электрического оборудования и конструкций электрических сетей и т.д.

5. Допускается выдавать дополнительное строительное задание на закладные детали, проемы, отверстия (диаметром более 30 мм), которые выявились после выполнения электротехнических рабочих чертежей.

6. Строительные рабочие чертежи, содержащие решения по требованиям строительного задания, подлежат согласованию с разработчиком строительного задания.

7. Строительные задания и дополнительные строительные задания направляются главному инженеру проекта по объекту для реализации соответствующими проектными организациями (подразделениями). Строительные задания могут также направляться электромонтажной организации по ее просьбе.

На экземплярах строительных заданий, передаваемых электромонтажной организации по ее просьбе, следует делать надпись:

«В чертежах не отражены изменения, произведенные при разработке строительных чертежей».

ПРИЛОЖЕНИЕ 3

Обязательное

ПЕРЕЧЕНЬ МАРОК ОСНОВНЫХ КОМПЛЕКТОВ ЭЛЕКТРОТЕХНИЧЕСКИХ РАБОЧИХ ЧЕРТЕЖЕЙ

№ п.п.

Наименование основного комплекта рабочих чертежей

Марка

Примечание

1

Электроснабжение

ЭС

2

Электроснабжение. Подстанции

эп

3

Линии электропередачи воздушные

эв

4

Линии электропередачи кабельные

эк

5

Защита электрохимическая

эхз

В Инструкции не рассматривается. Разрабатывается специализированными организациями

6

Молниезащита и заземление

эг

7

Сети тяговые электрифицированного промышленного железнодорожного транспорта

эт

8

Силовое электрооборудование

эм

ГОСТ 21.613-88*

9

Системы автоматизированного управления технологическими процессами (АСУ ТП)

этх

Только в части управления оборудованием

10

Внутреннее электрическое освещение

ЭО

ГОСТ 21.608-84

11

Электрическое освещение территорий промышленных предприятий. Рабочие чертежи

ЭН

ГОСТ 21.607-82

12

Системы управления энергоснабжением и инженерным оборудованием

ЭУ

ПРИЛОЖЕНИЕ 4

Рекомендуемое

СОСТАВ РАБОЧИХ ЧЕРТЕЖЕЙ И ОТДЕЛЬНЫЕ ПОЯСНЕНИЯ ПО ИХ ВЫПОЛНЕНИЮ

1. ЭЛЕКТРОСНАБЖЕНИЕ. ПОДСТАНЦИИ - ЭП

1.1. Настоящий раздел определяет состав рабочих чертежей электрической подстанции или распределительного пункта 6 ... 500 кВ.

1.2. В рабочие чертежи включают:

1) общие данные по рабочим чертежам;

2) принципиальную схему главных цепей;

3) принципиальные (полные) схемы релейной защиты, управления, измерения, сигнализации и т.д.;

4) планы расположения электрооборудования, ошиновки и прокладки сетей заземления;

5) планы прокладки электрических сетей;

6) схемы (таблицы) подключения;

7) кабельный журнал;

8) рабочую документацию задания МЭЗ;

9) эскизные чертежи общего вида НКУ.

1.3. В общие указания дополнительно к перечисленному в п. 2.11.6 включают:

1) сведения об уточнении проекта;

2) таблицу уставок реле защиты и автоматики линий 6 ... 500 кВ.

1.4. Схему главных цепей выполняют в однолинейном изображении.

На схеме указывают:

1) номинальное напряжение сборных шин,

2) типы, номинальные токи и сопротивление резисторов (при наличии их в схеме);

3) схемы соединений обмоток, тип, номинальные мощности и напряжение силовых трансформаторов;

4) схемы соединений обмоток, тип и номинальное напряжение трансформаторов напряжения;

5) тип и номинальные токи трансформаторов тока;

6) виды релейных защит, автоматики и измерительные приборы;

7) марки, сечения и количество проводников питающих и отходящих линий.

1.5. Принципиальные (полные) схемы релейной защиты, управления, измерения, сигнализации, АВР и др. приводят полностью в многолинейном изображении с указанием всех элементов комплектных устройств.

Электронные элементы, микропроцессорные устройства и т.п., имеющие собственные электрические схемы, изображаются на принципиальных схемах в виде прямоугольников или других условных графических изображений. В необходимых случаях эти электрические схемы могут быть включены в состав основного комплекта рабочих чертежей. В случаях, когда электрические схемы указанных элементов и устройств выполнены как чертежи повторного применения и имеют собственные обозначения, они помещаются в прилагаемые к основному комплекту рабочих чертежей документы.

1.6. В кабельном журнале учитывают все кабели электрической подстанции (распределительного пункта), включая отходящие, а в спецификации оборудования, изделий и материалов - только кабели, относящиеся к внутренним связям электрической подстанции (распределительного пункта).

1.7. На рис. 27 приведен пример выполнения плана расположения шкафов КРУ, ошиновки и прокладки сети заземления в электротехническом помещении.

2. ЛИНИИ ЭЛЕКТРОПЕРЕДАЧИ ВОЗДУШНЫЕ - ЭВ

2.1. Настоящий раздел определяет состав рабочих чертежей линий электропередачи напряжением до 35 кВ. (Воздушные линии электропередачи напряжением свыше 35 кВ выполняются в соответствии с нормативными документами ФСК ЕЭС России).

2.2. В рабочие чертежи воздушных линий электропередачи (ЛЭП) включают:

1) общие данные по рабочим чертежам;

2) паспорт ЛЭП;

3) схему ЛЭП;

4) обзорный план трасс;

5) профиль трассы с расстановкой опор (для 35 кВ);

6) таблицу монтажных стрел провеса проводов и троса (для 35 кВ);

7) детали переходов ЛЭП;

8) ведомость закрепления железобетонных опор;

9) ведомость опор и фундаментов;

10) ведомость заземляющих устройств;

11) ведомость гирлянд изоляторов;

12) ведомость установки гасителей вибрации (для 35 кВ);

13) ведомость отвода земли под опоры (для 35 кВ);

14) ведомость вырубки просеки;

15) установочные чертежи фундаментов (для 35 кВ).

2.3. В ведомости потребности в материалах для опор индивидуального изготовления следует предусматривать металл для изготовления этих опор.

3. ЛИНИИ ЭЛЕКТРОПЕРЕДАЧИ КАБЕЛЬНЫЕ - ЭК

3.1. В рабочие чертежи включают:

1) общие данные по рабочим чертежам;

2) планы расположения кабельных трасс;

3) продольные профили линий (участков линий);

4) чертежи установки кабельных конструкций и прокладки кабелей;

5) кабельный журнал.

3.2. В общие указания, дополнительно к перечисленному в п. 2.11.6, включают сведения об уточнении проекта.

3.3. На плане расположения кабельных трасс указывают привязки трасс, тип кабельной канализации при помощи условных графических изображений, обозначение кабелей, способ защиты кабелей от механических повреждений и т.п.

3.4. Чертежи продольного профиля линий (участков линий) выполняют при пересечении кабельных линий с магистральными дорогами, при сложных геологических условиях, сложном рельефе и т.п.

3.5. На чертежах установки кабельных конструкций и прокладки кабелей изображают установку конструкций в кабельных сооружениях с необходимыми разрезами и указаниями по раскладке кабелей на полках и лотках.

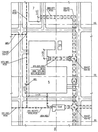
3.6. На рис. 28 приведен пример выполнения плана расположения кабельных трасс.

4. МОЛНИЕЗАЩИТА И ЗАЗЕМЛЕНИЕ - ЭГ

4.1. В рабочие чертежи включают:

1) общие данные по рабочим чертежам;

2) схемы размещения молниезащитных устройств (планы и разрезы);

3) схемы размещения наружных заземляющих устройств.

4.2. В общие указания, дополнительно к перечисленному в п. 2.11.6, включают:

1) сведения об уточнении проекта;

2) результаты проверочных расчетов молниезащиты и заземления, если получены экспериментальные данные о сопротивлении растеканию тока в земле;

3) сведения о заземлении специальных установок (лабораторных, электронных устройств и т.п.);

4) возможность использования железобетонных и металлических конструкций строительной части зданий и сооружений в качестве заземляющих проводников и естественных заземлителей.

4.3. Изготовление и сооружение молниезащитных устройств и устройств наружного заземления производят по архитектурно-строительным чертежам, разрабатываемым на основании строительных заданий, выдаваемых электротехническими проектными организациями (подразделениями).

4.4. Если молниезащита здания, сооружения не выполняется, то, как правило, не разрабатывается основной комплект рабочих чертежей марки ЭГ. В этом случае все схемы и текстовые документы по наружному заземляющему устройству включаются в один из основных комплектов электротехнических рабочих чертежей марки ЭП, ЭМ, ЭТХ и т.д.

4.5. На рис. 29 приведен пример выполнения схемы размещения молниезащитного устройства и устройства наружного заземления.

5. СЕТИ ТЯГОВЫЕ ЭЛЕКТРИФИЦИРОВАННОГО ПРОМЫШЛЕННОГО ЖЕЛЕЗНОДОРОЖНОГО ТРАНСПОРТА - ЭТ

5.1. В рабочие чертежи включают:

1) общие данные по рабочим чертежам;

2) схемы питания и секционирования участков контактной сети;

3) планы контактной сети и усиливающих линий с привязкой опор;

4) планы воздушных питающих и отсасывающих линий с привязкой опор;

5) планы рельсовых и кабельных отсасывающих линий;

6) поперечные разрезы по трассам питающих и отсасывающих линий (в стесненных условиях);

7) журнал разбивки опор контактной сети и воздушных питающих линий;

8) план контактной сети в тоннелях (штольнях) с разбивкой мест подвесок, анкеровок и фиксации контактных проводов, подвесок секционных изоляторов и мест установки секционных разъединителей;

9) монтажные кривые натяжений и стрел провеса проводов контактной сети, питающих и отсасывающих линий;

10) принципиальные схемы предупреждающей сигнализации о подаче тягового напряжения в здания и сооружения;

11) чертежи установки опор;

12) чертежи установки поддерживающих конструкций, защитных и коммутирующих аппаратов;

13) чертежи подвесок и анкеровок контактной сети, питающих, усиливающих и воздушных отсасывающих линий;

14) чертежи устройства заземлений и рельсовых соединений;

15) чертежи прокладки шинных, рельсовых и кабельных отсасывающих линий;

16) ведомости опор контактной сети и питающих линий.

5.2. В общие указания, дополнительно к перечисленному в п. 2.11.6, включают сведения об уточнении проекта.

5.3. На рис. 30 приведен пример выполнения плана контактной сети, питающих и отсасывающих линий электрифицированного промышленного железнодорожного транспорта.

6. ЭЛЕКТРООБОРУДОВАНИЕ ТЕХНОЛОГИЧЕСКИХ МЕХАНИЗМОВ И АГРЕГАТОВ; СИСТЕМЫ АВТОМАТИЗИРОВАННОГО УПРАВЛЕНИЯ ТЕХНОЛОГИЧЕСКИМИ ПРОЦЕССАМИ В ЧАСТИ УПРАВЛЕНИЯ ОБОРУДОВАНИЕМ - ЭТХ

6.1. В зависимости от комплектности поставки на строительство технологических механизмов и агрегатов и степени их автоматизации возможны различные варианты разработки рабочих чертежей:

1) технологические механизмы и агрегаты поставляются в комплекте с электрооборудованием приводов, системами автоматизации, с электротехнической рабочей документацией для строительства - рабочие чертежи, а также текстовые документы ЭРД не разрабатываются;

2) технологические механизмы и агрегаты поставляются на строительство в комплекте с электрооборудованием приводов, системами автоматизации, но без электротехнической рабочей документации для строительства - разрабатываются рабочие чертежи для электромонтажных работ и текстовые документы ЭРД;

3) технологические механизмы и агрегаты поставляются не полностью укомплектованными электрооборудованием приводов и (или) системами автоматизации и без электротехнической рабочей документации для строительства - разрабатываются рабочие чертежи для электромонтажных работ и текстовые документы ЭРД, а также рабочая документация систем автоматизации.

Примечание. Имеется в виду, что во всех трех вариантах технологические механизмы и агрегаты содержат выносное электрооборудование приводов и (или) выносные средства автоматизации.

6.2. В рабочие чертежи по варианту 3 пункта 6.1 комплектности поставки технологических механизмов и агрегатов включают:

1) общие данные;

2) ведомость приводов;

3) схемы расположения постов управления и электрооборудования на агрегате;

4) схемы структурные, функциональные, принципиальные;

5) схемы (таблицы) подключения;

6) кабельный (кабельнотрубный) журнал;

7) ведомость заполнения труб кабелями;

8) планы расположения электрооборудования, ошиновки и прокладки сетей заземления;

9) планы прокладки электрических сетей;

10) рабочую документацию задания МЭЗ;

11) эскизные чертежи общего вида НКУ.

При разработке систем управления приводами и систем автоматизации с применением программируемых контроллеров и других средств вычислительной техники состав документов, относящихся к этим системам, следует определять с учетом работы ВНИПИ Тяжпромэлектропроект «Стадии разработки и состав документации на электропривод и системы автоматизации» РТМ 36.18.32.1-91.

6.3. В рабочие чертежи по варианту 2 пункта 6.1 комплектности поставки технологических механизмов и агрегатов включают указанное в подпунктах 6 ... 11 пункта 6.2.

6.4. На схеме расположения постов управления и электрооборудования показывают:

1) расположение электроприводов, гидроприводов и пневмоприводов, участвующих в технологическом процессе и управляемых операторами - технологами;

2) расположение постов управления и рабочих мест с указанием стрелками или в таблицах с какого поста (рабочего места) производится управление какими приводами.

6.5. На рис. 31 приведен пример выполнения принципиальной схемы управления электроприводом; на рис. 32 приведен пример выполнения схемы подключения.

На рис. 33 приведен пример выполнения таблицы подключения.

7. СИСТЕМЫ УПРАВЛЕНИЯ ЭНЕРГОСНАБЖЕНИЕМ И ИНЖЕНЕРНЫМ ОБОРУДОВАНИЕМ - ЭУ

7.1. Управление энергоснабжением промышленного предприятия включает в себя управление системами электроснабжения, водоснабжения, газоснабжения, теплоснабжения, кислородоснабжения, азотоснабжения, воздухоснабжения и т.п.

7.2. Под управлением оборудованием понимается централизованное управление инженерным оборудованием цехов (установками вентиляции, кондиционирования воздуха, отопления и т.п.) и другими подсобными устройствами (насосно-аккумуляторными станциями, установками маслосмазки и т.п.), а также системы автоматизации и диспетчеризации инженерного оборудования зданий.

7.3. В состав рабочих чертежей включают:

1) общие данные по рабочим чертежам;

2) упрощенные структурные схемы контролируемых систем и объектов с указанием объемов диспетчеризации и автоматизации;

3) структурные схемы комплекса технических средств;

4) схемы подключения;

5) планы расположения электрооборудования и прокладки кабелей;

6) кабельный журнал.

7.4. В общие указания, дополнительно к перечисленному в п. 2.11.6, включают:

1) сведения об уточнении проекта в части управления энергоснабжением и инженерным оборудованием;

2) описание сложных систем централизованного управления, автоматизации и диспетчеризации.

7.5. Упрощенные структурные схемы контролируемых систем и объектов подразделяются на:

1) упрощенные структурные схемы систем и объектов электроснабжения (электрические станции, подстанции, распределительные пункты);

2) упрощенные структурные схемы систем и объектов энергоснабжения (насосные станции, газораспределительные станции, компрессорные, бойлерные и т.п.);

3) упрощенные структурные схемы систем инженерного оборудования.

На этих схемах изображают оборудование, аппараты, линии связи и указывают параметры энергетических и других величин, необходимых для понимания принятого объема информации и охватываемые системой управления.

Для простых энергетических объектов (например, однотрансформаторных подстанций, отдельно стоящих вентиляторов и т.п.) упрощенные структурные схемы допускается не выполнять.

7.6. На упрощенной структурной схеме электроснабжения, как правило, изображают и указывают:

1) сборные шины и значения номинального напряжения;

2) вводы и отходящие линии с указанием номеров их ячеек и обозначений;

3) трансформаторы силовые, реакторы, комплектующие устройства и т.п., их основные параметры;

4) коммутирующие аппараты (выключатели, разъединители, отделители и т.п.);

5) объем принятой информации.

7.7. На упрощенной структурной схеме энергоснабжения, как правило, изображают и указывают:

1) технологическое оборудование контролируемых систем и функциональные связи;

2) вид привода технологического оборудования;

3) объем принятой информации.

7.8. На структурной схеме комплекса технических средств изображают и указывают виды и типы используемых в системе управления технических средств передачи, обработки и представления информации, связи между ними, объем и содержание представляемой информации.

7.9. Рабочие чертежи систем управления энергоснабжением и инженерным оборудованием рекомендуется расчленять на несколько основных комплектов по зонам монтажа, контролируемым объектам и т.п.

8. СИЛОВОЕ ЭЛЕКТРООБОРУДОВАНИЕ - ЭМ (ГОСТ 21.613-88*)

8.1. В рабочие чертежи включают:

1) общие данные по рабочим чертежам;

2) схемы электрические принципиальные комплектных трансформаторных подстанций (КТП) питающей и распределительной сетей;

3) принципиальные схемы управления электроприводами;

4) схемы (таблицы) подключения;

5) планы расположения электрооборудовании и прокладки электрических сетей;

6) кабельнотрубный (кабельный) журнал;

7) трубозаготовительную ведомость;

8) ведомость заполнения труб кабелями и проводами;

9) рабочую документацию задания МЭЗ;

10) габаритные чертежи НКУ.

8.2. Расположение электрооборудования, прокладка шинопроводов, проводов и кабелей, устройств заземления, и т.п. могут быть показаны как на отдельных чертежах, так и на одном, если это не затрудняет его чтение.

Пример выполнения плана прокладки троллейных линий (фрагмент) приведен на рис. 34.

Пример выполнения плана (фрагмент) и разреза прокладки магистрального шинопровода приведен на рис. 35.

Пример выполнения плана расположения 2КТП приведен на рис. 36.

Пример выполнения плана и разреза прокладки распределительных шинопроводов приведен на рис. 37, 38.

Примечание. Определение термина «силовое электрооборудование».

К силовому электрооборудованию относят:

- комплектные трансформаторные подстанции 6, 10/0,4, 0,66 кВ;

- электрические сети для питания электроприемников напряжением до 1 кВ в пределах проектируемого здания, сооружения;

- управляющие устройства электроприводов до 1 кВ систем вентиляции и кондиционирования воздуха, водоснабжения, канализации и других механизмов общего назначения, если электроприводы этих систем и механизмов поставляются без таковых.

9. ВНУТРЕННЕЕ ЭЛЕКТРИЧЕСКОЕ ОСВЕЩЕНИЕ - ЭО

(ГОСТ 21.608-84)

9.1. В рабочие чертежи включают:

1) общие данные по рабочим чертежам;

2) планы расположения электрического оборудования и прокладки электрических сетей;

3) принципиальные схемы питающей сети;

4) принципиальные схемы дистанционного управления освещением;

5) схемы подключения комплектных распределительных устройств на напряжение до 1000 В;

6) кабельнотрубный журнал (при необходимости);

7) чертежи установки электрического оборудования (при отсутствии типовых);

8) чертежи конструкций и деталей, предназначенных для установки электрического оборудования (при отсутствии типовых).

10. ЭЛЕКТРИЧЕСКОЕ ОСВЕЩЕНИЕ ТЕРРИТОРИИ ПРОМЫШЛЕННЫХ ПРЕДПРИЯТИЙ И ОБЩЕСТВЕННЫХ ЗДАНИЙ И СООРУЖЕНИЙ - ЭН

10.1. В рабочие чертежи включают:

1) общие данные по рабочим чертежам;

2) план освещения территории;

3) ведомость опор и прожекторных мачт с установленными на них осветительными приборами и электрооборудованием;

4) схемы питания и управления освещением территории;

5) чертежи нетиповых узлов установки осветительных приборов и электрооборудования;

6) эскизные чертежи общих видов нетиповых конструкций, предназначенных для установки осветительных приборов и электрооборудования.

ПРИЛОЖЕНИЕ 5

Рекомендуемое

МАСШТАБЫ ИЗОБРАЖЕНИЙ НА ПЛАНАХ

Наименование изображения

Масштаб

Расположение электроустановок и линий электропередачи напряжением выше 1 кВ

1:10000; 1:20000

РП 6 - 10 кВ и трансформаторные подстанции 6 - 10/0,4 кВ

1:50; 1:100

Трассы наружных кабельных сетей

1:500; 1:1000

Расположение электрооборудования и прокладка кабелей

1:100; 1:200

Прокладка труб, шин

1:20; 1:25; 1:50

Электромонтажные конструкции

1:5; 1:10; 1:20

Сети тяговые электрифицированного промышленного железнодорожного транспорта:

1) расположение воздушных, рельсовых, кабельных линий и контактной сети

1:500; 1:1000; 1:2000

2) установка опор, конструкций, аппаратов

1:20; 1:25; 1:50; 1:100

Приложение 6

Справочное

ОКРУГЛЕНИЕ КОЛИЧЕСТВЕННЫХ ЗНАЧЕНИЙ МАТЕРИАЛОВ И КАБЕЛЕЙ И ЕДИНИЦЫ ИЗМЕРЕНИЯ (В СПЕЦИФИКАЦИЯХ, В РАБОЧЕЙ ДОКУМЕНТАЦИИ ЗАДАНИЙ МЭЗ, В КАБЕЛЬНЫХ ЖУРНАЛАХ)

Наименование

Степень точности

1. Прокат черных и цветных металлов в спецификации на чертеже:

- при массе детали до 1 кг

0,01 кг

- при массе детали более 1 кг

0,1 кг

2. Прокат черных металлов:

- в ведомости материалов и изделий задания МЭЗ

0,001 т

- в спецификации оборудования, изделий и материалов

0,001 т

3. Прокат цветных металлов:

- в ведомости материалов и изделий задания МЭЗ

1,0 кг

- в спецификации оборудования, изделий и материалов

1,0 кг

4. Трубы стальные:

- в спецификации на чертеже

0,1 м

- в трубозаготовительной ведомости

0,1 м

- в таблице потребности труб

0,1 м

- в ведомости материалов и изделий задания МЭЗ

0,001 км

0,001 т

- в спецификации оборудования, изделий и материалов

0,001 км

0,001 т

5. Кабели и провода:

- в кабельном журнале при длине кабеля до 10 м

0,1 м

- в кабельном журнале при длине кабеля свыше 10 м

1,0 м

- в таблице потребности кабелей и проводов

1,0 м

- в спецификации оборудования, изделий и материалов

0,01 км

ВЕДОМОСТЬ
РАБОЧИХ ЧЕРТЕЖЕЙ ОСНОВНОГО КОМПЛЕКТА

Рис. 2. Пример выполнения ведомости рабочих чертежей основного комплекта

ВЕДОМОСТЬ
ССЫЛОЧНЫХ И ПРИЛАГАЕМЫХ ДОКУМЕНТОВ

Рис. 3. Пример выполнения ведомости ссылочных и прилагаемых документов

ВЕДОМОСТЬ
ОСНОВНЫХ КОМПЛЕКТОВ РАБОЧИХ ЧЕРТЕЖЕЙ

Рис. 4. Пример выполнения ведомости основных комплектов рабочих чертежей

ВЕДОМОСТЬ
ДОКУМЕНТОВ ОСНОВНОГО КОМПЛЕКТА РАБОЧИХ ЧЕРТЕЖЕЙ

Рис. 5. Пример выполнения ведомости документов основного комплекта рабочих чертежей

Примечание - Размер в скобках указан для нижней рамки листов форматов А4 и A3.

Рис. 6. Расположение основной надписи, дополнительных граф к ней и размерных рамок на листах

Рис. 7. Пример заполнения основной надписи по форме 3 ГОСТ Р 21.1101-2009

Рис. 8. Пример заполнения основной надписи по форме 5 ГОСТ Р 21.1101-2009

Рис. 9. Пример заполнения основной надписи по форме 6 ГОСТ Р 21.1101-2009

Рис. 10. Пример выполнения спецификации на плане расположения

Описание: 1

Примечание. Число граф «Кол.» не нормируется.

Рис. 11. Пример выполнения групповой спецификации на плане расположения

Рис. 12. Пример выполнения кабельного журнала для прокладки кабелей методом трасс

Рис. 13. Пример выполнения кабельнотрубного журнала

Рис. 14. Пример выполнения кабельного журнала

ПОТРЕБНОСТЬ КАБЕЛЕЙ И ПРОВОДОВ

(Длина, м)

Рис. 15. Пример выполнения таблицы потребности кабелей и проводов

ПОТРЕБНОСТЬ ТРУБ

Рис. 16. Пример выполнения таблицы потребности труб

Рис. 17. Пример выполнения ведомости заполнения труб кабелями

Рис. 18. Пример выполнения эскизного чертежа общего вида НКУ

Рис. 19. Пример выполнения спецификации на чертеже конструкции задания МЭЗ

Примечание. Число граф «Кол.» не нормируется.

Рис. 20. Пример выполнения групповой спецификации на чертеже конструкции задания МЭЗ

Рис. 21. Пример выполнения ведомости электромонтажных
конструкций, подлежащих изготовлению в МЭЗ (ИВК)

Рис. 22. Пример выполнения ведомости материалов и изделий
для изготовления электромонтажных
конструкций в МЭЗ (ИВМ)

Рис. 23. Пример выполнения трубозаготовительной ведомости

Рис. 24. Пример оформления титульного листа к папке (тому),
в которую включена ЭРД блока Б марки ЭМ1 в целом

Рис. 25. Пример оформления титульного листа к спецификации оборудования,
изделий и материалов

Рис. 26. Пример выполнения содержания тома (папки)

План

Рис. 27. Пример выполнения плана расположения шкафов КРУ,
ошиновки и прокладки сети заземления в электротехническом помещении

План

Рис. 28. Пример выполнения плана расположения кабельных трасс

Разрез 1-1

План

Рис. 29. Пример выполнения схемы размещения молниезащитного
устройства и устройства наружного заземления

Тяговая подстанция № 2

Рис. 30. Пример выполнения плана контактной сети, питающих и отсасывающих линий
электрифицированного промышленного железнодорожного транспорта

Поз. Обозначение

Наименование

Кол.

Примечание

У механизма

¹ 18 - М

Двигатели AИР90L4, 380 В, 50 Гц

1

2,2 кВт

1395 мин, 100 % ПВ

Пост местного управления

ПКУ15-21-12154У2, ТУ 16-526.333-83

SB3

№ 1-КЕ011, исп. 4 «Пуск», черн.

SB1

№ 2-КЕ031, исп. 5 «Стоп», красн.

Щит

QF1, КК1, КМ1

Блок Б5130-2В74ГУХЛ4

1

SA1

Переключатель УП5311-С23У3

1

Пост дистанционного управления

SB4

Выключатель кнопочный, КЕ011У3

1

исп. 4 «Пуск», черн.

SB2

Выключатель кнопочный, КЕ031У3

1

исп. 54 «Стоп», красн.

HLR

Арматура сигнальная АС12011У2

1

220 В

Схемой предусматривается управление:

- местное, кнопками SB1, SB3

- дистанционное с поста управления, кнопками SB4, SB2

Рис. 31. Пример выполнения принципиальной схемы управления электроприводом

Рис. 32. Пример выполнения схемы подключения

Комплектное устройство (тип, обозначение, документ)

Щит АС1, панель 4

Обозначение кабеля

Куда подключить

Маркировка жилы кабеля (генеральная)

Дополнительные данные

Направление кабеля

Марка кабеля

Примечание

Обозначение блока зажимов (аппарата)

№ зажима

Маркировка на зажиме

1

2

3

4

5

6

7

8

9

К004

XI

3

21

401

¹ 18 - АХ1

кввг

1(5´2,5)

5

23

402

7

25

403

8

27

405

К001

Х2

3

5

¹ 18 - УВ

ввг

1(3´2,5)

5

6

X1

11

перемкнуть

ПВ1

1´1,5

13

Рис. 33. Пример выполнения таблицы подключения

План

Рис. 34. Пример выполнения плана прокладки троллейных линий (фрагмент)

План

Разрез 1-1

Рис. 35. Пример выполнения плана прокладки магистрального шинопровода (фрагмент)

План

Рис. 36. Пример выполнения плана расположения 2КТП

План

Рис. 37. Пример выполнения прокладки распределительных шинопроводов (план)

Рис. 38. Пример выполнения прокладки распределительных шинопроводов (разрез)

СОДЕРЖАНИЕ

1. Общие положения. 1

2. Состав электротехнической рабочей документации. 3

3. Обозначение ЭРД.. 6

4. Общие правила оформления ЭРД.. 7

5. Правила выполнения рабочих чертежей. 8

6. Рекомендации по комплектованию ЭРД.. 13

Приложение 1. Перечень стандартов СПДС и ЕСКД, требования которых подлежат учету при выполнении электротехнической рабочей документации. 14

Приложение 2. Требования к выполнению строительных заданий. 15

Приложение 3. Перечень марок основных комплектов электротехнических рабочих чертежей. 15

Приложение 4. Состав рабочих чертежей и отдельные пояснения по их выполнению.. 16

Приложение 5. Масштабы изображений на планах. 22

Приложение 6. Округление количественных значений материалов и кабелей и единицы измерения (в спецификациях, в рабочей документации заданий мэз, в кабельных журналах) 22

Рис. 2. Пример выполнения ведомости рабочих чертежей основного комплекта. 23

Рис. 3. Пример выполнения ведомости ссылочных и прилагаемых документов. 24

Рис. 4. Пример выполнения ведомости основных комплектов рабочих чертежей. 25

Рис. 5. Пример выполнения ведомости документов основного комплекта рабочих чертежей. 26

Рис. 6. Расположение основной надписи, дополнительных граф к ней и размерных рамок на листах. 26

Рис. 7. Пример заполнения основной надписи по форме 3 ГОСТ Р 21.1101-2009. 26

Рис. 8. Пример заполнения основной надписи по форме 5 ГОСТ Р 21.1101-2009. 27

Рис. 9. Пример заполнения основной надписи по форме 6 ГОСТ Р 21.1101-2009. 27

Рис. 10. Пример выполнения спецификации на плане расположения. 28

Рис. 11. Пример выполнения групповой спецификации на плане расположения. 28

Рис. 12. Пример выполнения кабельного журнала для прокладки кабелей методом трасс. 28

Рис. 13. Пример выполнения кабельнотрубного журнала. 29

Рис. 14. Пример выполнения кабельного журнала. 29

Рис. 15. Пример выполнения таблицы потребности кабелей и проводов. 29

Рис. 16. Пример выполнения таблицы потребности труб. 29

Рис. 17. Пример выполнения ведомости заполнения труб кабелями. 30

Рис. 18. Пример выполнения эскизного чертежа общего вида НКУ.. 30

Рис. 19. Пример выполнения спецификации на чертеже конструкции задания МЭЗ. 31

Рис. 20. Пример выполнения групповой спецификации на чертеже конструкции задания МЭЗ. 31

Рис. 21. Пример выполнения ведомости электромонтажных конструкций, подлежащих изготовлению в МЭЗ (ИВК) 31

Рис. 22. Пример выполнения ведомости материалов и изделий для изготовления электромонтажных конструкций в МЭЗ (ИВМ) 32

Рис. 23. Пример выполнения трубозаготовительной ведомости. 33

Рис. 24. Пример оформления титульного листа к папке (тому), в которую включена ЭРД блока Б марки ЭМ1 в целом.. 34

Рис. 25. Пример оформления титульного листа к спецификации оборудования, изделий и материалов. 34

Рис. 26. Пример выполнения содержания тома (папки) 35

Рис. 27. Пример выполнения плана расположения шкафов КРУ, ошиновки и прокладки сети заземления в электротехническом помещении. 35

Рис. 28. Пример выполнения плана расположения кабельных трасс. 36

Рис. 29. Пример выполнения схемы размещения молниезащитного устройства и устройства наружного заземления. 37

Рис. 30. Пример выполнения плана контактной сети, питающих и отсасывающих линий электрифицированного промышленного железнодорожного транспорта. 37

Рис. 31. Пример выполнения принципиальной схемы управления электроприводом.. 38

Рис. 32. Пример выполнения схемы подключения. 38

Рис. 33. Пример выполнения таблицы подключения. 39

Рис. 34. Пример выполнения плана прокладки троллейных линий (фрагмент) 39

Рис. 35. Пример выполнения плана прокладки магистрального шинопровода (фрагмент) 40

Рис. 36. Пример выполнения плана расположения 2КТП.. 40

Рис. 37. Пример выполнения прокладки распределительных шинопроводов (план) 41

Рис. 38. Пример выполнения прокладки распределительных шинопроводов (разрез) 41

 



© 2013 Ёшкин Кот :-)