Информационная система
«Ёшкин Кот»

XXXecatmenu

ФЕДЕРАЛЬНОЕ АГЕНТСТВО
ПО ТЕХНИЧЕСКОМУ РЕГУЛИРОВАНИЮ И МЕТРОЛОГИИ

НАЦИОНАЛЬНЫЙ
СТАНДАРТ
РОССИЙСКОЙ
ФЕДЕРАЦИИ

ГОСТ Р ИСО
15614-5-2009

Технические требования и аттестация процедур
сварки металлических материалов.
Проверка процедуры сварки

Часть 5

ДУГОВАЯ СВАРКА ТИТАНА,
ЦИРКОНИЯ И ИХ СПЛАВОВ

ISO 15614-5:2004

Specification and qualification of welding procedures for metallic materials -
Welding procedure test -
Part 5: arc welding of titanium, zirconium and their alloys

(IDT)

Москва

Стандартинформ

2011

Предисловие

Цели и принципы стандартизации в Российской Федерации установлены Федеральным законом от 27 декабря 2002 г. № 184-ФЗ «О техническом регулировании», а правила применения национальных стандартов Российской Федерации - ГОСТ Р 1.0-2004 «Стандартизация в Российской Федерации. Основные положения»

Сведения о стандарте

1 ПОДГОТОВЛЕН Федеральным государственным учреждением «Научно-учебный центр «Сварка и контроль» при МГТУ им. Н.Э. Баумана (ФГУ НУЦСК при МГТУ им. Н.Э. Баумана), Национальным агентством контроля и сварки (НАКС) на основе собственного аутентичного перевода стандарта, указанного в пункте 4

2 ВНЕСЕН Техническим комитетом по стандартизации ТК 364 «Сварка и родственные процессы»

3 УТВЕРЖДЕН И ВВЕДЕН В ДЕЙСТВИЕ Приказом Федерального агентства по техническому регулированию и метрологии от 15 декабря 2009 г. № 1080-ст

4 Настоящий стандарт идентичен международному стандарту ИСО 15614-5:2004 «Технические требования и аттестация процедур сварки металлических материалов. Проверка процедуры сварки. Часть 5. Дуговая сварка титана, циркония и их сплавов» (ISO 15614-5:2004 «Specification and qualification of welding procedures for metallic materials - Welding procedure test - Part 5: Arc welding of titanium, zirconium and their alloys»)

5 ВВЕДЕН ВПЕРВЫЕ

Информация об изменениях к настоящему стандарту публикуется в ежегодно издаваемом информационном указателе «Национальные стандарты», а текст изменений и поправок - в ежемесячно издаваемых информационных указателях «Национальные стандарты». В случае пересмотра (замены) или отмены настоящего стандарта соответствующее уведомление будет опубликовано в ежемесячно издаваемом информационном указателе «Национальные стандарты». Соответствующая информация, уведомление и тексты размещаются также в информационной системе общего пользования - на официальном сайте Федерального агентства по техническому регулированию и метрологии в сети Интернет

СОДЕРЖАНИЕ

1 Область применения. 3

2 Нормативные ссылки. 4

3 Термины и определения. 4

4 Предварительные технические требования к процедуре сварки. 5

5 Проверка процедуры сварки. 5

6 Контрольное сварное соединение. 5

6.1 Основные положения. 5

6.2 Форма и размеры контрольных сварных соединений. 5

6.3 Сварка контрольных сварных соединений. 7

7 Испытания и оценка результатов. 7

7.1 Объем испытаний. 7

7.2 Расположение и вырезка образцов для испытаний. 8

7.3 Неразрушающие испытания. 9

7.4 Разрушающие испытания. 9

7.5 Уровни качества. 11

7.6 Цвет поверхности. 11

7.7 Повторные испытания. 11

8 Области распространения аттестации. 11

8.1 Основные положения. 11

8.2 Относящееся к изготовителю.. 11

8.3 Относящееся к основному металлу. 12

8.4 Общее для всех процедур сварки. 13

8.5 Специальные требования для процессов. 14

9 Протокол аттестации процедуры сварки. 15

Приложение А (справочное) Форма протокола аттестации процедуры сварки. 15

Приложение ZA (обязательное) Сведения о соответствии ссылочных международных стандартов ссылочным европейским стандартам.. 17

Приложение ДА (обязательное) Сведения о соответствии ссылочных международных стандартов ссылочным национальным стандартам Российской Федерации (и действующим в этом качестве межгосударственным стандартам) 18

Введение

Международный стандарт ИСО 15614-5:2004 разработан Техническим комитетом СЕН/ТК 121 «Сварка» Европейского комитета по стандартизации (СЕН), секретариат которого закреплен за ДИН (институт по стандартизации Германии), в сотрудничестве с Техническим комитетом ИСО/ТК 44 «Сварка и родственные процессы», подкомитетом ПК 10 «Унификация требований в области сварки металлов» в соответствии с Соглашением о техническом сотрудничестве ИСО и СЕН (Венское Соглашение).

ИСО 15614 состоит из следующих частей под общим наименованием «Технические требования и аттестация процедур сварки металлических материалов. Испытание процедуры сварки»:

- часть 1. Дуговая и газовая сварка сталей и дуговая сварка никеля и никелевых сплавов;

- часть 2. Дуговая сварка алюминия и алюминиевых сплавов;

- часть 3. Дуговая сварка нелегированного и низколегированного чугуна;

- часть 4. Исправление дефектов алюминиевого литья;

- часть 5. Дуговая сварка титана, циркония и их сплавов;

- часть 6. Дуговая и газовая сварка меди и ее сплавов;

- часть 7. Наплавка;

- часть 8. Сварка соединений труб с трубной доской;

- часть 10. Гипербарическая сухая сварка;

- часть 11. Электронно-лучевая и лазерная сварка;

- часть 12. Точечная, шовная и рельефная сварка;

- часть 13. Контактная стыковая сварка сопротивлением и оплавлением.

ГОСТ Р ИСО 15614-5-2009

НАЦИОНАЛЬНЫЙ СТАНДАРТ РОССИЙСКОЙ ФЕДЕРАЦИИ

Технические требования и аттестация процедур сварки металлических материалов.
Проверка процедуры сварки

Часть 5

ДУГОВАЯ СВАРКА ТИТАНА, ЦИРКОНИЯ И ИХ СПЛАВОВ

Specification and qualification of welding procedures for metallic materials.
Welding procedure test. Part 5. Arc welding of titanium, zirconium and their alloys

Дата введения - 2011-01-01

1 Область применения

Настоящий стандарт - это часть серии стандартов. Описание этой серии стандартов представлено в приложении А ИСО 15607.

Настоящий стандарт устанавливает, как именно технические требования к сварке могут быть оценены по испытаниям процедуры сварки.

Настоящий стандарт определяет условия выполнения (проведения) испытаний и область распространения аттестации процедур сварки для всех практических процедур сварки в пределах диапазона (области изменения) параметров, представленных в разделе 8.

Испытания должны быть проведены в соответствии с настоящим стандартом. Дополнительные испытания могут потребоваться в соответствии с применяемыми стандартами.

Настоящий стандарт применяется к дуговой сварке титана, циркония и их сплавов всех выпускаемых типов.

Дуговая сварка охватывает следующие процессы в соответствии с ИСО 4063:

131 - дуговая сварка в инертном газе плавящимся электродом, MIG;

141 - дуговая сварка в инертном газе вольфрамовым электродом, TIG;

15 - плазменная сварка.

Принципы, изложенные в настоящем стандарте, могут быть применены и для других процессов сварки плавлением.

2 Нормативные ссылки

В настоящем стандарте использованы ссылки на следующие международные стандарты. Для датированных ссылок последующие поправки или изменения любых из этих публикаций действительны для настоящего стандарта только после введения поправок и изменений к ним. Для недатированных ссылок применяется последнее издание приведенного стандарта (включая изменения).

ЕН 571-1 Контроль неразрушающий. Контроль проникающими веществами. Часть 1. Основные принципы

ЕН 910 Разрушающий контроль сварных соединений металлических материалов. Испытания на изгиб

ЕН 970 Неразрушающий контроль соединений, полученных сваркой плавлением. Визуальный контроль

ЕН 1321 Разрушающие испытания сварных швов металлических материалов. Макроскопические и микроскопические испытания сварных швов

ИСО 4136 Разрушающие испытания сварных швов на металлических материалах. Испытание на растяжение образцов, вырезанных поперек шва

ИСО 5817 Сварка. Сварные соединения из стали, никеля, титана и их сплавов, полученные сваркой плавлением (исключая лучевые способы сварки). Уровни качества

ЕН ИСО 6947 Швы сварные. Положения сварки

ЕН ИСО 9606-5 Аттестационные испытания сварщиков. Сварка плавлением. Часть 5. Титан и титановые сплавы, цирконий и циркониевые сплавы

ЕН ИСО 14175 Сварочные материалы. Газы и газовые смеси для дуговой сварки и родственных процессов

ИСО 14732 Персонал, выполняющий сварку. Аттестационные испытания операторов сварки плавлением и наладчиков контактной сварки для полностью механизированной и автоматической сварки металлических материалов

ИСО 15607:2003 Технические требования и аттестация процедур сварки металлических материалов. Общие правила

ИСО 15608 Сварка. Руководство по системе группирования металлических материалов

ИСО 15609-1 Технические требования и аттестация процедур сварки металлических материалов. Технические требования к процедуре сварки. Часть 1. Дуговая сварка

ИСО 15613 Технические требования и аттестация процедур сварки металлических материалов. Аттестация, основанная на предпроизводственном испытании сварки

ЕН ИСО 17636 Контроль неразрушающий сварных швов. Радиографический контроль сварных соединений, выполненных сваркой плавлением

Примечание - При пользовании настоящим стандартом целесообразно проверить действие ссылочных стандартов и классификаторов в информационной системе общего пользования - на официальном сайте Федерального агентства по техническому регулированию и метрологии в сети Интернет или по ежегодно издаваемому информационному указателю «Национальные стандарты», который опубликован по состоянию на 1 января текущего года, и по соответствующим ежемесячно издаваемым информационным указателям, опубликованным в текущем году. Если ссылочный стандарт заменен (изменен), то при пользовании настоящим стандартом следует руководствоваться заменяющим (измененным) стандартом. Если ссылочный стандарт отменен без замены, то положение, в котором дана ссылка на него, применяется в части, не затрагивающей эту ссылку.

3 Термины и определения

В настоящем стандарте применены термины и определения по ИСО 15607.

4 Предварительные технические требования к процедуре сварки

Предварительные технические требования к процедуре сварки должны быть разработаны в соответствии с ИСО 15609-1.

5 Проверка процедуры сварки

Сварка и испытания образцов должны соответствовать положениям разделов 6 и 7.

6 Контрольное сварное соединение

6.1 Основные положения

Необходимо изготовить стандартизированный образец того сварного соединения, которое будут производить в соответствии сданной процедурой сварки, как это представлено в 6.2. В тех случаях, когда требования к размерам (геометрии) производимого соединения не совпадают со стандартными образцами, рассмотренными в настоящем стандарте, необходимо руководствоваться ИСО 15613.

6.2 Форма и размеры контрольных сварных соединений

6.2.1 Основные положения

Размеры или количество контрольных сварных соединений должны быть достаточными для проведения всех необходимых испытаний.

Могут быть изготовлены дополнительные или больших размеров (по сравнению с номинальным размером) образцы для проведения дополнительных и (или) повторных испытаний (см. 7.7).

Для всех контрольных сварных соединений, за исключением соединений патрубков (рисунок 4) и тавровых соединений (рисунок 8), толщина материала t должна быть одинаковой для обеих свариваемых пластин (труб).

Толщину материала и (или) наружный диаметр трубы контрольного сварного соединения необходимо выбирать в соответствии с 8.3.2.1 - 8.3.2.4.

Форма и минимальные размеры контрольного сварного соединения должны быть такими, как описано ниже.

6.2.2 Стыковое соединение пластин с полным проплавлением

Контрольное сварное соединение должно быть изготовлено в соответствии с рисунком 1.

1 - подготовка и сборка соединения, как описано в pWPS; a - минимальное значение 150 мм;
b - минимальное значение 350 мм; t - толщина материала

Рисунок 1 - Образец стыкового соединения пластин с полным проплавлением

6.2.3 Стыковое соединение труб с полным проплавлением

Контрольное сварное соединение должно быть изготовлено в соответствии с рисунком 2.

Примечание - Слово «труба» само по себе или в словосочетании означает: труба, трубка или полый профиль.

1 - подготовка и сборка соединения, как описано в pWPS; а - минимальное значение 150 мм;
D - наружный диаметр трубы; t - толщина материала

Рисунок 2 - Образец стыкового соединения труб с полным проплавлением

6.2.4 Тавровое соединение

Контрольное сварное соединение должно быть изготовлено в соответствии с рисунком 3. Такое контрольное сварное соединение может выполняться в виде стыковых соединений с полным проплавлением или угловых соединений.

1 - сварной шов с одной или с обеих сторон; подготовка и сборка соединения, как описано в pWPS;
а - минимальное значение 150 мм;
b - минимальное значение 350 мм; t - толщина материала

Рисунок 3 - Образец таврового соединения

6.2.5 Угловое соединение труб

Контрольное сварное соединение должно быть изготовлено в соответствии с рисунком 4. Угол a должен быть равен минимальному значению угла, применяемому в производстве.

Данный образец может быть использован для соединений с полным проплавлением (соединения типов «труба на трубу», «труба в трубу», «труба сквозь трубу») и для угловых соединений.

1 - подготовка и сборка соединения, как описано в pWPS; а - минимальное значение 150 мм;
D1 - наружный диаметр трубы, мм; D2 - наружный диаметр отвода;
t1 - толщина материала основной трубы; t2 - толщина материала отвода; a - угол отвода

Рисунок 4 - Образец углового соединения труб

6.3 Сварка контрольных сварных соединений

Подготовку и сварку контрольных сварных соединений необходимо проводить в соответствии с pWPS и согласно тем условиям производства, для которых они предназначены. Положения сварки и предельные углы наклона и поворота контрольного сварного соединения должны соответствовать ИСО 6947. Если при выполнении производственного соединения предусмотрены прихватки, то они должны быть и на контрольном сварном соединении и их необходимо переплавлять при наложении основного шва.

7 Испытания и оценка результатов

7.1 Объем испытаний

Испытания включают в себя как неразрушающие, так и разрушающие методы, в соответствии с требованиями, приведенными в таблице 1.

Применяемый стандарт может требовать дополнительных испытаний, например:

- испытание на продольное растяжение;

- испытание на изгиб металла сварного шва;

- испытание на твердость;

- испытания на ударную вязкость;

- испытание на коррозионную стойкость;

- химический анализ.

Примечание - Характер использования, материал или условия производства могут потребовать более полного испытания, чем предписано настоящим стандартом, чтобы получить больше информации и избежать повторного испытания процедуры сварки в дальнейшем путем получения данных дополнительных испытаний.

Таблица 1 - Контроль и испытание контрольных сварных соединений

Контрольное сварное соединение

Вид испытаний

Объем контроля

Сноски (примечания)

Стыковое соединение с полным проваром (см. рис. 1, 2)

Визуальный контроль

100 %

-

Радиографический контроль

100 %

-

Проникающими веществами

100 %

-

Поперечное растяжение

2 образца

-

Поперечный изгиб

4 образца

а

Макро-/микроскопическое исследование

1 образец

b

Тавровое и угловое соединение с полным проваром (см. рис. 3, 4)

Визуальный контроль

100 %

с

Проникающими веществами

100 %

с

Радиографический контроль

100 %

с

Макро-/микроскопическое исследование

2 образца

b и с

Угловые соединения (см. рис. 3, 4)

Визуальный контроль

100 %

с

Проникающими веществами

100 %

с

Макро-/микроскопическое исследование

2 образца

b и с

а - для испытаний на изгиб (см. 7.4.3).

b - для микроскопического исследования (см. пункт 7.4.4).

с - испытания не дают информации по механическим свойствам соединения. В тех случаях, когда эти свойства необходимы для применения, следует провести дополнительные испытания, например испытание стыкового соединения.

7.2 Расположение и вырезка образцов для испытаний

Образцы для испытаний вырезают согласно рисункам 5, 6, 7 и 8.

Контрольные образцы должны пройти все необходимые неразрушающие испытания и отвечать требованиям по всем основным параметрам, исследуемым данными методами неразрушающего контроля.

Допускается отбор образцов для испытаний вне зон с дефектами, где при неразрушающем контроле обнаружены допустимые дефекты в пределах приемочных уровней методов неразрушающего контроля.

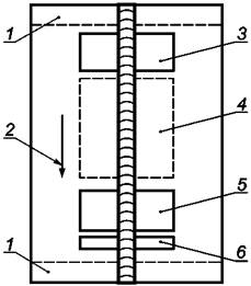
1 - нерассматриваемая область 25 мм; 2 - направление сварки; 3 - область для вырезки одного образца
для испытаний на растяжение и образцов для испытаний на изгиб и на излом; 4 - область для вырезки
дополнительных образцов, если предписано; 5 - область для вырезки одного образца для испытаний на
растяжение и образцов для испытаний на изгиб и на излом; 6 - область для вырезки одного образца для
макроскопических исследований и одного образца для измерений твердости.

Примечание - Рисунок не в масштабе.

Рисунок 5 - Вырезка образцов для испытаний из стыкового соединения пластин

1 - верх неподвижной трубы; 2 - область для вырезки одного образца для испытаний на растяжение и
образцов для испытаний на изгиб и на излом; 3 - область для вырезки образцов для ударных испытаний и
дополнительных образцов, если предписано; 4 - область для вырезки дополнительных образцов, если
предписано; 5 - область для вырезки одного образца для макроскопических исследований и одного
образца для измерений твердости.

Примечание - Рисунок не в масштабе.

Рисунок 6 - Вырезка образцов для испытаний из стыкового соединения труб

1 - нерассматриваемая область 25 мм; 2 - область для вырезки образцов для макроскопических исследований; 3 - область для вырезки одного образца для макроскопических исследований и измерения твердости; 4 - направление сварки

Рисунок 7 - Вырезка образцов для испытаний из таврового соединения

a - угол отвода; образцы для макроскопических исследований выбираются в положениях А и A1, В и B1; образцы для микроскопических исследований выбираются в положении А

Рисунок 8 - Вырезка образцов для испытаний из углового соединения труб

7.3 Неразрушающие испытания

Необходимо провести все неразрушающие испытания контрольного сварного соединения в соответствии с 7.1 и таблицей 1 перед тем как, вырезать образцы для испытаний. Любая термическая обработка после сварки, которая задана техническими требованиями, должна быть выполнена до неразрушающего контроля.

В зависимости от конфигурации соединения, материалов и требований к проведению работ неразрушающие испытания необходимо проводить согласно таблице 1 в соответствии с ЕН 970 (визуальный контроль), ЕН ИСО 17636 (радиографический контроль), ЕН 571-1 (проникающими веществами).

7.4 Разрушающие испытания

7.4.1 Основные положения

Объем контроля выбирается в соответствии с таблицей 1.

7.4.2 Испытания на поперечное растяжение

Образцы и проведение испытаний на растяжение в поперечном направлении стыкового сварного соединения должны выполняться в соответствии с требованием стандарта ИСО 4136.

Для труб с наружным диаметром более 50 мм следует удалить выпуклость шва с обеих сторон, чтобы получить толщину образца для испытаний, равную толщине стенки трубы.

Для труб с наружным диаметром меньше или равным 50 мм и при использовании всего сечения труб малого диаметра выпуклость шва допускается не убирать с внутренней поверхности трубы.

Предел прочности при растяжении образца для испытания должен быть не менее соответствующего заданного минимального значения для основного металла, если до испытания не было определено иное.

Для соединений разнородных металлов предел прочности не должен быть меньше минимального значения, заданного для основного материала, имеющего наименьший предел прочности.

7.4.3 Испытание на изгиб

Образцы и проведение испытаний на статический изгиб стыковых сварных соединений должны соответствовать требованиям стандарта ЕН 910.

Для толщин менее 12 мм должны быть испытаны два образца со стороны корня шва и два образца с лицевой стороны шва. Для толщин, равной или более 12 мм, рекомендуется испытывать четыре образца для бокового изгиба вместо испытаний образцов со стороны корня и с лицевой стороны шва.

Для соединений разнородных металлов или гетерогенных стыковых соединений пластин можно использовать один образец корня и один образец наружной стороны шва для изгиба в продольном направлении вместо четырех образцов для изгиба в поперечном направлении.

Диаметр оправки или внутреннего ролика должен быть равен 6t, за исключением материала группы 51, для которого применяется диаметр оправки, равный 4t. Угол загиба должен быть 180° для основного металла с удлинением А больше или равным 20 %. Для основного металла с удлинением А менее 20 % должна применяться формула:

                                                            (1)

где d - диаметр оправки или внутреннего ролика; ts - толщина образца для испытания на изгиб;

А - минимальное относительное удлинение при растяжении, установленное в технических требованиях на материал.

Образцы должны подвергаться однотипному изгибу, а участки шва, зона термического влияния (ЗТВ) и основной металл должны точно повторять радиус оправки. Это указывает на то, что газовая защита при сварке не снизила пластичности соединения и что сварка не ухудшила формовочные свойства основного металла.

При испытаниях на образцах не должно быть ни одного одиночного дефекта более 3 мм в любом направлении. Трещины, появляющиеся по краям образца во время испытания, не учитывают.

7.4.4 Анализ макро- и микрошлифов

Образец для испытания должен быть подготовлен и подвергнут травлению в соответствии с ЕН 1321 с одной стороны, чтобы четко выявить линию сплавления, зону термического влияния (ЗТВ) и проходы сварки.

Макроскопическое исследование должно включать основной металл, не затронутый воздействием сварки, и должна быть зарегистрирована, как минимум, одна фотография для каждого испытания процедуры сварки.

Уровни приемки должны соответствовать требованиям 7.5.

При травлении некоторых сплавов необходимо соблюдать осторожность, чтобы избежать появления трещин.

7.5 Уровни качества

Процедура сварки аттестуется, если дефекты в образце находятся в пределах уровня качества В по ИСО 5817, за исключением следующих дефектов: превышение выпуклости и толщины сечения шва, избыточное проплавление, которые должны оцениваться по уровню качества С.

Примечание - Соответствие между уровнями качества по ИСО 5817, и уровнями приемки при разных методах неразрушающего контроля - по ЕН ИСО 17635.

7.6 Цвет поверхности

Допустимыми цветами поверхности сварного соединения являются серебренный и соломенный. Допускается наличие узкой полоски с более интенсивным цветом на границе зоны газовой защиты. Темно-коричневый, фиолетовый и голубой цвета, серый и белый налет не допускаются.

7.7 Повторные испытания

Если контрольное сварное соединение не удовлетворяет какому-либо требованию по визуальному осмотру или неразрушающему методу контроля по 7.5, то необходимо изготовить дополнительное контрольное соединение и подвергнуть его тем же испытаниям. Если дополнительное контрольное соединение также не проходит испытания, то считают, что процедура сварки не прошла испытания.

Если образец для испытаний не удовлетворяет одному из требований разрушающего контроля согласно 7.4 только из-за дефектов сварки, то необходимо провести испытания двух дополнительных образцов, вместо каждого из числа не прошедших испытания. Дополнительные образцы могут быть взяты из того же контрольного сварного соединения, если там достаточно материала, в противном случае допускается изготовить новое контрольное соединение. Каждый дополнительный образец необходимо подвергать тем же испытаниям, что и образец, не прошедший испытания. Если любой из дополнительных образцов не удовлетворяет требованиям, то испытания процедуры сварки считаются не пройденными.

Если образец для испытания на растяжение не удовлетворяет требованиям 7.4.2, то необходимо изготовить два дополнительных образца на каждый образец, испытания которого прошли неудачно. Результаты испытания обоих дополнительных образцов должны удовлетворять требованиям 7.4.2.

8 Области распространения аттестации

8.1 Основные положения

Требования раздела 8 обязательны при применении настоящего стандарта. При изменении параметров сварки, выходящих за пределы области распространения, необходимо проведение нового испытания процедуры сварки.

8.2 Относящееся к изготовителю

Аттестация pWPS посредством испытаний в соответствии с настоящим стандартом разрешает производить работы по сварке в цехах и на площадках под единовременным техническим контролем и контролем качества со стороны производителя.

Технический контроль и контроль качества распространяются на процедуру сварки, если изготовитель, проводивший аттестацию процедуры сварки, несет полную ответственность за сварку, выполняемую в соответствии с данной процедурой.

8.3 Относящееся к основному металлу

8.3.1 Группирование основных металлов

8.3.1.1 Общие положения

Для сокращения количества испытаний процедуры сварки титан, цирконий и их сплавы группируются в соответствии с ИСО 15608.

Для каждого основного материала или комбинаций материалов, не вошедших в группы, необходимо проводить отдельную аттестацию процедуры сварки.

Если один основной металл принадлежит к двум группам или подгруппам, то его необходимо всегда классифицировать по нижней группе или подгруппе.

Примечание - Повторная аттестация не требуется при незначительных различиях состава материалов сходных марок, возникающих в случае использования национальных стандартов.

8.3.1.2 Титан

Область распространения аттестации представлена в таблице 2.

Таблица 2 - Область распространения аттестации для групп и подгрупп титана

Группа материала образца для испытания

Область распространения аттестации

Группа материала образца для испытания

Область распространения аттестации

51-51

51-51

51-53

51-53, 51-51

52-52

52-52

51-54

51-54, 51-51

53-53

53-53

52-53

52-53, 52-52

54-54

54-54

52-54

52-54, 52-52

51-52

51-52, 51-51

53-54

53-54, 53-53

8.3.1.3 Цирконий

Область распространения аттестации представлена в таблице 3.

Таблица 3 - Область распространения аттестации для групп циркония

Группа материала образца для испытания

Область распространения аттестации

61-61

61-61

62-62

62-62

61-62

61-62, 61-61

8.3.2 Толщина основного материала и диаметр трубы

8.3.2.1 Основные положения

Номинальная толщина t должна иметь следующие значения:

а) Для стыкового соединения - толщина основного металла.

b) Для углового соединения - толщина основного металла. Каждому диапазону толщин элементов соединения согласно таблице 4 соответствует диапазон толщины шва а, для однопроходных угловых соединений, как указано в 8.3.2.3.

c) Для накладного соединения патрубка с трубой - толщина основного металла.

d) Для вставных или сквозных соединений патрубка с трубой - толщина основного металла.

e) Для таврового соединения пластин с полным проплавлением - толщина основного металла.

При аттестации процедуры сварки соединения, выполненного несколькими способами сварки, значения толщин элементов соединения, выполненного каждым способом, могут использоваться как основа для определения области распространения аттестации отдельного способа сварки.

8.3.2.2 Область аттестации для стыковых соединений, тавровых соединений, соединений патрубка с трубой и угловых соединений

Аттестация процедуры сварки для толщины t распространяется на толщины, указанные в таблице 4.

Таблица 4 - Область распространения аттестации в зависимости от толщины

Область распространения аттестацииb)

Толщина контрольного сварного соединения, ta)

Стыковое, тавровое соединение и соединение патрубка с трубой для однопроходной или однопроходной двусторонней сварки

Стыковое, тавровое соединение и соединение патрубка с трубой для многопроходнойb) сварки и угловых соединенийb)

t £ 3

От 0,7t до 1,5t

От 0,7t до 2t

3 < t £ 12

» 0,7t » 1,3t

» 3t » 2t

12 < t

» 0,7t » 1,1t

» 0,5t » 2t

a) Для процесса комбинированной сварки значение толщины слоя, выполненного каждым процессом, может использоваться для определения области аттестации отдельного процесса сварки.

b) Для угловых соединений и соединений патрубков область распространения аттестации определяется для обеих толщин основного материала независимо друг от друга.

8.3.2.3 Область аттестации для толщины шва однопроходных угловых соединений

В дополнение к требованиям таблицы 4, область распространения аттестации для размера толщины шва а должна быть от 0,75 до 1,5а.

При аттестации углового соединения посредством испытания углового соединения, область распространения аттестации для толщины шва должна основываться на толщине наплавленного металла.

8.3.2.4 Область распространения аттестации для диаметра труб и соединений патрубков

Область распространения аттестации процедуры сварки для диаметра D распространяется на диаметры в диапазонах, указанных в таблице 5.

Аттестация, проведенная для пластин, распространяется на трубы с наружным диаметром более 500 мм или с наружным диаметром более 150 мм при сварке в поворотном положении РА или PC.

Таблица 5 - Область распространения аттестации в зависимости от диаметров труб и патрубков

Диаметр контрольного сварного соединения Da), мм

Область аттестации

D £ 25

От 0,5D до 2D

D > 25

³ 0,5D (25 мм минимум)

а) D - наружный диаметр трубы или наружный диаметр патрубка.

8.3.3 Угол соединения патрубка с трубой

Проверка процедуры сварки, выполненной на соединении патрубка под углом a, распространяется на все углы присоединения патрубка a1 в диапазоне a £ a1 £ 90°.

8.4 Общее для всех процедур сварки

8.4.1 Процесс сварки

Каждый уровень механизации процесса должен быть аттестован отдельно (ручной, частично механизированный, полностью механизированный и автоматический).

Аттестация действительна только для процесса сварки, использованного при проверке процедуры сварки.

Для процедур с несколькими процессами аттестация сварочной процедуры может быть выполнена при отдельных испытаниях каждого сварочного процесса. Можно также провести проверку процедуры сварки с несколькими процессами. Аттестация такого испытания действительна только при соблюдении последовательности процессов при испытании процедуры сварки с несколькими процессами.

Примечание - Не допускается использовать проверку процедуры сварки с несколькими процессами для аттестации какого-либо отдельного процесса, если проверка этого процесса не соответствует настоящему стандарту.

8.4.2 Положения при сварке

Сварка в одном из положений (трубы или пластины) при аттестации распространяется на сварку во всех положениях (трубы и пластины), за исключением PG и J-L045, для которых требуется проведение отдельной аттестации процедуры сварки.

8.4.3 Тип сварного соединения

Область распространения аттестации для типов сварных соединений соответствует применяемым при испытаниях процедуры сварки, с учетом ограничений, указанных в других разделах (например, по диаметру, толщине), и, кроме того:

a) аттестация стыковых сварных соединений с полным и неполным проплавлением распространяется на угловые соединения. Испытания угловых соединений требуются, если таковые являются преобладающими на производстве;

b) аттестация стыковых сварных соединений трубопроводов распространяется на соединения патрубков с трубой под углом более или равным 60°;

c) аттестация тавровых соединений сваренных встык, распространяется только на такие соединения и угловые соединения (см. а);

d) аттестация односторонних сварных соединений, выполненных без подкладки, распространяется на двусторонние сварные соединения и соединения, выполненные с подкладкой;

e) аттестация сварных соединений, выполненные с подкладкой, распространяется на двусторонние сварные соединения;

f) аттестация угловых соединений распространяется только на этот тип швов;

g) для заданного процесса не допускается заменять многопроходную наплавку на однопроходную (или одностороннюю на двустороннюю) и наоборот.

8.4.4 Присадочный материал

Область распространения аттестации для присадочного металла распространяется на другие присадочные материалы при условии, что они имеют эквивалентные механические свойства, такой же номинальный состав, согласно обозначению в принятом стандарте для присадочного материала.

8.4.5 Род тока

Аттестация процедуры сварки распространяется на род тока (переменный, постоянный, импульсный) и полярность, использованные при испытании процедуры сварки.

8.4.6 Температура между проходами

За верхний предел области распространения аттестации принимают максимальную температуру между проходами, достигнутую во время испытания процедуры сварки.

8.4.7 Термическая обработка после сварки

Добавление или отмена термической обработки после сварки не допускается.

Разрешенным температурным диапазоном является температура выдержки, используемая при испытании сварочной процедуры ± 20 °С, если нет иных требований. При наличии требований необходимо обеспечить скорость нагрева, скорость охлаждения и время выдержки.

8.4.8 Газовая защита обратной стороны соединения

Аттестация сварки без применения газовой защиты обратной стороны распространяется на сварку с применением газовой защиты, но не наоборот.

8.4.9 Сварка в камере

Аттестация сварки вне камеры распространяется на сварку в камере, но не наоборот.

8.5 Специальные требования для процессов

8.5.1 Процесс 131

8.5.1.1 Область распространения аттестации для защитного газа, подаваемого в горелку, в устройства для обдува участков соединения с наружной и внутренней сторон, ограничивается типом газа согласно ЕН ИСО 14175. Защитные газы, не указанные в ЕН ИСО 14175, ограничиваются номинальным составом, применяемым при испытании процедуры сварки.

8.5.1.2 Область распространения аттестации ограничивается системой подачи проволоки, которая применялась при испытании процедуры сварки (например, однопроволочная или многопроволочная система).

8.5.1.3 Область распространения аттестации для плавящейся проволоки с использованием переноса с короткими замыканиями (окунанием) распространяется только на перенос с короткими замыканиями (окунанием). Аттестация процедуры сварки с использованием струйного или крупнокапельного переноса распространяется на струйный и крупнокапельный перенос.

8.5.2 Процесс 141

8.5.2.1 Область распространения аттестации для защитного газа, подаваемого в горелку, в устройства для обдува участков соединения с наружной и внутренней сторон, ограничивается типом газа согласно ЕН ИСО 14175. Защитные газы, не указанные в ЕН ИСО 14175, ограничиваются номинальным составом, применяемым при испытании процедуры сварки.

8.5.2.2 Аттестация сварки с присадочным материалом не распространяется на сварку без присадочного материала и наоборот.

8.5.3 Процесс 15

8.5.3.1 Область распространения аттестации процедуры сварки ограничивается составом плазмообразующего газа, используемого при испытании этой процедуры сварки.

8.5.3.2 Область распространения аттестации для защитного газа, подаваемого в горелку, в устройства для обдува участков соединения с наружной и внутренней сторон, ограничивается типом газа согласно ЕН ИСО 14175. Защитные газы, не указанные в ЕН ИСО 14175, ограничиваются номинальным составом, применяемым при испытании процедуры сварки.

8.5.3.3 Аттестация сварки с присадочным материалом не распространяется на сварку без присадочного материала и наоборот.

9 Протокол аттестации процедуры сварки

Протокол аттестации процедуры сварки (WPQR) представляет собой отчет о результатах оценки каждого контрольного соединения, включая повторные испытания. Необходимо включить в протокол основные пункты, перечисленные для WPS в ИСО 15609-1, вместе с описанием характеристик, которые не подпадают под требования раздела 7.

Если не обнаружено недопустимых характеристик и результатов испытаний, то WPQR, описывающий результаты испытания процедуры сварки, считается положительным и должен быть подписан и датирован экспертом (экспертным органом).

WPQR, используемый для записи параметров процедуры сварки и результатов испытаний, должен иметь вид, облегчающий восприятие данных.

Пример WPQR приведен в приложении А.

Приложение А
(справочное)

Форма протокола аттестации процедуры сварки

Аттестация процедуры сварки - Свидетельство об испытании

WPQR изготовителя №:

Изготовитель:

Адрес:

Нормы и правила/Стандарт испытаний:

Дата проведения сварки:

Область аттестации:

Процесс(ы) сварки:

Тип соединения и шва:

Группа(ы) и подгруппа(ы) основного металла:

Толщина основного металла (мм):

Толщина шва (мм):

Наружный диаметр трубы (мм):

Один проход/Много проходов:

Обозначение присадочного материала:

Марка присадочного материала:

Размер присадочного материала:

Обозначение защитного газа/флюса:

Обозначение газа для защиты обратной стороны:

Род сварочного тока и полярность:

Вид переноса металла:

Погонная энергия:

Положения сварки:

Температура предварительного подогрева:

Температура между проходами:

Термическая обработка после сварки:

Другая информация (см. 8.5):

Эксперт или экспертный орган

Идентификационный №:

Настоящим удостоверяется, что образцы для сварки подготовлены, сварены и испытаны удовлетворительно, в соответствии с требованиями норм и правил (стандарта) проведения испытаний, указанных выше.

_______________________

_______________________

_______________________

Место проведения аттестации

Дата

Данные эксперта или экспертного органа

Фамилия, дата и подпись

Протокол испытаний сварного соединения

Место проведения:

pWPS изготовителя №:

WPQR изготовителя №:

Изготовитель:

Фамилия сварщика:

Процесс сварки:

Способ переноса металла:

Тип соединения и вид шва:

Данные по подготовке соединения (эскиз)*

Эксперт или экспертный орган:

Метод подготовки и очистки:

Данные основного металла:

Толщина материала (мм):

Наружный диаметр трубы (мм):

Положение сварки:

_____________

* Если требуется.

Конструкция соединения

Последовательность сварки

Режимы сварки

Проход

Процесс сварки

Размер присадочного материала

Ток, А

Напряжение дуги, В

Род тока, полярность

Скорость подачи проволоки

Скорость сварки*

Погонная энергия

Перенос металла

 

Обозначение и марка присадочного материала:

Любая специальная подкладка или просушка:

Газ: защитный:

для защиты обратной стороны:

Расход газа: защитный:

для защиты обратной стороны:

Тип/размер вольфрамового электрода:

Данные по подкладке:

Температура предварительного нагрева:

Температура между проходами:

Другая информация*, например:

Колебания (макс, ширина прохода):

Осциллятор (амплитуда, частота, задержка):

Данные импульсной сварки:

Зазор электрод - изделие:

Данные по плазменной сварке:

Угол наклона горелки:

Термическая обработка после сварки: (время, температура, метод, скорость нагрева и охлаждения):*

__________________________________

________________________________

Изготовитель

Эксперт (экспертный орган)

Фамилия, дата, подпись

Фамилия, дата, подпись

_____________

* Если требуется.

Результаты испытаний

WPQR изготовителя №:

Визуальный контроль:

Проникающими веществами:

Испытания на растяжение

Эксперт/экспертный орган:

№:

Радиографический контроль:*

Температура:

 

Тип/№

Re, Н/мм2

Rm, Н/мм2

А, %

Z, %

Место разрушения

Примечания

Требования

 

Испытания на изгиб

Диаметр оправки:

 

Тип/№

Угол загиба

Удлинение*

Результаты

Макроскопическое исследование:

Микроскопическое исследование*:

Другие испытания:

Примечания:

Испытания проведены в соответствии с требованиями:

№ отчета лаборатории:

Результаты испытаний приняты/не приняты

(исключить соответственно)

Испытания проведены в присутствии:

___________________________

Эксперт/экспертный орган

Фамилия, дата и подпись

_____________

* Если требуется

Приложение ZA
(обязательное)

Сведения о соответствии ссылочных международных стандартов
ссылочным европейским стандартам

Таблица ZA.1

Стандарты ЕН

Стандарт ИСО

Название

ЕН 571-1

ИСО 3452-1

Неразрушающий контроль. Цветная дефектоскопия - Часть 1: Общие принципы

ЕН 910

ИСО 5173

Разрушающий контроль сварных соединений металлических материалов - Испытания на изгиб

ЕН 970

ИСО 17637

Неразрушающий контроль сварных соединений - Визуальный контроль соединений, полученных сваркой плавлением

ЕН 1321

ИСО 17639

Разрушающий контроль сварных соединений металлических материалов - Макроскопическое и микроскопическое исследование сварных соединений

Приложение ДА
(обязательное)

Сведения о соответствии ссылочных международных стандартов
ссылочным национальным стандартам Российской Федерации
(и действующим в этом качестве межгосударственным стандартам)

Таблица ДА.1

Обозначение ссылочного
международного стандарта

Степень
соответствия

Обозначение и наименование соответствующего
национального стандарта

ЕН 571-1

-

*

ЕН 910

-

*

ЕН 970

-

*

ЕН 1321

-

*

ИСО 4136

-

*

ИСО 5817:2003

IDT

ГОСТ Р ИСО 5817-2009 Сварка. Сварные соединения из стали, никеля, титана и их сплавов, полученные сваркой плавлением (исключая лучевые способы сварки). Уровни качества

ИСО 6947:1990

-

*

ИСО 9606-5

-

*

ИСО 14175

-

*

ИСО 14732

-

*

ИСО 15607:2003

IDT

ГОСТ Р ИСО 15607-2009 Технические требования и аттестация процедур сварки металлических материалов. Общие правила

ИСО/ТО 15608:2005

-

*

ИСО 15609-1:2004

IDT

ГОСТ Р ИСО 15609-1-2009 Технические требования и аттестация процедур сварки металлических материалов. Технические требования к процедуре сварки. Часть 1. Дуговая сварка

ИСО 15609-2:2001

IDT

ГОСТ Р ИСО 15609-2-2009 Технические требования и аттестация процедур сварки металлических материалов. Технические требования к процедуре сварки. Часть 2. Газовая сварка

ИСО 15613:2004

IDT

ГОСТ Р ИСО 15613-2009 Технические требования и аттестация процедур сварки металлических материалов. Аттестация, основанная на предпроизводственном испытании сварки

ЕН ИСО 17636

-

*

* Соответствующий национальный стандарт отсутствует. До его утверждения рекомендуется использовать перевод на русский язык данного международного стандарта. Перевод данного международного стандарта находится в Федеральном информационном фонде технических регламентов и стандартов.

Примечание - В настоящей таблице использованы следующие условные обозначения степени соответствия стандартов:

- IDT - идентичные стандарты;

- MOD - модифицированные стандарты.

 

Ключевые слова: технические требования, аттестация, операции сварки, алюминий, алюминиевые сплавы, контрольное соединение



© 2013 Ёшкин Кот :-)