Информационная система
«Ёшкин Кот»

XXXecatmenu

МИНИСТЕРСТВО РОССИЙСКОЙ ФЕДЕРАЦИИ ПО ДЕЛАМ
ГРАЖДАНСКОЙ ОБОРОНЫ, ЧРЕЗВЫЧАЙНЫМ СИТУАЦИЯМ
И ЛИКВИДАЦИИ ПОСЛЕДСТВИЙ СТИХИЙНЫХ БЕДСТВИЙ

 

ФЕДЕРАЛЬНОЕ ГОСУДАРСТВЕННОЕ УЧРЕЖДЕНИЕ
«ВСЕРОССИЙСКИЙ ОРДЕНА "ЗНАК ПОЧЕТА"
НАУЧНО-ИССЛЕДОВАТЕЛЬСКИЙ ИНСТИТУТ
ПРОТИВОПОЖАРНОЙ ОБОРОНЫ»

 

 

 

УТВЕРЖДАЮ

Начальник ФГУ ВНИИПО МЧС России

Н.П. Копылов

21 апреля 2003 г.

 

 

 

АСПИРАЦИОННЫЕ ДЫМОВЫЕ
ПОЖАРНЫЕ ИЗВЕЩАТЕЛИ VESDA

Рекомендации

Часть 2

РАЗМЕЩЕНИЕ

 

 

 

МОСКВА 2003

 

Рекомендации определяют общие требования при проектировании систем пожарной сигнализации и установок пожаротушения с использованием в качестве элементов обнаружения возгорания аспирационных пожарных извещателей VESDA.

Рассмотрены наиболее типичные способы размещения аспирационных пожарных извещателей, основанные на комплексном подходе и учитывающие основные факторы (архитектурные, технологические, эксплуатационные и т.п.), оказывающие влияние на работоспособность аспирационных пожарных извещателей.

Издание предназначено для проектных, проектно-монтажных организаций, а также работников, занимающихся эксплуатацией и обслуживанием систем пожарной сигнализации, в состав которых входят аспирационные пожарные извещатели. Кроме того, оно может быть применено заказчиками и генеральными подрядчиками при разработке технических заданий на проектирование систем пожарной сигнализации с использованием аспирационных пожарных извещателей, а также организациями и службами, осуществляющими экспертизу проектируемых и существующих систем пожарной сигнализации, в том числе и работниками пожарной охраны.

Рекомендации могут служить справочным пособием, которое следует использовать в сочетании с другими нормативными документами, утвержденными в установленном порядке, а также с ведомственными (отраслевыми), региональными нормами, правилами, руководствами.

1. ОПРЕДЕЛЕНИЯ

Аспирационный пожарный извещатель - пожарный извещатель, реагирующий на продукты горения в виде твердых и (или) жидких частиц, которые с помощью вентиляционного устройства или аспиратора засасываются из защищаемого помещения через точки забора и по заборным трубопроводам поставляются к чувствительному элементу аспирационного пожарного извещателя, регистрирующему возгорание.

Заборный трубопровод - трубопровод, по которому транспортируются пробы воздуха из защищаемого помещения к чувствительному элементу аспирационного пожарного извещателя.

Точка забора - отверстие в заборном трубопроводе, через которое происходит всасывание воздуха из защищаемого помещения для передачи этого воздуха к чувствительному элементу аспирационного пожарного извещателя.

Транспортное время - промежуток времени, необходимый для доставки пробы воздуха из точки забора в защищаемом помещении к чувствительному элементу аспирационного пожарного извещателя.

Первичное обнаружение загорания (задымленности) - обнаружение, которое осуществляется в местах прохождения задымленного воздуха при работающих системах кондиционирования воздуха. Обычно это решетки на выходе аппаратов кондиционирования.

Вторичное обнаружение загорания (задымленности) - обнаружение, которое осуществляется в местах прохождения задымленного воздуха при отключенных системах кондиционирования воздуха или их отсутствии. Обычно это верхняя часть защищаемого пространства.

2. ОБЩИЕ ПОЛОЖЕНИЯ

В различных типах помещений, где применяется кондиционирование воздуха для поддержания необходимой рабочей температуры и влажности, может возникать достаточно интенсивный воздушный поток. Наличие такого потока делает маловероятным обнаружение задымленности с помощью обычных, например, точечных пожарных извещателей, вследствие быстрого удаления задымленного воздуха от очага загорания благодаря интенсивному воздухообмену. Поэтому такие помещения необходимо защищать аппаратурой, альтернативной общепринятым техническим средствам обнаружения загораний. Анализ зарубежной научно-технической информации показал, что в данном случае эффективно применение аспирационных пожарных извещателей.

Аспирационные пожарные извещатели VESDA имеют несколько основных преимуществ перед традиционными системами обнаружения дыма, включая способность обеспечивать так называемое кумулятивное обнаружение. Когда дым распространяется и рассеивается по всему помещению, его концентрация уменьшается и становится всё труднее обнаружить его традиционными средствами обнаружения. Кумулятивное обнаружение относится к способности забирать воздух из многих точек в пределах защищенной зоны в один извещатель. Аспирационные пожарные извещатели VESDA непрерывно отбирают небольшие количества дыма по всей защищенной зоне и переносят их к чувствительному элементу аспирационного пожарного извещателя.

Принцип действия аспирационных пожарных извещателей VESDA

Воздух из защищаемого помещения всасывается при помощи высокоэффективного аспиратора через сиcтему заборных трубопроводов. Проба этого воздуха пропускается через двухступенчатый фильтр. Первая ступень удаляет пыль и загрязнение до того, как проба воздуха поступает в оптическую камеру обнаружения дыма. Особенность второй ступени очистки заключается в подаче дополнительной порции чистого воздуха для предотвращения загрязнения оптических поверхностей и для обеспечения стабильности калибровки и длительного срока службы аспирационного извещателя. После фильтра проба воздуха поступает в измерительную камеру обнаружения, контролируемую стабильным лазерным источником. При наличии дыма в измерительной камере свет рассеивается, что регистрируется высокочувствительной приемной системой. Затем сигнал обрабатывается извещателем и индицируется посредством линейного шкального индикатора, пороговых индикаторов сигнала тревоги и/или графического дисплея (в зависимости от модификации извещателя). Далее извещатели через реле или интерфейс могут передавать эту информацию либо на прибор приемно-контрольный пожарный, либо на прибор пожарный управления, либо на пульт централизованного наблюдения.

Аспирационные пожарные извещатели VESDA имеют функцию предупреждения ложного срабатывания, вызываемого внешними источниками. Это гарантирует правильность определения степени задымленности, особенно в помещениях с кондиционированием воздуха.

Аспирационные пожарные извещатели VESDA обладают функциональной особенностью AutoLearmTM, которая обеспечивает оптимальную работу в различных условиях эксплуатации. Наблюдение за «средними» характеристиками условий эксплуатации и автоматическая установка порогов тревоги для защищаемой зоны дают возможность системе заранее предупреждать о потенциально опасной ситуации и одновременно уменьшают опасность возникновения ложных тревог.

Имеется возможность объединять аспирационные пожарные извещатели VESDA в сеть. Сеть VESDAnet - это «замкнутая» телекоммуникационная сеть, не требующая дополнительного оборудования. Она связывает извещатели, дисплеи, программаторы, дистанционные блоки и источники питания VESDA, соединенные последовательно в кольцо по конфигурации, выбранной заказчиком. Сеть позволяет программировать множество устройств из одного или более мест и автоматически определять неисправность. Она может быть также подключена к внешним системам, таким, как системы управления зданием, которые способны работать в сети VESDAnet.

Широкий диапазон чувствительности аспирационных пожарных извещателей VESDA предполагает их оптимальную настройку для разнообразных условий эксплуатации. Диапазон чувствительности 0,005 ÷ 20 % (об.) предусматривает установку до четырех различных уровней тревоги, в соответствии с увеличением степени задымления. «Внимание» (ALERT) - предусматривает местную индикацию с индицированием фазы развития пожара. «Опасность» (ACTION) - выдача сигналов на пульт в помещение пожарного поста защищаемого объекта, где находится персонал, ведущий круглосуточное дежурство. «Пожар 1» (FIRE 1) - выдача сигнала на пульт централизованного наблюдения с выездом пожарной команды. «Пожар 2» (FIRE 2) - отключение электричества.

Благодаря широкому диапазону чувствительности, наличию нескольких уровней сигналов тревоги и отслеживанию нарастания опасной концентрации продуктов горения аспирационные пожарные извещатели VESDA при включении их в систему пожаротушения позволяют не опасаться за несанкционированное или излишне раннее срабатывание систем пожаротушения. При правильном расчете необходимого количества и мест расстановки аспирационных пожарных извещателей VESDA возможно их использование для обеспечения раннего оповещения о пожаре.

Аспирационные пожарные извещатели VESDA имеют встроенный журнал регистрации событий и дистанционный дисплей, позволяют осуществлять разнообразные способы монтажа, имеют простые схемы подключения к приборам приемно-контрольным пожарным. Модульность и гибкость построения аспирационных пожарных извещателей VESDA помогает разработчикам находить идеальные решения для систем обнаружения пожара.

3. ОБЛАСТЬ ПРИМЕНЕНИЯ АСПИРАЦИОННЫХ ПОЖАРНЫХ ИЗВЕЩАТЕЛЕЙ VESDA

Аспирационные пожарные извещатели позволяют обнаруживать задымления в условиях, когда обнаружение дыма затруднено, т.е. в помещениях, имеющих большую площадь, высокие потолки, - торговых центрах, ангарах для самолетов, холодильных помещениях, спортивных залах.

Аспирационные пожарные извещатели могут эффективно применяться для обеспечения самого раннего обнаружения, пожара, например, в помещениях с дорогостоящей аппаратурой - машинных залах, телекоммуникационных помещениях, помещениях с вычислительной техникой, радиоаппаратурой, помещениях автоматических телефонных станций, госпиталях, больницах, помещениях с особо чистой окружающей средой.

Аспирационные пожарные извещатели также могут устойчиво функционировать в условиях с жесткими окружающими средами, т.е. в помещениях с повышенным уровнем загрязнения окружающей среды или экстремальными климатическими характеристиками, так как система заборного трубопровода и непосредственно чувствительный элемент извещателя могут быть установлены в разных помещениях. Это такие объекты, как электростанции, общественный транспорт, промышленные предприятия и производственные здания, связанные с производством и хранением изделий из древесины, полимерных материалов, текстильно-галантерейных, швейных, обувных, кожевенных, табачных, меховых и целлюлозно-бумажных изделий, резины, резинотехнических изделий, горючих рентгеновских и кинофотопленок, хлопка, помещения предприятий по обслуживанию автомобилей.

Аспирационные пожарные извещатели могут быть использованы в зданиях и помещениях с повышенными требованиями к эстетике - это современные офисы, зрительные, репетиционные, лекционные, читальные и конференц-залы, комнаты заседаний, холлы, коридоры, гардеробные, а также исторические здания, соборы, музеи, выставки, галереи искусств, книгохранилища, архивы.

Аспирационные пожарные извещатели могут работать как самостоятельно в качестве индивидуальных средств, так и в составе автоматических систем сбора и обработки информации об обстановке и передачи сигналов различным способом - по проводам, по радиоканалу и др.

Область применения аспирационных пожарных извещателей достаточно широка. Она включает в том числе склады, универсамы, которые содержат объемы разнообразных товарно-материальных запасов, охватывающих диапазон от сырьевых производственных материалов и оптовых товаров до розничных предметов потребления и готовой продукции. Узлы электронной обработки данных, такие, как центры обработки данных Internet, центры управления сетью и подобные системы, которые представляют значительную пожарную опасность из-за их большой потребности в электроэнергии и плотности электронных схем. Участки с чистыми производственными помещениями, например, установки по производству полупроводников, научно-исследовательские и опытно-конструкторские организации, фармацевтические производственные мощности, которые представляют значительную пожарную опасность из-за постоянного снабжения воспламеняющимися материалами. Увеличенный поток воздуха и высокий уровень кислорода повышают опасность, способствуя развитию пожара, последующему распространению дыма и получающемуся в результате загрязнению (самый небольшой пожар может загрязнить технологическую инструментальную оснастку, разрушить продукцию и привести к невозвратимому производственному и оперативному простою). Эффективно применять аспирационные пожарные извещатели в энергетической промышленности, которая использует для выработки электроэнергии различные типы топлива. Тип электростанции классифицируется по источникам топлива, включая каменный уголь, газ, нефть, ядерное топливо, гидроэнергоресурсы и т.д. Аспирационные пожарные извещатели не только снизят опасность возникновения пожара на электростанции, но и предотвратят подачу ложных сигналов тревоги, которые могут привести к дорого обходящемуся простою в выработке электроэнергии и последующему повторному включению электропитания электростанции.

Таким образом, аспирационные пожарные извещатели VESDA позволят своевременно определить место возникновения пожара и смогут эффективно защитить дорогостоящее оборудование и помещения.

4. ТРЕБОВАНИЯ К РАЗМЕЩЕНИЮ АСПИРАЦИОННЫХ ПОЖАРНЫХ ИЗВЕЩАТЕЛЕЙ VESDA

При проектировании систем пожарной сигнализации с использованием аспирационных пожарных извещателей следует учитывать следующие аспекты:

• высоту и объем защищаемого помещения;

• характеристики воздушного потока в защищенной зоне, включая вопрос о том, как аппаратные средства и оборудование, установленные в помещении, влияют на воздушный поток;

• условия эксплуатации - изменение влажности и температуры;

• наличие и местонахождение основных источников пожарной опасности;

• уровень подготовки обслуживающего персонала;

• расположение и высоту стеллажей и устройств для складского хранения;

• способ погрузки (разгрузки) товара и оборудования;

• уровень классификации чистых производственных помещений;

• требования местных норм, промышленных стандартов;

• расположение систем фильтрации и воздухоприводных установок;

• уровень защиты, требуемый заказчиком.

Уровень чувствительности аспирационных пожарных извещателей VESDA определяется условиями окружающей среды в каждом конкретном случае.

На тех объектах, где схема расположения оборудования и конфигурация помещения не дают возможности придерживаться данных рекомендаций (например, высокие стеллажи), проект должен быть индивидуальным для данного объекта.

Заборные трубопроводы в аспирационных пожарных извещателях должны быть расположены, как правило, на уровне потолка и в пределах размещения стеллажей.

При проектировании необходимо учесть возможность расслоения дыма. Расслоение дыма происходит во многих помещениях с высоко расположенными потолками и возникает в результате нагревания и охлаждения воздуха на объекте. Для обнаружения задымленности следует размещать заборные трубопроводы на различной высоте, что позволит обнаружить возгорание на более ранней стадии. Чтобы избежать этой проблемы, рекомендуется провести испытания дымом, используя генератор дыма или другой аналогичный метод.

Заборный трубопровод должен размещаться вдоль потолка, кроме того, отбор проб должен производиться с использованием обратных стояков или капилляров (если требуется отбор проб через потолок). Выбор конфигурации заборного трубопровода зависит от частного случая применения и внутренних требований на объекте (т.е. выполняемых работ, доступа к полостям, вопросов эстетического порядка и т.д.).

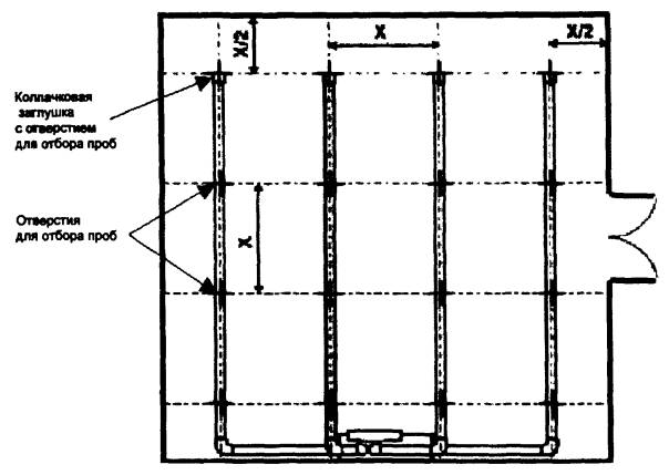
Заборный трубопровод, как правило, должен монтироваться в сеточном формате, так чтобы каждое отверстие для отбора проб соответствовало месту расположения точечного пожарного извещателя. На рис. 1 представлена стандартная схема отбора проб в помещении. На рис. 2 представлена сеточная схема расположения точек забора проб воздуха.

Рис. 1. Стандартная схема отбора проб в помещении

 

Рис. 2. Сеточная схема расположения точек забора проб воздуха

Сеть заборных трубопроводов и арматура, поставляемые компанией Vision Fire & Security, разрабатываются для разных условий применения и рекомендуются для использования в качестве неотъемлемой части проекта системы в целях удовлетворения критериям качества и надежности. Для обеспечения выполнения требований проекта ответственность за проект должна нести аккредитованная в установленном порядке организация.

Для облегчения монтажа заборных трубопроводов на потолке специально, с учетом колебаний температуры, используется жесткая труба (из поливинилхлорида, акрилонитрилбутадиен-стирола). Так как наружные климатические изменения могут вызывать расширение и сжатие трубопроводов сети, то для обеспечения возможности небольших перемещений заборного трубопровода рекомендуется использовать седловидные опоры трубопроводов.

Расширение и сжатие, вызванные колебаниями температуры, могут также сделать необходимым монтаж воздухонепроницаемых компенсаторов заборного трубопровода. Размещение компенсаторов заборного трубопровода позволяет трубе сжиматься и расширяться без приложения усилий к зажимным приспособлениям трубы.

Блоки измерения и индикации аспирационных пожарных извещателей VESDA могут быть размещены в пределах защищаемой зоны или снаружи от защищаемой зоны. Их расположение в первую очередь зависит от таких факторов, как внутренняя конфигурация, рабочие процессы, условия окружающей среды. Для облегчения монтажа и технического обслуживания блоков измерения и индикации аспирационных пожарных извещателей VESDA их следует располагать на рабочей высоте (0,8 ÷ 1,5 м от уровня пола). Конфигурация сети заборных трубопроводов и блоков измерения и индикации аспирационных пожарных извещателей VESDA представлена на рис. 3.

Рис. 3. Конфигурация сети заборных трубопроводов и блоков измерения и
индикации аспирационных пожарных извещателей VESDA

Примечание. Размещение материалов, оборудования может изменить динамику распространения воздушного потока на объекте. Для этого рекомендуется провести эксплуатационные испытания, которые должны являться составной частью программы оценки проектирования.

Для обеспечения эффективного обнаружения рекомендуется использовать обратные стояки, которые позволяют обнаружить наличие зарождающегося дыма путем проникновения в слой воздуха, находящийся ниже уровня потолка. Обратные стояки могут иметь длину до 8 метров. Конкретная длина обратного стояка определяется индивидуально для каждого объекта. Рационально использовать обратные стояки при оборудовании пожарной сигнализацией складских помещений. В данном случае блоки измерения и индикации аспирационных пожарных извещателей VESDA должны монтироваться непосредственно на стеллажах, а сеть заборных трубопроводов должна размещаться горизонтально по стеллажам на различных уровнях (рис. 4). Это позволяет производить отбор проб воздуха на различной высоте по всем стеллажам и обеспечивает раннее обнаружение загораний. Сеть заборных трубопроводов должна монтироваться между стоящими вплотную стеллажами, обеспечивающими механическую защиту.

При монтаже заборных трубопроводов над стеллажами с использованием обратных стояков необходимо защитить их от опасности повреждения при работе самоходных погрузчиков. Обратные стояки могут быть установлены с укрытой навесом стороны стеллажей коробчатого сечения. Если это невозможно, сеть заборных трубопроводов может быть смонтирована параллельно раме стеллажа. Обычно обратные стояки должны иметь от двух до трех отверстий. На рис. 5 представлен вертикальный вариант отбора проб воздуха в стеллажах.

Рис. 4. Горизонтальный отбор проб в стеллажах

 

Рис. 5. Вертикальный отбор проб воздуха в стеллажах

Некоторые помещения, например, офисные и т.п., имеют подвесные потолки. При размещении заборных трубопроводов в пространстве между подвесным потолком и перекрытием допускается применение двух видов отбора проб:

1) Отбор проб с использованием капилляров: пробы воздуха берутся из защищаемого помещения через облицовочную плитку с помощью капиллярных трубок (схема представлена на рис. 6).

Расположение точек отбора проб с использованием капилляров должно совпадать с сеточной схемой расположения, показанной на рис. 2.

2) Отбор проб непосредственно через отверстия в заборном трубопроводе применяется для защиты пространства между подвесным потолком и перекрытием. Данный способ особенно важен, если это пространство за подвесным потолком содержит кабельную сеть. Для определения расстояния между отверстиями в заборном трубопроводе следует использовать метод сеточного расположения, показанный на рис. 2. Схема представлена на рис. 7.

Некоторые рабочие зоны могут иметь опорные балки и пространства как часть конфигурации потолка. В тех зонах, где пространство между подвесным потолком и перекрытием превышает 600 мм, необходимо использовать заборный трубопровод с использованием капилляров типа «трость». Этот метод отбора проб обеспечивает кратчайшее время переноса дыма, позволяя в то же время прокладывать более длинные трубы. Схема представлена на рис. 8.

Рис. 6. Отбор проб с использованием капилляров

Рис. 7. Отбор проб из пространства между подвесным потолком и перекрытием

 

Рис. 8. Заборный трубопровод с использованием капилляров типа «трость»

При размещении отверстий для отбора проб необходимо принять меры предосторожности в отношении накопившейся пыли или грязи. Поэтому отверстия для отбора проб следует сверлить с нижней и/или с боковой стороны трубы, а не с верхней. Рис. 9 иллюстрирует систему заборных трубопроводов в пространстве под полом. Такую же компоновку можно применить, если полости представляют собой пространство между подвесным потолком и перекрытием или пространство под крышей или покрытием промышленного здания.

Для снижения потенциального воздействия перепадов давления рекомендуется вернуть воздух, отобранный на пробу, в защищенную полость.

Аспирационные пожарные извещатели VESDA могут защитить аппаратуру в шкафах путем непрерывного отбора проб из внутренней среды шкафа. Это достигается путем отбора проб в шкафу или над шкафом. Схема представлена на рис. 10.

Для отбора проб воздуха в шкафу сверху или из пространства под полом в шкаф вставляются капиллярные трубки или обратные стояки.

Для отбора проб воздуха в шкафу при монтаже сверху заборный трубопровод размещается над шкафом, а капилляры или обратные стояки крепятся к нему с соответствующими интервалами. Рекомендуется вводить капиллярные трубки или обратные стояки внутрь шкафа на глубину 25 - 50 мм.

Для отбора проб воздуха в шкафу при монтаже в пространстве под полом заборный трубопровод располагается в пространстве под полом, капиллярные трубки или подающие стояки крепятся с соответствующими интервалами. Затем просверливаются отверстия в полу и в основании шкафа. Капиллярные трубки или подающие стояки прокладываются через низ шкафа и поддерживаются на верхней части шкафа монтажным зажимом. Рекомендуется ориентировать отверстие для отбора проб вниз и расположить, если не установлено иначе, на 25 - 50 мм ниже внутренней поверхности верха шкафа.

Рис. 9. Отбор проб из пространства под полом

 

Рис. 10. Варианты отбора проб с использованием капилляров и над шкафом

Отбор проб над шкафом обеспечивается путем размещения заборного трубопровода непосредственно над вентиляционной решеткой шкафа. Затем для монтажа заборного трубопровода на расстоянии 25 - 200 мм над решеткой (в зависимости от перемещения воздуха) используются отклоняющие стойки. В каждом шкафу следует предусмотреть, по меньшей мере, одно специальное отверстие для отбора проб, обращенное к прямому потоку воздуха из шкафа.

Для обеспечения отбора проб из вытяжного воздухопровода устройство для отбора проб может быть расположено или на вытяжной решетке вентиляционного канала (отбор проб на вытяжной решетке), или размещено в вентиляционном канале (отбор проб в вентиляционном канале).

При отборе проб на вытяжной решетке с учетом того, что образующийся дым имеет тенденцию перемещаться вместе с потоком воздуха, заборный трубопровод с отверстиями для отбора воздуха должен быть установлен поперек воздушной решетки вытяжной вентиляционной системы. Схема представлена на рис. 11.

Отбор проб в вентиляционном канале обеспечивается путем размещения заборного трубопровода по всей ширине вентиляционного канала. Схема представлена на рис. 12.

Рис. 11. Отбор проб на вытяжной решетке

 

Рис. 12. Отбор проб в вентиляционном канале

В части заборного трубопровода, расположенной в вентиляционном канале (зонде), просверливаются отверстия для отбора проб и размещаются на 20 - 45° выше или ниже осевой линии тока воздушного потока. Затем воздух для отбора проб вытягивается из извещателя обратно в вентиляционный канал. Во избежание возмущений воздуха из-за его притока воздухозаборный зонд следует сместить по диагонали не менее чем на 300 мм. Вытяжной зонд, как правило, вставляется на одну треть ширины вентиляционного канала.

Примечание. Необходимо обеспечить надлежащее уплотнение и воздухонепроницаемость входных и выходных точек зонда.

Для отбора проб в помещениях и в вентиляционном канале требуются отдельные аспирационные пожарные извещатели.

 

5. ТРЕБОВАНИЯ К АСПИРАЦИОННЫМ ПОЖАРНЫМ ИЗВЕЩАТЕЛЯМ VESDA, ПРЕДНАЗНАЧЕННЫМ ДЛЯ ФОРМИРОВАНИЯ СИГНАЛА НА ЗАПУСК СРЕДСТВ ПОЖАРОТУШЕНИЯ

Аспирационные пожарные извещатели VESDA можно использовать в качестве средств формирования стартового сигнала для запуска систем газового пожаротушения благодаря наличию нескольких уровней сигналов тревоги и настраиваемому диапазону чувствительности.

Для осуществления алгоритма пуска средств пожаротушения предполагается наличие двух отдельных точек детектирования, которые необходимы для срабатывания системы, то есть наличие двух отдельных аспирационных пожарных извещателей.

Имеется два способа применения аспирационных пожарных извещателей VESDA, осуществляющих выдачу стартового сигнала для запуска средств пожаротушения.

1) Аспирационный пожарный извещатель VESDA и обычные точечные пожарные извещатели.

Аспирационный пожарный извещатель VESDA устанавливают в вентиляционном канале или на выходе аппаратов для кондиционирования воздуха - первичное обнаружение задымленности. Обычные точечные пожарные извещатели устанавливают согласно типовой схеме установки извещателей по НПБ 88-01 - вторичное обнаружение задымленности. Дополнительно аспирационные пожарные извещатели VESDA могут быть размещены в запотолочных и пространствах под полом для расширения возможностей обычной системы обнаружения загорания.

• Аспирационный пожарный извещатель VESDA при обнаружении задымления воздуха отключает систему вентиляции или кондиционирования воздуха. Запуск системы пожаротушения осуществляется только от точечных пожарных извещателей.

• Аспирационный пожарный извещатель VESDA отключает систему вентиляции или кондиционирования воздуха при достижении концентрации задымленности определенного значения. Запуск системы пожаротушения проводится по схеме совпадения, то есть получения сигналов от аспирационного пожарного извещателя VESDA и точечного пожарного извещателя.

2) Аспирационные пожарные извещатели VESDA. Один аспирационный пожарный извещатель VESDA

устанавливают в вентиляционном канале или на выходе аппаратов для кондиционирования воздуха. Два других аспирационных пожарных извещателя VESDA размещают на уровне потолка защищаемого помещения. После первичного обнаружения задымленности аспирационный пожарный извещатель VESDA отключает систему вентиляции или кондиционирования воздуха. Сигнал для запуска системы пожаротушения выдают два других аспирационных пожарных извещателя VESDA, расположенных под потолком защищаемого помещения.

6. ТРЕБОВАНИЯ К МОНТАЖУ АСПИРАЦИОННЫХ ПОЖАРНЫХ ИЗВЕЩАТЕЛЕЙ VESDA

Монтаж аспирационных пожарных извещателей должен проводиться в соответствии с технической документацией на конкретные типы извещателей, представленной изготовителем.

При установке аспирационных пожарных извещателей следует учитывать направления движения воздушных потоков в защищаемом помещении.

Примечание. Выявление схем воздушного движения в защищаемом помещении может быть осуществлено с использованием генераторов дыма при включенной системе вентиляции.

Прокладку проводов, кабелей следует выполнять в соответствии с требованиями ГОСТ Р 50571.15-97 «Электроустановки зданий. Выбор и монтаж электрооборудования», Правилами устройства электроустановок, Нормами технологического проектирования ВНТП 116-87 «Проводные средства связи. Линейно-кабельные сооружения», СНиП 3.05.06-85 и с учетом настоящих рекомендаций.

Выбор проводов, кабелей следует производить в соответствии с Правилами устройства электроустановок, НПБ 88-01 и с учетом технической документации на конкретные типы аспирационных пожарных извещателей, представленной изготовителем.

В помещениях, где электромагнитные поля и наводки превышают уровень, установленный ГОСТ 23511, провода и кабели должны быть защищены от наводок (экранированы).

Шлейфы сигнализации следует выполнять самостоятельными проводами и кабелями с медными жилами. Шлейфы сигнализации, как правило, следует выполнять проводами связи, если технической документацией на аспирационные пожарные извещатели не предусмотрено применение специальных типов проводов или кабелей.

Соединительные линии, выполненные телефонными кабелями, должны иметь резервный запас жил кабелей и клемм соединительных коробок не менее 10 %.

Диаметр медных жил проводов и кабелей должен быть определен из расчета допустимого падения напряжения, но не менее 0,5 мм.

Линии электропитания следует выполнять самостоятельными проводами и кабелями. Не допускается их прокладка транзитом через взрывоопасные и пожароопасные помещения (зоны). В обоснованных случаях допускается прокладка этих линий через пожароопасные помещения (зоны) в пустотах строительных конструкций класса КО, или огнестойкими проводами и кабелями, или кабелями и проводами, прокладываемыми в стальных трубах по ГОСТ 3262.

Защитное заземление (зануление) электрооборудования аспирационных извещателей должно быть выполнено в соответствии с требованиями ПУЭ, СНиП 3.05.06, ГОСТ 12.1.030 и технической документацией изготовителя.

 

 

 



© 2013 Ёшкин Кот :-)