Информационная система
«Ёшкин Кот»

XXXecatmenu

ПРАВИТЕЛЬСТВО МОСКВЫ
МОСКОМАРХИТЕКТУРА

ПОСОБИЕ
к МГСН 4.12-97

ЛЕЧЕБНО-ПРОФИЛАКТИЧЕСКИЕ
УЧРЕЖДЕНИЯ

РАЗДЕЛ III

ВЫПУСК 5

ДИАГНОСТИЧЕСКИЕ ОТДЕЛЕНИЯ

Отделения (кабинеты) функциональной
диагностики. Эндоскопические
отделения (кабинеты). Отделы (отделения)
лучевой диагностики (рентгенологические,
компьютерной и магнитно-резонансной
томографии, радионуклидной диагностики).

2005

ПРЕДИСЛОВИЕ

1. РАЗРАБОТАНО: ГУП МНИИП «Моспроект - 4» (архитектор Сорокина Ю.В., инженер Демина Е.С.), при участии:

- Департамента здравоохранения города Москвы (Главный специалист по функциональной диагностике Сахно Ю.Ф.; Главный специалист по эндоскопии Сотников В.Н., Главный специалист по лучевой диагностике Директор НПЦ MP Варшавский Ю.В.);

- Сотрудников НПЦ MP (зам. директора к.м.н. Гуреев Г.Т., зав. организационно-методическим отделением Жаворонкова З.В., зав отделом технического рентгенорадиологического контроля Бердяков Г.И.);

- Заведующей отделением лучевой диагностики клинического онкологического диспансера к.м.н., доц. Сологубовой Г.Ф.

2. ПОДГОТОВЛЕНО к утверждению и изданию Управлением перспективного проектирования, нормативов и координации проектно-изыскательских работ Москомархитектуры.

3. СОГЛАСОВАНО: Департаментом здравоохранения города Москвы и Москомархитектурой.

4. УТВЕРЖДЕНО И ВВЕДЕНО В ДЕЙСТВИЕ Приказом Москомархитектуры от 26 февраля 2006 г. № 38.

СОДЕРЖАНИЕ

Область применения. 1

1. Отделение (кабинет) функциональной диагностики. 3

2. Эндоскопические отделения (кабинеты) 4

3. Отдел (отделение) лучевой диагностики. 6

3.1. Рентгенологическое отделение. 6

3.2. Отделение рентгеновской компьютерной томографии (ркт) 11

3.3. Кабинет магнитно-резонансной томографии. 12

3.4. Отделение (лаборатория) радионуклидной диагностики. 12

4. Нормативные ссылки. 14

Приложение 1. Примерные габаритные схемы основных помещений отделения функциональной диагностики с необходимым оборудованием и мебелью.. 15

Приложение 2. Примерные габаритные схемы основных помещений эндоскопического отделения с необходимым оборудованием и мебелью.. 19

Приложение 3. Примерные габаритные схемы основных помещений рентгенологического отделения с необходимым оборудованием и мебелью.. 21

Приложение 4. Примерная габаритная схема кабинета компьютерной томографии с необходимым оборудованием и мебелью.. 28

Приложение 5. Примерная габаритная схема кабинета магнитно-резонансной томографии с необходимым оборудованием и мебелью.. 29

Приложение 6. Примерная габаритная схема кабинета сканирования с необходимым оборудованием и мебелью.. 30

ВВЕДЕНИЕ

Пособие разработано в развитие действующих МГСН 4.12-97 «Лечебно-профилактические учреждения».

Пособие состоит из 7 разделов и 9 выпусков:

Раздел I - Общие положения (Выпуск 1);

Раздел II - Стационары (Выпуски 2, 3);

Раздел III - Диагностические отделения (Выпуски 4, 5);

Раздел IV - Специализированные и вспомогательные отделения (Выпуск 6);

Раздел V - Амбулаторно-поликлинические учреждения (Выпуск 7);

Раздел VI - Служебно-бытовые помещения. Подстанции скорой и неотложной медицинской помощи. Молочные кухни и раздаточные пункты молочных кухонь (Выпуск 8);

Раздел VII - Инженерное оборудование (Выпуск 9).

В настоящем Выпуске 5 Пособия изложены основные положения и специфические требования к проектированию отделений (кабинетов) функциональной диагностики, эндоскопических отделений (кабинетов), отделов (отделений) лучевой диагностики (рентгенологических, компьютерной томографии, магнитно-резонансной томографии, лабораторий радионуклидной диагностики), а также рекомендуемые составы и площади помещений и примерные габаритные схемы с набором необходимого технологического оборудования.

Пособие предназначено для проектировщиков, а также для организаторов здравоохранения, работающих в области планирования и проектирования лечебно-профилактических учреждений.

ОБЛАСТЬ ПРИМЕНЕНИЯ

1. Настоящий выпуск Пособия распространяется на проектирование отделений (кабинетов) функциональной диагностики, эндоскопических отделений (кабинетов), отделений лучевой диагностики (рентгенодиагностических, магнитно-резонансной томографии, лабораторий радиоизотопной диагностики) новых и реконструируемых лечебно-профилактических учреждений, независимо от их организационно-правовой формы и форм собственности.

2. При проектировании лечебно-профилактических учреждений следует руководствоваться требованиями СНиП 2.08.02-89*, МГСН 4.12-97, МГСН 4.01-94, других действующих на территории г. Москвы нормативных документов в строительстве, а также учитывать положения выпусков 1, 2, 3, 4 Пособия к МГСН 4.12-97 и настоящего выпуска.

До выхода последующих выпусков Пособия к МГСН 4.12-97 следует также руководствоваться Пособием по проектированию учреждений здравоохранения (к СНиП 2.08.02-89*) в части отделений, подразделений и учреждений не входящих в выпуски 1, 2, 3, 4 и 5 настоящего Пособия.

1. ОТДЕЛЕНИЕ (КАБИНЕТ) ФУНКЦИОНАЛЬНОЙ ДИАГНОСТИКИ

1.1. Отделение (кабинет) функциональной диагностики является структурным подразделением лечебно-профилактического учреждения (стационарного, либо амбулаторно-поликлинического).

Основными задачами отделения являются выполнение специальными биофизическими методами и средствами исследований в целях физиологической оценки состояния органов, систем и организма в целом здоровых и больных людей, а также оформление врачом специалистом квалифицированного заключения по результатам этих исследований.

1.2. В амбулаторно-поликлинических учреждениях исследования проводятся как непосредственно в отделении в специально оборудованных кабинетах, так и на дому.

В стационарных учреждениях исследования проводятся как непосредственно в отделении в специально оборудованных кабинетах, так и в других отделениях (приемном, палатном) в случаях, когда больной нетранспортабелен. В связи с этим, а также с тем, что исследования больному за время его пребывания в стационаре проводятся неоднократно, отделения функциональной диагностики должны иметь удобные и, по возможности, короткие связи с приемным отделением и палатными отделениями.

В кабинетах отделения функциональной диагностики стационара должна быть предусмотрена возможность ввоза больного на каталке.

1.3. К кушетке, на которой проводится исследование необходимо предусмотреть подход с трех сторон. Все аппараты, а также кушетки в отделении должны быть заземлены.

1.4. Все рабочие помещения (кабинеты в которых проводятся исследования) отделения должны располагаться вне зоны воздействия электромагнитных полей, в удалении от рентгенодиагностических кабинетов и кабинетов электросветолечения, в связи с тем, что исследования проводятся с использованием высокочувствительной электронной аппаратуры. При проектировании этих помещений следует учитывать следующие требования: необходимость устранения вибрационных помех, повышенные требования к шумозащите, а также устройство электроэкранов с заземлением.

1.5. Примерные габаритные схемы основных помещений отделения функциональной диагностики с необходимым оборудованием и мебелью приведены в Приложении 1.

1.6. Состав и площади помещений отделений функциональной диагностики определяется заданием на проектирование. Набор помещений для стационаров зависит от профиля палатных отделений, для консультативно-диагностических центров - от специализации кабинетов врачебного приема.

Рекомендуемый набор и минимально необходимая площадь помещений отделений функциональной диагностики приведена в таблице 1.

Таблица 1

№№ п/п

Наименование помещений

Площадь, м2

1.

Кабинет электрокардиографии:

 

 

- диагностический кабинет

20

 

- кабинет врача для расшифровки ЭКГ

12

 

- кабина для раздевания1)

4

2.

Кабинет электро/эхоэнцефалографии:

 

 

- диагностический кабинет

22

 

- экранированная кабина

8

 

- кабина для раздевания1)

4

3.

Кабинет эхоэнцефалографии:

 

 

- диагностический кабинет

18

 

- кабина для раздевания1)

4

4.

Кабинет исследований функции внешнего дыхания

20

5.

Кабинет фонокардиографии:

 

 

- диагностический кабинет

18

 

- кабина для раздевания1)

4

6.

Кабинет поликардиографии

18

7.

Кабинет нагрузочных проб:

 

 

- диагностический кабинет

20

 

- кабина для раздевания1)

4

8.

Кабинет исследования нарушений регионарного кровообращения:

 

 

- диагностический кабинет

18

 

- кабина для раздевания1)

4

9.

Кабинет реоэнцефалографии

18

10.

Кабинет реографии, осциллографии, плетизмографии

18

11.

Кабинет эхо кардиографии:

 

 

- диагностический кабинет

18

 

- кабина для раздевания1)

4

12.

Кабинет холтеровского мониторирования

18

13.

Кабинет электромиографии

18

14.

Кабинет ультразвуковых исследований (абдоминальных исследований):

 

 

- диагностический кабинет

18

 

- кабина для раздевания1)

4

15.

Кабинет функциональных исследований желудка

18

16.

Кабинет ультразвуковой для пункционной биопсии

24

17.

Кабинет тепловидения:

 

 

- диагностический кабинет

18

 

- кабина для раздевания

4

 

- помещение кондиционера

6

 

- фотолаборатория

6

 

- помещение для хранения жидкого азота

4

 

- кабинет врача

10

 

- архив

6

18.

Кабинет длительного ЭКГ-контроля

12

19.

Кабинет приема, регистрации и расшифровки ЭКГ по телефону

12

20.

Кабинет для освоения новых методик

20

21.

Фотолаборатория

10

22.

Кабинет заведующего отделением

15

23.

Комната старшей медсестры

12

24.

Ординаторская

18

25.

Помещение для хранения переносной аппаратуры

18

26.

Ожидальные2)

 

27.

Комната персонала

10

28.

Помещение для хранения уборочного инвентаря

4

29.

Санузел со шлюзом для больных

3 + 3

30.

Санузел со шлюзом для персонала

3 + 3

1) Для амбулаторно-поликлинических учреждений.

2) Площадь ожидален предусматривается из расчета 4,8 м2 на 1 диагностический кабинет.

2. ЭНДОСКОПИЧЕСКИЕ ОТДЕЛЕНИЯ (КАБИНЕТЫ)

2.1. Эндоскопическое отделение (кабинет) является структурным подразделением лечебно-профилактического учреждения (стационарного или амбулаторно-поликлинического).

2.2. Основной задачей отделения является применение эндоскопических методов в целях ранней диагностики и лечения заболеваний желудочно-кишечного факта, верхних дыхательных путей и бронхолегочного аппарата, органов брюшной полости, гинекологических и урологических заболеваний.

2.3. Эндоскопическое отделение стационара должно быть планировочно приближено к палатным отделениям и иметь отдельный вход. Набор кабинетов отделения должен соответствовать специализации палатных отделений стационара.

2.4. При узкой специализации стационара эндоскопическое отделение (кабинеты) может размещаться непосредственно в палатном отделении (отделениях), оставаясь при этом самостоятельным структурным подразделением.

2.5 Эндоскопическое отделение (кабинеты) может располагаться в отдельно стоящем лечебно-диагностическом корпусе, соединенным с палатными отделениями переходом.

2.6. В больницах работающих в системе скорой медицинской помощи, следует предусматривать удобную связь эндоскопического отделения (кабинетов) с приемным отделением, отделениями хирургического профиля и отделением анестезиологии и реанимации.

2.7. При проектировании эндоскопического отделения (кабинетов) в составе стационарного учреждения необходимо предусмотреть возможность транспортировки больных на каталках.

2.8. В системе амбулаторно-поликлинических учреждений полноценные эндоскопические отделения проектируются в составе Консультативно-диагностических центров.

В территориальных поликлиниках могут предусматриваться отдельные эндоскопические кабинеты.

В том и другом случае, структура и набор кабинетов зависит от профилей кабинетов врачебного приема и определяются заданием на проектирование.

2.9. В амбулаторно-поликлинических учреждениях эндоскопическая операционная не предусматривается.

2.10. В эндоскопических операционных необходимо наличие специальных устройств, предназначенных для подъема эндоскопической аппаратуры на время уборки.

2.11. При проектировании отделения необходимо учесть, что для проведения ряда эндоскопических исследований необходим рентгенологический контроль (в соответствии с требованиями СанПиН 2.6.1.1192-03).

2.12. Примерные габаритные схемы основных помещений эндоскопического отделения с необходимым оборудованием и мебелью приведены в Приложении 2.

2.13. Рекомендуемая минимальная площадь помещений эндоскопических отделений (кабинетов) приведена в таблице 2.

Таблица 2

№№ п/п

Наименование помещений

Площадь, м2

1.

Кабинет гастроскопии:

 

 

- кабинет врача

10

 

- процедурная

18

 

- подготовительная1)

10

2.

Кабинет ректороманоскопии (колоноскопии, цистоскопии):

 

 

- кабинет врача

10

 

- процедурная со сливом (18 + 2)

20

 

- кабина для раздевания1)

4

3.

Эндоскопический кабинет:2)

 

 

- малая операционная

22

 

- предоперационная

10

4.

Кабинет для ультрасонографии:

 

 

- операционная3) со шлюзом (36 + 2)

38

 

- предоперационная

10

5.

Операционные ректороманоскопии, колоноскопии, цистоскопии, гистероскопии:4)

 

 

- операционная со шлюзом и сливом (36 + 2 + 2)

40

 

- предоперационная

10

 

- комната отдыха больных

4 м2 на 1 койку, но не менее 8 м2

 

- санузел для больных

3

6.

Операционные лапороскопии, гастроскопии и бронхоскопии:4)

 

 

- операционная

36

 

- предоперационная

10

 

- шлюз при входе в операционную

2

 

- комната отдыха больных

4 м 2 на 1 койку, но не менее 8 м2

7.

Моечная-дезинфекционная эндоскопической аппаратуры (состоит из «чистой» и «грязной» зон)

16

8.

Помещение хранения аппаратуры

6

9.

Фотолаборатория

10

10.

Архив5)

6

11.

Кабинет заведующего отделением5)

15

12.

Комната старшей медсестры с подсобным помещением (10 + 8)

18

13.

Ординаторская

18

14.

Комната персонала5)

10

15.

Помещение для проведения конференций, совещаний6)

36

16.

Ожидальные7)

 

17.

Помещение для хранения уборочного инвентаря

4

18.

Санузел со шлюзом для персонала (3 + 3)

6

19.

Санузел со шлюзом для больных (3 + 3)

6

1) Для амбулаторно-поликлинических учреждений.

2) Предусматривается для оказания срочной эндоскопической помощи в приемных отделениях больниц скорой помощи.

3) Предусмотреть защитные средства в соответствии с Гигиеническими требованиями к устройству и эксплуатации рентгеновских кабинетов, аппаратов и проведению рентгенологических исследований.

4) Только для стационара.

5) При наличии в составе отделения не менее 4-х диагностических кабинетов.

6) При наличии в составе отделения не менее 6-ти диагностических кабинетов.

7) Площадь ожидален предусматривается из расчета 4,8 м2 на 1 диагностический кабинет.

3. ОТДЕЛ (ОТДЕЛЕНИЕ) ЛУЧЕВОЙ ДИАГНОСТИКИ

Отдел (отделение) лучевой диагностики организуется на базе лечебно-профилактических учреждений, клиник медицинских и научно-исследовательских институтов и является их структурным подразделением.

В состав отдела (отделения) лучевой диагностики входят отделения, кабинеты и лаборатории рентгенологической, ангиографической, рентгенотомографической, магнитно-резонансной, радиоизотопной, ультразвуковой и других видов диагностики, в зависимости от профилей палатных отделений и кабинетов врачебного приема лечебно-профилактических учреждений.

Размещение рентгеновских кабинетов, помещений, связанных с работой с радиоактивными веществами, осуществляется в соответствии с гигиеническими требованиями устройства и эксплуатации рентгеновских кабинетов, аппаратов и проведения рентгенологических исследований, а также других действующих нормативных документов.

Процедурные рентгенологических кабинетов, кабинетов и помещений отделения лучевой диагностики, в которых находятся источники ионизирующих излучений, помещения лабораторий радиоизотопной диагностики, где ведутся работы 1 и 2 классов, не допускается размещать смежно (по горизонтали и вертикали) с палатами беременных и детей.

3.1. Рентгенологическое отделение

3.1.1. Рентгенологическое отделение является самостоятельным подразделением лечебно-профилактического учреждения (стационарного или амбулаторно-поликлинического), либо входит в состав отдела (отделения) лучевой диагностики.

3.1.2. Размещение рентгенологических отделений (кабинетов) в жилых зданиях и детских учреждениях (яслях, детских садах, школах) запрещается. В отдельных случаях, по согласованию с органами санитарно-эпидемиологической службы, допускается размещение рентгенологических отделений (кабинетов) в отдельной пристройке к жилому зданию, а также в цокольных этажах.

3.1.3. Разрешается размещение в жилых зданиях рентгеностоматологических кабинетов, при условии их оборудования дентальными аппаратами, работающими с высокочувствительными приемниками изображения, или с цифровой обработкой изображения, рабочая нагрузка которых не превышает нормативную (СанПиН 2.6.1.1192-03).

3.1.4. Стационарные средства радиационной защиты процедурной рентгеновского кабинета (стены, пол, потолок, защитные двери, ставни, смотровые окна и др.) должны обеспечивать ослабление рентгеновского излучения до уровня, при котором не будет превышен основной предел дозы (ПД) для соответствующих категорий облучаемых лиц (СанПиН 2.6.1.1192-03).

3.1.5. В объединенных лечебно-профилактических учреждениях (стационар с амбулаторно-поликлиническим отделением, или консультативно-диагностическим центром) рентгенологическое отделение должно быть централизованным и обслуживать как стационарных, так и амбулаторно-поликлинических больных, за исключением тех случаев, когда в структуре стационара имеются инфекционные, туберкулезные, акушерские и педиатрические отделения. Наличие в этих отделениях рентгенологических кабинетов предусматривается заданием на проектирование.

3.1.6. Входы в рентгенологическое отделение для больных стационара и для посетителей амбулаторно-поликлинического отделения должны быть раздельными.

Размещение отделения в планировочной структуре лечебно-профилактического учреждения должно предусматривать удобные и короткие связи с палатными отделениями и амбулаторно-поликлиническим подразделением.

Рентгенологическое отделение не должно быть проходным.

3.1.7. Количество рентгенологических кабинетов для общих исследований в стационарных ЛПУ определяется заданием на проектирование (из расчета 1 кабинет для универсальных рентгеновских аппаратов на 200 коек). Дополнительно предусматривается рентгенологический кабинет при приемном отделении. В территориальных поликлиниках - один кабинет на 400 посещений в смену (без учета рентгенофлюорографического кабинета), в консультативно-диагностических центрах - один кабинет на 250 посещений в смену.

3.1.8. Рентгеноперационный блок (кабинет) организуется в составе отдела (отделения) лучевой диагностики многопрофильной больницы, имеющей в своем составе торакальное, абдоминальное, урологическое, сосудистое и другие отделения хирургического профиля, либо диагностического центра при наличии соответствующих условий (стационар, реанимационное отделение и т.д.)

3.1.9. В стационарных и амбулаторно-поликлинических учреждениях имеющих в своем составе травматолого-ортопедическое (травматологическое) отделение (кабинет) предусматривается дополнительный рентгенологический кабинет.

3.1.10. В процедурной рентгенологического кабинета допускается предусматривать только искусственное освещение.

3.1.11. В состав рентгеновского кабинета для общих исследований входят процедурная, комната управления и фотолаборатория.

3.1.12. Площадь процедурной может быть скорректирована в соответствии с технологическим проектом, утвержденным в установленном порядке, с учетом следующих требований:

- расстояние до рабочего места персонала за малой защитной ширмой до стен помещения - не менее 1,5 м;

- расстояние от рабочего места персонала за большой защитной ширмой до стен помещения - не менее 0,6 м;

- расстояние от стола-штатива поворотного или от стола снимков до стен помещения - не менее 1,5 м;

- расстояние от стойки снимков до ближайшей стены - не менее 0,1 м;

- расстояние от рентгеновской трубки до смотрового окна - не менее 2 м (для маммографических и дентальных аппаратов - не менее 1 м);

- ширина технологического прохода для персонала между штативами - не менее 0,8 м;

- зона размещения каталки для пациента - не менее 1,5×2 м;

- дополнительная площадь при технологической необходимости ввоза каталки в процедурную 6 м2.

3.1.13. В процедурной рентгенологического кабинета для общих исследований допускается дополнительно устанавливать малогабаритный рентгеновский аппарат с напряжением до 60 кВт для снимков зубов и маммографии.

3.1.14. Кабинет врача не должен размещаться в непосредственной близости с процедурной.

3.1.15. Фотолаборатория может быть общей для двух кабинетов или предусматривается при одном кабинете. Вход в фотолабораторию следует предусматривать непосредственно из процедурных.

3.1.16. Фотолаборатория может состоять из одного помещения - «темной комнаты». При оснащении лаборатории проявочным автоматом и большом объеме работ следует предусматривать дополнительную «светлую» комнату для сортировки, маркировки и обрезки сухих снимков.

3.1.17. Архив материалов лучевой диагностики является составной частью отдела (отделения) лучевой диагностики. В зависимости от типа носителя информации в архиве выделяются помещения для хранения пленочных материалов, магнитных материалов, бумажных носителей.

Архив делится на три части:

- оперативный (снимки больных, обследованных в течение года);

- основной (со сроком хранения рентгенограмм более года);

- учебно-научный архив.

Помещения оперативного и научно-учебного архива располагаются непосредственно в отделении лучевой диагностики.

Основной архив может находиться вне отделения лучевой диагностики в зданиях лечебного и вспомогательного назначения. Помещение должно быть архива должно быть сухим, защищено от прямого солнечного света, может располагаться в подвальном этаже без окон, при наличии окон они экранируются защитными шторами или жалюзи.

3.1.17. В состав рентгенологических отделений могут быть включены кабинеты ультразвуковой диагностики.

3.1.18. Примерные габаритные схемы основных помещений рентгенологического отделения с необходимым оборудованием и мебелью приведены в Приложении 3.

3.1.19. Рекомендуемая минимальная площадь помещений, входящих в состав рентгенологических отделений приведена в таблице 3.1.

Рекомендуемые площади помещений могут быть уменьшены, а набор помещений изменен по проектному заданию фирмы-изготовителя оборудования. При этом организация работ должна обеспечивать общегигиенические требования.

Таблица 3.1.

№№ п/п

Наименование помещений

Площадь, м2

1.

Флюорографический кабинет для массовых исследований:

 

 

- процедурная

14

 

- кабина для раздевания

6

 

- ожидальная

6

 

- фотолаборатория1)

6

 

- комната персонала

10

2.

Рентгенологический кабинет с универсальным рентгеновским аппаратом

 

 

- процедурная

34

 

- комната управления

10

 

- кабина для раздевания2)

4

 

- фотолаборатория1)

10

 

- кабинет врача

10

 

- санузел

3

3.

Рентгенологический кабинет для общих исследований на 3 рабочих места

 

 

- процедурная

45

 

- комната управления

10

 

- кабина для раздевания2)

4

 

- фотолаборатория1)

10

 

- кабинет врача

10

 

- санузел

3

3.

Рентгенологический кабинет рентгенографии и/или томографии3)

 

 

- процедурная

16

 

- комната управления

10

 

- кабина для раздевания2)

4

 

- фотолаборатория1)

10

 

- комната персонала

10

4.

Рентгеномаммографический кабинет:

 

 

- процедурная

10

 

- малая операционная для дуктографии и пункций под контролем УЗИ

22

 

- кабина для раздевания2)

4

 

- фотолаборатория1)

10

 

- кабинет врача

10

5.

Рентгеноурологический кабинет:

 

 

- процедурная (со сливом)

34

 

- комната управления

10

 

- фотолаборатория1)

10

 

- кабина для раздевания с кушеткой2)

4

 

- кабинет врача

10

6.

Рентгенодиагностический бокс с универсальным рентгеновским аппаратом для инфекционных отделений:

 

 

- шлюз при входе в бокс

3

 

- ожидальная с санузлом (6 + 3)

9

 

- процедурная

34

 

- комната управления

10

 

- фотолаборатория1)

10

 

- кабинет врача

10

 

- санузел для персонала

3

7.

Кабинет тонометрии (планирования лучевой терапии):

 

 

- процедурная

34

 

- комната управления

10

 

- фотолаборатория1)

10

 

- кабинет врача

10

8.

Кабинет ультразвуковых исследований

18

 

Помещения для рентгеностоматологических исследований4):

 

9.

Кабинет рентгенодиагностики заболеваний зубов методом рентгенографии с дентальным аппаратом, работающим с цифровым приемником изображения:

 

 

- процедурная

10

 

- комната управления

6

10.

Кабинет рентгенодиагностики заболеваний зубов методом рентгенографии с дентальным аппаратом, работающим с обычной пленкой без усиливающего экрана:

 

 

- процедурная

10

 

- комната управления

6

 

- фотолаборатория

6

11.

Кабинет рентгенодиагностики методом панорамной рентгенографии или панорамной томографии с ортопантомографом:

 

 

- процедурная

14

 

- комната управления5)

6

 

- фото лаборатория1)

8

 

Рентгенооперационный блок:

 

12.

Блок диагностики заболеваний сердца и сосудов:

 

 

- рентгенооперационная с бипланарным ангиографом

48

 

- комната управления

12

 

- предоперационная

12

 

- стерилизационная2)

12

 

- комната временного пребывания больного после исследования2)

12

 

- фотолаборатория1)

12

 

- комната просмотра снимков2)

12

 

- кабинет врача

10

 

- шлюз

3

13.

Блок диагностики заболеваний легких и средостения:

 

 

- рентгенооперационная с однопроекционным ангиографом общего назначения

34

 

- комната управления

12

 

- предоперационная

12

 

- стерилизационная2)

12

 

- помещение цитологической диагностики2)

10

 

- фотолаборатория1)

12

 

- комната просмотра снимков2)

12

 

- кабинет врача

10

 

- комната медсестер

12

 

- комната личной гигиены персонала

5

 

- помещение хранения грязного белья2)

10

 

- шлюз

3

14.

Блок диагностики заболеваний урогенитальной системы:

 

 

- рентгенооперационная

34

 

- комната управления

10

 

- фотолаборатория1)

10

 

- кабинет врача

10

 

- комната приготовления контрастных средств2)

6

 

- санузел для больных

3

 

- шлюз

3

15.

Кабинет РКТ8)

 

 

- процедурная

34

 

- комната управления

10

 

- генераторная/компьютерная

8

 

- фотолаборатория1)

10

 

- кабинет врача

10

 

- кабина для раздевания

4

 

- комната просмотра снимков2)

10

 

- комната приготовления контрастных средств

6

 

Общие помещения отделения

 

16.

Кабинет заведующего отделением

15

17.

Кабинет профессора

18

18.

Комната ассистентов

14

19.

Учебная комната

34

20.

Комната персонала

10

21.

Ожидальная6)

 

22.

Материальная с отсеком для временного хранения запаса рентгеновской пленки (не более 100 кг)

10

23.

Кладовая запасных частей7)

8

24.

Кладовая предметов уборки

4

25.

Помещение оперативного и учебно-научного архива

6

26.

Помещение основного архива (длительного хранения снимков)

12

27.

Комната личной гигиены персонала

5

28.

Санузел со шлюзом (3 + 3)×2

12

29.

Компьютерная

12

30.

Комната инженеров

12

1) При использовании аппаратов для цифровой рентгенографии и флюорографии могут не предусматриваться

2) Могут не предусматриваться заданием на проектирование.

3) При наличии травматологического отделения и в травмпунктах.

4) При установке в процедурной более одного рентгеновского детального аппарата площадь помещения должна быть увеличена в зависимости от типа аппарата, но не менее чем на 4 м2 на каждый дополнительный аппарат.

5) Может отсутствовать при использовании аппаратов, укомплектованных средствами защиты рабочих мест персонала (защитные кабины, защитные барьеры и др.).

6) Площадь ожидален предусматривается из расчета 4,8 м2 на 1 диагностический кабинет, но не менее 10 м2

7) При количестве аппаратов более 2-х, площадь увеличивать на 2 м2 на каждый аппарат.

8) При наличии двух и более кабинетов образуется самостоятельное отделение.

3.2. Отделение рентгеновской компьютерной томографии (РКТ)

3.2.1. Отделение рентгеновской компьютерной томографии является самостоятельным подразделением лечебно-профилактического учреждения (стационарного или амбулаторно-поликлинического), либо входит в состав отдела (отделения) лучевой диагностики.

3.2.2. Площади помещений кабинета рентгеновской компьютерной томографии задаются фирмой-изготовителем компьютерного томографа в форме проектного предложения, которое учитывается при создании технологического проекта кабинета, но не заменяет его.

3.2.3. Примерная габаритная схема кабинета компьютерной томографии приведена в Приложении 4.

3.2.4. Рекомендуемая минимальная площадь помещений отделения компьютерной томографии приведена в таблице 3.2.1.

Таблица 3.2.

№№ п/п

Наименование помещений

Площадь, м2

1.

Кабинет РКТ

 

 

- процедурная

34

 

- комната управления

10

 

- генераторная/компьютерная

8

 

- фотолаборатория1)

10

 

- кабинет врача

10

 

- кабина для раздевания

4

 

- комната просмотра снимков2)

10

 

- комната приготовления контрастных средств

6

 

Общие помещения отделения

 

2.

Кабинет заведующего отделением

15

3.

Комната персонала

10

4.

Ожидальная3)

 

5.

Материальная

10

6.

Кладовая запасных частей4)

8

7.

Кладовая предметов уборки

4

8.

Комната личной гигиены персонала

5

9.

Санузел со шлюзом (3 + 3) × 2

12

10.

Комната инженеров

12

1) При использовании аппаратов для цифровой рентгенографии могут не предусматриваться

2) Могут не предусматриваться заданием на проектирование.

3) Площадь ожидален предусматривается из расчета 4,8 м2 на 1 диагностический кабинет, но не менее 10 м2

4) При количестве аппаратов более 2-х, площадь увеличивать на 2 м2 на каждый аппарат.

3.3. Кабинет магнитно-резонансной томографии

3.3.1. Кабинет магнитно-резонансной томографии (МРТ) входит в состав отдела (отделения) лучевой диагностики лечебно-профилактического учреждения.

3.3.2. При размещении кабинета МРТ следует принимать во внимание большой вес МР-томографа (несущая способность перекрытия рассчитывается в соответствии с нагрузкой от установки).

3.3.3. В зоне магнитной индукции до 0,5 милли Тесла (мТ) не допускается нахождение пациентов с кардиостимуляторами и другими типами имплантированных электронных стимуляторов. Зона магнитной индукции (более 0,5 мТ) должна быть обозначена предупреждающими сигналами, в соответствии с действующими нормами, а вход в нее должен постоянно контролироваться.

3.3.4. В состав кабинета МРТ входят: сканирующая комната (РЧ-кабина), комната управления, техническая комната, кабина для раздевания.

3.3.5. Площадь помещений кабинета МРТ определяется на основе рекомендаций фирмы-изготовителя оборудования и согласовываются со службой Госсанэпиднадзора в установленном порядке.

3.3.6. Примерная габаритная схема кабинета магнитно-резонансной томографии приведена в Приложении 5.

3.3.7. Рекомендуемая минимальная площадь помещений кабинета магнитно-резонансной томографии приведена в таблице 3.3.1.

Таблица 3.3.1.

№№ п/п

Наименование помещений

Площадь, м2

1.

Кабинет магнитно-резонансной томографии:

 

 

- процедурная (РЧ кабина)

25

 

- комната управления

10

 

- подготовительная

13

 

- техническая комната

21

 

- кабина для раздевания

4

2.

Комната обработки исследований

20

3.

Кабинет врача

10

4.

Санузел для больных

3

5.

Кабинет заведующего отделением

15

6.

Комната персонала

10

7.

Комната инженеров

12

8.

Материальная

10

9.

Кладовая запасных частей1)

8

10.

Ожидальная2)

 

11.

Кладовая предметов уборки

4

12.

Комната личной гигиены персонала

5

13.

Санузел со шлюзом (3 + 3)×2

12

1) При количестве аппаратов более 2-х, площадь увеличивать на 2 м 2 на каждый аппарат.

2) Площадь ожидальных предусматривается из расчета 4,8 м2 на диагностический кабинет, но не менее 10 м2

3.4. Отделение (лаборатория) радионуклидной диагностики

3.4.1. Отделение (лаборатория) радионуклидной диагностики является самостоятельным подразделением стационарного лечебно-профилактического учреждения, либо входит в состав отдела (отделения) лучевой диагностики.

Отделение (лаборатория) радионуклидной диагностики не должно размещаться в жилых зданиях и детских учреждениях.

3.4.2. Помещения для проведения радиологических исследований должны иметь защиту со стороны смежно-расположенных помещений, в которых имеются источники ионизирующих излучений (расчетная мощность дозы - 0,03 мбэр/час).

3.4.3. Входы в отделение (лабораторию) радионуклидной диагностики для больных стационара и поликлинического отделения должны быть раздельными.

3.4.4. Отделение (лаборатория) радионуклидной диагностики не должно быть проходным.

3.4.5. При приеме радиоактивных источников и удаления, выдержанных до установленного уровня активности радиоактивных отходов необходимо предусматривать отдельный наружный вход.

3.4.6. Блок радиодиагностических исследований «ИН ВИТРО» с помещениями радиоизотопного обеспечения может предусматриваться вне отделения (лаборатории) радионуклидной диагностики.

3.4.7. Процедурная с генератором короткоживущих изотопов должна быть приближена к помещениям для гамма-камеры.

3.4.8. Помещения, где используются открытые радиоактивные источники с диагностической целью по активности на рабочем месте, как правило, относятся к помещениям для III класса работ, за исключением помещений, предназначенных, для хранения радиоактивных веществ и их фасовки, которые устраиваются по II классу. По II классу устраиваются также помещения, в которых применяются методики, требующие повышенной активности радиофармацевтических препаратов (в соответствии с исходными данными на проектирование и санитарными правилами).

3.4.9. Помещения для работы III класса, предназначенные непосредственно для диагностических исследований, во избежание получения искаженных данных, вызванных влиянием посторонних радиоактивных источников на радиометрическую аппаратуру, должны быть максимально удалены от помещений, где хранятся радиоактивные вещества (хранилище) и где ведутся работы с ними в количествах, превышающих минимальную значимую активность (не требующую регистрации в санитарных органах). В помещениях для работ III класса должна предусматриваться приточно-вытяжная вентиляция с 4-кратным воздухообменом при вытяжке и 3-кратным - по притоку. Помещения для каждого из классов работ необходимо сосредотачивать в одной части здания.

3.4.10. Примерная габаритная схема кабинета сканирования с необходимым оборудованием и мебелью приведена в Приложении 6.

3.4.11. Рекомендуемая минимальная площадь помещений отделения (лаборатории) радионуклидной диагностики приведена в таблице 3.4.1.

Таблица 3.4.1.

№№ п/п

Наименование помещений

Площадь, м2

 

Блок радиоизотопного обеспечения:

 

1.

Помещение для приема радиофармацевтических препаратов

10

2.

Хранилище радиофармацевтических препаратов

10

3.

Фасовочная радиофармацевтических препаратов

18

4.

Моечная

12

5.

Санитарно-радиационный шлюз блока радиоизотопного обеспечения

8

6.

Кладовая радиоактивных отходов

8

 

Блок радиодиагностических исследований «ИН ВИВО»:

 

7.

Процедурная для внутривенного введения радиофармацевтических препаратов с генератором короткодействующих изотопов

20

8.

Процедурная для перорального введения радиофармацевтических препаратов

12

9.

Процедурная сцинтиграфии (с гамма-камерой)

18

10.

Пультовая сцинтиграфии

10

11.

Компьютерная

24

12.

Фотолаборатория

6

13.

Кабинет сканирования

26

14.

Кабинет радиометрии (ренографии, радиоциркулографии, радиокардиографии и др.)

18

15.

Помещение для радиометрии биосред

10

16.

Смотровая

10

17.

Ожидальная

4,8 м2 на диагностический кабинет, но не менее 10 м2

 

Блок радиодиагностических исследований «ИН ВИТРО»:

 

18.

Радиохимическая

18 м2 на 2 рабочих места; на каждое дополнительное площадь следует увеличивать на 6 м2

19.

Радиометрическая

12 м2 на 1 автоматический счетчик; на каждый дополнительный площадь следует увеличивать на 6 м2

20.

Центрифужная

8

21.

Хранилище-криогенная

10 м2 на 2 низкотемпературных шкафа; на каждый дополнительный площадь следует увеличивать на 4 м2

22.

Моечная

12

23.

Лаборантская

10

24.

Процедурная для взятия проб крови

12

25.

Ожидальная

10

26.

Кабинет врача

10

 

Общие помещения отделения (лаборатории) радионуклидной диагностики

 

27.

Комната врачей

10 м2 на 2 врача, на каждого врача сверх 2-х площадь следует увеличивать на 4 м

28.

Кабинет заведующего отделением

15

29.

Санузел для персонала

3

30.

Санузел для больных

3

31.

Комната старшей медицинской сестры с материальной

12

32.

Комната инженерно-технического персонала с мастерской ремонта и настройки оборудования

24

33.

Кладовая предметов уборки (для общих помещений)

6

34.

Кладовая запасных частей и расходных материалов

10

35.

Кабина личной гигиены персонала

5

36.

Комната персонала

3,25 м 2 на 1 человека, но не менее 10 м2

4. НОРМАТИВНЫЕ ССЫЛКИ

В настоящем выпуске Пособия приведены ссылки на следующие документы:

4.1 СНиП 2.08.02-89* «Общественные здания и сооружения».

4.2 СНиП 2.04.05-91* «Отопление, вентиляция и кондиционирование».

4.3 СанПиН 2.1.3.1375-03 «Гигиенические требования к размещению, устройству, оборудованию и эксплуатации больниц, родильных домов и других лечебных стационаров».

4.4 МГСН 4.12-97 «Лечебно-профилактические учреждения».

4.5 Выпуски 1, 2, 3 и 4 Пособия к МГСН 4.12-97.

4.6 МГСН 2.01-99 «Энергосбережения в зданиях. Нормативы по теплозащите и тепловодоэлектроснабжению».

4.7 Санитарные правила и нормативы СанПиН 2.6.1.1192-03 «Гигиенические требования к устройству и эксплуатации рентгеновских кабинетов, аппаратов и проведению рентгенологических исследований».

4.8 Санитарно-эпидемиологические правила СП 3.1.1275-03 «Профилактика инфекционных заболеваний при эндоскопических манипуляциях».

Приложение 1

Примерные габаритные схемы основных помещений отделения функциональной диагностики с необходимым оборудованием и мебелью

Экспликация оборудования

№№ п/п

Наименование оборудования

Габариты, мм

1.

Стол врача

1132×630×750

2.

Стол для компьютера

720×580×735

3.

Принтерная тележка

620×680×890

4.

Стол-тумбочка под аппаратуру с распашными дверями

700×440×667

5.

Кресло рабочее

530×570×850

6.

Кушетка смотровая

1970×670×520

7.

Стул полумягкий

430×470×770

8.

Ширма четырехстворчатая

2000×1600

9.

Стол для пневмотахометра с компьютером и принтером

915×1055×685

10.

Рабочее место врача с компьютерным электроэнцефалографом

1132×630×750

11.

Велоэрготест

860×500×960

12.

Электрокардиограф многоканальный

445×780×930

13.

Шкаф медицинский одностворчатый

600×400×1500

14.

Шкаф для документов

773×410×1985

15.

Умывальник прямоугольный фарфоровый со спинкой

550×420×150

16.

Ведро педальное

372×315×360

17.

Вешалка

600×120×100

Рис 1.1. Кабинет исследований нарушений регионарного кровообращения

Рис. 1.2. Кабинет исследований функций внешнего дыхания

Рис. 1.3. А. Кабинет электрокардиографии с физической нагрузкой
Б. Кабинет для расшифровки ЭКГ

Рис. 1.4. Кабинет электро/эхоэнцефалографии

Приложение 2

Примерные габаритные схемы основных помещений эндоскопического отделения с необходимым оборудованием и мебелью

Экспликация оборудования

№№ п/п

Наименование оборудования

Габариты, мм

1

2

3

1.

Стол врача

1100×630×740

2.

Стол для компьютера

720×580×735

3.

Принтерная тележка

620×680×890

4.

Стол-тумбочка под аппаратуру с распашными дверями

700×440×667

5.

Кушетка смотровая

1850×600×500

6.

Стул винтовой

D = 320; Н = 400/545

7.

Стул полумягкий

430×470×770

8.

Стол

2000×600×750

9.

Ширма четырехстворчатая

2000×1600

10.

Облучатель бактерицидный потолочный

1070×140×80

11.

Шкаф

1000×305×1053

12.

Шкаф медицинский двухстворчатый

830×451×1610

13.

Штатив для длительных вливаний

650×650×2130

14.

Негатоскоп общего назначения

420×222×660

15.

Стол перевязочный

2000×500×850

16.

Подставка для стерильных коробок

500×550×1085

17.

Подставка для тазов

434×495×760

18.

Аппарат для ингаляционного наркоза прерывистого потока

486×593×960

19.

Кресло гинекологическое с гидравлическим приводом

1606×1193×1640

20.

Стол операционный универсальный

2000×607×1000

21.

Светильник потолочный 6-ти рефлекторный

1480×1000

22.

Светильник 4-рефлекторный передвижной

530/1750×2000

23.

Аппарат для высокочастотной электрохирургии

530×540×900

24.

Столик анестезиолога

735×515×920

25.

Столик инструментальный

710×515×667

26.

Столик медицинский хирургический

800×460×1540

27.

Умывальник хирургический

650×590×190

28.

Умывальник прямоугольный фарфоровый со спинкой

550×420×150

29.

Слив больничный (видуар)

500×450×480

30.

Умывальник прямоугольный керамический

650×500×150

31.

Холодильник бытовой

690×700×1400

32.

Ведро педальное

372×315×360

Рис. 2.1. Кабинет ректороманоскопии

Рис. 2.2. Эндоскопическая операционная

Приложение 3

Примерные габаритные схемы основных помещений рентгенологического отделения с необходимым оборудованием и мебелью

Экспликация оборудования

№№ п/п

Наименование оборудования

Габариты, мм

1

2

3

1.

Стол-штатив поворотный с излучателем (без решетки)

1300×1600×2600

2.

Штатив снимков с излучателем

1100×1500×2900

3.

Стол снимков горизонтальный

2000×720×800

4.

Привод приставки для томографии

200×400×2500

5.

Пульт управления приставок для томографии

200×250×300

6.

Стол-штатив поворотный с колонной для снимков и томографии

3500×1900×2850

7.

Стойка снимков

590×760×2200

8.

Аппарат рентгеновский дентальный стационарный

L = 1530, H = 560

9.

Аппарат для панорамной томографии

1180×930×1998

10.

Электрошкаф

360×250×1205

11.

Пульт управления аппарата панорамной томографии

494×450×905

12.

Блок силовой питающего устройства

900×425×1057

13.

Видеоконтрольное устройство

600×600×890

14.

Стойка низковольтная питающего устройства

580×340×2120

15.

Пульт управления питающего устройства

770×420×850

16.

Шкаф низковольтный питающего устройства

600×500×2000

17.

Среднечастотное рентгеновское питающее устройство

600×500×2200

18.

Пульт управления ручной с приставкой

400×300×600

19.

Несущая стойка с тубусом

1000×800×2200

20.

Подъемник для пациента приводом и подножкой

 

21.

Штатив напольный с излучателем

400×800×2200

22.

Цифровая ПЗС камера

 

23.

Прибор для приготовления рентгеноконтрастной взвеси

250×260×490

24.

Сканер для оцифровки рентгеновской пленки

 

25.

Негатоскоп настенный

440×730×120

26.

АРМ рентген-лаборанта

 

27.

Рентгеновская установка для ангиокардиографии

 

 

27а Штатив потолочный с УРИ

 

 

27б Цифровой дисплей

 

 

27в Пульт управления

 

 

27г Ангиографический стол

 

 

27д Потолочная система с двумя мониторами

 

 

27е Инъектор

 

28.

Верхняя защитная ширма с операционной лампой на рельсах

 

29.

Видеоконтрольное устройство выносное

629×800×720

30.

Станция регистрации катетеризации сердца

910×580×750

31.

Станция архивирования и воспроизведения кардиоснимков

1200×800×750

32.

Тумба под аппаратуру

570×800×730

33.

Автоматизированное рабочее место рентгенолога (АРМ)

1160×960×750

34.

Генератор питающего устройства

700×500×1000

35.

Автоматическая проявочная машина (бак термостата)

745×800×915

36.

Бак промывной

688×450×860

37.

Фонарь неактиничный

355×200×340

38.

Негатоскоп общего назначения

420×222×340

39.

Шкаф сушильный электрический для рентгеновских плёнок

657×550×1657

40.

Кассетница для хранения кассет с рентгеновскими пленками

675×387×750

41.

Стеллаж для приспособлений

900×260×1910

42.

Кресло стоматологическое

1950×612×1620

43.

Кушетка смотровая

1970×670×520

44.

Шкаф

450×650×1480

45.

Стол врача

1132×630×750

46.

Стол оператора

1400×800×730

47.

Стол лабораторный химический

1100×600×850

48.

Стул

430×440×770

49.

Стул винтовой

Д = 320, Н = 430/545

50.

Ширма большая защитная

1205×630×2040

51.

Ширма малая защитная

1028×462×935

52.

Окно смотровое рентгеновское защитное

825×425

53.

Окно смотровое рентгеновское защитное

1000×800

54.

Облучатель бактерицидный настенный

1070×140×80

55.

Раковина стальная эмалированная с объемной спинкой

500×400×540

56.

Умывальник прямоугольный фарфоровый со спинкой

550×420×150

57.

Унитаз

533×737×545

А. Комната управления           В. Процедурная

Б. Фотолаборатория                Г. Санузел

Рис. 3.1. Рентгенологический кабинет с универсальным рентгеновским аппаратом

А. Комната управления                         В. Процедурная

Б. Фотолаборатория                             Г. Санузел

Рис. 3.2. Рентгенологический кабинет для общих исследований на 3 рабочих места

А. Комната управления

Б. Фотолаборатория

В. Процедурная

Г. Санузел

Рис. 3.3. Рентгенологический кабинет для общих исследований с повышенной пропускной способностью

А. Процедурная

Б. Фотолаборатория

Рис. 3.4. Кабинет рентгенодиагностики заболеваний зубов методом рентгенографии с дентальным аппаратом

А. Процедурная

Б. Комната управления

В. Фотолаборатория

Рис. 3.5. Кабинет рентгенодиагностики методом панорамной рентгенографии или панорамной томографии

А. Процедурная

Б. Комната управления

Рис. 3.6. Блок диагностики заболеваний сердца и сосудов

Рис. 3.7. Фрагмент планировочного решения рентгенологического отделения

Рис. 3.8. Фрагмент планировочного решения рентгенологического отделения

Приложение 4

Примерная габаритная схема кабинета компьютерной томографии с необходимым оборудованием и мебелью

Экспликация оборудования

№№ п/п

Наименование оборудования

Габариты, мм

1.

Гентри

2280×768×1780

2.

Стол пациента

2230×680×934

3.

Силовой соединительный шкаф

750×300×815

4.

Тележка для монитора

540×580×1140

5.

Инъекторная система

650×600×800

6.

Распределительный шкаф

550×220×800

7.

Пульт управления с контейнером (система изображения)

600×858×700

8.

Консоль управления

2660×180×300

9.

Система обработки изображения с контейнером

660×860×700

10.

Негатоскоп демонстрационный

440×730×120

11.

Стол врача

1132×630×750

12.

Стол оператора

1400×800×730

13.

Стул

430×440×770

14.

Окно смотровое рентгеновское защитное

1000×800

15.

Облучатель бактерицидный настенный

1070×140×80

16.

Кушетка смотровая

1970×670×520

17.

Умывальник прямоугольный фарфоровый со спинкой

550×420×150

Рис. 4.1. Кабинет рентгенодиагностики методом рентгенографии и/или томографии

Приложение 5

Примерная габаритная схема кабинета магнитно-резонансной томографии с необходимым оборудованием и мебелью

Экспликация оборудования

№№ п/п

Наименование оборудования

Габариты, мм

1.

Магнит OR70 (с переменной индукцией 1,5 Т)

2129×1942×2344

2.

Стол для больного

850×630×740

3.

Радиочастотный фильтр

1179×550×550

4.

Пульт остановки магнита

80×120×80

5.

Тележка для катушек

1354×540×1275

6.

Каталка

1810×670×1000

7.

Шкаф электроники

1600×650×2110

8.

Шкаф системы охлаждения

650×650×1920

9.

Блок подключения воды

650×120×300

10.

Компьютер изображения

400×400×1200

11.

Стол оператора

1200×800×730

12.

Центральный компьютер MRC

280×685×460

13.

Пульт управления и сигнализации

300×105×200

14.

Стол врача

1200×800×730

15.

Центральный компьютер MRSC

280×685×460

16.

Трансформатор

360×330×570

17.

Источник бесперебойного питания

815×830×1600

18.

Шкаф с батареями на 10 минут

910×800×1600

19.

Инъектор для MP

1300×635×2050

20.

Сетевой распределитель

650×120×300

21.

Система кондиционирования

800×1700×1300

1200×850×1500

22.

Умывальник

550×420×150

23.

Окно смотровое защитное

1000×800

Рис. 5.1. Примерная габаритная схема кабинета магнитно-резонансной томографии

Приложение 6

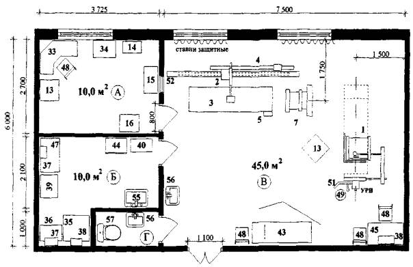
Примерная габаритная схема кабинета сканирования с необходимым оборудованием и мебелью

Экспликации оборудования

№№ п/п

Наименование оборудования

Габариты, мм

1

2

3

1.

Стол врача

1100×630×740

2.

Стул полумягкий

430×470×770

3.

Стол перевязочный

2000×500×850

4.

Сканер

1900×900×1800

5.

Стол лабораторный

1250×630×809

6.

Экран защитный

2000×1600

7.

Шкаф медицинский двухстворчатый

830×451×1610

8.

Умывальник лабораторный

1050×700×550

9.

Ведро педальное

372×315×360

10.

Вешалка

600×120×100

Рис. 6.1. Кабинет сканирования



© 2013 Ёшкин Кот :-)