Информационная система
«Ёшкин Кот»

XXXecatmenu

ГОСУДАРСТВЕННЫЙ
КОМИТЕТ
ПО ГРАЖДАНСКОМУ
СТРОИТЕЛЬСТВУ
И АРХИТЕКТУРЕ
ПРИ ГОССТРОЕ СССР

 

ГОСУДАРСТВЕННЫЙ
ПРОЕКТНЫЙ
И НАУЧНО-
ИССЛЕДОВАТЕЛЬСКИЙ
ИНСТИТУТ
ПО ПРОЕКТИРОВАНИЮ
УЧРЕЖДЕНИЙ
ЗДРАВООХРАНЕНИЯ
(ГИПРОНИИЗДРАВ)

НОРМАЛИ
ПЛАНИРОВОЧНЫХ ЭЛЕМЕНТОВ
ЖИЛЫХ И ОБЩЕСТВЕННЫХ
ЗДАНИЙ

ЛЕЧЕБНЫЕ ЗДАНИЯ. БОЛЬНИЦЫ

Выпуск НП 6.1.1.3-82

ОПЕРАЦИОННЫЕ БЛОКИ

 

МОСКВА СТРОЙИЗДАТ 1987

 

Содержат основные требования к проектированию операционных блоков, представлены функциональные зоны, схема взаимосвязи помещений, номенклатура оборудования и мебели, карта отделочных работ, габаритные схемы основных помещений и примеры планировок операционных блоков. Планировочные схемы отделения составлены применительно к основным конструктивным схемам.

Для архитекторов и инженерно-технических работников проектных организаций

Серия нормалей планировочных элементов жилых и общественных зданий разрабатывается в развитие норм проектирования в соответствии со СНиП. Ведущие организации по разработке темы: ЦНИИЭП жилища и ЦНИИЭП учебных зданий. В разработке серии нормалей принимают участие ЦНИИЭП комплексов и зданий культуры, спорта и управления им. Б.С. Мезенцева, ЦНИИЭП лечебно-курортных зданий, ЦНИИЭПграждансельстрой, КиевЗНИИЭП, ТбилЗНИИЭП, Гипронииздрав, МНИИТЭП ГлавАПУ Москвы.

Методическое руководство авторским коллективом по разработке серии нормалей и общее редактирование осуществляет канд. архит. Е.С. Раева (руководитель сектора методологии типового проектирования ЦНИИЭП жилища).

Выпуск НП 6.1.1.3-82 разработан институтом Гипронииздрав (директор института А.Н. Голощапов, главный инженер А.В. Иванов, начальник отдела медицинской технологии и комплексного оснащения А.Л. Ганзбург. гл. инженер отдела М.Г. Парафенюк).

Руководитель темы - инж. С.М. Козаков. Авторы выпуска НП 6.1.1.3-82 инженеры-технологи Т.С. Большакова, В.Н. Верхососов, А.Л. Ганзбург, Т.П. Огнева, Е.Я. Страхова, канд. архит. В.А. Матросов, графическое и техническое оформление О.Б. Новиковой.

Нормали одобрены научно-техническим советом Гипронииздрава 19 декабря 1979 г. (протокол № 17), утверждены Минздравом СССР 20 сентября 1982 г., одобрены Госгражданстроем 9 ноября 1982 г. (приказ № 298).

С опубликованием данного выпуска утрачивают силу нормали НП 6.1.1.3-77 «Лечебные здания. Больницы. Операционные блоки».

ВВЕДЕНИЕ

В Основных направлениях экономического и социального развития СССР на 1986 - 1990 годы и на период до 2000 года указывается на то, что «...важно добиться кардинального улучшения проектирования в строительстве. В этом деле особая роль принадлежит самим проектировщикам. Именно от них во многом зависит технический уровень производства, повышение эффективности капитальных вложений. Они должны играть роль ускорителей научно-технического прогресса во всех отраслях народного хозяйства».

Цель разработки нормалей - внедрение в проектирование и строительство прогрессивных функциональных и технических решений, а также совершенствование процесса проектирования. Нормали являются частью общей системы типизации, унификации и стандартизации в жилищно-гражданском строительстве. Они содержат исходные нормативы, справочные данные, а также конкретные рекомендации, подготовленные на основе действующих норм проектирования и государственных стандартов в развитие глав СНиП. Нормали служат пособием по проектированию жилых и общественных зданий и издаются отдельными выпусками по видам и типам зданий или по основным группам помещений отдельных типов зданий.

Публикуемая Стройиздатом серия нормалей основных планировочных элементов состоит из следующих разделов:

1. Жилые здания.

2. Здания учебно-воспитательного назначения.

3. Торговые здания и предприятия общественного питания.

4. Предприятия хозяйственно-бытового коммунального обслуживания.

5. Здания зрелищного, культурно-просветительного назначения и спортивные сооружения.

6. Здания лечебно-оздоровительного назначения и массового отдыха.

7. Здания научно-исследовательских институтов, проектных организаций, административные здания.

8. Здания санаторно-курортного назначения.

9. Функциональные объемно-планировочные элементы жилых и общественных зданий.

При разработке нормалей за основу приняты действующие нормативные документы, требования и условия, которые определяют объемно-планировочные решения и параметры нормализуемых помещений, элементов и оборудования: нормы проектирования отдельных видов жилых и общественных зданий в соответствии с главами СНиП; санитарные и противопожарные нормы проектирования зданий (СНиП и СН); государственные стандарты мебели и оборудования; единая модульная система в строительстве (ЕМС); правила техники безопасности, относящиеся к оборудованию зданий; общесоюзный каталог индустриальных изделий; действующие каталоги и рекомендации по типам и габаритам технологического, санитарно-технического и электротехнического оборудования, встроенной и передвижной мебели.

Степень нормализации планировочных элементов жилых и общественных зданий устанавливается в соответствии с функциональным назначением данного помещения. Предусматриваются три степени нормализации.

Первая степень нормализации объемно-планировочных элементов применяется для помещений со строго определенным технологическим процессом, с применением стационарного оборудования, для чего должен быть установлен оптимальный вариант планировки. В этом случае нормализуется все помещение в целом (оборудование, мебель, основные функциональные зоны и планировочное решение). Например, санитарные узлы в жилых домах, школьные классы, спортивные залы, больничные палаты, операционные.

Вторая степень нормализации распространяется на помещения с функциональным и технологическим процессом, допускающим варианты планировки и соответственно различные габариты помещений. При этом нормализуются функциональные зоны и даются различные примеры планировки помещений. Например, комнаты и кухни в жилых домах, зрительные залы, лечебные кабинеты в больницах и т.п.

Третья степень нормализации объемно-планировочных элементов относится к помещениям, в которых функциональный процесс не имеет строгой определенности. Нормализуется только площадь помещения. Здесь целесообразна нормализация оборудования и мебели, а также варианты планировки помещений, например фойе в клубах и кинотеатрах, помещения для дневного пребывания больных в больнице, гостиные и поэтажные холлы в гостиных.

Состав нормалей в зависимости от принятой степени нормализации помещений может быть полным или неполным. В полный состав нормалей объемно-планировочных элементов входят: схема функциональной взаимосвязи помещений (в соответствии с общей объемно-планировочной структурой зданий); нормативные исходные данные; антропометрические и эргономические данные; номенклатура мебели и оборудования (с ссылками на соответствующие ГОСТы, ТУ, каталоги); типы и габариты мебели (передвижной и встроенной) и оборудования (технологического, санитарно-технического, электротехнического) со схематическими чертежами и размерами; основные функциональные зоны (планы, разрезы или развертки с размещением мебели и оборудования); функциональные и технологические габаритные схемы помещений (или объемно-планировочных элементов) с расположением оборудования и мебели, указанием их размеров и минимальных нормативных расстояний между предметами мебели и оборудования.

При первой степени нормализации объемно-планировочного элемента или при необходимости проектирования и эксплуатации данного помещения с учетом специфики разрабатываются также разделы: планировочные схемы помещений (применительно к основным конструктивным системам и унифицированным модульным параметрам); схемы расположения элементов инженерного оборудования помещений (санитарно-технического, электротехнического, слаботочного, технологического); требования к отделке помещений; примеры планировки групп помещений или фрагментов зданий.

На схемах планировочных узлов и на общих габаритных схемах указываются две категории размеров: размеры элементов оборудования и отдельные твердо установленные параметры; минимальные размеры со знаком «³» (т.е. более или равно).

На схемах планировки помещений, разработанных применительно к основным конструктивным системам, указаны унифицированные модульные параметры с учетом опыта проектирования и рекомендаций научно-исследовательских институтов.

При разработке планировочных схем учтено указание СНиП о предпочтительном применении размеров продольных и поперечных шагов, кратных наиболее крупным из установленных производственных модулей 60М и 30М (600 и 300 см). Применение модуля 6М (60 см) допускается в пределах до 720 см: модуля 3М (30 см) - до 360 см в отдельных случаях (при обосновании - 720 см). Размеры на чертежах планировочных нормалей указаны в см. Нумерация помещений на габаритных схемах и примерах планировки дана по табл. 11 СНиП II-69-78.

Для маркировки разделов и выпусков нормалей приняты следующие буквенные и цифровые обозначения: НП - нормали планировочные. Следующие цифры означают: первая - порядковый номер главы, охватывающий род зданий, объединяемых по однородным функциональным признакам; вторая - порядковый номер раздела, включающего определенный вид зданий; третья цифра - тип здания (сооружения); четвертая - группа основных помещений в данном типе здания; после дефиса указан год утверждения нормалей. Например, маркой НП 6.1.1.3-82 обозначено: НП - нормали планировочные; 6 - нормали основных помещений зданий лечебно-оздоровительного назначения и массового отдыха; 6.1 - помещения лечебных зданий; 6.1.1. - больницы: 6.1.1.3 - операционные блоки; 82 - год утверждения.

Внутри каждого выпуска листы с чертежами и текстом имеют свои порядковые номера.

Нормали НП 6.1.1.3-82 «Операционные блоки» входят в состав серии нормалей планировочных элементов жилых домов и общественных зданий.

Нормали являются пособием по проектированию операционных блоков больниц, поликлиник и диспансеров. Предусматривается применение планировочных решений для полносборного строительства зданий каркасно-панельной конструкции.

При разработке нормалей учитывались следующие общие условия: габариты человека и групп людей в различных условиях; функциональные и технологические процессы, связанные с трудовыми функциями человека, а также с работой механизмов и оборудования; требования видимости; санитарно-гигиенические нормы площади и объема помещений, естественной и искусственной освещенности; каталоги и рекомендации по типам и габаритам технологического, санитарно-технического оборудования и передвижной мебели; противопожарные требования к ширине и длине эвакуационных путей (коридоров, проходов, лестниц, дверей); правила техники безопасности при размещении технологического и специального оборудования.

За основу приняты действующие нормативные документы, правила и инструкции.

ОСНОВНЫЕ ТРЕБОВАНИЯ К ПРОЕКТИРОВАНИЮ

Операционные блоки предназначены для оказания оперативной помощи хирургическим больным. Основным требованием, предъявляемым к размещению операционного блока, является его изоляция от всех подразделений и служб больницы. Такая изоляция достигается тупиковым расположением операционного блока, организацией входа в него персонала через санитарный пропускник и поступления больного через шлюз. Должны быть предусмотрены удобные связи операционного блока с отделением анестезиологии-реанимации, палатными отделениями хирургического профиля, приемным отделением. Операционный блок, как правило, должен включать два изолированных непроходных отделения - чистых (асептическое) и гнойных (септическое) операций. В составе одного отделения (асептического или септического) рекомендуется размещать не более восьми операционных, оптимальное их число четыре - шесть.

Для создания условий асептики при проведении операций в операционном блоке должно осуществляться строгое и четкое зонирование. Распределение помещений операционного блока по зонам показано на схеме взаимосвязи помещений (см. лист 1).

Персонал, работающий в операционном блоке, проходит санитарный пропускник, после чего направляется на свои рабочие места. Хирурги в операционную на операцию проходят через предоперационную, а после проведения операции - в протокольную и комнату хирурга; операционные сестры проходят в операционную через предоперационную, а после операции - в комнату медицинских сестер; врачи-анестезиологи в операционную проходят через наркозную, а после проведения операции сопровождают больного в послеоперационную палату; сестры-анестезисты в операционную проходят через наркозную; после операции - в комнату медицинских сестер-анестезистов.

Больного на каталке через шлюз принимают анестезиологи и провозят в наркозную, затем в операционную. После операции больного транспортируют через наркозную в послеоперационную палату (отделение анестезиологии-реанимации) или в палатное отделение.

Хирургический инструментарий, который стерилизуется в центральном стерилизационном отделении больницы (ЦСО), подают в операционную из инструментально-материальной операционного блока. В этом случае в составе операционного блока предусматривают одну резервную стерилизационную. При отсутствии ЦСО стерильный хирургический инструментарий в операционную подают из стерилизационной.

Белье и перевязочный материал, стерилизуемые в ЦСО, подают в инструментально-материальную через шлюз для больных и далее в предоперационную, операционную или наркозную.

Использованные перевязочные материалы и белье в пакетах переносят в помещение для временного хранения грязного белья и отходов через раздевальную санитарного пропускника персонала, затем белье направляют в прачечную, а перевязочные материалы - на уничтожение.

Ориентация операционных принимается по СНиП II-69-78.

Предлагаемые примеры планировки даны в каркасных конструкциях для отделений операционных блоков на одну - четыре операционные.

Отделения для асептических и септических операций по набору и площадям помещений идентичны, поэтому операционные блоки из двух отделений можно компоновать, используя приведенные примеры планировки. Число операционных в отделениях устанавливается заданием на проектирование на основании расчета согласно СНиП II-69-78.

Часть примеров планировки выполнена по двухкоридорной схеме с операционными без естественного освещения. Такая схема позволяет разделить операционный блок на стерильную и чистую зоны (коридоры). Стерильная зона (коридор) предназначается для прохода хирургов и операционных сестер; чистая - для доставки больного и прохода анестезиологов, сестер-анестезистов и младшего персонала.

Рекомендации по отделке помещений операционного блока приведены в карте отделочных работ. В операционных цвет облицовки стен должен быть серо-зеленый или зелено-голубой, поверхность потолков - матовой, соединения стен, пола и потолка - закругленными. Стены и потолок операционной не должны иметь выступов. Устройство встроенных шкафов не допускается.

В операционных и наркозных полы должны быть антистатическими. Их электрическое сопротивление должно быть в пределах 5 · 104 - 5 · 106 Ом.

Предлагаемые примеры планировки операционных блоков на разное число операционных могут быть использованы как:

а) операционные блоки в виде отдельно стоящего здания, соединенного со стационаром переходом. Они располагаются не ниже второго этажа; нижние этажи используются под помещения различных служб, не загрязняющих окружающую среду (центральное стерилизационное отделение, аптека, библиотека, медицинский архив, бельевая и т.д.);

б) операционные блоки, расположенные на верхнем этаже лечебных корпусов больницы.

Противопожарные мероприятия в операционных блоках должны выполняться в соответствии с РТМ «Операционные блоки. Правила эксплуатации, техники безопасности и производственной санитарии». М., 1980 г., главами СНиП по проектированию общественных зданий и сооружений лечебно-профилактических учреждений и противопожарными нормами для проектируемых зданий и сооружений. Операционные блоки оборудуются автоматической пожарной сигнализацией, внутренним противопожарным водопроводом и первичными средствами пожаротушения, согласно указанным нормам. Размещение датчиков автоматической пожарной сигнализации, пожарных кранов и других необходимых средств пожаротушения указывается в соответствующих частях проекта.

Для организации рационального воздухообмена в операционном блоке следует обеспечить движение воздушных потоков из операционных в прилегающие к ним помещения (предоперационные, наркозные и др.), из этих помещений в коридор. В коридорах операционных блоков необходимо устраивать вытяжную вентиляцию. Удаление воздуха из операционной следует предусматривать из двух зон - верхней и нижней (0,4 м от пола). Поступление воздуха в операционную и наркозную должно производиться через жалюзийные решетки с горизонтальной и вертикальной регулировкой жалюзи. Желательно, чтобы воздух в операционную поступал в виде падающего ламинарного потока, а удалялся через регулируемые жалюзийные решетки, расположенные по периметру операционной.

НАЗНАЧЕНИЕ ОСНОВНЫХ ПОМЕЩЕНИЙ ОПЕРАЦИОННОГО БЛОКА

Операционная предназначена для проведения хирургических операций; предоперационная - для подготовки к операции хирургов и операционных сестер; наркозная - для подготовки к операции больного (в том числе проведения наркоза), врачей-анестезиологов и сестер-анестезистов; протокольная - для выполнения хирургом описания операции.

Аппаратная служит для размещения дистанционной контрольно-диагностической и измерительной аппаратуры при проведении сложных операций (операций на сердце, нейрохирургических операций и др.). Аппаратную располагают смежно с операционной, а между ними располагают смотровое окно. Аппаратные включают в состав операционных блоков больниц вместимостью не менее 600 коек, а также клинических больниц и стационаров научно-исследовательских учреждений.

Санитарный пропускник персонала предназначен для дезинфекции рук, переодевания, а также приема душа входящими в операционный блок. Пропускник, состоящий из двух смежных помещений (раздевальной и одевальной), находится при входе в операционный блок, при этом душевые кабины размещают в раздевальной таким образом, чтобы проход через них не был принудительным. Проход персонала из операционного блока, и вход в уборную предусматривают только через раздевальную санитарного пропускника.

При проведении операции средней степени сложности обычно участвуют: хирург, один - два ассистента хирурга, операционная сестра, анестезиолог, одна - две сестры-анестезиста и младшая медицинская сестра - всего шесть - восемь человек. Исходя из этого в раздевальной каждого санитарного пропускника (мужского или женского) должно быть установлено не менее шести индивидуальных шкафчиков для личной одежды на одну операционную.

 

№ п. п.

Индекс* и номер оборудования

Наименование оборудования

Тип, марка

Габаритные размеры (длина´ширина´высота), мм

Масса, (кг)

Электротехнические данные

ГОСТ, ОСТ, ТУ, МРТУ, завод-изготовитель или номер рабочих чертежей

напряжение, В

число фаз

потребляемая мощность, (кВт)

1

1

Диван медицинский мягкий

-

1786´740´745

50

-

-

-

Инд. ОН-7-301/10; североосетинское производственное мебельное объединение «Казбек», г. Орджоникидзе

2

2

Стол врача

-

1100´630´740

30

-

-

-

Инд. ОН-7-301/1; проект МОН-404-01; североосетинское производственное мебельное объединение «Казбек», г. Орджоникидзе

3

9

Стол медсестры

-

1100´630´740

30

-

-

-

Инд. ОН-7-301/2; проект МОН-404-12; североосетинское производственное мебельное объединение «Казбек», г. Орджоникидзе

4

10

Стол палатный

-

850´630´740

15

-

-

-

Инд. ОН-7-301/3; проект МОН-404-03; североосетинское производственное мебельное объединение «Казбек», г. Орджоникидзе

5

19

Стол журнальный

-

1100´550´551

6,8

-

-

-

Истринская мебельная фабрика, Московская обл.

6

20

Тумбочка прикроватная

-

475´400´740

13,2

-

-

-

Инд. ОН-7-301/5; проект МОН-404-05; североосетинское производственное мебельное объединение «Казбек», г. Орджоникидзе

7

24, 34

Табурет винтовой

-

D = 320; H = 400 - 545

4,6

-

-

-

ТУ 46-22-693-83; Касимовский завод «Зооветоборудование», Рязанская обл.

8

33

Стул на металлическом каркасе полумягкий

-

430´470´770

8

-

-

-

Инд. ОС-5-691; предприятия Министерства лесной и деревообрабатывающей промышленности СССР

9

41

Кресло рабочее

-

640´460´(765 - 945)

10

-

-

-

Инд. ОН-4-481/8; Ленинградская мебельная фабрика «Интурист»; Псковский мебельный комбинат

10

50

Банкетка

-

1406´400´400

14

-

-

-

Инд. ОН-7-301/11; проект МОН-404-11; североосетинское производственное мебельное объединение «Казбек», г. Орджоникидзе

11

54

Стул полумягкий

-

430´470´770

6,8

-

-

-

Инд. ОН-7-301/7; проект МОН-404-01; Черкасская мебельная фабрика

 

 

№ п. п.

Индекс* и номер оборудования

Наименование оборудования

Тип, марка

Габаритные размеры (длина´ширина´высота), мм

Масса, (кг)

Электротехнические данные

ГОСТ, ОСТ, ТУ, МРТУ, завод-изготовитель или номер рабочих чертежей

напряжение, В

число фаз

потребляемая мощность, (кВт)

12

57

Шкаф для книг

-

800´378´1717

65

-

-

-

Инд. ОН-4-730/4; североосетинское производственное мебельное объединение «Казбек», г. Орджоникидзе

13

69

Шкаф для чистого белья

-

450´500´2000

24

-

-

-

Инд. ОН-7-742/3, проект 410-03; Румянцевская фабрика медицинской мебели, Московская обл.

14

85

Стол письменный двухтумбовый

-

1400´650´750

41

-

-

-

Инд. Ж-22-5711; предприятия Министерства лесной и деревообрабатывающей промышленности СССР

15

146

Шкаф для поста дежурной медицинской сестры

-

1003´418´1770

38

-

-

-

Инд. ОН-7-921/3; проект МОН 421-03; Московский мебельно-сборочный комбинат № 1

16

441

Шкаф для поста дежурной медицинской сестры

-

1000´420´1700

50

-

-

-

Североосетинское производственное мебельное объединение «Казбек», г. Орджоникидзе

17

А-27

Стерилизатор сухожаровый

СС-1

535´665´950

45

220

1

1,7

ТУ 64-1-2317-72; Ленинградское ПО «Красногвардеец»

18

А-33

Кипятильник дезинфекционный электрический

Э-40

438´199´153

4,8

127

1

1

ТУ 64-1-324-76; Тюменский завод медоборудования и инструментов

19

А-35

Кипятильник дезинфекционный электрический

Э-43-220

438´199´153

4,8

220

1

1

То же

20

А-36

Кипятильник дезинфекционный электрический

Э-34-220

373´176´128

3,4

220

1

1

»

21

Б-24

Аквадистиллятор

ДЭ-4

-

14

220/380

3

3,6

ТУ 64-1-1640-78, Ленинградское ПО «Красногвардеец»

Б-24А

Аквадистиллятор

-

360´220´660

-

-

-

-

То же

Б-24Б

Электрощит

-

266´140´232

-

-

-

-

»

22

В-24

Электроэнцефалограф переносной

ЭЭГП4-02

-

59

220

1

0,12

ТУ 64-1-1072-77 НПО радиоэлектронной медицинской аппаратуры, Львов

В-24А

Электроэнцефалограф

-

1780´430´233

35

-

-

-

То же

В-24Б

Тележка

-

846´451´539,5

12

-

-

-

»

23

В-112

Система наблюдения электронная «Монитор»

ДКС 4Т-01

-

483

220

1

1,23

ТУ Е2.893.044; НПО радиоэлектронной медицинской аппаратуры, Львов

В-112А

Прикроватное устройство (четыре)

-

685´512´1280

-

-

-

-

То же

В-112Б

Пульт центральный

-

484´420´624

38

-

-

-

»

В-112В

Регистратор

-

175´75´240

3

-

-

-

»

В-112Г

Устройство регистрирующее

-

720´620´1220

120

-

-

-

»

 

 

№ п. п.

Индекс* и номер оборудования

Наименование оборудования

Тип, марка

Габаритные размеры (длина´ширина´высота), мм

Масса, (кг)

Электротехнические данные

ГОСТ, ОСТ, ТУ, МРТУ, завод-изготовитель или номер рабочих чертежей

напряжение, В

число фаз

потребляемая мощность, (кВт)

24

В-119

Электрокардиограф сетевой

ЭК1Т-03М

270´200´100

3,9

220

1

0,25

ТУ 92-299-76; фондодержатель В/О «Союзмедтехника»

25

В-150

Электрокардиоскоп

ЭКС2-01

410´400´138

8

220

1

0,03

ТУ 64-1-2913-76; фондодержатель В/О «Союзмедтехника»

26

В-153

Электрокардиоскоп

ЭКСП-02 (комплект № 1)

255´220´110

55

220

1

0,02

ТУ 64-1-2939-77; НПО радиоэлектронной медицинской аппаратуры, Львов

27

Е-28

Электротрепан для ларингологических операций

ЭЛО

163´147´213

8

220 или 127

1

0,165

ТУ 64-1-2026-77; Киевское ПО «Медаппаратура»

28

Е-23

Аудиометр поликлинический

АП-02

370´287´138

6

220

1

0,2

ТУ 64-1-2765-78; НПО радиоэлектронной медицинской аппаратуры, Львов

29

И-15

Электромагнит глазной

ЭМГ-2

840´740´1420

130

220

1

2

ТУ 64-1-2842-76; Волгоградский завод медоборудования им. Сакко и Ванцетти

30

И-16

Диатермокоагулятор глазной

ДК-3-1

400´345´155

11

220

1

0,17

ТУ 64-1-1915-77, Московский завод электромедицинской аппаратуры «ЭМА»

31

И-20

Лампа щелевая с тонометром ЩЛТ уч. 2

млт

520´420´1650

31

220

1

0,05

ТУ 64-1-1012-78; Загорский оптико-механический завод, Московская обл.

32

И-29

Столик для офтальмологических приборов

СО-2

650´500´(650 - 950)

35

-

-

-

ТУ 64-1-805-77; Елецкий завод медоборудования

33

К-1

Комплект четырехместной жесткой мебели для столовых

ОН-10-294/2

-

9

-

-

-

Инд. ОН-10-294/2; фондодержатель «Союзторгоборудование»

К-1А

Стол

-

800´800´800

9

-

-

-

То же

К-1Б

Стул (четыре)

-

400´390´760

12

-

-

-

»

34

К-604

Стол производственный разделочный

СР-1

1100´630´850

33

-

-

-

ТУ 27-07-3016-74; Бердский завод торгового машиностроения, Новосибирская обл.

35

К-605

Стол производственный разделочный

СР-2

1400´630´850

50

-

-

-

То же

36

Л-26

Ионометр переносный

И-102

250´160´90

50

-

-

-

ТУ 25-05-1572-79; Гомельский завод измерительных приборов

37

Л-57

Термостат электрический суховоздушный

ТС-80 (2Ц-450М)

560´540´1340

60

220 или 127

1

0,17

ТУ 64-1-1382-76; Одесское объединение «Медлаборатортехника»

38

Л-75

Шкаф сушильно-стерилизационный

ШСС-80П

680´600´1450

90

220

1

2,2

ТУ 64-1-909-80; НПО «Медфизприбор», Казань

39

Л-78

Центрифуга лабораторная клиническая

опн-3

455´400´290

15

220

1

0,3

ТУ 5-375-4260-76; Приборостроительный завод им. 50-летия КиргССР, г. Фрунзе

 

ОПЕРАЦИОННЫЕ БЛОКИ БОЛЬНИЦ

НОМЕНКЛАТУРА МЕБЕЛИ И ОБОРУДОВАНИЯ

5

 

№ п. п.

Индекс* и номер оборудования

Наименование оборудования

Тип, марка

Габаритные размеры (длина´ширина´высота), мм

Масса, (кг)

Электротехнические данные

ГОСТ, ОСТ, ТУ, МРТУ, завод-изготовитель или номер рабочих чертежей

напряжение, В

число фаз

потребляемая мощность, (кВт)

40

Л-94

Счетчик лабораторный

СЛ-1

296´110´78

2,2

-

-

-

ТУ 64-1-3031-78; Киевское ПО «Медаппаратура»

41

Л-200

Микроскоп биологический рабочий

Биолам Р-5

230´140´350

4,5

-

-

-

ТУ 3-3.1112-75; Ленинградское оптико-механическое объединение им. В.И. Ленина

42

Л-224

Шкаф вытяжной (малый)

-

1100´800´2512

112

-

-

-

Инд. ОН-7-302/25; проект 9002-24; Вильнюсское предприятие по ремонту медицинской техники

43

Л-231

Стол лабораторный химический

-

1100´600´850

52

-

-

-

Проект СЭС-401-01; Инд. ОН-7-589-1; Вильнюсское предприятие по ремонту медицинской техники

44

Л-267

Шкаф для химических реактивов

-

1100´510´1800

81

-

-

-

Инд. ОН-589/11; проект СЭС-401-11; производственное мебельное объединение «Новгород»

45

Л-305

Фотометр пламенный

Биан-140

480´310´500

63

220

1

0,06

ТУ 64-1-72-78; Ленинградское ПО «Красногвардеец»

46

Л-325

Колориметр-нефелометр фотоэлектрический

ФЭК-60

-

33

220

1

0,2

ТУ 3-3.748-73; Загорский оптико-механический завод

Л-325А

Колориметр

-

460´385´235

22,5

-

-

-

То же

Л-325Б

Питающее устройство

-

315´210´140

10,5

-

-

-

»

47

Л-431

Мойка лабораторная

МЛ-2

900´800´1800

190

-

-

-

Инд. ОН-11-918/11; ГОСТ 16371-84; проект 811-10/11; производственное мебельное объединение «Новгород», Новгород

48

М-5

Кровать функциональная

КФ

2265´890´1110

71

-

-

-

ТУ 64-1-217-75; Досчатинский завод мед оборудования, Горьковская обл., Бутовское ПО «Металлист», Московская обл.

49

М-9

Подставка для стерилизационных коробок

-

500´550´1085

7

-

-

-

ТУ 64-1-3154-78; Днепропетровский завод медоборудования

50

М-10

Подставка для тазов

Х-000-ОМ

434´495´760

5

-

-

-

ТУ 64-1-1315-72; Днепропетровский завод медоборудования

51

М-14

Столик инструментальный разборный

СИ-4

760´490´840

16

-

-

-

ОСТ 64-1-164-75; Днепропетровский завод медоборудования

 

 

№ п. п.

Индекс* и номер оборудования

Наименование оборудования

Тип, марка

Габаритные размеры (длина´ширина´высота), мм

Масса, (кг)

Электротехнические данные

ГОСТ, ОСТ, ТУ, МРТУ, завод-изготовитель или номер рабочих чертежей

напряжение, В

число фаз

потребляемая мощность, (кВт)

52

М-15

Столик манипуляционный

СМ

755´455´900

25

-

-

-

ОСТ 64-1-164-75; Днепропетровский завод медоборудования

53

М-23

Шкаф медицинский одностворчатый

-

630´450´1610

55

-

-

-

ТУ 64-1-141-78; НПО радиоэлектронной медицинской аппаратуры, Львов

54

М-24

Шкаф медицинский двустворчатый

-

830´451´1610

70

-

-

-

То же

55

М-33

Столик хирургический с ручным подъемом панели

-

800´460´(990 - 1540)

12

-

-

-

ТУ 64-1-875-72; Саранский завод медоборудования

56

М-38

Тележка комбинированная для перевозки грязного и чистого белья

-

1154´454´1067

30

-

-

-

ТУ 64-1-2789-80; Днепропетровский завод медоборудования

57

М-62

Тележка со съемными носилками

ТСН-М2

2100´620´1020

40

-

-

-

ТУ 64-1-2770-73; Киевское ПО «Медаппаратура»

58

0-5

Аппарат портативный для искусственного дыхания

ДП-2

450´400´150

10

-

-

-

ТУ 64-1-2042-78; Кокчетавский завод кислородно-дыхательной аппаратуры

59

0-10

Микроскоп операционный

ОМ-2

612´637´1850

68

127/220

1

0,07

ТУ 64-1-1643-78; Ленинградское ПО «Красногвардеец»

60

0-12

Штатив для длительных вливаний

ШДВ-2

D = 110 - 550; H = 1240 - 2150

8

-

-

-

ТУ 64-1-650-79; НПО радиоэлектронной медицинской аппаратуры, Львов

61

0-26

Отсасыватель хирургический с электроприводом

ОХ-2

650´260´380

23

220

1

0,5

ТУ 64-1-1423-80; Харьковский завод «Точмедприбор»

62

0-33

Светильник медицинский пятнадцатирефлекторный стационарный с телевизионной установкой ПТУ-30-2-1

СМТ-34

 

290

220/380

3

2,3

ТУ 64-1-483-77; Свердловский завод электромедицинской аппаратуры «ЭМА»

0-33А

Пульт управления

-

480´300´700

180

-

-

-

То же

0-33Б

Светильник

-

L = 2200, D = 1150

170

-

-

-

»

63

0-37

Светильник медицинский четырехрефлекторный передвижной

СМ-28

H = 1900; D = 550; Lосн = 550; длина штанги с противовесом и кожухом 1750 мм

60

127/220

1

0,17

»

64

0-39

Стол операционный универсальный

СОУ-1

 

260

-

-

-

ТУ 64-1-227-77; завод медоборудования, Елец

0-39А

Стол

-

2000´607´(750 - 1100)

170

-

-

-

То же

0-39Б

Шкаф

-

1012´400´1055

90

-

-

-

»

65

0-42

Аппарат ингаляционного наркоза для скорой помощи

АН-8

270´230´370

12

220

1

0,8

ТУ 64-1-3454-80; завод «Респиратор», Орехово-Зуево, Московской обл.

 

 

№ п. п.

Индекс* и номер оборудования

Наименование оборудования

Тип, марка

Габаритные размеры (длина´ширина´высота), мм

Масса, (кг)

Электротехнические данные

ГОСТ, ОСТ, ТУ, МРТУ, завод-изготовитель или номер рабочих чертежей

напряжение, В

число фаз

потребляемая мощность, (кВт)

66

0-44

Респиратор объемный

РО-5

-

160

127/220

1

0,4

ТУ 64-1-233-75; Ленинградское ПО «Красногвардеец»

0-44А

Респиратор

-

1900´600 + 1200

-

-

-

-

То же

0-44Б

Стойка

-

D = 300 - 400; H =750 - 1300

-

-

-

-

»

67

0-50

Аппарат для высокочастотной электрохирургии

ЭН-57М

520´540´1250

70

220

1

1,8

ТУ 64-1-2821-75; Волгоградский завод медоборудования им. Сакко и Ванцетти

68

0-51

Дефибриллятор импульсный (без блока питания)

ДИ-03

425´335´245

22

127/220

1

0,5

ТУ 64-1-1156-76; НПО радиоэлектронной медицинской аппаратуры, Львов

69

0-62

Светильник медицинский девятирефлекторный стационарный

СМ-40

L = 1200, D = 1000

80

127/220

1

0,4

ТУ 64-1-483-77; Свердловский завод электромедицинской аппаратуры «ЭМА»

70

0-87

Аппарат для ингаляционного наркоза

«Наркон-II»

405´355´440

16

220

1

1

ТУ 64-1-2706-75; Ленинградское ПО «Красногвардеец»

71

0-96

Аппарат универсальный искусственного кровообращения блочной конструкции

ИСЛ-4

-

190

-

-

-

ТУ 64-1-471-74; Ленинградское ПО «Красногвардеец»

0-96А

Станина

 

820´1020´1130

85

220

1

-

То же

0-96Б

Блок терморегулятора

БТР-1

402´402´1178

35

220/380

3

7,5

»

0-96В

Пульт дистанционный

ПД-1

330´162´121

5

-

-

-

»

0-96Г

Блок роликового насоса

БНР-1

330´280´407

30

-

-

-

»

0-96Д

Блок дискового оксигенератора

БОД-1

833´278´313

20

-

-

-

»

0-96Е

Блок измерителя давления с фильтром-ловушкой

БДЛ-1

330´154´120

4

220

1

0,01

»

0-96Ж

Блок унифицированного электропривода

БЭП-1

330´150´120

5

-

-

-

»

0-96З

Блок электротермометрический

БЭТ-1

330´160´121

5

220

1

0,005

»

72

0-107

Аппарат для искусственного дыхания ручной с отсасывателем

АДР-1

385´145´300

4,5

-

-

-

ТУ 64-1-1953-78; Кокчетавский завод кислородно-дыхательной аппаратуры

73

0-125

Индикатор стадий наркоза переносный

ИСНП-1

350´350´1700

32

220

1

0,02

ТУ 64-1-1299-70; НПО радиоэлектронной медицинской аппаратуры, Львов

 

 

№ п. п.

Индекс* и номер оборудования

Наименование оборудования

Тип, марка

Габаритные размеры (длина´ширина´высота), мм

Масса, (кг)

Электротехнические данные

ГОСТ, ОСТ, ТУ, МРТУ, завод-изготовитель или номер рабочих чертежей

напряжение, В

число фаз

потребляемая мощность, (кВт)

74

0-130

Аппарат ингаляционного наркоза

«Полинаркон-2»

930´610´1100

100

220

1

0,02

ТУ 64-1-2867-76; Ленинградское ПО «Красногвардеец»

75

0-428

Стол перевязочный

П-1

2000´500´850

36

-

-

-

ТУ 64-1-3021-78; Киевское ПО «Медаппаратура»

76

Р-11

Баки для обработки рентгенограмм

БР-1

-

252

220 или 127

1

2

ТУ 64-1:2470-77; Досчатинский завод медоборудования, Горьковская обл.

Р-11а

Бак термостата

-

745´800´915

105

-

-

-

То же

Р-11б

Бак промывной

-

688´450´860

47

-

-

-

»

77

Р-14

Негатоскоп общего назначения

Н-48

420´222´660

10

220

1

0,1

ТУ 64-1-1196-79; Киевское производственное объединение «Медаппаратура»

78

Р-16

Фонарь неактиничный

ФН-2

355´200´340

3,6

127/220

1

0,025

ТУ 6-1-655-76; Киевское производственное объединение «Медаппаратура»

79

Р-28

Ширма защитная для медицинских рентгеновских кабинетов малая

М-48

1036´477´943

50

220

1

0,025

ТУ 64-1-1769-75; НПО «Медфизприбор», Казань

80

Р-30

Шкаф сушильный для рентгенопленок электрический

2Ц-1193

675´550´1657

82

220

1

1,4

ТУ 64-1-1867-80; Одесское объединение «Медлабортехника»

81

Р-35

Аппарат рентгеновский диагностический палаточный передвижной

12П5

2420´890´1950

320

380 или 220

1

15

ТУ 25-06-1852-78; завод «Актюбрентген», Актюбинск

82

Т-1

Аппарат для репозиции костей нижних конечностей

РТ-1

H = 1120; B = 760

19

-

-

-

ТУ 64-1-2707-78; Волгоградский завод медоборудования им. Сакко и Ванцетти

83

Т-6

Аппарат для наложения гипсовых корсетов

-

1325´950´2430

31,8

-

-

-

ГОСТ 19569-80 Е; ТУ 64-1-1514-71; Днепропетровский завод медоборудования

84

Т-18

Аппарат для разрезания гипсовых повязок

АРП

380´220´165

3,7

220

1

0,4

Ту 64-1-1694-72; Киевское ПО «Медаппаратура»

85

Т-29

Стол ортопедический с механизированным управлением

 

2621´580´1097

380

127/220

1

0,5

ТУ 64-1-2347-78; Московский экспериментальный завод «Технолог»

Т-29А

Стойка передвижная

-

1200´385´1270

180

-

-

-

То же

Т-29Б

Стол

 

(1540 - 2865)´(430 - 580)

300

 

 

 

»

86

Х-204

Холодильник электрический бытовой «ЗИЛ»

КШ-260 (модель 63)

590´650´1385

90

220

1

0,15

ТУ 27.04.481-75; ГОСТ 16317-76* Е

Автомобильный завод им. Лихачева

87

Ц-6

Облучатель бактерицидный настенный

ОБН-150

1070´140´80

5

220

1

0,2

ТУ 64-1-1445-78; Свердловский завод электромедицинской аппаратуры «ЭМА»

 

 

№ п. п.

Индекс* и номер оборудования

Наименование оборудования

Тип, марка

Габаритные размеры (длина´ширина´высота), мм

Масса, (кг)

Электротехнические данные

ГОСТ, ОСТ, ТУ, МРТУ, завод-изготовитель или номер рабочих чертежей

напряжение, В

число фаз

потребляемая мощность, (кВт)

88

Э-2

Слив больничный с арматурой

СБ-1

450´500´2075

20,4

-

-

-

ТУ 21-РСФСР-327-75; Кировский завод «Стройфаянс»

89

Э-10

Ванна прямобортная чугунная эмалированная

ПВ-1

1700´750´622

127

-

-

-

ГОСТ 1154-80*; Ворошиловградский эмальзавод им. Артема

90

Э-24

Мойка чугунная эмалированная на два отделения

МЧ-2

800´600´234

58

-

-

-

ГОСТ 7506-83, ГОСТ 18297-80; Ворошиловградский эмальзавод им. Артема

91

Э-46

Умывальник хирургический

-

650´590´190

18

-

-

-

ТУ 21-РСФСР-328-75; Лобненский завод стройфарфора им. Н.К. Крупской, Московская обл.

92

Э-56

Умывальник прямоугольный без спинки (третья величина)

-

600´450´170

13,5

-

-

-

ГОСТ 23759-79; Лобненский завод стройфарфора им. Н.К. Крупской

93

Э-101

Умывальник прямоугольный со спинкой (вторая величина)

-

550´420´150

10,5

-

-

-

ГОСТ 23759-79; Кировский завод «Стройфаянс»

94

Э-432

Мойка чугунная эмалированная на одно отделение малой модели

МЧ-1-М

500´600´180

23

-

-

-

ГОСТ 7506-78; Кировский чугунолитейный завод

95

Э-462

Раковина стальная эмалированная

РСТО-2

500´400´540

40

-

-

-

ГОСТ 23695-79; Ворошиловградский эмальзавод им. Артема; Липецкий трубный завод

96

Ю-103

Бачок хозяйственный

-

270´185´335

1

-

-

-

ТУ 16.539.220-69; ПО «Конденсатор», Серпухов

97

Ю-106

Ведро педальное

-

315´373´360

3,5

-

-

-

СТУ 17-60; Бигосовский завод «Зооветинструмент», Витебская обл.

98

Ю-122

Шкаф металлический обычный

-

600´500´1500

130

-

-

-

РСТ РСФСР 328-78 Московский завод метхозизделий

99

Ю-125

Шкаф хозяйственный настольный обычный

Ш1МО

360´300´650

25

-

-

-

То же

* Индексация мебели и оборудования принята по составленному Гипронииздравом «Автоматизированному каталогу оборудования учреждений здравоохранения (АКОУЗ)».

ДАЧА НАРКОЗА

ХИРУРГИЧЕСКАЯ ОПЕРАЦИЯ (ОБЩЕГО ПРОФИЛЯ)

ОБРАБОТКА РУК ХИРУРГА ПЕРЕД ОПЕРАЦИЕЙ

НАБЛЮДЕНИЕ И КОНТРОЛЬ ФИЗИОЛОГИЧЕСКИХ ПОКАЗАТЕЛЕЙ

в операционную

1.1. ОПЕРАЦИОННАЯ ОБЩЕХИРУРГИЧЕСКОГО ПРОФИЛЯ

1.2. ОПЕРАЦИОННАЯ ДЛЯ ПРОВЕДЕНИЯ ОФТАЛЬМОЛОГИЧЕСКИХ ОПЕРАЦИЙ

СТЕРИЛИЗАЦИЯ ИНСТРУМЕНТОВ И ПРИНАДЛЕЖНОСТЕЙ

Примечания: 1. Индексы мебели и оборудования приняты по номенклатуре представленной на листах 2 - 9.

2. Подставка к процедурному столу (инд. М-107) изготовляется индивидуально.

3. ПУ - пульт управления светильником; А - передаточное окно.

1.3. ОПЕРАЦИОННАЯ ДЛЯ ПРОВЕДЕНИЯ ОТОРИНОЛАРИНГОЛОГИЧЕСКИХ ОПЕРАЦИЙ

1.4. ОПЕРАЦИОННАЯ ДЛЯ ПОЛИКЛИНИК, ДИСПАНСЕРОВ

1.5. ОПЕРАЦИОННАЯ ДЛЯ ПРОВЕДЕНИЯ ОРТОПЕДОТРАВМАТОЛОГИЧЕСКИХ ОПЕРАЦИЙ

1.6. ОПЕРАЦИОННАЯ ДЛЯ ПРОВЕДЕНИЯ НЕЙРОХИРУРГИЧЕСКИХ ОПЕРАЦИЙ

Примечания: 1. Индексы мебели и оборудования приняты по номенклатуре, представленной на листах 2 - 9.

2. Подставка к процедурному столу (инд. М-107) изготавливается индивидуально.

3. А - передаточное окно.

1.7. ОПЕРАЦИОННАЯ ДЛЯ ПРОВЕДЕНИЯ ОПЕРАЦИИ НА СЕРДЦЕ И СОСУДАХ

2.6. ПРЕДОПЕРАЦИОННАЯ ДЛЯ ДВУХ ОПЕРАЦИОННЫХ

в стерилизационную

3.6. СТЕРИЛИЗАЦИОННАЯ ДЛЯ ДВУХ ОПЕРАЦИОННЫХ

4а. НАРКОЗНАЯ ДЛЯ ОДНОЙ ОПЕРАЦИОННОЙ

5.1. АППАРАТНАЯ НА ДВЕ ОПЕРАЦИОННЫЕ

5.2. АППАРАТНАЯ НА ОДНУ ОПЕРАЦИОННУЮ

Примечания: 1. Индексы мебели и оборудования приняты по номенклатуре, представленной на листах 2 - 9.

2. Подставка к процедурному столу (инд. М-107) изготавливается индивидуально.

3. ПУ - пульт управления светильником; А - передаточное окно; Б - смотровое окно.

6. ПОМЕЩЕНИЕ ДЛЯ ХРАНЕНИЯ И ПРИГОТОВЛЕНИЯ КРОВИ

7. ЛАБОРАТОРИЯ СРОЧНЫХ АНАЛИЗОВ

8. ИНСТРУМЕНТАЛЬНО-МАТЕРИАЛЬНАЯ НА ЧЕТЫРЕ ОПЕРАЦИОННЫЕ

9. ПОМЕЩЕНИЕ РАЗБОРКИ И МЫТЬЯ ИНСТРУМЕНТОВ

10. ПОМЕЩЕНИЕ АППАРАТА ИСКУССТВЕННОГО КРОВООБРАЩЕНИЯ

11. ГИПСОВАЯ

12. комнАтА для ХРАНЕНИЯ ГИПСА

13. КЛАДОВАЯ ГИПСОВЫХ БИНТОВ

Примечания: 1. Индексы мебели и оборудования приняты по номенклатуре, представленной на листах 2 - 9. На схеме 7: Л-57 (второе снизу) соответствует поз. 38 на листе 4.

2. Стеллаж деревянный, стол для хранения и смачивания гипсовых бинтов, гипсоотстойник и ящик для гипса (имд. Ю-701; Т-36; Т-45; Т-39) изготавливаются индивидуально.

15. КЛАДОВАЯ ПЕРЕНОСНОЙ АППАРАТУРЫ

16а. ПОМЕЩЕНИЕ ДЛЯ ХРАНЕНИЯ ПЕРЕДВИЖНОГО РЕНТГЕНОВСКОГО АППАРАТА

16б. ФОТОЛАБОРАТОРИЯ

17. кабинет заведующего отделением

18. КАБИНЕТ ВРАЧА-АНЕСТЕЗИОЛОГА

19. КАБИНЕТ ХИРУРГА

20. КОМНАТА СТАРШЕЙ СЕСТРЫ

21. КОМНАТА МЕДИЦИНСКИХ СЕСТЕР-АНЕСТЕЗИСТОВ

22. КОМНАТА МЕДИЦИНСКИХ СЕСТЕР

23. КОМНАТА МЛАДШЕГО ПЕРСОНАЛА

24. ПРОТОКОЛЬНАЯ

Примечания: 1. Индексы мебели и оборудования приняты по номенклатуре, представленной на листах 2 - 9.

2. Стеллаж деревянный (инд. Ю-709) изготавливается индивидуально.

3. В - место расположения рентгеновского аппарата.

25. КЛАДОВАЯ ЧИСТОГО БЕЛЬЯ

26. ПОМЕЩЕНИЕ ВРЕМЕННОГО ХРАНЕНИЯ ГРЯЗНОГО БЕЛЬЯ И ОТХОДОВ ПРИ ОПЕРАЦИИ

28. САНИТАРНЫЙ ПРОПУСКНИК ДЛЯ ПЕРСОНАЛА

31.2. ПОСЛЕОПЕРАЦИОННАЯ ПАЛАТА НА ДВЕ КОЙКИ

31.3. ПОСЛЕОПЕРАЦИОННАЯ ПАЛАТА НА ТРИ КОЙКИ

На данной схеме как вариант оснащения палаты показана электронная система наблюдения «Монитор», с помощью которой можно периодически контролировать значения всех физиологических параметров одного - четырех больных. Прикроватное устройство А выполнено в передвижном варианте и состоит из электрокардиоскопа ЭКСП-02, ритмовазометра РВМ-01, ритмоспирометра РСМ-02, термометра ТМ-01, индикатора аритмий ИАР-01, блоков измерителя артериального давления, включающего блок управления пневмосистемой БУП-01, блок измерения давления БИД-01 (при работе в системе наблюдения устанавливается на центральном пульте), и индикатора давления ИД-01. Центральный пульт Б состоит из четырехканального осциллоскопа ОСЧ-01, блока индикации БИ-01, блока измерения давления БИД-01, коммутатора пациентов КП-01. Центральный пульт Б, одноканальный регистратор В и регистрирующее устройство Г могут быть включены в состав оснащения кабинета врача анестезиолога. Система наблюдения может быть заменена другой аппаратурой в зависимости от специальных требований и местных условий. Посты и палаты целесообразно объединять в комплексы вместимостью шесть коек.

I - коридор операционного блока; II - раздевальная; III - одевальная; IV - коридор общебольничной зоны; V - пост дежурной медицинской сестры; VI - слив; VII - смотровое окно.

Примечания: 1. Индексы мебели и оборудования приняты по номенклатуре, представленной на листах 2 - 9.

2. Шкаф для хранения одежды и приборная панель (инд. ШХО; ПП) изготавливаются индивидуально.

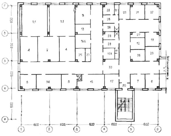
ОПЕРАЦИОННЫЙ БЛОК НА ОДНУ ОПЕРАЦИОННУЮ ОБЩЕХИРУРГИЧЕСКОГО ПРОФИЛЯ

ВАРИАНТ С ОДНИМ КОРИДОРОМ

ОПЕРАЦИОННЫЙ БЛОК НА ДВЕ ОПЕРАЦИОННЫЕ ОБЩЕХИРУРГИЧЕСКОГО ПРОФИЛЯ

ВАРИАНТ С ОДНИМ КОРИДОРОМ

1.1. Операционная общехирургического профиля

1.5. Операционная для проведения ортопедотравматологических и нейрохирургических операций

1.7. Операционная для проведения операций на сердце и сосудах

2. Предоперационная

3. Стерилизационная

4. Наркозная

5. Аппаратная

6. Помещение для хранения крови

7. Лаборатория срочных анализов

8. Инструментально-материальная

9. Помещение разборки и мытья инструментов

10а. Монтажная помещения аппарата искусственного кровообращения

10б. Моечная помещения аппарата искусственного кровообращения

11. Гипсовая

12. Комната для хранения гипса

13. Кладовая гипсовых бинтов

15. Кладовая переносной аппаратуры

16а. Фотолаборатория

16б. Помещение для хранения передвижного рентгеновского аппарата

17. Кабинет заведующего

18. Кабинет врача-анестезиолога

19. Кабинет хирурга

20. Комната старшей медсестры.

21. Комната медицинских сестер-анестезистов

22. Комната медицинских сестер

23. Комната младшего персонала

24. Протокольная

25. Кладовая чистого белья

26. Помещение временного хранения грязного белья и отходов при операции

27. Кладовая предметов уборки

28. Санитарный пропускник для персонала

29. Комната личной гигиены

30. Шлюз

31. Уборная

32. Техническое помещение

Примечание. Лестницы и лифты на примерах планировки показаны условно.

ОПЕРАЦИОННЫЙ БЛОК НА ТРИ ОПЕРАЦИОННЫЕ: ДВЕ ОБЩЕХИРУРГИЧЕСКОГО ПРОФИЛЯ И ОДНУ ДЛЯ ПРОВЕДЕНИЯ ОПЕРАЦИЙ НА СЕРДЦЕ И СОСУДАХ

ВАРИАНТ С ОДНИМ КОРИДОРОМ

ВАРИАНТ С ДВУМЯ КОРИДОРАМИ

ОПЕРАЦИОННЫЙ БЛОК НА ЧЕТЫРЕ ОПЕРАЦИОННЫЕ: ТРИ ОБЩЕХИРУРГИЧЕСКОГО ПРОФИЛЯ И ОДНУ ДЛЯ ПРОВЕДЕНИЯ ОРТОПЕДОТРАВМАТОЛОГИЧЕСКИХ ИЛИ НЕЙРОХИРУРГИЧЕСКИХ ОПЕРАЦИЙ

ВАРИАНТ С ДВУМЯ КОРИДОРАМИ

ВАРИАНТ С ОДНИМ КОРИДОРОМ

 

Наименование помещений

Виды покрытий

полов

стен

потолков

антистатическое (антистатический линолеум и др.)

водостойкое и водонепроницаемое (керамическая плитка и др.)

моющееся, гладкое, без выступов и впадин (линолеум и др.)

водоотталкивающее, моющееся, стойкое к дезинфицирующим средствам (глазурованная плитка и др.)

моющееся (масляная, водоэмульсионная краска др.)

моющееся (масляная краска и др.)

немоющееся (клеевая краска, известковая побелка и др.)

Операционная

+

 

 

+

 

+

 

Предоперационная

 

+

 

H = 2,5 м

+

+

 

Стерилизационная

 

+

 

H = 2,5 м

+

+

 

Наркозная

+

 

 

H = 2,5 м

+

+

 

Аппаратная

 

 

+

 

+

+

 

Помещение для хранения крови

 

 

+

H = 1,6 м

+

+

 

Лаборатория срочных анализов

 

 

+

H = 1,6 м

+

 

+

Инструментально-материальная

 

 

+

+

 

+

 

Помещение разборки и мытья инструментов

 

+

 

H = 1,6 м

+

+

 

Помещения аппарата искусственного кровообращения:

 

 

 

 

 

 

 

а) монтажная

 

 

+

+

 

+

 

б) моечная

 

+

 

+

 

+

 

Гипсовая

 

+

 

H = 2,5 м

+

+

 

Комната для хранения гипса

 

+

 

H = 1,6 м

+

 

+

Кладовая гипсовых бинтов

 

 

+

H = 1,6 м

+

+

 

Помещение гипотермии

 

+

 

H = 2,5 м

+

+

 

Кладовая переносной аппаратуры

 

 

+

 

+

+

 

Помещение для хранения передвижного рентгеновского аппарата

 

 

+

 

+

+

 

Фотолаборатория

 

+

 

H = 1,6 м

+

+

 

Кабинет заведующего отделением

 

 

+

 

+

 

+

Кабинет врача-анестезиолога

 

 

+

 

+

 

+

Кабинет хирурга

 

 

+

 

+

 

+

Комната старшей медицинской сестры

 

 

+

 

+

 

+

Комната медицинских сестер-анестезистов

 

 

+

 

+

 

+

Комната медицинских сестер

 

 

+

 

+

 

+

Комната младшего персонала

 

 

+

 

+

 

+

Протокольная

 

 

+

 

+

+

 

Кладовая чистого белья

 

 

+

 

+

+

 

Помещение временного хранения грязного белья и отходов при операции

 

+

 

H = 1,6 м

+

+

 

Кладовая предметов уборки

 

+

 

H = 1,6 м

+

+

 

Санитарный пропускник для персонала

 

+

 

H = 2,5 м

+

+

 

Комната личной гигиены

 

+

 

H = 2,5 м

+

+

 

Примечания: 1. Знак «+» указывает на применение данного вида покрытий по всей поверхности ограждения или выше отметки, обозначенной буквой Н.

2. В местах установки санитарно-технических приборов отделка выполняется в соответствии с п. 3.24 СНиП II-69-78.

3. Покрытия полов могут приниматься по альбому «Типовые конструкции, изделия и узлы зданий и сооружений. Серия 2.244-1. Детали полов общественных зданий. Выпуск 2. Полы лечебно-профилактических учреждений. Рабочие чертежи».

 

СОДЕРЖАНИЕ

 



© 2013 Ёшкин Кот :-)