Информационная система
«Ёшкин Кот»

XXXecatmenu

ГОСУДАРСТВЕННЫЙ
КОМИТЕТ
ПО ГРАЖДАНСКОМУ
СТРОИТЕЛЬСТВУ
И АРХИТЕКТУРЕ
ПРИ ГОССТРОЕ СССР

ЦЕНТРАЛЬНЫЙ
ОРДЕНА ТРУДОВОГО
КРАСНОГО ЗНАМЕНИ
НАУЧНО-
ИССЛЕДОВАТЕЛЬСКИЙ
И ПРОЕКТНЫЙ ИНСТИТУТ
ТИПОВОГО
И ЭКСПЕРИМЕНТАЛЬНОГО
ПРОЕКТИРОВАНИЯ ЖИЛИЩА

НОРМАЛИ
ПЛАНИРОВОЧНЫХ
ЭЛЕМЕНТОВ
ЖИЛЫХ И
ОБЩЕСТВЕННЫХ
ЗДАНИЙ

ВЫПУСК НП 1.7-82

ПСИХОНЕВРОЛОГИЧЕСКИЕ
ИНТЕРНАТЫ

МОСКВА
СТРОЙИЗДАТ 1984

 

Даны рекомендации по планировочным параметрам помещений на основе нормативных данных «Инструкции по проектированию психоневрологических интернатов» (СН 532-81), оптимальных конструктивно-планировочных модулей, решений интерьеров с учетом унифицированной номенклатуры мебели. Планировочные элементы разработаны для трех типов содержания лиц, проживающих в психоневрологических интернатах, - свободного, наблюдательного, постельного.

Для архитекторов и специалистов, работающих в области социального обеспечения и организации специализированного жилища.

Серия нормалей планировочных элементов жилых и общественных зданий разрабатывается в развитие норм проектирования в соответствии со СНиП. Ведущие организации по разработке темы: ЦНИИЭП жилища и ЦНИИЭП учебных зданий. В разработке серии нормалей принимают участие ЦНИИЭП комплексов и зданий культуры, спорта и управления им. Б.С. Мезенцева, ЦНИИЭП торгово-бытовых зданий и туристских комплексов, ЦНИИЭП курортно-туристских зданий и комплексов, ЦНИИЭПграждансельстрой, КиевЗНИИЭП, ТбилЗНИИЭП, Гипронииздрав, МНИИТЭП ГлавАПУ Москвы.

Методическое руководство авторским коллективом по разработке серии нормалей и общее редактирование серии осуществляет канд. архит. Е.С. Раева (отдел стандартизации ЦНИИЭП жилища).

Выпуск НП 1.7-82 разработан ЦНИИЭП жилища (директор института - архит. Б.Р. Рубаненко, зам. директора по научной работе Е.П. Федоров, зам. руководителя отдела стандартизации Н.И. Узкий).

Руководитель темы и автор выпуска НП 1.7-82 архит. К.В. Бобкова. Автор введения 1.7-82 архит. К.В. Бобкова, с. 3 - 4 введения написаны Е.С. Раевой, авторы листов 5 - 9 - В.В. Рыбицкий, 1 - 4, 10 - 50 - К.В. Бобкова.

Графическое оформление техников Г.И. Игнатова, Е.И. Глазнева.

Нормали одобрены научно-техническим советом ЦНИИЭП жилища 25 ноября 1980 г. (протокол № 45) и утверждены Госгражданстроем при Госстрое СССР 7 января 1982 г. (приказ № 5).

Отзывы и замечания по нормалям, а также предложения о дальнейшей работе по нормализации планировочных элементов зданий просьба направлять по адресу: 127427, Дмитровское шоссе, д. 9, Центральный ордена Трудового Красного Знамени научно-исследовательский и проектный институт типового и экспериментального проектирования жилища.

ВВЕДЕНИЕ

Цель разработки нормалей - внедрение в проектирование и строительство прогрессивных функциональных и технических решений, а также совершенствование процесса проектирования. Нормали являются частью общей системы типизации, унификации и стандартизации в жилищно-гражданском строительстве. Они содержат исходные нормативы, справочные данные, а также конкретные рекомендации, подготовленные на основе действующих норм проектирования и государственных стандартов в развитие глав СНиП. Нормали служат пособием по проектированию жилых и общественных зданий и издаются отдельными выпусками по видам и типам зданий или по основным группам помещений отдельных типов зданий.

Публикуемая Стройиздатом серия нормалей планировочных элементов состоит из следующих разделов:

1. Жилые здания.

2. Здания учебно-воспитательного назначения.

3. Торговые здания и предприятия общественного питания.

4. Предприятия хозяйственно-бытового и коммунального обслуживания.

5. Здания зрелищного, культурно-просветительного назначения и спортивные сооружения.

6. Здания лечебно-оздоровительного назначения и массового отдыха.

7. Здания научно-исследовательских институтов, проектных организаций, административные здания.

8. Здания санаторно-курортного назначения.

9. Функциональные объемно-планировочные элементы жилых и общественных зданий.

При разработке нормалей за основу приняты действующие нормативные документы, требования и условия, которые определяют объемно-планировочные решения и параметры нормализуемых помещений, элементов и оборудования: нормы проектирования отдельных видов жилых и общественных зданий в соответствии с главами СНиП; санитарные и противопожарные нормы проектирования зданий (СНиП и СН); государственные стандарты мебели и оборудования, единая модульная система в строительстве (ЕМС); правила техники безопасности, относящиеся к оборудованию зданий; общесоюзный каталог индустриальных изделий; действующие каталоги и рекомендации по типам и габаритам технологического, санитарно-технического и электротехнического оборудования, встроенной и передвижной мебели.

Степень нормализации планировочных элементов жилых и общественных зданий устанавливается в соответствии с функциональным назначением данного помещения. Предусматриваются три степени нормализации.

Первая степень нормализации объемно-планировочных элементов применяется для помещений со строго определенным технологическим процессом, с применением стационарного оборудования, для чего должен быть установлен оптимальный вариант планировки. В этом случае нормализуется все помещение в целом (оборудование, мебель, основные функциональные зоны и планировочное решение). Например, санитарные узлы в жилых домах, школьные, классы, спортивные залы, больничные палаты, операционные.

Вторая степень нормализации распространяется на помещения с функциональным и технологическим процессом, допускающим варианты планировки и соответственно различные габариты помещений. При этом нормализуются функциональные зоны и даются различные примеры планировки помещений. Например, комнаты и кухни в жилых домах, зрительные залы, лечебные кабинеты в больницах и т.п.

Третья степень нормализации объемно-планировочных элементов относится к помещениям, в которых функциональный процесс не имеет строгой определенности. Нормируется только площадь помещения. Здесь целесообразны нормализация оборудования и мебели, а также варианты планировки помещений, например фойе в клубах и кинотеатрах, помещения для дневного пребывания больных в больнице, гостиные и поэтажные холлы в гостиных.

Состав нормалей в зависимости от принятой степени нормализации помещений может быть полным или неполным. В полный состав нормалей и объемно-планировочных элементов входят: система функциональной взаимосвязи помещений (в соответствии с общей объемно-планировочной структурой зданий); нормативные исходные данные; антропометрические и эргономические данные; номенклатура мебели и оборудования (со ссылками на соответствующие ГОСТы, ТУ, каталоги); типы и габариты мебели (передвижной и встроенной) и оборудования (технологического, санитарно-технического, электротехнического) со схематическими чертежами и размерами; основные функциональные зоны (планы, разрезы или развертки с размещением мебели и оборудования); функциональные или технологические габаритные схемы помещений (или объемно-планировочных элементов) с расположением оборудования и мебели, указанием их размеров и минимальных нормативных расстояний между предметами мебели и оборудования.

При первой степени нормализации объемно-планировочного элемента или при необходимости проектирования и эксплуатации данного помещения с учетом специфики разрабатываются также разделы: планировочные схемы помещений (применительно к основным конструктивным системам и унифицированным модульным параметрам); схемы расположения элементов инженерного оборудования помещений (санитарно-технического, электротехнического, слаботочного, технологического); требования к отделке помещений; примеры планировки групп помещений или фрагментов зданий.

Нормалями предусматривается применение планировочных элементов для полносборного строительства зданий крупнопанельной и каркасной конструкции, а также зданий с несущими стенами из кирпича или блоков. Планировочные решения в основном рассчитаны на обычные условия строительства во II - III климатических районах СССР.

На схемах функциональных зон и на общих габаритных функциональных схемах указываются две категории размеров: размеры элементов оборудования и отдельные твердо установленные параметры, минимальные размеры со знаком «³» (т.е. больше или равно). На некоторых листах минимальные размеры оговорены примечанием, в этом случае знак «³» опускается.

На схемах планировки помещений, разработанных применительно к основным конструктивным системам, указаны унифицированные модульные параметры с учетом опыта проектирования и рекомендаций научно-исследовательских институтов. На этих чертежах приводятся точные размеры всех элементов планировки и привязки конструктивных элементов к модульным разбивочным осям.

При разработке планировочных схем учтено требование СНиП в применении размеров продольных и поперечных шагов, кратных наиболее крупным из установленных производственных модулей 60М и 30М (600 и 300 см), а в некоторых случаях, преимущественно для жилых зданий, кратных 12М (120 см). Применение модуля 6М (60 см) предусматривается до 720 см, а модуля 3М (30 см) - до 360 см (при обосновании - до 720 см).

Высота этажа жилых домов принимается равной 2,8 м (для некоторых районов СССР 3 м в соответствии со СНиП II-Л.1-71), общественных зданий - 3,3 м, зальных помещений - кратной 6М (60 см).

Размеры на чертежах планировочных элементов указаны в см, размеры на чертежах оборудования - в мм.

Для маркировки выпусков нормалей приняты следующие буквенные и цифровые обозначения: НП - нормали планировочные. Следующие цифры обозначают: первая - порядковый номер раздела, который включает группу видов зданий, объединяемых по однородным функциональным признакам, вторая - порядковый номер главы, которая включает определенный вид здания, третья цифра - тип здания (сооружения) пли группу основных помещений в данном типе здания. После дефиса указан год утверждения нормалей.

Например, маркой НП 1.7-82 обозначено: НП - нормали планировочные; 1 - нормали основных помещений жилых зданий; 7 - помещения психоневрологических интернатов; 82 - год утверждения.

Данный выпуск нормалей НП 1.7-82 «Психоневрологические интернаты» входит в состав серии нормалей планировочных элементов жилых и общественных зданий и предназначен для проектирования вновь строящихся и реконструируемых зданий и сооружений психоневрологических интернатов, предназначенных для проживания лиц с психоневрологическими отклонениями.

Работа основывалась на изучении научных медицинских данных СССР и других стран, консультаций главных специалистов Министерства социального обеспечения РСФСР, Министерства здравоохранения СССР, Гипронииздрава, Институтов психиатрии Министерства здравоохранения СССР, дефектологии Академии педагогических наук СССР, на анализе анкетных данных, полученных от директоров интернатов, натурных обследований интернатов в городах и областях РСФСР и других республик (гг. Москва. Ленинград, Свердловск, Тюмень, Ростов-на-Дону, Киев, Черновицы, Горький).

В зависимости от состояния здоровья для проживающих в интернате лиц установлено три режима содержания (свободный, наблюдательный, постельный) с различной степенью бытового и медицинского обслуживания. В нормалях разработаны планировочные элементы жилых, обслуживающих и общественных помещений для этих трех типов (режимов) содержания.

Выпуск НП 1.7-82 «Психоневрологические интернаты» состоит из следующих разделов:

I - исходные данные (схемы взаимосвязи помещений, антропометрические и нормативные данные);

II - группы жилых помещений (три типа содержания людей);

III и IV - группы общественных помещений (обеденный и зрительный залы);

V - лечебно-производственные мастерские;

VI - помещения медицинского пункта.

Группы жилых помещений. Для нормализации объемно-планировочных элементов психоневрологических интернатов, структуры здания в целом требовалось тщательное исследование традиционного отечественного опыта строительства и эксплуатации, изучение подобных типов зданий в других странах, изучение медицинских и других научных требований, предъявляемых к проектированию и строительству.

Особенно важными при нормализации являются психологические требования. Одним из них (по отечественным и зарубежным научным данным) является создание «домашней» обстановки, т.е. создание условий, максимально приближенных к обычным нормальным условиям жизни и быта человека. В решении архитектурно-планировочных элементов это может быть выражено в виде групп жилых помещений, включающих набор жилых комнат и помещений первой необходимости быта - ванная, уборная, общая комната отдыха, кладовая чистого белья (лист 4).

Особенностью такой жилой группы в отличие от обычного общежития или дома для престарелых является необходимость санитарно-медицинского поста. Пост должен иметь свою зону в коридоре при жилой группе. Его оборудуют двумя стульями или креслами и столом с расположенным на нем аппаратом связи поста с медицинской частью и жилыми комнатами. На столе желательно иметь вазу с цветами. Пост должен иметь вид мебельной группы для отдыха или бесед персонала с проживающими, что важно для их контакта, незаметного н тактичного наблюдения (лист. 14).

Важным психологическим фактором при организации таких жилых групп является ограничение вместимости жилых комнат. Так, для свободного и наблюдательного содержания проживающих в психоневрологических интернатах исходя из существующих возможностей вместимость жилой комнаты принята 4 чел., а для постельного содержания - 6 чел. Во всех жилых группах необходимо иметь одну - две комнаты на одного - двух человек для изоляции проживающих с сохраненным интеллектом или находящихся в плохом состоянии (листы 15 - 26).

Гигиенические качества жилища должны обеспечивать необходимый объем воздуха в помещениях, особенно в жилых комнатах, и его обмен. Объем воздуха обеспечивается высотой и площадью помещения. Площадь жилых комнат принята 7 м2 на одного человека при высоте этажа 2,8 м для свободного и наблюдательного содержания и 3,3 м2 для постельного. Интенсивность обмена воздуха может быть увеличена установкой бытовых кондиционеров.

Функциональные требования к помещениям должны обеспечивать необходимый подход к мебели и оборудованию для пользования ими и уборки (лист. 14). Площадь на одного человека - 7 м2 - отвечает этим требованиям, учитывая набор оборудования и мебели по существующему перечню. Мебель в жилых помещениях принята по альбому технических требований, разработанному специально для этих типов зданий отделом интерьеров ЦНИИЭП жилища. В этом альбоме представлена номенклатура мебели, предусмотренная Министерством социального обеспечения РСФСР для психоневрологических интернатов и домов-интернатов для престарелых. Сюда входят мебель для жилых комнат - кровать, тумбочка, шкафы; мебель для комнат отдыха - шкаф для выставок, подставка под телевизор, кресла, стулья. Необходимо учесть также простоту уборки мебели и оборудования. Поэтому мебель следует обивать моющимися материалами (например, поливинилхлоридной пленкой - текстовинитом).

При приведении к модульным шагам в зависимости от параметров, принятых для той или иной серии жилых зданий, на которые ориентирована индустриальная база строительства, комната на два человека может быть размещена при продольном шаге 3,3 - 3,6 м; комната на четыре человека в пределах 4,5 - 4,8 м; комнаты на 6 чел. в пределах 5,4 - 6,6 м. Поперечные шаги также могут быть выбраны из числа модульных размеров с учетом соблюдения нормализации помещений.

Группировка жилых помещений отвечает также и другим важным требованиям: дифференциации проживающих по состоянию здоровья, изоляции во время возможных эпидемий и, кроме того, дает возможность более тщательного наблюдения и обслуживания.

Жилые комнаты в психоневрологических интернатах не имеют прикомнатных санитарно-технических узлов. Ванные комнаты, уборные и душевые являются общими на группу жилых помещений. Это обусловлено тем, что проживающие лица не могут аккуратно ими пользоваться и не редко выводят оборудование из строя. Поэтому в общих санитарно-технических узлах легче организовать наблюдение и уборку.

В санитарно-технических узлах должна быть обеспечена возможность проезда медицинской каталки и коляски, установки подъемных механизмов для опускания в ванну лиц, находящихся на постельном режиме (листы 30 - 32).

Группы общественных помещений. Дом-интернат - это сложный, многофункциональный комплекс помещений, куда кроме групп жилых и подсобных помещений включены группы общественных помещений культурно-массового назначения (зрительный зал и помещения кружков), помещения для приема пищи (обеденный зал и пищеблок), а также мастерские трудотерапии, кабинеты для медицинского обслуживания, хозяйственные помещения и др. (лист 1).

Нормативные данные по этим помещениям в основном идентичны нормам соответствующих помещений домов-интернатов для престарелых и лечебно-профилактических и оздоровительных учреждений. Что же касается принципа расстановки мебели и оборудования в обеденных залах и мастерских трудотерапии, то по сравнению с нормалями домов-интернатов для престарелых здесь имеются отличия. Расстановка мебели должна быть более простой и удобной для проживающих и обслуживающего персонала. Проходы между мебелью должны быть четкие и просторные. В данном выпуске нормалей приведены планировочные элементы помещений обеденных залов с примерами расстановки столов на 100, 200, 300 и 400 мест (листы 34 - 35).

Обеденные столы приняты в основном двух типов: размером 120´80 и 90´90 см на четыре человека. Первый тип стола дает более компактную расстановку, поэтому применяется в залах большой вместимости. В залах вместимостью 300 - 400 мест для более удобной расстановки можно применять дополнительно столы на два человека размером 80´60 см.

При обеденном зале в психоневрологических интернатах необходимо размещать санитарные узлы и помещения для мытья рук.

При проектировании зрительных залов следует учитывать несколько кресел-колясок, устанавливаемых в первом ряду (лист. 36).

Для культурно-массовой работы и работы по социальной адаптации в психоневрологических интернатах необходимы дополнительные помещения, например помещения для кружка по домоводству, приготовления пищи, сервировки стола и др. (лист. 37).

Медицинский пункт по набору помещений и их площадям по сравнению с домами-интернатами для престарелых имеет ряд особенностей - дополнительные помещения для специализированной процедурной, увеличение площади помещения палат приемного отделения и изолятора и др. Помещения изолятора и палат приемных целесообразно проектировать блокированно для возможности увеличения площади того или другого помещения при необходимости (лист. 49).

Помещения обслуживания психоневрологических интернатов по сравнению с домами-интернатами для престарелых имеют еще важную особенность. Так как основную часть времени люди проводят в трудовых мастерских, комнатах культурно-массовой работы, отдыха, на прогулке, то в этих помещениях необходимо обеспечить достаточную их обзорность.

Лечебно-производственные мастерские. Особенно важное значение для реабилитационной направленности психоневрологических интернатов имеют трудовые мастерские. По сравнению с домами для престарелых, где проживающие занимаются в трудовых мастерских (в основном картонажных и швейных) по желанию и возможности, в психоневрологических интернатах трудотерапия является основным методом лечения при социальной адаптации проживающих и входит в обязательный режим дня. В лечебно-производственных мастерских психоневрологических интернатов необходимо иметь достаточно большой набор помещений для разнообразных видов работ (столярных, слесарных, швейных и т.д.). Изучение современных медицинских и социальных требований, обследование существующих мастерских и пожелания специалистов послужили основанием для включения в номенклатуры мастерских нового профиля (сборки радио- и электроаппаратуры и др.).

При составлении нормалей большое внимание уделялось натурным обследованиям мастерских в существующих интернатах, анализу проектов мастерских психоневрологических интернатов, изучению отечественных и зарубежных научных данных. Натурные обследования и нормализация планировочных элементов мастерских дали возможность убедиться, что нормативная площадь на одно рабочее место 4,5 м2, принятая в интернатах для престарелых, достаточна. При наличии крупногабаритных станков в механических мастерских площадь на одно рабочее место увеличивают до 5,5 м2 на одно рабочее место.

В Московском психоневрологическом интернате № 16 построено здание лечебно-производственных мастерских. В нем размещены:

1) картонажные мастерские - резка больших листов картона на специальных станках для коробок под телевизоры, их сборка и сшивка, изготовление коробок для обуви и кондитерских изделий;

2) клеевой цех - склеивание пакетов для почтамта;

3) швейный цех - пошив постельного белья и других изделий для нужд интерната;

4) механические мастерские - резка проволоки для скрепления коробок и др.

На первом этаже здания расположена картонажная мастерская, имеющая крупногабаритные станки для резки картона. Такое расположение вызвано еще и тем, что для работы мастерской требуется большое количество сырья, а в здании всего один лифт.

На первом этаже размещены также комнаты начальника мастерских, старшего мастера, механика, завхоза, бухгалтерии. На втором этаже расположены остальные мастерские, в подвальной части - склад. Туалетные комнаты находятся на обоих этажах.

Положительное значение отдельно стоящего здания лечебно-производственных мастерских заключается в том, что жилая часть интерната удалена от шумных помещений мастерских и, что особенно важно, для проживающих создана атмосфера обычной работы на промышленном предприятии, которая способствует улучшению состояния их здоровья.

Следует сказать, что типовые проекты отдельно стоящих зданий мастерских отсутствуют. В единственном типовом проекте психоневрологического интерната на 300 мест, разработанном Проектным институтом Министерства здравоохранения РСФСР, спроектированы помещения картонажных, слесарных и швейных мастерских. Расположение картонажных мастерских по этому проекту на втором этаже можно считать неудачным, так как приводит к большим трудностям в доставке картона в мастерскую. Недостатком является и то, что комната инструктора расположена далеко от помещения производственных мастерских, отсутствует зона или комната отдыха. Кроме того, в связи с сыростью в подвальном помещении картон имеет повышенную влажность.

Мощность лечебно-производственных мастерских в психоневрологических интернатах зависит от трудоспособности проживающих и определяется формой содержания больных - свободной, наблюдательной, постельной. Так, при свободном содержании необходимы мастерские на 100 % проживающих и наиболее сложный профиль работы (сборка радио- и электроаппаратуры, столярные, слесарные работы и т.д.). Располагать мастерские необходимо в отдельно стоящем здании (лист. 42).

Лица, находящиеся на наблюдательном содержании, могут заниматься только простыми видами работ (картонажные) в мастерских, расположенных при жилых группах. Мастерские в этом случае рассчитывают на 50 - 60 % проживающих. Лица, находящиеся на постельном содержании, трудиться практически не могут, только 10 - 20 % из них может заниматься простыми работами (вязание сеток и т.п.) на местах.

Структура сооружений. В решении общей структуры сооружения необходимо стремиться к созданию для проживающих в интернате привычных нормальных условий. Это можно обеспечить выделением жилой зоны и зоны труда. Лечебно-производственные мастерские при свободном содержании проживающих рекомендуется выделять в отдельно стоящие трудовые центры. Это дает возможность создать впечатление работы на обычном промышленном предприятии.

Для организации общения лиц при свободном их содержании обеденный и зрительный зал необходимо выделять. При этом образуется общественный и культурный центр.

Как показывают медицинские данные, определенные в Положении МСО РСФСР, и многочисленные обследования, проживающие в интернатах лица с различной формой содержания имеют различную трудовую, социально-бытовую и культурную активность. Состоянию их здоровья соответствует вид обслуживания и, следовательно, состав помещений, применяемые оборудование и мебель.

Состояние здоровья проживающих в интернате определяет общую структуру сооружений. Так, если для лиц, находящихся на свободном содержании, необходимы общие обеденные и зрительные залы, а также лечебно-производственные мастерские в отдельном корпусе, то для лиц, находящихся под постоянным надзором, столовые должны быть при жилых комнатах. Заниматься трудом они могут только в комнатах трудотерапии при жилых группах. Лица, находящиеся на постельном режиме, трудиться практически не могут (часть проживающих), а принимают пищу на своих местах.

Общую структуру типов зданий определяют также различные типообразующие планировочные элементы, необходимые их взаимосвязи. Основная задача нормализации планировочных элементов жилых и общественных помещений психоневрологических интернатов - выявление факторов, влияющих на улучшение условий жизни инвалидов по психическому заболеванию, на реабилитационную направленность в организации их жилища.

Последние научные данные говорят о возможности возникновения «госпитального регресса» у людей свободного содержания при помещении их в больничную обстановку. Во избежание этого явления, противоречащего общей реабилитационной направленности интернатов, больничный тип зданий может быть предназначен только для лиц постельного содержания.

Реабилитация в интернатах осуществляется по системе: группы жилых помещений - жилое отделение - социально-трудовой и культурный центр. Проектирование психоневрологических интернатов с учетом научно обоснованной структуры сооружений должно способствовать улучшению функционирования психоневрологических интернатов.

РАЗДЕЛ I

Исходные данные

(листы 1 - 3)

Описание: iii

В зависимости от состояния здоровья проживающих в интернате лиц и установленных трех типов содержания (свободный, наблюдательный, постельный) психоневрологические интернаты проектируют следующих типов:

I - реабилитационный профиль (для свободного содержания);

II - лечебно-восстановительный профиль (для наблюдательного содержания);

III - интенсивный медицинский уход (для постельного содержания);

комплексы, включающие изолированные отделения для содержания различного типа.

Описание: iii

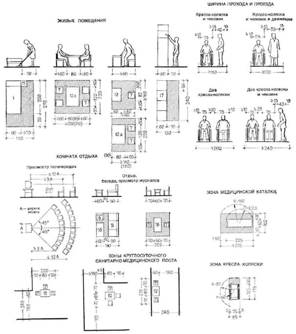
I - зона удобного размещения устройств, обслуживаемых руками;

II - оптимальное рабочее пространство;

III - рабочая зона рук.

Примечания: 1. Размеры в скобках относятся к данным для женщин.

2. Данные приведены по «Антропометрическому атласу». М., 1977 и нормалям планировочных элементов жилых и общественных зданий НП 1.4-75. «Дома-интернаты для престарелых».

Различное состояние здоровья проживающих в интернатах обусловливает различные структуры сооружений. Если для людей, находящихся на свободном содержании, необходимы общие обеденный и зрительный залы, лечебно-производственные мастерские в отдельном корпусе, то для людей, требующих постоянного наблюдения, они не нужны, так как эти люди принимают пищу в столовых при жилых комнатах. Заниматься трудом они могут только в комнатах трудотерапии при жилых группах. Люди, находящиеся на постельном режиме, трудиться практически не могут, а питаются они на местах. Таким образом, набор общественных и медицинских помещений, а также связь жилья с общественными помещениями зависят от типа содержания проживающих.

Различные типообразующие планировочные элементы и функциональные связи определяют структуру и тип интерната.

Площадь помещений, м2, входящих в жилую группу помещений на 25 чел.

Тип содержания

Вместимость жилых комнат, чел.

Комната отдыха

Столовая в группе

Кухня-раздаточная

Санитарно-медицинский пост

Санитарная комната

Комната бытовых нужд

Общая гардеробная

1

2*

3

4

6

Свободное

9

14

21

28

-

1

-

-

10

-

12

-

Наблюдательное

9

21

28

-

1,4

1,4

14

10

-

-

15

14

25

Постельное

9

14

21

28

42

-

-

14

10

15

-

-

15

* Площадь комнат на 2 чел. и более принята из расчета 7 м2 на 1 чел.

Площадь, м2, подсобных помещений на четыре группы жилых помещений

Тип содержания

Комната медицинской сестры

Комната врача

Процедурная

Бельевая

Комната персонала

Комната сестры-хозяйки

Санитарная комната

Кружковая

Комната трудотерапии

Комната инструктора

Курительная

Комната сушки одежды

Свободное

10

12

-

15

8

10

15

18

-

-

15

15

Наблюдательное

10

12

12

15

8

10

15

15

40

12

-

15

Постельное

10

12

12

15

8

10

-

-

-

12

-

15

Площадь общественных помещений, м2, на одно место

Обеденный зал ........................ 1,4

Зрительный зал ....................... 0,9

Лечебно-производственные мастерские 4,5 - 5,5

Нормативные данные общественных помещений, медпункта, а также других служебных и хозяйственных помещений приняты в соответствии с «Инструкцией по проектированию психоневрологических интернатов» (СН 532-81).

РАЗДЕЛ II

Группы жилых помещений

(листы 4 - 33)

ОТДЕЛЕНИЕ СВОБОДНОГО СОДЕРЖАНИЯ

Описание: iii

ОТДЕЛЕНИЕ НАБЛЮДАТЕЛЬНОГО СОДЕРЖАНИЯ

Описание: iii

ОТДЕЛЕНИЕ ПОСТЕЛЬНОГО СОДЕРЖАНИЯ

Описание: iii

 

№ п.п.

Наименование изделия

Схема

Габариты

l

b

h

1

Кровать

2000

900

650

2

Кровать с вкладными спинками

2000

900

650

3

Кровать металлическая на колесах*

2000

900

650

4

Лежак (для сна на открытом воздухе)

1900

800

500

5

Диван

2000

900

500

 

 

№ п.п.

Наименование изделия

Схема

Габариты

l

b

h

6

Кресло для отдыха

600

600

500

7

Стул

Описание: iii

420

400

450

8

Банкетка мягкая

Описание: iii

900

450

500

9

Скамья для коридоров

1800

450

500

10

Скамья для ног

500

250

250

 

 

№ п.п.

Наименование изделия

Схема

Габариты

l

b

h

11

Тумбочка прикроватная

Описание: iii

400

350

650

12

12а

Стол обеденный

Описание: iii

800

600

700

1200

800

13

Стол надкроватный

Описание: iii

920

500

750

950

14

Стол надкроватный

1000

450

950

 

 

№ п.п.

Наименование изделия

Схема

Габариты

l

b

h

15

Стол кроватный

Описание: iii

900

400

300

16

Стол журнальный

400

350

650

17

Шкаф для одежды и белья

Описание: iii

600

600

1300(h1)

1200

600

1900(h2)

1300(h1)

1900(h2)

 

 

№ п.п.

Наименование изделия

Схема

Габариты

 

l

b

h

 

18

Шкаф сушильный для одежды и обуви:

600

600

2400

1000

1 - рейки размером 30´30´600 мм

2 - приток холодного воздуха

3 - отопительный прибор

19

Шкаф для хозяйственного инвентаря

Описание: iii

600

600

2050

400

 

 

№ п.п.

Наименование изделия

Схема

Габариты

l

b

h

20

Шкаф для ванны подвесной

1200

300

900

21

Шкаф для посуды и личных вещей подвесной

Описание: iii

1200

300

900

 

 

№ п.п.

Наименование изделия

Схема

Габариты

l

b

h

22

Стеллаж стеклянный для выставок и цветов

900

450

800(h1)

1200

1800

1400(h2)

23

Подставка под телевизор

Описание: iii

1200

650

700

800

400

24

Стул туалетный

600

600

680(h1)

450(h2)

 

 

№ п.п.

Наименование изделия

Схема

Габариты

 

l

b

h

 

25*

Вешалка для верхней одежды*

2500

500

165

 

26

Ограждение радиаторов отопления*:

500

-

80

1000

60

1500

90

1 - железобетонный подоконник

2 - деревянный подоконник

Описание: iii

 

Примечание: 1. Номенклатуру и габариты мебели см. на листах 5 - 12.

2. В скобках даны модульные размеры.

* Мебель, отмеченная звездочкой, выполняется по заказу.

Описание: iii

Примечание. Для удобства пользования ванной лицами, проживающими в психоневрологическом интернате, ее дно должно быть расположено на уровне пола (см. поз. 9).

Описание: iii

Примечания: 1. В скобках даны модульные размеры.

2. Номенклатуру и габариты мебели см. на листах 5 - 12.

СВОБОДНОЕ СОДЕРЖАНИЕ

Описание: iii

Описание: iii

В зависимости от типа содержания проживающих в психоневрологических интернатах - свободного, наблюдательного, постельного - жилые комнаты оснащаются различными мебелью и оборудованием. Различны и объемно-планировочные решения жилых комнат.

Площадь жилой комнаты на одного человека принята 9 м2. В соответствии с санитарно-гигиеническими требованиями норма площади на одного человека в комнатах на два человека и более принята 7 м2 при высоте помещений 2,5 - 3 м. Интенсивность обмена воздуха может быть увеличена за счет установки бытовых кондиционеров. Принятая норма площади обеспечивает удобный подход к мебели и оборудованию, предусмотренный в жилых комнатах.

Примечание. Номенклатуру и габариты мебели см. на листах 5 - 12.

СВОБОДНОЕ СОДЕРЖАНИЕ

Описание: iii

Описание: iii

Важное требование при организации жилых помещений - ограничение вместимости комнат. Так, для лиц, находящихся на свободном содержании, допустима вместимость не более четырех человек. В комнате предусмотрены кровать и прикроватная тумбочка для каждого проживающего, обеденный стол, стулья. Кроме того, лица, находящиеся на свободном содержании, могут приобрести дополнительные вещи: телевизор, радиоприемник, холодильник, аквариум для рыб и т.д. В связи с этим в комнате необходимо предусмотреть дополнительное свободное пространство для этих вещей площадью 0,25 - 0,5 м2. В комнате на три и четыре человека такое пространство можно предусмотреть, в комнате на два человека (площадь 14 м2) можно расположить только подвесную полку.

Примечание. Номенклатуру и габариты мебели см. на листах 5 - 12.

СВОБОДНОЕ СОДЕРЖАНИЕ

Описание: iii

При организации интерьера необходимо стремиться к созданию домашнего окружения. Так, для хранения платья и личных вещей рекомендуется применять обычные шкафы для массового жилища, а не встроенные; для убранства комнат целесообразно использовать коврики, вазы с цветами, а также осветительную арматуру (бра, торшер) обычных жилых комнат. Рекомендуется иметь в комнате зеркало.

Примечание. Номенклатуру и габариты мебели см. на листах 5 - 12.

СВОБОДНОЕ СОДЕРЖАНИЕ

Описание: iii

Расположение кроватей играет существенную роль. Предпочтительным надо признать расположение одной кровати у стены, противоположной окну, так как при этом образуется свободная зона у обеденного стола и создается впечатление домашнего уюта.

Примечание. Номенклатуру и габариты мебели см. на листах 5 - 12.

СВОБОДНОЕ СОДЕРЖАНИЕ

Описание: iii

Шкафы не рекомендуется строго делить по числу проживающих, а использовать их для хранения белья, необходимой посуды, других вещей для всех проживающих в комнате.

Примечание. Номенклатуру и габариты мебели см. на листах 5 - 12.

НАБЛЮДАТЕЛЬНОЕ СОДЕРЖАНИЕ

Описание: iii

Площадь жилой комнаты на одного человека принята 9 м2. В комнате имеется кровать с прикроватной тумбочкой, стол, стул и ковер, так как люди, находящиеся на наблюдательном режиме, часто сидят на полу. В решении интерьера необходимо стремиться к привычной домашней обстановке. Платье и белье хранятся в гардеробных и бельевых комнатах, поэтому шкаф в жилой комнате для данного контингента проживающих не предусмотрен.

Примечание. Номенклатуру и габариты мебели см. на листах 5 - 12.

НАБЛЮДАТЕЛЬНОЕ СОДЕРЖАНИЕ

Норма площади жилой комнаты на два - четыре человека для лиц, находящихся на наблюдательном содержании, принята 7 м2 на одного человека.

Предусмотрено расположение кроватей вдоль стен. При этом варианте создается домашняя обстановка. Поскольку люди, находящиеся на данном режиме содержания, часто сидят на полу, для них рекомендуется предусматривать зону со специальным ковриком из моющегося материала (пористая резина и т.д.).

Для данного контингента особенно важным является простота уборки, поэтому для обивки мебели предлагается использовать моющиеся материалы (например, поливинилхлоридная пленка - текстовинит).

Примечание. Номенклатуру и габариты мебели см. на листах 5 - 12.

НАБЛЮДАТЕЛЬНОЕ СОДЕРЖАНИЕ

Описание: iii

В решении интерьера жилых комнат необходимо стремиться к созданию привычной домашней обстановки. При наблюдательном содержании это сложнее осуществить, так как многие предметы, создающие впечатление домашнего уюта, здесь применить нельзя, например, осветительную арматуру - бра, торшеры, обычные домашние коврики, зеркала и т.д. Для освещения в этих помещениях рекомендуются потолочные плафоны.

Примечание. Номенклатуру и габариты мебели см. на листах 5 - 12.

НАБЛЮДАТЕЛЬНОЕ СОДЕРЖАНИЕ

Описание: iii

Для медицинского и специального обслуживания больных на каждые четыре группы жилых помещений предусматриваются специальные помещения, состав и площади которых приведены в «Инструкции по проектированию психоневрологических интернатов» (СН 532-81) и на листе 3.

Примечание. Номенклатуру и габариты мебели см. на листах 5 - 12.

НАБЛЮДАТЕЛЬНОЕ СОДЕРЖАНИЕ

Описание: iii

В жилых комнатах, ванных комнатах, а также душевых необходимо предусматривать возможность проезда медицинской каталки. В группах жилых помещений при комнатах для сушки одежды следует предусматривать балкон или лоджию. Жилые помещения для наблюдательного и постельного содержания должны соединяться с общественными зданиями интерната теплым переходом.

Примечание. Номенклатуру и габариты мебели см. на листах 5 - 12.

ПОСТЕЛЬНОЕ СОДЕРЖАНИЕ

Описание: iii

Жилые комнаты для больных, находящихся на постельном режиме, предназначены для практически прикованных к постели людей, поэтому мебель здесь должна быть специальная. Кровать изготовляется по заказу с откидывающимся ограждением высотой 15 - 20 см. Для принятия пищи в кровати применяются различные типы надкроватных столов. Стол и два стула необходимы в основном для обслуживающего и медицинского персонала (для размещения подноса с едой и т.д.).

Примечание. Номенклатуру и габариты мебели см. на листах 5 - 12.

ПОСТЕЛЬНОЕ СОДЕРЖАНИЕ

Описание: iii

Санитарно-технические узлы (ванные комнаты, умывальные, уборные и душевые) в психоневрологических интернатах целесообразно располагать отдельно от жилых комнат в виде санитарно-технических узлов общего пользования на группу жилых помещений (блок-квартиру) для 25 чел. Это обусловлено тем, что проживающие не могут аккуратно ими пользоваться и нередко выводят оборудование из строя. В общих санитарно-технических узлах при большом их пространстве легче организовать наблюдение и уборку.

При постельном содержании проживающих для некоторых лиц, способных к передвижению, может быть оборудован прикомнатный санитарный узел (унитаз, умывальник) или санитарный узел на две комнаты.

Примечание. Номенклатуру и габариты мебели см. на листах 5 - 12.

НАБЛЮДАТЕЛЬНОЕ СОДЕРЖАНИЕ

Описание: iii

СВОБОДНОЕ СОДЕРЖАНИЕ

Описание: iii

Комнаты отдыха входят в состав жилых помещений. В них предусматриваются зона для просмотра телевизионных программ и тихая зона. Комнаты оборудуют телевизором, установленным на особо прочном и устойчивом столе-подставке, мебелью для отдыха (кресла, диваны, стулья, журнальный столик, подставка для цветов). Здесь может также располагаться шкаф-стенд для выставок поделок из пластилина, дерева и т.д. Норма площади комнаты отдыха при свободном содержании 1 м2 на одного человека, при наблюдательном содержании - 1,4 м2. Увеличение площади связано с тем, что лица, находящиеся на наблюдательном содержании, в комнате отдыха проводят больше времени.

Примечание. Номенклатуру и габариты мебели см. на листах 5 - 12.

НАБЛЮДАТЕЛЬНОЕ СОДЕРЖАНИЕ

Описание: iii

Описание: iii

Для лиц наблюдательного содержания столовая располагается при группах жилых помещений. Она блокируется с кухней-раздаточной, оборудованной электроплитой, рабочим столом, мойкой, холодильником, навесными шкафами. Здесь же рекомендуется располагать грузовой подъемник и тележки для развоза еды.

Столовая рассчитана на 25 чел. с нормой площади 1,4 м2 на одного человека.

Примечание. Номенклатуру и габариты мебели см. на листах 5 - 12.

Описание: iii

Описание: iii

Экспликация мебели и оборудования

2 - стол рабочий; 5 - шкаф доборный; 7 - шкаф настенный над рабочим столом; 8 - шкаф над мойкой; 10 - шкаф над доборным столом; 12 - шкаф под мойку; 15 - шкаф-подставка под холодильник; 16 - шкаф настенный резервный; 21 - плита электрическая; 27 - холодильник электрический; 28 - машина посудомоечная; 29 - водонагреватель; 30 - 31 - столы; 33 - стул; 34 - воздухоочиститель бытовой надплитный; 35 - светильник кухонный для местного освещения; 36 - подъемник грузовой; 37 - тележка

Нормативная площадь кухни-раздаточной на одну жилую группу равна 14 м2, с посудомоечной машиной - 25 м2.

Рабочий фронт кухонного оборудования на планах 2, 4 показан с использованием электрической плиты типа ЧРША-4, имеющей теплоизоляционные боковые стенки.

Описание: iii

Описание: iii

ЗОНА ОБСЛУЖИВАНИЯ БОЛЬНЫХ НА МЕДИЦИНСКОЙ КАТАЛКЕ

Описание: iii

Ванные комнаты в различных группах жилых помещений могут быть одинаковыми, но в них должны быть обеспечены проезд медицинской каталки и установка подъемного механизма для опускания в ванну людей, находящихся на постельном содержании. Душевые кабины рекомендуется располагать в общем помещении с ванной комнатой для создания большего пространства.

Примечание. 1. Номенклатуру и габариты санитарно-технического оборудования на планах 1 и 2 см. на листе 13.

2. Поручни и функциональные зоны приняты в соответствии с нормалями планировочных элементов жилых и общественных зданий НП 1.4-75 «Дома-интернаты для престарелых».

СВОБОДНОЕ СОДЕРЖАНИЕ

Описание: iii

НАБЛЮДАТЕЛЬНОЕ СОДЕРЖАНИЕ

Описание: iii

ПОСТЕЛЬНОЕ СОДЕРЖАНИЕ

Описание: iii

для лиц, пользующихся креслом-коляской

Описание: iii

УСТРОЙСТВА И ПРИСПОСОБЛЕНИЯ У УНИТАЗА И ДУШЕВОГО ПОДДОНА ДЛЯ МЫТЬЯ НОГ

Описание: iii

При постельном содержании устраивается кабина для некоторого числа лиц, способных к передвижению. Кабина рассчитывается на 2 - 3 комнаты.

Санитарные узлы в зависимости от состояния здоровья имеют разное оборудование: при свободном содержании устраивают кабины с унитазом и рукомойником; при наблюдательном содержании унитазы и рукомойники устанавливаются без кабин. Помещение умывальной (три умывальника и два поддона для ног) размещают смежно с уборными. Смывные бачки рекомендуется устраивать скрытыми за перегородкой или применять смывные краны.

Примечание. Номенклатуру и габариты санитарно-технического оборудования см. на листе 13.

СПЕЦИФИЧЕСКИЕ ДЕТАЛИ

Описание: iii

1 - настенный поручень, устанавливаемый на пути передвижения людей. Высота от пола 0,9 м; 2 - металлическая кровать на колесах с откидывающимся бортиком для людей, находящихся на постельном содержании: 3 - ограждающие веранды, состоящие из сплошного ограждения и металлической сетки высотой 1 м; 4 - устройство для сушки постелей (деревянный настил на металлических трубах, по которым протекает горячая вода)

ВАРИАНТЫ БЛОКИРОВКИ ПОМЕЩЕНИЙ

Описание: iii

ПОМЕЩЕНИЕ ДЛЯ СЛИВА И МОЙКИ СУДЕН

Описание: iii

Функциональные зоны

А - зона слива, мытья и стерилизации суден и сушки клеенок;

Б - зона хранения предметов уборки;

В - зона сортировки и временного хранения грязного белья;

Г - замочка грязного белья

Номенклатура оборудования санитарной комнаты

Наименование

Марка

Габариты, мм

Завод-изготовитель

1

Установка для мойки суден

Э-54

650´525´1310

Одесский завод электромедицинской аппаратуры

2

Слив больничный «Видуар»

Э-2

450´500´480

Кировский завод «Стройфаянс»

3

Мойка инвентарная

Э-21

600´600´150

Кировский чугунолитейный завод

4

Мойка для клеенок

Э-23

1400´450´700

Эмальзавод им. Артема, Ворошиловград (по заказу)

5

Умывальник

Э-43

600´480´260

Кировский завод «Стройфаянс»

6

Шкаф встроенный

-

Индивидуальное изготовление

7

Стол производственный

К-95

1000´600´900

Индивидуальное изготовление

8

Шахта для сброса грязного белья

Æ 40

-

9

Тележка для грязного белья

М-38

600´500´1000

Днепропетровский завод металлоизделий

10

Ванна керамическая

Э-18

1890´780´450

Кировский завод «Стройфаянс»

11

Табурет винтовой

24

Æ 270

Киевский завод медоборудования

КОМНАТА ДЕЖУРНОЙ МЕДИЦИНСКОЙ СЕСТРЫ

Описание: iii

МЕСТО ХРАНЕНИЯ КАТАЛОК И КРЕСЕЛ-КОЛЯСОК НА ОДНУ ЖИЛУЮ ГРУППУ

Описание: iii

Марки оборудования, указанные в таблице, взяты из «Каталога медицинского оборудования», Гипронииздрав, 1969.

Примечание. Номенклатуру мебели и оборудования комнаты дежурной медицинской сестры см. на листах 44 - 47.

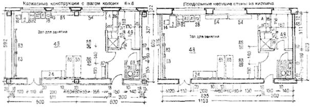
Типовой проект психоневрологического интерната на 630 мест, разработанный МНИИТЭП (поз. 1)

1 - жилая комната на четыре человека; 2 - жилая комната на два человека; 3 - жилая комната на одного человека; 4 - комната отдыха; 5 - столовая; 6 - умывальная и уборная; 7 - ванная; 8 - санитарная комната; 9 - помещение для каталок; 10 - гардероб; 11 - кабинет медсестры; 12 - пост медсестры

Типовой проект психоневрологического интерната на 300 мест, разработанный Проектным институтом Минздрава РСФСР (поз. 2)

1 - жилая комната на шесть человек; 2 - жилая комната на два человека; 3 - умывальная и уборная; 4 - душевые; 5 - подсобные помещения; 6 - процедурная; 7 - комната отдыха; 8 - комната для занятий; 9 - курительная

Варианты решения групп жилых помещений (поз. 3 и 4) предложены ЦНИИЭП жилища

А - группы жилых помещений; Б - общие помещения отделений; 1 - жилая комната на четыре человека; 2 - санитарный узел; 3 - комната отдыха

Описание: iii

РАЗДЕЛ III

Обеденные залы

(листы 32 - 33)

Описание: iii

СХЕМА ВЗАИМОСВЯЗИ ПОМЕЩЕНИЙ

Описание: iii

ОБЕДЕННЫЕ ЗАЛЫ НА 100 ЧЕЛ

Описание: iii

Описание: iii

Описание: iii

Экспликация к листам 34 и 35

1 - стол обеденный четырехместный 1200´800´730; 2 - стол обеденный четырехместный 900´900´730; 3 - стол обеденный двухместный 600´800´730; 4 - стул 420´420´440; А - зона для кресла-коляски

Предприятие-изготовитель изделий - Союзторгооборудование.

Функциональные размеры обеденных столов приняты по ГОСТ 17524.1-72*, стульев - по ГОСТ 17524.2-72*.

Обеденные столы первого типа дают возможность более компактной расстановки, поэтому их устанавливают в основном в залах большой вместимости. В залах вместимостью 300 - 400 чел. для более удобной расстановки можно использовать дополнительно столы на два человека размером 800´600 мм. При обеденном зале психоневрологических интернатов необходимы санитарные узлы и помещения для мытья рук.

ОБЕДЕННЫЕ ЗАЛЫ НА 200 МЕСГ

Описание: iii

ОБЕДЕННЫЕ ЗАЛЫ НА 300 МЕСТ

Описание: iii

ОБЕДЕННЫЕ ЗАЛЫ НА 400 МЕСТ

Описание: iii

Описание: iii

Примечания: 1. Экспликацию мебели см. на листе 34.

2. На планах обеденных залов приведена нормативная площадь из расчета 1,4 м2 на одного человека.

РАЗДЕЛ IV

Клубные помещения

(листы 36 - 37)

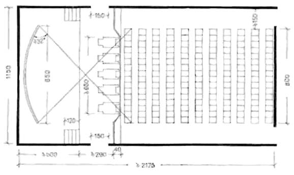
ЗРИТЕЛЬНЫЙ ЗАЛ НА 150 МЕСТ

Описание: iii

СХЕМА РАСПОЛОЖЕНИЯ ПУТЕЙ ЭВАКУАЦИИ

Описание: iii

Описание: iii

Примечания: 1. Расчетная норма площади зрительного зала на одно место 0,9 м2.

2. Зрительные залы следует проектировать с учетом установки в них полумягких или жестких кресел со стационарными сиденьями.

3. Кресла должны быть прикреплены к полу. Перед эстрадой предусматривается свободная площадка для размещения зрителей в креслах-колясках (1 - 2 ряда). Уровень пола в этой зоне опущен на 10 см. Зрители первого ряда отделены барьером высотой 80 см.

4. Расстояние между спинками кресел следует принимать не менее 105 см, число непрерывно устанавливаемых мест в ряду при односторонней эвакуации ряда - не более 12, при двухсторонней эвакуации ряда - не более 25.

КРУЖОК ДОМОВОДСТВА НА 10 - 12 ЧЕЛ.

Описание: iii

БИБЛИОТЕКА-ЧИТАЛЬНЯ (ХРАНИЛИЩЕ) НА 6 - 7 ЧЕЛ.

Описание: iii

Экспликация комнаты

1 - электроплита; 2 - рабочий стол; 3 - мойка; 4 - холодильник; 5 - стол доборный; 6 - стол обеденный; 7 - стулья; 8 - грузовой подъемник

Номенклатура мебели и оборудования библиотеки

Наименование

Марка

Габариты, мы

Завод-изготовитель

1

Стеллаж односторонний

МБ-13

Механический завод театрального и библиотечного оборудования. Саратов

2

Стеллаж двусторонний

МБ-11

То же

3

Стол для читателей (одноместный)

ММБ-1

900´600´730

Научно-производственное мебельное объединение «Стандард», Таллин

4

Стол для библиотекаря

668В

1500´750´750

То же

5

Стул рабочий

2-01-04-01

450´460´470

Мебельная фабрика, Рига

2-01-04-02

(12-730)

6

Стол с каталожным шкафом

-

450´600´900

Индивидуальное изготовление

7

Стенд-витрина настенная (отдельно стоящая)

-

1000´100´1400

То же

1000´250´2000

1200´400´1700

8

Стол журнальный

1-01-13-03

1200´600´600

Научно-производственное мебельное объединение «Стандард», Таллин

(600 - 1000)´(400 - 500)´(500 - 600)

9

Кресло полумягкое с подлокотниками

9-02-06-02

600´600´450

То же

2-02-06-03

(13-851)

РАЗДЕЛ V

Помещения лечебно-производственных мастерских

(листы 38-42)

МАСТЕРСКИЕ

Описание: iii

Описание: iii

Описание: iii

Примечания: 1. Для работ по сборке радио- и электроаппаратуры, а также столярных работ в летнее время у здания мастерских может быть устроен навес.

2. Функциональные зоны приняты в соответствии с нормалями НП 2.5-74 «Основные помещения техникумов».

ШВЕЙНАЯ МАСТЕРСКАЯ

Описание: iii

РАБОТА

Описание: iii

КАРТОНАЖНАЯ МАСТЕРСКАЯ

Описание: iii

ПЕРЕВОЗКА НА ТЕЛЕЖКЕ

Описание: iii

 

№ п.п.

Наименование

Габариты, мм

ГОСТ, марка или условный шифр по ЕНМ

Завод-изготовитель

1

Швейная машина со столом

1200´650´800

28 кл.

Подольский механический завод им. Калинина

2

Доска гладильная

1600´300´650´930

Торговая сеть

3

Стол для закройных работ

3200´1100´900

СЗРШ

То же

4

Стол для вышивания

1050´450´750

-

УБО Мосгорисполкома

5

Стол для изготовления сеток и картонажных работ

1200´600´750

То же

б

Машина для сшивания коробок

950´400´1250

-

Индивидуальное изготовление

7

Стол для сортировки и склеивания коробок

1150´450´750

-

УБО Мосгорисполкома

8

Шкаф отдельно стоящий

1500´600´2000

ШБ-2

Типовой проект № 64-028. альбом 4. Гипроторг, Москва

9

Шкаф встроенный пристенный

1050´650´3000

НО-10

ЦНИИЭП торговых зданий

1050´450´3000

НО-7

10

Стеллаж для хранения готовой продукции

1050´800´2500

СП-9

Типовой проект № 64-028. альбом 4. Гипроторг, Москва

1500´500´1750

СП-1

11

Стул с переменной высотой

440´448´ (350 - 800)

СР-1

Торговая сеть

12

Кресло для отдыха с подлокотниками

600´600´450

2-02-06-02

-

13

Стол для радиотехнических специальностей

1200´600´720

1-01-02-94

-

14 (27)

Стол преподавателя двухтумбовый

1200´750(600)´800

ГОСТ 18607-73

-

15 (28)

Стол-приставка

1100´700(450)´740

1-01-05-02

-

16 (31)

Стол для ремонта радиоприемников и телевизоров (стол радиомастера)

2100´850´800(1500)

1-01-10-29

-

17 (33)

Стол-верстак

900(1800)´600´720

1-01-03-04

-

18 (34)

Стол-верстак с тисками преподавательский

1659´600´850(750)

-

-

19 (36)

Верстак слесарный

1200´750´800

-

-

20 (37)

То же

960´670´1350

-

-

21 (54)

Стол инструментальный

650´450´900

1-01-03-19

-

22 (63)

Стул рабочий поворотный с регулируемым по высоте сиденьем (жесткий, полумягкий)

480´500´400 - 460

2-01-04-05

-

2-01-04-06

23 (64)

Стул рабочий поворотный передвижной

480´500´420 - 450

2-01-04-01

-

24 (67)

Скамья для гардероба

1200´370(300)´450(400)

2-04-03-05

-

25 (70)

Табурет рабочий, поворотный, регулируемый по высоте

400´450´(350 - 600)

2-06-02-03

-

26 (99)

Шкаф вытяжной

1500´(200, 250)´850´200

3-01-03-01

-

3-01-03-02

3-01-03-03

ГОСТ 18666-73

Тип II

27 (100)

Шкаф вытяжной

1500´(2000, 2500)´850´200)

3-01-03-04

3-01-03-05

3-01-03-06

ГОСТ 18666-73

Тип II

28 (101)

Шкаф вытяжной

2000(2500)´850´2500

3-01-03-08

-

3-01-03-09

ГОСТ 18666-73

Тип II

29 (102)

Шкаф секционный с меловой доской для слесарной и механической мастерских, комнаты инструктора, электромонтажных мастерских на 15 - 30 чел.

-

Секции шкафов:

А) П7ж, П11ж, П11ж, П7ж

3600´450´2100

-

Б) П7ж, П7ж, П11ж, П11ж, П7ж

4500´450´2100

-

В) П7ж, П7ж, П7ж, П11ж, П11ж, П7ж

5100´150´2100

-

 

 

№ п.п.

Наименование

Габариты, мм

ГОСТ, марка или условный шифр по ЕНМ

Завод-изготовитель

 

30 (103)

Шкаф секционный для инструментальной мастерской, складов материалов и ремонтной мастерской. Секции шкафа:

ГОСТ 18666-73

ГОСТ 18666-73

-

Тип II

Тип II

А) П1ж, Ш3ж, П1ж, Ш3ж, П1ж, Ш3ж

Б) П15ж, Ш3ж, П15ж, Ш3ж, П16ж, Ш3ж

Б) П6ж, Ш3ж, П6ж, Ш3ж, П15ж, Ш3ж

В) П14ж, Ш3ж

В) П6ж, Ш3ж, П6ж, Ш3ж, П6ж, Ш3ж, П15ж, Ш3ж, П15ж, Ш3ж, П1ж, Ш3ж

Г) П1ж, П6ж, П15ж

31 (105)

Шкаф инструментальный

1500´500´2000

ГОСТ 18666-73

-

Тип II

32 (108)

Шкаф закрытый для рабочей одежды на два человека

800´500´1650

ГОСТ 18666-73

-

Тип II

33 (113)

Шкаф для хранения одежды, спецодежды

600(900)´600(1500 - 1800)

3-01-10-02

-

 

34 (115)

Стеллаж

900´500´1800

-

-

 

35 (116)

Стеллаж деревянный

1500´500´1750

-

-

 

36 (117)

Стеллаж ячеистый

1200´450´200

-

-

 

37 (118)

Стеллаж (секция) универсальный

1050´450´(2000 - 2100)

3-02-03-06

-

 

38 (119)

Стеллаж унифицированный

1800´784´2000

-

-

 

39 (125)

Тумба для инструментов

(400 - 450)´(450 - 500)´(1050 - 1650)

3-04-01-03

-

 

40 (131)

Тележка для перевозки книг, приборов и др.

900´600´900

4-01-02-01

-

 

41 (132)

Тележка для перевозки различных грузов

900(1500, 300)´(550 - 1100)´900

4-01-02-03

-

 

42 (35)

Стол-верстак одноместный ученический слесарный

900´600´750

1-01-10-46В

-

 

900´600´800

1-01-10-47Г

 

900´600´850

1-01-10-48Д

 

43 (38)

Верстак демонстрационный

600´600(750)´(750 - 900)

-

-

 

44 (41)

Стол-подставка для разметочной и правочной плиты

1200´750´900(750)

1-01-03-15

-

 

45 (44)

Подставка под станковое оборудование

700(900)´900(720)´720(900)

1-01-03-05

-

 

46 (104)

Блок шкафов с меловой доской

3600´500´2200

ГОСТ 18666-73

-

 

Тип II

 

47 (138)

Доска приколочная (настенная)

1800´(4´450)´900

6-01-01-01

-

 

48 (159)

Станок токарно-винторезный 1П61

151 - 700´1350

-

-

 

49 (160)

Станок токарно-винторезный 1А616

2135´1225´1220

-

-

 

50 (162)

Станок токарно-револьверный 1Н318

2920´800´1555

-

-

 

51 (194)

Ростовая подставка

1500´700(50 - 150)

-

-

 

Примечания: 1. ЕНМ - Единая номенклатура мебели.

2. Номер изделия, данный в скобках, например 31(105), приведен в соответствии с номенклатурой мебели в нормалях «Основные помещения техникумов» НП 2.5-74.

ПОМЕЩЕНИЯ МАСТЕРСКИХ КАРТОНАЖНЫХ, ШВЕЙНЫХ, СБОРКИ РАДИО- И ЭЛЕКТРОАППАРАТУРЫ

Описание: iii

Особое значение для реабилитационной направленности психоневрологических интернатов имеют трудовые мастерские, так как трудотерапия в этих интернатах является основным методом лечения и входит в обязательный режим дня. Поэтому в них необходимо иметь помещения для разнообразных видов работ - столярных, слесарных, швейных, сборки радио- и электроаппаратуры и др.

Описание: iii

Описание: iii

ОТДЕЛЬНО СТОЯЩЕЕ ЗДАНИЕ МАСТЕРСКИХ (ПРЕДЛОЖЕНИЕ)

Описание: iii

Примечания: 1. Мастерские 1 - 3 приняты в соответствии с нормалями «Основные помещения техникумов» НП 2.5-74.

2. При мастерских можно устраивать навес для работы в летнее время.

3. Номенклатуру мебели и оборудования помещений 1 - 3 см. на листах 39 - 40.

Экспликация к помещениям 4 и 5

1 - мастерские; 2 - зона отдыха; 3 - кабинет инструктора; 4 - санитарные узлы; 5 - склад готовой продукции; 6 - курительная; 7 - грузовой подъемник; 8 - медпункт

РАЗДЕЛ VI.

Помещения медицинского пункта

(листы 43 - 50)

Описание: iii

КУШЕТКИ

Описание: iii

Примечания: 1. В скобках даны размеры при примыкании кабины к внутренней стене.

2. Функциональные зоны приняты соответственно нормалям планировочных элементов жилых и общественных зданий «Дома-интернаты для престарелых» НП 1.4-75.

3. Номенклатуру мебели и оборудования см. на листах 44 - 47.

 

№ п.п.

Индекс по каталогу* Гипронииздрав а

Наименование

Габариты, мм

Требуемая подводка

Предприятие-изготовитель, организация-поставщик, организация, распространяющая проекты, другие данные

1968 - 1969 гг.

1983 г.

1

10

13.01.04

Стол палатный

700´550´760

-

Каталог оборудования учреждений здравоохранения, Гипронииздрав

2

14

23.01.01

Стол врача однотумбовый

1050´650´760

-

То же

3

М-14

-

Столик инструментальный

660´400´805

-

Завод «Медоборудование», Одесса

4

М-15

21.05.02

Столик передвижной

922´432´897

-

То же

5

М-16

21.04.07

Стол перевязочный складной

1900´600´840

-

Каталог оборудования учреждений здравоохранения, Гипронииздрав

6

М-40

-

Стол массажный

600´450´750

-

То же

7

М-41

-

Стол под переносные аппараты УВЧ

600´450´750

-

»

8

И-13

08.02.03

Стол подъемный для офтальмологических приборов

500´500´690

-

Завод «Медоборудование», г. Елецк

9

-

23.01.02

Столик журнальный

10000´650´760

-

Гипронии, инв. № 106866/17

10

-

-

Стол для фотолаборатории

1300´650´900

-

Гипронии, инв. № 107589

11

С-27

12.05.03

Стол для стоматолога

600´450´850

-

Завод «Медоборудование», Днепропетровск

12

Б-34

-

Стол подсобный

1150´650´780

-

Предприятие «Дружба», Болгария

13

Ф-59

-

Стол-зонт

700´540´1750

Вытяжка 350 м3

Завод «Медтехника», Москва

14

54Б

23.02.04

Стул полужесткий

440´470´745

-

Каталог оборудования учреждений здравоохранения, Гипронииздрав

15

С-36

-

Стул вращающийся

550´550´760

-

То же

16

-

22.01.01

Банкетка

800´400´420

-

Предприятия бытового обслуживания

17

-

23.05.01

Банкетка

800´400´420

-

ЦНИИЭП торговых зданий

18

24

23.02.05

Табурет винтовой

Æ 270

Завод «Медоборудование», Каталог оборудования учреждений здравоохранения, Гипронииздрав пос. Досчатое Горьковской обл.

19

-

23.02.01

Кресло медицинское мягкое

-

-

Торговая сеть

20

-

-

Кресло полужесткое

-

-

Завод «Медоборудование», пос. Досчатое Горьковской обл.

21

Е-9

-

Кресло вращающееся

635´635´1625

-

То же

22

Г-5

-

Кресло гинекологическое универсальное

1655´950´1600

-

То же

23

С-18

-

Кресло зубоврачебное однотелескопическое

-

Завод «Медоборудование», Волгоград

 

 

№ п.п.

Индекс по каталогу* Гипронииздрава

Наименование

Габариты, мм

Требуемая подводка

Предприятие-изготовитель, организация-поставщик, организация, распространяющая проекты, другие данные

1968 - 1969 гг.

1983 г.

24

42а

23.03.02

Кушетка смотровая

1850´600´600

-

Каталог оборудования учреждений здравоохранения, Гипронииздрав

25

М-49

-

Кушетка для электролечения

2000´600´702

-

То же

26

-

-

Кушетка физиотерапевтическая

2000´700´552

-

По заказам

27

М-17

-

Кушетка для массажа

2000´800´800

-

Каталог оборудования учреждений здравоохранения, Гипронииздрав

28

53а

23.05.02

Тумбочка прикроватная

454´380´800

-

То же

29

22

Ширма трехстворчатая

1600´100´1700

-

»

30

М-23

21.08.02

Шкаф медицинский одностворчатый

600´416´1625

-

Завод радиоэлектронной медицинской аппаратуры Львов

31

М-24

21.08.01

Шкаф медицинский двухстворчатый

810´446´1602

-

То же

32

-

-

Шкаф для приборов

800´400´2000

-

Торговая сеть

33

Б-44

24.04.12

Шкаф лабораторный

1000´400´2250

-

ЦАНИИ, альбом чертежей аптек

34

Б-26

-

Шкаф для медикаментов по списку «А»

475´210´625

-

Торговая сеть

35

Ш-119а

24.04.10

Шкаф вытяжной химический

1360´850´2800

ХВ, ГВ; К; Э; газ

Гипронии, инв. № 111397

36

Ф-46а

-

Шкаф вытяжной физиотерапевтический

1500´600´1555

Э; вытяжка

Завод электромедицинской аппаратуры, Москва

37

-

22.01.26

Подставка для надевания обуви (банкетка)

340´200´170

-

Электрогорский мебельный комбинат

38

Ю-5

22.01.05

Вешалка на два крюка

340´185´100

-

Торговая сеть

39

-

-

Зеркало

600´500

-

То же

40

-

-

Ларь для грязного белья

600´400´500

-

По заказу

41

В-9

-

Весы медицинские

370´677´1430

-

Завод «Медоборудование», пос. Досчатое Горьковской обл.

42

В-20

-

Ростомер деревянный с откидной скамейкой

-

Каталог оборудования учреждений здравоохранения, Гипронииздрав

43

А-12

-

Стерилизатор электрический

748´516´1800

ХВ; К, Э

Производственное объединение «Красногвардеец», Ленинград

44

-

-

Стерилизатор

410´530´320

ХВ; К; Э

Завод медицинского оборудования и инструментов, Тюмень

45

А-15

18.02.10

Стерилизатор для медицинских инструментов

438´196´141

Э

То же

46

А-28

18.02.20

Стерилизатор сухожарный

528´615´550

Э

Завод «Медоборудование», Одесса

 

ПСИХОНЕВРОЛОГИЧЕСКИЕ ИНТЕРНАТЫ

МЕБЕЛЬ И ОБОРУДОВАНИЕ. НОМЕНКЛАТУРА

46

 

№ п.п.

Индекс по каталогу* Гипронииздрава

Наименование

Габариты, мм

Требуемая подводка

Предприятие-изготовитель, организация-поставщик, организация, распространяющая проекты, другие данные

1968 - 1969 гг.

1983 г.

47

Б-21

17.02.01

Дистиллятор

300´220´622

ХВ; К; Э

Производственное объединение «Красногвардеец». Ленинград

48

Л-57

-

Термостат электрический суховоздушный

620´600´1486

Э

Завод «Медоборудование», Одесса

49

Л-9

-

Весы аналитические

370´260´410

-

Весовой завод, Харьков

50

Х-4

-

Холодильник

590´680´1410

Э

Автозавод им. Лихачева, Москва

51

С-22

-

Установка стоматологическая универсальная

440´360´1960

Э

Завод «Медоборудование». Волгоград

52

Е-4

19.01.03

Аудиометр речевой

395´410´250

Э

Производственное объединение «Красногвардеец», Ленинград

53

Г-11

-

Кальпоскоп Гинзбурга

Æ 380;

Э

То же

54

Г-13

01.03

Светильник на шарнирно-выносном рычаге напольный передвижной

Æ 150;

Э

Завод Медаппаратура», Харьков

h = 1870

55

И-1

08.02.01

Осветитель таблиц для определения остроты зрения

555´100´780

Э

Завод электромедицинской аппаратуры. Свердловск

56

И-8

08.01.11

Офтальмометр

470´270´465

-

Завод «Медаппаратура», Харьков

57

И-9

08.01.12

Офтальмоскоп безрефлексный большой

600´410´630

-

Торговая сеть

58

И-12

-

Периметр проекционный

640´655´750

Э

То же

59

И-14

-

Щелевая лампа

509´412´495

Э

»

60

Ф-2

13.01.02

Аппарат для гальванизации настенный

210´100´160

Э

Завод электромедицинской аппаратуры, Свердловск

61

Ф-34

13.03.10

Облучатель ртутно-кварцевый маячный большой

Æ 450;

Э

То же

62

Ф-35

13.03.07

Лампа «Солюкс» стационарная

Э

»

63

Ф-70

-

Аэроионизатор электрический портативный

240´177´205

Э

Всесоюзное объединение «Союзмедтехника»

64

О-21

06.04.05

Палатка кислородная с ледяным охлаждением

1370´600´1650

Э

Завод протезных изделий. Харьков

65

О-26

-

Плита газовая бытовая

600´450´850

Газ

Завод домашних холодильников, Москва

66

-

-

Стиральная машина

Æ 470;

Э

Электромашиностроительный завод, Рига

67

Э-25

-

Полотенцесушитель трехъярусный

500´130´600

ГВ

Механический завод «Сантехприбор», Казань

68

Э-43

-

Умывальник прямоугольный со спинкой фаянсовый

ХВ; ГВ; К

Завод «Стройфаянс», Люберцы Московской обл.

69

-

-

Умывальник прямоугольный со спинкой фаянсовый

ХВ; ГВ; К

То же

70

Э-46а

-

Умывальник хирургический

ХВ; ГВ; К

Завод «Стройфаянс», г. Киров

 

ПСИХОНЕВРОЛОГИЧЕСКИЕ ИНТЕРНАТЫ

МЕБЕЛЬ И ОБОРУДОВАНИЕ. НОМЕНКЛАТУРА

47

 

№ п.п.

Индекс по каталогу* Гипронииздрава

Наименование

Габариты, мм

Требуемая подводка

Предприятие-изготовитель, организация-поставщик, организация, распространяющая проекты, другие данные

1968 - 1969 гг.

1983 г.

71

Э-22

28.04.02

Мойка чугунная эмалированная на одно отделение без спинки большой модели

600´600´234

ХВ; ГВ; К

Эмальзавод им. Артема, Ворошиловград

72

Э-27

-

Мойка чугунная эмалированная на два отделения со спинкой малой модели

800´460´435

ХВ; ГВ; К

То же

73

Э-73

28.04.01

Мойка для постельных клеенок

1400´450´1560

ХВ; ГВ; К

»

74

Э-13

28.02.02

Ванна керамическая кругло-бортная

1890´780´450

ХВ; ГВ; К

»

75

-

-

Бачок керамический для дезинфекционного раствора

410´210´280

-

Завод «Стройфаянс», г. Киров

76

Э-52

-

Унитаз тарельчатый

КВ; ГВ; К

То же

77

Э-2

-

Слив больничный

ХВ; К

»

78

21.02.09

Кровать клиническая

-

Каталог оборудования учреждений здравоохранения, Гипронииздрав

79

-

-

Стол на кронштейне

1000´300´800

-

То же

80

1-67

-

Облучатель воздуха бактерицидный

575´150´215

-

Завод электромедицинской аппаратуры, Свердловск

81

В-43

-

Спидометр водяной

Æ 230´535

-

Завод радиоэлектронной медицинской аппаратуры, Львов

82

В-44

14.02.09

Пневмотахометр

185´185´295

-

Завод медицинской аппаратуры, Киев

83

Т-22

-

Гимнастическая стенка

2000´167´323

-

Каталог оборудования учреждений здравоохранения, Гипронииздрав

84

Т-23

-

Гимнастическая скамейка

4000´240´300

-

То же

85

-

-

Кушетка откидная

-

-

Торговая сеть

86

-

-

Стеллаж деревянный

-

-

То же

87

СТ-4 по Т-17

07.01.01

Комплект аппаратов для механотерапии

-

-

Завод электромедицинской аппаратуры, Москва

88

Т-34

-

Стойка для маятниковых аппаратов механотерапии

360´360´1250

-

То же

89

Ф-37

13.03.05

Лампа «Солюкс» настольная

360´220´500

Э

Завод электромедицинской аппаратуры, Свердловск

90

Ф-62

13.01.15

Аппарат для местной дарсонвализации

793´155´480

Э

Завод электромедицинской аппаратуры, Москва

91

-

-

Табурет

350´350´450

-

Торговая сеть

92

-

-

Диван мягкий

1650´760´800

-

По заказу

93

Ф-10

13.01.07

Аппарат для ультравысокочастотной терапии

500´300´322

Э

Завод радиоэлектронной медицинской аппаратуры, Львов

Условные обозначения; ХВ - холодная вода: ГВ - горячая вода; К - канализация; Э - электроэнергия

* Каталог оборудования здравоохранения. Гипронииздрав, М., 1983.

ПРИЕМНОЕ ОТДЕЛЕНИЕ

Описание: iii

Описание: iii

Примечание. Номенклатуру мебели и оборудования см. на листах 44 - 47.

Палаты приемного отделения проектируют аналогично жилым комнатам постельного содержания проживающих.

Медпункт по набору помещений и их площадям по сравнению с медпунктом домов-интернатов для престарелых имеет ряд особенностей. В нем оборудуют дополнительные помещения для специализированной процедурной, увеличивают площадь палат приемного отделения и изолятора. Палаты приемного отделения проектируют аналогично жилым комнатам постельного содержания проживающих. Помещения изолятора целесообразно проектировать блокированно для возможного увеличения того или иного помещения.

КАБИНЕТ ВРАЧА

Описание: iii

КАБИНЕТ КИСЛОРОДОТЕРАПИИ

Описание: iii

ЗУБОВРАЧЕБНЫЙ КАБИНЕТ

Описание: iii

БЛОК ИЗОЛЯТОРА И ПРИЕМНОГО ОТДЕЛЕНИЯ. ПРИМЕР ПЛАНИРОВКИ

Описание: iii

Экспликация помещений блока изолятора и приемного отделения

1 - палаты; 2 - вестибюль; 3 - смотровая комната; 4 - санитарные узлы; 5 - буфетная; 6 - ванная; 7 - тамбур

Примечания: 1. В помещениях обслуживания, в том числе и в помещениях медпункта, необходимо обеспечить возможность их достаточного обзора.

2. Номенклатуру мебели и оборудования кабинетов см. на листах 44 - 47.

ПРОДОЛЬНЫЕ НЕСУЩИЕ СТЕНЫ ИЗ КИРПИЧА

Описание: iii

КАРКАС 6´6; 6´4,5

Описание: iii

КАБИНЕТ ЛЕЧЕБНОЙ ФИЗКУЛЬТУРЫ И МЕХАНОТЕРАПИИ

Описание: iii

Примечание. Номенклатуру мебели и оборудования см. на листах 44 - 47.

СОДЕРЖАНИЕ

Введение. 2

Раздел I. Исходные данные. 8

Схемы взаимосвязи помещений (лист 1) 8

Антропометрические данные (лист 2) 9

Нормативные данные (лист 3) 10

Раздел II. Группы жилых помещений. 11

Схемы взаимосвязи помещений (лист 4) 11

Мебель. Номенклатура и габариты (лист 5) 12

Мебель. Номенклатура и габариты (лист 6) 13

Мебель. Номенклатура и габариты (листы 7 - 11) 14

Мебель. Номенклатура и габариты. Группировка (лист 12) 18

Санитарно-техническое оборудование (лист 13) 19

Функциональные зоны (лист 14) 20

Жилая комната на одного человека (лист 15) 21

Жилая комната на два человека (лист 16) 23

Жилая комната на три человека (лист 17) 24

Жилая комната на четыре человека (листы 18 - 19) 24

Жилая комната на одного человека (лист 20) 26

Жилая комната на два человека (лист 21) 27

Жилая комната на три человека (лист 22) 28

Жилая комната на четыре человека (листы 23 - 24) 29

Жилая комната на одного - три человека (лист 25) 31

Жилая комната на четыре и шесть человек (лист 26) 32

Комната отдыха (лист 27) 33

Столовая (лист 28) 34

Кухня-раздаточная (лист 29) 35

Ванная комната. Планировка. Оборудование (лист 30) 36

Санитарно-технические узлы. Специфические детали (лист 31) 38

Санитарная комната. Комната медицинской сестры (лист 32) 39

Примеры планировки (лист 33) 40

Раздел III. Обеденные залы.. 42

Функциональные зоны. Размещение столов на 100 мест (лист 34) 42

Размещение столов на 200, 300 и 400 мест (лист 35) 44

Раздел IV. Клубные помещения. 45

Зрительный зал (лист 36) 45

Кружок домоводства. Библиотека-читальня (лист 37) 47

Раздел V. Помещения лечебно-производственных мастерских. 48

Схемы взаимосвязи помещений. Функциональные зоны (лист 38) 48

Мебель и оборудование. Номенклатура (листы 39 - 41)) 49

Мастерские (лист 42) 53

Раздел VI. Помещения медицинского пункта. 55

Схема взаимосвязи помещении. Функциональные зоны (лист 43) 55

Мебель и оборудование. Номенклатура (листы 44 - 47) 56

Кабинеты (листы 48 - 49) 61

Примеры планировки (лист 50) 63

 



© 2013 Ёшкин Кот :-)