Информационная система
«Ёшкин Кот»

XXXecatmenu

Открытое акционерное общество

Проектно-конструкторский и технологический институт
промышленного строительства

ОАО ПКТИпромстрой

 

 

 

 

 

УТВЕРЖДАЮ

Генеральный директор, к.т.н.

____________ С.Ю. Едличка

«02» марта 2006 г.

 

 

ПОСОБИЕ
ПО УСТАНОВКЕ И БЕЗОПАСНОЙ
ЭКСПЛУАТАЦИИ СТРОИТЕЛЬНЫХ
ПОДЪЕМНИКОВ ПРИ РАЗРАБОТКЕ
ПРОЕКТОВ ОРГАНИЗАЦИИ СТРОИТЕЛЬСТВА
И ПРОЕКТОВ ПРОИЗВОДСТВА РАБОТ

Главный инженер

_______________ А.В. Колобов

2006

«Пособие по установке и безопасной эксплуатации строительных подъемников при разработке проектов организации строительства и проектов производства работ» предназначено для инженерно-технических работников проектных и строительно-монтажных организаций, владельцев строительных подъемников, а также специалистов других организаций, занятых на новом строительстве, расширении и реконструкции зданий и сооружений с использованием строительных подъемников, независимо от форм собственности.

В «Пособии...» изложены основные требования строительных норм и правил, стандартов, «Правил...» Ростехнадзора и другой нормативно-технологической документации, обеспечивающей правильную и надежную установку и эксплуатацию строительных подъемников.

Настоящее «Пособие...» подготовлено в 2002 г. взамен «Пособия по установке и безопасной эксплуатации строительных подъемников при разработке проектов производства работ» издания 1997 года. В связи с изданием в 2003 - 2005 гг. «Правил устройства и безопасной эксплуатации строительных подъемников» ПБ 10-518-02 и ряда других нормативных документов в «Пособие...» внесены соответствующие изменения и дополнения. В качестве примера в «Пособии...» даны схемы установки подъемников МГП-1000В и С-447М.

В разработке «Пособия...» принимали участие сотрудники ОАО ПКТИпромстрой к.т.н. С.Ю. Едличка, А.В. Колобов, Б.И. Бычковский, Ю.А. Ярымов, О.А. Савина, в корректировке - В.И. Сусов, Матвеев И.И., Палиевская Д.С.

Контактный телефон: (495) 614-36-49; (495) 614-96-65.

Факс: (495) 614-36-49

СОДЕРЖАНИЕ

1. Основные требования по установке подъемников. 2

2. Обязанности рабочих, обслуживающих подъемник. 10

3. Требования техники безопасности и охраны труда. 11

Приложение а. Наряд-заказ (на подъемник) 15

Приложение б. Таблица масс грузов, перемещаемых с помощью подъемника. 16

Приложение в. Справка испытания плотности земляного полотна. 16

Приложение г. Акт освидетельствования скрытых работ. 17

Приложение д. Акт сдачи фундамента под строительный подъемник. 18

Приложение е. Приказ по строительному управлению о назначении ответственных лиц за безопасное перемещение грузов и людей с помощью подъемника. 19

Приложение ж. Приказ на ответственное лицо по эксплуатации электрохозяйства по строительной организации. 20

1. ОСНОВНЫЕ ТРЕБОВАНИЯ ПО УСТАНОВКЕ ПОДЪЕМНИКОВ

1.1. Для подъема (спуска) грузов и людей при строительстве зданий и сооружений следует применять строительные подъемники.

1.2. Подъемники должны быть снабжены эксплуатационной документацией: паспортом, руководством по эксплуатации, включающим техническое описание и инструкцию по эксплуатации, инструкцией по монтажу.

Эксплуатационная документация должна быть составлена в соответствии с требованиями «Правил устройства и безопасной эксплуатации строительных подъемников» ПБ 10-518-02 и поставляться вместе с подъемником.

1.2.1. В паспорте грузопассажирского и грузового подъемников должны содержаться сведения о типе подъемника, дате его изготовления, наименование и адрес изготовителя, заводской номер, сведения о допустимом районе установки по ветровой нагрузке, основные технические данные и характеристики подъемника, его сборочных узлов и устройств безопасности, свидетельство о приемке, чертеж общего вида подъемника с указанием основных размеров.

Кроме того, в паспорте грузовых подъемников, допускающих выход человека на грузовую платформу, должна быть конкретная запись о такой возможности.

В процессе эксплуатации подъемника в его паспорт вносятся сведения о регистрации, техническом освидетельствовании и обслуживании, а также о ремонтах и замене элементов.

Вместе с паспортом подъемника поставляются: руководство по эксплуатации, инструкция по монтажу, ведомость запасных деталей и приспособлений, паспорт на пружины буферов, альбомы чертежей.

1.2.2. В паспорте фасадного подъемника содержаться те же сведения, что указаны в п. 1.2.1, относящиеся к данному типу подъемника.

Руководство по эксплуатации и инструкция по монтажу могут быть объединены с паспортом, а не поставляться отдельно.

1.2.3. Техническое описание и инструкция по эксплуатации подъемника должны быть разработаны в соответствии с установленными государственными стандартами.

В них наряду с другими сведениями, должны быть указаны: периодичность технического обслуживания и ремонта; возможные повреждения металлоконструкций и способы их устранения; предельные нормы браковки ответственных деталей; способы регулировки тормозов; способы регулировки и испытания ловителей; перечень быстроизнашивающихся деталей; указания по приведению подъемника в безопасное положение в нерабочем состоянии; требования безопасности в аварийных ситуациях; порядок проведения технического освидетельствования; срок службы (ресурс) подъемника.

1.2.4. На каждый эксплуатируемый подъемник ведется вахтенный журнал по форме установленной ПБ 10-518-02. Перед началом работы машинисты и рабочие люлек должны проводить осмотр и проверку подъемников. Результаты осмотра и проверки подъемника должны записываться в вахтенном журнале.

1.2.5. Производственная инструкция выдается организацией, владеющей подъемником. В производственную инструкцию грузопассажирских и грузовых подъемников должен быть внесен порядок обмена сигналами между машинистом и рабочими на этажах. В инструкции приводятся основные положения техники безопасности при эксплуатации и обслуживании подъемника. Инструкцию вывешивают в кабине грузопассажирского подъемника или на рабочем месте машиниста.

1.3. В кабине грузопассажирского подъемника или на рабочем месте машиниста грузового подъемника располагают основные правила техники безопасности, графики и схемы строповки или правила укладки грузов, которые необходимо транспортировать в условиях данной строительной площадки, и перечень грузов с указанием массы.

Для грузопассажирских подъемников указывают грузоподъемность или количество пассажиров, которое может поднять подъемник.

1.4. Вновь установленные грузопассажирские и фасадные подъемники до пуска в эксплуатацию подлежат регистрации в органах Ростехнадзора. Грузовым подъемникам, не подлежащим регистрации в органах Ростехнадзора, владельцем присваиваются индивидуальные номера с регистрацией в журнале учета.

1.5. Вновь установленный подъемник до ввода в эксплуатацию должен подвергаться полному техническому освидетельствованию. После ввода в эксплуатацию подъемник должен подвергаться периодическому техническому освидетельствованию не реже одного раза в 12 месяцев. Техническое освидетельствование должно проводиться согласно руководству по эксплуатации подъемника

1.6. Организация, смонтировавшая подъемник, совместно с генподрядной строительной организацией во время технического освидетельствования должна провести осмотр, проверку, статические и динамические испытания.

1.6.1. Осмотру подлежат: электрооборудование и механизмы в работе; приборы безопасности, тормоза и аппараты управления, освещение, сигнализация, дверные замки и дверные контакты, грузонесущие органы, металлоконструкции мачты, канаты и их крепление, блоки, оси и детали их крепления. Контролируют правильность установки подъемника, наличие заземления, количество и шаг настенных опор и их крепление к конструкциям сооружения.

1.6.2. При статическом испытании подъемника должны быть проверены прочность механизмов подъемника, его кабины, подвесок, канатов, а также действие тормозов.

При статическом испытании кабина (площадка) должна неподвижно располагаться на уровне нижней посадочной (погрузочной) площадки или выше ее (но не более 150 мм) в течение 10 минут при размещении в кабине (на площадке) равномерно распределенного по полу груза, масса которого превышает грузоподъемность подъемника на:

50 % - у грузового подъемника;

100 % - у грузопассажирского и фасадного подъемников.

1.6.3. При динамическом испытании подъемника должны быть проверены в действии его механизмы, ловители и ограничители скорости, а также проверена точность остановки кабины.

Испытания следует производить при нахождении в кабине равномерно распределенного по полу груза, масса которого превышает грузоподъемность подъемника на 10 %.

1.6.4. В целях обеспечения содержания подъемников в исправном состоянии и безопасных условий работ владельцы подъемников и организации, эксплуатирующие подъемники, должны назначить: инженерно-технического работника по надзору за безопасной эксплуатацией подъемников; инженерно-технического работника, ответственного за содержание подъемников в исправном состоянии и лицо, ответственное за безопасность производства работ.

Назначенные работники должны быть аттестованы в области промышленной безопасности опасных производственных объектов в порядке, установленном Ростехнадзором России.

Лица, ответственные за безопасное производство работ, назначаются приказом в каждом цехе, на строительной площадке или другом участке работ подъемников в каждой смене из числа прорабов, мастеров, начальников участков, обученных и аттестованных в установленном порядке.

Для эксплуатации подъемников, кроме указанных выше лиц, должны быть назначены:

- приказом по строительной организации - лица, ответственные за электрохозяйство организации и строительной площадки; рабочие, занятые приемкой груза на этажах; стропальщики на подъемники, оборудованные консольной стрелой;

- приказом (распоряжением) по организации - владельцу подъемника - машинисты, рабочие люлек; электромеханики и слесари - для обслуживания и ремонта подъемников.

Машинисты, рабочие люлек, стропальщики, электромеханики, и слесари должны пройти обучение и быть аттестованы в порядке, установленном Ростехнадзором России.

1.7. Монтаж и эксплуатацию подъемников следует производить в соответствии с требованиями руководства по эксплуатации и инструкции по монтажу заводов-изготовителей, а также «Правил устройства и безопасной эксплуатации строительных подъемников» ПБ 10-518-02. Примеры установки подъемников даны на рисунках 1 (грузопассажирский МГП-1000В) и 2 (грузовой С-447М).

Рисунок 1 - Установка грузопассажирского подъемника МГП-1000В

УСЛОВНЫЕ ОБОЗНАЧЕНИЯ К РИСУНКУ 1

1 - граница опасной зоны вокруг строящегося здания; 2 - граница опасной зоны, возникающей при работе подъемника МГП-1000В на расстоянии L = 5,0 м; 3 - сигнальное ограждение опасной зоны (по ГОСТ 23407-78), возникающей при работе подъемника; 4 - монолитная железобетонная плита; 5 - козырек над входом в кабину подъемника; 6 - место складирования материалов с указанием количества и высоты; 7 - пешеходная дорожка из плит, щебня или другого материала; 8 - временная автомобильная дорога.

ПРИМЕЧАНИЯ К РИСУНКУ 1

1. На рисунке дана привязка подъемника МГП-1000В для подъема людей и грузов на этажи и кровлю возводимого здания. Подъем людей должен производиться при расположении рабочих мест на высоте 25 м и более.

2. До установки подъемника спланировать площадку и забетонировать плиту с установкой анкерных болтов по кондуктору или опорной раме.

3. Крепление подъемника к зданию производится по индивидуальному проекту. Подъемник должен быть заземлен.

4. Оголовок подъемника во время работы кранов должна быть ниже монтажного горизонта не менее чем на 0,5 м.

5. К месту управления подъемником должна быть подведена сигнализация со всех этажей.

6. Нахождение людей в опасной зоне от действия подъемника запрещается.

7. В нерабочее время кабина подъемника должна находиться в нижнем положении.

8. На этажах против остановки кабины подъемника устанавливаются двери на высоту проема (h = 1,8 м) и шириной 1,2 м. Двери должны иметь специальные запоры, закрываемые с наружной стороны здания.

9. На этажах и крыше для выгрузки материалов и выхода людей из подъемника необходимо устраивать площадку на ширину проема и длиной 1 м с пандусом, угол наклона должен быть не более 30°. У площадки и пандуса должно быть перильное ограждение.

10. Таблица масс перемещаемых грузов должна вручаться машинисту и вывешиваться у места загрузки подъемка.

Рисунок 2 - Установка грузового подъемника С-447М

УСЛОВНЫЕ ОБОЗНАЧЕНИЯ К РИСУНКУ 2

1 - граница опасной зоны вокруг строящегося здания; 2 - граница опасной зоны, возникающей при работе подъемника; 3 - навес моториста, где расположен аппарат управления подъемником (за пределами опасных зон); 4 - временная автодорога; 5 - площадка складирования материалов; 6 - конструкции крепления мачты к зданию (выполняются по отдельному проекту); 7 - плита, на которой установлен подъемник; 8 - защитное ограждение на крыше.

Sn, B - размеры привязки подъемника к осям здания (сооружения).

Размер Sn определяется по формуле:

Sn = a + n + Rn,

где a - расстояние от оси здания до его выступающих частей;

n - габарит приближения площадки подъемника к выступающим частям здания (350 мм);

Rn - размер от края платформы до оси мачты (750 мм)

ПРИМЕЧАНИЯ К РИСУНКУ 2

1. На настоящем рисунке дана привязка подъемника С-447М для подачи грузов на крышу здания.

2. До установки подъемника спланировать площадку и забетонировать фундаментную плиту.

3. Крепление подъемника к зданию осуществляется в трех уровнях индивидуальным креплением по отдельному проекту. Подъемник должен быть заземлен.

4. В нерабочее время площадка подъемника должна быть в нижнем положении, а рубильник и шкаф электропитания обесточены и закрыты на замок.

5. Приказом по строительной организации назначить лиц, ответственных за исправное состояние и безопасное действие подъемника, за эксплуатацию электрохозяйства на строительной площадке, а из числа рабочих - лиц, ответственных за разгрузку и приемку грузов на этажах, и машинистов.

6. Лиц, работающих на подъемнике, ознакомить с правилами эксплуатации под роспись.

7. Над рабочим местом машиниста, находящемся за пределами опасной зоны, установить защитный навес 1,0´1,5 м из досок толщиной 40 мм.

8. Между машинистом и рабочим, производящим приемку грузов, должна быть установлена двусторонняя визуальная связь (или подведена сигнализация). Связь должна поддерживаться непрерывно, при подъеме грузовой платформы до 10 м - голосом; более 10 м - знаковой сигнализацией, более 22 м - радио- и телефонной связью.

9. У подъемника в месте загрузки должен быть установлен стенд, на котором показывается грузоподъемность подъемника, таблица масс с перечнем и количеством грузов и способами их затаривания, список лиц согласно п. 5 и правила пользования подъемником.

10. Вдоль опасной зоны установить сигнальное ограждение и выставить предупредительные знаки. Нахождение людей в опасной зоне подъемника в период подъема грузов запрещается. Запрещается также работать на неисправном подъемнике и выходить на грузовую площадку.

1.8. Площадка, где устанавливается подъемник, должна быть горизонтальной, пазухи должны быть засыпаны и уплотнены в соответствии с требованиями инструкций по эксплуатации заводов-изготовителей. Под опорную раму должна быть выполнена монолитная железобетонная плита или уложены сборные железобетонные дорожные плиты, или специальная плита в соответствии с требованиями инструкции по монтажу и эксплуатации завода-изготовителя или специализированной организации. Пример конструкции монолитной железобетонной плиты для подъемника МГП-1000В приведен на рисунке 3. Должны быть оборудованы места загрузки на земле и разгрузки на этажах здания (сооружения), подведена электроэнергия.

Рисунок 3 - Пример конструкции монолитной железобетонной плиты для установки грузопассажирского подъемника МГП-1000В

Спецификация металла для монолитной железобетонной плиты

№ п/п

Профиль, марка

Длина, мм

Кол. шт.

Масса, кг

1 поз.

всех

1

Æ 16А-11

3940

17

6,23

105,91

2

Æ 6А-11

3340

21

5,28

110,88

3

Шпилька М30-6´320 ГОСТ 22042-76*

320

6

 

 

4

Гайка М-30 ГОСТ 5916-70*

 

6

 

 

5

Шайба М30 ГОСТ 6958-78*

 

6

 

 

216,79

Примечания

1. Привязка ж.б. плиты дана для правого расположения кабины.

2. При левом расположении кабины размеры берутся зеркально относительно оси кабины, перпендикулярной к стене здания.

1.9. На доставленном к месту установки подъемнике, до начала монтажа, проверяют комплектность, качество резьбы болтов для стыковки секций и крепления различных деталей, состояние канатов и механизмов машины. Составные и опорные части подъемника разгружают и устанавливают на площадку автомобильным или башенным краном, затем осуществляют монтаж подъемника.

1.10. Крепление строительного подъемника производят к конструкциям каркаса здания после выполнения всех узлов каркаса в соответствии с рабочим проектом.

1.10.1. Крепление подъемника к зданию производится по проекту, разработанному для данного здания (сооружения).

1.10.2. Прочность монолитных конструкций каркаса и узлов к началу эксплуатации подъемника должна быть не менее 100 % проектной.

Эксплуатацию подъемника при меньшей прочности бетона монолитных конструкций и узлов согласовывают с проектной организацией-автором проекта здания.

1.10.3. Возможность крепления подъемника к конструкциям здания должна быть согласована с проектной организацией, разрабатывающей проект на данное здание (или разрабатывающей проект на его реконструкцию). При необходимости проектный институт разрабатывает проект обеспечения устойчивости здания от воздействия нагрузок, создаваемых подъемником.

1.11. У входа в кабину грузопассажирского подъемника у первой остановки (на поверхности земли) устанавливается пандус и защитный козырек, аналогичный козырьку входа в здание.

1.12. Проемы, у которых останавливается кабина грузопассажирского подъемника или платформа грузового подъемника, должны закрываться дверями со специальными затворами, устанавливаемыми для грузопассажирского подъемника с наружной стороны двери, а для грузового - с внутренней стороны двери.

Двери открывает (закрывает) при грузопассажирском подъемнике машинист, а при грузовом подъемнике - рабочие, ответственные за приемку грузов на этажах. Двери проемов, независимо от типа подъемника и условий установки, должны всегда открываться вовнутрь помещения.

1.13. При установке подъемника у балкона или лоджии целесообразно использовать балконную дверь, сделав на ней с наружной стороны шпингалетами затвор. Проход от подъемника к балконной двери огородить с двух сторон ограждением высотой 1,2 м в соответствии с ГОСТ 12.4.059-89.

1.14. Напротив остановки кабины подъемника должны устанавливаться двери высотой 1800 мм и шириной проема не менее 1200 мм для того, чтобы выдвижная площадка или трап подъемника входили внутрь проема.

При высоте проема менее 1800 необходимо обеспечить безопасный вход в проем (устраивать наклонные козырьки с обеих сторон входа, которые со стороны кабины не доходят до нее на 350 мм, обить козырьки и верх проема мягким материалом, установить предупреждающие знаки, покрасить козырьки в сигнальные цвета, провести дополнительный инструктаж).

При отсутствии ограждающих конструкций (в том числе парапета на крыше) в обе стороны от установленных дверей вдоль фасада здания не менее чем на 2 м в каждую сторону устраивается сплошное ограждение по перекрытию на высоту 1,6 м, отвечающее требованиям ГОСТ 12.4.059-89.

1.15. Для выхода людей из кабины подъемника и выгрузки материалов в оконные проемы на уровне нижней части оконного проема устанавливают площадку на ширину проема и длиной не менее 1 м с пандусом, угол наклона которого не должен быть более 30°. Приемную площадку и пандус выполняют в соответствии с проектом специализированной организации. Аналогично утраивают площадку с пандусом через парапет при выходе на крышу. Выходить на грузовую площадку строительного подъемника запрещается.

1.16. К местам управления грузопассажирскими подъемниками должна быть подведена сигнализация со всех этажей либо подъемник оборудуют телефонной или радиосвязью с каждым этажом (с каждой приемной площадкой). Линия связи должна быть независимой от электропитания подъемника.

1.17. Рядом с проемами с наружной и внутренней сторон стен или ограждений должны быть нанесены цифры, соответствующие номерам этажей.

1.18. Аппарат управления грузового подъемника должен устанавливаться в месте с достаточной видимостью погрузочно-разгрузочньгх площадок, но за пределами опасной зоны от строящегося здания и подъемника, что определяется в ППР. В нерабочее время рубильник и шкаф электропитания подъемника должны быть обесточены и закрыты на замок.

1.19. На все грузы, поднимаемые подъемником, составляют таблицу масс грузов, которую вручают проводнику-машинисту, рабочим, производящим загрузку, и вывешивают у мест загрузки и выгрузки подъемника. В таблице указываются масса единицы груза, способы затаривания, максимальное количество грузов и их общая предельная масса, допускаемая к подъему или спуску.

При определении предельной массы, перемещаемой грузопассажирским подъемником, необходимо учитывать, что в кабине должен находиться машинист, поэтому ее величина должна быть меньше грузоподъемности подъемника на 100 кг. Форма таблицы масс грузов, перемещаемых с помощью подъемника, дана в приложении Б.

1.20. Для грузовых подъемников, имеющих консольную стрелу, в составе ППР должны разрабатываться схемы строповки грузов с таблицей масс грузов и применяемых грузозахватных приспособлений.

1.21. На схемах привязки подъемника должны быть показаны:

- существующая ситуация с имеющимися и проектируемыми подземными, надземными и воздушными коммуникациями и участком возводимого здания (сооружения), его осями, отметками проемов и перекрытий;

- подъемники с кабинами (площадками) в верхнем и нижнем положении с горизонтальной и вертикальной привязкой;

- опорная плита или фундамент с горизонтальной и вертикальной привязкой;

- опасные зоны (от подъемника и здания) и сигнальное ограждение вдоль них;

- площадки складирования материалов и других грузов;

- пандус и козырек у входа в кабину грузопассажирского подъемника;

- площадки и пандусы на этажах и крыше;

- ограждение краев перекрытий и покрытий при отсутствии ограждающих конструкций (вдоль фасада здания);

- закрывающиеся проемы;

- временные дороги (подъезды к подъемнику) и пешеходные дорожки;

- крепление подъемника.

1.22. На чертежах, где дается привязка подъемника, или на отдельном листе дается таблица с перечнем перемещаемых подъемником грузов и указанием количества грузов, их единичными и общими массами и способами затаривания; при необходимости конструкции защитных ограждений на этажах и крыше.

1.23. На разрезе с подъемником следует показывать:

- участок строящегося здания (сооружения) в зоне примыкания подъемника с основными отметками перекрытий и покрытия, парапета, проемов;

- подъемник с кабиной (или площадкой) в нижнем и верхнем (пунктиром) положениях;

- прилегающую к подъемнику ситуацию, включая складирование и подъезды;

- опорную плиту или фундамент подъемника;

- размеры и отметки горизонтальной и вертикальной привязки подъемника и опорной плиты или фундамента;

- пандус и козырек у входа в кабину грузопассажирского подъемника;

- сигнальное ограждение опасной зоны подъемника;

- приемные площадки и пандусы к ним на этажах и крыше.

1.24. Для введения в действие подъемников оформляются следующие документы, обязательные для разрешения на пуск в работу строительных подъемников:

- наряд-заказ (по форме согласно приложению А);

- проект производства работ на установку и работу подъемника (может быть в составе общего ППР);

- рабочие чертежи крепления мачты подъемника к конструкциям здания (сооружения);

- таблица масс перемещаемых грузов (по форме согласно приложению Б);

- справка испытания плотности грунта (по форме согласно приложению В);

- акт на скрытые работы по устройству фундаментов под строительный подъемник (по форме согласно приложению Г);

- акт сдачи управлению механизации фундамента под монтаж подъемника (по форме согласно приложению Д);

- приказ по строительному управлению о назначении ответственных лиц за безопасное перемещение грузов и людей с помощью подъемника (по форме согласно приложению Е);

Примечание - При подъемниках, имеющих консольную стрелу, этим же приказом назначаются стропальщики.

- приказ по строительному управлению о назначении лиц, ответственных за исправное состояние и безопасное действие подъемника;

- приказ по строительному управлению о назначении лиц, ответственных за эксплуатацию электрохозяйства на строительном объекте (по форме согласно приложению Ж);

- акт на выполнение работ по устройству крепления подъемника (по форме согласно приложению Г);

- приказ по управлению механизации о назначении машинистов подъемников.

Примечание - Перечень документов, содержащихся в папке, заверяется подписью главного инженера строительного управления.

2. ОБЯЗАННОСТИ РАБОЧИХ, ОБСЛУЖИВАЮЩИХ ПОДЪЕМНИК

2.1. Машинисты подъемников должны быть обучены по соответствующей программе и аттестованы квалификационной комиссией.

Рабочие, управляющие грузовыми подъемниками, должны иметь удостоверения машиниста 3-го разряда, а грузопассажирскими - 5 разряда. Машинисты грузовых и грузопассажирских подъемников должны также иметь 2-ю группу по электробезопасности.

2.2. К управлению подъемниками допускаются лица, прошедшие медицинское освидетельствование, обучение, аттестацию и имеющие соответствующее удостоверение на право управления данным типом подъемника. Допуск к работе машинистов, слесарей, электромонтеров и лиц, выполняющих обязанности такелажника, оформляется приказом по организации, эксплуатирующей подъемник.

2.3. Повторную проверку знаний машинистов и рабочих, обслуживающих подъемник, проводит квалификационная комиссия, назначенная приказом по организации, периодически, не реже одного раза в год при переводе машинистов и рабочих из одной организации в другую, а также по требованию лица, ответственного за надзор, или инспектора Ростехнадзора.

2.4. В работе комиссии при аттестации машинистов, рабочих люлек и электромехаников участие представителя органа Ростехнадзора обязательно. Машинисты подъемников должны знать инструкцию по эксплуатации, конструкцию, грузоподъемность и назначение всех механических деталей и электрооборудования подъемника и обладать навыками управления подъемником и обслуживания его.

2.5. Перед началом работы ежедневно машинист (рабочий люльки) знакомится с записями в вахтенном журнале сдачи и приемки подъемника, осматривает подъемник, все его механизмы и устройства, проверяет их работу на холостом ходу и устраняет неисправности. Если машинист (рабочий люльки) не может сам устранить неисправности, он вызывает слесаря или электромонтера и докладывает об этом лицу, которому подчинен. При этом машинист (рабочий люльки) записывает о неисправности в журнале. Машинист (рабочий люльки) не имеет права пускать подъемник в работу, если в результате осмотра он обнаружил, что отсутствуют, не работают или ненадежно работают приборы безопасности.

3. ТРЕБОВАНИЯ ТЕХНИКИ БЕЗОПАСНОСТИ И ОХРАНЫ ТРУДА

3.1. К монтажу подъемников допускаются лица не моложе 18 лет, прошедшие медицинское освидетельствование и признанные годными для монтажных работ на высоте. Допущенные к монтажу рабочие должны иметь удостоверение на право ведения этих работ. Рабочие должны пройти инструктаж, что фиксируется в журнале.

3.2. Перед установкой подъемника монтажную зону следует оградить. На ограждении вывешивают плакаты: «Опасная зона», «Проход закрыт».

До начала монтажа мачты подъемника необходимо:

- проверить грузовую лебедку;

- проверить монтажные подъемные механизмы подъемника и тормоза;

- очистить конструкции подъемника от грязи, снега и льда;

- заземлить подъемник.

3.3. Настенные опоры следует устанавливать немедленно, как только мачту смонтируют на высоту, достаточную для установки опоры.

3.4. Запрещается производить монтаж подъемника при гололедице, ночью, в грозу, в тумане, при температуре воздуха ниже 20 °C и скорости ветра выше пределов, предусмотренных в паспорте машины.

3.5. Граница опасной зоны для подъемника определяется:

- для грузопассажирских - 5 м согласно п. 7.2.9 СНиП 12-03-2001, размер принимается от габаритов кабины и противовеса;

- для грузовых с платформой - как вблизи строящегося здания, размер принимается от габарита грузовой платформы (рисунок 4);

- для грузовых с консольной стрелой - согласно графику определения минимального расстояния отлета груза при его падении, как при перемещении груза краном, с учетом габарита наибольшего груза;

- для фасадных - как вблизи строящегося здания, размер принимается от габарита люльки.

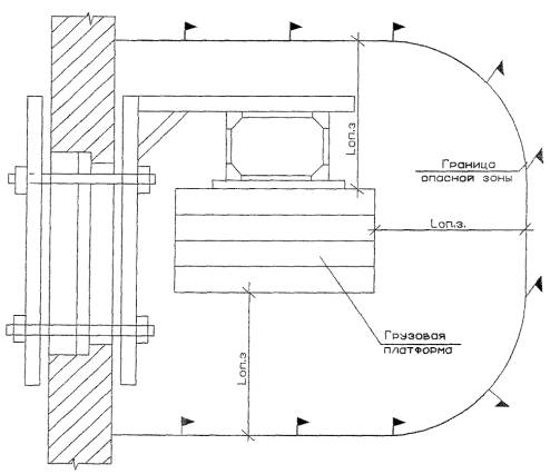
Рисунок 4 - Граница опасной зоны при работе строительного подъемника

Границы опасных зон в местах, над которыми происходит перемещение грузов подъемниками с консольной стрелой, а также вблизи строящегося здания принимаются от крайней точки горизонтальной проекции наружного наименьшего габарита перемещаемого груза или стены здания с прибавлением наибольшего габарита перемещаемого (падающего) груза и минимального расстояния отлета груза при его падении (рисунок 5)

1 - при перемещении грузов подъемниками с консольными стрелами; 2 - вблизи строящегося здания

Рисунок 5 - График определения минимального расстояния отлета груза при его падении

3.6. Сигнальное ограждение, выставляемое по контуру опасной зоны подъемников, должно отвечать требованиям ГОСТ 23407-78.

3.7. Подъездные пути, площадки складирования грузов и навес для машиниста (для грузового подъемника) должны находиться за пределами опасной зоны.

3.8. Приближение подъемника, его кабины или площадки грузового подъемника к зданию или его выступающим частям определяется эксплуатационной документацией заводов-изготовителей.

Расстояние между порогом кабины (трапа) и порогом пола посадочной площадки должно быть не более 50 мм.

При установке фасадных подъемников расстояние от их выступающих частей (не считая опорных роликов, на которые может опираться люлька при подъеме) до выступающих частей здания должно быть не менее 200 мм.

3.9. Совместная работа строительного подъемника с грузоподъемными кранами производится в соответствии с таблицей совместной работы, при этом монтажная консоль подъемника всегда должна быть ниже монтажного горизонта не менее чем на 0,5 м.

Совместная работа грузового или грузопассажирского подъемника с фасадным подъемником не допускается, если фасадный подъемник находится в пределах опасной зоны работы других подъемников.

3.9.1. Перемещение стрелы крана с грузом над подъемником возможно только при неработающем подъемнике.

3.9.2. На период работы крана в зоне работы подъемника последний должен быть отключен, а ключи от шкафа электропитания, рубильника, двери кабины, нижнего ограждения подъемника должны находиться у лица, ответственного за безопасное производство работ кранами. В остальных случаях ключи должны находиться у машиниста подъемника. Работа подъемника прекращается при условии, если расстояние от опасной зоны крана до подъемника менее 2 м, опасная зона при этом определяется по высоте перемещения над уровнем выхода из кабины.

3.9.3. Для обеспечения совместной работы кранов и подъемников предусматривается установка единого рубильника для кранов и подъемника - в одном положении рубильника работает только кран, в другом - только подъемник, в третьем - линия обесточена и механизмы не работают. Установка в соответствующее положение рубильника производится лицом, ответственным за безопасное производство работ кранами.

3.9.4. При совместной работе крана и подъемника на монтажном горизонте у последнего может устраиваться световая сигнализация, которая включается с включением электропитания подъемника, и во время свечения крановщик не должен подводить к подъемнику груз на величину опасной зоны, предусмотренной в ППР. По мере возведения здания сигнализация переставляется с одного монтажного горизонта на другой. Световая сигнализация должна быть хорошо видна из кабины крана.

3.9.5. По совместной работе грузопассажирского подъемника и башенного крана в соответствии с графиком их работы с машинистом подъемника и машинистом крана проводится специальный инструктаж с записью в журнал этих машин.

3.10. Основные правила пользования подъемником должны быть вывешены на площадках, с которых загружают или разгружают кабину.

Правила пользования должны содержать: способ загрузки, способ сигнализации, порядок обслуживания дверей дежурными рабочими, запрещение выхода людей на платформу грузовых строительных подъемников, запрещение загружать кабину огне- и взрывоопасными грузами и ядовитыми жидкостями в стеклянной таре без специальной упаковки и другие указания по обслуживанию подъемников.

3.11. В нерабочее время площадка грузового или кабина грузопассажирского подъемника должны находиться в нижнем положении.

3.12. При перемещении люльки необходимо соблюдать следующий порядок:

- вход в люльку и выход из нее должны осуществляться при нахождении люльки в крайнем нижнем положении;

- рабочие люльки должны проходить медицинский осмотр в установленном порядке на право работы на высоте;

- рабочие люльки должны работать в касках и с предохранительным поясом, пристегнутым к элементам конструкции люльки;

- рабочим люльки запрещается садиться или вставать на перила, устанавливать на пол люльки предметы для увеличения высоты зоны работы;

- масса рабочих с инструментом (грузом) не должна превышать установленную паспортную грузоподъемность люльки.

3.13. При работе подъемника не допускается:

- перемещение людей (для грузовых подъемников);

- перемещать или останавливать грузовую платформу по сигналу сторонних лиц;

- использование концевых выключателей в качестве рабочих органов автоматической остановки механизмов;

- использование подъемника при неисправностях, указанных в руководстве по эксплуатации;

- подача груза в проемы, на балконы и лоджии без специальных приемных площадок, предусмотренных проектом производства работ исходя из обеспечения требований безопасности. Ограждения площадок, устройство пандусов и меры безопасности при работе на площадках должны быть оговорены в проекте производства работ.

3.14. Запрещается работа подъемника в следующих случаях:

- канаты изношены более допустимого или имеют какие-либо дефекты;

- приборы управления и другие электрические аппараты не защищены;

- грузонесущий орган движется произвольно или в направлении, не соответствующем нажатой кнопке;

- неисправны сигнализация, внутреннее и наружное освещение, предохранительные приспособления;

- не заземлены корпуса электродвигателя и пусковых аппаратов;

- пробита изоляция;

- ограждения и настил грузовой платформы находятся в неисправном состоянии;

- отсутствует или неисправно внутреннее или наружное освещение;

- не ограждена опасная зона и не вывешены предупреждающие плакаты.

К работе машинист приступает после устранения обнаруженных дефектов, о чем должна быть сделана запись в журнале. Пробные включения механизмов подъемника после ремонта машинист делает с разрешения и в присутствии лица, ответственного за ремонт. При этом предупреждают всех работающих на подъемнике, чтобы они находились в безопасном месте.

Приложение А

(обязательное)

Штамп предприятия                                                       Начальнику УМ_____________

__________________________

НАРЯД-ЗАКАЗ (НА ПОДЪЕМНИК)

Прошу вывезти и смонтировать строительный подъемник

типа ___________________________________________________________________

на строительстве объекта __________________________________________________

по адресу: ______________________________________________________________

1. Готовность площадки ___________________________________________________

(наличие защитного ограждения, электроосвещения и т.д.)

2. Количество этажей в здании (сооружении) _________________________________

3. Количество смонтированных этажей ______________________________________

4. Готовность фундаментов под подъемник ___________________________________

5. Наличие на объекте ППР ________________________________________________

6. Срок работы подъемника ________________________________________________

7. Сменность работы подъемника ___________________________________________

8. Наименование генподрядных и субподрядных организаций, пользующихся подъемником ______________________________________________________________

9. Наличие площадок для монтажа подъемника и складирования материалов ______

___________________________________________________________________________

10. Обеспеченность площадки подъездными дорогами _________________________

11. Обеспеченность электроэнергией в количестве _____________________________

12. Обеспеченность бытовыми помещениями _________________________________

13. Гарантии об охране и сохранности подъемника ____________________________

Оплата гарантируется с расчетного счета_____________________________________

________________________________________________________________________

(наименование банка)

Начальник СУ __________________________

(Печать)

Приложение Б

(обязательное)

Образец

ТАБЛИЦА МАСС ГРУЗОВ, ПЕРЕМЕЩАЕМЫХ С ПОМОЩЬЮ ПОДЪЕМНИКА

№ п/п

Наименование груза

Марка, размер

Единица измерения

Способ затаривания

Кол. единиц на один подъем, шт.

Масса единицы груза, кг

Общая масса на один подъем

1

Раствор

М-50

шт.

5

Носилки

60

300

2

Рубероид

РБ

шт.

10

Рулон

40

400

3

Мастика

Б-IV

шт.

6

Фляга

60

360

4

Плитка метлахская

150´150 мм

шт.

20

Ящик

20

400

5

Кирпич

М-75

шт.

1

Тележка Т200

200

200

6

 

 

 

 

 

 

 

7

 

 

 

 

 

 

 

8

 

 

 

 

 

 

 

9

 

 

 

 

 

 

 

 

 

 

 

 

 

 

 

Приложение В

(обязательное)

Образец

Штамп предприятия

СПРАВКА
ИСПЫТАНИЯ ПЛОТНОСТИ ЗЕМЛЯНОГО ПОЛОТНА

Наименование объекта ____________________________________________________

Адрес объекта ___________________________________________________________

Земляное полотно подготовлено под ________________________________________

(устройство рельсового пути, фундамента

________________________________________________________________________

приставного крана или подъемника типа)

Плотность грунта земляного полотна составляет ______________________________

(в зоне основного грунта и

________________________________________________________________________

отдельно в зоне насыпного)

Испытания проводились «____»____________200__ г. методом _________________

(дата)

______________________________________________________________________

Испытания проводил ____________________________________________________

(должность, фамилия)

Приложение - Схема расположения взятия проб

Главный инженер строительной организации       ____________________

Начальник строительной лаборатории                   ____________________

Лицо, проводившее испытание грунта                    ____________________

(Печать)

Приложение Г

(обязательное)

Форма ИГАСН№ Ц/99

АКТ
освидетельствования скрытых работ

г. Москва                                                                           «____»____________200__ г.

_______________________________________________________________________

(наименование работ)

выполненных в __________________________________________________________

(наименование здания, сооружения)

по адресу _______________________________________________________________

(район застройки, квартал, улица, № дома и корпуса)

Комиссия в составе представителей:

(указать должность ф. и. о., организация)

Авторского надзора_______________________________________

(при его участии)

Технического надзора заказчика ____________________________

Генеральной подрядной организации ________________________

Субподрядной организации ________________________________

________________________________________________________

произвела осмотр работ, выполненных ______________________________________

________________________________________________________________________

(наименование строительно-монтажной организации)

и составила настоящий акт о нижеследующем:

1. К освидетельствованию и приемке представлены следующие работы __________

________________________________________________________________________

(наименование скрытых работ)

2. Работы выполнены по проекту ___________________________________________

________________________________________________________________________

(проект серии, наименование проектной организации, № чертежей и дата их составления)

3. При выполнении работ применены ________________________________________

________________________________________________________________________

(наименование материалов, конструкций, изделий с указанием марки, типа, категории качества и т.д.)

4. Дата начала работ ______________________________________________________

5. Дата окончания работ ___________________________________________________

Решение комиссии

Работы выполнены в соответствии с проектом, стандартами, строительными нормами и отвечают требованиям их приемки. На основании изложенного разрешается производство последующих работ по устройству (монтажу)

________________________________________________________________________

________________________________________________________________________

(наименование работ и конструкций)

Представители:               Генеральной подрядной организации ___________________

(подписи)                         Субподрядной организации ___________________________

Технического надзора заказчика _______________________

Авторского надзора проектной организации _____________

Приложение Д

(обязательное)

Образец

АКТ
сдачи фундамента под строительный подъемник

«____»___________200___ г.

1. Наименование объекта и адрес ___________________________________________

________________________________________________________________________

2. Фундамент под грузопассажирский подъемник типа _________________________

выполнен согласно чертежу (типовому проекту) № ____________________________

арх. № ________________ разработанному ___________________________________

3. Анкерные болты (закладные детали) установлены ___________________________

(в соответствии с проектом или имеют отклонения)

4. Акты на скрытые работы:

а) на армирование: имеется № _______________от «_____»______________200__ г.

б) на бетонные работы: имеется № ____________от «_____»_____________200__ г.

в) на установку анкеров (закладных деталей): имеется № ____от «___»_____200__ г.

5. Работы по устройству фундамента выполнял _______________________________

(организация, должность, фамилия, подпись)

________________________________________________________________________

6. Фундамент под монтаж подъемника типа __________________________________

принял _________________________________________________________________

(должность, фамилия, подпись)

Приложение Е

(обязательное)

Образец

ПРИКАЗ
по строительному управлению_______________
о назначении ответственных лиц за безопасное перемещение грузов и людей с помощью подъемника

г. Москва                                                                                   «___»__________200__ г.

№_____

В соответствии с требованиями стандартов, норм и правил и в целях обеспечения безопасной эксплуатации грузопассажирских строительных подъемников на строительстве

_______________________________________________________________________

по адресу: ______________________________________________________________

ПРИКАЗЫВАЮ:

1. Назначить посменно ответственными лицами за безопасное перемещение грузов и людей

подъемником типа ___________________регистрационный № __________________

на строительстве ________________________________________________________

от производителя работ _______________________удостоверение № ____________

действительно до _____________________200__ г.

производителя работ ___________________________удостоверение № ___________

действительно до _____________________200__ г.

производителя работ ___________________________удостоверение № ___________

действительно до _____________________200__ г.

мастера ______________________________________удостоверение № ___________

действительно до ______________________200__ г.

мастера ______________________________________удостоверение № ___________

действительно до ______________________200__ г.

2. Посменный выход на работу работников, указанных в настоящем приказе, согласно графику, составленному начальником участка.

Руководитель строительной организации _______________________________

(Печать)

Приложение Ж

(обязательное)

ПРИКАЗ
на ответственное лицо по эксплуатации электрохозяйства по строительной организации_________________________

г. Москва                          №_________                             «___»____________200__ г.

В соответствии с требованиями техники безопасности в строительстве СНиП 12-03-2001 и в целях безопасной эксплуатации электроустановок на строительстве ________

________________________________________________________________________

по адресу _______________________________________________________________

ПРИКАЗЫВАЮ:

Назначить ответственным лицом за эксплуатацию электрохозяйства _____________

________________________________________________________________________

(должность, фамилия, имя, отчество)

Удостоверение № ______________действительно до ___________________200__ г.

Квалификационная группа по технике безопасности __________________________

Начальник строительной организации _____________________

(Печать)

 

 



© 2013 Ёшкин Кот :-)