Информационная система
«Ёшкин Кот»

XXXecatmenu

ГОСАГРОПРОМ СССР

ПОДОТДЕЛ ПРОЕКТНЫХ ОРГАНИЗАЦИЙ

ГИПРОНИСЕЛЬХОЗ

 

РЕКОМЕНДАЦИИ
ПО РЕКОНСТРУКЦИИ
ЖИВОТНОВОДЧЕСКИХ ФЕРМ

 

 

УТВЕРЖДЕНЫ

ПОДОТДЕЛОМ ПРОЕКТНЫХ ОРГАНИЗАЦИЙ
ГОСАГРОПРОМА СССР 21 ИЮЛЯ 1987 ГОДА

МОСКВА - 1987

 

Рекомендации по реконструкции животноводческих ферм подготовлены институтом «Гипронисельхоз» на основе изучения и обобщения отечественного и зарубежного опыта проектирования и строительства и по материалам институтов ВНИИМЖ, Казгипроселхоз, СевкавНИПИагропром, Укрнииагропроект, НИПТИМЭСХ НЗ, организаций «Агропромтехпроекта» и др.

Приведены рекомендации по реконструкции животноводческих ферм и примеры осуществленных в натуре, по проектам различных организаций, реконструкций отдельных ферм и зданий.

Рекомендации в качестве пособия предназначены для специалистов проектных и строительных организаций, работников сельскохозяйственных органов, принимающих решения по реконструкции, расширению и техническому перевооружению действующих животноводческих ферм.

В составлении рекомендаций приняли участие А.Н. Дормидонтов, М.И. Назаров (Госагропром СССР), А.Г. Иванков, Т.И. Алексеева, Л.Б. Глейберг, В.П. Курдин, Н.И. Красотова, Л.И. Кропп, А.А. Лившиц, А.Н. Митин, Е.А. Никишов, В.А. Назаров, Н.М. Персиянов, И.Н. Свистухин, В.Н. Терешин, Д.А. Черепашенец, Т.Ф. Яковлева (Гипронисельхоз).

Рекомендации подготовлены под общей редакцией И.С. Быстрицкого - заместителя начальника Подотдела проектных организаций Госагропрома СССР.

 

ВВЕДЕНИЕ

Выполнение поставленной в Продовольственной Программе и в решениях XXVII съезда КПСС задачи по значительному увеличению производства мясных и молочных продуктов требует, наряду с улучшением кормопроизводства, племенной и селекционной работы, подготовки и закрепления квалифицированных кадром, также существенного переустройства материальной базы животноводства с учетом современных достижений науки, техники и технологии, научной организации труда.

Учитывая необходимость решения этой задачи в короткие сроки, наряду с новым строительством современных ферм (главным образом, для компенсации выбывающих по износу мелких ферм старой постройки), большую часть централизованно выделяемых капитальных вложений, а также собственных средств колхозов и совхозов необходимо направлять на реконструкцию, расширение и техническое перевооружение действующих, еще достаточно капитальных ферм, зданий и сооружений.

Эта задача актуальна еще и потому, что на действующих фермах имеются уже сложившиеся рабочие коллективы, имеющие определенный накопленный опыт работы, и в ряде случаев за счет относительно небольших капитальных вложений возможно создать привлекательные условия для труда людей (за счет механизации трудоемких процессов и улучшения бытовых условий), а также улучшить условия содержания животных с целью повышения их продуктивности.

Вопросы целесообразности и размеров реконструкции, расширения и технического перевооружения действующих ферм в каждом отдельном случае требуют тщательного инженерно-экономического и хозяйственного анализа (технико-экономических расчетов) и, как правило, должны решаться в совокупности с одновременным решением таких организационно-хозяйственных вопросов как улучшение кормопроизводства, племенной и селекционной работы, подготовки и закрепления кадров. Во многих случаях на реконструкцию и техническое перевооружение действующих ферм приходится идти, в первую очередь, именно по этой причине, с тем, чтобы сохранить, а затем и развить действующее производство.

Все это должно находить отражение в долгосрочных планах агропромышленных комитетов и РАПО по развитию сельскохозяйственного производства в каждом конкретном районе, составленных с учетом схем развития и размещения сельскохозяйственного производства и проектов районных планировок, на основе паспортизации и технико-экономической оценки действующих ферм.

Проектные организации по заданиям сельскохозяйственных органов, колхозов и совхозов ведут большую работу по инженерным и экономическим обследованиям животноводческих ферм, разработке экономически обоснованных предложений и проектно-сметной документации на их реконструкцию, расширение и техническое перевооружение. Имеется немало удачных решений, и том числе реализованных на практике. Однако эта работа ведется разобщенно и накопленный отдельными организациями положительный опыт еще не стал общим достоянием.

В связи с этим институт «Гипронисельхоз» по инициативе Госагропрома СССР в настоящей работе предпринял попытку обобщить этот опыт с тем, чтобы лучшие решения могли быть использованы в качестве примеров в дальнейшей работе проектных организаций. Кроме того на этой же основе, даны некоторые рекомендации, пользуясь которыми проектные организации и органы заказчика могли бы полно представить себе объем и содержание предстоящей работы по разработке проектно-сметной документации на реконструкцию, расширение и техническое перевооружение животноводческих предприятий.

I. ПРЕДПРОЕКТНЫЕ РАБОТЫ

1.1. Решения о реконструкции, расширении (реконструкции с расширением) или новом строительстве, их размерах и, соответственно, о разработке для этих целей проектно-сметной документации должны приниматься на основании технико-экономических обоснований (ТЭО - по крупным и сложным предприятиям) или на основании технико-экономических расчетов (ТЭР - по другим предприятиям).

Технико-экономические расчеты (ТЭР) при обосновании целесообразности и эффективности реконструкции по сравнению с новым строительством должны иметь вариантную проработку и обосновываться на данных:

утвержденных схем развития и размещения сельскохозяйственного производства республики, области, района на соответствующий период, проектов районных планировок, а также генеральных планов сельских населенных пунктов (их производственных зон);

перспективных планов специализации, концентрации и межхозяйственной кооперации сельского хозяйства района (РАПО);

планов социально-экономического развития колхозов, совхозов и других хозяйств;

паспортизации ферм с выявлением их технического и экономического состояния;

оценки состояния и перспектива развития кормовой базы, обеспечения ферм ремонтным молодняком и трудовыми ресурсами.

1.2. Решения о техническом перевооружении и разработке соответствующей проектно-сметной документации принимаются при составлении планов технического развития предприятий (определение понятий нового строительства, расширения, реконструкции и технического перевооружения действующих предприятий см. в приложении 1).

1.3. Разработка проектно-сметной документации осуществляется в минимально необходимом объема в соответствии со СНиП 1.02.01-85, «Инструкцией по составу, порядку разработки, согласования и утверждения проектно-сметной документации на строительство предприятий, зданий и сооружений агропромышленного комплекса» ВСН 113-87, утвержденной Госагропромом СССР по согласованию с Госстроем СССР, нормами технологического и строительного проектирования, другими нормативными и директивными документами по проектированию.

1.4. Строительство (реконструкция, расширение) животноводческих, птицеводческих и других ферм и комплексов, как правило, следует вести по комплексным проектам, предусматривающим развитие предприятия на полную (конечную) мощность с выделением (при необходимости) соответствующих очередей или пусковых комплексов. Не рекомендуется строительство (реконструкция, расширение) по проектам и сметам на отдельные объекты, «вне комплекса» стройки, как не достигающее, в большинстве случаев, необходимого экономического эффекта.

1.5. Во всех случаях до начала проектирования должен составляться паспорт предприятия, который должен содержать в своем составе необходимые для проведения технико-экономических расчетов и возможности оценки предполагаемых решений данные, основанные на материалах обследований.

1. ИНЖЕНЕРНЫЕ ОБСЛЕДОВАНИЯ

Инженерные обследования зданий и сооружений выполняются для оценки возможности и целесообразности проведения строительно-монтажных работ при реконструкции, а также определения их объемов, и, в частности, объемов работ по капитальному ремонту. Капитальным ремонтом должны сопровождаться (совмещаться по времени) в большинстве случаев реконструкция или расширение предприятия, имея в виду, что работы по капитальному ремонту при реконструкции хотя и проводятся одновременно и включаются в общий сводный сметный расчет стоимости, но выделяются отдельной строкой поскольку финансируются за счет той части амортизационных отчислений, которая выделяется на «реновацию», т.е. на восстановление изношенных фондов.

Как правило, инженерные обследования совмещаются по времени с экономическим обследованием (изучением) и делятся условно на три раздела:

обследование строительной части зданий и сооружений;

обследование технологического и инженерного оборудования;

обследование дорог (площадок с твердым покрытием) и инженерных сетей.

Обследование строительной части зданий и сооружений производится с целью выявления состояния как отдельных строительных элементов (фундаменты, стены, покрытия, перекрытия, кровля, элементы каркаса, полы, каналы, заполнения оконных дверных и воротных проемов и т.д.), так и всего здания или сооружения в целом.

При обследовании технологического и инженерного оборудования устанавливаются его типы, марки и технические характеристики, степень физического износа - с целью определения пригодности к дальнейшей эксплуатации, а также для оценки целесообразности замены на другой тип или марку.

Обследование дорог и площадок с твердым покрытием производится с целью установления их конструкции и определения дефектов для оценки возможности применения того или иного вида транспорта и объема необходимого ремонта или усиления дорожной одежды.

Обследование инженерных сетей (водопровода, канализации, теплотрасс, кабельной (воздушной) силовой или слаботочной сетей) производится с целью установления их технического состояния, конструкции, пропускной способности, глубины заложения и т.д. для оценки возможности или целесообразности их дальнейшего использования или необходимости капитального ремонта, замены по техническому состоянию или несоответствию требованиям СНиП, пропускной способности, требованиям техники безопасности.

Примечание. После составления и утверждения технико-экономического расчета и принятия решения о проектировании потребуется проведение обмерных работ с составлением дефектных ведомостей на здания и сооружения, необходимых для разработки рабочих чертежей на реконструкцию, а также для составления смет на строительные работы и на капитальный ремонт, сопутствующий реконструкции. Кроме того, при отсутствии у заказчика материалов инженерных изысканий (топографической съемки и инженерной геологии) последние также должны быть выполнены в минимально необходимом объеме одновременно с производством обмерных работ.

Учитывая то обстоятельство, что работы по паспортизации, инженерным обследованиям и обмерам зданий, сооружений и сетей не относятся к категории проектно-изыскательских работ, целесообразно поручать их выполнение конторам «Агропромтехпроект» за счет средств основной деятельности заказчика (в тех случаях, когда они не могут быть выполнены силами строительного подразделения заказчика).

2. ЭКОНОМИЧЕСКИЕ ОБСЛЕДОВАНИЯ

Экономическое изучение хозяйственной структуры и деятельности хозяйства (совхоза, колхоза и т.д.) в целом делается для правильного понимания роли и значения подлежащей реконструкции животноводческой фермы в общем балансе его хозяйственной деятельности и оценки возможных масштабов и направлений ее дальнейшего развития (увеличения объема производства продукции), включая развитие или совершенствование кормовой базы и базы комплектации (ремонта) ее основного стада, обеспечения кормами и т.д. С этой целью изучаются организационно-хозяйственный план и план внутрихозяйственного землеустройства, выявляются возможные резервы земельных ресурсов для организации дополнительной кормовой базы.

Затем подлежит изучению действующая животноводческая ферма с точки зрения экономических результатов ее деятельности. Анализируются система содержания животных, обеспечение кормами, их структура, способы хранения и подготовки к скармливанию, организация труда и штаты, источники комплектования основного стада ремонтным поголовьем, продуктивность животных, выявляется и анализируется себестоимость продукции. Анализ этих факторов, в сопоставлении с данными инженерного обследования и оценкой физического состояния основных производственных фондов, позволяет сделать определенные выводы о целесообразности осуществления тех или иных реконструктивных мероприятий с определением размера необходимых капиталовложений и ожидаемым экономическим эффектом (технико-экономический расчет), данные этого расчета и основанные на нем выводы должны лечь в основу задания на проектирование расширения или реконструкции (с возможным расширением) рассматриваемой фермы. При необходимости прорабатываются два - три возможных варианта реконструкции с сопоставлением и сравнением результатов технико-экономических расчетов. Наиболее выгодный из них принимается в качестве основы задания на проектирование.

Для удобства работы ниже приводится краткий инструментарий (формы) основных сведений, необходимых работнику проектной организации при обследовании хозяйства (фермы).

Форма 1

Сведения о хозяйстве

Республика _______________________________________________________________

Область (край) ____________________________________________________________

Район ___________________________________________________________________

Наименование хозяйства ____________________________________________________

Подчиненность хозяйства ___________________________________________________

Направленность хозяйства по производству продукции ___________________________

Количество бригад (отделений) ______________________________________________

Количество ферм (комплексов) и их мощность __________________________________

в том числе:

по производству молока ____________________________________________________

по выращиванию нетелей ___________________________________________________

по производству говядины __________________________________________________

по производству свинины ___________________________________________________

прочие __________________________________________________________________

Балансовая стоимость основных производственных фондов на 01.01.198_ г. ________________________________________________________________тыс. руб.

в том числе:

здания и сооружения ______________________________________________ тыс. руб.

мелиорация ______________________________________________________ тыс. руб.

передаточные устройства __________________________________________ тыс. руб.

оборудование (орудия труда) _______________________________________ тыс. руб.

рабочий и продуктивный скот ______________________________________ тыс. руб.

Почтовый индекс хозяйства __________________________________________________

Директор (фамилия, имя, отчество) ____________________________________________

Главный инженер (фамилия, имя, отчество) ____________________________________

Главный зоотехник (фамилия, имя, отчество) ___________________________________

Главный ветврач (фамилия, имя, отчество) _____________________________________

Форма 2

ПЕРЕЧЕНЬ
основных фондов колхоза (совхоза, комплекса), здания и сооружения

№ п/п

Наименование зданий и сооружений

Краткая характеристика конструктивных элементов (материалы)

количество

балансовая стоимость на 01.01 198_ г.

год постройки (ввода в эксплуатацию)

процент износа

фундаменты

стены

полы

перекрытия (покрытия)

кровля

оконные и дверные проемы

1

2

3

4

5

6

7

8

9

10

11

12

1.

Коровники

 

 

 

 

 

 

 

 

 

 

2.

Родильные отделения

 

 

 

 

 

 

 

 

 

 

3.

Телятники

 

 

 

 

 

 

 

 

 

 

4.

Доильно-молочные блоки

 

 

 

 

 

 

 

 

 

 

5.

Здания для ремонтного молодняка

 

 

 

 

 

 

 

 

 

 

6.

Свинарники

 

 

 

 

 

 

 

 

 

 

7.

Навесы для животных

 

 

 

 

 

 

 

 

 

 

8.

Кормоцехи

 

 

 

 

 

 

 

 

 

 

9.

Пункты искусственного осеменения

 

 

 

 

 

 

 

 

 

 

10.

Дезбарьеры

 

 

 

 

 

 

 

 

 

 

11.

Ветеринарные здания

 

 

 

 

 

 

 

 

 

 

12.

Убойно-санитарные пункты

 

 

 

 

 

 

 

 

 

 

13.

Административные здания

 

 

 

 

 

 

 

 

 

 

14.

Ветеринарно-санитарные пропускники

 

 

 

 

 

 

 

 

 

 

15.

Траншеи для хранения силоса

 

 

 

 

 

 

 

 

 

 

16.

Склады кормов

 

 

 

 

 

 

 

 

 

 

17.

Сооружения очистки и хранения навоза

 

 

 

 

 

 

 

 

 

 

18.

Навозохранилища

 

 

 

 

 

 

 

 

 

 

19.

Жижесборники

 

 

 

 

 

 

 

 

 

 

20.

Автомобильные весы

 

 

 

 

 

 

 

 

 

 

21.

Навесы

 

 

 

 

 

 

 

 

 

 

22.

Сараи для сена

 

 

 

 

 

 

 

 

 

 

23.

Технологические ограждения

 

 

 

 

 

 

 

 

 

 

24.

Дороги и площадки с твердым покрытием

 

 

 

 

 

 

 

 

 

 

25.

Трансформаторные подстанции

 

 

 

 

 

 

 

 

 

 

26.

Котельные

 

 

 

 

 

 

 

 

 

 

27.

Тепловые сети

 

 

 

 

 

 

 

 

 

 

28.

Сети водопровода

 

 

 

 

 

 

 

 

 

 

29.

Сети канализационные

 

 

 

 

 

 

 

 

 

 

30.

Электросети

 

 

 

 

 

 

 

 

 

 

31.

Слаботочные устройства

 

 

 

 

 

 

 

 

 

 

32.

Прочие сооружения

 

 

 

 

 

 

 

 

 

 

Приложения:

Форма 3

ТЕХНИКО-ЭКОНОМИЧЕСКИЕ ПОКАЗАТЕЛИ РАБОТЫ ФЕРМЫ

(название фермы, вид продукции, мощность)

за ___________________ годы

№ п/п

Наименование показателей

Единица измерения

Количество

по проекту

за 198_ г.

за 198_ г.

за 198_ г.

1

2

3

4

5

6

7

1.

Количество скотомест (вместимость)

скотомест

 

 

 

 

2.

Годовое производство продукции (по видам)

ц

 

 

 

 

3.

Балансовая стоимость основных производственных фондов

тыс. руб.

 

 

 

 

в том числе:

 

 

 

 

 

здания и сооружения

-"-

 

 

 

 

оборудование (орудия труда)

-"-

 

 

 

 

передаточные устройства

-"-

 

 

 

 

4.

Мощность фермы

голов

 

 

 

 

5.

Продуктивность одного животного (удой на одну корову, среднесуточный привес и т.д.)

кг

 

 

 

 

6.

Стоимость валовой продукции в ценах реализации

тыс. руб.

 

 

 

 

7.

Валовая себестоимость продукции

-"-

 

 

 

 

8.

Себестоимость единицы продукции

руб.

 

 

 

 

9.

Количество работающих, всего

чел.

 

 

 

 

в том числе работников, непосредственно обслуживающих животных

-"-

10.

Затраты труда всех работающих на единицу продукции

чел.-ч.

 

 

 

 

11.

Затраты труда работников, непосредственно обслуживающих животных, на единицу продукции

-"-

 

 

 

 

12.

Затраты кормов на производство продукции:

т. к. ед.

 

 

 

 

концентрированных кормов

ЗЦМ

сено

солома

сенаж

силос

пастбищный корм

13.

Структура себестоимости единицы продукции:

руб. (%)

 

 

 

 

заработная плата с начислениями

корма

амортизационные отчисления и отчисления на текущий ремонт

вода

тепло (топливо)

электроэнергия

транспортные расходы

медикаменты и дезосредства

прочие прямые расходы

общепроизводственные расходы

общехозяйственные расходы

14.

Годовая прибыль

тыс. руб.

 

 

 

 

15.

Фондоотдача (стоимость валовой продукции на 1 руб. стоимости основных производственных фондов)

руб.

 

 

 

 

Примечание. Технико-экономические показатели фермы следует привести за последние три года в динамике.

Форма 4

СОСТАВ ФЕРМ

1. Наименование фермы и ее мощность _______________________________________

2. Местонахождение фермы (адрес) __________________________________________

3. Год ввода в эксплуатацию ________________________________________________

4. Кто разработчик проекта _________________________________________________

5. Состав фермы:

перечень и количество зданий для содержания животных ______________________

перечень и количество зданий подсобно-производственного и вспомогательного назначения ______________________________________________________________

протяженность сетей водопровода ________________________________________

протяженность сетей канализации ________________________________________

протяженность сетей теплоснабжения _____________________________________

протяженность сетей электроснабжения ____________________________________

протяженность и площадь дорог и площадок с твердым покрытием _____________

Совокупность вышеприведенных документов и исходных данных составляет так называемый «паспорт» предприятия (фермы, комплекса) и является вместе с заданием на проектирование основным материалом для разработки проектно-сметной документации на реконструкцию (в зависимости от объема работ по реконструкции или расширению и необходимой степени детализации при разработке проектно-сметной документации). Кроме паспорта должны также прилагаться обмерные чертежи зданий и сооружений, дефектные ведомости и, в необходимых случаях, материалы технических изысканий, т.е. «строительный паспорт».

3. ТЕХНИКО-ЭКОНОМИЧЕСКИЕ РАСЧЕТЫ (ТЭР)

Технико-экономические обоснования (ТЭО), разрабатываемые для крупных и сложных и некоторых других (по титульным спискам) объектов, в практике работы проектных организаций встречаются достаточно редко. Наиболее часто рассматриваемый вид обосновывающих материалов - это технико-экономические расчеты (ТЭР), обосновывающие экономическую целесообразность реконструкции или расширения (реконструкции с расширением) действующих предприятий по сравнению с новым строительством, а также уточняющие их направление, мощность, определяющие очередность строительства, его предварительную стоимость, технико-экономическую оценку принятых решений и технико-экономические показатели. В зависимости от мощности и сложности предприятия технико-экономические расчеты могут быть достаточно подробными или краткими, но, в основном, должны содержать в своем составе краткие сведения по следующим основным вопросам:

а) исходные положения и общие сведения о хозяйстве (содержание из п. 1.5);

б) объем планируемого прироста производства продукции и источники обеспечения этого прироста.

В разделе приводятся данные об объемах планируемого прироста производства на 1990, 1995 и 2000 гг. Объем прироста производства продукции разбивается по предполагаемым источникам его обеспечения, проведению организационно-технических мероприятий на действующих объектах, реконструкции или расширению действующих объектов или за счет строительства новых предприятий. Прирост объемов производства принимается на основе директивных материалов, планов экономического и социального развития хозяйств, схем развития и размещения отрасли и других материалов.

В этом же разделе приводится расчет потребных ресурсов для обеспечения заданного прироста объема производства данного вида продукции, с указанием источников обеспечения требующихся ресурсов и возможности их получения, включая рабочую силу и капиталовложения, и производится краткий анализ имеющихся основных фондов колхоза, совхоза, межхозяйственного предприятия. На основании сопоставления и оценки материалов этого раздела делается вывод о целесообразности нового строительства, реконструкции или расширения действующего предприятия (объекта).

Критерием выбора нового строительства, реконструкции или расширения действующего предприятия (объекта) является минимум капитальных вложений и потребных материальных ресурсов на заданное (планируемое) увеличение объема производства (если нет других более важных в данном случае критериев);

в) краткая характеристика технических и технологических решений.

В данном разделе приводятся данные, характеризующие намеченное решение с технологически-строительной точки зрения, намечаемые (предлагаемые) решения по технологии, механизации, автоматизации, строительным решениям, охране окружающей среды. Приводятся ссылки на предполагаемые к использованию типовые решения и типовые проекты отдельных зданий и сооружений (в случае необходимости прикладываются каталожные листы; приводится схема генерального плана, ситуационный план с показом вновь сооружаемых инженерных сетей, дорог и т.д.);

г) потребность в ресурсах предприятия и источники их обеспечения.

Приводится примерный подсчет потребности производства в материалах, сырьевых, кормовых, трудовых, энергетических, материальных и других ресурсах, также приводятся основные положения по организации строительства.

Расчет потребности производится на основе нормативных, справочных материалов, типовых или индивидуальных проектов-аналогов или укрупненных показателей. Приводятся также данные об источниках удовлетворения этих потребностей. Здесь же дается расчет потребного (дополнительного) поголовья животных и данные о возможности их поставки и расчеты по организации кормовой базы, включая мелиорацию земель;

д) капитальные вложения.

Объемы капитальных вложений определяются на основе нормативов удельных капитальных вложений, укрупненных показателей сметной стоимости, укрупненных сметных норм (УСН), стоимостных показателей предприятий-аналогов, смет к типовым проектам;

е) экономика производства.

В данном разделе приводятся (на основе калькуляции) себестоимости производства продукции и расчет прибыли от ее реализации, дается оценка экономической эффективности принятых проектных решений, приводится таблица технико-экономических показателей, делаются выводы о целесообразности дальнейшего проектирования и строительства (реконструкции, расширения, технического перевооружения или же их сочетаний).

ТЭР утверждаются при стоимости строительства:

до 1 млн. руб. - руководителями колхозов, совхозов и других организаций и предприятий;

от 1 до 2 млн. руб. - районными агропромышленными объединениями (ГАПО);

от 2 до 4 млн. руб. - агропромышленными комитетами автономных республик, краев и областей;

от 4 до 10 млн. руб. - Госагропромами союзных республик.

4. ЗАДАНИЕ НА ПРОЕКТИРОВАНИЕ

Задание на проектирование составляется заказчиком проекта с привлечением генерального проектировщика на основе технико-экономического расчета (ТЭР).

В задании на проектирование подлежащих реконструкции (расширению) действующих предприятий должны указываться мощность предприятия на полное развитие и по очередям, номенклатура продукции, условия обеспечения кормами (сырьем), инженерными и другими ресурсами и приводиться технико-экономические показатели (как контрольные), а также, в случае необходимости, особые условия, подлежащие учету при проектировании.

В задании на проектирование должны быть также установлены требования по внедрению новой техники и передового опыта, росту производительности труда, утилизации отходов производства и вторичных энергоресурсов, охране окружающей среды.

Требования к проектированию объектов жилищно-гражданского строительства, при необходимости, включаются отдельным пунктом в задание на проектирование производственного объекта. В последующем, при необходимости, на строительство жилищно-гражданских объектов может составляться отдельное задание на основе архитектурно-планировочного задания (АПЗ).

Задания на проектирование предприятий, зданий, сооружений и их реконструкции (расширения) утверждаются в порядке, установленном Госагропромом СССР (в соответствии с лимитностью утверждения проектно-сметной документации).

Заказчик выдает проектной организации утвержденное задание на проектирование с материалами строительного паспорта и утвержденным ТЭР.

Примерный состав задания на проектирование

СОГЛАСОВАНО:                                                                              УТВЕРЖДАЮ:

_______________                                                                               _____________

_______________                                                                               _____________

ЗАДАНИЕ

на проектирование реконструкции (расширение)

фермы ____________ в колхозе ______________

района ____________ области _______________

1. Наименование проектируемого объекта ___________________________________

2. Район, пункт и площадка строительства ___________________________________

3. Основание для проектирования __________________________________________

4. Вид строительства (реконструкция, расширение, новое строительство) _________

5. Номенклатура и объем производства _____________________________________

6. Производственное и хозяйственное кооперирование ________________________

7. Технологическая схема и организация производства ________________________

8. Режим работы предприятия _____________________________________________

9. Задание по использованию в проекте научно-технических достижений в области технологии производства, строительных конструкций и материалов ________________

10. Требования по механизации и автоматизации технологических процессов, а также по научной организации труда _________________________________________

11. Условия энергоснабжения, теплоснабжения, водоснабжения, канализации, связи

______________________________________________________________________

12. Исходные положения для разработки мероприятий по защите окружающей природной среды _________________________________________________________

13. Задания по основным технико-экономическим показателям проектируемого предприятия, а также задание по экономному расходованию материальных, энергетических ресурсов, утилизации отходов, вторичных энергоресурсов, по росту производительности труда ___________________________________________________

14. Сроки начала и окончания строительства _________________________________

15. Требования по выделению в проекте очередей, пусковых комплексов _________

16. Внешние транспортные связи ___________________________________________

17. Стадийность проектирования ___________________________________________

18. Наименование проектной организации генпроектировщика _________________

19. Наименование строительно-монтажной организации - генподрядчика _________

20. Особые условия _______________________________________________________

Директор проектного                                                                       Директор совхоза

института                                                                                           ____________

_________                                                                                           района ________

                                                                                                             области________

«__»________198_ г.                                                                        «__»_______198_ г.

II. ПРОЕКТИРОВАНИЕ

1. ПРИНЦИПЫ РАЗРАБОТКИ (СОВЕРШЕНСТВОВАНИЯ) ГЕНЕРАЛЬНОГО ПЛАНА РЕКОНСТРУИРУЕМЫХ ФЕРМ

1.1. При разработке генеральных планов реконструируемых ферм следует предусматривать:

концентрацию производственных объектов на одном зональном участке;

улучшение необходимых дорог и проездов и ликвидацию малодеятельных подъездных путей и дорог;

ликвидацию мелких и устаревших объектов, не имеющих земельных участков для дальнейшего развития, а также объектов, в которых миновала надобность, или оказывающих отрицательное влияние на селитебную территорию, соседние предприятия и окружающую среду;

обязательную рекультивацию земельных участков ликвидируемых объектов или нарушенных при строительстве новых;

улучшение благоустройства производственных территорий и санитарно-защитных зон, повышение архитектурного уровня застройки;

организацию площадок для стоянки автомобильного транспорта.

1.2. В целях повышения плотности застройки новые объекты, по необходимости, следует располагать в разрывах между существующими зданиями и сооружениями, максимально блокировать производственные и вспомогательные здания, соблюдая при этом противопожарные, зооветеринарные и санитарные разрывы.

1.3. При разработке генеральных планов реконструируемых предприятий необходимо предусматривать четкое зонирование территории, выделяя при этом зоны: хранения кормов, хранения и обработки навоза, производственную и, по возможности, подсобно-вспомогательную зоны.

Общефермскую молочную, здания для приема и отгрузки животных необходимо располагать на границе ферм с целью исключения заезда внешнего транспорта на территорию ферм. Котельная на ферме должна располагаться в центре нагрузок.

Для создания единства архитектурно-планировочного ансамбля существующих и вновь размещаемых объектов при строительстве дополнительных зданий следует предусматривать четко выраженные линии застройки, а также упрощение конфигурации зданий путем технологически оправданной ликвидации отдельных пристроек.

Проект генплана следует разрабатывать с учетом возможного производства работ по реконструкции или расширению ферм очередями, чтобы была обеспечена возможность строительства отдельных очередей без нарушения условий эксплуатации уже введенных. При этом необходимо предусматривать опережающий ввод объектов кормопроизводства, энергетических объектов и очистных сооружений.

1.4. При проектировании благоустройства необходимо:

сохранить, по возможности, существующие элементы благоустройства;

на участках, свободных от застройки дорог и площадок с твердым покрытием, а также по периметру площадки фермы предусматривать озеленение (для отдельных зон ветрозащитные полосы); для насаждений следует подбирать местные виды растений с учетом их санитарно-защитных и декоративных свойств и устойчивости к воздействию производственных выбросов;

предусматривать открытые благоустроенные площадки для отдыха обслуживающего персонала из расчета 1 м2 на одного работающего в наиболее многочисленную смену;

отвод поверхностных вод (не требующих очистки) следует производить, в основном, за счет осуществления рациональной вертикальной планировки. Сточные воды, требующие очистки, отводить на очистные сооружения.

По периметру ферм следует предусматривать ограждение в соответствии с указаниями по проектированию ограждений площадок и участков предприятий зданий и сооружений.

При въезде на территорию ферм следует предусматривать обогреваемый в зимнее время дезбарьер.

2. ТЕХНОЛОГИЯ ПРОИЗВОДСТВА

При выборе технологической схемы для реконструируемой фермы необходимо учитывать:

мощность фермы в конце реконструкции;

состояние и перспективу развития кормовой базы;

намечаемую специализацию фермы после реконструкции;

фактический и планируемый уровень продуктивности животных;

планируемый уровень производительности труда;

намечаемую продолжительность ритма производства;

состояние и структуру существующих производственных площадей.

На подлежащей реконструкции ферме следует внедрить единую технологию, все звенья которой увязаны в единый комплекс. Вместе с тем при внедрении новой технологии в отдельных звеньях могут быть оставлены элементы старой технологии, если это не будет противоречить поточности производства, сократит расходы на перестройку или приведет к интенсификации производства (использование существующего кормоцеха, действующей системы навозоудаления и т.д.).

В большинстве случаев целесообразно предусматривать поэтапный переход на новую организацию производства (величина технологических групп, ритм производства и т.д.) по мере ввода в действие отдельных зданий и сооружений, как элементов единого комплекса.

А. Фермы для крупного рогатого скота

Во всех случаях при проектировании реконструкции ферм или их расширения следует руководствоваться «Общесоюзными нормами технологического проектирования предприятий для крупного рогатого скота» ОНТП 1-77, а также другими нормативными документами для проектирования (в вынужденных случаях могут допускаться обоснованные отступления).

В зависимости от конкретных условий хозяйства (состояние кормовой базы, квалификация кадров, площадь пастбищ, удаленность их от формы и т.д.) на реконструируемых молочных фермах могут применяться круглогодовая стойловая или стойлово-пастбищная (вариант стойлово-лагерная) системы содержания скота.

Стойлово-пастбищная система приемлема при удалении культурных пастбищ от фермы не более 3 км, когда скот для дойки и отдыха может пригоняться на ферму, а стойлово-лагерная - при удалении пастбища от фермы на расстояние более 3 км.

Определяющей составной частью технологии на фермах крупного рогатого скота является способ его содержания: привязный, беспривязно-боксовый или беспривязный групповой на глубокой подстилке.

Опыт передовых хозяйств показывает, что рациональная организация труда и комплексная механизация производства, при использовании последних достижений науки и передовой практики, позволяют довести нагрузку на одного работающего как при беспривязно-боксовом, так и при привязном способе содержания на одного работающего до 30 - 35 и более коров.

Беспривязно-боксовый способ содержания обеспечивает наибольшую «нагрузку» на одного работающего, т.е. наименьшие трудовые затраты на обслуживание одного животного или на единицу продукции. Однако этот способ требует несколько больших производственных площадей, подбора дойного стада по ряду признаков и обеспеченность кормами.

Применение традиционного привязного способа содержания коров, особенно с использованием автоматических групповых привязей-отвязей (например, оборудование стойловое с автоматической привязью ОСП-Ф-26) и организацией доения коров в доильных залах позволили почти полностью исключить затраты труда на привязывание и отвязывание коров. При этом сохраняются все преимущества привязного способа: возможность нормированного кормления, индивидуального ухода, более экономное расходование кормов за счет уменьшения их отходов при кормлении, более экономное использование производственной площади и т.д. Поэтому в настоящее время привязный способ содержания коров можно рекомендовать для более широкого применения, особенно при реконструкции ферм, за исключением тех случаев, когда способ беспривязно-боксового содержания уже хорошо освоен на действующей ферме.

Основой современной промышленной технологии является содержание животных в отдельных группах, скомплектованных по стадиям отельности с таким расчетом, чтобы обеспечить дифференцированное кормление и доение коров, и равномерное производство молока в течение года. С этой целью коров осеменяют по группам через определенные промежутки времени.

При проектировании реконструкции следует предусматривать поточно-цеховую систему организации производства. Группы коров, окончивших лактацию, переводят в цех сухостойных коров, затем в цех отела, новостельных коров - в группу раздоя в цехе производства молока, с последующим включением их в общую группу лактирующих коров. Создается технологический поток животных, подчиненный общему ритму. При этом промышленная, поточно-цеховая организация технологии производства молока предусматривает обслуживание групп животных, сходных по физиологическому состоянию, стадии лактации и другим признакам квалифицированными специалистами, закрепленными за определенными цехами и отвечающими за хорошее состояние животных на своих участках работы (цехах).

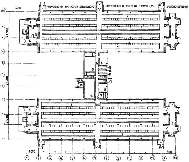
Для более активного моциона животных и дальнейшего снижения трудозатрат на производство молока рекомендуется, когда это возможно и целесообразно, при реконструкции или расширении ферм предусматривать устройство доильных залов для двухкратной дойки коров на установках типа «Елочка»-УДА-16А или «Тандем»-УДА-8А не только при беспривязном, но и при привязном содержании коров, эффективность такого метода доения коров при привязном содержании доказана практикой передовых хозяйств (например, ферма на 400 коров в колхозе «Память Ильича» Щелковского района Московской обл.).

В этом случае затраты труда на производство молока, в зависимости от удойности коров, можно довести до 1,5 - 2,0 чел.-ч на 1 ц.

Во всех случаях целесообразно блокировать доильный зал с молочным отделенном, пунктом искусственного осеменения и бытовыми помещениями для обслуживающего персонала, а полученный таким образом блок - с коровниками.

Развитие молочного животноводства на промышленной основе требует создания специализированных ферм по выращиванию ремонтных телок (нетелей). Поэтому организацию таких межколхозяйственных ферм на 3 - 6 тыс. скотомест или внутрихозяйственных - на 900 - 1200 скотомест целесообразно предусматривать при проектировании реконструкции (расширения) молочных ферм. Организацию технологии и труда на таких фермах следует принимать по действующим типовым проектам (также, как и в случае с приспособлением существующих другого назначения помещений для выращивания нетелей).

При проектировании реконструкции, расширения предприятий по производству говядины, т.е. выращиванию и откорму молодняка крупного рогатого скота, целесообразно предусматривать увеличение производства прежде всего за счет его интенсификации и последовательного перевода на индустриальную основу путем укрупнения специализированных ферм до размером, позволяющих применять основные элементы промышленной технологии (комплектовании одновозрастных групп, сохраняемых до конца откорма, круглогодовое равномерное производство).

В зависимости от специализации хозяйств, возраста поступающего на выращивание и откорм молодняка, сроков его реализации и других факторов различают фермы:

по выращиванию телят с 10 - 15-дневного возраста, их доращиванию и откорму с реализацией в 15 - 18-месячном возрасте с живой массой 420 - 450 кг;

по доращиванию и откорму молодняка, поступающего в возрасте 5 - 6 месяцев, с реализацией в 15 - 18-месячном возрасте с живой массой 400 - 450 кг.

В результате реконструкции и расширения ферм их размеры должны приближаться к оптимальным: межхозяйственные специализированные фермы (комплексы) по откорму скота с промышленной технологией должны проектироваться на 5 - 6 тыс. скотомест, фермы при внутрихозяйственной специализации - не менее чем на 1 тыс. скотомест. Опыт показывает, что на специализированных фермах наиболее эффективно беспривязное содержание молодняка на глубокой подстилке, а также групповое беспривязно-боксовое группами по 50 - 100 голов. Телята должны содержаться в утепленных зданиях, а молодняк и взрослый скот может содержаться в неотапливаемых зданиях облегченной конструкции. Выгульно-кормовые площадки и дворы должны иметь твердое покрытие для удобства уборки навоза и отвода атмосферных осадков.

Б. Свиноводческие фермы

Целью реконструкции и расширения существующих небольших и средних размеров ферм является внедрение промышленной технологии, основными элементами которой является поточность и ритмичность производства, обособленное содержание каждой технологической группы, специализация помещений (зданий) по их производственному назначению, комплексная механизация производственных процессов. На мелких фермах допускается сезонно-туровая система опоросов и неравномерная на протяжении года выдача продукции.

Основные принципы, которых следует придерживаться при реконструкции и расширении скотоводческих товарных ферм, следующие.

Величина производственных групп животных рекомендуется для подсосных свиноматок - 30 голов, для поросят-отъемышей - 240 - 300, откормочного поголовья - 250 - 600 голов.

На крупных фермах промышленного типа следует предусматривать содержание животных в специализированных зданиях, состоящих из изолированных помещений для размещения определенных производственных групп животных и эксплуатируемых по принципу «все занято - все пусто» для удобства проведения дезинфекций помещений при смене групп животных. На мелких фермах соблюдение этого принципа не обязательно. Животных разных производственных групп допускается содержать в одном здании (фермы на 200 - 500 голов).

Содержание холостых маток может быть как групповым (предпочтительнее), так и в индивидуальных боксах. Содержание супоросных маток, поросят-отъемышей, ремонтного и откормочного поголовья - групповое; тяжелосупоросных и подсосных маток - в индивидуальных станках.

Для холостых и супоросных маток, хряков и ремонтного поголовья рекомендуется режимно-выгульное содержание. С целью оздоровления, повышения продуктивности животных в теплое время года рекомендуется содержать в летних лагерях. Кормление преимущественно влажными кормосмесями (влажность 60 - 75 %), которые приготавливаются в кормоцехе.

Организация труда на животноводческих фермах

Основной формой организации труда на фермах должна быть производственная бригада. Для производственного персонала, непосредственно занятого на обслуживании животных, следует принимать пятидневную рабочую неделю. Продолжительность рабочей надели одного работающего должна быть 41 ч. Работу обслуживающего персонала на мелких фермах (100 - 150 коров, 25 - 50 основных свиноматок, 1000 - 2000 голов откормочного поголовья свиней) и средних фермах (400 - 600 коров, 100 - 200 основных свиноматок, 3000 - 5000 голов откормочного поголовья свиней) следует организовывать в одну смену. На крупных фермах (800 - 1200 коров, 300 - 600 основных свиноматок, 12 - 24 тыс. голов откормочного поголовья свиней) работа может быть организована в две смены.

Ветеринарное обеспечение ферм

На фермах должна предусматриваться единая система общих и специальных ветеринарно-профилактических и лечебных мероприятий в соответствии с технологическим процессом, нормами технологического проектирования ветеринарных объектов (ОНТП 8-85), которая должна быть направлена на обеспечение:

выполнения производственного плана;

сохранения здоровья и продуктивности животных;

получения доброкачественных в ветеринарно-санитарном отношении продуктов и сырья животного происхождения;

охраны обслуживающего персонала от инфекционных болезней общих человеку и животным;

охраны окружающей среды от загрязнения сточными водами и производственными отходами ферм.

Животноводческие фермы являются предприятиями закрытого типа. Проход обслуживающего персонала и посетителей на территорию ферм и обратно производится только через санитарные пропускники, расположенные на линии ограждения ферм (также как и транспортных средств).

Лечебные и ветеринарно-профилактические мероприятия проводятся в зданиях для содержания животных.

На крупных фермах предусматриваются ветамбулатории в составе приемной, аптеки, кладовых биопрепаратов и дезосредств, кабинета ветврача, душевой и уборной. В амбулатории проводится осмотр и амбулаторное лечение больных животных.

На небольших фермах может предусматриваться устройство ветаптеки в одном из производственных зданий.

3. ОСОБЕННОСТИ СТРОИТЕЛЬНЫХ РЕШЕНИЙ ПРИ РЕКОНСТРУКЦИИ ЗДАНИЙ ЖИВОТНОВОДЧЕСКИХ ФЕРМ

3.1. Основным фактором определения экономической и технической целесообразности реконструкции строительной части зданий и сооружений, входящих в состав реконструируемых ферм, является возможность их приведения в соответствие с требованиями капитальности, долговечности, а также в соответствие с эксплуатационными требованиями. Необходимо иметь и виду, что при решении вопроса о целесообразности реконструкции здания или сооружения и в дальнейшем при разработке проектно-сметной документации следует четко разделять строительные мероприятия, связанные с капитальным ремонтом, который в большинстве случаев приходится проводить одновременно с реконструкцией. Это разделение необходимо в связи с тем, что финансирование этих двух видов работ осуществляется по двум различным источникам: капитальные вложения и амортизационные отчисления (не участвующие в определении эффективности затрат на реконструкцию).

3.2. Для решения этой задачи должна быть проведена оценка состояния несущих и ограждающих конструкций по прочности, теплотехническим свойствам и т.д. Оценка производится в два этапа:

а) визуальный осмотр с предварительной оценкой;

б) инструментальное обследование для выявления числовых величин физико-механических и теплотехнических характеристик материалов существующих конструкций (в том случае, если по п. «а» установлена целесообразность проведения дальнейших работ).

В результате обследования должна быть установлена пригодность здания к дальнейшей эксплуатации, в случае пригодности - необходимость усиления всех или части его несущих конструкций с целью соответствия их фактическим или предусматриваемым проектом реконструкции эксплуатационным нагрузкам, необходимость доведения ограждающих конструкций до требуемых теплотехнических характеристик и другие меры, обеспечивающие требуемую долговечность и эксплуатационную пригодность здания.

3.3. В результате обследования все здания и сооружения могут быть разделены на пять основных групп:

а) здания, используемые по прежнему функциональному назначению без изменения строительной части;

б) здания, используемые по прежнему функциональному назначению с незначительным объемом строительно-монтажных работ: разборкой существующих пристроек и перегородок, возведением новых пристроек и перегородок без изменения основных несущих и ограждающих конструкций;

в) здания, используемые как сооружения с меньшей функциональной ответственностью, при невозможности использования их в прежнем функциональном качестве, что должно предусматриваться проектом реконструкции фермы;

г) здания, усиление и восстановление строительной части которых нецелесообразно (подлежащие разборке);

д) здания с экономически обоснованной целесообразностью усиления или восстановления отдельных элементов строительной части, подлежащие реконструкции (с одновременным проведением капитального ремонта).

Основные принципы реконструкции строительной части зданий

3.4. При выборе инженерных решений и технических средств следует отдавать предпочтение тем, стоимость которых будет наименьшей при одинаковом обеспечении остальных характеристик.

3.5. Замена отдельных частей зданий и их элементов может осуществляться как из конструкций и материалов, аналогичных существующим, так и других, традиционных для конкретного места строительства. Предпочтение следует отдавать более дешевым местным материалам.

3.6. Применение для реконструкции здания типовых индустриальных деталей и изделий, в том числе повышенной заводской готовности, требующих для монтажа определенных мощностей подъемно-транспортного оборудования, целесообразно при значительном объеме строительно-монтажных работ на площадке (преимущественно при реконструкции с расширением и выполнением работ подрядным способом).

При пристройке (надстройке) отдельных помещений к существующим, усилении или замене отдельных конструкций должны предусматриваться мероприятия, предотвращающие ослабление или разрушение существующих конструкций (стен, покрытий, перекрытий).

3.7. Проект реконструкции должен предусматривать, что до начала работ по восстановлению или усилению конструкций должны быть выявлены и устранены причины их неудовлетворительного состояния, к которым могут относиться:

а) ошибки при проектировании;

б) нарушения технологии или правил производства работ при выполнении конструкций;

в) химическая (атмосферная) агрессия;

г) естественный износ конструкций и усталостные явления в материале конструкций;

д) неравномерность осадок основания здания;

е) повреждение конструкций при нарушении режима эксплуатации;

ж) повреждение конструкций при транспортировке и монтаже в процессе строительства.

Восстановление и усиление несущих железобетонных конструкций

3.8. Визуальными признаками неудовлетворительного состояния железобетонных несущих конструкций является наличие трещин. По характеру и величине трещин можно предварительно оценить причину их возникновения.

3.9. По влиянию на дальнейшую работу конструкций трещины можно разделить на:

а) указывающие на возможное обрушение;

б) нарушающие нормальную эксплуатацию и снижающие долговечность;

в) способствующие развитию коррозионных процессов;

г) не вызывающие сомнений в надежности конструкций и достаточной долговечности.

3.10. Самым массовым дефектом железобетонных несущих конструкций, эксплуатировавшихся в газовоздушных агрессивных средах производственных животноводческих зданий, является наличие коррозионных трещин (вдоль растянутой или сжатой арматуры, в зонах косвенного армирования и т.д.). Наличие значительного количества таких трещин, повторяющихся на аналогичных элементах, указывает на почти полную карбонизацию (проницаемость) защитных слоев, интенсивную коррозию арматуры с последующим разрушением (отслаиванием) защитных слоев, нарастанием усталостно-коррозионных процессов и снижением несущей способности элементов. Данное явление требует квалифицированной оценки степени снижения прочности.

Если установлено, что остаточная несущая способность допускает дальнейшую эксплуатацию здания, необходимо приостановить процесс коррозии арматуры пропиткой около арматурной пористой зоны бетона растворами ингибиторов коррозии стали с последующим восстановлением и усилением защитных слоев растворами и бетонами плотных структур (возможно торкретированием).

Однако этот способ восстановления железобетонных конструкций чрезвычайно трудоемок, требует специальной в каждом конкретном случае проработки высококвалифицированными специалистами и оказывается недостаточно надежным при некачественном производстве работ по усилению при значительных материальных затратах.

Целесообразность его применения должна быть обоснована экономическим расчетом, а также оценкой возможностей строительной организации.

3.11. Дефекты отдельных элементов конструкций, вызванные ошибками при изготовлении конструкций (недостаточное предварительное натяжение арматуры, нарушение анкеровки арматуры, уменьшение защитных слоев, отсутствие связи продольной арматуры с хомутами и т.д.), а также дефекты конструкций, поврежденных при транспортировке и монтаже, даже при наличии развившихся в них значительных деформаций в процессе эксплуатации подлежат восстановлению с усилением.

3.12. Основные способы усиления элементов железобетонных конструкций следующие:

а) устройство дополнительных разгружающих металлических или железобетонных элементов;

б) устройство металлических обойм, обжимающих элемент;

в) усиление наращиванием железобетонного сечения;

г) усиление изменением расчетной схемы конструкции (дополнительные жесткие или упругие опоры).

Способ усиления выбирается в конкретном проекте усиления и проверяется статистическим расчетом.

Все элементы усиления должны быть надежно защищены от коррозии способом, разработанным также в проекте усиления.

Основные решения антикоррозионной защиты даны в разделе по антикоррозионной защите настоящих рекомендаций.

Там же даны решения восстановления защитных покрытий существующих закладных и соединительных изделий.

Усиление несущих металлических конструкций

3.13. Основные дефекты несущих стальных конструкций, встречающиеся при обследовании с целью восстановления (усиления) при реконструкции:

а) непрямолинейность конструкции в целом или отдельных элементов;

б) неудовлетворительное состояние соединений элементов;

в) уменьшение площади поперечного сечения элементов под воздействием коррозии или повреждение конструкций при монтаже или в процессе эксплуатации (надрезы полок, искривление или смятие элементов от ударов и т.д.);

г) наличие концентраторов напряжений в элементах конструкций (надрезы, трещины, местная глубокая коррозия и т.д.).

3.14. Классификация основных приемов усиления металлоконструкций:

а) подведение новых конструктивных элементов;

б) постановка дополнительных диафрагм, ребер, распорок;

в) увеличение сечений элементов, уменьшение свободных длин и гибкости элементов;

г) изменение конструктивных схем;

д) увеличение пространственной жесткости (дополнительный учет пространственной жесткости при расчете усиления).

3.15. При выборе способа усиления и техническом решении этой задачи необходимо соблюдать следующие положения:

а) учесть возможности проведения работы по усилению под полной эксплуатационной нагрузкой;

б) обеспечение полной совместной работы усиливаемой конструкции с элементами усиления в процессе всей дальнейшей эксплуатации;

в) применение минимального количества сварных швов при усилении конструкций под нагрузкой;

г) обеспечение надежной защиты от коррозии всей конструкции.

При выборе функционального назначения реконструируемого здания следует учитывать особенности поведения металлоконструкций в различных условиях эксплуатации.

Ввиду большого многообразия технических средств и методов усиления металлоконструкций, требующих индивидуального подхода в каждом конкретном случае, разработку проектов реконструкции несущих металлоконструкций целесообразно поручать специализированным организациям.

Восстановление и усиление несущих каменных (кирпичных) конструкций

3.16. Основными признаками неудовлетворительного состояния каменных конструкций при визуальном (первоначальном) обследовании здания являются:

а) наличие трещин в кладке на сплошных участках стен, в простенках и столбах, в растянутой и сжатой зонах кладки (по величине трещин, их характеру и расположению можно судить о причине их возникновения и оценить возможность дальнейшей эксплуатации конструкций и целесообразность восстановления и усиления);

б) неудовлетворительное состояние поверхности каменной кладки (выветренная, растрескавшаяся кладка, наличие коррозионных явлений или размораживания в кладке и т.д.).

3.17. Кирпичные стены, столбы, перегородки, выполненные из красного кирпича с достаточной морозостойкостью для наружных стен, являются наиболее коррозионностойкими конструкциями в условиях эксплуатации животноводческих помещений.

3.18. Основные приемы усиления и восстановления конструкций из каменной кладки:

а) заделка трещин на участках сплошных стен, если установлено, что деформации закончились и дальнейшее раскрытие прекратилось.

Широкие трещины устраняют последовательно, удаляя участки кладки в направлении трещины на всю глубину и заменяя новой кладкой в перевязке с существующей.

В ряде случаев (преимущественно тогда, когда установлено, что проектируемые или существующие эксплуатационные нагрузки выше остаточной несущей способности кладки) участок стены усиливается металлическими анкерами или металлическими балками, устанавливаемыми в борозды на глубину в 1/2 кирпича с последующей заделкой плотным цементным раствором или бетоном;

б) усиление простенков и столбов может производиться:

обоймами из металлических уголков, связанных между собой пластинами или прутками, с последующей защитой плотным бетоном или раствором;

железобетонной обоймой;

армированной штукатуркой.

Способ усиления выбирается в конкретном случае в зависимости от цели усиления и необходимой степени усиления;

в) замена выветрившейся или корродированной части лицевой кладки облицовкой из нового кирпича толщиной в 1/2 кирпича в перевязке с существующей через 4 - 5 рядов.

Участки вновь возводимой кладки, облицовку стен, заделку трещин и т.д. следует выполнять растворами с пластифицирующими добавками (СБД по ОСТ 13-183-83 и др.), повышающими качество швов и их коррозионную стойкость.

В растворы для армированной кладки, бетоны и растворы для устройства обойм, заделки борозд при усилении стен металлом необходимо вводить, кроме пластифицирующих добавок, ингибиторы коррозии стали (НН + ТБН; НН + СДБ и т.д.).

Подробно данный вопрос изложен в разделе по антикоррозионной защите конструкций при реконструкции.

Основные положения по восстановлению и усилению деревянных конструкций

3.19. Реконструируемые здания, построенные с использованием древесины, условно можно разделить на три основным группы:

а) конструкции из пиломатериалов и цельной древесины;

б) конструкции из клееной древесины;

в) комбинированные - пиленая и клееная древесина в комбинации с асбестоцементными листами, древесноволокнистыми и древесностружечными плитами.

3.20. Каждая из названных групп конструкций может иметь целый ряд своих характерных построечно-эксплуатационных директив, методов и приемов их устранения. Здесь и далее рассматриваются лишь общие приемы, характерные для деревянных конструкций в целом.

3.21. Одной из особенностей конструкций из древесины являются повышенные требования к эксплуатации:

поддержание требуемых параметров микроклимата в помещении;

систематический осмотр конструкций с целью выявления дефектов и устранение причин их возникновения;

своевременное устранение самих дефектов, что существенно влияет на их долговечность, ремонтопригодность и целесообразность использования в реконструируемом здании.

3.22. При оценке целесообразности восстановления конструкций из дерева следует учитывать их достоинства:

коррозионную стойкость в условиях эксплуатации животноводческих производственных помещений;

легкость самих конструкций и их монтажа;

возможность усиления и восстановления в любом объеме практически при любом состоянии конструкций;

незначительная энергоемкость изготовления и монтажа (по сравнению с металлом и железобетоном);

незначительный коэффициент линейного (температурного) расширения;

надежность и долговечность при соблюдении нормативных параметров газовоздушной среды;

способность к естественному воспроизводству исходного материала;

возможность, в ряде случаев, проведения работ по усилению и восстановлению конструкций без привлечения специализированных организаций.

3.23. Наиболее характерными дефектами, встречающимися при визуальном обследовании, являются следующие:

влажное состояние древесины;

изменение естественной окраски древесины (начальная стадия загнивания);

недопустимые деформации конструкций или их элементов;

поражение домовыми грибами;

поражение жуками-древоточцами;

коррозия металлических деталей и соединений.

Для конструкций из цельной древесины и пиломатериалов:

а) коробление при усушке;

б) разрывы в местах расположений сучков;

в) растрескивание и наличие глубоких трещин при сушке.

Для клееной древесины - расслоение клеевых швов.

3.24. Основные методы усиления конструкций из древесины без изменения схемы работы конструкции:

замена сгнивших, пораженных грибами частей (чаще опорных, соприкасающихся с кирпичом и бетоном) новыми аналогичными или устройство «протезов» из металла, полимерных материалов;

наращивание ослабленных элементов древесиной;

установка стяжных хомутов или болтов (при расклейке швов, при наличии усушечных трещин и т.д.);

вклеивание арматуры и болтов в тело деревянной конструкции;

устройство накладок из фанеры или других материалов на гвоздях или клее.

3.25. Усиление конструкций с изменением схемы работы конструкции или ее моментов:

превращение однопролетной конструкции в многопролетную путем установки дополнительных стоек или других жестких или упругих опор;

превращение конструкции арочного типа в раскосную ферму;

попарное раскрепление плоских конструкций пространственными связями жесткости;

превращение плоской тонкостенной конструкции в ребристую;

устройство встречных раскосов в сквозных конструкциях.

3.26. Основными принципами усиления деревянных конструкций должны быть следующие:

усиленная конструкция должна соответствовать действующим и момент реконструкции нормам;

усиленная конструкция должна полностью соответствовать требованиям, обеспечивающим функциональное назначение реконструируемого здания;

усиление однотипных моментов должно выполняться одними и теми же методами;

целесообразность усиления должна быть подтверждена экономическим расчетом.

Основные положения по противокоррозионной защите строительных конструкций при реконструкции

3.27. Защита железобетонных конструкций:

а) газовоздушную среду эксплуатации железобетонных конструкций для бетонов повышенной и нормальной плотности при относительной влажности внутреннего воздуха в помещениях 75 % и выше следует оценивать как среднеагрессивную (фактически она в значительный промежуток времени превышает 75 %);

б) основным видом газовоздушной коррозии железобетонной конструкции является карбонизация защитных слоев с последующей коррозией арматуры и деструкцией околоарматурного бетона;

в) единственным способом восстановления с последующей защитой поврежденных коррозией железобетонных элементов зданий и сооружений является пропитка околоарматурной пористой среды раствором ингибиторов коррозии, подобранных специально для данных условий, в сочетании с восстановлением защитного слоя арматуры путем нанесения защитного слоя штукатурки или других антикоррозионных покрытий;

г) конструкции, находящиеся длительное время в контакте с жидкой агрессивной средой животноводческих помещений (система навозоудаления, бетонные полы), как правило, не подлежат восстановлению и должны быть заменены.

3.28. Защита стальных несущих конструкций, закладных и соединительных деталей железобетонных конструкций:

необетонированные стальные закладные изделия, соединительные и крепежные детали конструкций каркаса, ограждающих конструкций зданий, подвески и конструкции для опирания коммуникаций следует защищать комбинированным покрытием: лакокрасочным по металлозащитному слою (цинковому или алюминиевому) согласно СНиП 2.03.11-85 «Защита строительных конструкций от коррозии».

Толщина металлизации 120 - 150 мкм. Лакокрасочное покрытие в комбинированном покрытии выполняется следующего состава:

грунт ВЛ-02, ФЛ-ОЗЖ, АК-069, АК-070 в один слой;

покровные слои: ХВ-124, ХВ-125, ХВ-1100 в два слоя.

Общая толщина лакокрасочного покрытия - 60 мкм. Металлические несущие конструкции должны быть подвергнуты поэлементному обследованию и при необходимости противокоррозионная защита восстановлена. Лакокрасочные покрытия надежно защищают поверхность металла от коррозии только в том случае, когда они наносятся на тщательно очищенную поверхность.

Группа очистки поверхности металла под покрытие - вторая по ГОСТ 9.402-80. Для удаления продуктов коррозии наиболее эффективными способами являются пескоструйный и дробеструйный. Наряду с этим может быть также применен ручной способ очистки от продуктов коррозии, а также частично механизированный. Однако при применении этих способов полностью удалить продукты коррозии не удается, так как удаляется, в основном, только пластовая и плохо связанная с металлом ржавчина.

В тех случаях, когда невозможно применять эффективные способы очистки, на поверхности металла под антикоррозионные покрытия наносят специальные грунтовки-преобразователи (пропитывающие или стабилизирующие) или жидкие преобразователи ржавчины. Последние имеют лишь преобразующую функцию, обработанную ими поверхность необходимо перед окрашиванием дополнительно грунтовать традиционными грунтовками.

Наиболее целесообразно применение грунтовок - преобразователей под окраску крупногабаритных металлических конструкций, эксплуатирующихся в естественных условиях. Этот же способ подготовки поверхности целесообразно применять при ремонтных окрасках.

Следует отметить, что грунтовки-преобразователи ржавчины рекомендуются для подготовки поверхности металла перед окраской, не взамен пескоструйной и дробеструйной очисток, обеспечивающих наибольший срок службы покрытий, а только в тех случаях, когда практически невозможно или экономически нецелесообразно применение указанных методов очистки.

В настоящее время отечественная промышленность выпускает следующие грунтовки-преобразователи ЭВА-01 ГИСИ; ЭВА-0112 и преобразователи ржавчины № 3; АПРЛ-2; П-1 Т «буванол» и др.

Грунтовки-преобразователи ЭВА-0112, ЭВА-01 ГИСИ и преобразователи ржавчины АПРЛ-2, № 3 рекомендуются для обработки слоя продуктов коррозии толщиной до 100 мкм, а преобразователь ржавчины П-1Т «буванол» - для обработки слоя продуктов коррозии не более 50 мкм.

Толщину слоя ржавчины на горизонтальных участках металлических поверхностей в заводских и полевых условиях определяют с помощью магнитного толщиномера ИТП-1. Ошибка в определении толщины слоя продуктов коррозии составляет около 20 %

3.29. Эксплуатационная стойкость и долговечность клееных деревянных конструкций определяется надежностью клеевых соединений и биостойкостью древесины, а также коррозионной стойкостью крепежных стальных элементов.

Сопротивление древесины воздействию химически агрессивных сред значительно выше, чем сопротивление бетона и других строительных материалов. Однако следует предусматривать мероприятия по защите деревянных конструкций от биологического разрушения при влажности древесины 18 - 20 % по массе. Поэтому конструкции, предназначенные для эксплуатации в условиях повышенной относительной влажности воздуха, рекомендуется защищать лакокрасочными покрытиями (пентафталевыми, марки ПК-115 или нефтеполимерными).

Толщина покрытий должна быть 70 - 80 мкм при относительной влажности воздуха 75 % и менее, 110 - 120 мкм при влажности более 75 % и возможном периодическом увлажнении конструкций конденсатом или дезинфицирующими растворами.

Для неклееных несущих и клееных ограждающих конструкций следует предусмотреть огнезащитную обработку (например, ПХВО МРТУ 6-10-7415-68).

Деревянные элементы, соприкасающиеся с кирпичной кладкой, бетоном или утеплителем (обрешетку, пробки и др.), антисептировать препаратом 66К-31 ГОСТ 23787.6-79 (см. СНиП III-19-76 «Деревянные конструкции. Правила производства и приемки монтажных работ»).

При наличии стальных крепежных деталей должна быть предусмотрена их защита от коррозии в агрессивной среде (см. п. 3.28).

Восстановление и повышение тепловой защиты ограждающих конструкций

3.30. Одним из важнейших мероприятий при реконструкции животноводческих зданий является доведение стеновых ограждающих конструкций до требуемого уровня тепловой защиты. Только герметизацией швов стеновых элементов можно повысить теплозащиту на 15 - 20 %. В стенах из крупноразмерных элементов (панелей, блоков) необходимо восстановить поврежденный герметик (пароизол, гернит) с заделкой паклей и тиоколовой мастикой и последующей окраской водозащитными составами.

Стены из мелкоразмерных элементов (кирпича, мелких бетонных блоков и т.д.) герметизируют расшивкой швов и штукатуркой наружной и внутренней поверхностей с добавкой в штукатурный раствор гидрофобизаторов (ГКЖ-10, ГКЖ-11 и т.д.). Стены с недостаточным термическим сопротивлением следует утеплять (преимущественно с наружной стороны) устройством дополнительных обшивок и облицовок с укладкой утеплителя между облицовкой и существующей стеной. Обшивки стен из дерева или деревосодержащих материалов целесообразно выполнять из досок или влагостойких плитных материалов (ДСП, ДВП) с засыпками из опилок, с последующей герметизацией швов и покрытием атмосферостойкими составами. Возможно устройство штукатурки.

Стены из бетона, железобетона и других каменных материалов могут быть утеплены с наружной стороны облицовками из плитных или монолитных минеральных материалов с последующей герметизацией стыков и окраской атмосферостойкими составами. В качестве утеплителя между облицовками и стеной могут применяться пено- и газобетоны, засыпки шлаком или керамзитом с небольшим объемным весом, а в отдельных случаях твердыми минераловатными плитами, древесноволокнистыми и древесностружечными плитами или пенопластом.

Стены из каменной кладки могут также утепляться облицовкой из кирпича на цементном растворе с обязательной перевязкой через 4 - 5 рядов по высоте и через 2 - 3 м по длине - тычковыми рядами связующих кирпичей, укладываемых в вертикальные и горизонтальные штрабы существующих стен. Однако последний способ утепления следует признать рациональным, если одновременно ведется усиление прочностных характеристик стен или производится замена отдельных разрушенных ее участков.

Должно быть предусмотрено также восстановление разрушающейся в процессе длительной эксплуатации гидроизоляции между фундаментом и стеной. Нарушение гидроизоляции приводит к подсосу капиллярной влаги, накоплению ее в стеновом материале, что ухудшает его теплотехнические свойства, а попеременное замораживание и оттаивание в зимний период и к разрушению («размораживанию») нижней зоны стены.

Наиболее рациональными способами восстановления гидроизоляции в настоящее время являются пропитка водными растворами кремнийорганических жидкостей ГКЖ-10, ГКЖ-11 цокольных участков стен по периметру здания или инъецирование этих участков полимерными составами.

3.31. При выявлении недостаточного уровня тепловой защиты покрытия необходимо принять меры по ее повышению, так как это необходимо по санитарно-гигиеническим и технологическим требованиям и экономически целесообразно.

Недостаточный уровень теплозащиты покрытия возможен вследствие целого ряда причин, из которых наиболее распространены следующие:

ошибка при проектировании (в проекте занижена толщина выбранного утеплителя);

повышение теплопроводности утеплителя вследствие его укладки в покрытие в увлажненном состоянии или его увлажнения из-за нарушения целостности кровли в процессе эксплуатации или вследствие слеживания утеплителя;

нарушения в процессе строительства (замена проектного утеплителя более теплопроводным без увеличения толщины или увлажнение его при транспортировке, складировании и укладке на покрытие).

В тех случаях, когда при реконструкции совмещенного покрытия целостность кровли не нарушена или дефекты незначительны и легко устранимы (не требуется капитального ремонта с разборкой существующей кровли и устройством новой) и, следовательно, уложить дополнительный слой утеплителя или заменить дефектный не представляется возможным, целесообразно устройство подвесных потолков, на которые в зависимости от необходимости можно укладывать дополнительный слой эффективного утеплителя требуемой толщины.

Устройство подвесных (подшивных) потолков целесообразно и в тех случаях, когда необходимо снизить воздействие агрессивных газовых сред и повышенной влажности животноводческих помещений на несущие конструкции и покрытия и тем самым увеличить их долговечность.

При значительном износе кровли ее снимают (включая обрешетку), существующий утеплитель просушивают, укладывают требуемый дополнительный слой утеплителя, заменяют участки разрушенного. Если невозможно довести утеплитель до требуемых теплофизических характеристик, его заменяют полностью. Одновременно восстанавливают основание под кровлю - обрешетка в асбестоцементных кровлях, стяжка - в рулонных и т.д.

3.32. Ремонт кровли и восстановление ее гидроизоляционных свойств являются важными мероприятиями сохранения требуемого уровня теплозащиты покрытия. Обследование состояния кровли, оценка ее ремонтопригодности, ремонт или полная ее замена при значительном износе или наличии значительных повреждений обязательны при реконструкции зданий.

Покрытия из штучных материалов, в частности, из асбестоцементных волнистых листов, если не требуется замена отдельных элементов или всего покрытия в целом, следует очистить для увеличения надежности и окрасить двумя слоями грунта: ГФ-0119 или ГФ-021 жидкой консистенции, предварительно зашпаклевав небольшие видимые трещины. Могут быть применены вместо указанных выше эмаль ПФ-115 или другие атмосферостойкие лаки и краски. Дефекты рулонной кровли небольших размеров, возникшие в процессе эксплуатации (пробоины, трещины, разрывы и т.д.), должны быть очищены от грязи, пыли, остатков мастики, заделаны заплатами из рулонного материала на мастике с последующим местным восстановлением защитного покрытия (обмазка мастикой с посыпкой крупным песком или гравием). Значительные дефекты - вздутие, местные просадки, расслоения в швах, отслоившиеся полотна и т.д. вскрывают, дефектуют снятый рулонный ковер с целью вторичного использования пригодных полотнищ, наклеивают новые взамен устаревших в процессе эксплуатации и восстанавливают защитный или покровный слой кровли. Кровельные работы выполняют после восстановления и просушивания поврежденного основания (обрешетки под асбестоцементную кровлю, стяжки или твердого утеплителя под рулонную). Все элементы штучной кровли должны быть надежно прикреплены к обрешетке. Ремонт кровли следует начинать с восстановления карнизов, разжелобков, сопряжений, затем восстанавливать рядовое покрытие.

Ремонт полов

3.33. Полы в производственных животноводческих зданиях являются наиболее подверженными разрушению элементами, вследствие воздействия на них жидких агрессивных сред (навозные стоки, дезинфекционные средства, молоко, кровь и т.д.) и интенсивных механических и ударных воздействий от сельскохозяйственной техники и копыт животных.

Интенсивный износ и разрушение покрытия приводит к потере требуемых эксплуатационных параметров всей конструкции пола (прочность, требования к состоянию поверхности, теплофизические характеристики подстилающего теплоизоляционного слоя в местах содержания животных и т.д.). Все это приводит к ухудшению микроклимата в помещении, увеличению заболеваемости и травматизма животных и снижению их продуктивности. Ремонт, восстановление всех требуемых функциональных параметров полов обязательное условие при реконструкции животноводческих зданий.

Если проектом реконструкции здания не предусмотрена полная замена конструкции полов в связи с изменением функционального назначения здания или изменения технологии содержания животных с перепланировкой, восстановление полов, как правило, следует выполнять из материалов, аналогичных существующим. Разрушенные и сгнившие деревянные полы в стойлах заменяют на новые, преимущественно из досок хвойных пород. При образовании усадочных трещин деревянные полы сплачивают, т.е. перестилают с наращиванием досок по ширине и длине стойла (вставка планок в щели между смежными досками не допускается).

Бетонные и цементные монолитные полы восстанавливают бетонами и растворами тех же составов, предварительно вычистив, вымыв все трещины, раковины, удалив рыхлые разрушающиеся участки. Наиболее надежный и прогрессивный способ восстановления бетонных полов в настоящее время - это способ с применением полимеррастворов и полимербетонов по методикам, разработанным НИИЖБ. Бетоны, растворы, мастики, подобранные соответствующим образом по составу и консистенции, имеют очень высокую адгезию со старым бетоном, позволяют надежно восстанавливать раковины, сколы, трещины, упрочнять и уплотнять поверхностное разрушение пола. Пропитка полимерными составами поверхности существующего пола значительно повышает его коррозионную стойкость к жидким агрессивным средам животноводческих помещений. Однако, подбор компонентов полимеррастворов, их изготовление и укладка требуют высокого профессионального уровня подготовки и специальных мер по технике безопасности. В связи с этим работы с полимерными составами должны выполняться только специализированными организациями.

Ремонт земляных, глинобитных, полов из грунтобетона заключается в замене разрушенных мест новыми слоями материала. Ремонт полов из кирпича и других керамических штучных материалов также сводится к замене изношенных или разрушенных деталей с постановкой их на раствор, мастику, клей с тщательной герметизацией швов и стыков мастикой. Следует тщательно подготавливать основания под все ремонтируемые, восстанавливаемые, заменяемые участки полов. Тщательно очищать и затем уплотнять трамбованием щебень, песок, гравий, кирпичный бой и т.д. для повышения жесткости и снижения деформативности основания и, следовательно, всей конструкции пола.

4. МЕХАНИЗАЦИЯ ПРОИЗВОДСТВЕННЫХ ПРОЦЕССОВ

4.1. Выбор средств механизации для реконструкции, расширения и технического перевооружения (далее - реконструкции) ферм определяется задачами, поставленными перед проектировщиками, принятой технологией и номенклатурой выпускаемых промышленностью и наличием на фермах, пригодного к дальнейшей эксплуатации оборудования, характером его размещения, а также объемно-планировочными решениями помещений. В настоящее время предприятия Минживмаша серийно изготавливают сравнительно большую номенклатуру машин и оборудования, которая открывает широкие перспективы и возможности для значительного подъема уровня механизации и повышения эффективности отрасли при реконструкции действующих ферм.

Рекомендуемая номенклатура машин, механизмов и оборудования для механизации животноводческих ферм и комплексов (табл. 1 и 2) позволяет обеспечить при реконструкции комплексную механизацию и частичную автоматизацию производственных процессов на основе создания единых поточных технологических линий и тем самым повысить производительность труда.

4.2. При разработке проектов реконструкции существующих животноводческих ферм и комплексов следует использовать составленные Гипронисельхозом и распространяемые ЦИТП «Установочные чертежи машин и механизмов для животноводческих и птицеводческих ферм и зданий (материал для проектирования)», серии 4.800-3.

Выпуск 1/83. Установочные чертежи машин и механизмов для ферм крупного рогатого скота.

Выпуск 2/83. Установочные чертежи машин и механизмов для свиноводческих ферм.

Выпуск 5/84. Установочные чертежи машин и механизмов общего назначения.

Выпуск 6/85. Установочные чертежи машин и механизмов для кормоприготовления.

Выпуск 7/85. Установочные чертежи весов.

Выпуск 8/85. Установочные чертежи теплоэнергетического и вентиляционного оборудования.

При выборе средств механизации рекомендуется использовать следующие механизмы и оборудование:

А. Фермы для крупного рогатого окота

4.3. Стойловое оборудование. На фермах крупного рогатого скота рекомендуется применять следующее изготавливаемое предприятиями Минживмаша оборудование.

В профилакториях - комплекты оборудования ОСТ-Ф-32 для содержания телят до 20-дневного возраста, в которые входят разборные клетки, устройства для подогрева молока и раздачи его по поилкам, поилки, устройства для транспортирования новорожденных телят из родильного отделения в профилакторий и мойка молочной посуды. Модернизированный комплект ОСТ-Ф-32, по сравнению с ранее выпускаемым комплектом ОСТ-50, имеет значительное преимущество. Конструкция элементов клеток ОСТ-Ф-32 позволяет увеличивать за счет снятия средней перегородки площадь одной клетки вдвое и содержать телят возрастом более 20 дней. Клетки могут собираться секциями в зависимости от размеров помещения профилактория в количестве, необходимом для имеющегося поголовья.

В коровниках - стойловое оборудование с автоматической привязью ОСП-Ф-26.

Для содержания молодняка крупного рогатого скота, выращивания ремонтного молодняка и молодняка на откорме - элементы стойлового оборудования по ОСТ 105-668-85 ÷ ОСТ 105-683-85, разработанного НПО «Комплектживмаш», утвержденного для применения Минживмашем. Применение элементов стойлового оборудования по ОСТ 105-668-85 ÷ ОСТ 105-683-85 заводского изготовления повышает эксплуатационную надежность и позволяет, в зависимости от размеров помещения и планировочных решений, собирать индивидуальные и групповые клетки для содержания животных различной вместимости и разного возраста.

4.4. Для выгрузки сочных кормов (силоса и сенажа) из траншей рекомендуется использовать погрузчик ПСК-5А. Указанную операцию можно также проводить универсальными погрузчиками: грейферами ПГ-0,2, ПЭ-0,8Б, ПЭА-1,0, фронтальными ПФ-0,5, ПФП-1,2, ПФП-2 и др.

4.5. Одним из эффективных способов подготовки кормов к скармливанию, повышающих усвояемость кормов и облегчающих механизацию их раздачи, является приготовление полнорационных кормосмесей.

Качественную кормосмесь можно получить в специальном кормоцехе или в приспособленном для этой цели помещении. В кормоцехе рекомендуется иметь технологические линии по измельчению и дозированию корнеплодов, накоплению и дозированию силоса, сенажа, соломы, концентрированных кормов, приготовлению и внесению обогащающих добавок, смешиванию (при необходимости доизмельчению) и выдаче готовых кормосмесей.

Для строительства на реконструируемых фермах и комплексах рекомендуются следующие кормоцехи, оснащенные серийно изготавливаемым технологическим оборудованием:

на базе комплекта КОРК-15 - типовые проекты 801-6-4.83, 801-6-5.83;

на базе комплекта КЦК-5 - типовые проекты 801-460 и 801-461;

на базе узлов КОРК-15 и КЦК-15 - типовой проект 801-6-11.85;

на базе агрегата смесителя АПК-10А - типовые проекты 801-6-18.86 и 801-6-19.86 (указанные проекты кормоцехов разработаны Гипронисельхозом).

4.6. В зависимости от типа застройки ферм и особенностей хозяйств рекомендуется три способа раздачи кормов: мобильными или стационарными кормораздатчиками или комбинированными средствами. Выбор их зависит от габаритов помещений, а также взаимного расположения зданий и сооружений на территории фермы.

Применение мобильных средств экономически выгодно при рассредоточенном расположении (при повышенной застройке) зданий, кормохранилищ и кормоцехов.

В качестве мобильных средств могут быть рекомендованы кормораздатчики КТУ-10А, имеющие увеличенный объем кузова, малогабаритный кормораздатчик РММ-Ф-6 в исполнении 02 с постоянной колеей и в исполнении 01 - с переменной колеей, кормораздатчики-смесители РСП-10А и АРС-10.

При отсутствии на фермах кормосмесительных цехов кормораздатчики КТУ-10А, РММ-Ф-6 могут быть оснащены приспособлениями для дозированной раздачи в кормушки рассыпных или гранулированных концкормов (ПКТУ-10А, ПРММ-5А).

В случае непосредственного примыкания кормоцеха к коровнику (блокировки) рекомендуется использовать ленточные стационарные транспортеры типа РК-50А.

На фермах выращивания телок и нетелей и на откормочных фермах рекомендуется применять комплексно-механизированные линии для транспортировки и раздачи кормов, в состав которых входит транспортер распределительный ТКР-20А и транспортер-раздатчик ТРЛ-100А.

В зданиях блокированного типа и в отдельных помещениях, где нельзя организовать проезды для мобильных раздатчиков, раздачу кормов в кормушки можно организовать комбинированно: транспортировку кормов от кормоцеха - мобильными раздатчиками КТУ-10 и другими, а раздачу в кормушках - стационарным ленточным раздатчиком РВК-Ф-74 более надежным и производительным, чем транспортеры типа ТВК-80. Могут для этой цели также эффективно использоваться кормораздатчики КРС-15.

Преимущество применения стационарных кормораздатчиков состоит в том, что они производят меньше шума (не связаны с работой трактора внутри помещения), экономят производственные площади, способствуют улучшению микроклимата в помещениях, кроме того применение раздатчика РВК-Ф-74 позволяет механизировать очистку кормушек от остатков корма.

4.7. На фермах и комплексах крупного рогатого скота в зависимости от технологии содержания животных могут применяться два способа уборки навоза: гидравлический и механический. Механический способ рекомендуется для небольших молочных ферм. На больших молочных фермах беспривязного содержания, а также комплексах по откорму молодняка (при численности поголовья более 3 тыс. голов) следует отдавать предпочтение гидравлическим способам удаления навоза.

Для механического способа удаления навоза могут быть рекомендованы следующие средства: при привязном содержании и двухрядном расположении стойл - скребковые транспортеры типа ТСН-3,0Б, ТСН-2Б, ТСН-160А, наклонные транспортеры для загрузки навоза, в транспортные средства. При этом предпочтение следует отдавать скребковым транспортерам ТСН-160А, которые более надежны в эксплуатации.

Во избежание обмерзания наклонных транспортеров в северной части Нечерноземной зоны и Сибири их размещение в неотапливаемых тамбурах животноводческих помещений не рекомендуется. В этом случае целесообразна выгрузка навоза в приемный бункер установки УТН-10, которая по трубопроводу транспортирует навоз в навозохранилище.

При боксовом содержание скота навоз из открытых навозных проходов рекомендуется удалять цепными скреперными установками («дельта-скрепер») УС-Ф-170 и УС-250 с шириной захвата от 1800 до 3000 мм.

При применении этих скреперных установок для транспортировки навоза из поперечных каналов в навозоприемники рекомендуются поперечные навозоуборочные конвейеры КНП-10.

Наиболее целесообразна следующая схема удаления навоза: продольная скреперная установка УС-Ф-170 подает навоз по продольным проходам коровника на поперечный конвейер КНП-10, подающий навоз в приемный заглубленный бункер установки УТН-10, которая по напорному трубопроводу подает навоз в навозохранилище. При этом необходимо, чтобы поперечные каналы транспортера КНП-10, расположенные между коровниками, были достаточно утеплены во избежание замерзания навоза в зимнее время.

На многих реконструируемых фермах находят применение цепные скреперные установки для удаления навоза из каналов под щелевыми полами, что способствует более благоприятной санитарно-гигиенической обстановки в помещениях для животных и улучшает эстетику производства.

На небольших фермах при боксовом или содержании животных целесообразно уборку навоза производить при помощи бульдозерного отвала ПБ-35, ПЭ-08Б. Для прохода бульдозера необходимо предусмотреть прямоугольный лоток шириной 2200 мм и глубиной 200 мм, выполненный из бетона марки не менее 200.

Для подачи подстилки в стойла и боксы при содержании животных на глубокой или частосменяемой подстилке могут быть использованы тракторные навозоразбрасыватели и мобильные кормораздатчики. Уборку подстилочного навоза из помещений следует проводить бульдозерными отвалами.

Гидравлические способы при реконструкции небольших животноводческих ферм широкого применения не находят. Однако при реконструкции ферм мощностью более 400 коров и комплексах по откорму скота применение гидравлических способов уборки навоза очень эффективно, поскольку их применение значительно сокращает расход металла и затраты труда. Наиболее целесообразна самотечная система навозоудаления периодического действия.

Надежность работы самотечных систем периодического действия обеспечивается герметичностью шиберов. Рекомендуется применять шибера КПГ-10.31.30.000, КПГ-10.32.30.000.

Для гомогенизации жидкого навоза в навозохранилищах рекомендуется установка УГН-Ф-500, а для его погрузки в мобильный транспорт при вывозке на поля - насосы НЖН-200А, ПНЖ-250, НЦИ-Ф-100.

В качестве мобильного транспорта для транспортировки жидкого навоза под вспашку рекомендуются тракторные прицепы типа МЖТ и автоцистерны РЖУ. При этом рекомендуется применять цистерны-разбрасыватели РЖУ-3,6 на молочных фермах на 100 и 200 коров, РЖТ-4Б - на фермах на 400 коров, МЖТ-10 - на фермах до 1200 коров, МЖТ-16 - на фермах до 2000 коров.

4.8. Доение коров на молочных фермах представляет собой трудоемкую операцию. Механизация этого процесса - важнейший роста производительности труда и снижения себестоимости молока. Способ доения коров выбирают с учетом системы содержания животных, размера фермы или комплекса, продуктивности животных.

В коровниках привязного содержания вместимостью до 100 коров и удоях коров до 2500 кг целесообразно применять доильные установки с переносными ведрами АД-100Б, ДАС-2В, в коровниках привязного содержания вместимостью 100 - 200 голов и надоях более 2500 кг - доильные установки с молокопроводом АДМ-8А-1 и АДМ-8А-2.

В коровниках вместимостью 200 голов и более как при беспривязном содержании, так и при привязном, но с применением автоматической привязи, целесообразно использовать доильные установки типа УДА-8А типа «Тандем» или УДА-16А типа «Елочка».

Если животных зимой содержат в стойлах, а летом в лагерях или на пастбищах, то в летний период используют доильные установки УДС-3Б.

На крупных молочно-товарных фермах экономически выгодно доить коров в доильных залах, оборудованных установками «Карусель» УДА-100. Для первичной обработки молока применяется оборудование, приведенное в табл. 1.

Таблица 1

Рекомендуемые механизмы и оборудование для механизации основных технологических процессов при реконструкции ферм и комплексов крупного рогатого скота

№ п/п

Технологические процессы

Наименование марки машин и механизмов

Основные технические данные

Область применения

1

2

3

4

5

 

1. Выгрузка кормов из хранилищ и загрузка в транспортные средства

 

 

 

1

Выгрузка силоса и грубых кормов из открытых хранилищ, скирд и погрузка их в транспортные средства

Погрузчик ПСК-5А

Производительность за 1 ч чистого времени: на силосе - 15 т/ч, соломы 2,5 - 6 т/ч. Высота забора массы 5 м

Все типы ферм

2

Погрузка из скирд соломы и сена (с одновременным измельчением)

Фуражир навесной ФН-1,4

Производительность на соломе 4 т/ч, высота забора массы 5,2 м

То же

3

Дозированная подача корнеклубнеплодов из накопительных бункеров

Транспортер ТК-5,0Б

Производительность 6 т/ч

-"-

 

2. Приготовление кормосмесей хранение комбикормов

 

 

 

1.

Приготовление полнорационных кормовых смесей

Комплект оборудования кормоцеха КЦК-5 исполнение КЦК-5-1

Производительность 10 - 15 т/ч

Фермы по производству молока на 400 - 1200 коров (по выращиванию нетелей и откорму молодняка)

исполнение КЦК-5-2

Производительность 15 - 20 т/ч

2.

То же

Комплект оборудования кормоцеха типа КОРК-15

Производительность 15 т/ч

То же, 800 - 1200 коров

3.

Приготовление полнорационных кормосмесей

Агрегат приготовления кормосмесей АПК-10А

Производительность 10 т/ч

То же

4.

Прием, хранение и выдача комбикормов

Бункер БК-30

Емкость 30 м3, производительность извлекателя 15 т/ч.

Фермы по откорму

 

 

Бункер БК-60

Емкость 60 м3, производительность извлекателя 20 т/ч

 

 

 

Бункер хранения сухих кормов БСК-10

Рабочий объем 10 м3. Производительность на выдаче 2 т/ч. Длина шнекового транспортера 5,75 м

Все типы ферм

 

3. Транспортировка и раздача кормов

 

 

 

1.

Транспортирование и раздача на ходу (на одну или две стороны) измельченных сочных или грубых кормов и кормосмесей

Раздатчик кормов мобильный малогабаритный РММ-5,0А (РММ-Ф-6)

Объем корма в кузове 4,57 м3, количество выдаваемых кормов при выдаче на одну сторону - 2,1 - 41,4 кг/м; на две стороны - 1,05 - 29,7 кг/м

То же

2.

То же

Кормораздатчик тракторный универсальный КТУ-10А

Объем корма в кузове: без надставных бортов - 10 м3; с надставными бортами - 15 м3

-"-

3.

Прием компонентов кормов, смешивание, транспортирование и раздаче кормосмесей

Раздатчик-смеситель прицепной РСП-10А

Грузоподъемность до 4 т. Емкость кузова 10 м3. Производительность при раздаче до 80 т/ч

Фермы по выращиванию нетелей, откорму молодняка скота мясных пород

4.

Прием компонентов кормов, смешивание, транспортирование и раздача кормосмесей

Раздатчик-смеситель АРС-10 (самоходный на шасси автомобиля ЗИЛ-1301)

Грузоподъемность 3 т. Емкость кузова 10 м3. Производительность при раздаче до 134 т/ч

Фермы по выращиванию нетелей, откорму молодняка скота мясных пород

5.

Транспортирование и раздача по кормушкам готовой смеси мелассы и карбамида, а также др. жидких кормов, смесей и добавок

Раздатчик мелассы РМК-1,7

Емкость цистерны 1,8 м3. Производительность 0,23 - 0,77 т/ч. Максимальная норма выдачи смеси 0,15 кг/пог. м

Фермы по производству молока и откорму молодняка

6.

Внутрифермская транспортировка и дозированная раздача по кормушкам комбикормов (навешивается на раздатчик КТУ-10)

Приспособление ПКТУ-10А

Емкость бункера 0,8 м3. Производительность при раздаче, 1,3 - 19,1 т/ч

То же

7.

То же (навешивается на раздатчик РММ-5, РММ-Ф-6)

Приспособление ПРММ-5А

Емкость бункера 0,4 м3. Производительность при раздаче 0,9 - 14,6 т/ч

-"-

8.

Транспортировка, односторонняя раздача в кормушки сухих, концентрированных и полужидких кормов, измельченных бахчевых, корнеклубнеплодов, зеленой и силосной массы

Кормораздатчик универсальный КУТ-3,0А

Емкость бункера 3,0 м3. Производительность при выгрузке до 54 т/ч

-"-

9.

Транспортировка всех видов кормов в малых количествах

Тележка ручная универсальная ТУ-300

Грузоподъемность 300 кг

Все типы ферм

10.

Прием кормосмесей, их транспортирование и подача на кормораздатчики

Транспортер распределительный кормов ТКР-20А

Производительность 20 т/ч. Длина (м) 110, 130, 160, 180, 210

То же

11.

Транспортирование и раздача в кормушки кормосмесей

Транспортер-раздатчик кормов ленточный ТРЛ-100А

Производительность 20 т/ч. Длина (м) 28, 40, 52, 64

-"-

12.

Раздача внутри кормушек измельченных кормов в коровниках с узкими кормовыми проходами, где применение мобильных кормораздатчиков невозможно, и в зданиях для откорма крупного рогатого скота

Раздатчик внутри кормушек РВК-Ф-74

Фронт кормления 74 м. Скорость рабочего органа 0,134 и 0,242 м/с

-"-

13.

Приготовление ЗЦМ для выпойки телят

Агрегат АЗМ-0,8А

Производительность 0,5 т/ч

Фермы выращивания нетелей и производства говядины

14.

Приготовление заменителя молока из сухого порошка для выпаивания телят

Установка для приготовления и раздачи регенерированного молока УПР-Ф-720

Обслуживает до 720 голов

То же

15.

Выпаивание телят молочного периода цельным и снятым молоком или его заменителем

Установка для выпойки телят УВТ-20А

Производительность 180 - 200 гол/ч

Фермы выращивания нетелей и производства говядины

 

4. Поение

 

 

 

1.

Поение водой

Автоматическая одночашечная поилка типа ПА-1А, ПА-1Б или АП-1А

Пропускная способность 5 л/мин.

Все типы ферм при привязном содержании скота

2.

Поение с подогревом

Групповая автопоилка АГК-4Б

Количество обслуживаемых животных 100 голов температурой воды 4 - 18 °C

Все типы ферм при беспривязном содержании животных

 

Подогрев воды для поения

Водонагреватель электрический ВЭП-600

Подогрев воды до температуры 10, 16, 22 °C. Производительность при нагреве воды до 10 °C - 700 л/ч

Все типы ферм

 

5. Доение коров и первичная обработка молока

 

 

 

1.

Доение коров в стойлах, транспортировка выдоенного молока в моечное помещение, групповой учет выдоенного молока

Агрегат доильный с молокопроводом АДМ-8А-1 на 100 коров, АДМ-8А-2 на 200 коров

Производительность 1 дояра 26 - 29 коров в час

В коровниках при привязном содержании и доении в стойлах в молокопровод

2.

Доение коров в переносные доильные ведра, транспортировка выдоенного молока на тележке в молочное помещение и дезинфекция доильной аппаратуры

Доильный агрегат ДАС-2В и АД-100Б (модернизированный ДАС-2Б)

Производительность 58 коров в час технологического времени. Обслуживают 4 дояра

В коровниках и родильном отделении при привязном содержании скота

3.

Доение коров в доильном зале в индивидуальных станках и первичная обработка молока

Доильная установка «Тандем» автоматизированная УДА-8А с манипуляторами МД-Ф-1

Размер обслуживаемого стада 200 - 450 голов. Производительность в основное время доения 60 - 65 коров в час. Обслуживает 1 чел.

В доильных блоках ферм на 300 - 400 коров

4.

То же

Доильная установка «Елочка» автоматизированная УДА-16А с манипуляторами МД-Ф-1

Производительность 80 коров в час. Обслуживает 1 чел.

В доильных блоках ферм на 600 - 800 коров

5.

Доение коров в доильном зале на конвейере карусельного типа, транспортирование молока в молочное помещение, фильтрация, охлаждение и подача в емкости для хранения. Одновременно с доением происходит скармливание сухих кормосмесей.

Доильная установка «Карусель» автоматизированная УДА-100 с манипуляторами МД-Ф-1

Производительность 100 коров в час. Обслуживает 1 чел.

В доильных блоках ферм на 300 и 600 коров

6.

Доение коров на пастбищах и доильных залов коровников

Универсальная доильная станция УДС-3Б

Производительность при доении в молокопровод 50 коров в час. При доении в ведра 32 коровы в час. Обслуживают 2 - 4 дояра

В летних лагерях

7.

Перекачка молока и моющей жидкости

Насос молочный универсальный НМУ-6

Производительность под вакуумом 0,6 кгс/см2 - 5000 л/с

Во всех доильных и молочных блоках (входит в комплект доильных установок, но может поставляться дополнительно)

8.

Очистка и охлаждение молока на молочных фермах

Очиститель-охладитель молока ОМ-1А агрегатируется с доильными агрегатами АД-100Б и ДАС-28

Производительность 1000 л/ч. Охлаждение до температуры на 2 °C выше температуры охлаждающей воды

Предварительное охлаждение молока водой из скважин на фермах с поголовьем до 200 коров

9.

Перекачка молока

Насосы молочные центробежные

 

Для внутрифермской транспортировки молока

36НЦ 6-12

Подача 6300 л/ч

Г2-ОТЦ

Напор 125 КПа

36МЦ 10-20

Подача 10 м3

Г2-ОПБ

Напор 0,2 МПа

10.

Охлаждение и хранение молока

Резервуары-охладители молока РПО-1,6 и РПО-2,5. Агрегатируются с водоохлаждающими установками УВ-10-01, для РПО-1,6. АВ-30 для РПО-2,5

Продолжительность охлаждения молока от температуры 35 °С до температуры 7 °C - 3 ч. Вместимость рабочая 1,6 и 2,5 м3

Молочные фермы на 200, 400 и 600 коров

11.

Охлаждение и хранение молока

Резервуар-охладитель молока ТОМ-2А, агрегатируется с установкой УВ-10-01

Резервуар-охладитель с рекуператором МКА-2000Л-2А

Вместимость 2000 л. Время - охлаждения молока до 6 °C за 2,5 ч

Молочные фермы на 200, 400 и 600 коров

12.

Охлаждение молока в потоке

Автоматизированная пластинчатая охладительная установка ООТ-МУ-4

Производительность 3000 л/ч. Охлаждение до температуры на 3 °С выше температуры охлаждающей воды

Охлаждение молока на фермах на 800 и 1200 коров

13

Охлаждение циркуляционной воды

Водоохлаждающая установка УВ-10-01

Охлаждение воды до температуры 0,5 - 2 °C, используемой для охлаждения молока на фермах. В комплекте с оборудованием обеспечивает охлаждение молока: с РПО-1,6, ТО-2, ТОВ-1 до температуры 4 °C с РПО-2,5 охлаждение 1250 л молока до температуры 7 °C за 3 ч, с проточным охладителем, входящим в комплект доильных установок при расходе молока до 300 л/ч - 4 - 5 °C

Вторая ступень охлаждения молока на фермах на 600 и 800 коров

14.

То же

То же, АВ-30

Холодопроизводительность 33500 ккал/ч

То же

15.

Хранение охлажденного молока

Резервуары для хранения молока

В2-ОМВ-2,5;

В2-ОМГ-4,0;

В2-ОМГ-6,3

Рабочие емкости 4500, 4000, 6300 л. Первый - вертикальный, два других - горизонтальные

Фермы по производству молока на 400, 800 и 1200 коров

16.

Очистка, пастеризация и охлаждение молока в потоке

Пастеризационно-охладительные установки ОП2-Ф-1

Производительность 1000 л/ч

Для ферм со стадом, неблагополучным по бруцеллезу и туберкулезу

17.

Сепарирование молока

Сепаратор-сливкоотделитель Г9-ОСП

Производительность 3000 л/ч

Молочные фермы на 800 и 1200 коров

18.

То же

Сепаратор-сливкоотделитель ОСБ

Производительность 1000 л/ч

Молочные фермы на 400 и 800 коров

19.

Транспортировка молока за пределами фермы

Автомобиль-цистерна типа АЦПТ

Вместимость 900, 2100, 2800 и 4100 л

Все типы ферм

 

6. Удаление, переработка и транспортировка навоза

 

 

 

1.

Удаление навоза из помещения и погрузка его в транспортные средства

Транспортер скребковый навозоуборочный ТСН-160А. Цепь калиброванная, крупнозвенная

Длина контура горизонтального транспортера 160 м, наклонного - 6,5 м. Максимальная высота выгрузки 2,65 м. Обслуживает 100 - 120 животных

Коровники и помещения для молодняка с привязным содержанием животных, родильные отделения

3.

Удаление навоза из помещений и погрузка его в транспортные средства

Транспортер скребковый ТСН-3,0Б, цепь пластинчатая

То же, максимальная высота погрузки 2,3 м

Коровники и помещения для молодняка с привязным содержанием животных, родильные отделения

4.

То же

ТСН-2Б

Длина контура 170 м, максимальная высота погрузки 2,68 м

То же

5.

Удаление навоза из проходов в поперечные каналы

Скреперная установка УС-Ф-170

Длина контура 170 м. Размеры навозного канала:

ширина от 1800 до 3000 мм, глубина 200 мм

Для помещений с боксовым и комбибоксовым содержанием животных и доением коров на доильных площадках

6.

То же

Скреперная установка УС-250

Длина контура 250 м (на длину здания до 114 м)

То же

7.

Удаление навоза из поперечных каналов в навозосборники или в приемный бункер установкиУТН-10

Конвейер навозоуборочный поперечный КНП-10

Длина транспортирования 50 м

-"-

8.

Транспортировка навоза из помещений в навозохранилище

Установка транспортирования навоза (поршневая) УТН-10

Производительность 10 т/ч на навозе влажностью не менее 76 % при длине стеблей подстилки до 10 см

Для помещений всех типов с положительной температурой

9.

Выгрузка навоза из навозоприемников и навозохранилищ в транспортные средства

Насос жидкого навоза НЖН-200А

Производительность до 300 м3/ч, глубина забора до 5,5 м

Все типы ферм

10.

То же

Насос жидкого навоза ПНЖ-250

Производительность 250 т/ч, глубина забора до 3,5 м

То же

11.

Гомогенизация жидкого навоза в навозохранилищах для обеспечения подачи навоза к дождевальной установке

Гомогенизатор УГН-Ф-500

Производительность по перемешиванию 500 м3

-"-

12.

Выгрузка навоза из навозоприемников и погрузка в транспортные средства

Насос центробежный с измельчением НЦИ-100

Производительность при влажности навоза 95 - 97,2 % 80 м3/ч, напор 10 м

-"-

13.

Отделитель из навоза посторонних включений

ОМВ-200

Производительность при влажности не меной 90 % - 200 м3

-"-

14.

Разделение жидкого навоза на фракции

Виброгрохот барабанный ГБН-100 с прессом обезвоживания твердой фракции ПЖН-68А

Производительность, соответственно, 60 и 6 - 12 м3

На крупных откормочных комплексах в сооружениях по подготовке жидкого навоза к использованию в системе орошения

15.

Транспортирование и внесение плотного навоза

Разбрасыватели органических удобрений (прицепные) РОУ-5, ПРТ-10, ПРТ-16

Грузоподъемность, соответственно 6, 10, 15 т. Рабочая скорость до 12 км/ч. Норма внесения удобрений 10 - 60 т/га

Все виды ферм

16.

Самопогрузка, транспортирование, перемешивание и внесение жидкого навоза

Разбрасыватели жидких органических удобрений (прицепные) РЖТ-4Б, МЖТ-10, МЖТ-16

Грузоподъемность, соответственно 5, 10, 15 т. Рабочая скорость 10 км/ч. Норма внесения удобрений 10 - 40 т/га

То же, кроме имеющих системы орошения

 

7. Оборудование для содержания животных

 

 

 

1.

Содержание телят

ОСТ-Ф-32

Комплект из 32 клеток

Профилактории родильных отделений

2.

Привязное содержание коров

Сборно-стойловое оборудование ОСК-25А

На группу 25 коров

Коровники, родильные отделения

3.

То же, с автоматической привязью

Оборудование стойловое с автоматической привязью ОСП-Ф-26

На группу 26 коров

Коровники при привязном содержании

4.

Содержание на откормочных и репродукторных фермах крупного рогатого скота

Элементы стойлового оборудования для сборки групповых и индивидуальных клеток

ОСТ-105-668-85

ОСТ 105-683-85

-

Для всех групп содержания животных

5.

Ограждение станков для телят на откормочных фермах

ОСТ 720-01

Комплект для содержания 720 телят

На откормочных фермах

6.

То же, для молодняка на откормочных фермах

ОСТ 720-02

Комплект для содержания 720 голов молодняка

То же, для содержания молодняка

Б. Свиноводческие фермы

4.9. При организации технологического процесса по производству свинины для каждой половозрастной группы животных применяются различные типы станков: индивидуальные - для подсосных маток с поросятами; групповые или индивидуальные - для холостых, условно-супоросных маток и хряков; групповые - для поросят-отъемышей и свиней на откорме.

Из серийно изготавливаемых рекомендуется применение следующих станков:

ОСМ-1-5 (ССД-2М и ОСМ-60Б - для содержания подсосных маток с поросятами до 35 дней и до двухмесячного возраста;

СОС-Ф-35 - с приподнятым щелевым полом для содержания подсосных свиноматок и поросят до 35-дневного возраста (в станках СОС-Ф-35, которые поставляются четырьмя блоками из 8 станков, создаются наиболее благоприятные технологические и санитарно-гигиенические условия для сохранности поросят; при их применении резко сокращается трудоемкость работ по уборке навоза из станков);

ОСХ-144.01.000 - комплект для содержания 144 холостых и условно-супоросных маток;

ОСХ-264.01.000 - комплект для содержания 264 холостых свиноматок;

КПС-108.11.00.000 - для 11 холостых свиноматок и маток первого периода супоросности;

КПС-108-12.00.000 - для 22                                 -"-               -"-                                 ;

КПС-108.13.00.000 - для хряков;

КПС-108.14.00.000 и ОСС-400.01.000 - для группового содержания супоросных свиноматок;

ОСМ-120.01.000; КПС-108.15.00.000 - для подсосных свиноматок;

КГО-Ф-10 и КГО-Ф-25 со щелевыми полами - для содержания 10 и 25 поросят (станки с щелевыми полами в 6 - 8 раз снижают затраты труда на уборку навоза, уменьшают расход кормов на 1 ц привеса на 9,7 %, улучшают зооветеринарные и гигиенические условия содержания животных).

4.10. В зависимости от планировки помещений, типа кормления и технологии содержания половозрастных групп и мощности ферм раздача кормов может быть осуществлена мобильными или стационарными кормораздатчиками.

Мобильные кормораздатчики КС-1,5, РС-5А, КЭС-1,7, КУТ-3,0А, КОП-0,8 рекомендуется применять при раздаче влажных многокомпонентных смесей в небольших свиноводческих фермах.

Стационарная раздача кормов может выполняться при раздаче сухих кормов с использованием кормораздатчиков ОКС-1000, КВД-Ф-1 с индивидуальным весовым дозированием и при раздаче жидких кормов (смесь воды с комбикормами) кормовым насосом 3Б Мкр-7 или винтовыми насосами 1В-20/10, 1В-5/20.

4.11. Для взрослого поголовья рекомендуются автопоилки самоочищающиеся одночашечные ПСС-1 и сосковые ПБС-1А, для поросят-сосунов и поросят-отъемышей - сосковые ПБП-1А.

Поилки следует устанавливать на следующей высоте от пола станка: для поросят-сосунов - 30 см, для поросят-отъемышей - 45 см, для молодняка откормочного поголовья - 45 см, для взрослых маток и хряков - 65 - 75 см.

Для предотвращения забивания клапанных механизмов поилок механическими примесями и окалиной поилки должны быть установлены выше труб, подводящих к ним воду.

4.12. Удаление навоза из свинарников может быть осуществлено механическим или гидравлическим способами.

Механическое удаление навоза следует применять на небольших свиноводческих фермах, использующих корма собственного производства и пищевые отходы. Для механического удаления навоза рекомендуются:

транспортеры ТС-1пр-2 продольные (для удаления навоза из продольных навозных каналов);

транспортеры ТС-1пп-5 поперечные (для удаления навоза из поперечных навозных каналов);

установки скреперные УС-12 для удаления навоза из продольных каналов, УСП-12 для удаления навоза из поперечных каналов.

Для гидравлических систем удаления навоза из свинарников наиболее перспективна самотечная система периодического действия с шиберами ШУС-Ф-1 и смывная система с использованием установок для смыва навоза типа КПС-108.

Для механического разделения навоза на твердую и жидкую фракции целесообразно применение дугового сита СД-Ф-50 в сочетании с транспортером-дозатором КПС-108.60.03.000, а также оборудования отстойника-сгустителя ООС-25.

4.13. Выбор оборудования целесообразно увязывать с мощностью ферм. При концентратно-корнеплодном типе кормления целесообразно применять оборудование на базе комплектов оборудования КЦС 100/1000, КЦС 200/2000, КЦС 2000, КЦС-3000, КЦС 6000 («Маяк-6») для типовых проектов: 802-6-1, 802-247, 802-6-2, 802-248, 802-116, 802-117, 802-119, 802-120.

Таблица 2

Рекомендуемые механизмы и оборудование для механизации основных технологических процессов при реконструкции свиноводческих ферм

№ п/п

Производственные процессы

Наименование, марка машин и механизмов

Техническая характеристика

Особенности применения

1

2

3

4

5

 

1. Выемка кормов из хранилищ и загрузка в транспортные средства

 

 

 

1.

Выемка и погрузка силоса

Погрузчик ПСК-5А

Производительность на силосе 15 т/ч. Высота забора 5 м

Все типы ферм

2.

Транспортировка и загрузка сухих кормов в накопительные и раздаточные емкости

Загрузчик сухих кормов ЗСК-Ф-10А

Производительность при выгрузке 10 т/ч Полезный объем 8 м3. Высота выгрузки не более 6,5 м

То же

3.

Бортовая перевозка зерна, сыпучих и гранулированных комбикормов, белково-витаминных добавок и выгрузки их в раздаточные бункеры и склады

Автокормовоз АСП-25

Производительность выгрузки 20 т/ч. Полезный объем 25 м3. Высота выгрузки не менее 10 м

Все типы ферм, в сочетании с бункерами БСК-25

 

2. Хранение концкормов, приготовление кормосмесй

 

 

 

1.

Подача и измельчение корнеплодов, запарка, перемешивание и выдача кормосмеси

Комплекты оборудования кормоцехов КЦС-100/1000, КЦС-200/2000, КЦС-2000 и 3000, КЦС-6000 («Маяк-6»)

Производительность на подготовке кормовых мешанок влажностью 60 - 65 %, соответственно 10, 20, 30, 60 т/сут.

На фермах, соответственно на  100 и 200 (со шлейфом), свиноматок; на 2000, 3000, 6000 голов единовременной постановки на откорм (до 12 тыс. свиней в год)

2.

Хранение и выдача концкормов

Бункер со шнековой выгрузкой БСК-10

Рабочий объем 10 м3. Производительность на выдаче 2 т/ч. Длина шнекового транспортера 5,75 м

На всех типах ферм

3.

То же

Бункеры НИ.25.09.000; НИ.25.08.000; НИ.25.08.200-01

Объем 7,8 м3

То же

4.

Хранение и выдача концкормов

Бункер БСК-25

Объем 25 м3

На всех типах ферм

5.

Приготовление искусственного молока из порошка и раздача его поросятам

Установка КПС 108.49.00.000

Производительность за 1 ч чистой работы 5,0 т/ч. Количество обслуживаемых поросят 336 голов

На промкомплексах по выращиванию и откорму свиней

 

3. Транспортировка и раздача кормов

 

 

 

1.

Транспортировка и раздача кормосмесей (влажных мешанок)

Кормораздатчик прицепной универсальный КУТ-3А

Емкость бункера 3 м3. Производительность при выгрузке до 54 т/ч

Все типы ферм и группы животных

2.

Перевозка и загрузка бункеров кормораздатчиков сухими и влажными кормами

Кормораздатчик универсальный КУТ-3,0БМ

Емкость бункера 3 м3. Производительность при выгрузке 22 т/ч, максимальная высота 2,3 м

То же

3.

Перемешивание и раздача влажных кормовых смесей влажностью 60 - 80 %

Кормораздатчик самоходный (по рельсам) электрифицированный КС-1,5

Емкость бункера 2,0 м3. Производительность на раздаче (без смешивания) до 30 т/ч

-"-

4.

То же

Кормораздатчик-смеситель РС-5А

Емкость бункера 0,8 м3. Производительность на смешивании и раздаче 5 т/ч

-"-

5.

Раздача влажных и сухих кормовых смесей

Кормораздатчик КСП-0,8

Емкость 0,8 м3. Производительность 4 т/ч

Все типы ферм для раздачи кормосмесей маткам и поросятам-сосунам

6.

Прием и раздача сухих, сочных и полужидких кормов

Кормораздатчик электрифицированный КЭС-1,7 (выпускается в 4 вариантах)

Емкость бункера 1,7 м3. Производительность на раздаче сухих кормов 20 т/ч, влажных кормов - 35 т/ч

Все типы ферм в свинарниках-откормочниках на 1000, 2000 голов свиней

7.

Транспортировка и раздача всех видов кормов

Тележка ручная универсальная ТУ-300

Грузоподъемность 300 кг

При индивидуальном содержании животных (свиноматки) или малых объемах раздачи (поросят)

8.

Дозированная автоматическая раздача сухих гранулированных концкормов

Раздатчик комбикормов ОСО-2400.12.000-02

Производительность 2,4 - 4,0 т/ч.

Максимальная норма выдачи одним дозатором 2,5 кг

Все виды ферм при раздаче в свинарниках-откормочниках при напольном кормлении

9.

То же

То же

ОСО-2400.12.000-03

Производительность 1,6 - 2,4 т/ч. Количество обслуживаемых животных 2000 голов

То же, при раздаче в свинарниках для доращивания поросят

10.

Раздача сухих комбикормов

Оборудование ОКС-1000

Производительность 1,0 т/ч. Установленная мощность 5,03 кВт. Количество дозаторов - 52 шт.

То же, при раздаче в групповые кормушки

11.

Перекачка кормовых смесей по трубам

Насос ЗБМкр-7

Подача 15,6 л/с. Насос 32,4 м вод. ст.

Все виды ферм при раздаче в свинарниках по откорму

12.

То же

Винтовой насос 1В-20/10

Подача 20 м3/ч. Напор 10 кг/см2

То же

13.

-"-

Винтовой насос 1В-20/5

Подача 20 м3/ч. Напор 5 кг/см2

-"-

 

4. Поение

 

 

 

1.

Поение свиней

Автопоилка чашечная (самоочищающаяся) ПСС-1

Количество обслуживаемых животных 25 - 30 голов

Для всех видов ферм и групп животных

2.

То же

Автопоилка бесчашечная ПБС-1А

Производительность 80 л/ч

Для взрослого поголовья при индивидуальном и групповом содержании

3.

-"-

То же, ПБП-1А

Производительность 50 л/ч

Для поросят при индивидуальном и групповом содержании

 

5. Удаление, переработка и транспортировка навоза

 

 

 

1.

Удаление навоза из помещений и погрузка его в транспортные средства

Транспортер скребковый навозоуборочный ТСН-160А с круглозвенной цепью

Длина контура горизонтального транспортера до 170 м, наклонного 6,8 м. Производительность 5 т/ч

Для свинарников-маточников и мелких ферм в подсобных хозяйствах

2.

Перемещение навоза из продольных каналов в поперечные каналы или навозосборники

Транспортер скреперный ТС-1пр-2 (продольный)

Производительность 10 т/ч. Длина транспортирования 91 м

Свинарники всех видов ферм

3.

Подача навоза от свинарников в навозосборник

Транспортеры скреперные ТС-1пп-3, ТС-1пп-4, ТС-1пп-5, ТС-1пп-6, ТС-1пп-7, ТС-1пп-8, ТС-1пп-9 (поперечные)

Производительность 10 т/ч. Длина транспортирования 69 м, 91 м, 113 м, 135 м, 160 м, 200 м, 240 м

То же

4.

Перемещение навоза из продольных каналов

Скреперная установка УС-12

Производительность 12 т/ч. Рабочая длина установки 2´96 м

-"-

5.

Подача навоза от свинарников в навозосборники

Скреперная установка УСП-12

Производительность 12 т/ч. Длина транспортера 240 м

-"-

6.

Перемешивание и подача жидкого навоза в транспортные средства или трубопроводные системы из навозоприемников и навозохранилищ

Погрузчик жидкого навоза мобильный ПНЖ-250

Производительность 200 м3/ч. Глубина забора 4,5 м

-"-

7.

Погрузка навоза из навозосборника в транспортные средства

Навозопогрузчик ковшовый НПК-30А

Производительность 30 т/ч. Глубина забора до 8 м

-"-

8.

Транспортирование навоза, подача жидкого навоза в транспортные средства

Насос центробежный НЦИ-Ф-100

Производительность при влажности навоза 95 % - 97,2 м3/ч. Глубина забора 3 м. Напор 10 м

На фермах с гидравлическими системами удаления навоза

9.

Разделение жидкого навоза на фракции

Дуговое сито СД-Ф-50

Производительность 25 - 30 м3

На крупных фермах всех типов с гидравлическими системами удаления навоза

10.

Накопление твердой фракции навоза, обезвоживание, равномерная подача в ленточные транспортеры очистных сооружений

Транспортер-дозатор КПС 108.60.03.000

Производительность 2 - 10 т/ч

Очистные сооружения свиноводческих ферм и комплексов

11.

Перекачка жидкой фракции

Насос типа ФГ (фекальный горизонтальный)

Производительность 25 - 216 м3

То же

12.

Транспортирование и внесение плотного навоза

Разбрасыватели органических удобрений (прицепные) РОУ-5, ПРТ-10, ПРТ-16

Грузоподъемность, соответственно, 6, 10, 15 т. Рабочая скорость до 12 км/ч. Норма внесения удобрений 10 - 60 т/га

Все виды ферм

13.

Самозагрузка транспортирование, перемешивание и внесение жидкого навоза

Разбрасыватели жидких органических удобрений (прицепные цистерны) РЖТ-4Б, РЖТ-8, РЖТ-16

Грузоподъемность, соответственно, 5, 10, 15 т.

Рабочая скорость 10 км/ч. Норма внесения удобрений 10 - 40 т/га

То же, кроме имеющих системы орошения

14.

Отделение мелкодисперсных частиц

Оборудование отстойника-сгустителя ООС-25

Рабочая емкость 60 м3

Все виды ферм с гидравлическим удалением навоза

15.

Измельчение навоза

Измельчитель навоза ИН-Ф-50

 

На крупных фермах всех типов с гидравлическими системами удаления навоза

 

6. Содержание свиней

 

 

 

1.

Индивидуальное содержание свиноматок

Станочное оборудование ОСХ-144, ОСХ-264

Количество станков в комплекте, соответственно, 144 и 264 шт. Размер станка 650´2200´1000 мм

Для содержания холостых и легкосупоросных свиноматок и ремонтных свинок

2.

То же

Блоки для свиноматок КПС 108.11.00.000, КПС 108.12.00.000

Количество станков в блоке 11 и 22 шт.

То же

3.

Групповое содержание свиноматок и откормочного поголовья

Станочное оборудование ОСС-400, ОСО-2400

На 400 и 2400 голов свиней, соответственно, 40 и 200 станков. Размер станка 6000´4000´900 мм. Площадь пола 18,6 м2

Для содержания супоросных свиноматок и откормочного поголовья

4.

Содержание свиноматок с приплодом

Станочное оборудование ОСМ-1М, для влажных ОСМ-60Б-I, для сухих ОСМ-60Б-II (для кормления влажными мешанками) на 40 подс. маток - ОСМ-1М-1; на 60 подс. маток - ОСМ-1М-2; на 80 подс. маток-ОСМ-1М-3; на 120 подс. маток - ОСМ-1М-4

Количество станков в комплекте 60 шт. Размер станка 2500´3000´1100 мм

Для проведения опоросов и содержания свиноматок с приплодом до 2 месяцев

5.

То же

Станок двухсекционный для опороса и содержания двух свиноматок ОСМ-1-5

Количество боксов для свиноматок 2 шт. Количество боксов для поросят 4 шт. Площадь станка 8,8 м2

Для проведения опоросов и содержания поросят до 35-дневного возраста

6.

Содержание свиноматок с приплодом

Станок для опороса свиноматок с приподнятым решетчатым полом СОС-Ф-35, для сухих кормов СОС-Ф-35-I, для влажных кормов СОС-Ф-35-II

Площадь станка 4,3 м2.

Комплект состоит из 32 станков (4 блока по 8 станков)

То же, для удержания поросят до 35-дневного возраста

7.

Групповое содержание поросят-отъемышей

Одноярусные клетки с приподнятым полом КГО-Ф-10-1 (для кормления сухими кормами), КГО-Ф-10-2 (для кормления влажными кормами)

Количество поросят в клетке - 10. Площадь станка 3,15 м2

Для всех свиноводческих ферм и комплексов для содержания поросят до 110 дней

8.

То же

То же, КГО-Ф-25 для кормления сухими кормами

Количество поросят в клетке - 25

То же

5. ЭЛЕКТРОСНАБЖЕНИЕ И ЭЛЕКТРООБОРУДОВАНИЕ

А. Электроснабжение

5.1. Реконструкция объектов электроснабжения при выполнении проектов реконструкции животноводческих комплексов и ферм должна начинаться с технического обследования (паспортизации) действующих источников питания, внутреннего электрооборудования существующих наружных и внутриплощадочных электросетей 35 - 10 и 0,4 кВ, внутренних электропроводок и электрооборудования зданий и сооружений. В зависимости от объема реконструкции объекта и поголовья животных, принятого после реконструкции в соответствии с «Временными указаниями по проектированию электроснабжения комплексов по производству продуктов животноводства на промышленной основе», определяется категория надежности электроснабжения объекта в целом, что позволяет принять решение по выбору количества источников электроснабжения и после проведения соответствующих расчетов и получения технических условий от электроснабжающих организаций выбрать их тип и мощность.

При этом, по данным технических обследований определяется возможность использования существующих источников электроснабжения, наружных и внутриплощадочных электросетей, электрооборудования зданий и необходимый объем их реконструкции.

5.2. Расчет электрических нагрузок. Расчет электрических нагрузок животноводческих зданий и объектов в целом выполняется в соответствии с «Методическими указаниями по расчету электрических нагрузок в сетях 0,38 - 110 кВ сельскохозяйственного назначения» Сельэнергопроекта (1981 г.), с обязательным разделением электроприемников внутри каждого здания и по всему объекту по категориям надежности электроснабжения. Определять категории надежности отдельных электроприемников внутри зданий следует в соответствии с требованиями п. 1-2-17 ПУЭ-76.

В результате расчетов на листе общих данных по каждому зданию, сооружению и всей ферме или комплексу должны приводиться следующие величины:

а) расчетная нагрузка дневная и вечерняя, кВА;

б) установленная мощность электроприемников всего и по группам: силовые, осветительные, электротепловые;

в) расчетная нагрузка электроприемников I и II категории надежности, допускающих перерыв в электроснабжении, соответственно, на 0,5 ч и 3,5 ч (кВА) в соответствии с п. 1.11 НТПС-73;

г) расчетная нагрузка электротеплоснабжения, кВА;

д) расчетная нагрузка вентиляции, кВА;

е) коэффициент мощности с учетом компенсации;

ж) годовой расход электроэнергии, тыс. кВт · ч.

5.3. В зависимости от категории надежности электроснабжения объекта в целом определяется необходимость использования двух или одного источника питания. Для комплексов и ферм, отнесенных по «Временным указаниям» к потребителям I категории надежности, должно просматриваться питание от двух независимых источников, с установкой АВР на вводах 35 - 10 кВ трансформаторной подстанции. При наличии только одного источника централизованного электроснабжения от сети энергосистемы, для объектов I категории необходимо предусматривать резервную дизельную электростанцию, мощность которой выбирается из условий питания в аварийном режиме наиболее ответственных электроприемников при принудительном графике их работы.

При использовании в качестве резервного источника питания автономной дизельной электростанции особое внимание следует обратить на исключение возможности обратной трансформации напряжения от ДЭС в сеть 38 - 10 кВ, что может привести к электропоражениям ремонтного персонала энергосистемы и обслуживающего персонала животноводческого объекта.

Трансформаторная подстанция должна располагаться в центре электрических нагрузок. Для наиболее полного использования резервной ДЭС ее целесообразно подключить через соответствующие отключающие устройства к шинам 0,4 кВ трансформаторной подстанции, что позволит использовать ее мощность в часы минимума нагрузок по существующей сети 380/220 В для питания любого электроприемника объекта.

5.4. Компенсация реактивной мощности должна выполняться по техническим условиям энергосистемы в соответствии с «Указаниями по выбору средств регулирования напряжения и компенсации реактивной мощности при проектировании сельскохозяйственных объектов и электрических сетей сельскохозяйственного назначения» Сельэнергопроекта.

При этом, конденсаторные батареи должны устанавливаться у распределительных щитов 380/220 В, питающих значительные силовые нагрузки.

При технико-экономическом обосновании компенсирующие устройства могут устанавливаться на трансформаторной подстанции.

5.5. Внутриплощадочные сети 380/220 В. Внутриплощадочные сети 380/220 В на фермах и комплексах во всех случаях, когда это возможно, должны выполняться воздушными на деревянных опорах. Железобетонные опоры должны предусматриваться в безлесных районах и в районах, указанных в приложении 2 к «Техническим правилам по экономному расходованию основных строительных материалов» (ТП 101-81* пп. 1.36, 1.37). При проектировании подземных кабельных линий должны использоваться облегченные силовые кабели с алюминиевыми жилами в пластмассовой изоляции и оболочке в соответствии с «ЕТУ по выбору и применению электрических кабелей (кабели силовые)».

Количество вводов в здания ферм и комплексов сети 380/220 В определяется в зависимости от категорий надежности электроприемников в этих зданиях. При наличии в зданиях электроприемников I категории надежности в здание следует предусматривать два ввода, в остальных случаях - один ввод.

Устройство АВР на вводах в здания животноводческих ферм и комплексов сети 380/220 В предусматривать не следует.

5.6. На территории животноводческих объектов в соответствии с «Отраслевыми нормами освещения сельскохозяйственных предприятий, зданий, сооружений» п. 3.5 следует выполнять освещение проездов с освещенностью 0,5 лк.

В качестве светильников для наружного освещения в большинстве случаев применяются светильники для ламп накаливания типа СПО-200.

Охранное освещение территории животноводческих ферм и комплексов нормами не предусмотрено и выполняться не должно.

Б. Внутреннее электрооборудование зданий

5.7. При реконструкции животноводческих зданий освещение животноводческих помещений следует выполнять, как правило, газоразрядными источниками света низкого давления (люминесцентными лампами), а помещений подобного назначения - лампами накаливания, допускается применение ламп накаливания и для животноводческих помещений.

Нормы освещенности в различных помещениях животноводческих объектов следует принимать по табл. 2 «Отраслевых норм освещения сельскохозяйственных предприятий, зданий, сооружений».

В животноводческих помещениях следует предусматривать рабочее и дежурное освещение. Светильники дежурного освещения выделяются из числа светильников рабочего освещения. Тип светильников выбирается в зависимости от условий среды в помещении, высоты их подвески и в соответствии с характером светораспределения светильников.

Освещенность навозных проходов должна составлять 25 % от нормируемой освещенности животноводческого помещения, но не менее 10 лк.

При реконструкции освещения отдельных зданий, перечисленных в п. 3.2 «Отраслевых норм освещения сельскохозяйственных предприятий, зданий, сооружений», в зонах размещения животных с естественным освещением менее 0,5 % К.Е.О. следует предусматривать увеличение искусственной освещенности на одну ступень по шкале освещенности: 30, 40, 50, 65, 75, 100, 125, 150 лк.

При выполнении инфракрасного обогрева и ультрафиолетового облучения молодняка сельскохозяйственных животных следует руководствоваться соответствующими рекомендациями, разработанными ВИЭСХ и утвержденными бывшим Минсельхозом СССР.

5.8. В соответствии с требованиями СН 357-77 в качестве аппаратов защиты электрических сетей и установок следует применять плавкие предохранители, не допуская необоснованного применения автоматических выключателей.

Силовые и осветительные сети следует прокладывать, как правило, без применения труб. В случаях, когда прокладка проводов и кабелей в трубах предусмотрена соответствующими нормативными документами, должны применяться неметаллические трубы. Применение стальных тонкостенных или водогазопроводных труб допускается только при соответствующем обосновании.

Область применения неметаллических труб в электропроводках регламентируется СНиП 3.05.06-85. При выполнении проектов внутреннего электрооборудования зданий необходимо обратить особое внимание на использование проводов и шнуров с пластмассовой и резиновой изоляцией с медными и алюминиевыми жилами новых (промежуточных) сечений (по меди 1,2; 2,0; 3,0; 5,0; 8,0 мм2; по алюминию 2,0; 3,0; 5,0; 8,0 мм2) в связи с изменением требований глав 1 - 3 и П - 1 ПУЭ-76.

5.9. Необходимость выполнения молниезащиты зданий и сооружений при реконструкции животноводческих комплексов и ферм диктуется требованиями СН 305-77.

Молниезащита выполняется для зданий крупного рогатого скота и свиней III, IV, V степени огнестойкости по СНиП II-2-80 вместимостью 100 голов и более только в местностях со средней грозовой деятельностью 40 ч и более в год, которая определяется по данным местной метеорологической станции, а при ее отсутствии - по карте, приведенной на рис. 1 СН 305-77.

В большинстве случаев молниезащита животноводческих зданий выполняется укладкой на кровлю молниеприемной сетки с ячейкой площадью не более 150 м2 (например, ячейки 12´12 м). При этом импульсное сопротивление каждого заземлителя защиты от прямых ударов молнии для зданий крупного рогатого скота должно быть не более 100 м, а для свиноводческих зданий 200 м.

В случаях, когда в зданиях и сооружениях имеются взрыво- или пожароопасные помещения, их молниезащита выполняется с учетом требований пп. 1 - 8 табл. 1 СН 305-77.

5.10. В целях обеспечения электробезопасности животных на фермах и комплексах крупного рогатого скота и свиноводческих необходимо предусматривать «Устройство выравнивания электрических потенциалов» (УВЭП), или другие мероприятия, предусмотренные ОСТ 46.180-85 «Защита сельскохозяйственных животных от поражения электрическим током. Выравнивание электрических потенциалов. Общие технические требования», утвержденным Минсельхозом СССР 6 марта 1985 г. Выбор способа обеспечения электробезопасности животных зависит от уровня электромеханизации животноводческих помещений и технологии содержания животных.

При использовании на фермах и комплексах автопоилок и электроподогревом воды вокруг поилок также выполняется УВЭП. Все соединения УВЭП выполняются сваркой. К УВЭП присоединяются все металлоконструкции, к которым могут прикасаться животные, железобетонные конструкции зданий и нулевой провод электросети.

Для обеспечения электробезопасности обслуживающего персонала все нетоковедущие части электрооборудования (корпуса щитов, пусковой аппаратуры и т.п.), которые могут оказаться под напряжением из-за повреждения изоляции, должны быть присоединены к нулевому проводу электросети.

6. АВТОМАТИЗАЦИЯ ТЕХНОЛОГИЧЕСКИХ ПРОЦЕССОВ

6.1. Автоматизацию групп или отдельных технологических процессов на реконструируемых фермах и комплексах следует предусматривать на основании соответствующих экономических и технологических расчетов (обоснований).

Раздел «Автоматизации технологических процессов» проектов реконструкции ферм и комплексов должен выполняться в соответствии с действующими нормативными документами:

СНиП 3.05.07-85

«Система автоматизации»;

ВСН 281-75

Минприбор СССР

«Временные указания по проектированию систем автоматизации технологических процессов»;

ВСН 205-84

Минмонтажспецстрой СССР

«Инструкция по проектированию электроустановок систем автоматизации технологических процессов»,

а также руководящими материалами по проектированию ГПИ «Проектмонтажавтоматика».

При разработке данного раздела проектов следует использовать щиты и шкафы управления, поставляемые комплектно с технологическим оборудованием, например:

шкаф управления «Нерис» комплекта оборудования кормоцеха КОРК-15;

комплектные устройства управления КУК-5 кормоцехов на базе оборудования КЦК-5;

шкафы управления ЯАА5404-2574УЗ скреперных установок УС-15;

станция управления «Приток» тепловентиляторов серии «ТВ»;

станции управления «Климатика-1» типа ТСУ-2-КЛУЗ вентиляционным оборудованием «Климат-45» и т.д.

В случае индивидуальной разработки устройств управления следует предусматривать схемы с использованием релейно-контактной аппаратуры.

Для унификации и упорядочения проектирования систем автоматизации отдельных технологических участков, агрегатов и механизмов рекомендуется руководствоваться приведенными ниже схемными решениями отдельных систем управления.

Указанные системы управления разработаны с учетом применения серийно выпускаемых шкафов и постов управления и с исключением применения дефицитных щитов по ОСТ 36.13-76.

В настоящих рекомендациях представлены принципиальные электрические схемы и схемы внешних проводок по участкам.

Указанные материалы позволяют устранить этап разработки этих чертежей в выполняемых проектах, тем самым обеспечивается унификация решений и сокращение сроков проектирования. Кроме того, применение предлагаемых технических решений обеспечивает снижение стоимости монтажа систем автоматизации и сокращение сроков монтажа.

В рекомендациях освещены вопросы выбора схем, постов и шкафов управления, рекомендуемых для автоматизации соответствующих участков.

Исполнение оболочки шкафов и постов управления выбрано в соответствии с «Правилами устройства электроустановок» (ПУЭ). Область применения разработанных систем представлена на рис. 1 - 13.

Для других технологических решений, не учтенных настоящими рекомендациями, следует разрабатывать решения систем управления по аналогии с приведенными.

6.2. Приточная система рис 1 и 2 схема 1. Схемой предусмотрено местное деблокированное и сблокированное управление электроприводом приточного вентилятора. Блокировка осуществляется по сигналу терморегулятора, обеспечивающего автоматическое отключение электропривода вентилятора при снижении температуры обратного теплоносителя до 20 °C (защита калорифера от замораживания).

Кроме того, схемой предусмотрена блокировка от вытяжного вентилятора, необходимая в зарядных станциях. Аппаратура управления размещается в посту управления, который устанавливается на стене в помещении венткамеры.

Защита силовых цепей выполнена 3-полюсным автоматом, в связи с чем в цепях управления принято напряжение 220 В переменного тока (фаза ноль).

Приточная система рис. 3 и 4 схема 2. Схемой предусмотрено: местное деблокированное и сблокированное управление электроприводом приточного вентилятора. Блокировка осуществляется по сигналу терморегулятора, обеспечивающего автоматическое отключение электропривода вентилятора при снижении температуры обратного теплоносителя до 20 °C (защита калорифера от замораживания).

Аппаратура управления размещается в посту управления, который устанавливается на стене в помещении венткамеры.

Защита силовых цепей выполнена предохранителями, в связи с чем в цепях управления принято напряжение 380 В переменного тока.

Насосная станция хозяйственно-питьевого назначения (рис. 5, 6). Схемой предусмотрено: управление двумя электроприводами насосов (один рабочий, один резервный). Рабочий насос включается кнопкой с местного поста управления.

Резервный насос включается автоматически, по сигналу снижения давления в напорном трубопроводе.

На общем напорном патрубке установлен электроконтактный манометр, обеспечивающий контроль давления. При падении давления с выдержкой времени включается резервный насос. Реле промежуточное и времени размещаются в комплектном устройстве типа РУС 9514-00В2.

Величина предельного давления определяется в конкретном проекте.

Противопожарные насосы (рис. 7, 8). Схемой предусмотрено:

1. Управление электроприводом насосов (один рабочий, один резервный);

2. Автоматическое включение резервного питания цепей управления.

1) Рабочий насос включается кнопкой с местного поста управления или дистанционно кнопками, установленными у пожарных кранов. Резервный насос включается автоматически, по сигналу падения давления в напорном трубопроводе или при исчезновении напряжения в цепях управления.

Это осуществляется следующим образом: при дистанционном пуске рабочего насоса одновременно включается реле времени КТ. С выдержкой времени замыкается контакт КТ в цепи реле К2. При кратковременном падении давления в напорном трубопроводе срабатывает подготовленная цепь реле К2 включения резервного насоса. При этом цепь управления рабочим насосом автоматически отключается.

2) Автоматическое включение резервного питания общих цепей осуществляется при исчезновении напряжения в цепях управления - реле К1 теряет питание.

При этом нормально-закрытые контакты реле К1 обеспечивают питание цепей реле КТ и К2.

Реле промежуточное и времени размещаются в комплектном устройстве типа РУС 9514-00В2. Отключение насосов осуществляется кнопками В1 или В2 в кнопочных постах 1, 2, установленных по месту у электродвигателей.

Насосная станция навозоудаления (рис. 9, 10)

Схемой предусмотрено управление электроприводом насоса перекачки стоков из приямка:

а) автоматическое - по сигналам уровня. При верхнем уровне - насос включается, при нижнем - отключается;

б) ручное;

в) сигнализация работы электропривода насоса.

Аппаратура управления размещается в посту управления, который устанавливается на стене рядом с приямком. Блок сигнализатора уровня размещается на конструкции и закрывается протяжной коробкой типа ПК 850´180.

Доильно-молочный блок. Станция для перекачки молока (рис. 11). ВИЭСХ совместно с Главным управлением механизации и электрификации Госагропрома СССР разработаны схемы технологических линий обработки молока для ферм и комплексов молочного направления с поголовьем от 200 до 2000 коров.

Гипронисельхозом совместно с лабораторией автоматизированного электропривода ВИЭСХ разработана система управления перекачивающими станциями линий обработки молока для молочных производительностью от 6 до 12 т молока в сутки. Применение предлагаемой системы исключает необходимость обслуживающего персонала для управления молочным насосом.

Подобная система испытана в совхозе Симферопольский, Крымской обл. Кроме того, аналогичные системы эксплуатируются в доильных установках УДА-8А, АДМ-8А, УДЕ-16 и др.

Описание принципа управления

Система предусматривает управление насосом Г2-ОПА в зависимости от уровня молока в молокоприемном баке. В баке устанавливается первичный преобразователь уровня (поплавковый датчик), преобразующий уровень молока в дискретные электрические сигналы, поступающие в блок управления.

Автоматический режим: по сигналу датчика верхнего уровня срабатывает реле Р2 блока управления, при этом включается электропривод насоса. При наступлении нижнего уровня по сигналу датчика НУ замыкается цепь реле Р1, реле Р2 отключается, насос останавливается. При невключении насоса уровень в баке повышается до аварийного: срабатывает датчик аварийного верхнего уровня, поступает команда на включение электропривода насоса и в схему аварийной сигнализации (реле Р8, Р2). Приборный блок управления, пускозащитная аппаратура управления насосом размещаются в шкафу управления.

Шкаф управления поставляется комплектно со станцией перекачки молока и монтируется в непосредственной близости от насоса.

Трубопроводная задвижка с электроприводом (рис. 12, 13). Схемой предусмотрено управление электроприводом задвижки, установленной на трубопроводе стоков, поступающих в колодец.

Открытие задвижки осуществляется вручную, закрытие - автоматически по сигналу верхнего уровня в колодце или вручную.

Управление электроприводом и сигнализация положения задвижки выполняется с помощью поста управления типа ПКУ-15 и сигнализатора уровня типа РУ-37, установленных по месту.

Диаграммы замыкания контактов

переключателя

SA

термореле

BK

 Контакт замкнут

 Контакт разомкнут

Питание ~ 220 В

Управление электродвигателем приточного вентилятора

МЕСТНОЕ

Деблокированное

Сблокированное

 

Поз.

Обозн.

Наименование

Тип

Кол.

Техническая характеристика

Примеч.

По месту

 

ВК

Регулятор температуры

ТУДЭ-4

1

0 ÷ 250 °C

 

 

КМ

Магнитный пускатель

ПМЛ-

1

Учтен в части «Э»

 

 

S

Пост управления

ПКУ 15-19.131-54У2

1

 

 

РИС. 1. ПРИТОЧНАЯ СИСТЕМА. ПРИНЦИПИАЛЬНАЯ ЭЛЕКТРИЧЕСКАЯ СХЕМА УПРАВЛЕНИЯ (СХЕМА 1)

НАИМЕНОВАНИЕ ПАРАМЕТРА И МЕСТО ОТБОРА ИМПУЛЬСА

ВЫТЯЖНАЯ СИСТЕМА

ПРИТОЧНАЯ СИСТЕМА

ТЕМПЕРАТУРА

МАГНИТНЫЙ ПУСКАТЕЛЬ ПМЕ-121

МАГНИТНЫЙ ПУСКАТЕЛЬ ПМЕ-121

ПОСТ УПРАВЛЕНИЯ

РЕГУЛЯТОР ТЕМПЕРАТУРЫ ТУДЭ-4

ТРУБОПРОВОД ГОРЯЧЕЙ ВОДЫ

ТРУБОПРОВОД ОБРАТНОГО ТЕПЛОНОСИТЕЛЯ

ПЕРЕД КАЛОРИФЕРОМ

НА ВОЗДУХЕ - ВОДЕ

№ УСТАНОВОЧНОГО ЧЕРТЕЖА

ЗАКАЗАНЫ В ЧАСТИ Э

-

ТМ 4-148-75

ТМ 4-144-75

ТМ 4-143-75

ОБОЗНАЧЕНИЕ ПО СХЕМЕ

1В - KM

KM

S

BK

-

-

-

-

Наименование

Марка и размер

Ед. изм.

Кол.

Примечания

Провод установочный с алюминиевой жилой

АПВ 1´2,0 мм2

м

 

 

Трубка из поливинилхлоридного пластиката

Ш ТВ-40-230-16´0,9

²

 

 

Соединительная коробка

КСК-8

шт.

 

 

Условное обозначение

 Жила кабеля или провода, используемая для заземления электроустановок

Рис. 2. ПРИТОЧНАЯ СИСТЕМА. СХЕМА ВНЕШНИХ ПРОВОДОК (СХЕМА 1)

Диаграммы замыкания контактов

переключателя

SA

термореле

BK

 Контакт замкнут

 Контакт разомкнут

Управление приточным вентилятором

МЕСТНОЕ

Деблакированное

Сблокированное

ПРОМЕЖУТОЧНОЕ РЕЛЕ

 

Поз.

Обознач.

Наименование

Тип

Количество

Техническая характеристика

Примеч.

По месту

 

ВК

Регулятор температуры

ТУДЭ-4

1

0 ÷ 250 °C

 

 

КМ

Магнитный пускатель

ПМЛ-

1

Учтен в части «Э»

 

 

К

Магнитный пускатель

ПМЕ-082

1

 

 

 

S

Пост управления

ПКУ 15-19.131-54У2

1

 

 

!

SF

Выключатель автоматический

АК68-2МГ

1

Jвр = 0,6 А;

в метал. корпусе 1 Р54

 

РИС. 3. ПРИТОЧНАЯ СИСТЕМА. ПРИНЦИПИАЛЬНАЯ ЭЛЕКТРИЧЕСКАЯ СХЕМА УПРАВЛЕНИЯ (СХЕМА 2)

Наименование параметра и место отбора импульса

ПРИТОЧНАЯ СИСТЕМА

Пост управления

Магнитный пускатель ПМЕ-082

Магнитный пускатель ПМЕ-122

Автоматический выключатель

Регулятор температуры ТУДЭ-4

Трубопровод обратного теплоносителя

Трубопровод горячей воды

В помещении

№ установочного чертежа

-

-

Заказан в части «Э»

ТМ4-148-75

 

ТМ4-143-75

Обозначение по электрической схеме

S

K

KM

SF

BK

-

-

-

Наименование

Марка и размер

Ед. изм.

Кол.

Примечан.

Провод установочный с алюминиевой жилой

АПВ 1´2,0 мм2

м

 

 

Трубка из поливинилхлоридного пластиката

Ш ТВ-40-280-16´0,9

"

 

 

Коробка соединительная

КСК-16

шт.

 

 

Скоба

00-22

"

 

 

Условное обозначение

 Жила кабеля или провода, используемая для заземления электроустановок

Рис. 4. ПРИТОЧНАЯ СИСТЕМА. СХЕМА ВНЕШНИХ ПРОВОДОК (СХЕМА 2)

Поз.

Обознач.

Наименование

Тип

Количество

Техническая характеристика

Примечание

По месту

 

1-РУС

2-РУС

Распределительное устройство

-

2

220

См. эл. часть проекта

 

РУС

Вспомогательное комплектное устройство

РУС 9514-00В2

1

 

SP

Манометр электроконтактный

ЭКМ-IV

1

Примечания: 1. В скобках указана заводская маркировка.

2. Контакты SP «min» замкнуты при давлении после насосов ниже допустимого.

Рис. 5. ХОЗЯЙСТВЕННО-ПИТЬЕВЫЕ НАСОСЫ. ЭЛЕКТРИЧЕСКАЯ ПРИНЦИПИАЛЬНАЯ СХЕМА УПРАВЛЕНИЯ

Наименование параметра и место отбора импульса

Насосы хозяйственно-питьевой воды поз. 1 и 2

Давление

Трубопровод воды после насосов

1; 2

1

2

№ монтажного чертежа

По месту

См. электротехническую часть

ТМ4-226-76

ТМ4-3138-70

Обозначение по электрич. схеме

РУС

1-РУС

2-РУС

-

-

-

Примечание. Заземление приборов КИПиА, металлических конструкций выполнить в соответствии с «Временной инструкцией по монтажу защитного заземления электроустановок систем автоматизации» ВСН 296-72/МинмонтажспецстройСССР.

Наименование

Марка и размер

Ед. изм. Кол.

Примечан.

Провод установочный с алюминиевой жилой

АПВ 1´2,0

м

-

Труба стальная водогазопроводная обыкновенная

15

"

ГОСТ 3262-75

Трубка из поливинилхлоридного пластиката

Ш ТВ-40 230-16´0,9

"

ГОСТ 19034-73

Кран контрольный трехходовой

14М1

" 3

 

Рис. 6. ХОЗЯЙСТВЕННО-ПИТЬЕВЫЕ НАСОСЫ. СХЕМА ВНЕШНИХ ПРОВОДОК

Диаграмма замыкания контактов

переключателя

1SA; 2SA

Поp.

Обозн.

Наименование

Тип

Кол

Техническая характеристика

Прим.

По месту

 

1S; 2S

Пост управления

ПКУ15-19.131-54У2

2

 

 

 

РУС

Вспомогательное комплектное устройство

РУС 9514-00В2

1

220 В

Реле времени исп. 3

 

SP

Манометр электроконтактный

ЭКМ-IV

1

0 ÷ 10 кгс/см2

 

 

В3

Пост управления

ПКЕ-222-1

22

Кнопочные элем. КЕ-011

 

 

1КМ, 2КМ

Магнитный пускатель

ПМЛ-

2

 

По проекту «Э»

 

1SF, 2SF

Автоматический выключатель

АК63-1МГ

2

Jнр = 0,6 А; в металлич. корпусе IР54

 

1. Контакты SР «min» замкнуты при давлении после насосов ниже допустимого.

2. Кнопки «SB3» устанавливаются на этажах у пожарных кранов для дистанционного пуска противопожарных насосов.

3. Пунктирной линией обведены аппараты, входящие в ПКУ-15.

4. Установка времени реле КТ для контакта с выдержкой при отключении реле составляет 0,5 с, а для контакта с выдержкой при включении реле регулируется при наладке.

Рис. 7. ПРОТИВОПОЖАРНЫЕ НАСОСЫ. ЭЛЕКТРИЧЕСКАЯ ПРИНЦИПИАЛЬНАЯ СХЕМА УПРАВЛЕНИЯ

Наименование параметра и место отбора импульса

Противопожарный насос № 1

Противопожарный насос № 2

Вспомогательное распределительное устройство

Давление

Трубопровод, воды насосов

№ установочного чертежа

По месту

См. электротехническую часть

По месту

По месту

См. электротехническую часть

По месту

По месту

ТК4-3136-71

Обозначение на электрической схеме

1SF

1KM

1S

2SF

2KM

2S

K2

K1

KT

SP

Наименование

Марка и размер

Ед. изм.

Кол.

Примечание

Кабель контрольный

АКРВГ 7´2,5 мм2

м

 

 

Провод установочный с алюминиевой жилой

АПВ 1´ мм2

"

 

 

Провод установочный с медной жилой

ПВ 1´1 мм2

"

 

Для монтажа РУС

Трубка из поливинилхлоридного пластиката

Ш ТВ-40´280-16´0,9

"

 

 

То же

Ш ТВ-40´280-20´1,15

"

 

 

Труба стальная водогазопроводная обыкновенная

15

 

 

ГОСТ 9262-75

Коробка соединительная

КС-40

шт.

1

 

То же

КСК-16

"

2

 

Кран контрольный трехходовой

14М1

"

1

 

Рис. 8. ПРОТИВОПОЖАРНЫЕ НАСОСЫ. СХЕМА ВНЕШНИХ ПРОВОДОК

Диаграмма замыкания контактов

переключателя

SA

Поз.

Обозн.

Наименование

Тип

Кол.

Техническая характеристика

Примеч.

По месту

 

S

Пост управления

ПКУ 15-19-141-40У3

1

 

 

 

SF

Выключатель автоматический

АК 63-1МГ

1

Jнр = 0,6 А; в металлич. корпусе 1Р54

 

 

KM

Магнитный пускатель

ПМЛ-

1

 

Заказыв. в части «Э»

 

SL

Реле контроля сопротивления

ИСК-2Н

1

~ 220 В, с двумя датчиками

 

РИС. 9. НАСОСНАЯ СТАНЦИЯ НАВОЗОУДАЛЕНИЯ. ЭЛЕКТРИЧЕСКАЯ ПРИНЦИПИАЛЬНАЯ СХЕМА УПРАВЛЕНИЯ.

Наименование параметра и место отбора импульса

Насос навозоудаления

Датчики уровня

Пост управления ПКУ 15-19-141-40У3

Магнитный пускатель ПАЕ-332

Автоматический выключатель

ВУ

НУ

Заземляющий

Обозначение по электрической схеме

SL

S

KM

SF

Позиция

 

 

 

 

Наименование

Марка и размер

Ед. изм.

Кол.

Примечан.

Провод установочный с медной жилой

ПВ1´1,0 мм2

м

 

 

Провод установочный с алюминиевой жилой

АПВ 1´2,0 мм2

"

 

 

Трубка из поливинилхлоридного пластиката

Ш ТВ-40-230-16´0,9

"

 

 

То же

Ш ТВ-40-230-25´1,15

"

 

 

Труба стальная обыкновенная

15

"

 

 

Коробка соединительная

КСК-16

шт.

 

 

Протяжная коробка

ПК 850´180

"

 

ТУЗБ.2072-77

Условное обозначение

 Жила кабеля или провода, используемая для заземления электроустановок

Рис. 10. НАСОСНАЯ СТАНЦИЯ НАВОЗОУДАЛЕНИЯ. СХЕМА ВНЕШНИХ ПРОВОДОК

Поз.

Обознач.

Наименование

Тип

Кол.

Техническая характеристика

Примечание

Шкаф управления

 

SA

Переключатель универсальный

УП5311-С225

1

~ 220 В

 

 

SF

Выключатель автоматический

А63-1МГ

1

Jнр = 0,6 А; в металлич. корпусе IР54

 

 

КМ

Магнитный пускатель

ПАЕ-332

1

 

 

 

БУ

Блок управления

 

1

 

 

 

HL

Арматура с зеленой линзой

АС-220

1

~ 220В

 

 

SB1; SB2

Кнопка управления

КЕ-011

1

Исп. 2 ~ 220 В

SB1 - красн. толкат

SB2 - черн.

 

 

Поплавковый датчик уровня с магнитоуправляемыми контактами в1; в2; в3

 

1

 

 

Рис. 11. ДОИЛЬНО-МОЛОЧНЫЙ БЛОК. СТАНЦИЯ ПЕРЕКАЧКИ МОЛОКА. ЭЛЕКТРИЧЕСКАЯ ПРИНЦИПИАЛЬНАЯ СХЕМА УПРАВЛЕНИЯ

Диаграмма работы

контактов SQ1; SQ2; SQ3; SQ4

1. В скобках указана заводская маркировка, номера контактов конечных выключателей задвижки обозначены *.

Поз.

Обознач.

Наименование

Тип

Кол.

Техническая характеристика

Примечан.

По месту

 

SB; SB1; SB2; HL1; HL2; HL3; SA

Пост управления

ПКУ15-19.331-54У2

1

С двумя сальниками Д-32 мм

 

 

SF

Выключатель автоматический

АК 63-1МГ

1

Jнр = 0,6 А; в металлич. корпусе IР54

 

 

SL

Реле уровня

РУ-3Э

1

Дифференциал

кадр уровня = 1600 мм

наибольшая дл. датч. = 1790 мм

 

 

SQ1; SQ2; SQ3; SQ4

Электропривод

тип «А»

1

 

Комплект с задвиж.

 

КМ1; КМ2

Пускатель магнитный

ПМЛ-

1

 

По проекту «Э»

РИС. 12. ЗАДВИЖКА. ЭЛЕКТРИЧЕСКАЯ ПРИНЦИПИАЛЬНАЯ СХЕМА УПРАВЛЕНИЯ

Наименование параметра и место отбора импульса

Задвижка на канализационном трубопроводе

Канализационный колодец

Электропривод типа «А»

Пост управления

Автоматический выключатель

Магнитный пускатель

Верхний уровень

Нижний уровень

-

Реле уровня

№ установочного чертежа

По инструкции завода-изготовителя

По месту на стенде

См. электрическую часть проекта

По инструкции завода-изготовителя

Обозначение по схеме

SQ2

SQ4

SQ1

SQ3

ПКУ

SF

КМ1

КМ2

ДВУ

ДНУ

Заземл.

SL

Наименование

Марка и размер

Ед. изм.

Кол.

Примечание

Кабель контрольный

АКРВГ 4´2,5

м

 

 

То же

АКРВГ 7´2,5

"

 

 

-"-

АКРВГ 14´2,5

"

 

 

Провод медный установочный

ПВ 1´0,75

"

 

 

То же

ПВ 1´1

"

 

 

Труба стальная водогазопроводная

Л 15

"

 

ГОСТ 8262-75

То же

Л 20

 

 

Коробка соединительная

КСК-32

шт.

1

 

РИС. 13. ЗАДВИЖКА. СХЕМА ВНЕШНИХ ПРОВОДОК

7. ТЕПЛОСНАБЖЕНИЕ, ОТОПЛЕНИЕ И ВЕНТИЛЯЦИЯ

7.1. Основными принципами, которыми следует руководствоваться при разработке мероприятий по улучшению микроклимата в животноводческих помещениях, являются следующие:

минимум суммарных приведенных затрат, складывающихся из затрат на улучшение теплозащитных свойств ограждающих конструкций, приобретение и монтаж оборудования и эксплуатационных затрат, связанных с их обслуживанием и обеспечением расчетных параметров микроклимата;

улучшение условий содержания животных;

экономное расходование топливно-энергетических ресурсов;

улучшение условий труда работающих.

7.2. В пояснительной записке должны быть приведены сведения о целенаправленности и сущности мер, предусмотренных проектом реконструкции, а также показатель экономии энергии (топлива) в абсолютной величине и процентах по отношению к ранее (до реконструкции) существовавшему положению.

7.3. При определении необходимости и целесообразности устройства тех или иных систем отопления и принудительной вентиляции следует учитывать возможность получения топлива или использования других источников тепла, а также возможности использования существующего теплотехнического и тепловентиляционного оборудования.

7.4. При реконструкции животноводческих зданий, входящих в состав мелких ферм с низким уровнем механизации и обеспеченности энергетическими ресурсами, необходимо иметь в виду следующее.

Такие здания, как правило, не имеют отопления, оборудованы простейшей системой естественной вентиляции, параметры воздуха в них в течение некоторого периода в зимнее время не соответствуют нормативным. При реконструкции этих зданий устройство систем отопления и принудительной вентиляции с целью обязательного достижения нормативных параметров зачастую нецелесообразно. В этом случае рекомендуется лишь улучшение теплотехнических свойств ограждающих конструкций (замена или увеличение толщины слоя утеплителя, дополнительное остекление оконных проемов, утепление ворот, полов и т.п.), а также устройство ручных регулирующих приспособлений у вентиляционных проемов, с помощью которых можно регулировать воздухообмен в зависимости от времени года.

Условия содержания животных при этом улучшаются, а период с ненормированными параметрами воздуха в помещении значительно сокращается.

7.5. Ограждающие конструкции, как минимум, должны иметь сопротивление теплопередаче не менее того, которое необходимо для исключения выпадения на них конденсата при максимально допустимой нормами технологического проектирования влажности воздуха в помещении.

Экономически целесообразное сопротивление теплопередаче стен составляет 2,15 - 2,70 м2 · °C/Вт, а покрытий 3,0 - 3,5 м2 · °C/Вт.

7.6. При реконструкции общефермских котельных предпочтение следует отдавать водогрейным котлоагрегатам типа «Братск», «Братск-1», «Караганда», «Факел-Г», «Факел-0,8 ЛЖ», котлам типа КВГ, а также (по мере освоения промышленностью) котлоагрегатам КВМ-0,25, КВМ-0,63, КВА-0,25 ГН и т.д.

7.7. При реконструкции тепловых сетей и систем теплоснабжения в качестве теплоносителя рекомендуется принимать горячую воду температурой 150 °C при тепловой мощности котельной более 3,5 МВт и 95 °C при меньшей мощности.

Применение в качестве теплоносителя пара допускается при обосновании.

7.8. Индивидуальные тепловые пункты на вводе тепловых сетей и систем подлежат реконструкции с обязательной установкой в них приборов контроля и учета расхода тепла в соответствии с требованиями действующих норм и директивных документов, используя в качестве материала для проектирования типовую серию 903-04-13 «Автоматизированные индивидуальные тепловые пункты (ИТП) зданий жилищно-гражданского и производственного назначения».

7.9. При реконструкции животноводческих ферм и возможности получения электроэнергии на тепловые нужды часто оказывается экономически выгодным вместо централизованного теплоснабжения от общефермской котельной с ее топливным хозяйством и теплосетями применять децентрализованное электротеплоснабжение за счет отдельных электронагревательных установок размещаемых непосредственно в помещениях (электровентиляционные агрегаты, электроводонагреватели и т.д.).

Для нагрева воздуха в приточных электровентиляционных установках рекомендуется использование электрокалориферных вентиляторных агрегатов типа СФОЦ. При дополнительной подаче тепла в животноводческое помещение в наиболее холодный период могут быть использованы агрегаты типа СФОО и электроконвекторы типа ЭОКС, подогревающие воздух в помещении. Когда приточные вентиляторы имеются в наличии и реконструкции не подлежат, для дополнительного подогрева приточного воздуха могут быть использованы электрокалориферы типа СО (с установкой дополнительных вентиляторов или заменой электродвигателей существующих приточных систем на более мощные).

Для систем водяного отопления производственных, вспомогательных и подсобных помещений ферм рекомендуется устройство нескольких мелких электрокотельных в зданиях, где сосредоточена основная нагрузка на системы отопления, например, в молочном блоке, административном здании, блоке кормовой зоны и т.п. К установке рекомендуются электродные водогрейные котлы типа ЭПЗ и КЭВ.

Для приготовления горячей воды, идущей на технологические и хозяйственно-бытовые нужды, рекомендуется установка (по возможности ближе к потребителям) электроводонагревателей типа УАП, САОС и САЗС. Кроме того, следует использовать избыточную установленную мощность отопительных электрокотлов. Для этого рекомендуется установка в электрокотельных скоростных водо-водяных подогревателей и баков-аккумуляторов горячей воды. Поверхность нагрева водоподогревателей и вместимость баков-аккумуляторов следует выбирать с учетом суточного графика водоразбора горячей воды различными потребителями.

Более подробные сведения о технических характеристиках теплопроизводящего оборудования, использующего электроэнергию, и принципах его применения изложены в «Рекомендациях по расчету, проектированию и применению систем электротеплоснабжения животноводческих ферм и комплексов» (Минсельхоз СССР, 1983).

В ряда случаев, по договоренности с электроснабжающими организациями, целесообразно применение теплоаккумулирующих электрокотельных, работающих по смешанному графику потребления электроэнергии: днем - в меньшей степени, ночью - в большей.

7.10. Существующие системы вентиляции должны подвергаться реконструкции в тех случаях, когда они не смогут поддерживать после реконструкции самих помещений требуемые в них параметры микроклимата и необходимый воздухообмен, а также в случаях, когда реконструкция этих систем приводит к ощутимой экономии топливно-энергетических ресурсов без ухудшения температурно-влажностных условий в помещении.

7.11. При проведении реконструкции систем вентиляции свиноводческих помещений следует предусматривать вытяжку из нижней зоны (зоны размещения животных) в объеме не менее 50 % минимального зимнего воздухообмена.

7.12. При реконструкции животноводческих предприятий с организацией производства на промышленной основе следует применять отопительно-вентиляционное оборудование, в конструкции которого учтены последние достижения науки и техники. Предпочтительно применение приточных установок, имеющих возможность изменения воздухо- и теплопроизводительности. Следует предусматривать автоматизацию работы отопительно-вентиляционных систем для поддержания требуемых параметров микроклимата в помещениях и защиты калориферов от замораживания.

При регулировании теплосъема с водяных калориферов приточных систем животноводческих помещений рекомендуется применять схемы с обводным каналом у калориферов и взаимоувязанным изменением количества воздуха, пропускаемого через калорифер и помимо него.

Схемы с изменением количества протекающей через калорифер воды применять в животноводческих помещениях не рекомендуется. Как правило, такая регулировка приводит к возможности замораживания калориферов и отключению в связи с этим приточных вентиляторов.

Для реконструкции ферм и комплексов на промышленной основе рекомендуется установка тепловентиляторов типа ТВ, комплектов приточных башен с двухскоростными вентиляторами типа КПС 108.21.08, а также комплектов многоскоростных вентиляторов типа «Климат 45М» и «Климат 47М». Вентиляторы типа ВО, входящие в комплекты «Климат», могут применяться как для создания вытяжки, так и притока. В последнем случае вентиляторы целесообразно устанавливать равномерно по площади помещения, с вертикальным расположением вала вентилятора, крепить их к приточным шахтам в покрытии и снабжать несложными воздухораспределительными устройствами, например, воздухоотбойными полками или воздухораспределителями типа ВДУМ (т.п. 1.494-19) или ВЭР (ЛО ГПИ «Проектпромвентиляция»).

Данное оборудование комплектуется соответствующими средствами автоматики и станциями управления (см. раздел «Автоматизация технологических процессов»).

7.13. Для реконструкции систем отопления и вентиляции ферм с организацией производства не на промышленной основе, а также для отдельных животноводческих зданий, помимо общепотребительного во всех отраслях хозяйства тепловентиляционного оборудования (вентиляторы типа В-Ц4-75 и В-Ц4-46, калориферы КВСБ-П, КВББ-П, КСк), можно применять специально предназначенные для сельского хозяйства теплогенераторы, работающие на жидком топливе типа ТГ-1,5 (завод «Мозырьптицемаш»), ТГ-3,5 (завод «Амурсельмаш»), ТГ-250 и ТГ-500 (завод «Брестсельмаш») и другие, а также модернизированные приточно-вытяжные установки ПВУ-6М и ПВУ-9М (по освоении их выпуска заводом «Брестсельмаш»).

Для отдельных зданий рекомендуется также использование электротермического оборудования, указанного в п. 7.9.

7.14. В случае применении приточных вентиляторов, имеющих постоянную воздухопроизводительность, целесообразно использование частичной рециркуляции воздуха с целью снижения количества наружного воздуха и затраты тепла на его подогрев в наиболее холодный период года. Соотношение свежего и рециркуляционного воздуха должно подбираться так, чтобы в любой момент отопительного периода относительная влажность воздуха в помещении не превышала установленного нормами технологического проектирования максимального значения.

Помимо возможного эффекта, связанного с экономией тепла за счет оптимального количества наружного воздуха, рециркуляция позволяет сохранить без изменения расчетную конфигурацию приточной струи при изменении количества свежего воздуха, а также повысить температуру воздуха на выходе из воздухораспределителя. Последнее обстоятельство имеет важное значение в случае, если температура приточного (наружного) воздуха в соответствии с тепловоздушным балансом составляет менее -5 °C.

7.15. Системы с утилизацией тепла выбросного воздуха в настоящее время еще не получили должного распространения из-за недостаточного экономического эффекта, что объясняется сравнительно низкой температурой используемого в качестве источника тепла воздуха и недостаточной отработанностью конструкции теплообменных аппаратов.

В дальнейшем, при качественном улучшении конструкции аппаратов, целесообразно их применение по море освоения их промышленного производства. При этом предпочтение следует отдавать теплообменникам - рекуператорам и аппаратам, использующим принцип теплового насоса. Применение регенераторов не рекомендуется из-за наблюдающегося в этом случае частичного возврата в помещение уделяемых вредностей.

При разработке систем с утилизацией тепла выбросного воздуха расчетную температуру воздуха в помещении рекомендуется принимать по нормам технологического проектирования, но не менее 15 °С.

7.16. Вопрос о целесообразности использования при реконструкции таких нетрадиционных источников тепла, как солнечной, ветровой и геотермальной энергий и других природных источников, в настоящих рекомендациях не рассматривается в силу его специфики и разнообразия способов решения.

Целесообразность использования указанных видов энергии определяется на местах с учетом конкретных условий объекта реконструкции.

8. ВОДОСНАБЖЕНИЕ И КАНАЛИЗАЦИЯ

8.1. При составлении проекта водоснабжения и канализации реконструируемой животноводческой фермы (комплекса) необходимо руководствоваться теми же нормативными документами, что и при проектировании объектов нового строительства.

К ним относятся:

СНиП 2.04.01-85 «Внутренний водопровод и канализация зданий»;

СНиП 2.04.02-84 «Водоснабжение. Наружные сети и сооружения»;

СНиП 2.04.03-84 «Канализация. Наружные сети и сооружения»;

СНиП В II-9-82 «Сельскохозяйственные предприятия, здания и сооружения»; разделы «Водоснабжение и канализация» из соответствующих нормативных документов для различных зданий, входящих в состав реконструируемых объектов (котельные, установки, гаражи и др.); нормы технологического проектирования; СНиП 1.02.01-85 «Инструкция о составе, порядке разработки, согласования и утверждения проектно-сметной документации на строительство предприятий, зданий и сооружений».

8.2. Материалы труб для вновь прокладываемых сетей водопровода и канализации (внутренних и внешних) должны приниматься в соответствии с ТП 101-81 «Технические правила по экономному расходованию основных строительных материалов».

8.3. При разработке проектов следует также руководствоваться «Основами водного законодательства СССР и союзных республик» и соблюдать требования об охране природных ресурсов и других соответствующих нормативных документов, утвержденных и согласованных Госстроем СССР.

8.4. Для составления проекта водопровода и канализации реконструируемых животноводческих объектов необходимо иметь:

схему генплана с существующими сетями и сооружениями водопровода и канализации с указанием материала, диаметров и отметок заложения труб;

обмерочные чертежи зданий и сооружений с сетями водопровода и канализации;

данные о степени износа и пригодности к дальнейшему использованию существующих внешних и внутренних сетей, оборудования и сооружений водопровода и канализации;

сведения об источнике водоснабжения реконструируемого объекта (если это артезианская скважина - ее паспорт и химико-бактериологический анализ воды).

При недостаточном дебите существующего источника водоснабжения сведения о других возможных источниках, расположенных вблизи объекта.

8.5. Выбор рациональной схемы водоснабжения реконструируемой фермы (комплекса) должен производиться на основании нормативных документов, паспортных данных вновь строящихся зданий, а также технико-экономической и инженерной оценки существующих источников водоснабжения, внутриплощадочных сетей и сооружений водопровода с учетом возможности их использования, а также с учетом комплексного решения для близрасположенных объектов.

Схема водоснабжения может быть правильно выбрана только на основе технико-экономических расчетов, для которых необходимо определить:

суточную потребность объекта в воде;

максимальный часовой расход на хозяйственно-питьевые и производственные нужды;

расчетный расход воды на внутреннее и наружное пожаротушение;

свободные напоры в сети водопровода.

После чего необходимо проверить существующие сети на пропуск расчетных расходов, достаточна ли производительность установленных насосов и их напор, а также емкость существующих резервуаров и баков водонапорных башен (на хранение в них, в зависимости от их назначения, регулирующего, противопожарного и аварийного объема воды).

Необходимо также проверить гидравлическим расчетом (на максимально-секундный расход) диаметры внутреннего водопровода реконструируемых зданий.

Дебит существующего источника должен соответствовать потребности в воде реконструируемого объекта (с учетом расходов воды на пожаротушение), а качество воды удовлетворять требованиям стандарта на питьевую воду.

При недостаточной мощности источника водоснабжения нужно выбрать дополнительный источник. Выбор нового источника водоснабжения следует производить в соответствии с «Правилами выбора оценки качества источников централизованного хозяйственно-питьевого водоснабжения».

При выборе нового источника водоснабжения следует ориентироваться на подземные источники, состав и свойства воды которых, в большинстве случаев, соответствуют установленным требованиям для хозяйственно-питьевого водоснабжения.

Если вода источника не соответствует требованиям стандарта, должны быть предусмотрены соответствующая очистка и обеззараживание воды.

8.6. На всех проектируемых и реконструируемых водозаборных сооружениях питьевого назначения, в целях обеспечения их санитарно-эпидемиологической надежности, должны предусматриваться зоны санитарной охраны.

Зоны санитарной охраны должны проектироваться на основании обследований санитарного и гидрологического - для поверхностного источника, санитарного и гидрогеологического - для подземного источника, санитарного и инженерно-гидрогеологического - для участков водопроводных сооружений.

Проект зоны санитарной охраны водопровода и санитарные мероприятия, проводимые в зонах, должны согласовываться с органами санитарно-эпидемиологической службы.

8.7. При реконструкции предприятий, когда возникает необходимость изменения «Условий специального водопользования» в связи с увеличением потребления воды, сброса сточных вод или изменением их качественного состава, водопользователь должен получить новое разрешение в порядке, предусмотренном «Инструкцией о порядке согласования и выдачи разрешения на специальное водопользование».

8.8. При проектировании канализации реконструируемых животноводческих ферм (комплексов) нужно прежде всего, на основании норм водоотведения и паспортных данных вновь строящихся объектов, определить количество сточных вод от предприятия (производственных, бытовых, дождевых, навозных). После чего, максимально используя существующие внутренние и внешние сети и сооружения, решить схему канализации.

В соответствии с ОНТП 17-86 «Общесоюзными нормами технологического проектирования систем удаления и подготовки к использованию навоза» канализацию животноводческих предприятий следует проектировать по раздельным системам: производственно-бытовой, навозной и дождевой.

Вопрос о совместном отведении бытовых и поверхностных сточных вод с производственными или навозными стоками решается в каждом конкретном случае в зависимости от количества и состава этих стоков, рельефа местности и других условий, необходимой степени очистки, технико-экономических расчетов.

При раздельной системе канализации биологическая очистка бытовых и близких к ним по составу производственных сточных вод при расходе стоков до 12 м3/сут. может осуществляться на септиках совместно с сооружениями подземной фильтрации. Но следует иметь в виду, что сооружения подземной фильтрации требуют соответствующих условий строительства: низкого уровня грунтовых вод, проницаемых грунтов, отсутствия опасности загрязнения водоносных горизонтов, используемых для питьевого водоснабжения и т.д.

Наибольшее распространение получили в настоящее время компактные установки биологической очистки сточных вод.

Установки выполнены в виде аэротенков-отстойников с принудительной рециркуляцией активного ила, основаны на методе полного окисления. Диапазон производительностей - от 12 до 700 м3/сут. На установках обеспечивается очистка сточных вод по БПК полн. до 10 - 15 мг/л.

Эти установки изготавливаются индустриальными методами с применением сборных конструкций заводского изготовления, они обеспечивают высокую степень очистки, сравнительно дешевы, занимают небольшую площадь, просты в обслуживании.

В последние годы заводами различных министерств и ведомств изготавливаются свыше 800 установок ежегодно. Существуют типовые проекты этих установок.

8.9. Производственные стоки и поверхностные стоки, подлежащие совместному отведению и очистке с бытовыми сточными водами, должны удовлетворять требованиям СНиП 2.04.03-84 «Канализация. Наружные сети и сооружения».

8.10. Сточные воды от ветеринарных объектов (изоляторов, карантинов, убойно-санитарных пунктов) должны перед выпуском их в общую сеть подвергаться обеззараживанию.

8.11. Для сточных вод от мытья транспортных средств и складов горюче-смазочных материалов перед сбросом их в общую сеть необходимо предусматривать локальную очистку на грязеотстойнике с бензоуловителем.

8.12. Бытовые стоки от отдельных санузлов, расположенных в животноводческих помещениях, допускается сбрасывать в закрытые каналы навозоудаления.

8.13. Поверхностные стоки животноводческих предприятий должны направляться, как правило, по открытой системе водостоков в локальные хранилища (накопители) и после соответствующей обработки использоваться в дальнейшем на орошение сельскохозяйственных культур; строительство закрытой системы водостоков допускается в исключительных случаях при соответствующем технико-экономическом обосновании.

8.14. Для уменьшения забора воды из источников водоснабжения незагрязненные производственные стоки должны использоваться в системах оборотного и повторного водоснабжения. Отвод производственных незагрязненных стоков в сеть производственно-бытовой, навозной или дождевой канализации допускается при согласовании с органами Госнадзора и соответствующем технико-экономическом обосновании.

8.15. Силосный сок следует собирать в специальные емкости-накопители с последующим вывозом его автоцистернами в места, согласованные с органами Госнадзора. При технико-экономическом обосновании допускается планомерный сброс силосного сока (после его нейтрализации) на сооружения систем навозоудаления.

8.16. Защита окружающей среды от загрязнения - одна из важнейших проблем, поэтому при конструкции животноводческих предприятий необходимо строго соблюдать санитарные и ветеринарные правила, предусматривать меры по дальнейшему совершенствованию систем удаления, обработки и обеззараживания навоза и сточных вод этих предприятий. При проектировании канализации следует также руководствоваться «Правилами охраны поверхностных вод от загрязнения сточными водами» и другими соответствующими нормативными документами, утвержденными или согласованными Госстроем СССР, и соблюдать требования по охране природы и рациональному использованию природных ресурсов.

9. УДАЛЕНИЕ, ХРАНЕНИЕ, ОБРАБОТКА И ИСПОЛЬЗОВАНИЕ НАВОЗА И НАВОЗНЫХ СТОКОВ

9.1. При составлении проектов реконструкции сооружений и систем по удалению, хранению и использованию навоза необходимо пользоваться следующими нормативными документами и рекомендациями:

«Общесоюзными нормами технологического проектирования систем удаления и подготовки к использованию навоза и помета» СНиП 17-86;

«Правилами охраны поверхностных вод от загрязнения сточными водами» (Минводхоз СССР, Минздрав СССР, Минрыбхоз СССР, 1975);

ГОСТ 26074-84 Навоз жидкий. Ветеринарно-санитарные требования к обработке, хранению, транспортированию и использованию;

Ведомственными строительными нормами «Оросительные системы с использованием животноводческих стоков» ВСН 33-22.01.85;

правилами техники безопасности и др.

При составлении проектов реконструкции систем удаления, хранения и утилизации навоза необходимо учитывать техническую, экономическую и санитарную оценку существующих сооружений систем удаления, хранения и утилизации навоза и предусматривать возможность их использования.

9.2. Выбор системы удаления, обработки, обеззараживания, хранения и утилизации навоза и навозных стоков на реконструируемых и расширяемых фермах должен проводиться с учетом напряженности и размера предприятия, технологических, климатических, почвенных и гидрогеологических условий и рельефа местности, исходя из сравнительной технико-экономической оценки различных вариантов.

Системы удаления, хранения и утилизации навоза при этом должны обеспечивать:

использование навоза и навозных стоков в качестве органических удобрений для повышения урожайности и улучшения структуры почвы;

выполнение санитарно-гигиенических и зооветеринарных требований эксплуатации животноводческих помещений при минимальном расходе воды и требований законодательств СССР и союзных республик по охране окружающей среды;

экономичность строительства и эксплуатации.

9.3. Технология удаления и использования навоза должна включать уборку навоза внутри животноводческих помещений, транспортирование его от зданий до навозохранилищ, карантинирование, приготовление удобрений, выгрузку из навозохранилищ, обеззараживание (при необходимости) и внесение на поля.

В зависимости от применяемой технологии содержания животных и количества добавляемой подстилки навоз может получаться бесподстилочный или с подстилкой.

Удаление навоза из животноводческих помещений, и его транспортирование может производиться механическим или гидравлическим способами.

Механический способ включает применение скребковых и штанговых транспортеров, скреперов, бульдозеров разных типов, которые приведены в перечне системы машин для комплексной механизации сельскохозяйственного производства.

Механические стационарные (скребковые транспортеры и скреперные установки) и мобильные (бульдозеры, погрузчики) средства применяются для удаления подстилочного легко буртуемого навоза. При этом в помещении применяются скребковые транспортеры ТСН-3,0Б, ТСН-2,0Б, ТСН-160 (преимущественно при привязном содержании скота), скреперные установки УС-15 (боксовое содержание скота), а также тракторные бульдозеры БН-1. Подача в транспортные средства производится погрузчиками ПУ-0,5, ПЭ-С8Б и др. (см. каталог Сельскохозяйственная техника, ч. II. М., 1982 г. и установочные чертежи машин и механизмов для животноводческих и птицеводческих ферм и зданий. Серия 4.800-3, вып. 5).

Из гидравлических систем наибольшее распространение получили гидравлические системы периодического действия (с добавлением воды), реже - непрерывного действия.

Из гидравлических систем периодического действия для удаления навоза из свинарников следует отдавать предпочтение секционной системе, разработанной ВНИИМЖем.

Размеры каналов при механических средствах уборки определяются габаритами применяемых механизмов, при гидравлических системах размеры каналов следует принимать по ОНТП 17-86.

При выборе конструкции решеток и навозных каналов следует пользоваться серией 3.818.9-2 «Технологические изделия для животноводческих производственных зданий», вып. 3 (распространяет ЦИТП).

Подстилочный навоз из животноводческих зданий удаляется скребковыми транспортерами, а также при помощи скребка-бульдозера БН-1. Навоз грузят в транспортные средства и вывозят в навозохранилища или на площадки хранения и обеззараживания для дальнейшего использования.

Для транспортирования полужидкого и жидкого навоза от зданий в навозосборники, карантинные емкости и навозохранилища (и компостохранилища) применяют транспортеры скребковые ТС-1, поршневые установки УТН-10, самотечные коллекторы или насосы, приведенные в системе машин для комплексной механизации сельскохозяйственного производства в каталоге «Техника для животноводства и кормопроизводства» ВНИИКОМЖ (М., 1980), ОНТП 17-86, а также в разделе 4 настоящих «Рекомендаций».

Рекомендуемые схемы транспортировки навоза от зданий приведены на рис 14 - 16. Для уточнения эпизоотической обстановки на ферме и отделения инфицированного навоза от незараженного, необходимо предусматривать не менее шести суток карантинное выдерживание навоза в секционных емкостях, а также предусмотреть технические средства для его обеззараживания. Для хранения навоза должны предусматриваться прифермские или полевые навозохранилища (компостохранилища) по типовым проектам, включенным в «Общесоюзный перечень типовых проектов сельскохозяйственных предприятий, зданий и сооружений» для строительства в XII пятилетке, а также в зональные перечни.

Допустимо устройство навозохранилищ из местных материалов, но с надежно выполненной гидроизоляцией дна и стенок. По периметру навозохранилища для безопасности должны иметь соответствующее ограждение.

При наличии соответствующих гидрогеологических и других условий для использования подготовленного жидкого навоза на орошение проект оросительной системы и организации работ должен разрабатываться в соответствии с ведомственными строительными нормами ВСН 33-2.2.01-85 «Оросительные системы с использованием животноводческих стоков» (с привлечением специализированных проектных организаций Минводхоза СССР).

УЗЕЛ I

РИС. 14. ЛИНИЯ ТРАНСПОРТИРОВКИ НАВОЗА УСТАНОВКАМИ УТН-10 ОТ ЖИВОТНОВОДЧЕСКИХ ЗДАНИЙ С МЕХАНИЧЕСКОЙ УБОРКОЙ НАВОЗА

РАЗРЕЗ А - А

РАЗРЕЗ Б - Б

РАЗРЕЗ В - В

РИС. 15. ЛИНИЯ ТРАНСПОРТИРОВКИ НАВОЗА УСТАНОВКАМИ УТН-10 (разрезы А - А ÷ В - В)

Условные обозначения

 самотечный навозопровод

 напорный навозопровод

ЭКСПЛИКАЦИЯ

1. Коровник на 400 коров привязного содержания

2. Доильно-молочный блок на 2 установки УДЕ-8А типа «Елочка»

3. Родильная на 96 коров

4. Санпропускник на 60 чел.

5. Стационар на 20 мест для коров

6. Пункт технического обслуживания комплексов по производству молока на 800 - 1200 коров

7. Автомобильные весы

8. Галерея

9. Кормосмесительный цех для комплекса по производству молока на 400 - 800 коров

10. Механизированное корнеплодохранилище на 1000 т

11. Ветеринарно-профилактический пункт для крупного рогатого скота

12. Траншея для хранения сенажа емкостью 1300 т

13. Траншея для хранения силоса емкостью 1800 т

14. Площадка для корнеплодов

15. Навес для сена емкостью 200 т

16. Убойно-санитарный пункт

17. Выгульные дворы с твердым покрытием

18. Навозохранилище емкостью 4500 т

19. Скотопрогон

20. Станция перекачки навоза

21. Пруд для ливневых стоков

РИС. 16. ЛИНИЯ ТРАНСПОРТИРОВКИ ПОЛУЖИДКОГО И ЖИДКОГО НАВОЗА НАСОСАМИ НЖН-200 ОТ ЖИВОТНОВОДЧЕСКИХ ЗДАНИЙ С ГИДРАВЛИЧЕСКОЙ УБОРКОЙ

10. РЕКОНСТРУКЦИЯ СООРУЖЕНИЙ ПО ПЕРЕРАБОТКЕ И ХРАНЕНИЮ КОРМОВ

1. Сооружения по производству комбикормов

Значительная часть из числа построенных за последние 10 - 15 лет внутрихозяйственных и межхозяйственных комбикормовых цехов не отвечает требованиям и современным возможностям организации, техники и технологии комбикормового производства. Высок износ технологического оборудования. Анализ данных паспортизации, проведенной на 1 января 1984 г., показал, что 67 % установленных агрегатов типа ОКЦ нуждается в замене.

В настоящее время промышленностью производится новое оборудование марки ОЦК, которое должно изменить агрегаты типа ОКЦ, а также другое технологическое оборудование.

Примерами предприятий, построенных по агрегатной схеме, являются унифицированные комбикормовые цеха производительностью 6, 4, 2 т/ч на базе агрегатов, соответственно ОКЦ-50, ОКЦ-80, ОКЦ-15 (т.п. 814-72, 814-73, 814-74), предназначенные для приготовления гранулированных и рассыпных комбикормов и кормовых смесей из местного сырья (зерно, зерноотходы, травяная мука и др.) и покупных белково-витаминных добавок (БВД).

В отличии от агрегатов типа ОКЦ новые комплекты предусматривают: весомое дозирование (вместо объемного) и более высокую степень механизации и автоматизации работ.

При разработке комплектов нового оборудования типа ОЦК взамен ОКЦ была соблюдена необходимая преемственность решений по общей организационно-технологической структуре и габаритам комплектов в соответствии с рекомендациями Гипронисельхоза. Тем самым были созданы предпосылки для разработки эффективных типовых проектных решений по реконструкции действующих комбикормовых цехов.

Предложения по типизации решений реконструкции реализованы в унифицированной серии типовых проектов и изложены ниже (рис. 17).

Реконструкция позволяет в том же здании или с небольшими переделками, с минимальными дополнительными капиталовложениями увеличить производительность цехов в 2 - 4 раза, повысить качество продукции при одновременном снижении приведенных затрат на дополнительную мощность (в зависимости от варианта реконструкции на 14 - 57 %).

Новые типовые проекты утверждены бывш. Министерством сельского хозяйства СССР и распространяются ЦИТП (т.п. 814-05-3.83, 814-05-4.83, 814-05-5.83). Они предусматривают 5 вариантов реконструкции, приведенных в таблице. Выбор варианта зависит от условий снабжения комбикормового цеха сырьем, нужд хозяйства, возможностей приобретения оборудования и других местных особенностей строительства и эксплуатации предприятия.

Таблица

Варианты реконструкции действующих комбикормовых цехов, построенных по типовым проектам 814-72, 814-73 и 814-74

№ п/п

Номер типового проекта

Производительность после реконструкции цеха, построенного по т.п., т/ч

вариант

814-74 (производительность 2 т/ч)

814-73 (производительность 4 т/ч)

814-72 (производительность 6 т/ч)

1.

814-05-3.83

I

4

-

-

 

 

II

-

4

-

2.

814-05-5.83

I

8

-

-

 

 

II

-

8

-

3.

814-05-4.88

 

-

-

8

 


 

РЕКОНСТРУИРУЕМЫЕ ЦЕХИ

РЕКОНСТРУКЦИЯ

НОВОЕ СТРОИТЕЛЬСТВО (В ЗАВИСИМОСТИ ОТ СОСТОЯНИЯ ОБОРУДОВАНИЯ)

АМОРТИЗАЦИОННЫЙ СРОК ИСЧЕРПАН (существующий цех ликвидируется)

ОБОРУДОВАНИЕ МОЖНО ЭКСПЛУАТИРОВАТЬ (существующий цех используется)

1

2 т/ч

4 т

I

 

2 т/ч

2 т/ч

.

8 т/ч

II

 

2 т/ч

 

2

4 т/ч

 

4 т

I

4 т/ч

 

8 т/ч

II

4 т/ч

 

3

6 т/ч

8 т/ч

6 т/ч

2 т/ч

РИС. 17. СПОСОБ УВЕЛИЧЕНИЯ МОЩНОСТИ КОМБИКОРМОВЫХ ЦЕХОВ


Организация производства

1. Мощности цехов повышены без существенного увеличения производственной площади, благодаря использованию высокопроизводительного комбикормового оборудования.

2. В составе цехов предусмотрены 1 - 2-суточные оперативные емкости для сырья и продукции, обеспечивающие автономность работы цеха и возможность возведения необходимых хранилищ во вторую очередь.

3. В проектах реконструкции с увеличением мощности с 2 т/ч, 4 и 6 т/ч до 8 т/ч функционально изменено использование сепараторов комплекта ОЦК-4, что позволяет осуществить раздельный прием и очистку зерновых и мучнистых компонентов комбикорма. Благодаря этому более строго соблюдаются ограничения по засоренности продукта.

Технология приготовления комбикормов

1. Качество комбикормов повышается благодаря весовому дозированию компонентов по заданному рецепту и смешиванию в смесителе периодического действия (вместо смешивания в транспортирующем шнеке). Более строгое соблюдение рецептуры комбикормов улучшает их сбалансированность и повышает кормовые свойства, что обеспечивает рост продуктивности животных. Кроме того, это позволяет экономней расходовать фуражное зерно и другие дефицитные компоненты комбикорма (БВД, травяная мука и т.п.).

2. Создается возможность выработки комбикормов и высокопитательных кормосмесей для всех видов и возрастных групп животных благодаря установке дополнительных линий шелушения пленчатых культур (овес, ячмень), подготовки карбамидно-меластного раствора и ввода БВД.

Объемно-планировочные решения

1. Повышается коэффициент использования объема существующих одноэтажных зданий на 15 - 20 % путем устройства специальных «этажерок» для многоярусного размещения оборудования.

2. Вентиляторы систем аспирации и пневмотранспорта, являющиеся источником значительной вибрации и шума, вынесены в изолированное помещение, для чего используется подбункерный объем склада продукции. В результате улучшаются условия эксплуатации оборудования и труда персонала.

Управление

1. Повышается уровень механизации и автоматизации производственных процессов с использованием пневмоавтоматики и дополнительных устройств (датчиков) контроля работы механизмов и заполнения емкостей.

В результате достигается увеличение производительности (см. таблицу) на 2 - 6 т/ч при снижении удельных затрат труда: в т.п. 814-05-3.83; 814-05-5.83 со снижением удельных затрат труда на производство комбикормов на 15 - 50 %; 814-05-4.83 без изменения удельных затрат труда.

Увеличение мощности комбикормовых цехов за счет реконструкции эффективней, чем новое строительство по проектам, предусматривающим использование оборудования ОЦК-4-1, не менее чем на 14 %. Величина эффекта зависит от исходного типоразмера цеха, состояния износа его оборудования и варианта реконструкции.

2. Кормоцехи

При реконструкции ферм, в первую очередь, следует предусматривать строительство новых (в случае отсутствия), расширение или реконструкцию существующих кормоцехов.

Наличие и функционирование в составе животноводческих ферм кормоцехов, оснащенных современным комплектным оборудованием для измельчения, дополнительной обработки и смешивания различных кормовых компонентов позволяет повысить их качество и тем самым существенно повлиять на повышение продуктивности животных.

Выбор проектов кормоцехов для нового строительства (при отсутствии на фермах таковых или взамен пришедших в негодность) осуществляется из числа действующих типовых или из числа хорошо зарекомендовавших себя в данной зоне проектов повторного применения.

Основные принципы организации кормоприготовления, которые необходимо соблюдать при расширении и реконструкции кормоцехов, заключаются в создании непрерывной поточной технологии «поле - хранилище - кормоцех - кормушка». Нормальное функционирование этой системы во многом зависит от правильно выбранного варианта механизации процессов с учетом технологических, строительных, экономических и других факторов.

При реконструкции или расширении фермы, имеющей кормоцех, пригодный для дальнейшего использования (после реконструкции), в качестве основы, в первую очередь, необходимо определить объем подлежащего замене и дополнительного оборудования с тем, чтобы кормоцех после реконструкции обеспечивал переработку всех необходимых кормов, в соответствии с предусмотренными рационами, на основе прогрессивной технологии и комплексной механизации производственных процессов, с учетом применения серийно-выпускаемого предпочтительно комплектного оборудования (например, КОРК-15).

Правильная организация процессов приготовления и раздачи кормов в значительной мере зависит от правильного размещения кормоцеха на территории фермы. Поэтому при организации генерального плана реконструируемого предприятия желательно, чтобы здание кормоцеха находилось в кормовой зоне с обеспечением удобных подъездов для доставки сырья к цеху и транспортирования готовых кормосмесей к месту скармливания. При этом необходимо стремиться к сокращению протяженности путей подвоза и доставки кормов к местам их скармливания, так как эти пути должны предусматриваться с устройством твердого покрытия для нормального круглогодичного функционирования транспортных средств.

Кормоцех целесообразно блокировать с оперативным хранилищем корнеплодов, а также с крытой площадкой или навесом для измельченных грубых кормов.

Как показывает изучение и анализ действующих кормоцехов, построенных в различных зонах страны 10 - 12 лет назад, их проектные решения отличаются большой разнотипностью технологических и строительных решений. К настоящему времени подавляющее их большинство уже не удовлетворяет современным требованиям, а также требует замены технологического оборудования (в значительной степени уже снятого с производства) в связи с его физическим износом. В то же время большая разнотипность проектов, по которым даже для одних и тех же зон закладывались различные технологические и строительные решения делает практически невозможной работу по типизации решений по реконструкции кормоцехов. Поэтому при разработке проектной документации на их реконструкцию следует в каждом отдельном случае, на основе проводимых инженерных обследований, разрабатывать индивидуальные проекты, придерживаясь принципиальных схем (рис. 18, 19), а также решений, примененных в действующих типовых проектах и индивидуальных проектах, рекомендованных к повторному применению в зонах.

Кроме того, чтобы при разработке проектов реконструкции разнотипных кормоцехов обеспечить внедрение прогрессивных технологий и рациональных технических решений, необходимо руководствоваться следующими нормативно-методическими материалами: «Ведомственными нормами технологического проектирования кормоцехов для животноводческих предприятий» ВНТП 18-85; «Рекомендации по применению проектов кормоцехов для животноводческих ферм и комплексов (Укрсельхозтехпроект и Гипронисельхоз, 1983), каталогом «Основных проектов хранилищ кормов, фруктов, зернотоков, укрытий сельхозтехники, кормоцехов» (Гипронисельхоз, 1985).

Внецеховая подготовка кормов

Доставка кормов в цех

Накопление оперативных запасов

Обработка компонентов

Дозирование кормов

Приготовление кормосмесей

Выдача кормосмесей

Рис. 18. ПРИМЕРНАЯ ТЕХНОЛОГИЧЕСКАЯ СХЕМА КОРМОЦЕХА ДЛЯ КРУПНОГО РОГАТОГО СКОТА:

1 - питатель-дозатор; 2 - транспортер корнеклубнеплодов; 3 - измельчитель-камнеуловитель; 4 - дозатор сочных кормов; 5 - бункер сухих кормов; 6 - дозатор концкормов; 7 - электромагнит; 8 - транспортер; 9 - смеситель мелассы; 10 - смеситель кормов; 11 - транспортер; 12 - шнек распределительный; 13 - измельчитель грубых кормов; 14 - циклон-разгрузитель; 15 - транспортер; 16 - шнек загрузочный; 17 - смеситель-запарник кормов; 18 - шнек выгрузной; 19 - транспортер; 20 - транспортер раздачи кормов (стационарный)

Доставка кормов

Накопление оперативных запасов

Обработка компонентов

Дозирование

Измельчение и приготовление смеси

Выдача кормосмеси

Рис. 19. ПРИМЕРНАЯ ТЕХНОЛОГИЧЕСКАЯ СХЕМА КОРМОЦЕХА ДЛЯ СВИНЕЙ

1 - питатель, 2 - дозатор стебельчатых кормов; 3 - измельчитель; 4 - накопитель; 5 - измельчитель; 6 - дозатор сочных кормов; 7 - питатель; 8 - дозатор комбикормов; 9 - резервуар вертикальный; 10 - агрегат для приготовления заменителей молока; 11 - сборный транспортер; 12 - смеситель; 13 - выгрузной транспортер; 14 - электромагнит

3. Хранение кормов

От хорошего качества и требуемого количества выращенных разнообразных видов кормов, из которых составляются сбалансированные по питательным веществам и другим необходимым компонентам рационы питания животных, решающим образом зависит общее производство продуктов животноводства в стране.

Во многих случаях произведенные в достаточном количестве корма из-за неправильного их хранения теряют свое качество и иногда частично вообще приходят в полную непригодность для скармливания животным. Поэтому очень важно, что хозяйство располагало достаточным количеством специализированных хранилищ, обеспечивающих надежную сохранность качества заготовленных кормов.

В связи с чем при реконструкции и расширении животноводческих ферм в числе первоочередных работ опережающими темпами должно предусматриваться строительство сооружений для хранения кормов.

Хранилища силоса, сенажа

Широкое применение в настоящее время получили наземные силосные хранилища траншейного типа из сборных железобетонных элементов, используемые как для хранения силоса, так и для хранения сенажа.

Хранилища собираются из трех типов сборных элементов: железобетонных плит, контрфорсов и фундаментов под контрфорсы.

Однако для возведения этих несложных сооружений вполне пригодны и любые местные каменные материалы и кирпич.

Наземные траншейные хранилища представляют собой сооружения, состоящие из двух или трех стен и днища с твердым покрытием между ними, верх которого располагают на 15 - 20 см выше отметки поверхности земли.

Наземные траншейные хранилища могут сооружаться проходными (при открытых торцах) или тупиковыми (при устройстве в одном из торцов хранилища поперечной стены) и располагаться в один, два или несколько рядов. Площадки для их размещения должны отвечать следующим требованиям:

позволять создавать необходимые уклоны для стока поверхностных вод и осуществлять вертикальную планировку с минимальным объемом работ; иметь удобные подъезды для всех видов транспортных средств; уровень грунтовых вод должен быть ниже поверхности днища не менее, чем на 0,5 м; грунты площадки не должны быть просадочными при замачивании и вечномерзлыми.

Габаритные размеры и емкости наземных траншейных хранилищ силоса и сенажа принимаются в зависимости от потребности в данном виде корма конкретного животноводческого комплекса или фермы (см. таблицу).

Таблица

Основные габаритные размеры хранилищ траншейного типа

№ п/п

Вид корма

Емкость хранилища, т

Размеры хранилища, м

высота

ширина

 

Силос

250, 500, 750, 1000, 1500, 2500х, 3000, 4000х

Не менее 3

9, 12, 15, 18

 

Сенаж

200, 400, 600, 800, 1200, 2000х, 2500, 3000х

Не менее 3

9, 12, 15, 18

х Применять при соответствующих технико-экономических обоснованиях на животноводческих комплексах при высоком уровне организации кормопроизводства и механизации процессов уборки, транспортировки и складирования корма.

Перед открытыми торцами траншейных хранилищ устраиваются площадки с твердым покрытием, на которые разгружают зеленую массу, поступившую с места ее заготовки. Дальнейшее перемещение кормовой массы внутрь хранилища выполняют бульдозером-трамбовщиком.

При проектировании наземных хранилищ траншейного типа следует учитывать устройство специальных разворотных площадок для транспортных средств.

В тех случаях, когда на фермах предусматриваются кормоприготовительные цеха, рекомендуется располагать их в едином комплексе с траншейными хранилищами.

Все указания по конструктивным решениям, производству работ при возведении хранилищ силоса и сенажа, а также по методам загрузки-выгрузки, применению механизмов для этих целей приведены в специальных рекомендациях по заготовке, загрузке силоса и сенажа в хранилища, их хранению и т.д., разработанными Гипронисельхозом, Всесоюзным НИИ кормов и другими организациями.

Хранилища для сена

Хранилища для сена обычно применяются в виде:

сараев (для цельного, рассыпного измельченного и прессованного сена);

навесов (для цельного и прессованного сена);

открытых площадок (для цельного и прессованного сена, хранимого в скирдах).

Выбор типа сенохранилища (сарая, навеса или площадки) зависит от климатических условий. В нормальной и влажной зонах территории СССР рекомендуется хранить сено в сараях и под навесами. В сухих зонах территории СССР допускается хранение сена на открытых площадках и скирдах (СНиП II-3-79).

Участок для размещения открытых площадок должен быть сухим и по возможности на возвышенном месте, который огораживают и окапывают канавами.

В местах расположения скирд устраивается насыпная уплотненная грунтовая площадка толщиной 0,35 м, шириной 6 м, длиной 18 ÷ 24 м, с уклоном 0,02 в обе стороны от продольной оси; поверху площадки устраиваются подстилы: из соломы толщиной 0,35 м, хвороста - 0,25 м, камня - 0,15 м и соломы - 0,1 м, шлака - 0,15 и соломы - 0,1 м. Вокруг площадок устраивают водоотводные канавки глубиной 0,3 м, которые соединяют с канавой, скругляющей весь участок и сбрасывающей воду в более низкое место рельефа.

Сараи и навесы проектируют, как правило, однопролетными, прямоугольной формы в плане. Каркас может быть моечно-балочный или рамный. Высоту сараев и навесов (до низа несущих конструкций) принимают не менее 6 м. Рекомендуемые пролеты - 18 и 21 м.

В сараях с сетчатыми стенами и в навесах сторона, на которую дуют преобладающие в этом районе ветры, должна быть защищена ниже карниза сплошным ограждением на 1,5 - 1,8 м. Размещение хранилищ на комплексе (ферме) должно производиться, как правило, в пределах кормовой зоны. Ориентации на генплане хранилищ с активным вентилированием и гелиоустановками должна осуществляться в широтном направлении, с целью забора воздуха вентиляторами с подогреваемой солнцем южной стороны.

Уровень грунтовых вод на строительной площадке в период их самого высокого стояния должен быть ниже поверхности пола сенохранилищ или дна подпольного воздуховода не менее чем на 0,5 м.

Подъезды к сараям и навесам, а также площадки в зоне ворот должны устраиваться с твердым покрытием.

Полы сараев и навесов следует проектировать с учетом нагрузок от складирования сена, вида и интенсивности механических и других воздействий в соответствии со СНиП 11-В.8-71. При благоприятных гидрогеологических условиях допускается устраивать полы глинобитные и другие (по типу упрощенных дорожных покрытий) с уклоном, равным 0,01, в сторону отмостки.

Хранилища сена по пожарной опасности относится к категории «В». Площадь застройки сенохранилищ (сараев и навесов) не должна превышать 1000 м2. Расстояние между сараями (навесами) и зданиями или сооружениями следует принимать: для сараев - 18 м, для навесов - 24 м.

Противопожарные расстояния от сараев до границ с лесного массива хвойных пород - 50 м, лиственных пород - 20 м; для складов открытого хранения, навесов до границ леса - не менее 100 м.

К сараям и навесам по всей их длине должен быть обеспечен свободный подъезд пожарных автомобилей: с одной стороны сарая и навеса - при ширине их до 21 м и с двух сторон - при ширине более 21 м. Расстояние от края проезжей части дорог или спланированной поверхности, обеспечивающей подъезд пожарных автомашин, до сараев или навесов должно быть не более 25 м.

В хранилищах с активным вентилированием электрощитовые необходимо выносить за пределы этих хранилищ. Ограждающие конструкции пристроек или отдельно стоящих сооружений и устанавливаемое в них электрооборудование должны выполняться по соответствующим нормам.

Для строительства хранилищ сена рекомендуются типовые проекты 817-215.84, 817-214.84 (навесы на 60, 100 и 200 т), 817-150 (сарай на 1000 т), 801-306 (сарай на 400 т), 817-199 (сарай на 400 т), в которых приведены все необходимые указания по методам загрузки - выгрузки сенажа, а также по хранению, досушиванию и т.д.

Хранилища комбинированного силоса

Заготовка комбинированного силоса (комбисилоса) - это прием получения сочного корма высокого качества и одновременно наиболее рациональный способ консервирования растительного сырья, в том числе скоропортящегося и несилосующегося в чистом виде.

Приготовление комбисилоса основывается на естественном процессе брожения, протекающем в силосуемой массе, в результате чего в ней накапливаются органические кислоты (в основном, молочная) и увеличивается кислотность среды, за счет этого корм консервируется.

Комбисилос состоит из нескольких компонентов, дополняющих друг друга питательными свойствами.

Соотношение компонентов подбирается с учетом наличия кормов на местах при соблюдении следующих основных требований на этот корм:

в его составе должно быть не менее 50 - 60 % богатых углеводами и с низким содержанием клетчатки кормов (корнеплоды, картофель, бахчевые культуры, початки кукурузы и др.) и до 30 - 40 % богатых белками кормов (зеленая масса зернобобовых культур, многолетних бобовых трав в ранней фазе вегетации и др.);

питательность 1 кг комбисилоса должна быть не менее 0,25 кг к. ед, с содержанием протеина не менее 20 г и каротина не менее 10 млг, содержание клетчатки не должно превышать 30 г в 1 кг для поросят и 60 г для взрослых свиней.

Влажность комбисилоса в зависимости от его состава варьирует в пределах 60 - 75 %. При использовании для комбисилоса в качестве основных компонентов кормов с высокой влажностью (корне - клубнеплоды, зеленые корма, бахчевые) для нормализации влажности в силосуемую смесь добавляют до 10 % сенной муки или муки из соломы (мякины) бобовых культур, до 10 % не пригодных для хранения дробленых корнеотходов, витаминную травяную муку.

Условия строительства и технические решения хранилищ комбинированного силоса идентичны с условиями строительства наземных траншейных хранилищ силоса и сенажа. Отличительной особенностью являются различия в объемной массе этих кормов, в соответствии с чем и рассчитываются устойчивость и прочность конструкций хранилищ.

Наземные хранилища комбисилоса траншейного типа размещаются на территории свиноводческих комплексов и ферм с учетом обеспечения рациональных способов подачи корма для скармливания.

При размещении хранилищ должны соблюдаться правила ветеринарии, охраны труда, пожарной безопасности, охраны окружающей среды.

Габаритные размеры наземных хранилищ комбисилоса в зависимости от общей потребности корма на свиноводческих комплексах и фермах приведены в таблице.

Таблица

Габаритные размеры наземных хранилищ комбисилоса

№ п/п

Емкость хранилищ, т

Размеры хранилищ, м

Объем, м3

высота

ширина

длина

1

200

3

6

15

270

9

12

324

2

300

3

6

21

378

9

15

405

3

600

3

9

30

810

4*

900

9

42

1134

5*

1200

9

57

1539

* Применяются на свиноводческих комплексах и фермах с высоким уровнем механизации технологических линий по приготовлению корма с производительностью более 150 т в смену.

При соответствующем технико-экономическом обосновании для определенных условий допускается разделять траншею на отдельные секции съемными перегородками, с целью сокращения сроков их загрузки. В секции должно быть такое количество корма, которое можно скормить животным за 10 - 15 дней.

Перегородку (стационарную или передвижную) каждой секции ставят после ее заполнения. Загружать траншею следует не более 4 - 6 дней.

В настоящее время Гипронисельхозом разработан т.п. 802-9-59.86 «Наземные хранилища комбинированного силоса для свиноводческих ферм вместимостью 200, 800, 600, 900 и 1200 т.

11. ОЦЕНКА ЭКОНОМИЧЕСКОЙ ЭФФЕКТИВНОСТИ И ТЕХНИКО-ЭКОНОМИЧЕСКИЕ ПОКАЗАТЕЛИ

Технико-экономическую оценку проектных решений реконструкции (расширения) и технического перевооружения существующих ферм следует проводить с целью определения наиболее экономичного варианта реконструкции или расширения в соответствии с «Рекомендациями по технико-экономической оценке проектных решений животноводческих комплексов и форм» (Гипронисельхоз).

Экономическая эффективность расширения, реконструкции и технического перевооружения определяется с помощью методов и показателей общей и сравнительной эффективности.

Показатель общей эффективности капитальных вложений (Эп) рассчитывается по формуле

                                                          (1)

где П - прирост прибыли, достигаемый в результате осуществления рассматриваемых мероприятий; К - требуемые капитальные вложения.

Величина Эп должна сопоставляться с соответствующим нормативом рентабельности, установленным для конкретного предприятия (Еп). Если Эп > Еп, то рассматриваемый проект переустройства фермы (комплекса) признается эффективным.

В том случае, если осуществляемые реконструктивные мероприятия не преследуют увеличения мощности, и направлены на сокращение издержек производства, показатель общей экономической эффективности (Эс) характеризуется отношением экономии от снижения себестоимости продукции к вызвавшим эту экономию капитальным вложениям (К):

                                                         (2)

где С1 и С2 - себестоимость продукции до и после осуществления работ по реконструкции и техническому перевооружению.

Величина Эс сопоставляется с соответствующим нормативом Ес в отрасли «Сельское хозяйство», и рассматриваемые мероприятия признаются эффективными, если Эс > Ес.

В ряде случаев, особенно без прироста мощности предприятия, например, если внедряемые мероприятия направлены на улучшение условий труда, замену ручного труда механизированным, улучшение охраны окружающей среды и на получение других социальных эффектов, реконструкция и техническое перевооружение могут оказаться недостаточно эффективными с точки зрения самого предприятия (фермы, комплекса). Однако здесь достигается народно-хозяйственный эффект, который должен быть учтен. Наиболее простым в этом плане случаем является реконструкция (техническое перевооружение), приводящая к снижению затрат труда и сокращению численности работников. Этот эффект может быть исчислен путем установления дополнительного национального дохода, полученного в результате труда освобожденных работников на других предприятиях: его величина, DПнд, определяется по данным статистической отчетности и учитывается в числителе выражений (1) и (2).

Критерием сравнительной экономической эффективности, в соответствии с типовой методикой определения экономической эффективности капитальных вложений, является показатель приведенных затрат, представляющий собой сумму текущих затрат (себестоимости продукции и соответствующих капитальных вложений, приведенных к одинаковой размерности в соответствии с нормативом эффективности):

П = С + Ен · К,                                                           (3)

где П - приведенные затраты; С - себестоимость продукции; К - капитальные вложения; Ен - коэффициент сравнительной экономической эффективности капитальных вложений (для отрасли «Сельское хозяйство» Ен = 0,10).

Вариант с меньшей величиной П считается экономически эффективным.

Определение сравнительной экономической эффективности капитальных вложений в расширение, реконструкцию и техническое перевооружение действующих предприятий производится путем сравнения их с показателями действующего, подлежащего реконструкции (расширению, техническому перевооружению) предприятия, и с вариантами нового строительства.

В случае расширения или реконструкции с увеличением мощности фермы (комплекса) сопоставление производится и с показателями действующего предприятия, и с показателями объекта нового строительства аналогичной мощности, т.е. приведенные затраты по расширяемой или реконструируемой ферме (Пр), определяемые по проекту расширения (реконструкции), сопоставляются с суммой приведенных затрат, характеризующих действующее предприятие (Пс), и приведенных затрат в строительство нового предприятия (Пн), и, если Пр < Пс + Пн, проект реконструкции или расширения является экономически целесообразным.

В том случае, если оценивается реконструкция без прироста мощности и технического перевооружения, сопоставление проекта реконструктивных мероприятий производится только с действующей фермой.

При этом необходимо учитывать возможность сохранения по действующей ферме достигнутых технико-экономических показателей к моменту ее модернизации. Если при дальнейшей ее эксплуатации увеличатся издержки производства или необходимы дополнительные капиталовложения для поддержания достигнутого уровня технико-экономических показателей, то показатель дополнительных затрат действующей фермы должен быть откорректирован.

Особенностью оценки эффективности реконструктивных работ является специфика определения величины капитальных вложений, связанная с ликвидацией части действующих фондов. Типовой методикой предусмотрено, что остаточная стоимость ликвидируемых фондов, определяемая как разность между их балансовой стоимостью и суммой начисленной амортизации, добавляется к соответствующим капитальным вложениям. В понятие ликвидируемых включаются и фонды, исключаемые из состава действующих, если их дальнейшее использование неизвестно.

Величина капитальных вложений в реконструкцию может быть сокращена на величину стоимости предстоящего капитального ремонта. В общем случае капитальные вложения в реконструктивные мероприятия (К) определяются в виде:

К = Кр + Кост - Ккр,                                                      (4)

где Кр - капитальные вложения в расширение, реконструкцию или техническое перевооружение;

Кост - стоимость ликвидируемых фондов (остаточная);

Ккр - стоимость предстоящего капитального ремонта.

В типовой методике отсутствуют рекомендации по определению показателей объектов нового строительства, принимаемых в качестве аналогов при расчетах эффективности расширения или реконструкции с приростом мощности.

Представляется целесообразным принимать показатели аналогичных по мощности объектов нового строительства в данном хозяйстве или в районе, с приведением в сопоставимый вид по условиям осуществления строительства. В том случае, если проектируемый прирост мощности меньше, чем по рекомендуемому объекту-аналогу, либо превышает его в пределах 10 - 15 %, необходимые капитальные вложения в новое строительство принимаются на основе капитальных вложений по установленному аналогу.

Система основных технико-экономических показателей реконструкции и расширения не отличается от системы технико-экономических показателей эффективности нового строительства, но имеет особенности, а именно:

стоимость основных фондов реконструируемого предприятия (сумма или общие (суммарные) капиталовложений состоит из сметной стоимости реконструктивных мероприятий и остаточной балансовой стоимости зданий и сооружений существующей фермы с учетом потерь от их возможной частичной ликвидации в соответствии с проектом реконструкции. Исходя из указанной суммы затрат, определяются удельные капитальные вложения на единицу мощности, или продукции и другие стоимостные показатели;

технико-экономические показатели реконструируемых (расширяемых) ферм сравниваются с показателями нового строительства аналогичной по объему производства фермы (по аналогу - привязанному типовому проекту или аналогичному построенному объекту) и показателями фермы до реконструкции (расширения) по следующей форме:

№ п/п

Наименование показателей

Единица изм.

До реконструкции

После реконструкции

Новое строительство

Примечание

1

2

3

4

5

6

7

1.

Мощность объекта

 

 

 

 

 

2.

Вместимость комплекса, фермы (скотомест)

 

 

 

 

 

3.

Годовой выпуск продукции (в натуральном выражении):

 

 

 

 

 

валовой

 

 

 

 

 

товарной

 

 

 

 

 

в том число дополнительной товарной (после реконструкции)

 

 

 

 

 

4.

Годовой выпуск продукции (в ценах реализации)

 

 

 

 

 

валовой

 

 

 

 

 

товарной

 

 

 

 

 

в том числе дополнительной товарной (после реконструкции)

 

 

 

 

 

5.

Капитальные вложения

 

 

 

 

 

в том числе дополнительные (на реконструкцию)

 

 

 

 

 

6.

Удельные капитальные вложения на единицу продукции или другую расчетную единицу

 

 

 

 

 

7.

То же, но от дополнительных капитальных вложений - на дополнительную продукцию

 

 

 

 

 

8.

Годовые производственные расходы

 

 

 

 

 

9.

Себестоимость единицы продукции

 

 

 

 

 

10.

Количество работающих

 

 

 

 

 

 

в том числе основного производственного персонала

 

 

 

 

 

11.

Затраты труда всех работающих на единицу продукции

 

 

 

 

 

в том числе основного производственного персонала

 

 

 

 

 

12.

Годовая прибыль

 

 

 

 

 

13.

Фондоотдача

 

 

 

 

 

14.

Окупаемость капитальных вложений

 

 

 

 

 

15.

Дополнительные показатели:

 

 

 

 

 

энерговооруженность

 

 

 

 

 

 

механовооруженность

 

 

 

 

 

 

электровооруженность

 

 

 

 

 

Исходные данные, применяемые для расчетов сравнительной экономической эффективности, должны быть приведены в сопоставимый вид.

12. СОСТАВ ПРОЕКТНО-СМЕТНОЙ ДОКУМЕНТАЦИИ НА РЕКОНСТРУКЦИЮ

12.1. Проектно-сметная документация на реконструкцию, расширение (реконструкцию с расширением), как правило, разрабатывается в одну стадию - рабочий проект со сводным сметным расчетом стоимости строительства, объектными и локальными сметами, состоящий из материалов, представляемых на утверждение (утверждаемая часть) с приложением, при необходимости рабочей документации, не подлежащей утверждению, но полностью соответствующей решениям, принятым в утверждаемой части.

12.2. Рабочий проект разрабатывается на основании задания на проектирование, составляемого заказчиком, с привлечением проектной организации, на основе технико-экономических расчетов (для крупных и сложных объектов - на основе технико-экономических обоснований).

12.3. Задание на проектирование утверждается органом заказчика, утверждающим рабочий проект (в соответствии с установленной «лимитностью» утверждения, т.е. в соответствии со сметной стоимостью объекта).

При этом проектная организация - генеральный проектировщик с привлечением, в необходимых случаях, специализированных и изыскательских организаций осуществляет по поручению заказчика:

подготовку необходимых данных (по типовым или индивидуальным проектам-аналогам), включая схему генерального плана;

получение у соответствующих организаций технических условий на подключение проектируемого объекта (в случае необходимости) к инженерным сетям и коммуникациям;

проведение инженерных, экономических и других обследований и, в необходимых случаях, инженерных изысканий;

разработку необходимых дополнительных материалов и технико-экономических расчетов и подготавливает предложения по оптимальному составу предприятия и его мощности, которые находят отражение в задании на проектирование.

РАБОЧИЙ ПРОЕКТ

Рабочий проект, выполненный для реконструкции, расширения (реконструкции с одновременным расширением) животноводческих ферм или их очередей должен состоять из следующих разделов:

1. Общая пояснительная записка

12.4. Общая пояснительная записка должна содержать исходные данные для проектирования, материалы по обоснованию выбранного объекта, его производственному направлению и проектной мощности; краткую характеристику состояния объекта (зданий, сооружений, коммуникаций и инженерного обеспечения); краткое описание принятой технологии производства, научной организации труда и управления производством, уровень механизации и автоматизации производственных процессов, источники обеспечения кормами и рекомендуемые рационы; источники комплектации первоначальным (дополнительным) и ремонтным поголовьем, организацию, специализацию и кооперирование производства, данные о потребности в инженерных и трудовых ресурсах и источниках их обеспечения, обоснование решений по замене выбывающих по износу или достройке новых зданий, сооружений и коммуникаций, по расширению (пристройке), надстройке, замене конструкций, инженерному оборудованию, замене морально-устаревшего (изношенного) оборудования, мероприятия по бытовому и санитарному обслуживанию работающих, сведения об очередности строительства и пусковых комплексах, основные технико-экономические показатели (в соответствии с таблицей, приведенной в предыдущем разделе); данные по генеральному плану, внутриплощадочному и внешнему транспорту, мероприятия по использованию плодородного слоя почвы, принятые решения по водоснабжению, теплоснабжению, канализации, хранению и обработке навоза и жидких стоков, их использования в системе кормопроизводства, данные о мелиоративных мероприятиях, охраны окружающей природной среды, мероприятия по гражданской обороне, сведения о согласованиях проектных решений и их соответствии действующим нормам и правилам по проектированию и строительству, требованиям органов государственного надзора, а также зональным ЕТУ, соображениям о доведении предприятия до проектной мощности в установленные сроки.

12.5. Чертежи:

а) выкопировка из проекта планировки и застройки сельского населенного пункта с необходимыми уточнениями, а при отсутствии его, при необходимости, ситуационный план размещения подлежащего реконструкции (расширению) предприятия, с указанием на нем внешних коммуникаций, сетей и сооружений (существующих подлежащих использованию, вновь сооружаемых), подлежащих рекультивации, мелиорированию земельных участков, селитебной территории, сооружений по водозабору, очистке сточных вод, хранению навоза (навозных жидких стоков);

б) генеральный план с обозначением существующих подлежащих реконструкции, вновь проектируемых подлежащих сносу зданий и сооружений, внутриплощадочных инженерных коммуникаций, объектов благоустройства и озеленения с экспликацией зданий и сооружений, указанием площадей застройки, ссылкой на номера примененных типовых и повторно-применяемых индивидуальных проектов, вновь разработанных в порядке реконструкции индивидуальных проектов (с использованием элементов типовых проектов, типовых конструкций, серийного оборудования), указанием вертикальных отметок, выделением объектов первой и последующих очередей;

в) планы и, в случае необходимости, профили внеплощадочных инженерных сетей и коммуникаций с относящимися к ним сооружениями;

г) принципиальная схема технологического процесса;

д) планы, разрезы и фасады реконструируемых и индивидуальных проектов зданий и сооружений, каталожные листы примененных типовых проектов;

е) схема управления предприятием;

ж) принципиальные схемы электроснабжения предприятия, слаботочных сетей и устройств (связь, сигнализация и др.).

2. Организация строительства

12.6. Объем и содержание этого раздела разрабатывается применительно к СНиП 3.01.01-85 в объеме, согласованном с подрядной строительной организацией, с учетом специфики производства работ в затесненных условиях.

3. Сметная документация

12.7. Сметная документация разрабатывается в объеме и составе, определенном разделом 4 СНиП 1.02.01-85 и «Методическими указаниями по определению стоимости строительства предприятий зданий и сооружений и составлению сводных сметных расчетов и смет», утвержденными Госстроем СССР (Стройиздат, 1985) с учетом последующих указаний, дополнений и изменений, утвержденных директивными органами, включая указания Госстроя СССР по определению договорных цен в строительстве.

4. Паспорт рабочего проекта

12.8. Составляется только на объекты, подлежащие утверждению союзным или республиканскими агропромами (по форме ГОСТа, утвержденного Госстроем СССР).

12.9. Перечисленные выше проектно-сметные материалы представляются на экспертизу и утверждение. Параллельно с составлением указанной документации осуществляется разработка рабочей документации (в сроки - в соответствии с графиком к договору на проектирование).

12.10. Рабочие проекты на реконструкцию, расширение, техническое перевооружение отдельных зданий и сооружений, входящих в состав действующих ферм, как правило, не разрабатываются (за исключением отдельных, особо сложных случаев). На такие объекты непосредственно разрабатывается рабочая документация (рабочие чертежи, привязанные типовые проекты, спецификации на оборудование, ведомости потребности в материалах, сметы, составленные по рабочим чертежам).

РАБОЧАЯ ДОКУМЕНТАЦИЯ

12.11. В состав рабочей документации для строительства (реконструкции, расширения и т.д.) животноводческих ферм, зданий и сооружений должны входить:

рабочие чертежи, разрабатываемые в соответствии с требованиями ГОСТов СПДС, типовые проекты, привязанные к местным условиям в соответствии с указаниями раздела 6 «Инструкции по типовому проектированию» СП 227-82 и требованиями ГОСТ 21.202-78;

сметы, составляемые в порядке, установленном разделом 4 СНиП 1.02.01-85 и «Методическими указаниями по определению стоимости строительства предприятий, зданий и сооружений и составлению сводных сметных расчетов и смет».

ведомости объемов строительных и монтажных работ по ГОСТ 21.11-84;

спецификации на оборудование, составленные по форме, установленной ГОСТ 21.110-82;

ведомости и сводные ведомости потребности в материалах, изделиях и конструкциях, составляемые в соответствии с ГОСТ 21.109-80 и «Методическими указаниями по определению потребности в материалах, конструкциях и деталях в составе проектной документации на строительство», утвержденными Госстроем СССР (Стройиздат, 1983).

РАБОЧИЕ ЧЕРТЕЖИ

Рабочие чертежи для строительства объектов должны разрабатываться в следующем составе:

чертежи, предназначенные для производства строительно-монтажных работ (планы, разрезы, фасады, монтажные схемы строительных конструкций и т.д.), включая рабочие чертежи к генеральному плану;

чертежи (планы и разрезы) установки технологического, транспортного, энергетического и другого оборудования и связанных с ним коммуникаций, конструкций, устройств, схем технологических трубопроводов с чертежами тепловой изоляции;

чертежи сооружений и устройств, связанных с охраной окружающей среды, труда и техникой безопасности, а также выполнением мероприятий по восстановлению (рекультивации) нарушенных земель (в случае необходимости);

чертежи (планы, разрезы, профили трасс, схемы) сетей и устройств тепло-, газо-, электроснабжения, электрооборудования, автоматизации технологических процессов, связи и сигнализации радиофикации и других сетей и устройств (не вошедших в утверждаемую часть рабочего проекта);

чертежи элементов строительных конструкций (при отсутствии типовых);

кроме того, в составе рабочей документации, разрабатываются задания заводам-изготовителям на нетиповые технологические, энергетические и другие устройства и конструкции, а также нестандартизированное оборудование (в объеме, необходимом для разработки конструкторской документации).

ПРИЛОЖЕНИЕ

ОПРЕДЕЛЕНИЕ ПОНЯТИЙ НОВОГО СТРОИТЕЛЬСТВА, РАСШИРЕНИЯ, РЕКОНСТРУКЦИИ И ТЕХНИЧЕСКОГО ПЕРЕВООРУЖЕНИЯ ОБЪЕКТОВ ОТРАСЛИ «СЕЛЬСКОЕ ХОЗЯЙСТВО»

Исходя из специфических особенностей отрасли «Сельское хозяйство», в системе Госагропрома СССР установлены следующие определения понятий нового строительства, расширения, реконструкции и технического перевооружения объектов совхозов и других государственных сельскохозяйственных предприятий и организаций.

I. К новому строительству относятся:

строительство вновь создаваемых совхозов, государственных племенных и конных заводов, совхозов-техникумов и совхозов-заводов всех производственных направлений, включая межхозяйственные предприятия;

строительство самостоятельных (не входящих в состав действующих совхозов или других государственных сельскохозяйственных предприятий);

птицефабрик, племенных птицеводческих заводов, племенных птицеводческих репродукторов, инкубаторно-птицеводческих станций (ИПС) и других птицеводческих предприятий;

животноводческих комплексов всех направлений, гибридных центров и госплемпитомников по выращиванию племенного скота, откормочных хозяйств и площадок по откорму скота всех видов, других предприятий по производству продукции животноводства;

тепличных и парниковых комбинатов и других предприятий по производству продукции в закрытом грунте;

станций и объединений по племенной работе и искусственному осеменению сельскохозяйственных животных;

ветеринарно-санитарных утилизационных заводов по производству мясокостной муки;

конюшен и ипподромов;

грензаводов и коконосушилок;

пчелопитомников, воскоперерабатывающих предприятий и предприятий по производству пчеловодного инвентаря;

питомников плодово-ягодных, виноградных, цитрусовых культур, тутовых саженцев, а также семпромхозов плодово-ягодных и цитрусовых культур;

льносемстанций и коноплесемстанций;

предприятий и хозяйств по разведению и выращиванию рыбы;

заводов, фабрик и других предприятий по выращиванию, заготовке, переработке, хранению и реализации семян;

агрохимических, контрольно-токсикологических и семенных лабораторий;

предприятий и организаций по производству и реализации лекарственных препаратов и инструментов для ветеринарии, а также баз снабжения «Зооветснаб»;

биофабрик, биокомбинатов, биолабораторий, станций, карантинных инспекций и других предприятий и организаций по защите растений и животных от вредителей и болезней;

ветеринарных предприятий по борьбе с болезнями животных (станций, лабораторий, амбулаторий, поликлиник и лечебниц);

объединений и баз химизации системы «Союзсельхозхимия»;

учебных заведений по подготовке и переподготовке кадров для сельского хозяйства;

опытных, опытно-производственных, учебно-опытных, учебно-производственных и экспериментальных хозяйств сельскохозяйственных учебных заведений и научно-исследовательских организаций;

зданий научно-исследовательских, конструкторских, проектных, проектно-конструкторских организаций и их филиалов (отделений);

лесозащитных, лесозаготовительных и лесоперерабатывающих предприятий и организаций (лесхозов, леспромхозов и др.);

автотранспортных предприятий, опорных баз строительно-монтажных, пусконаладочных и ремонтно-строительных организаций, предприятий строительной индустрии и по производству строительных материалов, баз материально-технического снабжения (включая межхозяйственные) и других вновь создаваемых предприятий и организаций на самостоятельном балансе.

II. К расширению действующих предприятий относятся:

строительство в действующих совхозах и других государственных сельскохозяйственных предприятиях и организациях;

птицефабрик, птицеферм, инкубаториев, племптицерепродукторов, племптицеферм и других объектов птицеводства по выпуску готовой продукции;

животноводческих комплексов и ферм всех производственных направлений;

тепличных комбинатов, теплиц и парников по производству продукции в закрытом грунте;

помещений для содержания скота всех видов, птицы и пушных зверей, обеспечивающих прирост поголовья;

тренингов и конюшен для племлошадей;

овощекартофелехранилищ, зернохранилищ, фруктохранилищ, складов для минеральных удобрений, ядохимикатов, известковых и гипсовых материалов;

цехов и объектов по обработке, переработке и хранению сельскохозяйственной продукции и семян, по изготовлению тары и деталей для нее;

ремонтных мастерских, пунктов технического обслуживания, гаражей, стоянок для сельскохозяйственных машин и транспортных средств;

подсобных предприятий по производству товаров народного потребления;

объектов по разведению и выращиванию рыбы;

плодово-ягодных, виноградорских, тутовых питомников, плодо-лесопитомников;

цехов и объектов по выращиванию и первичной обработке лекарственного и технического сырья (специализированных хозяйствах);

оросительных, осушительных и осушительно-увлажнительных систем, осуществляемое по проекту только для одного хозяйства с целью создания кормовой базы для существующих ферм и животноводческих комплексов в них или для увеличения производства продовольственных культур;

ветеринарно-санитарных утилизационных цехов по производству мясокостной муки;

шелкокомплексов, коконосушилок и других объектов шелкопроизводства;

пчелопасек и других пчеловодческих объектов;

торгово-заготовительных пунктов пчеловодства, пунктов и складов семян.

III. К реконструкции действующих предприятий относятся:

переоборудование действующих животноводческих, птицеводческих и других объектов основного и вспомогательного назначения с целью организации производства или хранения (переработки) других видов продукции (переоборудование свинарников, коровников, телятников и т.д. для содержания других видов животных или под механизированные склады разного назначения);

переоборудование птицеводческих помещений на действующих птицефабриках и птицефермах - перевод с напольного на клеточное содержание, замена клеточных батарей на более совершенные или другого типа и другие аналогичные работы;

строительство животноводческих и птицеводческих помещений и других объектов основного и вспомогательного назначения взамен выбывающих по ветхости и износу;

строительство котельных, комбикормовых предприятий, цехов кормопроизводства, силосохранилищ, сенажных сооружений и других объектов различного вспомогательного назначения и навозоудаления;

строительство внутрихозяйственных (внутрифермских) сетей водопровода производственного назначения и сооружений на них (бурение скважин, сооружение колодцев, насосных и перекачивающих станций и других сооружений);

строительство внутрихозяйственных (внутрифермских) сетей канализации, теплоснабжения, газификации и сооружений на них (фекальных очистных сооружений, насосных и перекачивающих станций, тепловых и газораспределительных пунктов);

строительство новых и реконструкция имеющихся внутрихозяйственных дорог с устройством улучшенных покрытий, благоустройство территорий действующих сельскохозяйственных предприятий;

переустройство оросительных и осушительных систем совхозов с целью повышения эффективности использования мелиорированных земель, повышения капиталоемкости систем с заменой морально устаревшего и изношенного оборудования, механизацией и автоматизацией процессов.

Реконструкция действующих совхозов и других сельскохозяйственных предприятий и организаций может осуществляться и без увеличения производственной мощности. При этом должно достигаться снижение трудозатрат, себестоимости продукции и улучшение других технико-экономических показателей.

IV. К техническому перевооружению действующих предприятий относятся:

механизация трудоемких процессов в животноводческих, птицеводческих помещениях и складах: кормораздача, поение и доение скота, сбор яиц, навозоудаление и другие мероприятия по повышению производительности труда и продуктивности животноводства;

устройство внутрихозяйственной производственной телефонизации и радиофикации;

перевод котельных на более эффективные виды топлива;

строительство навозосборников, навозоприемников и навозохранилищ, навозопроводов и лотков вне зданий и других объектов для борьбы с эпизоотией;

механизация и автоматизация трудоемких процессов в комбикормовых и кормовых цехах, замена морально устаревшего и изношенного оборудования в них на более производительное;

автоматизация и механизации учета и отчетности (включая приобретение счетно-аналитических машин), а также другие работы, направленные на повышение технико-экономического уровня и улучшение технико-экономических показателей работы предприятий.

К затратам по техническому перевооружению в действующих совхозах и других государственных сельскохозяйственных предприятиях и организациях следует также относить капитальные вложения, направляемые на приобретение оборудования, не входящего в сметы строек (сельскохозяйственная почвообрабатывающая, посевная и уборочная техника, техника по внесению минеральных удобрении, известковых, известьсодержащих и гипсосодержащих материалов и ядохимикатов, строительные машины, автотранспорт, механизмы и другое оборудование, не требующее монтажа), предназначенного для замены морально устаревших машин и механизмов и приобретение более производительных взамен выбывающих.

ПРИМЕРЫ ПРОЕКТНЫХ РЕШЕНИЙ

РЕКОНСТРУКЦИЯ МОЛОЧНОЙ ФЕРМЫ НА 400 КОРОВ В СОВХОЗЕ «ПАМЯТЬ ИЛЬИЧА» ЧЕХОВСКОГО РАЙОНА МОСКОВСКОЙ ОБЛ.

Характеристика фермы до реконструкции

Ферма состоит из двух коровников на 200 коров каждый, родильного отделения с профилакторием, телятника с выращиванием молодняка до 6 месяцев, кормоцеха, котельной, траншеи для хранения кормов, склада сена, площадки для хранения грубых кормов.

Коровники построены по проекту Мосгипронисельстроя № 21п-400, предусматривающего применение железобетонного каркаса и панельных продольных стен. Ширина коровника - 21 м, длина - 78 м. Коровники сблокированы с молочным блоком. Доение осуществлялось в стойлах в молокопровод установки АДМ-8.

Раздача грубых и сочных кормов - мобильная с применением КТУ-10, корнеплодов и концентратов - ручная с тележек УТР-0,3. Концентраты раздают в жидком виде, для чего их в тележке УТР-0,3 заливают горячей водой и перемешивают. Этот процесс выполнялся доярами. Удаление навоза - транспортерами ТСН-3,0Б и УПН-15. Содержание коров на цепной привязи, аналогичной по конструкции серийному оборудованию ОСК-25А. Поение животных - из автопоилок ПА-1. Ширина стойла - 1,2 м, длина - 1,9 м.

Каждый коровник обслуживался четырьмя основными и одним подменным дояром. В обязанности дояра входило помимо доения выполнение следующих операций: приготовление и раздача концкормов и корнеплодов, чистка животных, разбрасывание подстилки (опилки), оказание помощи скотникам в привязывании скота и распределении коров по группам, технику-осеменатору, мойка доильной аппаратуры.

За каждым коровником были закреплены три скотника, по одному в смену (один ночной на оба помещения). В обязанности скотника входила очистка стойл и помещений от навоза и остатков кормов, очистка кормушек от остатков кормов, подача из тамбура подстилочного материала, отвязывание и привязывание коров, подгон коров с выгульных площадок и распределение их по группам, оказание помощи зооветспециалистам.

Машины и оборудование обслуживал один слесарь-механик. Техник-осеменатор совмещал свои функции с проведением анализа молока (лаборант молочной). Документы оформлял заведующий фермой. Бригада кормачей обслуживала всю ферму и кормоцех; в расчете на два коровника приходился один тракторист-механик. Доение и кормление двухразовое.

Характеристика фермы после реконструкции

При реконструкции, осуществленной ВИЭСХом совместно со специалистами колхоза, к существующему стойловому оборудованию были смонтированы автоматические привязи ЦСП-ВИЭСХ, каждая на группу в 25 коров, изолированную от центрального поперечного прохода калитками (секция на 25 коров). Отвязывание коров групповое, привязывание - индивидуальное (самопривязь). Доение - двухкратное, работа доярок - односменная двухцикличная.

Доение осуществляется в доильном зале реконструированного доильно-молочного блока на двух установках УДТ-6, укомплектованных автоматическими манипуляторами конструкции ВИЭСХ. В качестве последоильного накопителя используется скотопрогон для выхода отдоившихся коров. Опыт показал, что использование этого скотопрогона в качестве последоильного накопителя позволяет, полностью исключить простои доильных установок между поступлениями групп, а также предотвратить смешивание животных; В последоильном накопителе животные находятся только в период, когда по центральному проходу на преддоильную площадку загоняется новая группа коров. После заполнения преддоильной площадки новой группой коров животные из последоильного скотопрогона перегоняются в свои секции. Когда последнее животное из преддоильной площадки поступило на доильную установку, вход в секцию и выход из последоильного скотопрогона закрывают. Далее подгоняют на дойку новую группу коров, и процесс повторяется.

Внедрение доильных установок УДТ-6 позволило высвободить пять доярок.

При обычной организации труда в каждом коровнике после реконструкции может содержаться до 216 коров (за счет сокращения ширины стойл с 1,2 до 1,1 м). Поголовье каждого коровника закреплено за определенным звеном, состоящим из доярок, их помощников и скотников. Продолжительность одной дойки (чистое время доения) при использовании автоматизированной доильной установки «Тандем» составляет около 3 ч.

Численность и профессиональный состав персонала фермы на 400 коров при такой организации производства и односменном двухцикличном режиме труда и отдыха с двух кратной в течение суток дойкой приведены в таблице.

Таблица

№№ п/п

Профессия

Численность

Выполняемые операции

до реконструкции

после реконструкции

1

2

3

4

5

1.

Дояры

8

2

Доение коров; промывка доильно-молочного зала и установки; раздача концкормов и корнеплодов; чистка животных и участие в зооветмероприятиях

2.

Помощники дояров (подгонщики)

-

2

Подгон коров на доильную установку и обратно; раздача концкормов и корнеплодов, уборка доильного зала, установки и скотопрогонов; чистка животных и участие в зооветмероприятиях

3.

Скотники дневные

4

2

Очистка стойл, кормушек и навозных проходов; разбрасывание подстилки; отвязывание и привязывание коров; выгон животных на выгульный двор и обратно

4.

Скотники ночные

1

1

Очистка стойл и навозных проходов, наблюдение за животными

5.

Тракторист-механизатор

1

1

Погрузка, подвозка и раздача кормов, подвозка подстилки, корнеплодов, уход и обслуживание оборудования для погрузки и раздачи кормов

6.

Слесарь-механик

2

2

Наблюдение, уход, наладка, обслуживание технологического оборудования

7.

Дояр родильного отделения

2

2

Подготовка коров к отелу, прием отелов; доение новотельных коров; чистка животных; раздача концкормов; уход за доильно-молочным оборудованием; уборка помещения

8.

Телятница профилактория

1

1

Прием и обработка телят после отела; кормление телят; чистка и дезинфекция клеток и помещения

9.

Ночной дежурный родильного отделения

1

1

Наблюдение за животными; прием отелов; очистка стойл и проходов; разбрасывание подстилки

10.

Техник-осеменатор (по совместительству лаборант молочной)

1

1

Проведение искусственного осеменения и контроля за отельностью животных; проведение анализов молока и мойка оборудования молочной

Технико-экономические показатели

№ п/п

Наименование показателей

До реконструкции

После реконструкции

1

2

3

4

1.

Вместимость фермы с учетом родильного отделения и профилактория, скотомест

448

480

2.

Годовой удой на фуражную корову, кг

4000

4000

3.

Валовое производство молока, ц

17898

19152

4.

Капитальные вложения на пристройку доильного зала, приобретение и монтаж технологического оборудования, тыс. руб.

-

106,8

5.

Количество работающих с подменными, всего чел.

32

23

 

в том числе основного производственного персонала

30

21

6.

Нагрузка на одного основного работника, гол.

15

23

7.

Затраты труда на 1 ц молока в расчете на всех работающих на ферме, чел.-ч

3,84

2,38

 

в том числе на одного основного работника

3,31

2,17

 

ЭКСПЛИКАЦИЯ

1. Стойловое помещение

2. Помещение для приготовления кормов

3. Навозоуборочное помещение

4. Тамбур

5. Молочная

6. Машинное отделение и венткамера

7. Венткамера

8. Комната отдыха

9. Моечная

10. Лаборатория для ветобслуживания

11. Женская раздевалка с душевой

12. Мужская раздевалка с душевой

13. Санузел

14. Коридор

15. Тамбур

16. Котельная

17. Лаборатория при молочной

18. Комната механика

19. Помещение для расходного бака

ЭКСПЛИКАЦИЯ

1. Столовое помещение

2. Помещение концкормов

3. Навозоуборочное помещение

4. Тамбур

5. Венткамера

6. Аптека

7. Комната ветврача

8. Кладовая

9. Электрощитовая

10. Электрокотельная

11. Вакуумнасосная

12. Лаборатория при молочной

13. Компрессорная-холодильная

14. Гардероб

15. Санузел

16. Пункт искусственного осеменения

17. Молочное

18. Доильное помещение

19. Помещение текущего запаса концкормов

20. Коридоры

РАСШИРЕНИЕ ФЕРМ ПО ОТКОРМУ МОЛОДНЯКА КРУПНОГО РОГАТОГО СКОТА С 1000 ДО 3000 ГОЛОВ В ГОД С РЕКОНСТРУКЦИЕЙ СУЩЕСТВУЮЩИХ ЗДАНИЙ

(с сохранением специализации)

Краткая характеристика фермы до реконструкции

В состав фермы входят: здание для годового откорма 1000 голов молодняка единовременной вместимостью 1500 голов, котельная, кормоцех, комбикормовый цех, зернохранилище, цех обезвоживания навоза и ряд объектов вспомогательного назначения.

Здания - кирпичные, могут быть использованы в течение 25 - 30

Содержание телят - привязное.

Раздача кормов - с использованием ленточных транспортеров.

Уборка навоза - самотечная система с использованием цеха обезвоживания.

Характеристика фермы после реконструкции

Проект расширения фермы по откорму крупного рогатого скота с 1000 до 3000 голов в год в колхозе им. Кирова Нуримановского района Башкирской АССР предусматривает изменение технологии содержания телят с привязного на комбикормовое.

Размер фермы увеличивается до 3000 голов за счет нового строительства двух зданий для выращивания и доращивания молодняка крупного рогатого окота на 1000 голов каждое.

Производственные процессы полностью механизированы (см. характеристику телятника после реконструкции).

На ферме принят непрерывный процесс выращивания и откорма молодняка крупного рогатого скота по цикличному графику. Кооперированные хозяйства поставляют на ферму молодняк от коров молочных и мясомолочных пород в возрасте 15 - 20 дней партиями по 280 голов в каждой. Эти группы представляют собой производственную единицу, животные которой на любом этапе выращивания и откорма находятся в одинаковых условиях содержания и кормления.

В состав фермы входят три основных производственных здания-сектора: здание на 1584 скотоместа для выращивания молодняка крупного рогатого скота с 20-дневного возраста до шести месяцев (поз. 15); здание на 1500 скотомест для доращивания молодняка крупного рогатого скота с 6 до 12 месяцев (поз. 16); здание на 1500 скотомест для интенсивного откорма молодняка крупного рогатого скота с 12 до 18 месяцев (существующее).

Сформированные группы сохраняются при переводе из одного сектора в другой.

Реконструкция фермы позволяет снизить общие затраты труда на 54 %.

Характеристика здания откорма до реконструкции

Здание откорма построено по индивидуальному проекту с кирпичными стенами.

Содержание молодняка - привязное. Поение осуществляется из автопоилок ПА-1.

Для раздачи грубых и сочных кормов используются ленточные транспортеры.

Удаление навоза производится с использованием самотечно-сплавной системы. Навоз через решетчатый пол попадает в поперечные подпольные каналы, по которым самотеком непрерывно перемещается в сторону продольного канала. Из продольного канала навоз самотеком подается в навозосборник.

Характеристика здания откорма после реконструкции

Существующее здание, построенное по индивидуальному проекту, переоборудуется под комбибоксовое содержание животных на интенсивном откорме в возрасте с 12 до 18 месяцев (поз. 1 по генплану).

В помещении производится перепланировка, демонтируются привязи, разделители, а также ленточные транспортеры для раздачи кормов.

В стойлах устанавливаются ограничители из труб.

Кормораздача выполнена на базе транспортера ТСН-2, вмонтированного в бетонную кормушку.

При новом строительстве здания для выращивания телят с 20 дней до 6 месяцев используется т.п. 801-315 с его переработкой путем перепланировки и замены оборудования (см. план здания 1584 скотоместа).

В здании предусматривается следующее содержание молодняка: телята в возрасте с 20 дней до трех месяцев содержатся в групповых клетках, оборудованных боксами, молодняк в возрасте от трех до шести месяцев - в групповых клетках без боксов.

Производственный процесс и размещение технологического оборудования в здании для доращивания молодняка крупного рогатого скота в возрасте от 6 до 12 месяцев аналогичны приведенному выше описанию реконструируемого существующего здания для откорма молодняка в возрасте от 12 до 18 месяцев.

Хранение гранулированных концентрированных кормов для кормления телят в возрасте до шести месяцев предусматривается в бункерах ВСК-10, откуда комбикорма шнеком подаются в шайбовый транспортер, загружающий корм в самокормушки, находящиеся в клетках для содержания телят.

Доставка кормосмеси из кормоцеха в здание откормочников и загрузка в механизированные кормушки осуществляется кормораздатчиками КТУ-10.

Поение молодняка во всех зданиях - из автопоилок АП-1А.

Технико-экономические показатели

№ п/п

Наименование показателей

До реконструкции

После реконструкции

1.

Размер фермы, голов

1000

3000

2.

Вместимость, скотомест

1500

4584

3.

Годовое производство

 

 

 

мяса в живом весе, ц

4500

13395

4.

Стоимость строительства, тыс. руб.

1760

3186

5.

Дополнительные капитальные вложения, тыс. руб.

-

1426

6.

Удельные капиталовложения на одно скотоместо, руб.

1106

665

7.

Общие затраты труда на 1 ц продукции, чел.-ч

12,3

7,2

8.

Себестоимость 1 ц привеса, руб.

07

70

РАСШИРЕНИЕ ФЕРМЫ ПО ОТКОРМУ МОЛОДНЯКА КРУПНОГО РОГАТОГО СКОТА С 1000 ДО 3000 ГОЛОВ В ГОД С РЕКОНСТРУКЦИЕЙ СУЩЕСТВУЮЩИХ ЗДАНИЙ

СХЕМА ГЕНЕРАЛЬНОГО ПЛАНА

ЭКСПЛИКАЦИЯ

1. Здание для откорма молодняка

2. Кормоцех

3. Комбикормовый цех

4. Зернохранилище

5. Ветпункт-амбулатория

6. Гараж на пять автомашин

7. Котельная

8. Убойно-санитарный пункт

9. Ветсанпропускник

10. Здание приема и отгрузки скота

11. Силосохранилище

12. Площадка для густой фракции навоза

13. Цех обезвоживания

14. Емкость для навоза

15. Здание молодняка 1-го возраста

16. Здание молодняка 2-го возраста

17. Навозохранилище

18. Пристройка к кормоцеху

19. Площадка для твердого топлива

ПОКАЗАТЕЛИ ПО ГЕНПЛАНУ

Площадь участка, га............................................. 7,15

Площадь застройки, га......................................... 3,7

Плотность застройки, %....................................... 51,4

УСЛОВНЫЕ ОБОЗНАЧЕНИЯ

 - проектируемые здания

 - реконструируемые здания

 - существующие здания

ЗДАНИЕ ДЛЯ МОЛОДНЯКА НА 1584 ГОЛОВЫ В ВОЗРАСТЕ ОТ 20 ДНЕЙ ДО 6 МЕСЯЦЕВ (поз. 15 по генплану, см. стр. 97)

ЭКСПЛИКАЦИЯ ПОМЕЩЕНИЙ

(1) Секция для содержания 432 телят от 20 дней до 3 месяцев

(2) Секция для содержания 360 телят от 20 дней до 3 месяцев

(3) Секция для содержания 360 телят от 3 до 6 месяцев

(4) Секция для содержания 432 телят от 3 до 6 месяцев

(5) Кормовой коридор

(6) Коридор для перегона скота

(7) Тамбур

(8) Санузел

ЭКСПЛИКАЦИЯ ОБОРУДОВАНИЯ

1. Транспортер кормовой

2. Кормораздатчик КТУ-10

ЗДАНИЕ ДЛЯ МОЛОДНЯКА НА 1800 ГОЛОВ В ВОЗРАСТЕ ОТ 6 ДО 12 МЕСЯЦЕВ (поз. 16 по генплану, см. стр. 97)

ЭКСПЛИКАЦИЯ ПОМЕЩЕНИЙ

(1) Секция для содержания от 6 до 9 месяцев

(2) Секция для содержания от 9 до 12 месяцев

(3) Кормовой проезд

(4) Коридор

(5) Тамбур

(6) Санузел

ЭКСПЛИКАЦИЯ ОБОРУДОВАНИЯ

1. Кормовой транспортер

2. Кормораздатчик КТУ-10

РЕКОНСТРУКЦИЯ МОЛОЧНО-ТОВАРНОЙ ФЕРМЫ В КОЛХОЗЕ «ПОБЕДА» ВЕСЕЛОВСКОГО РАЙОНА РОСТОВСКОЙ ОБЛ. С ПЕРЕВОДОМ СОДЕРЖАНИЯ СКОТА С ПРИВЯЗНОГО НА БЕСПРИВЯЗНО-БОКСОВОЕ И РАСШИРЕНИЕ ФЕРМЫ С 800 ДО 1000 КОРОВ

До реконструкции на ферме располагались 800 коров, которые размещались в восьми коровниках.

После реконструкции существующих коровников c переводом содержания скота на беспривязно-боксовое вместимость фермы увеличилась на 100 коров. Кроме того, на ферме запроектированы 2 доильно-молочных блока, 12 выгульных площадок, оборудованных кормушками и групповыми поилками АГК-12.

Существующие коровники реконструируются под здание для выращивания телят (бычков) до 6-месячного возраста (200 скотомест) и родильное отделение (111 скотомест).

Устраивают легкие навесы со стенами из шифера на 200 скотомест для содержания сухостойных коров.

Предусматривается строительство санитарного пропускника на 60 человек и других объектов, модернизация очистных сооружений;

В коровниках раздача кормов производится с помощью кормораздатчиков РК-50.

Поение - из групповых поилок АГК-4А.

Уборка навоза - скреперной установкой УС-15.

Технико-экономические показатели

№ п/п

Наименование показателя

До реконструкции

После реконструкции

1

2

3

4

1.

Размер (объекта реконструкции), коров

800

1000

2.

Вместимость (объекта реконструкции), скотомест

912

1102

 

в том числе дополнительная (после реконструкции)

-

190

3.

Годовой выпуск продукции (в натуральном выражении), ц

 

 

 

валовой (молоко)

20260

30000

 

в том числе дополнительной (после реконструкции)

-

9740

 

товарной

19405

28965

 

в том числе дополнительной (после реконструкции)

-

9560

4.

Балансовая стоимость реконструируемого объекта, тыс. руб.

754,0

-

5.

Капитальные вложения (сметная стоимость реконструкции), тыс. руб.

-

941,54

 

из них:

 

 

 

строительно-монтажные работы

-

822,04

 

стоимость оборудования

-

83,93

6.

Удельные капитальные вложения (балансовая стоимость) на расчетную единицу (скотоместо, единицу продукции и т.д.) 1 ц молока, руб.

37,22

56,41

7.

Годовые производственные расходы, тыс. руб.

629,42

760,30

 

в том числе дополнительные (после реконструкции)

-

130,88

8.

Себестоимость единицы продукции (по видам), руб.:

 

 

 

1 ц молока

29,24

17,02

 

1 ц живой массы телят

-

126,11

 

1 ц живой массы выбракованного поголовья

-

212,89

 

1 ц живой массы крупного рогатого скота в среднем

-

185,83

9.

Количество работающих, чел.

71

48

 

в том числе основного производственного персонала

64

38

10

Затраты труда всех работящих на единицу продукции (молоко), чел.-ч

5,24

2,5

 

в том числе основного производственного персонала

4,56

1,93

11

Годовая прибыль, тыс. руб.

213,88

443,07

 

в том числе дополнительная (после реконструкции)

-

229,19

МОЛОЧНО-ТОВАРНАЯ ФЕРМА В КОЛХОЗЫ «ПОБЕДА» ВЕСЕЛОВСКОГО РАЙОНА РОСТОВСКОЙ ОБЛ.

СХЕМА ГЕНЕРАЛЬНОГО ПЛАНА

ЭКСПЛИКАЦИЯ

1. Здание для выращивания телят (бычков) до 6-месячного возраста

2. Здание родильного отделения

3. Легкие навесы

4. Коровник на 175 мест

5. Коровник на 290 мест

6. Коровник на 285 мест

7. Доильно-молочный блок на 2 установки

8. Санитарный пропускник

9. Здание для приема и обработки скота

10. Отапливаемый дезбарьер

11. Автопоилка АГК-4А

12. Накопитель

13. Выгульная площадка

14. Навозохранилище

15. Пожарный резервуар

16. Котельная

УСЛОВНЫЕ ОБОЗНАЧЕНИЯ

 - проектируемые здания

 - реконструируемые здания

 - существующие здания

КОРОВНИК НА 175 МЕСТ БОКСОВОГО СОДЕРЖАНИЯ

ПЛАН

1 - 1

ЭКСПЛИКАЦИЯ ОБОРУДОВАНИЯ

1. Раздатчик кормов РК-50

2. Транспортер скребковый ТС-40М

3. Автопоилка групповая АГК-4А

4. Транспортер скребковый ТСН-3,0Б

5. Установка скреперная УС-15

6. Решетка кормовая

ЭКСПЛИКАЦИЯ ПОМЕЩЕНИЙ

(1) Помещение для содержания животных

(2) Помещение загрузки кормов

(3) Помещение перегрузки навоза

КОРОВНИК НА 290 МЕСТ БОКСОВОГО СОДЕРЖАНИЯ

ПЛАН

1 - 1

ЭКСПЛИКАЦИЯ ПОМЕЩЕНИЙ

(1) Помещение для содержания животных

(2) Помещение загрузки кормов

(3) Электрощитовая

(4) Вспомогательное помещение

ЭКСПЛИКАЦИЯ ОБОРУДОВАНИЯ

1. Установка скреперная УС-15

2. Транспортер скребковый ТСН-3,0Б

3. Раздатчик кормов РК-50

4. Автопоилка групповая АГК-4А

5. Направляющий лоток

РАСШИРЕНИЕ МОЛОЧНОЙ ФЕРМЫ С 237 ДО 437 КОРОВ В КОЛХОЗЕ «КОММУНАР» ФУРМАНОВСКОГО РАЙОНА ИВАНОВСКОЙ ОБЛАСТИ

СХЕМ ГЕНЕРАЛЬНОГО ПЛАНА

ЭКСПЛИКАЦИЯ

1. Коровник на 200 голов

2. Молочный блок

3. Коровник

4. Пожарный резервуар на 100 м3

5. Выгульная площадка

6. Ветблок

7. Кормоцех

8. Силосные траншеи

9. Навес для грубых кормов

10. Телятник на 228 голов

11. Телятник

12. Родильное отделение с профилакторием

13. Навозохранилище на 2000 т

14. Трансформаторная подстанция

15. Жижесборник

 - Проектируемые здания

 - Существующие здания и сооружения

 - Существующие здания и сооружения

Проектом предусмотрено: реконструкция существующего коровника с заменой доильного оборудования ДАС-2Б на молокопровод АДМ-8; реконструкция молочного блока с доведением его производительности до 4 т/сут.; строительство нового коровника на 200 коров, телятника на 228 голов, кормоцеха производительностью 20 т/сут., амбулатории, стационара, навеса для грубых кормов, силосных траншей, навозохранилища.

В связи с тем, что габариты существующего коровника, построенного по т.п. 801-99, не позволяют осуществлять мобильную раздачу кормов, остается существующая кормораздача стационарными транспортерами, в то время как в новом коровнике раздача кормов мобильная. Удаление навоза из помещений принято транспортерами ТСН-160, далее прицепными тележками.

Организация труда после расширения поточно-цеховая при двухсменной работе.

Улучшение условий содержания животных, совершенствование кормления, наряду с селекционной работой, позволит рассчитывать на увеличение продуктивности коров с 2824 кг молока в год (на среднюю голову) до 3500 кг, снизить затраты труда с 7,7 до 5,4 чел.-ч. на 1 ц продукции и снизить себестоимость 1 л молока с 21,1 руб. до 15,68 руб.

БЛОК ЗДАНИЙ РЕКОНСТРУИРУЕМОГО КОРОВНИКА НА 237 КОРОВ, МОЛОЧНОГО ОТДЕЛЕНИЯ И КОРОВНИКА НА 200 КОРОВ

Технико-экономические показатели

№ п/п

Наименование

до реконструкции

после реконструкции

1.

Размер фермы, коров

237

437

2.

Вместимость, скотомест

505

754

3.

Выход продукции (молока) в год, ц

6693

14175

4.

Продуктивность животных, кг

2824

3500

5.

Капитальные вложения, тыс. руб.

376,01

707,43

 

в том числе дополнительные

-

332,42

6.

Удельные капитальные вложения (на 1 скотоместо), руб.

743

938

 

то же, на единицу продукции

56

50

7.

Себестоимость 1 ц молока, руб.

21,10

15,68

8.

Количество работающих всего, чел.

29

39

 

в том числе основного производственного персонала

26

33

9.

Число смен в сутки

1

2

10.

Затраты груда всех работающих на единицу продукции, чел.-ч.

7,7

5,4

 

в том числе основного производственного персонала

-

4,0

11.

Окупаемость капиталовложений, лет

-

2,7

Здание коровника (т.п. 801-99), входящее в состав фермы на 437 коров, реконструируется путем замены доения, агрегатом ДАС-2В на молокопровод АДМ-8.

Реконструируемое здание молочного блока, сблокированного с двумя коровниками, предназначается для учета, первичной обработки и хранения молока. В здании предусмотрены бытовые помещения, котельная с учетом всех нагрузок, дизельная, пункт искусственного осеменения, венткамера, вакуум-насосная, молокоприемная. для хранения молока используются молочные танки ТОМ-2А.

ПЛАН

ЭКСПЛИКАЦИЯ ПОМЕЩЕНИЙ

(I) Проектируемый коровник: 1 - вентиляционная камера; 2 - фуражная; 3 - инвентарная; 4 - помещение уборки навоза.

(II) Молочный блок: 1 - венткамера; 2 - молокосливная-моечная; 3 - котельная; 4 - комната персонала; 5 - вакуумнасосная; 6 - дизельная; 7 - лаборатория; 8 - манеж; - бытовки.

(III) Существующий коровник: 1 - кормораздаточная; 2 - кормонавозные проходы; 3 - инвентарная; 4 - фуражная; 5 - помещение уборки навоза.

РАСШИРЕНИЕ МОЛОЧНОЙ ФЕРМЫ С 400 ДО 800 КОРОВ В КОЛХОЗЕ «ПОБЕДА ОКТЯБРЯ» ХОТЫНСКОГО РАЙОНА ОРЛОВСКОЙ ОБЛ.

Проектом расширения фермы крупного рогатого скота с 400 до 800 коров просмотрено строительство двух коровников по 200 коров каждый, доильно-молочного блока, кормоцеха, вспомогательных зданий и сооружений.

С завершением расширения ферма будет являться специализированным предприятием по производству молока. В трех существующих коровниках с общим поголовьем 400 коров содержание животных привязное, доение в стойлах на установках АДМ-8.

Второй очередью строительства предусматривается перевод их на беспривязное содержание. В новых строящихся коровниках, сблокированных с доильно-молочным блоком галереями, принята беспривязная система содержания коров на глубокой подстилке с доением в доильно-молочном блоке на установке ВДЕ-8. Под родильное отделение и профилакторий переоборудуются два телятника силами самого хозяйства. Из профилактория телят будут переводить на другие специализированные фермы. Корма для животных приготовляются в кормоцехе производительностью 15 т/ч с последующей раздачей кормораздатчиками КТУ-10 по кормушкам коровников. Поение коров принято из автопоилок ПА-1А. Доение коров осуществляется на доильных установках АДМ-8 и УДЕ-8 «Елочка». Удаление навоза из коровников и с выгульных площадок производится скребковыми транспортерами и бульдозером с последующей доставкой его на поля со складированием в буртах.

Технико-экономические показатели

№ п/п

Наименование

до реконструкции

После реконструкции

1

2

3

4

1.

Размер фермы, коров

400

800

2.

Вместимость, скотомест

600

900

3.

Выход молока в год, ц

14000

28000

4.

Продуктивность животных, кг

3500

3500

5.

Капитальные вложения, тыс. руб.

264,1

1269,70

 

в том числе дополнительные

-

1005,6

6.

Удельные капитальные вложения (на 1 скотоместо), руб.

-

1587

 

то же, на единицу продукции

-

45

7.

Себестоимость 1 ц молока, руб.

15,8

12,5

8.

Количество работающих всего, чел.

32

44

 

в том числе основного производственного персонала

18

38

9.

Число смен в сутки

2

2

10.

Затраты труда всех работающих на единицу продукции, чел.-ч.

4,8

3,5

РАСШИРЕНИЕ МОЛОЧНОЙ ФЕРМЫ С 400 ДО 800 КОРОВ В КОЛХОЗЕ «ПОБЕДА ОКТЯБРЯ» ХОТЫНЕНСКОГО РАЙОНА ОРЛОВСКОЙ ОБЛ.

СХЕМА ГЕНЕРАЛЬНОГО ПЛАНА

УСЛОВНЫЕ ОБОЗНАЧЕНИЯ

 - Проектируемые здания  - Существующие здания и сооружения

ЭКСПЛИКАЦИЯ

1. Санпропускник

2. Здание для тракторов

3. Автовесы

4, Пожарный резервуар на 100 м3

6. Ветпункт с изолятором

6. Коровник на 100 голов

7. Родильное отделение

8. Телятник

9. Склад фуража

10. Котельная

11. Коровник на 200 голов

12. Коровники на 200 голов

13. Доильно-молочный блок

14. Коровник на 100 голов

16. Кормоцех

16. Силосные траншеи

17. Площадка грубых кормов

18. Площадка для временного хранения торфонавозных компостов

19. Выгульная площадка

20. Водозаборный узел

21. Площадка перспективного строительства

РАСШИРЕНИЕ МОЛОЧНОЙ ФЕРМЫ С 600 ДО 1000 КОРОВ В СОВХОЗЕ «МАЛЫШАНСКИЙ» ГОЛЫШМАНОВСКОГО РАЙОНА ТЮМЕНСКОЙ ОБЛАСТИ

Проектом предусмотрено расширение фермы с 600 до 1000 коров и определена новая единая технология содержания животных

К существующим зданиям для содержания коров пристраивается вновь проектируемый коровник на 400 голов (т.п. 801-314). Для обеспечения технологического процесса запроектированы объекты ветеринарно-санитарного назначения, кормоцех, теплая стоянка для фермского транспорта, навозохранилище и др.

Предусматривается привязное содержание коров, доение в молокопровод на установке АДМ-8, раздача кормов мобильным транспортом (КТУ-10). Удаление навоза - транспортером ТСН-3,0Б с последующей перекачкой шнековым насосом в транспортные средства и вывозом в навозохранилище.

Технико-экономические показатели

№ п/п

Наименование

До реконструкции

После реконструкции

1

2

3

4

1.

Размер фермы, коров

600

1000

2.

Вместимость, скотомест

680

1108

3.

Выход молока, ц

12700

40000

4.

Продуктивность, кг

2120

4000

5.

Капитальные вложения, тыс. руб.

504

1262,6

6.

Удельные капитальные вложения на 1 скотоместо, руб.

735

1010

на 1 ц молока

394

315

7.

Себестоимость на 1 ц молока, руб.

25,8

14,06

8.

Количество работающих, чел.

43

51

9.

Число смен в сутки

1

1

10.

Затраты труда всех работающих на единицу продукции, чел.-ч.

7

2,5

 

в том числе основного производственного персонала

-

2,14

11.

Окупаемость капитальных вложений, лет

-

1,7

РАСШИРЕНИЕ МОЛОЧНОЙ ФЕРМЫ С 600 ДО 1000 КОРОВ В СОВХОЗЕ «МАЛЫШАНСКИЙ» ГОЛЫШМАНОВСКОГО РАЙОНА ТЮМЕНСКОЙ ОБЛ.

СХЕМА ГЕНЕРАЛЬНОГО ПЛАНА

ЭКСПЛИКАЦИЯ

1. Коровник на 400 коров со стационаром и амбулаторией

2. Коровник на 400 коров

3. Коровник на 200 коров

4. Молочный блок

5. Молочный блок на 12 т/сут.

6. Санпропускник

7. Электрокотельная

8. Родильное отделение на 108 коров

9. Теплая стоянка на 6 тракторов

10. Кормоцех на 15 т/ч

11. Автовесы на 30 т

12. Летняя дойка УДС-3

13. Силосная траншея 1500 т

14. Дезбарьер

15. Выгульный двор

16. Навозохранилище 4,5 тыс. т

УСЛОВНЫЕ ОБОЗНАЧЕНИЯ

 - Проектируемые здания

 - Существующие здания и сооружения

РЕКОНСТРУКЦИЯ И ТЕХНИЧЕСКОЕ ПЕРЕВООРУЖЕНИЕ ЗДАНИЙ ДЛЯ СВИНЕЙ

А. Свинарники-маточники

При реконструкции или техническом перевооружении свинарников-маточников (для содержания подсосных маток с поросятами, холостых или супоросных маток) с целью увеличения вместимости, механизации трудоемких процессов или введения более совершенной системы организации труда рекомендуется применение серийно изготовляемого промышленностью комплектно поставляемого оборудования которое хорошо вписывается в габариты существующих зданий шириной 9, 12, 15, 18 и 21 м (предпочтительна ширина 15 м и 18 м).

Так для модернизации станкового оборудования рекомендуются станки типа ССП-2, СОД-2 (станки Диагонального типа) и «Ленинградский» (СДИЛ-1). Станки оборудованы кормушками и автопоилками, фиксаторами для маток и устройствами для локального обогрева поросят (ИКУФ - ультрафиолетовое и инфракрасное облучение).

В зависимости от ширины зданий станки располагаются в 2, 4 и 6 рядов (имея в виду как приспособление зданий другого назначения, так и переоборудование зданий того же назначения).

Площадь станков принимают от 5 до 7,5 м2 на одну голову, в зависимости от продолжительности подсосного периода в 26, 45 или 60 дней (наиболее употребительный - 45 дней).

Станки размещают рядами вдоль здания с устройством кормовых и навозных проходов. Ширина кормовых проходов в зависимости от применяемых средств механизации - 1,2 - 1,8 м, навозных - 1,2 - 1,4 м. Полы в станках для маток кирпичные, резиновые по бетону или бетонные с электроподогревом. Для поросят рекомендуются коврики с электроподогревом или резиновые с верхним обогревом электролампами (ИКЗК и ЛЭ-15). Корма раздают кормораздатчиками КС-0,4, шайбовыми транспортерами, а при их отсутствии - ручными тележками ТУ-300. Навоз удаляют по каналам, расположенным в задней части станков и перекрытых решетками с помощью гидросмыва, самосплава или транспортеров ТСН-3,0Б. Поение - из сосковых поилок ПБС-1 и ПБП-1.

Б. Свинарники для холостых и супоросных маток

Предназначены для группового содержания холостых маток, их осеменения и комплектования из них производственных групп по технологическому циклу.

Норма площади станка - 1,8 м2 на одну голову, фронт кормления - 0,45 м. Группы - по 12 супоросных или 14 холостых маток. Станки оборудуются групповыми кормушками, поилками и решетчатыми полами в зоне дефекации. Перегородки - сплошные в зоне отдыха и решетчатые (контактные в зоне дефекации). Кормушки групповые из бетона или асбестоцементных труб, шириной 40 см. Для размещения холостых и супоросных маток удобны здания шириной 9, 12 и 18 м.

Раздача кормов производится электрифицированными кормораздатчиками РС-5А, КС-1,5 или тросошайбовыми транспортерами КШ-0,5. Удаление навоза из каналов осуществляется гидросмывом, самосплавом или транспортером ТС-1.

В. Свинарники для поросят-отъемышей

Предназначены для содержания поросят от отъемного возраста до 4 месяцев. Площадь станка - 0,35 м2 на одну голову. Фронт кормления - 0,2 м. Кормушки размещают вдоль прохода, образуя кормонавозую зону с шириной решеток над навозными каналами - 0,6 - 1,0 м. Корма раздают кормораздатчиком РС-5А или тросошайбовым транспортером. В небольших свинарниках используют ручную тележку ТУ-300. Удаление навоза аналогично предыдущим случаям.

Г. Свинарники-откормочники

Предназначены для откорма молодняка от 4 до 8 - 9-месячного возраста (от веса 36 - 40 кг до 110 - 120 кг). В этих же зданиях откармливают выбракованных из маточного стада взрослых свиней. Молодняк содержат группами по 20 - 30 голов. Площадь станка на одну голову - 0,8 м2, фронт кормления - 0,22 - 0,3 м. Для откорма рекомендуется приспосабливать здания шириной 18 - 21 м с четырехрядным расположением станков и двумя кормослужебными проходами. Корма раздают кормораздатчиками РС-5А, КС-1,5, шайбовыми транспортерами КШ-0,5 или по системе трубопроводов при кормлении жидкими кормами. Сосковые поилки устанавливают в зоне дефекации у контактных перегородок над навозными каналами. Удаление навоза аналогично предыдущим случаям.

Далее приводятся некоторые примеры реконструкции зданий, построенных ранее по наиболее распространенным проектам.

ПРИМЕРЫ РАЗМЕЩЕНИЯ СТАНКОВ В ЗДАНИЯХ РАЗЛИЧНОЙ ШИРИНЫ

Разрез свинарника-маточника шириной 18 м, оборудованного станками диагонального типа (ССД-2):

1 - станок индивидуальный

2 - кормо-служебный проход

3 - решетчатый пол

Схема станка (отъем поросят в 60 дней):

Схема станка (отъем поросят в 45 дней):

1. калитка

2. самокормушки для поросят

3. решетчатый пол

4. кормушка для поросят

5. фиксатор съемный для матки

6. дуги ограничительные против задавливания поросят

7. кормушка для свиноматки

Разрез свинарника-маточника шириной 18 м, оборудованного станками типа «Ленинградский»:

1 - станок индивидуальный

2 - кормовой проход

3 - навозный проход

4 - канал для удаления навоза, перекрытый решетчатым настилом пола

Схема станка габаритами 3´2,5 м:

1 - кормушка для поросят

2 - самокормушка для поросят

3 - решетчатый пол

4 - фиксатор съемный для свиноматки

5 - калитки

6 - кормушка для матки

Разрез свинарника шириной 9 м для холостых и супоросных маток

1 - станок групповой

2 - решетчатый пол

3 - кормушка

4 - кормовой проход

Разрез свинарника шириной 12 м для холостых и супоросных маток:

1 - кормо-служебный проход

2 - кормушка

3 - решетчатый пол

4 - логово станка

Разрез свинарника шириной 18 м для холостых и супоросных маток:

1 - станок групповой

2 - канал для удаления навоза, перекрытый решетчатым полом

3 - кормо-служебный проход

Разрез свинарника шириной 9 м для поросят-отъемышей:

1 - кормо-служебный проход

2 - станок на 20 поросят

3 - канал для удаления навоза, перекрытый решетчатым полом

4 - кормушка

Разрез свинарника шириной 15 м для поросят-отъемышей:

1 - станок групповой

2 - кормо-служебный проход

3 - кормушка

4 - канал для удаления навоза, перекрытый решетчатым полом

Разрез свинарника-откормочника шириной 18 м:

1 - станок на 20 - 30 голов

2 - кормо-служебный проход

3 - решетчатый пол над каналом для удаления навоза

4 - кормушка

Разрез свинарника-откормочника шириной 21 м:

1 - станок групповой

2 - кормо-служебный проход

3 - кормушка

4 - решетчатый пол над каналом для удаления навоза

РЕКОНСТРУКЦИЯ СВИНАРНИКА-МАТОЧНИКА НА 100 ГОЛОВ

Типовой проект 802 - 103 Укрниигипросельхоза

1 - 1

Типовое здание свинарника-маточника размером 15´96 м рассчитано на прием и содержание глубоко супоросных свиноматок, проведение опоросов и содержание их в индивидуальных станках. Маток кормят влажными мешанками в специальном помещении столовой, сухими кормами - в станках. В свинарник корма доставляют кормораздатчиком КУТ-3А. Раздают по станкам из подвесной люльки или ручных тележек УТР-0,3. Станки оборудованы автопоилками типа ПАС-2А. Навоз из помещений удаляют скребковыми транспортерами ТСН-3,0Б, из столовой - гидросмывом с отводом воды в жижесборники.

Рекомендуемый вариант реконструкции

Реконструкция предусматривает полную внутреннюю перепланировку основного помещения с расположением новых типов станков в четыре ряда и образованием двух кормовых и трех навозных проходов шириной 1,4 и 1 м, соответственно.

Содержание свиноматок индивидуальное в станках размером 2,2´3 м, в которых разграничены боксы для поросят-сосунов. Станки оборудуются кормушками и поилками. Корма к свинарнику доставляют раздатчиком КУТ-3А, раздают кормораздатчиком РС-5А. Навоз убирают транспортерами ТСН-3Б в навозоприемники.

ПЛАН (до реконструкции)

ПЛАН (после реконструкции)

ЭКСПЛИКАЦИЯ

1. Станок для свиноматки

2. Отделение для поросят

3. Станок для свиноматки с поросятами

4. Кормовой проезд

5. Столовая

6. Подсобное помещение

7. Венткамера

8. Уборные с умывальником

9. Тамбур

10. Навозный тамбур

РЕКОНСТРУКЦИЯ СВИНАРНИКА НА 100 СУПОРОСНЫХ МАТОК, 600 ПОРОСЯТ-ОТЪЕМЫШЕЙ И 11 ХРЯКОВ-ПРОИЗВОДИТЕЛЕЙ

Типовой проект 802-55 Гипронисельхоза

Типовое здание свинарника имеет размеры 12´78 м. К зданию примыкает пристройка размером 9´18 м. В торцах основного здания устроены вспомогательные помещения.

Содержание животных станково-выгульное по секциям: помещение для супоросных маток, помещение для поросят-отъемышей и помещения-пристройки для хряков-производителей. Расположение станков двухрядное с одним центральным и двумя боковым проходами.

Кормление маток и поросят предусмотрено в станках с раздачей кормов раздатчиками типа РС-5А, хряков - из ручной тележки УТР-0,3. Поение - из автопоилок ПАС-2А. Навоз из помещения удаляют скребковыми транспортерами ТСН-3,0Б со сбросом в навозосборник транспортером ТС-1.

Характеристика рекомендуемого варианта реконструкции

Реконструкцией свинарника предусмотрена полная внутренняя перепланировка основных помещений для содержания животных. В здании размещены пункт искусственного осеменения, отделение для хряков и помещение для холостых и супоросных маток. В отделении для хряков находятся тринадцать индивидуальных и три групповых станка по 10 голов. Содержание холостых и супоросных маток групповое, по 24 головы в станке.

Станки расположены в два ряда с двумя кормовыми проходами шириной по 2,6 м вдоль наружных стен. Корм для свиноматок и хряков раздают мобильным кормораздатчиком КС-1,5 и ручной тележкой ТР-300. Удаление навоза - транспортером ТСН-3,0Б.

ПЛАН (до реконструкции)

Конструктивно здание свинарника выполнено в полносборном железобетонном каркасе с сеткой колонн (3´6´3)´6 м. Стены несущие кирпичные. Перекрытие чердачное железобетонное. Кровля из асбестоцементных волнистых листов.

Вентиляция приточно-вытяжная, приток в верхнюю зону с подогревом воздуха в зимнее время, вытяжка естественная через крышные шахты.

ПЛАН (после реконструкции)

(I) - помещение на 43 хряка

(II) - помещение на 150 холостых и супоросных маток

(III)- пункт искусственного осеменения

1 - индивидуальный станок

2 - групповой станок

3 - кормовой проход

4 - электрощитовая

5 - инвентарная

6 - станок для выявления маток в охоте

7 - станок на 24 матки

8 - тамбур

9 - помещение для взвешивания животных

10 - венткамера

11 - навозоприемник

12 - подсобное помещение

13 - санузел

14 - манеж для взятия семени

15 - лаборатория

16 - моечная лабораторного оборудования

17 - служебное помещение

18 - помещение для выдержки маток

РЕКОНСТРУКЦИЯ СВИНАРНИКА-ОТКОРМОЧНИКА НА 1000 ГОЛОВ

Типовой проект 802-96 Росгипросельхозстроя

Типовое здание свинарника-откормочника размером 12´90 м рассчитано на содержание и откорм свиней массой до 120 кг.

Содержание животных групповое, безвыгульное в станках. Станки расположены в два ряда с образованием двух боковых проходов шириной по 1 м. Размеры станков 4,35´6 м, вместимость каждого 40 - 50 голов.

Кормят свиней в станках, куда корм подают стационарными раздатчиками РКС-3000М. К свинарнику корма доставляют автомашиной ГАЗ-55В и выгружают в приемный бункер. Поение животных осуществляется из автопоилок ПАС-2А. Навоз из помещения удаляют скреперным транспортером ТС-1 со сбросом в навозоприемник. Выгружают его из навозоприемника в транспортные средства шнековым насосом НШ-50.

Характеристика рекомендуемого варианта реконструкции

Реконструкцией свинарника-откормочника предусмотрена полная внутренняя перепланировка основного помещения с расположением станков в два ряда с одним кормовым проходом шириной 1,8 м и двумя служебными шириной по 1 м вдоль наружных стен.

Содержание свиней групповое в станках размером 3,9´5 м, вместимостью 30 голов. Станки оборудованы кормушками и поилками соскового типа.

Корма раздают электрифицированным кормораздатчиком РС-5А по рельсовому пути. Корма к свинарнику доставляют мобильным транспортом и загружают в РС-5А наклонным транспортером. Навоз удаляют по 1 варианту транспортером ТС-1 из-под решетчатых полов каналов и самосплавом по 2 варианту.

ПЛАН (до реконструкции)

ВАРИАНТ 1 (после реконструкции)

Условные обозначения

 - рельсовый путь для кормораздатчика КС-0,4 (РС-5А)

 - навозоуборочный транспортер ТСН-3,0Б

1 - станок на 30 голов

2 - кормовой проход

3 - площадка для весов ВПС-500

4 - венткамера

5 - тамбур

6 - санузел

7 - служебное помещение для приема кормов

9 - подсобное помещение

10 - навозоприемник

ВАРИАНТ 2 (после реконструкции)

РЕКОНСТРУКЦИЯ СВИНОВОДЧЕСКОГО КОМПЛЕКСА НА 12 ТЫС. ГОЛОВ В ГОД С ЗАКОНЧЕННЫМ ПРОИЗВОДСТВЕННЫМ ЦИКЛОМ В КОЛХОЗЕ ИМ. КИРОВА АПОСТОЛОВСКОГО РАЙОНА ДНЕПРОПЕТРОВСКОЙ ОБЛ.

Существующий свиноводческий комплекс с законченным производственным циклом предназначен для воспроизводства, выращивания и откорма молодняка свиней до 120 кг живого веса.

Первая очередь реконструкции предусматривает переоборудование свинарников сектора откорма и строительство убойно-санитарного пункта, пожарного депо на два автомобиля, амбулатории, навозоприемников, навозохранилищ, сооружений и сетей электроснабжения, водоснабжения и канализации, теплоснабжения, устройство дорог с твердым покрытием, озеленение и ограждение территории.

В проекте приняты следующие решения:

содержание животных сектора откорма групповое в станках, безвыгульное;

раздача кормов с помощью кормораздатчиков КЭС-1,7;

уборка навоза с помощью транспортеров ТСН-2,0Б и ТС-1А в заглубленных каналах;

устройство приточной вентиляции, водопровода, электроосвещения.

Технико-экономические показатели

№ п/п

Наименование показателей

До реконструкции

После реконструкции

1

2

3

4

1.

Мощность (производительность) объекта, голов

10120

11750

2.

Вместимость, голов

5860

6260

3.

Привес на откорме, г

380

500

4.

Выход продукции в год в живом весе, ц

10200

14300

5.

Капиталовложения в реконструкцию, тыс. руб.

-

1717

6.

Остаточная балансовая стоимость зданий

283

-

 

общие капиталовложения

-

2000

6.

Удельные капиталовложения на единицу мощности, руб.

-

170,2

7.

То же, на единицу продукции (на 1 ц), руб.

-

140,0

8.

Количество работающих, чел.

32

27

9.

Число смен

1

1

10.

Затраты труда на 1 ц продукции, чел.-ч.

9,0

5,4

11.

Себестоимость 1 ц продукции, руб.

180,0

123,7

12.

Окупаемость капиталовложений, лет

 

4,5

Примечание. Сравнительно высокая продолжительность срока окупаемости объясняется высокими капиталовложениями на реконструкцию в связи с имевшим место низким уровнем механизации и благоустройства, а также инженерного оборудования на действующей ферме до ее реконструкции. Однако налицо тот случай, когда имеется действующее производство и сложившийся рабочий коллектив, а также сравнительно долговечные производственные здания. Поэтому реконструкция преследует главным образом, цель улучшения условий и снижения затрат труда, сохранения и некоторого развития производства.

РЕКОНСТРУКЦИЯ СВИНОВОДЧЕСКОГО КОМПЛЕКСА НА 12 ТЫС. ГОЛОВ В ГОД С ЗАКОНЧЕННЫМ ПРОИЗВОДСТВЕННЫМ ЦИКЛОМ В КОЛХОЗЕ ИМ. КИРОВА АПОСТОЛОВСКОГО РАЙОНА ДНЕПРОПЕТРОВСКОЙ ОБЛ.

СХЕМА ГЕНЕРАЛЬНОГО ПЛАНА

ЭКСПЛИКАЦИЯ

1. Свинарники-откормочники на 1200 свиней

2. Свинарники-откормочники на 660 свиней

3. Навозосборник № 1, № 2

4. Убойно-санитарный пункт

5. Навозохранилище № 1, № 2

6. Пожарное депо на 2 автомобиля

7. Маслосклад на 15 бочек

8. Площадка для мойки машин

9. Навес для сушки рукавов

10. Котельная

УСЛОВНЫЕ ОБОЗНАЧЕНИЯ

 - Проектируемые здания

 - Реконструируемые здания

 - Существующие здания (реконструируемые во вторую очередь)

СВИНАРНИК-ОТКОРМОЧНИК НА 1200 СВИНЕЙ

План

1 - 1

Свинарник-откормочник предназначен для содержания откормочного поголовья (молодняка в возрасте от 4 до 10 месяцев).

Здание свинарника состоит из помещения для содержания свиней и вспомогательных помещений, расположенных у торцевых стен. Содержание свиней - по 20 - 25 голов в групповых станках, безвыгульное.

Проектом предусмотрена механизация всех производственных процессов:

приготовление, транспортировка и раздача кормов;

поение животных;

удаление навоза;

ветобработка помещений и животных.

Для дозирования раздачи влажных кормовых смесей применены двухрядные кормораздатчики КЭС-1,7.

Поение животных осуществляется из одночашечных поилок ПСС-1, установленных над навозными каналами.

Удаление навоза в помещениях - скребковыми транспортерами ТСН-2,0Б, заглубленными в каналах и далее в поперечный транспортер ТС-1А. Дезинфекция и дезинсекция помещений производится мобильной установкой ДУК-2.

ЭКСПЛИКАЦИЯ ОБОРУДОВАНИЯ

1. Кормораздатчик электромобильный КЭС-1,7

2. Транспортер навозоуборочный ТСН-2,0Б

3. Весы платформенные передвижные РП-1г13(М)

4. Автопоилка одночашечная самоочищающаяся ПСС-1

5. Шнек загрузочный ШЭС-40М

СВИНОФЕРМА НА 12 ТЫС. ОТКОРМА СВИНЕЙ В ГОД В КОЛХОЗЕ «ДОБРОБУТ» ГОРОДНЯНСКОГО РАЙОНА ЧЕРНИГОВСКОЙ ОБЛ.

(ИЗМЕНЕНИЕ СПЕЦИАЛИЗАЦИИ)

В связи с приводившейся в колхозе «Добробут» специализацией было принято решение организовать свинооткормочную ферму мощностью на 12 тыс. откармливаемых свиней в год на базе двух освободившихся зданий, ранее использовавшихся для выращивания молодняка крупного рогатого скота. Поскольку имевшаяся в колхозе репродукторная ферма позволяет после некоторой реконструкции получить нужное количество подрощенного до веса 40 кг молодняка (поросят-отъемышей), проектом новой1) свинооткормочной фермы предусматривалось кроме переоборудования двух зданий для размещения 1200 единовременно откармливаемых свиней в каждом, дополнительное строительство еще одного откормочника на 2000 свиней, кормоцеха с зернохранилищем и корнеплодохранилищем, а также ряда требуемых НТП зданий и сооружений подсобно-производственного и вспомогательного назначения; расширение инженерных сетей, благоустройство и т.д.

1) В тех случаях, когда стоимость вновь возводимых при расширении зданий и сооружений в 3 - 4 и более раз превосходит остаточную (балансовую) стоимость существующих, такое расширение или реконструкцию с расширением (с изменением первоначального направления или без изменения) относят к новому строительству с использованием существующих фондов.

Проектом предусматривалось безвыгульное содержание свиней в групповых станках по 20 - 25 голов, раздача кормов стационарными кормораздатчиками РКС-3000, доставка кормов из кормоцеха к кормораздатчикам ленточным транспортером со скребковым сбрасывателем, удаление навоза из каналов, расположенных в пределах станков и перекрытых металлическими решетками, - с помощью продольных скребковых транспортеров и далее поперечным также скребковым транспортером в навозоприемник емкостью 100 м3, предназначенный для кратковременного хранения навоза с последующим его периодическим вывозом на поля для запахивания или в полевые хранилища для компостирования.

Блок хранилищ с кормоцехом предусматривает возможность хранения необходимого сезонного запаса корнеплодов и зерна, размола и измельчения их, смешения с силосом, термообработки кормосмеси, ее охлаждения для последующей подачи в свинарники на скармливание.

При разработке генерального плана предусмотрена возможность строительства во вторую очередь еще одного дополнительного свинарника на 2 тыс. свиней и цеха по приготовлению и хранению травяной муки.

Технико-экономические показатели

Выращено и откормлено за год, голов                              12900

Годовой выпуск продукции:

свинины в живом весе, тыс. ц                                       14,09

в ценах реализации, тыс. руб.                                       1969,2

Сметная стоимость строительства, тыс. руб.                   838,0

Себестоимость:

товарной продукции, тыс. руб.                                     1139,2

1 ц мяса (в живой массе), руб.                                      81,0

1 ц привеса руб.                                                              64,0

Количество работающих всего, чел.                                  33,0

в том числе рабочих основного производства            25,0

Затраты труда на 1 ц привеса, чел.-ч.                               6,16

Затраты кормов на 1 ц привеса, ц к. ед.                            6,4

Годовая прибыль, тыс. руб.                                                830,0

Уровень рентабельности, %                                               72,3

Срок окупаемости капитальных вложений

(с момента достижения проектной мощности), лет       1,03

СВИНАРНИК-ОТКОРМОЧНИК НА 660 ГОЛОВ

ПЛАН

ЭКСПЛИКАЦИЯ МАШИН И ОБОРУДОВАНИЯ

1. Кормораздатчик электромобильный КЭС-1,7

2. Транспортер скребковый навозоуборочный ТСН-2Б

3. Поилка для свиней ПСС-1

4. Весы платформенные передвижные РП-1Г-13

ЭКСПЛИКАЦИЯ ПОМЕЩЕНИЙ

(1) Помещение для содержания свиней

(2) Вытяжная камера

(3) Помещение для обслуживающего персонала

(4) Электрощитовая

(5) Инвентарная

(6) Кормоприемное отделение

(7) Санузел

(8) Тамбур

(9) Приточная венткамера

Свинарник предназначен для откорма 660 голов свиней в групповых станках по 20 голов. Норма станковой площади на 1 голову - 0,8 м2, ограждение станков - решетчатое, перегородки между станками - сплошные. В свинарнике предусмотрена механизация всех производственных процессов: приготовление и раздача корма, поение животных, удаление навоза, ветобработка помещений и животных.

Кормление животных осуществляется влажными кормосмесями. Для этой цели применены двухрядные кормораздатчики КЭС-1,7. Приготовленные корма с кормоцеха завозятся и выгружаются в приемный бункер. Из бункера выгрузным транспортером корм загружается в бункер кормораздатчика. Управление загрузкой кормораздатчика и включение его в работу осуществляется вручную оператором. Поение животных - из одночашечных поилок ПСС-1, установленных над навозными каналами.

Удаление навоза из помещения скребковым транспортером ТСН-2Б, заглубленным в каналах. Каналы перекрываются решетками. Навоз протаптывается через решетку, забирается скребковым транспортером и сбрасывается в поперечный транспортер ТС-1А. Затем навоз транспортируется к навозосборникам.

СВИНООТКОРМОЧНАЯ ФЕРМА НА 12 ТЫС. СВИНЕЙ В ГОД В КОЛХОЗЕ «ДОБРОБУТ» ГОРОДНЯНСКОГО РАЙОНА ЧЕРНИГОВСКОЙ ОБЛ. (изменение специализации)

СХЕМА ГЕНЕРАЛЬНОГО ПЛАНА

ЭКСПЛИКАЦИЯ

1. Свинарник-откормочник на 2000 голов

2. Свинарник-откормочник на 1200 голов

3. Кормораздаточная галерея

4. Ветпункт и амбулатория

5. Изолятор для свиней на 16 станков

6. Санбойня

7. Кормоцех с картофелехранилищем

8. Цех приготовления травяной муки

9. Склад выдержки готовой продукции

10. Зернохранилище

11. Ветсанпропускник на 30 чел.

12. Дом животновода

13. Котельная

14. Погрузочная рампа

15. Автовесы на 10 т

16. Силосные траншеи на 1000 т

17. Бурты корнеплодов

18. Пожарный резервуар на 100 м3

19. Навозоприемник емкостью 100 м3

УСЛОВНЫЕ ОБОЗНАЧЕНИЯ

 - существующие здания и сооружения

 - проектируемые здания

 - вторая очередь строительства

ПЛАН СВИНАРНИКА-ОТКОРМОЧНИКА НА 1200 ГОЛОВ ПОСЛЕ РЕКОНСТРУКЦИИ

ПЛАН

ЭКСПЛИКАЦИЯ ОБОРУДОВАНИЯ

1. Стационарный кормораздатчик РКС-3000

2. Транспортер ТСН-2 для транспортировки кормов по галерее

3. Продольный навозоуборочный транспортер ТС-1

4. Поперечный навозоуборочный транспортер ТС-1

БЛОКИРОВКА МОЛОЧНОГО БЛОКА ПРОИЗВОДИТЕЛЬНОСТЬЮ 6 Т МОЛОКА В СУТКИ С ЭЛЕКТРОКОТЕЛЬНОЙ

Московским институтом «Мосгипрониисельстрой» разработан молочный блок производительностью 6 т молока в сутки.

Молочный блок располагается между двумя коровниками по 200 коров, блокируя их. Он предназначен для обработки (главным образом для охлаждения) и кратковременного хранения молока. Охлажденное до 5 - 8 °C молоко сливается в танк и хранится в нем до отправки на молочный завод. В составе молочного блока одно из служебных помещений размером 4,5´4 м может быть использовано в качестве электрокотельной, в которой размещаются два электрокотла марки ЭП8-100 мощностью по 100 кВт и теплопроизводительностью по 86000 ккал/ч каждый, водяной подогреватель для системы горячего водоснабжения, шкафы управления и насосы, обеспечивающие работу котлов. Назначение котельной - обеспечение тепловых нужд молочного блока.

При привязке в районах с достаточным обеспечением электроэнергией, при наличии согласия энергоснабжающих органов на отпуск электроэнергии по свободному графику потребления, для нужд отопления и горячего водоснабжения молочного блока в помещении для хранения и ремонта молочного оборудования, которое в этом случае придется переместить в другое место, возможно разместить оборудование электрокотельной. Расположение оборудования и обвязка трубопроводов может быть выполнена по аналогии с решением, разработанным в институте «Мосгипрониисельстрой» При этом расход тепла по потребителям для районов с расчетной зимней температурой -30 °C составляет (ккал/ч):

на отопление молочного блока (т.п. 801-5-8)............................... 15650

на вентиляцию молочного блока (т.п. 801-5-8)............................ 14400

на горячее водоснабжение молочного блока (т.п. 801-5-3)........ 78600

на горячее водоснабжение двух коровников (санитарная обработка, коров перед доением) (т.п. 801-2-9)......................................................................... 18000

-------------------------

Итого                                       126650

в том числе на отопление и вентиляцию...................................... 80050

на горячее водоснабжение......................................... 96600

Дополнительные расходы тепла на горячее водоснабжение (не совпадающие с часом максимального потребления тепла (ккал/ч):

промывка бака И1-0БМ в молочном блоке................................... 10200

дезинфекция конструкций и оборудования машиной УДС........ 54000

1. Целесообразно предусмотреть возможность раздельной работы котлов: на нужды отопления и вентиляции и на нужды горячего водоснабжения, для чего следует запроектировать дополнительный контур питания водонагревателей греющей водой непосредственно от котлов, минуя распределительную гребенку. На обратном трубопроводе от водонагревателя к котлам следует установить циркуляционный центробежный насос ВК-1/16; Q = 3,6 м3/ч; H = 16 м вод. ст. с электродвигателем АОЛ2-22-4; N = 1,5 кВтЧ; n = 1400 об/мин.

Мощность одного из котлов, обеспечивающего нужды отопления и вентиляции, рекомендуется регулировать в процессе эксплуатации в соответствии с температурами наружного воздуха; температура подаваемого в систему теплоносителя в этом случае будет переменной. Другой котел, обеспечивающий нужды горячего водоснабжения может работать с постоянной температурой теплоносителя до 95 °C.

2. Диаметр трубопровода горячей, воды 65 °C от водонагревателя к потребителям следует принять 82 мм.

3. В проектах коровников (т.п. 801-2-8, 801-2-9) при возможности организации электротеплоснабжения для целей отопления и вентиляции, для приточных систем П-1 и П-2 взамен калориферов КВБ 7-П следует предусмотреть установку элекрокалориферов СФО-100/1 Т-МО1 мощностью по 90 кВт. Из общего количества воздуха 10400 м3/ч, подаваемого каждой приточной системой через электрокалориферы в соответствии с их технической характеристикой, должны проходить 6000 м3/ч, остальные 4400 м3/ч пропускаются через обводной канал. Указанная регулировка осуществляется при наладке систем при помощи предусмотренных в типовом проекте воздушных заслонок (листы ОВ-6, ОВ-7, марки п. 1.5, П 2,5).

4. В проектах коровников для систем П-3 взамен отопительно-вентиляционного агрегата АПВС 70-40 следует предусмотреть установку электрокалориферного агрегата СФОЦ-25/0,5-И1 по ТУ 16-531.669-79 установленной мощностью 23,6 кВт, в том числе электрокалорифера 22,5 кВт.

БЛОКИРОВКА МОЛОЧНОГО БЛОКА ПРОИЗВОДИТЕЛЬНОСТЬЮ 6 Т МОЛОКА В СУТКИ С ЭЛЕКТРОКОТЕЛЬНОЙ

ЭКСПЛИКАЦИЯ ЗДАНИЙ

1. Коровник на 200 коров привязного содержания

2. Молочный блок производительностью 6 т молока в сутки

ПЛАН

ЭКСПЛИКАЦИЯ ОБОРУДОВАНИЯ

1. Котлы водогрейные ЭП8-100 (N = 100 кВт)

2. Бак круглый Æ 530 мм, L = 12 м

3. Водяной подогреватель системы горячего водоснабжения

4. Центробежные насосы 1,5 к-в/19 с - электродвигателем АОЛ2-21-2

5. Ручной насос БКФ-2м

6. Шкафы управления

7. Грязевик Ду = 50

8. Распределительная гребенка

ЭКСПЛИКАЦИЯ ПОМЕЩЕНИЙ

(1) Молочная

(2) Лаборатория молочной

(3) Моечная

(4) Вакуумнасосная

(5) Компрессорная

(6) Пункт технического обслуживания

(7) Красный уголок

(8) Лаборатория пункта искусственного осеменения

(9) Санкабина

(10) Раздевалка

(11) Электрокотельная (служебное помещение)

(12) Комната ветврача

(13) Электрощитовая

(14) Коридор

(15) Тамбур

(16) Моечная пункта искусственного осеменения

ЭЛЕКТРОКОТЕЛЬНАЯ ДЛЯ МОЛОЧНОЙ ФЕРМЫ НА 400 КОРОВ

Проект электрокотельной для теплоснабжения молочной фермы на 400 коров с выращиванием телят до 6-месячного возраста разработан институтом «Белагропроект».

Встроенная электрокотельная размещается в одном из помещений корнеплодохранилища молочной фермы. Схемой электротеплоснабжения предусмотрен режим работы с аккумуляцией тепла в ночное время. Все технологическое оборудование электрокотельной (за исключением выносных баков-аккумуляторов по 50 м3 емкостью каждый) размещается в выделенном для этой цели помещении. Тепловая энергия аккумулируется водой. Время аккумуляции - 7 ч. Режим работы - автоматический (автоматическое включение электрокотлов на время минимальной нагрузки энергосистемы и автоматическое отключение по истечении установленного времени). Кроме того, процесс аккумуляции заканчивается автоматически по достижении температуры воды в баках-аккумуляторах в 95 °C.

ТЕХНИКО-ЭКОНОМИЧЕСКИЕ ПОКАЗАТЕЛИ

Производительность котельной, Гкал/ч........................................................... 0,126

Производительность котельной в аккумуляционном режиме, Гкал/ч.......... 0,432

Годовое число часов использования установленной мощности, ч................ 4464

Годовая выработка тепла, Гкал/год.................................................................. 476

Себестоимость отпускаемого тепла, руб/Гкал................................................ 16,8

Годовой расход электроэнергии, тыс. кВт.ч.................................................... 518

Установленная мощность электроприемников, кВт....................................... 516

в том числе электронагреватели....................................................................... 500

силовые и электроосвещение............................................................................. 16

Количество смен работы в сутки....................................................................... 3

Общее количество работающих, чел................................................................. 0,8

Расход воды, м3/сут............................................................................................. 12,0

Расход тепла (на отопление помещения), ккал/ч............................................ 1400

Потребная мощность электроэнергии, кВт...................................................... 508

ЭЛЕКТРОКОТЕЛЬНАЯ ДЛЯ МОЛОЧНОЙ ФЕРМЫ НА 400 КОРОВ

ПЛАН НА ОТМ. 0.000

ЭКСПЛИКАЦИЯ ОБОРУДОВАНИЯ

Поз.

Наименование

Количество

К1

Электроводонагреватель ЭП3-100И2

5

К2

Водоводяной подогреватель

1

К3

Бак аккумуляторный V = 50 м3

2

К4

Циркуляционные насосы

2

К5

Насосы сетевые

2

К6

Насосы горячего водоснабжения

2

К7

Бак горячего водоснабжения

1

К8

Бачок регулятор уровня

1

К9

Грязевик

1

К10

Противонакипное устройство магнитного типа

1

К11

Щит электроводонагревателей

5

К12

Щит автоматизации

1

К13

Электрораспределительный щит

1

ЭЛЕКТРОКОТЕЛЬНАЯ КОМПЛЕКСА ПО ВЫРАЩИВАНИЮ И ОТКОРМУ 12 ТЫС. СВИНЕЙ В ГОД

ПЛАН

ОСНОВНЫЕ ТЕХНИКО-ЭКОНОМИЧЕСКИЕ ПОКАЗАТЕЛИ

Количество и установленная мощность электродных котлов, МВт.............. 2´10

Номинальное напряжение, кВ........................................................................... 10

Теплопроизводительность (с учетом регулировки котлов по тепловой нагрузке объекта), Гкал/ч....................................................................................................... 8,6

Количество и емкость теплоаккумуляторов, м3............................................... 2´2000

Режим работы котлов, ч..................................................................................... 23-06

Годовой отпуск тепла ГДж................................................................................ 54194

Годовой расход электроэнергии, МВт · ч......................................................... 15699

СПЕЦИФИКАЦИЯ ОБОРУДОВАНИЯ

№ п/п

Обозначение

Наименование

Кол-во

1

КЭВ-1000/10

Электродный водогрейный котел N = 10,0 МВт, Q = 8/6 Гкал/ч U = 10,0 кВт

2

2

БСН-180/325

Блок сетевых насосов контура аккумуляции Q = 180 - 325 м3/ч, H = 80 ÷ 64; мм. в. ст. (784 ÷ 628 Ра), состоящий из:

 

D-320-70

насоса Q = 180 - 325 м3/ч, H = 80 ÷ 64; мм. в. ст. (784 ÷ 628 Ра)

2

АО2-92-2

N = 100 кВт; n = 2940 об/мин.;

 

 

опорной рамы и

1

трубопроводной арматуры

1

3

4К-90/55

Сетевой насос

Q = 61 ÷ 104 м3/ч; H = 49 ÷ 36 мм. в. cт. (420 - 358 Ра); N = 117 кВт; n = 2900 об/мин.

 

 

АО2-62-2 Дк = 200 мм

 

4

ЗК-45/30 АО2-42-2

Сетевой насос узла горячего водоснабжения Q = 30 ÷ 54 м3/ч; H = 84,8 ÷ 27 мм. в.cт.; N = 7,5 кВт; n = 2900 об/мин.

 

5

1,5К-8/19 АОЛ2-21-2

Циркуляционный насос горячего, водоснабжения Q = 6 - 14 м3/ч; H = 20,3 ÷ 14 мм. в. cт. (199 - 137 Ра); N = 1,5 кВт; n = 2900 об/мин.

 

6

-

Блок подогревателей горячей воды Q = 1,5 Гкал/ч, состоящий из:

1

СТД-3071 № 4

емкостного подогревателя 4 м3 объем, 4,78 м2 обогреваемой поверхности

1

2-10 ОСТ 34-588-68

Водо-водяного подогревателя 2´6,9 - 13,8 м2

1

-

Рама водоподогревателя

1

7

Т30.01

Грязевик

1

Проект электрокотельной комплекса по выращиванию и откорму 12 тыс. свиней в год межхозяйственного предприятия Эйгирд-Тельшяйского района Литовской ССР разработан институтом проектирования промышленного строительства Литовской ССР и поэтому применяется для других объектов республики.

ПРИМЕРЫ УСИЛЕНИЯ ЖЕЛЕЗОБЕТОННЫХ КОНСТРУКЦИЙ

VI

VII

VIII

1 - 1

IX. Усиление балок способом                                X. Усиление железобетонных колонн

наращивания

XI. Усиление опорного узла фермы

3 - 3

4 - 4

ПРИМЕРЫ УСИЛЕНИЯ МЕТАЛЛИЧЕСКИХ КОНСТРУКЦИЙ

ДЕФЕКТЫ И ПОВРЕЖДЕНИЯ СТАЛЬНЫХ СТРОИТЕЛЬНЫХ КОНСТРУКЦИЙ

Отклонением повреждение

Эскиз

Допускаемые отклонения

I. Сварные соединения

Трещины в швах или в околошовной зоне

Не допускаются

Неполномерность шва при ручной и полуавтоматической сварке

-

Необходимость устранения дефекта проверяется расчетом

Подрезы основного металла, непровары в корне и по сечению шва, шлаковые включения, поры и т.д.

-

Дефекты должны быть устранены, если они явились причиной возникновения трещин в швах данной или аналогичной конструкции

Резкие переходы от основного к наплавленному металлу; наплывы, натеки сужения, кратеры и перерывы швов

-

Не допускаются

II. Болтовые соединения

Отсутствие болта или проворачивание от руки (кроме монтажных болтов)

-

Не допускаются

Дрожание или перемещение болта под ударами, контрольного молотка весом 300 - 400 г, перекос болта (кроме монтажных болтов)

 

 

III. Элементы конструкций

Трещины в основном металле элементов конструкций

-

Не допускается

Искривление элементов решетчатых конструкций

Необходимость устранения повреждения устанавливается расчетом

Стрела прогиба между точками закрепления участков сжатого пояса из плоскости фермы, ригеля или балки

f £ I/750, но не более 15 мм

Винтообразность элементов, перекос и грибовидность полок балок

-

Повреждения устраняются в случаях, когда препятствуют нормальной эксплуатации конструкции, нарушают опирание и примыкание других элементов

Выпучивание стенки сплошной балки

a £ 0,003

Местные погнутости (вмятины)

Необходимость устранения устанавливается расчетом, при этом учитывается только неповрежденная часть сечения

Погнутость узловых фасонок:

а) в случае примыкания сжатого элемента с напряжением в нем более половины расчетного сопротивления;

б) в остальных случаях

Следует учитывать если: а) tga ³ 0,1

б) tga ³ 0,2

Отклонение ферм от вертикальной плоскости

а) на опоре;

б) в середине пролета

Усилить если:

а) a > 10 мм

б) a > 15 мм

IV. Взаимное расположение конструкций

Отклонения отметок опорных узлов ферм и ригелей

a £ ± 20 мм

Отклонение расстояний между осями ферм по верхнему поясу

a - b £ ± 15 мм

ПРИМЕРЫ УСИЛЕНИЯ ДЕРЕВЯННЫХ КОНСТРУКЦИЙ

Усиление клееных элементов треугольной металлодеревянной арки прерывистой обшивкой листами фанеры и стяжными болтами

Усиление клееных элементов треугольной металлодеревянной арки хомутами из стали при одновременном изменении схемы работы этих элементов

ПРИМЕРЫ УСИЛЕНИЯ ДЕРЕВЯННЫХ КОНСТРУКЦИЙ

Усиление простой балки превращением ее в шпренгельную

Усиление балок в середине пролета

Усиление разорванной деревянной стойки стальными тяжами

ПРИМЕРЫ УСИЛЕНИЯ КИРПИЧНЫХ СТЕН И ГЕРМЕТИЗАЦИЯ СТЕН ИЗ КРУПНОПАНЕЛЬНЫХ ЭЛЕМЕНТОВ

Заделка трещин в стенах

Уплотнение простенков

А) металлической обоймой

Примеры усиления перемычек

А) подвесками на болтах с                         Б) уменьшением пролета перемычки

закреплением к металлическим                     или установкой двутавровых балок

уголкам сваркой

Б) ЖЕЛЕЗОБЕТОННОЙ ОБОЙМОЙ

УТЕПЛЕНИЕ ОГРАЖДАЮЩИХ КОНСТРУКЦИЙ ЖИВОТНОВОДЧЕСКИХ ПОМЕЩЕНИЙ

Утепление керамзито-бетонных стен

Утепление кирпичных стен

Утепление пристенного участка пола

ВАРИАНТЫ УТЕПЛЕНИЯ ПОКРЫТИЯ СТЕН И ПОТОЛКА

Поперечник здания

Утепление стены

Фрагмент поперечника

 

СОДЕРЖАНИЕ

Введение. 1

I. Предпроектные работы.. 2

1. Инженерные обследования. 3

2. Экономические обследования. 4

3. Технико-экономические расчеты (тэр) 8

4. Задание на проектирование. 9

Ii. Проектирование. 10

1. Принципы разработки (совершенствования) генерального плана реконструируемых ферм.. 10

2. Технология производства. 12

3. Особенности строительных решений при реконструкции зданий животноводческих ферм.. 15

4. Механизация производственных процессов. 25

5. Электроснабжение и электрооборудование. 40

6. Автоматизация технологических процессов. 43

7. Теплоснабжение, отопление и вентиляция. 61

8. Водоснабжение и канализация. 64

9. Удаление, хранение, обработка и использование навоза и навозных стоков. 67

10. Реконструкция сооружений по переработке и хранению кормов. 72

11. Оценка экономической эффективности и технико-экономические показатели. 82

12. Состав проектно-сметной документации на реконструкцию.. 85

Приложение. Определение понятий нового строительства, расширения, реконструкции и технического перевооружения объектов отрасли «сельское хозяйство». 88

Примеры проектных решений. 91

 

 



© 2013 Ёшкин Кот :-)