Информационная система
«Ёшкин Кот»

XXXecatmenu

Государственный
научно-проектный институт
учебно-воспитательных,
торгово-бытовых и досуговых зданий

(Институт общественных зданий) Минстрой России

Справочное пособие к СНиП

Серия основана в 1989 году

Проектирование детских
дошкольных учреждений

Москва Стройиздат 1992

Рекомендовано к изданию секцией Научно-технического совета Института общественных зданий Минстроя России (бывший ЦНИИЭП учебных зданий Госкомархитектуры).

Редактор Л.М. Климова

Проектирование детских дошкольных учреждений / Государственный научно-проектный институт учебно-воспитательных, торгово-бытовых и досуговых зданий. - М.: Стройиздат, 1992. - 203 с: ил. - (Справ пособие к СНиПу).

Разработано к СНиП 2.08.02-89 «Общественные здания и сооружения». Изложены основные планировочные и объемно-планировочные требования и положения к проектированию детских яслей-садов, комплексов дошкольных учреждений, помещений для групп кратковременного пребывания дошкольников при жилых домах. Даны примеры архитектурного решения.

Для инженерно-технических работников проектных и строительных организаций.

Предисловие

Детские дошкольные учреждения являются наиболее массовыми объектами гражданского строительства, проектирование и строительство которых тесным образом связано с реализацией жилищной программы и перестройкой системы народного образования, а также с социальной сферой жизнедеятельности населения. Особо важную роль при проектировании следует отводить влиянию архитектурной среды на формирование личности ребенка, исключение отрицательных воздействий монотонного однообразия на его психологию. На современном этапе при сокращении «безадресного» проектирования типовых зданий необходим более тщательный учет региональных природно-климатических и национальных особенностей, специфики социальных потребностей населения, особенностей демографии. Проекты зданий должны отвечать задачам гуманизации жилой среды, высоким архитектурно-художественным и эстетическим требованиям. В дополнение к настоящему Пособию будут разработаны Нормали основных планировочных элементов зданий детских дошкольных учреждений, содержащие функционально-габаритные схемы с оборудованием всех помещений зданий дошкольных учреждений общего типа и специализированных.

Разработано ЦНИИЭП учебных зданий (канд. архит. Н.Н. Щетинина - руководитель темы: архитекторы О.А. Барханова, Т.В. Воеводина, Т.Г. Дунаева, Е.Н. Зайченко, М.В. Каливкина, Е.М. Макотинская, Э.П. Мельникова, А.С. Папок, Е.А. Тихонова, М.Н. Тюричева; инженеры В.А. Белов, В.С. Вольман, Т.И. Галактионова, Л.Е. Герке, В.Г. Дубовой, С.П. Соловьев, А.А. Розенберг, Г.Л. Якубович; техник Л.Н. Соловьева); использованы материалы ЛенЗНИИЭП, КиевЗНИИЭП КНИИПИАТ (НРБ), ИВГ (ГДР), ЦОБПБО (ЛНР).

1. ОБЩИЕ ПОЛОЖЕНИЯ

1.1. В дошкольных учреждениях дети получают физическое, интеллектуальное, нравственное, трудовое и эстетическое воспитание в соответствии с их возрастными и индивидуальными особенностями, а также необходимые для их возраста знания и умения.

1.2. Сеть дошкольных учреждений формируется из детских дошкольных учреждений общего типа.

Классификация детских дошкольных учреждений представлена в табл. 1.

1.3. Возрастные группы детей в детских дошкольных учреждениях и количество детей в группах должно приниматься по действующему на данных период Положению о соответствующем дошкольном учреждении или по табл. 2.

Количество и соотношение разных возрастных групп в здании следует определять по демографическим данным региона строительства.

Таблица 1

№ п.п.

Тип дошкольного учреждения

Назначение

Режим работы

Группы

Возраст, лет

Место размещения здания дошкольного учреждения

Общего типа:

1

детский ясли-сады

Для детей с нормальным физическим и умственным развитием

Дневной (круглосуточный)

Ясельные

От 1 года до 3 лет

Микрорайон; поселок городского типа; сельский населенный пункт

Дошкольные

От 3 до 6 лет

То же

2

детские сады

То же

Тоже

«

То же

»

3

комплексы дошкольных учреждений

Для детей с нормальным физическим и умственным развитием

Дневной (круглосуточный)

Ясельные

От 1 года до 3 лет

Микрорайон; поселок городского типа; сельский населенный пункт

То же

Дошкольные

От 3 лет до 6 лет

То же

Специализированные для детей с нарушением:

4

слуха

Для глухих и слабослышащих детей

Круглосуточный

Ясельные

От 2 до 3 лет

Селитебная зона

То же

«

Дошкольные

От 3 до 6 лет

Зеленая зона

Для глухих и слабослышащих детей

Круглосуточный

Подготовительные

От 6 до 7 лет

Города

5

зрения

Для слабовидящих (с остротой центрального зрения от 0 до 0,4), с косоглазием и амблиопией

Круглосуточный

Подготовительные

От 6 до 7 лет

Города

6

опорно-двигательного аппарата

Для детей с нарушением функций опорно-двигательного аппарата, с нормальным интеллектом или вторичной задержкой психического и речевого развития

«

«

«

«

7

интеллекта

Для умственно отсталых детей - олигофренов степени дебильности

Круглосуточный

Дошкольные

От 3 до 6 лет

Селитебная зона

Подготовительные

От 6 до 7 лет

Зеленая зона города

8

речи (логопедические)

Для умственно отсталых детей - олигофренов в степени дебильности

Круглосуточный

Ясельные

От 2 до 3 лет

То же

То же

«

Дошкольные

От 3 до 6 лет

»

«

«

Подготовительные

От 6 до 7 лет

»

9

Санаторно-оздоровительные

Для ослабленных детей, страдающих различными хроническими заболеваниями или предрасположенных к ним

Круглогодичный или круглосуточный

Ясельные

От 1 до 3 лет

Загородная зона или хорошо озелененная территория города, удаленная от источников шума и загрязнения воздуха, в удобной доступности от городского транспорта

То же

То же

Дошкольные

От 3 до 6 лет

«

«

Подготовительные

От 6 до 7 лет

Для детей с ранним проявлением туберкулезной инфекции, заболеванием органов дыхания, изменением сердечно-сосудистой системы, сколиозами I - II степени и нарушением осанки

Круглогодичный или круглосуточный

Подготовительные

От 6 до 7 лет

То же

10

Загородные дачи

Для летнего отдыха и оздоровления дошкольников

Круглосуточный сезонный (возможно круглогодичное ядро)

Ясельные

От 2 до 3 лет

Пригородная зона

Дошкольные

От 3 до 6 лет

То же

Для летнего отдыха и оздоровления дошкольников

Круглосуточный сезонный (возможно круглогодичное ядро)

11

Группы кратковременного пребывания детей

Для присмотра за детьми, чьи родители работают неполный рабочий день

Дневной (4 - 5 ч)

Ясельные

От 1 до 3 лет

При жилом доме

То же

Дошкольные

От 3 до 6 лет

То же

12

Дома ребенка

Воспитание детей, оставшихся без попечения родителей

Круглогодичные

Ясельные

С рождения до 3 лет

В зеленой зоне города

13

Детские дома

То же

«

Дошкольные

С 3 до 6 - 7 лет

То же

Таблица 2

Группы

Возраст детей, лет

Вместимость групп, мест

детских дошкольных учреждений общего типа

специализированных дошкольных учреждений

санаторно-оздоровительных дошкольных учреждений

кратковременного пребывания детей

существующее

рекомендуемое

существующее

рекомендуемое

существующее

рекомендуемое

существующее

рекомендуемое

Ясельные:

2-я раннего возраста

1 - 2

20

15

15

10

-

-

-

-

1-я младшая

2 - 3

20

15

15

10

15

10

10

5

Дошкольные:

2-я младшая

3 - 4

25

20

15

10

20

12

15

7 - 8

средняя

4 - 5

25

20

15

10

20

12

15

7 - 8

старшая

5 - 6

25

20

15

10

20

12

15

7 - 8

подготовительная

6 - 7

-

-

15

10

20

12

15

7 - 8

1.4. Наиболее массовыми типами дошкольных учреждений являются детские ясли-сады. Их максимальная вместимость не рекомендуется более 14 групп или 350 мест.

Для выбора объектов массового строительства рекомендуется пользоваться табл. 3.

Учитывая перспективную тенденцию сокращения групп детей ясельного возраста и особенно 2-й группы раннего возраста, рекомендуется предусматривать проекты детских садов с помещениями групповых ячеек для детей дошкольного возраста, которые могут использоваться при необходимости для размещения ясельных групп.

1.5. Обучение детей шестилетнего возраста, особенно с ослабленным здоровьем, может организовываться на базе детских дошкольных учреждений. В этом случае в дошкольном учреждении может предусматриваться 1 - 2 первых класса с численностью групп 25 человек.

1.6. Комплексы детских дошкольных учреждений создаются с целью более рациональной организации воспитательных и административно-хозяйственных функций в учреждении, получения разнообразных архитектурно-композиционных решений жилой застройки, более эффективного использования территории.

Комплексы дошкольных учреждений следует проектировать на основе централизации пищеблока, постирочной, служебно-бытовых, медицинских помещений, а также помещений для физкультурных и музыкальных занятий детей.

Таблица 3

№ п.п.

Тип зданий

Вместимость, мест

Количество детей в группах, чел.

ясельных

дошкольных

2-я раннего возраста

1-я младшая

2-я младшая

средняя

старшая

Детские ясли-сады:

1

на 2 группы

45

-

20

-

25

-

2

«  4       «

95

-

20

25

25

25

3

«  6       «

140

20

20

25

25

50 (25 ´ 2)

4

«  8       «

190

20

20

50 (25 ´ 2)

50 (25 ´ 2)

50 (25 ´ 2)

5

на 12 групп

280

40 (20 ´ 2)

40 (20 ´ 2)

50 (25 ´ 2)

75 (25 ´ 3)

75 (25 ´ 3)

6

«  14     «

330

40 (20 ´ 2)

40 (20 ´ 2)

75 (25 ´ 3)

75 (25 ´ 3)

100 (25 ´ 4)

Эффект, получающийся от кооперации пищеблока и постирочной на несколько дошкольных учреждений, позволяет включить в состав комплексов дополнительные общевоспитательные помещения (плавательный бассейн, залы для занятий).

Вместимость и структура комплекса дошкольных учреждений должна определяться заданием на проектирование по согласованию с органами просвещения и здравоохранения.

1.7. Создание комплексов наиболее целесообразно при средней и высокой плотности жилой застройки, когда происходит сокращение селитебной территории и парное размещение дошкольных учреждений.

Комплексы детских дошкольных учреждений принципиально могут решаться по трем вариантам:

в виде нескольких отдельно стоящих или соединенных переходом зданий (корпусов) с групповыми ячейками для детей разных возрастов (ясельных и дошкольных) и блоком зальных и административно-хозяйственных помещений (рис. 1);

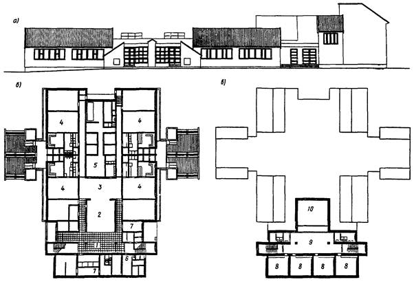
в виде одного здания блочной структуры, объединяющего центральным блоком с залами и административно-хозяйственными помещениями два учреждения по 8, 10, 12 или 14 групп (рис. 2);

в виде взаимосвязанной системы дошкольных учреждений на весь микрорайон, в которую входят центр дошкольного воспитания, встроенные или пристроенные к жилым домам помещения групповых отделений для ясельных детей, оздоровительных дошкольных групп, помещений кратковременного пребывания детей и предприятие централизованного обслуживания (рис. 3).

Рис. 1. Схема организации комплексов дошкольных учреждений (ЦНИИЭП учебных зданий)

а - в виде отдельно стоящих зданий; б - в виде корпусов, соединенных переходом; 1 - корпус ясельных групп; 2 - корпус групп детского сада; 3 - служебно-бытовое здание

Описание: 12

Рис. 2. Схема организации комплексов дошкольных учреждений в одном здании (ЦНИИЭП учебных зданий)

а - комплекс на 480 мест (10 + 10 групп); б - комплекс на 660 мест (14 + 14 групп); 1 - блок ясельных групп; 2 - блок групп детского сада; 3 - блок служебно-бытовых помещений, для занятий, бассейна

Рис. 3. Схема организации комплексов дошкольного воспитания в микрорайоне (ЦНИИЭП учебных зданий)

1 - встроенные в жилой дом помещения ясельных групп; 2 - пристроенные к торцам жилого дома помещения дошкольных групп (специализированного профиля); 3 - центр дошкольного воспитания с помещениями групп детского сада; 4 - предприятие централизованного обслуживания; 5 - помещения для групп кратковременного присмотра за дошкольниками; 6 - школа

Рис. 4. Кооперированное здание яслей-сада на 50 мест с малокомплектной школой на 108 учащихся (конкурсный проект, архит. А. Папок).

а - аксонометрия; б - план 1-го этажа; в - план 2-го этажа; 1 - блок помещений яслей-сада; 2 - помещения младших классов 3 - мастерские; 4 - спортзал; 5 - столовая; 6 - пищеблок; 7 - кабинеты старших классов; 8 - медицинские помещения; 9 - административные помещения; 10 - библиотека

Рис. 5. Кооперированное здание яслей-сада на 95 мест с начальной школой на 40 учащихся (Эстонская ССР, пос. Янеда)

а - фасад; б - план 1-го этажа; в - план 2-го этажа; 1 - вестибюль; 2 - физкультурный зал; 3 - столовая; 4 - групповые ячейки яслей-сада; 5 - пищеблок; 6 - медицинские помещения; 7 - административные помещения; 8 - классные помещения; 9 - рекреация; 10 - второй свет физкультурного зала

1.8. В первом варианте рекомендуется в отдельно стоящих зданиях размещать раздельно ясельные и дошкольные группы при вместимости зданий с ясельными группами - не более 100 мест; зданий с дошкольными группами - не более 200 мест. В зависимости от климатических условий здания с групповыми ячейками могут соединяться отапливаемыми переходами с административно-хозяйственным блоком. Зальные помещения могут размещаться как в зданиях с дошкольными группами, так и в блоке административно-хозяйственных помещений.

1.9. Во втором варианте возможны модификации, когда, по существу, два самостоятельных здания объединяет только блок служебно-бытовых помещений с пищеблоком и постирочной или с помещениями для занятий - прежде всего, залов для музыкальных и гимнастических занятий, плавательного бассейна.

1.10. Третий вариант строится на принципе максимальной централизации общих помещений для занятий физкультурой, музыкой, изобразительным творчеством в дошкольном центре; процессов приготовления пищи и стирки белья в предприятии централизованного обслуживания; децентрализации, интеграции с жильем помещений детских групп, особенно ясельных и младших дошкольных.

1.11. Детские дошкольные учреждения вместимостью менее 140 мест рекомендуется проектировать главным образом для сельских населенных пунктов и поселков городского типа.

В сельских населенных пунктах может предусматриваться сезонное увеличение вместимости учреждений, объединение детских дошкольных учреждений общего типа с начальными или малокомплектными школами, а также с жильем для персонала при вместимости дошкольного учреждения менее 25 мест.

1.12. В сельских населенных пунктах с числом жителей менее 500 человек рекомендуется применение кооперированных типов учебно-воспитательных зданий «школа - детский сад» (рис. 4, 5).

Возможные варианты кооперации представлены в табл. 4.

1.13. Для малых и отдаленных деревень рекомендуется совмещение детского сада на 12 мест с жилым домом усадебного типа, в котором размещается квартира обслуживающего персонала. При этом возможно квартиру обслуживающего персонала размещать в мансарде (рис. 6) или блокировать с помещениями детского сада (рис. 7).

1.14. В сельской местности рекомендуется строить, как правило, стационарные дошкольные учреждения, рассчитанные на полное удовлетворение потребности в местах. Однако там, где имеют место ярко выраженные сезонные колебания потребности, в зависимости от характера сельскохозяйственного производства сезонное увеличение вместимости рекомендуется производить за счет строительства летних павильонов, в которых размещаются только помещения групповых ячеек. При этом суммарная вместимость павильонов не должна превышать 50 % вместимости основного здания.

Общее количество мест и комплектация групп в летних павильонах могут быть приняты по табл. 5.

1.15. Возможная организация сезонного расширения за счет использования в летнее время помещений террас, а также мансард на втором этаже. В период летних полевых работ каждая групповая ячейка может быть разделена на две. Зимой мансарды и террасы используются как игровые пространства (рис. 8).

Рис. 6. Детский сад, совмещенный с квартирой для обслуживающего персонала, размещенной в мансарде (МосгипроНИИсельстрой)

а - фасад; б - план первого этажа; в - план мансарды; помещения детского сада: 1 - приемная; 2 - спальня; 3 - игральня-столовая; 4 - кухня; 5 - постирочная; 6 - туалетная; помещения жилого дома: 7 - прихожая; 8 - кухня; 9 - общая комната; 10 - спальня; 11 - санузел; 12 - веранда

Рис. 7. Детский сад, сблокированный с жильем для обслуживающего персонала (МосгипроНИИсельстрой)

а - фасад; б - план; помещения детского сада: 1 - приемная; 2 - игральня-столовая; 3 - спальня; 4 - веранда 5 - кухня; 6 - постирочная; 7 - изолятор; 8 - туалет; помещения жилого дома: 9 - вход в жилой дом; 10 - кухня; 11 - общая комната; 12 - спальня; 13 - санузел

Описание: Untitled-1 copy

Рис. 8. Ясли-сад на 140 мест с сезонным расширением, конкурсный проект, архитекторы С. Новоселов, Е. Смирнова

а - фасад; б - план первого этажа; в - план мансарды;

1 - помещения групп ясельного возраста; 2 - помещения групп дошкольного возраста; 3 - зал для гимнастических и музыкальных занятий; 4 - бассейн; 5 - кухня; 6 - постирочная; 7 - помещения администрации; 8 - медицинские помещения; 9 - летние спальные веранды ясельных групп; 10 - летние спальные веранды дошкольных групп

1.16. Специализированные дошкольные учреждения предназначены для воспитания детей с недостатками физического и умственного развития (с нарушением слуха, зрения, опорно-двигательного аппарата, интеллекта). В этих учреждениях наряду с общественным дошкольным воспитанием дети получают раннюю коррекцию дефекта, что преодолевать в школьном возрасте бывает уже чрезвычайно трудно.

Специализированные дошкольные учреждения для детей с нарушениями физического и умственного развития относятся к органам просвещения и образования. Основными направлениями их работы является: психолого-педагогическая диагностика, коррекция и компенсация развития, подготовка детей к дальнейшему обучению в общеобразовательной или специальной школе.

1.17. Специализированные дошкольные учреждения подразделяются на пять профилей (см. табл. 1).

Ввиду относительно небольшой потребности в зданиях каждого профиля рекомендуется проектирование универсальных зданий, в которых возможно размещение учреждения необходимого профиля, а также совмещение разных профилей в зависимости от конкретной потребности.

Максимальная вместимость специализированного дошкольного учреждения может быть не более 8 групп - 120 мест в одном здании.

1.18. При проектировании специализированных дошкольных учреждений рекомендуется их вместимость и комплектацию принимать в соответствии с табл. 6.

Допускается также предусматривать дошкольные отделения в школах-интернатах соответствующего профиля.

1.19. Группы кратковременного пребывания дошкольников являются новой формой обслуживания и предназначаются для 4-х часового пребывания детей, родители которых заняты неполный рабочий день. Эти группы предполагают в основном кооперативные формы обслуживания, рекомендуются в молодежных жилых комплексах, районах-новостройках, имеющих повышенную потребность в дошкольных учреждениях. Помещения для таких групп должны размещаться в первых этажах жилых домов.

Таблица 4

Тип здания

Количество детей

в группах дошкольного учреждения

в классах

школы

1. Ясли-сад на 25 мест с начальной школой на 20 учащихся

25*

20

-

2. Ясли-сад на 25 мест с начальной школой на 40 учащихся

25*

40 (20 ´ 2)

-

3. Детский сад на 50 мест с начальной школой на 80 учащихся

50 (25 ´ 2)

80 (20 ´ 4)

-

4. Детский сад на 50 мест с малокомплектной школой на 108 учащихся

50 (25 ´ 2)

24 (12 ´ 2)

84 (12 ´ 7)

* В дошкольных учреждениях на одну группу допускается две подгруппы: ясельная на 10 мест, дошкольная на 15.

Таблица 5

Вместимость

Количество детей в группах, размещаемых в павильонах

основного здания

павильонов

ясельные

дошкольные

190

90

40 (2 ´ 20)

50 (2 ´ 25)

140

70

20

50 (2 ´ 25)

95

45

20

25

50

25

-

25*

* В павильонах на одну группу допускается две подгруппы: ясельная на 10 мест, дошкольная на 15.

Таблица 6

№ пп.

Вместимость специализированного дошкольного учреждения, мест

Количество детей в группах

ясельных

дошкольных

1-я младшая

2-я младшая

средняя

старшая

подготовительная

1

На 4 группы - 60

-

15

15

15

15

2

На 8 групп - 120 с нарушением: слуха, зрения, опорно-двигательного аппарата, речи и интеллекта

15

15

30 (15 ´ 2)

30 (15 ´ 2)

30 (15 ´ 2)

3

-

30 (15 ´ 2)

30 (15 ´ 2)

30 (15 ´ 2)

30 (15 ´ 2)

2. ГЕНЕРАЛЬНЫЕ ПЛАНЫ

2.1. Земельный участок - неотъемлемая часть детского дошкольного учреждения. Участок предназначен для игр, занятий и отдыха детей, что способствует укреплению их здоровья, нормальному росту и развитию.

Участки детских дошкольных учреждений общего типа размещаются, как правило, на обособленных земельных территориях. Радиусы обслуживания следует принимать согласно табл. 5 СНиП 2.07.01-89 «Градостроительство. Планировка и застройка городских и сельских поселений» в городах - 300 м, в сельских населенных пунктах и малых городах при одно- и двухэтажной застройке - 500 м.

Участки специализированных дошкольных учреждений рекомендуется размещать в зеленой зоне селитебной территории или в пригородах. Радиус обслуживания их не нормируется, но рекомендуется, чтобы он не превышал 30-минутной транспортной доступности.

2.2. Выбор участка для строительства детского дошкольного учреждения должен производиться с учетом обеспечения необходимых санитарно-гигиенических требований, инсоляции и аэрации территории.

Для обеспечения условий инсоляции необходимо здание на участке размещать в пределах допустимых секторов ориентации согласно его градостроительной маневренности и выдерживать необходимую величину разрыва между дошкольным учреждением и затеняющим объектом, определяемую с помощью графика-диаграммы (рис. 9).

Рис. 9. График для определения величины разрыва между дошкольным учреждением и затеняющим объектом на равнине (ЦНИИЭП учебных зданий)

2.3. По условиям шумозащиты размещать дошкольные учреждения следует в местах, где уровень шума не превышает 45 дБА (глава СНиП II-12-77 «Защита от шума»), а для специализированных учреждений - 60 дБА.

Оптимальным для детских дошкольных учреждений является размещение их внутри квартала при обеспечении удобных подходов к зданиям со стороны прилегающих транспортных коммуникаций. Если конкретные градостроительные условия не позволяют осуществить это требование, необходимо обеспечить защиту детских дошкольных учреждений от транспортных и иных уличных шумов различными градостроительными средствами (экранами, выемками, кавальерами и т.д.), устройством звуко- и пылепоглощающего озеленения из густолистных древонасаждений, елей и иных пород деревьев с плотной кроной. При надлежащей плотности посадок ширина защитной полосы должна быть не менее 20 м, а расстояние между полосой озеленения и стенами здания должно быть не менее 10 м. Следует иметь в виду, что густолиственные деревья эффективны по звукозащитным свойствам в возрасте не менее 25 лет, а ели - в возрасте от 15 лет при круглогодичной зеленой кроне.

2.4. По условиям аэрации участки дошкольных учреждений во всех климатических районах, кроме IV, должны размещаться в зоне пониженных скоростей преобладающих ветровых потоков, в аэродинамической (ветровой) тени, образующейся за ветрозащитным зданием. Зоной аэродинамической тени считается территория за экранирующим объектом на расстоянии пяти его высот, где происходит снижение скорости ветра не менее чем в два раза.

Особенно важно эти рекомендации соблюдать в районах Крайнего Севера, где необходимо обеспечивать ветро- и снегозащиту территории земельного участка и самого здания, которая может создаваться как жилыми домами, так и специальными преградами.

2.5. На территории со сложным рельефом рекомендуется строить здания блочной композиции, что дает возможность не только сохранить рельеф, но и интереснее и живописнее решить планировку участка при наименьших затратах на строительство и благоустройство. При этом рекомендуется размещать групповые площадки в пределах площади застройки здания: на крышах-террасах, под зданием, на элементах рельефа - земляных террасах, сохраняемых склонах (рис. 10).

2.6. Размеры земельных участков дошкольных учреждений общего типа, размещаемых в жилой застройке, рекомендуется принимать согласно прил. 7 (рекомендуемому) СНиП 2.07.01-89: «При вместимости яслей-садов, м2 на одно место: до 100 мест - 40; свыше 100 мест - 35; в комплексе яслей-садов свыше 500 мест - 30. Размеры земельных участков могут быть уменьшены, %: на 30 - 40 - в климатических подрайонах IА, IБ, IГ, IД и IIА; на 25 - в условиях реконструкции; на 15 - при размещении на рельефе с уклоном более 20 %; на 10 - в поселениях-новостройках (за счет сокращения площади озеленения)».

Для дошкольных учреждений сельской местности вместимостью от 25 до 50 мест, объединенных с начальной школой на 40 и 80 учащихся, размеры земельных участков рекомендуется принимать соответственно 0,4 и 0,7 га.

Площадь земельных участков сельских детских дошкольных учреждений общего типа с увеличением мест на летний период следует принимать по максимальной вместимости учреждений.

Рис. 10. Варианты решения зданий яслей-садов для размещения на рельефе (ЦНИИЭП градостроительства)

а - с перепадом объемов в полэтажа на уклонах 10 - 35 %; б - террасного типа на уклонах 35 - 60 %

Допускается уменьшать размеры земельных участков яслей-садов: при смежном размещении нескольких участков за счет объединения хозяйственных площадок и подъездов (рис. 11); при примыкании земельных участков непосредственно к лесным или парковым территориям.

Размеры участков специализированных дошкольных учреждений рекомендуется принимать 60 м на одно место.

2.7. На земельных участках детских дошкольных учреждений следует размещать площадки: групповые; для занятий физкультурой; для выращивания овощных и ягодных культур; для содержания животных и птиц (в сельской местности); хозяйственную.

Участок детского дошкольного учреждения должен иметь четкое функциональное зонирование, при котором групповые площадки лучше максимально приближать к выходам из помещений этих групп, пути следования детей не должны проходить через хозяйственную площадку.

При объединении дошкольных учреждений с начальной или малокомплектной школами групповые площадки детей ясельного и дошкольного возраста желательно изолировать от школьных.

Рекомендуемые состав и площади участков детских дошкольных учреждений общего типа, специализированных и кооперированных учреждений представлены в прил. 1 - 3.

2.8. Озеленение является важным компонентом благоустройства и средством формирования благоприятных оздоровительных условий на участке, оказывает непосредственное влияние на температуру воздуха, его влажность, солнечную радиацию, способствует ослаблению отрицательных факторов окружающей городской среды. В связи с этим основное требование к участку дошкольного учреждения - озеленение должно составлять не менее 50 % его территории. При строительстве новых зданий необходимо максимально сохранить существующие зеленые насаждения.

Описание: 13

Рис. 11. Пример парного размещения дошкольных учреждений в жилой застройке (ЦНИИЭП жилища)

1 - здание яслей-сада; 2 - игровые площадки ясельных групп; 3 - игровые площадки дошкольных групп; 4 - общая физкультурная площадка; 5 - цветочно-огородный участок; 6 - теневые навесы; 7 - крытый бассейн; 8 - вольер с птицами; 9 - хозяйственная площадка

В площадь озеленения участка включается площадь зеленых насаждений, газонов, цветников, огорода-ягодника и травяное покрытие групповых и физкультурных площадок. Площадь озеленения участков дошкольных учреждений должна составлять не менее 16 м2 на одно место, в том числе зеленых насаждений, газонов и цветников - не менее 7 м2, в комплексах детских яслей-садов - не менее 14 м2.

2.9. Площадь озеленения рекомендуется дифференцировать в зависимости от конкретных лесорастительных и почвенных условий и от вместимости учреждения.

Подбор видов зеленых насаждений рекомендуется производить из местных пород, обладающих длительным вегетационным периодом и отличающихся декоративными свойствами.

При наличии естественного озеленения рекомендуется всемерно способствовать его сохранению.

Площадь озеленения допускается уменьшать также на 50 % в условиях реконструкции, примыкания земельных участков непосредственно к лесным или парковым территориям.

2.10. Площадь озеленения участков специализированных дошкольных учреждений рекомендуется не менее 25 м2 на одно место.

При озеленении участков специализированных учреждений нужно использовать как можно больше растений различных пород и сортов, так как они также являются для детей учебным материалом. Умственно отсталым, глухим и слабослышащим детям растения помогают в овладении речью; слепым и слабовидящим детям - способствуют накоплению предметных представлений.

На участках учреждений для слепых и слабовидящих детей рекомендуется высаживать породы растений с ярко выраженными запахами, которые способствуют ориентации при ходьбе.

Для слабовидящих детей яркие цветы также помогают в ориентации.

2.11. На участке специализированных учреждений рекомендуется в зоне озеленения предусматривать реабилитационные площадки: аэросолярий и площадку для занятий на специальных тренажерах.

Реабилитационные площадки следует размещать на защищенном от ветра, солнечном и в течение большей части дня не находящемся в тени месте, в непосредственной связи с медицинскими помещениями.

2.12. По периметру участка рекомендуется устраивать зеленую защитную полосу из деревьев и кустарников шириной не менее 1,5 м, а со стороны улицы - не менее 6 м. Во избежание излишнего затенения помещений кустарник рекомендуется высаживать не ближе 5 м от здания, а деревья - не ближе 10 м. При озеленении допускается посадка фруктового сада. Не разрешаются деревья и кустарники с ядовитыми плодами, колючками или засоряющие территорию при цветении, а также привлекающие большое количество насекомых.

Группы деревьев и кустарников рекомендуется располагать на открытом газоне, в местах пересечения дорожек, у площадок, возле плескательного бассейна и в других местах, требующих затенения. При озеленении участка нужно максимально использовать его площадь, правильно распределить различные виды цветочных композиций; цветник-рабатка, представляющий длинную неширокую полосу (грядку), располагается вдоль дорожек по одной стороне или по обе; миксбордер - широкая полоса с 4- или 5-рядным размещением декоративных растений; партер - цветочный квадрат или прямоугольник, засаженный цветами; мавританский газон - многолетние травы и однолетние цветущие растения.

Для устройства газона рекомендуется применять смесь трав, наиболее устойчивую к вытаптыванию - овсяница, матлик, клевер белый, полевица, тимофеевка. Дендроплан участка представлен на рис. 12.

2.13. Основными элементами участка являются групповые площадки, предназначенные для проведения игр и занятий на свежем воздухе. Они могут проектироваться как изолированными друг от друга, так и объединяться по 2 - 3 в игровые пространства. Их оборудование должно учитывать возрастные особенности деятельности детей.

При размещении групповых площадок должна обеспечиваться их удобная связь с выходами из соответствующих групповых ячеек и с общей физкультурной площадкой, должны исключаться пересечения путей движения различных групп.

Площадь групповых площадок в расчет на одно место в детских дошкольных учреждениях общего типа рекомендуется принимать не менее, м2: в ясельных группах - 7,5, в дошкольных - 7,2; в специализированных дошкольных учреждениях - 10. В детских дошкольных учреждениях общего типа игровые площадки для детей дошкольного возраста допускается размещать за пределами участка.

2.14. Планировка групповых площадок должна обеспечивать четкое зонирование территории с выделением зон: тихих игр, подвижной деятельности, свободных индивидуальных или коллективных игр. Зоны должны иметь соответствующее оборудование и покрытие территории.

Описание: 14

Рис. 12. Дендроплан участка дошкольного учреждения на 280 мест (Белгоспроект)

деревья: 1 - липа мелколистная; 2 - клен остролистный; 3 - вяз шершавый; 4 - рябина обыкновенная; 5 - рябина черноплодная; 6 - ива белая плакучая; 7 - ель колючая; кустарники в группах: 8 - спирея японская; 9 - спирея иволистная; 10 - сирень обыкновенная; 11 - клен Гиннала

Зона тихих игр формируется в непосредственной близости от навеса. Зона подвижной деятельности детей предназначается для гимнастики и игр с мячом, должна иметь четкое ограничение оборудованием, располагаемым в основном по границе с одной или двух сторон. Перед оборудованием должна быть «рабочая зона» не менее 3,5 м. Покрытие площади в зоне должно быть из утрамбованного грунта.

Зона свободных индивидуальных или коллективных игр должна располагаться в центре площади и иметь соответствующее оборудование для сюжетно-ролевых игр детей: «строители», «моряки», «шоферы», «космонавты» и т.д.

2.15. Для организации полноценного воспитательно-оздоровительного режима на участках дошкольных учреждений необходимо предусматривать игровое оборудование, способствующее физическому развитию детей и соответствующее их возрастным особенностям. На участках должно быть оборудование: для спокойных игр, для подвижной деятельности, для сюжетно-ролевых игр, для игр с водой, малые архитектурные формы.

Каждая групповая площадка должна оборудоваться в соответствии с возрастом детей и характером их игровой деятельности. Рекомендуемые наборы оборудования на групповых площадках представлены в прил. 4.

Расстановку оборудования на групповых площадках рекомендуется производить не штучно, а компонуя его в игровых комплексах (рис. 13). Это позволяет более рационально использовать всю территорию площадки, высвободив площадь для подвижной деятельности (рис. 14, 15).

Примечание. На рис. 13, 14, 15, 17 номера оборудования соответствуют его нумерации в прил. 4.

Рис. 13. Игровые комплексы для дошкольных групповых площадок (ЦНИИЭП учебных зданий)

а - младших и средних групп; б - старших групп

Рис. 14. Планировка игровой площадки ясельной группы (2 - 3 года) (ЦНИИЭП учебных зданий)

Рис. 15. Планировка игровой площадки дошкольной группы (4 - 5 лет) (ЦНИИЭП учебных зданий)

2.16. Тематическая площадка может заменять собой групповую площадку детей дошкольного возраста. Тематические площадки, в отличие от групповых, строго не закрепляются за отдельными группами.

Их размещение на участке дает возможность перехода с одной площадки на другую, что разнообразит игровую деятельность детей и способствует большему развитию их воображения и фантазии.

Тематические площадки имеют определенную сюжетную направленность, которой должен быть подчинен характер планировки и оборудования (рис. 16).

Тематические площадки подразделяются на две основные группы: для приключенческих игр («индейская деревня», «космическая»); для творческих игр («транспортная», «строительная»), для художественных занятий.

2.17. Для обеспечения необходимых условий инсоляции и солнцезащиты на групповых площадках рекомендуется создавать две контрастные по режиму радиационные зоны - открытую и затененную. Для изоляции групповых площадок применяется зеленая изгородь из кустарников в одну полосу шириной 0,75 - 1 м. Расстояние между посадками в зеленой изгороди зависит от породы растений и величины их кроны. Рекомендуемая высота зеленой изгороди групповой площадки 0,8 м.

2.18. В особых условиях ограниченности территории групповые площадки могут располагаться на эксплуатируемой кровле здания (рис. 17). В этом случае их площадь может корректироваться в сторону уменьшения до 50 %. Площадки, размещаемые на кровле, должны иметь ограждение высотой не менее 1,6 м без горизонтальных членений. Просветность вертикальных элементов должна быть не более 0,1 м.

Рис. 16. Тематический игровой комплекс «Робинзон» (ЦНИИЭП учебных зданий)

Рис. 17. Пример размещения групповых площадок на эксплуатируемой кровле здания. Комплекс яслей-сада на 480 мест в г. Ульяновске (ЦНИИЭП учебных зданий)

1 - «класс»; 2 - «море»; 3 - «крепость»; 4 - для тихих игр; 5 - для строительных материалов

2.19. В специализированных дошкольных учреждениях групповые площадки рекомендуется располагать вблизи выхода из здания дошкольного учреждения на участок среди зелени.

Для слепых и слабовидящих детей игровая площадка должна быть ровной, утрамбованной или покрытой травой, огражденной полосой шириной 1 - 1,5 м иной поверхности покрытия, чем сама площадка. При организации площадки окаймляющую полосу лучше всего делать несколько наклонной (т.е., начиная от площадки, полоса постепенно поднимается под углом 10 - 12°). В этом случае поверхность полосы и площадки может быть однородной. Необходимо, чтобы всякого рода препятствия (ограждения, сооружения, оборудование), находящиеся вне площадки, были расположены не ближе чем за 2,5 - 3 м от ее границ.

2.20. Групповые площадки рекомендуется соединять кольцевой дорожкой шириной 1,5 м, которую можно совмещать с проездом к зданию.

Уклон дорожки не должен превышать 6 %, а в горных условиях - 8 %, радиусы поворота должны быть не менее 1,5 м.

На кольцевой дорожке, соединяющей групповые площадки, следует предусматривать разметку и устанавливать дорожные знаки для обучения детей правилам поведения пешеходов на улице. Для этой цели на территории участка рекомендуется создавать соответствующую предметно-пространственную среду, имитирующую городскую застройку, дорожную сеть с улицами, тротуарами, пешеходными переходами, перекрестками.

В комплексах дошкольных учреждений за счет уменьшения площади отдельных элементов участка (младшая ясельная группа, физкультурная площадка, хозяйственная, хозяйственный подъезд) рекомендуется создавать спецплощадку для обучения правилам поведения пешеходов на улице (рис. 18), включая в нее части пешеходных дорожек и проездов, при этом сохраняя общую нормативную площадь участка.

2.21. На групповых площадках раннего возраста и 1-й младшей группы лучшим является сплошное травяное покрытие, за исключением подходов к теневым навесам и мощения вокруг песочниц.

На специализированных и тематических площадках для детей дошкольного возраста, кроме травяного применяется покрытие из утрамбованного грунта площадью не более 60 м2.

Гравийное покрытие сверху засыпается слоем глины с отсевами гравия и несколько раз прокатывается.

Твердое плиточное покрытие устраивают перед теневыми навесами и скамьями, так как трава в этих местах систематически вытаптывается, образуются углубления, которые заполняются дождевой водой. Вокруг песочных двориков укладывают плиты шириной 1 - 1,5 м (рис. 19, 20).

2.22. На групповых площадках по местным климатическим условиям могут устраиваться навесы площадью 40 м для укрытия детей от атмосферных осадков или излишней солнечной радиации.

Площадь навеса не входит в площадь групповой площадки.

Навесы не должны мешать детям бегать, играть и проводить занятия, поэтому их рекомендуется ставить на границе групповой площадки в окружении зелени. Рекомендуется применять блокировку навесов, а также располагать их по периметру участка, используя как ограждение.

Рис. 18. Пример организации территории участка дошкольного учреждения для обучения детей правилам поведения пешеходов на улице (Белгоспроект)

1 - пешеходный переход; 2 - дети; 3 - перекресток; 4 - главная дорога; 5 - конец главной дороги; 6 - проезд без остановки запрещен; 7 - движение запрещено; 8 - место стоянки; 9 - движение направо; 10 - движение налево; 11 - указатель пешеходного перехода; 12 - светофор: 13 - металлическое ограждение; 14 - информационный стенд; элементы участка: 15 - физкультурная площадка; 16 - групповая; 17 - бассейн; 18 - гимнастическая вышка

Рис. 19. Твердые покрытия для участков детских дошкольных учреждений (опыт НРБ)

а - настил из бетонных плит на травяном шве; б - брусчатый настил; в - асфальтовое покрытие; г - настил из гравия

Рис. 20. Песочный дворик (опыт НРБ)

а - план; б - разрез

1 - бетонный модульный элемент; 2 - деревянный элемент; 3 - планка; 4 - песок (30 см); 5 - кирпич; 6 - песок, глина; 7 - бетон

Навесы для ясельных групп рекомендуется пристраивать к зданию, используя их как веранды.

2.23. Конструкции навесов должны обеспечивать легкость и простоту монтажа, надежность эксплуатации. Вместо навесов рекомендуется шире использовать перголы (рис. 21), тентовые покрытия. Внутри навесов может находиться встроенная мебель и оборудование. Обязательным элементом является встроенный шкаф для игрушек. Полы теневых навесов рекомендуется поднимать на высоту 10 см по отношению к уровню земли, чтобы его не заливало в сырую погоду.

В районах с сильными ветрами по направлению господствующих ветров необходимо устраивать ветрозащитные стенки.

2.24. Физкультурная площадка на участке дошкольного учреждения предназначена для проведения утренней гимнастики, подвижных игр с элементами спорта, физкультурных занятий, спортивных праздников.

Физкультурную площадку рекомендуется размещать ближе к групповым площадкам дошкольного возраста. В дошкольных учреждениях вместимостью 280, 330 мест она может решаться в комплексе с кольцевой дорожкой, используемой для обучения правилам поведения пешеходов на улице.

2.25. На земельных участках детских дошкольных учреждений вместимостью до 150 мест может быть одна физкультурная площадка площадью 250 м, свыше 150 мест - две площадью 250 и 150 м. Одна площадью 250 м может оборудоваться как мини-стадион, другая площадью 150 м - как спортивный комплекс.

2.26. В специализированных дошкольных учреждениях площадь физкультурной площадки может быть 150 м.

Рис. 21. Пергола на площадке дошкольного учреждения

а - фасад; б - разрез; в - план

1 - колонна - металлическая бесшовная труба Æ 100 мм; 2 - доска из сосны; 3 - доска для рисования; 4 - бетонное основание

В учреждениях для детей глухих, слабослышащих, умственно отсталых, с нарушением опорно-двигательного аппарата желательно ориентировать физкультурные площадки продольной осью в направлении север-юг, а для слепых и слабовидящих детей - продольной осью с востока на запад. Оборудование физкультурной площадки необходимо окрашивать и размещать таким образом, чтобы оно контрастно воспринималось на окружающем фоне.

2.27. На физкультурной площадке необходимо предусмотреть расположение следующих элементов: зеленой лужайки с элементами оборудования для подвижных игр; спортивной площадки для игр в волейбол, бадминтон, баскетбол, городки; зоны с гимнастическим оборудованием и спортивными снарядами; беговой дорожки, ямы для прыжков; полосы препятствий.

Беговая дорожка должна быть длиной не менее 25 м, шириной не менее 1,5 м. Покрытие дорожки - грунтовое, изоловое.

Спортивная площадка для игры в волейбол, баскетбол, бадминтон, городки должны быть размером не менее 10´7 м.

Для игры в волейбол и бадминтон необходимо установить две стойки для натягивания сетки. Высота подвеса сетки для игры в бадминтон 120 см. Высота подвеса сетки для игры в волейбол должна быть равна высоте ребенка с поднятой вверх рукой.

Для игры в баскетбол необходимо установить стойки со щитами длиной 120 см, высотой 90 см и сетки-корзины диаметром 45 см, сетки-корзины 180 - 200 см.

2.28. Покрытие физкультурной площадки может быть грунтовое или изоловое.

Зеленая лужайка для подвижных игр в футбол, хоккей должна быть площадью не менее 60 м2, размером 10´6 м. Покрытие площадки - травяное.

Зона с гимнастическим оборудованием и спортивными снарядами (игровой гимнастический комплекс) должна быть площадью не менее 60 м2. Покрытие площадки - травяное.

Яма для прыжков должна быть длиной не менее 3 м, шириной 1,5 - 2 м, глубиной 30 - 40 см. С внутренней стороны стенки яма окантовывается досками, опущенными ниже ее края на 1 - 2 см и закрепленными колышками.

На расстоянии 20 - 30 см от ямы прокладывается и закрепляется на одном уровне с землей планка для отталкивания шириной 20 см.

Дорожка для разбега должна быть длиной 8 - 10 м, шириной 1,5 - 2 м, направление - с юга на север.

Яма несколько выше бортика заполняется песком, перемешанным с опилками.

2.29. Полосу препятствий рекомендуется устраивать на дорожке длиной 50 м и шириной 2 - 2,5 м. На ней можно расположить следующие переносные препятствия: забор (высота 65 см, ширина 2 м); башню для пролезания (высота 2 м, ширина пролетов 1 м, расстояние между рейками двух противоположных сторон 22 и 45 см); барьеры (высота стоек 65 см, расстояние между ними 70 см); качающиеся доски (длина 2 м, ширина 20 см, толщина 5 см), которые кладутся на опорный чурбачок (диаметр 20 см, длина 40 см); пенечки разной высоты (20 - 60 см) и диаметром 35 см.

На дорожке препятствий устанавливается также стационарное оборудование; на расстоянии 17 м от начала дорожки бумы для равновесия (диаметр бревна 30 см, длина 6 м, высота от земли не менее 40 см), с одной стороны для вбегания на бум прибивается под наклоном доска (длина 1 м, ширина 15 см); на расстоянии 25 м от начала дорожки - перекладина для подвесных снарядов - веревочных лестниц, колец (высота 3,35 м, расстояние между опорами 4 м); на перекладине четыре стальных крюка (расстояние между двумя крюками 55 см, а от края перекладины до первого крюка 95 см); комплексная гимнастическая стенка, состоящая из четырех наклонных лестниц и двух пролетов вертикальной гимнастической стенки (ширина всей стенки 3 м, высота 2,2 м, ширина каждой наклонной лестницы 60 см, длина 3 м, расстояние между рейками лестницы и стенки 21 см). В конце дорожки можно поставить стенку для метания (высота 2 м, ширина 4,5 м), на которой закрепить мишень (размером 120´80 см) и два баскетбольных щита с корзинами.

2.30. Оборудование физкультурной площадки рекомендуется применять в комплекте, разработанном НИИ дошкольного воспитания АПН СССР при участии ВИСТИ в количестве, шт.:

Стенка гимнастическая

6

Устройство для подвески спортивных снарядов

1

Лестница веревочная

2

Канат для лазания

2

Башня для влезания

1

Стенка сплошная

1

Стенка с перекладинами

2

Заборчик с вертикальными перекладинами

2

Рукоход

1

Рукоход кольцевой

1

Ворота для пролезания

2

Препятствие для пролезания

8

Бум разновысокий

2

Бум параллельный

2

Качающийся балансир

2

Грибок для чехарды

16

Стойка (съемная) для упражнений с препятствиями

10

Стол для настольного тенниса

2

Щит баскетбольный

2

Ворота футбольные

2

2.31. Открытые плавательные бассейны для дошкольных учреждений свыше 250 мест рекомендуется устраивать в III и IV климатических районах и использовать в теплый период года для купания и закаливающих процедур, в холодное время как каток. Ванны бассейна размещаются на территории участка рядом с физкультурной площадкой. Открытые ванны рекомендуется проектировать размерами 4 - 6´8 - 10 (12,5) м, переменной глубиной 6 - 0,8 м. При бассейне необходимо устройство ножной ванны шириной 1 м.

При меньшей вместимости дошкольного учреждения на территории участка следует устраивать плескательные ванны для игр на воде и с целью приучить детей к плаванию. Плескательные бассейны должны иметь свободную форму площадью 20 - 25 м2 и переменную глубину 0,1 - 0,5 м (рис. 22, 23).

Плескательные бассейны небольших размеров желательно изготавливать из легких материалов - пластмассы, алюминиевых, гофрированных листов. В плескательном бассейне используется подогретая до 27 - 28 °С вода. При бассейне должна быть ножная ванна шириной не менее 1 м.

Рис. 22. Пример размещения плескательного бассейна на участке (опыт НРБ)

1 - бассейн; 2 - деревянная скамейка; 3 - сказочный домик; 4 - деревянное оборудование для физкультурных игр; 5 - столик для формовки; 6 - фонтаны; 7 - песочное поле; 8 - плита-мозаика

Рис. 23. Планировка и конструктивное решение плескательного бассейна (опыт НРБ)

а - план; б - разрез 1-1; в - разрез 2-2; 1 - облицовочная плитка; 2 - цементная стяжка; 3 - гидроизоляция; 4 - бетон; 5 - дренаж

2.32. Для закаливания детей и игр с водой на участке могут устраиваться фигурные фонтанчики и водные забавы (рис. 24). Эти устройства значительно превосходят плескательные бассейны по игровым, гигиеническим и оздоровительным качествам.

Фигурные фонтанчики типа «круглый дождь», «спираль», выполняются из алюминиевых или стальных труб, в которые под давлением подается вода и разбрызгивается в виде тонких струй и водяной пыли. Фигурные фонтанчики имеют небольшую чашу-бассейн, которая вмещает одновременно трех-четырех детей. Водная забава на 10 - 20 детей представляет собой забетонированную или выложенную плитками площадку (10 - 18 м2), по периметру которой расположены разбрызгивающие устройства с вертикально, горизонтально или наклонно бьющими струями.

Чаша-бассейн и площадка должны иметь уклон для стока воды.

2.33. Участок детского сада для многих городских детей - место первого знакомства с природой. Здесь они приобретают первые трудовые навыки, учатся любить природу, бережно к ней относиться.

Площадку для выращивания овощных и ягодных культур рекомендуется предусматривать общей на учреждение из расчета 0,6 м на ребенка дошкольного возраста и располагать ближе к хозяйственной площадке.

При планировке площадки для выращивания овощных и ягодных культур ширина грядок принимается 60 - 70 см, а ширина рабочих проходов-дорожек - не менее 40 см.

В сельской местности вместо такой площадки на участке рекомендуется размещать теплицу с зооуголком.

Рис. 24. Фонтанчики для игр с водой (опыт НРБ)

а - фасад; б - план; в - разрез А-А; г - разрез Б-Б

1 - белая полированная мозаика; 2 - бетон; 3 - черная тертая мозаика; 4 - труба; 5 - отводная труба; 6 - водослив; 7 - латунная решетка

Площадь застройки теплицы рекомендуется принимать в учреждениях, м: до 150 мест - 80, свыше 150 мест - 160, зооуголка для содержания пушных животных - соответственно 25 и 50.

2.34. На земельных участках детских дошкольных учреждений всех типов следует размещать хозяйственную площадку. Площадь хозяйственной площадки следует принимать для детских учреждений вместимостью, м2: до 50 мест - 70; свыше 50 до 150 мест - 100; свыше 150 мест - 150.

Хозяйственную площадку рекомендуется размещать у границы участка со стороны входа в кухню и постирочную. Она не должна примыкать к групповым и физкультурным площадкам. В учреждениях свыше 150 мест на хозяйственную площадку необходим самостоятельный въезд, изолированный от входа на участок.

На хозяйственной площадке размещаются мусоросборники, ларь для хранения садового инвентаря (лопат, леек, граблей).

Площадка под мусоросборники должна иметь кирпичную ограду высотой не менее 1,5 м. Площадь площадки должна быть не менее 6 м. Хозяйственная площадка должна иметь асфальтовое покрытие. При смежном расположении участков нескольких дошкольных учреждений рекомендуется объединять хозяйственные площадки и устраивать один общий подъезд.

2.35. На земельных участках детских дошкольных учреждений в случаях, когда требуется хранение более недельного запаса овощей и фруктов, допускается размещать при хозяйственных площадках овощехранилище (рис. 25).

2.36. Проезды и полосы для проезда пожарных машин к зданиям детских дошкольных учреждений должны обеспечивать доступ пожарных подразделений в групповые ячейки.

Рис. 25. Пример решения погреба-овощехранилища

а - разрез; б - план надземной части; в - план подземной части

1 - хозяйственный сарай; 2 - навес; 3 - охлаждаемая камера; 4 - кладовая картофеля; 5 - кладовая овощей

Проезд для пожарных машин к зданиям детских дошкольных учреждений необходимо предусматривать с одной продольной стороны здания шириной не менее 3,5 м.

2.37. Участок детского дошкольного учреждения должен иметь ограждение высотой от 750 до 1600 мм, а в специализированных учреждениях - до 2000 мм.

При проектировании ограды желательно использовать типовые элементы, обеспечивающие различные варианты композиционных решений.

В проектах оград следует предусматривать экономичные конструкции индустриального изготовления, соответствующие эксплуатационным и современным эстетическим требованиям.

Ограждение должно проектироваться секционным. Секции могут быть изготовлены из бетонных элементов, металлической рамы с сеткой. Стойки могут быть изготовлены из деревянных, металлических, бетонных столбов, асбоцементных труб.

При проектировании оград допускается применять также местные материалы с учетом технической и экономической целесообразности. Применение деревянных оград допускается в многолесных районах.

В северных районах в целях снегозащиты ограждение земельного участка должно иметь просветность порядка 50 - 70 %.

2.38. Ограждение участка рекомендуется декорировать вьющейся зеленью. В качестве живой изгороди может применяться кустарник, высаживаемый в одну полосу шириной 0,75 - 1 м. Расстояние между посадками в зеленой изгороди зависит от породы растений и величины их кроны. Рекомендуемая высота зеленой изгороди - 1 - 1,25 м, при необходимости изоляции хозяйственного двора она может быть увеличена до 2,5 м.

2.39. Для прогулок групп кратковременного пребывания детей рекомендуется использовать детские игровые площадки на придомовой территории.

3. ОБЪЕМНО-ПЛАНИРОВОЧНЫЕ И КОНСТРУКТИВНЫЕ РЕШЕНИЯ ЗДАНИЙ

3.1. Здания детских дошкольных учреждений общего типа разрешается проектировать не более трех этажей.

Этажность здания дошкольного учреждения общего типа выбирается в зависимости от вместимости, природно-климатических и градостроительных условий применения, а также архитектурно-композиционного решения жилой застройки. Одноэтажные здания дошкольных учреждений рекомендуется проектировать, как правило, небольшой вместимостью - до 150 мест для сельской местности. В таких зданиях лучше достигается непосредственная связь групповых помещений с участком, однако удлиняются внутренние коммуникации, велика площадь застройки. В одноэтажных зданиях труднее выполняется условие компактности, появляется необходимость использования верхнего света.

3.2 Двухэтажные здания для дошкольных учреждений вместимостью свыше 150 мест в наибольшей степени отвечают необходимым функциональным требованиям, являются наиболее типичными и распространенными в массовом строительстве.

3.3. Трехэтажные здания дошкольных учреждений следует проектировать в соответствии с требованиями п. 1.18 СНиП 2.08.02-89. Они обладают определенными эксплуатационными технико-экономическими преимуществами перед одно- и двухэтажными зданиями, обеспечивая сокращение площади застройки, расходов на отопление. Как правило, они обладают более компактной объемно-планировочной структурой, короткими горизонтальными связями между помещениями.

Здания яслей-садов могут быть разноэтажными (в указанном интервале этажности).

При блочно-павильонной структуре здания если кухня и прачечная предусматриваются отдельно стоящим блоком, то его лучше проектировать одно- или двухэтажным. В этом случае легче осуществить функциональное зонирование и транспортировку готовой пищи в групповых ячейках.

3.4. Помещения для групп кратковременного пребывания дошкольников разрешается проектировать только в первых этажах жилых зданий с учетом планировочной структуры жилого дома. Если первый этаж жилой, то под группу кратковременного пребывания отводится двух- или трехкомнатная квартира в зависимости от численности детей в группе. Это позволит в процессе эксплуатации при необходимости изменять количество таких групп в микрорайоне.

3.5. Специализированные дошкольные учреждения должны быть согласно п. 1.19 СНиП 2.08.02-89 не более двух этажей, при этом учреждения для детей с нарушением опорно-двигательного аппарата и зрения рекомендуется проектировать одноэтажными.

3.6. Объемно-планировочные решения зданий дошкольных учреждений следует принимать с учетом их функциональной структуры, вместимости, природно-климатических и региональных особенностей строительства.

Наиболее оптимальным является решение дошкольного учреждения в отдельно стоящем здании. При этом по композиционному приему структура зданий может быть разделена на:

централизованную (компактную), позволяющую создать наиболее короткие внутренние связи между помещениями отдельных групповых ячеек и общего назначения (рис. 26).

Описание: 15

Рис. 26. Компактная схема объемно-планировочного решения здания детского сада на 170 мест (ФРГ)

а - разрез; б - планы этажей

1 - игровая комната; 2 - многоцелевое помещение; 3 - комната для персонала; 4 - групповая; 5 - колясочная; 6 - кладовая; 7 - велосипедная; 8 - внутренний дворик; 9 - класс для занятий; 10 - раздевальня

Описание: 16

Рис. 27. Пример блочного решения здания дошкольного учреждения. Ясли-сад на 280 мест для ЭЖК «Мещерское озеро» в г. Горьком (ЦНИИЭП учебных зданий)

а - аксонометрия; б - план первого этажа на отметке +0,020; в - план второго этажа на отметке +3,280; г - план цокольного этажа на отметке -3,320

1 - групповые для детей ясельного возраста; 2 - то же, дошкольного возраста; 3 - пищеблок; 4 - постирочная; 5 - медицинские помещения; 6 - зал для музыкальных занятий; 7 - зал для гимнастических занятий; 8 - административные помещения; 9 - теневой навес

блочную, предусматривающую размещение функциональных групп помещений в отдельных блоках, непосредственно примыкающих друг к другу или с переходами (рис. 27).

3.7. Основными направлениями проектирования детских дошкольных учреждений следует считать:

внедрение перспективных параметров унифицированных объемно-планировочных и конструктивных схем, определяющих прогрессивное развитие структур;

повышение компактности блочных решений за счет оптимизации числа, формы, размеров блоков и способов их подсоединений;

эффективное зонирование централизованных зданий, обеспечивающее рациональную группировку функционально связанных помещений;

повышение градостроительной вариабельности зданий.

3.8. Требования к проектированию детских дошкольных учреждений наиболее полно могут быть удовлетворены при решении зданий на основе применения функциональных блоков, увязанных с конструктивными параметрами. В этом случае объектом типизации будет не все здание в целом, а его отдельные функциональные блоки, объединяющие группы помещений.

Перспективным направлением является формирование унифицированных серий проектов для строительства в различных региональных условиях, такие зональные серии должны создаваться на единых параметрах, иметь унифицированные планировочные участки и узлы, отвечать единым принципам построения.

Строительство дошкольных учреждений по проектам, входящим в серию, обеспечит комплексность застройки районов с разными природными условиями, сократит номенклатуру индустриальных изделий.

Наиболее важное значение для сокращения номенклатуры сборных элементов и уменьшения трудоемкости строительства имеет унификация основных планировочных элементов дошкольного здания - групповой ячейки. Проведенный анализ требований к составу, площадям и взаимосвязям помещений в ячейках различных возрастных групп показал, что они могут быть унифицированы по габаритам, взаиморазмещению, оборудованию и решены в пределах единых планировочных модулей с размером 7200´7200 мм или 6000´9000 мм (рис. 28).

3.9. Для повышения архитектурной выразительности зданий детского учреждения, возводимых в полносборной конструкции, необходимы детальная проработка элементов фасадов; определение эффективных приемов декоративной отделки панелей, карнизов; архитектурно-конструктивного решения вертикальных деформационных швов для различных конструктивных систем, стыков панелей, организации входов, ограждений лестниц, балконов, лоджий и др. Приемы отделки панелей должны отвечать требованиям технологичности изготовления изделий (рис. 29).

3.10. Вместимость дошкольных учреждений, пристроенных к торцам жилых домов, не должна быть более 150 мест. При этом наиболее удачно соединение дошкольного учреждения с торцом жилого дома (при отсутствии на торцах окон жилых комнат) получается, если между блоком с детскими группами и жилым зданием разместятся входная группа помещений, лестницы, зал и т.п. В этом случае групповые ячейки будут наилучшим образом изолированы от придомовой территории и могут непосредственно выходить на участок. Блок с детскими группами, как правило, значительно превышающий по ширине ширину корпуса жилого дома, в данном случае не будет примыкать непосредственно к жилому зданию и затенять прилегающие жилые квартиры торцовой секции (рис. 30).

Описание: 16

Рис. 28. Серия зданий яслей-садов в крупнопанельных конструкциях 1.090.1-1 (ЦНИИЭП учебных зданий)

а - планы первого и второго этажей яслей-сада на 190 мест; б - то же, на 280 мест

1 - холл; 2 - приемная; 3 - игровая; 4 - спальня; 5 - буфетная; 6 - туалетная; 7 - раздевальня; 8 - групповая; 9 - зал для физкультурных занятий; 10 - зал для музыкальных занятий; 11 - методический кабинет; 12 - логопедический кабинет; 13 - кабинет заведующей; 14 - комната завхоза; 15 - медицинская комната; 16 - процедурная; 17 - кастелянская; 18 - комната персонала; 19 - изолятор; 20 - кладовая чистого белья; 21 - кухня с подсобными помещениями; 22 - стиральная; 23 - гладильня

Рис. 29. Фрагменты решения фасадов

3.11. Высота помещений детских дошкольных учреждений, регламентируется СНиП 2.08.02-89 и равна 3 м (от пола до потолка). Высоту этажа в помещениях для групп кратковременного пребывания детей, размещаемых в жилых домах, а также для учреждений менее 40 мест допускается принимать равной высоте помещений жилых зданий.

3.12. В зданиях детских дошкольных учреждений следует предусматривать: групповые помещения, помещения для физкультурных и музыкальных занятий детей, медицинские и служебно-бытовые помещения, пищеблок. Постирочные в зданиях детских дошкольных учреждений следует проектировать с учетом возможности централизованной стирки детского белья на фабриках-прачечных.

На рис. 31 представлена принципиальная функциональная схема детского дошкольного учреждения, в которой могут быть выделены группа помещений, используемых детьми и группа помещений, предназначенных для административно-хозяйственного обслуживания.

К первой группе помещений относятся: групповые ячейки, количество и тип которых определяется назначением, вместимостью и комплектацией учреждения; помещения для музыкальных, физкультурных и специализированных занятий с детьми (зал для музыкальных и гимнастических занятий, плавательный бассейн, логопедический кабинет, класс предметно-практического обучения и др.), медицинские помещения. Между этими помещениями должна быть удобная функциональная связь, обеспечивающая более короткий путь для детей внутри здания.

Рис. 30. Пример пристройки к жилому дому группового отделения детского сада на четыре группы в экспериментальном проекте комплекса дошкольного воспитания для микрорайона с высокой плотностью застройки и централизованным административно-хозяйственным обслуживанием (ЦНИИЭП учебных зданий)

а - разрез; б - планы этажей

Описание: 17

1 - групповая; 2 - спальня; 3 - раздевальня; 4 - туалетная; 5 - хозяйственные помещения; 6 - медицинские помещения; 7 - кабинет заведующего; 8 - навес; 9 - зал

Рис. 31. Схема функциональной взаимосвязи групп помещений в дошкольном учреждении.

Ко второй группе помещений относятся: служебно-бытовые помещения, пищеблок и постирочная, технические помещения.

3.13. Наиболее прогрессивной формой организации административно-хозяйственного обслуживания является его полная или частичная централизация на микрорайон или жилой район. В первую очередь это должно касаться организации централизованной стирки белья на фабриках-прачечных, что улучшает воздушный режим помещений, исключает лишний шум в помещениях. Там, где отсутствует возможность использования коммунальных предприятий для стирки белья, рекомендуется проектирование специальных предприятий централизованного обслуживания дошкольных учреждений, на которых осуществляется приготовление пищи и стирка детского белья.

3.14. Тщательное продумывание функционального зонирования здания, его архитектурно-пространственной структуры, размеров и форм отдельных помещений является основой для формирования интерьера дошкольного учреждения.

Среди общего числа помещений, требующих обязательного решения интерьера, основными являются помещения, предназначенные непосредственно для детей.

Назначение и принцип зонирования помещений в зданиях - важные факторы, определяющие содержание интерьера.

В соответствии с назначением интерьера его пространство делится на функциональные зоны, которые группируются в наиболее целесообразной последовательности, определяемой последовательностью происходящих процессов.

3.15. Состав и площади помещений групповых ячеек в летних павильонах следует принимать по нормам основного здания. Дополнительно следует предусматривать туалет для персонала. Состав и площади медицинских, служебно-бытовых помещений, пищеблока и постирочной для дошкольных учреждений с летними павильонами следует определять из расчета максимального количества мест в этом здании в летний период.

3.16. Поэтажное размещение помещений внутри здания должно обеспечивать удобную вертикальную связь помещений, отвечать санитарно-гигиеническим и противопожарным требованиям.

Все помещения, связанные с пребыванием детей, должны размещаться только в наземных этажах. В подвальных и цокольных этажах допускается размещать помещения согласно прил. 4 СНиП 2.08.02-89.

Помещения, в которых хранятся и перерабатываются сгораемые материалы, запрещается располагать в подвальных или цокольных этажах.

В трехэтажных зданиях на третьем этаже рекомендуется располагать только помещения старших дошкольных групп, залы для музыкальных занятий, а также служебно-бытовые помещения и прогулочные веранды (рис. 32).

3.17. При решении вопросов внутренней планировки зданий детских дошкольных учреждений должны учитываться требования по обеспечению нормативной шумовой характеристики в том или ином помещении. Так, например, в спальных помещениях нормы допустимого шума в ночное время (23 - 7 ч) - 30 ДБа, в дневное время (7 - 23 ч) - 40 ДБа.

Рис. 32. Трехэтажное здание яслей-сада на 190 мест в конструкциях 1.090.1-1 в г. Калинине (ЦНИИЭП учебных зданий)

а - план первого этажа; б - план второго этажа; в - план третьего этажа

1 - приемная; 2 - кабинет заведующей; 3 - комната завхоза; 4 - кухня с раздаточной; 5 - заготовочная; 6 - хозяйственная кладовая; 7 - медкомната с процедурной; 8 - стиральная; 9 - гладильня; 10 - холл; 11 - комната персонала (с гардеробной); 12 - комната для хранения колясок, санок, лыж; 13 - спальни.; 14 - игровые; 15 - электрощитовая; 16 - комната ручного труда; 17 - зал для физкультурных занятий; 18 - комната занятий по развитию речи; 19 - методический кабинет; 20 - кладовая спортинвентаря; 21 - инвентарная; 22 - кладовая чистого белья; 23 - раздевальня; 24 - групповые

Чтобы обеспечить эти требования, необходимо контролировать выбор наружных и внутренних ограждающих конструкций по их звукоизолирующей способности.

Акустическое благоустройство помещений достигается в соответствии с их назначением, рациональным зонированием здания (шумные помещения не должны быть рядом со спальными).

3.18. В зданиях яслей-садов рекомендуется предусматривать использование групп помещений первого или цокольного и подвального этажей для противорадиационных укрытий детей, персонала и части населения, проживающего вблизи.

При этом для достижения необходимой вместимости подвальных и цокольных этажей допускается размещение в их составе сверхнормативных помещений по заданию на проектирование.

Группы помещений, предназначенные для использования под противорадиационные укрытия, рекомендуется объединять в компактный блок взаимосвязанных помещений. Количество входов принимается по расчету, но не менее двух, в том числе допускается изнутри здания и снаружи.

При входах рекомендуется предусматривать тамбуры, помещения для переодевания, помещения для загрязненной одежды, санитарные узлы общие для детей младшего, старшего возраста и взрослых, комнату или пост медицинской сестры, буфетную с помещением для подогревания пищи.

3.19. Группы помещений, предназначенные для использования под противорадиационные укрытия, желательно проектировать с расчетом на минимальные затраты времени и средств на их переоборудование и срочное повышение защиты от ионизирующих излучений. При этом следует учитывать преобладание работ вручную.

Массу строительных элементов для усиления стен и оконных проемов с целью срочного повышения защиты помещений от ионизирующих излучений рекомендуется принимать до 80 кг.

3.20. Все помещения, связанные с длительным пребыванием детей, должны иметь естественное освещение. При этом коэффициент естественной освещенности (КЕО) в групповой должен быть не менее 1,5 %, в спальне - не более 1 %.

Освещение вторым светом допускается согласно п. 1.156 СНиП 2.08.02-89 в туалетных во всех климатических районах, а также в раздевальных детских учреждений, проектируемых для строительства в IА, IБ, IГ климатических подрайонах, кроме того - в моечной кухонной посуды.

Заполнение проемов для освещения вторым светом следует производить закаленным или армированным стеклом или стеклоблоками.

Без естественного освещения могут быть буфетные, приемная изолятора, комната персонала, кладовая чистого белья (при наличии в здании комнаты кастелянши).

3.21. Системы верхнего света и в том числе зенитные фонари с куполами из органического стекла допускается применять в сочетании с боковыми светопроемами в залах для музыкальных занятий, гимнастических занятий, а также в раздевальных, игротеках, бассейнах и лестничных клетках.

Общая суммарная площадь зенитных фонарей с куполами из органического стекла не должна превышать 15 % общей площади покрытия, расстояние между ними должно быть не менее 1,5 м, а от противопожарных стен - 5 м.

Купола зенитных фонарей из органического стекла должны быть защищены из помещения металлическими створчатыми диафрагмами, автоматически закрывающимися при пожаре, или экранами из армированного стекла.

По периметру фонаря необходимо устраивать фартук из несгораемых материалов шириной не менее 200 мм. Утеплители в покрытии с зенитными фонарями разрешается применять только несгораемые.

Стенки опорного элемента зенитного фонаря рекомендуется окрашивать светлыми белыми красками с коэффициентом отражения не менее 65 %.

Проектирование опорного элемента противопожарной защиты, их крепление необходимо выполнять в соответствии с «Рекомендациями по проектированию и устройству зенитных фонарей с куполами из органического стекла» (М.: Стройиздат, 1978).

3.22. Ориентацию окон помещений по сторонам горизонта в зданиях детских дошкольных учреждений рекомендуется принимать по табл. 7.

Таблица 7

№ п.п.

Помещения

Ориентация окон помещений по расчетным географическим поясам северной широты

севернее 60°

60 - 45°

южнее 45°

оптимальная

допустимая в азимутах

оптимальная

допустимая в азимутах

оптимальная

допустимая в азимутах

1

2

3

4

5

6

Т

8

1

Групповая

Ю

От 70° до 290°

Ю

От 85° до 275°

Ю

От 25° до 335°

2

Спальня

В

Любая

В

Любая

с

Любая

3

Зал для музыкальных и гимнастических занятий, палаты изолятора, комната с ванной для массажа, физиотерапевтический кабинет

ю

«

Ю

«

ю

«

4

Кухня, заготовочный и доготовочный цехи

С

Любая

С

Любая

С

Любая

5

Медицинская и процедурная комнаты

В

«

В

«

В

«

3.23. При проектировании зданий рекомендуется в групповых предусматривать угловое или двухстороннее освещение, что обеспечивает практически любое положение здания по отношению к сторонам горизонта.

Во избежание перегрева в помещениях с естественным освещением, ориентированных на азимуты 200 - 275° для районов 60 - 45° с.ш. и азимуты 90 - 290° для районов южнее 45° с.ш., рекомендуется предусматривать солнцезащитные устройства (СЗУ).

3.24. СЗУ должны полностью экранировать прямые солнечные лучи и защищать помещение от перегрева. В отдельных случаях регулируемые СЗУ могут использоваться для снижения или полного исключения естественного освещения. Конструкция регулируемых СЗУ в исходном положении не должна уменьшать светоактивную площадь оконного проема и снижать нормируемую величину КЕО, а также не препятствовать проветриванию помещения через элементы оконного заполнения.

Регулируемые СЗУ должны соответствовать размерам световых проемов и типу их заполнения, быть надежны в работе и удобны в эксплуатации.

3.25. В дошкольных учреждениях могут применяться внутренние, межстекольные и наружные СЗУ (рис. 33). Внутренние СЗУ используются для ограничения блескости и обеспечения светового комфорта, межстекольные и наружные - для защиты от перегрева и обеспечения светового комфорта.

Тип стационарных СЗУ выбирается в зависимости от климатического района и ориентации оконных проемов помещения (табл. 8).

Таблица 8

Тип СЗУ

Ориентация оконных проемов

Примечания

Козырьки

Ю

Целесообразны для 40° с. ш. и южнее

Веранды и галереи

Ю, ЮЮЗ, ЮЮВ

Для IV климатического района

ЮЮЗ, ЮВВ

Лоджии

Ю, ЮЮЗ, ЮЮВ, ЮЗ, ЮВ

Для III - IV климатических районов

Ячеистый

Ю, ЮЮЗ, ЮЮВ, ЮЗ, ЮВ

То же

Вертикальный

ЮЗЗ, ЮВВ, З, В, ССЗ, ССВ

Для всех климатических районов

Теплопоглощающие стекла

Любая

Для снижения проникающей радиации

Рис. 33. Схемы СЗУ

а - маркизы сплошные; б - шторы сетчатые (сплошные) внутренние; в - жалюзи горизонтальные; г - шторы жалюзийные межстекольные; д - то же, внутренние

3.26. Поручни в зданиях детских дошкольных учреждений должны располагаться: для детей - у стен или на ограждении лестниц на высоте 0,5 м; для взрослых - 0,85 м.

На остекленных дверях должны предусматриваться защитные решетки высотой не менее 1,2 м.

3.27. Наружные входы в здания детских дошкольных учреждений следует предусматривать:

с тройными тамбурами в зданиях, проектируемых для IА, IБ, IГ климатических подрайонов; наружная дверь одного из входов, который не используется для эвакуации детей, должна открываться внутрь;

с двойными тамбурами в зданиях, проектируемых для IВ, IД климатических подрайонов, II и III климатических районов (за исключением IIIБ климатического подрайона), в наружных входах, ведущих в групповые ячейки;

без тамбуров в зданиях, проектируемых для IIIБ климатического подрайона и IV климатического района (за исключением районов с большой запыленностью воздуха), в наружных входах, не ведущих в ясельные групповые ячейки.

Во всех остальных случаях наружные входы следует проектировать с одним тамбуром.

Глубина тамбура должна быть не менее 1,6 м. Принципиальные схемы организации тамбуров представлены в табл. 9.

3.28. В двойных и тройных тамбурах рекомендуется наружный тамбур предусматривать неотапливаемый, используя его как саночную и колясочную. Следует избегать размещения наружных входов непосредственно против входов в раздевальни групповых ячеек из-за возможности сквозного их продувания. Также не рекомендуется проход в залы и плавательные бассейны устраивать мимо наружных входов в здания.

Таблица 9

№ п.п.

Схемы организации тамбуров

Климатические районы

1

Тройной

IА, IБ, IГ

2

Двойной

IВ, IД, II, III (за исключением IIIБ) - наружные входы, ведущие в групповые ячейки

3

Одинарный

II, III - все входы, кроме ведущих в групповые ячейки; IV (в районах пыльных бурь) входы в ясельные групповые ячейки

4

Без тамбура

IIIБ, IV - кроме входов в ясельные группы

В районах с большой запыленностью воздуха входы в здания детских дошкольных учреждений рекомендуется осуществлять через тамбуры с двойными дверями. Входы в тамбуры должны быть защищены со стороны господствующих ветров глухими экранами или стенками. Входные и внутренние двери должны быть со сплошным заполнением и снабжены прокладками для герметизации.

3.29. Для зданий детских дошкольных учреждений следует, как правило, предусматривать встроенную мебель в следующих помещениях:

групповых - ленточные столы под окнами и шкафы для пособий художественной и методической литературы;

спальнях - встроенные откидные или выкатные кровати и шкафы для постельного белья;

раздевальнях - шкафы для одежды детей и персонала групп;

туалетных - хозяйственные шкафы;

залах - шкаф и стеллажи для хранения пособий;

кабинете заведующего, методкабинете - шкафы для книг, методических пособий, образцов детского творчества;

кладовых - стеллажи;

комнате персонала - шкафы для хранения одежды персонала.

Встроенные шкафы для хранения хозяйственного инвентаря допускается размещать в туалетных и кладовых.

3.30. Для установки встроенной мебели в строительных конструкциях зданий рекомендуется предусматривать ниши.

Номенклатура и размеры встроенной мебели и оборудования представлены в табл. 10.

Таблица 10

№ п.п.

Помещения

Оборудование

Схема оборудования с функциональными размерами

1

Групповая

Отделение с откидными кроватями

Отделение между откидными кроватями

Стол ленточный подоконный

Описание: 18

Шкаф для пособий и игрушек, индивидуальных комплектов одежды

2

Раздевальня

Отделение для одежды детей от 1 года до 2 лет (для двух комплектов детской одежды)

Отделение для одежды детей от 2 до 6 лет с подсушкой и без подсушки (для одного комплекта одежды и с верхней емкостью универсального использования)

Отделение для одежды персонала

3

Туалетная

Шкаф для хранения хозяйственного инвентаря

4

Зал для музыкальных и физкультурных занятий

Шкаф для спортинвентаря

5

Кабинет заведующей

Шкаф

6

Методический кабинет

«

7

Помещение для хранения продуктов

Стеллаж для продуктов

Для облицовки и отделки мебели и оборудования (столов детских, ленточных подоконных столов, буфетных стоек, шкафчиков для детской одежды и др.) могут быть рекомендованы: декоративный бумажно-слоистый пластик, жесткие древесно-волокнистые и древесно-стружечные плиты с лицевым слоем из бумажно-столярных напрессовок или цветочных пленочных покрытий, а также различные виды эмалевых красочных составов, дающих цветные матовые покрытия.

ОТДЕЛКА ПОМЕЩЕНИЙ

3.31. Полы и стены помещений детских дошкольных учреждений должны быть гладкими и иметь отделку, допускающую уборку влажным способом. При отделке рекомендуется применять высококачественные отделочные материалы, отвечающие необходимым эксплуатационным и эстетическим требованиям.

Применение материалов, не удовлетворяющих физиологическим требованиям, должно быть исключено. Отделка должна способствовать созданию здоровой атмосферы для пребывания детей в детском учреждении.

Отделочные материалы, применяемые в интерьере, не должны выделять во внешнюю среду вредные вещества в количествах, превышающих предельно допустимые концентрации.

К физиологическим требованиям относятся также требования цветовой гигиены отделки, зависящие от применяемых материалов, которые влияют на психику ребенка.

3.32. Отделка стен должна производиться только в светлых тонах. Применение цвета оказывает активное эмоциональное воздействие, поэтому чрезмерная насыщенность цветовой гаммы может вызывать отрицательную психологическую реакцию в неустойчивой эмоциональной сфере ребенка. Целенаправленное использование цвета в соответствии и с назначением помещения и на основе закономерностей цветового воздействия позволяет обеспечить психологический комфорт для детей и обслуживающего персонала. Проектируя цветовое решение интерьеров, необходимо помнить о задаче создания единой цветовой композиции всего здания детского учреждения с учетом функциональной взаимосвязи помещений. Следует учитывать возможные изменения восприятия цвета при естественном и искусственном освещении.

3.33. Холодные цвета хорошо выявляются светом люминесцентных ламп типа ЛБ (белого цвета) и ЛХБ (холодно-белого цвета).

Теплые цвета хорошо выявляются при использовании ламп типа ЛТБ (теплого белого цвета) и ламп накаливания.

Наиболее точной цветопередачи можно добиться, применяя лампы типа ЛДЦ (белого дневного цвета).

Матовая отделка основных плоскостей в помещении способствует рассеянному освещению. Рассеянный свет с мягкими тенями способствует расширенно пространства и иллюзорно облегчает объемы.

Коэффициент отражения от стен должен быть не менее 50 - 70 %.

3.34. В специализированных дошкольных учреждениях для детей с нарушением зрения ограждающие поверхности основных помещений групповой ячейки должны быть окрашены водоэмульсионной краской или оклеены влагостойкими обоями, дающими матовую поверхность. Рекомендуются чистые, преимущественно светлые тона с коэффициентом отражения потолка 70 - 80 %, стен 50 - 70 %, пола 25 - 30 %, поверхности столовой 45 % (при выборе цветов можно использовать «Альбом колеров» В.К. Крауклис. - Л.: Стройиздат, 1985).

В специализированных дошкольных учреждениях для слабовидящих детей окраска дверей, дверных наличников, выступающих частей здания, границ ступеней, мебели и оборудования должна контрастировать с окраской стен.

3.35. Полы групповых, раздевальных, туалетов ясельных групп, залов должны иметь утепленную основу.

Материалы, применяемые для покрытия полов, должны быть стойкими на истирание и водо- и цветостойкими, теплыми и улучшающими звукоизоляцию, не изменяющимися в размерах.

Для покрытия полов в помещениях групповой ячейки и помещениях общего назначения (залов для музыкальных и гимнастических занятий, кабинеты заведующего, методическом кабинете и пр.) могут быть рекомендованы различные виды линолеума ПВХ на теплозвукоизолирующей подоснове или с тепло-звукоизолирующим пористым слоем, покрытия рулонные ковровые на основе синтетических волокон, плитки ПВХ для полов, паркетные щиты.

В туалетных для ясельной группы и раздевальнях, в помещениях пищеблока и постирочной, медицинских комнатах и общественно-бытовых помещениях для покрытия полов рекомендуется линолеум ПВХ с теплозвукоизолирующим пористым слоем и плитки ПВХ для полов.

В туалетных для старших групп и некоторых помещениях пищеблока и постирочной для покрытия полов рекомендуются плитки керамические. В местах, где дети могут быть без обуви, на керамический пол должны быть уложены теплые съемные коврики или дорожки.

3.36. Материалы, применяемые для отделки стен, должны обладать влагостойкостью, а высотой до 180 см от пола рассчитываются и на механические воздействия. Они также должны быть не изменяемые в размерах и цветостойкими.

В музыкальных и гимнастических залах стены могут быть облицованы панелями (деревянными, асбестоцементными, из бумажно-слоистых пластиков, древесно-волокнистыми и гипсокартонными), а для поверхностей выше панелей и для потолка могут быть рекомендованы фактурные красочные составы типа «Изофас».

В помещениях групповой ячейки, таких, как игральная и спальня, а также в помещениях администрации для отделки стен могут быть рекомендованы различные виды моющих обоев и пленок.

В помещениях раздевален наряду с масляной и водоэмульсионной покраской могут применяться для отделки стен пленки ПВХ с клеевым слоем; линкруст, срок службы которого дольше, чем обоев и полимерных пленок, но требует периодической окраски.

3.37. Стены в кухне, буфетных, постирочной, туалетных, кладовой овощей, охлаждаемых камерах следует облицовывать керамической плиткой на высоту 1,5 м. В пищеблоках, работающих на сырье, в зоне заготовочной облицовку керамической плиткой следует производить на высоту 1,8 м. Для потолка и стен выше панелей может быть использовано покрытие эмульсионными красками.

3.38. В специализированных дошкольных учреждениях для детей с нарушением интеллекта в залах музыкальных и гимнастических занятий в качестве материалов для покрытия пола рекомендуется использовать плитки ПВХ (размером 300´300 мм двух или трех цветов, дающие возможность образовать любой геометрический рисунок на поверхности пола, что облегчает построение детей. Также возможно устройство деревянного реечного пола, на который эмалевыми красками можно нанести любой рисунок.

ГРУППОВЫЕ ПОМЕЩЕНИЯ

3.39. Каждая возрастная группа детей должна размещаться в помещениях групповой ячейки, которые должны быть изолированными от помещений других групповых ячеек. При этом должна быть обеспечена удобная связь групповых ячеек с помещениями для физкультурных, музыкальных и специализированных занятий, а также медицинскими помещениями и пищеблоком.

В групповой ячейке должны быть созданы оптимальные условия для занятий, отдыха, игр, еды, гигиены детей, хранения одежды. В дошкольных учреждениях общего типа для этого в составе групповой ячейки предусматриваются: групповая - для игр, занятий, принятия пищи; спальня - для дневного (и ночного) сна детей; раздевальня - для переодевания детей и хранения верхней одежды; туалетная - для гигиены; буфетная - для мытья и хранения посуды.

3.40. Помещения групповой ячейки рекомендуется проектировать таким образом, чтобы взаимосвязь всех помещений осуществлялась через групповую, которая функционально должна быть связана с раздевальней, спальней, туалетной и буфетной (рис. 34).

Целесообразно предусматривать связь помещения спальной с туалетной, туалетной с раздевальней, а также связь раздевальни ясельной группы с пристроенным теневым навесом (через входные тамбуры).

Рис. 34. Схема взаимосвязи помещений в групповой ячейке

1 - групповая; 2 - спальня; 3 - туалетная; 4 - буфетная; 5 - раздевальня; 6 - входные тамбуры; 7 - теневой навес; 8 - колясочная (саночная);

I - вход в групповую ячейку с улицы; II - то же, из здания; III - взаимосвязь помещений обязательная; IV - то же, желательная

3.41. Пространственная среда помещений, предназначенных для детей, должна быть ограничена зонами, доступными для визуального освоения их ребенком. Это является обязательным психологическим фактором, от которого зависит чувство уверенности. Изменение пространственной среды связано со сменой деятельности детей - например, объединение всех зон групповой ячейки для проведения коллективных подвижных игр, показа диафильмов или театрализованных детских праздников и пр. Изменение пространственной среды в групповой ячейке может достигаться путем использования раздвижных перегородок и трансформируемой мебели (кроватей, столов, стеллажей с игровым оборудованием и т.д.).

3.42. Масштабность интерьера заключается в соответствии размеров отдельных элементов и восприятия их в целом антропометрическим параметрам возрастных групп детей и характеру деятельности в данном помещении. Интерьер помещения состоит из двух взаимосвязанных масштабов: архитектурных элементов самого помещения (соотношение оконных проемов и площади стены, членения поверхности стен, пола и т.д.); элементов игрового оборудования и мебели (манежа, горок, столов и стульев, стеллажей, кроватей и т.д.). Внутренняя среда должна также обладать визуальной связью с внешней, окружающей его природно-игровой средой. Следствием этого принципа является визуальная «открытость» интерьера и связь с окружающей здание детского учреждения средой через оконные проемы, величина которых в целом не должна разрушать целостности созданной внутренней среды, а отдельные членения окон и рисунок переплетов должны соответствовать общему внутреннему масштабу игрового оборудования и антропометрическим параметрам детей.

3.43. Все помещения групповой ячейки следует размещать, как правило, на одном этаже. Раздевальни дошкольных групповых ячеек, расположенные на втором и третьем этажах, допускается располагать на первом этаже здания. Это может быть вызвано планировочной необходимостью, а также целесообразностью приближения ко входам в здание раздевальных детских групп в IА, IБ и IГ климатических подрайонах (для того, чтобы детям в тяжелой зимней одежде не приходилось подниматься на второй этаж).

3.44. В помещениях групповых детских дошкольных учреждений, проектируемых для строительства во всех климатических районах, кроме IА, IБ и IГ климатических подрайонов, следует предусматривать сквозное или угловое проветривание (табл. 11).

В IА, IБ, IГ климатических подрайонах сквозное проветривание не допускается, глубину спальных помещений возможно предусматривать до 9 м.

В ветреных и пурговых подрайонах (IБ, IГ) при ориентации зона спален и игровых в помещении групповой ясельных и дошкольных групп следует учитывать направление преобладающих ветров с одновременным соблюдением норм инсоляции.

3.45. Помещение раздевальни предназначено для приема, осмотра детей, переодевания и хранения верхней одежды (рис. 35). В дошкольных учреждениях, как общего типа, так и специализированных, площадь раздевален следует принимать не менее 18 м2, а в IА, IБ и IГ климатических подрайонах - 20 м2.

Таблица 11

№ п.п.

Схемы

Климатический район

1

Одностороннее проветривание отдельных помещений

IА, IБ, IГ

2

Угловое или сквозное проветривание групповой через спальню или раздевальню

IВ, IД, II, III

3

Самостоятельное сквозное или угловое проветривание групповой и спальни

IV

Примечание. Условные обозначения: а - групповая; б - спальня; в - раздевальня.

Рис. 35. Размещение оборудования с функциональными зонами в раздевальнях

а - в ясельных группах; б - в дошкольных группах;

1 - шкаф для одежды детей; 2 - туалетно-пеленальный стол; 3 - скамья для раздевания

Планировка раздевален должна предусматривать возможность размещения шкафов по периметру помещений для удобства наблюдения за детьми. При размещении шкафов для одежды вдоль стен необходимо иметь минимум 4,53 м (для 15 детей), 6,04 м (для 20 детей) и 7,55 м (для 25 детей) фронта стен, свободных от оконных и дверных проемов. При этом отдельные участки стен должны быть кратны 302 мм, т.е. длине фронта одного унифицированного шкафного отделения.

Ширина помещений раздевален должна составлять не менее: 3,4 м - при размещении шкафов вдоль противоположных стен и двух рядов скамей для переодевания; 3 м - при размещении двух рядов шкафов и одного ряда скамей.

В раздевальнях следует предусматривать шкафы с сушкой для детской одежды.

При проектировании помещений следует предусматривать возможность отопления и вентиляции шкафов для одежды (для всех климатических районов, кроме IIIБ и IV); вентиляционный короб должен находиться на расстоянии от пола не менее 1,3 м (в старшей ясельной группе для детей в возрасте 2 - 3 лет и в дошкольных группах).

При проектировании помещений раздевален следует избегать диагонального расположения дверных проемов, так как при этом возникают перекрещивающиеся потоки движения людей, что затрудняет функциональное использование помещений. В помещениях, где раздеваются дети с нарушением опорно-двигательного аппарата, зону переодевания и хранения одежды следует располагать рядом (рис. 36).

Рис. 36. Примеры оборудования раздевальни

3.46. Общий вход допускается проектировать не более чем на две ясельные или четыре дошкольные группы.

Для хранения колясок, санок, лыж при входах в помещения групповых ячеек следует организовывать специальные места под козырьками площадью не менее 8 м2 (рис. 37).

3.47. В детских дошкольных учреждениях общего типа площадь групповой следует принимать из расчета на одно место не менее: в ясельных группах - 2,5 м2 в дошкольных группах - 2 м2 при существующей вместимости детских групп - не менее 30 м2).

Важнейшее требование, предъявляемое к групповой, - наличие хороших условий для игр и занятий детей, в соответствии с чем помещение должно иметь зонирование на игровое пространство и пространство, отведенное для занятий и питания детей, оборудованное столами и стульями. Размещение столов и стульев меняется в зависимости от вида деятельности детей в помещении (рис. 38).

Для обеспечения нормальной зрительной работы детей во время занятий, особенно в дошкольных группах, должна быть предусмотрена возможность симметричного размещения столов относительно грифельной доски. Расстояние от первого ряда столов до грифельной доски должно быть не менее 1,05 м.

3.48. В помещении групповой цветовая отделка стен должна быть решена в спокойной гамме, так как это помещение связано с длительным пребыванием детей, содержит в себе несколько функциональных зон и максимально насыщено игровым оборудованием, мебелью, большим ассортиментом игрушек, которые в сумме составляют очень пеструю гамму. Интенсивный цветовой акцент может быть введен при выборе материала для покрытия пола.

Рис. 37. Примеры организации мест для хранения колясок, санок, лыж

1 - место для хранения колясок, санок, лыж; 2 - раздевальня; 3 - групповая; 4 - спальня; 5 - туалетная; 6 - теневой навес

Рис. 38. Размещение детских столов и стульев с функциональными зонами в групповой

а - для детей ясельного возраста; б, в, г - для детей дошкольного возраста

Применение в отделке групповой теплой цветовой гаммы создает впечатление постоянного присутствия солнечного света.

В зоне для занятий рекомендуется выделение с помощью цвета стены, на которой разметается доска и рядом с ней стол преподавателя. Выделение стены цветовым акцентом способствует фиксации внимания детей и большей сосредоточенности. Оптимальным цветом доски считается темно-зеленый, который должен контрастировать со стеной.

При проектировании интерьеров необходимо учитывать тот факт, что горизонт видения у детей разного возраста различен (у детей четырех лет он не совпадает с горизонтом видения ребенка в возрасте одного года). Все изобразительные элементы должны располагаться на уровне горизонта - 30°. Из этого следует, что все интенсивные цветовые пятна рекомендуется располагать на расстоянии 1 - 1,2 м от уровня пола (рис. 39).

3.49. В детских дошкольных учреждениях общего типа площадь спален следует принимать из расчета на одно место не менее: в ясельных группах - 1,8 м2, в дошкольных группах - 2 м2 (при существующей вместимости детских групп соответственно не менее 36 и 50 м2).

В IА, IБ и IГ климатических подрайонах площадь спален следует увеличивать не менее чем на 10 %.

Спальни ясельных групп рекомендуется оборудовать стационарными кроватями, дошкольных - встроенными (рис. 40) или выкатными кроватями (рис. 41). Секционная конструкция встроенных шкафов с откидными кроватями обеспечивает возможность различной компоновки шкафных отделений. Двухъярусные кровати Минздравом СССР не рекомендуются для применения.

Рис. 39. Примеры решения интерьера групповой

Рис. 40. Встроенные откидные кровати ленточного типа (ЦНИИЭП учебных зданий)

а - общий вид; б - функционально-габаритные схемы;

1 - секция со встроенными кроватями; 2 - межкроватная секция для хранения спальных принадлежностей, игрушек, пособий

Рис. 41. Тумба-кровать трехъярусная (г. Минск)

а - общий вид; б - функционально-габаритная схема

Возможно применение раскладных, складируемых кроватей с жестким ложем (по аналогии с применяемыми в ГДР, ВНР и других странах).

При отсутствии стационарных кроватей в спальнях дошкольных групп рекомендуется между групповой и спальней предусматривать раздвижные перегородки, позволявшие организовать более универсальное использование помещений, создать лучшие условия для двигательной активности детей (табл. 12). В помещениях для сна необходимо, чтобы ребенок испытывал состояние равновесия и покоя, чему способствует использование в отделке помещений таких цветов, как оттенки синего и зеленого, одновременно дающие ощущение чистоты воздуха.

3.50. Групповая ячейка специализированного дошкольного учреждения имеет более расширенный состав помещений по сравнению с дошкольными учреждениями общего типа.

Взаимосвязь помещений, входящих в состав групповой ячейки, должна быть основана на центральном расположении групповой и комнаты для специальных занятий, которые функционально связаны соответственно с раздевальней, спальней, туалетной и буфетной (рис. 42).

Состав и площади групповых ячеек специализированных дошкольных учреждений в расчете на одну группу детей (15 человек) рекомендуется принимать не менее, м:

Раздевальня

18

Групповая

50

Комната для специальных занятий

24

Спальня

36

Туалетная (с ванной)

12

Буфетная

3

 

Таблица 12

Помещения

Схема раздвижной перегородки с функциональными размерами

Групповая

Остекленная

Зал для музыкальных и физкультурных занятий

Щитовая

Описание: Untitled-1 copy

Рис. 42. Помещения групповой ячейки специализированных дошкольных учреждений

а - схема функциональной взаимосвязи помещений; б - принцип выделения персональных мест в групповой ячейке

1 - класс; 2 - туалетная; 3 - раздевальня; 4 - вход; 5 - коммуникационный узел; 6 - буфетная; 7 - игровая; 8 - спальня

Комната для специальных занятий используется как:

класс для занятий детей с нарушением слуха, интеллекта и опорно-двигательного аппарата;

кабинет тифлопедагога для слабовидящих детей;

плеопто-ортоптическая комната для детей с косоглазием и амблиопией;

кабинет логопеда для детей с нарушением речи.

3.51. Групповая - наиболее используемое помещение, поэтому особое внимание следует уделять ее пространственной организации и оснащению оборудованием.

Расстановка мебели в групповой для детей с двигательными нарушениями должна обеспечить их беспрепятственное перемещение по всему помещению, что обусловливает островное размещение и закрепление мебели. Для этого следует выгораживать центрально размещенной мебелью функциональные зоны друг от друга и от путей основных перемещений. Тыльная сторона мебели, выходящая на проход, оборудуется облегчающими движение опорными поручнями.

Таким образом, помещение групповой представляет собой стационарно решенные зоны и обтекающие их пути. При этом освобождается периметр стен и ограждаются функциональные зоны (рис. 43).

3.52. Класс для занятий детей с нарушением слуха предназначен для систематического проведения специального обучения с использованием сурдотехнической аппаратуры и направленного на сохранение и развитие остаточного слуха, а также формирование словесной речи на основе всех сохранных анализаторов (зрительного, тактильно-вибрационного).

Рис. 43. Меры, принимаемые в специализированных дошкольных учреждениях

а - по предупреждению травм и ушибов; б - по обеспечению ориентации детей

1 - выделение элементов оборудования интерьера; 2 - выделение ручек дверей и мебели; 3 - контрастное решение поручня; 4 - выявление отдельных элементов функциональной зоны; 5 - отделение функциональных зон; 6 - обозначение путей; 7 - выделение дверного проема; 8 - различия в решении интерьеров помещений; 9 - обозначение транзитного пути; 10 - выделение входа в помещение; 11 - способ и направление открывания двери; 12 - предупреждение о препятствии; 13 - предупреждение об опасности

Применение слуховой аппаратуры требует, чтобы в классе для занятий стены и потолок были отделаны акустической плиткой, в кабинете радиотехника с местами для аудиологических исследований детей была обеспечена воздушная и ударная звукоизоляция, хозяйственные помещения с электрооборудованием были изолированы от классов для занятий.

3.53. В классе для детей с поражением опорно-двигательного аппарата проводятся занятия по развитию речи, внимания, памяти, слуха, пространственно-временных представлений, так как дети, ограниченные в передвижении, не могут приобрести того запаса знаний и представлений об окружающем мире, которым овладевают их здоровые сверстники.

Класс оборудуется двухместными столами, доской и шкафом для пособий. Вдоль свободных участков стен для облегчения передвижения детей по классу следует предусматривать опорный поручень, который устраивается на высоте 0,5 м от уровня пола; диаметр поручня 0,05 м. Во избежание травм детей мебель жестко крепится к полу. Для свободного прохода освобождается периметральный проход вдоль всего помещения. При размещении детских столов необходимо обеспечить свободный доступ к каждому ребенку, достаточный проход между столами и возможность самостоятельного передвижения детей с нарушенной моторикой.

3.54. В классе для детей с нарушением интеллекта проводится коррекционно-воспитательная работа по формированию у детей элементарных математических представлений, развитию речи, изобразительной деятельности, восприятия, мышления для возможно более полного восстановления их нервно-психической деятельности и подготовке к обучению во вспомогательной школе.

Для обеспечения необходимой индивидуализации занятий с умственно отсталыми детьми и максимального учета структуры дефекта в каждом конкретном случае группа в 12 человек разделяется на две подгруппы. С одной из них проводятся занятия в классе, с другой - в групповой. В классе дети занимаются за одноместными столами, так как у некоторых из них отмечается повышенная возбудимость, беспокойство, склонность к вспышкам раздражительности.

3.55. Кабинет тифлопедагога входит в состав групповой ячейки специализированного дошкольного учреждения для слепых и слабовидящих детей. Занятия проводит специалист (тифлопедагог) с двумя-тремя детьми одновременно, имеющими идентичные отклонения. В основе занятий лежит активное общение ребенка со взрослым, которое обеспечивает образование связи слова с обозначаемым им предметом и необходимым действием. Для этого на площади кабинета необходимо иметь свободное пространство, которое используется для развития у детей двигательных навыков.

3.56. Плеопто-ортоптическая комната предусматривается одна на две групповые ячейки специализированного дошкольного учреждения для детей с нарушением зрения (косоглазием и амблиопией).

Основной задачей воспитания детей этой категории нарушений является корректировка и лечение зрения на специальной аппаратуре, которая проводится в плеопто-ортоптической комнате.

В плеопто-ортоптической комнате выделяется темное место для работы на большом безрефлексном офтальмоскопе. Стены этого помещения должны быть покрашены в темно-зеленый цвет. Занятия проводятся ежедневно и в течение всего дня с одним - двумя детьми, специально обученным медицинским персоналом.

Плеопто-ортоптическую комнату следует проектировать длиной на менее 6 м и ориентировать предпочтительно на север с отклонением до 22,5° в обе стороны или применять солнцезащитные устройства. Ее следует изолировать от кухни и постирочной, имеющих технологическое электрооборудование.

Плеопто-ортоптическая комната и помещения групповой ячейки, из которых дети приходят на лечение, должны быть расположены на одном этаже и вблизи друг от друга, так как дети после процедур должны отдыхать, в связи с тем, что первые 3 - 5 минут после процедуры они плохо видят.

В специализированных дошкольных учреждениях для детей с нарушением зрения (с косоглазием и амблиопией) рекомендуется одну из плеопто-ортоптических комнат, предусмотренных на первом этаже, располагать смежно с кабинетом врача-окулиста и приемной для родителей, которые могут получать у врача консультации по возможной работе с детьми дома, особенно в то время, когда ребенок не посещает дошкольное учреждение (например, в летний период).

3.57. В отличие от дошкольных учреждений общего типа спальни в специализированных учреждениях должны обязательно выделяться в отдельное помещение и оборудоваться стационарными кроватями. Применять раздвижные перегородки между помещениями спальни и групповой, а также трансформируемое оборудование (откидные, выкатные и выдвижные кровати), не разрешается.

3.58. Система естественного освещения в детских и дошкольных учреждениях могут выполняться в виде односторонних, двусторонних и угловых светопроемов.

Предварительный расчет необходимой площади световых проемов в помещениях и уточненный расчет КЕО следует проводить по главе СНиП II-4-79.

В помещениях групповых не менее 50 % оконных проемов должны быть оборудованы верхними фрамугами.

Окна групповых не допускается располагать над окнами кухни и стиральной.

3.59. При проектировании буфетных помещений в дошкольных учреждениях площадью не менее 3 м2 следует предусматривать возможность размещения встроенного буфетного оборудования, состоящего из двух основных отделений: шкафного с двухчашечной мойкой и отделения с выдвижным раздаточным столом.

Протяженность стены, необходимая для размещения буфетного оборудования, должна быть не менее 1,8 м. Общая высота буфета составляет 1,9 м.

Секционная конструкция буфетного оборудования обеспечивает возможность как левостороннего, так и правостороннего размещения отделения с мойкой в соответствии с размещением сантехнических подводок.

При решении дверного проема в буфетном помещении следует предусмотреть возможность свободного перемещения выдвижного раздаточного стола.

3.60. В детских дошкольных учреждениях общего типа площадь туалетных следует принимать из расчета на одно место не менее, м2: в ясельных группах - 0,8, в дошкольных группах - 0,65. В специализированных дошкольных учреждениях не менее 1 м2 на одно место.

Туалетные рекомендуется проектировать как единое помещение, состоящее из зоны умывания и уборной. В зоне умывания должны размещаться детские умывальники и душевой поддон, имеющий подход с трех сторон.

Зона умывания оборудуется умывальниками, вешалками для полотенец и туалетных принадлежностей. Наиболее удобным является размещение умывальников по центру помещения, так как при этом увеличиваются участки свободных стен, которые можно использовать для расстановки вешалок для полотенец.

В умывальнях вешалки для полотенец желательно размещать вдоль стен для сохранения визуальной связи между отдельными частями помещения. Для размещения вешалок по периметру помещения необходимо иметь 2,4 м (в ясельных группах) и 3 м (в дошкольных группах) фронта стен, свободного от оконных и дверных проемов. Отдельные участки стен должны быть кратны 0,6 м, т.е. длине секции вешалки на 4 - 5 крючков.

В зоне уборной должны размещаться в закрывающихся без запора кабинах детские унитазы и в закрывающейся кабине - унитаз для взрослых. Размер детской кабины в плане - 0,8´0,75 м, между кабинами следует предусматривать экран высотой 1,2 м (от пола), не доходящий до пола на 0,15 м. Ширина прохода между входом в кабину и противоположной стеной (при отсутствии на ней санитарных приборов) должна быть не менее 1 м. Слив (видуар) должен устанавливаться без кабины.

3.61. В зданиях яслей-садов, строящихся в IА, IБ, IГ климатических подрайонах, для создания наиболее благоприятных условий по преодолению гиподинамии путем повышения двигательной активности детей следует предусматривать отапливаемые прогулочные веранды площадью не менее, м2: для ясельных групп - 36, для дошкольных - 50.

Для каждой ясельной группы рекомендуется предусматривать прогулочные веранды, непосредственно примыкающие к групповым ячейкам и имеющие самостоятельные входы, что позволяет обеспечить изоляцию детей во время карантинов и упрощает организацию работы персонала (так как не возникает необходимости поднимать детей ясельного возраста на другой этаж).

Для детей дошкольного возраста прогулочные веранды могут быть общими на две-три группы. Наиболее благоприятно их расположение на уровне первого этажа (что обеспечивает хорошую связь с участком), однако допускается размещение на втором и третьем этажах здания. При этом необходимо предусматривать рациональную связь прогулочных веранд, с дошкольными групповыми ячейками.

Для повышения эффективности естественного проветривания прогулочных веранд и улучшения условий подачи свежего воздуха их помещения рекомендуется ориентировать на наветренную сторону горизонта.

3.62. В интерьерах прогулочных веранд рекомендуется активно использовать цвет, дизайн, элементы малых архитектурных форм, природные экспонаты сезонного значения, рациональные виды освещения (особенно в полярную ночь), национальные традиции народов Севера с целью достижения высоких художественно-эстетических качеств интерьеров.

При расположении прогулочных веранд в уровне первого этажа не рекомендуется проход через них в групповые ячейки (по противопожарным и гигиеническим требованиям).

3.63. Группами кратковременного режима пребывания рекомендуется обеспечивать от 5 до 15 % детей в возрасте до шести лет. Потребность в них необходимо уточнять в зависимости от местных условий. Работу групп кратковременного пребывания целесообразно предусматривать в две смены - утреннюю (с 8 до 12 часов) и вечернюю (с 16 до 20 ч). В связи с этим расчет требуемого количества групп может быть осуществлен с учетом их двухсменной эксплуатации.

Группы кратковременного пребывания дошкольников следует размещать в первых этажах жилых домов, радиус обслуживания предусматривать не более 300 м. Группы кратковременного пребывания могут предусматриваться со смешанной возрастной комплектацией: в них могут находиться дети среднего и старшего ясельного возраста (от одного года до трех лет) и дошкольного возраста (от трех до шести лет).

3.64. Для размещения групп кратковременного пребывания в жилом доме должны быть предусмотрены специальные помещения, общая площадь которых должна составлять не менее 4 м2 расчете на одно место. Общая площадь помещений для группы детей ясельного возраста (с наполняемостью 10 чел.) должна составлять не менее 40 м2, а для группы детей дошкольного возраста (с наполняемостью 15 чел.) - 60 м2.

Рекомендуемый состав и площади помещений групп кратковременного пребывания приведены в табл. 13.

Таблица 13

№ п.п.

Помещения

Площади помещений для возрастных групп, м2

среднего и старшего ясельного возраста

дошкольного возраста

1

Гардероб

8

15

2

Игровая комната

20

30

3

Туалет

5

10

4

Буфетная

5

5

5

Уборная для персонала

2

2

Итого

40

62

3.65. Помещения группы кратковременного пребывания должны быть изолированы от остальных помещений жилого дома и иметь самостоятельный выход наружу через двойной тамбур, не совмещенный со входом в жилой дом.

Допускается совмещать вход в группу кратковременного пребывания со входом в помещение для культурно-массовой работы населения в первом этаже жилого дома.

Целесообразно предусматривать вход в помещение гардероба группы кратковременного пребывания изнутри жилого дома (из одной секции, смежной с группой, или из нескольких секций, связанных коридором).

ПОМЕЩЕНИЯ ДЛЯ ФИЗКУЛЬТУРНЫХ, МУЗЫКАЛЬНЫХ И СПЕЦИАЛИЗИРОВАННЫХ ЗАНЯТИЙ С ДЕТЬМИ

3.66. Залы для физкультурных и музыкальных занятий должны предусматриваться во всех дошкольных учреждениях вместимостью четыре и более групп. Количество групп и площади залов можно принимать по табл. 14.

Таблица 14

№ п.п.

Количество групп в дошкольном учреждении

Учреждения

общего типа

специализированные

площадь зала, м2

физкультурного

музыкального

физкультурного

музыкального

1

4

-

-

75

-

2

От 4 до 6

100

-

-

-

3

8

-

-

75

60

4

Св. 6 до 8

100

-

-

-

5

Св. 8 до 14

100

50

-

-

Примечание. При каждом зале следует предусматривать кладовые по 6 м2.

3.67. Залы для музыкальных и физкультурных занятий следует размещать в здании яслей-садов так, чтобы была обеспечена их удобная взаимосвязь с групповыми ячейками дошкольных групп и старших групп яслей: при централизованной композиции - в центральной части здания с кратчайшими, предпочтительно горизонтальными, коммуникациями; при блочной - ближе к группам дошкольников; при павильонной - в корпусах с групповыми ячейками дошкольников или служебно-бытовом здании. Залы для музыкальных и физкультурных занятий рекомендуется проектировать с соотношением сторон 1:1,5 (рис. 44), но не более 1:2. Наилучшая форма зала - квадратная. Окна рекомендуется размещать с одной стороны.

Дополнительно могут быть предусмотрены с противоположной стороны высоко расположенные окна для подсвета или верхний свет.

В залах для физкультурных занятий должны быть предусмотрены устройства для крепления спортивного оборудования.

3.68. Залы для физкультурных занятий используются также и для проведения праздничных мероприятий, представлений, в проведении которых принимают участие одновременно 2 - 3 группы детей, воспитатели и по возможности родители детей. Рекомендуется одну торцевую стену зала оставлять свободной от стационарного оборудования, без оконных и дверных проемов, чтобы обеспечить возможность размещения праздничного оборудования.

3.69. Залы для музыкальных занятий могут использоваться для просмотра диафильмов и телепередач.

Рис. 44. Расстановка оборудования в залах

а - для физкультурных занятий площадью 100 м2; б - то же, площадью 75 м2; в - для музыкальных занятий

1 - стенка гимнастическая; 2 - канат; 3 - кольцо для пролезания; 4 - мостик-качалка; 5 - скамья гимнастическая; 6 - стойка для игровых пособий; 7 - стойка для прыжков; 8 - бревно гимнастическое; 9 - бревно круглое; 10 - шкаф для спортинвентаря; 11 - стул детский; 12 - пианино; 13 - табурет для пианино; 14 - шкаф для пособий

При организации зоны просмотра телепередач и диафильмов необходимо учитывать, что наилучшее восприятие изображения обеспечивается в том случае, когда изображение перпендикулярно лучу зрения. При рассмотрении сбоку допустимый угол обзора без искажения изображения равен 45° к оси изображения. В вертикальной плоскости оптимальный угол обзора равен 0 - 30°, допустимый - 30° вверх и 40° вниз от линии взора.

3.70. В специализированных дошкольных учреждениях расстановка оборудования в зале для физкультурных занятий должна обеспечивать наилучшие условия для подвижной деятельности детей, которая приобретает особо важное значение для детей с нарушением физического развития.

В зале физкультурных занятий для детей с нарушением опорно-двигательного аппарата оборудование следует предусматривать стационарно по периметру стен, чтобы освободить середину зала для ковра, на котором будет проходить большая часть занятий. В торце зала, в непосредственной близости с ковром устанавливается большое настенное зеркало (рис. 45).

Залы для музыкальных занятий в специализированных учреждениях для детей с нарушением слуха следует располагать вдали от помещений пищеблока и постирочной, работающих на электрооборудовании.

В залах для музыкальных и физкультурных занятий специализированных дошкольных учреждений для детей с нарушением интеллекта полы следует делать: дощатые, паркетные или из линолеума разных цветов, образующих геометрический рисунок, в зависимости от площади помещения, для построения детей.

3.71. Форма, размеры и архитектурно-акустическая отделка зала детского дошкольного учреждения должна обеспечивать в нем оптимальные условия восприятия детьми как речи, так и музыки. Не допускаются формы и очертания, вызывавшие концентрацию или неравномерное распределение отраженного звука.

Рис. 45. Расстановка оборудования в залах специализированных детских учреждений

а - для физкультурных занятий детей; б - то же, с нарушением опорно-двигательного аппарата; в - для музыкальных занятий

1 - стенка гимнастическая; 2 - канат; 3 - кольцо для пролезания; 4 - мостик-качалка; 5 - скамья гимнастическая; 6 - стойка для игровых пособий; 8 - зеркало; 9 - ковер; 10 - шкаф для спортинвентаря; 11 - стеллаж; 12 - пианино; 13 - табурет для пианино; 14 - стул детский; 15 - стол; 16 - магнитофон; 17 - геометрический или цветовой рисунок пола; 18 - шкаф для пособий

3.72. При цветовом решении интерьера зала, учитывая относительно недлительное пребывание детей и необходимость придания эмоционального акцента пребывания, рекомендуется применение ярких насыщенных тонов, использование верхнего света, цветных витражей и других приемов, придающих праздничность этим помещениям.

3.73. В специализированных дошкольных учреждениях кроме залов для физкультурных и музыкальных занятий следует предусматривать логопедический кабинет (за исключением для детей с нарушением речи, в которых логопедический кабинет входит в состав групповой ячейки), класс предметно-практического обучения.

Логопедический кабинет площадью 12 м2 предусматривается из расчета один на четыре группы. Класс предметно-практического обучения площадью 24 м2 - один на учреждение.

В связи с тем, что занятия с логопедом проходят индивидуально или небольшими группами, для удобства пользования этим помещением необходимо предусмотреть непосредственную связь логопедического кабинета с раздевальней, так как дети могут приглашаться на занятия прямо с прогулки.

3.74. Обучение детей плаванию с раннего возраста является огромным резервом снижения детской заболеваемости, гармоничного развития детей, сокращения числа несчастных случаев на воде.

В основе обучения детей плаванию должна находиться непрерывная методика обучения плаванию. Для реализации этой методики необходимо создание сети детских бассейнов, включающей различные типы бассейнов с ваннами размером от 2´3 до 25´16 м и для различных возрастных контингентов детей.

3.75. Для обучения детей плаванию в дошкольном возрасте рекомендуется применять номенклатуру ванн согласно табл. 15.

Таблица 15

№ п.п.

Параметры ванны, м

Глубина, м

Возраст детей

Характер занятий

Единовременная пропускная способность, чел.

Размещение

1

1,7´0,75

0,5

От 3 недель до 6 месяцев

Поддержки

1

ДП, ФОП

Проводки

2

3´2

0,6

От 6 месяцев до 2 лет

Обучение плаванию

2

ФОП, МРДБ

3

6 - 7´3

0,6 - 0,8

2 - 4 года

То же

12

ДУ, МРДБ

4

10 - 12,5´6

0,6 - 0,8

4 - 6 лет

Самостоятельное плавание

24´12´2

МРДБ, КДУ

Примечание. ДП - детская поликлиника; ФОП - физкультурно-оздоровительный пункт; МРДБ - микрорайонный детский бассейн; ДУ - дошкольное учреждение; КДУ - комплекс дошкольных учреждений.

3.76. Состав помещений плавательного бассейна определяется местом его расположения: в детском дошкольном учреждении, в отдельно стоящем блоке, в микрорайонном детском бассейне и др.; единовременной и общей пропускной способностью; возможной степенью кооперации обслуживающих и технических помещений при объединении в одном бассейне нескольких типов ванн.

Наиболее распространенными в практике данного периода является строительство плавательных бассейнов с ванной размером 6 - 7´3 м в детских дошкольных учреждениях и 10 - 12,5´6 м - в отдельно стоящих блоках в микрорайоне на группу дошкольных учреждений или в комплексах дошкольных учреждений.

В состав помещений бассейна, как правило, должны входить: зал с ванной; две раздевальни с душевыми и туалетом; комната тренера; комната медсестры; лаборатория анализа воды; узел управления; технические помещения, связанные с обслуживанием бассейна.

3.77. Планировочная структура плавательных бассейнов для дошкольников должна определяться функциональными требованиями, обеспечивающими правильную организацию процесса обучения детей плаванию (рис. 46).

3.78. Бассейн с ванной размером 10 - 12,5´6 м проектируется на единовременную пропускную способность 24 человека (две подгруппы по 12 чел.); 6 - 7´3 м - 12 человек (одна подгруппа) (рис. 47).

При зале с ванной следует предусматривать кладовую для спортивного инвентаря площадью 6 м2.

Ванна бассейна для занятий дошкольников должна проектироваться переменной глубины от 0,6 до 0,8 м. По периметру ванны следует предусматривать обходные дорожки шириной не менее 0,75 и 1,5 м со стороны выхода из душевых.

3.79. Площадь каждой раздевальни следует принимать из расчета не менее 0,72 м2 на одно место единовременной пропускной способности. При каждой раздевальной следует предусматривать душевые из расчета одна душевая сетка на четыре места единовременной пропускной способности и туалет на один унитаз и один умывальник.

В местах выхода из душевой на обходную дорожку должно предусматриваться устройство проходного ножного душа. По направлению движения из душевой размер проходного ножного душа должен быть не менее 0,8 м, глубина - 0,1 м.

Путь движения детей из раздевальных к ванне должен обязательно проходить через душ и ножную ванну.

Туалетные следует устраивать до входа в душевые.

3.80. В бассейне с ванной размером 10 - 12,5´6 м рекомендуется предусматривать зал для разминки площадью 60 м2 с кладовой спортинвентаря площадью 6 м2.

Рис. 46. Схема функциональной взаимосвязи помещений бассейна

1 - бассейн; 2 - раздевальня; 3 - зал для подготовительных занятий; 4 - душ; 5 - методический кабинет, класс; 6 - вестибюль; 7 - административно-бытовые помещения

Рис. 47. Пример планировки помещений бассейна с ванной размером

а - 7´3 м; б - 12,5´6 м;

I - зал с ванной; II - раздевальня; III - душевая;

1 - шкаф для одежды детей; 2 - скамья детская для одевания; 3 - сушильный аппарат; 4 - душевая кабина; 5 - ножная ванна

В отдельно стоящих зданиях бассейнов с ванной размером 10 - 12,5´6 м рекомендуется предусматривать вестибюль с гардеробом площадью 36 м2, кабинет заведующего площадью 9 м2, комнату отдыха после плавания площадью 50 м2.

Комната тренера должна проектироваться с кабиной для переодевания, туалетом и душем площадью 9 м2.

Комната медсестры, лаборатория анализа воды и узел управления должны размещаться смежно, суммарная площадь их должна быть не менее 16 м2.

3.81. Конструктивные решения крытых ванн бассейнов могут выполняться как в монолитном железобетоне, так и в сборном. Внутренняя поверхность ванн должна быть облицована керамической плиткой, дно - шероховатой плиткой.

В ваннах должны быть устроены пенные корытца, переливные желоба, лестницы в боковых стенках, отверстия для подачи и спуска воды.

Если ванна запроектирована без бортика, то необходимо увеличить глубину ванны на 0,3 - 0,35 м с учетом устройства пенных корытец, сохраняя глубину воды 0,6 - 0,8 м.

3.82. При планировке технических помещений следует соблюдать следующие требования:

лаборатория пробы воды должна располагаться недалеко от взятия контрольных проб в ванне;

технические помещения при бассейне должны иметь отдельный выход.

Помещение обеззараживания воды должно иметь дверь, выходящую наружу. В этом помещении необходимо предусматривать вентиляцию соответственно специальным нормам.

МЕДИЦИНСКИЕ ПОМЕЩЕНИЯ

3.83. В детских дошкольных учреждениях должны предусматриваться помещения, связанные с медицинским обслуживанием детей, в состав которых входят: медицинская комната, процедурный кабинет и изолятор.

В зданиях дошкольных учреждений общего типа на 150 мест медицинская комната и процедурный кабинет могут размещаться в одном помещении площадью 9 м2, в зданиях свыше 150 мест и специализированных дошкольных учреждениях в раздельных помещениях площадью по 9 м2 каждое.

Медицинская комната должна иметь самостоятельный вход из коридора, размещаться смежно с одной из палат изолятора; между ними должно предусматриваться устройство остекленного проема на высоте 1,2 м от уровня пола.

3.84. В состав изолятора должны входить: приемная, палата и туалет.

Число мест в палатах изолятора должно составлять до 1,5 % от вместимости учреждения. Палаты следует проектировать одно- или двухместные, соответственно площадью 4 и 6 м2. Палаты не должны быть проходными.

Площадь приемной при одной палате изолятора 4 м2, при двух 6 м2. На площади приемной должно размещаться место для мойки посуды.

Площадь туалета с местом для приготовления дезинфицирующих средств 6 м2.

Медицинские помещения рекомендуется располагать на первом этаже. Рекомендуемый состав и площади медицинских помещений представлены в табл. 16.

Таблица 16

№ п.п.

Помещения

Площадь, м

дошкольные учреждения общего типа вместимостью, мест

специализированные

до 150

св. 150 до 280

280 и более

1

Медицинская комната

8

8

8

8

2

Процедурный кабинет

8

8

8

8

3

Кабинет врача-специалиста

-

-

-

9

4

Физиотерапевтический кабинет

-

-

-

18

5

Кабинет массажа

-

-

-

9

6

Изолятор:

-

-

-

-

приемная

4

4

6

6

палата

4

6

12

10

(6 + 6)

(4 + 6)

туалет

6

6

6

6

3.85. Цвет отделки в медицинских помещениях не должен отличаться от привычной для восприятия детей цветовой гаммы в остальных помещениях детского сада.

В детских учреждениях вместимостью до 280 мест отдельный вход в изолятор не требуется, поэтому он может быть совмещен с входом в служебно-бытовые помещения или в групповые. В детских яслях-садах вместимостью 280 мест и более, а также в зданиях, проектируемых в IV климатическом районе, из изолятора следует предусматривать выход наружу.

3.86. В специализированных дошкольных учреждениях следует дополнительно предусматривать: кабинет врача-специалиста площадью 9 м2, физиотерапевтический кабинет площадью 18 м2, кабинет массажа площадью 9 м2. Физиотерапевтический кабинет и кабинет массажа рекомендуется размещать вместе (рис. 48).

СЛУЖЕБНО-БЫТОВЫЕ ПОМЕЩЕНИЯ

3.87. В состав служебно-бытовых помещений детских дошкольных учреждений должны входить: кабинет заведующего, комната завхоза, методический кабинет, хозяйственная кладовая и кладовая чистого белья, уборные для персонала.

В зданиях вместимостью свыше 150 мест рекомендуется предусматривать столярную мастерскую площадью 12 м2, а свыше 240 мест - столовую персонала площадью 10 м2.

В зданиях вместимостью до 90 мест кабинет заведующего может объединяться с комнатой завхоза и методическим кабинетом в одном помещении площадью 12 м2. В зданиях свыше 90 и 150 мест кабинет заведующего может объединяться с комнатой завхоза в одном помещении площадью не менее 10 м2, а методический кабинет размещается в изолированном помещении площадью 12 м2.

Описание: 19

Рис. 48. Примеры планировки медицинских помещений в яслях-садах вместимостью

а - до 150 мест; б - до 280 мест; в - 280 и более мест;

I - приемная; II - палата; III - медицинский кабинет; IV - процедурный кабинет; V - туалетная;

1 - кушетка медицинская; 2 - шкаф для медикаментов; 3 - стол воспитателя; 4 - стул для взрослых; 5 - стол сервировочный; 6 - стул детский; 7 - кровать детская стационарная; 8 - кровать детская с ограждением; 9 - тумбочка медицинская; 10 - шкаф для хранения дезинфицирующих средств

3.88. Площадь методического кабинета в зданиях свыше 150 до 240 мест должна составлять не менее 12 м2, свыше 240 мест и в специализированных - 18 м2. В зданиях вместимостью 280 и более мест следует предусматривать комнату кастелянши площадью не менее 6 м2.

3.89. Уборные для персонала должны проектироваться на один унитаз и один умывальник.

В специализированных дошкольных учреждениях необходимо предусматривать комнату радиотехника площадью 9 м2.

Рекомендуемый состав и площади служебно-бытовых помещений в детских дошкольных учреждениях представлены в табл. 17.

Таблица 17

№ пп.

Помещения

Площадь, м2, при вместимости, мест, и количестве групп

до 50 (1 - 2)

до 140 (4 - 6)

до 240 (8 - 10)

до 330 (12 - 14)

1

Кабинет заведующего

10

10

9

9

2

Комната завхоза

-

-

6

6

3

Хозяйственная кладовая

4

5

8

12

4

Кладовая чистого белья

4

6

8

10

5

Комната кастелянши

-

-

-

6

6

Столярная мастерская

-

-

12

12

7

Столовая персонала

-

-

-

10

8

Уборные для персонала

3

3

6

6

3.90. В зданиях детские дошкольных учреждений вместимостью свыше 95 мест рекомендуется выделять главный вход с холлом площадью до 18 м2.

Холл предназначается для организации информационных стендов, выставок детского творчества. Обязательно должны быть предусмотрены места ожидания для посетителей. В специализированных дошкольных учреждениях следует предусматривать холл площадью 12 м2 на четыре группы и 18 м2 - на восемь групп.

3.91. В зданиях детских дошкольных учреждений общего типа следует предусматривать служебный вход и холл площадью 12 - 18 м2. Служебный вход допускается объединять с входом в помещения групповых ячеек для детей дошкольного возраста.

В специализированных дошкольных учреждениях вместимостью до 75 мест следует предусматривать холл площадью 12 м2, а 75 и более мест - 48 м2. В холле следует предусматривать гардероб для посетителей.

ПИЩЕБЛОК

3.92. В зданиях детских дошкольных учреждений следует предусматривать пищеблок, работающий на сырье или полуфабрикатах.

В состав пищеблока при любой форме производства должны входить: кухня с раздаточной, моечная кухонной посуды, кладовая сухих продуктов, загрузочная, комната персонала, душевая и уборная для персонала.

При работе пищеблока дополнительно к помещениям, перечисленным выше, необходимо предусматривать заготовочный цех и кладовую овощей, площадь которой должна определяться по местным условиям.

При работе пищеблока на полуфабрикатах дополнительно к помещениям, перечисленным выше, необходимо предусматривать доготовочный цех и место для хранения и мойки тары полуфабрикатов.

Рекомендуемый состав и площади помещений пищеблоков в детских дошкольных учреждениях, работающих на сырье и полуфабрикатах, представлены в табл. 18.

3.93. Пищеблок рекомендуется размещать на первом этаже, обеспечивая наиболее удобную связь с остальными группами помещений.

Производственные цехи допускается размещать в одном помещении, разделяя их перегородками или применяя технологическое оборудование (с местными отсосами, охлаждающими поверхностями и т.п.), обеспечивающее в местах обработки и приготовления пищевых продуктов заданные температуры.

Рис. 49. Примеры планировок пищеблоков вместимостью:

а - до 50 мест; б - свыше 150 и до 250 мест; в - свыше 250 и до 350 мест;

I - кухня с раздаточной; II - заготовочный цех; III - доготовочный цех; IV - моечная кухонной посуды; V - контейнерная; VI - охлаждаемые камеры с фреоновой установкой для хранения мясных и рыбных полуфабрикатов, овощных полуфабрикатов, молочных продуктов, жиров, гастрономии, мяса, рыбы; VI - кладовая сухих продуктов; VIII - кладовая овощей; IX - загрузочная; X - место для хранения и мойки тары полуфабрикатов;

1 - плита электрическая; 2 - вставка; 3 - шкаф жарочный электрический; 4 - котел пищеварочный электрический; 5 - электрокипятильник непрерывного действия; 6 - агрегат фреоновый компрессорный; 7 - шкаф холодильный; 8 - универсальный привод на тележке; 9 - картофелечистка; 10 - стол со встроенной моечной ванной; 11 - стол производственный; 12 - стол для дочистки картофеля; 13 - шкаф для хлеба; 14 - ванна моечная; 15 - стеллаж производственный; 16 - подтоварник металлический; 17 - ларь для овощей; 18 - весы товарные; 19 - стеллаж производственный передвижной; 20 - песколовка с одной воронкой; 21 - раковина производственная

Таблица 18

№ п.п.

Помещения

Площадь, м2

на сырье

на полуфабрикатах

при вместимости, мест

до 50

до 140

до 240

до 340

560 - 660

до 50

до 140

до 240

до 340

560 - 660

1

Кухня с раздаточной

15

23

28

30

40

15

23

28

30

40

2

Заготовочный цех

6

8

12

14

16

-

-

-

-

-

3

Доготовочный цех

-

-

-

-

-

4

6

8

9

11

4

Моечная кухонной посуды

4

4

5

5

8

4

4

5

6

8

5

контейнерная

-

-

-

-

6

-

-

-

-

6

6

Охлаждаемые камеры с фреоновой установкой для хранения:

мясных и рыбных полуфабрикатов

-

-

-

-

-

-

-

-

8

6

овощных полуфабрикатов

-

-

-

-

-

-

-

-

3

6

молочных продуктов, жиров, гастрономии

-

-

-

-

7

-

-

-

8

-

мяса, рыбы

-

-

6

9

6

-

-

-

-

-

7

Кладовая сухих продуктов

7

8

11

6

12

7

8

11

6

12

8

Кладовая овощей

4

4

5

8

10

-

-

-

-

-

9

Загрузочная

-

4

5

6

7

-

4

5

6

7

место для хранения и мойки тары полуфабрикатов

-

-

-

-

-

-

2

4

4

6

10

Комната персонала (гардеробная)

-

8

10

12

16

-

8

10

12

16

11

Душевая

2 (на одну сетку)

12

Уборные для персонала

3 (на один унитаз и один умывальник)

Примечания: 1. В зданиях, проектируемых для строительства в IА, IБ и IГ климатических подрайонах, площадь кладовых сухих продуктов и овощей допускается увеличивать на 50 %. 2. В специализированных дошкольных учреждениях площади помещений следует принимать по количеству групп.

Моечные кухонной посуды и полуфабрикатной тары можно размещать в одном помещении.

Кладовые продуктов и охлаждаемые камеры не следует размещать под моечными, душевыми и санитарными узлами, а также под производственными помещениями с трапами.

3.94. Из пищеблока следует предусматривать самостоятельный выход наружу (рис. 49).

Проходные кладовые или проход в кладовую через кухню не допускается.

Ширину проходов в производственных помещениях следует принимать по табл. 19.

Таблица 19

№ п.п.

Проходы

Ширина, м

1

Между технологическими линиями оборудования (столами, моечными ваннами и т.п.) при расположении рабочих мест в проходе в два ряда при длине линии оборудования, м:

до 3

1,2

более 3

1,3

2

Между стеной и технологической линией оборудования (со стороны рабочих мест)

1

3

Между технологическими линиями оборудования (столы, моечные ванны и т.п.) и линиями оборудования, выделяющими тепло

1,3

4

Между технологическими линиями оборудования, выделяющими тепло

1,5

3.95. В кухнях следует предусматривать установку оборудования, работающего на электричестве.

Количество единиц технологического оборудования следует принимать в соответствии со СНиП IV-13-82. Приложение. Сборник сметных норм затрат на оборудование и инвентарь общественных и административных зданий. Сб. № 5.3 «Детские дошкольные учреждения».

Тип или марка оборудования может не соответствовать указанной в Сборнике, если данный тип или марка оборудования снимаются с производства, но должны соответствовать основным параметрам данного оборудования.

Для вертикальной транспортировки пиши должны устанавливаться грузовые подъемники в трехэтажных зданиях, а также двухэтажных зданиях на 190 и более мест.

ПОСТИРОЧНАЯ

3.96. В целях улучшения условий внутренней среды в помещениях детских дошкольных учреждений, облегчения труда обслуживающего персонала стирку детского белья рекомендуется производить в предприятиях коммунально-бытового обслуживания.

Рис. 50. Примеры планировок постирочных вместимостью

а - свыше 150 до 250 мест; б - свыше 250 до 350 мест;

1 - машина стирально-отжимная автоматизированная с электрообогревом; 2 - центрифуга для отжима выстиранного белья; 3 - котел или электрическое варочное устройство; 4 - барабан сушильный; 5 - стол гладильный; 6 - секция для белья; 7 - ларь для грязного белья; 8 - ванная для замачивания белья; 9 - пресс гладильный для сушки и глажения выстиранного и отжатого прямого и фасонного белья

В дошкольных учреждениях не рекомендуется предусматривать постирочные, рассчитанные на стирку более чем 0,26 кг белья в день на одно место, что составляет 1/3 полного комплекта детского белья. Площади помещений постирочных в яслях-садах общего типа, рассчитанных на такой объем стирки белья, представлены в табл. 20 (рис. 50).

Таблица 20

Помещения

Площадь, м2, при вместимости, мест

до 50

до 140

до 240

до 340

560 - 660

Стиральная

12

14*

16

18

25

Гладильная

10*

12

12

15

* Допускается размещать в одном помещении.

3.97. В зданиях вместимостью до 50 мест постирочную можно проектировать в одном помещении, свыше 50 мест - состоящую из двух помещений: стиральной и гладильной. В зданиях вместимостью свыше 150 мест входы в стиральную и гладильную следует проектировать раздельными. Располагать входы в помещения постирочной против входов в помещения групповых ячеек и пищеблока не допускается.

3.98. В зданиях детских дошкольных учреждений, полностью обслуживаемых фабрикой-прачечной, следует предусматривать помещение с отдельным наружным выходом для сдачи и сортировки грязного белья площадью 4 м2 при вместимости учреждений до 350 мест и 6 м2 до 660.

4. ОТОПЛЕНИЕ И ВЕНТИЛЯЦИЯ

4.1. В одноэтажных зданиях дневных детских яслей-садов вместимостью до 50 мест, сооружаемых в сельских населенных пунктах, допускается устройство печного отопления. Топочные отверстия и печные заслонки должны обслуживаться из подсобных помещений, имеющих окна с форточками и каналы вытяжной естественной вентиляции.

4.2. Расчетную температуру для проектирования отопления и кратность обмена воздуха в помещениях детских дошкольных учреждений, не указанных в табл. 19 СНиП 2.08.02-89, следует принимать согласно табл. 21 настоящего Пособия.

4.3. В помещениях с пребыванием детей в качестве отопительных приборов могут приниматься радиаторы, конвекторы и бетонные панели. Защитные экраны у отопительных приборов изготавливать из древесно-стружечных плит и асбестоцементных листов не допускается.

4.4. Для периодической интенсификации воздухообмена на вытяжном канале в туалетных комнатах без оконных проемов в наружных ограждениях рекомендуется устанавливать по одному осевому малогабаритному вентилятору.

4.5. В служебно-бытовых помещениях, имеющих окна с фрамугами или форточками (за исключением душевых и туалетов), устройство вытяжных каналов естественной вентиляции допускается не предусматривать.

4.6. Для подогрева наружного воздуха, подаваемого в помещения стиральни и гладильни, могут применяться приточные шкафы с использованием в качестве нагревательных элементов калориферов, конвекторов или радиаторов. Для постирочных, не оборудованных сушильными барабанами, подогрев поступающего воздуха допускается обеспечивать за счет поверхности отопительных приборов.

4.7. Относительную влажность воздуха в помещениях с пребыванием детей следует принимать 40 - 55 %, в кухне и постирочной - до 60 - 70 %. При теплотехническом расчете наружных ограждающих конструкций (кроме залов ванн бассейнов) температуру внутреннего воздуха следует принимать равной 21 °С.

4.8. Для залов с ваннами в бассейнах по обучению детей плаванию рекомендуется во всех случаях предусматривать тройное остекление в деревянных переплетах.

4.9. Самостоятельные вытяжные системы следует проектировать: от комплекса пищеблока, стиральни-гладильни, помещений бассейна.

4.10. Для медицинских помещений следует предусматривать обособленные вытяжные каналы.

4.11. Объем воздуха, удаляемого от одного шкафа для сушки детской одежды, принимается в количестве 10 м3/ч.

4.12. Для временного обогрева летних помещений детских учреждений, не имеющих источников теплоснабжения, допускается использование маслонаполненных электроотопительных радиаторов. Включение радиаторов следует производить под личную ответственность руководителя детского учреждения только в дневное время при наличии на приборах гибких питающих электрошлангов и исправных штепсельных соединений.

Таблица 21

№ п.п.

Помещения

Расчетная температура воздуха, °С

Кратность обмена воздуха в 1 ч.

в IА, IБ, IГ климатических подрайонах

во II, III климатических районах и IВ, IД климатических подрайонах

в III климатическом районе

в IА, IБ, IГ климатических подрайонах

во всех климатических районах за исключением IА, IБ, IГ подрайонов

приток

вытяжка

приток

вытяжка

1

Медицинские

23

22

21

2,5

1,5

-

1

2

Служебно-бытовые

20

18

17

1,5

1

-

1

3

Кухня

15

15

15

По расчету

4

Стиральная

18

18

18

5

5

5

5

5

Гладильная

16

13

16

5

5

5

5

6

Физиотерапевтический кабинет, кабинет массажа

28

28

-

2,5

1,5

-

1,5

7

Душевая бассейна

28

28

28

-

5

-

5

8

Раздевальня бассейна

26

26

26

В объеме вытяжки из душевой

Примечания: 1. В IА, IБ и IГ климатических подрайонах приток воздуха в помещения осуществляется механическими вентиляционными установками. 2. В помещениях стиральни и гладильни следует осуществлять, как правило, механические приток и вытяжку воздуха. 3. В туалетных помещениях групп вытяжку воздуха следует предусматривать из уборной. 4. В туалетных детских групп, проектируемых без естественного освещения, вытяжка должна быть не менее 3-х кратной. 5. Расчетная температура воздуха в помещениях групповых ячеек специализированных дошкольных учреждений должна быть на 1 °С выше указанной в табл. 19 СНиП 2.08.02-89, но не более 23 °С.

5. ВОДОСНАБЖЕНИЕ И КАНАЛИЗАЦИЯ

5.3. Основное санитарно-техническое оборудование в дошкольных учреждениях рекомендуется предусматривать согласно табл. 22.

Высоту установки детских санитарных приборов от пола помещения до верха борта прибора следует принимать, м:

умывальников - 0,5;

ванн на постамента - 0,6;

глубокого душевого поддона - 0,6;

мелкого душевого поддона в дошкольных группах - 0,3.

Высота расположения душевой сетки с гибким шлангом над днищем поддона должна быть 1,5 м. На высоте 0,15 м над бортом поддона следует предусматривать установку дополнительного кронштейна для подвески душевой сетки.

5.2. При устройстве водообмена с рециркуляцией воды пополнение свежей водой должно составлять не менее 10 % объема ванны в сутки.

Для бассейнов с ваннами шириной 3 и длиной 6 - 7 м следует предусматривать непрерывный проток свежей воды питьевого качества из расчета не менее 20 % объема ванны в час.

Температура воды в ванне бассейна поддерживается равной 29 °С.

5.3. При проектировании бассейнов с объемом воды 50 м3 и более следует предусматривать мероприятия по обеззараживанию воды.

Для бассейнов с ваннами размером 7´3 м при непрерывном протоке свежей воды применение дезинфектантов не требуется.

5.4. Обеззараживание осуществляется путем приготовления в специальном помещении концентрированного раствора дезинфектанта, который вводится механически в систему рециркуляции или добавляется непосредственно в ванну бассейна равномерным выливанием раствора из пластмассовой емкости по периметру ванны.

5.5. В качестве дезинфицирующих средств для обеззараживания воды бассейнов могут быть использованы следующие вещества: известь хлорная или белильная термостойкая, двутретьосновная соль гипохлорида кальция, нейтральный гипохлорит кальция, гипохлорит натрия марки А, 5,5 - диметил - 1,3 - дибромгидантоин и др.

Концентрация остаточного хлора в воде должна поддерживаться на уровне 0,3 мг/л, остаточного брома - 0,7 мг/л.

Применение электролизных установок для получения гипохлорита натрия при обслуживании малых бассейнов весьма затруднено из-за несоответствия производительности установок и реальной потребностью в дезинфектанте, а также ввиду отсутствия в дошкольных учреждениях специалистов по обслуживанию электролизных установок.

5.6. Обходные дорожки ванн крытых детских бассейнов следует обогревать с поддержанием температуры поверхности в пределах 26 - 30 °С. Допускается не предусматривать обогрев дорожек в случае, когда стены, граничащие с обходными дорожками, являются внутренними и обходные дорожки устраиваются над теплым помещением (техническим подпольем). При отсутствии обогрева дорожки должны быть покрыты синтетическими ковриками с низкой теплопроводностью.

Таблица 22

№ п.п.

Помещения

Умывальники

Унитазы

Слив (видуар) со смесителей

Водоразборный кран

Ванна с комбинированным смесителем

Поддон с душевой сеткой на гибком шланге

Мойка двухкамерная со смесителем

Полотенце-сушитель

детский с туалетным краном

взрослый со смесителем

детский

взрослый

1

Буфетная

-

-

-

-

-

-

-

-

1

-

2

Туалетная групп:

ясельных

2

1

1

1

1

-

-

1 глубокий

-

1

3

дошкольных

4

-

3

1

-

-

-

1 мелкий

-

1

4

специализированных

3

-

2

1

1

-

1

1

-

1

5

Зал бассейна

-

-

-

-

-

1

-

-

-

-

6

Душевая и уборная при раздевальнях бассейна

1

-

1

-

-

-

-

По п. 3.79 настоящего Пособия

1

-

7

Медицинская комната

-

1

-

-

-

-

-

-

-

-

8

Приемная изолятора

-

-

-

-

-

-

-

-

1

-

9

Палата изолятора

1

-

-

-

-

-

-

-

-

-

10

Туалетная изолятора

-

1

-

-

-

-

-

1

-

1

5.7. Отверстия для отвода воды из ванны следует размещать на расстоянии не менее 1 м от стенок. Скорость входа воды в отводящих отверстиях не должна превышать 0,4 м/с. Скорость истечения воды из подающих отверстий в ванну бассейна следует принимать не более 2 м/с.

Отводящие отверстия должны быть перекрыты решетками с площадью живого сечения в два раза выше сечения отводящей трубы.

Отводные трубопроводы бассейнов должны присоединяться к канализационным сетям с разрывом струи 0,02 м.

5.8. Узел управления бассейном следует располагать в одном с ним уровне и в непосредственной связи с залом бассейна. В помещении узла управления бассейном следует размещать распределительную гребенку, механизмы управления наполнения и сброса воды бассейна. Приборы для определения химического и физического качества воды должны находиться в лаборатории анализа воды.

5.9. Нагревательные приборы в шкафах для сушки одежды детей в раздевальнях, а также полотенцесушители в туалетных должны присоединяться к системе горячего водоснабжения.

Примечание. В детских дошкольных учреждениях, проектируемых для IА, IБ и IГ климатических подрайонов (с отопительным периодом не менее 300 дн.), допускается подключение нагревательных приборов в шкафах для сушки одежды и полотенцесушителей к системе отопления с переключением в летний период к системе горячего водоснабжения.

5.10. В качестве нагревательных приборов для шкафов сушки одежды детей следует применять гладкие или ребристые трубы, а также конвекторы.

5.11. Температура горячей воды, поступающей в здание детского дошкольного учреждения, должна быть не ниже 60 °С.

5.12. В туалетных комнатах детских групп установку трапов предусматривать не следует.

6. ЭЛЕКТРОТЕХНИЧЕСКИЕ УСТРОЙСТВА

6.1. По степени надежности электроснабжения потребители электроэнергии детских дошкольных учреждений относятся ко II категории.

Электроснабжение осуществляется, как правило, кабельными линиями. Кабельные сети прокладываются в земле, в траншее (реже - в коллекторе).

Проект кабельных сетей разрабатывается на действующей геоподоснове и согласовывается с заинтересованными организациями.

6.2. Распределение электроэнергии к силовым распределительным щитам и пунктам осуществляется по магистральной схеме.

Вводно-распределительное устройство (ВРУ) устанавливается в электрощитовом помещении, расположенном на первом этаже здания. ВРУ составляется из вводных и распределительных панелей. К вводной панели подводятся две питающие линии от разных трансформаторов двух трансформаторных подстанций.

Количество распределительных панелей, токи установки автоматических выключателей выбираются при составлении схемы магистральных сетей и после проверки распределительных магистралей по потере напряжения.

6.3. Силовые распределительные пункты следует устанавливать в центре нагрузок.

Силовые распределительные сети выполняются:

открыто - проводами с алюминиевыми жилами в пластмассовых трубах, на лотках в техническом подполье, небронированными кабелями, проводом АПВ по стенам с защит от механических повреждений коробом;

проводом в стальных трубах - выводами к технологическому оборудованию, установленному в отдалении от стен помещений;

при варианте перегородок из гипсокартонных листов по деревянному каркасу электрические сети выполняются проводом с алюминиевой жилой в стальных трубах.

Электрические сети выбираются в соответствии с Правилами устройства электроустановок (ПУЭ) по условиям допустимого нагрева, потерь напряжения и соответствия принятых сечений токам аппаратов защиты.

6.4. Учет электроэнергии осуществляется на вводно-распределительном устройстве, для пищеблока - самостоятельный и осуществляется на распределительной панели.

6.5. Электроосвещение должно предусматриваться рабочее, аварийное, эвакуационное (аварийное для эвакуации) и дежурное. Для дежурного освещения используются светильники эвакуационного освещения.

Светильники аварийного и эвакуационного освещения выделяются из числа светильников рабочего освещения и помечаются специальными знаками. Величины освещенностей принимаются по главе СНиП II-4-79 и указываются на планах.

6.6. Сети освещения выполняются:

проводом с алюминиевой жилой - открыто в пустотах плит перекрытий (при несовпадении трассы с пустотами плит перекрытий - в пластмассовых трубах поверх плит перекрытий в подготовке пола, кровли), в бороздах перегородок;

кабелем небронированным открыто: на скобах в техническом подполье, моечной, кладовых, горячем цехе, вентиляционной камере, электрощитовой, стиральне, гладильне.

6.7. Установку штепсельных розеток следует предусматривать в следующих помещениях: комнате для специальных занятий, раздевальнях, групповых, залах для музыкальных и физкультурных занятий, медицинской комнате, приемной изолятора, процедурном кабинете заведующего, комнатах персонала, завхоза, кастелянши, а также коридорах.

В комнате для специальных занятий, раздевальнях, групповых, залах для музыкальных и физкультурных занятий штепсельные розетки следует устанавливать на высоте 1,8 м от пола.

6.8. В спальнях и палатах изолятора следует предусматривать устройства для дежурного (ночного) освещения, присоединенные к сети эвакуационного освещения.

6.9. В дошкольных учреждениях, проектируемых для районов севернее 65° с.ш., и для детей с нарушением физического и умственного развития, в помещениях групповых, спален, палат изолятора, залов для музыкальных и физкультурных занятий следует предусматривать подключения источников ультрафиолетового излучения. Для всех остальных дошкольных учреждений подключение источников ультрафиолетовой радиации определяется заданием на проектирование.

6.10. В специализированных дошкольных учреждениях следует предусматривать:

в помещениях групповых, спален, палат изолятора, залов для музыкальных и гимнастических занятий - подключения источников бактерицидного облучения;

в спальнях в рабочей зоне персонала - местное освещение;

на полу основных проходов (коридорах, лестничных клетках) и ступенях лестниц - эвакуационное освещение не ниже 5 лк;

на участках - освещение при средней горизонтальной освещенности групповых площадок - 10 лк, проходов и проездов - 6 лк;

6.11. В зданиях дошкольных учреждений для детей с нарушением слуха необходимо предусматривать:

установку двух штепсельных розеток для использования технических средств обучения в групповой и в залах для музыкальных и гимнастических занятий и одной штепсельной розетки в классе для занятий на высоте 1,8 м от пола;

общее освещение светильниками с лампами накаливания в помещениях групповых, классе для занятий, спальнях, залах для музыкальных и физкультурных занятий, раздевальнях, комнате для специальных занятий;

в классе для занятий, кроме общего освещения, дополнительно - верхний подсвет для настенной классной доски и местное освещение на столах для индивидуальных занятий сурдопедагога;

в классе для занятий - подводку слаботочных линий от пульта управления у стола педагога к оборудованным сурдотехнической аппаратурой столами для детей;

освещенность при лампах накаливания для систем общего освещения помещений групповой, класса для занятий, зала для музыкальных и физкультурных занятий - 150 лк в горизонтальной плоскости на уровне 0,5 м от пола, в раздевальной - 100 лк на полу; освещенность в вертикальной плоскости на настенной классной доске - 300 лк;

в зале для музыкальных и физкультурных занятий - магнитоиндукционную петлю.

6.12. В помещениях с сурдотехническими средствами, в физиотерапевтическом кабинете следует предусматривать защитное заземление в соответствии с «Инструкцией по защитному заземлению электромедицинской аппаратуры в учреждениях системы Министерства здравоохранения СССР».

6.13. в дошкольных учреждениях для детей с нарушением зрения следует предусматривать:

в кабинете тифлопедагога, групповых и в кабинете врача-окулиста - освещение светильниками с люминесцентными лампами белого света типа ЛБ для обеспечения освещенности не менее 50 лк в системе общего освещения в горизонтальной плоскости на уровне 0,5 м от пола, в кабинете тифлопедагога - подсвет настенной классной доски для обеспечения освещенности в вертикальной плоскости 500 лк;

в плеопто-ортоптических комнатах и в кабинете врача-окулиста - четыре двойных штепсельных розетки на высоте 1 м от пола в соответствии с размещением оборудования.

6.14. В дошкольных учреждениях для детей с нарушением интеллекта следует предусматривать:

в помещениях групповых ячеек и изолятора, в залах для музыкальных и физкультурных занятий - светильники с лампами накаливания;

в классах для занятий, кроме общего освещения, - верхний подсвет демонстрационной и настенной классных досок;

звуковую и световую палатную сигнализацию из групповых и спален в медицинскую комнату.

6.15. В логопедических комнатах дошкольных учреждений для детей с нарушениями физического и умственного развития около зеркала следует предусматривать настенные светильники местного освещения на кронштейне (на высоте 1,2 м), позволяющем менять угол наклона и высоту.

6.16. В зданиях детских дошкольных учреждений следует предусматривать:

радиоточки (радиотрансляционной сети) в помещениях административно-хозяйственных, пищеблоке, залах для музыкальных и физкультурных занятий, групповых и игральных; в зданиях дошкольных учреждений для детей с нарушением слуха радиоточки устанавливаются только в помещениях административно-хозяйственных и пищеблоке;

телефоны - в кабинете заведующего, медицинской комнате (или кабинете врача), комнате завхоза и методическом кабинете;

телевизионную сеть для приема передач центрального телевидения - в групповых и залах.

6.17. В зданиях детских дошкольных учреждений следует предусматривать устройства автоматической тепловой пожарной сигнализации во всех помещениях, кроме: туалетных, душевых, стиральнях-разборочных, кладовых овощей, охлаждаемых камер, бойлерной, насосной, вентиляционных камер. Установка ручных пожарных извещателей в здании детских дошкольных учреждений исключается.

6.18. В зданиях детских дошкольных учреждений на 240 и более мест допускается установка двусторонней селекторной связи кабинета заведующего со следующими помещениями: групповыми и игральными, медицинской комнатой, пищеблоком и постирочной, методическим кабинетом, комнатами завхоза и кастелянши. Необходимо обеспечивать возможность использования селекторной связи для оповещения о пожаре.

6.19. Проектирование систем автоматизации санитарно-технических систем выполнять в соответствии с «Указаниями по проектированию систем автоматизации технологических процессов» ВСН 281-76 Минприбора.

Телефонизацию следует производить от наружной телефонной сети по конкретным техническим условиям.

Радиотрансляцию - от наружной радиотрансляционной сети, уплотненной системой трехпрограммного радиовещания, по конкретным техническим условиям.

Пожарную сигнализацию - от приемно-контрольных охранно-пожарных приборов, устанавливаемых в кабинете заведующего.

7. ПРОТИВОПОЖАРНЫЕ ТРЕБОВАНИЯ

7.1. В детских дошкольных учреждениях необходимо учитывать следующие требования по огнестойкости зданий и конструкций.

Здания для яслей и садов общего типа могут быть:

Степень огнестойкости

Вместимость, мест

Этажность

I, II

350

2 - 3

III

150

2

IIIа, IV, v

50

1

7.2. Специализированные дошкольные учреждения, а также ясли-сады в сельской местности, объединенные с жильем для персонала, следует проектировать в зданиях только II степени огнестойкости.

Служебно-бытовые здания при высоте до 2 этажей должны быть II степени огнестойкости.

Детские дошкольные учреждения II степени огнестойкости вместимостью до 150 мест допускается пристраивать к торцам жилых домов II степени огнестойкости при отсутствии в торцах окон жилых комнат.

Отапливаемые переходы между зданиями следует проектировать той же степени огнестойкости, что и основные здания.

В объединенных зданиях детских дошкольных учреждений и школ степень огнестойкости следует принимать:

по общему количеству мест в здании;

в случае устройства противопожарной стены между детскими яслями-садом и начальной школой для каждой части здания по ее вместимости.

Прогулочные веранды, пристраиваемые к детскому дошкольному учреждению вместимостью свыше 50 мест, следует проектировать той же степени огнестойкости, что и основное здание.

7.3. Помещения для размещения инженерного оборудования и прокладки коммуникаций, расположенных в подвале, следует отделять от других помещений противопожарными перегородками с пределом огнестойкости 0,25 ч (2-го типа).

Двери кладовых горючих материалов, а также электрощитовых, вентиляционных камер и других технических помещений должны иметь предел огнестойкости не менее 0,6 ч.

В зданиях V степени огнестойкости деревянные стены с внутренней стороны, перегородки и потолки должны быть оштукатурены или покрыты огнезащитными красками или лаками.

В зданиях III, IIIа, IIIб и IV степеней огнестойкости сборно-разборные перегородки из сгораемых материалов должны быть покрыты огнезащитными красками или лаками.

Если вместимость здания превышает 50 мест, помещения дошкольного учреждения отделяются от жилых или школьных помещений глухой противопожарной перегородкой 1-го типа и перекрытием 3-го типа.

Жилые помещения персонала отделяются от помещений дошкольного учреждения или школы перегородками и перекрытиями, имеющими предел огнестойкости не менее 0,75 ч и предел распространения огня до 40 см.

7.4. Отделка стен и потолков музыкальных и физкультурных залов, а также пути эвакуации должна быть предусмотрена из несгораемых материалов. Все остальные помещения в зданиях II, III и IIIа, IV степеней огнестойкости могут отделываться легкогорючими и трудносгораемыми материалами.

Ограждающие конструкции лифтов-подъемников, каналов, шахт и ниш прокладки инженерных коммуникаций должны иметь предел огнестойкости не ниже 0,75 ч. В лифтовых шахтах должны быть предусмотрены противопожарные двери с пределом огнестойкости 0,6 ч и уплотнением в притворах.

В стенах и перегородках зданий детских дошкольных учреждений в качестве утеплителя или звукоизоляции следует применять неорганические материалы. Допускается применение железобетонных стеновых панелей с полимерным или органическим утеплителями, полностью замоноличенными в конструкции панели. Толщина защитного слоя бетона со всех сторон должна быть не менее 50 мм.

7.5. Детские дошкольные учреждения должны отвечать следующим требованиям для обеспечения эвакуации контингента в случае пожара:

из здания и с каждого этажа должно быть предусмотрено не менее двух рассредоточенных выходов;

из подвалов и цокольных этажей эвакуационные выходы должны вести непосредственно наружу. Кроме того, допускается устройство выходов на первый этаж через отдельные лестничные клетки, не связанные с открытыми и общими лестницами;

оба эвакуационных выхода из групповой ячейки должны быть расположены в разных ее помещениях и иметь доступ к разным лестничным клеткам. В качестве второго эвакуационного выхода допускается использовать: на первом этаже - выход непосредственно наружу; на втором этаже - выходы через рядом расположенный зал для музыкальных и физкультурных занятий, выходы через наружную эвакуационную лестницу или балкон, лоджии, галерей, ведущие в эвакуационные помещения; на третьем этаже - рассредоточенные выходы на лестничные клетки;

при наличии в одном здании дошкольного учреждения, школы или жилых помещений персонала помещения дошкольного учреждения должны иметь обособленные выходы наружу;

прогулочные веранды, расположенные на третьем этаже, должны иметь рассредоточенные выходы на две лестничные клетки;

наружные переходные балконы, лоджии и галереи могут быть использованы в качестве зон эвакуации силами пожарных подразделений;

залы для музыкальных и физкультурных занятий должны решаться в отдельных помещениях.

7.6. При проектировании коридоров и галерей на путях эвакуации необходимо учитывать следующие требования:

ширина должна быть не менее 1,4 м; в общих коридорах не допускается предусматривать устройство встроенных шкафов, за исключением шкафов для коммуникаций, пожарных кранов и аппаратуры противопожарной сигнализации;

расстояние по коридору от выхода из групповой ячейки до выхода наружу или в лестничную клетку должно не превышать величин, указанных в табл. 23;

вместимость помещений, выходящих в тупиковые коридоры, должна быть ограничена до 80 мест;

ширина эвакуационных выходов из коридора в лестничную клетку определяется из расчета пропускной способности 1 м, ширины выхода (двери), чел, для зданий степени огнестойкости: II - 165, III, IV - 115; IIIа и IIIб, V - 80.

Таблица 23

Степень огнестойкости

Расстояние для групповых ячеек, м

расположенных между лестничными клетками или выходами наружу

с выходом в тупиковый коридор

II, III

20

20

IV

15

7

IIIа, IIIб, V

10

5

7.7. Лестничные клетки должны отвечать следующим требованиям:

ширину марша лестницы следует принимать не менее ширины эвакуационного выхода в лестничную клетку с наиболее населенного этажа, но не менее 1,2 м;

при организации выхода с этажа на лестничную клетку на четырех групповых ячеек ширина лестничного марша должна быть не менее 1,3 м;

ширина лестничных площадок должна быть не менее ширины марша;

между маршами предусматривается зазор шириной не менее 0,05 м для пропуска пожарных рукавов;

число подъемов в одном марше не должно быть более 16 и менее 3;

двери лестничных клеток в открытом состоянии не должны уменьшать расчетную ширину лестничных площадок и маршей;

ограждения лестниц, используемых детьми, принимаются высотой 1,2 м, а лестничных площадок - 1,8 м;

вертикальные элементы ограждений должны иметь просветы шириной не более 0,1 м, горизонтальные членения не допускаются;

в специализированных дошкольных учреждениях для детей с нарушением интеллекта ограждения лестничных маршей и площадок проектируются из сплошной сетки высотой 1,8 или 1,5 м при сплошном ограждении сеткой;

поручни для детей располагаются у стен или на ограждении лестницы на высоте 0,5 м, а для взрослых - на высоте 0,85 м;

освещение лестничных клеток должно быть естественным через проемы в наружных стенах (кроме подвалов) необходимо предусматривать аварийное освещение;

допускается проектировать не более 50 % лестничных клеток с верхним освещением в зданиях II степени огнестойкости высотой в два этажа, а также в трехэтажных зданиях при устройстве просвета между лестницами не менее 1,5 м;

все лестничные клетки (кроме одной), выходящие в один вестибюль, должны иметь также выход непосредственно наружу;

высота ограждения крылец при подъеме на 3 и более ступенек должна быть 0,8 м.

В лестничных клетках не допускается проектировать и предусматривать: помещения любого назначения; выходы из подъемников; мусоропроводы; оборудование, выступающее из плоскости стен на высоте до 2,2 м от поверхности проступей и площадок лестницы; электрические кабели и провода, кроме электропроводки для освещения коридоров и лестничных клеток.

В световых проемах лестничных клеток при заполнении их стеклоблоками необходимо предусматривать открывающиеся фрамуги площадью не менее 1,2 м2.

В детских дошкольных учреждениях II и III степени огнестойкости допускается устройство открытых внутренних лестниц из вестибюля до второго этажа, если вестибюль отделен от коридоров и других помещений противопожарными перегородками 1-го типа с обычными дверями и противопожарными перекрытиями 3-го типа. Не допускается устройство выходов из кладовых сгораемых материалов непосредственно в вестибюли и холлы, где расположены открытке лестницы.

7.8. Наружные эвакуационные лестницы должны проектироваться с учетом следующих требований:

выполняться из негорючих материалов;

уклон не должен превышать 45 %;

ширина марша должна быть не менее 0,8 м;

ширина ступеней - 0,2 м;

проступи не должны быть прутковыми;

ограждение иметь высоту 1,2 м, вертикальное членение с просветами шириной 0,1 м (горизонтальное членение не допускается), поручни должны располагаться на высоте 0,5 и 0,85 м;

сообщаться с помещениями через площадки или балконы, устраиваемые на уровне эвакуационных выходов;

допускается проход к наружным открытым лестницам через плоские кровли (в том числе не эксплуатируемые или наружные открытые галереи);

несущие конструкции покрытий и галерей, по которым осуществляется проход к наружным эвакуационным лестницам, следует проектировать с пределом огнестойкости не менее 0,5 ч и нулевым пределом распространения огня;

расстояние от поручней лестниц до ближайших оконных проемов должно быть, как правило, не менее 1,2 м.

В зданиях III - V степени огнестойкости и для детей с нарушением физического и умственного развития запрещается использовать наружные открытые лестницы в качестве эвакуационных.

7.9. Особые требования предъявляемые к дверям эвакуационных выходов:

двери на путях эвакуации открываются в направлении выхода из здания;

двери на балконы, лоджии, площадки, наружные лестницы, из помещений с одновременным пребыванием не более 15 человек, из кладовых санитарных узлов открываются внутрь помещений;

наружные двери не должны иметь запоров, которые не могут быть открытыми изнутри без ключа (допускается установка легко сбрасываемых запоров, например задвижек, щеколд и т.п.);

самозакрывание дверей производится с помощью специальных закрывателей различных конструктивных решений, например, с гидравлическим регулируемым тормозом для плавного закрывания;

навеску дверей необходимо проектировать с учетом возможности уменьшения препятствия для продвижения людей за счет открытых дверных полотнищ;

дверь эвакуационного проема между двумя соседними групповыми ячейками должна быть глухой, иметь предел огнестойкости 0,6 ч; устройство запора двери должно обеспечивать прохождение эвакуирующихся в обе стороны, проходы к этому проему должны быть свободными от мебели и оборудования;

на остекленных дверях необходимо предусматривать защитные решетки высотой не менее 1,2 м;

при разделении помещений на части раздвижными перегородками в них должны быть предусмотрены двери шириной не менее 0,9 м либо должны быть предусмотрены эвакуационные выходы из каждой такой части;

ширина дверей должна быть не менее 0,9 м;

остекленные двери и фрамуги над ними во внутренних стенах лестничных клеток допускаются в зданиях всех степеней огнестойкости.

7.10. Для зданий с чердачными перекрытиями предусматриваются один выход на кровлю на каждые полные и неполные 100 м длины здания. Из лестничных клеток выход на чердак или кровлю может осуществляться по закрепленным стальным стремянкам через противопожарные люки размером 0,6´0,8 м и пределом огнестойкости не менее 0,6 ч.

В местах перепада высот кровель более 1 м следует предусматривать наружные пожарные лестницы.

Наружные пожарные лестницы следует располагать на расстоянии 1,2 м от оконных проемов.

7.11. В детских дошкольных учреждениях при проектировании необходимо учитывать мероприятия для обеспечения противодымной защиты здания:

выходные двери групповых ячеек лестничных клеток, вестибюля должны быть выполнены с уплотнением в притворах;

двери между соседними групповыми ячейками должны быть самозакрывающимися с уплотнением в притворах;

коридоры, соединяющие лестничные клетки, разделяются остекленными самозакрывающимися дверями с уплотнением в притворах из условий обеспечения выходов из каждой групповой ячейки в разные отсеки коридора;

при длине коридора свыше 60 м их следует разделять перегородками с остекленными самозакрывающимися дверями с уплотнением в упорах;

ограждающие конструкции вертикальных коммуникаций (лифтов-подъемников, каналов, шахт и ниш для прокладки инженерных коммуникаций) должны иметь уплотнения, исключающие проникновение дыма с этажа на этаж или в соседнее помещение;

при невозможности устройства в ограждающих конструкциях лифтовых шахт противопожарных дверей следует предусматривать тамбуры или холлы с противопожарными перегородками 1-го типа и противопожарными перекрытиями 3-го типа;

из кладовых сгораемых материалов без естественного освещения следует выполнять дымоудаление через шахты и выгораживать эти кладовые противопожарными перегородками 1-го типа;

в каждом отсеке подвальных и цокольных этажей площадью до 700 м2 должно быть не менее двух люков или окон шириной 0,9 м и высотой 1,2 м.

7.12. В зданиях детских дошкольных учреждений следует предусматривать устройства автоматической пожарной сигнализации во всех помещениях, кроме туалетных, душевых, стирально-разборочных, кладовых овощей, охлаждаемых камер, бойлерной, насосной, вентиляционных камер.

Приемную станцию пожарной сигнализации следует устанавливать вблизи постановки телефона общего пользования. Станция должна располагаться в настенном остекленном шкафу.

Помещения с пребыванием людей должна быть оборудованы системой оповещения о пожаре (звуковой и световой). Для обеспечения возможности ориентации людей в случае задымления здания и помещения следует предусматривать установку электрифицированных указателей эвакуационных путей и выходов. Рекомендуемая высота размещения световых указателей 1,5 - 1,8 м. Световые указатели у выходов в лестничные клетки должны быть сблокированы с датчиками пожарной сигнализации, Вид, окраску и форму световых указателей следует принимать в соответствии с требованиями ГОСТ 12.4.026-76* «ССБТ. Цвета сигнальные и знаки безопасности».

Приложение 1

Рекомендуемые состав и площади элементов участков яслей-садов для всех климатических районов, кроме IА, IБ, IГ климатических подрайонов

№ п.п.

Элементы участков

Площадь, м2, при вместимости яслей-садов, мест

2 групп на 45 мест

4 группы на 95 мест

6 групп на 140 мест

8 групп на 190 мест

12 групп на 280 мест

14 групп на 330 мест

1

Площадь застройки здания*

350

550

750

950

1400

1500

Детские групповые площадки:

2

для детей ясельного возраста

150

150

300

300

600

600

(150´1)

(150´1)

(150´2)

(150´2)

(150´4)

(150´4)

3

для детей дошкольного возраста навесы

180

540

720

1080

1440

1800

(180´1)

(180´3)

(180´4)

(180´6)

(180´8)

(180´10)

80

160

240

320

480

560

для укрытия от атмосферных осадков

(40´2)

(40´4)

(40´6)

(40´8)

(40´12)

(40´14)

Физкультурные площадки:

4

для детей ясельного возраста

250

250

250

200

200

200

5

для детей дошкольного возраста

250

250

250

6

Бассейны**:

открытые плавательные ванны

-

-

-

-

75

75

7

полоскательные ванны

25

25

25

25

-

-

8

Площадка для выращивания овощных и ягодных культур

15

45

60

90

120

150

9

Площадка для содержания животных и птиц***

30

30

30

30

30

30

10

Зеленые насаждения, газоны, цветники

380

975

1690

2290

3630

4280

11

Хозяйственная площадка

70

100

100

150

150

150

12

Проходы, проезды

270

500

735

775

1145

1295

Итого

1800

3325

4900

6460

9520

10890

На одно место

40

35

35

34

34

33

* Уточняется по проекту.

** Следует предусматривать в III и IV климатических районах.

*** Предусматривается только в сельской местности.

Приложение 2

Рекомендуемые состав и площади элементов участков специализированных дошкольных учреждений

№ п.п.

Элементы участков

Площадь, м2, при вместимости мест

4 группы на 60

8 групп на 120

1

Площадь застройки* здания

600

1000

2

Детские групповые площадки

600

1200

150´4

150´8

В том числе:

навесы для укрытия от атмосферных осадков

160

320

40´4

40´8

3

Физкультурная площадка

150

150

4

Реабилитационная площадка

150

250

5

Площадка для выращивания овощных и ягодных культур

30

60

6

Зеленые насаждения, газоны, цветники

1378

3256

7

Хозяйственная площадка

100

100

8

Проходы, проезды

432

864

Итого

3600

7200

На одно место

60

60

* Уточняется по проекту.

Приложение 3

Рекомендуемые состав и площади элементов участков кооперированных яслей-садов и школ

№ п.п.

Элементы участков

Площадь, м2

яслей-сада на 25 мест с начальной школой на 40 учащихся

яслей-сада на 50 мест

с начальной школой на 80 учащихся

с мало-комплектной школой на 108 учащихся

1

Площадь застройки здания*

500

900

1400

Детские площадки:

2

для детей ясельного возраста

180

150

150

для детей дошкольного возраста

180

180

4

навесы для укрытия от атмосферных осадков

Для школьников

Площадки отдыха:

40

80 (40´2)

80 (40´2)

5

для подвижных игр I классов

100

100

100

6

для подвижных игр II - IV классов

300

300

300

7

для подвижных игр V - IХ классов

-

-

125

8

для тихого отдыха V - IХ классов

-

-

100

Учебно-опытная зона:

9

отдел начальных классов

200

200

200

10

отдел полевых и овощных культур**

15

15

800

11

отдел плодового сада и питомника

-

-

740

12

отдел цветочно-декоративных растений

40

40

100

13

теплица с зооуголком**

30

30

170

14

метеорологическая и географическая площадки

-

-

50

15

площадка для занятий на воздухе (с навесом)

-

-

20

Физкультурно-спортивная зона:

16

школьный стадион (круговая беговая дорожка 333 м, совмещенная с прямой дорожкой 110 м; комбинированное поле размером 60´28 для футбола и ручного мяча и двумя секторами для прыжков в высоту и в длину)

-

-

4200

площадки для спортивных игр:

17

волейбола

162

162

-

18

баскетбола

-

-

364

площадка для гимнастики I - IV классов

200

200

200

площадка для гимнастики V - XI классов

-

-

200

площадка комбинированная для спортивных игр, метания мяча и прыжков в высоту и длину***

480

480

480

19

Хозяйственная площадка с асфальтовым покрытием

250

250

350

20

Проходы, проезды

190

235

740

21

Зеленые насаждения, газоны, цветники

1313

3678

951

Итого

4000

7000

1200

* Уточняется по проекту.

** Элементы участков, используемые совместно детьми дошкольного и школьного возраста.

Приложение 4

Рекомендуемые наборы оборудования на групповых площадках детских яслей-садов

№ п.п.

Оборудование

Количество, шт., на групповой площадке для детей

ясельного возраста

дошкольного возраста

1 - 2 года

2 - 3 года

3 - 4 года

4 - 5 лет

5 - 6 лет

1. Оборудование для спокойных игр и отдыха

1.1

Стол для игр

4 - 6

4 - 6

6 - 8

-

-

-

-

-

6 - 8

6 - 8

1.2

Скамья детская

6 - 8

6 - 8

6 - 8

-

-

-

-

-

8 - 14

8 - 14

1.3

Скамья для взрослых

1

1

1

1

1

1.4

Песочница

2

2

-

-

-

-

-

1

1

1

1.5

Секция с меловой доской

-

-

1

1

1

1.6

Каналы для пускания корабликов

-

-

-

-

1

1.7

Оборудование для сюжетно-ролевых игр

-

-

-

1

1

2. Оборудование для подвижной деятельности и гимнастики

2.8

Горка-манеж

1

1

-

-

-

2.9

Горка со скатом

-

-

1

1

1

2.10

Секция с гимнастической лестницей

-

1

1

1

1

2.11

Секция с набором элементов для игр с мячом

-

1

1

1

1

2.12

Секция с качелями

-

-

1

1

1

2.13

Секция с веревочной лестницей

-

-

-

1

1

2.14

Секция с одной перекладиной (турник)

-

-

-

-

1

2.15

Секция с канатом или шестом

-

-

-

1

1

2.16

Секция для метания мяча

-

-

-

-

1

2.17

Секция «игровая стенка»

-

-

1

1 - 2

1 - 2

2.18

Лестница наклонная

-

1

1

1

1

2.19

Лесенки-ступеньки

1

-

-

-

-

2.20

Лиана для лазания

-

-

1

1

1

2.21

Оборудование для пролезания

-

1

1

1

1

2.22

Балансир

-

1

1

-

-

-

-

-

1

1

2.23

Бум

-

-

-

1

1

2.24

Скамья гимнастическая

-

-

-

-

1

2.25

Рукоход

-

-

-

-

1

2.26

«Барьер-забор» для пролезания

-

-

-

-

1

2.27

Качалка

1 - 2

1 - 2

-

-

-

2.28

Карусель

-

-

-

-

1

2.29

Зонтик

1

1

-

-

-

2.30

Зонтик (пергола)

1

1

-

-

-

2.31

Теневой зонтик

-

-

1

1

1

2.32

Теневой зонтик (пергола)

-

-

1

1

1

2.33

Эмблема площадки

-

-

-

-

1

2.34

Флагшток

-

-

-

-

1

III

Наборы оборудования для тематических и специализированных площадок:

индейская деревня

космическая

морская

строительная

-

-

-

-

1

СОДЕРЖАНИЕ

1. Общие положения. 2

2. Генеральные планы.. 17

3. Объемно-планировочные и конструктивные решения зданий. 41

4. Отопление и вентиляция. 96

5. Водоснабжение и канализация. 97

6. Электротехнические устройства. 99

7. Противопожарные требования. 102

Приложение 1. Рекомендуемые состав и площади элементов участков яслей-садов для всех климатических районов, кроме IА, IБ, IГ климатических подрайонов. 106

Приложение 2. Рекомендуемые состав и площади элементов участков специализированных дошкольных учреждений. 107

Приложение 3. Рекомендуемые состав и площади элементов участков кооперированных яслей-садов и школ. 107

Приложение 4. Рекомендуемые наборы оборудования на групповых площадках детских яслей-садов. 108

 



© 2013 Ёшкин Кот :-)