Информационная система
«Ёшкин Кот»

XXXecatmenu

МИНИСТЕРСТВО ПУТЕЙ СООБЩЕНИЯ СССР

 

 

ТЕХНИЧЕСКИЕ УСЛОВИЯ
ПОГРУЗКИ И КРЕПЛЕНИЯ
ГРУЗОВ

 

Изданы в соответствии
с Уставом железных дорог
Союза ССР
(с изменениями и дополнениями
по состоянию на 1 января 1989 г.)

МОСКВА «ТРАНСПОРТ» 1990

 

В подготовке Технических условий погрузки и крепления грузов принимали участие специалисты Главного управления контейнерных перевозок и коммерческой работы МПС, научные сотрудники ВНИИЖТа, НИИЖТа, ДИИТа, ЛИИЖТа, ХабИИЖТа, ВЗИИТа, специалисты железных дорог и предприятий Минчермета СССР, Минтрансстроя СССР, Минэнерго СССР, Минлесбумпрома СССР.

Заведующий редакцией B.C. Калинников

Редактор А.Н. Пономарева

Выпущено по заказу Министерства путей сообщения СССР

РАЗДЕЛ I

ТЕХНИЧЕСКИЕ УСЛОВИЯ РАЗМЕЩЕНИЯ И КРЕПЛЕНИЯ ГРУЗОВ НА ОТКРЫТОМ ПОДВИЖНОМ СОСТАВЕ

Глава 1

ОБЩИЕ ТРЕБОВАНИЯ К РАЗМЕЩЕНИЮ И КРЕПЛЕНИЮ ГРУЗОВ В ВАГОНАХ

Общие положения

§ 1. Размещение и крепление грузов на открытом подвижном составе должно выполняться в точном соответствии с данными Техническими условиями, а также чертежами, утвержденными порядком, установленным настоящей главой. Общие положения, изложенные в настоящей главе, должны соблюдаться при перевозке всех грузов на открытом подвижном составе. При наличии в последующих главах Технических условий отступлений от общих положений необходимо руководствоваться требованиями, предусмотренными в соответствующих главах.

В общих требованиях настоящей главы, а также во всех последующих главах и разделах Технических условий физические единицы изложены в системе МКГСС. В настоящее время планируется постепенный переход от единиц МКГСС к международной системе СИ.

Данные этой и последующих глав Технических условий соответствуют скорости движения грузовых поездов до 100 км/ч.

§ 2. Погруженный на открытый подвижной состав груз с учетом упаковки и крепления должен размещаться в пределах установленного габарита погрузки (рис. 1.1) при условии нахождения вагона на прямом горизонтальном участке пути и совпадения в одной вертикальной плоскости продольных осей подвижного состава и пути. При этом размеры груза будут соответствовать габариту погрузки в поперечных сечениях, если его длина не превышает значений, указанных в табл. 1.1.

Допускаемые поперечные размеры длинномерного груза определяют расчетом (см. § 33 и 34).

Автомобили, тракторы, сельскохозяйственные и дорожно-строительные машины, железобетонные и металлические изделия, а также другие грузы длиной в пределах платформы или полувагона разрешается грузить на все железные дороги, кроме Дальневосточной, в соответствии с льготным габаритом погрузки (рис. 1.2).

Расстояние В от оси пути до точек льготного габарита погрузки на высоте Н от уровня головок рельсов даны в табл. 1.2.

В накладных на лицевой стороне (место для особых отметок и штемпелей) на такие грузы отправитель делает отметку «Льготный габарит». Размещение и крепление таких грузов производится по чертежам, утвержденным отделениями дорог, или по местным техническим условиям.

Лесоматериалы разрешается грузить в полувагоны в пределах зонального габарита погрузки (рис. 1.3) на все железные дороги, за исключением Азербайджанской, Закавказской, Львовской, Северо-Кавказской (участки Белореченская - Туапсе - Веселое, Крымская - Новороссийск), а также участков Чум - Лабытнанги, Пукса - Наволок Северной и Тигей - Ачинск Красноярской дорог.

Рис. 1.1:

УГР - уровень головки рельса

Таблица 1.1

Тип вагона

Наибольшее расстояние от середины вагона до конца груза, мм

Вид сцепа

База сцепа, мм

Наибольшее расстояние от середины сцепа до конца груза, мм

Платформы с базой1, мм:

 

Сцепы из двух платформ с базой, мм:

 

 

9720

8800

9720

14620

11840

9294

8580

9294

14194

11600

1 Базой считается у четырех- и шестиосных вагонов расстояние между вертикальными осями шкворней тележек, у сцепов при укладке длинномерного груза с опорой на два вагона - расстояние между серединами подкладок или вертикальными осями турникетных опор.

Расстояние В от оси пути до очертания зонального габарита погрузки на высоте Н от уровня головок рельсов дано в табл. 1.3.

Размещение и крепление различных видов лесоматериалов в пределах зонального габарита должны производиться по Техническим условиям, утвержденным МПС, или местным техническим условиям, утвержденным дорогами.

Таблица 1.2

Н, мм

В, мм

Н, мм

В, мм

Н, мм

В, мм

Н, мм

В, мм

Н, мм

В, мм

Н, мм

В, мм

Н, мм

В, мм

Н, мм

В, мм

380 - 1299

1625

2648

1676

3948

1651

4240

1464

4490

1270

4740

1075

4990

882

5240

686

1300 - 1400

1700

2700

1675

4000

1650

4250

1456

4500

1262

4750

1067

5000

873

5250

678

1452

1699

2752

1674

4010

1642

4260

1448

4510

1254

4760

1060

5010

866

5260

671

1504

1698

2804

1673

4020

1634

4270

1441

4520

1246

4770

1052

5020

858

5270

663

1556

1697

2856

1672

4030

1627

4280

1433

4530

1239

4780

1044

5030

850

5280

655

1608

1696

2908

1671

4040

1619

4290

1425

4540

1231

4790

1036

5040

842

5290

647

1660

1695

2960

1670

4050

1611

4300

1417

4550

1223

4800

1029

5050

835

5300

640

1712

1694

3012

1669

4060

1603

4310

1409

4560

1215

4810

1021

5060

827

 

 

1764

1693

3064

1668

4070

1596

4320

1402

4570

1208

4820

1013

5070

819

 

 

1816

1692

3116

1667

4080

1588

4330

1394

4580

1200

4830

1006

5080

811

 

 

1868

1691

3168

1666

4090

1580

4340

1386

4590

1192

4840

998

5090

803

 

 

1920

1690

3220

1665

4100

1572

4350

1378

4600

1184

4850

990

5100

795

 

 

1972

1689

3272

1664

4110

1564

4360

1371

4610

1176

4860

982

5110

787

 

 

2024

1688

3324

1663

4120

1557

4370

1363

4620

1168

4870

975

5120

779

 

 

2076

1687

3376

1662

4130

1549

4380

1355

4630

1160

4880

967

5130

772

 

 

2128

1686

3428

1661

4140

1541

4390

1348

4640

1153

4890

959

5140

764

 

 

2180

1685

3480

1660

4150

1533

4400

1339

4650

1146

4900

951

5150

756

 

 

2232

1684

3532

1659

4160

1526

4410

1332

4660

1137

4910

943

5160

748

 

 

2284

1683

3584

1658

4170

1518

4420

1324

4670

1129

4920

936

5170

741

 

 

2336

1682

3636

1657

4180

1510

4430

1316

4680

1122

4930

928

5180

733

 

 

2388

1681

3688

1656

4190

1502

4440

1308

4690

1114

4940

920

5190

725

 

 

2440

1680

3740

1655

4200

1495

4450

1300

4700

1106

4950

912

5200

717

 

 

2492

1679

3790

1654

4210

1487

4460

1293

4710

1098

4960

905

5210

709

 

 

2544

1678

3844

1653

4220

1479

4470

1285

4720

1090

4970

897

5220

702

 

 

2596

1677

3896

1652

4230

1472

4480

1277

4730

1083

4980

889

5230

694

 

 

Таблица 1.3

Н, мм

В, мм

Н, мм

В, мм

Н, мм

В, мм

Н, мм

В, мм

Н, мм

В, мм

Н, мм

В, мм

Н, мм

В, мм

Н, мм

В, мм

380 - 4000

1625

4170

1590

4340

1555

4510

1519

4670

1486

4830

1381

4990

1260

5150

1138

4010

1623

4180

1588

4350

1553

4520

1517

4680

1484

4840

1374

5000

1252

5160

1130

4020

1621

4190

1586

4360

1550

4530

1515

4690

1482

4850

1366

5010

1244

5170

1123

4030

1619

4200

1584

4370

1548

4540

1513

4700

1480

4860

1358

5020

1237

5180

1115

4040

1617

4210

1582

4380

1546

4550

1511

4710

1472

4870

1357

5030

1229

5190

1108

4050

1615

4220

1579

4390

1544

4560

1509

4720

1465

4880

1343

5040

1222

5200

1100

4060

1613

4230

1577

4400

1542

4570

1507

4730

1457

4890

1336

5050

1214

5210

1052

4070

1611

4240

1575

4410

1540

4580

1505

4740

1450

4900

1328

5060

1206

5220

1004

4080

1608

4250

1573

4420

1538

4590

1503

4750

1442

4910

1320

5070

1199

5230

956

4090

1606

4260

1571

4430

1536

4600

1501

4760

1434

4920

1313

5080

1191

5240

908

4100

1604

4270

1569

4440

1534

4610

1499

4770

1427

4930

1305

5090

1184

5250

860

4110

1602

4280

1567

4450

1532

4620

1497

4780

1419

4940

1298

5100

1176

5260

812

4120

1600

4290

1565

4460

1530

4630

1495

4790

1412

4950

1290

5110

1168

5270

764

4130

1598

4300

1563

4470

1528

4640

1492

4800

1404

4960

1282

5120

1161

5280

716

4140

1596

4310

1561

4480

1526

4650

1490

4810

1396

4970

1275

5130

1153

5290

668

4150

1594

4320

1559

4490

1524

4660

1488

4820

1389

4980

1267

5140

1146

5300

620

4160

1592

4330

1557

4500

1521

 

 

 

 

 

 

 

 

 

 

В накладных на такие грузы на лицевой стороне («Место для особых отметок и штемпелей») грузоотправители обязаны сделать отметку «Зональный габарит». Такая же отметка должна быть проставлена работниками товарных контор в дорожной ведомости и вагонном листе.

Отметка «Зональный габарит» должна быть сделана в новых перевозочных документах (накладной, дорожной ведомости, вагонном листе) при переадресовках, а также в досылочных перевозочных документах на вагоны, загруженные в пределах зонального габарита.

§ 3. При размещении грузов на подвижном составе тележки вагонов должны быть загружены равномерно. Если это невозможно обеспечить, то допускается в зависимости от общего веса грузов смещение их общего центра тяжести (ЦТ) от вертикальной плоскости, в которой находится поперечная ось вагона, на величины, указанные в табл. 1.4.

Рис. 1.2.

Рис. 1.3.

Таблица 1.4

Вес груза, т

Наибольшие допускаемые продольные смещения, мм, общего центра тяжести грузов от вертикальной плоскости, в которой находится поперечная ось вагона

Четырехосный полувагон (база 8650 мм)

Четырехосная платформа с базой, мм

9720

9294

До 40

1081

1215

1161

45

960

1080

1032

50

865

970

929

55

550

618

422

60

144

162

0

65

0

0

-

70

-

-

-

Разница в загрузке тележек четырехосных вагонов не должна превышать 10 т, шестиосных - 15 т и восьмиосных - 20 т. Одновременно необходимо, чтобы нагрузка, приходящаяся на каждую тележку четырех-, шести- и восьмиосных вагонов, не превышала половины грузоподъемности, установленной для вагонов данного типа, с учетом допускаемого перегруза. Перегруз вагонов сверх установленной грузоподъемности не должен превышать размеров, опубликованных в Сборнике правил перевозок и тарифов № 160 издания 1984 г.

Поперечное смещение общего центра тяжести грузов от вертикальной плоскости, в которой находится продольная ось вагона, допускается не более 100 мм. В отдельных случаях для соблюдения требований о расположении ЦТ необходима балластировка вагона.

В целях устранения негабаритности или улучшения использования грузоподъемности и вместимости вагонов в виде исключения для грузов, кроме обрессоренных и длинномерных, в том числе и при несимметричном размещении в вагоне грузов в зависимости от их суммарного веса, допускается смещение общего центра тяжести грузов: вдоль вагона от вертикальной плоскости, проходящей через поперечную ось вагона (табл. 1.5), при этом поперечное смещение общего центра тяжести грузов от продольной оси симметрии вагона не должно превышать 100 мм; поперек вагона от вертикальной плоскости, проходящей через продольную ось вагона (табл. 1.6), продольное смещение общего центра тяжести грузов от поперечной оси симметрии вагона при этом не допускается.

Допускается перевозка двух грузов одинакового веса с кососимметричным размещением их на вагоне (рис. 1.4) при высоте общего центра тяжести вагона с грузом (ЦТо) над уровнем головки рельса до 2,3 м. При этом расстояние между центрами тяжести единиц груза (ЦТгр1 и ЦТгр2) не должно превышать размеров, приведенных в табл. 1.7, а общий центр тяжести вагона с грузом должен находиться в вертикальной плоскости, проходящей через центр тяжести порожнего вагона (ЦТв).

Таблица 1.5

Вес груза, т

Наибольшие допускаемые продольные смещения, мм, общего центра тяжести грузов от вертикальной плоскости, в которой находится поперечная ось вагона, для четырехосных полувагонов и платформ с тележками

Вес груза, т

Наибольшие допускаемые продольные смещения, мм, общего центра тяжести грузов от вертикальной плоскости, в которой находится поперечная ось вагона, для четырехосных полувагонов и платформ с тележками

MT-50

ЦНИИ-Х3

МТ-50

ЦНИИ-Х3

До 10

2820

3000

45

1270

1800

15

2150

2480

50

1220

1760

20

1820

2230

55

850

850

25

1620

2070

60

420

420

30

1490

1970

62

250

250

35

1390

1890

67

70

70

40

1320

1840

70 и более

0

0

Примечание. Для промежуточных значений веса груза, например 11, 12 т и т.д., допускаемые смещения определяют линейной интерполяцией.

Таблица 1.6

Вес груза, т

Высота общего центра тяжести вагона с грузом над УГР, м

Наибольшие допускаемые поперечные смещения общего центра тяжести грузов, мм, от вертикальной плоскости, в которой находится продольная ось вагона, для четырехосных полувагонов и платформ с тележками

Вес груза, т

Высота общего центра тяжести вагона с грузом над УГР, м

Наибольшие допускаемые поперечные смещения общего центра тяжести грузов, ям, от вертикальной плоскости, в которой находится продольная ось вагона, для четырехосных полувагонов и платформ с тележками

МТ-50

ЦНИИ-Х3

МТ-50

ЦНИИ-Х3

До 10

До 1,2

580

620

От 50

До 1,5

190

220

1,5

500

550

До 55

2,0

150

170

2,0

350

410

 

2,3

130

150

2,3

280

320

 

 

 

 

От 10 До

30

До 1,2

500

550

От 55

До 1,5

150

180

1,5

400

450

До 67

2,0

120

140

2,0

300

350

 

2,3

110

120

2,3

230

280

 

 

 

 

От 30

До 50

До 1,2

300

350

От 67

 

 

 

1,5

240

280

До 70

До 2,3

23

23

2,0

200

250

От 70 и более

До 2,3

0

0

2,3

150

200

Примечание. Для промежуточных значений высоты общего центра тяжести вагонов с грузом, например 1,3 - 1,4 м и т.д., допускаемые смещения общего центра тяжести грузов определяют линейной интерполяцией.

§ 4. Вес груза, приходящийся на подкладку, уложенную поперек платформы в пределах ее базы (рис. 1.5), приведен в табл. 1.8. Допускаемые нагрузки на подкладки, уложенные поперек рамы за пределами базы (на консоли) платформы на тележках ЦНИИ-Х3, для скорости 100 км/ч приведены в табл. 1.9.

Ширина распределения нагрузки В, передающейся на раму вагона,

В = bгр + 1,35h0,                                                         (1)

где bгр - ширина груза в месте опоры, мм;

h0 - высота поперечной подкладки, мм.

Наибольшие допускаемые нагрузки на поперечные балки четырехосных полувагонов приведены в табл. 1.10. Наибольшие изгибающие моменты в рамах четырехосных платформ и полувагонов приведены в табл. 1.11.

Размещают грузы в четырех-, шести- и восьмиосных полувагонах так, чтобы равномерно распределенная нагрузка на крышку люка не превышала 6 тс. Сосредоточенная нагрузка на крышку люка, на площади 25×25 см2 не должна быть более 2,3 тс, а на площади меньшего размера удельная нагрузка не должна превышать 3,68 кгс/см2. При размещении груза на две подкладки длиной не менее 1250 мм, уложенные поперек гофров, нагрузка не должна превышать 6 тс на люк. При этом расстояние между осями подкладок должно быть не менее 700 мм, а расстояние между одной подкладкой и боковой стенкой полувагона, второй подкладкой и хребтовой балкой - одинаковое. Допускается погрузка груза весом до 12 т с опорой на две крышки люков с передачей нагрузки на каждую крышку через подкладки, способ расположения которых изложен выше. Нагрузка, приходящаяся на подкладку, уложенную между гофрами крышек люков с опорой ее концов на полки продольных угольников нижней обвязки полувагона и серединой на хребтовую балку, не должна превышать 8,3 тс.

Таблица 1.7

Общий вес двух грузов, т

Наибольшее допускаемое расстояние, мм, между центрами тяжести единиц груза на четырехосных платформах и полувагонах с тележками

МТ-50

ЦНИИ-Х3

МТ-50

ЦНИИ-Х3

Вдоль вагона (l)

Поперек вагона (b)

До 20

7500

8000

1150

1250

30

6000

7000

800

900

40

5000

6000

650

750

50

5000

6000

500

600

55

5000

6000

400

500

67

4000

5000

300

400

72

3500

4500

250

350

Примечание. Для промежуточных значений веса груза, например 21, 22 т, допускаемые расстояния определяют линейной интерполяцией.

Рис. 1.4:

ЦТгр - центр тяжести груза; ЦТo - общий центр тяжести вагона с грузом

§ 5. Борта платформ, люки и двери полувагонов должны быть закрыты и заперты на запоры. До начала погрузки клиновые запоры бортов платформ необходимо осадить вниз. При погрузке грузов, не размещающихся в пределах пола платформ или полувагонов, торцовые борта платформы могут быть откинуты на кронштейны, а торцовые двери полувагона - открыты и закреплены. Груз не должен опираться на откинутые борта платформы, поэтому его размещают на подкладках. При перевозке таких грузов на платформах с открытыми секциями боковых бортов последние должны быть закреплены за кольца, имеющиеся на продольных балках.

В случае отсутствия колец все противоположные секции бортов грузоотправитель обязан увязать проволокой диаметром не менее 4 мм, которая пропускается под платформой ниже уровня боковых и хребтовых балок. Ответственность за увязку бортов проволокой несет грузоотправитель.

Перед опусканием и увязкой бортов у платформы должны быть тщательно осмотрены и заправлены буксы.

Борта платформы после увязки должны занимать вертикальное положение, на левых крайних секциях опущенных продольных бортов должен быть нанесен несмываемой белой краской номер платформы. Выход груза за пределы концевой балки полувагонов и платформ не должен превышать 400 мм.

Если груз позволяет, то крайние секции продольных бортов для облегчения доступа к буксам должны быть подняты и закреплены короткими стойками в вертикальном положении. В этом случае у четырехосных платформ опущенные и связанные между собой средние борта одной стороны увязывают со средними бортами другой стороны с пропуском проволоки поперек платформ под боковыми и хребтовыми балками в двух местах.

Рис. 1.5

Таблица 1.8

Нагрузка, допускаемая на подкладку, тс

Минимальные расстояния а, мм, между вертикальными плоскостями, проходящими через середину подкладки и поперечную ось платформы

постройки с 1964 г. на тележках ЦНИИ-Х3

постройки до 1964 г. на тележках

ЦНИИ-Х3

МТ-50

при ширине распределения нагрузки В поперек вагона, мм

880

1780

2700

880

1780

2700

880

1780

2700

36,0

2900

3100

2600

2900

2150

2400

-

-

-

-

-

-

33,0

1925

2075

1760

1885

1725

1850

-

-

-

-

-

-

31,0

1650

1775

1550

1700

1425

1550

2700

2900

2650

2850

2600

2825

2875

2800

2725

30,0

1550

1675

1450

1600

1300

1450

2600

2800

2550

2750

2450

2700

2850

2725

2650

27,0

1325

1425

1225

1350

1075

1200

2300

2500

2250

2400

2175

2375

2650

2550

2450

25,0

1100

1200

900

1100

750

900

2000

2150

1950

2100

1850

2050

2400

2275

2175

22,5

575

950

375

750

250

500

1675

1800

1600

1750

1500

1650

2125

2000

1875

20,0

400

550

150

325

Не огр.

1350

1500

1250

1400

1100

1250

1775

1650

1525

17,5

Не ограничено

 

1025

1175

900

1050

600

800

1350

1225

1075

15,0

Не ограничено

 

600

750

250

500

Не огр.

150

850

675

450

12,5

Не ограничено

 

 

 

 

100

Не ограничено

Примечание. В числителе - расстояния при скорости движения 90 км/ч, в знаменателе - 100 км/ч; для платформы на тележках МТ-50 скорости движения 90 км/ч.

Таблица 1.9

Нагрузка, допускаемая на подкладку, тс

Максимальные расстояния, мм, между вертикальными поперечными плоскостями, проходящими через середину подкладки и поперечную ось платформы

постройки с 1964 г.

постройки до 1964 г.

при ширине распределения нагрузки в поперек вагона, мм

880

1780

2700

880

1780

2700

10,0

-

-

-

6300

6350

6400

12,5

6250

6350

6400

5900

5950

6000

15,0

6000

6050

6150

5550

5600

5650

20,0

5600

5650

5750

5350

5400

5450

25,0

5400

5450

5550

5250

5300

5350

33,0

5350

5400

5500

5200

5250

5300

36,0

-

-

5500

-

-

-

Примечание. Для промежуточных весов груза, например, 11, 12, 13 т и т.д., максимальные расстояния определяют линейной интерполяцией.

§ 6. Выход груза за пределы концевой балки полувагонов и платформ не должен превышать 400 мм. Длинномерные грузы, т.е. грузы, выходящие за пределы концевой балки более чем на 400 мм, перевозят на сцепах с опорой на один или два вагона.

Таблица 1.10

Максимальная скорость грузовых поездов, км/ч

Тип полувагона

Допускаемая нагрузка на одну поперечную балку полувагона, тс

среднюю

промежуточную

шкворневую

концевую

при ширине распределения погрузки поперек вагона, мм

1400

2100

2700

1400

2100

2700

1400

2100

2700

1400

2100

2700

100

Постройки до 1964 г.

7,9

8,3

9,1

16,8

18,6

21,1

0,5*Р

0,5Р

0,5Р

9,3

10,2

11,0

Постройки с 1964 г. до 01.01.74

14,3

15,0

16,1

23,5

25,7

29,0

0,5Р

0,5Р

0,5Р

11,4

13,2

14,0

Постройки с 01.01.74

17,5

18,7

20,7

24,3

27,3

31,0

0,5Р

0,5Р

0,5Р

22,0

24,1

26,3

90

Постройки до 1964 г.

8,1

8,7

9,3

15,0

16,7

19,0

0,5Р

0,5Р

0,5Р

8,5

9,3

10,6

Постройки с 1964 г. по 01.01.74

15,9

16,9

18,1

25,9

28,3

32,1

0,5Р

0,5Р

0,5Р

12,8

14,7

15,6

Постройки с 01.01.74

19,3

20,7

22,7

27,4

30,1

34,2

0,5Р

0,5Р

0,5Р

23,1

26,7

28,6

* Р - грузоподъемность вагона, установленная указанием МПС.

Таблица 1.11

Максимальная скорость движения грузовых поездов, км/ч

Ширина распределения погрузки поперек вагона, мм

Допускаемые изгибающие моменты в рамах Миз*, т · с

платформ постройки

полувагонов постройки

полувагонов

с 1964 г.

до 1964 г.

до 1964 г.

с 1964 г. до 01.01.74

с 01.01.74

ЦНИИ-Х3

ЦНИИ-Х3

МТ-50

ЦНИИ-Х3

МТ-50

ЦНИИ-Х3

ЦНИИ-Х3

90

880

97

71

64

35

28

45

49,5

1780

105

77

70

38

31

48

52,8

2700

115

85

73

44

36

55

60,5

100

880

91

68

-

30

-

40

46

1780

99

71

-

35

-

44

50,6

2700

110

79

-

40

-

50

57,5

* Миз - для полувагонов действительны только при передаче нагрузки через поперечные балки.

Требования к размещению и креплению длинномерных грузов, опирающихся на два вагона, изложенные в настоящей главе, распространяются только на те случаи перевозок, когда нагрузка передается на каждый грузонесущий вагон сцепа через турникетную опору.

Сцепы для перевозки длинномерных грузов должны формироваться из вагонов одного типа; четырехосные вагоны на тележках ЦНИИ-Х3 должны быть с роликовыми подшипниками.

Разница по высоте между продольными осями автосцепок смежных вагонов сцепа до погрузки не должна превышать 100 мм.

При погрузке длинномерного груза с опорой на одну четырехосную платформу и расположении общего центра тяжести грузов (ЦТ) в вертикальной плоскости, в которой находится поперечная ось вагона, допускается вес груза в зависимости от его длины и типа рессорного подвешивания платформ (табл. 1.12).

В целях лучшего использования грузоподъемности и вместимости вагонов грузы длиной до 17,2 м, имеющие по всей длине одинаковое поперечное сечение и равномерно распределенную нагрузку, разрешается перевозить на четырехосных платформах и полувагонах с выходом груза с одной торцовой стороны вагона. При этом допускается продольное смещение общего центра тяжести грузов от вертикальной плоскости, в которой находится поперечная ось вагона. Наибольшие допускаемые значения этого смещения для четырехосных платформ с металлическими бортами (база 9720 мм) приведены в табл. 1.13, для четырехосных полувагонов (база 8650 мм) - в табл. 1.14.

Допускается размещение турникетов со смещением в пределах, установленных § 3 настоящей главы.

При перевозке груза на сцепе с опорой на два вагона крепление груза (растяжки, стойки, борта и др.) не должно препятствовать перемещению вагонов сцепа относительно груза при проходе кривых участков пути. Устройства, предохраняющие груз от поперечных смещений и опрокидывания, следует размещать на обоих грузонесущих вагонах в плоскости расположения опор.

Секции продольных бортов платформ прикрытия сцепа должны быть открыты, если они препятствуют перемещению груза при движении вагонов в кривых участках пути. Торцовые борта платформ со стороны сцепа должны быть откинуты на кронштейны.

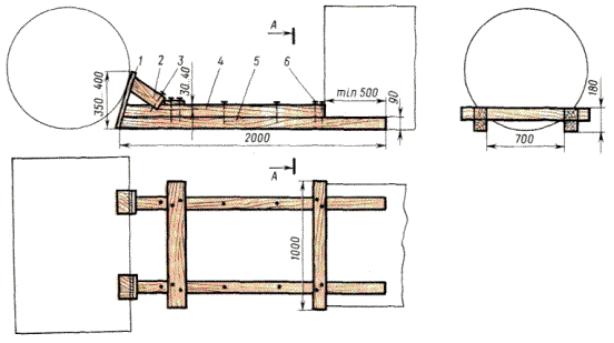
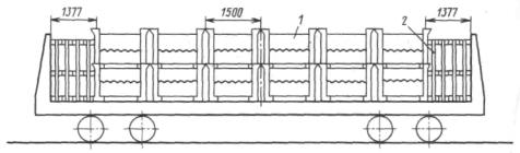
Расстояние между концами грузов, закрепленных на смежных платформах сцепа, должно быть не менее 270 мм (рис. 1.6, а). В случаях когда длинномерный груз опирается на два вагона и имеет свесы, промежуток между этими свесами и грузами на платформах прикрытия должен быть со стороны вагона, на котором длинномерный груз закреплен от продольного перемещения, не менее 270 мм, с противоположной стороны - 490 мм (рис. 1.6, б), а при наличии промежуточной платформы прикрытия - 710 мм (рис. 1.6, в).

Таблица 1.12

Вес груза, т, не более

Длина груза, м, не более

Вес груза, т, не более

Длина груза, м, не более

Тип тележки вагона

Тип тележки вагона

МТ-50

ЦНИИ-Х3

МТ-50

ЦНИИ-Х3

20

27,0

30,0

50

17,5

19,0

25

24,1

27,0

55

16,5

18,5

30

22,0

24,0

60

16,0

18,0

35

20,3

22,5

65

14,3

14,3

40

19,0

21,0

70

14,3

14,3

45

17,9

20,0

72

14,1

14,3

Примечание. Расстояние от середины платформы до конца груза с каждой стороны должно быть не более половины длины груза, указанной в табл. 1.12.

Таблица 1.13

Вес груза, т

Длина груза, м, не более, на платформе

Наибольшее допустимое продольное смещение, м, общего центра тяжести от поперечной оси симметрии платформы

МТ-50

ЦНИИ-Х3

МТ-50

ЦНИИ-Х3

До 10

17,0

17,2

2,8

3,0

15

16,4

16,7

2,15

2,48

20

16,0

16,43

1,8

2,23

25

15,8

16,3

1,6

2,07

30

15,7

16,2

1,49

1,97

35

15,6

16,1

1,37

1,89

40

15,5

16,04

1,32

1,84

45

15,47

16,0

1,27

1,8

50

15,42

15,96

1,22

1,76

55

15,1

15,1

0,85

0,85

60

14,72

14,72

0,52

0,42

62

14,59

14,59

0,39

0,39

64

1,4,33

14,33

0,13

0,13

67

14,29

14,29

0,09

0,09

72

14,29

14,29

0

0

Примечание. Для промежуточных значений весов груза, например 11, 12 т и т.д., допускаемые длину груза и смещение определяют линейной интерполяцией.

Таблица 1.14

Вес груза, т

Длина груза, м, не более, в полувагоне

Наибольшее допустимое продольное смещение, м, общего центра груза от поперечной оси симметрии полувагона

МТ-50

ЦНИИ Х3

МТ-50

ЦНИИ-Х3

До 10

16,3

15,5

16,5

15,7

2,82

3,0

15

15,65

14,85

16,0

15,2

2,15

2,48

20

15,3

14,5

15,73

14,97

1,8

2,23

25

15,1

14,3

15,57

14,77

1,6

2,07

30

15,0

14,2

15,47

14,67

1,49

1,97

35

14,87

14,07

15,38

14,59

1,37

1,89

40

14,82

14,02

15,34

14,54

1,32

1,84

45

14,77

13,97

15,3

14,5

1,27

1,8

50

14,72

13,92

15,26

14,46

1,22

1,76

55

14,35

13,55

14,35

13,55

0,85

0,85

60

13,96

13,16

13,96

13,16

0,46

0,46

62

13,84

13,04

13,84

13,04

0,34

0,34

64

13,61

12,81

13,61

12,81

0,11

0,11

66

13,57

12,77

13,57

12,77

0,07

0,07

72

13,17

12,37

13,17

12,37

0

0

Примечания. 1. В числителе - для груза с выходом одного конца за пределы лобового бруса полувагона на 400 мм, в знаменателе - при размещении одного конца груза вплотную к торцовой стенке полувагона.

2. Для промежуточных значений веса груза, например 11, 12 т и т.д., допускаемые длину груза и смещение определяют линейной интерполяцией.

Подкладки, применяемые при перевозке длинномерных грузов, должны иметь длину, равную ширине вагона. Ширина и высота подкладки определяется расчетом.

Для предупреждения разъединения вагонов сцепа на боковых бортах вагонов с обеих сторон делается надпись «Сцеп не разъединять».

Отправители или организации, производящие погрузку грузов на сцепы, должны прочно прикреплять рукоятки расцепных рычагов к кронштейнам мягкой проволокой. Правильность подготовки вагонов сцепа в техническом отношении должна проверяться перед погрузкой работником вагонной службы.

§ 7. Для размещения и крепления груза на открытом подвижном составе применяются растяжки, обвязки, упорные и распорные бруски, стойки, подкладки, прокладки, щиты, турникеты и другие приспособления, а также стандартное крепление многократного использования.

Запрещается применять стойки, подкладки, прокладки и прочий реквизит из осины, ольхи, липы и сухостойного дерева других пород. Допускается применение подкладок и прокладок из осины и ольхи, работающих только на сжатие и к которым не крепятся упорные и распорные бруски и другие элементы крепления.

Вместо проволочных растяжек, деревянных брусков и других видов креплений, предусмотренных Техническими условиями погрузки и крепления грузов, грузоотправитель может использовать приспособления многократного применения, прочность которых должна быть обоснована и не ниже, чем у реквизитов крепления, предусмотренных данными Техническими условиями погрузки и крепления грузов. На эти приспособления грузоотправитель обязан иметь утвержденные документацию и Инструкцию по эксплуатации. Перед погрузкой грузов отправитель обязан проверить соответствие приспособлений документации и их исправность. Ответственность за качество и прочность этих приспособлений и их эксплуатацию несет грузоотправитель.

Перед погрузкой пол вагона, опорные поверхности груза, подкладки, прокладки, бруски и поверхности груза под обвязками должны быть очищены отправителем от снега, льда и грязи. В зимнее время полы вагонов и поверхности подкладок в местах опирания груза отправитель обязан посыпать тонким слоем (1 - 2 мм) чистого сухого песка.

Рис. 1.6

§ 8. Стойки изготовляют из здорового дерева круглого сечения. Диаметр стоек должен быть 120 - 140 мм в нижнем отрубе и не менее 90 мм в верхнем. Допускается изготавливать стойки из пиломатериалов не ниже второго сорта сечением 90×120 мм с прямыми волокнами в соответствии с ГОСТ 8486-86Е и 2695-83.

В полувагонах боковые стойки устанавливать в стоечные скобы допускается комлем вверх.

На платформах стойки, затесанные по размеру гнезда, всеми четырьмя сторонами должны плотно прилегать к стенкам стоечных скоб. Допускается зазор между стойкой и скобой только с одной стороны в нижней части не более 15 мм. При наличии указанного зазора стойки закрепляются клином. Клин вставляют у литых и сварных скоб снизу, а у состоящих из нижней и верхней скоб - в нижнюю снизу или сверху и прибивают к стойке гвоздями длиной 50 - 60 мм. Выход стойки из скобы должен быть от 80 до 100 мм.

У противоположных боковых стоек должны быть верхнее или верхнее и среднее поперечные крепления. Расстояние от верхнего крепления до груза 25 - 100 мм, а до вершин стоек - не менее 50 мм. Среднее крепление должно выполняться так, чтобы верхний и нижний (по отношению к увязке) штабеля груза не касались этого крепления.

Торцовые и боковые стойки на платформах с наружными стоечными скобами для обеспечения плотного прилегания к бортам по всей высоте со стороны борта в необходимых случаях затесывают.

Высота боковых стоек над полом платформ должна быть не более 2800 мм. В четырехосных полувагонах при высоте бортов 1880 мм возвышение стоек над уровнем бортов допускается не более 900 мм, при высоте бортов 2060 мм - 700 мм, в шестиосных полувагонах с высотой бортов 2365 мм - не более 400 мм.

Высота боковых стоек над полом платформ и полувагонов при погрузке в пределах зонального габарита должна соответствовать этому габариту погрузки.

Короткие стойки, устанавливаемые в торцовые и боковые наружные стоечные скобы платформ, должны быть длиной не менее высоты борта.

§ 9. Подкладки, прокладки, упорные и распорные бруски изготовляют из пиломатериалов не ниже третьего сорта в соответствии с ГОСТ 8486-86Е и 2695-83, металла различных профилей, железобетона и другого материала. Подкладки и прокладки применяют для обеспечения механизированной погрузки и выгрузки грузов, рассредоточения нагрузок, предохранения груза от повреждений и др.

Допускается использовать подкладки и прокладки составные по высоте и ширине из двух частей, кроме подкладок составных по ширине (при перевозке грузов в полувагонах) и по высоте (при перевозке длинномерных грузов с опорой на два вагона). Составные части подкладок и прокладок должны быть соединены между собой гвоздями, болтами, скобами и т.п. так, чтобы исключалась возможность перемещения их относительно друг друга.

Разрешается применять упорные и распорные бруски, состоящие по высоте из двух частей и скрепленные между собой гвоздями. При этом количество гвоздей, соединяющих нижнюю часть бруска с полом вагона, а верхнюю - с нижней частью бруска, должно быть не менее, чем определенное расчетом для крепления бруска к полу вагона.

Длина поперечных подкладок должна быть равна ширине подвижного состава, а прокладок - ширине груза. Разрешается выход концов прокладок за погруженный груз до 200 мм при условии обеспечения габаритности погрузки. Поперечные прокладки укладываются, как правило, одна над другой на расстоянии не менее 500 мм от концов груза и не менее 300 мм от стоек.

Рис. 1.7

Высота подкладок и прокладок должна быть не менее 25 мм, а упорных и распорных брусков - 50 мм. Для крепления тяжелых грузов рекомендуется укладывать бруски так, чтобы их волокна были расположены параллельно той стороне груза, к которой вплотную укладывается брусок. Размещение нескольких брусков показано на рис. 1.7.

§ 10. Растяжки (обвязки) для крепления грузов могут быть из проволоки, металлических стержней, полос, цепей, стальных тросов и др.

Каждая растяжка должна закрепляться одним концом за детали груза, а другим - за детали вагонов, перечисленные в табл. 1.34, 1.37 и § 48. Крепить растяжки к другим деталям вагонов, в том числе к лесным скобам полувагонов, увязочным кольцам, расположенным на верхнем обвязочном брусе полувагонов и боковых балках платформ, запрещается. Количество нитей в растяжке (обвязке) и площадь ее поперечного сечения определяются в наиболее слабом сечении между местами закрепления. Растяжка (обвязка) должна состоять не менее чем из двух нитей. Растяжки должны изготовляться из одной непрерывной нити проволоки и иметь не более двух концов. Каждый конец проволоки обводится 2 - 3 раза вокруг увязочного узла вагона или груза, затем не менее трех раз вокруг растяжки с последующим скручиванием нитей. Допускается постановка растяжек из отдельных нитей проволоки при условии заделки концов каждой нити указанным порядком. У обрессоренных грузов растяжки устанавливаются так, чтобы они не касались друг друга и не перетирались при перевозке.

На платформах с внутренними скобами растяжки закрепляют за скобы с внутренней стороны бортов. На платформах с наружными стоечными скобами растяжки и обвязки пропускают при наличии металлических бортов под бортами или через борт, если борта деревянные - под борт. При этом должна быть обеспечена сохранность бортов платформ от повреждения.

Крепить груз растяжками через борт можно в случаях, когда место скрепления растяжки к грузу находится выше бортов платформы. Не допускается опирание растяжки на борт, если угол между растяжкой и вертикальной плоскостью в точке касания с бортом платформы составляет более 15°. В необходимых случаях борта могут быть опущены.

Концы обвязок закрепляются за две противоположные скобы. Если обвязка из полосовой стали с натяжными устройствами касается закрытого борта, то он должен быть опущен. Металлические стержни и полосы прикрепляют к грузу при помощи, сварки или болтовых соединений, ответственность за качество и прочность которых несет грузоотправитель.

В тех случаях, когда (см. в последующих главах) предусмотрено расположение растяжек таким образом, чтобы одновременно угол между растяжкой и полом, между проекцией растяжки на пол вагона и продольной осью вагона не превышал 45°, а по конструктивным особенностям изделия такое размещение невозможно, допускается увеличение углов наклона с обязательным одновременным увеличением площади сечения растяжки (см. последующие главы). При этом каждые две нити проволоки диаметром 6 мм заменяют согласно табл. 1.15.

§ 11. Проволока для крепления груза должна применяться мягкая, термически обработанная (отожженная) согласно ГОСТ 3282-74, диаметром не менее 4 мм.

На наружной поверхности проволоки не должно быть трещин, перекручин, расслоений, заусенцев и других повреждений.

Длина отдельных нитей проволоки в растяжках, увязках и других элементах крепления должна быть одинаковой. Проволочное крепление туго натягивается, например путем закручивания ломиком. Вместо проволоки, диаметр которой указан в последующих главах Технических условий, допускается применять для крепления груза проволоку других диаметров. Например, допускается заменять две нити проволоки диаметром 6 мм тремя нитями проволоки диаметром 5 мм или пятью нитями проволоки диаметром 4 мм.

Разрешается применять проволоку некруглого сечения, если площадь поперечного сечения каждой нити не менее 20 мм2 и толщина 3 - 4 мм.

Допускается применять проволоку круглого сечения диаметром от 1 до 4 мм при условии скручивания отдельных нитей ее между собой фабричным способом. Если диаметр проволоки 1 мм, должно быть скручено не менее 16 нитей, 2 мм - не менее четырех, 3 мм - не менее двух нитей. Повторное использование проволоки в растяжках (обвязках) и увязке стоек не допускается.

Таблица 1.15

Усол между проекцией растяжки на пол вагона и продольной осью вагона, град

Число нитей проволоки при угле, град, между проекцией растяжки на пол вагона и растяжкой

45 и менее

46 - 50

51 - 55

56 - 60

61 - 65

66 - 70

71 - 75

76 - 80

45 и менее

2/-

3/2

3/2

3/3

4/3

5/4

6/5

8/6

46 - 50

3/2

3/2

3/2

4/3

4/3

5/4

6/5

-/7

51 - 55

3/2

3/2

3/3

4/3

5/4

6/4

7/5

-/8

56 - 60

3/3

4/3

4/3

4/3

5/4

6/5

8/6

-

61 - 65

4/3

4/3

5/4

5/4

6/4

7/5

-/7

-

66 - 70

5/4

5/4

6/4

6/5

7/5

-/7

-

-

71 - 75

6/5

6/5

7/5

8/6

-/7

-

-

-

76 - 80

8/6

-/7

-/8

-

-

-

-

-

Примечание. В числителе - число нитей проволоки диаметром 6 мм, в знаменателе - диаметром 7 мм.

Таблица 1.16

Диаметр стержня, мм

Длина гвоздя, мм

Наименьший диаметр головки, мм

Диаметр стержня, мм

Длина гвоздя, мм

Наименьший диаметр головки, мм

3,0

70 - 80

6,0

5,0

120 - 150

9,0

3,5

90

7,0

6,0

150 - 200

11,0

4,0

100 - 120

7,5

8,0

250

14,0

§ 12. Для крепления грузов должны применяться гвозди согласно ГОСТ 283-75 и 4028-63, размеры которых приведены в табл. 1.16.

Гвозди диаметром 6 мм допускается заменять гвоздями других диаметров согласно табл. 1.17.

При закреплении деревянных деталей гвозди необходимо забивать отвесно к полу вагона без загиба головок на расстоянии не менее 30 мм от краев и не менее 90 мм от торцов досок пола вагона. Гвозди должны быть на 50 - 60 мм длиннее высоты деталей крепления с тем, чтобы при закреплении этих деталей гвозди пробивали доски пола вагона. Не допускается забивать гвозди между досками пола вагона.

Во всех случаях, кроме специально указанных в настоящих Технических условиях, должны соблюдаться минимальные расстояния между гвоздями, а также между гвоздями и продольными (торцовыми) кромками древесины (рис. 1.8 и табл. 1.18).

Толщина деревянных деталей крепления, соединяемых друг с другом гвоздями, должна быть не менее 35 мм.

Клинья, упорные и распорные бруски и другие деревянные детали крепления прибиваются гвоздями так, чтобы дерево не получало трещин. Если применяются твердые лиственные породы (дуб, граб и др.), то, прежде чем забить гвозди, необходимо предварительно просверлить отверстия.

Для крепления груза к подкладкам разрешается применять костыли и скобы. Скобы из стержней диаметром более 8 мм и костыли забивать в доски пола вагонов запрещается.

Таблица 1.17

Количество гвоздей диаметром 6 мм, подлежащих замене

Соответствующее количество гвоздей диаметром, мм

Количество гвоздей диаметром 6 мм, подлежащих замене

Соответствующее количество гвоздей диаметром, мм

3,0

3,5

4,0

5,0

8,0

3,0

3,5

4,0

5,0

8,0

2

8

6

5

3

2

7

28

21

16

10

4

3

12

9

7

5

2

8

32

24

18

12

5

4

16

12

9

6

3

9

36

27

20

13

5

5

20

15

12

8

3

10

41

30

23

15

6

6

24

18

14

9

4

 

 

 

 

 

 

Таблица 1.18

Направление размещения гвоздей

Наименьшее расстояние, мм, при применении гвоздей диаметром до 6 мм включительно

между гвоздями при толщине прибиваемой древесины

от крайнего гвоздя до кромки древесины

35 - 45 мм

50 мм и более

перпендикулярной волокнам

расположенной вдоль волокон

Вдоль волокон древесины

S1 = 125

S1 = 90

S4 = 90

S5 = 30

Поперек волокон древесины при прямой расстановке гвоздей

S2 = 30

S2 = 30

S4 = 90

S5 = 30

Поперек волокон древесины при расстановке гвоздей под углом 45° к продольной кромке деревянной детали

S3 = 30

S3 = 30

S4 = 90

S5 = 30

§ 13. Для крепления грузов разрешается использовать болты, шпильки и винты, предусмотренные ГОСТами.

Для предотвращения самораскручивания гаек должны применяться шплинты, контргайки, заварка, расклепка резьбы.

Соединять детали крепления между собой и с грузом можно электросваркой. Грузоотправитель несет ответственность за качество сварных швов и прочность соединений.

§ 14. Все приспособления для крепления груза (стойки, щиты, стяжки, подкладки, бруски и др.), установленные отправителем, указываются им в гр. 4 оборотной стороны накладной «Особые заявления и отметки отправителя» и выдаются железной дорогой на станции назначения получателю вместе с грузом. Приспособления, не вывезенные получателем вместе с грузом, поступают в распоряжение дороги.

После выгрузки получатель обязан очистить вагон от остатков груза и мусора, освободить его от стоек, брусков, растяжек и др., снять проволоку с рукояток расцепных рычагов автосцепки, с запоров крышек разгрузочных люков полувагонов и бортовых запоров платформ и закрыть борта платформ, двери и люки полувагонов.

§ 15. Грузоотправитель обязан подготовить груз к перевозке таким образом, чтобы обеспечивалась безопасность движения поездов и сохранность груза в процессе транспортирования:

надежно закрепить груз внутри упаковки, проверить прочность узлов и деталей груза, предназначенных для постановки крепления, с тем, чтобы они могли воспринимать передаваемые на них усилия от крепления;

при необходимости оборудовать груз приспособлениями для его крепления; у колесных, гусеничных и других машин, оборудованных тормозами, проверить надежность тормозной системы и после погрузки затормозить машину так, чтобы не могло произойти самооттормаживания; слить воду. Наличие топлива в баках не должно превышать для легковых автомобилей, колесных тракторов малой и средней мощности, автомобилей грузоподъемностью до 5 т 10 л; для автомобилей грузоподъемностью свыше 5 т, гусеничных тракторов и тяжелых дорожных машин - 15 л;

застопорить фиксаторами и закрепить все подвижные и поворотные части машин и оборудования способом, исключающим перемещения их в продольном и поперечном направлениях и разворот;

снять и упаковать или защитить упаковочным материалом все бьющиеся и легкоснимаемые части груза, а также незащищенные бензо- и электромоторы;

упаковать и закрепить на вагоне запасные части к машинам или поместить их в кабины машин.

Рис. 1.8

Кроме того, грузоотправитель при погрузке автомобилей, тракторов, моторизованных сельскохозяйственных и других самоходных машин обязан закрыть их и опломбировать, составить опись с указанием числа пломб, ящиков с запасными частями и инструментами, места их нахождения, перечня деталей, снятых с машины.

На грузах в ящичной упаковке высотой более 1 м, а также по требованию железной дороги на оборудовании, машинах и других грузах высотой более 1 м в неупакованном виде необходимо указать на каждом грузовом месте вес брутто и обозначить его центр тяжести (ЦТгр) несмываемой яркой краской знаком . Знак наносят на соседние боковую и торцовую поверхности грузового места в том месте, где проецируется центр тяжести на эти поверхности. Допускается наносить знак непосредственно на тару.

§ 16. Для обеспечения механизированной выгрузки грузоотправители при погрузке грузов на открытый подвижной состав устанавливают по согласованию с получателями количество и вес пачек в штабеле, вес отдельных мест груза, определяют необходимость подкладок и прокладок.

При погрузке грузов назначением на места общего пользования станций, имеющих грузоподъемные механизмы, вес отдельных пачек груза определяется в соответствии с грузоподъемностью этих механизмов. (Перечень станций, имеющих механизмы, с указанием их грузоподъемности опубликован в Правилах перевозок грузов.) Применение подкладок и прокладок для механизированной выгрузки в этом случае обязательно.

Для конструкции с приспособлениями для застропки установка подкладок необязательна.

§ 17. В целях обеспечения сохранности вагонного парка грузоотправители и грузополучатели обязаны:

грузить и выгружать грузы так, чтобы не было повреждений подвижного состава;

при погрузке и выгрузке автомобилей, тракторов и других колесных и тяжеловесных грузов применять переносные мостики и другие приспособления, предохраняющие от повреждения борта платформ. При подаче под погрузку и выгрузку к высоким рампам борта платформы должны быть опущены, а после окончания погрузки или выгрузки - подняты и закреплены;

при погрузке или выгрузке груза с применением слег устанавливать их с опорой на пол платформы или верхнюю обвязку кузова полувагона;

перед погрузкой и после выгрузки крышки люков полувагонов запереть на оба запора и запорные секторы.

Запрещается:

выгружать грузы с платформ и полувагонов грейферами, имеющими зубья, и опускать грейферы с ударом об пол платформ и полувагонов; ударять грейфером о борта платформ, обшивку и верхнюю обвязку кузова полувагонов;

при выгрузке с помощью лебедки касаться тросами о верхнюю обвязку кузова полувагона;

грузить на платформы и полувагоны грузы с температурой выше +100 °С;

грузить и выгружать сыпучие грузы гидравлическим способом;

грузить на четырехосные платформы с деревянными бортами навалочные грузы без установки в торцовые и боковые наружные стоечные скобы коротких стоек;

грузить железобетонные плиты, конструкции и другие подобные грузы в наклонном положении с опорой на стенки кузова полувагона;

грузить кусковые или смерзшиеся руды, камень и другие навалочные грузы весом отдельных кусков более 100 кг с раскрыванием грейфера, бункера или ковша на высоте более 2,3 м от пола вагона или поверхности груза;

грузить грузы электромагнитными кранами с выключением магнита и сбрасыванием груза с высоты более 0,5 м от пола вагона или поверхности груза. Тяжеловесные грузы - слитки, болванки, балки и др. должны при погрузке укладываться без сбрасывания;

крепить грузы к металлическим частям вагонов с помощью сварки и сверления;

снимать борта платформ и двери полувагонов.

§ 18. Грузоотправитель или организация, производящая погрузку и крепление грузов, несут ответственность за несоблюдение настоящих Технических условий, в том числе количества, размеров и качества крепежных реквизитов, приспособлений, устройств и материалов, применяемых для размещения и крепления грузов, и соответствие их государственным стандартам и разделу IV настоящих Технических условий.

Грузоотправители или работники организаций, ответственные за погрузку, размещение и крепление грузов на подвижном составе, удостоверяют правильность размещения и крепления груза на обороте накладной в гр. 1 записью: «Груз размещен и закреплен согласно § ... главы ... Технических условий правильно» и подписью с указанием занимаемой должности и фамилии. Указанные работники подвергаются испытаниям по определению знаний общих требований к размещению и креплению грузов в вагонах Технических условий погрузки и крепления на отгружаемую продукцию. Испытания проводятся один раз в два года, а также при назначении на должность комиссией в составе старшего коммерческого ревизора или участкового коммерческого ревизора (председатель), начальника станции или его заместителя по грузовой работе и представителя организации, выполняющей погрузку. Руководители организаций направляют станциям приказы о согласовании указанных работников ответственными за погрузку. При нарушениях правильности размещения и крепления груза в вагонах этими лицами они отстраняются начальником станции от руководства погрузкой до повторных испытаний в знании Технических условий. Работники, не сдавшие испытаний, к работе не допускаются.

§ 19. Работники железных дорог осуществляют контроль за соблюдением грузоотправителями Технических условий погрузки и крепления грузов на открытом подвижном составе путем осмотра погруженных вагонов. Обращается внимание на соответствие размещения груза способу, установленному Техническими условиями, чертежом или схемой; правильность расположения и крепления груза; соблюдение общих положений о размещении и креплении грузов.

При предъявлении к перевозке груза, способ размещения и крепления которого предусмотрен настоящими Техническими условиями, работники станций и отделений железных дорог могут потребовать от грузоотправителя представления необходимой документации, чертежей и эскизов, утвержденных грузоотправителем, на которых должны быть указаны вес и основные габаритные размеры груза; положение центра тяжести каждого грузового места (ЦТгр), общего центра тяжести грузов (ЦТ), центра тяжести вагона с грузом (ЦТо); площадь боковой наветренной поверхности, нагрузки от колес, опор груза на пол вагона или люки полувагона, устройство, количество и размеры элементов крепления и другие данные, подтверждающие, что способ размещения и крепления груза отвечает требованиям соответствующей главы Технических условий.

Правильность размещения и крепления массовых навалочных грузов (угля, балласта, руды и т.п.) проверяет приемосдатчик груза и багажа железной дороги, а грузов, способы размещения и крепления которых предусмотрены Техническими условиями, - старший приемосдатчик груза и багажа; в пунктах, где его нет, - начальник станции или его заместитель. В вагонном листе должна быть сделана отметка «Груз погружен и укреплен правильно», поставлена подпись и указана должность и фамилия проверявшего погрузку.

Указания по перевозке грузов, не предусмотренных Техническими условиями

§ 20. Для перевозки груза, способ размещения и крепления которого Техническими условиями не установлен, грузоотправитель не позднее чем за пять дней до дня погрузки обязан представить в отдел контейнерных перевозок и коммерческой работы отделения дороги заявление, четыре экземпляра утвержденных им чертежей размещения и крепления груза и пояснительной записки с расчетами, выполненными в соответствии с требованиями, изложенными в настоящей главе.

Расчеты и чертежи рассматривают начальники отделов контейнерных перевозок и коммерческой работы, вагонного хозяйства, а также работники, назначаемые главным инженером отделения дороги, совместно с главным инженером предприятия или специалистом, разработавшим способ перевозки груза, с привлечением в необходимых случаях других работников. Если чертежи и расчеты составлены правильно, начальник отдела контейнерных перевозок и коммерческой работы отделения дороги составляет акт, который подписывают работники, участвовавшие в рассмотрении чертежей, и утверждает главный инженер отделения дороги. Форма акта дана на с. 21. Все подписи о согласовании и утверждении способа размещения и крепления груза ставят также на чертежах или схемах.

Акт составляют в трех экземплярах, из которых один направляется отправителю груза, другой - начальнику станции погрузки, а третий остается в отделении дороги. К каждому экземпляру акта прикладывают описание, чертежи и пояснительную записку. Четвертый экземпляр описания, чертежей и пояснительной записки отделение дороги направляет в ЦНИИТЭИ МПС.

Размещение и крепление груза производится в соответствии с утвержденным способом под руководством ответственного работника отправителя или организации, производящей погрузку.

Начальник станции или его заместитель лично проверяет соответствие размещения и крепления груза указанным выше чертежам. Такую проверку может выполнить также другой работник станции, персонально выделенный приказом начальника отделения дороги. Грузоотправители или работники организаций, ответственные за погрузку, размещение и крепление грузов на подвижном составе, и работник станции, проверяющий правильность размещения и крепления груза, делают на обороте накладной в гр. 1 отметку, которую заверяют своими подписями с указанием должности и фамилии, а также штемпелем станции «Груз размещен и укреплен согласно утвержденному чертежу № ______ от ________. Для крепления применены следующие реквизиты (перечисляют наименование и количество, например стоек 8, растяжек 4, упорных брусьев 4 и т.д.)».

При последующих отгрузках такого же груза на таком же подвижном составе повторного утверждения способа размещения и крепления груза не требуется. Погрузка производится на основании акта, составленного раньше.

При массовой погрузке груза с одной станции, а также при отправлении одного груза с нескольких пунктов погрузки одной дороги размещение и крепление этого груза могут производиться на основании местных технических условий, разрабатываемых в полном соответствии с требованиями, изложенными в настоящей главе, и утверждаемых главным инженером дороги. Для рассмотрения местных технических условий и расчетов привлекаются работники служб: контейнерных перевозок и коммерческой работы, движения, вагонного хозяйства и др.

Один экземпляр местных технических условий направляется в Главное управление контейнерных перевозок и коммерческой работы МПС.

Правильность размещения и крепления груза по местным техническим условиям контролирует старший приемосдатчик груза и багажа, а там, где его нет, - начальник станции или его заместитель с отметкой в вагонном листе, предусмотренной § 19.

Грузоотправители или работники организаций, ответственные за погрузку, размещение и крепление грузов на подвижном составе, удостоверяют правильность размещения и крепления груза на обороте накладной в гр. 1 за подписью «Груз размещен и закреплен согласно местным ТУ № _____ от ________ правильно. Для крепления применены следующие реквизиты (перечисляют наименование и количество)» и заверяют ее своей подписью с указанием должности и фамилии.

При перевозке грузов на собственном или арендованном подвижном составе грузоотправителей и грузополучателей, оборудованном несъемным инвентарным креплением, способ закрепления на подвижном составе несъемного инвентарного крепления при следовании в порожнем состоянии должен разрабатываться грузоотправителем одновременно с разработкой чертежей на погрузку и крепление погруженных в них грузов в соответствии с требованиями настоящего параграфа или при разработке местных технических условий, утверждаемых главным инженером дороги.

К перевозочным документам на каждый вагон грузоотправитель должен приложить описание и утвержденные отделением дороги, а в случае местных технических условий - утвержденные дорогой чертежи закрепления на порожних вагонах инвентарного несъемного крепления. О приложенных документах грузоотправитель должен сделать отметку в гр. 4 оборотной стороны накладной. Грузополучатель после выгрузки груза должен произвести закрепление несъемного инвентарного крепления в соответствии с приложенными чертежами и только после этого предъявить вагоны к перевозке, сделав при этом на оборотной стороне накладной отметку «Несъемное инвентарное оборудование для крепления груза размещено и укреплено согласно чертежу (местным ТУ) № ______ от ________, утвержденному (утвержденным) __________ отделением __________ дороги (дорогой). Для крепления применены следующие реквизиты (перечисляют наименование и количество)», отметка заверяется подписью ответственного за погрузку работника грузополучателя с указанием должности и фамилии.

Станция, принявшая к перевозке эти вагоны, делает отметку в вагонном листе о проверке закрепления на них инвентарного несъемного оборудования. Отметка должна быть заверена подписью лица, производившего проверку, с указанием должности и фамилии.

Проверку правильности закрепления несъемного инвентарного оборудования для крепления груза осуществляет лично начальник станции или его заместитель. Такую проверку может выполнить другой работник станции, персонально выделенный приказом начальника отделения дороги.

При неоднократном отправлении грузов в адрес одного и того же грузополучателя с использованием инвентарного несъемного крепления допускается при повторных отправках не прикладывать чертежи их закрепления для возврата. Но при этом грузоотправитель обязан сделать в накладной в гр. 4 отметку «Чертежи закрепления инвентарного несъемного оборудования для крепления груза с пояснительной запиской - направлены ________ (число) ________ (месяц) ________ (год) с накладной № ______». Отметка заверяется подписью работника грузоотправителя, ответственного за погрузку груза с указанием должности и фамилии.

Утверждаю:

Главный инженер __________________

отделения ___________________ дороги

__________________________________

(подпись)

«______» _______________ 198_____ г.

АКТ № _____________

«_________» _______________ 198______ г. составлен настоящий акт в том, что ___________________________________________________________________________

(должности и фамилии)

рассмотрели предъявленные __________________________________________________

(наименование отправителя)

чертежи и пояснительную записку с расчетами крепления груза, ___________________________________________________________________________

(указывается точное наименование груза)

утвержденную ______________________________________________________________

(дата, должность и фамилия лица, утвердившего ее)

«_________» _________________ 198______ г. № ______,

и установили, что запроектированное размещение и крепление обеспечивают устойчивость груза и безопасность движения поездов. Груз размещен в пределах габарита погрузки.

Представленный грузоотправителем проект способа размещения и крепления груза согласован.

Начальник отдела контейнерных перевозок

и коммерческой работы _________________________

(подпись)

Начальник отдела вагонного хозяйства ____________

(подпись)

Подписи и должности лиц, принимавших участие в рассмотрении:

§ 21. Если в пути следования обнаружен груз, способ размещения и крепления которого не предусмотрен Техническими условиями, без отметки в накладной (см. § 20), груз должен быть задержан. Начальник станции обязан немедленно доложить об этом начальнику отдела контейнерных перевозок и коммерческой работы отделения дороги.

Груз может быть отправлен по назначению после выполнения расчетов и чертежей размещения и крепления груза, составленных работником отделения дороги. Рассматриваются указанные документы порядком, предусмотренным § 20. Акт в этих случаях составляется в двух экземплярах, из которых один отсылается вместе с чертежами и описанием начальнику станции, задержавшей груз, а второй остается в делах отделения дороги.

Начальник отделения дороги, на котором обнаружен груз, может запросить чертежи и описание утвержденного способа размещения и крепления груза у отделения, погрузившего этот груз, и отправить его по назначению, разместив и закрепив в соответствии с полученными документами.

Начальник станции или его заместитель делает на обороте накладной в гр. 1 отметку следующего содержания: «На станции __________ размещение и крепление груза проверены и соответствуют утвержденным чертежам № ______ от ________. Для крепления груза применены следующие реквизиты (перечисляется наименование и количество)».

Отметку заверяют подписью с указанием должности и фамилии и штемпелем станции и после этого груз отправляют по назначению.

О задержке груза из-за нарушения установленного порядка оформления документов начальник станции сообщает начальнику станции погрузки и начальнику службы контейнерных перевозок и коммерческой работы дороги погрузки, который обязан расследовать такие случаи.

§ 22. При перевозке грузов в прямом смешанном железнодорожно-водном сообщении с перевалкой с воды на железную дорогу способ размещения и крепления груза определяют согласно § 20 настоящей главы.

Чертежи, описание и пояснительную записку с расчетами представляет порт или пристань.

Если груз до перевалки транспортируется по железной дороге, то к перевозочным документам на каждый вагон грузоотправитель прикладывает описание и чертежи или схемы для использования их при погрузке на станции перевалки груза.

§ 23. При отправлении грузов мелкими или малотоннажными отправками грузоотправитель к каждой накладной прикладывает описание и чертежи для использования при погрузке. Станция, отгружающая или перегружающая указанные отправки, делает отметку в вагонном листе о правильности размещения и крепления грузов.

§ 24. В пунктах перевалки способ размещения и крепления грузов, поступающих с иностранных железных дорог, определяют порядком, предусмотренным § 21 настоящей главы. Необходимые данные о центре тяжести (ЦТгр), весе каждого места груза и другие сведения представляют местные органы Министерства внешней торговли.

Начальник дороги приказом может назначить для составления и проверки расчетов, чертежей и схем размещения и крепления груза специальную постоянную или временную комиссию.

На крупных перевалочных станциях способ размещения и крепления таких грузов определяет техническое бюро станции с привлечением в необходимых случаях специалистов любой хозяйственной единицы дороги. Акт составляют и подписывают лица, принимавшие участие в определении способа переписки груза, и утверждает главный инженер отделения дороги.

§ 25. При отправлении груза со станций узкоколейных железных дорог с перевалкой на широкую колею грузоотправитель представляет отделу отделения дороги, в которое входит станция перегрузки, указанную в § 20 документацию для переписки груза на открытом подвижном составе широкой колеи.

Чертежи и описание грузоотправитель прикрепляет к перевозочным документам, которые следуют до станции перевалки.

§ 26. При определении способов размещения и крепления грузов должны учитываться следующие нагрузки:

продольные горизонтальные инерционные силы, возникающие вследствие соударения вагонов при движении поезда, во время маневров, роспуска с горок и в процессе торможения;

поперечные горизонтальные инерционные силы, возникающие при движении вагона и при вписывании его в кривые и переходные участки пути;

вертикальные силы, вызванные ускорениями при колебаниях движущегося вагона;

ветровая нагрузка;

сила трения;

вес груза.

Точкой приложения продольных, поперечных и вертикальных сил является центр тяжести груза (ЦТгр); точкой приложения равнодействующей ветровой нагрузки - центр тяжести наветренной площадки груза, подверженной действию ветра. Точкой приложения вертикальных и поперечных инерционных сил у длинномерных грузов, размещенных на сцепе с опорой на два вагона, является центр тяжести (ЦТ) поперечных сечений грузов, расположенных в вертикальных плоскостях, проходящих через середину опор.

Рассмотренные силы учитываются при размещении и креплении грузов в двух расчетных сочетаниях (табл. 1.19). Первое соответствует соударению вагонов при маневрах, роспуске с сортировочных горок, трогании, осаживании и торможении поезда, а второе - движению поезда с наибольшей допускаемой на сети железных дорог скоростью (до особого указания МПС в расчетах следует принимать нагрузки, соответствующие скорости движения грузовых поездов 100 км/ч).

§ 27. Продольная инерционная сила

Fпр = aпрQгр,                                                              (2)

где апр - удельная продольная инерционная сила на 1 т веса груза, принимается соответственно для различных типов крепления при весе брутто одиночных вагонов и сцепов по табл. 1.20; Qгp - вес груза, т.

Таблица 1.19

Расчетные сочетания нагрузок

Силы, действующие на груз

Продольная инерционная

Поперечная инерционная

Вертикальная динамическая

Ветровая

Трение

I

§ 27, формула (2)

-

-

-

§ 31, формула (12) или (13)

II

-

§ 28, формула (5)

§ 29, формула (7)

§ 30, формула (И)

§ 31, формула (14) или (15)

Промежуточные значения удельной продольной силы:

                                                (3)

                                               (4)

где  - общий вес груза в вагоне, т;  - общий вес груза на сцепе, т; а22, а94, а44, а188 - удельная продольная инерционная сила, тс, принимается соответственно при весе брутто вагона 22, 94 и сцепа 44 и 188 по табл. 1.20.

§ 28. Поперечная горизонтальная инерционная сила с учетом действия центробежной силы

Fп = aпQгp,                                                                 (5)

где ап - удельная поперечная инерционная сила, кгс, на 1 т веса груза принимается по табл. 1.21, если центр тяжести груза (ЦТгр) находится в вертикальных поперечных плоскостях, проходящих через середину вагона ас или шкворневую балку аш.

При расположении центра тяжести груза (ЦТгр) в других вертикальных плоскостях ап вычисляется по формуле

                                                       (6)

где lв - база вагона, м; lгр - расстояние от центра тяжести груза (ЦТгр) до вертикальной плоскости, проходящей через поперечную ось вагона, м.

Для длинномерных грузов, перевозимых на сцепах с опорой на два вагона, ап принимается по табл. 1.21.

§ 29. Вертикальная инерционная сила

Fв = aвQгp,                                                                  (7)

где ав - удельная вертикальная сила, кгс, на 1 т веса груза, определяется по формулам:

для четырехосных вагонов на тележках ЦНИИ-Х3 и скорости движения 90 и 100 км/ч

                                                   (8)

                                                 (9)

для четырехосных вагонов на тележках МТ-50 и скорости движения 90 км/ч

                                            (10)

Таблица 1.20

Тип крепления

Удельная продольная инерционная сила, тс, на 1 т груза при весе брутто вагона или сцепа с опорой груза на

один вагон

два вагона

22 и менее

94

44 и менее

188

Упругое (проволочные растяжки, тяги и обвязки, деревянные упорные и распорные бруски, металлические полосовые обвязки)

1,2

0,97

1,2

0,86

Жесткое (болтовые и сварные соединения)

1,9

1,67

1,9

1,56

Таблица 1.21

Способ размещения груза

Удельная поперечная инерционная сила, кгс, на 1 т веса груза для скорости движения, км/ч

90

100

С опорой на один вагон и расположением общего центра тяжести грузов в вертикальной поперечной плоскости, проходящей через:

середину вагона (ас)

280

330

шкворневую балку (аш)

500

550

с опорой на два вагона

350

400

Примечание. Для скоростей движения 90 км/ч данные относятся к вагонам на тележках MT-50 и ЦНИИ-Х3, для скорости движения 100 км/ч - к четырехосным вагонам на тележках ЦНИИ-Х3.

В формулах (8) - (10) в случаях загрузки вагона грузом весом менее 10 т значение  принимается равным 10 т. Коэффициент к принимается при погрузке с опорой на один нагон - 5, с опорой на два вагона - 20.

§ 30. Ветровая нагрузка принимается нормальной к поверхности груза и определяется из расчета удельной ветровой нагрузки, равной 50 кгс/м2, по формуле

Wп= 50Sп,                                                               (11)

где Sп - площадь проекции поверхности груза, подверженной действию метра, на вертикальную плоскость, проходящую через продольную ось вагона, м2 (для цилиндрической поверхности принимается равной половине площади проекции).

§ 31. Сила трения определяется по формулам:

при первом сочетании (в продольном направлении) для грузов, размещенных с опорой на один вагон или на два вагона без применения турникетных опор,

                                                       (12)

для длинномерных грузов, уложенных на двух турникетных опорах при одинаковой нагрузке,

                                                   (13)

при втором сочетании (в поперечном направлении) для грузов, размещенных с опорой на один вагон,

                                                 (14)

для длинномерных грузов, размещенных с опорой на два вагона, для каждого вагона,

                                               (15)

где μ - коэффициент трения груза по полу вагона, подкладкам или по опорной поверхности турникета; μск - коэффициент трения поворотно-подвижной части турникета по неподвижной (принимается 0,1).

Коэффициенты трения между опорными поверхностями груза, подкладок и пола вагонов, очищенными от грязи, снега, льда и смазки, при посыпке тонкого слоя песка на поверхность подкладок и пол вагона в местах опирания подкладок и груза принимаются равными: для дерева по дереву 0,45, для стали по дереву - 0,4, для стали по стали - 0,3, для железобетона по дереву - 0,55. При применении прокладок из шлифовальной шкурки на тканевой основе со шлифзерном № 20 - 200, сложенных вдвое, чтобы абразивные слои находились с внешних сторон, между опорными поверхностями груза и подкладок, подкладок и пола вагонов, коэффициент трения для дерева или металла по дереву принимается 0,6. Если указанные требования выполнить нельзя, например если поверхность груза смазана, то коэффициент трения должен приниматься меньших значений.

Применение в расчетах коэффициентов трения больших значений, чем предусмотрено в настоящем параграфе, должно быть обосновано грузоотправителем. Коэффициенты трения принимаются равными для вертикально устанавливаемых рулонов листовой стали с открытыми торцами по дереву 0,61, для пачек промасленной листовой стали по дереву - 0,21.

§ 32. При жесткости на изгиб ЕIп длинномерного груза, уложенного на две опоры, менее 9000 тс · м2 определяется частота собственных колебаний:

                                                       (16)

где Е - модуль упругости материала груза, тс/м2; Iп - момент инерции поперечного сечения пакета груза, м4, определяемый по формуле Iп = Iоп, в которой Iо - момент инерции поперечного сечения единицы груза относительно горизонтальной оси, м4; п - количество единиц груза; Q - вес груза, т; кр - коэффициент принимают по табл. 1.22.

Таблица 1.22

Длина груза, м

Значения коэффициента кр при расстоянии между опорами, м

8

9

10

11

12

13

14

15

16

17

18

19

14

3,91

3,41

2,83

2,14

1,2

-

-

-

-

-

-

-

15

4,16

3,67

3,11

2,46

1,64

-

-

-

-

-

-

-

16

4,42

3,93

3,39

2,78

2,04

1,14

-

-

-

-

-

-

17

4,68

4,20

3,68

3,09

2,40

1,60

-

-

-

-

-

-

18

4,96

4,48

3,96

3,41

2,74

2,01

1,14

-

-

-

-

-

19

5,23

4,76

4,24

3,71

3,08

2,39

1,60

-

-

-

-

-

20

5,48

5,04

4,54

4,01

3,40

2,75

2,01

1,13

-

-

-

-

21

5,78

5,31

4,82

4,31

3,72

3,09

2,40

1,59

-

-

-

-

22

6,04

5,59

5,13

4,60

4,03

3,43

2,77

2,01

1,17

-

-

-

23

6,32

5,86

5,40

4,90

4,32

3,75

3,12

2,40

1,61

-

-

-

24

6,59

6,16

5,68

5,18

4,64

4,08

3,46

2,77

2,03

1,21

-

-

25

6,86

6,44

5,95

5,48

4,94

4,39

3,79

3,14

2,43

1,65

-

-

26

7,16

6,72

6,25

5,77

5,25

4,70

4,12

3,47

2,80

2,06

1,25

-

27

7,46

6,99

6,53

6,07

5,55

5,00

4,45

3,82

3,17

2,46

1,69

-

28

7,70

7,29

6,81

6,34

5,83

5,31

4,76

4,16

3,68

2,85

2,11

1,29

29

7,98

7,55

7,12

6,62

6,14

5,63

5,08

4,47

3,86

3,21

2,51

1,74

30

8,27

7,84

7,39

6,94

6,41

5,92

5,56

4,80

4,20

3,57

2,89

2,14

31

8,54

8,13

7,69

7,22

6,73

6,20

5,69

5,12

4,53

3,91

3,25

2,54

32

8,82

8,42

7,99

7,53

7,02

6,53

6,01

5,43

4,86

4,14

3,62

2,93

Таблица 1.23

Тип четырехосного вагона

Тип тележки

Рекомендуемые диапазоны частот собственных колебаний груза, Гц

Полувагон грузоподъемностью 63 - 65 т

ЦНИИ-Х3

МТ-50

0 - 1,6; 3,4 - 4,7; 17,2 - 21,7; 54,3 - ∞

0 - 2,6; 11,2 - 21,7; 54,3 - ∞

Платформа грузоподъемностью 62 - 65 т

ЦНИИ-Х3

МТ-50

0 - 1,6; 3,4 - 9,7; 18,7 - 26,6; 55,2 - ∞

0 - 2,3; 4,7 - 9,7; 18,7 - 26,6; 55,2 - ∞

Частоты собственных колебаний груза, полученные по формуле (16), должны находиться в диапазонах, приведенных в табл. 1.23.

Увеличить или уменьшить частоту собственных колебаний груза можно, изменяя расстояние между опорами.

§ 33. Допускаемую ширину длинномерных грузов, погруженных на одиночный вагон, по условию вписывания в габарит погрузки на кривых участках пути следует определять по формулам:

для частей груза, расположенных между пятниковыми (направляющими) сечениями вагона и смещающихся внутрь кривой,

Вв = Вг - 2fв;                                                              (17)

для частей груза, расположенных снаружи пятниковых (направляющих) сечений вагона (за пределами базы вагона или сцепа) и смещающихся наружу кривой,

Вн = Вг - 2fн,                                                              (18)

где Вг - ширина габарита погрузки на данной высоте от головки рельса, мм; fв, fн - соответственно ограничение ширины груза с учетом его смещения внутрь кривой и с учетом смещения наружу кривой, мм.

Значения fв и fн определяются по табл. 1.24 и 1.25 в зависимости от базы вагона lв и расстояний соответственно пв - от рассматриваемой части груза, расположенной в пределах базы вагона, до ближайшего пятникового сечения вагона и пн - рассматриваемой части груза, расположенной за пределами базы вагона, до ближайшего пятникового сечения (рис. 1.9).

Рис. 1.9

Таблица 1.24

lв или lсц, м

Значения lв, мм, при расстоянии nв, м, от рассматриваемого внутреннего поперечного сечения груза до ближайшего пятникового (направляющего) сечения вагона или сцепа

до 2,5

3,0

3,5

4,0

4,5

5,0

5,5

6,0

6,5

7,0

7,6

8,0

8,6

9,0

9,5

10

10,5

11

11,6

12

13

14

15

До 17

-

-

-

-

-

-

-

-

-

-

-

-

-

-

-

-

-

-

-

-

-

-

-

18

-

-

-

-

-

-

-

-

2

5

8

9

10

11

-

-

-

-

-

-

-

-

-

19

-

-

-

-

-

-

-

6

11

15

19

21

23

24

24

-

-

-

-

-

-

-

-

20

-

-

-

-

-

2

9

15

20

26

30

32

35

36

38

38

-

-

-

-

-

-

-

21

-

-

-

-

-

9

17

24

30

36

40

44

47

49

51

52

52

-

-

-

-

-

-

22

-

-

-

-

7

16

25

33

39

45

51

55

60

62

65

66

67

68

-

-

-

-

-

23

-

-

-

4

14

24

32

40

48

55

62

66

72

75

79

81

82

83

84

-

-

-

-

24

-

-

-

9

20

31

40

49

57

66

73

78

84

88

92

95

98

99

100

101

-

-

-

25

-

-

2

15

26

38

48

58

67

76

84

89

97

101

106

109

112

115

116

118

-

-

-

26

-

-

7

21

33

45

56

66

76

86

95

101

109

114

119

123

128

130

132

134

136

-

-

27

-

-

12

26

40

52

64

75

85

96

106

112

120

127

133

138

144

147

148

152

155

-

-

28

-

2

17

32

46

59

72

83

95

106

116

123

133

139

146

152

158

162

164

169

173

175

-

29

-

6

22

38

52

66

80

92

104

116

127

135

146

152

160

166

174

178

180

186

192

195

-

30

-

11

27

44

59

74

87

100

113

126

138

146

157

165

174

181

188

194

196

203

211

215

216

Примечание. fв для промежуточных значений базы и расстояний пв следует определять линейной интерполяцией.

Указанные расстояния для грузов, имеющих одинаковые поперечные размеры по всей длине, принимаются равными:

nв = 0,5lв;                                                                (19)

nн = 0,5(L - lв),                                                            (20)

где L - длина груза, м.

Для параметров, не указанных в табл. 1.24 и 1.25, fв и fн следует определять по формулам:

                                                (21)

                                             (22)

где 500 - коэффициент; 105 - часть уширения габарита приближения строений и междупутий в расчетной кривой; R - радиус расчетной кривой, м (350); к - дополнительное смещение, мм, концевых сечений груза вследствие перекоса вагона в рельсовой колее с учетом норм содержания пути и подвижного состава, которое вычисляется по формулам: для вагонов на тележках МТ-50

к = 55                                                     (23)

для вагонов на тележках ЦНИИ-Х3

к = 70                                                     (24)

Таблица 1.25

lв или lсц, м

Значения fn, мм, при расстоянии пн, м, от рассматриваемого наружного поперечного сечения груза до ближайшего пятникового (направляющего) сечения вагона или турникета

до 2,6

3,0

3,5

4,0

4,5

5,0

5,5

6,0

6,5

7,0

7,5

8,0

8,5

9,0

9,5

10,0

8,65

-

-

-

4

24

44

66

89

112

136

160

186

212

239

266

294

9,0

-

-

-

3

23

44

66

88

111

135

160

185

211

238

265

293

9,29

-

-

-

3

23

44

65

88

111

135

159

184

210

237

264

292

9,72

-

-

-

2

22

43

65

87

110

134

159

184

210

237

264

292

10,0

-

-

-

2

22

43

65

87

110

134

159

184

210

236

264

292

11,0

-

-

-

3

23

44

63

88

112

135

160

185

211

238

265

293

12,0

-

-

-

4

25

46

68

91

114

138

163

188

214

241

268

297

13,0

-

-

-

6

27

49

71

94

118

142

167

192

218

246

273

302

14,0

-

-

-

8

30

52

74

98

122

146

171

198

224

252

280

308

14,19

-

-

-

10

31

53

75

98

122

147

173

199

226

253

281

310

14,62

-

-

-

11

32

54

77

100

125

149

175

201

228

256

284

314

15,0

-

-

-

12

34

56

79

102

127

152

177

204

230

259

287

317

16,0

-

-

-

17

37

63

83

107

132

157

183

210

238

266

295

325

17,0

-

-

-

19

42

65

88

113

137

164

190

218

245

275

304

334

18,0

-

-

-

23

46

69

94

119

144

171

197

226

254

283

313

344

19,0

-

-

4

27

50

74

99

125

151

178

205

234

263

292

323

354

20,0

-

-

8

31

55

80

105

131

157

185

213

242

272

302

333

364

21,0

-

-

12

35

60

85

111

138

164

193

221

251

281

312

343

375

22,0

-

-

15

40

65

90

117

144

172

201

230

260

290

322

354

387

23,0

-

-

20

44

70

97

119

151

179

209

239

269

300

332

365

398

24,0

-

-

24

49

75

102

130

158

187

217

247

279

310

343

376

410

25,0

-

-

27

54

82

108

136

166

195

225

256

288

320

353

387

422

26,0

-

-

32

59

86

114

143

173

203

234

265

298

331

364

398

434

27,0

-

10

36

64

92

120

149

180

211

242

274

308

341

376

411

446

28,0

-

14

41

69

98

126

156

188

219

251

282

318

352

387

422

468

29,0

-

18

46

74

103

133

163

195

227

260

293

328

362

398

434

471

30,0

-

22

50

79

109

138

171

203

235

269

303

338

373

410

446

484

В табл. 1.25 учтено значение к для вагонов на тележках ЦНИИ-Х3. В связи с этим при перевозке грузов на вагонах с тележками МТ-50 значения fн, приведенные в этой таблице, при необходимости могут быть уменьшены на 15 (L/lв - 1,41).

При опоре груза на два вагона в формулах (17) и (18) вместо fв и fн следует принимать ограничения fвс и fнс, определяемые по формулам:

для частей груза, расположенных между пятниковыми (направляющими) сечениями турникетов (рис. 1.10),

*                                                            (25)

для частей груза, расположенных снаружи пятниковых (направляющих) сечений турникетов (за пределами базы сцепа):

*                                                            (26)

где f - смещение грузонесущего вагона, принимаемое в зависимости от его базы lв:

lв, м     8       9       10    11     12     13      14     15      16     17     18     19

f, мм   23     29     36    43     52     61      67     81      92     103   116   130

Продолжение

lв, м   20 21 22 23 24 25 26 27 28 29 30

f, мм 144    158    174    190    203    225    241    261    282    301    324

* Формулу (25) разрешается применять, если fв > 0. При fв < 0 следует применять формулу (27).

Рис. 1.10

Значения fв и fн определяются соответственно по табл. 1.24 и 1.25 в зависимости от базы сцепа lсц и расстояний nв и nн. Если значения fв и fн получаются отрицательными, то они не учитываются и груз имеет ширину габарита погрузки.

Для грузов с одинаковыми поперечными размерами по всей длине расстояния nв и nн определяются по формулам (19) и (20), в которых вместо lв принимается lсц. Для параметров, не указанных в табл. 1.24, 1.25, ограничения следует определять по формулам:

                                       (27)

                                   (28)

Фактическая ширина погруженного на открытый подвижной состав габаритного груза должна быть меньше или равна расчетной. При несимметричном расположении груза относительно продольной оси подвижного состава, на который он погружен, поперечные размеры груза, отсчитываемые от вертикальной плоскости, проходящей через эту ось вагона, с каждой стороны должны быть не более значений 0,5Вв и 0,5Вн.

§ 34. При перевозке длинномерного груза на сцепах с опорой на два полувагона допустимая ширина груза определяется по формулам:

с учетом смещения конца груза наружу кривой

Вн = Впв - 2(δнв + к);                                                    (29)

с учетом смещения середины груза внутрь кривой

Ввн = Вдп - 2δдп,                                                         (30)

где Впв - расстояние между внутренними стенками полувагона в поперечной вертикальной плоскости, проходящей через конец груза, мм; Вдп - ширина дверного проема, мм; δнв - смещение конца груза, мм;

                                                               (31)

δдп - смещение средней части груза в плоскости дверного проема, мм:

                                                              (32)

lмв - расстояние между наружными плоскостями внутренних торцовых дверей сцепленных полувагонов (равное для четырехосных полувагонов 1750 мм).

§ 35. Поперечная устойчивость вагонов проверяется в случаях, когда центр тяжести вагона с грузом (ЦТо) находится на расстоянии от УГР более 2300 мм или наветренная поверхность четырехосного вагона с грузом превышает 50 м2, а на сцеп с опорой длинномерного груза на два вагона - 80 м2.

Высота общего центра тяжести вагона с грузом (ЦТо) (рис. 1.11)

                                       (33)

где  - вес единицы груза, кг; Qт - тара вагона, кг;  - высота центра тяжести единицы груза (ЦТгр) над уровнем верха головки рельсов, мм;  - высота центра тяжести (ЦТв) порожнего вагона, мм (табл. 1.26).

Рис. 1.11

Поперечная устойчивость груженого вагона или сцепа обеспечивается, если удовлетворяется неравенство

(Рц + Рв)/Рст £ 0,5,                                                     (34)

где Рст - статическая нагрузка от колеса на рельс, т:

                                      (35)

пк - число колес грузонесущих вагонов; пв - число грузонесущих вагонов; b - поперечное смещение общего центра тяжести груза (ЦТгр) от вертикальной плоскости, в которой лежит продольная ось вагона, м; bо - дополнительное поперечное смещение общего центра тяжести длинномерного груза (ЦТ) на сцепе при прохождении кривых, м:

                                                       (36)

знак (+) принимается при смещении опор наружу сцепа от середины грузонесущих вагонов; знак (-) - внутрь; lс - расстояние между серединами грузонесущих вагонов сцепа, м; lo - расстояние от опоры до середины грузонесущего вагона, м; Rp - расчетный радиус кривой, принимаемый при максимальной скорости движения поездов 90 км/ч - 840 м, при 100 км/ч - 1000 м; 2S = 1,580 м - расстояние между кругами катания колесной пары; fок - увеличение ширины опорного контура вагонов сцепа при прохождении кривых расчетного радиуса:

                                                  (37)

lнш - расстояние между осями шкворней наружных тележек сцепа вагонов, м; lвш - расстояние между осями шкворней внутренних тележек грузонесущих вагонов сцепа, м.

Таблица 1.26

Тип вагона

Высота ЦТ порожнего вагона над уровнем головки рельса, м

Значения коэффициентов

р

q

Четырехосный полувагон

1,13

5,61

0,11

Шестиосный          »

1,13

8,36

0,15

Четырехосная платформа

0,80

3,34

0,10

Статическая нагрузка Рст при несимметричном размещении груза в вагоне определяется для менее нагруженной тележки вагона по формулам:

при смещении груза вдоль вагона

                                                (38)

при одновременном смещении груза вдоль и поперек вагона

                                            (39)

где  - число колес тележки вагона;  - общий вес груза в вагоне, т; lсм - продольное смещение, мм, общего центра тяжести грузов (ЦТ) от вертикальной плоскости, в которой находится поперечная ось вагона.

Дополнительная вертикальная нагрузка на колесо от действия центробежных сил Рц и ветровой нагрузки Рв:

                     (40)

где W - равнодействующая ветровой нагрузки, действующей на части груза, выступающие за пределы кузова вагона, тс; h - высота приложения равнодействующей сил ветра над уровнем головки рельса, м; р - коэффициент, учитывающий ветровую нагрузку на кузов и тележки грузонесущих вагонов и поперечное смещение общего центра тяжести грунт (ЦТ) за счет деформации рессор; q - коэффициент, учитывающий увеличение ширины опорного контура вагонов сцепа и смещение ЦТ длинномерного груза при прохождении кривых участков пути.

Значения р и q приведены в табл. 1.26.

Таблица 1.27

Грузы

Перемещения

Крепления

Штучные и тяжеловесные с плоскими опорами

Поступательные перемещения вдоль и поперек

Торцовые и боковые стойки, бруски, растяжки и обвязки

Опрокидывание вдоль и поперек вагона

Растяжки и обвязки, подкосы, каркасы, пирамиды

Цилиндрические формы

Поступательные перемещения вдоль и поперек вагона

Торцовые и боковые стойки, растяжки и обвязки

Перекатывание вдоль и поперек вагона

Бруски, обвязки, растяжки

На колесах

То же

Бруски, растяжки

Поступательные перемещения вдоль и поперек вагона

То же

Однородные, уложенные штабелями

Продольные перемещения вдоль вагона и поперечный развал штабеля

Боковые стойки, обвязки, щиты, прижимы

Длинномерные

Продольные и поперечные перемещения, опрокидывание поперек вагона

Обвязки, растяжки, прижимы, подкосы, упоры

§ 36. Крепление груза устанавливается в зависимости от его конфигурации на основании данных, приведенных в табл. 1.27.

§ 37. Груз от поступательных перемещений закрепляют растяжками, упорными и распорными брусками, обвязками и другими приспособлениями.

Продольное DFпр и поперечное DFп усилия, которые должны восприниматься креплением, определяются по формулам:

DFпр = Fпр -                                                          (41)

DFп = n(Fп +W) -                                                        (42)

где п - коэффициент, значения которого принимаются равными 1,0 при разработке способов размещения и крепления грузов, включаемых в сетевые или местные технические условия, и 1,25 для способов перевозки грузов, утверждаемых отделениями дорог.

Эти усилия могут восприниматься как одним видом крепления, так и сочетанием нескольких видов:

                                             (43)

                                              (44)

где  - доли продольного или поперечного усилия, воспринимаемые соответственно растяжками, брусками, обвязками и др.

§ 38. При разработке способов крепления грузов целесообразно обеспечивать их продольную устойчивость одним видом крепления.

Усилие в растяжках при расчете крепления грузов на одиночных вагонах и сцепах с учетом увеличения сил трения от вертикальных составляющих усилия в креплении определяется по формулам (рис. 1.12):

для первого сочетания сил

                                            (45)

для второго сочетания сил

                                                (46)

где ,  - усилия в растяжке; ,  - количество растяжек, работающих одновременно в одном направлении; a - угол наклона растяжки к полу вагона; bпр, bп - углы между проекцией растяжки на горизонтальную плоскость и продольной и поперечной осями вагона.

Рис. 1.12

Количество нитей проволоки в растяжке или ее сечении определяется по большему усилию  или . В случаях применения растяжек, предназначенных для работы только в одном направлении (продольном или поперечном), расчет растяжек производится от действия сил только первого или только второго сочетания.

§ 39. Бруски к вагону могут крепиться гвоздями, болтами и др. Число гвоздей для крепления бруска определяется по формулам:

вдоль вагона

                                                              (47)

поперек вагона

                                                               (48)

где ,  - число упорных или распорных брусков, одновременно работающих в одном направлении; Rгв - допускаемая нагрузка на один гвоздь (принимается по табл. 1.31).

§ 40. Усилие в обвязке для крепления груза, размещаемого на одиночных вагонах или сцепах, от продольного или поперечного смещения

                                                                                               (49)

где nоб - число обвязок.

§ 41. Кроме поступательных перемещений, грузы в процессе перевозки могут подвергаться опрокидыванию. Коэффициент запаса устойчивости груза от опрокидывания определяется по формулам:

вдоль вагона (рис. 1.13)

                                                 (50)

поперек вагона (рис. 1.14)

                               (51)

где ,  - кратчайшее расстояние от проекции центра тяжести груза (ЦТгр) на горизонтальную плоскость до ребра опрокидывания соответственно вдоль и поперек вагона, мм; hцт - высота центра тяжести груза (ЦТгр) над полом вагона или плоскостью подкладок, мм; ,  - высота соответственно продольного и поперечного упора от пола вагона или плоскости подкладок, мм;  - высота центра проекции боковой поверхности груза от пола вагона или плоскости подкладок.

Рис. 1.13

Рис. 1.14

Грузы (панели, фермы и др.), которые при размещении в вагонах без дополнительных приспособлений подвержены опрокидыванию и при этом повреждают вагоны, следует перевозить на открытом подвижном составе с использованием специальных металлических кассет, каркасов и пирамид, параметры и конструкция которых должны быть обоснованы расчетами. Без этих устройств указанные грузы могут перевозиться только после соединения в монолитный блок, который не подвержен опрокидыванию. Для скрепления грузов в блок следует использовать уголки, швеллеры и другие профили сталей, болтовые и сварные соединения.

Если коэффициент запаса устойчивости груза от опрокидывания в одном из направлений (продольном или поперечном) находится в пределах 0,8 - 1,0, то от поступательных перемещений груз рекомендуется удерживать одним типом крепления, например брусками, а от опрокидывания - другим креплением, в качестве которого могут применяться растяжки. При перевозке грузов, подверженных опрокидыванию поперек вагона, следует стремиться к установке растяжек таким образом, чтобы проекция растяжки на пол вагона была перпендикулярна к его продольной оси, а место закрепления растяжек на грузе находилось в верхней части груза.

Усилие в растяжках определяется с учетом действия только поперечной горизонтальной инерционной силы и ветровой нагрузки.

Если коэффициент запаса устойчивости груза от опрокидывания вдоль или поперек вагона равен 1,01 - 1,25, то груз может закрепляться растяжками, одновременно воспринимающими продольные и поперечные нагрузки. Число нитей проволоки в растяжке или ее сечение должно определяться по наибольшему суммарному усилию, возникающему в растяжке от поступательных перемещений и опрокидываний вдоль или поперек вагона.

В этом случае усилие в растяжке от поступательных перемещений подсчитывается по формулам (45) и (46), а от опрокидывания - по формулам (52) и (53).

Перевозка грузов, подверженных опрокидыванию одновременно вдоль и поперек вагона, должна осуществляться только с использованием специальных устройств (каркасов, пирамид, рам и др.), полностью предотвращающих их опрокидывание.

Усилие в креплении грузов, подверженных опрокидыванию (растяжках), определяется по формулам:

в продольном направлении

                                            (52)

в поперечном направлении

                                 (53)

где g - угол между проекцией растяжки на продольную вертикальную плоскость и растяжкой; j - угол между проекцией растяжки на поперечную вертикальную плоскость и растяжкой; lпер, bпер - проекции кратчайшего расстояния от ребра опрокидывания до растяжки соответственно на продольную и поперечную вертикальные плоскости; ,  - число растяжек; п - коэффициент, значения которого принимаются равными: 1,0, если запас устойчивости груза от опрокидывания 1,0 и более; 1,25, если запас устойчивости груза от опрокидывания менее 1,0.

Рис. 1.15

§ 42. Грузы цилиндрической формы и на колесном ходу закрепляются от перекатывания упорными брусками совместно с обвязками или растяжками (рис. 1.15 и 1.16). В этом случае число гвоздей для крепления одного упорного бруска определяется по формулам:

вдоль вагона

                                                  (54)

поперек вагона

                                                   (55)

Усилие в обвязке

                         (56)

где  - число обвязок; D - диаметр груза.

Рис. 1.16

§ 43. Площадь сечения растяжек (обвязок)

                                                                    (57)

где R - усилие в растяжке (обвязке), кгс; [s] - допускаемые напряжения (принимаются в зависимости от марки стали по табл. 1.29).

§ 44. Расчет подкладок и досок пола вагона на допускаемые напряжения изгиба, сжатия (смятия) производится по формулам:

                                                                    (58)

                                                               (59)

где  - нагрузка на подкладку от веса груза и вертикальной составляющей усилия в креплении, кгс;  - вертикальная инерционная сила, действующая на подкладку, кгс; So - проекция площади опирания груза на одну подкладку на горизонтальную плоскость, см2; М - изгибающий момент, кгс · м; W = bh2/6 - момент сопротивления изгибу бруска прямоугольного сечения, см3; b - ширина бруска, см; h - высота бруска, см.

Для настила пола платформы применяются сосновые или еловые доски первого сорта толщиной 48 - 55 мм, шириной 150 мм.

§ 45. При перевозке длинномерных грузов высота подкладок или турникетных опор определяется по формулам:

для рис. 1.17, а и б

ho = aпtgg + hп + fгр + hз + hб;                                                  (60)

для рис. 1.17, в

                                                (61)

где ап (а1, а2, а3) - расстояния от возможном точки касания груза с полом вагона до середины опоры для случая погрузки груза с опорой на два вагона или до оси крайней колесной пары грузонесущего вагона для случая погрузки груза с опорой на один вагон, мм; g - угол между продольными осями груза и вагона сцепа, тангенс которого принимается по табл. 1.28; hп - разность в уровнях полов смежных вагонов сцепа, допускается не более 100 мм; hз - предохранительный зазор, равный 25 мм; fгр - упругий прогиб груза, мм; hб - высота торцового порога попона, равная 90 мм; lсц - база сцепа, м.

Рис. 1.17

§ 46. При перевозке длинномерных грузов ширина опор должна быть проверена на устойчивость от опрокидывания:

                                                     (62)

где No - нагрузка на опору от веса груза и вертикальной составляющей усилия в креплении, тс; Ру - удерживающее усилие от упоров, тс; hу - высота приложения усилия Ру, мм.

§ 47. Наиболее совершенным видом устройств для перевозки длинномерных грузов являются турникетные опоры (турникеты).

Грузоотправитель обязан иметь на турникет и на комплект крепления паспорта, руководство по эксплуатации турникета и комплектов крепления и обеспечить выполнение его требований. На применяемых для размещения и крепления длинномерных грузов турникетах всех типов должны быть нанесены инвентарный номер и дата очередного освидетельствования. Грузоотправитель обязан проверить соответствие турникетов и комплектов крепления, после удаления грязи смазать тонким слоем универсальной смазки УС-2 (ГОСТ 1033-79) трущиеся поверхности пятника, подпятника промежуточной рамы в местах ее контакта с нижней и верхней рамами, сделать записи о результатах осмотра в документации в соответствии с Руководством по эксплуатации, разработанным и утвержденным министерством (грузоотправителя), в котором изложены требования по осмотру, периодичности ремонтов и т.д.

Таблица 1.28

Способ погрузки на сцеп с опорой

Значения tgg для части груза

средней

концевой

На два четырехосных смежных вагона (в том числе с прикрытием концов груза)

0,036

0,017

На один четырехосный вагон

-

0,025

Способ размещения и закрепления на подвижном составе съемных турникетных устройств при их возврате устанавливается чертежами или местными техническими условиями, разработанными грузоотправителями и утвержденными отделениями или управлениями железных дорог по месту отгрузки груза, которые должны быть приложены к перевозочным документам при отправлении груза с использованием турникетных устройств. В чертежах и технических условиях на возврат турникетных устройств должно быть предусмотрено максимальное использование грузоподъемности (вместимости) вагона. О приложенных чертежах или технических условиях грузоотправитель должен сделать отметку в гр. 4 оборотной стороны накладной и заверить эту отметку своей подписью с указанием должности и фамилии.

Грузополучатель при возврате турникетных устройств руководствуется приложенными чертежами. Проверка правильности погрузки и закрепления турникетов на подвижном составе, а также отметки об этом в накладной грузополучателем и железной дорогой производятся в порядке, установленном настоящей главой.

При неоднократном отправлении грузов в адрес одного и того же грузополучателя с использованием съемных турникетов допускается при повторных отправках не прикладывать чертежи на их закрепление для возврата. Но при этом грузоотправитель обязан сделать в накладной в гр. 4 отметку «Чертежи размещения и крепления турникетов при их возврате направлены ________ (число) ________ (месяц) ________ (год) с накладной № ______».

Отметка заверяется подписью работника грузоотправителя, ответственного за погрузку груза, с указанием должности и фамилии.

В случае отсутствия чертежей грузополучатель обязан сам разработать такие чертежи на размещение и крепление турникетных устройств при их возврате и утвердить их в установленном порядке.

Порядок закрепления несъемных турникетных устройств на собственном и арендованном подвижном составе изложен в § 20 настоящей главы.

Для транспортировки на сцепе длинномерного груза с опорой его на два вагона могут применяться подвижные и неподвижные турникеты.

Турникеты должны обеспечивать свободное движение сцепов по прямым, кривым участкам пути с переломным профилем, в том числе через горбы сортировочных горок.

При использовании для перевозки длинномерного груза турникетов подвижного и неподвижного должны соблюдаться следующие требования. Длина прорези для продольного перемещения шкворня:

Cпр = (4la + 20)(n - 1) + d + 50,                                           (63)

где la - ход поглощающего аппарата автосцепки, мм (для типа III-1Т принимается 100 мм); п - число вагонов в сцепе без учета вагонов прикрытия концов груза; d - диаметр шкворня, мм.

При погрузке груза на турникет шкворень должен находиться в центре прорези.

Крепление нижней части турникетной опоры к вагону рассчитывают порядком, предусмотренным для крепления грузов с учетом веса турникета. При этом продольная инерционная сила:

для неподвижного турникета

                                          (64)

для подвижного турникета

                                               (65)

где Gтн - вес неподвижной турникетной опоры, т; Gтп - вес подвижной турникетной опоры, т;  - удельная продольная инерционная сила в случае оборудования вагонов несъемными турникетами при весе сцепа брутто 188 т 2000 кгс, при весе 44 т - 3000 кгс на 1 т веса груза;  - коэффициент трения скольжения поворотно-подвижной части турникета, принимается 0,1.

Промежуточные значения  определяют линейной интерполяцией. При оборудовании вагонов съемными турникетами значение  принимается по табл. 1.20.

Поперечное инерционное усилие для каждого турникета

                                              (66)

где  - удельная поперечная инерционная сила, принимаемая для скорости 90 км/ч - 400 кгс, для 100 км/ч - 450 кгс на 1 т веса груза.

Силы трения для расчета крепления каждой турникетной опоры от смещения определяются по формулам:

в продольном направлении для неподвижного турникета

                                     (67)

в продольном направлении для подвижного турникета

                                                   (68)

в поперечном направлении для подвижного или неподвижного турникета

                                          (69)

где μ - коэффициент трения груза по опорной поверхности турникета и турникета по полу платформы.

Таблица 1.29

Вид деформации

Марки стали по ГОСТ 380-71, ГОСТ 1050-74 и ГОСТ 6713-75

Допускаемое напряжение, кгс/см2

Растяжение-сжатие

Ст3 и 20

1650

То же

Сталь 30

1850

Изгиб

Ст3 и 20

1650

»

Ст5 и 30

1850

Срез

Ст3 и 20

1200

Смятие

Ст3 и 20

2500

Растяжение для болтов

Ст3 и 20

1400

Крепление груза к верхней раме турникета должно рассчитываться на то же усилие, что и крепление турникетов к платформе.

Длинномерный груз на турникетах размещают так, чтобы его общий центр тяжести (ЦТ) располагался в вертикальной плоскости, проходящей через продольные оси платформ сцепа.

При проверке габаритности и определении степени негабаритности погрузки расчетная длина и высота груза принимаются обоснованными в зависимости от типа применяемого турникета и соответствующим увеличениям фактической величины.

При использовании двух подвижных турникетов (типа ЦНИИ МПС, Минэнерго и др.) для перевозки длинномерных грузов, не предусмотренных в главе 10 ТУ, расчет крепления груза к верхней части турникета должен выполняться в соответствии с требованиями главы 1 Технических условий.

При этом величины удельных инерционных сил принимаются в соответствии с установленными нормативами для применяемого турникета.

Установка и крепление турникетов на платформах осуществляются на основании расчетов по утвержденной документации на используемый турникет.

Таблица 1.30

Число нитей в креплении

Допускаемое усилие, кгс, на крепление из проволоки диаметром, мм

4,0

4,5

5,0

5,5

6,0

6,3

6,5

7,0

7,5

8,0

2

270

440

350

560

430

680

530

840

620

980

680

1080

730

1150

850

1350

970

1550

1100

1750

3

405

660

525

840

645

1020

795

1260

930

1460

1020

1620

1095

1725

1275

2025

1455

2325

1650

2625

4

540

880

700

1120

860

1360

1060

1680

1240

1960

1360

2160

1460

2300

1700

2700

1940

3100

2200

3500

5

675

1100

875

1400

1075

1700

1325

2100

1550

2450

1700

2700

1825

2875

2125

3375

2425

3875

2750

4375

6

810

1320

1050

1680

1290

2040

1590

2520

1860

2940

2040

3240

2190

3450

2550

4050

2910

4650

3300

5250

7

945

1540

1225

1960

1505

2380

1855

2940

2170

3430

2480

3780

2555

4025

2975

4725

3395

5425

3850

6125

8

1080

1760

1400

2240

1720

2720

2120

3360

2480

3920

2720

4320

2920

4600

3400

5400

3880

6200

4400

7000

Примечание. Числитель - для способов крепления, утвержденных отделениями дорог, знаменатель - для способов крепления, используемых в сетевых и местных технических условиях.

Таблица 1.31

Диаметр гвоздя, мм

Длина гвоздя, мм

Допускаемое усилие, кгс, на гвоздь при толщине деталей 40 мм и более

5,0

120 - 150

75

6,0

150 - 200

108

8,0

250

192

Таблица 1.32

Вид напряжения

Допускаемое напряжение, кгс/см2

для съемных деталей крепления

для деталей вагонов

Изгиб

120

85

Растяжение вдоль волокон

85

60

Сжатие и смятие вдоль волокон

120

85

Сжатие и смятие поперек волокон

18

12

Смятие местное поперек волокон на части длины (если длина свободного конца детали составляет 100 мм или более, но не менее ее толщины)

30

20

Смятие местное под шайбами при передаче нагрузки поперек волокон, перпендикулярно или под углом не менее 60°

40

-

Скалывание в лобовых врубках при условии, что длина скалывания не превышает двух полных толщин вставляемой детали или 10 глубин врубки:

 

 

вдоль волокон

12

-

поперек волокон

6

-

Скалывание вдоль волокон в щековых врубках при условии, что длина скалывания не превышает пяти полных толщин детали в сопряжениях деталей под углом:

 

 

менее 30°

6

-

30° и более

4

-

Срез поперек волокон

55

40

Примечание. При использовании других пород древесины допускаемое напряжение, приведенное в табл. 1.32, необходимо умножить на переводной коэффициент, приведенный в табл. 1.33.

Таблица 1.33

Порода древесины

Поправочный коэффициент для допускаемых напряжений различных пород древесины

Растяжение, изгиб, сжатие и смятие вдоль волокон

Сжатие и смятие поперек волокон

Скалывание

Лиственница

1,2

1,2

1,0

Сосна якутская, пихта кавказская, кедр

0,9

0,9

0,9

Сосна и ель Кольского полуострова, пихта

0,8

0,8

0,8

Дуб, ясень, граб, клен, акация белая

1,3

2,0

1,6

Береза, бук, ясень дальневосточный

1,1

1,6

1,3

§ 48. В расчетах при определении способов размещения и крепления грузов принимаются допускаемые напряжения и нагрузки по табл. 1.29 - 1.33.

Допускаемые напряжения для сталей в креплениях грузов следует принимать равными при обеспечении продольной устойчивости 0,6 - 0,7, а поперечной - 0,7 - 0,8 предела текучести, указанного в Нормах для расчета на прочность и проектирование механической части новых и модернизированных вагонов железных дорог МПС колеи 1520 мм (несамоходных), утвержденных в 1983 г.

Допускаемые напряжения для сварного шва при ручной сварке электродами Э42 и при автоматической сварке принимаются равными при растяжении, сжатии и изгибе 1550 кгс/см2, при срезе - 950 кгс/см2.

При устройстве проволочного крепления (растяжек, увязок и поперечных обвязок) диаметр проволоки и число ее нитей в креплении выбирают в соответствии с допускаемой нагрузкой, приведенной в табл. 1.30. Гвоздевые соединения деревянных деталей крепления рассчитываются в соответствии с допускаемыми нагрузками, приведенными в табл. 1.31.

Допускаемые напряжения для деталей из сосны и ели приведены в табл. 1.32.

Допускаемые напряжения для деталей вагонов принимаются по Нормам для расчета на прочность и проектирование механической части новых и модернизированных вагонов железных дорог колеи 1520 мм (несамоходных), утвержденным в 1983 г.

Таблица 1.34

Детали и узлы четырехосных платформ, используемые для крепления грузов

Допускаемое усилие, тс

Стоечная скоба платформы:

 

приклепанная

2,5

литая приварная

5,0

Опорный кронштейн с торцовой стороны платформы:

 

литой при передаче нагрузки от растяжки под углом:

 

90°

6,5

45°

9,1

сварной при передаче нагрузки от растяжки под углом:

 

90°

10,0

45°

14,2

Увязочное устройство внутри платформы (постройки со второй половины 1971 г.)

7,5

Таблица 1.35

Конструкция борта и платформы

Допускаемая нагрузка, тс

равномерно распределенная на нижнюю часть одной секции борта, не подкрепленного стойками

от одного бруска высотой 50 - 100 мм, установленного напротив

клинового запора секции борта, не подкрепленного стойками

стоечной скобы у секций борта

не подкрепленного стойками

подкрепленного деревянными стойками

подкрепленного металлическими стойками

Боковой с продольными гофрами и клиновыми запорами (на платформах постройки с 1964 г.)

4,0

1,5

2,0

3,0

4,0

Торцовый с клиновыми запорами (там же)

2,0

-

1,0

2,5

3,5

Боковой с вертикальными гофрами и закидками (на платформах постройки до 1964 г.)

1,0

-

0,5

0,75

1,75

Торцовый с закидками (там же)

2,0

-

1,0

2,15

3,0

Таблица 1.36

Место приложения нагрузки

Наибольшая допускаемая нагрузка, параллельная продольной оси вагона, на одну угловую стойку или торцовый порог полувагона, тс

с деревянной обшивкой постройки

с металлической обшивкой безраскосной конструкции (с 1964 г. до 01.01.74)

с металлической обшивкой безраскосной конструкции (с 01.01.74)

до 1964 г.

с 1964 г.

На угловую стойку поверху

10

16,5

16,5

17,2

На высоте 650 мм от уровня пола

12

18,15

18,15

18,9

На высоте до 100 мм от уровня пола

18

22

22

23

На торцовый порожек

10

41,8

41,8

43,7

Таблица 1.37

Тип четырехосного полувагона

Место приложения нагрузки

Допускаемая нагрузка на верхние увязочные устройства при угле расположения растяжки относительно поперечной плоскости, тс

45°

60°

75° и более

С деревянной обшивкой

Для всех случаев нагружения

0,85

1,2

1,7

2,5

С металлической обшивкой

Одновременное нагружение всех увязочных устройств

1,5

2,1

2,5

2,5

С металлической обшивкой

Другие случаи нагружения (шесть и менее увязочных устройств, расположенных симметрично относительно середины вагона)

2,1

2,5

2,5

2,5

Вес груза, сосредоточенный посередине платформы на длине 3 м, не должен превышать 45 т, а расположенный посередине боковых балок на длине 4,3 м, - не более 60 т. Допускаемые нагрузки на детали и узлы вагонов и на металлические борта платформ приведены в табл. 1.34 и 1.35.

При креплении грузов распорными брусками их число на секцию борта при установке напротив стоечных скоб не должно быть более двух, напротив клиновых запоров - не более трех. При подкреплении боковых бортов стойками, верхние концы которых увязаны проволокой диаметром не менее чем 5 мм в четыре нити, допускаемая нагрузка на борта может быть увеличена в 2 раза по сравнению с указанной в табл. 1.35.

Распорное усилие на каждую из стоек боковой стены, приложенное на уровне до 100 мм от пола, не должно превышать для полувагонов:

с деревянной обшивкой постройки до 1964 г. - 4,2 тс, с 1964 г. - 5 тс;

с металлической обшивкой безраскосной системы - 7 тс.

Допускаемые значения продольных горизонтальных нагрузок на угловые стойки и распределенной нагрузки на порожки полувагонов приведены в табл. 1.36. У порога должен укладываться деревянный брусок размерами 60×100 мм и длиной, равной ширине полувагона.

Допускаемое усилие на увязочные устройства полувагонов у нижней обвязки составляет 5 тс, на средние увязочные устройства - 2,5 тс. Допускаемые нагрузки на верхние увязочные устройства как внутри, так и снаружи полувагона приведены в табл. 1.37. Одновременное нагружение у одной стойки верхнего и среднего устройств не допускается.

Указания по разработке Технических условий размещения и крепления грузов

§ 49. Способы размещения и крепления грузов на открытом подвижном составе, разработанные в соответствии с требованиями настоящей главы для сетевых или местных технических условий, должны подвергаться экспериментальной проверке: испытаниям на соударение вагонов (ударным испытаниям), поездным испытаниям и опытным перевозкам. До испытаний разработчик представляет проект Технических условий размещения и крепления груза в вагоне с описанием, чертежами и расчетным обоснованием управлению железной дороги при разработке местных или Министерству путей сообщения при разработке сетевых Технических условий.

Описательная часть проекта Технических условий должна включать: краткую характеристику груза, его вес, основные размеры, порядок подготовки груза к транспортировке, реквизиты крепления, их размещение, размеры, число и материалы, из которых они должны быть изготовлены.

На чертеже указывают:

тип подвижного состава, грузоподъемность, тип тележек и другие необходимые сведения, схему размещения отдельных мест и всего груза в пределах габарита погрузки;

основные размеры (длина, ширина, высота или диаметр отдельных мест груза), вес и расположение центра тяжести груза (ЦТгр) по длине, ширине и высоте груза, расположение общего центра тяжести грузов (ЦТ);

размещение и размеры отдельных элементов крепления (подкладок, упоров, растяжек, гвоздей, скоб и т.п.), углы наклона растяжек;

расстояние между опорами отдельных мест груза или подкладками и прокладками, на которые уложен груз, по длине и ширине вагона с указанием всех особенностей (разработка, закрепление ходовых, передвижных и повторных частей, съемного оборудования и др.);

описание способа крепления отдельных мест груза (от поступательных перемещений, перекатывания и опрокидывания) с указанием названия деталей и узлов, за которые закрепляются проволочные растяжки и др. элементы.

Расчетами должны быть обоснованы способ размещения и крепления груза и отдельных его частей, особенно передвижных и поворотных; допускаемые усилия на элементы груза, с которыми соединяется крепление (растяжки, обвязки, бруски и др.).

§ 50. Экспериментальная проверка надежности способов размещения и крепления грузов на открытом подвижном составе проводится:

при разработке сетевых Технических условий - по указанию Главного управления контейнерных перевозок и коммерческой работы МПС;

местных - по распоряжению начальника дороги.

О проведении испытаний и опытных перевозок дается распоряжение начальником дороги или в необходимых случаях начальником дороги и соответствующим министерством или ведомством.

Распоряжением устанавливается состав комиссии, время и место проведения испытаний, порядок подачи вагонов во время испытаний и порядок сопровождения вагонов до станции назначения. Комиссия организуется из представителей службы контейнерных перевозок и коммерческой работы управления дороги (председатель), службы вагонного хозяйства, ревизора по безопасности движения поездов, отделения дороги, станции (начальник станции или его заместитель по грузовой работе), представителей министерства или ведомства и грузоотправителя. При разработке общесетевых Технических условий в состав комиссии по указанию МПС включается представитель Главного управления контейнерных перевозок и коммерческой работы. Вагоны, занятые при проведении испытаний, на ответственный простой грузоотправителя и грузополучателя не зачисляются.

Для сопровождения груза при опытных перевозках, если установлена необходимость такого сопровождения, начальник дороги командирует работников дороги из числа членов комиссии до станции назначения груза независимо от того, какой дороге принадлежит эта станция. Министерство, ведомство или грузоотправители могут командировать своих представителей, участвующих в комиссии.

§ 51. Испытаниям на соударение и поездным испытаниям подвергаются три - пять вагонов (сцепов), загруженных согласно проекту Технических условий. Испытания проводятся под непосредственным руководством комиссии, в обязанность которой вменяется:

контроль за точным соблюдением проекта Технических условий погрузки и крепления грузов во время проведения опытных работ;

точное соблюдение режима и условий проведения экспериментальных работ, предусмотренных в настоящих Технических условиях;

составление акта с выводами о надежности или ненадежности предлагаемого способа погрузки и крепления грузов на открытом подвижном составе;

разработка и проверка предложений комиссии по улучшению испытываемого способа размещения и крепления груза.

Подготовка вагона к испытаниям заключается:

в размещении и закреплении грузов, как это предусмотрено проектом Технических условий погрузки и крепления;

в нанесении на опорные части груза и на вагоны контрольных меток. Контрольные метки наносятся краской, мелом или цветным карандашом для определения сдвига груза в плоскости пола вагона.

К акту испытаний прилагается чертеж погрузки, в котором указывают:

основные размеры (длина, ширина, высота или диаметр) отдельных мест груза;

расстояние между крайними опорами отдельных мест груза вдоль и поперек вагона (две проекции);

положение центра тяжести (ЦТгр) отдельных мест груза (даются координаты по длине, ширине и высоте груза);

размещение подкладок, упоров и других элементов крепления, которые нумеруют и заносят в таблицу следующей формы:

№ элемента крепления

Наименование элемента крепления

Род материала

Основные размеры (длина, ширина, высота), мм

Диаметр сечения, мм

 

 

 

 

 

Ударные испытания с одиночными вагонами и сцепами с опорой груза на один вагон проводятся на прямом участке пути, а со сцепами с опорой груза на два вагона - на прямом участке пути и в кривой радиусом 300 - 400 м. Каждый вагон или сцеп подвергают соударениям с группой не менее трех-четырех заторможенных четырехосных полувагонов, загруженных до полной грузоподъемности. Первый полувагон должен быть дополнительно заторможен тормозным башмаком. На прямом участке пути проводится 12 соударений (вначале 10 со скоростями 4 - 7 км/ч, в том числе два со скоростью 5 - 6 км/ч и одно - 6 - 7 км/ч; затем еще два со скоростями 7 - 8 и 8 - 9 км/ч), а в кривой, как указано выше, 10 соударений со скоростями 4 - 7 км/ч. Способ размещения и крепления груза считается пригодным, если в результате 10 соударений реквизиты крепления груза не имели существенных дефектов, груз находился в закрепленном состоянии, пригодном для транспортирования, а в двух следующих не было повреждений вагонов. Сцепы с опорой груза на два вагона, за исключением случаев, когда на обоих грузонесущих вагонах применяют турникеты одинаковой конструкции, подвергают с указанными выше скоростями соударениям вначале одной, а затем другой торцовой стороной. Грузы в вагонах во время испытаний должны быть расположены по отношению к стоящим вагонам с учетом наиболее неблагоприятного воздействия на крепление, например колесные и гусеничные машины передними частями в сторону, противоположную удару. Каждую машину следует затормозить ручным тормозом и включить первую передачу.

Скорость вагона перед соударением определяется временем прохода контрольного участка длиной 10 м (рис. 1.18)

υ = 36/t,                                                                  (70)

где t - время прохождения контрольного участка свободно движущимся вагоном, с (замеряется секундомером).

Рис. 1.18

Испытания проводятся на прямом участке пути. После каждого соударения вагон (сцеп) и все элементы крепления осматриваются членами комиссии. Результаты осмотра заносят в акт (см. с. 45). Все замеченные изменения в положении груза замеряют (сдвиг определяется положением меток и после удара) и отмечают в акте испытания.

Дефекты или изменения в конструкции вагона или в элементах крепления также заносят в акт. Если во время испытаний сдвиг груза или повреждение элементов крепления угрожает безопасности движения или сохранности груза и подвижного состава, опыты должны быть немедленно прекращены, о чем дается соответствующее указание в акте. После проведения испытаний на соударение вагоны с грузом подвергают поездным испытаниям.

Поездные испытания проводятся на одном из участков железной дороги в светлое время суток отдельным поездом, в состав которого включают вагоны для проверки способов размещения и крепления груза и вагон с членами комиссии, который ставится за локомотивом. На этом участке должны быть кривые радиусом 350 - 700 м, по которым опытный поезд должен следовать с максимальными скоростями, установленными на сети железных дорог для движения грузовых поездов.

На выделенном участке с опытным поездом организуется несколько поездок: при разработке Технических условий для максимальных скоростей движения 90 км/ч: первая - со скоростью 90 км/ч, последующие - до 100 км/ч; при разработке Технических условий для максимальной скорости движения 100 км/ч: первая - со скоростью до 100 км/ч, последующие - 110 км/ч. При поездных испытаниях скрещение опытного поезда на перегонах с пассажирскими поездами не допускается. Общий пробег опытного поезда в первом случае со скоростями 90 - 100 км/ч, а во втором 100 - 110 км/ч должен составить не менее 60 км. Ленты скоростемеров с данными о скоростях движения передаются комиссии.

После проведения ударных или поездных испытаний по решению комиссии вагоны могут быть полностью или частично перегружены и заменены все или некоторые элементы крепления.

Результаты испытаний заносят в акт.

Во время испытаний за грузом и его креплением устанавливается непрерывное наблюдение. Груз и крепление осматривают на станциях или в случае необходимости на перегонах.

При обнаружении дефектов в креплениях или сдвига груза, которые могут нарушить безопасность движения, сохранность грузов и подвижного состава, опыты немедленно должны быть прекращены.

§ 52. Опытные перевозки грузов в вагонах (сцепах) проводятся на расстояние не менее 1000 - 2000 км с учетом максимальной дальности перевозки данного груза преимущественно по однопутным направлениям. Если опытная перевозка выполняется в сопровождении членов комиссии, то группа проверяемых вагонов на всем маршруте перевозки ставится в грузовые поезда, имеющие максимальный вес, установленный графиком движения поездов для данного направления. Указанная группа вагонов должна следовать в последней четверти состава поезда. Копия натурного листа на каждый поезд, в котором следовала группа вагонов, передается комиссии.

В правой верхней части лицевой стороны накладных на вагоны, загруженные в опытном порядке, делают отметки «Опытная перевозка». К накладной прикладывают акт опытной перевозки (см. с. 47), первую часть которого заполняет и подписывает комиссия на станции отправления. Такие вагоны включают в поезда на общих основаниях.

Сопровождающая вагоны комиссия систематически осматривает состояние груза и его крепления и результаты осмотра заносит в журнал (см. с. 47).

Комиссия обращает внимание на положение груза, состояние подкладок, прокладок, упоров, растяжек и других элементов крепления. Все отклонения от первоначального положения считаются дефектами.

Характеристика этих дефектов дается краткими четкими записями. Если имелся сдвиг груза в продольном направлении на 50 мм от первоначального положения, тогда в гр. 2 (см. с. 47) записывают «50» против той станции, где был обнаружен этот сдвиг.

Допустим, что, пройдя 100 км, груз сдвинулся еще на 10 мм в продольном направлении. В этом случае в гр. 2 записывают «60». Это значит, что от первоначального положения груз сдвинулся на 60 мм, т.е. итог сдвига дается нарастающий. Аналогично записывают сдвиг в поперечном направлении.

Дефекты, обнаруженные в элементах крепления, записывают так:

частично выдернуты гвозди, которыми брусок № 1 прибит к полу, брусок смещен на 10 мм и т.д.;

ослабла растяжка № 4;

раскололся брусок № 3 по линии забивки.

При обнаружении повреждения элементов крепления члены комиссии, сопровождающие груз, устанавливают, годен ли вагон с грузом для дальнейшего следования в составе поезда или должен быть отцеплен.

При отсутствии дефектов крепления лица, сопровождающие груз, записывают в гр. 6 (см. с. 47) «Годен».

Груз, крепление и вагон осматривают в обязательном порядке перед роспуском и после роспуска поезда с сортировочных горок. При этом все обнаруженные дефекты крепления, изменения в положении груза и повреждения вагонов заносят в соответствующие графы журнала. На станции назначения комиссия заполняет и подписывает вторую часть акта опытной перевозки.

При опытных перевозках без сопровождения начальник станции отправления обязан дать телеграмму на станцию назначения о проведении комиссионной выгрузки.

Начальник станции назначения совместно с грузополучателем заполняет вторую часть акта опытной перевозки и высылает акт начальнику службы контейнерных перевозок и коммерческой работы дороги отправления.

§ 53. По окончании опытных погрузок и перевозок тщательно изучают:

акты опытных погрузок и испытаний проверки прочности крепления и устойчивости груза на открытом подвижном составе, расчеты, чертежи и проект Технических условий погрузки и крепления груза;

журнал опытной перевозки;

акты опытных перевозок;

справочные материалы, характеризующие объем перевозки данного груза;

ГОСТы или ведомственные технические условия на упаковку и транспортировку груза.

На основании анализа этих материалов комиссия или служба контейнерных перевозок и коммерческой работы дороги отправления разрабатывает уточненный проект Технических условий погрузки и крепления грузов и представляет для утверждения главному инженеру дороги.

При проведении опытных перевозок по указанию Главного управления контейнерных перевозок и коммерческой работы МПС все материалы опытных перевозок, проект Технических условий погрузки - с заключением руководства дороги, соответствующего министерства, ведомства и грузоотправителя направляются в Главное управление контейнерных перевозок и коммерческой работы для рассмотрения и утверждения руководством Министерства путей сообщения.

Испытания способов размещения и крепления грузов с применением инвентарных многооборотных приспособлений и устройств (турникетов, металлических упоров, растяжек и др.) должны проводиться в соответствии с требованиями § 50 - 52 настоящей главы ТУ по программам, согласованным Управлением железной дороги при разработке местных технических условий или МПС при разработке сетевых Технических условий.

§ 54. Методики расчетов способов размещения и крепления в вагонах основных видов грузов, а также необходимые для выполнения расчетов справочные материалы Главное управление контейнерных перевозок и коммерческой работы публикует в сборниках правил перевозок и тарифов железнодорожного транспорта Союза ССР.

АКТ
о подготовке вагонов и проведении экспериментальных работ по проверке продольной и поперечной устойчивости грузов при погрузке и креплении по проекту

Технических условий составлен ____________________________________________

(дата)

на станции _________________________________________________________________

комиссией в составе _________________________________________________________

Председатель ____________________________________________________________

(фамилия, занимаемая должность)

Члены комиссии _________________________________________________________

(фамилия, занимаемая должность)

Комиссия, осмотрев вагоны, загруженные в опытном порядке

Номер вагона

Грузоподъемность, т

Тара, т

Общий вес груза, т

Наименование груза

Число и вес каждого места

Примечание

 

 

 

 

 

 

 

- - -

 

Установила:

1) Погрузка выполнена по проекту Технических условий. Проект Технических условий, чертежи погрузки груза, расчет прочности крепления прилагаются.

2) Отклонения от проекта, если они имели место, заключались в следующем:

___________________________________________________________________________

___________________________________________________________________________

Отклонения были вызваны следующими причинами:

___________________________________________________________________________

___________________________________________________________________________

3) На полу вагонов и грузе нанесены контрольные метки согласно прилагаемому чертежу погрузки (указать на чертеже контрольные метки - на полу вагонов и грузе).

Характеристика вагонов, стоящих на пути:

Номер вагона

Грузоподъемность, т

Тара, т

Вес груза, т

Род груза

Примечание

 

 

 

 

 

 

- - -

 

 

 

Всего было произведено ______________________ соударений с каждым вагоном при набегании свободного вагона на неподвижно стоящую группу вагонов со скоростью от _______ до _______ км/ч.

Установлены следующие изменения в погрузке и креплении после каждого из соударений:

№ вагона

№ соударения

Скорость набегающего вагона, км/ч

Продольное перемещение груза от первоначального положения, мм

Дефекты крепления, обнаруженные после соударения (указываются подробно)

 

1

2

3

...

12

 

 

 

Поездные испытания произведены на участке ___________________________________

Общая длина пробега ...... км, скорость движения до ...... км/ч, в том числе на протяжении ........ км ......... км/ч.

Установлены следующие изменения в погрузке и креплении:

№ вагона

Смещение груза, мм

Дефекты крепления (указываются подробно)

Примечание

На основании анализа результатов испытаний на соударение и поездных испытаний комиссия считает, что проверяемый способ погрузки и крепления данного груза ___________________________________________________________________________

(пригодным, непригодным)

___________________________________________________________________________

Комиссия предлагает:

а) перед опытной перевозкой заменить следующие элементы крепления грузов ____

___________________________________________________________________________

б) внести в способ погрузки и крепления следующие изменения: ________________

___________________________________________________________________________

Председатель комиссии ___________________________________________________

Члены комиссии _________________________________________________________

Начальник станции назначения обязан направить настоящий акт, подписанный членами комиссии (работниками железной дороги и получателями), производящими выгрузку, в службу контейнерных перевозок и коммерческой работы дороги отправления.

Акт

опытных перевозок грузов

1. Станция и дорога погрузки ....................

5. Состояние погоды при погрузке ...........

2. Наименование отправителя ...................

…, при выгрузке ..........................................

3. Станция и дорога назначения ................

6. Расстояние перевозки .............................

4. Дата погрузки ..........................................

7. Продолжительность перевозки .............

 

Заполняется на станции отправления

Заполняется на станции назначения

№ п/п

№ вагона

Грузоподъемность, т

Наименование груза

Вес груза, т

Элементы крепления и их число

Обнаружен сдвиг груза в направлении

Дефекты в креплении

Заключение пригодности способа погрузки и крепления

продольном

поперечном

1

2

3

4

 

 

 

 

 

 

 

 

 

Подписи членов комиссии на станции погрузки (с указанием фамилии и занимаемой должности):

Подписи членов комиссии на станции выгрузки (с указанием фамилии и занимаемой должности):

 

ЖУРНАЛ

Опытной перевозки _______________________________________________________

(наименование груза)

От станции _____________________________________________________________ж. д.

(наименование станции отправления)

до станции _____________________________________________________________ж. д.

(наименование станции назначения)

Начат _____________________________________________________________________

(дата погрузки)

Окончен ___________________________________________________________________

(дата выгрузки)

Члены комиссии (с указанием фамилии и занимаемой должности), сопровождающие груз и наблюдающие за состоянием погрузки

СОДЕРЖАНИЕ ЖУРНАЛА

Дата и № вагона, станция осмотра

Состояние погрузки1

Дефекты крепления

Дефекты вагона

Заключение о возможности дальнейшего следования груза (годен, не годен)

Размеры сдвига, мм

в продольном направлении

в поперечном направлении

1

2

3

4

5

6

 

 

 

 

 

 

1 Перед роспуском состава с сортировочных горок и после роспуска в этой графе делаются отметки:

осмотр перед пуском вагонов с горки;

осмотр после спуска вагонов с горки.

Глава 2

РАЗМЕЩЕНИЕ И КРЕПЛЕНИЕ ЛЕСОМАТЕРИАЛОВ

Общие положения

§ 1. Настоящими Техническими условиями устанавливаются способы размещения и крепления лесоматериалов, погруженных в пределах обычного и зонального габаритов. Грузоотправитель обязан осуществлять погрузку лесоматериалов, как правило, с использованием зонального габарита.

При погрузке лесоматериалов габарит погрузки (обычный или зональный), а также вместимость вагонов должны использоваться максимально с учетом грузоподъемности.

Лесоматериалы грузят штабелями встык, предварительно сортируют, чтобы в вагоне в каждом штабеле были один размер по длине и толщине в пределах государственных стандартов. Общая длина штабелей не должна превышать при погрузке на платформы с базой 9720 мм 14,4 м, на платформы с базой 9294 мм - 13,9 м, в полувагоны четырехосные - 13,7 м, шестиосные - 16,1 м.

Допускается совместная погрузка на один вагон штабелей или пачек лесоматериалов различной длины, причем верхняя часть штабеля не должна быть длиннее нижней. Лесоматериалы большей длины размещают по концам вагона.

§ 2. Лесоматериалы, не помещающиеся по длине внутри кузова полувагона, перевозят с одной или двумя открытыми торцовыми дверями. В полувагоны с глухим полом лесоматериалы грузят только пакетированными, увязанными стропами.

§ 3. Лесоматериалы, погруженные в верхней суженной части габарита погрузки, должны быть подсортированы, чтобы в «шапке» было не более одного размера по длине и не более двух - трех смежных размеров по толщине.

§ 4. Погрузка лесоматериалов с обледенением, как правило, не допускается. Как исключение, погрузка лесоматериалов с обледенением может быть допущена на условиях грузов, не предусмотренных техническими условиями, в соответствии с § 20 главы 1 ТУ, с разработкой грузоотправителем чертежей размещения и крепления груза, обеспечивающих безопасность движения поездов и сохранность вагонов.

§ 5. Использование верхней (суженной) части габарита запрещается при погрузке следующих лесоматериалов, кроме пакетированных: леса длиной менее 1,6 м на четырехосных вагонах и менее 4 м в шестиосных полувагонах; неровных кряжей; лесоматериалов, пропитанных или покрытых долго не высыхающими веществами, кроме шпал; свежеокоренных лесоматериалов.

§ 6. При погрузке лесоматериалов применяют подкладки и прокладки из досок или другого материала некруглого сечения (например, горбыля) толщиной 50 мм и шириной 150 - 200 мм. Утолщенные подкладки и прокладки имеют высоту 130 - 160 мм и ширину опорной поверхности 200 - 250 мм. Длина подкладок должна быть равна внутренней ширине платформы или полувагона, а длина прокладок - ширине штабеля. Под каждый штабель круглого леса на расстоянии от его концов 0,3 - 0,5 м при длине штабеля 1,6 - 3 м и 0,5 - 0,8 м при длине штабеля более 3 м укладывают две поперечные подкладки. При погрузке пиломатериалов под серединой штабеля укладывают третью подкладку. Над подкладками между соседними пачками штабеля укладывают прокладки.

При погрузке лесоматерилов с разделением штабеля на три пачки и более прокладки под верхнюю пачку должны укладываться только из досок или протесанного горбыля. Удлиненные прокладки, применяемые при погрузке лесоматериалов в верхней суженной части габарита погрузки, должны иметь длину 3 - 3,1 м, сечение не менее 75×150 мм при отгрузке круглого леса и не менее 50×150 мм при отгрузке пиломатериалов.

Прокладки укладывают параллельно полу вагона.

§ 7. Для крепления лесоматериалов применяют четырех- и шестизвенные металлические стяжки МПС (рис. 2.1).

Четырехзвенные стяжки предназначены для увязки противоположных боковых стоек на платформах и в полувагонах; шестизвенные - для увязки круглого леса, уложенного в верхней суженной части габарита погрузки.

§ 8. Стойки при погрузке лесоматериалов устанавливаются от конца штабеля не менее чем на 180 мм при длине штабеля до 3 м и на 250 мм при длине штабеля более 3 м порядком, предусмотренным в § 8 главы 1 ТУ (не менее чем по две пары стоек на каждый штабель). Допускается установка стоек непосредственно на пол полувагона с обязательной увязкой каждой стойки проволокой диаметром 6 мм в две нити за две прилегающие верхние и нижние стоечные скобы или за верхние стоечные скобы и нижние косынки полувагона, расположенные по нижнему обвязочному брусу.

При наличии в полувагоне стоечных скоб, расположенных под углом 30°, стойки закрепляют следующим порядком. Стойку в наклонном положении вставляют в скобу и устанавливают вертикально, при этом нижний конец стойки заводят к увязочному устройству, расположенному на полу вагона, и крепят к увязочному устройству проволокой диаметром не менее 4 мм в две нити.

Крайние пары стоек со стороны открытых торцовых дверей полувагона устанавливают в промежуток между торцами створок открытых дверей и гранями угловых стоек кузова полувагона и увязывают в двух местах за петли дверных навесок.

Применение стоек из пиломатериалов при перевозке лесоматериалов не допускается.

В полувагонах стойки устанавливают такого сечения, чтобы на уровне верхнего обвязочного пояса полувагонов диаметр стоек был не менее 100 - 110 мм.

При загрузке в полувагоны лесоматериалов в пять и более штабелей стойки, установленные в стороне от лесных скоб, закрепляют на уровне верхних и нижних стоечных скоб при помощи двух досок толщиной 25 - 30 мм, привязанных к стоечным скобам проволокой толщиной 6 мм в две нити или прибитых гвоздями к соседним стойкам, вставленным в стоечные скобы (рис. 2.2). В полувагонах, оборудованных только верхними стоечными скобами, все стойки на высоте 300 - 400 мм от пола вагона должны быть сшиты досками толщиной 25 - 30 мм.

§ 9. Каждая пара противоположных боковых стоек должна иметь верхнее поперечное крепление, а при погрузке круглого или полукруглого леса и длинномерных пиломатериалов на платформы - дополнительно еще среднее крепление. Среднее крепление должно находиться при разделении штабеля на две пачки между пачками; три пачки - между средней и верхней пачками; четыре пачки - между средними пачками; пять пачек - между второй снизу и средней пачками.

Рис. 2.1

Рис. 2.2:

а - шесть штабелей; б - пять продольных и один поперечный штабель; в - пять штабелей; г - четыре штабеля; 1 - стойка; 2 - доска, скрепляющая стойки; 3 - проволочная увязка; 4 - стоечные скобы

Для верхнего и среднего креплений применяют четырехзвенные стяжки МПС. При этом большое ушко стяжки надевают на боковую стойку с одной стороны платформы или полувагона и укрепляют его гвоздями длиной 70 - 80 мм, а малое ушко прикрепляют к противоположной боковой стойке проволокой диаметром не менее 5 мм в четыре нити. Концы проволоки, пропущенные в малое ушко, скручивают с основными прядями проволоки, после чего всю увязку скручивают ломиком до натяжения стяжки.

Допускается вместо четырехзвенных стяжек для верхнего и среднего креплений противоположных стоек применять проволоку диаметром 4 - 6 мм. Число нитей проволоки для увязки боковых стоек определяется по табл. 2.1.

Лесоматериалы, погруженные в пределах обычного габарита

Круглый лес

§ 10. Круглый лес и полукруглые пластины грузят вдоль вагона. Комли и вершины бревен в основном штабеле должны чередоваться поштучно или целыми пачками так, чтобы в штабеле половина комлей была в одну сторону, а половина - в другую. Комли и вершины бревен в «шапке» должны чередоваться поштучно. Крайние бревна в рядах, лежащих на прокладках, должны обязательно прилегать к стойкам. Прокладки должны плотно опираться на средние и крайние бревна, прилегающие к стойкам.

Таблица 2.1

Увязка

Число нитей в увязке при погрузке

на платформы

в полувагоны

Средняя

4/2

-/-

Верхняя

2/4

2/4

Примечания. 1. Данные приведены для проволоки диаметром 6 мм, для других диаметров - см. главу 1 ТУ.

2. Числитель - при погрузке без «шапки»; знаменатель - при погрузке с «шапкой».

§ 11. Каждый штабель лесоматериалов, погруженных россыпью, опирается на две поперечные прокладки, расположенные на расстоянии 0,3 - 0,8 м от торцов штабеля. Под наружные концы вторых по высоте пачек крайних штабелей укладывают прокладки толщиной 130 - 160 мм и шириной нижней опорной поверхности 200 - 250 мм. При погрузке в полувагоны круглого леса, не помещающегося по длине кузова, указанные утолщенные прокладки не применяют, при этом наружные концы штабелей укладывают на порожке полувагона.

§ 12. Каждый штабель круглого леса длиной 3,5 м и менее ограждают двумя парами стоек, до 5,5 м - тремя парами, 5,5 м и более - четырьмя парами стоек (рис. 2.3 и 2.4). При ограждении каждого штабеля тремя парами стоек две из них устанавливают по концам штабеля, а третью - в одной из средних скоб. При погрузке круглого леса длиной 4 м и более в три штабеля средний штабель укрепляют двумя парами боковых стоек (рис. 2.5).

Рис. 2.3:

1 - боковые стойки; 2 - верхние поперечные крепления; 3 - обвязка «шапки»; 4 - средние поперечные крепления; 5 - удлиненные прокладки; 6 - прокладки; 7 - утолщенные прокладки; 8 - подкладки

Рис. 2.4:

1 - боковые стойки; 2 - верхние поперечные крепления; 3 - удлиненные прокладки; 4 - обвязки «шапки»; 5 - проволочные закрепления крайних стоек

§ 13. После погрузки и закрепления лесоматериалов, погруженных россыпью в пределах прямоугольной части габарита погрузки (до высоты 2,4 - 2,5 м от пола вагона), осуществляют укладку и крепление круглого леса в пределах верхней суженной части габарита погрузки («шапка»).

На расстоянии 0,5 - 0,8 м от концов «шапки» укладывают по две удлиненные прокладки так, чтобы концы их выступали с обеих сторон на 75 - 100 мм. По концам удлиненных прокладок на расстоянии не менее 50 мм от их торцов делают зарубки глубиной 10 - 15 мм для большого ушка шестизвенных стяжек.

Между удлиненными прокладками в средней части каждого штабеля укладывают две нити проволоки диаметром 6 мм. Нити проволоки должны выступать на одинаковом расстоянии с обеих боковых сторон штабеля. При погрузке леса бревна в первом ряду «шапки» укладывают на удлиненные прокладки вплотную друг к другу (рис. 2.6). Крайние бревна первого ряда укладывают вплотную к боковым стойкам, возвышение этих бревен над стойками допускается не более 1/4 их диаметра. В седловине между смежными бревнами первого ряда плотно укладывают последующие по высоте погрузки бревна. В боковой части «шапки» располагают бревна, подсортированные по двум - трем смежным градациям по толщине, так, чтобы угол откоса, образованного боковыми бревнами, не был круче 50° как в среднем по всей высоте «шапки», так и между двумя соседними бревнами.

Рис. 2.5:

1 - боковые стойки; 2 - верхние поперечные крепления; 3 - обвязки «шапки»; 4 - удлиненные прокладки; 5 - утолщенные прокладки; 6 - прокладки; 7 - средние поперечные крепления; 8 - подкладки

§ 14. Для увязки круглого леса, уложенного в «шапке», применяют шестизвенные стяжки. Большое ушко стяжки надевают на один конец удлиненной прокладки, а малое ушко прикрепляют к другому концу прокладки проволокой диаметром 6 мм в две нити, при том необходимо сделать один оборот проволоки вокруг прокладок. Большое ушко стяжки должно быть прибито к удлиненной прокладке гвоздями длиной 70 - 80 мм или закреплено проволокой диаметром не менее 5 мм. «Шапку» каждого штабеля дополнительно закрепляют поперечной обвязкой из проволоки, предварительно уложенной под «шапку». Для этого концы проволоки, выступающие с обеих сторон штабеля, соединяют между собой и туго скручивают.

Допускается «шапку» закреплять вместо стяжек тремя поперечными обвязками из проволоки диаметром 6 мм в две нити, охватывающими поверху бревна. Две обвязки закрепляют за выступающие концы удлиненных прокладок, при этом проволоку обматывают в один оборот вокруг прокладок по зарубкам в ней, а третью обвязку, уложенную посередине штабеля, туго скручивают вокруг «шапки».

Рис. 2.6

§ 15. Круглый лес можно грузить в полувагоны без применения прокладок (рис. 2.7) в адреса получателей, которые официально уведомили отправителя о согласии на такую отгрузку при следовании груза на подъездные пути получателя. Об указанном согласии отправитель должен сделать отметку в накладной (графа «Особые заявления и отметки отправителя»).

Запрещается отгрузка круглого леса без удлиненных прокладок под «шапкой» назначением на станции, имеющие механизмы (перечень станций, имеющих механизмы, опубликован в правилах перевозок грузов), в пункты примыкания широкой колеи к узкой, станции перегрузки при следовании лесоматериалов на экспорт, а также получателям, которые не дали согласия на погрузку без удлиненных прокладок.

Рис. 2.7:

1 - боковые стойки; 2 - верхние поперечные крепления; 3 - обвязки «шапки»

Рис. 2.8:

1 - растяжка; 2 - поперечная жердь; 3 - боковые стойки; 4 - средняя стойка щита; 5 - доски щита; 6 - торцовые стойки; 7 - распорные бруски

Рис. 2.9:

1 - растяжки; 2 - поперечная жердь; 3 - доски щита; 4 - распорные бруски; 5 - торцовые стойки; 6 - стойки щита

Рис. 2.10:

1 - скрепляющие доски; 2 - подкосы; 3 - поперечная жердь; 4 - доски щита; 5 - растяжки; 6 - стойки щита; 7 - распорные бруски

Рис. 2.11:

1 - распорные бруски; 2 - скрепляющие доски; 3 - подкосы; 4 - стойки щита; 5 - поперечная жердь; 6 - доски щита; 7 - скрепляющие планки; 8 - верхние поперечные крепления

После выравнивания бревен верхнего ряда прямоугольной части габарита погрузки и установки верхнего крепления противоположных боковых стоек на расстоянии 0,5 - 0,8 м от концов и в средней части каждого штабеля для последующей обвязки «шапок» укладывают по две нити проволоки диаметром 6 мм. Нити проволоки должны быть скручены между собой, а их концы выступать на одинаковом расстоянии с обеих боковых сторон штабеля.

«Шапку» каждого штабеля закрепляют тремя поперечными обвязками из проволоки, уложенной на штабелях. Для этого концы проволоки, выступающие с обеих сторон штабеля, соединяют между собой поверх бревен и туго скручивают.

Верхнее крепление боковых противоположных стоек при данной погрузке должно производиться только проволокой; применение четырех- и шестизвенных стяжек МПС запрещается.

§ 16. Для ограждения свежеокоренных лесоматериалов, а также пропитанных или покрытых долго не высыхающими веществами, при погрузке на платформы устанавливают торцовые щиты по всей высоте прямоугольной части габарита погрузки и выше бортов - при погрузке в полувагоны.

Щиты выше бортов устанавливают также при погрузке в полувагоны короткомерных круглых и пиленых лесоматериалов длиной до 3 м.

Щиты (рис. 2.8 - 2.12) собирают из досок толщиной 40 - 50 мм, шириной 150 - 200 мм или горбылей толщиной 50 - 70 мм и длиной, равной ширине вагона между бортами. Каждую доску или горбыль прибивают к стойкам со стороны груза гвоздями длиной 120 - 150 мм. Для изготовления щитов взамен досок допускается применение жердей диаметром 60 - 80 мм, затесанных в местах соприкосновения со стойками.

Каждый щит укрепляют вверху поперечной жердью диаметром не менее 100 мм, длиной, равной ширине вагона между бортами. Жердь прикрепляют к каждой из двух крайних стоек щита двумя гвоздями длиной 150 - 200 мм и проволокой диаметром не менее 5 мм в две нити. Жердь и крайние стойки в местах взаимного соприкосновения должны быть затесаны и плотно прилегать друг к другу. На расстоянии 80 - 100 мм от концов жерди делаются зарубки для закрепления растяжек. Расстояние между щитом и грузом не должно быть более 50 мм.

§ 17. На платформах щиты устанавливают на ближайших к торцам штабеля (боковых, торцовых или специально установленных на полу) стойках.

При сборке на боковых стойках (см. рис. 2.8) щит усиливают посередине дополнительной третьей стойкой, закрепляемой на полу платформы двумя гвоздями длиной не менее 100 мм и упорным бруском сечением 50×150 мм, который прибивают к полу платформы четырьмя гвоздями длиной не менее 100 мм. Торцовые борта укрепляют в этом случае короткими стойками. Сборка щитов на трех стойках показана на рис. 2.9.

Щиты укрепляют двумя растяжками из проволоки диаметром 6 мм в четыре нити, закрепляемые на зарубках жерди и за боковые стоечные скобы. Растяжки располагают под углом не более 45° к полу платформы.

§ 18. Щиты в полувагонах (см. рис. 2.10) собирают на двух стойках, устанавливаемых на полу на расстоянии 0,85 м от продольной оси полувагона. Каждую стойку закрепляют в нижней части распоркой круглого сечения диаметром не менее 65 мм с обтесанной на плоскость нижней поверхностью или прямоугольного сечения не менее 40×100 мм. Распорка с одной стороны плотно упирается в порожек двери полувагона, а с другой - в стойку щита, к которой прибивается гвоздями длиной 90 - 100 мм.

Обе распорки закрепляют к двери полувагона доской (или горбылем) сечением не менее 16×75 мм, которая прибивается к каждой распорке гвоздями длиной 60 - 70 мм. Длина доски равна ширине полувагона между боковыми стенами. Распорки закрепляют подкосом (из такого же материала), прибиваемым на каждом конце двумя гвоздями длиной 60 - 70 мм с одной стороны к распорке, а с другой - к стойке.

Рис. 2.12:

1 - доски щита; 2 - стойки щита; 3 - скрепляющая поперечная жердь; 4 - доска 25 - 30 мм

Собранный щит закрепляют двумя растяжками из проволоки диаметром 6 мм в две нити за концы жерди и за вторые от щита увязочные косынки или стоечные скобы полувагона с обеих его сторон.

Щиты в полувагонах могут быть собраны также на трех стойках с установкой на полу двух стоек у боковых стенок полувагона и третьей посередине между ними (см. рис. 2.11). Каждая крайняя стойка щита скрепляется двумя планками с ближайшими боковыми стойками, ограждающими груз, причем эти планки должны быть расположены ниже поперечного крепления боковых стоек. Нижние концы стоек закрепляют распорками так же, как и при сборке щита на двух стойках.

При погрузке в полувагоны короткомерных круглых и пиленых лесоматериалов каждый щит собирают на четырех стойках, которые устанавливают вертикально на полу вагона комлем вверх на расстоянии соответственно 0,55 и 1,35 м от продольной оси полувагона (см. рис. 2.12).

На уровне верхнего обвязочного пояса полувагона диаметр стоек должен быть не менее 100 - 110 мм. Нижние концы стоек на высоте 0,3 - 0,4 м от пола вагона сшивают между собой доской толщиной 25 - 30 мм.

Щиты собирают и закрепляют порядком, предусмотренным § 16 настоящей главы.

Каждый щит на уровне высоты бортов крепят поперечной жердью диаметром не менее 100 мм, которую прибивают к крайним стойкам щита двумя гвоздями диаметром 6 мм длиной 175 - 200 мм.

Если общая длина погруженных лесоматериалов не кратна длине вагона, то образующийся зазор между штабелями и торцовой дверью полувагона закладывают узкими пакетами или несвязанными лесоматериалами до уровня бортов полувагона (рис. 2.13). В этом случае торцовый щит устанавливают вплотную к торцам штабеля и закрепляют на полу полувагона распорными брусками и подкосами порядком, приведенным выше.

При перевозке короткомерных пиленых лесоматериалов (доски, брусья, шпальный горбыль, шпальная вырезка, обапол) каждый щит дополнительно закрепляют двумя растяжками из проволоки диаметром 6 мм в две нити за средние стойки щита и поперечные бруски, уложенные на пиломатериалы верхней суженной части штабеля над удлиненными прокладками (рис. 2.14).

§ 19. Погрузка неровных кряжей длиной не менее 3 м на платформы допускается при условии укладки их вдоль платформы встык друг к другу без прокладок. Кроме верхнего крепления стоек, необходима поперечная увязка стоек проволокой через каждые два ряда кряжей по высоте. Эту промежуточную увязку делают таким же способом, как и среднее проволочное крепление.

Штабеля кряжей на платформах ограждают торцовыми щитами, собранными из досок или горбылей толщиной не менее 65 мм (порядок постановки щитов указан в § 16 и 17). Кряжи грузят в полувагоны с закрытыми дверями и с установкой торцовых щитов из досок или горбылей толщиной не менее 65 мм (устройство торцовых щитов, см. § 16 и 18). Каждый штабель кряжей ограждают не менее чем двумя парами стоек с верхней увязкой.

Рис. 2.13:

1 - прокладка сечением 135×135 мм; 2 - боковые стойки; 3 - стяжка из проволоки диаметром 6 мм в четыре нити; 4 - верхние поперечные крепления; 5 - прокладки под «шапку»; 6 - торцовые щиты; 7 - лесоматериал, уложенный поперек вагона

Рис. 2.14:

1 - растяжки; 2 - стойки щита; 3 - поперечная жердь; 4 - доски щита; 5 - доска, скрепляющая стойки

Рис. 2.15:

1 - брус сечением 150×150 мм; 2 - штабеля лесоматериалов длиной 3 м и более; 3 - короткие стойки; 4 - увязка стоек; 5 - стяжки «шапки»; 6 - штабеля лесоматериалов длиной менее 3 м; 7 - торцовая дверь; 8 - удлиненная прокладка

§ 20. При совместной погрузке в одном вагоне штабелей из лесоматериалов различной длины штабеля длиной 3 м и более размещают по концам вагона, меньшей длины - в пространстве между ними (рис. 2.15).

Под крайние штабеля вплотную к порожку торцовых дверей должна быть уложена утолщенная подкладка. Выход этих штабелей за пределы лобового бруса вагона не должен превышать 200 мм. Наружные концы штабелей должны быть выровнены.

После укладки штабелей до высоты бортов полувагон в пределах прямоугольной части габарита погрузки догружают пакетами из лесоматериалов длиной не менее 3 м. Уложенные пакеты должны перекрывать стыки штабелей нижнего яруса. Штабеля «шапки» формируют из лесоматериалов длиной не менее 3 м и закрепляют в соответствии с требованиями данной главы.

Указанные лесоматериалы можно грузить в полувагоны с одной открытой дверью, при этом закрытая дверь у вагонов с деревянной обшивкой должна быть ограждена щитом из досок толщиной 30 - 40 мм. Высота щита должна быть в пределах высоты кузова полувагона. Утолщенную подкладку укладывают вплотную к стойкам щита.

Пиломатериалы

§ 21. Пиломатериалы грузят так, чтобы отдельные единицы пиломатериалов плотно прилегали друг к другу и ограждающим стойкам. Если доски при погрузке не занимают всей полезной ширины и остается промежуток менее ширины доски, то этот промежуток заполняют досками, поставленными на ребро.

Толщина досок или брусьев в каждом ряду штабеля должна быть одинаковой (допускается разница, предусмотренная соответствующими ГОСТами).

§ 22. Каждый штабель пиломатериалов длиной 2,7 - 5 м ограждается с боков двумя парами стоек, от 5 до 8 м - тремя парами и от 8 до 12 м - четырьмя парами стоек (рис. 2.16 и 2.17).

§ 23. При погрузке пиломатериалов разной длины в одном штабеле допускается стыковка досок по длине штабеля. Стыковка должна быть плотной, а торцы штабелей выровнены. Каждый такой штабель досок, уложенных в стык, ограждается не менее чем двумя парами боковых стоек. Концы штабеля должны выходить за стойки не менее чем на 0,5 м.

Допускается стыковая укладка досок разной длины по всей высоте основных штабелей. В этом случае в двух рядах над средними прокладками и под ними, а также в двух рядах верхней части штабеля стыковка досок не допускается.

При формировании штабелей из состыкованных досок осуществляют боковое обрешечивание груза от борта полувагона и выше в пределах прямоугольной части габарита погрузки.

Рис. 2.16:

1 - боковая стойка; 2 - прокладки; 3 - верхние поперечные крепления; 4 - промежуточные прокладки; 5 - удлиненные прокладки; 6 - верхние поперечные бруски; 7 - проволочные увязки «шапки»; 8 - утолщенные прокладки; 9 - подкладки

Рис. 2.17:

1 - подкладки; 2 - проволочные закрепления крайних стоек; 3 - верхние поперечные крепления; 4 - боковые стойки; 5 - проволочные увязки «шапки»; 6 - удлиненные прокладки; 7 - верхние поперечные бруски; 8 - промежуточные прокладки

Для обрешечивания используют доски длиной не менее 3 м и толщиной не менее 25 мм или горбыль такой же длины и толщиной не менее 30 мм. Доски (горбыль) прибивают гвоздями длиной не менее 70 мм с внутренней стороны стоек.

§ 24. После погрузки и закрепления пиломатериалов в прямоугольной части очертания погрузки (до высоты 2,5 - 2,6 м от пола вагона) пиломатериалы укладывают выше боковых стоек в пределах верхней суженной части габарита погрузки («шапка»).

На верхние доски каждого штабеля над крайними подкладками и между ними в средней части штабеля укладывают три удлиненные прокладки так, чтобы концы их выступали с обеих сторон на 75 - 100 мм. По концам удлиненных прокладок на расстоянии не менее 50 мм от их торцов делают зарубку глубиной 10 - 15 мм для закрепления проволочных обвязок. Затем пиломатериалы грузят выше боковых стоек в пределах суженной части габарита погрузки, укладывают все доски плашмя вплотную друг к другу. При этом последующую по высоте крайнюю доску смещают на 20 - 50 мм от наружной кромки доски, расположенной ниже (рис. 2.18). Для большей устойчивости этот штабель разделяют посередине высоты на две части с помощью трех прокладок сечением 25×100 мм, причем концы прокладок должны выступать за прилегающие к прокладкам нижние крайние доски на 75 - 100 мм. На концах прокладок делают аналогичные зарубки для проволочных увязок. На доски верхней суженной части штабеля над удлиненными прокладками размещают поперечные бруски сечением 50×150 мм. Концы поперечных брусков, как и удлиненных прокладок, должны выступать с обеих боковых сторон на 75 - 100 мм и иметь зарубки. Каждый верхний поперечный брусок прибивают по концам двумя гвоздями длиной не менее 125 мм к верхним доскам штабеля. Пиломатериалы закрепляют с каждой стороны тремя увязками из проволоки диаметром 6 мм в две нити, закрепляемыми за удлиненную промежуточную прокладку и верхний поперечный брусок. Нити увязки помещают в зарубки каждой удлиненной прокладки и туго скручивают между смежными по высоте прокладками.

Рис. 2.18:

1 - верхние поперечные бруски; 2 - верхние поперечные крепления; 3 - удлиненные прокладки; 4 - боковые стойки; 5 - промежуточные прокладки; 6 - проволочные увязки «шапки»

Допускается формирование штабелей «шапки» из досок различной длины, при этом короткие доски укладывают в стык в середине штабеля и обкладывают со всех сторон досками длиной 2,7 - 3,5 м. В нижнем основании каждого штабеля «шапки», а также в двух рядах над средними прокладками и под ними должно быть уложено не менее двух горизонтальных рядов досок длиной не менее 2,7 м.

§ 25. Грузоотправитель может устанавливать над штабелем, с боков или торцов средства предохранения пиломатериалов от атмосферных влияний и загрязнений в пути следования. Грузоотправитель обязан рассчитать прочность этого укрытия и крепления его к подвижному составу и предоставить расчеты прочности крепления для утверждения установленным порядком.

Пакеты пиломатериалов могут иметь упаковку, за которую несет ответственность грузоотправитель, при этом она выполняется из материала негорючего или трудногорючего и с коэффициентом трения по дереву не менее 0,6.

Короткомерные лесоматериалы

§ 26. Непропитанные шпалы укладывают вдоль четырехосной платформы в четыре штабеля. Каждые два крайних штабеля размещают вплотную друг к другу (встык), а в средней части платформ шпалы укладывают поперек по всей высоте погрузки (рис. 2.19). Под каждый штабель должны быть уложены две подкладки на расстоянии 0,2 - 0,25 м от концов штабеля.

Под крайние штабеля на расстоянии 0,3 - 0,5 м от их наружных концов укладывают утолщенные поперечные подкладки. В качестве утолщенных подкладок допускается укладка шпал. Погруженные поперек платформы шпалы ограждают с обеих сторон досками (горбылями) толщиной не менее 35 мм. Ограждающие доски (горбыли), начиная от боковых бортов, прибивают вплотную друг к другу по всей высоте штабеля с внутренней стороны платформы к каждой стойке одним гвоздем длиной не менее 70 мм. Концы досок должны выступать за боковые стойки не менее чем на 250 мм в стороны торцовых бортов платформы. Каждый штабель шпал ограждают двумя парами стоек, которые должны иметь верхнее и среднее поперечное крепления.

Рис. 2.19:

1 - обвязки «шапки»; 2 - удлиненные прокладки; 3 - доски ограждения штабелей «шапки»; 4 - поперечные крепления; 5 - прокладки; 6 - утолщенные подкладки; 7 - боковые стойки; 8 - подкладки; 9 - доски бокового ограждения шпал; 10 - продольные подкладки

Загрузив шпалы до высоты 2,5 - 2,6 м от пола платформы, грузят шпалы выше боковых стоек в пределах верхней суженной части габарита погрузки вдоль платформы в четыре штабеля («шапки»), которые укладывают вплотную друг к другу. Стык второй и третьей «шапок» должен совпадать с поперечной осью платформы.

В каждой «шапке» шпалы грузят по высоте в семь рядов. Первый ряд шпал укладывают на две удлиненные прокладки, располагаемые на расстоянии 0,5 м от концов шпал. По концам удлиненных прокладок на расстоянии не менее 50 мм от их торцов делают зарубки глубиной 10 - 15 мм для закрепления шестизвенных стяжек и проволочных увязок.

На удлиненные прокладки вплотную к боковым стойкам с обеих сторон платформы устанавливают на ребро по две доски сечением (25 ÷ 30) × 250 мм, длиной 6 м. Вплотную к доскам укладывают на ребро по одной шпале, а между ними размещают плашмя вплотную друг к другу остальные шпалы первого ряда. Вплотную к поставленным на ребро крайним шпалам первого ряда устанавливают также на ребро по одной шпале, а между ними укладывают плашмя остальные шпалы второго ряда. Аналогично размещают шпалы в последующих по высоте рядах.

В седьмом ряду шпалы укладывают плашмя между выступами крайних шпал шестого яруса. Имеющиеся пустоты между шпалами в каждом ярусе расклинивают деревянными распорками по всей длине каждого штабеля «шапки».

Шпалы, уложенные в «шапке», закрепляют двумя поперечными обвязками из шестизвенных стяжек, большое ушко которых надевают на один конец удлиненной прокладки, а малое прикрепляют проволокой диаметром 6 мм в две нити к другому концу прокладки. При этом большое ушко стяжки и проволочную увязку помещают в зарубки удлиненных прокладок. Большое ушко стяжки прибивают к прокладке одним гвоздем длиной не менее 70 мм.

Другую пилопродукцию (деловой горбыль, шпальную вырезку, обапол) размещают и закрепляют таким же порядком (рис. 2.20), при этом при формировании штабелей «шапки» вместо шпал, установленных на ребро, применяют сами сортименты, которые устанавливают по 3 шт. на ребро.

В каждом ряду «шапки» пилопродукцию укладывают плашмя до середины высоты вертикально установленных делового горбыля, шпальной вырезки или обапола.

Каждый штабель пилопродукции, кроме шпал, закрепляют дополнительно третьей обвязкой из проволоки диаметром 6 мм в четыре нити, которую укладывают и закрепляют на штабеле порядком, предусмотренным § 13 и 14 настоящей главы. При этом вместо шестизвенных стяжек можно применять увязки из проволоки диаметром 6 мм в четыре нити, которые закрепляют на удлиненных прокладках порядком, предусмотренным § 14 этой главы.

§ 27. Порядок укладки и крепления непропитанных шпал в полувагонах с использованием верхней суженной части габарита погрузки показан на рис. 2.21. С обеих сторон полувагона закрытые торцовые двери ограждают шпалами, которые укладывают постелями к полу горизонтально поперек вагона. Около стоечных скоб устанавливают вертикально и укрепляют проволокой по одной шпале постелью к борту полувагона. После этого загружают шпалы на высоту до 1 м так, чтобы между шпалами, уложенными поперек вагона у торцовых дверей, и крайними штабелями оставалось свободное пространство для вертикально устанавливаемых шпал оторцовки или шпальной вырезки толщиной 40 мм и более.

Между шпалами, укрепленными к стоечным скобам, устанавливают вертикально остальные шпалы, тем самым образуя боковую оторцовку. Затем укладывают шпалы в основные штабеля на 120 - 150 мм ниже верхнего уровня вертикально установленных шпал.

Рис. 2.20:

1 - утолщенные подкладки; 2 - подкладки; 3 - прокладки; 4 - удлиненные прокладки; 5 - доски бокового ограждения; 6 - средние поперечные крепления; 7 - верхние поперечные крепления; 8 - обвязка «шапки»; 9 - боковые стойки; 10 - доски ограждения штабелей уровня вертикально установленных шпал.

Для обеспечения механизированной выгрузки каждый штабель укладывают на две подкладки и разделяют по высоте на две-три пачки прокладками толщиной не менее 35 мм. В зазоры между этими прокладками в один из крайних штабелей пропускают проволоку диаметром не менее 5 мм, концы которой выводят выше бортов и закрепляют вокруг шпал, расположенных вертикально. Проволока предназначена для протягивания троса при застропке шпал в начале выгрузки.

Рис. 2.21:

1 - обвязка «шапки»; 2 - удлиненная прокладка; 3 - вертикальная оторцовка; 4 - поперечная оторцовка; 5 - прокладка; 6 - подкладка

«Шапки» шпал размещают на удлиненных прокладках, укладываемых на расстоянии 0,5 м от концов верхних шпал каждого основного штабеля. В местах размещения удлиненных прокладок шпалы вертикальной боковой оторцовки не устанавливают.

Шпалы первого ряда «шапки» укладывают на две удлиненные прокладки, при этом крайние шпалы устанавливают на ребро постелью вплотную к шпалам боковой оторцовки. Между ними шпалы укладывают плашмя постелью вниз. Вплотную к поставленным на ребро крайним шпалам первого ряда устанавливают также на ребро по одной шпале второго ряда, а в промежуток между ними укладывают плашмя остальные шпалы этого ряда. Аналогично размещают шпалы в трех последующих по высоте рядах. В шестом ряду «шапки» шпалы укладывают плашмя между выступами крайних шпал пятого ряда. Имеющиеся пустоты между шпалами в каждом ряду расклинивают деревянными распорками, длина которых равна длине шпал. Шпалы, уложенные в «шапках» на полувагонах, закрепляют так же, как и на платформах.

§ 28. Порядок укладки и крепления пропитанных шпал в полувагонах с использованием верхней суженной части габарита погрузки показан на рис. 2.22:

с обеих сторон полувагона закрытые торцовые двери ограждают шпалами, которые укладывают поперек вагона постелями к полу при погрузке шпал длиной 2,7 м или на ребро при погрузке шпал длиной 2,75 м;

около стоечных скоб устанавливают вертикально постелями к боковой стене полувагона и укрепляют проволокой по одной шпале;

в промежутках между этими шпалами устанавливают вертикально по одной шпале, которую закрепляют металлической упаковочной лентой или проволокой за верхнее увязочное устройство полувагона;

вплотную к шпалам, уложенным горизонтально у торцовых дверей на полу, устанавливают пирамиду высотой 0,8 м, изготовленную из брусков сечением 160×200 мм;

после установки пирамид загружают штабеля шпал на высоту не менее 1 м так, чтобы шпалы, укладываемые у торцовых дверей поперек вагона, можно было доложить до уровня боковых стен, а на пирамиду установить вертикально по три шпалы с каждого конца пирамиды.

Рис. 2.22:

1 - обвязка «шапки»; 2 - вертикальная оторцовка; 3 - удлиненная прокладка; 4 - поперечная оторцовка; 5 - подкладка; 6 - прокладка; 7 - планка скрепления вертикальной оторцовки; 8 - пирамида

Вертикально устанавливают шпалы в средней части пирамиды после загрузки основных штабелей шпал до уровня боковых стен. Шпалы, установленные вертикально на пирамидах у торцовых дверей вагона, скрепляют двумя планками толщиной 30 - 40 мм и длиной 2,4 м. Каждую пару планок крепят по концам к шпалам с внутренней и наружной сторон гвоздями и связывают в трех местах проволокой, пропускаемой между шпалами. Увязку производят с внутренней стороны вагона. Высота планок с внутренней стороны вагона не должна превышать толщины удлиненных прокладок. Для горизонтального ограждения и вертикальной установки шпал у торцовых дверей применяют шпалы только I и II типов.

Шпалы, установленные вертикально у боковых стен полувагона, должны быть одного типа.

Дальнейшее размещение и крепление четырех основных штабелей и «шапок» аналогично непропитанным шпалам.

§ 29. При погрузке круглого леса длиной 1,8 - 2,5 м два крайних штабеля «шапки» с каждой стороны вагона стягивают между собой за удлиненные прокладки увязкой из проволоки диаметром 6 мм в четыре нити (см. рис. 2.13).

Крайние штабеля «шапки» устанавливают так, чтобы удлиненные прокладки находились за боковыми стойками в сторону середины вагона.

Лесоматериалы длиной 2,6 - 3 м можно грузить без удлиненных прокладок под «шапку». При этом должны быть соблюдены требования § 15 настоящей главы.

§ 30. При погрузке балансов, дров, а также других грузов длиной до 2,8 м с вертикальной оторцовкой грузом боковых стен полувагона по всей их длине у обеих боковых стен полувагона лесоматериалы устанавливают вертикально в один ряд (рис. 2.23). При ограждении стен сечение пиленых лесоматериалов должно быть не менее 50×150 мм. Лесоматериалы, установленные у стоечных скоб, привязывают к ним проволокой диаметром 6 мм в две нити.

В местах предполагаемого размещения удлиненных прокладок, предназначенных для укладки на них штабелей («шапок»), боковая оторцовка стен полувагона не производится. Лесоматериалы грузят до высоты на 0,25 - 0,3 м ниже верхнего уровня оторцовки. Порядок укладки и закрепления лесоматериалов приведен в настоящей главе. При этом каждый штабель укладывают на две подкладки сечением 50×150 мм и разделяют по высоте на две-три пачки прокладками толщиной не менее 35 мм.

Рис. 2.23:

1 - боковая оторцовка; 2 - прокладки; 3 - удлиненная прокладка; 4 - верхние поперечные крепления; 5 - промежуточные прокладки; 6 - утолщенные прокладки сечением 135×135 мм; 7 - торцовый щит; 8 - скрепляющая жердь; 9 - лесоматериал, уложенный поперек вагона

Рис. 2.24:

1 - оторцовка; 2 - доски, скрепляющие оторцовку

Балансы, длинномерные дрова и другие грузы длиной до 1,6 м грузят вдоль полувагона с вертикальной сплошной оторцовкой грузом торцовых дверей и боковых стен полувагона по всей их длине (рис. 2.24). При условии соблюдения габарита погрузки выход балансов оторцовки над уровнем боковых стен полувагона не должен превышать 0,4 полной длины баланса.

Балансы оторцовки дверей скрепляют друг с другом доской (горбылем) толщиной не менее 30 мм и длиной 2,9 - 3 м, уложенной с внутренней стороны оторцовки с опорой на боковые стены полувагона. Доска должна быть прибита к двум крайним и средним балансам оторцовки гвоздями длиной не менее 70 мм. Груз укладывают горизонтально ниже верхнего уровня оторцовки на 50 мм.

После погрузки однометровых сортиментов до высоты на 0,6 м ниже уровня боковых стен полувагона (рис. 2.25) вдоль боковых стен и торцовых дверей полувагона устанавливают вертикально один сплошной ряд из поленьев одинаковой толщины так, чтобы концы их возвышались над бортами полувагона не более чем на 0,4 м.

Горизонтально сортименты укладывают вплотную к вертикальному ряду на 0,4 м высоты этого ряда, после чего вплотную к первому ряду устанавливают второй сплошной вертикальный ряд ограждения, который должен возвышаться над первым не более чем на 0,4 м. Высота горизонтальной укладки сортиментов в штабеля должна быть на 50 мм ниже верхнего уровня второго вертикального ряда оторцовки.

Сортименты, установленные вертикально, должны быть скреплены между собой доской (горбылем) порядком, указанным выше, плотно прижаты к боковым стенам и дверям полувагона горизонтально уложенными сортиментами. При других длинах выход торцов сортиментов над уровнем боковых стен в первой оторцовке не должен быть свыше 0,4 м полной длины сортимента, а во второй оторцовке - на 0,4 м полной длины сортимента от верхнего уровня первой оторцовки.

Рис. 2.25:

1 - доски, скрепляющие оторцовку; 2 - второй ряд оторцовки; 3 - первый ряд оторцовки

§ 31. Лесоматериалы длиной до 1,6 м грузят в полувагоны с применением обрешечивания из досок (горбылей), при этом груз ограждают восемью парами боковых стоек и шестью торцовыми стойками (рис. 2.26). Доски или горбыли обрешечивания толщиной не менее 30 мм прибивают гвоздями длиной не менее 70 мм с внутренней стороны стоек. Длина досок, прибиваемых к торцовым стойкам, должна быть не менее ширины полувагона. Крайние торцовые и боковые стойки связывают между собой проволокой диаметром 6 мм в две нити.

Вместо обрешечивания из досок разрешается применять ограждение, выполненное из щитов, собранных из длинномерного круглого леса диаметром 10 - 14 см, связанного проволокой диаметром 6 мм в одну нить, как показано на рис. 2.27. Круглый лес торцового щита скрепляют дополнительно (прибивают две планки по ширине щита). Для бокового ограждения используют два щита длиной 6 и 5,6 м или три щита длиной каждого 4 м, для торцового ограждения - щит длиной 3 м. При установке боковые щиты упираются в торцовые щиты.

Рис. 2.26:

1 - боковые стойки; 2 - доски обрешетки; 3 - проволочные увязки боковых и торцовых стоек

Рис. 2.27:

1 - торцовые стойки; 2 - крепление щита к стойкам; 3 - торцовые щиты; 4 - прикрепление щита к боковым стойкам; 5 - увязка щита; 6 - боковые стойки; 7 - боковые щиты; 8 - верхнее поперечное крепление стоек

Каждый щит прикрепляют в четырех местах к стойкам с внутренней стороны проволокой диаметром 6 мм в один оборот. В местах верхнего крепления щита к стойке на последней делают зарубку для размещения в ней проволоки. При обрешечивании круглым лесом каждая пара противоположных боковых стоек должна иметь верхнее поперечное крепление (четырехзвенными стяжками или проволокой).

Горизонтально лесоматериалы в штабеле укладывают ниже верхнего уровня обрешечивания на 50 мм.

Грузить лесоматериалы способом, указанным в § 30 и 31, можно только с согласия грузополучателя, а в случае выгрузки средствами железной дороги - с согласия станции. О наличии согласия грузоотправитель делает отметку порядком, указанным в § 15.

Рис. 2.28:

1 - поперечные крепления; 2 - доски бокового ограждения; 3 - прокладки; 4 - утолщенные подкладки; 5 - подкладки; 6 - боковые стойки

§ 32. Грузят пиломатериалы (доски, горбыли, шпальные вырезки и др.) длиной 2 - 2,6 м штабелями вдоль платформы (рис. 2.28).

Под наружные концы крайних штабелей на расстоянии 0,5 м укладывают утолщенные поперечные подкладки сечением не менее 135×135 мм. Каждый штабель ограждают двумя парами стоек с верхним и средним поперечным креплениями. При наличии пространства между штабелями в него укладывают пиломатериалы поперек платформы до высоты основных штабелей и ограждают досками (горбылями) порядком, предусмотренным при погрузке шпал в § 26.

Лесоматериалы в пакетах

Многооборотные полужесткие стропы ПС

§ 33. Пиломатериалы (доски, брусья, шпалы, обапол и др.) и круглые лесоматериалы (пиловочник, балансы, пропсы, рудничная стойка, дрова и др.) длиной до 8 м перевозят в пакетах, увязанных многооборотными полужесткими стропами (табл. 2.2).

Пакеты формируют, как правило, перед погрузкой в вагоны. Лесоматериалы, сформированные в пакеты с применением многооборотных полужестких стропов, размещают в вагонах непосредственно на полу вагонов без подкладок и прокладок.

§ 34. Пакеты лесоматериалов длиной от 1,0 до 6,5 м включительно обвязываются двумя полужесткими стропами. Расстояние между стропами должно быть не менее половины длины пакета. Стропы размещают на равном удалении от центра, на расстоянии не менее 0,3 - 0,5 м от торцов пакета.

Пакет из круглых лесоматериалов длиной 7,6 и 8,0 м увязывают четырьмя стропами ПС-05. Стропы размещают попарно на расстоянии 3 - 3,5 м и равном удалении от торцов пакета. Расстояние между стропами в паре 250 - 300 мм (рис. 2.33).

§ 35. Замыкание стропа осуществляется пропуском свободного цепного конца в петлевой замок с последующей фиксацией конца цепи закруткой из проволоки диаметром 2 мм (рис. 2.34).

Таблица 2.2

Вид пакетируемой продукции

Длина, м

Тип стропов

Размер пакета, мм

Вес пакета не более, т

ширина

высота

Пиломатериалы (доски, брусья, шпалы и др.) (рис. 2.29)

1 - 6,5

ПС-01

1350

1300

6

Пиломатериалы в пакетах трапециевидной формы (рис. 2.30)

3 - 6,5

ПС-02

2700 понизу, 1250 поверху

1200

6

Короткомерная пилопродукция (обапол, тарная дощечка и др.) (рис. 2.31)

1 - 3

ПС-04*

2800

1600

6

Шпалы

2,6 - 2,8

ПС-04

2800

1350

6

Короткомерные круглые и колотые лесоматериалы (рудстойка, пропсы, балансы, дрова и др.) (рис. 2.32)

1 - 3

ПС-04

2800

1600

6

Круглые лесоматериалы (пиловочник и др.)

3 - 8

ПС-05

2500, 2800

1600

20**

* Допускается формирование пакетов короткомерных пиломатериалов сечением 1350×1300 мм с применением стропов ПС-01 вместо ПС-04, при этом каждая пара соседних пакетов в верхнем ярусе при отсутствии «шапки» после погрузки связывается между собой за проушины стропов проволокой диаметром не менее 4 мм в два оборота.

** Пакеты длиной свыше 6,5 м, весом более 15 т обвязывают четырьмя стропами ПС-05.

Рис. 2.29:

1 - цепь; 2 - проволочная закрутка; 3 - петлевой замок; 4 - поперечная прокладка; 5 - проушина для подъема

Рис. 2.30:

1 - поперечная прокладка; 2 - цепь; 3 - проволочная закрутка; 4 - петлевой замок; 5 - доска скрепления; 6 - проушина для подъема

Полужесткие стропы, изготовленные до 1980 г., замыкаются двойным оборотом конца цепи через кольцо верхней стяжки с наложением на цепь закрутки из проволоки диаметром 4 мм в две нити.

§ 36. Замыкание стропов всех типов осуществляется при затяжке пакета краном. Стропы на пакете должны быть плотно затянуты.

§ 37. Пакеты пиломатериалов разделяют по высоте двумя поперечными прокладками сечением не менее 25×100 мм (см. рис. 2.29). В ряду должно быть две - четыре прокладки в зависимости от длины пакета.

§ 38. При формировании из пиломатериалов пакета «шапки» трапециевидной формы (см. рис. 2.30) вниз укладывают два-четыре ряда досок общей толщиной около 100 мм и шириной 2,6 м, поверх них размещают две поперечные прокладки длиной 2,7 м, сечением 75×150 мм (или 100×100 мм), затем выкладывают весь пакет. Поперечные прокладки располагают рядом со стропами: верх «шапки» возле стропов скрепляют двумя досками длиной 1,2 - 1,25 м, прибиваемыми пятью гвоздями длиной не менее 100 мм.

§ 39. Пакеты из короткомерных лесоматериалов (обапол, тарная дощечка, дрова, балансы, пропсы, рудстойка) длиной менее 1 м необходимо формировать путем стыкования. Для этой цели по периметру укладывают более длинные сортименты, кратные коротким, укладываемым внутрь. Выход отдельных единиц лесоматериалов за торцы пакета не допускается. В пакетах тарной, паркетной дощечки и клепки доски бокового ограждения должны быть собраны в виде щита по всей высоте пакета.

Рис. 2.31:

1 - проушина для подъема; 2 - цепь; 3 - проволочная закрутка; 4 - петлевой замок

Рис. 2.32:

1 - проушина для подъема; 2 - цепь; 3 - проволочная закрутка; 4 - петлевой замок

Рис. 2.33

§ 40. Пакеты из круглых лесоматериалов, предназначенные для укладки во второй ярус вагона, должны иметь сверху закругленную форму с повышением к середине в пределах габарита погрузки (рис. 2.35).

Рис. 2.34:

1 - замок с переменным зевом; 2 - цепной замок; 3 - проволочная закрутка

Рис. 2.35

§ 41. Пакеты круглых лесоматериалов длиной до 3 м, обапола, шпал, тарной дощечки размещают в полувагонах в два яруса по высоте и в несколько штабелей по длине в зависимости от длины пакета (рис. 2.36 и 2.37). Пакеты должны плотно примыкать друг к другу. При наличии зазора между штабелем и торцовой дверью его закладывают узкими пакетами или несвязанными лесоматериалами до уровня бортов полувагонов. Под наружные концы крайних верхних пакетов из обапола и тарной дощечки длиной 1,5 м и более на расстоянии 400 - 500 мм от торцов вагона укладывают поперечные прокладки (см. рис. 2.37) длиной 1,5 м и толщиной 150 мм для создания уклона пакета внутрь вагона. Наружные концы крайних пакетов скрепляют поверху поперечными досками (горбылями) длиной 1,8 - 2,2 м, прибиваемыми шестью гвоздями длиной не менее 100 мм.

§ 42. Пакеты из круглых лесоматериалов длиной менее 3 м, пиломатериалов длиной до 1,5 м, а также окоренных или пропитанных лесоматериалов (кроме шпал) независимо от длины должны перевозиться в полувагонах с закрытыми торцовыми дверями и установкой торцовых щитов. Торцовые щиты устанавливаются в соответствии с указаниями § 16 и 18 настоящей главы (см. рис. 2.36 и 2.37).

Лесоматериалы, кроме окоренных, пропитанных, а также покрытых долго не высыхающими веществами, допускается перевозить в полувагонах с открытыми торцовыми дверями, при этом крайние пакеты должны иметь длину не менее 3 м при погрузке круглых лесоматериалов и 1,5 м при погрузке пиломатериалов.

Пакеты шпал перевозятся с закрытыми торцовыми дверями с установкой только торцового ограждения согласно § 28 настоящей главы.

Рис. 2.36:

1 - балансы, уложенные поперек вагона; 2 - торцовый щит

§ 43. Пакеты пиломатериалов размерами 1350×1300 мм и длиной свыше 1,5 м укладывают в полувагоны без стоек и прокладок в два ряда по ширине, в два яруса по высоте, в несколько штабелей по длине вагона в зависимости от длины пакета (рис. 2.38). Поверх второго яруса пакетов укладывают трапецеидальные пакеты «шапки», число и длина которых должны соответствовать пакетам второго яруса. Стропы «шапок» и пакетов верхнего яруса должны располагаться в одной вертикальной плоскости; в отдельных случаях допускается несовпадение стропов не более чем на 100 мм.

«Шапки» закрепляют за основные пакеты верхнего яруса с помощью концов цепей, имеющихся у стропов ПС-02. Цепи натягивают, продевая в два оборота через проушину стропов нижележащих пакетов и накладывают проволочную закрутку из проволоки диаметром 4 мм в две нити (см. рис. 2.38).

Пакеты пиломатериалов длиной 3 м и более грузят на четырехосные платформы без прокладок до высоты стоек и крепят порядком, предусмотренным для непакетированных пиломатериалов. Пакеты «шапок» укладывают и закрепляют тем же способом, как и в полувагонах (рис. 2.39).

Рис. 2.37:

1 - обапол, уложенный поперек вагона; 2 - поперечные прокладки; 3 - торцовый щит; 4 - поперечные доски

Рис. 2.38:

1 - проушина; 2 - цепь для закрепления; 3 - проволочная закрутка

Рис. 2.39

Рис. 2.40

Рис. 2.41

§ 44. Пакеты из круглых лесоматериалов длиной от 3,0 до 8 м на четырехосную платформу или в полувагон грузят в два яруса по высоте без подкладок и прокладок (рис. 2.40 и 2.41).

Каждый штабель круглых лесоматериалов, загружаемых на платформу, ограждают стойками порядком, указанным в § 11 настоящей главы.

После загрузки пакетов первого яруса на платформу каждую пару противоположных боковых стоек увязывают четырехзвенной инвентарной стандартной металлической стяжкой.

Пакеты круглых лесоматериалов длиной 7,6 и 8,0 м грузят в сочетании с пакетами длиной 3,8 и 4 м и на платформу укладывают с перекрытием нижних стыков пакетами верхнего яруса (см. рис. 2.41).

При формировании пакетов круглых лесоматериалов длиной 7,6 и 8,0 м на железнодорожном подвижном составе затяжку стропов на пакетах длиной 3,8 и 4 м осуществляют краном грузоподъемностью не менее 5 т, а длиной 7,6 и 8 м - краном грузоподъемностью не менее 10 т.

Рис. 2.42

Рис. 2.43

Замыкание стропов производят поочередно после поднятия каждого конца пакета за проушины грузовых тяг пары стропов (рис. 2.42) с использованием четырехкрюкового захвата типа «паук» (рис. 2.43) согласно § 35 настоящей главы.

Как исключение, допускается формирование пакетов непосредственно в полувагоне или на платформе. Для этого устанавливают восемь стоек в полувагоне и 16 шт. на платформе.

§ 45. Ответственность за последствия, вызванные применением неисправных стропов, несет грузоотправитель (см. Правила перевозок грузов, ч. 1, раздел 29, § 8).

Брусково-проволочная обвязка пиломатериалов

§ 46. Для формирования пакетов пиломатериалов длиной от 4 до 6,5 м может применяться брусково-проволочная обвязка. Пакеты скрепляют тремя обвязками. Две крайние обвязки устанавливают на расстоянии 0,8 - 1 м от концов пачки, а третью (среднюю - «хомут») - посередине пачки.

Обвязка состоит из двух деревянных брусков (верхнего и нижнего) сечением не менее 50×100 мм и двух увязок из проволоки диаметром 6 мм в две нити, скрепляющих эти бруски по концам (рис. 2.44). Бруски укладывают поперек пачки пиломатериалов таким образом, чтобы концы выступали на 50 мм за контур пачки. По концам брусков на расстоянии не менее 25 мм от торцов делают зарубки глубиной 10 - 12 мм для закрепления проволочных увязок.

Рис. 2.44

§ 47. В средней части пакетов допускается укладывать в стык пиломатериалы различной длины так, чтобы их общая длина не превышала длины пакетов. Причем длина стыкуемых досок не должна превышать 2 м. Укладка с наружных сторон пакетов, досок, составных по длине, не допускается. В тех случаях, когда ширина отдельных досок, укладываемых плашмя, не может в сумме составить установленную ширину пакета, часть досок внутри пакета укладывают на ребро (рис. 2.45).

§ 48. Объем пакетов должен быть кратным погрузочному объему платформы и полувагонов с учетом использования верхней суженной части габарита погрузки. Вес пакетов устанавливает грузоотправитель по согласованию с получателем. При выгрузке пакетов на местах общего пользования вес одного пакета не должен превышать грузоподъемность механизма, указанную в Сборнике правил перевозок и тарифов железнодорожного транспорта Союза ССР № 39.

§ 49. В зависимости от длины пакеты пиломатериалов грузят в два и более штабелей, укладываемых в стык вдоль платформы или полувагона (рис. 2.46).

Пакеты размещают плотными рядами по ширине и высоте. Пакеты крайних рядов штабеля должны плотно прилегать к ограждающим их боковым стойкам.

В каждом штабеле пакеты укладываются только одной длины и высоты в несколько ярусов по высоте со смещением в продольном направлении одного пакета относительно другого до 100 мм с тем, чтобы поперечные обвязочные бруски располагались вплотную друг к другу.

Рис. 2.45

Рис. 2.46:

1 - верхние поперечные крепления; 2 - боковые стойки; 3 - продольные доски; 4 - соединительные доски; 5 - упорные бруски

§ 50. Противоположные боковые стойки скрепляют четырехзвенными стяжками, устанавливаемыми в зазор между пакетами (см. рис. 2.46) на одинаковом расстоянии от верхних и нижележащих пакетов.

§ 51. На пакеты верхнего яруса каждого штабеля укладывают по три поперечные прокладки сечением 50×150 мм, длиной, равной ширине вагона. Одну из прокладок укладывают посередине штабеля, а две другие - на расстоянии 0,5 - 0,8 м от концов штабеля. На эти поперечные прокладки укладывают пакеты пиломатериалов выше боковых стоек в пределах верхней суженной части габарита погрузки. Вдоль платформы или полувагона с внутренней стороны у боковых стоек укладывают доски сечением 40×100 мм, которые прибивают гвоздями длиной не менее 100 мм к каждой поперечной прокладке и к каждому обвязочному бруску крайних пакетов верхнего яруса, расположенных в пределах высоты стоек. Каждая доска прибивается не менее чем к двум прокладкам.

Пакеты, расположенные в верхней суженной части габарита погрузки, закрепляют упорными брусками размерами не менее 50×150×300 мм, которые укладывают на прокладки вплотную к крайним пакетам с двух сторон и прибивают к прокладкам двумя гвоздями длиной не менее 100 мм.

Если в суженной части габарита по ширине вагона размещают два или более пакетов, то последние скрепляют между собой поверху досками (горбылями) толщиной не менее 25 мм, шириной 75 - 100 мм и длиной, равной ширине штабеля. Доски (горбыли) прибивают к брускам хомутов каждого пакета двумя гвоздями длиной не менее 70 мм (рис. 2.47).

Рис. 2.47:

1 - бруски обвязки; 2 - пакет пиломатериалов; 3 - скрепляющая доска

Пиломатериалы, обвязанные стальными лентами

§ 52. Обрезные пиломатериалы длиной 1 - 6,6 м могут перевозиться в полувагонах и на платформах пакетами, обвязанными стальной лентой (рис. 2.48). Пакеты должны иметь прямоугольное сечение с выровненными торцами и состоять из досок не более трех смежных размеров по длине при экспортной поставке и не более четырех для внутрисоюзного использования.

При формировании пакетов со стыковкой в рядах по длине допускается укладка пиломатериалов или заготовок разных длин. При этом в нижние и два верхних ряда пакетов должны быть уложены пиломатериалы или заготовки максимальной длины без стыковки. Среднюю часть крайних строп пакета допускается укладывать с одной стыковкой через ряд (рис. 2.48, б).

Для загрузки пиломатериалов в прямоугольной части габарита погрузки (до высоты 2,5 - 2,6 м от пола вагона) пакеты должны иметь следующие максимальные размеры в поперечном сечении (ширина × высота, мм):

Для полувагонов:

внутри кузова......................................... 1350×1150,

1350×575

в дверном проеме.................................. 1250×1150,

1250×575

Для платформы..................................... 1350×1200,

1350×600

§ 53. Пиломатериалы в пакетах укладываются рядами и стопами вплотную друг к другу. Пакет должен иметь достаточную жесткость. Для обеспечения жесткости внутри пакета укладывают связующие прокладки шириной не менее 40 мм, толщиной 16 - 25 мм и длиной, равной ширине пакета.

В пакетах высотой 900 мм и более укладывают две связующие прокладки, а пакеты высотой менее 900 мм разделяют одной прокладкой. При пакетировании пиломатериалов толщиной менее 32 мм число прокладок увеличивается на одну. Прокладки должны разделять пакет по высоте на одинаковые части.

В пакетах длиной до 3 м крайние прокладки размещают на расстоянии 0,3 м от торцов пакета, в пакетах длиной более 3 м - на расстоянии 0,5 м. Средние связывающие прокладки размещают на одинаковом расстоянии от крайних, равномерно по длине пакета. Число связывающих прокладок должно быть в пакетах длиной до 4 м две, в пакетах длиной от 4 до 5,5 м - три, в пакетах длиной 5,5 м и более - четыре.

§ 54. Пакеты обвязывают стальной лентой толщиной 0,7 мм и шириной 20 мм (в соответствии с ГОСТ 21100-81). Число обвязок должно быть равно количеству прокладок по длине, они располагаются в местах размещения прокладок.

Натяжение и соединение концов обвязок производятся согласно ГОСТ 21100-81 при помощи упаковочных машинок или приспособлений и с использованием стальной скрепы путем надрезания и изгибания кромок скрепы и ленты. Обвязки должны быть туго натянуты.

Рис. 2.48:

а - транспортный пакет из пиломатериалов одной длины; б - пакет из пиломатериалов двух - четырех смежных длин; 1 - ряд пакета; 2 - стопа пакета; 3 - прокладки; 4 - обвязка из стальной ленты; 5 - ярлык

Рис. 2.49:

1 - упор; 2 - утолщенная подкладка; 3 - средняя подкладка; 4 - межпакетная прокладка; 5, 6 - нижняя и средняя удлиненные прокладки; 7 - прижимной брусок; 8 - упорные доски; 9 - проволочная увязка «шапки»; 10 - стяжка стоек; 11 - распорная доска

§ 55. Для ограждения и крепления штабелей пакетов пиломатериалов в полувагонах и на платформах устанавливается до восьми пар деревянных боковых стоек (рис. 2.49 и 2.50) в соответствии с требованиями § 8 главы 1 и § 8 и 9 настоящей главы.

§ 56. На пол полувагона или платформы под каждый штабель укладывают по две подкладки, в том числе и при погрузке с открытыми торцовыми бортами платформ и дверями полувагонов. Крайние подкладки под наружными концами штабелей должны быть толщиной не менее 130 мм и шириной 150 - 200 мм, остальные подкладки - толщиной 50 мм и шириной 150 - 200 мм. Длина подкладок должна быть равна ширине вагона.

Подкладки и прокладки должны быть расположены в соответствии с § 9 главы 1 и § 6 настоящей главы. Между утолщенными подкладками и порогом торцовых дверей полувагонов или торцовых бортов платформ устанавливают упоры из пиломатериалов толщиной 75 - 100 мм и шириной 150 мм. Упоры устанавливаются на расстоянии 0,5 - 0,8 м от боковых стоек стен или бортов вагонов. Каждый торцовый упор прибивают к полу платформы двумя гвоздями диаметром 5 мм и длиной 150 мм, а в полувагоне торцовые упоры прикрепляются к утолщенным подкладкам такими же двумя гвоздями.

§ 57. Пакеты пиломатериалов укладывают в основном штабеле в полувагоне и на платформе в два ряда по ширине и в два - четыре яруса по высоте. В каждый ряд укладывают пакеты одинаковой высоты. Стыковка пакетов по длине полувагона должна быть плотной.

Рис. 2.50:

1 - межпакетная прокладка; 2 - средняя стяжка стоек; 3 - верхняя стяжка стоек; 4 - прижимной брусок; 5 - проволочная увязка; 6, 7 - средняя и нижняя удлиненные прокладки; 8 - распорные доски; 9 - упорные доски; 10 - утолщенная подкладка; 11 - упор; 12 - средняя подкладка

Рис. 2.51:

§ 58. По ширине полувагона или платформы пакеты укладывают вплотную друг к другу и к боковым ограждающим стойкам. В случае образования зазоров между пакетами их плотно заполняют пиломатериалами длиной, равной длине пакета.

§ 59. Между каждым ярусом погрузки в основном штабеле укладывают прокладки сечением (25 ÷ 50) × (150 ÷ 200) мм.

§ 60. Каждая пара противоположных боковых стоек должна иметь верхнее поперечное крепление, а при погрузке на платформы - дополнительно еще среднее крепление, которое выполняют в соответствии § 9 настоящей главы.

§ 61. После погрузки и закрепления пакетов пиломатериалов в прямоугольной части габарита погрузки (до высоты 2,5 - 2,6 м от пола вагона) располагают пакеты «шапки» в пределах верхней суженной части габарита погрузки (рис. 2.51).

Для загрузки в полувагоны или платформы верхней суженной части габарита погрузки должны применяться пакеты шириной не более 1100 мм и высотой не более 575 мм. Длина пакетов «шапки» не менее 4 м. Пакеты формируют без стыкования досок. Число прокладок и обвязочных лент по длине каждого пакета устанавливается согласно § 51 и 52. Общая длина верхнего яруса погрузки («шапки») не должна превышать длину штабеля пиломатериалов в вагоне.

Для установки «шапки» на пакеты пиломатериалов, уложенных в прямоугольной части погрузки, укладывают удлиненные прокладки. Размеры прокладок и расположение зарубок должны соответствовать § 6 и 13 настоящей главы.

Пакеты в пределах верхней суженной части габарита погрузки укладывают в следующем порядке. В первом ярусе располагают два пакета по ширине. На первый ярус пакетов «шапки» укладывают поперечные промежуточные удлиненные прокладки сечением 50×150 мм и длиной, равной 2,35 м для полувагонов и 2,4 м для платформ. На концах прокладок на расстоянии не менее 50 мм от торцов делают зарубки глубиной 10 - 15 мм для закрепления проволочных обвязок. Во втором ярусе «шапки» размещают один пакет по ширине вагона. На этих пакетах над удлиненными прокладками размещают поперечные прижимные бруски сечением 50×150 мм. Концы поперечных брусков должны выступать с обеих сторон на 75 мм и иметь зарубки. Каждый брусок прибивают по концам к пакету двумя гвоздями длиной 100 - 125 мм.

Пакеты пиломатериалов закрепляют с каждой стороны тремя увязками из проволоки диаметром 6 мм в две нити, закрепляемыми за удлиненную и межпакетную прокладки и верхний поперечный прижимной брусок. Проволочные нити увязок помещают в зарубки каждой прокладки и бруска и туго скручивают между смежными по высоте прокладками.

На нижние удлиненные прокладки с обеих сторон пакетов укладывают распорные доски толщиной не менее 50 мм и такой ширины, чтобы они одной стороной упирались в боковые стойки, а другой - в пакеты. Длина распорных досок должна быть равна длине пакета.

На промежуточные межпакетные прокладки с обеих сторон верхнего пакета вдоль вагона укладывают упорные доски сечением 50 × (100 ÷ 150) мм и длиной, равной длине пакета. Упорные доски должны плотно прилегать к пакету.

Распорные и упорные доски крепят к каждой прокладке с обеих сторон двумя гвоздями длиной 100 - 120 мм. «Шапка» должна быть расположена симметрично относительно продольной оси вагона.

Тросовая или проволочная обвязка

§ 62. Допускается погрузка круглого леса на платформы и в полувагоны в пакетах, увязанных не менее чем в две обвязки из троса или проволоки. Обвязка пакетов предусматривается на расстоянии 0,5 - 0,8 м от концов пакета.

Размеры и число пакетов в штабеле устанавливаются лесоотправителями по согласованию с получателем.

Размещение и крепление круглого леса должны соответствовать требованиям, указанным в разделе «Круглый лес» настоящей главы, а обвязка должна быть равнопрочна стропам ПС.

Древесностружечные плиты размерами 2750×1830 мм в полувагонах с боковыми стенами высотой 2060 мм

§ 63. Древесностружечные плиты (ДСП) перед погрузкой в полувагон (рис. 2.52) формируют в пакеты: восемь пакетов из пачек по 55 плит, вес каждой пачки 3,32 т; четыре по 49 плит, вес пачки 2,96 т; один пакет из 30 плит весом 1,81 т.

«Шапка» формируется из четырех пакетов по 80 плит в пачке, вес пачки 5 т.

Пакеты с боков и сверху закрывают ДСП по размеру пакета и увязывают брусково-проволочной обвязкой.

Перед началом погрузки в стоечные скобы комлем вверх устанавливают шесть пар боковых стоек диаметром 120 мм в верхнем отрубе и не менее 90 мм в нижнем отрубе (см. рис. 2.52). Высота боковых стоек соответствует высоте боковых стен полувагона. Стойки увязывают проволокой диаметром 6 мм в две нити за стоечные скобы.

Вплотную к торцовым дверям полувагона устанавливают щиты. Щиты состоят из пяти стоек: двух крайних высотой 2650 мм и трех средних высотой 3320 мм, установленных комлем вверх, диаметром 140 мм в верхнем и 120 мм в нижнем отрубах. К стойкам прибивают две доски толщиной 50 мм, шириной 150 - 200 мм и длиной, равной внутренней ширине полувагона. К доскам прибивают лист ДСП 2750×1830 мм. К средним стойкам от борта полувагона прибивают лист ДСП размером 1350×1830 мм.

С наружной стороны щита к пяти стойкам прибивают поперечную жердь диаметром 140 мм и закрепляют проволокой диаметром 6 мм в две нити за ближайшие верхние увязочные устройства полувагона.

На пол полувагона под каждый пакет укладывают две подкладки размерами 50×150×2800 мм. В нижнем ярусе вплотную к каждому торцовому щиту и боковой стене полувагона размещают по две пачки ДСП, уложенные в положение «на пласть». На пачки укладывают прокладки размерами 50×150×1830 мм, на которые устанавливаются пачки верхнего яруса. Между каждыми двумя пачками и боковой стеной полувагона с противоположных сторон располагают два пакета плит по 49 шт. в каждом в положении «на ребро». Середина полувагона между пакетами нижнего и верхнего ярусов заполняется пачкой ДСП из 30 шт., установленной в положении «на ребро» на двух подкладках 50×150 мм длиной по месту.

Затем вплотную к торцовым щитам на пакеты нижнего и верхнего ярусов устанавливают по два пакета «шапки», каждый из которых размещают на четырех поперечных прокладках размером 50×150×2800 мм.

Пакеты «шапки» от продольных сдвигов закрепляют торцовыми щитами и проволочными растяжками. От сдвига пакетов внутрь полувагона устанавливаются распорки из брусков сечением 50×150 мм длиной по месту. Распорки прибивают к вертикальным упорным брускам двумя гвоздями диаметром 5 мм, длиной 120 мм.

Рис. 2.52:

1 - стойки боковые; 2 - крайние стойки торцовые; 3 - средние стойки торцовые; 4 - доски щита; 5 - поперечная жердь; 6 - распорка; 7 - вертикальный упорный брус; 8 - бруски увязочные; 9, 10 - прокладки; 11 - брус упорный; 12 - доска; 13 - брус распорный; 14 - увязка проволочная; 15 - ДСП; 16 - пергамин; 17 - растяжка проволочная; 18 - подкладка

От поперечных сдвигов пакеты «шапки» с обеих сторон полувагона закрепляются упорными и распорными брусками. Упорные продольные бруски сечением 50×100 мм по длине погрузки пакетов «шапки» укладывают вплотную к боковым стойкам на прокладки и прибивают к ним гвоздями диаметром 5 мм, длиной 120 мм. Между упорными брусками и пакетами «шапки» устанавливают распорные бруски сечением 50×150 мм длиной по месту и прибивают к каждой прокладке двумя гвоздями диаметром 5 мм, длиной 120 мм.

От атмосферных осадков пачки ДСП верхнего яруса укрывают древесностружечными плитами размерами 500×2750 мм, которые укладывают вплотную к пакетам «шапки». Край плиты, расположенный у пакета «шапки», прибивают к доскам, а противоположный край - к боковым стойкам, по два гвоздя в каждую. Для крепления плит используют гвозди диаметром 5 мм, длиной 120 мм. В середине полувагона к пакетам «шапки» сверху и с боков прибивают ДСП размером по месту, под которую подкладывают пергамин.

Древесностружечные плиты размерами 3500×1750

§ 64. Древесностружечные плиты перед погрузкой в полувагоны формируют в пакеты: девять пакетов из пачек по 54 плиты, вес пачки 3,97 т; два пакета по 35 плит, вес пачки 2,57 т (рис. 2.53).

Для загрузки верхней суженной части габарита погрузки формируют три пакета «шапки» по 90 плит, вес каждой пачки 6,9 т. Пакеты с боков и сверху укрывают ДСП по размеру пакета и увязывают брусково-проволочной обвязкой.

Перед началом погрузки в стоечные скобы комлем вверх устанавливают шесть пар боковых стоек, высота которых соответствует высоте боковых стен полувагона. Стойки увязывают проволокой за верхние и нижние увязочные устройства.

Вплотную к торцовым дверям полувагона устанавливают щиты, состоящие из двух крайних стоек высотой 2650 мм и двух средних высотой 1400 мм, установленных комлем вверх, диаметром 140 мм в верхнем и 120 мм № нижнем отрубах, к нижней и средней частям которых прибивают две доски, а затем лист ДСП размером 2900×1750 мм.

На пол полувагона равномерно под крайние штабеля укладывают по три подкладки размерами 50×100×2800 мм, на которые вплотную к торцовым щитам и боковым стенам полувагона загружают по три пачки ДСП, состоящие из 54 плит каждая. Две пачки размещают «на пласть» с установкой между ними двух прокладок размерами 25×100×1750 мм и одну пачку «на ребро». После этого с наружной стороны щита к четырем стойкам на высоте 2600 мм прибивают поперечную жердь и закрепляют проволокой диаметром 6 мм в две нити, а к средним стойкам щита с внутренней стороны прибивают лист ДСП размером 1750×1500 мм. Щиты за средние стойки обвязывают проволочными растяжками в четыре нити, концы которых закрепляют за верхние увязочные устройства полувагона с наружной стороны без затяжки. Затем вплотную к торцовым щитам устанавливают по два пакета «шапки» и после этого растяжки закручивают.

Вплотную к нижним пачкам и пакетам «шапки» с двух сторон на подкладки ставят пачки ДСП на «торец» и закрепляют проволокой диаметром 6 мм в две нити за внутренние верхние увязочные устройства полувагона и верхний брусок «шапки». Между установленными на «торец» пачками загружают три пачки ДСП по 54 плиты в каждой, из них две «на пласть» с установкой между ними двух прокладок размерами 25×100×1750 мм «на ребро» и пакет «шапки».

Пакеты «шапки» от возможных смещений с обеих сторон полувагона закрепляют упорными брусками, которые укладывают вплотную к боковым стойкам на прокладки и прибивают к ним гвоздями диаметром 5 мм, длиной 120 мм.

Рис. 2.53:

1 - стойки боковые; 2 - крайние стойки торцовые; 3 - средние стойки торцовые; 4 - доски щита; 5 - поперечная жердь; 6, 9, 19 - прокладки; 7 - брус увязочный; 8 - брус упорный; 10, 11 - подкладки; 12 - доска; 13, 18 - ДСП; 14 - пергамин; 15 - обвязка проволочная; 16 - увязка проволочная; 17 - растяжка проволочная

От атмосферных осадков пачки ДСП, расположенные внутри полувагона, укрывают некондиционными плитами размерами 3500×580 мм, которые укладывают вплотную к пакетам «шапки» на предварительно установленные доски и на борт полувагона. Край плиты, расположенной у пакета «шапки», прибивают к доскам, а противоположный край - к боковым стойкам гвоздями диаметром 5 мм, длиной 120 мм, по два на каждую. Пачки, установленные на торец, закрывают пергамином или водоотталкивающей бумагой и закрепляют рейками.

Пакеты и пачки плит ДСП выгружают в последовательности, обратной погрузке.

Ответственность за возможные последствия, связанные с порчей древесностружечных плит при перевозке их на открытом подвижном составе, несет грузоотправитель.

Лесоматериалы, погруженные в пределах зонального габарита

Общие положения

§ 65. Зональный габарит имеет более широкие очертания в верхней суженной части в сравнении с действующим обычным габаритом погрузки (рис. 2.54).

Рис. 2.54:

1 - полувагон; 2 - ограждающая стойка; 3 - очертание зонального габарита; 4 - очертание обычного габарита

Первая точка перегиба а зонального габарита совпадает с действующими габаритом погрузки; вторая точка б расположена на высоте 4700 мм от уровня головки рельсов и соответствует внутренней ширине полувагона, равной 2960 мм; третья точка в, расположенная на высоте 5200 мм, отстоит от оси габарита на 1100 мм. Верхние горизонтальные линии очертаний габаритов совпадают.

§ 66. Погрузка лесоматериалов с использованием зонального габарита производится на все дороги, за исключением Закавказской, Азербайджанской, Львовской и участков:

Белореченская - Туапсе - Веселое

Северо-Кавказская

Крымская -

Новороссийск

 

 

Пукса - Наволок

Чум - Лабытнанги

Северная

Тигей - Ачинск

 

Красноярская железная дорога

§ 67. В целях предотвращения попадания вагонов, загруженных лесоматериалами в пределах зонального габарита, на железные дороги и участки, не включенные в зону его действия, при оформлении перевозки, ее осуществлении и переадресовках обеспечивать выполнение следующих мер:

при отправлении таких вагонов грузоотправители обязаны на лицевой стороне накладной («Место для особых отметок и штемпелей») внести отметку «Зональный габарит». Такая же отметка должна быть проставлена работниками товарных контор в дорожной ведомости и вагонном листе;

при переадресовках таких вагонов попутными станциями также должна быть сделана отметка «Зональный габарит» во всех новых перевозочных документах (накладной, дорожной ведомости, вагонном листе) в соответствии с требованиями главы 1 ТУ.

Данная отметка должна быть проставлена и в досылочных перевозочных документах на вагоны, загруженные лесоматериалами в пределах зонального габарита, но не имеющие документов после установления принадлежности груза.

Непакетированные лесоматериалы

Неокоренные круглые лесоматериалы

§ 68. Настоящими Техническими условиями предусмотрена погрузка круглых неокоренных лесоматериалов длиной не менее 3,75 м, кроме кряжей и лесоматериалов с обледенением.

§ 69. Лесоматериалы, погруженные в «шапке» (верхняя суженная часть штабеля), должны быть подсортированы по толщине так, чтобы в одной «шапке» было не более двух - трех смежных диаметров. В прямоугольной части погрузки должны располагаться лесоматериалы, подсортированные по толщине в пределах требований действующих ГОСТов.

§ 70. Круглые лесоматериалы грузят вдоль вагона. Комли и вершины бревен в основной, прямоугольной части штабеля чередуют поштучно или целыми пачками так, чтобы в штабеле половина комлей была в одну сторону, а половина - в другую. Комли и вершины бревен в «шапке» чередуют поштучно.

Рис. 2.55:

1 - шестизвенная обвязка «шапки»; 2 - удлиненная прокладка; 3 - ограждающая стойка; 4 - четырехзвенная стяжка; 5 - утолщенная подкладка; 6 - подкладка; 7 - проволочная обвязка

Рис. 2.56:

1 - шестизвенная обвязка «шапки»; 2 - удлиненная прокладка; 3 - ограждающая стойка; 4 - четырехзвенная стяжка стоек; 5 - подкладка; 6 - проволочная обвязка

Крайние боковые бревна в рядах, лежащих на прокладках, а также расположенных под ними, должны прилегать к ограждающим стойкам. Прокладки должны плотно опираться на средние и крайние бревна, прилегающие к стойкам.

§ 71. Лесоматериалы грузят в один, два и три штабеля в зависимости от длины штабеля (рис. 2.55 - 2.59). В целях лучшего использования вместимости полувагонов штабеля грузят встык. Общая длина штабелей в полувагоне должна быть наибольшей и, как правило, равна погрузочной длине полувагона. Допускается совместная погрузка в одном полувагоне штабелей различной длины.

§ 72. В виде исключения, если общая длина штабелей меньше внутренней длины полувагона, допускаются зазоры между штабелями до 300 мм. Выход торцов бревен за лобовой брус полувагона не допускается.

Рис. 2.57:

1 - шестизвенная обвязка «шапки»; 2 - удлиненная прокладка; 3 - ограждающая стойка; 4 - четырехзвенная стяжка стоек; 5 - утолщенная подкладка; 6 - проволочная обвязка

Рис. 2.58:

1 - шестизвенная обвязка «шапки»; 2 - удлиненная прокладка; 3 - ограждающая стойка; 4 - четырехзвенная стяжка стоек; 5 - утолщенная подкладка; 6 - проволочная обвязка

Рис. 2.59:

1 - шестизвенная обвязка «шапки»; 2 - удлиненная прокладка; 3 - ограждающая стойка; 4 - четырехзвенная стяжка стоек; 5 - проволочная обвязка

§ 73. При погрузке лесоматериалов применяют подкладки из досок или другого материала некруглого сечения (кроме горбыля) толщиной не менее 50 мм и шириной 150 - 200 мм. Длина подкладок должна быть равна внутренней ширине полувагона. Удлиненные прокладки, применяемые при погрузке лесоматериалов в верхней суженной части погрузки, должны иметь длину 3000 мм и сечение не менее 75×150 мм. Утолщенные подкладки, укладываемые под наружные концы крайних штабелей, должны быть толщиной 130 - 160 мм и шириной нижней опорной поверхности 200 - 250 мм.

§ 74. Для крепления противоположных ограждающих стоек применяют четырехзвенные стяжки, а для крепления «шапки» - шестизвенные стяжки Министерства путей сообщения. Допускается в случаях, предусмотренных настоящими Техническими условиями, применение вместо стяжек проволоки, отвечающей требованиям § 11 главы 1 ТУ.

§ 75. Стойки должны изготовляться из здорового дерева круглого сечения длиной 3280 мм. Стойки устанавливаются такого сечения, чтобы на уровне верхнего обвязочного пояса полувагона диаметр стоек был не менее 100 - 110 мм. В полувагонах при высоте бортов 1880 мм возвышение стоек над уровнем бортов допускается не более 1400 мм, а при высоте бортов 2060 мм - 1220 мм.

§ 76. Стойки устанавливаются порядком, предусмотренным § 8 настоящей главы и § 8 главы 1 ТУ. Расстояние от торца штабеля до ближайшей ограждающей стойки должно быть не менее 250 мм.

Ограждающие стойки могут устанавливаться как комлем вниз, так и комлем вверх. В последнем случае комлевая часть стойки затесывается для установки большого ушка четырехзвенной стяжки, диаметр которого 120 мм.

Погрузка прямоугольной части штабеля

§ 77. С боков штабеля ограждаются при закрытых дверях полувагона шестью (см. рис. 2.57) парами стоек, а при открытых дверях - восемью парами стоек (см. рис. 2.55, 2.56, 2.58, 2.59).

§ 78. Средний штабель опирается на две поперечные подкладки, расположенные на расстоянии 0,5 - 0,8 м от торцов штабеля. Под наружные концы крайних штабелей укладывают утолщенные подкладки толщиной 130 - 160 мм и шириной нижней опорной поверхности 200 - 250 мм. При погрузке штабелей круглых лесоматериалов, не помещающихся по длине внутри полувагона, утолщенные подкладки не применяют, при этом наружные концы штабелей укладываются на порожке полувагона.

§ 79. После погрузки и выравнивания лесоматериалов в прямоугольной части штабеля осуществляется увязка противоположных ограждающих стоек четырехзвенными стяжками. Большое ушко стяжки надевают на верхнюю часть одной из стоек и укрепляют гвоздем длиной 70 - 80 мм, а малое ушко прикрепляют к противоположной стойке проволокой диаметром 6 мм в четыре нити. Концы проволоки, пропущенные в малое ушко, скручивают с основными прядями, после чего всю увязку скручивают ломиком так, чтобы отсутствовали зазоры между звеньями стяжки, а стяжка была натянута. Значительное перекручивание проволоки, ослабляющее ее прочность, не допускается.

Укладка бревен в «шапку»

§ 80. После погрузки и закрепления лесоматериалов в пределах прямоугольной части габарита укладывают и закрепляют круглый лес в пределах верхней суженной части зонального габарита.

На расстоянии 0,5 - 0,8 м от концов каждого штабеля укладывают по две удлиненные прокладки так, чтобы концы их выступали с обеих сторон на 75 - 100 мм. По концам удлиненных прокладок на расстоянии не менее 50 мм от их торцов делают зарубки глубиной 10 - 15 мм для большого ушка шестизвенных стяжек.

Рис. 2.60:

а - устойчивое размещение бревен «шапки»; б - неустойчивое (не допускается); 1 - ограждающая стойка; 2 - четырехзвенная стяжка стоек; 3 - удлиненная прокладка; 4 - шестизвенная обвязка «шапки»

§ 81. В верхней части штабеля («шапки») размещают бревна диаметром не более 300 мм, подсортированные до двух - трех смежных диаметров. В первом ряду «шапки» бревна укладывают на удлиненные прокладки вплотную друг к другу. Крайние бревна этого ряда укладывают вплотную к ограждающим стойкам, возвышение этих бревен над стойками допускается не более 1/4 их диаметра. В седловины между смежными бревнами первого ряда плотно укладывают последующие по высоте погрузки бревна. Диаметр вышележащих бревен, расположенных в боковой части «шапки», должен быть не более диаметра нижележащих бревен (рис. 2.60).

Крепление «шапки» с удлиненными прокладками (рис. 2.61, а)

§ 82. Круглые лесоматериалы, погруженные в верхней части штабеля («шапке») на удлиненные прокладки, увязывают двумя шестизвенными стяжками, закрепляемыми за удлиненные прокладки, и одной проволочной обвязкой, устанавливаемой в средней части «шапки».

Большое ушко шестизвенной стяжки надевают на один конец удлиненной прокладки, а малое ушко прикрепляют к другому концу прокладки проволокой диаметром 6 мм в четыре нити, при этом необходимо сделать оборот вокруг прокладки. Большое ушко стяжки прибивают к удлиненной прокладке двумя гвоздями длиной 70 - 80 мм или закрепляют проволокой диаметром не менее 5 мм.

§ 83. Для крепления «шапки» проволочной обвязкой между удлиненными прокладками в средней части каждого штабеля предварительно укладывают две нити проволоки диаметром 6 мм. После погрузки бревен «шапки» концы нитей проволоки, выступающие с обеих сторон штабеля, соединяют между собой и туго скручивают.

Крепление «шапки» без удлиненных прокладок (рис. 2.61, б)

§ 84. Круглые лесоматериалы можно грузить в полувагоны без применения удлиненных прокладок в адреса получателей, которые официально уведомили отправителя о согласии на такую отгрузку при следовании груза на подъездные пути получателя.

Об указанном согласии отправитель должен сделать отметку в накладной (графа «Особые заявления и отметки отправителя»). Запрещается такая отгрузка круглых лесоматериалов назначением на станции, имеющие механизмы (перечень таких станций опубликован в Правилах перевозок грузов), в пункты примыкания широкой колеи к узкой, на станции перегрузки при следовании лесоматериалов на экспорт, а также получателям, которые не дали согласия на погрузку без удлиненных прокладок.

§ 85. После выравнивания бревен верхнего ряда прямоугольной части штабеля и установки верхнего крепления противоположных ограждающих стоек на расстоянии 0,5 - 0,8 м от концов каждого штабеля для последующей обвязки «шапок» укладывают по одной обвязке из проволоки диаметром 6 мм в четыре нити. Нити проволоки должны быть скручены между собой, а их концы должны выступать на одинаковом расстоянии с обеих сторон штабеля. После формирования «шапки» концы проволоки, выступающие с обеих сторон штабеля, соединяют между собой поверх бревен и туго скручивают.

§ 86. Верхнее крепление боковых противоположных стоек при данной погрузке должно выполняться только проволокой диаметром 6 мм в четыре нити; применение четырехзвенных стяжек МПС запрещается.

Пиломатериалы длиной от 3 м и более

§ 87. Для ограждения и крепления пиломатериалов полувагон оборудуют восемью парами деревянных боковых стоек (рис. 2.62). Стойки должны быть изготовлены из здорового дерева круглого сечения и соответствовать требованиям § 75 настоящей главы. Стойки устанавливаются порядком, предусмотренным § 8 настоящей главы и § 8 главы 1 Технических условий погрузки и крепления грузов.

Рис. 2.61:

1 - ограждающая стойка; 2 - четырехзвенная стяжка стоек; 3 - удлиненная прокладка; 4 - шестизвенная обвязка «шапки»; 5 - проволочная обвязка «шапки»; 6 - проволочная стяжка стоек

§ 88. Каждый штабель укладывают не менее чем на две подкладки, одна из которых, уложенная у порожка полувагона, имеет толщину 130 - 160, мм, ширину 200 - 250 мм, остальные - 50×(150 ÷ 200) мм. Длина подкладок должна быть равна внутренней ширине полувагона. Расстояние от подкладок до концов штабеля должно быть 500 - 800 мм.

§ 89. Укладку пиломатериалов осуществляют плотно друг к другу и к боковым ограждающим стойкам. Если доски при погрузке не занимают всей полезной ширины полувагона и остается зазор менее ширины доски, то он заполняется досками, поставленными «на ребро». Длина и толщина досок в каждом ряду должна быть одинаковой и соответствовать ГОСТам.

§ 90. Для обеспечения механизированной выгрузки прямоугольная часть штабеля должна разделяться прокладками толщиной не менее 25 мм. При наличии согласия грузополучателя погрузка прямоугольной части штабеля может выполняться без разделения прокладками. Об указанном согласии грузоотправитель должен сделать отметку в накладной в графе «Особые отметки и заявления отправителя».

Рис. 2.62:

1 - утолщенная подкладка; 2 - боковая ограждающая стойка; 3 - удлиненная прокладка; 4 - проволочная увязка «шапки»; 5 - прижимной брусок; 6 - верхняя часть штабеля; 7 - прямоугольная часть штабеля; 8 - поперечная стяжка стоек

§ 91. После погрузки пиломатериалов в прямоугольной части штабеля производят крепления противоположных ограждающих стоек четырехзвенными стяжками в соответствии с главой 1 Технических условий погрузки и крепления грузов (§ 9). Расстояние по вертикали от верха штабеля прямоугольной части погрузки до вершин стоек должно быть не менее 150 мм.

Рис. 2.63:

1 - боковая ограждающая стойка; 2 - стяжка стоек; 3 - проволочная увязка стоек; 4 - верхний брусок; 5 - очертание зонального габарита; 6 - верхняя часть штабеля; 7 - удлиненная прокладка; 8 - прямоугольная часть штабеля

§ 92. На верхние доски прямоугольной части каждого штабеля укладывают три удлиненные прокладки сечением 50 × (150 ÷ 200) мм, длиной не более 3000 мм так, чтобы концы их выступали с обеих сторон на 75 - 100 мм. По концам удлиненных прокладок на расстоянии не менее 50 мм от их торцов делают зарубки глубиной 10 - 15 мм для закрепления проволочных обвязок. Затем производится укладка «шапки» в пределах суженной части зонального габарита, размещением досок плашмя вплотную друг к другу. При этом последующую по высоте крайнюю доску смещают на 20 - 70 мм от наружной кромки доски, расположенной ниже (рис. 2.63). Ширина верхнего яруса досок на высоте 5150 мм не должна превышать 2100 мм. На доски верхней суженной части штабеля над удлиненными прокладками размещают поперечные бруски сечением 50×150 мм, длиной не более 2200 мм, имеющие аналогичные зарубки для проволочных увязок.

Каждый верхний поперечный брусок прибивают по концам двумя гвоздями длиной не менее 125 мм к верхним доскам штабеля. Пиломатериалы закрепляют с каждой стороны тремя увязками из проволоки диаметром 6 мм в две нити, закрепляемыми за удлиненную прокладку и верхний поперечный брусок. Нити увязки туго скручивают (см. § 24 и рис. 2.18 настоящей главы).

§ 93. При необходимости штабеля пиломатериалов предохраняют от атмосферных влияний и загрязнений в пути следования в соответствии с § 25 настоящей главы.

Древесные опилки, стружки, щепа, шпальная вырезка, тарная дощечка, черновые мебельные заготовки и другие короткомерные пиломатериалы в полувагонах с обрешечиванием

§ 94. Погрузка древесных опилок, стружки, щепы, шпальной вырезки (горбыля) и других короткомерных лесоматериалов, осуществляется в полувагоны с закрытыми дверями с применением обрешечивания из досок (горбылей).

Полувагон оборудуется восемью парами боковых стоек и шестью (по три в каждом торце) торцовыми стойками (рис. 2.64).

Стойки должны изготовляться из здорового дерева круглого сечения и соответствовать требованиям § 84 настоящей главы.

§ 95. Крайние торцовые стойки и прилегающие к ним (см. рис. 2.64) боковые стойки связываются в верхней части проволокой диаметром 6 мм в две нити. Крайние торцовые стойки прикрепляют также к верхним увязочным устройствам полувагона растяжками из проволоки диаметром 6 мм в две нити.

Рис. 2.64:

1 - шпальная вырезка (горбыль); 2 - подкладка; 3 - боковая стойка; 4 - торцовая стойка; 5 - соединительная доска; 6 - утолщенная прокладка; 7 - поперечная жердь; 8 - увязка жерди; 9 - увязка стоек; 10 - доски обрешечивания; 11 - стяжка стоек; 12 - прокладка; 13 - растяжка; 14 - доски торцового ограждения

Средняя торцовая стойка устанавливается на пол и сшивается с крайними на высоте 300 - 400 мм от пола полувагона доской толщиной 25 - 30 мм.

Остальные стойки (боковые) устанавливаются и закрепляются порядком, предусмотренным § 8 настоящей главы и § 8 главы 1 ТУ. При этом каждая пара противоположных боковых стоек после погрузки закрепляется между собой четырехзвенными стяжками или проволокой диаметром 6 мм в две нити.

§ 96. В верхней части торцовые стойки укрепляются поперечной жердью диаметром не менее 100 мм, длиной, равной ширине вагона между бортами кузова. Жердь прикрепляют к каждой торцовой стойке двумя гвоздями длиной 150 - 200 мм и проволокой диаметром 6 мм в две нити.

§ 97. Обрешечивание производится после осуществления погрузки материалов в вагон до уровня ниже верхней обвязки полувагона на 150 - 200 мм из досок или горбылей толщиной 25 - 30 мм, которые прибиваются вплотную друг к другу с внутренней стороны стоек гвоздями длиной не менее 70 мм (обрешечивание в торцах полувагонов должно быть только из досок).

Длина досок, прибиваемых к торцовым стойкам, должна быть не менее ширины полувагона внутри кузова.

Обрешечивание начинается и заканчивается на расстоянии 80 - 90 мм ниже соответственно верхней обвязки кузова полувагона и верха стоек.

§ 98. Погрузка осуществляется только в пределах прямоугольной части обрешеченного полувагона.

Погрузка щепы, стружки, опилок производится навалом после установки и крепления боковых и торцовых стоек.

Шпальную вырезку (горбыль) и другие лесоматериалы грузят как с применением подкладок и прокладок (при укладке не более четырех штабелей), так и без них.

В первом случае шпальную вырезку и другие материалы длиной 2750 мм грузят вдоль вагона в четыре штабеля по длине и в два (три) яруса по высоте. Ярусы разделяются двумя прокладками. Прокладки у торцовых дверей должны иметь толщину 50 мм, остальные шесть - 35 мм.

Подкладки, укладываемые на пол вагона по две на каждый штабель, имеют размеры 50×(150 ÷ 200) мм.

Между прокладками крайних штабелей пропускают проволоку диаметром, не менее 5 мм в одну нить, концы которой выводят выше бортов и закрепляют вокруг стоек.

Погрузка лесоматериалов длиной 2750 мм без применения прокладок может осуществляться в адреса получателей, которые официально уведомили отправителя о согласии на такую отгрузку при следовании груза на подъездные пути получателя. Об указанном согласии отправитель должен сделать отметку в накладной (графа «Особые заявления и отметки отправителя»).

§ 99. Погрузка лесоматериалов длиной до 1,6 м может осуществляться в полувагонах без применения прокладок и подкладок.

Горизонтально лесоматериалы в штабеле укладывают ниже верхнего уровня обрешечивания на 50 мм.

Пакетированные лесоматериалы

Круглые неокоренные лесоматериалы

§ 100. Круглые лесоматериалы пакетируют в стропах ПС-05. Для перевозок используются четырехосные полувагоны с боковыми стенами высотой 2060 мм.

§ 101. Пакеты лесоматериалов в зависимости от их длины размещают в два или три штабеля по длине полувагона с открытыми или закрытыми торцовыми дверями и в два яруса по высоте (рис. 2.65). Подкладки и прокладки не применяются. Общая длина штабелей должна максимально использовать внутреннюю длину полувагона. Допускается совместная погрузка в полувагоне штабелей различной длины.

§ 102. Пакет лесоматериалов, формируемый для погрузки по зональному габариту в четырехосные полувагоны с высотой боковых стен 2060 мм с открытыми или закрытыми дверями, должен иметь в кармане-накопителе следующие размеры: ширина - 2700 мм, высота - 1750 мм. Превышение этих размеров не допускается.

§ 103. Каждый пакет длиной 6,5 м и менее и весом не более 15 т должен быть увязан двумя стропами ПС-05. Стропы размещают на равном удалении от середины пакета на расстоянии между ними не менее половины длины пакета. Расстояние от торцов пакета до строп должно быть не менее 0,3 - 0,5 м.

Пакеты длиной свыше 6,5 м и весом более 15 т должны быть обвязаны четырьмя стропами. Стропы размещают попарно на равном удалении от торцов пакета. Расстояние между парами стропов должно составлять 3 - 3,5 м, расстояние между стропами в паре - 0,2 - 0,3 м.

§ 104. Замыкание стропов осуществляют путем пропуска свободного конца цепи в петлевой замок с последующей фиксацией конца цепи закруткой из проволоки диаметром не менее 4 мм в одну нить. Стропы на пакете должны быть плотно затянуты.

§ 105. После укладки в полувагон пакетов нижнего яруса расстояние по высоте от верхнего уровня боковых стен до уровня бревен верхнего ряда пакетов должно быть не менее 150 - 200 мм. Для предотвращения продольных сдвигов пакеты крайних штабелей не должны иметь уклона к торцовой части полувагона.

§ 106. В части, не предусмотренной данными Техническими условиями, следует руководствоваться настоящей главой и главой 1 ТУ.

Пиломатериалы, обвязанные стальными лентами

§ 107. Порядок формирования пакетов пиломатериалов, конструкция пакетов, требования к увязке их стальными лентами и другие, за исключением поперечных размеров пакетов, при погрузке по зональному габариту должны приниматься те же, что и при погрузке по обычному габариту, т.е. установленные в настоящей главе и ГОСТ 19041-85Е «Пакеты и блок-пакеты пилопродукции».

Рис. 2.65:

1 - стропы ПС-05; 2 - проволочная закрутка

§ 108. Для ограждения и крепления штабелей пакетов пиломатериалов в полувагонах и на платформах устанавливается восемь пар деревянных ограждающих стоек. Высота стоек над полом платформ и полувагонов должна быть 2780 - 2800 мм. Остальные требования к стойкам, порядку их установки и крепления должны приниматься в соответствии с § 8 главы 1 и § 8 и 9 настоящей главы ТУ.

§ 109. Погрузка пакетов пиломатериалов в полувагоны и на платформы производится следующим образом: в пределах прямоугольной части габарита размещают два яруса пакетов и на них укладывается «шапка», которая в свою очередь может иметь один или два яруса.

Таблица 2.3

Вариант «шапки»

Число ярусов в «шапке»

№ яруса

Поперечные размеры пакетов в «шапке», мм

в полувагоне

на платформе

ширина

высота

ширина

высота

1 (см. рис. 2.66 - 2.69)

1

1

1000×2

1050

1000×2

1150

2 (см. рис. 2.72 - 2.75)

2

1

1250×2

500

1350×2

550

 

2

1000×2

500

1000×2

550

3 (см. рис. 2.70, 2.71)

2

1

1250×2

500

1350×2

550

 

2

1250

500

1350

550

Примечание. Множитель «2» означает, что пакеты указанной ширины укладывают в два ряда по ширине вагона.

§ 110. Поперечные размеры пакетов пиломатериалов, предназначенных для укладки в первые два яруса в пределах прямоугольной части погрузки, следует принимать:

ширину - 1250 мм для полувагонов, 1350 мм для платформ;

высоту - 1200 мм для полувагонов и платформ.

Пакеты указанных размеров должны укладываться в два ряда по ширине вагонов вплотную к ограждающим стойкам (в нижнем ярусе на платформах - вплотную к бортам платформ). В случае образования зазоров между пакетами они должны быть плотно заполнены пиломатериалами длиной, равной длине пакета.

При ширине зазора менее 150 мм допускается устанавливать между пакетами по две вертикальные распорные стойки, которые должны располагаться между прокладками. Стойки должны быть в одном уровне с поверхностью пакетов и соединены друг с другом сверху доской толщиной 25 мм и гвоздями длиной 50 мм, по два гвоздя на каждую стойку.

§ 111. На пол полувагона или платформы под каждый штабель в зависимости от его длины должно быть уложено до трех подкладок, а между первым и вторым ярусами погрузки в прямоугольной ее части - до трех прокладок с размерами:

крайние (утолщенные) подкладки под наружными концами штабелей: толщина 130 мм, ширина 150 - 200 мм, длина равна внутренней ширине вагона;

остальные подкладки: толщина 50 мм, ширина 150 - 200 мм, длина равна внутренней ширине вагона;

прокладки между первым и вторым ярусами штабелей: толщина 25 - 50 мм, ширина 150 - 200 мм, длина равна ширине штабеля.

В остальном должны соблюдаться требования к подкладкам и прокладкам и их расположению, изложенные в настоящей главе и главе 1 ТУ.

Рис. 2.66:

1 - полувагон; 2 - подкладка; 3 - торцовый упор; 4 - пакет; 5 - стойка; 6 - четырехзвенная стяжка; 7 - удлиненная прокладка; 8 - проволочная увязка; 9 - распорная доска; 10 - упорный брусок

Рис. 2.67:

1 - полувагон; 2 - утолщенные подкладки; 3 - торцовые упоры; 4 - пакеты; 5 - подкладки и межпакетные прокладки; 6 - поперечные металлические стяжки; 7 - удлиненные прокладки; 8 - пакеты «шапки»; 9 - верхний прижимной брус; 10 - проволочная увязка; 11 - распорная доска

§ 112. После укладки двух ярусов штабелей в пределах прямоугольной части габарита расстояние от верха штабеля второго яруса до вершин стоек должно быть не менее 200 мм.

В полувагонах каждая пара противоположных ограждающих стоек должна иметь верхнее поперечное крепление, а на платформах - верхнее и среднее поперечные крепления, которые должны быть выполнены в соответствии с § 8 главы 1 и § 9 настоящей главы.

§ 113. Пакеты «шапки» устанавливаются на удлиненные прокладки, укладываемые на пакеты пиломатериалов, уложенные в пределах прямоугольной части габарита. Длина этих прокладок 3000 мм, толщина 50 - 100 мм, ширина 150 мм. Расположение зарубок, размещение прокладок и остальные требования к ним должны соответствовать § 6 и 13 главы 1 ТУ.

В зависимости от местных условий (способы формирования пакетов, грузоподъемность кранов и др.) допускается формирование «шапок» с использованием зонального габарита по трем вариантам. Поперечные размеры пакетов в «шапке», количество их ярусов и рядов в каждом варианте должны соответствовать табл. 2.3 (рис. 2.66 - 2.75).

Рис. 2.68:

1 - платформа; 2 - пакет; 3 - стойка; 4 - средняя стяжка стоек; 5 - верхняя стяжка стоек; 6 - удлиненная прокладка; 7 - распорная доска; 8 - упорный брусок; 9 - борт платформы

Рис. 2.69:

1 - платформа; 2 - торцовый упор; 3 - утолщенная подкладка; 4 - подкладка и межпакетная прокладка; 5 - пакет; 6 - стойка; 7 - средняя стяжка стоек; 8 - верхняя стяжка стоек; 9 - удлиненная промежуточная прокладка; 10 - пакет «шапки»; 11 - прижимной брусок; 12 - проволочная увязка; 13 - распорная доска

§ 114. По длине вагона в «шапке» укладывают в зависимости от длины от двух до четырех пакетов. Продольные оси «шапки» и вагона должны совпадать.

§ 115. Пакеты в «шапке» по варианту 1 укладывают на удлиненные прокладки (см. § 113) в один ярус по высоте и в два ряда по ширине вагона. На этих пакетах над удлиненными прокладками размещают поперечные прижимные бруски сечением 50 (толщина) × 150 (ширина) мм. Концы прижимных брусков должны выступать с обеих сторон на 75 мм и иметь зарубки для проволочных обвязок. Каждый брусок прибивают по концам к пакету двумя гвоздями длиной 100 - 125 мм.

Рис. 2.70:

1 - полувагон; 2 - торцовый упор; 3 - подкладка; 4 - пакет; 5 - прокладка; 6 - стойка; 7 - стяжка стоек; 8 - удлиненная прокладка; 9 - удлиненная промежуточная прокладка; 10 - проволочная увязка; 11 - упорная доска; 12 - прижимная доска

§ 116. Пакеты в «шапке» по вариантам 2 и 3 укладывают в два яруса по высоте. Количество рядов пакетов: в варианте 2 - по два ряда в обоих ярусах; в варианте 3 - два ряда в первом ярусе и один ряд во втором ярусе.

На первый ярус пакетов в вариантах «шапки» 2 и 3 укладывают над нижними удлиненными прокладками поперечные промежуточные удлиненные прокладки сечением 50×150 мм и длиной 2650 - 2700 мм для полувагонов и 2850 - 2900 мм для платформ. На концах прокладок на расстоянии не менее 50 мм от их торцов делают зарубки глубиной 10 - 15 мм для закрепления проволочных обвязок.

§ 117. На пакеты второго яруса «шапок» по вариантам 2 и 3 должны быть уложены поперечные прижимные бруски, требования к которым те же, что и для варианта 1 (см. § 115).

Рис. 2.71:

1 - платформа; 2 - подкладка; 3 - торцовый упор; 4 - пакет; 5 - стойка; 6 - средняя стяжка; 7 - межпакетное заполнение; 8 - верхняя стяжка стоек; 9 - удлиненная прокладка; 10 - распорная доска; 11 - удлиненная промежуточная прокладка; 12 - проволочная увязка; 13 - упорная доска; 14 - прижимная доска

Рис. 2.72:

1 - полувагон; 2 - стойка; 3 - стяжка стоек; 4 - удлиненная промежуточная прокладка; 5 - проволочная увязка; 6 - упорная доска; 7 - прижимная доска

Рис. 2.73:

1 - полувагон; 2 - основной пакет и пакет «шапки»; 3 - стойка; 4 - стяжка стоек; 5 - промежуточная прокладка; 6 - проволочная увязка «шапки»; 7 - упорная доска; 8 - прижимной брусок; 9 - удлиненная прокладка; 10 - подкладка; 11 - утолщенная подкладка; 12 - торцовый упор; 13 - прокладка

Рис. 2.74:

1 - платформа; 2 - пакет; 3 - стойка; 4 - средняя стяжка стоек; 5 - верхняя стяжка стоек; 6 - прижимной брусок; 7 - проволочная увязка; 8 - упорная доска; 9 - распорная доска; 10 - межпакетное заполнение; 11 - борт платформы

§ 118. Общая высота «шапок» во всех вариантах, измеренная от низа удлиненной прокладки до верха поперечного прижимного бруска, должна быть не более 1200 мм в полувагонах и не более 1300 мм на платформах.

§ 119. Пакеты пиломатериалов в «шапке» закрепляют с каждой стороны двумя увязками из проволоки диаметром 6 мм в две нити при длине пакетов до 4,5 м и тремя увязками при длине пакетов более 4,5 м.

§ 120. При формировании «шапки» по варианту 1 на удлиненные прокладки с обеих ее сторон укладывают распорные доски толщиной не менее 50 мм таким образом, чтобы они одной стороной упирались в боковые стойки. Между пакетом и распорной доской вставляются упорные бруски из обрезков досок такой же толщины.

Нижние пакеты «шапок» по вариантам 2 и 3 должны плотно прилегать с обеих сторон к вершинам боковых стоек. В случае образования зазоров в них должны быть вставлены распорные доски соответствующей ширины толщиной 50 мм или доски, устанавливаемые ребром на удлиненные прокладки.

Упорные доски для «шапок» по вариантам 2 и 3 размещают с боков верхнего пакета на промежуточных прокладках.

Распорные и упорные доски и бруски крепят к каждой прокладке двумя гвоздями длиной 100 - 120 мм.

§ 121. В остальном необходимо руководствоваться требованиями настоящей главы и главы 1 Технических условий погрузки и крепления грузов.

Рис. 2.75:

1 - платформа; 2 - утолщенная подкладка; 3 - подкладка; 4 - пакет; 5 - стойка; 6 - средняя стяжка стоек; 7 - прокладка; 8 - верхняя стяжка стоек; 9 - пакеты «шапки»; 10 - прижимной брусок; 11 - проволочная увязка; 12 - упорная доска; 13 - распорная доска; 14 - торцовый упор

Лесоматериалы в специально оборудованных вагонах.

Круглые лесоматериалы длиной 3,0 - 13,5 м на четырехосных платформах с оборудованием (ВО-118) Минлесбумпрома СССР

§ 122. Для перевозки круглых лесоматериалов используются четырехосные платформы колеи 1520 мм грузоподъемностью 61 т. На платформу установлены восемь металлических рам (рис. 2.76), закрепленных в стоечных скобах платформы.

Для обеспечения наклона штабелей к середине платформы 1, 2, 3, 4-я (от торца платформы) поперечные рамы имеют соответственно высоту 270, 250, 230 и 210 мм. В средней части каждой поперечной рамы с обеих сторон установлены опорные площадки, а с торцов - вертикальные стойки.

Для крепления лесоматериалов, погруженных в пределах обычного габарита погрузки, верхняя часть каждой стойки снабжена удлиненными звеньями и цепями, а погруженных в пределах зонального габарита - наставками верхней части стоек и цепями. Цепи противоположных стоек соединяют специальным запирающим устройством.

§ 123. При погрузке лесоматериалов габарит погрузки должен использоваться максимально. Бревна сплошным штабелем загружаются в прямоугольную и суженную части габарита погрузки.

Разность высот концов сформированного штабеля лесоматериалов не должна превышать 200 мм.

Каждый штабель ограждается не менее чем двумя рамами. При ограждении штабеля двумя рамами расстояние от стоек рамы до концов штабеля должно быть не менее 250 мм. Выход концов штабелей за лобовой брус рамы платформы не должен превышать 400 мм.

§ 124. Допускается разделение штабелей на каждой платформе только деревянными или тросовыми прокладками на 2 - 4 пачки порядком, предусмотренным § 60 настоящей главы.

§ 125. По окончании погрузки-выгрузки цепи для крепления «шапки» должны быть замкнуты, а замковое кольцо рычага зафиксировано отожженной проволокой 3 - 4 мм. Выбор необходимой длины стяжки при погрузке осуществляется за счет фигурного звена.

§ 126. Грузоотправители несут ответственность за правильность погрузки и крепления лесоматериалов, за техническое состояние и сохранность установленного на платформах оборудования, а грузополучатели - за очистку платформ, правильную фиксацию запирающих устройств у порожних платформ и за содержание оборудования в исправном состоянии.

В целях обеспечения сохранности оборудования и платформ при погрузке и выгрузке не допускаются удары пачками лесоматериалов по стойкам рам. Запрещается резкое опускание без торможения пачек сортиментов на платформу с высоты более 500 мм.

Непакетированные неокоренные круглые лесоматериалы длиной 4,0; 5,0; 6,5; 8,0; 10 м и хлысты длиной до 20 м на четырехосной платформе модели 23-4000

§ 127. Принадлежащие грузоотправителю (грузополучателю) четырехосные платформы модели 23-4000 имеют следующие погрузочные размеры платформы: длину 21170 мм, ширину 2800 мм, высоту 2370 мм (рис. 2.77), грузоподъемность 55 т, допускаемую загрузку до 69 т при условии соблюдения всех эксплуатационных ограничений, установленных Указанием МПС № 1324-у от 19.11.85.

При погрузке лесоматериалов погрузочная длина платформы должна использоваться полностью.

Рис. 2.76:

а - общий вид погрузки платформы с удлиненными звеньями (б) и наставками (в) стоек; 1 - платформа; 2 - металлическая рама; 3 - стоечная скоба платформы; 4 - уширенная площадка рамы; 5 - удлиненные звенья или наставки стоек; 6 - цепи для крепления «шапки»; 7 - замковое кольцо рычага; 8 - фигурное звено

Рис. 2.77:

1 - стойка; 2 - торцовая стенка

Рис. 2.78

Рис. 2.79

Рис. 2.80

Рис. 2.81

Рис. 2.82

Рис. 2.83

Рис. 2.84

§ 128. Круглые лесоматериалы грузят штабелями вдоль платформы, укладывая нижний ряд на поперечные гребенки. Схема размещения лесоматериалов длиной 4 м дана на рис. 2.78, длиной 5 м (рис. 2.79), длиной 6,5 м (рис. 2.80), длиной 10 м (рис. 2.81).

Допускается погрузка на одной платформе штабелей лесоматериалов различной длины (4 - 6 - 6 - 4) или (8 - 4 - 8) с учетом полного использования погрузочной длины платформы (рис. 2.82 и 2.83).

Каждый штабель круглых лесоматериалов должен ограждаться не менее чем двумя парами стоек, при этом конец штабеля должен выходить за стойку не менее чем на 250 мм.

Высота погруженных на платформу лесоматериалов во всех штабелях должна быть одинаковой, не более 3870 мм от уровня головки рельсов или ниже верхнего конца стойки не менее чем на 100 мм.

Погрузку лесоматериалов начинают с укладки крайних штабелей, которые размещают вплотную к торцовым стенкам.

§ 129. Хлысты укладывают на поперечные балки (гребенки) в один штабель с разделением на две - четыре пачки. Штабель располагают симметрично поперечной и продольной осям платформ.

Хлысты длиной до 20 м на платформе располагают (рис. 2.84) так, чтобы в штабеле половина комлей была в одну сторону, а половина в другую (враскомлевку).

§ 130. Допускается разделение штабелей лесоматериалов на пачки деревянными прокладками размерами 50×150×2800 мм.

§ 131. В целях обеспечения сохранности платформы грузоотправители обязаны при погрузке и выгрузке не допускать ударов пачками лесоматериалов по стойкам, торцовым стенкам и раме платформы запрещается резкое опускание без торможения пачек лесоматериалов на платформу с высоты более 0,5 м.

Грузоотправители несут ответственность за правильность погрузки и крепления лесоматериалов и за техническое состояние крепежных устройств платформы (стойки, торцовые стенки гребенки), а грузополучатели - за очистку, техническое состояние платформ после их выгрузки.

Использование под погрузку, а также предъявление к перевозке порожних платформ с неисправными крепежными устройствами не допускаются.

Древесина в хлыстах на специальных лесовозных платформах

§ 132. Погрузка и крепление древесины в хлыстах (дерево с обрубленными сучьями) длиной 10 - 24 м производятся на принадлежащие грузоотправителю (грузополучателю) четырехосные специальные лесовозные платформы грузоподъемностью 56 т и длиной осям автосцепки 25080 мм. Перегруз платформы сверх установленной грузоподъемности не должен превышать 2 т.

Для закрепления хлыстов в верхней части несъемных металлических вертикальных стоек, жестко закрепленных на платформы, имеются поворотные кронштейны (рис. 2.85) или цепи (рис. 2.86).

После загрузки платформы, а также после ее разгрузки поворотные кронштейны должны быть установлены в среднее положение (в пределах габарита погрузки) и зафиксированы так, чтобы исключалась возможность их произвольного поворота в пути следования.

Поворот и фиксирование кронштейна (рис. 2.87) в определенном положении осуществляются с помощью воротка, поставляемого в отверстие горизонтальной оси валика механизма поворота. При повороте рычага поднимают Г-образный кронштейн и одновременно поворачивают его на 100°.

Цепи противоположных стоек после загрузки и разгрузки платформы должны быть соединены между собой имеющимся на их концах специальным запирающим устройством (см. рис. 2.86).

Для более устойчивого размещения хлыстов между каждой парой стоек установлены поперечные несъемные подкладки в виде металлических гребенок.

§ 133. Хлысты укладывают на поперечные подкладки (гребенки) в один штабель с разделением на две - четыре пачки. Штабель располагают симметрично поперечной и продольной осям платформы. Выход штабеля хлыстов за лобовой брус платформы допускается не более 300 мм.

Размеры штабеля приведены на рис. 2.85 и 2.86.

Рис. 2.85:

1 - вертикальные стойки; 2 - поворотные кронштейны; 3 - постоянные поперечные подкладки (гребенки); 4 - гвозди; 5 - прокладки тросовые (деревянные)

Рис. 2.86:

1 - вертикальные стойки; 2 - прокладки деревянные (тросовые); 3 - стягивающие цепи; 4 - постоянные поперечные подкладки (гребенки); 5 - запирающее устройство

§ 134. Хлысты на платформе располагают поштучно или пачками так, чтобы в штабеле половина комлей была в одну сторону, а половина в другую (враскомлевку).

Разность высот погруженного штабеля, замеренная по его концам и посередине, не должна превышать 300 мм. Возвышение хлыстов над стойками или кронштейнами не допускается. Каждый хлыст, уложенный на платформу у стоек, должен быть ограничен не менее чем тремя стойками. Выход концов этих хлыстов за стойки или поворотные кронштейны в продольном направлении должен быть не менее 1 м.

Рис. 2.87:

1 - вороток; 2 - рычаги; 3 - валик; 4 - кронштейн

Укладка хлыстов, особенно в торцовой (комлевой) части, должна быть плотной, чтобы исключалась возможность выхода отдельных единиц хлыстов из штабеля в процессе перевозки и обеспечивалось полное использование вместимости платформы.

При размещении штабеля с выходом за лобовой брус платформы смещение отдельных хлыстов относительно штапеля не допускается. Укладка в штабель хлыстов с необрубленными сучьями или хлыстов, имеющих значительную кривизну (при длине хлыста 24 м стрела прогиба более 1 м, при длине 10 м - более 0,5 м), не допускается.

§ 135. Для обеспечения механизированной выгрузки каждую пачку отделяют от нижележащей двумя деревянными поперечными прокладками высотой 80 - 100 мм и шириной не менее 150 мм или тросовыми прокладками диаметром 19 - 22 мм.

На одной платформе могут применяться только тросовые или только деревянные прокладки.

Деревянные прокладки должны иметь длину, равную ширине штабеля хлыстов, и укладываться на расстояние не менее 300 мм от стоек. При этом они должны быть прижаты грузом так, чтобы исключалась возможность их выхода за пределы габарита штабеля в пути следования.

Концы тросовой прокладки должны быть прикреплены к хлыстам проволокой диаметром не менее 4 мм в одну нить. Концы этой увязки закручиваются не менее чем на три витка. Длина концов проволоки после скручивания не должна превышать 50 мм, и они должны быть повернуты в сторону хлыстов.

Прикрепление каждого конца тросовой прокладки к хлыстам производится не менее чем двумя гвоздями диаметром не менее 5 мм, длиной 120 - 150 мм. Гвозди вбивают на 1/3 длины в хлысты с размещением их внутри коуша (петли), вплотную к тросу, отгибая остальную часть гвоздя наружу (см. рис. 2.85).

По согласованию грузоотправителя с грузополучателем погрузка хлыстов может быть произведена без прокладок.

Рис. 2.88:

1 - боковая стойка; 2 - наставка стойки; 3 - стягивающая цепь; 4 - фигурное звено; 5 - запирающее устройство

§ 136. Платформа должна загружаться хлыстами до полного использования габарита погрузки. Отгрузка хлыстов с неполным использованием вместимости платформы не допускается.

§ 137. На принадлежащих грузоотправителю (грузополучателю) четырехосных специальных лесовозных платформах с допускаемой загрузкой 67 т, оборудованных наставками стоек, с использованием зонального габарита погрузки, древесину в хлыстах размещают согласно § 133 - 135 настоящей главы до высоты 4700 мм по всей длине штабеля (рис. 2.88).

После окончания погрузки-выгрузки цепи противоположных нарощенных стоек должны быть соединены между собой имеющимся на их концах специальным запирающим устройством. Замковое кольцо рычага должно быть зафиксировано отожженной проволокой диаметром 3 - 4 мм. Выбор необходимой длины стяжки при погрузке осуществляется за счет фигурного звена.

§ 138. В целях обеспечения сохранности платформы грузоотправители обязаны при погрузке и выгрузке не допускать ударов хлыстов по стойкам, поворотным кронштейнам и раме платформы. Запрещается резкое опускание без торможения пачек хлыстов на платформу с высоты более 0,5 м.

§ 139. Грузоотправители несут ответственность за правильность погрузки и крепления хлыстов, прокладок и техническое состояние крепежных устройств специальных платформ (стоек, кронштейнов цепей и гребенок), а грузополучатели - за очистку, техническое состояние платформ после их выгрузки, а также за правильную фиксацию поворотных кронштейнов и цепей в соответствии с требованиями § 132 и 137. Использование под погрузку, а также предъявление к перевозке порожних платформ с неисправными крепежными устройствами не допускается.

§ 140. Погрузка (разгрузка) хлыстов на указанный подвижной состав осуществляется на подъездных путях грузоотправителя (грузополучателя) и его средствами.

Глава 3

РАЗМЕЩЕНИЕ И КРЕПЛЕНИЕ МЕТАЛЛОПРОДУКЦИИ И МЕТАЛЛОЛОМА

Общие положения

§ 1. Настоящими техническими условиями устанавливаются способы размещения и крепления на открытом подвижном составе сортового и листового металла различных профилей, металлических слитков, блюмсов, слябов, изложниц, труб и других видов металлопродукции и металлолома. При этом должны максимально использоваться грузоподъемность или вместимость вагона с учетом допускаемого перегруза.

При наличии в последующих параграфах данной главы отступлений от Общих положений необходимо руководствоваться требованиями, предусмотренными в соответствующих параграфах.

§ 2. При погрузке в полувагоны металлопродукцию укладывают на поперечные деревянные подкладки из досок (горбылей) сечением не менее 40×100 мм и длиной, равной внутренней ширине полувагона. Подкладки размещают на поперечных балках рамы полувагона. Допускается применять подкладки, по высоте составленные из двух досок, соединенных между собой не менее чем тремя гвоздями.

§ 3. Люковые закидки фиксируют сектором и увязывают за запорные угольники проволокой диаметром не менее 4 мм в один оборот с закруткой концов проволоки в три витка при помощи металлической пластинки (для проволочных закруток) в случаях, предусмотренных настоящей главой.

Концы проволоки должны быть не более 90 - 100 мм и загнуты внутрь к люку полувагона.

§ 4. При погрузке металлопродукции на платформы с закрытыми торцовыми бортами устанавливают по две пары торцовых стоек. Если платформа оборудована клиновыми запорами торцовых бортов, короткие торцовые стойки можно не устанавливать.

Если высота погрузки превышает торцовые борта, то их наращивают досками (горбылями) толщиной не менее 35 мм, прибиваемыми вплотную друг к другу с внутренних сторон торцовых стоек гвоздями. Доски (горбыли) по длине должны быть равны торцовому борту платформы или быть более ширины груза на 150 мм с каждой его стороны. Каждую доску (горбыль) прибивают к обеим торцовым стойкам четырьмя гвоздями (по два гвоздя на стойку). Концы гвоздей должны входить в стойки на глубину не менее 40 мм.

При погрузке металлопродукции не выше продольных бортов платформ противоположные их секции увязывают между собой проволокой диаметром не менее 6 мм в пять нитей в трех местах за увязочные крюки.

Взамен поперечной проволочной увязки боковые борта платформы допускается укреплять боковыми стойками, каждую из средних секций продольных бортов укрепляют двумя стойками, а каждую из крайних - одной стойкой, устанавливаемой во второе стоечное гнездо, считая от торцового борта платформы. Высота боковых стоек должна быть равна высоте продольных бортов платформы или больше (до 200 мм).

Допускается грузить металлопродукцию на платформы в пределах продольных бортов, оборудованных клиновыми запорами, без увязки бортов и постановки коротких боковых стоек.

Штабеля листового металла размещают таким образом, чтобы смещение общего центра тяжести не превышало величин, указанных в § 3 главы 1 ТУ.

§ 5. Для обеспечения механизированной погрузки и выгрузки допускается укладывать металлопродукцию на одиночных платформах и полувагонах с применением подкладок (отделяющих груз от пола вагона) и прокладок (отделяющих пачки или единицы груза друг от друга), а также в тех случаях, когда такие подкладки и прокладки не предусмотрены настоящими Техническими условиями. Подкладки и прокладки укладывают равномерно по длине груза и симметрично относительно середины вагона.

§ 6. При размещении сортового металла по всей площади пола полувагона допускается погрузка пачек этого металла в пределах длины вагона без применения подкладок.

§ 7. Во всех случаях погрузки сортового металла без подкладок пачки должны иметь дополнительные хомутовые обвязки для производства погрузочно-разгрузочных работ. Ответственность за прочность хомутовых обвязок несет грузоотправитель.

Рис. 3.1:

1 - доски щита; 2 - проволока; 3 - вертикальный брусок толщиной не менее 20 мм и шириной не менее 70 мм; 4 - гвозди длиной 75 - 100 мм

§ 8. При расположении металла длинной стороной вдоль вагона деревянные торцовые двери по высоте погрузки ограждают щитами (рис. 3.1) из досок толщиной не менее 30 мм и длиной, равной ширине полувагона. Щит крепится к торцовым дверям вагона проволокой диаметром 4 мм в два оборота за верхние увязочные кольца с наружной стороны полувагона; вертикальные бруски щита должны располагаться со стороны груза.

Разрешается грузить металл пачками, связками и пакетами.

Пачка - обвязанный проволокой или металлической лентой металл мерной длины с отклонениями по длине в соответствии со стандартами.

Связка - укрупненное грузовое место, сформированное из сортового металла (прутки, трубы и др.), обвязанного проволокой или металлической лентой.

Пакет - укрупненное грузовое место, сформированное из отдельных единиц груза, скрепленных между собой с помощью универсальных или специальных пакетирующих средств.

Сортовая прокатная сталь

§ 9. Отдельные единицы сортовой стали (сталь полосовая, круг, шестигранник, уголок, швеллер, зет, арматурно-периодический профиль, узкоколейные рельсы и др.) в пачках должны быть уложены параллельно друг другу без перекрещивания. Каждую пачку сортовой стали (профиль до 180 мм) увязывают поперечными обвязками из проволоки диаметром не менее 6 мм в две нити при длине металла до 6000 мм в двух местах, а при большей длине металла - в трех местах.

Каждую пачку сортовой стали (профиль более 180 мм) увязывают поперечными обвязками из проволоки диаметром 6 мм в две нити при длине металла до 9000 мм в двух местах, а при большей длине - в трех местах.

Выход отдельных единиц из штабеля или связки в сторону торцовой двери допускается не более 200 мм.

Швеллер, балку, квадратную заготовку (профиль до 50 мм) и полосовую сталь шириной до 200 мм увязывают в пачки поперечными обвязками из проволоки диаметром не менее 6 мм в две нити. При длине металла до 6000 мм обвязки устанавливают в двух местах, а при большей длине - в трех местах. Отдельные единицы стали в пачках должны быть уложены плотно друг к другу без перекрещивания.

Каждую пачку швеллеров, балок, квадратной заготовки (профиль более 50 мм) увязывают при длине металла до 9000 мм в двух местах, а при большей длине - в трех местах.

Швеллеры, балки и квадратные заготовки длиной более 5000 мм (профиль более 50 мм) можно перевозить поштучно.

Узкоколейные рельсы грузят на четырехосные платформы пачками весом 3 - 5 т. Каждую пачку увязывают в трех местах проволокой диаметром не менее 6 мм в две нити, затем устанавливают на три подкладки сечением не менее 25×100 мм, длиной, равной ширине платформы. Крепление аналогично погрузке сортового металла в пачках.

§ 10. Сортовой металл длиной до 6500 мм (профиль до 180 мм) размещают на платформе в два или несколько штабелей (рис. 3.2), располагаемых последовательно вдоль платформы и ограждают при наличии борта с продольными гофрами и клиновыми запорами двумя способами:

по две стойки устанавливают на каждую секцию борта с каждой стороны;

одну пару стоек устанавливают на каждую секцию борта и противоположные стойки увязывают попарно проволокой диаметром 6 мм в пять нитей.

При размещении сортового металла на платформе с боковыми бортами, вертикальными гофрами и закидками крепление производится постановкой на каждую секцию с каждой стороны платформы двух стоек и увязкой противоположных стоек попарно проволокой диаметром 6 мм в три нити.

Рис. 3.2:

1 - боковые стойки; 2 - увязка стоек; 3 - доски торцового ограждения; 4 - торцовые стойки

Сортовой металл длиной до 6500 мм можно размещать в два яруса (см. рис. 3.2):

нижний ярус состоит из двух штабелей, верхний ярус - из одного (рис. 3.3). При этом на каждую секцию борта с каждой стороны платформы устанавливается по одной стойке. Противоположные стойки попарно увязывают проволокой диаметром 6 мм в пять нитей;

нижний ярус состоит из трех штабелей, верхний ярус - из двух, укладываемых на средний штабель нижнего яруса (рис. 3.4). При этом устанавливается шесть пар стоек, которые располагаются в первой, второй и четвертой скобах от торцов платформы. Каждая пара противоположных стоек попарно увязывается проволокой диаметром 6 мм в пять нитей. Высота стоек должна соответствовать требованиям § 8 главы 1 ТУ.

Рис. 3.3:

1 - боковые стойки; 2 - увязка стоек; 3 - доски торцового ограждения; 4 - торцовые стойки

Рис. 3.4:

1 - боковые стойки; 2 - увязка стоек; 3 - доски торцового ограждения; 4 - торцовые стойки

§ 11. При погрузке на четырехосные платформы сортовой металл длиной от 6500 до 10500 мм (профиль до 180 мм) укладывают пачками в два штабеля внахлестку посередине платформы, а длиной от 10600 до 13000 мм (профиль до 180 мм) сортовой металл укладывают в один штабель. При этом на каждую секцию борта с каждой стороны платформы устанавливается одна стойка. Противоположные стойки попарно увязываются проволокой диаметром 6 мм в пять нитей.

§ 12. Сортовой металл длиной от 13100 до 13700 мм (профиль до 180 мм) размещают на платформе с откинутыми на кронштейны торцовыми бортами. Штабель груза укладывают на две поперечные подкладки сечением не менее 135×200 мм и длиной 2600 мм. Подкладки размещают над шкворневыми балками. Каждую подкладку закрепляют со стороны торцового борта тремя, а с противоположной стороны двумя упорными брусками сечением не менее 35×50 мм и длиной не менее 200 мм, каждый из которых прибивают к полу платформы двумя гвоздями длиной не менее 100 мм (рис. 3.5).

Рис. 3.5:

1 - боковые стойки; 2 - увязка стоек; 3 - обвязка штабеля; 4 - упорные бруски; 5 - подкладки; 6 - костыли

Рис. 3.6:

1 - боковые стойки; 2 - увязка стоек; 3 - поперечная проволочная обвязка штабеля; 4 - подкладки

Штабель всего погруженного металла увязывают в двух местах обвязкой из проволоки диаметром 6 мм в четыре нити и закрепляют противоположные концы ее за костыли диаметром 13 мм, вбитые в торцы подкладок. Противоположные стойки, вставленные в первые боковые стоечные скобы, увязывают проволокой диаметром 6 мм в пять нитей.

Сортовой металл длиной от 13800 до 15000 мм грузят на одиночные четырехосные платформы одинаковыми двусторонними свесами и с прикрытием их платформами с попутным грузом.

При длине металла от 13800 до 14000 мм допускается в виде исключения погрузка со свесами разной длины. Груз может выступать по длине платформы за лобовой брус с одной стороны не более 400 мм. Размещают и укрепляют металл указанных размеров порядком, предусмотренным для металла длиной от 13100 до 13700 мм.

§ 13. Пачки сортового металла длиной до 14000 мм (профиль более 180 мм) размещают в один штабель.

Если высота погрузки превышает продольные борта платформы, то каждый штабель обвязывают проволокой диаметром 6 мм в две нити в двух местах на одинаковом расстоянии 400 - 500 мм от концов штабеля.

Пачки сортового металла (профиль более 180 мм), превышающие длину платформы, допускается размещать с выходом за лобовые брусья платформы не более чем на 400 мм (рис. 3.6). Металл укладывают пачками в один штабель на три поперечные подкладки сечением не менее 50×100 мм: две подкладки укладывают над шкворневыми балками, а третью - посередине платформы.

Рис. 3.7

Рис. 3.8

Штабель груза укрепляют тремя поперечными обвязками из проволоки диаметром 6 мм в две нити. Обвязки располагают с одной из сторон от подкладок на расстоянии не более 100 мм. В две крайние скобы от торцов с каждой стороны платформы вставляют деревянные стойки с увязкой противоположных стоек попарно проволокой диаметром 6 мм в пять нитей.

Рис. 3.9:

1 - торцовое ограждение; 2 - подкладки

§ 14. Сортовой металл длиной от 1100 до 1400 мм (профиль до 80 мм) размещают поперек вагона в два продольных ряда вплотную к торцовым и боковым бортам в несколько ярусов по высоте. Если при полном использовании грузоподъемности верхний ярус будет неполным, то сортовой металл в этом ярусе укладывают в один продольный ряд над хребтовой балкой (рис. 3.7);

сортовой металл длиной от 1500 до 2300 мм (профиль до 80 мм) укладывают вдоль вагона в несколько штабелей с равномерным размещением по всей площади пола (рис. 3.8);

сортовой металл длиной от 2400 до 5900 мм (профиль до 80 мм) размещают вдоль вагона в два и более штабелей с опорой на подкладки сечением не менее 40×100 мм, которые укладывают на всех поперечных палках полувагона (рис. 3.9). При погрузке металла в четыре штабеля концы крайних штабелей, расположенных у торцов полувагона, должны опираться на подкладки, уложенные между торцами крышек люков у торцовых порожков. При погрузке металла длиной от 2400 до 2700 мм зазоры между штабелями должны заполняться металлом, уложенным поперек вагона (рис. 3.10);

сортовой металл длиной от 5000 до 5850 мм поштучно и в связках размещают по длине вагона двумя штабелями (рис. 3.11) в один или несколько ярусов по высоте. Деревянные торцовые двери ограждают щитами. Щит закрепляют за верхние обвязочные устройства проволокой;

сортовой металл длиной от 6000 до 8900 мм (профиль до 80 мм), кроме швеллеров и балок, размещают вдоль полувагона в два штабеля по длине с укладкой концов пачек в середине вагона внахлестку и с опорой на подкладки сечением не менее 40×100 мм, уложенные на поперечные балки (рис. 3.12). Концы штабелей располагают вплотную к дверям, огражденным по высоте погрузки деревянными щитами;

сортовой металл длиной от 6000 до 8900 мм (профиль 80 мм и более), кроме швеллеров и балок, размещают в один штабель по длине со смещением средних пачек вплотную к одной торцовой двери, а крайних вплотную к противоположной торцовой двери полувагона (рис. 3.13). При этом подкладки сечением не менее 40×100 мм укладывают на все поперечные балки полувагона. Пачки второго яруса размещают аналогично первому ярусу;

сортовой металл длиной 9000 - 12000 мм размещают вдоль вагона в один штабель (рис. 3.14). При этом сортовой металл длиной от 9000 до 10000 мм размещают на четыре подкладки сечением не менее 40×100 мм, уложенные на шкворневые и промежуточные поперечные балки. Сортовой металл длиной от 10100 до 12000 мм размещают на две подкладки сечением не менее 40×100 мм, уложенные на шкворневые балки полувагона.

Щиты по схемам (см. рис. 3.8 - 3.14) устанавливаются на вагоны в соответствии с требованиями § 8 настоящей главы.

Рис. 3.10:

1 - торцовое ограждение; 2 - подкладки

Рис. 3.11:

1 - деревянный щит; 2 - сортовой металл; 3 - обвязка пачек

Рис. 3.12:

1 - торцовое ограждение; 2 - подкладка

Рис. 3.13:

1 - торцовое ограждение; 2 - подкладки; 3 - поперечная обвязка

Рис. 3.14:

1 - торцовое ограждение; 2 - подкладка

Рис. 3.15:

1 - деревянный щит; 2 - квадратная заготовка; 3 - подкладка

§ 15. Квадратная заготовка длиной от 3000 до 3600 мм со стороной от 60 до 150 мм, поставляемая в связках или пачках, может размещаться по длине полувагона следующим образом. Вначале укладывают в середине вагона в один ярус два штабеля горизонтально, высота которых над уровнем пола не должна превышать 200 - 300 мм (рис. 3.15). Затем на них укладывают наклонно в сторону торцовых дверей еще два штабеля. Концы наклонных штабелей должны касаться ограждающего щита или металлической двери. Вплотную к ограждающему щиту на пол вагона укладывается по всей ширине вагона подкладка сечением не менее 40×100 мм.

Квадратная заготовка длиной от 3610 до 4000 мм со стороной от 60 до 150 мм, поставляемая в связках или пачках, размещается по длине вагона тремя штабелями (рис. 3.16) в один и более ярусов. Деревянные двери полувагонов ограждаются щитами.

Рис. 3.16:

1 - деревянный щит; 2 - квадратная заготовка

Рис. 3.17:

1 - деревянный щит; 2 - квадратная заготовка; 3 - подкладка

Квадратная заготовка длиной от 4100 до 5400 мм со стороной от 60 до 150 мм, поставляемая в связках или пачках, может размещаться следующим образом. Вначале укладывают в середине вагона один штабель горизонтально (рис. 3.17) в один ярус, высота которого над уровнем пола не должна превышать 200 - 300 мм. Затем на этот штабель с двух сторон с наклоном к торцовым дверям укладывают еще два штабеля. Вес этих двух штабелей должен быть одинаковым. Торцовые двери с деревянной обшивкой ограждают щитами из досок.

Концы наклонных штабелей со стороны дверей вагона опираются на доску сечением не менее 40×100 мм и соприкасаются с досками ограждающего щита.

Квадратная заготовка в пачках, поштучно или в связках длиной от 5860 до 8000 мм со стороной от 60 до 150 мм размещается по длине вагона двумя штабелями: один горизонтально вплотную к одной двери, другой наклонно к другой двери. Под наклонный штабель вплотную к порожку или щиту укладывают доску сечением не менее 40×150 мм и длиной, равной ширине вагона. Деревянные торцовые двери ограждают щитами (рис. 3.18).

Квадратную заготовку поштучно, в пачках или связках длиной от 8100 до 11800 мм со стороной от 60 до 150 мм размещают по длине вагона со смещением ярусов к торцовым дверям (рис. 3.19). Под последний ярус на расстоянии 1000 мм от конца укладывается прокладка высотой 100 - 120 мм. Она может быть из горбыля или досок, составленных по толщине и длине.

Квадратная заготовка длиной от 5410 до 5850 мм со стороной от 60 до 150 мм, поставляемая поштучно, размещается по длине вагона двумя штабелями в один или более ярусов (рис. 3.20). Неполное количество заготовок в последнем ярусе размещают с раздвижкой к боковым стенам полувагона.

Рис. 3.18:

1 - деревянный щит; 2 - квадратная заготовка; 3 - обвязка пачек; 4 - подкладка

Рис. 3.19:

1 - деревянный щит; 2 - квадратная заготовка; 3 - обвязка пачек; 4 - прокладка

Квадратную заготовку длиной 8700 - 11500 мм со стороной от 60 до 150 мм размещают в полувагоне в один штабель по длине, в несколько рядов по ширине и в несколько ярусов по высоте погрузки (рис. 3.21 и 3.22) с укладкой от торцовой двери с отступлением на 200 мм.

Если квадратная заготовка размещается в вагоне в нечетное число ярусов по высоте, все ярусы заготовок, кроме верхнего, укладывают с переменным их смещением к торцовым дверям вагона. Верхний ярус размещают в середине вагона симметрично относительно поперечной и продольной осям вагона (см. рис. 3.21).

Если грузоподъемность вагона реализуется загрузкой заготовок в четное количество ярусов, то в этом случае в первом ярусе от пола вагона и в верхнем размещают заготовки посередине вагона симметрично продольной и поперечной осям. Промежуточные ярусы размещают с переменным смещением к торцовым дверям вагона (см. рис. 3.22).

Рис. 3.20:

1 - деревянный щит; 2 - квадратная заготовка

Рис. 3.21

Квадратную заготовку длиной до 12000 мм со стороной от 60 до 150 мм размещают в полувагоне одним штабелем по длине, в несколько ярусов по высоте и в несколько рядов по ширине вагона (рис. 3.23). Штабель заготовок размещают симметрично продольной и поперечной осям вагона с равномерной загрузкой его тележек. Если в верхний ярус укладывают неполное количество рядов, то квадратную заготовку в этом случае размещают над хребтовой балкой.

Торцовые двери с деревянной обшивкой ограждают щитами в соответствии с требованиями § 8 настоящей главы.

§ 16. Сортовой металл, упакованный в пачки, длиной от 12000 до 12500 мм размещают вдоль четырехосного полувагона с одной открытой торцовой дверью. Штабель укладывают на четыре подкладки. Одну из них сечением 140×140 мм укладывают со стороны открытой двери у лобового бруса с внутренней стороны порожка (как показано на рис. 3.24), две следующие сечением 40×100 мм - на промежуточные поперечные балки и четвертую - на шкворневую балку. Штабель в двух местах обвязывают проволокой диаметром 6 мм в четыре нити, закрепляемые за нижние косынки вагона. Общий вес штабеля длиной 12500 мм, размещенного в полувагоне, должен соответствовать требованиям табл. 1.14 главы 1 ТУ.

Закрытая торцовая дверь с деревянной обшивкой по высоте погрузки ограждается щитом, который крепится проволокой за верхние увязочные кольца.

Рис. 3.22

Рис. 3.23

§ 17. Шпунтовые сваи длиной до 13300 мм на платформы грузят следующим порядком (рис. 3.25):

на пол платформы укладывают три поперечные подкладки из досок (горбыля) сечением не менее 25×100 мм и длиной, равной ширине платформы. Две подкладки укладывают над шкворневыми балками платформы, а третью - посередине между ними;

на подкладки вдоль платформы укладывают первый ряд шпунтовых свай. Сваи укладывают по всей ширине платформы вплотную одна к другой. На сваи первого ряда (над подкладками) укладывают прокладки сечением не менее 25×100 мм и длиной, равной ширине штабеля. На прокладки укладывают второй ряд шпунтовых свай и в таком же порядке - последующие ряды. Сваи каждого ряда укладывают одну над другой, не допуская их перекрещивания;

каждый погруженный штабель свай увязывают в трех местах хомутами из проволоки диаметром 6 мм в четыре нити. Хомуты располагают на расстоянии 100 - 150 мм от прокладок.

Рис. 3.24:

1 - утолщенные подкладки; 2 - проволочная обвязка штабеля; 3 - подкладки

Рис. 3.25:

1 - торцовые стойки; 2 - доски торцового щита; 3 - растяжки торцовых стоек; 4 - увязка боковых стоек; 5 - боковые стойки; 6 - проволочные хомуты; 7 - прокладки; 8 - подкладки

Если погруженный штабель свай выше торцовых бортов платформ, то устанавливают торцовые щиты, превышающие штабель по высоте на 100 мм. Для этого к торцовым стойкам со стороны груза прибивают вплотную одна к другой доски толщиной не менее 50 мм (или горбыли толщиной 60 мм) и длиной, равной ширине платформы. Кроме того, торцовые стойки увязывают за вторые боковые стоечные скобы платформы, считая от торцовых бортов, проволокой диаметром 6 мм в шесть нитей. Стойки, установленные в первые и третьи скобы от торца платформы, должны быть выше груза на 100 - 200 мм. Противоположные стойки попарно увязывают проволокой диаметром 6 мм в пять нитей.

§ 18. Шпунтовые сваи длиной от 13400 до 20000 мм грузят на платформы следующим образом (рис. 3.26).

Шпунтовые сваи длиной от 13400 до 14200 мм укладывают на три поперечные подкладки вплотную одна к другой по всей ширине платформы. Две подкладки укладывают над шкворневыми балками платформы, а третью посередине между ними. На сваи нижнего ряда укладывают без прокладок строго один над другим последующие ряды свай.

Весь погруженный штабель свай увязывают четырьмя проволочным хомутами, два из которых устанавливают на расстоянии не более 100 мм от крайних подкладок со стороны, обращенной к середине платформы, два других - на расстоянии 1500 мм от средней подкладки, и, кроме того, двумя металлическими хомутами из швеллера, каждый из которых устанавливают на расстоянии 300 мм от крайних подкладок со стороны, обращенной к середине платформы. Шпунтовые сваи длиной от 14300 до 20000 мм грузят с одинаковыми свесами с обеих сторон несущей платформы. Со стороны каждого такого свеса груза устанавливают платформу прикрытия, составляя сцеп из трех платформ.

Рис. 3.26:

1 - проволочные хомуты; 2 - подкладки; 3 - упорные бруски; 4 - хомуты из швеллера; 5 - стяжной болт хомута из швеллера; 6 - проволочные растяжки; 7 - боковые стойки; 8 - проволочное крепление боковых стоек; 9 - железнодорожные костыли

На пол платформы укладывают четыре поперечные подкладки (две крайние - на расстоянии 650 мм от торцовых бортов платформы, две средние - каждая на расстоянии 2000 мм от середины платформы).

На подкладки укладывают вплотную одна к другой шпунтовые сваи, при этом между крайними сваями и боковыми бортами платформы оставляют зазор не менее 300 мм. По всей высоте штабеля сваи укладывают одна на другую без прокладок. Каждый штабель свай крепят двумя П-образными хомутами из швеллеров и хомутами из проволоки диаметром 6 мм в четыре нити. Число последних в штабеле должно быть: при длине свай до 15000 мм - 6 хомутов, 17000 мм - 8 и 20000 мм - 10 хомутов.

Хомуты из швеллеров устанавливают на расстоянии 300 мм от крайних подкладок в направлении к середине платформы.

Проволочные хомуты размещают следующим образом:

а) при креплении штабеля шестью хомутами два из них устанавливают на расстоянии 750 мм по обе стороны от середины платформы и четыре - на расстоянии не более 100 мм от каждой подкладки со стороны, обращенной к середине платформы;

б) при креплении штабеля восемью хомутами шесть из них размещают, как указано в п. «а», а два - на расстоянии не менее 1350 мм от концов свеса груза;

в) при креплении штабеля 10 хомутами восемь из них размещают, как указано в п. «б», а два - на расстоянии 3000 мм от концов свеса груза.

Шпунтовые сваи длиной более 13 м закрепляют железнодорожными костылями, которые прибивают по одному на каждой подкладке с обеих сторон штабеля.

Поперечные подкладки должны иметь высоту 220 мм, ширину нижнего основания 250 мм (допускается применение двух брусков высотой 220 мм и шириной опорной поверхности 125 мм каждый, установленных вплотную один к другому и скрепленных четырьмя строительными скобами диаметром стержня 10 - 15 мм по две скобы с каждой стороны) и длину, равную ширине платформы.

Рис. 3.27:

1 - швеллер; 2 - стяжной болт; 3 - гайка; 4 - контргайка; 5 - шайба

Каждую поперечную подкладку дополнительно закрепляют четырьмя упорными брусками (по два с каждой стороны) сечением 50×100 мм и длиной 200 мм. Упорный брусок прибивают к полу платформы четырьмя гвоздями длиной 100 мм.

Для увязки штабеля применяют хомуты из четырех нитей проволоки диаметром 6 мм. П-образные хомуты изготовляют из швеллеров № 20. Хомут должен охватывать с трех сторон штабель свай; в верхней части хомут стягивают болтом диаметром 28 мм с шайбами, гайками и контргайками (рис. 3.27). Болт необходимо располагать на расстоянии не более 50 мм от груза.

Допускается крепление шпунтовых свай хомутами, изготовленными из двутавровых балок, охватывающих штабель по высоте, со стягивающими болтами диаметром 28 мм с шайбами, гайками и контргайками, охватывающими штабель по ширине (сверху и снизу).

Штабель свай закрепляется четырьмя растяжками из проволоки диаметром 6 мм в четыре нити. Каждую такую растяжку одним концом увязывают за верхний болт швеллерного хомута, а другим - за боковую стоечную скобу платформы.

При длине свай до 15000 мм должны быть установлены четыре пары боковых стоек, а при длине свай до 20000 мм - шесть пар. Противоположные боковые стойки попарно увязываются проволокой диаметром 6 мм в две нити.

Платформы прикрытия сцепа могут быть загружены попутным грузом.

§ 19. При погрузке рельсов на одиночные четырехосные платформы устанавливают по четыре пары стоек.

Стойки, установленные на платформе, должны быть выше груза на 100 - 200 мм. Противоположные стойки попарно увязывают проволокой диаметром 6 мм в пять нитей. В торцах платформы устанавливают две короткие стойки.

§ 20. Железнодорожные рельсы длиной до 12500 мм включительно с болтовыми отверстиями грузят на четырехосные платформы. При этом на пол платформы укладывают по три поперечные подкладки из досок или горбылей толщиной не менее 25 мм, шириной не менее 100 мм и длиной, равной ширине платформы.

Две подкладки укладывают над шкворневыми балками, а третью - посередине платформы.

Первый ряд рельсов укладывают на подкладки подошвами вниз. Концы рельсов выравнивают по болтовым отверстиям. Подошвы рельсов должны плотно прилегать друг к другу. Рельсы второго ряда укладывают подошвами вверх так, чтобы их головки не закрывали первых болтов отверстий нижнего ряда. Концы рельсов второго ряда выравнивают по болтовым отверстиям с противоположной стороны. Третий ряд укладывают, как первый, четвертый - как второй, и т.д.

Между каждыми двумя рядами рельсов укладывают по три прокладки длиной, равной ширине погрузки, и сечением не менее 25×100 мм. Рельсы в каждом ряду увязывают через болтовые отверстия проволокой диаметром не менее 6 мм в две нити. Проволоку, пропущенную в болтовые отверстия рельсов первого ряда, одним концом выпускают у крайнего рельса наружу. Второй конец проволоки после выхода из болтового отверстия противоположного крайнего рельса перегибают по головкам четырех рельсов, затем пропускают в болтовые отверстия следующих рельсов и, не доходя четырех головок рельсов до конца, выпускают наверх по головкам до крайнего рельса, где и увязывают с первым концом проволоки (рис. 3.28).

Второй ряд рельсов увязывают аналогично первому, причем проволока после выхода из болтовых отверстий должна проходить по головкам рельсов внизу (рис. 3.29). Третий ряд увязывают так же, как и первый, четвертый - как второй, и т.д. Верхний ряд рельсов, если он будет нечетным, увязывают с обоих концов. При погрузке рельсов на одиночные платформы должны быть выполнены требования § 19 данной главы.

§ 21. Разрешается погрузка рельсов разной длины при соблюдении следующих условий: в нижнем ряду укладывают рельсы одинаковой длины, наибольшей из числа предъявленных к перевозке, во втором ряду (головками вниз) - короткие рельсы. Рельсы нижнего ряда увязывают через болтовые отверстия с обеих сторон.

При перевозке рельсов разной длины допускается погрузка их с рельсовыми накладками, прикрепленными болтами по концам. В таких случаях увязку производят через болтовые отверстия накладок.

Рис. 3.28

Рис. 3.29

Рис. 3.30:

1 - торцовое ограждение; 2 - прокладки; 3 - подкладки; 4 - утолщенная подкладка; 5 - растяжки

§ 22. Железнодорожные рельсы длиной до 11500 мм грузят в четырехосные полувагоны аналогично сортовому металлу длиной до 11500 мм. Рельсы длиной от 11500 до 12500 мм включительно грузят в четырехосные полувагоны с одной открытой торцовой дверью (рис. 3.30). На шкворневые балки полувагона укладывают две подкладки длиной по ширине полувагона, при этом подкладка со стороны закрытой торцовой двери должна иметь сечение не менее 40×100 мм, а со стороны открытой - 100×150 мм.

Размещение рельсов, подкладок и прокладок в штабеле, увязка рельсов через болтовые отверстия по рядам аналогичны погрузке рельсов на платформе § 20 настоящей главы.

Закрытые деревянные торцовые двери ограждают щитами порядком, укатанным в § 8 настоящей главы.

Два верхних ряда рельсов со стороны открытой торцовой двери закрепляют через болтовые отверстия двумя растяжками из проволоки диаметром 6 мм в четыре нити за нижние увязочные косынки, а при отсутствии их - за наружные скобы крайнего люка полувагона.

Общий вес штабеля длиной 12500 мм не должен превышать величин, указанных в табл. 1.14 главы 1 ТУ.

§ 23. Трамвайные рельсы грузят на четырехосные платформы следующим порядком (рис. 3.31):

на пол платформы укладывают три поперечные подкладки сечением не менее 50×150 мм и длиной, равной расстоянию между боковыми бортами. Две подкладки укладывают над шкворневыми балками платформы, а третью - посередине между ними;

на подкладки вплотную друг к другу по всей ширине платформы укладывают рельсы правильными горизонтальными рядами подошвами вниз. Между соседними рядами рельсов над подкладками укладывают по три прокладки из дерева сечением не менее 25×150 мм и длиной, равной ширине штабеля. Два нижних ряда рельсов укрепляют в трех местах поперечными обвязками из проволоки диаметром 6 мм в три нити;

рельсы, уложенные в верхних рядах, выравнивают и увязывают через болтовые отверстия проволокой порядком, предусмотренным § 20 настоящей главы;

верхние ряды рельсов, начиная с третьего ряда, укрепляют каждый четырьмя растяжками из проволоки диаметром 6 мм в две нити. Растяжки увязывают за болтовые отверстия на обоих концах крайних рельсов и за боковые стоечные скобы платформы. При этом растяжки должны быть расположены под углом не более 45° к полу платформы;

штабель груза укрепляют в двух местах поперечными обвязками из проволоки диаметром 6 мм в три нити. В боковые стоечные скобы устанавливают четыре пары стоек, противоположные стойки увязывают попарно проволокой диаметром 6 мм в две нити. В торцах платформы устанавливают две короткие стойки.

Рис. 3.31:

1 - растяжки; 2 - проволочные обвязки нижних рядов рельсов; 3 - проволочная увязка стоек; 4 - боковые стойки; 5 - поперечная проволочная обвязка штабеля; 6 - прокладки; 7 - подкладки

§ 24. Рельсы длиной до 12500 мм включительно, не имеющие болтовых отверстий, размещают на четырехосных платформах и закрепляют следующим порядком.

На пол платформы укладывают три подкладки сечением 50×150 мм и длиной 2700 мм. Первый ряд рельсов укладывают подошвами вниз, рельсы второго ряда укладывают подошвами вверх.

Каждые два ряда рельсов увязывают проволокой диаметром 6 мм в две нити в трех местах. Проволочные увязки располагают на расстоянии не более 100 мм от подкладки и прокладок. Кроме того, весь погруженный штабель рельсов укрепляют тремя поперечными обвязками из проволоки диаметром 6 мм в две нити. Между каждыми двумя рядами рельсов укладывают по три прокладки, равной ширине погрузки и сечением 25×150 мм.

На платформе устанавливают короткие торцовые стойки и четыре пары боковых стоек. Противоположные боковые стойки увязывают попарно проволокой диаметром 7 мм в пять нитей.

§ 25. Остряковые рельсы грузят на одиночные платформы (рис. 3.32) вплотную друг к другу без перекосов и перекрещиваний пачками весом до 5 т.

При погрузке длинномерных остряковых рельсов на четырехосные платформы на пол укладывают три подкладки сечением не менее 50×150 мм и длиной, равной расстоянию между боковыми бортами. Две подкладки укладывают над шкворневыми балками, а третью - посередине вагона.

Остряковые рельсы укладывают на подкладки подошвы вниз правильными горизонтальными рядами. При этом между соседними по высоте рядами над подкладками укладывают по три поперечных прокладки из дерева сечением не менее 25×150 мм и длиной, равной ширине погрузки. Каждые два ряда рельсов укрепляют тремя поперечными обвязками из проволоки диаметром 6 мм в четыре нити. Штабель груза укрепляют тремя поперечными обвязками из проволоки диаметром 6 мм в две нити. Крайние обвязки располагают от концов штабеля на расстоянии 1 - 1,5 м. На платформе устанавливают короткие торцовые стойки и четыре пары боковых стоек с увязкой противоположных стоек попарно проволокой диаметром 6 мм две нити.

Рис. 3.32:

1 - проволочные обвязки каждых двух рядов рельсов; 2 - поперечные проволочные обвязки штабеля; 3 - проволочная увязка стоек; 4 - боковые стойки; 5 - прокладки; 6 - подкладки; 7 - короткие торцовые стойки

Рис. 3.33:

1 - подкладки; 2 - утолщенные прокладки; 3 - накладки; 4 - подкладки; 5 - увязка из проволоки; 6 - проволочный хомут штабеля; 7 - проволочный хомут первого ряда рельсов; 8 - растяжки; 9 - привязка подкладки; 10 - торцовая увязка рельсов каждого ряда, 11 - костыли

§ 26. Рельсы длиной 25000 мм с болтовыми отверстиями грузят на сцепы из двух четырехосных полувагонов (рис. 3.33). На промежуточные поперечные балки каждого полувагона укладывают деревянные подкладки размерами 180×230×2830 мм, которые закрепляют увязками из проволоки диаметром 6 мм в шесть нитей за нижние увязочные косынки. На подкладки укладывают первый сдвоенный ряд рельсов, который увязывают в середине хомутом из проволоки диаметром 6 мм в четыре нити.

На рельсы первого сдвоенного ряда на расстоянии 250 - 300 мм от середины вагона в сторону концов сцепа укладывают две утолщенные поперечные прокладки размерами 150×230×2700 мм. На утолщенные прокладки укладывают верхний пакет рельсов, между каждым рядом которого размещают прокладки сечением 25×100 мм и длиной, равной ширине погрузки, располагаемые, как показано на рис. 3.33. Верхний пакет рельсов увязывают четырьмя хомутами из проволоки диаметром 6 мм в четыре нити, располагаемыми равномерно по всей длине пакета.

По утолщенным прокладкам все ряды рельсов увязывают между собой двумя хомутами из проволоки диаметром 6 мм в шесть нитей. При этом проволочные нити хомутов размещают по обеим сторонам утолщенных прокладок. На верхний ряд рельсов под указанные хомуты укладывают деревянные накладки сечением 50×150 мм с выемками по концам для пропуска хомута.

Рельсы в каждом ряду увязывают по торцам проволокой диаметром 6 мм в две нити. В крайние подкладки и утолщенные прокладки с обеих сторон пакета рельсов забивают по два костыля на расстоянии 5 мм от подошвы крайнего рельса. Утолщенные прокладки на одном из полувагонов сцепа закрепляют четырьмя растяжками из проволоки диаметром 6 мм в шесть нитей за увязочные косынки. Применять для крепления рельсов костыли, бывшие в употреблении, запрещается. Общий вес рельсов при погрузке на сцепы из полувагонов не должен превышать 90 т.

При погрузке внутренние торцовые двери полувагонов сцепа должны быть открыты и закреплены.

Рельсы в каждом ряду должны размещать согласно табл. 3.1.

Таблица 3.1

Ряд рельсов

Число рельсов в ряду

Р50

Р65

1

12

11

2

9

-

3

11

10

4

10

9

5

10

9

6

9

8

7

5

8

8

4

-

Всего

70

55

§ 27. Погрузка и крепление рельсов длиной 25000 мм без болтовых отверстий производятся порядком, аналогичным для рельсов, имеющих болтовые отверстия. При этом для закрепления пакета рельсов применяют восемь рельсов с односторонними отверстиями или четыре рельса с двусторонними отверстиями.

Рельсы с двусторонними болтовыми отверстиями укладывают по одному с каждой стороны второго и третьего сдвоенных рядов, а рельсы с односторонними отверстиями - по два с каждой стороны ряда отверстиями в разные стороны со смещением относительно друг друга на одно отверстие. Рельсы второго и третьего сдвоенных рядов ограждают по торцам увязками из проволоки диаметром 6 мм в две нити с закреплением концов на болтовые отверстия крайних рельсов.

§ 28. Рельсы длиной 25000 мм с болтовыми отверстиями грузят на сцепы из двух четырехосных платформ следующим порядком (рис. 3.34).

До погрузки рельсов на каждую платформу сцепа на расстоянии 2600 мм от поперечной оси платформы укладывают подкладки 1, 5. Подкладка 1 может быть из одного деревянного бруса размером 150×250×2700 мм и может быть составной из двух брусков сечением 135×150 мм, уложенные в пазы из трех отрезков швеллеров № 30 (рис. 3.35), два из которых размещаются по концам подкладки, а один - в середине. Деревянная подкладка 5 из одного бруса имеет те же размеры, что и подкладка 1, а может быть также составной из двух брусков размерами 135×135×2700 мм (рис. 3.36). Сверху на поверхности подкладки 5 прибивают 15 гвоздями длиной 100 мм металлическую накладку размером 4×150×2600 мм, верхнюю часть которой промасливают. Вместо деревянной подкладки 5 может применяться рельс Р50, укладываемый на четыре рельсовые подкладки КБ-50 (рис. 3.37), две из которых должны размещаться над хребтовой балкой. Так же может использоваться вместо деревянной подкладки шахтная стойка, размещаемая на четырех рельсовых подкладках КБ-65 (рис. 3.38).

Каждую подкладку 1, 5 от продольного перемещения закрепляют четырьмя упорными брусками 12 размерами 50×150×200 мм, прибиваемыми к полу платформы пятью гвоздями длиной 150 мм.

На подкладки укладывают первый сдвоенный ряд рельсов, который увязывают посередине погрузки хомутом из проволоки диаметром 6 мм в пять нитей. Число рельсов в рядах указано в табл. 3.2.

Рис. 3.34:

1 - подкладки размерами 150×250×2700 мм; 2, 8 - утолщенные прокладки размерами 150×250×2700 мм; 3 - увязки из проволоки диаметром 6 мм в шесть нитей (хомут); 4 - деревянные накладки сечением 50×150 мм; 5 - деревянная подкладка размером 150×250×2700 мм с металлической накладкой; 6 - увязка из проволоки диаметром 6 мм в пять нитей; 7 - прокладки сечением 25×100 мм; 9 - костыли; 10 - растяжки из проволоки диаметром 6 мм в восемь нитей; 11 - растяжки из проволоки диаметром 6 мм в шесть нитей; 12 - упорные бруски

Рис. 3.35

На рельсы первого ряда размещают на равном расстоянии от подкладок 1, 5 две утолщенные прокладки 2 и 8 размерами 150×250×2700 мм. Зарубки для закрепления растяжек делаются по граням бруса глубиной 30 - 40 мм на расстоянии 100 - 200 мм от концов бруса.

На утолщенные прокладки грузят три сдвоенных ряда рельсов. Между каждым сдвоенным рядом укладывают прокладки сечением 25×100 мм, располагаемые над утолщенными прокладками. Для утолщенных прокладок 2 и 8 разрешается применять брус с шириной боковин и постели не менее 200 мм или два бруса сечением не менее 150×150×2600 мм каждый при условии скрепления их между собой двумя обвязками из проволоки диаметром 6 мм в две нити (рис. 3.39).

Верхних три ряда рельсов увязывают между собой четырьмя хомутами 6 из проволоки диаметром 6 мм в пять нитей, располагаемыми равномерно по всей длине штабеля.

Рис. 3.36

Рис. 3.37

По утолщенным прокладкам все ряды рельсов увязываются между собой двумя хомутами 3 из проволоки диаметром 6 мм в шесть нитей.

При этом проволочные нити хомутов размещают по обеим сторонам утолщенных прокладок. На верхний ряд рельсов под указанные хомуты должны укладываться деревянные накладки 4 сечением 50×150 мм с выемками по концам для пропуска хомута.

Рельсы по торцам в каждом ряду увязывают проволокой диаметром 6 мм в две нити. В нижнем ряду рельсы увязывают по торцам погрузки проволокой диаметром 6 мм в четыре нити, пропущенной через болтовые отверстия двух крайних рельсов и скрученной посередине.

Для предотвращения поперечного перемещения рельсов в подкладки 1 и прокладки 2, 8 с обеих сторон на расстоянии 5 - 7 мм от подошвы крайних рельсов забивают по два костыля 9. Кроме того, второй сдвоенный ряд рельсов на одной из платформ увязывают в промежутке между прокладкой 8 и подкладкой 1 двумя растяжками 11 из проволоки диаметром 6 мм в шесть нитей за ближайшие противоположные стоечные скобы.

Рис. 3.38

Рис. 3.39

Рис. 3.40

Рельсы от продольного сдвига крепят за утолщенную прокладку 2 четырьмя растяжками 10 из проволоки диаметром 6 мм в восемь нитей за средние боковые стоечные скобы платформы. Для удержания растяжек от соскальзывания на прокладках делаются зарубки.

Таблица 3.2

Ряд рельсов

Число рельсов в ряду

Ряд рельсов

Число рельсов в ряду

Р50

Р65

Р75

Р50

Р65

Р75

1

13

11

10

5

12

10

9

2

12

10

-

6

11

9

8

3

13

11

10

7

7

4

8

4

12

10

9

8

6

3

4

 

 

 

 

Всего

86

68

58

Крепление верхнего штабеля рельсом производят четырьмя хомутами 6 из проволоки диаметром 6 мм в шесть нитей. Второй сдвоенный ряд рельсов увязывают двумя растяжками из проволоки диаметром 6 мм в шесть нитей на второй платформе, аналогично позиции 11, при этом растяжки располагают рядом с утолщенной прокладкой и крепят за ближайшие противоположные стоечные скобы.

Средние секции бортов платформ сцепа крепят короткими деревянными стойками круглого сечения. В две пары средних боковых скоб платформы, за которые увязывают растяжки 10 из проволоки, стойки не ставить. На платформах с металлическими бортами, оборудованными клиновыми запорами, стойки также не ставить.

Для крепления штабеля рельсов от продольных перемещений можно вместо способа растяжки 10 использовать способ, приведенный на рис. 3.40. Растяжки в этом случае пропускаются за прокладками, а концы их закрепляются за стоечные скобы. При креплении рельсов Р65 и Р75 таким способом утолщенные прокладки могут иметь высоту 100 мм.

Применяемые подкладки и прокладки должны соответствовать требованиям, предъявляемым к пиломатериалам не ниже третьего сорта по ГОСТ 8486-86Е. Применять для крепления рельсов костыли, бывшие в употреблении, запрещается.

Общий вес рельсов, загруженных на сцеп из двух четырехосных платформ, не должен превышать 110 т. При этом разница в высоте пола платформ не должна превышать 25 мм.

Размещение рельсов показано в табл. 3.2.

Листовой металл

§ 29. В соответствии с ГОСТ 7566-81 листовой металл предъявляется к перевозке:

толщиной до 4 мм включительно - в пачках;

толщиной более 4 мм - в пачках по требованию потребителя;

шириной до 400 мм включительно (лента) - в рулонах или в связках рулонов (стопой), а шириной более 400 мм - в рулонах.

Таблица 3.3

Длина или ширина листа, а также полосы, мм

Минимальное число обвязок

Непромасленный (горячекатаный) лист или полоса

Промасленный (травленый) или холоднокатаный

продольных

поперечных

продольных

поперечных

До 800

1

1

1

1

Свыше 800 до 2000 вкл.

2

2

2

2

Свыше 2000 до 4000

2

3

3

4

Свыше 4000 до 6000

2

4

3

6

Свыше 6000

3

5

4

8

§ 30. Пачки листов обвязывают в продольном и поперечном направлениях лентами равного сечения толщиной не менее 1,5 мм и шириной 30 мм или проволокой диаметром 6 мм не менее чем в две нити. Число и расположение обвязок должно быть не менее, чем указано в табл. 3.3.

В местах огибания обвязками кромок листов, упакованных в пачки, под обвязки укладывают прокладки из листовой стали толщиной 0,8 - 1 мм. Расстояние обвязки от конца пачки должно быть 300 - 500 мм.

Обвязочный материал, количество обвязок, способы натяжения и закрепления их в соответствии с ГОСТ 7566-81 должны обеспечить сохранность пачек и рулонов от рассыпания во время погрузочно-разгрузочных работ и при перевозке. Рулоны горячей смотки ленты толщиной 4 мм при плотном прилегании наружного конца принимаются без обвязки, за исключением требований потребителя.

§ 31. При перевозках качественного (или предназначенного на экспорт) листового металла толщиной до 10 мм каждая пачка может быть уложена на две подкладки из досок или горбылей сечением не менее 35×75 мм. Подкладки могут располагаться вдоль или поперек пачек. Каждую ленточную обвязку пачек прикрепляют к подкладкам двумя гвоздями длиной 50 - 75 мм.

§ 32. Листовой металл промасленный и непромасленный, в пачках и в отдельных листах размещают вдоль и поперек вагона с таким расчетом, чтобы нагрузка на тележки распределялась равномерно, а поперечное смещение общего центра тяжести груза от вертикальной плоскости, в которой находится продольная ось вагона, не превышало 100 мм. Разрешается погрузка пачек разных размеров и веса в одном вагоне для одного грузополучателя. В этом случае загрузка тележек должна быть определена взвешиванием или расчетом.

§ 33. В качестве подкладок и прокладок применяются доски сечением не менее 40×100 мм или горбыли. В необходимых случаях допускается использование составных по высоте и ширине прокладок. Составные части прокладок должны быть соединены между собой в соответствии с § 9 главы 1 ТУ.

§ 34. При размещении пачек листового металла вдоль и поперек полувагона для условий механизации погрузочно-разгрузочных работ допускается между пачками, а также между боковыми стенками полувагонов и пачками свободное расстояние до 80 мм, если это расстояние не указано в описании конкретного способа размещения металла.

Под «размещением пачки вдоль вагона» следует понимать размещение пачки длинной стороной вдоль вагона.

Под «размещением пачки поперек вагона» - размещение пачки длинной стороной поперек вагона. При креплении пачек листового металла проволочными увязками или растяжками следует принимать увязки или растяжки из проволоки диаметром 6 мм.

Пачки металла в последующий ярус размещают только в том случае, если полностью используется площадь полувагона нижним ярусом с учетом размеров пачек. Если пачки в последующем ярусе грузятся в меньшем количестве, чем в предыдущем, то пачки металла последнего яруса размещают двумя группами над тележками вагона на расстоянии 900 - 1100 мм от торцовых дверей, когда это расстояние не предусмотрено конкретной схемой размещения. При общем весе пачек, расположенных в последнем ярусе, меньшем 5 т, крепление их к пачкам нижнего яруса необязательно.

§ 35. При погрузке листового металла назначением на места общего пользования вес отдельных пачек, листов, рулонов, определяется в соответствии с грузоподъемностью механизмов, имеющихся на станции выгрузки или сортировки. Перечень станций, имеющих механизмы с указанием их грузоподъемности, опубликован в Сборнике правил перевозок и тарифов железнодорожного транспорта Союза ССР.

При погрузке листового металла отдельным грузополучателям для механизированной выгрузки грузоотправитель по согласованию с грузополучателем определяет необходимость применения подкладок, прокладок, а также вес отдельных мест.

§ 36. Вес отдельных мест пачек, листов, полос и рулонов (штрипсов) в соответствии с ГОСТ 7566-81 не должен превышать:

80 кг при ручной погрузке;

5, 10, 25, 30, 35 т при механизированной погрузки в соответствии с заказами.

§ 37. Ограждение боковых стен и торцовых дверей в полувагонах с деревянной обшивкой кузова выполняют деревянными брусками, устанавливаемыми вертикально. Длина брусков должна быть на 50 - 100 мм больше высоты погрузки листового металла в местах установки брусков.

Торцовую дверь полувагона ограждают четырьмя брусками сечением не менее 40×100 мм: два из них устанавливают напротив средних, а два других - напротив угловых стоек торцовых дверей.

Каждый деревянный брусок, установленный у торцовых дверей полувагона, закрепляют к деревянной обшивке двумя гвоздями. Длина гвоздей должна быть больше толщины бруска на 20 - 25 мм. Пачки и листы должны быть погружены в полувагон вплотную к брускам, которые установлены у торцовых дверей.

§ 38. При погрузке в полувагоны листового металла, упакованного в пачки с применением подкладок и без них, нагрузки, передаваемые на люк полувагона, не должны превышать 6 т при равномерной передаче нагрузки по всей площади люка, 6 т - при передаче нагрузки через две подкладки длиной не менее 1250 мм, уложенные поперек гофров крышки люка.

При этом расстояние между подкладками, подкладкой и боковой стенкой или хребтовой балкой должно быть в соответствии с § 4 главы 1 ТУ.

Нагрузка на подкладку, уложенную между гофрами люков с опорой ее концов на полки продольных угольников, а серединой подкладки на хребтовую балку, не должна превышать 8,3 т.

Допускается погрузка пачек металла весом до 12 т с опорой на две крышки люков и передачей нагрузки на каждую крышку через подкладки, уложенные порядком, указанным выше.

§ 39. На четырехосные платформы пачки листового металла, покрытого и не покрытого смазкой в зависимости от размеров, укладывают вдоль или поперек платформы группами симметрично поперечной оси платформы. Группы пачек металла, размещенные у торцовых бортов и в центре платформы, должны загружаться в один ярус по высоте. Пачки металла, уложенные в промежутке между группами пачек, загруженных в один ярус (рис. 3.41), размещают в два яруса и увязывают между собой тремя вертикальными поперечными обвязками из проволоки диаметром 6 мм в две нити или двумя поперечными металлическими поясами.

Рис. 3.41:

1 - растяжка; 2 - обвязка пачек; 3 - торцовые стойки

Вдоль торцовых бортов платформ укладывают поперечные упорные бруски сечением 80×80 мм и длиной, равной ширине платформы, и прибивают к полу платформы тремя гвоздями длиной не менее 120 мм.

Если пачки погруженного металла превышают высоту продольных бортов, последние наращивают с обеих сторон в соответствии с требованиями § 4 настоящей главы.

Пачки металла, уложенные одна над другой, рядом с пачками, уложенными у торцовых бортов, увязывают между собой тремя вертикальными поперечными и одной продольной обвязками из проволоки диаметром 6 мм в две нити или двумя металлическими поясами. Такой увязки не требуется, если верхние пачки выступают над пачками, уложенными у торцовых бортов, не более чем на половину своей высоты.

При погрузке пачек, упакованных с применением деревянных подкладок, высота вышеуказанных брусков увеличивается на высоту подкладок. В том случае, если пачки погруженного металла превышают высоту продольных бортов, последние наращиваются с обеих сторон досками, прибиваемыми гвоздями к стойкам, установленным в боковые стоечные скобы платформ, при этом противоположные стойки попарно увязывают проволокой диаметром 6 мм в две нити.

Деревянные стойки, установленные в торцовые стоечные скобы, увязывают за первые боковые стоечные скобы растяжками из проволоки диаметром 6 мм в четыре нити.

§ 40. Металлические листы длиной до 13000 мм, шириной не более 2700 мм, толщиной 30 мм и более грузят на четырехосные платформы поштучно или пакетами. В каждом пакете укладывают листы одинаковых размеров.

Допускается совместная укладка листов разных размеров в одном пакете при условии размещения листов меньших размеров в средней его части. Отдельные листы не должны выходить за пределы штабеля.

Пакеты в зависимости от их длины и ширины укладывают в один или два штабеля вдоль платформы симметрично поперечной и продольной осям (рис. 3.42).

Рис. 3.42:

1 - торцовые стойки; 2 - распорные бруски; 3 - поперечные упорные бруски; 4 - боковые стойки; 5 - увязка стоек; 6 - распорки

При погрузке металлических листов в два штабеля последние укладывают в стык. Каждый штабель ограждают тремя парами коротких боковых стоек. Противоположные боковые стойки попарно увязывают проволокой диаметром 6 мм в четыре нити.

С обеих наружных торцовых сторон каждого штабеля высотой до 250 мм укладывают вплотную к нему по одному поперечному упорному бруску шириной не менее 200 мм, высотой, равной высоте штабеля груза, и длиной, равной ширине платформы между продольными бортами. Ширина упорного бруска должна быть не менее его высоты. Каждый поперечный брусок прибивают к полу платформы четырьмя гвоздями длиной 200 мм (по два гвоздя с каждого конца бруска). Упорные бруски по концам в местах забивания гвоздей должны иметь толщину не более 140 мм.

В промежутки между поперечными упорными брусками и торцовыми бортами платформы против торцовых стоек плотно пригоняют по два продольных распорных бруска сечением не менее 150×200 мм, каждый из них прибивают к полу платформы четырьмя гвоздями длиной 225 мм.

Взамен поперечных упорных брусков допускается устанавливать вертикальные упорные бруски сечением не менее 150×200 мм, соединяемые строительными скобами диаметром стержня 10 - 15 мм с продольными распорными брусками и деревянными раскосами, как показано на рис. 3.43.

Каждый погруженный пакет с боковых сторон закрепляют не менее чем двумя распорками, которые укладывают вплотную к боковым стойкам и листам пакета. Распорки должны иметь ширину не менее 200 мм, высоту, равную высоте пакета, и длину, равную величине зазора. Каждую распорку прибивают к полу платформы двумя гвоздями длиной 225 мм.

§ 41. Металлические листы длиной от 13000 до 13700 мм, шириной до 2700 мм и толщиной не менее 10 мм грузят на одиночные четырехосные платформы с откинутыми на кронштейны торцовыми бортами (рис. 3.44).

Листы укладывают на две поперечные подкладки сечением (60 ÷ 80)×100 мм и длиной, равной ширине пола между бортами, которые размещают над шкворневыми балками и прибивают к полу платформы четырьмя гвоздями длиной 100 - 120 мм.

Поверх груза на расстоянии 300 мм от его боковых кромок вдоль платформы укладывают восемь деревянных брусков (по четыре с каждой боковой стороны пакета) сечением 50×(100 ÷ 150)×(1000 ÷ 1500) мм.

На каждую пару продольных брусков укладывают по одному поперечному бруску сечением не менее 135×150 мм и длиной 3150 мм.

Каждый поперечный брусок с обеих сторон платформы прочно закрепляют за боковые стоечные скобы вертикальными увязками из проволоки диаметром 6 мм в четыре нити. До закручивания вертикальных проволочных увязок сверху на листы рядом с каждым бруском крепления для уплотнения пакета листов поочередно устанавливают груз весом 3 - 5 т, снимаемый после натяжения увязок. В местах закрутки увязок вставляют деревянные колышки, закрепляемые от выпадания. На поперечных брусках на расстоянии 70 - 100 мм от каждого конца делают зарубки глубиной 10 - 15 мм для предотвращения соскальзывания проволочных увязок.

Допускается применение поперечных брусков из круглого лесоматериала диаметром не менее 180 мм, у которых нижнюю опорную сторону стесывают на плоскость.

В первые и вторые стоечные скобы, считая от каждого лобового бруса платформы, устанавливают две пары коротких боковых стоек. Каждую пару противоположных боковых стоек увязывают между собой проволокой диаметром 6 мм в две нити. Против боковых стоек между бортами платформы и грузом плотно пригоняют деревянные распорки шириной не менее 200 мм и высотой, равной высоте погруженного штабеля листов. Каждую распорку прибивают к полу платформы двумя гвоздями.

§ 42. Металлические листы длиной от 13800 до 18000 мм и шириной не более 2700 мм грузят на среднюю четырехосную платформу сцепа с прикрытием обоих свесов груза двумя платформами.

Металлические листы длиной от 13800 до 16900 мм и толщиной не менее 30 мм (рис. 3.45), а также длиной от 17000 до 18000 мм и толщиной не менее 40 мм при погрузке на платформы укладывают на пять поперечных подкладок толщиной не менее 150 мм и шириной 200 - 250 мм и длиной, равной ширине платформы. Две подкладки укладывают над шкворневыми полками тележек, две - на расстоянии 500 - 1000 мм от торцов платформы, а пятую - посередине платформы. Каждую подкладку прибивают к полу платформы четырьмя гвоздями длиной 200 - 250 мм.

Рис. 3.43

Рис. 3.44:

1 - подкладки; 2 - продольные бруски; 3 - поперечные бруски; 4 - вертикальные увязки; 5 - боковые стойки; 6 - увязка стоек

Рис. 3.45:

1 - подкладки; 2 - продольные бруски; 3 - поперечные бруски; 4 - вертикальная увязка; 5 - боковые стойки; 6 - увязка стоек; 7 - хомуты из проволоки

Рис. 3.46:

1 - подкладки; 2 - соединительные планки; 3 - распорные бруски

Рис. 3.47:

1 - подкладки; 2 - соединительные планки; 3 - распорные бруски

Допускается применение подкладок из круглого леса с нижними и верхними плоскими опорными поверхностями шириной 200 - 250 мм.

Пакеты листов закрепляют, а боковые стойки устанавливают порядком, предусмотренным § 41 настоящей главы. Пакеты листов длиной 16000 - 18000 мм на расстоянии 1000 мм от концов дополнительно укрепляют двумя хомутами из проволоки диаметром 6 мм в четыре нити.

На одну платформу допускается погрузка длинномерных листов только одинаковых размеров.

§ 43. Допускается погрузка в четырехосные полувагоны листового металла, не покрытого смазкой, толщиной 11 - 30 мм, шириной 1300 - 2700 мм, длиной 2400 - 11500 мм и без увязки в пачки. Листы длиной 2400 - 2700 мм укладывают поперек полувагона. Листы длиной 2800 - 4000 мм размещают и закрепляют так же, как листовой металл, упакованный в пачки (см. § 48). Листы длиной 4000 - 5000 мм размещают в один продольный ряд тремя совмещенными штабелями внахлестку с отступлением от торцовых дверей на 1000 мм (рис. 3.46). При этом листы опираются на подкладки сечением не менее 40×100 мм, уложенные на поперечные балки полувагона.

Штабель металла увязывают четырьмя обвязками из проволоки диаметром 6 мм в четыре нити на расстояние 400 - 500 мм от концов штабеля и верхнего листа.

Со стороны каждой торцовой двери вплотную к нижним листам и порожку полувагона укладывают по три распорных бруска сечением не менее 100×100 мм, скрепленных между собой двумя соединительными планками сечением 25×100 мм, прибиваемыми каждая двумя гвоздями длиной 50 мм.

Листы длиной от 5000 до 5500 мм размещают в один продольный ряд двумя штабелями вплотную друг к другу, симметрично по отношению к продольной и поперечной осям полувагона.

Каждый штабель опирается на три подкладки сечением не менее 40×100 мм, уложенные на поперечные балки полувагона. Со стороны каждой торцовой двери вплотную к нижним листам и порожку полувагона укладывают по три распорных бруска сечением не менее 100×100 мм, скрепленных между собой двумя соединительными планками. Каждый штабель металла увязывают двумя обвязками из проволоки диаметром 6 мм в четыре нити.

Листы длиной от 5500 до 7500 мм размещают в один продольный ряд двумя штабелями внахлестку с отступлением от торцовых дверей на 1000 мм с опорой на подкладки сечением не менее 40×100 мм, уложенные по всем поперечным балкам полувагона (рис. 3.47). Весь штабель металла в середине и по концам увязывают тремя обвязками из проволоки диаметром 6 мм в четыре нити.

Со стороны каждой торцовой двери вплотную к нижним пачкам и порожку полувагона укладывают по три распорных бруска сечением не менее 100×100 мм, скрепленных между собой двумя соединительными планками.

Способ погрузки листов длиной от 7500 до 9000 мм указан в § 60.

Листы длиной от 9000 до 11500 мм размещают в один продольный ряд одним штабелем с опорой на подкладки сечением не менее 40×100 мм, уложенные на шкворневые балки полувагона. Со стороны каждой торцовой двери вплотную к нижним листам и порожку полувагона укладывают по три распорных бруска сечением не менее 100×100 мм, скрепленных между собой двумя соединительными планками.

§ 44. Допускается совместная погрузка листового металла, покрытого и не покрытого смазкой, одинаковых размеров при соблюдении условий размещения и крепления, предусмотренных для листового металла, покрытого смазкой.

Рис. 3.48:

1 - деревянные бруски; 2 - поперечные обвязки

§ 45. Листовой металл толщиной 8 - 16 мм и длиной от 11500 до 12200 мм грузят в полувагоны с открытыми торцовыми дверями (рис. 3.48). До погрузки вплотную к дверным порожкам с внутренней стороны полувагона укладывают по одному деревянному бруску сечением 100×100 мм и длиной, равной расстоянию между открытыми дверями полувагона.

Листы металла укладывают вдоль полувагона симметрично его продольной и поперечной осям с опорой на деревянные бруски. Штабель листового металла увязывают двумя поперечными обвязками из проволоки диаметром 6 мм в четыре нити, укладываемыми на пол полувагона до начала погрузки.

Листовой металл указанным способом можно перевозить только в составе отправительских маршрутов.

Листовой металл в пачках

§ 46. Пачки размером (500 ÷ 900)×(500 ÷ 1100) мм промасленного и непромасленного металла на салазках и без них размещают в полувагонах вдоль и поперек равномерно по всей площади пола (рис. 3.49).

Погрузка пачек начинается от торцовых дверей к середине вагона. Между пачками в поперечном и продольном направлениях допускается свободное пространство не более 80 мм. Если в результате погрузки вдоль вагона в середине остается свободное пространство между пачками более 500 мм, то в этом случае их закрепляют распорной клеткой (рис. 3.50) или проволокой в шесть нитей за ближайшую пару нижних увязочных косынок или скоб (рис. 3.51).

При установке клетки сечение продольных и поперечных брусков должно быть не менее 100×100 мм, их скрепляют четырьмя скобами.

Под проволокой пропускают два бруска сечением не менее 100×100 мм и длиной 300 - 350 мм. Проволока крепится к брускам двумя гвоздями длиной 75 - 80 мм.

Допускается на одной половине вагона четное число пачек, а на другой нечетное. При перевозке листового металла в пачках, указанных выше размеров, должны соблюдаться требования § 3 настоящей главы.

§ 47. Пачки листового металла длиной 1500 - 2300 и 2800 - 5500 мм укладывают вдоль полувагона вплотную друг к другу в несколько штабелей. При этом пачки шириной 500 - 540 мм укладывают в пять рядов по ширине полувагона, пачки шириной 550 - 680 мм - в четыре ряда, шириной 690 - 900 мм - в три ряда, шириной - 910 - 1350 мм - в два ряда.

Рис. 3.49

Рис. 3.50:

1 - пачки листового металла; 2 - упорные бруски; 3 - распорные бруски

Пачки укладывают симметрично продольной оси с размещением крайних пачек вплотную к боковым стенкам. Если при полной загрузке полувагона площадь пола полностью не используется, пачки металла укладывают над тележками вплотную к торцовым порожкам. От продольного перемещения пачки металла, уложенные в средней части полувагона, закрепляют двумя распорными брусками, которые укладывают между упорными брусками, расположенными поперек вагона вплотную к крайним пачкам (рис. 3.52). Распорные бруски соединяют между собой двумя планками сечением 25×100 мм; каждую планку прибивают к брускам четырьмя гвоздями (по два на каждый брусок). Сечение брусков должно быть не менее 100×100 мм.

Каждый штабель металла длиной от 2800 до 5500 мм укладывают на две подкладки из досок или горбылей сечением не менее 40×100 мм.

При погрузке пачек длиной 1500 - 2300 и 2400 - 2700 мм люковые закидки полувагонов увязывают за кронштейны крышки люка проволокой.

Пачки металла длиной от 2400 до 2700 мм укладывают поперек полувагона (рис. 3.53).

Допускается погрузка в четырехосные полувагоны листового металла толщиной 4 - 10 мм без увязки в пачки порядком, предусмотренным для листов толщиной 11 - 30 мм соответствующих размеров. При этом общая толщина листов в одном подъеме при укладке в штабель не должна превышать 50 мм.

Если при погрузке пачек металла в один ярус грузоподъемность вагона полностью не использована, то размещают пачки в два яруса. При этом пачки во втором ярусе укладывают над тележками вплотную к торцовым дверям поперек хребтовой балки.

§ 48. Листовой металл, не покрытый смазкой, в пачках шириной 1360 - 2700 мм размещают в один продольный ряд симметрично по отношению к продольной и поперечной осям четырехосного полувагона. Пачки длиной от 2800 до 3000 мм размещают в четыре штабеля по длине с укладкой каждого штабеля на две подкладки сечением не менее 40×100 мм. Подкладки размещают на поперечных балках и между гофрами крышек люков у торцовых порожков полувагона.

Каждый штабель закрепляют четырьмя поперечными упорными брусками сечением 40×100 мм, прибиваемыми к подкладкам каждый двумя гвоздями длиной 75 мм, и увязывают двумя поперечными обвязками из проволоки диаметром 6 мм в четыре нити каждая.

Рис. 3.51:

1 - проволочная увязка; 2 - брусок; 3 - пачки листового металла

Рис. 3.52:

1 - упорные бруски; 2 - распорные бруски; 3 - соединительные планки

Деревянные торцовые двери полувагона по высоте погрузки ограждают четырьмя вертикальными брусками сечением 50×100 мм (по два бруска на каждую створку двери), прибиваемыми к шелевке против средней и угловой стойки гвоздями длиной не менее 80 - 100 мм.

Пачки длиной 3000 - 3600 мм размещают в три штабеля по длине с опорой каждого штабеля на две подкладки сечением не менее 40×100 мм, уложенные на поперечные балки полувагона (рис. 3.54). Вплотную к нижним пачкам крайних штабелей и порожку полувагона укладывают по три распорных бруска сечением не менее 100×100 мм. Последние скрепляют между собой двумя соединительными планками сечением 25×100 мм, прибиваемыми каждая двумя гвоздями длиной 50 мм.

Каждый штабель закрепляют четырьмя поперечными упорными брусками сечением 40×100 мм, прибиваемыми к подкладкам каждый двумя гвоздями длиной 80 - 90 мм, и увязывают двумя поперечными обвязками из проволоки диаметром 6 мм в четыре нити.

Листовой металл в пачках длиной от 3600 до 4000 мм размещают аналогично без установки со стороны крайних штабелей распорных брусков. При этом каждую торцовую дверь по высоте погрузки ограждают четырьмя вертикальными брусками сечением 50×100 мм.

Пачки длиной от 4000 до 5500 мм размещают в два штабеля по длине (рис. 3.55 и 3.56) с опорой каждого на три подкладки сечением не менее 40×100 мм, уложенные на поперечные балки полувагона. Вплотную к нижним пачкам и порожку полувагона укладывают по три распорных бруска сечением не менее 100×100 мм, скрепленных между собой двумя соединительными планками сечением 25×1000 мм, прибиваемыми каждая двумя гвоздями длиной 50 мм. В промежутке между штабелями длиной от 4000 до 4500 мм посередине вагона укладывают два распорных бруска, скрепленных между собой соединительными планками (см. рис. 3.55). Каждый штабель закрепляют четырьмя поперечными упорными брусками сечением 40×100 мм, прибиваемыми к подкладкам каждый двумя гвоздями длиной 75 мм, и увязывают двумя поперечными обвязками каждая из проволоки диаметром 6 мм в четыре нити.

Рис. 3.53

Рис. 3.54:

1 - подкладки; 2 - поперечные упорные бруски; 3 - соединительные планки; 4 - распорные бруски

Пачки длиной от 5500 до 7500 мм размещают в один продольный ряд двумя штабелями внахлестку с отступлением от торцовых дверей на 1000 мм и с опорой на подкладки сечением не менее 40×100 мм, уложенные по всем поперечным балкам полувагона (рис. 3.57).

Штабель металла увязывают тремя поперечными обвязками из проволоки диаметром 6 мм в две нити. Со стороны каждой торцовой двери вплотную к нижним пачкам укладывают на ребро доску сечением 50×100 мм, вплотную к ней и порожку полувагона - три распорных бруска сечением 100×100 мм, скрепленных между собой двумя соединительными планками.

От поперечного сдвига каждый штабель закрепляют четырьмя поперечными упорными брусками сечением 40×100 мм, прибиваемыми к подкладкам каждый двумя гвоздями.

Рис. 3.55:

1 - поперечные упорные бруски; 2 - подкладки; 3 - распорные бруски; 4 - соединительные планки

Рис. 3.56:

1 - подкладки; 2 - поперечные упорные бруски; 3 - соединительные планки; 4 - распорные бруски

Способ погрузки пачек длиной от 7500 до 9000 мм указан в § 43.

Пачки длиной от 9000 до 11500 мм размещают одним штабелем с опорой на две подкладки сечением не менее 40×100 мм, уложенные на шкворневые балки полувагона. Вплотную к нижним пачкам и порожку полувагона с каждой торцовой стороны укладывают по три распорных бруска сечением 100×100 мм, скрепленных между собой двумя соединительными планками.

Штабель закрепляют четырьмя поперечными упорными брусками сечением 40×100 мм, прибиваемыми к подкладкам каждый двумя гвоздями длиной 75 мм.

§ 49. Пачки размерами (600 ÷ 900)×(1200 ÷ 2000) мм промасленного и непромасленного листового металла на салазках и без них шириной 600 - 690 мм размещают в четыре ряда, шириной 700 - 900 мм - в три ряда по ширине вагона. По длине вагона пачки размещают следующим образом: при длине пачек 1200 - 1300 мм - в девять рядов; при 1400 мм - в восемь рядов; при 1500 - 1600 мм - в семь рядов; при 1700 - 2000 мм - в пять - шесть рядов.

Рис. 3.57:

1 - подкладки; 2 - поперечные упорные бруски; 3 - поперечные обвязки; 4 - доска; 5 - соединительные планки; 6 - распорные бруски

Рис. 3.58:

1 - салазки; 2 - продольные подкладки

Допускается расположение пачек поперек полувагона и одновременно расположение пачек вдоль и поперек вагона.

При размещении пачек на салазках, расположенных поперек пачки, на пол вдоль вагона укладывают доски сечением не менее 25×100 мм (рис. 3.58).

При размещении во втором ярусе полувагона пачек промасленного металла их крепят к пачкам первого яруса в соответствии с требованиями § 34 настоящей главы. Если в середине вагона между пачками образуется свободное пространство больше 500 мм, то их следует крепить распорной клеткой (см. рис. 3.50). При погрузке пачек указанных выше размеров обязательно соблюдение требований § 3 и 9 настоящей главы.

§ 50. Пачки размерами (910 ÷ 1350)×(1500 ÷ 2700) мм в полувагонах промасленного и непромасленного металла без салазок размещают поперек вагона, начиная от торцовых дверей со смещением относительно друг друга (рис. 3.59). Перед погрузкой пачек по хребтовой балке укладывают подкладки из брусков сечением 100×100 мм или горбыля по высоте не менее 100 мм. При весе пачек более 10 т под пачки укладывают на расстоянии 250 - 200 мм от стен бруски сечением не менее 40×100 мм или горбыль по высоте не менее 40 мм. При неполном заполнении вагона в середине допускается наличие четного и нечетного чисел пачек при соблюдении требований § 3 и 5 настоящей главы.

Рис. 3.59:

1, 2 - продольные бруски; 3 - упорные бруски; 4 - гвозди

Рис. 3.60:

1 - пачка промасленного листового металла; 2 - салазки; 3 - поперечные подкладки; 4 - поперечный брусок

При неполном заполнении пола вагона пачки закрепляют в середине упорными брусками сечением не менее 80×80 мм и длиной по месту. Упорные бруски крепят к подкладкам гвоздями длиной не менее 125 мм. Подкладки должны выступать из-под пачек не менее чем на 300 - 400 мм.

При погрузке во второй ярус пачек в количестве, меньшем, чем в первом ярусе, они крепятся к пачкам первого яруса в соответствии с требованиями § 34 настоящей главы. При этом пачки длиной 2500 - 2700 мм в первом ярусе размещаются на пол вагона без продольных брусков.

Пачки листового металла на салазках могут размещаться поперек вагона со смещением без укладки брусков вдоль хребтовой балки и боковых стен. Если же между пачками образуется в середине вагона пространство более 500 мм, то производится крепление двумя упорными брусками сечением не менее 80×80 мм. Но в этом случае их скрепляют планками сечением не менее 20×100 мм и длиной, равной ширине вагона.

При укладке пачек промасленного металла на салазках во второй ярус их крепят к пачкам первого яруса в соответствии с требованиями § 34 настоящей главы. При погрузке пачек промасленного металла на салазках и без салазок в три и более ярусов под последний ярус укладывают прокладки длиной, равной ширине вагона, к которым крепят по месту упорные бруски сечением не менее 40×100 мм (рис. 3.60).

Пачки непромасленного листового металла размерами 1000×2000 мм укладывают вдоль боковых стен и одну пачку размещают поперек вагона за второй или третьей пачкой от торца вагона (рис. 3.61). Если пачек меньше, то их можно размещать следующим образом: по две пачки вдоль каждой боковой стены, далее за ними кладется пачка в середине вдоль вагона, потом одна пачка поперек вагона и еще по две пачки вдоль стен (рис. 3.62).

При погрузке пачек данного размера требуется соблюдение требований § 38 и 39.

Рис. 3.61:

1 - салазки; 2 - пачки листового металла

Рис. 3.62:

2 - пачки листового металла

Рис. 3.63:

1 - продольные деревянные подкладки; 2 - пачки листового металла; 3 - торцовые вертикальные бруски

§ 51. Пачки размерами (1000 ÷ 1350)×(2700 ÷ 5000) мм промасленного и непромасленного листового металла без салазок могут быть размещены по ширине полувагона тремя группами: одну группу пачек в середине укладывают горизонтально, а две другие вдоль боковых стен - наклонно (рис. 3.63). Вес группы пачек, располагаемых наклонно у каждой стены, должен быть одинаковым. Пачки, укладываемые вдоль боковых стен, располагают на продольных подкладках сечением 40×100 мм по длине вагона. Подкладки могут быть составленными по длине.

До погрузки пачек наклонно на расстоянии 150 - 200 мм от боковой стены укладывают бруски сечением 40×100 мм или горбыль.

Пачки могут располагаться по ширине полувагона двумя штабелями. Если расстояние между пачками в середине вагона больше 200 мм, то под пачки вдоль всего вагона на расстоянии 150 - 200 мм от края пачек укладывают бруски сечением не менее 100×100 мм или горбыль равного сечения.

При погрузке пачек на салазках и без салазок на торцовые двери крепят бруски в соответствии с требованиями § 37 настоящей главы.

Пачки длиной от 2710 до 2950 мм промасленного и непромасленного металла без салазок размещают по длине вагона в четыре, а длиной от 3600 до 3900 мм - в три штабеля.

Пачки длиной от 2710 до 5500 мм промасленного металла на салазках при погрузке в два и более ярусов располагают на равном расстоянии от боковых стен в два или три штабеля и вплотную к торцовым дверям.

В одном вагоне одновременно могут быть размещены пачки следующим образом: одна горизонтально и две наклонно (см. рис. 3.63) или две наклонно (рис. 3.64). Допускается одновременное расположение в вагоне четного и нечетного чисел пачек.

Рис. 3.64:

обозначения см. рис. 3.63

Рис. 3.65:

1 - продольные подкладки; 2 - пачки листового металла; 3 - торцовые вертикальные бруски

Пачки длиной от 2710 до 5000 мм на салазках в один ярус размещают в вагоне двумя рядами по ширине вагона с укладкой подкладок (рис. 3.65), а по длине в два - четыре штабеля располагают подкладки сечением 100×100 мм, длина которых равна длине вагона. При размещении таких пачек промасленного металла в два яруса каждый штабель увязывают в двух местах проволокой диаметром 6 мм в две нити. Пачки с промасленным металлом, уложенные в три яруса и более, закрепляют согласно требованиям § 34, 37, 50 настоящей главы.

Пачки без салазок длиной 2960 - 3600 и 3910 - 5000 мм промасленного и непромасленного листового металла размещают по ширине вагона: одну горизонтально и две наклонно (см. рис. 3.63) или две наклонно (см. рис. 3.64), если расстояние между пачками будет более 200 мм.

При размещении листового металла в пачках данного размера требуется соблюдение условий § 38 и 39 настоящей главы.

Рис. 3.66:

1, 2 - пачки, уложенные соответственно горизонтально и наклонно; 3 - подкладка

§ 52. Пачки размерами (1360 ÷ 1700)×(15004 ÷ 8000) мм размещают по ширине полувагона тремя группами: в середине полувагона - горизонтально, потом горизонтально и со смещением к одной из стен, а далее вдоль второй стены - наклонно (рис. 3.66). Перекрытие пачек, уложенных горизонтально, наклонными пачками должно быть не менее 50 мм. Если перекрытие менее 50 мм, то его размеры увеличивают за счет установки у стен брусков соответствующего сечения. Вес пачек, уложенных горизонтально у одной стены и наклонно у другой, должен быть одинаковым. Высота пачек, уложенных в середине вагона, не должна превышать 250 мм.

При размещении пачек указанных выше размеров на торцовые двери крепят бруски в соответствии с требованиями § 37 настоящей главы.

Пачки длиной от 1500 до 2700 мм без салазок размещают по длине вагона в четыре - семь штабелей горизонтально в середине и к одной из боковых стен и наклонно к другой стене (рис. 3.67). Пачки без салазок могут размещаться вдоль вагона со смещением относительно друг друга на 200 - 400 мм.

Рис. 3.67:

1, 2 - пачки, уложенные соответственно горизонтально и наклонно

Пачки на салазках размещают в соответствии с требованиями § 50 настоящей главы.

Пачки длиной 2710 - 2950; 3610 - 3900 и 5510 - 5800 мм без салазок размещают по длине вагона соответственно в четыре, три и два штабеля: в каждом горизонтально (в середине и к одной из боковых стен) и наклонно к другой стене (см. рис. 3.66). Пачки могут быть размещены горизонтально к одной стене и наклонно к другой (см. рис. 3.67). Пачки могут быть погружены в одном вагоне двумя указанными способами при соблюдении требований § 40 настоящей главы.

Пачки длиной 2960 - 3600 и 3900 - 5500 мм без салазок укладывают соответственно в три и два штабеля. В каждом штабеле вначале пачки размещают горизонтально на равном расстоянии от боковых стен с отступлением от торцовых дверей на 400 - 550 мм (рис. 3.68 и 3.69), а потом укладывают горизонтально вплотную к торцовым дверям и к боковой стене. Остальные пачки размещают наклонно к боковой стене и вплотную к торцовым дверям.

Пачки могут быть погружены в одном вагоне по комбинированным схемам, представленным по частям на рис. 3.60, 3,63, 3.66, 3.70.

Пачки длиной от 2710 до 5500 мм непромасленного металла на салазках или металла, упакованного в короба на салазках, расположенных поперек пачек, могут размещаться по одной из схем, представленных на рис. 3.66 и 3.70. Если салазки расположены вдоль пачек, то последние располагают в середине вагона вдоль хребтовой балки в два или три штабеля вплотную к торцовым дверям (рис. 3.71).

При одно- или многоярусной погрузке под последний ярус каждого штабеля укладываются от краев на расстоянии 400 - 500 мм по две прокладки толщиной не менее 25 мм и длиной, равной ширине вагона. К прокладкам крепят каждый двумя гвоздями снизу и сверху длиной 100 мм упорные бруски сечением 40×100 мм по месту.

Рис. 3.68:

1 - пачки, уложенные горизонтально и со смещением относительно друг друга; 2 - пачка, уложенная наклонно

Рис. 3.69:

обозначения см. на рис. 3.68

Рис. 3.70:

1 - вертикальные бруски; 2, 3 - пачки листового металла, уложенного соответственно наклонно и горизонтально

Рис. 3.71:

1 - салазки; 2 - листовой металл в пачках; 3 - прокладка; 4 - упорный брусок; 5 - продольный упорный брусок; 6 - соединительная планка

Рис. 3.72:

1 - вертикальные бруски; 2 - листовой металл в пачках

Рис. 3.73:

1 - пачки, уложенные наклонно; 2 - продольный брус; 3 - пачки, уложенные горизонтально; 4 - поперечный брус

При наличии свободного пространства вдоль вагона между пачками больше 300 мм необходимо устанавливать продольные распорные бруски сечением 100×100 мм, прикрепив их предварительно с двух сторон к прокладкам.

Пачки длиной 5810 - 8000 мм без салазок поперек вагона размещают по одной из схем, представленных на рис. 3.63, 3.65, 3.66, 3.70, а вдоль вагона - внахлестку (рис. 3.72).

При размещении и креплении листового металла указанных размеров должны соблюдаться требования § 32 настоящей главы.

§ 53. Пачки размером (1710 ÷ 2700)×(4000 ÷ 8000) мм размещают по ширине полувагона двумя группами: одну группу пачек располагают к одной из стен горизонтально, вторую - наклонно (рис. 3.73). Под пачки, размещенные наклонно, на расстоянии 200 - 300 мм от их края укладывают вдоль вагона бруски сечением 100×100 мм или горбыль равного сечения. Вес пачек, уложенных горизонтально и наклонно, должен быть одинаковым. Размещение пачек длиной от 4200 до 5900 мм вдоль вагона аналогично § 2 (см. рис. 3.68, 3.69, 3.73).

Пачки длиной 5910 - 8000 мм размещают в один штабель посередине вагона внахлестку (см. рис. 3.72). От поперечного смещения верхний ярус крепится аналогично способу, показанному на рис. 3.71, в двух местах каждого штабеля.

Листовой металл толщиной 6 - 160 мм

§ 54. Способы размещения и крепления в четырехосных полувагонах непромасленного листового металла толщиной 6 - 160 мм, шириной 1000 - 2700 мм, длиной 2800 - 11700 мм, номера рисунков, на которых приведены эти способы, указаны в табл. 3.4.

§ 55. При перевозке листового металла боковые стены и торцовые двери полувагонов с деревянной обшивкой кузова ограждают деревянными брусками (рис. 3.74 - 3.90), установленными вертикально. Высота брусков должна быть на 50 - 100 мм больше высоты погрузки листов в местах установки брусков.

Каждую торцовую дверь полувагона ограждают четырьмя брусками сечением не менее 40×100 мм: два устанавливают против средних, а два других - против угловых стоек торцовых дверей.

Таблица 3.4

Толщина, мм

Размеры листа, мм

Номер рисунка

ширина

длина

6 - 160

1000 - 1300

2800 - 3600

3.72

6 - 160

1000 - 1300

3610 - 3900

3.73

6 - 160

1000 - 1300

3910 - 5500

3.74

6 - 160

1000 - 1300

5510 - 5900

3.75

6 - 160

1000 - 1300

5910 - 11700

3.76

6 - 160

1301 - 1400

2800 - 3600

3.77

6 - 160

1301 - 1400

3610 - 3900

3.78

6 - 160

1301 - 1400

3910 - 5500

3.79

6 - 160

1301 - 1400

5510 - 5900

3.80

6 - 160

1301 - 1400

5910 - 11700

3.81

6 - 160

1401 - 1700

2800 - 3600

3.82

6 - 160

1401 - 1700

3610 - 3900

3.83

6 - 160

1401 - 1700

3910 - 5500

3.84

6 - 160

1401 - 1700

5510 - 5900

3.85

6 - 160

1401 - 1700

5910 - 11700

3.86

6 - 160

1701 - 2700

2800 - 11700

3.87

6 - 160

1701 - 2700

2800 - 3600

3.85 и 3.86

6 - 160

1701 - 2700

3610 - 3900

3.85

6 - 160

1701 - 2700

5510 - 5900

3.86

6 - 160

1701 - 2700

5910 - 11700

3.85 и 3.86

Рис. 3.74:

1 - деревянный вертикальный брусок; 2, 3, 4 - листы, погруженные соответственно горизонтально, наклонно встык и наклонно внахлестку

Рис. 3.75:

1 - деревянный вертикальный брусок; 2, 3 - листы, погруженные соответственно горизонтально и наклонно

Рис. 3.76:

1 - деревянный вертикальный брусок; 2, 3, 4 - листы, погруженные соответственно горизонтально, наклонно, внахлестку

Рис. 3.77:

1 - деревянный вертикальный брусок; 2, 3 - листы, погруженные соответственно горизонтально и наклонно

Рис. 3.78:

1 - деревянный вертикальный брусок; 2, 3 - листы, погруженные соответственно горизонтально, внахлестку и наклонно; 4 - деревянные прокладки

Боковые стены полувагона ограждают брусками сечением не менее 20´100 мм так, чтобы каждый штабель опирался на два бруска. Расстояние от края штабеля до бруска должно составлять 500 - 700 мм. Как правило, бруски устанавливают против боковых стоек кузова полувагона. Для ограждения боковых стен полувагона можно применять окоренный горбыль толщиной не менее 20 мм в наименьшем сечении.

Каждый брусок, установленный у боковых стен или торцовых дверей полувагона, закрепляют на деревянной обшивке двумя гвоздями. Длина гвоздей должна быть больше толщины брусков на 15 - 20 мм.

Листы должны быть погружены вплотную к брускам, установленным как у боковых стен, так и торцовых дверей.

Рис. 3.79:

1 - деревянный вертикальный брусок; 2, 3 - листы, погруженные соответственно горизонтально и внахлестку

Рис. 3.80:

1 - деревянный вертикальный брусок; 2 - листы, погруженные горизонтально

§ 56. Листы шириной 1000 - 1300 мм, длиной 2800 - 11700 мм размещают по ширине полувагона тремя группами: одну группу в середине укладывают горизонтально, а две другие - вдоль боковых стен наклонно (см. рис. 3.74, а). Горизонтально укладывают группы весом от 20 до 30 т или штабель высотой не менее 100 мм и не более 200 мм, а наклонно вдоль каждой боковой стены - от 17,5 до 22,5 т. Вес листов, погруженных у каждой боковой стены, должен быть одинаковым.

Рис. 3.81:

1 - деревянный вертикальный брусок; 2, 3 - листы, погруженные соответственно горизонтально и внахлестку

Рис. 3.82:

1 - деревянный вертикальный брусок; 2 - листы, погруженные горизонтально

Горизонтально размещенные штабеля должны загружаться на равных расстояниях от боковых стен полувагона.

Листы длиной от 2800 до 3600 мм размещают в полувагоне следующим образом. Вначале размещают в полувагоне горизонтально три штабеля (см. рис. 3.74, б), затем вдоль каждой боковой стены в средней части полувагона по два штабеля укладывают наклонно встык, а к каждой торцовой двери по одному штабелю наклонно внахлестку (см. рис. 3.74, в). Листы длиной 3610 - 3900 мм размещают так: три штабеля вдоль вагона горизонтально, затем вдоль каждой боковой стены по три штабеля наклонно, при этом каждый наклонный штабель всей длиной должен опираться на горизонтальный штабель (см. рис. 3.74, а и 3.75).

Рис. 3.83:

1 - деревянный вертикальный брусок; 2, 3 - листы, погруженные соответственно горизонтально и внахлестку; 4 - деревянные прокладки

Рис. 3.84:

1 - деревянный вертикальный брусок; 2, 3, 4 - листы, погруженные соответственно горизонтально, наклонно встык и внахлестку

Рис. 3.85:

1 - деревянный вертикальный брусок; 2, 3 - листы, погруженные соответственно горизонтально и наклонно

Рис. 3.86:

а - листы, погруженные горизонтально; б - листы, погруженные горизонтально и наклонно; 1 - деревянный вертикальный брусок; 2, 3, 4 - листы, погруженные соответственно горизонтально, наклонно и наклонно внахлестку

Рис. 3.87:

1 - деревянный вертикальный брусок; 2, 3 - листы, погруженные соответственно горизонтально и наклонно

Рис. 3.88:

1 - деревянный вертикальный брусок; 2, 3 - листы, погруженные соответственно внахлестку и наклонно; 4 - деревянные прокладки

Листы длиной 3910 - 5500 мм укладывают в полувагоне к торцовым дверям горизонтально двумя штабелями (см. рис. 3.76, а), потом вдоль каждой боковой стены размещают вначале по одному штабелю в середине полувагона наклонно с опорой на два горизонтальные штабеля, а затем к каждой торцовой двери еще по одному штабелю наклонно внахлестку (см. рис. 3.76, б). Листы длиной 5510 - 5900 мм размещают в два штабеля вдоль вагона горизонтально, затем вдоль каждой боковой стены по два штабеля наклонно, при этом каждый наклонный штабель всей длиной должен опираться на горизонтальный штабель (см. рис. 3.74, а и 3.77).

Рис. 3.89:

а - листы длиной 3,6 - 3,9 м; б - листы длиной 5,91 - 11,7 м; 1 - деревянный вертикальный брусок; 2, 3, 4 - листы, погруженные соответственно горизонтально, наклонно встык и наклонно внахлестку; 5 - продольные деревянные прокладки

Рис. 3.90:

1 - вертикальные бруски; 2 - подкладки; 3 - соединительные планки; 4 - распорные бруски

Листы длиной 5910 - 11700 мм в начале грузят вдоль полувагона двумя штабелями внахлестку (см. рис. 3.78, а), а потом вдоль каждой боковой стены двумя штабелями наклонно также внахлестку (см. рис. 3.78, б).

При погрузке листов длиной 7100 - 8500 мм и толщиной 21 - 160 мм под свободные концы верхних штабелей на расстоянии 900 - 1100 мм от края укладывают по месту подкладки толщиной 40 - 80 мм и длиной, равной ширине листов (см. рис. 3.78, б).

При погрузке листов длиной 8510 - 11700 мм и толщиной 21 - 160 мм под каждый верхний штабель укладывают со стороны торцовой двери на расстоянии 500 - 700 мм от нее подкладки высотой 80 - 100 мм, а с противоположной стороны - высотой 40 - 80 мм (см. рис. 3.78, в).

Ширина указанных подкладок должна быть не меньше высоты.

§ 57. Листы шириной 1301 - 1400 мм, длиной 2800 - 11700 мм размещают по ширине полувагона двумя группами (см. рис. 3.79, а). Вес листов в каждой группе должен быть одинаковым. Листы длиной 2800 - 3600 мм укладывают по длине полувагона вдоль каждой боковой стены четырьмя штабелями: два штабеля посередине размещают в стык, а два - с наклоном к торцовым дверям (см. рис. 3.79, б, а).

Листы длиной 3610 - 3900 мм грузят в полувагон тремя штабелями (см. рис. 3.80) вдоль каждой стены. Листы в штабелях смещают вдоль полувагона относительно друг друга на 200 - 350 мм.

Листы длиной 3910 - 5500 мм укладывают в полувагон вдоль каждой боковой стены в три штабеля: один из них в середине вагона размещают горизонтально, а два других - наклонно (см. рис. 3.81).

Листы длиной 5510 - 5900 мм размещают в полувагоне горизонтально двумя штабелями вдоль каждой стены (см. рис. 3.82). Листы в штабеле смещают вдоль полувагона относительно друг друга на 200 - 350 мм.

Листы длиной 5910 - 11700 мм размещают вдоль каждой боковой стены двумя штабелями внахлестку (см. рис. 3.83).

Листы длиной 5910 - 7000 мм могут быть размещены внахлестку штабелями (см. рис. 3.83, а) или внахлестку через несколько листов (см. рис. 3.83, б).

При погрузке листов длиной 7100 - 8500 мм и толщиной 21 - 160 мм под свободные концы верхних штабелей на расстоянии 900 - 1100 мм от края укладывают по месту прокладки толщиной 40 - 80 мм и длиной, равной ширине листа (см. рис. 3.83, в).

При погрузке листов длиной 8510 - 11700 мм и толщиной 21 - 160 мм под каждый верхний штабель укладывают со стороны торцовой двери на расстоянии 500 - 700 мм от нее подкладки высотой 80 - 100 мм, а с противоположной стороны - высотой 40 - 80 мм (см. рис. 3.83, г).

Ширина указанных подкладок должна быть не меньше высоты.

§ 58. Листы шириной 1401 - 1700 мм и длиной 2800 - 11700 мм размещают по ширине полувагона двумя группами: вдоль одной стены горизонтально, вдоль другой - наклонно (см. рис. 3.84, а). Вес листов в каждой группе должен быть одинаковым. Перекрытие листов, уложенных горизонтально, наклонными листами должно быть не менее 50 мм. Если величина перекрытия меньше 50 мм, то ее увеличивают за счет установки у стен брусков большого сечения.

Листы длиной 2800 - 3600 мм вначале укладывают тремя штабелями горизонтально вдоль одной стены на равном расстоянии друг от друга, при этом крайние штабеля располагают вплотную к брускам, ограждающим торцовые двери (см. рис. 3.84, б), потом вдоль второй стены укладывают на них наклонно еще четыре штабеля: из них в середине два штабеля встык, а два других - у торцовых дверей внахлестку (см. рис. 3.84, в).

Листы длиной 3610 - 3900 мм грузят тремя штабелями горизонтально вдоль одной стены и тремя штабелями вдоль другой стены наклонно (см. рис. 3.85).

Листы длиной 3910 - 5500 мм укладывают горизонтально двумя штабелями вдоль одной стены (см. рис. 3.86, а), потом наклонно тремя штабелями вдоль другой стены: из них один - в середине вагона, а два - наклонно к торцовым дверям (см. рис. 3.86, б).

Листы длиной 5510 - 5900 мм размещают двумя горизонтальными штабелями вдоль одной стены и двумя наклонными штабелями вдоль другой стены (см. рис. 3.87).

Листы длиной 5910 - 11700 мм размещают вдоль одной стены полувагона двумя горизонтальными штабелями и внахлестку в середине полувагона (см. рис. 3.88, а), а вдоль другой стороны стены - двумя наклонными штабелями внахлестку (см. рис. 3.88, б, в).

Листы длиной 5910 - 11700 мм и толщиной 10 - 20 мм могут размещаться внахлестку через несколько листов (см. рис. 3.83).

При погрузке листов длиной 7100 - 8600 мм и толщиной 21 - 160 мм под свободный конец верхнего штабеля на расстоянии 900 - 1100 мм от края укладывают по месту прокладки толщиной 40 - 80 мм и длиной, равной ширине листа (см. рис. 3.83, в).

При погрузке листов длиной 8510 - 11700 мм и толщиной 21 - 160 мм под каждый верхний штабель укладывают со стороны торцовой двери на расстоянии 500 - 700 мм от торцовой двери прокладки высотой 80 - 100 мм, а с противоположной стороны - высотой 40 - 80 мм (см. рис. 3.88, в). Ширина указанных прокладок должна быть не меньше высоты.

§ 59. Листы шириной 1701 - 2700 мм и длиной 2800 - 11700 мм размещают по ширине полувагона двумя группами: одну группу листов располагают у одной стены полувагона горизонтально, вторую - у другой стены наклонно (см. рис. 3.89, а). Вес листов в каждой группе должен быть одинаковым. Под листы, размещенные наклонно, на расстоянии 200 - 300 мм от их края укладывают бруски сечением 100×100 мм (см. рис. 3.89, б).

Листы длиной 2800 - 3590, 3600 - 3900, 3910 - 5500, 5510 - 5900, 5910 - 11400 мм размещают, как указано в § 58 (см. рис. 3.87 и 3.88).

§ 60. Листовой металл, не покрытый смазкой, шириной 1360 - 2600 мм, толщиной более 30 мм допускается грузить в четырехосные полувагоны без увязки в пачки.

Допускается погрузка листового металла шириной 1000 - 1350 мм и толщиной более 30 мм при условии размещения его в два ряда по ширине вплотную к боковым стенкам.

При погрузке листового металла толщиной более 30 мм на расстоянии от торцовых дверей менее 1000 мм каждую деревянную торцовую дверь полувагона по высоте погрузки ограждают щитами исходя из требований § 8 настоящей главы.

В каждом штабеле должны быть уложены листы одинаковых размеров. Допускается совместная укладка листов, не покрытых смазкой, разных размеров в одном штабеле при размещении листов меньших размеров в средней его части. При этом отклонение листов по ширине в одном штабеле не должно превышать 400 мм, а отдельные листы по длине не должны выходить за пределы штабеля.

При укладке в одном штабеле листов с разностью по ширине более 400 мм каждый штабель увязывают двумя поперечными обвязками из проволоки диаметром 6 мм в четыре нити. В местах огибания обвязками - из проволоки диаметров 6 мм в две нити. В местах огибания обвязками кромок листов под обвязки укладывают прокладки из жести толщиной 0,8 - 1,0 мм.

Листы длиной от 2800 до 5500 мм размещают в один продольный ряд двумя и более штабелями по длине (см. рис. 3.90). Каждый штабель опирается на подкладки сечением не менее 40×100 мм, уложенные на поперечные балки, а при листах длиной до 3000 мм - и между гофрами крышек люков у торцовых порожков полувагона. Со стороны каждой торцовой двери вплотную к нижним листам и порожку полувагона укладывают по три распорных бруска сечением 150×150 мм, скрепленных между собой двумя соединительными планками. В промежутке между штабелями длиной до 4500 мм посередине полувагона укладывают два распорных бруска сечением 150×150 мм, скрепляемых между собой двумя соединительными планками сечением 25×100 мм, прибиваемыми каждая двумя гвоздями длиной 50 мм.

Каждый штабель металла увязывают двумя обвязками из проволоки диаметром 6 мм в четыре нити.

Листы длиной от 5500 до 9000 мм размещают в один продольный ряд двумя штабелями с частичным перекрытием листов друг другом и отступлением от торцовых дверей на 1000 мм (рис. 3.91). При этом первый лист укладывают на подкладку 1 сечением не менее 40×100 мм, размещенную на четырех поперечных балках полувагона. Второй лист с противоположной стороны укладывают с опорой на подкладки, уложенные на остальные две поперечные балки. При этом высота подкладок 2 должна быть равной суммарной толщине подкладки 1 и первого листа. Между каждым листом по вертикали над шкворневыми балками полувагона укладывают прокладки, равные толщине листа.

Рис. 3.91:

1 - подкладки; 2 - утолщенные подкладки; 3 - прокладки; 4 - соединительные планки; 5 - распорные бруски

При этом каждую торцовую дверь с деревянной обшивкой на высоту погрузки ограждают двумя брусками сечением 40×100 мм. Кроме того, весь штабель увязывают тремя обвязками из проволоки диаметром 6 мм в четыре нити.

Погрузка листового металла толщиной свыше 30 мм внахлестку запрещается, кроме способов, см. § 56 - 59.

Со стороны каждой торцовой двери вплотную к нижним листам и порожку полувагона укладывают по три распорных бруска сечением 150×150 мм, скрепленных между собой двумя соединительными планками. Таким же порядком размещают листовой металл в пачках длиной от 7500 до 9000 мм и листовой металл толщиной 4 - 30 мм, не упакованный в пачки.

При погрузке металла указанной длины в четырехосные полувагоны с металлическим кузовом листы могут размещаться внахлестку с укладкой вплотную к торцовым дверям полувагона.

Листы длиной от 9000 до 11500 мм размещают в один продольный ряд одним штабелем с опорой на подкладки сечением не менее 40×100 мм, уложенные на шкворневые балки полувагона. Со стороны каждой торцовой двери вплотную к нижним листам и порожку полувагона укладывают по три распорных бруска сечением 150×150 мм, скрепленных между собой двумя соединительными планками.

§ 61. При размещении в полувагонах листового металла длиной 5910 - 11700 мм на расстоянии 3700 - 4300 мм от каждой торцовой двери укладывают по одной подкладке сечением не менее 40×100 мм и длиной, равной ширине вагона. При длине листового металла более 9 м подкладки укладываются на шкворневые балки.

Слябы

§ 62. Слябы длиной 1150 - 1950 мм, шириной 1000 - 1250 мм и толщиной 100 - 200 мм укладывают в полувагоне в три яруса (рис. 3.92). При погрузке каждого яруса слябы должны располагаться симметрично относительной продольной и поперечной осей вагона. Нижний ярус укладывают на деревянные подкладки сечением не менее 50×150 мм и длиной не менее внутренней длины вагона. Подкладки могут быть составными, но их стыковка должна находиться на поперечных балках.

В нижнем ярусе слябы укладывают в два ряда вдоль вагона, а у торцовых дверей - по одному слябу поперек вагона. Слябы длиной до 1400 мм разрешается укладывать все в нижнем ярусе в два ряда поперек вагона.

Во втором и третьем ярусах слябы размещают вплотную друг к другу и к дверному ограждению без зазоров.

В третьем ярусе слябы располагают поперек вагона в один ряд над хребтовой балкой. В случае если верхний ярус будет неполным, слябы укладывают группами над шкворневыми балками. Если грузоподъемность вагона недоиспользуется, то разрешается укладывать четвертый ярус, и тогда третий ярус укладывают по схеме нижнего, а четвертый - по схеме третьего.

При перевозке слябов должны соблюдаться требования § 3 и 8 настоящей главы.

§ 63. Слябы длиной 2000 - 2600 мм, шириной 1000 - 1250 мм и толщиной 100 - 200 мм размещают в полувагоне в три яруса (рис. 3.93). В нижнем ярусе у торцовых дверей укладывают по одному слябу поперек вагона, а остальные - вдоль вагона над поперечными балками. Слябы нижнего яруса располагают на подкладки, которые укладывают на поперечные балки и у торцов полувагона между гофрами крышек люков на расстоянии 600 - 700 мм друг от друга. Размеры подкладок указаны в § 2 настоящей главы.

Во втором ярусе укладывают один сляб в центре поперек вагона, а остальные - вдоль вагона с равномерным перекрытием зазоров между слябами нижнего яруса. Слябы, расположенные у торцовых дверей, должны размещаться вплотную к боковым стенам полувагона.

В третьем ярусе слябы размещают поперек вагона над хребтовой балкой. Если верхний ярус будет неполным, то слябы укладывают группами над шкворневыми балками.

В случае недоиспользования грузоподъемности вагона разрешается укладывать четвертый ярус по схеме второго, а пятый - по схеме нижнего.

В полувагонах с деревянной обшивкой двери ограждают щитами.

§ 64. Слябы длиной 2600 - 3500 мм шириной 1000 - 1700 мм и толщин 100 - 200 мм размещают в полувагоне в два ряда на подкладках (рис. 3.94 - 3.97). Если грузоподъемность вагона используется полностью при загрузке в три яруса, то слябы загружают в четвертый ярус, размещая их равными группами над тележками полувагона (рис. 3.98 и 3.99).

В полувагонах с деревянной обшивкой двери ограждают щитами.

Рис. 3.92:

1 - подкладки; 2 - щит

Рис. 3.93

Рис. 3.94:

1 - подкладки; 2 - щит

Рис. 3.95:

1 - подкладки; 2 - щит

§ 65. Слябы длиной 1700 мм и шириной 600 мм располагают в полувагоне в два яруса (рис. 3.100). Каждый ярус слябов грузят симметрично относительно продольной и поперечной оси вагона. В первом ярусе 26 слябов: по 12 вдоль боковых стен и по одному поперек вагона с обеих сторон. Вдоль торцовых дверей укладывают поперечные бруски 2 сечением 100×150 мм и длиной, равной ширине полувагона, на высоту погрузки слябов, и продольные бруски 1 по месту. Во втором ярусе укладывают 24 сляба, по 12 в каждом ряду, причем группы слябов по 6 шт. располагают вплотную к упорным брускам у торцовых дверей. В середине вагона укладывают распорные бруски 4 и крепят планками 3. Если полная грузоподъемность вагона не используется, то слябы укладывают в третьем ярусе у торцовых дверей (рис. 3.101).

Рис. 3.96:

1 - подкладки; 2 - щит

Рис. 3.97:

1 - подкладки; 2 - щит

При погрузке в четырехосные полувагоны слябы длиной более 3600 мм размещают на деревянных подкладках сечением 40×100 мм и длиной, равной ширине полувагона, правильными рядами вдоль полувагона с раздвижкой от продольной оси вагона к боковым стенкам. Подкладки располагают на концевых, шкворневых, промежуточных и средних поперечных балках полувагона.

Рис. 3.98:

1 - подкладки; 2 - щит

Рис. 3.99:

1 - подкладки; 2 - щит

Рис. 3.100:

1 - продольные упорные бруски; 2 - поперечные бруски сечением 100×150 мм; 3 - соединительные планки; 4 - распорные бруски

Рис. 3.101:

1 - продольные упорные бруски; 2 - поперечные бруски сечением 100×150 мм; 3 - соединительные планки; 4 - распорные бруски

Рис. 3.102:

1 - подкладки; 2 - торцовый щит

Рис. 3.103:

1 - подкладки; 2 - торцовый щит

Слябы длиной 3600 - 3900 мм и шириной 1050 - 1300 мм размещают в полувагоне следующим порядком (рис. 3.102): первый ярус укладывают на восемь подкладок вплотную к боковым стенам вагона в два продольных ряда, во втором ярусе над шкворневыми баками слябы размещают также в два ряда. В середине вагона второй ярус загружается в том случае, если не обеспечивается полная грузоподъемность.

Слябы длиной 3900 - 5900 мм и шириной 1050 - 1300 мм укладывают в полувагоны в два яруса. Слябы весом до 8,0 т размещают в обоих ярусах по два продольных ряда (рис. 3.103), весом 8,0 - 10,5 т - в нижнем ярусе по два продольных ряда, в верхнем - один (рис. 3.104). При недоиспользовании грузоподъемности вагона допускается разместить один сляб в третьем ярусе в середине вагона (рис. 3.105).

В полувагонах с деревянной обшивкой двери ограждают щитами.

Рис. 3.104:

1 - подкладки; 2 - торцовый щит

Рис. 3.105:

1 - подкладки; 2 - торцовый щит

Слитки

§ 66. Стальные слитки весом до 8 т размещают на четырехосную платформу тремя группами по три слитка над шкворневыми балками и по три - в середине платформы (рис. 3.106). У торцовых бортов, укрепленных короткими деревянными стойками, укладывают упорный брус сечением 70×80 мм и длиной, равной ширине платформы. Брус прибивают к полу пятью гвоздями длиной 120 мм. Между упорным брусом и крайним слитком укладывают по два распорных бруска сечением 70×80 мм длиной по листу и прибивают к полу пятью гвоздями длиной 120 мм.

Кроме того, от продольного смещения каждую группу слитков крепят двумя упорными брусками размерами 50×100×350 мм, прибиваемыми к полу тремя гвоздями длиной 100 мм.

§ 67. Стальные слитки весом до 8 т и длиной не менее 2000 мм размещают в четырехосные полувагоны на тележках ЦНИИ-Х3 четырьмя поперечными рядами. У торцовых дверей укладывают по три слитка в ряду, в середине вагона в двух рядах - по два слитка. Слитки размещают на подкладках, уложенных на поперечные балки полувагона. Подкладки должны быть сечением не менее 40×150 мм и длиной, равной ширине полувагона. У торцовых дверей укладывают поперечные торцовые брусья сечением не менее 100×150 мм и длиной, равной ширине полувагона (рис. 3.107 и 3.108).

Средние слитки крайних штабелей выдвигают до упора в концы слитков среднего штабеля и укладывают на дополнительные подкладки.

Слитки весом от 8 до 9 т длиной не менее 2000 мм грузят в четырехосные полувагоны с тележками ЦНИИ-Х3-О, размещая их, как показано на рис. 3.109 и 3.110. При недоиспользовании грузоподъемности в середине вагона симметрично продольной оси укладываются дополнительно по одному слитку, как показано на рис. 3.107 и 3.109.

Рис. 3.106:

1 - упорный брус; 2 - распорный брус; 3 - распорный брусок

Опорные поверхности подкладок при погрузке слитков весом более 8 т в зимнее время следует посыпать тонким слоем сухого чистого песка. Слитки размещают на подкладки, уложенные на поперечные балки полувагона. Подкладки должны быть сечением не менее 40×150 мм и длиной, равной ширине полувагона. Нижняя поверхность слитков, соприкасающаяся с подкладками, должна быть ровной, без приливов. У торцовых дверей укладывают поперечные торцовые брусья сечением не менее 100×150 мм и длиной, равной ширине полувагона. Вплотную к упорным брускам и торцам слитков укладывают распорные бруски такого же сечения. Допускается скрепление упорно-распорных брусков между собой скобами. Для ликвидации зазоров между слитками и распорными брусками разрешается применять бруски-вкладыши, каждый из которых после плотной подгонки прибивают к распорному бруску гвоздями длиной не менее 100 мм. От поперечных смещений каждый штабель слитков крепят двумя парами упорных брусков сечением 50×150×300 мм, прибиваемыми к подкладке тремя гвоздями длиной не менее 100 мм.

Рис. 3.107:

1 - распорные бруски; 2 - подкладки; 3 - упорные бруски; 4 - соединительные планки; 5 - поперечные упорные брусья

Рис. 3.108:

1 - упорные бруски; 2 - подкладки; 3 - распорные бруски; 4 - соединительные планки

Рис. 3.109:

1 - распорные бруски; 2 - подкладки; 3 - упорные бруски; 4 - соединительные планки; 5 - поперечные упорные брусья

Рис. 3.110:

1 - распорные бруски; 2 - подкладки; 3 - упорные бруски; 4 - соединительные планки; 5 - поперечные упорные брусья

Рис. 3.111:

1 - торцовые стойки; 2 - упорные бруски; 3 - распорные бруски; 4 - короткие стойки; 5 - увязка стоек

Рис. 3.112:

1 - торцовые стойки; 2 - упорные бруски; 3 - распорные бруски

§ 68. Чугунные слитки весом до 70 кг грузят в полувагоны и на платформы навалом с равномерным распределением груза по всей площади пола. При перевозке слитков на платформах борта последних наращивают до высоты погрузки в соответствии с требованиями § 4 настоящей главы. При перевозке слитков в полувагонах должны выполняться требования § 3 и 8 настоящей главы.

§ 69. Стальные слитки весом до 8 т перевозят на платформах с металлическими бортами (рис. 3.111). При недоиспользовании грузоподъемности вагона можно дополнительно укладывать один - два слитка, разместив при этом нее слитки равномерно по длине вагона (рис. 3.112). Слитки укладывают плашмя на пол платформы поперек вагона. Каждый из крайних слитков закрепляют тремя продольными брусками сечением 50×100 мм, уложенными враспор между крайними слитками и упорными брусками у торцового борта платформы. Каждый брусок прибивают к полу четырьмя гвоздями длиной 100 мм. В пределах каждой крайней секции бокового борта размещают два слитка, располагая их торцы против боковых стоечных скоб; остальные слитки размещают в пределах средних секций продольных бортов платформы. Допускается погрузка на платформы с металлическими бортами и клиновыми запорами без установки боковых коротких стоек.

У остальных платформ продольные борта укрепляют короткими стойками. Противоположные боковые стойки попарно увязывают проволокой диаметром 6 мм в восемь нитей. Каждый слиток закрепляют двумя поперечными упорными брусками сечением 50×100 мм, длина которых равна расстоянию от торца слитка до продольного борта, и прибивают к полу платформы четырьмя гвоздями длиной 100 мм.

Блюмсы

§ 70. Блюмсы длиной до 5900 мм грузят на четырехосные платформы (рис. 3.113). На пол платформы вплотную к обоим торцовым бортам укладывают плашмя по одному поперечному упорному деревянному бруску сечением 50×100 мм и длиной, равной расстоянию между боковыми бортами. Каждый из этих брусков прибивают к полу платформы четырьмя гвоздями длиной 90 - 100 мм. Груз укладывают правильными рядами вдоль платформы в один или два яруса. Блюмсы, уложенные у торцовых бортов, должны прилегать вплотную к поперечным упорным брускам. Каждую секцию боковых бортов и каждый торцовый борт платформы укрепляют двумя короткими стойками. Противоположные стойки у боковых бортов попарно увязывают проволокой диаметром 6 мм в восемь нитей. При погрузке блюмсов длиной от 3600 до 5900 мм увязывают только стойки, вставленные в первые и третьи стоечные скобы от торцовых бортов платформы.

Рис. 3.113:

1 - упорные брусья; 2 - торцовые стойки; 3 - боковые стойки; 4 - проволочные увязки

Рис. 3.114:

1 - подкладки; 2 - прокладки; 3 - торцовые ограждения

§ 71. Блюмсы длиной 1150 - 1400 мм при погрузке в полувагоны (рис. 3.114) размещают в два-три яруса по высоте двумя продольными рядами. Блюмсы укладывают поперек вагона вплотную к боковым бортам и торцовым дверям. В случае если верхние ряды будут неполными, блюмсы укладывают над тележками вагонов.

Под нижний ярус вплотную к торцовым дверям укладывают по четыре продольных подкладки размерами 25×100×2700 мм, а между ярусами размещают также по четыре прокладки такого же размера. Люковые закидки полувагонов увязывают за кронштейны люковых крышек проволокой.

Рис. 3.115:

1 - доски торцового ограждения; 2 - подкладки

Рис. 3.116:

1 - доски торцового ограждения; 2 - подкладки

§ 72. Блюмсы длиной 2800 - 5900 мм укладывают в полувагоне на восемь подкладок сечением 70×100 мм и длиной, равной ширине полувагона. Две крайние подкладки укладывают между гофрами крышек люков в концевой части полувагона, при этом концы их опираются на полки продольных угольников нижней обвязки полувагона. Остальные подкладки укладывают на шкворневые и промежуточные поперечные балки полувагона.

Рис. 3.117:

1 - доски торцового ограждения; 2, 3 - подкладки

Рис. 3.118:

1 - доски торцового ограждения; 2, 3 - подкладки

Торцовые двери по всей высоте погрузки ограждают досками или горбылями толщиной не менее 30 мм и длиной, равной ширине полувагона.

Блюмсы длиной 4000 - 5900 мм (рис. 3.115) размещают на подкладки вдоль вагона двумя поперечными штабелями в два яруса по высоте. При неполном заполнении второго яруса блюмсы укладывают с раздвижкой от продольной оси полувагона к боковым стенам равномерно с каждой стороны.

Блюмсы длиной 3000 - 3500 мм (рис. 3.116) укладывают на подкладки вдоль вагона тремя поперечными штабелями. Крайние ряды размещают вплотную к торцовым дверям, а средний (по поперечной оси полувагона) с раздвижкой блюмсов от продольной оси полувагона к боковым стенам. Не вмещающиеся блюмсы в первом ярусе укладывают на блюмсы крайних штабелей вплотную к продольным стенам полувагона.

Блюмсы длиной 2600 мм (рис. 3.117) размещают тремя поперечными штабелями на шести подкладках, уложенных на средние, промежуточные и шкворневые балки полувагона: четыре блюмса укладывают поперек полувагона по два вплотную к каждой торцовой двери.

Блюмсы длиной 2800 - 2900 мм (рис. 3.118) размещают вдоль полувагона на подкладки четырьмя поперечными штабелями. Торцовые двери по высоте погрузки ограждают щитами, кронштейны и закидки разгрузочных люков полувагона увязывают проволокой.

Изложницы

§ 73. Изложницы весом единицы до 1,5 т устанавливают на платформе (рис. 3.119) в шесть рядов по ширине и в восемь рядов по длине вагона. Ряды изложниц размещают с равномерными зазорами по длине платформы. Изложницы, размещенные у торцовых бортов в крайних рядах, увязывают между собой проволокой диаметром 6 мм в семь нитей за имеющиеся на них скобы. Между собой все изложницы увязывают обвязкой из проволоки диаметром 6 мм в две нити. У каждого торцового борта платформы укладывают по одному поперечному упорному бруску размерами 100×100×2750 мм, каждый брусок прибивают к полу платформы 10-ю гвоздями диаметром 6 мм, длиной 150 мм. Торцовые борта крепят короткими стойками.

Рис. 3.119:

1 - обвязка из проволоки; 2 - торцовая стойка; 3 - увязка; 4 - упорный брус

§ 74. Изложницы весом 4,6 т в количестве 15 шт. грузят на платформу с равномерными зазорами между ними, симметрично относительно осей вагона, как показано на рис. 3.120. Укладывают изложницы длинной стороной поперек вагона в количестве 11 шт., а вдоль вагона - 4 шт. Изложницы размещают на расстоянии 400 - 500 мм от торцовых бортов. Секции торцовых бортов платформы укрепляют короткими стойками, вдоль торцовых бортов укладывают упорные бруски размерами 100×100×2750 мм. Каждый брус прибивают к полу 10-ю гвоздями диаметром 6 мм, длиной не менее 150 мм. В зазор между упорными брусками и крайними изложницами укладывают по два распорных бруска сечением 100×100×(300 ÷ 500) мм и каждый прибивают пятью гвоздями диаметром 6 мм, длиной 150 мм (см. рис. 3.119).

Рис. 3.120:

1 - упорный брус; 2 - распорный брус

Рис. 3.121:

1 - продольные прокладки; 2 - клинообразные бруски; 3 - стойки; 4 - проволочные увязки изложниц; 5 - проволочные растяжки

§ 75. Изложницы весом до 6,7 т в количестве от 9 до 11 шт. (рис. 3.121) укладывают на платформе на два ряда подкладок сечением 25×200 мм и длиной не менее 2000 мм так, чтобы стыки подкладок, находящихся в одном ряду, приходились между изложницами. Каждую подкладку прибивают к полу платформы тремя гвоздями длиной не менее 75 мм. Изложницы устанавливают поперек платформы вплотную друг к другу. С наружных сторон крайние изложницы подбивают двумя клинообразными упорными брусками размерами 150×250 мм. Эти бруски укладывают на подкладки вдоль платформы и прибивают к полу (четыре подкладки) каждый четырьмя гвоздями длиной не менее 150 мм. Каждую крайнюю изложницу укрепляют двумя растяжками из проволоки диаметром 6 мм в шесть нитей. Растяжки прикрепляют к приливам изложниц. Каждые три изложницы, расположенные по концам платформы, увязывают между собой за имеющиеся на них скобы проволокой диаметром 6 мм в шесть нитей. Разрешается увязывать изложницы проволокой диаметром 6 мм в четыре нити порядком, как показано на рис. 3.122. Во все стоечные скобы продольных бортов вставляют, кроме платформ с металлическими бортами и клиновыми запорами, деревянные стойки, которые попарно увязывают проволокой диаметром 6 мм в восемь нитей.

Рис. 3.122:

1 - продольные прокладки; 2 - клинообразные бруски; 3 - стойки; 4 - горизонтальные проволочные увязки; 5 - проволочные растяжки; 6 - увязка стоек

Рис. 3.123:

1 - подкладки; 2 - поперечные упорные бруски; 3 - растяжки; 4 - увязка изложниц

§ 76. Погрузка и крепление изложниц весом от 6,7 до 12,5 т на четырехосные платформы показаны на рис. 3.123. Если не используется грузоподъемность вагона, то в середине платформы изложницы могут устанавливаться по две вдоль вагона симметрично продольной оси (рис. 3.124).

Каждую изложницу размещают на две деревянные подкладки сечением не менее 25×150 мм и длиной, равной ширине платформы, или при размещении подкладок вдоль вагона концы их должны выступать на 300 - 400 мм от боковой поверхности изложницы. Подкладку прибивают к полу платформы двумя гвоздями длиной не менее 75 мм. Каждую изложницу закрепляют четырьмя поперечными упорными брусками сечением не менее 150×200×350 мм.

Бруски укладывают на подкладки, плотно пригоняют к изложницам и прибивают к полу платформы (через подкладку) каждый тремя гвоздями длиной не менее 200 - 225 мм. Все изложницы увязывают между собой с двух сторон за приливы или цапфы проволокой диаметром 6 мм в четыре нити.

Рис. 3.124:

1 - подкладки; 2 - поперечные упорные бруски; 3 - растяжки; 4 - увязка изложниц

Изложницы закрепляют восемью растяжками (по четыре с каждой стороны) из проволоки диаметром 6 мм в пять нитей, концы увязывают за цапфы, как показано на рис. 3.123.

§ 77. Изложницы, боковая поверхность которых не имеет плоской опоры, устанавливают на платформы вертикально над хребтовой балкой вплотную друг к другу симметрично поперечной оси вагона (рис. 3.125) в количестве 5 шт. или при недоиспользовании грузоподъемности 6 шт.

Рис. 3.125:

1 - упорный брус; 2 - увязка; 3 - продольные увязки; 4 - упорные бруски

От продольного смещения крайние изложницы крепят двумя упорными брусками размерами 100×150×800 мм, которые прибивают к полу 10-ю гвоздями каждый длиной 150 мм. Кроме того, их увязывают за верхние цапфы к стоечным скобам платформы четырьмя увязками из проволоки диаметром 8 мм в четыре нити. Между собой за цапфы изложницы в продольном направлении увязывают двумя растяжками из проволоки диаметром 8 мм, по четыре в каждой.

От поперечного смещения каждую изложницу крепят двумя парами брусков сечением 50×100 мм и длиной, равной зазору между бортом платформы и изложницей. Каждый брусок прибивают к полу платформы пятью гвоздями длиной 100 мм.

§ 78. Изложницы весом 8,5 т грузят в четырехосный полувагон тремя группами (рис. 3.126). У торцовых дверей с каждой стороны укладывают по упорному брусу сечением 100×150 мм и длиной, равной внутренней ширине полувагона. Вплотную к этим брускам укладывают по две изложницы поперек вагона, располагая их на трех продольных подкладках размерами 30×150×2000 мм. Среднюю подкладку располагают над хребтовой балкой, а крайние - посередине крышек люков. Каждую изложницу средней группы укладывают вдоль вагона на две поперечные подкладки сечением 30×100 мм и длиной, равной ширине полувагона. При недоиспользовании грузоподъемности в середине вагона можно расположить две изложницы симметрично продольной оси вагона (рис. 3.127).

Подкладки располагают на поперечных балках и между гофрами крышек люков. От поперечного смещения каждую изложницу средней группы крепят упорными брусками сечением 50×100 мм и длиной, равной зазору между нижней обвязкой продольной стены полувагона и изложницей. Распорные бруски размещают на поперечных подкладках и прибивают к ним тремя гвоздями длиной 80 мм.

§ 79. Изложницы весом 14 - 16 т грузят в четырехосные полувагоны двумя группами, размещают их на поперечных подкладках сечением 50×150 мм и длиной, равной ширине полувагона (рис. 3.128). Подкладки располагают на поперечных балках и у торцовых дверей полувагона между гофрами крышек люков.

Рис. 3.126:

1 - упорный брус; 2 - продольные подкладки; 3 - поперечные подкладки; 4 - распорный брус; 5 - щит

Рис. 3.127:

1 - упорный брусок; 2 - продольные подкладки; 3 - поперечные подкладки; 4 - распорный брус; 5 - щит

Между крайней изложницей и торцовым порожком с каждой стороны полувагона укладывают упорный брус сечением 100×100 мм и длиной, равной ширине полувагона.

От поперечного смещения каждую изложницу крепят поперечными упорными брусками сечением 50×100 мм и длиной, равной зазору между изложницей и стойками продольной стены полувагона. Упорные бруски располагают на поперечных подкладках и прибивают к ним тремя гвоздями длиной 100 мм.

Рис. 3.128:

1 - подкладки; 2, 3 - распорные бруски; 4 - упорный брус; 5 - поперечная соединительная планка

От продольного сдвига изложницы крепят продольными распорными брусками сечением 100×100 мм и длиной, равной зазору между средними изложницами. Распорные бруски укладывают на поперечные соединительные планки размерами 25×100×2700 мм и прибивают в каждом сечении двумя гвоздями длиной 120 мм.

Рулоны (штрипсы)

§ 80. Ленточный металл толщиной до 6 мм и шириной до 700 мм в рулонах (кругах) с наружным диаметром до 1300 мм и весом одной единицы до 2,5 т по ширине платформы укладывают продольными рядами: рулоны с наружным диаметром 600 - 650 мм укладывают в четыре ряда, диаметром 700 - 900 мм - в три ряда (рис. 3.129), диаметром свыше 900 и до 1300 мм - в два ряда. Ряды рулонов размещают симметрично продольной оси платформы. В каждом ряду рулоны устанавливают наклонно или вертикально, а у торцовых бортов платформы укладывают горизонтально на две продольные подкладки сечением не менее 100×100 мм и длиной, равной длине платформы. Подкладки располагают одну от другой на расстоянии, равном половине диаметра устанавливаемого на них рулона. Подкладку прибивают 17-ю гвоздями длиной 150 мм. Подкладки могут быть составленными по длине из нескольких частей, укладываемых встык. Каждую составную часть подкладки независимо от ее длины прибивают не менее чем двумя гвоздями.

На продольные подкладки вплотную к обоим торцовым бортам платформы укладывают по одному поперечному бруску сечением 50×150 мм и длиной не менее 2000 мм, прибиваемому к каждой подкладке двумя гвоздями длиной не менее 125 мм.

Оба продольных ряда рулонов, наклонно или вертикально установленных, а также уложенных горизонтально у торцового борта, увязывают проволокой диаметром 6 мм в две нити, при этом проволоку пропускают через отверстия рулонов. Если между полурядами наклонно уложенных рулонов посередине платформы остается зазор, то между продольными подкладками укладывают вдоль платформы по два распорных бруска сечением не менее 75×100 мм и длиной, равной величине зазора. Каждый распорный брусок прибивают к полу платформы тремя гвоздями длиной 125 мм.

Во все стоечные скобы устанавливают короткие стойки.

Рис. 3.129:

1 - торцовые стойки; 2 - поперечный упорный брусок; 3 - продольные подкладки; 4 - увязка рядов рулонов; 5 - увязка рулонов, уложенных плашмя

Рис. 3.130:

1 - подкладки; 2 - поперечные упорные бруски

§ 81. При перевозке рулонов листового металла (штрипсов) в полувагонах каждую деревянную торцовую дверь ограждают двумя брусками сечением 40×150 мм и длиной, равной ширине полувагона. Каждый брусок прибивают четырьмя гвоздями длиной 75 мм к торцовой двери, при этом один из них располагают на продольных подкладках, а другой - на уровне верхней кромки штрипса. Люковые закидки увязывают за кронштейны проволокой в соответствии с § 3 настоящей главы.

§ 82. Размещение рулонов листового металла (штрипсы) весом до 2 т в четырехосных полувагонах показано на рис. 3.130. На пол полувагона вдоль продольной оси укладывают четыре подкладки сечением 50×100 мм. Подкладки могут быть сплошными по всей длине вагона или составными при стыковании их на поперечных балках вагона. Расстояние между подкладками должно быть не менее 700 мм, а от подкладки до боковой стены и хребтовой балки - не более 400 мм. Штрипсы располагают симметрично продольной и поперечной осям вагона в два яруса.

Зазоры между рулонами вдоль и поперек вагона не должны превышать 30 мм. Штрипсы укладывают по всей площади пола вагона. Если же такая погрузка невозможна, то между двумя группами штрипсов посередине вагона укладывают распорные бруски сечением 100×100 мм.

Каждый брусок прибивают тремя гвоздями длиной 150 мм к подкладкам, уложенным под штрипсы.

§ 83. Рулоны металла весом от 2,0 до 3,5 т, наружным диаметром от 1000 до 1350 мм и высотой 500 - 700 мм размещают в четырехосном полувагоне в два яруса симметрично продольной и поперечной осям полувагона (рис. 3.131). Каждый ряд нижнего яруса опирается на две подкладки сечением 50×150 мм и длиной, равной внутренней длине полувагона, уложенные на расстоянии 600 - 700 мм друг от друга. Подкладки могут быть составлены из отдельных кусков, состыкованных на поперечных балках вагона. Между крайними штрипсами нижнего яруса и торцовым порожком укладывают упорный брус сечением 70×80 мм и длиной, равной внутренней ширине полувагона.

Верхний ярус укладывают вдоль вагона над хребтовой балкой. При неполном верхнем ярусе штрипсы располагают над шкворневыми балками.

§ 84. Рулоны (штрипсы) диаметром до 1400 мм и весом от 3,5 до 4,5 т размещают в полувагоне вертикально в один ярус в два-три ряда симметрично продольной оси вагона (рис. 3.132). На пол вагона укладывают четыре - шесть подкладок сечением 50×100 мм (о размещении подкладок см. § 82). Между группами рулонов посередине вагона устанавливают распорные бруски сечением 100×100 мм и прибивают к продольным подкладкам четырьмя гвоздями длиной 150 мм.

Рис. 3.131:

1 - упорные брус; 2 - подкладки

Рис. 3.132:

1 - распорные бруски; 2 - подкладки; 3 - поперечные упорные бруски

Рис. 3.133:

1 - упорный брус; 2 - подкладки; 3 - скрепляющая планка

§ 85. Рулоны (штрипсы) весом 5,5 - 7; 9 т размещают в четырехосном полувагоне двумя-тремя группами (рис. 3.133 - 3.135). Каждую группу располагают на пять подкладок сечением 50×150 мм, уложенных вдоль вагона. Среднюю подкладку размещают над хребтовой балкой, а остальные - параллельно средней на расстоянии 300 - 350 мм друг от друга. Длина двух крайних и средней подкладок равна длине погруженных рулонов, а остальных - длине полувагона. Подкладки могут быть составными по длине (при стыковании их на поперечных балках).

Рис. 3.134:

1 - упорный брус; 2 - подкладки; 3 - скрепляющие планки

Рис. 3.135:

1 - упорный брус; 2 - подкладки; 3 - скрепляющие планки

Каждую группу рулонов ограждают скрепляющими досками сечением 50×100 мм и длиной, равной ширине погрузки, которые прибивают к подкладкам двумя гвоздями длиной 100 мм. Если полностью грузоподъемность вагонов не используется, то рулоны весом 4 - 5 т дополнительно можно грузить в соответствии с требованиями § 84 (см. рис. 3.132); рулоны весом 5,5 - 7,0 т - в соответствии с требованиями § 86 (рис. 3.136); рулоны весом 9 т - в соответствии с требованиями § 86 (рис. 3.137).

Между крайними рулонами и торцовыми дверями с каждой стороны полувагона укладывают упорный брус сечением 50×100 мм и длиной, равной внутренней ширине полувагона. Брусья крепятся к продольным подкладкам пятью гвоздями длиной 100 мм.

§ 86. Рулоны листового металла диаметром до 1350 мм и весом 5 - 7,5 т при погрузке в полувагоны укладывают двумя группами симметрично продольной и поперечной осям над хребтовой и поперечными балками (см. рис. 3.136 и 3.137). При этом рулоны наружным диаметром 1000 - 1200 мм при погрузке над поперечными балками располагают симметрично продольным осям этих балок.

Рис. 3.136:

1 - подкладки; 2 - поперечные упорные бруски

Рис. 3.137:

1 - подкладки; 2 - поперечный упорный брусок; 3 - распорный брусок

При погрузке рулонов диаметром 1200 - 1350 мм крайние рулоны размещают вплотную к поперечным упорным брускам у торцовых дверей полувагонов. Остальные рулоны допускается укладывать с некоторым смещением относительно оси поперечных балок. Зазор между рулонами в каждой группе в направлении вдоль вагона не должен превышать 30 мм.

Каждая группа рулонов опирается на пять подкладок сечением не менее 50×200 мм, уложенных вдоль вагона. Среднюю подкладку укладывают над хребтовой балкой, а остальные - параллельно средней на расстоянии 250 - 300 мм друг от друга. Подкладки, расположенные рядом со средней, по своей длине должны быть равны внутренней длине полувагона.

Каждую группу рулонов с обеих сторон закрепляют двумя поперечными упорными брусками сечением не менее 50×100 мм и длиной, равной ширине полувагона. Упорные бруски прибивают к каждой продольной подкладке двумя гвоздями длиной 100 мм.

При недоиспользовании грузоподъемности вагонов необходимо дополнительно грузить один рулон в середине полувагона и крепить его в соответствии с требованием § 85 (см. рис. 3.135).

Бандажи и цельнокатаные колеса

§ 87. Бандажи на платформы грузят следующим порядком (рис. 3.138): при ширине бандажей не более 135 мм у торцовых бортов в каждом ряду укладывают плашмя друг на друга по три бандажа, которые в двух местах связывают проволокой диаметром 6 мм в две нити; два нижних бандажа укладывают гребнями вниз, а третий (верхний) - с некоторым смещением к середине платформы; четвертый бандаж устанавливают наклонно под углом не более 45° к полу платформы с опорой на бандажи, уложенные плашмя; все остальные бандажи укладывают также наклонно до середины платформы. В таком же порядке укладывают бандажи от противоположного торцового борта.

Соседние ряды бандажей должны укладываться вплотную друг к другу без зазоров между ними.

При ширине бандажей более 135 мм у торцовых бортов в каждом ряду укладывают по два бандажа, в остальном бандажи грузят так же, как указано выше.

Наклонно бандажи размещают в несколько продольных рядов с одинаковыми промежутками между ними, а крайние ряды бандажей устанавливают к боковым бортам платформы. Между наклонными рядами бандажей на пол платформы устанавливают бандажи в вертикальном положении кругами катания вдоль платформы.

Каждый ряд наклонно установленных бандажей ограждают брусками, укладываемыми вдоль платформы вплотную к бандажам. Продольные ограждающие бруски должны иметь сечение не менее 50×100 мм. Допускается применение брусков, составленных по длине из отдельных частей длиной не менее 2000 мм. Каждый брусок прибивают к полу платформы четырьмя гвоздями длиной не менее 100 мм.

Против каждого бруска устанавливают две короткие боковые стойки; между этими стойками и продольными брусками плотно пригоняют деревянные распорки. Толщина распорки должна быть не менее 35 мм. Каждую распорку прибивают по концам к полу платформы двумя гвоздями длиной не менее 85 мм.

Со стороны обоих торцовых бортов, а также посередине платформы вплотную к вертикально расположенным бандажам укладывают поперечные упорные бруски сечением не менее 50×100 мм и длиной, равной ширине промежутка между продольными рядами наклонно установленных бандажей. Между поперечными брусками в середине платформы, а также между крайними брусками и торцовыми бортами (у торцовых стоек) плотно пригоняют по две деревянных распорки сечением не менее 50×100 мм (рис. 3.139). Каждый поперечный брусок и распорка должны быть прибиты к полу двумя гвоздями длиной не менее 100 мм.

В двух крайних рядах каждый полуряд наклонно уложенных бандажей (от торцового борта до середины платформы) увязывают проволокой диаметром 6 мм в две нити, которую пропускают через отверстия бандажей и закрепляют за стоечные скобы. Концы одной из увязок закрепляют за стоечные скобы на одной боковой стороне платформы, концы другой увязки - на другой. Бандажи, установленные вертикально вдоль платформы, взаимно увязывают во всех местах соприкосновения их друг с другом гребнями и поверхностями катания. Ближайшие к торцовым бортам бандажи (из числа установленных вертикально) увязывают за скобы на лобовых брусьях.

Рис. 3.138:

1 - продольные бруски; 2 - торцовые стойки; 3 - распорки; 4 - проволочные увязки; 5 - поперечная подкладка; 6 - короткие боковые стойки

Рис. 3.139:

1 - поперечная подкладка; 2 - распорки; 3 - торцовые стойки; 4 - увязка крайних бандажей со стороны концевой балки; 5 - взаимная увязка вертикально установленных бандажей; 6 - боковые стойки

Рис. 3.140:

1 - поперечный упорный брусок

Бандажи, установленные вертикально, увязывают проволокой диаметром 6 мм в четыре нити. В местах перегиба проволоки во избежание перетирания ее бандажами применяют подкладки из листового железа толщиной 1 - 2 мм.

§ 88. В четырехосном полувагоне колеса и бандажи устанавливают тремя продольными рядами (рис. 3.140). При этом в двух крайних рядах колеса и бандажи устанавливают поперек вагона вплотную к боковым бортам, а в среднем - вдоль вагона.

Средний ряд состоит из секций по четыре колеса, которые ставят вплотную к брускам, прибитым к торцовым дверям четырьмя гвоздями диаметром 6 мм, длиной 150 мм. Сечение бруска 100×100 мм, длина 2800 мм. Гребни одной секции колес направлены в одну сторону, а гребни следующей секции - в противоположную.

Колеса в крайних рядах устанавливают наклонно, причем первые колеса размещают плашмя с постепенным подъемом восьми колес до 85°, а замыкают четырьмя-пятью колесами под углом 45°.

В крайние секции из четырех колес среднего ряда вставляют в отверстия ступиц стойки диаметром 150 - 160 мм и длиной 1000 мм.

Люковые закидки полувагонов увязывают за кронштейны люков проволокой.

Металлические прокатные валки

§ 89. Настоящими Техническими условиями устанавливается способ погрузки и крепления на железнодорожных платформах металлических прокатных валков, вес отдельных единиц которых до 27 т включительно, диаметр шеек валков до 800 мм, диаметр валков до 1200 мм, длина валков равна или больше их диаметров.

Прокатные валки размещают вдоль платформы так, чтобы продольная ось каждого из них была параллельна продольной оси платформы (рис. 3.141 и 3.142). В зависимости от веса и размеров отдельных валков их укладывают по ширине платформы по одному (см. рис. 3.142) или по нескольку штук в ряду (см. рис. 3.141) и по длине платформы - в один или несколько рядов (см. рис. 3.141 и 3.142).

Валки весом отдельных единиц до 2 т, длиной опорной поверхности каждого из них не менее 500 мм, а также валки весом отдельных единиц от 2 до 15 т, длиной опорной поверхности не менее 5000 мм укладывают непосредственно на пол платформы. Валки указанного веса с меньшей длиной опорной поверхности (см. рис. 3.141), а также валки весом отдельных единиц более 15 т независимо от длины опорной поверхности во всех случаях погрузки укладывают на поперечные упорные подкладки так, чтобы между нижней кромкой валков и полом платформы оставался зазор не менее 30 мм.

По согласованию грузоотправителя с грузополучателем допускается укладка на платформы отдельных прокатных валков с одинаковым весом и размерами вплотную один к другому. В тех случаях, когда прокатные валки укладывают непосредственно на пол платформы, применяют поперечные упорные бруски. Каждый уложенный вдоль платформы прокатный валок или группу прокатных валков, размещенных по ширине платформы в ряд, закрепляют с обеих торцовых сторон поперечными упорными брусками длиной 2600 - 2700 мм. Упорные бруски должны плотно прилегать к каждой торцовой грани валка по всей длине соприкосновения с ними. В зависимости от веса одного или нескольких валков, прилегающих к поперечным упорным брускам сечения последних должно иметь следующие минимальные размеры: при весе до 8 т - 75×100 мм, от 8 до 15 т - 100×150 мм.

Для обеспечения необходимого зазора 30 мм между нижней поверхностью валков и полом платформы применяют поперечные подкладки, которые одновременно являются и упорами. На эти подкладки должны опираться шейками. Подкладки изготовляются из брусков сечением не менее 175×250 мм и длиной 2700 мм. У подкладок в местах их соприкосновения с опорными поверхностями шеек валков делают выемки глубиной 20 - 25 мм полукруглой формы.

Во всех случаях погрузки применяют продольные распорные бруски сечением не менее 75×100 мм, которые располагают параллельно продольной оси платформы. Со стороны торцовых бортов платформы против каждой короткой торцовой стойки укладывают по одному распорному бруску. Концы распорных брусков должны плотно прилегать к торцовому борту и ближайшему поперечному упорному бруску или подкладке.

При погрузке прокатных валков в два ряда и более вдоль платформы между каждыми двумя смежными рядами укладывают по два распорных бруска на расстоянии один от другого (по ширине платформы), равном расстоянию между торцовыми стойками. Распорные бруски должны плотно прилегать концами к поперечным упорным брускам или подкладкам смежных рядов груза.

Рис. 3.141:

1 - прокатные валки весом 22,6 т; 2 - подкладки, изготовленные из четырех брусков; 3 - прокатные валки весом 6,4 т; 4 - подкладки, изготовленные из одного бруска; 5 - продольные распорные бруски; 6 - поперечные упорные клинья; 7 - скобы; 8 - торцовые стойки

Рис. 3.142:

1 - прокатные валки весом 27 т; 2 - подкладки, изготовленные из четырех брусков; 3 - продольные распорные бруски; 4 - поперечные упорные клинья; 5 - скобы; 6 - торцовые стойки

Каждый валок или несколько валков, уложенных в одном ряду вплотную один к другому, закрепляют не менее чем четырьмя поперечными упорными клиньями (по два клина с каждой стороны валка или группы валков). При размещении валков на подкладках упорные клинья укладывают на верхние бруски подкладок вплотную к шейкам каждого валка с обеих сторон и закрепляют к подкладкам скобами. Каждый такой клин должен быть прикреплен к подкладкам не менее чем двумя строительными скобами диаметром стержня не менее 10 мм. Скобы забивают с боковых сторон клина под углом 40 - 45° к полу платформы (см. рис. 3.141 и 3.142).

При укладке одного, двух и нескольких валков в одном ряду непосредственно на пол платформы упорные клинья укладывают вплотную к валкам поперек платформы и прибивают к полу гвоздями.

Клинья размещают от торцов валков на расстоянии, равном ¼ их длины.

При перевозке валков длиной более 7000 мм, укладываемых на пол платформы, каждый валок дополнительно укрепляют четырьмя упорными клиньями (по два с каждой стороны вала). Формы поперечных упорных клиньев показаны на рис. 3.141 и 3.142.

Допускаемые сечения (высота и ширина) поперечных упорных клиньев определяются в зависимости от диаметра валков:

Сечение упорных клиньев, мм.......... 75×100          100×150     134×200

Радиус валка, мм................................ до 300           300×450     451×600

Таблица 3.5

Вес одного или группы валков, т

Число гвоздей диаметром 6 мм

Распорный брусок

Упорный брусок или подкладка

Упорный клин

До 5

2

4

2

5,1 - 8

3

4

2

8,1 - 10

3

6

2

10,1 - 12

4

9

2

12,1 - 15

5

12

2

15,1 - 18

5

17

3

18,1 - 20

6

19

3

20,1 - 22

6

21

4

22,1 - 25

7

24

4

25,1 - 27

9

25

5

Необходимое число гвоздей для крепления одного распорного или упорного бруска, подкладки и клина определяют в зависимости от веса одного или группы валков, уложенных в ряду (табл. 3.5).

В тех случаях, когда общий вес валков в каждом смежном ряду различный, число гвоздей, необходимых для крепления распорных брусков между этими рядами, определяется по большему общему весу валков в одном из смежных рядов.

Стрелочные переводы

§ 90. Стрелочные переводы для железных дорог широкой колеи перевозят в разобранном виде комплектами.

§ 90. Стрелочные переводы марок 1/9 и 11/11 (типы рельсов Р43 и Р50) с рамными рельсами длиной 12500 мм включительно грузят на одиночные четырехосные платформы (рис. 3.143).

Сборные крестовины перевозят в собранном виде.

Остряки стрелок скрепляют с рамными рельсами у пера и посередине длины обвязкой из проволоки диаметром 6 мм в один оборот. У стрелок лафетного типа рамные рельсы и остряки со всеми относящимися к ним деталями должны быть смонтированы на лафетных листах.

При погрузке стрелочных переводов вплотную к торцовым бортам укладывают на пол платформы плашмя по одной доске или горбылю толщиной не менее 50 мм, шириной не менее 150 мм и длиной 2700 мм. На пол платформы вплотную к доскам или горбылям укладывают двумя группами в равных количествах (или с разницей на одну крестовину) крестовины головками рельсов вверх с чередованием концов.

Поверх каждой группы крестовин укладывают по две прокладки из досок или горбылей толщиной не менее 25 мм, шириной не менее 150 мм и длиной 2700 мм. На эти прокладки (во втором ярусе погрузки) вплотную к торцовым бортам грузят контррельсы. Прокладки должны быть расположены на расстоянии 800 - 1000 мм от концов контррельсов.

Рис. 3.143:

1 - растяжки торцовых стоек; 2 - проволочная увязка рамных рельсов; 3 - проволочное крепление переводных механизмов; 4 - проволочное крепление остряков; 5 - боковые стойки; 6 - проволочное крепление боковых стоек; 7 - переводные механизмы, установленные в пятом ярусе; 8 - торцовые стойки; 9 - доски торцового щита; 10 - предохранительный брус; 11 - прокладки толщиной 25 мм; 12 - рамные рельсы с остряками и корневыми мостиками, уложенными в третьем, четвертом и пятом ярусах; 13 - стрелочные подушки, мостики крестовые и путевые подкладки; 14 - крестовины, уложенные в первом ярусе; 15 - контррельсы, уложенные во втором ярусе; 16 - прокладки толщиной 50 мм

Контррельсы грузят сболченными попарно с вкладышами и деталями, уложенными между ними, и упорами, прикрепленными болтами. Допускается также грузить одиночные контррельсы с вкладышами и упорами, приклепленными к ним болтами. В обоих случаях контррельсы необходимо укладывать на подошву.

При погрузке контррельсов, сболченных попарно, смежные пары контррельсов должны быть сдвинуты по длине одна относительно другой так, чтобы упоры одной пары заходили за упоры соседней пары. Одиночные контррельсы грузят таким же способом. Вкладыши или упоры соседних контррельсов должны заходить друг за друга. Стрелочные подушки, мостики крестовины, стандартные путевые подкладки в связках и другие мелкие детали стрелочных переводов укладывают на пол платформы и крестовины в свободной средней части платформы после погрузки крестовин и контррельсов. При этом мелкие детали укладывают также в промежутках между крестовинами и контррельсами.

Рамные рельсы (с остряками) безлафетных стрелочных переводов можно грузить двумя способами. При применении обоих способов погрузки каждый ярус рамных рельсов укладывают на четыре подкладки.

При погрузке рамных рельсов по первому способу две прокладки толщиной не менее 25 мм укладывают под корневыми мостиками, а две другие (средние) прокладки толщиной не менее 50 мм - под рамными рельсами у перьев остряков. Прокладки должны иметь ширину не менее 150 мм и длину 2700 мм. Прокладки укладывают одну над другой.

В третьем, четвертом и пятом ярусах погрузки укладывают головками вверх рамные рельсы (с остряками), располагаемые один над другим. Перья остряков у соседних рамных рельсов, находящихся в одном ярусе погрузки, должны быть развернуты в противоположные стороны. Перья остряков рамных рельсов, уложенных один над другим в указанных трех ярусах погрузки, должны быть обращены в одну сторону.

В третьем ярусе погрузки укладывают на прокладки восемь рамных рельсов (с остряками). При погрузке 9 - 11 комплектов безлафетных стрелочных переводов в четвертом ярусе укладывают восемь рамных рельсов аналогично третьему. Оставшиеся рамные рельсы в равных количествах располагают на боковых сторонах пятого яруса погрузки с оставлением его середины свободной.

Восемь комплектов безлафетных стрелочных переводов в четвертом и пятом ярусах укладывают по четыре рамных рельса, которые должны быть размещены, как и в предыдущем случае, в равных количествах на боковых сторонах этих ярусов погрузки.

При погрузке рамных рельсов по второму способу все перья остряков, находящиеся в одном ярусе, должны быть обращены в одну сторону. В смежных ярусах погрузки перья остряков направляют в противоположные стороны. При этом в каждом ярусе погрузки под корневыми мостиками укладывают прокладки толщиной 250 мм, а под рамными рельсами и остряками - по три прокладки толщиной 50 мм на равных расстояниях.

Каждый ярус лафетных листов (при погрузке лафетных стрелочных переводов) со смонтированными на них рамными рельсами и остряками укладывают на четыре прокладки шириной не менее 150 мм и длиной 2700 мм. Две прокладки толщиной 25 мм укладывают против вторых стоечных скоб, считая от торцовых бортов. Две другие прокладки толщиной 50 мм укладывают вплотную к торцовым кромкам лафетных листов, обращенных к торцовым бортам платформы. В третьем и четвертом ярусах погрузки укладывают по пять лафетных листов (с рамными рельсами и остряками), в пятом ярусе - четыре - пять, в шестом ярусе - два - пять лафетных листов.

Если необходимо грузить переводные механизмы, то для их размещения оставляют свободное пространство в средней части пятого и шестого ярусов.

Ручные переводные механизмы устанавливают в верхней части штабеля между рамными рельсами одной или двумя группами.

В торцовые скобы устанавливают стойки высотой на 100 - 200 мм выше верхних рамных рельсов. Торцовые борта наращивают досками или горбылями толщиной не менее 50 мм, шириной не менее 150 мм и длиной 2700 мм, которые прибивают со стороны груза к торцовым стойкам гвоздями длиной не менее 100 мм.

Торцовые стойки укрепляют растяжками из проволоки диаметром 6 мм в пять нитей за вторые стоечные скобы платформы, считая от торцовых бортов. Через болтовые отверстия на обоих концах рамных рельсов, уложенных в верхнем ярусе штабеля, пропускают проволоку диаметром 6 мм в две нити. Концы проволоки закрепляют за вторые стоечные скобы, считая от торцовых бортов.

Переводные механизмы закрепляют двумя увязками из проволоки диаметром 4 - 6 мм в две нити за рамные рельсы, как показано на рис. 3.143. При этом проволоку необходимо пропускать через отверстия в рамных рельсах или в упорках, приболченных к ним, или в лафетных листах. Обе указанные увязки взаимно скручиваются.

В первые и третьи боковые стоечные скобы, считая от торцовых бортов, устанавливают четыре пары стоек высотой на 100 - 200 мм выше верхних рамных рельсов. Противоположные боковые стойки увязывают проволокой диаметром 6 мм в пять нитей.

Металлолом

§ 92. Металлолом должен представляться к перевозке в транспортабельном состоянии, обеспечивающем максимальное использование грузоподъемности и вместимости вагонов. Люковые закидки полувагонов увязывают за кронштейны проволокой в соответствии с § 3 настоящей главы.

§ 93. При погрузке металлолома на платформы в пределах высоты боковых бортов торцовые борта наращивают до уровня боковых бортов досками толщиной не менее 40 мм или горбылями толщиной не менее 50 мм, шириной 150 - 200 мм и длиной, равной ширине платформы.

Доски прибивают к торцовым стойкам со стороны груза гвоздями длиной 80 мм.

Металлолом располагают по всей площади пола платформы, при этом должны выполняться требования § 2 и 3 главы 1 ТУ. При погрузке металлолома на платформе без клиновых запоров бортов в боковые скобы устанавливают четыре пары стоек (в первые и третьи скобы, считая от торцов платформы).

Стойки попарно увязывают проволокой диаметром 6 мм в пять нитей.

При погрузке металлолома выше боковых бортов платформы обрешечивают следующим образом. Во все боковые и торцовые скобы платформы устанавливают стойки высотой на 100 - 150 мм выше верхнего уровня погрузки. К стойкам со стороны груза прибивают доски толщиной не менее 40 мм или горбыли толщиной не менее 50 мм и шириной не менее 150 мм, образующие обрешетку вдоль бортов по всему периметру платформы. Доски (горбыли) обрешетки прибивают к каждой из стоек гвоздями длиной не менее 80 мм. При погрузке металлолома, содержащего мелкие предметы, обрешетка должна быть сплошной, без зазоров между досками, а при погрузке крупных предметов металлолома толщиной и шириной не менее 100 мм - с зазорами между досками, величина которых не должна превышать половины наименьшей толщины или ширины погруженных предметов.

Торцовые стойки укрепляют растяжками из проволоки диаметром 6 мм в четыре нити за вторые боковые стоечные скобы платформы, считая от торца. Противоположные боковые стойки при высоте их от пола платформы не более 1500 мм увязывают проволокой диаметром 6 мм в три нити. Стойки высотой 1500 мм увязывают проволокой диаметром 6 мм в двух местах: посередине высоты погрузки в четыре нити и сверху погрузки в две нити.

Металлолом весом одной единицы более 100 кг запрещается размещать вплотную к доскам обрешетки. Такой металлолом должен укладываться в нижней части погрузки, преимущественно на полу платформы.

§ 94. При погрузке металлолома в полувагоны выше боковых бортов производят обрешечивание из досок или горбыля способом, указанным в § 4 настоящей главы. При этом противоположные боковые стойки дополнительно увязывают проволокой диаметром 6 мм в четыре нити. Металлолом грузится в полувагоны только с металлическим кузовом.

§ 95. При перевозке крупных единиц металлолома последние должны быть закреплены в зависимости от конфигурации и веса согласно требованию соответствующей главы настоящих Технических условий.

§ 96. При предъявлении металлолома к перевозке к каждой накладной в соответствии с требованиями ГОСТ 2787-75 должно быть приложено удостоверение о приведении указанного металлолома в состояние, безопасное для перевозки, переработки, переплавки, и об обезвреживании металлолома от огневзрывоопасных материалов.

Колесные пары

§ 97. Перед погрузкой вагонных колесных пар, не оборудованных буксовыми узлами, осевые шейки должны быть защищены от коррозии и повреждений.

Вагонные колесные пары как с буксовыми узлами, так и без буксовых узлов грузят на четырехосную платформу в один ярус. На платформе размещают до 22 колесных пар (рис. 3.144). Первую колесную пару устанавливают вблизи торцового борта со смещением к одному боковому борту и укрепляют со стороны торцового борта поперечным упорным бруском сечением 100×100 мм и длиной 2000 мм. Между упорным бруском и торцовым бортом напротив торцовых скоб плотно устанавливают два распорных бруска сечением 100×100 мм. В торцовые скобы платформы устанавливают короткие стойки. Последующие колесные пары устанавливают вплотную друг к другу со смещением к противоположным боковым бортам так, чтобы соблюдалась симметрия относительно продольной оси вагона. Последнюю колесную пару закрепляют аналогично первой. Каждое колесо с обеих сторон укрепляют клиньями размерами 50×100×250 мм (под колеса крайних колесных пар клинья ставят с внутренней стороны). Каждый распорный брусок закрепляют двумя гвоздями, упорный брусок - восемью гвоздями, клин - двумя гвоздями диаметром 6 мм, длиной 150 мм. Крайние колесные пары закрепляют с двух сторон растяжками из проволоки диаметром 6 мм в четыре нити за стоечные скобы и за технологические отверстия в колесах либо за средние части оси вблизи колес. Каждые три крайние колесные пары (см. рис. 3.144) увязывают между собой проволокой диаметром 6 мм в две нити.

§ 98. Колесные пары думпкаров, чугуновозов и паровозов грузят на четырехосную платформу в один ярус в количестве 16 - 18 шт. Размещение и крепление их аналогично вагонным колесным парам (см. § 97). При погрузке колесных пар весом 1,9 т и более каждый поперечный упорный брусок крепят 10-ю гвоздями, клин - пятью гвоздями диаметром 6 мм, длиной 150 мм. Фигурные клинья (рис. 3.145) устанавливают вплотную друг к другу так, чтобы колесо опиралось на два клина и пол платформы защищался от повреждений гребнями колес.

Колесные пары тепловозов (рис. 3.146, б) и электровозов (рис. 3.146, а) размещают на платформах в один ярус на предварительно уложенные площади в количестве соответственно 12 и 10 шт.

Подкладки сечением 40×100 мм укладывают вдоль вагона симметрично продольной оси. Каждую подкладку прибивают к полу платформы 15-ю гвоздями диаметром 6 мм и длиной 90 мм.

Рис. 3.144:

1 - распорные бруски; 2 - упорные бруски; 3 - проволочные растяжки; 4 - увязка; 5 - клин; 6 - стойки

Первую колесную пару устанавливают так, чтобы продольная ось ее была не ближе 650 мм от торцового борта, подкрепленного короткими деревянными стойками. Последующие колесные пары устанавливают вплотную друг к другу внакат за гребень. Крайние колесные пары укрепляют со стороны торцового борта поперечным упорным бруском сечением 100×100 мм и длиной 2000 мм. Между упорным бруском и торцовым бортом напротив скоб плотно устанавливают два распорных бруска сечением 100×100 мм.

Каждое колесо укрепляют клиньями с обеих сторон размерами не менее 75×100×250 мм. Каждый распорный брусок закрепляют двумя гвоздями, упорный брусок - 10-ю гвоздями, клин - тремя или четырьмя соответственно для тепловозных или электровозных колесных пар диаметром 6 мм и длиной 150 мм.

Рис. 3.145:

1 - распорные бруски; 2 - продольные бруски; 3 - проволочная растяжка; 4 - увязка; 5 - клин; 6 - стойки

Рис. 3.146:

1 - упорный брус; 2 - подкладка; 3 - клин; 4 - растяжка; 5 - увязка; 6 - стойка; 7 - распорный брус

Тележки для изложниц

§ 99. Четырехосные тележки для изложниц перевозят на четырехосных платформах по 2 шт. вверх колесами. Перед погрузкой щеколды сцепов тележек должны быть сняты. Тележки укладывают непосредственно на пол платформы вплотную друг к другу (рис. 3.147).

Со стороны торцовых бортов платформы вплотную к рамам тележек укладывают поперечные упорные бруски размерами 150×200 мм и длиной, равной ширине платформы между бортами. Каждый брусок прикрепляют к полу платформы восемью гвоздями длиной 200 мм. Кроме упорных, укладывают также четыре распорных бруска сечением 50×100 мм против каждой стороны торцовой стойки платформы. Каждый распорный брусок прибивают к полу платформы двумя гвоздями длиной 100 мм.

Во все боковые и торцовые скобы устанавливают короткие стойки.

§ 100. Шестиосную тележку устанавливают вверх колесами на две деревянные подкладки, симметрично расположенные относительно поперечной оси платформы на расстоянии 4500 мм друг от друга (рис. 3.148). Каждая подкладка, составленная из двух деревянных досок размерами 40×15×2700 мм, крепится к полу платформы восемью гвоздями длиной 100 мм.

Рис. 3.147:

1 - распорные бруски; 2 - стойки; 3 - упорные бруски; 4 - стойки

Порядок крепления увязки шестиосной тележки для изложниц следующий: по торцам тележки с двух сторон устанавливают восемь упорных брусков размерами 100×150×1000 мм, которые плотно упирают в раму тележки, и каждый прибивают к полу платформы 12-ю гвоздями длиной 150 мм. Раму тележки крепят к стоечным скобам платформы растяжками из проволоки 6 мм в восемь нитей. Всего устанавливают 16 продольных и четыре поперечные растяжки. Растяжки крепят к отверстиям в раме тележки либо к специально приваренным уголкам 75×75 мм длиной 100 мм. Уголки приваривают по всей их длине к предварительно зачищенным поверхностям сварочным швом с катетом 8 мм. Крепление растяжек за боковины или колесные пары тележек для изложниц не допускается.

Трубы

§ 101. Каждый штабель труб, уложенный на платформе, ограждают при длине труб до 4000 мм двумя парами боковых стоек, от 4000 до 5000 мм - тремя парами стоек и при длине труб более 5000 мм - четырьмя парами стоек.

При высоте погрузки труб до 2000 мм стойки закрепляют верхней и средней увязками из проволоки диаметром 6 мм и восемь нитей, при высоте погрузки более 2000 мм - верхней и двумя средними увязками из проволоки диаметром не менее 5 мм в семь нитей.

Расстояние между увязками должно быть не более 1000 мм. Если диаметр труб более 1000 мм, увязки располагают через каждый ряд труб.

Рис. 3.148:

1 - упорные бруски; 2 - подкладки; 3 - приваренные уголки; 4 - продольные проволочные увязки; 5 - поперечные проволочные увязки

Рис. 3.149:

1 - горизонтальная жердь; 2 - торцовые стойки; 3 - доски торцового ограждения; 4 - растяжки; 5 - боковые стойки; 6 - верхняя проволочная увязка стоек; 7 - средняя проволочная увязка стоек; 8 - прокладки; 9 - клинья

§ 102. Стальные трубы диаметром до 159 мм включительно прочно увязывают в пакеты.

§ 103. Допускается увязывать в пакеты трубы диаметром от 159 до 219 мм включительно. При погрузке пакетов труб диаметром до 219 мм включительно посередине высоты штабеля погрузки помещают три поперечные прокладки сечением не менее 25×80 мм. Высоту штабеля более 2 м делят на три яруса, между которыми помещают по три прокладки указанного сечения.

§ 104. При погрузке на одну платформу труб различного диаметра трубы меньшего диаметра укладывают вниз под более крупные или внутрь них.

При погрузке труб диаметром 159 мм и менее различной длины у боковых бортов укладывают более длинные трубы, а в середине штабеля - трубы меньшей длины вперемешку с более длинными. В верхних рядах штабеля укладывают длинные трубы.

§ 105. Трубы диаметром от 159 до 450 мм включительно грузят с разделением смежных рядов тремя прокладками сечением не менее 35×110 мм. Первый ряд труб укладывают вдоль платформы на пол. Крайние трубы укладывают вплотную к бортам и подклинивают в трех местах. Если трубы не заполняют всю ширину платформы, то их укладывают двумя частями вплотную к бортам с оставлением в середине ряда свободного места и укрепляют также в трех местах клиньями, укладываемыми плашмя по обеим сторонам каждой части ряда. При небольшом промежутке между трубами в середине ряда вместо двух клиньев может быть помещен один плотно подогнанный двусторонний клин.

Во втором и последующих рядах трубы укладывают в таком же порядке, как и в первом ряду, - друг над другом. Клинья, ограждающие трубы от расскатывания, размерами не менее 40×100×200 мм прибивают к полу платформы или прокладкам каждый двумя гвоздями длиной 100 мм (рис. 3.149).

Длина прокладки должна быть достаточной для размещения клиньев, ограждающих крайние трубы штабеля. Клинья укладывают вдоль прокладок.

Трубы диаметром менее 300 мм, уложенные в нижних рядах, до высоты боковых бортов платформ не подклинивают, а в верхней части штабеля (выше боковых бортов) подклинивают, как указано выше.

§ 106. Трубы диаметром до 450 мм при длине погрузки более расстояния между крайними боковыми стоечными скобами с каждой торцовой стороны платформы ограждают двумя стойками, к которым с внутренней стороны до высоты верхнего ряда труб прибивают гвоздями длиной не менее 100 мм доски и горбыли толщиной 50 мм, равные внутренней ширине платформы. Зазоры между досками располагают по стыкам каждых двух рядов труб. Зазоры должны быть менее диаметра погруженных труб. Торцовые стойки укрепляют проволокой диаметром не менее 5 мм в четыре нити за боковые стоечные скобы и горизонтальную перекладину.

Если погруженные трубы имеют длину менее расстояния между крайними боковыми стоечными скобами, то доски щита, ограждающего торцы штабеля, располагают с зазорами, как и в предыдущем случае, и прибивают к боковым стойкам, установленным в ближайшие к торцам штабеля скобы и укрепленным растяжками в четыре нити. Щит укрепляют двумя дополнительными стойками, установленными по высоте щита между боковыми стойками на пол, и одной горизонтальной жердью диаметром не менее 100 мм (или бруском сечением не менее 80×80 мм), расположенной на верху щита и приклепленной к каждой стойке двумя гвоздями длиной не менее 200 мм и проволокой диаметром не менее 5 мм в две нити. Жердь и стойки в местах соприкосновения затесывают на плоскость и плотно подгоняют друг к другу. Доски ограждения прибивают гвоздями длиной не менее 100 мм к промежуточным стойкам, которые удерживаются внизу упорами размерами не менее 50×150×250 мм, прибитыми к полу платформы каждый четырьмя гвоздями длиной не менее 100 мм. Доски (горбыли) щита должны иметь сечение не менее 50×150 мм.

§ 107. Стальные трубы диаметром от 450 до 1220 мм включительно грузят с разделением смежных рядов прокладками сечением не менее 50×150 мм. Нижний ряд труб грузят на подкладки такого же сечения. Трубы укладывают друг над другом так, чтобы их центры находились на одной вертикали. Каждую трубу подклинивают с обеих сторон клиньями размерами не менее 75×100×250 мм. Каждый клин прибивают плашмя к полу или прокладкам двумя гвоздями длиной 125 мм (рис. 3.150). При длине труб до 4000 мм между соседними рядами укладывают две, а при длине труб более 4000 мм - три поперечные прокладки.

Рис. 3.150:

1 - горизонтальная жердь; 2 - стойка; 3 - растяжки; 4 - боковые стойки; 5 - верхняя проволочная увязка; 6 - средняя проволочная увязка стоек; 7 - клинья; 8 - прокладки; 9 - подкладки; 10 - доски торцового щита; 11 - диагональная жердь; 12 - упорные брусья

Рис. 3.151:

1 - горизонтальная жердь; 2 - стойки; 3 - растяжки; 4 - боковые стойки; 5 - верхняя проволочная увязка стоек; 6 - средняя проволочная увязка стоек; 7 - клинья; 8 - прокладки; 9 - подкладки; 10 - доски торцового ограждения; 11 - диагональная жердь; 12 - упорные брусья

Вплотную к торцам штабеля устанавливают ограждающие щиты, устанавливаемые следующим образом. На пол платформы с обеих сторон штабеля устанавливают по две стойки на расстоянии 1300 мм одна от другой и на одинаковых расстояниях от боковых бортов. Верхние концы стоек соединяют жердью, длина которой равна ширине платформы. Жердь укрепляют по концам двумя растяжками из проволоки диаметром 6 мм в четыре нити за боковые стоечные скобы. Во избежание соскальзывания растяжек на концах жерди делают зарубки. Стойки соединяют по диагонали второй жердью (или доской толщиной 50 - 60 мм). Жерди и стойки в местах соприкосновения затесывают на плоскость и плотно подгоняют друг к другу. Диаметр жердей должен быть не менее 100 мм. Жердь может быть заменена бруском сечением не менее 80×80 мм в соответствии с § 8 главы 1 ТУ. Каждую жердь прибивают к стойкам четырьмя гвоздями длиной 200 мм. Стойки закрепляют на полу платформы упорными брусками размерами не менее 50×100×250 мм, прибиваемыми плашмя каждый четырьмя гвоздями длиной не менее 100 мм. Кроме того, каждую стойку прибивают к полу платформы двумя гвоздями длиной не менее 120 мм.

Доски (горбыли) щита должны иметь сечение не менее 60×150 мм. Каждую доску прибивают к стойкам со стороны штабеля против центра труб гвоздями (по два гвоздя к каждой стойке).

Чугунные трубы, имеющие уширения на одном конце (фланцы, раструбы), грузят на две подкладки при длине труб до 4000 мм и на три подкладки при длине труб более 4000 мм. Между соседними рядами труб над подкладками укладывают прокладки, толщина которых должна быть на 10 мм больше выступа фланца или раструба трубы. В каждом ряду фланцы (раструбы) соседних труб должны быть направлены в противоположные стороны.

Прокладки и подкладки укладывают равномерно по длине штабеля на расстоянии не менее 100 мм от боковых стоек (рис. 3.151).

Крепление труб и увязка стоек аналогичны стальным трубам.

§ 108. Трубы длиной 24000 мм, диаметром 1020 мм размещают на сцепе из двух четырехосных платформ.

Металлические опоры (рис. 3.152) с укрепленными на них вкладышами из дерева или транспортерной ленты размером 500×2000×25 мм размещают на расстоянии 1215 мм от середины каждой платформы внутрь сцепа. Каждую опору прикрепляют к полу платформы 22 гвоздями длиной 150 мм, забиваемыми через отверстия в опорной плите.

Рис. 3.152

На опоры симметрично поперечной оси сцепа укладывают шесть труб в три яруса по высоте (рис. 3.153), между каждым рядом в плоскости опор размещают металлические прокладки (рис. 3.154).

Два смежных яруса труб в штабеле увязывают шестью поперечными хомутовыми обвязками из проволоки диаметром 6 мм в четыре нити, размещаемыми в середине пакета и на расстоянии 2 м от концов труб, причем тремя нижними хомутами увязывают трубы первого и второго ярусов, а тремя верхними - трубы второго и третьего ярусов (см. рис. 3.154). Верхний ярус труб закрепляют двумя обвязками из проволоки диаметром 7 мм в восемь нитей, закрепленными за прокладки.

Рис. 3.153:

1 - проволочная обвязка; 2 - металлическая прокладка; 3 - растяжки; 4 - проволочные стяжки; 5 - металлические опоры; 6 - хомутовые обвязки

Рис. 3.154

Концы опор и прокладок соединяют стяжками из проволоки диаметром 7 мм в восемь нитей. Штабель труб закрепляют к каждой платформе четырьмя растяжками из проволоки диаметром 7 мм в восемь нитей. При этом растяжки закрепляют за стоечные скобы платформы и специальные отверстия, расположенные на концах прокладок, размещенных между вторым и третьим рядами.

Металлические детали изготовляют из стали 20 и соединяются сваркой, выполняемой дипломированным сварщиком.

Разница в уровнях пола платформ, соединенных в сцеп, не должна превышать 35 мм.

Технические условия погрузки и крепления металлических труб длиной 10500 - 12000 мм в полувагонах с различным объемом кузова

§ 109. Настоящими Техническими условиями устанавливаются способы погрузки и крепления металлических труб диаметром 530, 630, 720, 820, 1020, 1220, 1420 мм в четырехосных полувагонах.

Полувагоны под погрузку подготавливают в соответствии с требованиями § 7 главы 1 ТУ. Трубы в вагонах должны быть уложены так, чтобы нагрузка была равномерно распределена относительно поперечной и продольной осей полувагона.

Погрузку первого (нижнего) ряда труб (кроме труб диаметром 1420 мм и 720 мм) в количестве 15 шт. производят на две подкладки сечением 40×100 мм и длиной по ширине кузова полувагона, которые укладывают над шкворневыми балками.

§ 110. Трубы диаметром 530 мм размещают в полувагоне шестью продольными рядами в количестве 27 шт. (рис. 3.155).

§ 111. Трубы диаметром 630 мм размещают в полувагоне пятью продольными рядами в количестве 19 шт. (рис. 3.156).

§ 112. Трубы диаметром 720 мм размещают в полувагоны с объемом кузова 64,6; 66,8 и 70,0 м3 в количестве 15 шт. (рис. 3.157) и с объемом кузова более 70,0 м3 в количестве 17 шт. (рис. 3.158). При погрузке 15 труб на каждую шкворневую балку поперек вагона вплотную к бортам укладывают два деревянных бруска размером 150×180×450 мм.

§ 113. Трубы диаметром 820 мм размещают в полувагоне четырьмя продольными рядами в количестве 11 шт. (рис. 3.159).

§ 114. Трубы диаметром 1020 мм размещают в количестве 6 шт. (рис. 3.160).

Перед погрузкой шестой трубы на третью трубу укладывают две деревянные прокладки высотой 120 мм и шириной не менее 150 мм.

§ 115. Трубы диаметром 1220 мм размещают в полувагоне в количестве 5 шт. (рис. 3.161).

После укладки первого ряда труб над шкворневыми балками полувагона размещают две прокладки сечением 25×150 мм и длиной, равной ширине кузова полувагона, на которые прибивают по четыре клина размерами 150×150×300 мм тремя гвоздями диаметром 5 мм и длиной 175 мм.

Рис. 3.155

Рис. 3.156

Рис. 3.157

Рис. 3.158

Рис. 3.159

Рис. 3.160

Рис. 3.161

Рис. 3.162

§ 116. Трубы диаметром 1420 мм размещают в полувагоне в количестве 4 шт. (рис. 3.162). Первый (нижний ряд) труб укладывают непосредственно на пол полувагона.

После укладки первого ряда труб над шкворневыми балками полувагона размещают две прокладки сечением 25×150 мм и длиной, равной ширине кузова полувагона, на которые прибивают по четыре клина размерами 150×150×300 мм тремя гвоздями диаметром 5 мм и длиной 175 мм.

§ 117. От продольного и поперечного смещений трубы закрепляют тремя проволочными обвязками из проволоки диаметром 6 мм в четыре нити (для труб, уложенных в верхней суженной части габарита погрузки - «шапке») и двумя обвязками для труб, частично выступающих над уровнем бортов полувагона.

Закрепляют за верхние или нижние увязочные устройства, расположенные на шкворневых и промежуточных стойках полувагона.

Трубы, погруженные в «шапке», закрепляют следующим порядком (рис. 3.163).

Рис. 3.163

Перед погрузкой последнего ряда труб диаметром 720 мм (при размещении их в полувагоне в количестве 15 шт.), 820, 1220 мм, а также при размещении труб диаметром 530, 620, 720 мм (при погрузке их в полувагоне в количестве 17 шт.) перед погрузкой верхних двух рядов укладывают нижнюю плеть проволоки диаметром 6 мм в две нити с пропуском петли через крепежный узел полувагона, расположенный на шкворневой стойке. После погрузки верхнего ряда труб кладут верхнюю плеть проволоки диаметром 6 мм в две нити с пропуском петли через крепежный узел полувагона, расположенный на шкворневой стойке. После погрузки верхнего ряда труб кладут верхнюю плеть проволоки диаметром 6 мм в две нити с пропуском петли через увязочный узел полувагона, расположенный на промежуточной стойке, при этом концы верхней плети проволоки заводят в петлю нижней, а концы нижней - в петлю верхней плети проволоки 2.

Свободные концы плетей проволоки загибают и скручивают около крепежных узлов полувагона 3 с последующим скручиванием верхних и нижних плетей проволоки в седловине между трубами до полного натяжения 4.

Для предохранения дверей полувагона с деревянной обшивкой устанавливают щиты (рис. 3.164), каждый из которых состоит из двух вертикальных упорных брусков сечением не менее 100×100 мм и высотой 1900 мм, которые по высоте 650 мм от пола полувагона и в верхней части соединяют досками сечением 40×150 мм и длиной, равной внутренней ширине кузова полувагона. Соединительные бруски к вертикальным брускам прикрепляют гвоздями диаметром 5 мм, длиной 120 - 150 мм.

Рис. 3.164

Технические условия размещения и крепления стальных труб диаметром 1420 мм с полиэтиленовым покрытием длиной до 11,8 м в четырехосные полувагоны

§ 118. Настоящие Технические условия устанавливают способ размещения и крепления стальных труб диаметром 1420 мм и длиной до 11800 мм с полиэтиленовым изоляционным покрытием в четырехосные цельнометаллические полувагоны с шириной кузова 2878 мм и более (постройки Уральского вагоностроительного завода, начиная с 1974 г., и Крюковского вагоностроительного завода, начиная с 1978 г.).

§ 119. В целях обеспечения сохранности полиэтиленового покрытия труб перед погрузкой вагоны должны быть очищены от остатков груза, мусора и крепежных реквизитов от ранее перевозимых грузов.

§ 120. В полувагоне размещают четыре трубы (рис. 3.165).

§ 121. На пол полувагона на шкворневые балки укладывают две подкладки 1 сечением 40×200 мм длиной, равной внутренней ширине кузова полувагона. На внутреннюю поверхность боковых стен полувагона над подкладками устанавливают и закрепляют за верхние и средние устройства для крепления груза по две боковые вертикальные стойки 2 сечением 40×150 мм и высотой 2150 мм.

Рис. 3.165

Со стороны торцовых дверей полувагона устанавливают деревянные щиты, каждый из которых состоит из двух вертикальных упорных брусков 3 сечением не менее 100×100 мм и высотой 2150 мм.

На высоте 650 мм от пола полувагона и в верхней части бруски 3 соединяют брусками 4 сечением 40×150 мм и длиной, равной внутренней ширине кузова полувагона.

Боковые стойки и торцовые щиты закрепляют проволокой диаметром 2 мм в две нити или пеньковой веревкой 7. Применение проволоки большого диаметра и неотожженной категорически запрещается. Соединительные бруски 4 прикрепляют к вертикальным упорным брускам 3 двумя гвоздями диаметром 5 мм и длиной 120 - 150 мм.

Между трубами первого и второго ярусов над подкладками укладывают две прокладки 5 сечением 25×150 мм и длиной, равной внутренней ширине кузова полувагона, с прибитыми к ним клиньями 6 размерами 150×150×300 мм. Каждый клин прибивают к прокладке тремя гвоздями диаметром 5 мм и длиной 175 мм.

Для предохранения изоляционного покрытия труб верхнего яруса под проволочные обвязки укладывают четыре подкладки («коврики») 9 размерами 2840×400 мм. Каждая прокладка состоит из 20-ти брусков сечением 40×40 мм, соединенных между собой металлической или тканевой лентой и гвоздями диаметром 1,8 мм и длиной 32 мм (рис. 3.166). Трубы закрепляют двумя обвязками 7, 8 из проволоки диаметром 6 мм в четыре нити. Обвязки закрепляют за верхние наружные увязочные устройства полувагона.

Прокладки («коврики») с проволочной обвязкой скрепляют четырьмя гвоздями диаметром 3 мм, длиной 70 мм. При этом гвозди должны входить в брусок на глубину не более 3 - 25 мм, а головки гвоздя загибают над проволочной обвязкой.

Рис. 3.166

Разрешается применять резиновые прокладки («коврики») размерами 1580×150 мм. К резиновым прокладкам («коврикам») прибивают два бруска длиной 150 мм сечением 40×40 мм для последующего крепления их к проволочным обвязкам гвоздями, как указано выше.

Технические условия размещения и крепления стальных труб диаметром 1420 мм с полиэтиленовым покрытием на четырехосные платформы

§ 122. Настоящие Технические условия устанавливают способы размещения и крепления стальных труб диаметром 1420 мм и длиной до 11700 мм с полиэтиленовым покрытием на четырехосные платформы.

§ 123. В целях обеспечения сохранности полиэтиленового покрытия труб перед погрузкой платформы должны быть очищены от остатков груза, мусора и крепежных реквизитов от ранее перевозимых грузов.

§ 124. На четырехосную платформу загружают три трубы диаметром 1420 мм (рис. 3.167). Перед погрузкой труб в торцовые стоечные скобы платформы устанавливают короткие деревянные стойки 1. На пол платформы над шкворневыми балками укладывают две деревянные подкладки 2 сечением 40×200 мм, длиной по ширине платформы с предварительно прибитым к ним тремя деревянными клиньями. Размеры двух крайних клиньев на каждой подкладке 100×100×500 мм, а среднего клина 100×100×1070 мм.

Трубы укладывают на платформу симметрично ее поперечной оси. С каждой торцовой стороны платформы укладывают по два упорных бруска 3 сечением 100×100 мм, длиной по ширине платформы. Между упорными брусками на каждой стороне платформы укладывают два распорных бруска 4 сечением 100×100 мм, длиной, определяемой по месту установки. Каждый упорный брусок 3 прибивают к полу платформы 49-ю гвоздями диаметром 6 мм, длиной 150 мм; каждый распорный брусок 4 прибивают к полу платформы 10-ю гвоздями диаметром 6 мм, длиной 150 мм.

Рис. 3.167

Перед погрузкой третьей трубы на трубы нижнего ряда над подкладками укладывают две резиновые прокладки 5 размерами 15×200×1580 мм (или заменяющие ее материалы). Третью трубу укладывают в седловину между трубами нижнего ряда.

От продольного сдвига третью трубу закрепляют растяжками 6 из проволоки диаметром 6 мм в шесть нитей, которые увязывают за боковые стоечные скобы платформы. Между торцами третьей трубы и растяжкой устанавливают прокладочный брус сечением 100×100×1050 мм. К прокладочному брусу со стороны трубы по центру прибивают поддерживающий брусок 8 сечением 100×100×1700 мм двумя гвоздями диаметром 5 мм и длиной 150 мм. Растяжку 6 прибивают к прокладочному брусу 7 - двумя гвоздями 9 диаметром 4 мм и длиной 100 мм.

Трубу закрепляют тремя поперечными обвязками 10 из проволоки диаметром 6 мм в четыре нити каждая.

Для предохранения полиэтиленового покрытия под проволочные обвязки укладывают резиновые или деревянные коврики, как показано на рис. 3.167.

Глава 4

РАЗМЕЩЕНИЕ И КРЕПЛЕНИЕ ЖЕЛЕЗОБЕТОННЫХ, АСБЕСТОЦЕМЕНТНЫХ И ДРУГИХ ИЗДЕЛИЙ И КОНСТРУКЦИЙ

§ 1. Настоящими Техническими условиями установлены способы размещения и крепления на открытом подвижном составе различных железобетонных изделий и конструкций (шпал, колонн, блоков, плит покрытий и перекрытий и др.), асбестоцементных изделий и крупнопанельного домостроения.

Железобетонные изделия и конструкции

§ 2. При погрузке в вагоны железобетонные изделия или штабель из них укладывают на две поперечные или продольные деревянные подкладки из досок или горбылей сечением не менее 25×100 мм, обеспечивающих размещение груза параллельно полу вагона. Длина поперечной подкладки должна быть равна внутренней ширине вагона. Продольные подкладки могут быть составными по длине и выполнены из заготовок длиной не менее 2000 мм. В полувагонах заготовки соединяют внахлестку, укладывая на пол вагона рядом, плотно прижимают боковые поверхности друг к другу и соединяют четырьмя - шестью гвоздями (рис. 4.1, а, б). Длина нахлестки общей сплоченной части должна быть не менее 400 мм. Высота сплоченных подкладок должна быть строго одинаковой. Места соединения заготовок продольных подкладок в полувагонах располагаются на поперечных балках. На платформах подкладки прибивают к полу каждую четырьмя - шестью гвоздями (рис. 4.1, в). Крепление подкладок к полу платформы гвоздями необходимо выполнять в соответствии с требованиями § 12 главы 1 ТУ. Длина гвоздей должна быть равна толщине прибиваемой подкладки плюс 50 мм. Железобетонные изделия с плоскими опорными поверхностями (или штабель из них), размещаемые в пределах платформы с деревянным настилом, допускается укладывать непосредственно на пол. Поперечные подкладки в зависимости от веса, длины и конструктивных особенностей груза, как правило, размещают над шкворневыми, средними и промежуточными балками или в концевых частях полувагонов между гофрами крышек люков с опорой концов подкладок на полки продольных угольников нижней обвязки полувагона. Допускается опирание основных поперечных подкладок на четыре вспомогательные продольные подкладки, уложенные поперек гофров двух крышек люков, расположенных смежно по ширине полувагона. Нагрузка на каждую поперечную подкладку не должна превышать размеров, приведенных в § 4 главы 1 ТУ. Подкладки, уложенные под каждым штабелем, размещают на одном уровне. Толщина и конфигурация подкладок должны обеспечивать размещение изделий так, чтобы продольные оси вагона и груза были параллельны.

Рис. 4.1:

а, б - составные продольные подкладки в полувагоне; в - на платформе

§ 3. При горизонтальном расположении изделий (конструкций) в несколько ярусов между ними по высоте укладывают прокладки, ширина которых может быть на 40 - 50 мм меньше ширины подкладок. Грани подкладок и прокладок, обращенные к середине штабеля, необходимо располагать в одной вертикальной плоскости. Толщина прокладок должна быть не менее 25 мм, при этом она должна превышать высоту выступающих закладных деталей и монтажных петель изделия не менее чем на 5 - 10 мм.

Рис. 4.2

При вертикальной или наклонной установке изделий между офактуренными (отделанными) поверхностями укладывают прокладки. Допускается устанавливать горизонтальные и вертикальные прокладки между штабелями или отдельными элементами груза. Прокладки должны быть закреплены от выпадания.

§ 4. На железобетонных изделиях растяжки закрепляют за монтажные петли или специальные строповочные отверстия в бетоне. В этом случае применяют специальные закладные детали или строповочные кольца (рис. 4.2).

Изделия, загруженные в несколько рядов по ширине вагона, должны быть увязаны между собой за монтажные петли проволокой диаметром 6 мм. Число нитей в увязке указывается в каждом конкретном случае.

Закручивают увязки обязательно между соседними изделиями.

Для крепления изделий в полувагонах грузоотправитель должен применять растяжки, предварительно изготовленные и скрученные машинным способом или вручную.

Погрузка железобетонных изделий в вагоны должна производиться грузоотправителем после достижения бетоном прочности, указанной в стандарте или в нормативных документах на изделие. Грузоотправитель несет ответственность за прочность всех строповочных узлов, применяемых для закрепления груза.

Для предотвращения порчи углов железобетонных изделий элементами креплений (растяжками, обвязками, увязками и др.) отправитель должен устанавливать между креплением и грузом прокладки или угольники и закреплять их от выпадания.

§ 5. Шпалы железобетонные для железных дорог широкой колеи на четырехосную платформу грузят вдоль нее длинной стороной в четыре штабеля по 8 шт. по ширине и девять ярусов по высоте (рис. 4.3). При этом в верхних ярусах каждого штабеля размещают по две шпалы поперек штабеля (платформы).

Каждый штабель шпал размещают на двух поперечных подкладках размерами 70×100×2750 мм. Подкладки укладывают на расстоянии 1500 мм друг от друга и прибивают каждую к полу платформы девятью гвоздями длиной 150 мм. Шпалы грузят так, чтобы подрельсовые площадки находились над подкладками и были обращены вверх. Между соседними ярусами шпал на подрельсовых площадках располагают прокладки размерами 40×100×2500 мм. Каждый штабель до погрузки двух верхних шпал увязывают обвязкой из проволоки диаметром 6 мм в четыре нити и после укладки упомянутых верхних шпал их закрепляют двумя парами растяжек из такой же проволоки в восемь нитей за стоечные скобы платформы. К шпалам растяжки крепят с помощью клиньев, которые вставляют в отверстия шпал.

В торцовые стоечные скобы устанавливают деревянные стойки высотой вровень с бортами. В четырехосном полувагоне шпалы размещают вдоль него длинной стороной в четыре штабеля по 8 шт. по ширине в восемь ярусов по высоте, но не выше стенок полувагона (рис. 4.4). Число шпал в верхнем ярусе определяют в зависимости от установленной грузоподъемности полувагона. Если число шпал в верхнем ярусе менее восьми, то они должны быть расположены симметрично относительно вертикальной плоскости, в которой находится продольная ось полувагона.

Рис. 4.3:

1 - прокладки; 2 - шпалы; 3 - стойки; 4 - растяжки; 5 - обвязки; 6 - подкладки

Рис. 4.4:

1 - проволочная обвязка; 2 - прокладки; 3 - упорный брусок; 4 - подкладки

Каждый штабель шпал грузят на две поперечные подкладки сечением 80×100 мм и длиной, равной ширине полувагона, размещенные между гофрами крышек люков полувагона с опиранием концами на полки продольных угольников нижней обвязки полувагона.

Подкладки располагают на расстоянии 1500 мм друг от друга. Между соседними ярусами шпал на подрельсовые площадки последних укладывают прокладки размерами 40×100×2500 мм. Каждый штабель закрепляют обвязкой из проволоки диаметром 6 мм в восемь нитей за нижнее увязочные устройства полувагона. У закрытых дверей полувагона укладывают упорные бруски размерами 120×120×2850 мм.

§ 6. Плиты и панели без монтажных выпусков, перевозка которых допускается в горизонтальном положении, грузят на четырехосную платформу равномерно вдоль нее: плиты и панели длиной 2,8 - 3,3 м укладывают в четыре штабеля; длиной 3,4 - 4,4 м - в три штабеля; длиной 4,5 - 6,5 м - в два штабеля и длиной более 6,5 м - в один штабель. По высоте плиты и панели размещают в несколько ярусов до максимально возможного использования грузоподъемности с учетом допускаемого перегруза или габарита погрузки (рис. 4.5 - 4.7).

Рис. 4.5:

1 - подкладка; 2 - прокладка; 3 - растяжка

Рис. 4.6:

1 - подкладка; 2 - прокладка; 3 - растяжка

Нижние изделия каждого штабеля укладывают на две подкладки размерами 40×100×2770 мм, которые прибивают к полу платформы гвоздями длиной 150 мм из расчета один гвоздь на 1 т груза, но в количестве не более 20 шт. на одну подкладку. Второй и последующие ярусы грузят на прокладки сечением 25×100 мм и длиной, равной ширине погрузки, размещаемые над подкладками. Прокладки должны быть расположены на расстоянии 100 - 200 мм от монтажных петель.

Если штабель состоит из нескольких изделий по ширине платформы, то плиты или панели в каждом ярусе увязывают между собой за монтажные петли двумя поперечными увязками в четыре нити.

Каждый штабель весом до 18,75 т закрепляют двумя парами проволочных растяжек в восемь нитей. При погрузке в и три штабеля весом до 25 т каждый крайний штабель закрепляют тремя парами растяжек в восемь нитей, средние - четырьмя парами растяжек в шесть нитей. При погрузке в два штабеля весом до 37,5 т каждый из них закрепляют четырьмя парами растяжек в восемь нитей. Изделия длиной до 12 м, погруженные в один штабель весом до 75 т, закрепляют восемью парами растяжек в восемь нитей (рис. 4.8). Во всех указанных выше случаях применяют проволоку диаметром 6 мм. Штабель изделий длиной более 12 м крепят шестью парами растяжек из проволоки диаметром 8 мм в шесть нитей (рис. 4.9).

Рис. 4.7:

1 - подкладка; 2 - прокладка; 3 - растяжка

§ 7. Подфундаментные плиты шириной 2,75 - 3 м (включая арматурные выпуски) грузят на четырехосные платформы с открытыми боковыми бортами (рис. 4.10), закрепленными в соответствии с требованиями главы 1 ТУ.

Плиты размещают плашмя в два штабеля по длине и в несколько ярусов по высоте до полной загрузки платформы. Нижние изделия укладывают на пол платформы без подкладок. Между соседними ярусами располагают прокладки размерами 40×100×2750 мм. Каждый штабель закрепляют четырьмя парами растяжек из проволоки диаметром 6 мм в восемь нитей. Растяжки увязывают за монтажные петли верхних плит и стоечные скобы платформ.

Рис. 4.8:

1 - подкладка; 2 - растяжка; 3 - прокладка

Рис. 4.9:

1 - подкладка; 2 - растяжка; 3 - прокладка

Рис. 4.10:

1 - растяжка; 2 - прокладка

Рис. 4.11:

1 - подкладка; 2 - прокладка; 3 - растяжка

При погрузке подфундаментных плит с размещением в верхнем ярусе одной плиты ее закрепляют четырьмя растяжками из проволоки диаметром 6 мм в шесть нитей за монтажные петли и боковые стоечные скобы платформы, а штабеля - вышеуказанным способом.

§ 8. Плиты покрытий и перекрытий длиной 4,5 - 6 м и шириной 3 - 3,2 м грузят на четырехосную платформу до полной ее загрузки в два штабеля по длине и в несколько ярусов по высоте (рис. 4.11). Борта платформы должны быть опущены и закреплены в соответствии с главой 1 ТУ. Допускается погрузка плит покрытий шириной 3,28 м в пределах льготного габарита погрузки порядком, предусмотренным § 2 главы 1 ТУ. Нижние плиты размещают на двух продольных подкладках сечением 40×100 мм и длиной, равной длине изделий, на расстоянии 300 мм от края платформы. Каждую подкладку прибивают к полу платформы пятью гвоздями длиной 100 - 120 мм.

Плиты последующих ярусов укладывают на две продольные прокладки длиной, равной длине изделий, расположенных над подкладками. Каждый штабель закрепляют четырьмя парами растяжек из проволоки диаметром 6 мм в восемь нитей за монтажные петли изделий и стоечные скобы платформы.

В случае размещения в верхнем ярусе одной плиты с опиранием на два штабеля ее закрепляют дополнительно к указанному выше креплению двумя парами растяжек из проволоки диаметром 6 мм в четыре нити за монтажные петли и стоечные скобы платформы.

§ 9. Плиты и панели типов П, ПА, ПК и другие, аналогичные им, номинальной длиной 6 м и шириной 3 м или 1,5 м для покрытий и перекрытий, грузят на четырехосную платформу симметрично ее продольной и поперечной осям; в два штабеля по длине, в один - два ряда по ширине и в несколько ярусов по высоте (рис. 4.12). Число ярусов устанавливает грузоотправитель в зависимости от веса и размеров плит и панелей при полном использовании грузоподъемности или грузовместимости платформ.

Рис. 4.12:

1 - торцовая стойка; 2 - прокладка; 3 - растяжки верхнего яруса; 4 - растяжки второго яруса; 5 - боковая стойка; 6 - увязка стоек; 7 - специальные металлические скобы; 8 - подкладка; 9 - поперечная растяжка; 10 - распорный брусок; 11 - упорные бруски

Рис. 4.13:

а - правая скоба; б - левая скоба

До погрузки опускают и закрепляют в установленном порядке боковые борта (см. ТУ, главу 1, § 5), в боковые стоечные скобы устанавливают и закрепляют болтами, гайками и контргайками специальные металлические скобы (рис. 4.13). Ответственность за правильность установки и прочность специальных скоб несет отправитель.

Высота штабелей плит и панелей над полом платформы должна быть не более 2630 мм. Каждый штабель корытообразных панелей, опорами которых служат узкие продольные кромки, размещают на двух поперечных подкладках сечением 100×200 мм, длиной 3,2 м, укладываемых на расстоянии 500 - 600 мм от торцов груза и прибиваемых к полу платформы каждая пятью гвоздями длиной 150 мм. Указанные выше подкладки могут быть составными по ширине из двух частей, скрепленных между собой по торцам скобами диаметром прутка 10 мм (с обеих сторон по 1 шт.). При погрузке плит с опиранием всей шириной на подкладки допустимо применять последние сечением 80×160 мм.

Второй и следующие ярусы плит (панелей) укладывают на две прокладки сечением 50×150 мм и длиной 3,2 м, размещаемые над подкладками.

Два верхних яруса плит (панелей) в каждом штабеле закрепляют пятью парами продольных растяжек 3 и 4 (см. рис. 4.12). Кроме указанного, верхние плиты (панели) каждого штабеля закрепляют двумя парами поперечных растяжек 9 в четыре нити. Плиты (панели) второго яруса сверху в каждом штабеле увязываются между собой за монтажные петли двумя поперечными увязками в четыре нити. При общем весе груза на платформе 60 т продольные растяжки 3 верхнего яруса выполняют в шесть нитей и продольные растяжки 4 второго яруса, считая сверху, - в четыре нити. При общем весе груза более 60 т и до 72 т включительно все растяжки должны состоять из шести нитей проволоки.

Во всех случаях проволока должна быть диаметром 6 мм.

С торцов штабель закрепляют короткими торцовыми стойками, упорными и распорными брусками сечением не менее 100×200 мм (см. рис. 4.12). Бруски 10 и 11 соединяют между собой скобами диаметром прутка не более 8 мм (по одной в месте каждого соединения). Каждый брусок прибивают к полу платформы четырьмя гвоздями диаметром 6 мм и длиной не менее 150 мм.

Каждый штабель плит (панелей) ограждают двумя парами боковых стоек высотой над полом платформы не более 2710 мм, устанавливаемых в специальные металлические скобы (см. рис. 4.13). Противоположные боковые стойки увязывают между собой проволокой диаметром 6 мм в две нити выше второго снизу и верхнего ярусов плит или панелей.

§ 10. В четырехосные полувагоны панели (плиты) покрытий и перекрытий с монтажными петлями укладывают плашмя равномерно по длине и ширине вагона в несколько штабелей, располагаемых вплотную друг к другу. Допускается помещать между штабелями деревянные прокладки с закреплением их для предотвращения сдвигов.

Число ярусов панелей (плит) по высоте определяет грузоотправитель в зависимости от установленной нагрузки на полувагон, размеров и веса панелей (плит) и габарита погрузки.

Панели (плиты) длиной 2,8 - 3,9 м грузят в три штабеля, а длиной 4 - 6,4 м - в два штабеля в один и более рядов по ширине полувагона.

Плиты (панели) длиной до 5,9 м грузят в четырехосные полувагоны с закрытыми торцовыми дверями (рис. 4.14), длиной от 5,9 до 6,4 м включительно (кроме панелей или плит без строповочных петель) - с открытыми торцовыми дверями (рис. 4.15). В случае если по конструктивным особенностям панелей (плит) все подкладки при погрузке нельзя расположить над поперечными балками полувагона и нагрузка на одну подкладку превышает 8,3 т, вначале поперек гофров люков укладывают согласно указаниям главы 1, § 4 ТУ по ширине полувагона четыре продольные подкладки размерами не менее 50×150×1250 мм. Поверх продольных подкладок размещают одну или две поперечные подкладки длиной по ширине полувагона (см. рис. 4.14). Поперечные подкладки прибивают к продольным в каждом месте опирания двумя гвоздями длиной 100 мм. Продольные подкладки при необходимости надлежит укладывать в зависимости от длины панелей (плит) над любыми люками полувагона. Нагрузка на один люк полувагона во всех случаях не должна превышать 6 т.

Рис. 4.14:

1 - продольная подкладка; 2 - поперечная подкладка; 3 - растяжки; 4 - прокладка

Верхняя плоскость всех поперечных подкладок должна быть расположена в одном уровне. При опирании штабеля панелей (плит) одним концом с применением продольных подкладок, а другим без них поперечные подкладки, под которыми нет продольных подкладок, должны иметь соответственно большую толщину. Упомянутые поперечные подкладки допускается выполнять составными из двух частей по толщине.

Погрузку в два штабеля производят с опиранием каждого из них на две поперечные подкладки, расположенные в зависимости от длины панелей (плит) над средней и шкворневой балками полувагона или над средней и концевой балками (см. рис. 4.15).

При погрузке в три штабеля панелей (плит) длиной 2,8 м поперечные подкладки среднего штабеля укладывают над средними балками полувагона, а крайних штабелей - над промежуточными и шкворневыми балками (рис. 4.14, б). Если длина панелей (плит) от 2,8 до 3,9 м включительно, то перед погрузкой среднего штабеля между средними и промежуточными балками полувагона размещают, как указано выше, продольные подкладки и на них поперечные подкладки (рис. 4.14, в) либо поперечные подкладки укладывают непосредственно над средними балками (рис. 4.14, а). Поперечные подкладки крайних штабелей размещают у дверей с применением продольных подкладок между концевыми и шкворневыми балками и с противоположной стороны - над промежуточными балками полувагона (см. рис. 4.14, в).

Рис. 4.15:

1 - поперечная подкладка; 2 - прокладка; 3 - растяжки; 4 - поперечная увязка

Рис. 4.16:

1 - стойки; 2 - увязки стоек; 3 - упорные бруски с подкосами; 4 - прокладки; 5 - поперечные подкладки; 6 - продольные подкладки

При погрузке панелей (плит) в три штабеля общим весом 72 т и в два штабеля общим весом 65 т каждый штабель закрепляют четырьмя парами растяжек из проволоки диаметром 6 мм. Панели (плиты) верхнего яруса крепят растяжками в шесть нитей за средние увязочные устройства полувагона, а третьего яруса, считая сверху, - в восемь нитей за нижние увязочные устройства. При погрузке в два штабеля общим весом 72 т верхние панели (плиты) каждого штабеля крепят дополнительно двумя парами растяжек в две нити за нижние увязочные устройства полувагона, как показано пунктирными линиями на рис. 4.15. Все растяжки должны быть расположены на верхней плоскости панелей (плит) под углом 30 - 45° к их продольной оси и на боковых сторонах штабелей под углом не менее 45° к полу вагона.

Если штабель состоит из нескольких панелей (плит) по ширине полувагона, то верхние панели (плиты) увязывают между собой за монтажные петли двумя поперечными увязками из проволоки диаметром 6 мм в четыре нити.

При погрузке в полувагоны с закрытыми дверями плит (панелей) без монтажных петель каждый штабель ограждают двумя парами стоек, устанавливаемых вплотную к грузу. Противоположные стойки увязывают между собой попарно в трех местах - поверху, в середине и внизу (над первым ярусом) - проволокой диаметром 6 мм в две нити. Штабеля плит закрепляют упорными брусками с подкосами (рис. 4.16), изготовленными из брусков сечением не менее 120×120 мм и досок сечением не менее 60×150 мм, скрепленных скобами и гвоздями. Высота груза не должна превышать высоты стенок полувагона.

§ 11. Плиты и панели с прямоугольным, П-образным, корытообразным, ребристым или другим поперечным сечением, сплошные (либо с проемами или выступающими элементами) шириной 1,4 - 1,6 и 2,8 - 3,2 м и длиной 3 - 13,4 м грузят в горизонтальном положении на четырехосные платформы с приварными стоечными скобами с использованием многооборотных опорно-крепежных устройств конструкции Минэнерго СССР грузоподъемностью 71 т и весом 0,9 т (рис. 4.17), рабочий проект № 5676 Опытного производственно-технического предприятия «Энерготехпром» адрес: 127577, Москва, Высоковольтный проезд, 1.

Рис. 4.17

Опорно-крепежное устройство изготовляют шести различных исполнений. Устройство исполнения 1 состоит из четырех плоских сварных рам 1, попарно соединенных 10-ю стяжками 2 с шайбами, гайками и контргайками. Каждая рама оснащена четырьмя подвижными стойками 3, которые при установке устройства на платформу должны входить в ее боковые стоечные скобы с закреплением гайками, контргайками и шайбами. Для продольного регулирования рамы снабжены винтами 4, фиксируемыми гайками и отгибными шайбами. К рамам прикрепляют гвоздями деревянные подкладки 5, предназначенные для укладки на них перевозимых изделий, и деревянные упоры 6, служащие для ограничения перемещений изделий.

Исполнение 2 отличается от исполнения 1 смещением вовнутрь опорно-крепежного устройства вертикальных стоек плоских сварных рам 7 и подвижных стоек 3. Исполнение 3 отличается от исполнения 1 тем, что плоские сварные рамы 8 соединены попарно восемью стяжками 2, а каждая рама оснащена тремя подвижными стойками 3. Исполнение 5 отличается от исполнения 1 добавлением двух пар наклонных стоек 10, шарнирно закрепленных на рамах с помощью осей 11 и соединенных между собой дополнительной стяжкой 2. Исполнение 4 отличается от исполнения 2 тем, что плоские сварные рамы 9 соединены попарно восемью стяжками 2, а каждая рама оснащена тремя подвижными стойками 3. Исполнение 6 состоит из тех элементов, что и исполнение 5, но вертикальные стойки плоских сварных рам 7 и подвижные стойки 3 смещены вовнутрь опорно-крепежного устройства. Перед погрузкой изделий опускают и закрепляют боковые борта платформы и оборудуют ее многооборотным опорно-крепежным устройством. Плиты и панели укладывают на подкладки 2 толщиной не менее 50 мм, шириной 200 мм и длиной 500 мм согласно рис. 4.18 - 4.23 симметрично вертикальным плоскостям, проходящим через продольную и поперечную оси платформы. Верхние плоскости подкладок каждого штабеля должны находиться на одном уровне. Толщина и конфигурация подкладок должны обеспечивать параллельность продольных осей размещаемых изделий и платформ. При погрузке изделий с выступающими элементами, офактуренными (отделанными) и неровными поверхностями применяют деревянные прокладки 3 толщиной не менее 25 мм, шириной 150 мм и длиной не менее 300 мм, размещаемые над подкладками. Толщина прокладок должна превышать высоту выступающих элементов изделий. В остальных случаях изделия укладывают друг на друга без прокладок.

Рис. 4.18:

1 - опорно-крепежное устройство (исполнение 2); 2 - подкладка; 3 - прокладка; 4 - проволочная скрутка

Рис. 4.19:

1 - опорно-крепежное устройство (исполнение 1); 2 - подкладка; 3 - прокладка

При погрузке плит (панелей) общим весом до 50 т, шириной 1,4 - 1,5 и 2,8 - 3 м применяют опорно-крепежное устройство исполнения 3, а шириной от 1,5 до 1,6 м включительно и от 3 до 3,2 м включительно - исполнения 4. Плиты и панели шириной 1,4 - 1,6 м грузят в два штабеля по ширине платформы, а шириной 2,8 - 3,2 м - в один штабель по ширине платформы.

В остальных случаях, приводимых ниже, погрузка производится до полного использования грузоподъемности платформы с учетом допускаемого перегруза или габарита погрузки с размещением смежных штабелей вплотную друг к другу.

Плиты (панели) шириной 1,4 - 1,5 м и длиной 4,5 - 6,7 м грузят с применением опорно-крепежного устройства исполнения 5, а шириной от 1,5 до 1,6 м включительно и длиной 4,5 - 6,7 м - исполнения 6 в соответствии со схемой, представленной на рис. 4.18, в два штабеля по ширине, в два штабеля по длине и в несколько ярусов по высоте. Изделия верхнего яруса увязывают между собой проволочными скрутками 4.

Рис. 4.20:

1 - опорно-крепежное устройство (исполнение 2); 2 - подкладка; 3 - прокладка; 4 - проволочная скрутка

Рис. 4.21:

1 - опорно-крепежное устройство (исполнение 1); 2 - подкладка; 3 - прокладка; 4 - проволочная скрутка

Плиты (панели) шириной 1,4 - 1,5 м и длиной 9 - 13,4 м грузят с применением опорно-крепежного устройства исполнения 1, а шириной от 1,5 до 1,6 м включительно и длиной 9 - 13,4 м - исполнения 2 в соответствии со схемой, показанной на рис. 4.19, в два штабеля по ширине, в один штабель по длине и в несколько ярусов по высоте.

Плиты (панели) шириной 2,8 - 3 м и длиной 3 - 4,5 м грузят с использованием опорно-крепежного устройства исполнения 5, а шириной от 3 до 3,2 м и длиной 3 - 4,5 м - исполнения 6 в соответствии со схемой, показанной на рис. 4.20, в один штабель по ширине, в три-четыре штабеля по длине и в несколько ярусов по высоте. При этом изделия двух верхних ярусов увязывают между собой проволочными скрутками 4.

Рис. 4.22:

1 - опорно-крепежное устройство (исполнение 1); 2 - подкладка; 3 - прокладка; 4 - проволочная скрутка; 5 - хомут

Рис. 4.23:

1 - опорно-крепежное устройство (исполнение 1); 2 - подкладка; 3 - прокладка

Плиты (панели) шириной 2,8 - 3 м и длиной 4,5 - 6,7 м грузят с применением опорно-крепежного устройства исполнения 1, а шириной от 3 до 3,2 м включительно и длиной 4,5 - 6,7 м - исполнения 2 в соответствии со схемой, представленной на рис. 4.21, в один штабель по ширине, в два штабеля по длине и в несколько ярусов по высоте. При этом изделия верхнего яруса увязывают между собой проволочными скрутками 4. Эти же изделия с применением опорно-крепежных устройств исполнения 1 и 2 грузят в соответствии со схемой, показанной на рис. 4.22, как указано выше, с размещением в верхнем ярусе каждого штабеля двух Г-образных изделий. При этом изделия верхнего яруса каждого штабеля в одном месте увязывают между собой проволочной скруткой 4 и в трех местах крепят хомутами 5 с накладками, гайками и контргайками или проволочными скрутками через монтажные петли изделий к раме 1.

Плиты (панели) шириной 2,8 - 3 м и длиной 9 - 13,4 м грузят с применением опорно-крепежного устройства исполнения 1, а шириной от 3 до 3,2 м включительно и длиной 9 - 13,4 м - исполнения 2 в соответствии со схемой, показанной на рис. 4.23, в один штабель по ширине и длине платформы и в несколько ярусов по высоте.

Однотипные изделия одинаковой толщины и ширины, но длиной 3 - 10,4 м в соответствии со схемами, показанными на рис. 4.18, 4.20, 4.21, укладывают в несколько (от одного до четырех) штабелей по длине платформы. При этом в каждом штабеле изделия должны быть одной длины. Суммарная длина всех штабелей не должна превышать 13,4 м.

При перевозке корытообразных плит и панелей вначале на пол платформы устанавливают комплектующие детали в ящиках или без них, причем высота деталей и ящиков должна быть меньше глубины «корыта» изделий. Крепление деталей и ящиков осуществляют в соответствии с главой 5 ТУ.

На опорно-крепежных устройствах должны быть нанесены инвентарный номер и дата очередного освидетельствования. Грузоотправитель обязан до установки на платформы опорно-крепежных устройств и перед погрузкой груза проверить соответствие их металлоконструкции проекту и ее исправность, наличие и исправность деревянных подкладок, упоров и их крепления к металлоконструкции, сделать соответствующие записи о результатах осмотра в документации в соответствии с Руководством по эксплуатации опорно-крепежных устройств. Грузоотправитель должен перед погрузкой подготовить платформу согласно требованиям главы 1 ТУ (§ 5 и 7), по окончании погрузки все гайки законтрить контргайками или отгибными шайбами. Скрутки крепления плит и панелей верхнего яруса должны быть выполнены из проволоки диаметром 6 мм в четыре нити. Длину гвоздей для крепления к рамам деревянных подкладок и упоров необходимо выбрать так, чтобы гвозди не упирались в торцы перевозимых изделий.

Грузоотправитель несет ответственность за прочность и исправность всех строповочных узлов, применяемых для закрепления груза и за прочность опорно-крепежного устройства.

§ 12. Опорно-крепежные устройства конструкции Минэнерго СССР, указанные в § 11, при возврате размещают в количестве трех и более комплектов на четырехосной платформе в соответствии со схемой, показанной на рис. 4.24. При этом после выгрузки плит и панелей оставляют на одной платформе в рабочем положении установленное на ней опорно-крепежное устройство, причем рамы 1 попарно стягивают стяжками 2 с шайбами, гайками и контргайками. Остальные порожние опорно-крепежные устройства, предварительно уложенные пакетами (рис. 4.25), размещают плашмя между упорами на платформе и увязывают между собой скрутками 3 из проволоки диаметром 6 мм в четыре нити (см. рис. 4.24).

При необходимости возврат одного комплекта опорно-крепежного устройства, собранного в пакет в соответствии с рис. 4.25, осуществляют мелкой отправкой.

§ 13. Прогоны, колонны, подножники и сваи длиной до 6,5 м размещают на платформах следующим образом: изделия длиной до 3,3 м - в четыре штабеля (рис. 4.26), длиной 3,4 - 4,4 м - в три штабеля (рис. 4.27), длиной 4,5 - 6,5 м - в два штабеля (рис. 4.28). В четырехосные полувагоны изделия длиной до 5,9 м грузят с закрытыми дверями, длиной от 5,9 до 6,5 м - с открытыми дверями. При этом изделия длиной до 2,9 м располагают в четыре штабеля, длиной от 3 до 3,9 м - в три штабеля, длиной от 4 до 6,5 м - в два штабеля.

Рис. 4.24:

1 - рама; 2 - стяжки; 3 - проволочные скрутки; 4 - пакеты опорно-крепежных устройств

Рис. 4.25

Изделия размещают в несколько рядов по ширине и в несколько ярусов по высоте до полной загрузки вагонов. В каждом ярусе изделия увязывают между собой за монтажные петли двумя поперечными увязками из проволоки диаметром 6 мм в четыре нити.

При погрузке на платформы и в полувагоны каждый штабель изделий укладывают на две поперечные подкладки сечением 50×100 мм и длиной, равной внутренней ширине вагона. В случае если в полувагонах по конструктивным особенностям изделий все подкладки при погрузке нельзя расположить по поперечным балкам и нагрузка на одну подкладку превышает 8,3 т, их устанавливают следующим порядком. Вначале укладывают продольные подкладки размерами не менее 50×150×1250 мм, размещая их, как указано в главе 1 ТУ, § 4. Затем на продольные подкладки укладывают поперечные размерами не менее 50×100×2800 мм и скрепляют в каждом пересечении четырьмя гвоздями длиной 100 мм. На платформах каждую подкладку прибивают к полу при погрузке в два, три и четыре штабеля соответственно 15-ю, 12-ю и девятью гвоздями длиной 150 мм. Между соседними ярусами изделий укладывают прокладки сечением 50×100 мм и длиной, равной ширине погрузки.

Изделия закрепляют восемью парами растяжек из проволоки диаметром 6 мм в восемь нитей.

Рис. 4.26:

1 - растяжки; 2 - изделия; 3 - прокладки; 4 - подкладки; 5 - увязки

Рис. 4.27:

1 - растяжки; 2 - изделия; 3 - прокладки; 4 - подкладки; 5 - увязки

Рис. 4.28:

1 - растяжки; 2 - изделия; 3 - прокладки; 4 - подкладки; 5 - увязка

Рис. 4.29:

1 - растяжки; 2 - изделия; 3 - прокладки; 4 - подкладки; 5 - увязки; 6 - упорные бруски

§ 14. Колонны, сваи, ригели и балки прямоугольного сечения длиной от 6,5 до 14,2 м размещают на четырехосной платформе в один штабель по длине, по нескольку штук по ширине и в несколько ярусов по высоте симметрично продольной и поперечной осям вагона, причем изделия длиной от 13,75 до 14,2 м грузят только на платформы с базой 9,72 м. При погрузке свай, ригелей и колонн с применением подкладок последние должны иметь сечение не менее 50×200 мм и длину, равную ширине вагона. Каждую подкладку прибивают к полу платформы 10-ю гвоздями длиной 150 мм. По обе стороны от подкладок укладывают вплотную к ним вдоль платформы на расстоянии 500 м от бортов по два упорных бруска сечением 40×100 мм и длиной 400 мм, всего восемь брусков. Каждый из них прибивают к полу шестью гвоздями длиной 150 мм. При размещении нескольких колонн, свай или ригелей по ширине вагона изделия в каждом ярусе увязывают между собой за монтажные петли двумя поперечными увязками из проволоки диаметром 6 мм в четыре нити.

Изделия крепят восемью парами растяжек из проволоки диаметром 6 мм в восемь нитей (рис. 4.29). При этом крайние растяжки изделий длиной более 12 м закрепляют за опорные кронштейны у торцовых бортов, которые должны быть откинуты (рис. 4.30).

§ 15. В четырехосные полувагоны грузят железобетонные колонны, сваи, ригели, балки прямоугольного сечения длиной до 11,5 м. При этом изделия длиной от 6,1 до 9,5 м размещают со смещением по длине одних изделий относительно других: длиной от 6,1 до 8,1 м - с опорой на шкворневые и средние балки полувагона (рис. 4.31) с загрузкой не более 66,4 т, длиной от 8,2 до 9,5 м - с опорой на шкворневые и промежуточные балки до максимально возможной загрузки (рис. 4.32). Изделия длиной от 9,6 до 11,5 м размещают с опорой на шкворневые балки без смещения по длине до полной загрузки вагона (рис. 4.33, а).

При погрузке колонн, свай, ригелей и балок со смещением по длине изделия, размещаемые у продольных бортов, укладывают на подкладки сечением 50×100 мм, а размещаемые в средней части вагона - на подкладки сечением 100×100 мм. Изделия длиной от 9,6 до 12 м размещают на подкладках сечением 50×100 мм.

Между ярусами изделий укладывают прокладки сечением 50×100 мм. В каждом ярусе изделия увязывают между собой поперечными увязками из проволоки диаметром 6 мм в четыре нити.

Колонны, ригели, балки, сваи общим весом штабеля до 66,4 т закрепляют шестью парами растяжек из проволоки диаметром 6 мм в восемь нитей за нижние увязочные устройства и четырьмя парами растяжек из проволоки диаметром 6 мм в пять нитей за средние увязочные устройства. При весе штабеля более 66,4 т его крепят 13-ю парами растяжек: шестью парами из проволоки диаметром 6 мм в пять нитей за средние увязочные устройства и семью парами из проволоки диаметром 6,3 мм в восемь нитей за нижние увязочные устройства полувагонов.

Рис. 4.30:

1 - растяжки; 2 - изделия; 3 - прокладки; 4 - подкладки; 5 - увязки; 6 - упорные бруски

Рис. 4.31:

1 - подкладки; 2 - растяжки; 3 - изделия; 4 - прокладки; 5 - утолщенная подкладка; 6 - увязки

Изделия длиной свыше 9,5 м закрепляют упорными (см. рис. 4.33, а) и распорными брусками сечением 150×100 мм и четырьмя парами растяжек из проволоки диаметром 6 мм в восемь нитей. Распорные бруски скрепляются по концам с обоими упорными брусками скобами с диаметром стержня 10 мм (рис. 4.33, б).

Если в верхнем ярусе укладывается изделий меньше, чем в других ярусах, растяжки крепят за монтажные петли второго сверху яруса. Верхний ярус в этом случае крепят растяжками из проволоки диаметром 6 мм в четыре нити за средние увязочные устройства.

Рис. 4.32:

1 - изделия; 2 - прокладки; 3, 4 - растяжки, закрепленные соответственно за нижние и средние увязочные устройства полувагона; 5 - утолщенная подкладка; 6 - подкладка; 7 - увязка

§ 16. Погрузку балок пролетных строений Т-образного сечения длиной до 14,5 м и шириной 1,5 - 2,5 м производят в четырехосные полувагоны в два яруса по высоте (рис. 4.34) с односторонним прикрытием полувагоном или платформой, при этом выход груза за лобовой брус со стороны прикрытия не должен превышать 1400 мм. Балку нижнего яруса устанавливают на две спаренные поперечные деревянные подкладки сечением не менее 150×200 мм и закрепляют четырьмя парами растяжек из проволоки диаметром 6 мм в восемь нитей за монтажные петли и нижние увязочные устройства полувагона. Балку укрепляют с каждой стороны одной парой деревянных стоек с подкосами сечением 100×150 мм, нижние концы которых расположены между спаренными подкладками. Каждую пару подкладок, стойки и подкосы соединяют между собой четырьмя болтами М20 длиной 450 мм. Каждую стойку и подкос в верхней части скрепляют болтами М16 длиной 350 мм и шестью гвоздями длиной не менее 150 мм.

Балку верхнего яруса устанавливают на две спаренные прокладки сечением 100×150 мм, длиной, равной ширине полувагона, и закрепляют четырьмя парами растяжек из проволоки диаметром 6 мм в восемь нитей за монтажные петли изделия и нижние увязочные устройства полувагона. Верхнюю балку закрепляют подкосами порядком, предусмотренным для балки нижнего яруса. Зазор между ребром балки и стойками должен быть не более 5 мм.

Рис. 4.33:

1 - прокладки; 2 - растяжки; 3 - изделия; 4 - подкладки; 5 - увязки; 6 - упорный брус; 7 - распорный брус; 8 - растяжка верхнего яруса

Рис. 4.34:

1 - спаренные прокладки; 2 - растяжки; 3 - подкос; 4 - деревянная стойка; 5 - спаренные подкладки

Вагон прикрытия может быть загружен железобетонными или другими изделиями, следующими вместе с балками на одну станцию назначения.

§ 17. Погрузку односкатных балок длиной 12 м на четырехосные платформы производят в два яруса по высоте с размещением семи балок в нижнем ярусе и шести в верхнем (рис. 4.35). Нижний ярус балок размещают на двух поперечных подкладках размерами 50×100×2770 мм, которые прибивают к полу платформы гвоздями длиной 150 мм по 33 шт. на одну подкладку. Между балками первого и второго ярусов укладывают две прокладки сечением 100×100 мм.

Балки в каждом ярусе должны быть соединены в монолитный блок в соответствии с требованиями § 41 главы 1 ТУ.

Каждый ярус балок закрепляют четырьмя парами растяжек из проволоки диаметром 6 мм в восемь нитей за монтажные петли и стоечные скобы платформы.

§ 18. В четырехосные полувагоны односкатные балки длиной 12 м грузят аналогично погрузке на платформы, при этом подкладки сечением 25×100 мм укладывают на шкворневые балки полувагона.

Балки нижнего яруса закрепляют двумя поперечными упорными брусками размерами 100×100×2800 мм, укладываемыми у торцовых порожков полувагона. Балки верхнего яруса закрепляют четырьмя парами растяжек из проволоки диаметром 6 мм в восемь нитей за монтажные петли изделий и нижние увязочные устройства полувагона (рис. 4.36).

Рис. 4.35:

1 - растяжка торцовая; 2 - растяжка боковая; 3 - изделия; 4 - устройство для скрепления балок в монолитный блок; 5 - прокладки; 6 - подкладки

Рис. 4.36:

1 - растяжки; 2 - изделия; 3 - устройство для скрепления балок в монолитный блок; 4 - прокладки; 5 - подкладки; 6 - упорный брус

§ 19. Железобетонные двухветвевые колонны длиной до 15 м грузят на сцеп из двух четырехосных платформ по 2 шт. по ширине и до пяти ярусов по высоте погрузки в зависимости от длины и веса колонн (рис. 4.37). Высота груза над полом платформы не должна превышать 2900 и 3000 мм при суммарной ширине двух колонн соответственно 2800 и 2600 мм и совмещении в одной вертикальной плоскости продольных осей груза и платформы. Общий вес колонн должен быть не более 65 т. При этом общий центр тяжести груза должен находиться на расстоянии не более 150 мм от середины платформы в сторону свеса. Погрузку колонн шириной до 1300 мм производят на платформу с закрытыми продольными бортами. При ширине колонн 1400 мм продольные борта платформы должны быть опущены и закреплены согласно требованиям § 51 главы 1 ТУ.

Колонны нижнего яруса грузят на две поперечные подкладки сечением не менее 200×200 мм, укладываемые над шкворневыми балками платформы. Колонны каждого следующего яруса располагают на двух поперечных прокладках сечением не менее 100×200 мм.

Рис. 4.37:

1 - подкладка; 2 - прокладка; 3 - поперечная увязка; 4, 5 - продольные и поперечные растяжки

В каждом ярусе колонны скрепляют между собой за монтажные петли поперечными увязками из проволоки диаметром 6 мм в четыре нити. Колонии нижнего яруса крепят в продольном направлении четырьмя парами растяжек в восемь нитей каждая, а верхнего и второго сверху ярусов - в каждом двумя парами таких же растяжек. Продольные растяжки в зависимости от длины колонн и расположения на них монтажных петель крепят за опорные кронштейны с торцовой стороны платформы и за боковые стоечные скобы. При этом необходимо соблюдать нормативы, установленные в § 48 главы 1 ТУ.

Дополнительно колонны верхнего пруса закрепляют двумя парами поперечных растяжек в четыре нити каждая за ближайшие боковые стоечные скобы. Все растяжки должны быть выполнены из проволоки диаметром 6 мм.

§ 20. Арочные панели длиной 5 - 6 м на четырехосной платформе размещают вдоль платформы в два штабеля (рис. 4.38) с опорой на продольные подкладки сечением не менее 100×150 мм и длиной не менее 700 мм. При этом под концы панелей со стороны торцовых бортов и под концы панелей обоих штабелей посередине платформы укладывают по шесть подкладок. На подкладки вплотную к панелям укладывают упорные бруски. Каждую подкладку с упорным бруском прикрепляют к полу платформы 12-ю гвоздями длиной не менее 200 мм.

В каждом штабеле панели размещают в четыре яруса по высоте погрузки. По ширине платформы в первых трех ярусах располагают по три панели, а в верхнем ярусе - две панели. Между каждым ярусом панелей укладывают две поперечные прокладки сечением не менее 50×150 мм.

Панели каждого яруса увязывают между собой за строповочные петли четырьмя поперечными увязками из проволоки диаметром 6 мм в четыре нити. Каждый штабель панелей крепят четырьмя парами растяжек из проволоки диаметром 6 мм в восемь нитей крестообразно за строповочные петли верхних панелей и за стоечные скобы платформ.

Каждый штабель панелей ограждают двумя парами боковых стоек длиной 2,8 м. Противоположные стойки увязывают между собой попарно проволокой диаметром 6 мм в четыре нити.

§ 21. Фундаментные блоки прямоугольного сечения, блоки цоколя и стен подвала размещают длинной стороной вдоль платформы в несколько штабелей в зависимости от длины блоков, при высоте последних до 0,6 м - в два яруса, более 0,6 м - в один ярус по высоте (рис. 4.39 и 4.40).

Рис. 4.38:

1 - упорный брусок; 2 - прокладки; 3 - боковые стойки; 4 - увязки боковых стоек; 5 - торцовая стойка; 6 - продольная прокладка; 7 - растяжки; 8 - поперечная увязка

Рис. 4.39:

1 - увязка; 2 - растяжка

Изделия каждого яруса поверху увязывают между собой двумя поперечными увязками из проволоки диаметром 6 мм в четыре нити.

Между изделиями нижнего и верхнего ярусов укладывают прокладки сечением 100×100 мм и длиной, равной ширине погрузки.

Каждый штабель закрепляют за монтажные петли крайних блоков двумя парами растяжек из проволоки диаметром 6 мм в семь нитей при весе штабеля 14 т и в восемь нитей - при весе штабеля более 14 т.

§ 22. Фундаментные блоки трапециевидного сечения и башмаки стаканного типа на четырехосной платформе размещают в зависимости от размеров в один - два ряда по ширине, в несколько штабелей по длине и в три-четыре яруса по высоте (рис. 4.41). Каждую пару штабелей закрепляют четырьмя растяжками из проволоки диаметром 6 мм в восемь нитей за строповочные петли верхних блоков.

В четырехосных полувагонах такие блоки размещают аналогично погрузке на платформе, при этом под каждый нижний ряд укладывают по две продольных подкладки сечением 40×150 мм по всей длине полувагона.

Крайние штабеля закрепляют четырьмя растяжками из проволоки диаметром 6 мм в шесть нитей (рис. 4.42). Два крайних штабеля закрепляют поперечными упорными брусками сечением не менее 40×150 мм, прибиваемыми тремя гвоздями длиной не менее 150 мм к полу платформы или к специально уложенной подкладке сечением не менее 40×50 мм в полувагоне.

Продольные прокладки и подкладки на платформах и в полувагонах располагают на расстоянии 100 - 150 мм от края блоков или стаканов.

Рис. 4.40:

1 - растяжки; 2 - изделия; 3 - прокладки; 4 - увязки

Рис. 4.41:

1 - прокладка; 2 - растяжка; 3 - поперечные упорные бруски

§ 23. Лестничные марши и лестничные площадки грузят на четырехосную платформу следующим порядком (рис. 4.43). В средней части платформы устанавливают лестничные площадки длинной стороной вдоль вагона в два штабеля по длине, в два ряда по ширине, в семь ярусов по высоте, причем в седьмом верхнем ярусе - в один ряд по ширине. Каждый штабель размещают на двух поперечных подкладках размерами 40×150×2700 мм, прибиваемых к полу платформы каждая 13-ю гвоздями длиной 150 мм. Между ярусами изделий укладывают прокладки сечением 25×100 мм. К серединам подкладок и прокладок для выравнивания положения площадок прибивают бруски размерами 100×100×300 мм каждый двумя гвоздями (рис. 4.44) длиной 120 мм. Площадки в каждом ярусе скрепляют между собой увязками из проволоки диаметром 6 мм в четыре нити. Каждый штабель площадок закрепляют двумя парами растяжек из проволоки диаметром 6 мм в восемь нитей за монтажные петли второго сверху яруса и стоечные скобы платформы. Верхний ярус площадок в каждом штабеле закрепляют двумя парами увязок из проволоки диаметром 6 мм в четыре нити за монтажные петли второго сверху яруса.

Рис. 4.42:

1 - прокладки; 2 - растяжки; 3 - специальная подкладка упорных брусков; 4 - поперечный упорный брусок; 5 - подкладки

Рис. 4.43:

1 - растяжки; 2 - прокладки; 3 - увязки; 4 - устройство для скрепления балок в монолитный блок; 5 - брусок; 6 - подкладки

С обеих сторон вплотную к площадкам устанавливают «на ребро» вдоль платформы по 13 лестничных маршей, которые необходимо соединить в монолитный блок в соответствии с требованиями § 41 главы 1 ТУ. Каждый штабель маршей размещают на двух подкладках размерами 40×100×2700 мм. Каждую подкладку прибивают к полу платформы 20-ю гвоздями длиной 150 мм. При отсутствии монтажных петель допускается укладка лестничных маршей на пол платформы без подкладок. Каждый штабель маршей закрепляют двумя парами растяжек из проволоки диаметром 6 мм в восемь нитей за монтажные петли изделий и стоечные скобы платформы.

В четырехосном полувагоне лестничные марши и площадки размещают аналогично погрузке на платформе (рис. 4.45).

Рис. 4.44:

1 - брусок; 2 - изделия; 3 - прокладка

Для предотвращения продольного сдвига изделия закрепляют двумя упорными брусками сечением 200×200 мм и длиной, равной ширине полувагона. Штабеля лестничных площадок закрепляют четырьмя парами растяжек из проволоки диаметром 6 мм в четыре нити за монтажные петли изделий и нижние увязочные устройства полувагона. Каждый штабель лестничных маршей от поперечного сдвига закрепляют четырьмя упорными брусками сечением не менее 40×150 мм, устанавливаемыми между грузом и стойками полувагона и прибиваемыми к подкладкам пятью гвоздями длиной 100 мм.

§ 24. Конические железобетонные опоры длиной до 11,5 м перевозят в полувагонах с закрытыми торцовыми дверями (рис. 4.46). По высоте опоры размещают в полувагоне в несколько ярусов основаниями в нечетных ярусах в одну, а в четных в противоположную сторону.

Первый ярус опор укладывают основаниями на подкладку сечением 100×200 мм, а вершинами - на подкладку сечением 200×200 мм. Подкладки размещают над шкворневыми балками полувагона. Смежные ярусы опор разделяют прокладками сечением не менее 50×200 мм.

Каждую опору, уложенную в двух верхних ярусах, подклинивают с обеих сторон клиньями толщиной не менее 25 мм. Каждый клин прибивают к прокладке тремя гвоздями длиной 100 - 120 мм. Крепят опоры шестью поперечными обвязками из проволоки диаметром 6 мм в шесть нитей за нижние увязочные устройства.

Рис. 4.45:

1 - растяжки; 2 - прокладки; 3 - увязки; 4 - устройство для скрепления балок в монолитный блок; 5 - упорный брус; 6 - брусок; 7 - подкладки

При погрузке опор длиной 11,5 м в каждом ярусе укладывают пять опор, при погрузке опор длиной до 11 м - шесть опор. Загрузка шести опор достигается за счет смещения их между собой по длине на 700 - 800 мм.

§ 25. Конические опоры контактной сети длиной 12,8 - 13,6 м перевозят на сцепах из двух полувагонов и одной промежуточной платформы-прикрытия (рис. 4.47). Опоры грузят в каждый полувагон в пять ярусов по высоте (по пять опор в каждом ярусе). В штабелях все опоры размещают основаниями в сторону закрытых торцовых дверей.

Рис. 4.46:

1 - клинья; 2 - подкладка; 3 - прокладка; 4 - обвязка; 5 - утолщенная подкладка

Рис. 4.47:

1 - прокладка; 2 - боковые стойки; 3 - верхнее поперечное крепление; 4 - поперечный брус; 5 - подкладка; 6 - клин

Каждый штабель ограждают четырьмя парами боковых стоек. Противоположные стойки увязывают между собой проволокой диаметром 6 мм в две нити.

Первый ряд опор укладывают на две подкладки, которые размещают на шкворневых балках полувагона. Последующие ярусы опор разделяют между собой прокладками. Толщина подкладок и прокладок, на которых размещают основание опор, должна быть не менее 40 мм, а толщина подкладок и прокладок, на которые укладывают вершины опор, - не менее 250 мм.

Основание двух опор пятого ряда, расположенных у боковых стоек, укрепляют с наружных сторон клиньями толщиной 40 мм, каждый из которых прибивают тремя гвоздями длиной 100 - 120 мм. Над прокладками со стороны вершины опор укладывают поперечный брус сечением не менее 100×200 мм, который в четырех местах между опорами связывают с прокладкой проволокой диаметром 6 мм в две нити. На утолщенных подкладках 1 (рис. 4.48), прокладках 2 и верхнем поперечном брусе 3 в местах их соприкосновения с опорами делают выемки глубиной до 50 мм.

§ 26. Железобетонные блоки СОГ в количестве 8 шт. размещают на четырехосных платформах с опущенными и закрепленными согласно § 5 главы 1 ТУ боковыми бортами в четыре штабеля по длине и в два яруса по высоте.

Каждый штабель размещают на двух поперечных подкладках сечением не менее 50×100 мм и длиной 3,2 м, располагаемых под торцовыми стенками блоков. Каждый блок верхнего яруса укладывают на четыре прокладки сечением не менее 100×100 мм, длиной 700 мм, располагаемые под углом 45° к продольной оси вагона (рис. 4.49). Для предотвращения выпадания прокладок к каждой из них прибивают тремя гвоздями длиной 150 мм брусок-фиксатор трапециевидного сечения размерами 80×100×350 мм, размещаемый вертикально внутри блока СОГ.

Рис. 4.48:

1 - подкладка толщиной 250 мм; 2 - прокладка толщиной 250 мм; 3 - верхний поперечный брус

Рис. 4.49:

1 - подкладки; 2 - растяжки; 3 - прокладки; 4 - упорный брус; 5 - трапециевидные бруски-фиксаторы; 6 - торцовые стойки

Рис. 4.50:

1 - подкладки; 2 - растяжки; 3 - прокладки; 4 - упорный брусок; 5 - торцовые стойки

В распор между торцовыми бортами платформы и крайними блоками укладывают упорные бруски сечением не менее 100×100 мм, длиной 2,7 м и каждый из них прибивают к полу шестью гвоздями диаметром 5 мм и длиной 150 мм. Торцовые борта платформы подкрепляют короткими стойками вровень с бортами. Каждый штабель закрепляют за монтажные петли верхних блоков растяжками из проволоки диаметром 6 мм в шесть нитей, крайний штабель - шестью растяжками за боковые и торцовые стоечные скобы платформы, а каждый средний штабель - четырьмя растяжками за боковые скобы.

§ 27. Железобетонные элеваторные блоки СОГ в комплекте с элементами В-1 размещают на четырехосных платформах с опущенными и закрепленными согласно § 5 главы 1 ТУ боковыми бортами. Погруженные блоки не должны выходить за продольные кромки рамы платформы более 150 мм. Каждый штабель укладывают на две поперечные подкладки сечением не менее 50×100 мм, длиной 3,2 м, располагаемые под торцовыми стенками блоков СОГ. На четырех блоках СОГ устанавливают 12 элементов ВО-1 (по три элемента на каждом блоке) с размещением их на четырех прокладках сечением 100×100 мм, длиной 1450 мм, располагаемых под углом 45° к продольной оси платформы (рис. 4.50).

В распор между крайними штабелями и торцовыми бортами платформы укладывают бруски сечением не менее 100×100 мм, длиной 2,7 м, каждый из которых прибивают шестью гвоздями диаметром 5 мм, длиной 150 мм. Торцовые борта платформы подкрепляют короткими стойками вровень с бортами. Каждый штабель блоков СОГ и элементов В-1 закрепляют за монтажные петли верхних элементов В-1 растяжками из проволоки диаметром 6 мм: крайний штабель - шестью растяжками в семь нитей за торцовые и боковые скобы платформы, средний штабель - четырьмя растяжками в четыре нити за боковые скобы платформы.

§ 28. Элеваторные элементы СУГ (9 шт.) и СПГ (17 шт.) размещают на четырехосной платформе пакетами в один ярус (рис. 4.51). Внутри пакета из трех элементов СУГ размещают по три элемента СПГ и между пакетами - по четыре элемента СПГ. Элементы СПГ увязывают между собой шестью увязками из проволоки диаметром 6 мм в четыре нити, элементы СУГ - девятью увязками из той же проволоки в две нити за монтажные петли.

Рис. 4.51:

1 - растяжки; 2 - упорные бруски; 3 - увязки; 4 - торцовая стойка

Рис. 4.52:

1 - СОГ-1; 2 - СОГ-1ТА; 3 - прокладка; 4 - растяжки; 5 - стойка; 6 - упорный торцовый брусок; 7 - подкладка; 8, 9 - увязки; 10 - ПСЖ-4; 11 - упорный брус

Элементы СПГ, расположенные внутри пакетов СУГ, закрепляют девятью упорными брусками (по три на пакет) сечением не менее 80×90 мм и длиной 500 мм, прибиваемыми к полу каждый двумя гвоздями диаметром 5 мм, длиной 130 мм. Каждый пакет элементов СУГ закрепляют двумя упорными брусками сечением не менее 50×100 мм, длиной 1 и 1,2 м, прибиваемым каждый 10-ю гвоздями диаметром 5 мм, длиной 100 мм, и четырьмя растяжками из проволоки диаметром 6 мм в восемь нитей за монтажные петли элементов СУГ и боковые стоечные скобы платформы.

Вплотную между торцовыми бортами и крайними элементами СУГ укладывают упорные бруски толщиной не менее 50 мм и длиной 1,2 м, каждый из которых прибивают пятью гвоздями. В торцовые стоечные скобы устанавливают по одной короткой стойке вровень с бортами.

§ 29. Погрузку и крепление элеваторных элементов СОГ-1 и СОГ-1ТА совместно с элементами ПСЖ-4 и СПГ производят в следующем порядке. До начала погрузки у платформы опускают и закрепляют боковые борта в соответствии с требованиями § 5 главы 1 ТУ.

Элеваторные элементы СОГ-1 и СОГ-1ТА размещают на платформе в четыре штабеля по длине и в два яруса по высоте, а ПСЖ-4 и СПГ - в один ярус (рис. 4.52 - 4.54). В нижнем ярусе на 10-ти продольных подкладках размерами 40×200×500 мм размещают четыре элемента СОГ-1. Каждую из подкладок прибивают к полу платформы четырьмя гвоздями длиной 150 мм. Внутри каждого элемента СОГ-1 устанавливают на пол в вертикальном положении под углом 45° к продольной оси платформы девять элементов ПСЖ-4 или четыре элемента СПГ. Элементы каждого штабеля ПСЖ-4 и СПГ увязывают между собой за монтажные петли двумя поперечными увязками из проволоки диаметром 6 мм в четыре нити и закрепляют их с боковых сторон двумя упорными брусками размерами 50×100×1000 мм, каждый из которых прибивают к полу платформы четырьмя гвоздями длиной 150 мм.

В верхнем ярусе размещают элементы СОГ-1 или СОГ-1ТА (с одной утолщенной стенкой), каждый из них на четырех прокладках размерами 100×100×550 мм, уложенных по углам нижних элементов СОГ-1 под углом 45° к продольной оси платформы, причем элементы СОГ-1ТА располагают утолщенными стенками внутрь платформы. Для предотвращения выпадания прокладок к каждой из них снизу прибивают тремя гвоздями длиной 150 мм брусок трапециевидного сечения размером 80×100×350 мм, размещаемый внутри элемента СОГ.

Рис. 4.53:

1 - СОГ-1; 2 - СОГ-1ТА; 3 - прокладка; 4 - растяжки; 5 - стойка; 6 - упорный торцовый брус; 7 - подкладка; 8, 9 - увязки; 10 - СПГ; 11 - упорный брусок

Элементы СОГ верхнего яруса увязывают между собой за монтажные петли шестью увязками из проволоки диаметром 6 мм в четыре нити. Против продольных и поперечных сдвигов каждый штабель закрепляют четырьмя растяжками из проволоки диаметром 6 мм в шесть нитей, пропущенными через угловые нижние отверстия элементов СОГ верхнего яруса и через угловые верхние отверстия элементов СОГ нижнего яруса, за боковые стоечные скобы платформы. Дополнительно каждый крайний штабель закрепляют таким же образом двумя растяжками из проволоки диаметром 6 мм в шесть нитей за торцовые кронштейны платформы. Торцовые борта платформы подкрепляют вставленными в стоечные скобы деревянными стойками высотой вровень с бортами. Между торцовым бортом платформы и стенкой элемента СОГ устанавливают упорные брусья (по два с каждой стороны) размерами 100×150×2500 мм, каждый из которых прибивают к полу платформы четырьмя гвоздями длиной 150 мм.

Рис. 4.54:

1 - СОГ-1; 2 - СОГ-1ТА; 3 - прокладка; 4 - растяжки; 5 - стойка; 6 - упорный торцовый брус; 7 - подкладка; 8, 9 - увязки; 10 - СПГ; 11 - ПСЖ-4; 12 - упорный брусок

Асбестоцементные изделия

§ 30. В полувагоне размещают 24 многооборотные металлические кассеты инструкции ПКТИСХ «Оргснаб», проект № 60.010-00 (рис. 4.55), заполненные асбестоцементными волнистыми листами марок УВ-6, УВ-7,5 и СВ-1750 в соответствии с утвержденной в установленном порядке отраслевой инструкцией. Вес брутто кассеты от 2,6 до 2,7 т.

Кассеты располагают длинной стороной вдоль полувагона в два ряда по ширине, по 6 шт. в каждом ряду (рис. 4.56), в два яруса по высоте.

Перед погрузкой кассет вплотную к угловым стойкам полувагона в целях ограждения торцовых дверей краном устанавливают две упорные металлические многоразового использования рамы 2, изготовленные по черт. № 20.093-000 (рис. 4.57) из швеллера № 10 и имеющие размеры: ширину 2750 мм, высоту 1600 мм.

Кассеты размещают в полувагоне последовательно от торцовых дверей к середине, устанавливая их вплотную к упорным рамам и одну к другой. В зазор, образующийся в средней части вагона, между кассетами устанавливают две распорные деревянные стойки 5 (см. рис. 4.56) высотой 200 мм, шириной 150 мм и толщиной, равной величине зазора.

В процессе погрузки кассет нижнего яруса между стойками кассет и нижним обвязочным поясом кузова полувагона с каждой стороны укладывают по пять упорных деревянных брусков 3 размерами 75×150×400 мм, к которым сверху перпендикулярно прибиты двумя гвоздями деревянные планки размерами 50×100×300 мм. Свободный конец каждой планки размещают между стойками кассет.

Кассеты верхнего яруса устанавливают на поперечные полки с упорами 4 (см. рис. 4.55) кассет нижнего яруса и увязывают между собой скрутками 2 из проволоки диаметром 6 мм в две нити за грузоподъемные петли (см. рис. 4.56).

§ 31. На платформе размещают 24 кассеты конструкции ПКТИСХ «Оргснаб», заполненные асбестоцементными волнистыми листами марок УВ-6, УВ-7,5 и СВ-1750 (см. § 30). Загруженные кассеты устанавливают длинной стороной вдоль платформы в два ряда по ее ширине, по 6 шт. в ряду, в два яруса по высоте симметрично продольной и поперечной осям платформы (рис. 4.58). От продольных перемещений кассеты закрепляют инвентарной оснасткой многоразового использования: тремя упорными металлическими рамами 2 (см. рис. 4.57), 16-ю выполненными из троса и цепи растяжками 3 и восемью короткими металлическими стойками 4.

Рис. 4.55:

1 - полукассета; 2 - связь цепная; 3 - замок специальный; 4 - угловой упор

Рис. 4.56:

1 - кассета, заполненная асбестоцементными листами; 2 - скрутки проволочные; 3 - упорные бруски; 4 - упорная металлическая рама; 5 - стойки деревянные

Перед погрузкой кассет посередине платформы перпендикулярно ее продольной оси устанавливают упорную раму, изготовленную по черт. 20.093-000 из швеллера № 10. Вплотную к раме с обеих сторон от нее помещают по две кассеты, после чего производится погрузка остальных кассет, установка торцовых упорных рам, инвентарных металлических стоек во вторые и третьи стоечные скобы, считая от концов платформы, и крепление упорных рам растяжками. Торцовые упорные рамы крепят каждую двумя парами растяжек, направленными к середине платформы, а среднюю раму - четырьмя парами растяжек, направленными к концам платформы. Одним концом растяжки крепят за крюки талрепов на упорных рамах, а другим - за стойки, установленные в стоечные скобы платформы. Натяжение растяжек осуществляют талрепами.

От поперечных перемещений кассеты закрепляют деревянными брусками 5 и 6 сечением 100×100 мм и длиной соответственно 600 и 250 мм.

Рис. 4.57:

1 - рама верхняя; 2 - рама средняя; 3 - балка нижняя; 4 - стойка; 5 - петля грузоподъемная; 6 - связь поперечная

Рис. 4.58:

1 - кассета, заполненная асбестоцементными листами; 2 - упорная рама; 3 - растяжки; 4 - металлическая стойка; 5, 6 - деревянные упорные бруски длиной соответственно 600 и 250 мм; 7 - проволочные скрутки

Каждый брусок прибивают к полу платформы двумя гвоздями длиной 150 мм.

Кассеты верхнего яруса устанавливают на поперечные полки кассет нижнего яруса и увязывают между собой скрутками 7 из проволоки диаметром 6 мм в две нити за грузоподъемные петли кассет. Кассеты верхнего яруса фиксируются относительно нижних кассет имеющимися на них угловыми упорами 4 (см. рис. 4.55).

Кассеты, многооборотная инвентарная остастка (рамы, растяжки, цепи, стойки) изготовляются по технической документации, утвержденной в установленном порядке и определяющей порядок, сроки освидетельствования и ремонта указанных средств пакетирования и крепления.

Адрес калькодержателя техдокументации: 603000, г. Горький, ГСП-228, ул. Гагарина, 28, рабочие проекты № 60.010-00, № 20.093-000. ПКТИСХ «Оргснаб».

§ 32. Порожние кассеты формируют в пакеты из восьми полукассет (рис. 4.59), уложенных попарно в связки и закрепленных свободными концами цепей. Пакеты порожних кассет вместе с упорными рамами перевозят мелкими или повагонными отправками.

Рис. 4.59:

а - пакет порожних кассет; б - связка из двух полукассет

Рис. 4.60

При возврате повагонной отправкой кассет, перевозившихся в полувагонах в загруженном виде, в полувагоне размещают четыре комплекта порожних кассет и упорных рам (рис. 4.60). Упорные рамы 2 устанавливают краном вплотную к угловым стойкам полувагона, по 4 шт. с каждой стороны. Пакеты 1 порожних кассет в количестве 24 шт. размещают длинной стороной вдоль вагона в два ряда по ширине, по 6 шт. по длине, в два яруса по высоте симметрично продольной и поперечной осям вагона.

При возврате повагонной отправкой кассет, перевозившихся загруженными на платформах, инвентарные растяжки увязывают проволокой в связки по 8 шт., пригодные для механизированной погрузки и выгрузки. В полувагоне размещают три комплекта порожних кассет, упорных рам и растяжек (рис. 4.61). Пять упорных рам размещают вплотную к угловым стойкам полувагона с одной стороны и четыре упорные рамы с другой. Пакеты порожних кассет в количестве 18 шт. размещают длинной стороной вдоль полувагона в два яруса. В обоих ярусах пакеты располагают по 2 шт. по ширине полувагона. В нижнем ярусе устанавливают 12 пакетов, в верхнем - шесть. В свободном пространстве верхнего яруса укладывают связки растяжек.

§ 33. Асбестоцементные трубы длиной 5 м перед погрузкой укладывают в контейнеры СТ7-5М конструкции ВНИИпроектасбестоцемента Минстройматериалов СССР, размеры которых: длина 5100 мм, ширина 1384 мм, высота 1450 мм, а муфты с уплотнительными кольцами - в контейнеры СТ6-3, размеры которых: длина 2700 мм, ширина 1700 мм, высота 900 мм.

В полувагоне контейнеры с асбестоцементными трубами размещают длинной стороной вдоль вагона в два штабеля по длине, в два ряда по ширине, в два яруса по высоте (рис. 4.62). Контейнеры второго яруса относительно первого фиксируют специальными упорами, являющимися конструктивными элементами контейнеров. Контейнер с муфтами устанавливают между штабелями на полу вагона.

Рис. 4.61:

1 - упорные рамы; 2 - связки растяжек; 3 - пакет порожних кассет

Рис. 4.62:

1 - контейнер СТ7-5М для труб; 2 - контейнер СТ6-3 для муфт; 3 - упорный брусок

Оба штабеля контейнеров с каждой стороны закрепляют от продольного перемещения упорным деревянным бруском размером 75×100×2800 мм, укладываемым на пол между контейнерами и торцовой дверью полувагона. От опрокидывания в поперечном направлении каждую пару контейнеров верхнего яруса увязывают между собой за рамы проволокой диаметром 6 мм в четыре нити.

Рис. 4.63:

1 - пакет контейнеров CT7-5M; 2 - контейнер CT6-3; 3 - растяжка; 4 - упорные бруски

Порожние контейнеры СТ7-5М для труб транспортируют в сложенном виде пакетами из 3 шт. Пакет порожних контейнеров увязывают тремя проволочными скрутками из проволоки диаметром 6 мм в две нити. Размеры пакета порожних контейнеров: длина 3900 мм, ширина 1520 мм, высота 1450 мм.

В полувагон загружают восемь пакетов порожних контейнеров СТ7-5М и три контейнера СТ6-3 (рис. 4.63). Вплотную к торцовым дверям полувагона укладывают по одному деревянному бруску размерами 100×100×2750 мм. Пакеты порожних контейнеров устанавливают длинной стороной вдоль вагона в положении «на ребро».

В первом ярусе устанавливают шесть пакетов контейнеров СТ7-5М: по 2 шт. по ширине вагона и по 3 шт. по длине. Во втором ярусе симметрично продольной и поперечной осям полувагона устанавливают два пакета контейнеров СТ7-5М и три контейнера СТ6-3 в следующей последовательности. По торцам полувагона устанавливают два контейнера СТ6-3. Вплотную к ним устанавливают пакеты контейнеров СТ7-5М. Между двумя пакетами контейнеров СТ7-5М устанавливают контейнер СТ6-3 в положение «на ребро». Между первым и вторым ярусами контейнеров СТ7-5М укладывают два деревянных бруска размерами 100×100×2750 мм.

Адрес калькодержателя технической документации: 103055, г. Москва, К-55, Тихвинский пер., 11, ВНИИпроектасбестоцемент Минстройматериалов СССР; рабочие проекты № СТ7-5М, СТ6-3.

Изделия крупнопанельного домостроения

§ 34. Изделия крупнопанельного домостроения (железобетонные панели) длиной от 1 до 7,2 м, высотой от 1,2 до 3 м, толщиной от 0,06 до 0,4 м, которые могут быть сплошными или иметь оконные и дверные проемы, размещают в вертикальном положении на платформах и в полувагонах на тележках ЦНИИ-Х3 с использованием съемных многооборотных устройств конструкции института Энергожилиндустройпроект объединения Союзэнергожилстрой Министерства энергетики и электрификации СССР. Адрес института: 404130, г. Волжский, Волгоградской обл., пр. Ленина, 1.

Размещение изделий производят на платформы, постройки с 01.01.74 с загрузкой до 75 т, а на платформы более ранних лет постройки загружают с учетом допускаемого перегруза.

Съемные многоборотные кассеты (рабочие проекты № 4793.77.00.00.00.СБ и 1323.83.00.00.00.СБ) для размещения и крепления панелей на платформах (рис. 4.64) состоят из четырех призм 7, двух полурам 7, боковых стоек 2, двух передвижных упорных брусьев 9 и охватывающего пояса 3.

Все борта платформы опускают и закрепляют согласно § 5 главы 1 ТУ. На платформу устанавливают две полурамы 7, которые соединяют между собой восемью болтами 6 диаметром 36 мм и стягивают так, чтобы отсутствовали зазоры между упорными зубьями 4 рамы и лобовым брусом платформы. Полурамы 7 закрепляют за все стоечные скобы платформы болтами 5, которые должны быть плотно затянуты и зашплинтованы против самооткручивания. Центральные призмы 1 устанавливают вдоль продольной оси полурам и прикрепляют к внутренним поясам болтовыми соединениями.

Панели устанавливают вертикально в штабель в несколько продольных рядов симметрично относительно продольной и поперечной осей вагона с опиранием в наклонном положении на центральную часть кассеты - призму.

Рис. 4.64

Панели, устанавливаемые в каждых двух симметрично расположенных рядах, должны быть одинаковые и иметь одинаковые длину, высоту, толщину и вес. Внешние и центральные ряды должны быть составлены из панелей большей толщины и длины, а внутренние ряды могут быть составлены из панелей меньшей длины и толщины так, чтобы толщина панелей в симметрично размещенных противоположных рядах в любом поперечном сечении была одинаковой. В торцовой части каждого штабеля размещают панели длиной не менее 2,8 м. Разница в длине рядов панелей должна быть не более 1 м. При наличии зазоров между торцами панелей в них устанавливают деревянные брусья по всей высоте панелей с осуществлением мер, предотвращающих их выпадание. Каждая панель должна опираться не менее чем на две подкладки.

Панели устанавливают поочередно с одной и другой стороны призмы 1 на деревянные подкладки, закрепленные к полурамам кассеты, сохраняя симметричность погрузки относительно середины платформы (см. рис. 4.64). Первую и затем все последующие панели в процессе погрузки временно закрепляют за монтажные петли страховочной инвентарной цепью, установленной на призмах, или проволокой диаметром 6 мм в две нити.

Под панели, длина которых не позволяет устанавливать их одновременно на две подкладки полурамы, укладывают дополнительные деревянные подкладки сечением 110×200 мм, длиной не менее 500 мм. Подкладки к полу платформы прибивают каждую четырьмя гвоздями диаметром 6 мм, длиной 150 мм. Панели с противодождевым зубом грузят на две деревянные подкладки сечением 100×200 мм, длиной не менее 500 мм, которые устанавливают на деревянные подкладки 8 и прибивают к ним четырьмя гвоздями диаметром 6 мм, длиной 150 мм.

Вплотную к торцовой части штабеля укладывают инвентарные упорные брусья 9. Между ними и торцом полурамы помещают шесть распорных деревянных брусьев сечением 150×200 мм, которые скрепляют между собой накладкой из доски сечением 25×150 мм, длиной 2,7 м, прибиваемой двумя гвоздями длиной 100 мм к каждому брусу.

В зазор между внешней продольной балкой полурамы и боковой поверхностью панели устанавливают поперечные упорные брусья сечением не менее 80×150 мм. При ширине штабеля в нижней части до 2,36 м помещают поперек платформы по два бруса на каждую панель внешнего ряда, а при ширине более 2,36 м - брусья длиной 1,8 м, располагаемые вдоль вагона. Упорные брусья к подкладкам 8 полурам кассеты прибивают четырьмя гвоздями диаметром 6 мм и длиной 150 мм.

Противоположные панели внешних рядов скрепляют между собой восемью стяжками из проволоки диаметром 6 мм в шесть нитей за монтажные петли. На высоте 1,5 - 2 м от пола платформы на штабель панелей устанавливают охватывающий пояс 3. Между панелями и охватывающим поясом размещают восемь прокладок сечением 25×100 мм и длиной 2,5 м, которые закрепляют вверху за монтажные петли панелей проволокой диаметром 6 мм в две нити, а внизу прибивают к подкладкам каждую двумя гвоздями длиной 100 - 120 мм.

После монтажа охватывающего пояса 3 устанавливают боковые стойки 2, которые стягивают с помощью тяг с натяжным устройством. Все винтовые соединения фиксируют от раскручивания контргайками, шплинтами или проволокой диаметром 6 мм в две нити.

При выгрузке снятие панелей и демонтаж узлов крепления осуществляют в обратном порядке, при этом внешние панели во время застропки должны быть закреплены страховочной цепью.

При возврате одиночной платформы с одним порожним комплектом крепления (рис. 4.65) освобождают два передвижных упорных бруска 4 и укладывают сбоку двух крайних призм 1, с которыми эти брусья увязывают двумя стяжками 6 из проволоки в две нити. Охватывающий пояс 7 укладывают внутри рамы кассеты на деревянные подкладки 3 и увязывают в углах к раме кассеты четырьмя растяжками 8 из проволоки в четыре нити. Боковые стойки 5 демонтируют, укладывают на подкладки рамы кассеты между охватывающим поясом 7 и призмами 1 и прикрепляют к призмам двумя стяжками 6 из проволоки в две нити. Пальцы шарнирного соединения боковых строек устанавливают на прежние места и заново зашплинтовывают от выпадания.

При возврате трех комплектов кассет на одной платформе (рис. 4.66 и 4.67) полный демонтаж крепежных приспособлений производят только с двух платформ, с которых выгружены панели. С третьей платформы демонтируют только четыре призмы, а на оставшейся закрепленной раме кассеты размещают демонтированные узлы (см. рис. 4.66). Два передвижных упорных бруса 5 укладывают на подкладках рамы кассеты 1 и крепят к ней вдоль продольной оси в двух местах проволокой в две нити. Вдоль продольной оси первой рамы кассеты на платформе укладывают охватывающие пояса 6 и крепят в углах к раме кассеты четырьмя растяжками из проволоки в четыре нити.

Рис. 4.65:

1 - призмы; 2 - полурама кассеты; 3 - подкладка; 4 - передвижной упорный брусок; 5 - боковая стойка; 6 - стяжки; 7 - охватывающий пояс; 8 - растяжка

Рис. 4.66:

1 - полурама кассеты; 2 - скоба; 3 - боковые стойки; 4 - увязка 5 - передвижной упорный брус; 6 - охватывающий пояс; 7 - упорный столик; 8 - болты; 9 - растяжка; 10 - упорный зуб

Рис. 4.67:

1 - призма; 2 - полурама кассеты; 3 - болты скобы; 4 - растяжка; 5 - увязка; 6 - накладка на доски; 7 - прокладка; 8 - подкладка; 9 - упорный брус

На первую раму кассеты устанавливают две другие полурамы 1, соединенные между собой болтами 8. В торцах раму кассеты упирают к опорным столикам 7 тремя упорными зубьями 10, прижимают болтами 8 и крепят за все боковые столики скобами 2 и болтами диаметром 36 мм.

Во вторую раму кассеты вдоль продольной оси платформы укладывают 12 боковых стоек 3 и два передвижных упорных бруса 5, комплектуют их в два пакета и закрепляют за раму кассеты четырьмя поперечными увязками 4 из проволоки в четыре нити. На кассету укладывают один охватывающий пояс 6, который крепят в углах к раме кассеты четырьмя увязками из проволоки в четыре нити.

На вторую раму устанавливают третью и закрепляют ко второй так же, как вторую раму к первой (см. рис. 4.67). В третью раму вдоль продольной оси укладывают 12 подкладок 8, которые крепят двумя гвоздями диаметром 6 мм и длиной 150 мм к каждой поперечной подкладке рамы. На подкладки 8 укладывают в два яруса 12 призм 1.

Между призмами нижнего яруса укладывают пять поперечных прокладок 7 размерами 100×100×2700 мм, которые прикрепляют к подкладкам 8 каждую четырьмя гвоздями диаметром 6 мм и длиной 150 мм. Призмы раскрепляют между собой 10 увязками 5 из проволоки в четыре нити и крепят к раме 12 растяжками 4 в четыре нити и восемью растяжками в шесть нитей.

Во всех случаях проволока должна быть диаметром не менее 6 мм.

Призмы крепят четырьмя распорными брусьями размерами 200×150×650 мм, которые устанавливают враспор к передвижному брусу и торцу рамы с каждой боковой стороны. Распорные брусья скрепляют между собой накладкой из доски размером 25×150×2700 мм, прибиваемой двумя гвоздями диаметром 5 мм и длиной 100 мм к каждому распорному брусу. Каждую пару призм раскрепляют с внешней боковой продольной балкой рамы кассеты шестью распорными брусьями размерами 120×150×325 мм, которые прибивают к подкладкам кассеты каждый двумя гвоздями диаметром 6 мм и длиной 200 мм.

§ 35. Съемное приспособление многоразового использования (рабочие проекты № 5024.5.77.01.00.00.СБ и 5024.5.00.00.00.СБ конструкции института Энергожилиндустройпроект, см. § 34) для размещения и крепления панелей в полувагонах состоит из четырех металлических призм 1, двух поперечных рам с боковыми стойками 3 и охватывающего пояса 2 (рис. 4.68). В комплект приспособления входят от двух до четырех деревянных упорных брусьев 5 сечением 100×200 мм и длиной 2,96 м, от восьми до 14-ти подкладок 4 из досок сечением 50×150 мм и длиной 2,96 м.

Подкладки размещают над шестью поперечными балками полувагона. Призмы устанавливают вдоль продольной оси полувагона на расстоянии 0,5 и 3,5 м от его середины. Правильность расположения призм относительно продольной и поперечной осей полувагона проверяют по натянутому шнуру и рискам на осях призм. Каждую призму закрепляют на подкладках 4 16-ю гвоздями диаметром 6 мм и длиной 100 мм, забиваемыми через отверстия опорного листа призмы. Между призмами устанавливают распорные рамы 6 из брусьев сечением 100×150 мм.

Две поперечные рамы с боковыми стойками 3 устанавливают на пол полувагона на расстоянии 2 - 2,5 м от его середины. Боковые стойки, смонтированные на рамах, перед погрузкой панелей закрепляют за верхние увязочные устройства полувагона временными проволочными увязками.

Рис. 4.68:

1 - призмы; 2 - охватывающий пояс; 3 - боковая стойка с поперечным креплением; 4 - подкладки; 5 - упорные брусья; 6 - распорная рама

Панели размещают поочередно на противоположных боковых сторонах призм. Панели с противодождевым зубом устанавливают на два деревянных вкладыша сечением 130×200 мм и длиной 0,5 - 1 м, прибиваемых к подкладкам каждый двумя гвоздями длиной 200 мм. Первую и затем все последующие панели в процессе погрузки временно закрепляют за монтажные петли инвентарной цепью, установленной на призмах, или проволокой в две нити. После окончания погрузки внешние ряды панелей скрепляют между собой за противоположные монтажные петли восемью стяжками из проволоки в шесть нитей. На подкладки 4 между стойками полувагона и панелями укладывают с каждой стороны штапеля по шесть распорных брусков сечением не менее 75×150 мм и длиной 0,7 - 1 м, которые прибивают к каждой подкладке двумя гвоздями длиной 150 мм.

На высоте 1,5 - 2 м над полом полувагона монтируют охватывающий пояс 2, разъемные болтовые соединения которого туго затягивают и фиксируют против самораскручивания. Между охватывающим поясом 2 и панелями должны быть установлены вертикальные прокладки из досок сечением 25×150 мм и длиной 2,6 м, закрепляемые в верхней части проволокой в две нити, а внизу прибиваемые к подкладкам каждая двумя гвоздями длиной 100 мм. Боковые противоположные стойки 3 после освобождения от крепления к верхним увязочным устройствам полувагона стягивают между собой тягой (рис. 4.69). Натяжные устройства фиксируют от самораскручивания. Во всех случаях применяют проволоку диаметром 6 мм. Между торцами панелей и нижней обвязкой дверей устанавливают враспор торцовые упорные рамы из брусьев сечением не менее 150×200 мм. Рама состоит из двух поперечных брусьев длиной, равной ширине полувагона, и четырех продольных брусков длиной, равной зазору между поперечными брусьями. Брусья скрепляют между собой накладкой из доски сечением 25×150 мм, прибиваемой двумя гвоздями диаметром 5 мм и длиной 100 мм к каждому распорному бруску или строительными скобами.

Рис. 4.69:

1 - боковая стойка; 2 - тяга с натяжным устройством

§ 36. При возврате в порожнем состоянии в полувагоне (рис. 4.70) пяти комплектов съемных приспособлений, указанных в § 37, их размещают на 14-ти поперечных подкладках 5 сечением 40×150 мм и длиной, равной ширине полувагона. Призмы 2 размещают вплотную друг к другу в два ряда, по 7 шт. в каждом вдоль полувагона симметрично относительно его продольной и поперечной осей. Каждую призму прибивают 16-ю гвоздями длиной 100 мм к подкладкам 5 через отверстия в опорных листах. В промежуток между двумя рядами призм укладывают третий ряд призм основаниями вверх. Все соседние призмы скрепляют между собой увязками 4 (12-ю продольными и семью поперечными) из проволоки диаметром 6 мм в четыре нити. На высоте 1,5 - 2 м от пола полувагона устанавливают охватывающий пояс 1, который должен плотно обжимать всю группу призм. В торцовой части полувагона и вдоль его боковых стен устанавливают упорные рамы 8, распорные бруски и растяжки 3. Остальные инвентарные узлы крепления (охватывающие пояса, боковые стойки, поперечные рамы, деревянные брусья и др.) размещают вдоль боковых стен полувагона и прикрепляют к призмам увязками из проволоки диаметром 6 мм в четыре нити.

§ 37. Железобетонные, керамзитобетонные и гипсобетонные панели и перегородки длиной 6 - 6,4 м, толщиной 0,05 - 0,5 м и высотой 1,2 - 1,8 м грузят в вертикальном положении на платформу с тележками ЦНИИ-Х3 на роликовых подшипниках со всеми опущенными бортами (рис. 4.71), закрепленными согласно § 5 главы 1 ТУ.

Рис. 4.70:

1 - охватывающие пояса; 2 - призма; 3 - проволочные растяжки; 4 - проволочные увязки; 5 - подкладки; 6 - брусья; 7 - боковые стойки с поперечным креплением; 8 - торцовые упорные рамы

Рис. 4.71:

1 - торцовые рамы; 2 - боковые рамы; 3 - стаканы; 4 - подкладки; 5 - прокладки; 6 - поперечные увязки; 7 - винтовые стяжки; 8 - упорные бруски; 9 - распорные бруски

Для крепления груза применяют съемные металлические кассеты, которые изготовляют грузоотправители (грузополучатели) по рабочим чертежам ачинского объединения «Стройиндустрия». Адрес калькодержателя: 662103, г. Ачинск, Промбаза. Кассета состоит из двух торцовых 1 и двух боковых рам 2 высотой 1,2 м. Специальные стаканы 3 для закрепления рам вставляют в боковые и торцовые стоечные скобы платформы и фиксируют в них шпильками с гайками и контргайками.

Панели размещают в кассете симметрично относительно поперечной и продольной осей платформы двумя пакетами по длине, состоящими из нескольких панелей по ширине. При этом панели устанавливают вертикально на деревянных подкладках 4 сечением 40×120 мм и длиной 2,77 м, уложенных на пол платформы. Между пакетами и середине платформы укладывают на ребро прокладку 5 сечением 40×200 мм и длиной 2,77 м. Панели увязывают между собой четырьмя поперечными увязками 6 из проволоки в четыре нити за монтажные петли и стягивают тремя винтовыми стяжками 7 за боковые рамы кассеты. Во всех случаях проволока должна быть диаметром 6 мм.

От продольного сдвига панели закрепляют упорными 8 и распорными 9 брусками сечением 100×100 мм. Каждый упорный брусок прибивают к полу платформы 13-ю, каждый распорный брусок - тремя гвоздями диаметром 6 мм и длиной 150 мм. От сдвига и опрокидывания в поперечном направлении панели удерживают боковые рамы 2 кассеты. Между упомянутыми рамами и крайними панелями устанавливают упорные бруски длиной 300 мм, высотой 100 мм и шириной по размеру зазора, образованного при погрузке.

§ 38. В порожнем состоянии кассеты, указанные в § 37, в количестве трех комплектов грузят на четырехосную платформу. После выгрузки панелей и перегородок на платформе оставляют один комплект кассеты. Два комплекта кассет с двух других платформ грузят в следующем порядке (рис. 4.72). Две торцовые рамы 3 устанавливают в нерабочем положении с опиранием на торцовые рамы кассеты 2, остающейся на платформе, и закрепляют каждую четырьмя обвязками 1 из проволоки в две нити. Две другие торцовые рамы устанавливают с опиранием на боковые рамы 6 упомянутой выше кассеты, остающейся на платформе на подкладках 4 сечением 140×140 мм и длиной 2,77 м, прибивают к полу четырьмя гвоздями диаметром 6 мм и длиной 200 мм и закрепляют каждую двумя увязками 5 за боковые рамы 6 и двумя растяжками 7 из проволоки в две нити за стоечные скобы платформы.

Рис. 4.72:

1, 5 - увязки; 2 - торцовая рама кассеты, не подвергавшейся демонтажу; 3 - торцовая рама демонтированной кассеты; 4 - подкладка; 6 - боковая рама кассеты, не подвергавшейся демонтажу; 7 - растяжка; 8 - боковые рамы демонтированных кассет; 9 - пачка винтовых стяжек

Четыре боковые рамы 8 укладывают по две друг на друга в середине платформы и закрепляют четырьмя увязками из проволоки в две нити за боковые рамы кассеты, не подвергшейся демонтажу. Шесть поперечных винтовых стяжек укладывают связанными в пачку 9 вдоль платформы между боковыми рамами. Во всех случаях проволока должна быть диаметром не менее 6 мм.

§ 39. Железобетонные, гипсобетонные, керамзитобетонные панели и перегородки длиной 1,2 - 6 м, толщиной 0,05 - 0,5 м и высотой 2 - 2,5 м грузят в вертикальном положении в четырехосный полувагон с применением съемной металлической пирамиды (рис. 4.73), изготовляемой грузоотправителем (грузополучателем) по рабочим чертежам Красноярского завода строительных материалов и конструкций Министерства промышленности строительных материалов РСФСР. Адрес калькодержателя: 660019, Красноярск-19, Затонская, 42. Пирамида представляет собой сварную объемную конструкцию, состоящую из пирамидальной опоры 8 длиной 11,7 м и высотой 2,2 м, нижних поперечных балок основания 6, торцовых упорных поперечных балок 4 и боковых прижимных стоек 2 высотой 3,2 м, шарнирно соединенных с основанием пирамиды.

Рис. 4.73:

1 - панели; 2 - прижимные стойки; 3 - растяжки; 4 - упорные торцовые балки; 5 - упорный брус; 6 - балки основания пирамиды; 7 - стяжка; 8 - пирамидальная опора

Перед погрузкой изделий пирамиду устанавливают в полувагон с опорой на хребтовую балку и нижние обвязочные угольники продольных стенок и закрепляют шестью парами растяжек 3 из проволоки диаметром 6 мм в шесть нитей за нижние увязочные устройства полувагона, а также двумя поперечными упорными брусьями 5 сечением 100×130 мм и длиной 2,85 м, укладываемыми вплотную к основанию угловых стоек полувагона.

Изделия размещают наклонно с прилеганием первых из них к пирамидальной опоре в несколько рядов по ширине и длине симметрично относительно продольной и поперечной осей полувагона. Изделия закрепляют прижимными стойками, соединяемыми поверху между собой поперечными винтовыми стяжками 7 с резьбой не менее М30, а внизу - торцовыми упорными балками пирамиды. Длина рукоятки для затяжки стяжек должна быть не менее 300 мм.

При возврате пирамиды в порожнем состоянии прижимные стойки наклоняют вовнутрь и закрепляют в специальных упорах на пирамидальной опоре увязками из проволоки диаметром 4 мм в две нити (рис. 4.74).

§ 40. Железобетонные, керамзитобетонные, гипсобетонные панели и перегородки и изделия из ячеистого бетона длиной до 6 м, толщиной 0,08 - 0,5 м и высотой 1,2 - 1,8 м грузят в вертикальном положении на платформу с тележками ЦНИИ-Х3 на роликовых подшипниках с опущенными секциями продольных бортов, закрепленными согласно требованиям § 5 главы 1 ТУ с применением съемных металлических кассет (рис. 4.75), изготовляемых грузоотправителями (грузополучателями) по рабочим чертежам производственного объединения «Николаевжелезобетон» Министерства промышленного строительства УССР. Адрес калькодержателя: г. Николаев, ул. Индустриальная, 1.

Перед погрузкой панелей и изделий на платформу устанавливают две кассеты. Каждая кассета состоит из двух полукассет, содержащих по две боковые стойки 1 высотой 2,35 м с подкосами, по одной поперечной упорной балке 2 и по две продольные балки 4, ниже опорной поверхности которых выступают по два приваренных к ним стакана 5. При монтаже кассет на платформе упомянутые стаканы вставляют в боковые стоечные скобы и закрепляют в них болтами, гайками и контргайками с резьбой не менее М30.

Рис. 4.74

Рис. 4.75:

1 - боковая стойка; 2 - упорная балка; 3 - прижимной винт; 4 - продольная балка; 5 - стакан; 6 - проволочные увязки; 7 - стяжки

Изделия размещают в кассетах симметрично относительно продольной и поперечной осей платформы двумя пакетами по длине и по нескольку штук по ширине. Изделия увязывают между собой за монтажные петли поперечными увязками 6 из проволоки диаметром 6 мм в две нити. Каждую полукассету поверху стягивают стяжкой 7 с гайкой и контргайкой. Каждый пакет зажимают с боков через стойки кассеты восемью прижимными винтами 3 с металлическими упорными подпятниками диаметром не менее 150 мм. На подпятниках закреплены резиновые подкладки толщиной не менее 8 мм.

От продольных перемещений изделия удерживают нижними упорными поперечными балками кассеты и против поперечных перемещений и опрокидывания - боковыми стойками с подкосами.

§ 41. В порожнем состоянии кассеты, указанные в § 40, возвращают на завод-отправитель двумя комплектами на четырехосной платформе (рис. 4.76). После выгрузки изделий один комплект кассет оставляют на платформе в рабочем состоянии, а сверху в нерабочем положении укладывают четыре полукассеты 2, снятые после выгрузки грузов с другой платформы, и закрепляют проволочными увязками 3 в две нити каждую в четырех местах на кассетах, установленных на платформе. Винтовые стяжки 4 (8 шт.) обвязывают проволокой в две нити в двух местах, образуя пакет, и укладывают его в средней части платформы со стороны упорной балки кассеты. Пакет стяжек прикрепляют двумя проволочными увязками 5 в две нити к упомянутой упорной балке. Во всех случаях проволока должна быть диаметром не менее 4 мм.

Рис. 4.76:

1 - полукассета, оставленная в рабочем положении после выгрузки груза; 2 - полукассета, снятая с другой платформы; 3, 5 - проволочные увязки; 4 - винтовые стяжки

§ 42. Стеновые панели длиной до 6 м, толщиной 0,16 - 0,24 м и высотой 0,6 - 0,8 м из ячеистого бетона грузят в вертикальном положении на платформу с тележками ЦНИИ-Х3 на роликовых подшипниках с применением металлических кассет (рис. 4.77), изготовляемых грузоотправителями (грузополучателями) по рабочим чертежам Белгород-Днестровского экспериментального завода ячеистых бетонов и изделий Министерства промышленности строительных материалов УССР (адрес калькодержателя: г. Белгород-Днестровский Одесской обл., ул. Шабская, 108).

Рис. 4.77:

1, 6 - упорные поперечные верхние и нижние балки; 2 - прижимные винты; 3 - рама-боковина; 4 - прокладки; 5 - стакан; 7 - стяжки

Перед погрузкой у платформы опускают все секции боковых бортов и закрепляют, как указано в § 5 главы 1 ТУ. Затем устанавливают две съемные кассеты, состоящие из рам-боковин 3 высотой 2,6 м и соединенных с ними упорных поперечных нижних 6 и верхних 1 балок. Стаканы 5, приваренные к кассетам и выступающие ниже их опорных поверхностей, вставляют в боковые стоечные скобы платформы и закрепляют в них болтами, гайками и контргайками с резьбой не менее М30.

Панели размещают в кассетах вертикально двумя штабелями по длине и по нескольку штук по ширине симметрично относительно продольной и поперечной осей платформы в один - два яруса по высоте. При погрузке в два яруса между ними укладывают деревянные прокладки 4 (по две в каждой кассете) сечением 50×150 мм и длиной 2,75 м. Суммарная высота панелей не должна превышать 2,4 м.

Допустимо применение деревянных прокладок сечением 25×50 мм между панелями с архитектурной отделкой. Каждый пакет изделий закрепляют с боков через стойки кассеты 20-ю прижимными винтами 2 с резьбой не менее М40 с металлическими обрезиненными подпятниками. Винты предохраняют против самораскручивания установкой в отверстия их головок металлического стержня диаметром 6 мм или проволочных скруток.

От продольных перемещений изделия в обоих ярусах удерживают упорные балки кассет. Для предотвращения поперечных сдвигов и опрокидывания изделий стойки кассет поверху стягивают винтовыми стяжками 7 с гайками и контргайками с резьбой не менее М27.

В порожнем состоянии кассеты возвращают на завод-отправитель повагонной отправкой. После выгрузки изделий кассеты оставляют на платформе в рабочем положении, при этом стойки кассет стягивают стяжками 7.

Железобетонные изделия в вагонах-самосвалах

§ 43. Железобетонные плиты размерами 6×1,5; 6×1,2; 4×2; 3×2; 3×1,5 м грузят в вагоны-самосвалы (думпкары) грузоподъемностью 60 т, оборудованные грузовыми увязочными скобами. Вагоны-самосвалы являются собственностью грузоотправителей. Оборудование вагонов указанными выше скобами должно производиться грузоотправителями по рабочим чертежам Главнечерноземводстроя Минводхоза СССР (адрес калькодержателя: 125040, г. Москва, Ленинградский проспект, 22).

Запрещается загрузка вагона-самосвала выше грузоподъемности 60 т и разгрузка его путем наклона кузова.

Плиты размещают в один или несколько штабелей по длине вагона, по 1 - 2 шт. по ширине и в несколько ярусов по высоте, не выше 1,6 м над полом вагона, симметрично относительно его продольной и поперечной осей. Нижние плиты каждого штабеля укладывают на две поперечные подкладки сечением не менее 25×100 мм и длиной, равной внутренней ширине вагона (рис. 4.78 - 4.80). Между крайними подкладками и торцовыми стенками вагона укладывают по две продольных подкладки такого же сечения на расстоянии 400 - 500 мм от вертикальной плоскости, в которой находится продольная ось вагона. Верхние плоскости поперечных и продольных подкладок должны находиться на одном уровне, чтобы обеспечивалось размещение плит параллельно полу вагона.

После погрузки плит нижнего яруса враспор между торцовыми стенками вагона и плитами на продольные подкладки укладывают бруски сечением не менее 100×150 мм, каждый из которых прибивают к подкладке двумя гвоздями длиной 125 мм.

Рис. 4.78:

1, 6 - продольные и поперечные подкладки; 2 - растяжки; 3 - поперечные увязки; 4 - прокладки; 5 - упорные бруски; 7 - грузовые скобы вагона

Рис. 4.79:

1, 6 - продольные и поперечные подкладки; 2 - упорные бруски; 3 - растяжки; 4 - поперечные увязки; 5 - прокладки; 7 - грузовые скобы вагона

Рис. 4.80:

1, 6 - продольные и поперечные подкладки; 2 - распорные бруски; 3 - прокладки; 4 - растяжки; 5 - поперечные увязки; 7 - грузовые скобы вагона

Плиты каждого последующего яруса в штабеле укладывают на две поперечные прокладки толщиной не менее 25 мм, при этом они должны превышать вертикальные монтажные петли на 5 - 10 мм. Ширина прокладок может быть на 40 - 50 мм меньше ширины подкладок. Осевые линии поперечных подкладок, прокладок и горизонтально расположенных монтажных петель на плитах должны находиться в одной вертикальной плоскости. При погрузке плит с вертикальными монтажными петлями поперечные подкладки располагают, как указано выше, а прокладки - вплотную к этим петлям со стороны закрепления растяжек.

Каждый штабель плит закрепляют четырьмя растяжками из проволоки диаметром 6 мм при весе штабеля до 15 т включительно в шесть нитей и более 15 т - в восемь нитей. Растяжки закрепляют одним концом за монтажные петли верхних плит и другим - за увязочные скобы вагона.

Рис. 4.81:

1 - продольные подкладки; 2 - прокладки; 3 - поперечные увязки; 4 - упорные бруски; 5 - растяжки; 6 - грузовые скобы вагона

Рис. 4.82:

1 - упорные бруски; 2, 4 - продольные и поперечные прокладки; 3 - растяжки; 5, 7 - продольные и поперечные подкладки; 6 - поперечные увязки; 8 - грузовые скобы вагона

Смежно расположенные по ширине вагона верхние плиты увязывают в двух местах между собой проволокой диаметром 5 - 6 мм в четыре нити за монтажные петли, к которым крепят растяжки (см. рис. 4.80). При погрузке плит в один ряд по ширине в два-три штабеля по длине вагона стыкующиеся торцы верхних плит закрепляют такими же увязками крестообразно (см. рис. 4.78 и 4.79).

§ 44. Фундаментные блоки размерами 2,38×0,6×0,6 и 2,38×0,4×0,4 м грузят в вагоны-самосвалы (думпкары) грузоподъемностью 60 т (см. § 43) с размещением в два яруса по высоте (рис. 4.81). Блоки нижнего яруса укладывают длиной по ширине вагона на две продольные подкладки сечением не менее 25×100 мм, длиной 9 м. Подкладки могут быть составными по длине из частей длиной не менее 2 м. Между крайними блоками нижнего яруса и торцовыми стенками вагона укладывают упорные бруски сечением, равным зазору, и длиной, равной ширине погрузки. Блоки второго яруса укладывают вдоль вагона симметрично относительно его продольной и поперечной осей на поперечные прокладки сечением не менее 25×50 мм. Крайние верхние блоки закрепляют четырьмя парами растяжек из проволоки диаметром 6 мм в восемь нитей за монтажные петли и увязочные скобы вагона. Блоки второго яруса скрепляют между собой в местах их стыковки торцами - крестообразными увязками, а крайние блоки - поперечными увязками. Увязки выполняют из проволоки диаметром 5 - 6 мм в четыре нити за монтажные петли, к которым крепят растяжки.

§ 45. Допускается совместная погрузка железобетонных плит с фундаментными блоками с размерами, приведенными в § 43 и 44, в вагоны-самосвалы (думпкары) грузоподъемностью 60 т (см. § 43).

Рис. 4.83

Плиты размещают и закрепляют в соответствии с требованиями § 43 (см. рис. 4.80). Вплотную к плитам на продольные подкладки грузят фундаментные блоки длиной по ширине вагона, в два яруса по высоте. При этом на обоих концах вагона блоки располагают в одинаковом количестве (рис. 4.82). Между блоками первого и второго ярусов помещают две продольные подкладки сечением не менее 25×50 мм. Между крайними блоками нижнего яруса и торцовыми стенками вагона укладывают упорные бруски сечением, равным зазору, и длиной по ширине погрузки. Крайние блоки верхнего яруса закрепляют каждый двумя растяжками из проволоки диаметром 6 мм в восемь нитей.

Пакеты из мешков с цементом

§ 46. Пакеты, сформированные из 39 бумажных мешков по ГОСТ 2226-75 с цементом, упакованные в полиэтиленовую термоусадочную пленку (ТУ 21-21-11-83) по двухчехольной системе с усилением цокольной части дополнительным слоем пленки, грузят в четырехосные полувагоны постройки после 1964 г. до 01.01.74 по 34 шт. общим весом 66,3 т и постройки с 01.01.74 37 шт. общим весом 72 т.

Габаритные размеры пакета в зависимости от размеров мешков должны составлять: длина 1260 - 1290 мм, ширина 1030 - 1060 мм и высота 880 - 950 мм (рис. 4.83). Вес пакета до 1,95 т.

Погрузку осуществляют кранами применением вилочных захватов, изготовленных по технической документации ЦПКБ Минречфлота РСФСР. Пакеты устанавливают вплотную друг к другу в два яруса. Вагон загружают от торцовых дверей к середине.

В нижнем ярусе пакеты располагают в два ряда по ширине полувагона: 20 пакетов длинной стороной перпендикулярно продольной оси полувагона, в середине один пакет (рис. 4.84) или два пакета (рис. 4.85) длинной стороной вдоль продольной оси полувагона. В верхнем ярусе устанавливают 13 или 15 пакетов в зависимости от грузоподъемности вагона, указанной на трафарете. При этом у торцовых дверей пакеты устанавливают в два ряда длинной стороной поперек продольной оси полувагона, остальные пакеты устанавливают в один ряд симметрично продольной оси полувагона.

Рис. 4.84:

1 - 21 - пакеты, установленные в нижнем ярусе; 22 - 34 - пакеты, установленные в верхнем ярусе

Рис. 4.85:

1 - 22 - пакеты установленные в нижнем ярусе; 23 - 37 - пакеты установленные в верхнем ярусе

Пакеты, загружаемые в нижний и верхний ярусы последними, устанавливают длинной стороной по продольной оси полувагона, такие пакеты являются «замковыми». Их погрузка осуществляется с помощью гибких строп из тканевой капроновой ленты по ОСТ 17-667-77 или ТУ РСФСР 44-2703-7, которые остаются на пакете до момента выгрузки. Груз из полувагона выгружают в обратном порядке, начиная с «замкового» пакета. Возврат строп грузополучателями в адрес грузоотправителей осуществляется мелкими отправками.

Глава 5

РАЗМЕЩЕНИЕ И КРЕПЛЕНИЕ ГРУЗОВ В ЯЩИЧНОЙ УПАКОВКЕ И НЕУПАКОВАННЫХ С ПЛОСКИМИ ОПОРАМИ

§ 1. Настоящими Техническими условиями устанавливаются способы размещения и крепления на платформах и в полувагонах грузов в ящичной упаковке и неупакованных с плоскими опорами (исключающими возможность качения) весом отдельных мест до 20 т.

Центр тяжести каждой единицы груза должен находиться: по высоте - не выше середины высоты груза (с учетом высоты салазок или подкладок), по ширине - над серединой расстояния между наружными кромками опор (допускается отклонение от середины до 5 % ширины груза), по длине - на расстоянии от наружных кромок опор данной единицы груза, равном (или большем) 1,2 высоты центра тяжести. При этом общий центр тяжести вагона с грузом должен находиться на расстоянии не более 2300 мм от уровня верха головки рельсов, наветренная поверхность четырехосного вагона с грузом не должна превышать 50 м2.

Рис. 5.1

При предъявлении к перевозке груза, установленного на салазки, последние должны быть прочно соединены с грузом. В целях облегчения застройки таких грузов концы салазок должны иметь скос под углом 30 - 40°, как показано на рис. 5.1. Концы салазок не должны выступать за очертание груза.

Грузы, не установленные на салазки, должны иметь приспособления для застропки. Грузы в ящичной упаковке и не упакованные располагают, как правило, длинной стороной вдоль платформы или полувагона.

§ 2. Погрузка на платформы грузов в ящичной упаковке производится в один - два яруса по высоте с размещением по ширине платформы в один 1 и более рядов в зависимости от веса и размеров отдельных единиц груза. Нагрузка от каждой опоры груза на пол платформы не должна превышать величин, приведенных в табл. 5.1.

Если нагрузка от опор груза превышает указанные размеры, то каждая единица груза должна устанавливаться на две поперечные подкладки сечением не менее 50×150 мм и длиной, равной ширине платформы. Допускается устанавливать такой груз без подкладок, если его центр тяжести расположен над продольной осью платформы и вес груза передается на хребтовую или хребтовую и одну или две боковые балки платформы.

Таблица 5.1

Расстояние от продольной оси платформы грузоподъемностью 63 - 66 т до центра опоры, мм*

Размер опоры груза в направлении длины платформы, мм**

Допускаемая нагрузка от одной опоры на пол платформы, т

Расстояние от продольной оси платформы грузоподъемностью 63 - 66 т до центра опоры, мм*

Размер опоры груза в направлении длины платформы, мм**

Допускаемая нагрузка от одной опоры на пол платформы, т

75 - 250,

736 - 850,

1285 - 1360

150 - 299

1,0

0 - 74

150 - 299

0,85

300 - 499

2,0

300 - 499

1,6

500 - 749

3,3

500 - 749

2,7

750 - 999

5,0

750 - 999

4,0

1000 - 1249

6,6

1000 - 1499

5,3

1250 - 1499

8,3

1500 - 1999

8,0

1500 и более

10,0

2000 и более

10,6

351 - 635,

951 - 1184

150 - 499

0,3

 

150 - 499

0,5

500 - 999

0,9

 

500 - 999

1,5

1000 - 1499

1,8

251 - 350,

1000 - 1499

3,1

1500 - 1999

2,8

636 - 735,

1500 - 1999

4,7

2000 - 2499

3,7

851 - 950,

2000 - 2499

6,3

2500 - 2999

4,6

1185 - 1284

2500 - 2999

7,8

3000 и более

5,5

 

3000 и более

9,4

* В указанных диапазонах допускаемые нагрузки от одной металлической опоры шириной не менее 25 мм должны быть уменьшены вдвое.

** Минимальный размер опоры груза поперек платформы должен быть равен 50 мм.

Рис. 5.2:

1 - торцовые стойки; 2 - упорные бруски; 3 - поперечные распорные бруски; 4 - продольные распорные бруски

Рис. 5.3:

1 - торцовые стойки; 2 - упорные бруски

Рис. 5.4:

1 - торцовые стойки; 2 - упорные бруски; 3 - продольные распорные бруски; 4 - поперечные обвязки; 5 - поперечные распорные бруски

Рис. 5.5

§ 3. Для предотвращения продольных перемещений грузов на платформе применяются упорные и распорные бруски, укладываемые вплотную к грузу и торцовым бортам (рис. 5.2 - 5.4). Упорные и распорные бруски должны иметь ширину не менее 100 мм и высоту не менее 50 мм. Допускается применение упорных брусков, изготовленных из прямоугольного бруса путем распиловки его по диагонали (рис. 5.5). При этом брусок должен быть уложен на пол платформы распиленной (диагональной) стороной. Если ящики установлены в два или более продольных рядов уступом, то упорными и распорными брусками закрепляют ящики каждого продольного ряда (рис. 5.6).

Упорные и распорные бруски прибивают к полу платформы гвоздями диаметром не менее 5 мм и не более 8 мм и длиной, превышающей высоту бруска на 50 мм. При этом длина распорных брусков не должна превышать 2,5 м. Необходимое число гвоздей диаметром 5 мм для прикрепления каждого продольного распорного бруска определяют в зависимости от веса одного места или группы мест (табл. 5.2).

Число гвоздей на один поперечный упорный брусок приведено в табл. 5.3.

При расположении на платформе грузов различного веса с зазорами между ними потребное число гвоздей для закрепления распорных брусков между соседними грузовыми местами определяют исходя из веса более тяжелой единицы груза.

Рис. 5.6:

1 - поперечные распорные бруски; 2 - упорные бруски; 3 - продольные распорные бруски; 4 - торцовые стойки

Ящики от продольного перемещения взамен упорных и распорных брусков могут закрепляться поперечными проволочными увязками (рис. 5.7 и 5.8).

Ящики общим весом до 40 т устанавливают вплотную друг к другу одной группой симметрично поперечной и продольной осям платформы.

К крайним ящикам прикрепляют скобами по одной поперечной проволочной увязке, концы которой закрепляют за стоечные скобы платформы (см. рис. 5.7).

При погрузке ящиков общим весом более 40 т последние размещают двумя группами вплотную к упорным брускам, уложенным у торцовых бортов платформы (см. рис. 5.8). Каждую группу ящиков в середине платформы закрепляют одной поперечной проволочной увязкой. Потребное число нитей в поперечной проволочной увязке (диаметр проволоки 6 мм) для крепления груза от продольного перемещения определяют по табл. 5.4.

§ 4. Для предотвращения поперечных перемещений ящиков на платформах применяют поперечные распорные бруски, прикрепляемые к полу платформы гвоздями (см. рис. 5.2 и 5.4). С обеих сторон каждой единицы груза должно быть установлено не менее двух распорных брусков.

Размеры крепления зависят от веса груза. Данные о числе распорных брусков, располагаемых с каждой стороны груза, приведены в табл. 5.5, где указано также число гвоздей диаметром 6 мм и длиной, превышающей высоту брусков на 50 мм, которыми должен быть закреплен каждый брусок при передаче усилий на различные элементы вагона.

Разрешается взамен поперечных распорных брусков применять продольные упорные бруски, устанавливаемые боковой стороной вплотную к грузу. При этом каждый продольный брусок должен быть закреплен таким же числом гвоздей, как и заменяемые им распорные бруски. Распорные бруски должны изготовляться из обрезных (прямоугольного сечения) или необрезных досок и иметь минимальную высоту 50 мм и ширину не менее 100 мм.

Для удержания от опрокидывания ящики закрепляют поперечными проволочными обвязками (см. рис. 5.4). При этом каждый ящик весом до 5 т закрепляют двумя поперечными обвязками из проволоки диаметром 6 мм в две нити, весом от 5 до 8 т - в четыре нити, от 8 до 10 т - в шесть нитей каждая. Поперечные обвязки не требуются при погрузке ящиков, размеры которых соответствуют данным табл. 5.6.

§ 5. Для крепления груза от сдвига и опрокидывания взамен упорных и распорных брусков или увязок и обвязок могут применяться проволочные растяжки, располагаемые так, чтобы одновременно угол между растяжкой и полом и угол между проекцией растяжки на пол платформы и продольной осью платформы не превышал 45°. В этом случае каждую единицу груза закрепляют четырьмя растяжками за специальные приспособления на ящиках (скобы, крючки и др.). Число нитей в растяжке определяют в зависимости от веса закрепляемого груза (табл. 5.7).

Таблица 5.2

Число гвоздей, шт.

Вес места или группы мест, т

Число гвоздей, шт.

Вес места или группы мест, т

2

До 3,0

8

15,1 - 20,0

3

3,1 - 5,0

9

20,1 - 30,0

4

5,1 - 7,0

10

30,1 - 40,0

5

7,1 - 10,0

11

40,1 - 50,0

7

10,1 - 15,0

12

50,1 - 60,0

Таблица 5.3

Число гвоздей, шт.

Вес места или группы мест, т

Число гвоздей, шт.

Вес места или группы мест, т

4

До 10,0

 7

30,1 - 40,0

5

10,1 - 20,0

8

40,1 - 50,0

6

20,1 - 30,0

9

50,1 - 60,0

Таблица 5.4

Общий вес груза, т

Число нитей в увязке

Общий вес груза, т

Число нитей в увязке

До 10

2

20,1 - 30,0

6

10,1 - 20,0

4

30,1 - 40,0

8

Рис. 5.7:

1 - скобы; 2 - поперечные увязки; 3 - поперечные распорные бруски

Таблица 5.5

Места передачи усилий от груза через бруски

Потребное число брусков (числитель) и гвоздей диаметром 6 мм на один брусок (знаменатель) для крепления грузовых мест весом, т

до 2

2 - 4

4 - 6

6 - 8

8 - 10

10 - 12

12 - 14

14 - 16

16 - 18

18 - 20

Упорные бруски крепятся к полу платформы

2/4

2/8

2/12

2/14

3/12

4/11

4/12

4/14

4/16

4/18

Боковой борт, не подкрепленный стойками, платформы постройки до 1965 г.

2/2

2/4

2/7

2/12

2/14

3/12

4/11

4/12

4/13

4/15

То же, платформы постройки с 1965 г.

2/2

2/2

2/2

2/2

2/2

2/3

2/7

2/11

2/14

3/12

Боковой борт, подкрепленный деревянными стойками, платформы постройки до 1965 г.

2/2

2/2

2/2

2/4

2/7

2/11

2/14

3/12

3/14

4/12

Таблица 5.6

Высота не более, м

0,4

0,6

0,8

1,0

1,2

1,4

1,6

1,8

2,0

2,2

2,4

2,6

2,8

3,0

3,2

3,4

Длина не менее, м

0,4

0,6

0,8

1,0

1,2

1,4

1,6

1,8

2,0

2,2

2,4

2,6

2,8

4,0

5,2

6,3

Ширина основания не менее, м

0,4

0,6

0,8

0,9

1,1

1,3

1,5

1,6

1,8

1,9

2,1

2,2

2,4

2,4

2,4

2,4

§ 6. При двухъярусной погрузке ящики первого яруса закрепляют упорными и распорными брусками (см. рис. 5.3 и 5.4). Ящики второго яруса от продольного перемещения ограждают поперечными увязками из проволоки диаметром 6 мм в четыре нити каждая, прикрепляемыми скобами к крайним ящикам, установленным со стороны торцовых бортов. Концы обвязок закрепляют за стоечные скобы платформы (рис. 5.9 и 5.10). От поперечного смещения ящики второго яруса ограждают не менее чем двумя парами боковых стоек, увязываемых между собой проволокой диаметром 6 мм в две нити (см. рис. 5.9) или каждый ящик закрепляют двумя поперечными проволочными обвязками из проволоки диаметром 6 мм в четыре нити (см. рис. 5.10).

§ 7. В полувагонах ящики размещают равномерно по всей площади пола полувагона вплотную друг к другу в один и более ярусов по высоте (рис. 5.11). Торцовые двери полувагонов должны быть закрыты.

При погрузке в один ярус посередине полувагона одной группой ящики закрепляют от продольного сдвига двумя поперечными проволочными увязками по одной с каждой торцовой стороны (рис. 5.12). При погрузке ящиков двумя группами вплотную к торцовым дверям полувагона каждую группу ящиков от продольного сдвига закрепляют в средней части полувагона одной поперечной увязкой из проволоки диаметром 6 мм (рис. 5.13). Число нитей в увязке зависит от веса закрепляемой группы ящиков (см. § 3).

Каждую поперечную проволочную увязку закрепляют за увязочные косынки полувагона и прикрепляют ее двумя скобами, прибиваемыми по одной в крайние ящики. При погрузке ящиков с закреплением их от продольного сдвига поперечными проволочными увязками общая ширина грузовых мест, расположенных непосредственно у крепления, не должна превышать 2200 мм.

Таблица 5.7

Число нитей, шт.

Вес, т

Число нитей, шт.

Вес, т

2

До 5

6

10,1 - 15,0

4

5,1 - 10,0

8

15,1 - 20,0

Примечание. Данные приведены для проволоки диаметром 6 мм.

Рис. 5.8:

1 - торцовые стойки; 2 - упорные бруски; 3 - поперечные распорки бруска; 4 - поперечные увязки; 5 - скобы

При загрузке ящиков в несколько ярусов ящики второго и последующих ярусов размещают вплотную друг к другу по всей длине полувагона или отдельной группой посередине полувагона и закрепляют от продольного сдвига двумя поперечными увязками из проволоки диаметром 6 мм за косынки полувагона (рис. 5.14).

Ширина ящиков, устанавливаемых во втором и последующих ярусах, не должна превышать общей ширины погрузки ящиков предыдущего яруса.

Выход ящика верхнего яруса над уровнем кузова полувагона не должен превышать 2/3 его высоты. Каждый ящик при выходе над уровнем кузова полувагона более чем на 1/3 своей высоты закрепляют двумя поперечными проволочными обвязками за косынки полувагона.

Ящики весом до 5 т закрепляют двумя поперечными обвязками из проволоки диаметром 6 мм в две нити, от 5 до 8 т - в четыре нити, от 8 до 10 т - в шесть нитей (см. рис. 5.14). Крепление от поперечного сдвига не требуется при погрузке в полувагоны грузов в ящичной упаковке и неупакованных с плоскими опорами, размещаемых в один и более ярусов, вплотную к бортам или с зазором до 30 мм, если выход выше бортов не превышает на 1/3 высоты груза верхнего яруса.

Рис. 5.9:

1 - торцовые стойки; 2 - упорные бруски; 3 - распорные бруски; 4 - скобы; 5 - поперечные увязки; 6 - боковые стойки; 7 - увязка боковых стоек

Рис. 5.10:

1 - упорные бруски; 2 - продольные распорные бруски; 3 - скобы; 4 - поперечные увязки; 5 - поперечные обвязки; 6 - поперечные распорные бруски; 7 - торцовые стойки

Рис. 5.11

Рис. 5.12:

1 - скобы; 2 - поперечные увязки

Рис. 5.13:

1 - поперечные увязки; 2 - скобы

§ 8. Неупакованные грузы с плоскими опорами на платформах грузят в один ярус по высоте, с размещением по ширине платформы в один и более рядов в зависимости от веса и размеров отдельных единиц груза.

Неупакованные грузы на платформах закрепляют с помощью упорных, распорных брусков и проволочных растяжек порядком, предусмотренным для грузов в ящичной упаковке. Потребное число гвоздей для крепления упорных и распорных брусков, число нитей в растяжках определяют исходя из веса груза (см. § 3, 4 и 5).

§ 9. Неупакованные грузы на плоских опорах грузят в полувагоны в один ярус по высоте с размещением на подкладках.

Каждую единицу груза закрепляют четырьмя растяжками за специальные приспособления на грузе (скобы, крючки и др.) и увязочные косынки полувагонов (рис. 5.15). Число нитей в растяжке определяют в зависимости от веса закрепляемого груза (см. табл. 5.7).

Аналогичное крепление проволочными растяжками может применяться для закрепления в полувагонах ящичных грузов.

Рис. 5.14:

1 - скобы; 2 - поперечные обвязки; 3 - поперечные увязки

Рис. 5.15:

1 - подкладки; 2 - растяжки

§ 10. При погрузке грузов в ящичной упаковке и неупакованных на плоских опорах по схемам на рис. 5.2 - 5.4 и 5.7 - 5.10 на платформы, не оборудованные клиновыми запорами бортов, устанавливают короткие торцовые стойки.

Борта платформ во всех случаях погрузки должны быть закрыты.

Для предохранения деревянных боковых бортов четырехосных платформ от повреждения грузом в боковые стоечные скобы необходимо устанавливать не менее четырех пар коротких стоек, по одной на каждую секцию борта.

§ 11. Обвязки, а также растяжки закрепляют за стоечные скобы, не допуская опирания их на борт. При этом должны выполняться требования обеспечения сохранности бортов платформ от повреждений в соответствии с § 10 главы 1 ТУ.

Передвижные домики вагонного типа ППВТ

§ 12. Передвижные домики вагонного типа весом от 7 до 8,5 т в количестве 4 шт. размещают и закрепляют на сцепе из трех четырехосных платформ: по одному на крайние платформы и два на среднюю платформу сцепа (рис. 5.16, а).

§ 13. Перед погрузкой борта платформ сцепа опускают и закрепляют порядком, предусмотренным § 5 главы 1 ТУ.

На платформах сцепа размещают четыре кронштейна-опоры и 12 кронштейнов-подкладок, каждый из которых прибивают к полу платформы четырьмя гвоздями диаметром 5 мм, длиной не менее 150 мм.

Кронштейн-опора и кронштейн-подкладка (рис. 5.17 и 5.18) - это металлическая сварная конструкция, состоящая из основания 1, опоры 2, верхнего упора 3 и нижнего упора 4. Кронштейн-опора имеет высоту опорной части 142 мм и обеспечивает наклон домиков на средней платформе к середине вагона. Кронштейн-подкладка имеет высоту опорной части 8 мм. Верхние упоры этих кронштейнов обеспечивают крепление домиков от поперечного перемещения.

Размещают кронштейны-опоры и кронштейны-подкладки на платформах так, чтобы нижние упоры находились с внешней стороны армирующих уголков платформы (рис. 5.16, г). Домики устанавливают так, чтобы основания салазок плотно прилегали на все опорные поверхности кронштейнов.

§ 14. На крайних платформах с внешней стороны сцепа на расстоянии 2400 мм от лобового бруса размещают два кронштейна-подкладки (по одному с каждой стороны платформы), на расстоянии 7600 мм от них размещают еще два кронштейна-подкладки (рис. 5.16, б).

Рис. 5.16:

1 - домики; 2 - растяжки; 3 - кронштейн-подкладка; 4 - кронштейн-опора

Рис. 5.17

Рис. 5.18

Рис. 5.19:

1 - опорные салазки; 2 - кронштейн-ушко

Домики на крайние платформы устанавливают так, чтобы центр тяжести (ЦТ) их был смещен от поперечной оси платформы на 750 мм к внешним сторонам сцепа. От перемещения домики закрепляют восемью растяжками из проволоки диаметром 6 мм в восемь нитей. При этом одну пару растяжек закрепляют за отверстия в опорных салазках домика и стоечные скобы платформы, другую пару растяжек - за эти же отверстия в опорных салазках и за противоположные стоечные скобы.

§ 15. На средней платформе сцепа размещают на расстоянии 400 мм от концевой балки с каждой стороны платформы по два кронштейна-опоры, на расстоянии 500 мм от поперечной оси платформы в обе стороны - по два кронштейна-подкладки (рис. 5.16, б).

К опорным салазкам каждого домика предварительно (до погрузки) приваривают по шесть кронштейнов-ушек (рис. 5.19), по три с каждой стороны домика (рис. 5.16, в и 5.19).

Размещают домики на платформе с соблюдением следующих требований: расстояние между крайними верхними точками домиков в середине платформы должно быть не менее 270 мм, выход домиков за пределы концевой балки с каждой стороны платформы не должен превышать 2700 мм, зазор между полом крайних платформ и основаниями салазок должен быть не менее 100 мм.

Закрепляют каждый домик 10-ю растяжками из проволоки диаметром 6 мм в восемь нитей за отверстия в опорных салазках, кронштейны-ушки, крайние и средние стоечные скобы платформы, при этом длина растяжек должна быть не менее 600 мм (см. рис. 5.16, а).

§ 16. Сварка деталей крепления должна осуществляться качественными электродами не ниже марки Э-42А дипломированными сварщиками. При этом толщина катета сварного шва должна быть равна толщине металла. Ответственность за качество сварки несет грузоотправитель.

Глава 6

РАЗМЕЩЕНИЕ И КРЕПЛЕНИЕ ГРУЗОВ ЦИЛИНДРИЧЕСКОЙ ФОРМЫ

§ 1. Настоящие Технические условия распространяются на цилиндрические металлические грузы (котлы, баки, барабаны, колонны и т.д.) весом одной единицы до 30 т, диаметром 1 - 3,2 м, с расположением центра тяжести симметрично ширине цилиндра. При размещении груза центр тяжести должен располагаться не выше его продольной оси, а высота общего центра тяжести вагона с грузом должна находиться на расстоянии не более 2300 мм от уровня головок рельсов. Наветренная поверхность вагона с грузом, определенная в соответствии с требованиями § 29 главы 1 ТУ, не должна превышать 75 м2.

§ 2. Грузы диаметром до 1,4 м размещают в два продольных ряда (рис. 6.1), а более 1,4 м - в один ряд (рис. 6.2).

Рис. 6.1:

1 - обвязка; 2 - боковые упорные бруски; 3 - подкладка; 4 - поперечные упорные бруски; 5 - продольные распорные бруски

Рис. 6.2:

1 - боковые упорные бруски; 2 - подкладки; 3 - упорные и распорные бруски; 4 - обвязки

Рис. 6.3:

1 - растяжки; 2 - подкладки с боковыми упорными брусками; 3 - обвязки

Грузы длиной до 14 м грузят на одиночные четырехосные платформы, причем грузы длиной 13,7 - 14 м грузят только на платформы с длиной рамы 13,4 м. Грузы большей длины могут размещаться в один ряд на сцепах платформ, составленных из двух или из одной грузонесущей платформы, с платформами прикрытия. При размещении груза на сцеп из двух грузонесущих платформ используются турникетные опоры порядком, установленным главой 1 ТУ.

§ 3. Размещение груза длиной свыше 14 м на сцеп с опорой на одну грузонесущую платформу (рис. 6.3) осуществляется на двух подкладках, а закрепление - на грузонесущей платформе установленным ниже порядком. Допускаемые в этом случае вес и диаметр груза, а также минимальная высота опорных подкладок в зависимости от его длины приведены в табл. 6.1.

Рис. 6.4:

1 - подкладки; 2 - боковые упорные бруски; 3 - обвязка

Если на длинномерном грузе имеются выступающие части, расположенные над полом платформы прикрытия, то высота подкладок должна быть соответственно увеличена на высоту этих частей.

Расстояние от середины платформы до конца груза с каждой стороны должно быть не более половины длины груза, указанной в табл. 6.1.

При наличии выступающих частей диаметр груза определяют по наиболее удаленному месту от продольной оси груза (рис. 6.4).

Высота подкладок для грузов длиной не свыше 14 м и весом до 5 т должна быть не менее 50 мм, весом более 5 т - не менее 100 мм.

§ 4. Каждую единицу груза размещают на поперечных деревянных подкладках (см. рис. 6.4) шириной не менее 200 мм и длиной, равной ширине платформы, между продольными бортами.

Каждую подкладку прикрепляют к полу платформы восемью гвоздями длиной, превышающей высоту подкладки на 50 мм. Допускается прикреплять подкладки с помощью продольных упоров сечением 50×100 мм, по два упора с каждой стороны подкладки, располагаемых симметрично на расстоянии 0,5 - 1 м от продольной оси платформы. Каждый упор прикрепляют четырьмя гвоздями длиной, превышающей высоту упора на 50 мм.

Таблица 6.1

Длина груза не более, м

Диаметр груза не более, мм

Вес груза не более, т

Высота подкладок не менее, мм

15

3200

30

110

16

3200

30

125

17

3200

30

135

18

3160

30

150

19

3120

30

160

20

3090

30

175

21

3030

30

185

22

2990

30

200

23

2940

30

210

24

2890

30

225

25

2840

28,3

235

26

2790

26,7

250

27

2730

25

260

Таблица 6.2

Диаметр груза, мм

Высота брусков, мм

Диаметр груза, мм

Высота брусков, мм

1000 - 1600

50

2001 - 2400

80

1601 - 1800

60

2401 - 2600

90

1801 - 2000

70

2601 - 3200

100

Таблица 6.3

Вес груза, т

Число обвязок

Сечение полосовых обвязок не менее, мм

Число нитей проволоки в обвязке

До 5

3

4×30

4

От 5 до 10

3

4×40

6

От 10 до 15

4

4×40

6

От 15 до 20

5

4×40

6

От 20 до 25

5

6×60

7

От 25 до 30

5

6×60

8

Таблица 6.4

Вес груза, т

Сечение брусков, мм

Число гвоздей на один брусок, шт.

Длина гвоздей, мм

До 5

100×200

4

150

От 5 до 20

150×200

4

200

От 20 до 30

200×200

5

250

§ 5. На каждую подкладку вплотную к грузу с обеих сторон и к продольным бортам платформ укладывают боковые упорные бруски шириной не менее 200 мм. При погрузке грузов диаметром до 1,4 м в два ряда между грузами на подкладку устанавливают распорные бруски (см. рис. 6.1). Каждый упорный или распорный брусок прикрепляют к подкладке двумя шпильками (болтами) М14 - 20 или восемью гвоздями длиной, превышающей высоту брусков и подкладки на 50 мм (см. рис. 6.4).

Каждый упорный брусок в местах контактирования с грузом должен иметь выемку шириной 20 мм, соответствующую очертанию поверхности груза. Высота брусков в зависимости от диаметра груза приведена в табл. 6.2.

§ 6. Грузы закрепляют не менее чем тремя обвязками из полосовой стали с винтовыми натяжными устройствами, сечение каждого элемента которых должно быть не менее сечения полосы в обвязке. Обвязки размещают равномерно по длине груза.

Рис. 6.5:

1 - обвязки; 2 - поперечные бруски; 3 - продольные распорные бруски; 4 - боковые упорные бруски; 5 - растяжки

Вместо обвязок из полосовой стали могут применяться обвязки из проволоки диаметром 6 мм. Размеры крепления в зависимости от веса груза приведены в табл. 6.3.

Расстояние от обвязки до торца груза должно быть не менее половины диаметра груза.

Для груза диаметром до 1,4 м, погруженного в два ряда, размеры крепления (обвязок) определяют исходя из суммы веса двух рядов лежащих грузов.

Вместо обвязок грузы весом до 1 т могут закрепляться четырьмя растяжками из проволоки диаметром 6 мм в две нити, а весом от 1 до 2 т - в четыре нити.

§ 7. С торцовых сторон каждый груз закрепляют четырьмя распорными брусками (рис. 6.5), прибиваемыми к полу платформы гвоздями, по два брускам с каждого торца. Размеры крепления в зависимости от веса груза приведены в табл. 6.4.

Вместо распорных торцовых брусков могут быть установлены четыре растяжки из проволоки диаметром 6 мм в четыре нити при весе груза до 10 т, в шесть нитей - при весе груза 10 - 20 т и в восемь нитей - при весе груза 20 - 30 т (см. рис. 6.5).

§ 8. Обвязки, а также растяжки закрепляют только за стоечные скобы, не допуская опирания их на борт, а у платформ постройки после 1971 г. - за внутренние увязочные устройства, расположенные вдоль продольных бортов. При этом должны выполняться требования обеспечения сохранности бортов платформ от повреждений в соответствии с § 10 главы 1 ТУ.

Глава 7

РАЗМЕЩЕНИЕ И КРЕПЛЕНИЕ МАШИН НА КОЛЕСНОМ ХОДУ

Общие положения

§ 1. Настоящими Техническими условиями устанавливаются способы размещения и крепления на платформах и в полувагонах машин на колесном ходу (рис. 7.1) - автомобилей, тракторов, прицепов, полуприцепов - и другой техники с обрезиненными и стальными колесами, имеющих:

вес Q отдельных единиц с обрезиненными колесами и надежно действующей тормозной системой до 24 т, без тормозов - до 7 т, на стальных колесах с тормозами - до 15 т, без тормозов - до 5 т;

высоту центра тяжести hцт над полом вагона не более 1,7 м при загрузке вагона до 40 т и не более 1,5 м при загрузке 40 т и больше;

кратчайшее расстояние по ширине вагона от наружных боковых точек касания до направления действия силы тяжести B1 не менее 0,8hцт, т.е. B2 ³ B1 и B1 ³ 0,8hцт;

кратчайшее расстояние по длине вагона от крайней точки опирания до направления действия силы тяжести L1 не менее hцт, т.е. L2 ³ L1 и L1 ³ hцт;

наветренную поверхность каждой машины с любой из боковых сторон не более 3 м2 на 1 т веса машины.

Рис. 7.1

Рис. 7.2

Рис. 7.3

Рис. 7.4

Рис. 7.5

Рис. 7.6

Рис. 7.7

§ 2. Машины грузят на одиночные платформы, в полувагоны (рис. 7.2 - 7.4) или на сцепы из них (рис. 7.5). При этом должны соблюдаться требования § 15 и 17 главы 1 ТУ. В зависимости от веса, размеров и других конструктивных особенностей машины и прицепы размещают горизонтально в один - два ряда по ширине и в один - два яруса по высоте (рис. 7.6), грузовые автомобили, авто- и трактороприцепы размещают наклонным способом (рис. 7.7 и 7.8).

Погрузка грузовых автомобилей в горизонтальном положении допускается только в исключительных случаях с разрешения службы контейнерных перевозок и коммерческой работы дороги при отправлении с заводов-изготовителей и с разрешения начальника станции при одиночных отгрузках, когда по конструктивным особенностям нельзя отправлять их наклонным способом.

Запрещается устанавливать над сцеплением платформ и полувагонов автокраны, экскаваторы, грузовые автомобили со смонтированным на них специальным ценным оборудованием (киноустановками и т.д.).

Допускается формировать сцепы из полувагонов и четырехосных платформ.

При установке нескольких машин в наклонном или горизонтальном положении между ними должны быть оставлены зазоры не менее 270 мм со стороны машины, находящейся над сцеплением и не закрепленной на этой платформе или полувагоне от продольного перемещения, и не менее 50 мм - во всех остальных случаях (см. рис. 7.5). Между нижней, наиболее выступающей частью машины, установленной в наклонном положении, и рамой (или полом кузова) впереди стоящей машины должен быть зазор также не менее 50 мм (см. рис. 7.7).

В тех случаях, когда груз не выходит за пределы габарита погрузки, но ширина его превышает ширину пола платформы и груз нельзя демонтировать, боковые борта платформы опускают и каждую опущенную секцию увязывают в соответствии с требованиями § 5 главы 1 ТУ проволокой диаметром 4 - 6 мм в две нити. При наличии на платформе специальных устройств борта закрепляют бортовыми кольцами за кронштейны на раме.

В полувагоны размещают только машины, ширина которых менее ширины дверного проема полувагонов «в свету» при открытых дверях. В отдельных случаях по согласованию с получателем допускается погрузка в полувагоны машин шириной до 2700 мм.

Рис. 7.8

Таблица 7.1

Ширина обода колеса, мм

Расстояние от продольной оси платформы до центра опоры колеса на пол, мм

Допускаемая нагрузка, кгс, передаваемая от одного колеса машины непосредственно на пол четырехосной платформы при диаметре колеса, мм

100 - 199

200 - 399

400 - 599

600 - 799

800 - 999

1000 - 1199

1200 - 1399

1400 - 1599

1600 и более

 

0 - 275; 711 - 875; 1261 - 1335

265*

370*

530*

650*

750*

840*

925*

990*

1000*

100 - 199

385 - 602; 972 - 1163; 276 - 384; 603 - 710; 876 - 971;

265

310

310

310

310

310

310

310

310

 

1164 - 1260; 0 - 325; 661 - 925;

265

375

530

650

730

730

730

730

730

 

1211 - 1285

530*

750*

1060*

1300*

1505*

1685*

1850*

1980*

2125*

200 - 299

410 - 577; 997 - 1138

350

350

350

350

350

350

350

350

350

 

326 - 409; 578 - 660

500

500

500

500

500

500

500

500

500

 

926 - 996; 1139 - 1210

530

640

640

640

640

640

640

640

640

300 - 599

0 - 375; 611 - 975; 1161 - 1235

795*

1128*

1595*

1965*

2360*

2530*

2775*

2970*

3185*

 

376 - 610; 976 - 1160

410

410

410

410

410

410

410

410

410

600 - 999

0 - 1085

1590*

2260*

3200*

3920*

4520*

5060*

5550*

5950*

6400*

1000 - 1399

0 - 885

2650*

3760*

5320*

6520*

7540*

8440*

9250*

9900*

10630*

1400 и более

0 - 685

3720*

5270*

7460*

9150*

10560*

11810*

13000*

13900*

14900*

* Для колес с пневматическими шинами автомобильного типа указанные значения - допускаемой нагрузки могут быть увеличены в 2 раза.

Разрешается устанавливать на одну платформу или полувагон машины и оборудование различных типов при выполнении требований § 3 главы 1 ТУ по равномерной загрузке тележек и положению общего центра тяжести. По требованию железной дороги на такую погрузку грузоотправитель обязан представить эскиз.

§ 3. Машины со стальными безребордными или обрезиненными колесами при погрузке на платформы устанавливают непосредственно на пол, если передаваемая ими нагрузка не превышает величин, приведенных в табл. 7.1.

Ширину обода двойного (спаренного) колеса определяют как удвоенную ширину одного из двух спаренных колес. Для колес с обрезиненными ободами или с пневматическими шинами учитывают ширину обода а, находящуюся в соприкосновении с полом платформы (рис. 7.9). Центр опоры принимают расположенным посередине между колесами.

Если нагрузки, передаваемые отдельными колесами машин, превышают величины, приведенные в табл. 7.1, то под эти колеса должны быть установлены продольные деревянные подкладки (доски). Концы всех подкладок затесывают под углом 25 - 35° для облегчения наезда на них колес машин.

Машины с колесами, имеющими гребни, при погрузке на платформы во всех случаях устанавливают на продольные подкладки.

Размеры подкладок в зависимости от нагрузки и расположения колес по ширине платформы приведены в табл. 7.2.

Рис. 7.9

Каждое колесо при ширине его обода до 250 мм устанавливают на одну продольную подкладку, при ширине обода от 251 до 400 мм - на две, а при ширине обода более 400 мм - на три подкладки (рис. 7.10).

Подкладки прибивают к полу платформы гвоздями диаметром 6 мм и длиной, превышающей высоту подкладки на 50 мм. Число гвоздей в зависимости от числа подкладок и передаваемых нагрузок определяется по табл. 7.3.

Допускается устанавливать на одну подкладку два колеса, при этом длина подкладки должна быть увеличена по сравнению с размерами, указанными в табл. 7.2, не менее чем в 2 раза. Число гвоздей, которыми прибивают каждую подкладку, принимают в зависимости от нагрузки, передаваемой обоими колесами.

§ 4. Все машины на платформах закрепляют проволочными растяжками с подклиниванием колес упорными брусками, а в полувагонах - проволочными растяжками. Размеры брусков, число растяжек и нитей проволоки указаны в соответствующих параграфах настоящей главы.

Растяжки, а также обвязки закрепляют на платформах только за стоечные скобы, не допуская опирания их на борт. При этом должны выполняться требования обеспечения сохранности бортов платформ от повреждений в соответствии с § 10 главы 1 ТУ.

Упорные и распорные бруски прибивают к полу платформы гвоздями диаметром не менее 5 мм и не более 8 мм и длиной, превышающей высоту бруска на 50 мм.

§ 5. Машины, установленные на платформах горизонтально, подклинивают упорными брусками, расположенными с наружных сторон или с обеих сторон колес (см. рис. 7.2 и 7.11). Выбор способа размещения и количество упорных брусков зависят от их размеров и числа гвоздей, которые могут быть забиты в один брусок, определенных в соответствии с требованиями главы 1 ТУ. Каждое колесо, имеющее гребни, должно быть подклинено упорными брусками с обеих сторон во всех случаях (рис. 7.12 - 7.14).

Рис. 7.10

Таблица 7.2

Расстояние от продольной оси четырехосной платформы до центра опоры колеса на пол платформы, мм

Число основных подкладок под одно колесо машины, шт.

Наименьшие допускаемые размеры1 продольных подкладок, мм, при нагрузке от одного колеса, тс

до 1

1 - 2

2 - 3

3 - 4

4 - 5

5 - 6

6 - 7

7 - 8

0 - 275; 711 - 875; 1261 - 1335

1, 2, 3

-

-

50×100×500

50×100×500

-

50×100×600

50×100×600

50×100×700

276 - 384; 603 - 710

1

50×100×500

50×100×500

50×100×700

50×150×900

50×150×1100

60×150×1300

100×150×1600

100×150×1800

876 - 971; 1164 - 1260

2, 3

-

-

50×100×500

-

-

-

50×100×600

 

385 - 602; 972 - 1163

1

50×100×600

60×150×1100

100×150×1600

100×150×2000

-

-

-

-

 

2, 3

50×100×500

60×150×1000

60×150×1200

100×150×1600

100×150×2000

-

-

-

1 Во всех случаях длина подкладок должна обеспечивать возможность постановки на них упорных брусков.

Упорные бруски для подклинивания колес могут изготовляться из древесины хвойных и лиственных твердых пород, за исключением осины, ольхи, липы и сухостойного дерева других пород. По согласованию со службой контейнерных перевозок и коммерческой работы дороги допускается применение других материалов для изготовления упорных брусков с обязательным представлением расчетов на их прочность, например бруски из смеси цемента, песка и древесных опилок или шлака с заранее заготовленными деревянными пробками для забивки гвоздей (рис. 7.15). При этом число пробок должно быть на одну - две больше, чем число гвоздей, которыми брусок будет прибит.

Допускаемая форма упорных брусков для случая прилегания их к колесу длинной стороной приведена на рис. 7.16. Длина брусков должна быть больше ширины обода колеса, а сечение их устанавливается в зависимости от диаметра колеса по табл. 7.4.

Для крепления машин с обрезиненными колесами допускается применять упорные бруски прямоугольного сечения, составные из двух частей по высоте.

При погрузке машин на стальных безребордных колесах или снабженных гребнями и передающих нагрузку не более 2 тс, упорные бруски располагают торцовой стороной вплотную к ободу колеса (см. рис. 7.12 и 7.13). Форма упорных брусков для этого случая приведена на рис. 7.17.

При погрузке машин на стальных безребордных колесах или на колесах с гребнями и передающих нагрузку от 2 до 4 тс, упорные бруски должны быть расположены длинной стороной поперек колес с опорой на две продольные подкладки (рис. 7.13, б; в): основную, размеры которой приведены в табл. 7.2, и дополнительную - такого же сечения и длиной не более 1200 мм.

Рабочая поверхность упорных брусков при креплении машин на стальных колесах должна быть такой:

для колес с гребнями, имеющими нагрузку на колесо не более 2 тс, - наклонная кромка шириной 30 - 40 мм, расположенная по касательной к ободу колеса, или выемка, соответствующая форме обода колеса;

для колес с гребнями, имеющими нагрузку от колеса более 2 тс, - выемка с длиной дуги 60 - 120 мм и углублением для гребня.

Таблица 7.3

Число подкладок, укладываемых под колесо, шт.

Число гвоздей на одну подкладку при нагрузке от колеса, тс

до 1

1,1 - 1,5

1,6 - 3

3,1 - 4

4,1 - 6

6,1 - 8

1

2

6

8

12

20

26

2

2

3

4

6

10

13

3

2

2

3

4

7

9

Рис. 7.11

Рис. 7.12

Рис. 7.13

Рис. 7.14

Рис. 7.15

Рис. 7.16

Упорные бруски при погрузке машин с безребордными колесами прибивают к полу платформы или подкладкам гвоздями диаметром 6 мм, длиной, превышающей высоту бруска на 50 мм. Число гвоздей, необходимое для крепления одного упорного бруска, определяют по табл. 7.5 в зависимости от веса машины, наличия тормозов и принятой схемы расположения брусков.

При погрузке машин на колесах с гребнями упорные бруски прибивают к подкладкам гвоздями диаметром 6 мм или прикрепляют к подкладкам скобами диаметром стержня 10 мм. Число гвоздей на один упорный брусок определяют по табл. 7.5.

В случае применения скоб для крепления одного упорного бруска при нагрузке от колеса на платформу до 3 тс требуются две скобы (рис. 7.13, а, б), а при нагрузке от 3 до 4 тс - четыре скобы (см. рис. 7.13, в). Кроме того, при нагрузке от колеса на платформу более 2 тс упорные бруски дополнительно скрепляют между собой двумя удлиненными скобами по обе стороны колеса (см. рис. 7.13, б, в).

§ 6. Машины на стальных колесах без гребней во всех случаях закрепляют от поперечного смещения упорными брусками, укладываемыми с наружной или внутренней стороны каждого колеса (рис. 7.18). Упорный брусок сечением не менее 100×180 мм и длиной 300 мм прибивают к полу платформы пятью гвоздями диаметром 6 мм.

При погрузке машин на стальных колесах с гребнями или обрезиненных колесах на платформы с открытыми бортами их также закрепляют от поперечного смещения четырьмя упорными брусками, укладываемыми вплотную к колесу с наружной или внутренней стороны. При этом для колеса диаметром до 1200 мм применяют упорный брусок размером не менее 75×75×400 мм, а при большем диаметре - 150×220×700 мм (рис. 7.19 и 7.20). Каждый упорный брусок прибивают к полу платформы четырьмя гвоздями диаметром 6 мм, длиной 200 мм при весе машины до 12 т и восемью гвоздями при весе машины от 12 до 24 т.

§ 7. У машин, устанавливаемых над сцеплением, подклинивают с двух сторон только задние колеса (см. рис. 7.5). Число гвоздей, необходимое для крепления одного бруска, определяют по табл. 7.6.

Таблица 7.4

Диаметр колеса, мм

Менее 500

500 - 799

800 - 1099

1100 - 1399

1400 - 1599

1600 и более

Упорные бруски:

 

 

 

 

 

 

высота, мм

40

50

75

100

135

150

ширина, мм

100

100

120

160

200

220

Параллельно передним колесам с наружной или внутренней стороны на расстоянии 20 - 30 мм от их боковой поверхности при диаметре колес до 1200 мм укладывают продольные направляющие бруски размером не менее 75×75×400 мм и 150×220×1000 мм при большем диаметре колес. Каждый упорный брусок прибивают четырьмя гвоздями длиной, превышающей высоту бруска на 50 мм, при весе машины до 12 т, и восемью гвоздями при большем весе машины.

§ 8. Каждую машину с обрезиненными колесами, установленную горизонтально на платформе, закрепляют, кроме упорных брусков, четырьмя растяжками из проволоки диаметром 6 мм (см. рис. 7.2 и табл. 7.6), располагаемыми по две с передней и задней стороны машины и направленными в противоположные стороны. При погрузке машин над сцеплением закрепляют растяжками только заднюю сторону машины, при этом растяжки направляют в противоположные стороны (см. рис. 7.5).

Рис. 7.17

Таблица 7.5

Вес одной машины, т

Крепление гвоздями

Крепление скобами

Число нитей проволоки диаметром 6 мм в растяжке

Число гвоздей на один упорный брусок

Число нитей проволоки диаметром 6 мм в растяжке

Число скоб для крепления упорных брусков

До 3

2

4/2*

2

См. § 5

3,1 - 6,0

4

8/4

4

-

6,1 - 9,0

4

16/8

4

-

9,1 - 12,0

6

-/10

6

См. § 5

12,1 - 15,0

8

-/12

6

-

* Числитель - при четырех, знаменатель - при восьми поперечных упорных брусках на машину.

§ 9. Проволочные растяжки располагают таким образом, чтобы одновременно угол между растяжкой и полом и угол между проекцией растяжки на пол вагона и продольной осью платформы или полувагона не превышал 45°. Если по конструктивным особенностям машин такое размещение невозможно, допускается увеличение углов наклона с обязательным одновременным увеличением площади сечения растяжки (см. табл. 1.15 главы 1 ТУ).

Рис. 7.18

Рис. 7.19

Рис. 7.20

Один конец растяжки закрепляют на машинах за буксирные крюки и петли, полуоси задних мостов, шасси, технологические отверстия рам, а также за другие детали, которые не могут быть повреждены растяжкой и одновременно не вызовут срез проволочной растяжки, а другой - за торцовые или боковые стоечные скобы и кронштейны платформ или за нижние увязочные косынки полувагона. Во всех случаях растяжки не должны касаться резиновых покрышек колес машины.

§ 10. Число нитей в каждой растяжке в зависимости от веса машины и наличия тормозов у машин с обрезиненными колесами при погрузке на платформы определяют по табл. 7.6 и 7.7.

При погрузке на платформы машин на стальных колесах число нитей в каждой растяжке определяют в зависимости от веса и принятого способа крепления упорных брусков (см. § 5 и табл. 7.5).

§ 11. При совмещенной погрузке машин легкую машину располагают в кузове более тяжелой. При погрузке в два яруса машину, опирающуюся на пол платформы, закрепляют с учетом суммарного веса обеих машин. Машину, расположенную в кузове (во втором ярусе), закрепляют так же, как при опоре ее на пол платформы. Допускается под колеса машин второго яруса подкладывать распределительные подкладки (см. рис. 7.6).

§ 12. При размещении машин в два ряда по ширине платформы каждую из них дополнительно закрепляют от поперечного перемещения упорными брусками, которые укладывают к колесам с наружной или внутренней стороны и прибивают четырьмя гвоздями длиной 200 мм каждый.

Рис. 7.21

Для предотвращения боковой качки обрессоренных машин под лонжерон со стороны, обращенной к середине платформы, устанавливают деревянную подставку (рис. 7.21), прибиваемую к полу платформы двумя гвоздями длиной 200 мм.

§ 13. При погрузке машин в наклонном положении размещение и крепление их на одной платформе или сцепе из них производят в зависимости от конструктивных особенностей машин (рис. 7.22 - 7.26).

При погрузке кузовных машин наклонным способом во избежание повреждений пола кузова впереди стоящей машины по усмотрению отправителя под передние колеса наклонно установленной машины можно подкладывать разгрузочные щитки. Ответственность за прочность изготовленного щитка несет грузоотправитель. Если пол кузова сделан из досок, то разгрузочные щитки укладывают поперек досок кузова. Для удобства наезда колес машины концы разгрузочных щитков затесывают под углом 25 - 35°.

Таблица 7.6

Крепежный реквизит

Вес одной машины с тормозами, т

до 2

2,1 - 4

4,1 - 6,3

6,4 - 12

12,1 - 16

18,1 - 24

Число нитей проволоки диаметром 6 мм в одной растяжке

2

2

2

4

6

8

Число гвоздей на один брусок

при четырех поперечных упорных брусках на одну машину

2

4

6

12

18

24

при восьми поперечных упорных брусках на машину (см. рис. 7.11)

2

2

3

6

9

19

Таблица 7.7

Крепежный реквизит

Вес одной машины, не имеющей тормозов, т

до 3,5

3,6 - 7

Число нитей проволоки диаметром 6 мм в одной растяжке

2

4

Число гвоздей на один брусок

при четырех поперечных брусках на машину

4

8

при восьми поперечных брусках на машину

2

4

Примечание. Машины, имеющие, кроме колес, дополнительные вспомогательные опоры (между этими опорами и полом платформы действует трение скольжения), не снабженные тормозами, необходимо относить к грузам без тормозов.

Параллельно передним колесам наклонно установленных машин на расстоянии 20 - 30 мм от боковой наружной поверхности колес укладывают продольные направляющие бруски, скрепляющие одновременно доски разгрузочных щитков, сечением не менее 50×75 мм и длиной не менее 400 мм.

Каждый из направляющих брусков должен быть прибит к разгрузочным щиткам четырьмя гвоздями длиной 100 - 150 мм.

Задние борта всех машин, за исключением установленных последними, должны быть открыты и закреплены имеющимися на них специальными цепями или проволокой (см. рис. 7.25 и 7.26).

Машины-шасси, кроме первой, наклонно установленной, и машин, погруженных над сцеплением, могут устанавливаться передней осью на специальную облегченную деревянную подставку (рис. 7.27 и 7.28), укладываемую и закрепляемую на раме впереди стоящей машины (см. рис. 7.23). Передняя ось этих машин-шасси связывается проволокой с рамой впереди стоящей машины.

Рис. 7.22

Рис. 7.23

Рис. 7.24

Рис. 7.25

Рис. 7.26

Допускается размещать машины наклонным способом с применением специальных подставок, закрепленных на полу вагона, при этом подставки могут устанавливаться как под одну машину, так и под несколько. Способ крепления машин в данном случае следует определять в соответствии с указаниями главы 1 ТУ.

§ 14. При погрузке на платформы машин, имеющих тормоза, у первой, установленной в горизонтальном положении и заторможенной, задние колеса подклиниваются с двух сторон, а передние - только с наружных сторон. У машин, не имеющих тормозов, у первой горизонтально установленной машины подклинивают колеса только с наружных сторон. У всех машин, установленных в наклонном положении, подклинивают с обеих сторон только задние колеса.

Число гвоздей диаметром 6 мм и длиной, превышающей высоту бруска на 50 мм, для крепления одного упорного бруска определяют в зависимости от веса машины и наличия тормозов по табл. 7.8.

Кузовные машины с тормозами, установленные горизонтально и наклонно (первая и последняя), закрепляют упорными брусками в соответствии с первым абзацем данного параграфа и четырьмя проволочными растяжками (см. рис. 7.24).

Машины, расположенные над сцеплением, закрепляют упорными брусками и двумя растяжками, направленными в сторону позади стоящей машины (см. рис. 7.24).

Число нитей в одной растяжке из проволоки диаметром 6 мм определяют в зависимости от веса машины (табл. 7.9).

Горизонтально установленную машину-шасси, имеющую тормоза, кроме упорных брусков, закрепляют четырьмя проволочными растяжками, наклонно установленную закрепляют за задний мост четырьмя растяжками, из них две направлены в сторону горизонтально установленной машины, а две другие - в противоположную сторону (см. рис. 7.22 и 7.23).

Таблица 7.8

Вес машины, т

Число гвоздей на упорный брусок

С тормозами

До 3,9

4

3,9 - 4,2

5

4,3 - 6,3

6

Без тормозов

До 2,7

3

Таблица 7.9

Вес машины, т

Число нитей в одной растяжке для закрепления машин, установленных

горизонтально

наклонно

над сцеплением

первая

последняя

До 3,9

2

2/4*

4/2

2

3,9 - 6,3

2

4/6

6/4

2

* В числителе указано число нитей проволоки в растяжках, направленных в сторону горизонтально установленной машины, в знаменателе - в растяжках, направленных в противоположную сторону.

Рис. 7.27

Передние колеса машин-шасси, кроме машин, погруженных над сцеплением, закрепляют двумя растяжками.

Число нитей проволоки диаметром 6 мм в одной растяжке определяют в зависимости от веса машины (табл. 7.10).

При погрузке машин без тормозов весом до 2,7 т, кроме упорных брусков, каждую горизонтально и наклонно установленную машину закрепляют четырьмя растяжками из проволоки диаметром 6 мм в четыре нити каждая.

§ 15. Каждую машину при погрузке в полувагон в горизонтальном положении закрепляют шестью проволочными растяжками. Кроме того, смежные машины между собой увязывают двумя горизонтальными увязками (см. рис. 7.3).

Машину весом до 3,3 т закрепляют растяжками и увязками из проволоки диаметром 6 мм в две нити, а машину весом от 3,3 до 6,3 т - в четыре нити.

Таблица 7.10

Вес машины, т

Число нитей проволоки диаметром 6 мм в одной растяжке

До 3,4

2/2*

3,5 - 4,0

4/2

4,1 - 6,3

4/4

* В числителе указано число нитей проволоки в растяжках, направленных в сторону горизонтально установленной машины, в знаменателе - в растяжках, направленных в противоположную сторону.

Рис. 7.28

§ 16. Машины, снабженные тормозами, весом до 3,3 т в наклонном положении в полувагонах размещают таким же порядком, как это предусмотрено при погрузке их на платформы (см. рис. 7.25 и 7.26). Горизонтально установленную машину закрепляют шестью растяжками из проволоки диаметром 6 мм в четыре нити, из них две увязывают за буксирные крюки машины и за увязочные косынки, расположенные на буферном брусе полувагона, а четыре - за полуоси заднего моста машины и нижние увязочные косынки полувагона. Наклонно установленные машины закрепляют четырьмя растяжками из проволоки диаметром 6 мм в четыре нити, увязываемыми за полуоси заднего моста машины и нижние увязочные косынки полувагона.

При погрузке машин в полувагоны не допускается соприкосновение покрышек колес с острыми кромками поперечных, шкворневых балок и металлическим порогом торцовой двери полувагона.

§ 17. При размещении машин с тормозами весом до 2,4 т поперек платформы их закрепляют следующим образом (рис. 7.29). Каждую машину закрепляют четырьмя растяжками из проволоки диаметром 6 мм в две нити; кроме того, каждую машину подклинивают четырьмя поперечными брусками размерами не менее 75×130×400 мм и четырьмя продольными брусками, размеры которых определяют согласно § 5 настоящей главы. Каждый поперечный брусок прибивают к полу платформы двумя гвоздями длиной 200 мм, а продольный - пятью такими же гвоздями.

Рис. 7.29

Рис. 7.30

Рис. 7.31

Рис. 7.32

§ 18. Стрелы автокранов для ограничения раскачивания дополнительно закрепляют четырьмя растяжками (каждая в две нити) из проволоки диаметром 6 мм, из которых две растяжки крепятся за верх стрелы и две - в средней части стрелы (рис. 7.30).

В случае погрузки двух автокранов допускается замена двух растяжек в средней части хомутовой обвязкой стрел между собой проволокой диаметром 6 мм в четыре нити (рис. 7.31). В этом случае между стрелами кранов по месту устанавливается деревянная прокладка, прикрепляемая к стрелам.

Стрелы и ковши экскаваторов для ограничения перемещений закрепляют четырьмя растяжками из проволоки диаметром 6 мм в четыре нити (по две с каждой стороны), направленные в противоположные стороны (рис. 7.32).

Размещение и крепление тракторных прицепов ММЗ-771Б

§ 19. Тракторные прицепы марки ММЗ-771Б грузят на платформу (рис. 7.33) в три яруса. На деревянные подкладки сечением 100×125×500 мм, каждую из которых прибивают, как показано на рис. 7.33, к полу платформы пятью гвоздями диаметром 6 мм и длиной 150 мм, устанавливают четыре кузова, демонтируемые с двух тракторных прицепов. В кузова устанавливают два прицепа без разборки, которые затормаживают ручным тормозом, а на них размещают два шасси тракторных прицепов.

У кузовов, в которых находятся колеса прицепов, боковые борта приоткрывают и закрепляют с каждой стороны к торцовым бортам прицепов проволокой диаметром 6 мм в две нити за технологические отверстия в бортах в пределах габарита погрузки.

Прицепы второго яруса крепят 16 растяжками из проволоки диаметром 6 мм в шесть нитей. Растяжки закрепляют одним концом за стоечные скобы платформы, другим - за кронштейны рам прицепов.

В местах соприкосновения растяжек с бортом кузова прицепа укладывают резиновые прокладки.

Дышла каждого прицепа-шасси третьего яруса закрепляют за сцепную петлю к заднему борту прицепа за прямоугольные технологические отверстия двумя растяжками из проволоки диаметром 6 мм в две нити.

Гидроподъемники верхних шасси закрепляют проволокой диаметром 6 мм в две нити к раме прицепа.

§ 20. На платформе размещают четыре тракторных полуприцепа марки ММЗ-771Б в два яруса (рис. 7.34). Первый полуприцеп нижнего яруса устанавливают на пол платформы в рабочем положении. Затем устанавливают второй полуприцеп, при этом под опорное устройство рамы подкладывают два деревянных бруска 3 размерами 100×200×400 мм, которые скрепляют между собой и прибивают к полу платформы четырьмя гвоздями диаметром 6 мм, длиной не менее 150 мм. Боковые передние борта полуприцепов должны быть открыты и связаны между собой проволокой диаметром не менее 4 мм. Каждый полуприцеп нижнего яруса крепится четырьмя растяжками 1 из проволоки диаметром 6 мм в шесть нитей за раму прицепа и за боковые стоечные скобы платформы.

Рис. 7.33:

1 - железнодорожная платформа; 2 - кузов прицепа; 3 - прицеп в сборе; 4 - шасси прицепа; 5 - растяжка; 6 - подкладка; 7 - растяжка

Каждое колесо полуприцепов нижнего яруса закрепляют одним продольным и одним поперечным брусками 4 размерами 75×100×500 мм и прибивают каждый к полу платформы восемью гвоздями диаметром 6 мм, длиной не менее 150 мм.

На нижний ярус полуприцепов размещают полуприцепы верхнего яруса таким образом, чтобы колеса верхних полуприцепов встали в кузова с открытыми бортами нижних, а прицепная часть рамы верхних полуприцепов при этом опиралась на торцовые борта нижних полуприцепов.

Каждый полуприцеп второго яруса закрепляют растяжками 2 из проволоки диаметром 6 мм в шесть нитей за раму полуприцепа и боковые стоечные скобы платформы.

Съемные деревометаллические и металлические надставные борта каждого полуприцепа связывают между собой проволокой диаметром 6 мм, укладывают в задний кузов и закрепляют проволокой диаметром 6 мм в две нити за технологические отверстия кузовов.

Перевозка легковых автомобилей в крытых цельнометаллических грузовых вагонах (ЦМГВ)

§ 21. Вагон ЦМГВ предназначен для перевозки легковесных грузов и оборудован под двухъярусную перевозку легковых автомобилей (рис. 7.35). С этой целью внутри вагона размещаются передвижная рама, лебедка с ручным и электрическим приводами, электрооборудование.

Рис. 7.34

Рис. 7.35:

1 - поворотная площадка с откидным трапом; 2, 8 - откидные щиты; 3 - передвижная рама; 4 - откидные опоры; 5 - фиксатор; 6 - пульт управления; 7 - домкрат; 9 - опорный каток; 10 - ручной тормоз; 11 - сцепка-упор; 12 - электрическая лебедка

Передвижная рама, оборудованная опорными катками, перемещается внутри вагона по рельсам, уложенным на полу кузова вагона. В процессе выкатки рамы из вагона на рельсы пути опускаются откидные опоры. Чтобы рама не перемещалась внутри вагона, ее закрепляют сцепкой-упором. Раму выдвигают лебедкой вручную или с помощью электропривода, пульт управления которого находится у торцовой двустворчатой двери.

Для размещения автомобилей во втором ярусе передвижная рама оборудована специальными откидными щитами, смонтированными на стойках. В поднятом положении щиты закрепляются фиксаторами.

Автомобили можно грузить как грузоподъемными механизмами, так и своим ходом с торцовой или боковой погрузочной платформы, для чего концевая часть передвижной рамы имеет поворотную площадку с откидным трапом. Для крепления автомобилей рама оборудована специальными растяжками.

Рис. 7.36:

1 - скалка; 2 - рукоятка скалки; 3 - рукоятка храпового механизма

§ 22. Для подготовки вагона ЦМГВ к погрузке автомобилей необходимо:

установить вагон по фронту погрузки таким образом, чтобы со стороны большой двустворчатой торцовой двери имелся свободный прямолинейный участок пути длиной около 25 м при погрузке грузоподъемными механизмами и около 8 м для погрузки самоходом;

затормозить вагон ручным тормозом и поддомкратить, для чего отсоединить и опустить находящиеся под вагоном домкраты и, вращая винт, привести их до упора в рельс;

открыть торцовые двери вагона;

скалку сцепки-упора (рис. 7.36) вывести из зацепления с передвижной рамой, для чего вращением рукоятки храпового механизма вывести рукоятку скалки из паза корпуса, перевести в положение «Открыто» и вращением рукоятки храпового механизма в обратную сторону завести рукоятку скалки в паз корпуса;

перевести рукоятку электротормоза в положение «Отключено»;

снять со скобы и надеть на ручной привод рукоятку лебедки;

включить редуктор и вращением рукоятки лебедки выдвинуть передвижную раму на 0,5 - 1 м до выхода скалки сцепки-упора из зацепления, а при отсутствии электропитания - до выхода рамы на необходимую длину;

подключить кабель к электрощиту вагона и после выхода рабочих из вагона подключить второй конец кабеля к внешнему источнику трехфазного тока напряжением 380 В и частотой 50 Гц, перевести автоматический выключатель двигателя в положение «Включено», при этом загорится контрольная лампочка (рис. 7.37);

снять рукоятку лебедки и вставить ее в скобу, включить электротормоз;

включением кнопки «Вперед» на пульте управления выдвинуть передвижную раму.

Примечание. Перед началом всякого передвижения рамы необходимо подавать сигналы нажатием на пульте управления кнопки «Сигнал».

Рис. 7.37:

1 - барабан с кабелем, 2 - автоматический выключатель двигателя, 3 - контрольная лампочка, 4 - электрощит, 5, 6, 7 - рукоятки электротормоза, ручного привода лебедки и редуктора

В процессе выдвижения рамы необходимо контролировать срабатывание фиксатора откидных опор. Фиксатор и гребенка запорного механизма должны быть сцеплены между собой не менее чем на четыре зуба. Для этого после опускания каждой пары откидных опор и появления на раме таблички «Стоп» рама будет автоматически останавливаться. Дальнейшее выдвижение рамы осуществляется нажатием кнопки «Вперед». После выкатки рамы на необходимую длину остановить ее нажатием кнопки «Стоп».

§ 23. При погрузке автомобилей грузоподъемными механизмами верхние наклонные откидные щиты должны быть подняты и зафиксированы. Автомобили загружают вначале в нижний ярус, затем опускают верхние откидные щиты и загружают верхний ярус.

Автомобили своим ходом вначале следуют в верхний ярус, при этом верхние и наклонные щиты должны быть опущены. После загрузки верхнего яруса поднимают наклонные щиты и загружают нижний ярус. Заезд автомобилей с погрузочной платформы осуществляется с помощью поворотной площадки.

§ 24. Каждый автомобиль крепят четырьмя растяжками к раме вагона. Один конец растяжки с крюком заводят в отверстие уголка рамы, другой конец с цепью и зажимным устройством закрепляют на автомобиле.

§ 25. После окончания погрузки необходимо:

закатить раму в вагон, для чего на пульте управления нажать кнопку «Назад». Если при этом двигатель не включается (сработал конечный выключатель), предварительно закатить раму ручным приводом на 200 - 300 мм;

ручным приводом лебедки подтянуть раму до сцепления со сцепкой-упором. Передвижение рамы ручным приводом осуществляется порядком, предусмотренным в § 22;

закрепить раму сцепкой-упором, переведя рукоятку скалки в положение «Закрыто», отключить редуктор и электропитание;

закрыть все двери вагона, причем боковые и большую двустворчатую торцовую двери запереть изнутри;

отпустить ручной тормоз и поднять домкраты.

§ 26. Автомобили в вагон грузят средствами грузоотправителя, который обязан по окончании погрузки опломбировать автомобили, а также все двери вагона.

Прибывшие на станцию назначения вагоны с исправными пломбами грузоотправителя сдают под выгрузку получателю без проверки числа и состояния автомобилей и внутреннего оборудования.

Грузополучатель выгружает автомобили как с помощью грузоподъемных механизмов, так и своим ходом, порядком, аналогичным погрузке.

§ 27. Порожние вагоны после выгрузки принимают от грузополучателей приемосдатчик груза и багажа и осмотрщик или осмотрщик-ремонтник вагонов с проверкой комплектации вагона по описи, находящейся на внутренней стороне малой торцовой двери вагона и проверкой закрепления рамы сцепкой-упором. При обнаружении неисправности оборудования вагона или некомплектности составляют акт общей формы, который служит основанием к взысканию убытка с виновной стороны.

§ 28. Порожние вагоны направляют на станцию приписки за пломбами дорог и по полным перевозочным документам без оплаты тарифа.

§ 29. По прибытии порожних вагонов на станцию погрузки осмотрщик или осмотрщик-ремонтник вагонов совместно с грузоотправителем проверяют комплектацию вагона по описи, его техническое состояние и пригодность под погрузку. После этого вагоны передают грузоотправителю для погрузки.

§ 30. Легковые автомобили на экспорт отгружают, как правило, в ЦМГВ.

§ 31. Использование вагонов ЦМГВ для перевозки других грузов, в том числе автомобилей во внутреннем сообщении, допускается только с разрешения в каждом отдельном случае Главного управления перевозок МПС.

Погрузка и крепление легковых автомобилей

§ 32. Двухъярусные цельнометаллические платформы (рис. 7.38) предназначены для перевозки легковых автомобилей отправительскими маршрутами или укрупненными группами (не менее 15 двухъярусных платформ).

Указанные вагоны приписываются к станциям погрузки автомобилей по указанию Главного управления перевозок МПС. Работники вагонного хозяйства наносят трафарет «Срочный возврат на ст... ж. д.» (указывается станция и дорога приписки) на крайних (левых) несущих стойках с обеих сторон платформы.

Полигоны обращения этих вагонов устанавливает Главное управление перевозок МПС.

§ 33. Автомобили на двухъярусных платформах могут отгружаться только в адрес грузополучателей, имеющих подъездные пути со стационарными или временными аппарелями, обеспечивающими выгрузку автомобилей своим ходом с обоих ярусов вагонов.

На аппарелях предусматриваются устройства, обеспечивающие сохранность автомобилей, подвижного состава и технику личной безопасности работников при производстве погрузочно-разгрузочных операций. О наличии их у грузополучателя отправитель в накладной (в графе «Особые заявления и отметки отправителя») обязан сделать отметку «Средства разгрузки автомобилей у грузополучателей имеются».

§ 34. Верхний и нижний ярусы оборудованы направляющим устройством, предназначенным для следования автомобилей в определенном направлении при погрузке, выгрузке, а также для фиксирования места установки автомобилей по ширине вагона.

Рис. 7.38

Для закрепления автомобилей от продольных и поперечных перемещений платформы оснащены инвентарными крепежными устройствами (колесными упорами), устанавливаемыми под каждое колесо погруженного автомобиля (рис. 7.39 и 7.40).

Пол верхнего и нижнего ярусов платформы имеет щелевые отверстия, предназначенные для установки и фиксирования колесных упоров. Комплект колесного упора состоит из корпуса 2 (см. рис. 7.39) с двумя крючьями, входящими в прорези настила пола, рычажного поворотного прижима 1, соединенного с тягой, на которую навинчивается гайка с кольцевыми проточками 4, и подпружиненной закидки 3 для фиксации упора от перемещения и выхода его из зацепления с полом.

§ 35. По настоящим Техническим условиям на двухъярусных платформах осуществляется перевозка легковых автомобилей «Волга», «Москвич», «Запорожец», «Жигули», имеющих:

вес одной машины не более 1,65 т;

ширину не более 1,615 м (при погрузке машин в два ряда);

высоту центра тяжести (hцт) над полом вагона не более 0,6 м;

ширину колеи (расстояние между серединами шин передних или задних колес) не менее 1,2 м;

базу автомобиля (расстояние между осями колес) не менее 2 м;

наветренную поверхность каждой машины с любой из боковых сторон не более 3 м2 на 1 т машины.

Соответствие автомобилей указанным требованиям устанавливает грузоотправитель.

Рис. 7.39:

а - рабочее положение упора крайнее левое; б - среднее; в - крайнее правое

Рис. 7.40

§ 36. Автомобили на нижнем и верхнем ярусах устанавливают симметрично относительно продольной оси платформы. В зависимости от размеров они размещаются следующим порядком:

четыре автомобиля «Волга» устанавливают в один ряд по ширине вагона в каждом ярусе (рис. 7.41);

автомобили «Москвич», «Жигули», «Запорожец» устанавливают в два ряда по ширине вагона, а между несущими стойками - по одному автомобилю. При этом на верхнем ярусе размещают 10 (рис. 7.42, а), а на нижнем семь автомобилей (рис. 7.42, б). На платформах, нижний ярус которых оборудован защитными сетками, автомобили устанавливают в один ряд. В этом случае на нижний ярус загружают пять таких автомобилей.

Зазор между наиболее выступающими поверхностями рядом и впереди (сзади) стоящих автомобилей должен быть не менее 50 мм (см. рис. 7.41 и 7.42).

§ 37. Автомобили на верхний и нижний ярусы заезжают или съезжают с них своим ходом через торцовую часть вагона. Автомобили на верхний и нижний ярусы следуют к загружаемому вагону по средней части платформ.

При размещении машин на верхнем ярусе в два ряда по ширине вагона первые два автомобиля, загружаемые на данную платформу, въезжают в направляющие устройства непосредственно по этой платформе, а последующие - на предыдущей (рис. 7.43).

Автомобили, размещаемые на нижнем ярусе в два ряда по ширине, въезжают в направляющие устройства непосредственно на загружаемом вагоне (рис. 7.44).

Рис. 7.41

Рис. 7.42

Рис. 7.43

§ 38. Перед погрузкой автомобилей грузоотправитель обязан:

откинуть в горизонтальное положение переездные площадки на нижнем и верхнем ярусах всех вагонов, оставив в вертикальном положении только крайние переездные площадки вагона, загружаемого в первую очередь;

убедиться в исправности и комплектности колесных упоров (при необходимости смазать винтовые соединения упоров) и разместить их на полу так, чтобы они не препятствовали свободному проезду автомобилей по составу;

установить в крайние щелевые отверстия пола на верхнем и нижнем ярусах первого загружаемого вагона со стороны неоткинутых переездных площадок необходимое число колесных упоров. При этом рычажные поворотные прижимы должны находиться в среднем рабочем положении (см. рис. 7.39).

§ 39. Для закрепления автомобиля необходимо установить в ближайшие к колесам машины щелевые отверстия колесные упоры, сдвинуть их по направлению от колеса и зафиксировать каждый упор подпружиненной закидкой. При этом рычажный поворотный прижим 1 должен находиться в крайнем правом или среднем рабочем положении.

Вращением гайки 4 рычажный поворотный прижим доводится вплотную к колесам автомобиля, после чего отправитель обязан проверить надежность закрепления упора с тем, чтобы исключалось его перемещение при транспортировке.

§ 40. Погруженные автомобили, кроме того, должны быть заторможены ручным тормозом и опломбированы отправителем установленным порядком.

§ 41. После окончания погрузки грузоотправитель устанавливает переездные площадки в транспортное (вертикальное) положение и закрепляет их крюковыми захватами.

Передвижение вагона с откинутыми переездными площадками запрещается.

§ 42. Перед выгрузкой автомобилей получатель обязан откинуть переездные площадки в горизонтальное положение, снять колесные упоры первых выгружаемых автомобилей.

Для снятия колесного упора необходимо отвернуть гайку 4 (см. рис. 7.39) с кольцевыми проточками на четыре-пять оборотов, поднять ее вверх до выхода из прорези и сдвинуть по направлению к колесу автомобиля, чтобы рычажный поворотный прижим 1 вышел из зацепления с колесом. Поднять вверх подпружиненную закидку 3, подать вперед колесный упор и вывести его крючья из щелевых прорезей в полу.

Колесные упоры при выгрузке последующих автомобилей снимают аналогично.

Рис. 7.44

После выгрузки автомобилей получатель устанавливает переездные площадки в транспортное (вертикальное) положение, а колесные упоры закрепляет на вагоне.

Для закрепления снятого колесного упора необходимо опустить гайку 4 в прорезь корпуса 2 и завернуть ее до отказа, поднять подпружиненную закидку 3, установить крючья в прорези пола, подвинуть колесный упор на себя, отпустить подпружиненную закидку, чтобы она зафиксировалась в прорези пола.

§ 43. После выгрузки автомобилей осмотрщики вагонов и приемосдатчики груза принимают от получателя порожние вагоны с проверкой исправности и комплектности колесных упоров, с закреплением переездных площадок в вертикальном положении крюковыми захватами.

Порядок приема порожних вагонов от грузополучателей, где нет пунктов технического обслуживания, устанавливает начальник отделения дороги.

§ 44. Порожние вагоны направляют на станцию приписки по полным перевозочным документам без оплаты тарифа. Накладные на возврат порожних вагонов предъявляет получатель.

Размещение и крепление легковых автомобилей «Москвич-412» и «ИЖ-2125» на четырехосных платформах уплотненным способом

§ 45. Шесть автомобилей размещают на платформе с открытыми бортами в два продольных ряда, по три автомобиля в каждом ряду. При этом расстояние между продольными рядами автомобилей не должно быть менее 100 мм, а между автомобилями в каждом продольном ряду - менее 430 мм, как показано на рис. 7.45.

§ 46. До погрузки на пол платформы устанавливают шесть рамок и 12 упоров с помощью специального шаблона.

Колеса автомобилей удерживаются в середине платформы рамкой (см. рис. 7.45, поз. 3) от перемещения: продольного - брусками размерами 70×70×720 мм и поперечного - брусками размерами 50×50×580 мм. Предварительно бруски сбивают между собой, как показано на рис. 7.46, в местах соединения двумя гвоздями диаметром 5 мм, длиной 150 мм. Готовую рамку прибивают к полу платформы шестью гвоздями диаметром 5 мм, длиной 150 мм.

Упор (см. рис. 7.45, поз. 4), удерживающий колеса автомобилей по краю платформы от продольного перемещения брусками 70×70×580 мм, от поперечного перемещения брусками 50×50×580 мм, изготовляют предварительно. Бруски сбивают между собой, как показано на рис. 7.47, в местах соединения двумя гвоздями диаметром 5 мм, длиной 150 мм. Готовый упор прибивают к полу платформы шестью гвоздями диаметром 5 мм, длиной 150 мм, причем нижний брусок 50×50×580 мм размещают вплотную к обвязочному уголку платформы.

Кроме того, автомобили на платформе закрепляют 20 растяжками из проволоки диаметром 6 мм в две нити (см. рис. 7.45, поз. 1) и четырьмя растяжками из проволоки диаметром 6 мм в четыре нити (см. рис. 7.45, поз. 2), которые крепят за буксирные проушины и серьги автомобилей и стоечные скобы платформы.

§ 47. Погрузка и выгрузка автомобилей механизированным способом могут осуществляться с применением специальной траверсы (захват для погрузки и выгрузки автомобилей «Москвич» Ижевского машиностроительного завода, чертеж № Г-819370).

При отсутствии крановой механизации выгрузка возможна также самоходом на высокую боковую платформу. При этом перед выгружаемой платформой должна быть одна порожняя, а пространство между ними, а также между вагонами и рампой в месте съезда автомобилей следует перекрывать заранее металлическими рифлеными листами или переходными мостиками, применяемыми при выгрузке крытых вагонов. Для обеспечения безопасности водителей, а также сохранности автомобилей, расположенных в ряду, ближнем к выгрузочной рампе, автомобили следует вручную развернуть на 10 - 20°, а автомобили второго ряда сместить после выгрузки первого ряда на 0,3 - 0,4 м к середине платформы.

Рис. 7.45

Рис. 7.46

Рис. 7.47

Погрузка и крепление зерноуборочных самоходных комбайнов СК-6 «Колос», СК-5 «Нива» и СК-4 на четырехосных платформах

§ 48. Настоящими Техническими условиями устанавливаются способы размещения и крепления на четырехосных платформах комбайнов СК-6 «Колос» и СК-5 «Нива», отгружаемых с заводов-изготовителей и в полевых условиях, а также комбайнов СК-4, отгружаемых в полевых условиях. Комбайны перевозят в демонтированном виде.

Молотильный агрегат комбайна размещают на платформе таким образом, чтобы ведущие колеса его находились симметрично относительно продольной оси вагона. Ведущие колеса молотильного агрегата затормаживают на стояночный тормоз, а рычаг коробки передач ставят на скорость.

Под мост ведущих колес молотильного агрегата устанавливают две подставки (рис. 7.48), каждую из которых прибивают к полу платформы четырьмя гвоздями диаметром 6 мм, длиной не менее 200 мм.

Демонтированные узлы и детали комбайнов размещают и закрепляют порядком, изложенным в настоящих Технических условиях для соответствующих марок комбайнов.

Рис. 7.48:

1 - доска размером 600×180×50 мм (1 шт.); 2 - доски размерами 260×120×40 мм (4 шт.); 3 - доски размерами 600×130×50 мм (2 шт.); 4 - доски размерами 440×120×50 мм (2 шт.); 5 - доски размерами 570×200×40 мм (2 шт.); 6 - гвозди 4×100 мм (40 шт.)

Секции продольных бортов платформы, расположенные против ведущих колес молотильных агрегатов комбайнов, открывают и закрепляют.

Погрузка и крепление комбайна СК-6 «Колос» без жатки (в заводских условиях)

§ 49. Погрузочные места комбайна СК-6 «Колос» следующие: молотильный агрегат, шнек бункера, подборщик, перила лестницы, воздухозаборник, выгрузное устройство, решетка, ферма, боковины копнителя (левая и правая), днище, связка запасных частей.

§ 50. На четырехосную платформу устанавливают два комбайна (рис. 7.49). Молотильный агрегат 1 устанавливают ведомыми колесами к торцовому борту платформы. Каждое колесо молотильного агрегата подклинивают двумя упорными брусками 4 размерами (140 ÷ 160)×300×400 мм, каждый из которых прибивают к полу платформы четырьмя гвоздями диаметром 6 мм, длиной не менее 200 мм. К ведущим колесам молотильного агрегата с внутренней стороны укладывают по одному продольному упорному бруску 10 размерами (140 ÷ 160)×300×300 мм, прибиваемому к полу платформы тремя гвоздями диаметром 6 мм, длиной не менее 200 мм.

Молотильный агрегат закрепляют шестью растяжками из проволоки диаметром 6 мм, из них две растяжки в восемь нитей каждая 7 закрепляют за мост ведущих колес молотильного агрегата и за боковые стоечные скобы платформы, две растяжки в восемь нитей каждая закрепляют за мост ведомых колес и за торцовые стоечные скобы платформы и третью пару растяжек из четырех нитей 8 крепят за кронштейны молотильного агрегата и за боковые стоечные скобы платформы.

§ 51. На полу платформы (см. рис. 7.49) размещают и закрепляют следующие демонтированные узлы и детали комбайнов: под первый молотильный агрегат укладывают левые и правые боковины копнителя и ферму; под второй агрегат укладывают выгрузные устройства, шнеки бункеров и ферму; между агрегатами укладывают связки с запасными частями, воздухозаборники, подборщики, днища, перила лестницы и решетки.

Подборщики, днища, связки с деталями, перила лестницы, воздухозаборники, размещенные посередине платформы, закрепляют двумя обвязками из проволоки диаметром 6 мм в две нити 11 за боковые стоечные скобы. Каждое из погрузочных мест прибивают к полу платформы двумя гвоздями диаметром 5 мм, длиной 150 мм, загибая головки на эти детали.

Погрузка и крепление комбайна СК-5 «Нива» без жатки с копнителем (в заводских условиях)

§ 52. Комбайн СК-5 «Нива» с копнителем имеет следующие погрузочные места: молотильный агрегат с закрепленными на нем кабиной и подборщиком, граблины (левая и правая), ферму в сборе, воздухозаборник, щиток сброса соломы, боковины копнителя (левая и правая), шнек выгрузной, днище копнителя, клапан задний, палец днища (связка), вал сбрасывателя (связка), успокоитель и другие детали (связка), боковины капота (левая и правая) (связка), лопасти и лучи (связка), крышку и другие детали (связка), планку (связка), брус и другие детали (связка), жалюзи кабины (связка).

Рис. 7.49:

1 - молотильный агрегат; 2 - боковины копнителя; 3 - прочие комплектующие места; 4, 10 - упорные бруски; 5 - подставки; 6 - ферма; 7, 8 - растяжки; 9 - выгрузное устройство; 11 - обвязки

§ 53. На четырехосную платформу загружают два комбайна (рис. 7.50).

Молотильный агрегат 1 устанавливают ведомыми колесами к торцовому борту платформы. Ведомые колеса подклинивают двумя упорными брусками 5 размерами (65 ÷ 100)×120×350 мм, каждый из которых прибивают к полу платформы четырьмя гвоздями диаметром 5 мм, длиной 150 мм. Каждое ведущее колесо комбайна закрепляют двумя упорными брусками 7 размерами (125 ÷ 150)×200×550 мм, с внутренней стороны укладывают по одному продольному бруску 9 размерами (125×150)×200×550 мм. Каждый упорный брусок прибивают к полу платформы четырьмя гвоздями диаметром 6 мм, длиной 200 мм.

Молотильный агрегат закрепляют шестью растяжками из проволоки диаметром 6 мм, из них две растяжки 6 каждая в шесть нитей (за ведущий мост комбайна и за боковые стоечные скобы платформы), две растяжки в шесть нитей каждая со стороны ведомых колес (за раму молотильного агрегата и за торцовые скобы платформы) и третью пару растяжек в четыре нити 8 (за раму комбайна и за боковые стоечные скобы платформ).

Кабину комбайна 4 устанавливают на молотильном агрегате. Переднюю часть кабины укладывают на деревянную подкладку 10 сечением 100×100 мм и увязывают за подмоторную раму и хомут воздухоочистителя двумя растяжками из проволоки диаметром 6 мм в две нити 11.

Рис. 7.50:

1 - молотильный агрегат; 2 - подставки; 3 - прочие комплектующие места; 4 - кабина; 5, 7, 9 - упорные бруски; 6, 8, 11 - растяжки из проволоки; 10 - подкладка

Заднюю часть кабины закрепляют двумя болтами М-12 с контргайками за специальные кронштейны, которые крепятся двумя болтами М-12 с контргайками к корпусу задней части молотильного агрегата.

§ 54. На полу платформы (см. рис. 7.50) размещают следующие узлы и детали комбайнов: под каждый молотильный агрегат укладывают правую и левую граблины, щиток сброса соломы, правые и левые боковины копнителя и капота, днище копнителя, палец днища (связка), вал сбрасывателя и другие детали.

Выгрузной шнек укладывают вдоль продольных бортов платформы. Между молотильными агрегатами размещают ферму в сборе, ящики с деталями, задний клапан, воздухозаборники и жалюзи.

Крепление узлов и деталей каждого комбайна к полу платформы следующее: воздухозаборник прибивают четырьмя гвоздями диаметром 5 мм, длиной 100 мм; ферму в сборе - двумя гвоздями диаметром 5 мм, длиной 150 мм; каждую боковину копнителя и капота прибивают одним гвоздем диаметром 6 мм, длиной 200 мм; задний клапан прибивают двумя гвоздями диаметром 6 мм, длиной 200 мм; связки лопастей и лучей прибивают двумя гвоздями диаметром 5 мм, длиной 150 мм и остальные погрузочные места прибивают каждое к полу платформы двумя гвоздями диаметром 6 мм, длиной 200 мм, загибая головки на эти детали.

Погрузка и крепление комбайна СК-5 «Нива» без жатки с навешенным измельчителем (в заводских условиях)

§ 55. Комбайн СК-5 «Нива» с навешенным измельчителем имеет следующие погрузочные места: молотильный агрегат с закрепленными на нем кабиной и подборщиком, воздухозаборник, шнек выгрузной, прицеп комбайна, щитки правый и левый (связка), лучи лопасти мотовила (связка), щиток правый задний, аккумуляторы, труба измельчителя, жалюзи.

Рис. 7.51:

1 - молотильный агрегат; 2 - прочие комплектующие места; 3, 4, 7 - растяжки; 5 - подставка; 6, 8, 9, 10 - упорные бруски; 11 - подкладка

На четырехосную платформу загружают два комбайна (рис. 7.51). Размещение и крепление на платформе молотильных агрегатов с навешенными измельчителями выполняются порядком, установленным для комбайнов СК-5 с копнителями, при этом мост ведущих колес крепится двумя растяжками в восемь нитей из проволоки диаметром 6 мм. Дополнительно ведомые колеса молотильных агрегатов с навешенными измельчителями с внешней стороны закрепляют двумя упорными брусками 10 размерами (130 ÷ 150)×200×550 мм, каждый из которых прибивают к полу платформы двумя гвоздями диаметром 6 мм, длиной не менее 200 мм.

§ 56. На полу платформы размещают следующие узлы и детали комбайнов: под каждый молотильный агрегат укладывают трубу измельчителя, прицеп комбайна, щиток правый задний и другие детали.

Шнек выгрузной размещают вдоль закрытого продольного борта платформы. Между молотильными агрегатами размещают воздухозаборники, щитки (левый и правый) и жалюзи.

Крепление узлов и деталей каждого комбайна к полу платформы следующее: трубу измельчителя прибивают к полу платформы двумя гвоздями диаметром 5 мм, длиной 150 мм; щитки (правый и левый) прибивают одним гвоздем диаметром 5 мм, длиной 100 мм; щиток правый задний прибивают двумя гвоздями диаметром 5 мм, длиной 150 мм; воздухозаборник прибивают четырьмя гвоздями диаметром 5 мм, длиной 150 мм, загибая головки на эти детали.

Шнек выгрузной закрепляют упорным бруском размером (50 ÷ 100)×120×350 мм, который прибивают к полу платформы двумя гвоздями диаметром 5 мм, длиной 150 мм. Жалюзи прикрепляют к молотильному агрегату проволокой диаметром 4 мм в две нити.

Прицеп комбайна закрепляют упаковочной лентой, которую прибивают к полу платформы двумя гвоздями диаметром 5 мм, длиной 150 мм.

Погрузка и крепление комбайнов СК-4, СК-5 «Нива», СК-6 «Колос» с жаткой шириной захвата до 5 м (в полевых условиях)

§ 57. Перед погрузкой комбайна жатку с наклонной камерой отделяют от молотильного агрегата. С жатки снимают наконечники торпедных делителей, а мотовило смещают в сторону наклонной камеры и в таком положении закрепляют фиксаторами.

Жатку вместе с наклонной камерой (рис. 7.52 и 7.53) устанавливают на пол платформы, а нижний вал со стороны наклонной камеры подклинивают двумя упорными брусками размерами (90 ÷ 110)×150×300 мм. Брусок прибивают к полу платформы тремя гвоздями диаметром 5 мм, длиной 150 мм. Жатку закрепляют четырьмя проволочными растяжками диаметром 6 мм в четыре нити (см. рис. 7.53) за верхний вал и брус режущего аппарата, а также стоечные скобы платформы.

С комбайнов демонтируют части и детали (табл. 7.11).

§ 58. Молотильный агрегат устанавливают копнителем к одному из торцовых бортов платформы (см. рис. 7.52 и 7.53).

Размещение и крепление молотильных агрегатов комбайнов СК-5 и СК-6 в полевых условиях выполняют порядком, предусмотренным для отгрузки соответствующих комбайнов с заводов-изготовителей.

Каждое ведущее колесо молотильного агрегата комбайна СК-4 (рис. 7.54) закрепляют двумя упорными брусками 4 размерами (130 ÷ 150)×200×400 мм. Упорный брусок прибивают к полу платформы четырьмя гвоздями диаметром 6 мм, длиной не менее 200 мм.

Рис. 7.52:

1 - жатка; 2 - молотильный агрегат; 3, 7, 9 - упорные бруски; 4 - воздухозаборник; 5 - выгрузное устройство; 6 - подставка; 8, 10 - растяжки

Рис. 7.53:

1 - молотильный агрегат; 2 - подставка; 3, 5, 13 - растяжки; 4 - жатка; 6, 7, 9, 11 - упорные бруски; 8 - кабина комбайна; 10 - воздухозаборник; 12 - выгрузное устройство

Каждое ведомое колесо подклинивают двумя упорными брусками 2 размерами не менее (60 ÷ 100)×120×350 мм. Брусок прибивают к полу платформы четырьмя гвоздями диаметром 5 мм, длиной 150 мм. Молотильный агрегат закрепляют шестью растяжками из проволоки диаметром 6 мм: две растяжки в четыре нити закрепляют за мост ведомых колес и боковые стоечные скобы платформы, две другие растяжки в четыре нити 6 - за мост ведущих колес и боковые стоечные скобы платформы и третью пару растяжек в четыре нити 3 - за кронштейны рамы молотильного агрегата и боковые стоечные скобы платформы.

Таблица 7.11

СК-4

СК-5 «Нива»

СК-6 «Колос»

Жатка с наклонной камерой

Жатка с наклонной камерой. Кабина

Жатка с наклонной камерой

Козырек комбайна2

Экран переднего листа1

Выхлопная труба

Подножка лестницы3

Предохранительный щиток ограждения муфты выгрузного шнека

Выгрузной шнек3

Воздухозаборник радиатора

-

Перила лестницы3

Выгрузной шнек

Левая боковина площадки1

Воздухозаборники радиатора

 

Патрубок выгрузного шнека1

Патрубок выгрузного шнека1

 

Выгрузной шнек3

Перила лестницы3

Воздухозаборники радиатора3

 

1 Уложить в бункер.

2 Привести в положение в пределах установленного габарита погрузки и закрепить для транспортировки.

3 Разместить под молотильным агрегатом на полу платформы.

Рис. 7.54:

1 - молотильный агрегат; 2, 4, 7 - упорные бруски; 3, 6 - растяжки; 5 - подставка; 8 - жатка

§ 59. Выгрузной шнек размещают вдоль платформы под молотильным агрегатом или у продольного борта платформы (см. рис. 7.52 и 7.53).

Перила и подножки лестницы закрепляют к нижней части рамы молотильного агрегата в двух местах проволокой диаметром 6 мм в две нити.

Воздухозаборник (см. рис. 7.52) радиатора закрепляют с четырех сторон брусками размерами не менее 50×100×300 мм. Каждый брусок прибивают к полу платформы тремя гвоздями диаметром 5 мм, длиной не менее 100 мм.

§ 60. Кабину комбайна СК-5 (см. рис. 7.53) устанавливают на пол платформы в копнитель и закрепляют четырьмя проволочными растяжками диаметром 6 мм в две нити за верхнюю часть каркаса и стоечные скобы платформы.

Погрузка и крепление комбайнов СКД-5 «Сибиряк» в комплекте с жатками (в заводских условиях)

§ 61. Комбайн СКД-5 имеет следующие погрузочные места: молотильный агрегат, жатки, подборщик, выгрузочное устройство, лоток, фермы в сборе, граблины в сборе (левая и правая), днище копнителя, клапан задний, боковины (левая и правая), связка пальцев днища и др.

§ 62. На четырехосную платформу устанавливают два комбайна (рис. 7.55).

Первый молотильный агрегат 1 устанавливают ведомыми колесами к торцовому борту, второй 5 - вплотную к первому ведущими колесами.

Каждое ведомое колесо молотильного агрегата подклинивают двумя упорными брусками 2 размерами не менее 75×130×300 мм.

Рис. 7.55:

1, 5 - молотильные агрегаты; 2, 4 - упорные бруски; 3 - боковины; 6 - выгрузные устройства; 7, 9, 14, 15, 18 - растяжки; 8, 17 - жатки; 10 - фермы в сборе; 11 - продольный упорный брусок; 12 - граблины (правые и левые); 13 - днища копнителей; 16 - деревянная клетка; 19 - стяжки

Ведущие колеса подклинивают упорными брусками 4 размерами 150×200×500 мм. Каждый брусок прибивают к полу платформы тремя гвоздями диаметром 6 мм, длиной не менее 200 мм.

Дополнительно к ведущим колесам комбайна с внутренней стороны укладывают по одному продольному упорному бруску 11 размерами 150×200×700 мм, каждый из которых прибивают к полу платформы четырьмя гвоздями диаметром 6 мм, длиной не менее 200 мм.

Молотильный агрегат закрепляют четырьмя растяжками 14 из проволоки диаметром 6 мм в шесть нитей каждая: две растяжки - за мост ведущих колес молотильного агрегата и боковые стоечные скобы платформы и две растяжки - за хвостовик рамы и боковые стоечные скобы платформы.

§ 63. Для погрузки жаток 8, 17 открывают торцовый борт платформы. Жатки устанавливают вплотную ко второму молотильному агрегату. Каждую жатку закрепляют двумя проволочными растяжками 7, 9 и 15, 18 из проволоки диаметром 6 мм в две нити, которые крепят за боковины жатки и боковые стоечные скобы платформы.

Между собой жатки связывают проволочными стяжками 19 в трех местах проволокой диаметром 6 мм в две нити.

Между жатками на полу платформы размещают деревянную клетку 16 с подборщиком, которую привязывают проволокой диаметром 6 мм к жатке.

§ 64. На полу платформы размещают и закрепляют следующие демонтированные узлы и детали комбайнов:

под первый молотильный агрегат укладывают днище копнителя 13, граблины 12 (правые и левые), фермы 10 в сборе. Под второй агрегат укладывают связки копнителя и др.

§ 65. К молотильным агрегатам у бокового борта устанавливают боковины копнителя 3 в количестве 4 шт., которые привязывают к молотилке проволокой диаметром 6 мм в две нити.

Выгрузные устройства 6 размещают вдоль боковых бортов платформы между бортами и жатками. Каждое выгрузное устройство окантовывается упаковочной лентой, которую прибивают к полу платформы гвоздями диаметром 6 мм, длиной 100 мм. Допускается изменять размещение погрузочных мест на платформе, кроме молотилок и жаток.

Погрузка и крепление комбайнов СКД-5 «Сибиряк» без жаток, с кабинами и без кабин (в заводских условиях)

§ 66. Комбайн СКД-5 с кабиной имеет следующие погрузочные места: молотильный агрегат, кабину с комплектующими местами, выгрузное устройство, лоток и растяжки.

§ 67. На четырехосную платформу устанавливают два комбайна (рис. 7.56). Два молотильных агрегата 1 устанавливают вплотную друг к другу ведущими колесами к середине платформы. Каждое ведомое колесо молотильного агрегата подклинивают двумя упорными брусками 5 размерами не менее 75×130×300 мм. Ведущие колеса подклинивают упорными брусками 4 сечением 150×200×500 мм. Каждый брусок прибивают к полу платформы тремя гвоздями диаметром 6 мм, длиной не менее 200 мм. Дополнительно к ведущим колесам комбайна с внутренней стороны укладывают по одному продольному упорному бруску 9 размерами 150×200×700 мм, каждый из которых прибивают к полу платформы четырьмя гвоздями диаметром 6 мм, длиной не менее 200 мм.

Молотильный агрегат закрепляют четырьмя растяжками 8 из проволоки диаметром 6 мм в шесть нитей каждая: две растяжки - за мост ведущих колес молотильного агрегата и боковые стоечные скобы платформы и две растяжки - за хвостовик рамы и боковые стоечные скобы платформы.

Перед погрузкой к основанию кабины 7 прикрепляют при помощи болтов М-12 два деревянных бруска 6 сечением 50×70×100 мм. Кабины устанавливают у торца платформы и прибивают шестью гвоздями диаметром 5 мм, длиной 150 мм.

Рис. 7.56:

1 - молотильные агрегаты; 2 - выгрузные устройства; 3 - лоток; 4, 5 - упорные бруски; 6 - деревянные бруски; 7 - кабина; 8 - растяжки; 9 - продольные упорные бруски

Рис. 7.57:

1 - молотильные агрегаты; 2 - выгрузные устройства; 3 - лоток; 4 - растяжки; 5, 6 - упорные бруски; 7 - продольные упорные бруски

§ 68. У торцового борта поперек платформы закрепляют выгрузное устройство 2, лоток 3, которые закрепляют упаковочной лентой и прибивают к полу платформы гвоздями диаметром 4 мм, длиной не менее 100 мм.

§ 69. Погрузка и крепление комбайнов СКД-5 «Сибиряк» в комплекте без кабины (рис. 7.57) аналогичны погрузке и креплению вышеуказанных комбайнов в комплекте с кабинами.

Погрузка и крепление комбайнов СКД-5 «Сибиряк» с копнителем, наклонной камерой, жаткой и кабиной (в полевых условиях)

§ 70. Перед погрузкой комбайна жатку вместе с наклонной камерой отделяют от молотильного агрегата.

С жатки снимают наконечники торпедных делителей, а мотовило смещают в сторону наклонной камеры и в таком положении закрепляют фиксаторами. Кабину, воздухозаборник, лестницу и выгрузной шнек снимают. На четырехосную платформу устанавливают один молотильный агрегат 1 (рис. 7.58) с копнителем к одному из торцовых бортов платформы. При этом под ведущие колеса агрегата устанавливают деревянные подставки 2. Каждое ведомое колесо агрегата подклинивают двумя упорными брусками 4 сечением 150×200×500 мм. Каждый брусок прибивают к полу платформы тремя гвоздями диаметром 6 мм, длиной не менее 200 мм.

Дополнительно к ведущим колесам комбайна с внутренней стороны укладывают по одному продольному упорному бруску 11 размерами 160×200×700 мм, каждый из которых прибивают к полу платформы четырьмя гвоздями диаметром 6 мм, длиной не менее 200 мм.

Молотильный агрегат закрепляют четырьмя растяжками 5 из проволоки диаметром 6 мм в шесть нитей каждая: две растяжки - за мост ведущих колес молотильного агрегата и боковые скобы платформы и две растяжки - за хвостовик рамы и боковые стоечные скобы платформы.

Рис. 7.58:

1 - молотильный агрегат; 2 - деревянная подставка; 3 - жатка с наклонной камерой; 4, 7 - упорные бруски; 5 - растяжки; 6 - выгрузной шнек; 8 - кабина; 9 - лестница; 10 - воздухозаборник; 11 - продольные упорные бруски; 12 - растяжки; 13 - упорные бруски

Жатку вместе с наклонной камерой 3 устанавливают на пол платформы, а нижний вал со стороны наклонной камеры подклинивают двумя упорными брусками 13 размерами (90 ÷ 100)×150×300 мм. Брусок прибивают к полу платформы тремя гвоздями диаметром 5 мм, длиной 150 мм. Жатку закрепляют четырьмя проволочными растяжками 12 диаметром 6 мм в четыре нити за верхний вал и брус режущего аппарата и стоечные скобы платформы.

§ 71. Выгрузной шнек 6 размещают поперек платформы под молотильным агрегатом или у продольного борта платформы.

Лестницу 9 укладывают на пол платформы у торцового борта и закрепляют окантовочной лентой, которую прибивают к полу платформы гвоздями диаметром 4 мм, длиной не менее 100 мм.

Воздухозаборник радиатора 10 размещают под молотильным агрегатом и закрепляют с четырех сторон брусками размерами 50×100×300 мм. Каждый брусок прибивают к полу платформы тремя гвоздями диаметром 5 мм, длиной не менее 100 мм.

§ 72. Кабину 8 комбайна устанавливают на пол платформы в копнитель и закрепляют порядком, предусмотренным при погрузке комбайнов в заводских условиях (см. последний абзац § 67).

Глава 8

РАЗМЕЩЕНИЕ И КРЕПЛЕНИЕ МАШИН НА ГУСЕНИЧНОМ ХОДУ

Общие положения

§ 1. Перед погрузкой машин грузоотправитель обязан:

демонтировать детали и узлы, не помещающиеся в пределах габарита погрузки;

проверить комплектность и исправность оборудования, предназначенного для устойчивого закрепления механизмов в положении, исключающем возможность их выхода за габарит погрузки;

проверить исправность и обеспечить надежность действия тормозной системы, фиксаторов и стопорных устройств;

застопорить фиксаторами или стопорами и закрепить растяжками, брусками и т.п. все подвижные и поворотные части машин и оборудования способом, исключающим возможность перемещения их в продольном или поперечном направлении и разворота;

прочно закрепить навесное оборудование и подвижные части, смонтированные на раме или корпусе машины; крепление навесного оборудования выполняют, например, стопорными винтами, проволочными растяжками, а также путем установки соответствующих рукояток и выключателей в положение, обеспечивающее его неподвижное состояние;

исключить доступ к пультам управления или в кабины машин (закрыть и оборудовать блокировочными устройствами двери, опломбировать их, обшить открытые части и стекла кабин, пультов управления досками, фанерой или закрыть металлическими листами);

упаковать демонтированные детали и узлы, перевозка которых в неупакованном виде не допускается; грузы, укладываемые при перевозке на полу платформы, должны иметь плоскую опорную поверхность;

детали и узлы машин, уложенные в ящики, а также отгружаемые без упаковки, должны быть подготовлены к перевозке в соответствии с требованиями § 15 главы 1 ТУ;

закрепить отдельные детали и узлы навесного оборудования, исключив возможность их перемещения относительно друг друга в пути следования (поставить прокладку, увязать проволокой и т.д.). Ответственность за закрепление подвижных, поворотных и других узлов фиксаторами, стопорами, винтами и т.п. несет отправитель;

покрыть детали, подверженные коррозии, антикоррозионными веществами;

составить опись с указанием числа пломб, мест их наложения и общего числа ящиков с запасными частями, инструментом и деталями. В описи не допускается указывать место нахождения запасных частей инструментов и деталей к машинам.

§ 2. После установки на платформу все механизмы машин должны быть полностью заторможены. У машин с приводом от двигателя внутреннего сгорания необходимо рычаг коробки передач поставить на первую передачу и включить муфту сцепления. Кроме того, тягач должен быть заторможен ручным тормозом.

Тормозные рычаги машин (тяги и другие передаточные детали от рычагов управления тормозами) должны быть увязаны отправителем проволокой диаметром 2 - 3 мм в две нити так, чтобы в пути следования не могло произойти случайного самоотпускания тормозов.

Вода из системы охлаждения должна быть слита, а наличие топлива в баках соответствовать требованиям § 15 главы 1 ТУ.

§ 3. Погрузка и выгрузка гусеничной техники должны производиться грузоподъемными устройствами или самоходом. При погрузке и выгрузке самоходом в местах разворота гусениц должны предварительно укладываться стальные листы толщиной 3 - 4 мм. Запрещается осуществлять въезд и выезд техники по неопущенным бортам платформ.

Тракторы, бульдозеры и кусторезы

§ 4. Настоящими Техническими условиями устанавливаются способы размещения и крепления на платформах тракторов, бульдозеров и кусторезов на гусеничном ходу, имеющих (рис. 8.1):

вес отдельных единиц Q до 25 т;

высоту центра тяжести hцт над полом платформы не более 1,5 м;

кратчайшее расстояние по ширине платформы от наружных кромок гусениц до направления действия силы тяжести B1 ³ 0,8hцт, а B2 ³ B1;

кратчайшее расстояние по длине платформы от крайней точки опирания груза до направления действия силы тяжести L1 ³ 1,25hцт, а L2 ³ L1;

наветренную поверхность каждой машины с любой из боковых сторон не более 3 м2 на 1 т веса машины.

Рис. 8.1

Рис. 8.2:

1 - упорные бруски; 2 - растяжки

§ 5. Машины на гусеничном ходу устанавливают непосредственно на пол платформы. В зависимости от размеров они могут быть размещены вдоль платформы симметрично ее продольной оси, или поперек продольной оси (рис. 8.2), или под углом к ней (рис. 8.3).

Разрешается грузить машины в пределах льготного габарита в соответствии с требованиями § 2 главы 1 ТУ.

§ 6. Каждую из гусениц машин закрепляют поперечными упорными брусками (рис. 8.4). Для машин весом до 12 т ширина брусков должна быть b ³ 150 мм, высота h ³ 75 мм; весом от 12 до 18 т - b ³ 180 мм, h ³ 100 мм; весом более 18 т - b ³ 200 мм, h ³ 180 мм. Длина брусков должна быть не менее ширины гусеницы.

Рис. 8.3:

1 - упорные бруски; 2 - растяжки; 3 - поперечные упорные бруски

Упорные бруски должны пригоняться по месту и плотно прилегать к тракам гусениц по всей длине соприкосновения с ними. При этом шипы траков гусениц не должны своими гребнями касаться упорных брусков. В тех случаях, когда расположение брусков под гусеницей не позволяет забивать гвозди вертикально, вплотную к брускам укладывают деревянные упоры (рис. 8.5) сечением не менее 100×100 мм. Упорные бруски или упоры прибивают к полу платформы гвоздями. Число гвоздей диаметром 6 мм для крепления одного бруска или упора определяют в зависимости от веса груза (табл. 8.1).

При погрузке гусеничных машин с открытыми бортами платформ вдоль каждой гусеницы вплотную к ее внутренней стороне укладывают по одному упорному бруску размерами не менее 100×100×2000 мм, прибиваемому к полу платформы восемью гвоздями диаметром 6 мм.

§ 7. Кроме упорных брусков, каждую машину закрепляют четырьмя растяжками, располагаемыми таким образом, чтобы одновременно угол между растяжкой и полом и угол между проекцией растяжки и продольной осью платформы не превышал 45°. Проволочные растяжки закрепляют только за увязочные устройства (при их наличии) или за стоечные скобы платформы и буксировочные крюки или серьги (проушины), гусеницы, корпус (раму) машин, а также за другие детали, которые не могут быть повреждены растяжкой и одновременно не могут вызвать срез проволочной растяжки. Число нитей в одной растяжке (диаметр проволоки 6 мм) определяется в зависимости от веса машины (табл. 8.2).

Рис. 8.4

§ 8. При размещении машин под углом к продольной оси (см. рис. 8.3) последние, кроме проволочных растяжек и поперечных упорных брусков, закрепляют двумя упорными брусками размерами не менее 70×150×800 мм, укладываемыми вдоль гусениц вплотную к ним. Каждый брусок прибивают к полу платформы четырьмя гвоздями диаметром 6 мм.

§ 9. Запасные ковши при погрузке увязывают между собой проволокой диаметром 6 мм в две нити и закрепляют четырьмя растяжками из проволоки диаметром 6 мм в две нити за стоечные скобы платформ (рис. 8.6).

В целях лучшего использования вместимости платформы допускается размещать навесное оборудование машин (отвалы кусторезов, ножи бульдозеров и др.) на специальных подставках, прикрепляемых к полу платформы или к грузу (рис. 8.7). При этом выход груза за пределы лобового бруса не должен превышать 400 мм (рис. 8.8).

§ 10. Погрузку тракторов Т-70с (рис. 8.9) 1 в количестве 8 шт. производят на платформы с опущенными продольными бортами в следующем порядке: закрепляют четыре бруска 5 (по два бруска на крайний трактор), каждый из которых прибивают к полу платформы шестью гвоздями диаметром 6 мм и длиной 150 мм, затем раскладывают сменные комплекты гусениц и противовесов 4 симметрично вертикальным плоскостям, проходящим через продольную ось вагона и линии, соединяющие центры противоположных стоечных скоб.

Рис. 8.5:

1 - растяжки; 2 - поперечные упорные бруски; 3 - упорные бруски; 4 - деревянные упоры

Таблица 8.1

Вес машины, т

Число гвоздей

До 12,0

2

12,1 - 18,0

3

18,1 - 25,0

4

Таблица 8.2

Вес машины, т

Число нитей

Вес машины, т

Число нитей

До 6,0

4

12,1 - 18,0

8

6,1 - 12,0

6

18,1 - 25,0

10

Тракторы размещают на платформе, начиная от торцовой части, с установкой вплотную вторых от торца платформы гусениц крайних тракторов к брускам размерами не менее 100×200×400 мм (поз. 5). Остальные тракторы размещают симметрично линиям, соединяющим центры противоположных стоечных скоб, над сменными комплектами гусениц и противовесов.

Установленные на платформе тракторы должны быть заторможены с переводом рычага коробки передач на одну из низших передач (первая или задний ход), при этом гидронавесная система должна быть поднята в крайнее верхнее положение и зафиксирована стопорными гайками и проволокой диаметром 6 мм в две нити.

Рис. 8.6:

1 - упорные бруски; 2 - растяжки; 3 - увязки

Рис. 8.7:

1 - упорные бруски; 2 - растяжки; 3 - специальные подставки

Рис. 8.8:

1 - упорные бруски; 2 - растяжки

Рис. 8.9:

1 - трактор; 2 - растяжка; 3 - брусок размером 100×150×200 мм; 4 - сменный комплект; 5 - брусок размером 100×200×400 мм

Каждый трактор закрепляют четырьмя растяжками 2 из проволоки диаметром 6 мм в четыре нити, которые одним концом закрепляют за стоечные скобы платформы, другим - за гусеницы и верхнюю часть звездочек тракторов. Кроме того, от поперечного смещения под каждую гусеницу трактора со стороны радиатора ставят бруски размерами не менее 100×150×200 мм (поз. 3), каждый из которых прибивают к полу платформы тремя гвоздями диаметром 6 мм, длиной 150 мм.

Сменный комплект гусениц и противовесов закрепляют за нижнюю часть рамы трактора проволокой диаметром 6 мм в две нити.

Торцовые борта платформы должны быть подняты и закреплены короткими стойками.

Положения, которые не вошли в настоящие Технические условия (требования к подвижному составу, грузу и креплению), должны отвечать общим требованиям глав 1 и 8 ТУ.

Экскаваторы, краны и трубоукладчики

§ 11. Настоящими Техническими условиями устанавливаются способы размещения и крепления на платформах роторных и траншейных многоковшовых, а также одноковшовых экскаваторов с различным рабочим оборудованием (драглайн, грейфер, лопата и др.), кранов и трубоукладчиков с различными видами рабочего оборудования, отправляемых с заводов-изготовителей и ремонтных заводов и имеющих:

вес отдельных единиц в сборе без сменного оборудования и запасных частей до 52,5 т для роторных и траншейных экскаваторов (вес тягача и рабочего органа), 42 т для кранов и одноковшовых экскаваторов, 24 т для трубоукладчиков;

высоту центра тяжести hhцт над полом платформы не более: 1,5 м для роторных и траншейных экскаваторов, 1,46 м для кранов и одноковшовых экскаваторов, 1,5 м для трубоукладчиков;

кратчайшее расстояние от наружных кромок гусениц до направления действия силы тяжести не менее 0,8hhцт;

кратчайшее расстояние по длине платформы от крайней точки опирания груза до направления действия силы тяжести не менее 1,25hhцт;

наветренную поверхность каждой машины с любой из боковых сторон не более: 2 м2 на 1 т веса для роторных и траншейных экскаваторов, 1 м2 на 1 т веса для остальных машин.

Смещение общего центра тяжести груза от вертикальных плоскостей, проходящих через продольную и поперечную оси вагона, не должно превышать величин, установленных главой 1 ТУ.

Экскаваторы, краны и трубоукладчики с другой характеристикой перевозят в соответствии с требованиями § 20 главы 1 ТУ.

Экскаваторы, краны и трубоукладчики, перечисленные в настоящих Технических условиях, отправляемые эксплуатирующими организациями, перевозятся в соответствии с § 28, 29, 30.

Рабочее оборудование, предназначенное для разработки карьеров, рытья котлованов, траншей, а также для выполнения погрузочно-разгрузочных и других работ, представляет: грузовую стрелу с крюками, грейферами, захватами, прямой или обратной лопатой или другими приспособлениями (у кранов и одноковшовых экскаваторов); рабочий орган, состоящий из диска ротора с насаженными на него ковшами, транспортера и других механизмов и приспособлений для работы (у роторного или траншейного экскаватора); грузовую стрелу с захватом и стрелу контргруза с грузами (у трубоукладчика). Рабочее оборудование крана и одноковшового экскаватора может быть навешено на машину или частично демонтировано.

Рабочий орган роторного или траншейного экскаватора, установленного на платформе в зависимости от конструкции или типа и габаритных размеров, может быть навешен на тягач, установлен рядом и жестко и надежно соединен с тягачом или установлен отдельно от тягача.

Грузовую стрелу и стрелу контргруза трубоукладчика демонтируют и укладывают на пол платформы. Снятое рабочее сменное оборудование и запасные части размещают на свободной площади пола вагона, в ковшах экскаваторов, в кабинах машин и закрепляют в зависимости от их веса, размеров и т.д. порядком, предусмотренным соответствующими главами ТУ; в случае если такое транспортирование действующими ТУ не предусмотрено, в соответствии с требованиями главы 1 ТУ.

§ 12. Машины устанавливают вдоль платформы в один ряд (рис. 8.10 - 18.22). Число установленных машин зависит от их веса и габаритных размеров. Допускается устанавливать на платформе машины различных типов. В случае если рабочее оборудование машины выходит за пределы торцового борта платформы более чем на 400 мм, а также при невозможности размещения машины с демонтированными деталями и узлами на одной платформе, груз размещают на сцепе платформ (см. рис. 8.12).

Рис. 8.10:

1 - бруски упорные продольные; 2 - бруски упорные поперечные; 3 - растяжки; 4 - бруски упорные для закрепления опорного колеса

Рис. 8.11:

1 - бруски упорные продольные; 2 - бруски упорные поперечные; 3 - растяжки; 4 - лист стальной под ротор; 5 - бруски упорные для закрепления опорного колеса

§ 13. От продольного и поперечного поступательных перемещений машины рабочее оборудование закрепляют упорными брусками и растяжками из проволоки диаметром 6 мм. Концы растяжек закрепляют за скобы платформы и за гусеницы, раму, диски ротора и другие детали машин и рабочего оборудования, которые не могут быть повреждены растяжкой и одновременно не могут вызвать повреждения проволоки и бортов платформы. При отсутствии фиксатора у буксировочного крюка экскаватора растяжки крепят за крюк методом «удавки» - восьмеркой (см. рис. 8.13 узел 1) или оборудуют крюк фиксатором.

Рис. 8.12:

1 - бруски упорные продольные; 2 - бруски упорные поперечные; 3 - растяжки; 4 - платформа прикрытия с попутным грузом

Рис. 8.13:

1 - бруски упорные продольные; 2 - бруски упорные поперечные; 3 - растяжки

Рис. 8.14:

1 - бруски упорные поперечные; 2 - бруски упорные продольные; 3 - растяжки; 4 - деревянная подкладка под диск ротора; 5 - бруски упорные для закрепления зачистного башмака

Рис. 8.15:

1 - бруски упорные продольные; 2 - бруски упорные поперечные; 3 - растяжки; 4 - увязки

§ 14. От продольного смещения снаружи вплотную к гусеницам машины укладывают упорные бруски (рис. 8.23). Число и длину упорных брусков устанавливают в зависимости от размеров ходовых частей машин, наличия места для их укладки. Длина брусков должна обеспечивать размещение потребного числа гвоздей и соблюдение оптимально допустимых расстояний между ними в соответствии с требованиями главы 1 ТУ.

Высота бруска не менее 150 мм и ширина:

для машин весом до 18 т - не менее 150 мм;

для машин весом 18 т и более - не менее 200 мм.

Рис. 8.16:

1 - бруски упорные продольные; 2 - растяжки; 3 - бруски упорные поперечные

Рис. 8.17:

1 - деревянная подставка под противовес; 2 - бруски упорные продольные; 3 - бруски упорные поперечные; 4 - растяжки; 5 - подставка под стрелу

Рис. 8.18:

1 - деревянная подставка под противовес; 2 - бруски упорные продольные; 3 - бруски упорные поперечные; 4 - растяжки; 5 - подкладка под ковш

Рис. 8.19:

1 - шпальная клетка из брусьев; 2 - растяжки; 3 - бруски упорные продольные; 4 - бруски упорные поперечные; 5 - подставка под стрелу; 6 - брус между грузовой стрелой и рукояткой стрелы

Рис. 8.20:

1 - деревянная подставка под противовес; 2 - бруски упорные продольные; 3 - бруски упорные поперечные; 4 - растяжка

Рис. 8.21:

1 - подставка под противовес; 2 - бруски упорные продольные; 3 - прокладка; 4 - растяжки; 5, 6 - бруски упорные поперечные

От поперечного смещения вдоль внутренних сторон обеих гусениц машин вплотную к ним укладывают по два упорных бруска. Размеры брусков должны быть не менее 150×150×600 мм. Бруски укладывают напротив ведущих и направляющих колес (звездочек) и прикрепляют к полу платформы гвоздями диаметром 6 мм.

Допускается забивать гвозди в упоры, которые укладывают вплотную к брускам. Бруски и упоры должны быть надежно скреплены между собой строительными скобами и иметь одинаковое сечение.

При креплении тягача роторного экскаватора весом 28 т от поперечного смещения укладывают два упорных и три распорных бруска (см. рис. 8.12).

§ 15. Необходимое число гвоздей для крепления брусков, работающих в одном направлении, а также растяжек и число нитей проволоки в каждой растяжке для крепления тягача роторного или траншейного экскаватора (кроме экскаватора, приведенного на рис. 8.14) определяют по данным табл. 8.3 и 8.4.

Рис. 8.22:

1 - брусья; 2 - доски; 3 - скобы; 4 - гвозди

Рис. 8.23

§ 16. Рабочий орган роторного или траншейного экскаватора, выходящий при установке на платформу в навешенном состоянии за габарит погрузки, должен быть опущен. При этом у экскаватора, изображенного на рис. 8.14, зачистной башмак рабочего органа должен опираться на пол платформы, а диск ротора - на подставку, собранную из брусков или досок толщиной не менее 40 мм и уложенную на пол вагона.

В зависимости от размера зазора между полом вагона и диском ротора подставку прибивают к полу гвоздями диаметром 4 - 6 мм. Каждый брусок или доска должны быть прибиты не менее чем двумя гвоздями указанного диаметра.

Роторный экскаватор (см. рис. 8.14) закрепляют от продольного и поперечного перемещений 10-ю растяжками из проволоки диаметром 6 мм в восемь нитей. Кроме того, экскаватор закрепляют брусками, которые прибивают к полу гвоздями диаметром 6 мм, при креплении:

от продольного перемещения - 100 гвоздями, работающими в одном направлении;

от поперечного перемещения - 30 гвоздями, работающими в одном направлении.

Зачистной башмак рабочего органа ограждают с трех сторон брусками сечением не менее 100×100 мм, каждый из которых прибивают четырьмя гвоздями диаметром 6 мм. Длина брусков устанавливается в зависимости от размеров зачистного башмака и наличия места для их укладки. Она должна обеспечивать размещение потребного числа гвоздей и соблюдение оптимально допустимых расстояний между ними в соответствии с требованиями главы 1 ТУ.

Рабочий орган траншейного экскаватора (см. рис. 8.13) закрепляют четырьмя растяжками из проволоки диаметром 6 мм в четыре нити.

§ 17. Под диск ротора роторного экскаватора подкладывают стальной лист шириной не менее 400 мм, длиной не менее длины катка, толщиной 6 мм, который прибивают к полу платформы четырьмя гвоздями диаметром 6 мм (см. рис. 8.11).

При установке опорного колеса на пол вагона (см. рис. 8.10 и 8.11) вплотную к диску ротора укладывают два поперечных и два продольных упорных бруска размерами 150×150 мм, которые прибивают к полу вагона гвоздями диаметром 6 мм.

Число гвоздей для крепления одного бруска зависит от веса рабочего органа:

Вес рабочего органа, т........................... до 4,0         4,1 - 12,0       12,1 - 24,5

Число гвоздей диаметром 6 мм............ 4                 10                  17

Таблица 8.3

Вес тягача, т

Число гвоздей для крепления упорных брусков, работающих в направлении

продольном

поперечном

До 14,0

44

10

14,1 - 20,0

86

14

20,1 - 22,0

100

18

22,1 - 28,0

126

54/95*

* 95 - только для крепления тягача весом 28 т.

Таблица 8.4

Вес тягача, т

Число растяжек

Число нитей проволоки в каждой растяжке

До 17,0

4

8

17,1 - 22,0

8

6

22,1 - 28,0

8

8

От продольных и поперечных перемещений колесо рабочего органа закрепляют четырьмя упорными брусками размерами 150×150 мм, располагаемыми с четырех сторон вплотную к опорному колесу. Число гвоздей для крепления каждого упорного бруска (см. рис. 8.10, поз. 4, рис. 8.11, поз. 5):

Вес рабочего органа, т....................... до 4,0          4,1 - 12,0       12,1 - 24,5

Число гвоздей диаметром 6 мм........ 6                  8                    10

От продольного и поперечного перемещений ротор, установленный рядом с тягачом и соединенный с ним жестко и надежно, закрепляют растяжками из проволоки диаметром 6 мм.

Число растяжек и нитей проволоки в каждой из них определяют по табл. 8.5.

Таблица 8.5

Вес ротора, т

Число растяжек

Число нитей проволоки

Вес ротора, т

Число растяжек

Число нитей проволоки

До 6,8

2

4

9,1 - 11,9

8

6

6,9 - 9,0

2

4

12,0 - 15,0

8

8

Таблица 8.6

Вес тягача, т

Число гвоздей для крепления упорных брусков, работающих в направлении

Число растяжек

Число нитей проволоки в каждой растяжке

продольном

поперечном

До 17,0

80

26

4

8

17,1 - 24,0

64

16

8

8

Таблица 8.7

Вес машины, т

Число гвоздей для крепления упорных брусков, работающих в направлении

Число растяжек

Число нитей проволоки в каждой растяжке

продольном

поперечном

До 25

40

12

12

8

25,1 - 30,0

60

16

16

6

30,1 - 40,0

64

20

16

8

40,1 - 42,0

104

42

18

8

Ротор весом 28 т, установленный на платформу отдельно от тягача (см. рис. 8.12), закрепляют от продольного и поперечного перемещений и опрокидывания 18 растяжками из проволоки диаметром 6 мм в восемь нитей. От продольного сдвига рабочий орган роторных экскаваторов закрепляют четырьмя парами растяжек (см. рис. 8.11) и 10 упорными брусками (см. рис. 8.12). Каждый брусок прибивают к полу вагона 14 гвоздями диаметром 6 мм. Диски ротора рабочего органа, навешенного на тягач, крепят к раме тягача двумя увязками (растяжками) из проволоки диаметром 6 мм в четыре нити (см. рис. 8.15).

§ 18. Необходимое число гвоздей для крепления брусков, работающих в одном направлении, а также растяжек и число нитей проволоки для крепления трубоукладчиков определяют по табл. 8.6.

§ 19. Грузовую стрелу трубоукладчика демонтируют, укладывают вдоль вагона и закрепляют двумя растяжками из проволоки диаметром 6 мм в четыре нити (см. рис. 8.16).

Демонтированное рабочее оборудование трубоукладчика (стрелу контргруза весом до 2,5 т включительно) укладывают на пол вагона и закрепляют брусками размерами 100×100 мм. Бруски, работающие в одном направлении, прибивают к полу 12 гвоздями диаметром 6 мм.

Снятый контргруз трубоукладчика укладывают на пол вагона и закрепляют шестью упорными брусками размерами 100×100 мм. Каждый брусок прибивают к полу восемью гвоздями диаметром 6 мм. Контргрузы трубоукладчиков весом более 17 т дополнительно закрепляют двумя растяжками из проволоки диаметром 6 мм в четыре нити (см. рис. 8.16).

§ 20. Необходимое число гвоздей для крепления брусков, работающих в одном направлении, а также растяжек и число нитей проволоки в каждой растяжке для крепления шасси и корпуса поворотной части одноковшовых экскаваторов и кранов определяют по табл. 8.7.

§ 21. Под ковш одноковшового экскаватора с навешенным рабочим оборудованием (прямая лопата) укладывают две деревянные подкладки размерами 150×150×600 мм. Каждую подкладку крепят к полу вагона четырьмя гвоздями диаметром 6 мм, длиной 200 мм.

В необходимых случаях (чтобы исключить передвижение рукояти прямой лопаты относительно стрелы) между стрелой и рукоятью стрелы прямой лопаты со стороны ковша устанавливают брус размером не менее 150×150×600 мм, который закрепляют двумя увязками из проволоки диаметром 6 мм в две нити, и под стрелу устанавливают подставку, собранную из деревянных брусков размерами 150×150 мм (см. рис. 8.19 и 8.22). Верхний брусок подставки обшивают листовым железом. Высоту подставки определяют по месту установки. Подставка должна быть устойчивой от опрокидывания. Брусья подставки должны быть скреплены между собой шпильками диаметром не менее 16 мм или строительными скобами.

Подставку прибивают к полу вагона восемью гвоздями диаметром 6 мм, длиной 200 мм.

Снятый контргруз одноковшового экскаватора укладывают на пол вагона и закрепляют шестью упорными брусками размерами 100×100 мм. Каждый брусок прибивают к полу восемью гвоздями диаметром 6 мм.

Обратную лопату одноковшового экскаватора демонтируют, рукоять лопаты укладывают на пол под грузовой стрелой и закрепляют четырьмя растяжками из проволоки диаметром 6 мм в четыре нити. Между грузовой стрелой и обратной лопатой укладывают брусок размером 150×150×750 мм. Брусок прикрепляют к рукояти обратной лопаты увязкой из проволоки диаметром 6 мм в две нити. Грузовую стрелу обратной лопаты опускают на брусок и закрепляют четырьмя растяжками из проволоки диаметром 6 мм в восемь нитей (см. рис. 8.21). При этом торцовый борт должен быть откинут. Блок стойки экскаватора опускают и прикрепляют к блоку стрелы растяжкой из проволоки диаметром 6 мм в четыре нити.

§ 22. Грузовую стрелу одноковшового экскаватора с рабочим оборудованием (прямая лопата) закрепляют двумя растяжками из проволоки диаметром 6 мм в восемь нитей (см. рис. 8.17 - 8.19). Рукоять прямой лопаты закрепляют за ковш и стоечные скобы платформы также двумя растяжками из проволоки диаметром 6 мм в восемь нитей.

Грузовую стрелу одноковшового экскаватора и рукоять прямой лопаты (см. рис. 8.19) дополнительно закрепляют обвязкой из проволоки диаметром 6 мм в восемь нитей. Передвижение рукояти прямой лопаты относительно стрелы должно быть исключено.

§ 23. Стрелу крана одноковшового экскаватора и его рабочее оборудование (драглайн или грейфер) частично демонтируют. Верхнюю часть стрелы с блоками укладывают на хвостовик стрелы или на пол вагона и прикрепляют к хвостовику четырьмя растяжками из проволоки диаметром 6 мм в две нити (см. рис. 8.20). Стрелу закрепляют двумя растяжками из проволоки диаметром 6 мм в восемь нитей.

Вставку укладывают на пол платформы и закрепляют двумя растяжками из проволоки диаметром 6 мм в четыре нити.

§ 24. Снятое рабочее и сменное оборудование (грейфер, ковш драглайна, прямая лопата) укладывают на два бруса размерами 150×150×600 мм и закрепляют четырьмя растяжками из проволоки диаметром 6 мм в четыре нити за торцовые и боковые стоечные скобы платформы. Каждый брусок прибивают к полу вагона гвоздями диаметром 6 мм, длиной 200 мм.

§ 25. Под противовес кранов и одноковшовых экскаваторов устанавливают подставку из металла или брусков размером не менее 100×100 мм (см. рис. 8.17 - 8.22). Бруски должны быть надежно скреплены между собой шпильками диаметром не менее 16 мм, болтами или строительными скобами. Подставку прибивают к полу вагона не менее чем восемью гвоздями диаметром 6 - 8 мм. Высоту подставки определяют по месту установки.

§ 26. Запасные гусеницы скатывают, увязывают, укладывают на пол вагона и закрепляют с двух сторон упорными брусками размерами 100×100 мм, каждый из которых прибивают девятью гвоздями диаметром 6 мм. Скатки гусениц крепят также четырьмя растяжками из проволоки диаметром 6 мм в четыре нити.

§ 27. При перевозке с заводов-изготовителей одноковшовых экскаваторов и кранов, у которых по условиям поставки (например, на экспорт и в других случаях, когда предусматривается снимать рабочее оборудование полностью) дополнительно закрепляют поворотную часть машин четырьмя растяжками из проволоки диаметром 6 мм в восемь нитей со стороны противовеса и двумя растяжками со стороны снятой стрелы аналогично перевозке экскаватора в сборе (см. рис. 8.18 и 8.19).

§ 28. Одноковшовые экскаваторы и краны, отправляемые эксплуатирующими организациями, должны иметь стопор поворотной части, закрепленный в рабочем положении, исправные и отрегулированные тормоза поворотной части и навешенное или частично демонтированное рабочее оборудование (стрелу) (см. рис. 8.20 и 8.21). Указанные экскаваторы и краны перевозят в соответствии с требованиями настоящих ТУ, при этом поворотную часть машин дополнительно закрепляют четырьмя растяжками из проволоки диаметром 6 мм в восемь нитей, двумя растяжками со стороны противовеса и двумя растяжками со стороны стрелы.

§ 29. Одноковшовые экскаваторы и краны с неисправными тормозами и стопорными устройствами поворотной части перевозят в разобранном виде со снятыми поворотной частью и рабочим оборудованием.

Отдельные узлы машин (ходовую и поворотную части, стрелы и другое оборудование) закрепляют с учетом требований настоящих ТУ и соответствующих глав действующих Технических условий погрузки и крепления грузов.

§ 30. Роторные и траншейные экскаваторы и трубоукладчики, отправляемые эксплуатирующими организациями, перевозят в соответствии с требованиями настоящих ТУ без дополнительного крепления.

Глава 9

РАЗМЕЩЕНИЕ И КРЕПЛЕНИЕ КОНТЕЙНЕРОВ И СОЛОМЫ НА ОТКРЫТОМ ПОДВИЖНОМ СОСТАВЕ

Универсальные контейнеры

§ 1. Универсальные контейнеры массой брутто 3 и 5 т грузят в вагоны только полными комплектами. При наличии в комплекте контейнеров массой брутто 5 т последние устанавливают вместо двух контейнеров массой брутто 3 т. Контейнеры размещают дверями внутрь так, чтобы исключить свободный доступ к ним в пути следования.

Допускается устанавливать контейнеры массой брутто 5 т в полувагонах дверями вплотную к его боковым стенкам.

В одном комплекте с гружеными контейнерами допускается грузить порожние при условии постановки их в средней части вагона. Схемы размещения универсальных контейнеров на четырехосной платформе внутренней длиной 12,84 м и в полувагоне грузоподъемностью 57 - 59 т, длиной 12,9 м приведена на рис. 9.1. Схемы размещения универсальных контейнеров на четырехосной платформе длиной 13,3 м приведены на рис. 9.2, а схема размещения универсальных контейнеров в четырехосном полувагоне длиной 12,08 м показана на рис. 9.3.

Схемы размещения контейнеров массой брутто 3 и 5 т в полувагонах-контейнеровозах даны на рис. 9.4:

первым устанавливается контейнер 1, имеющий дверной проем на длинной боковой стене (рис. 9.4, а, б);

первым устанавливается контейнер 1. Вместо контейнеров 5 и 6 можно устанавливать 5-тонный контейнер, имеющий дверной проем на длинной боковой стороне. Контейнер 3 устанавливают дверным проемом к деревянному щиту продольного борта контейнеровоза (рис. 9.4, в);

первым устанавливают контейнер 1. Контейнер 4 устанавливают дверным проемом вплотную к деревянному щиту продольного борта контейнеровоза, а контейнер 9 должен иметь дверной проем на длинной боковой стенке. Вместо контейнеров 5 и 6 или 7 и 8 можно устанавливать 5-тонный контейнер, имеющий дверной проем на длинной боковой стенке (рис. 9.4, г);

первым устанавливают контейнер 1. Вместо контейнеров 4 и 5 или 6 и 7 можно устанавливать 5-тонный контейнер, имеющий дверной проем на длинной боковой стороне (рис. 9.4, д);

контейнер 5 должен иметь дверной проем на длинной боковой стороне. Контейнер 3 устанавливают дверным проемом вплотную к деревянному щиту продольного борта и контейнеровоза (рис. 9.4, е).

Контейнеры типоразмера УУК-3 (производства Пушкинского ПРМЗ) и типа НР-2,5, загружаемые свыше 3 и 5 т брутто, размещают в вагонах полными комплектами согласно приведенным схемам. Размещение указанных выше типов контейнеров в вагонах при совместной перевозке с контейнерами массой брутто 3 и 5 т производят следующим порядком:

1. На платформах, в полувагонах и контейнеровозах, переоборудованных из крытых вагонов объемом кузова 106 м3, контейнеры УУК-3 и НР-2,5 устанавливают в средней части вагона поровну с обеих сторон продольной и поперечной осей симметрии вагона.

Рис. 9.1

Рис. 9.2

Рис. 9.3

2. В случае погрузки указанных типоразмеров контейнеров в полувагоны-контейнеровозы следует руководствоваться схемами, приведенными на рис. 9.4, а - е. При погрузке одного такого контейнера его устанавливают вместо любого 3-тонного контейнера, кроме 1 (см. рис. 9.4, а, б) и 9 (см. рис. 9.4, г). При погрузке двух таких контейнеров их устанавливают согласно рис. 9.4, а, б вместо контейнеров 4 и 5 или 6 и 7; на рис. 9.4, г вместо контейнеров 5 и 6 на рис. 9.4, д вместо контейнеров 4 и 5. При погрузке трех таких контейнеров их размещают согласно рис. 9.4, а вместо контейнеров 2 (или 3), 6 и 7; на рис. 9.4, г вместо контейнеров 3, 5, 6. При погрузке четырех таких контейнеров их устанавливают согласно рис. 9.4, а вместо контейнеров 2, 3, 10 и 11; на рис. 9.4, б вместо контейнеров 4, 5, 6 и 7; на рис. 9.4, г вместо контейнеров 2, 3, 5 и 6.

Рис. 9.4

В контейнеровозы, переоборудованные из крытых вагонов с объемом кузова 106 м3, длиной 13430 мм, шириной 2750 мм, контейнеры должны устанавливаться полными комплектами дверями внутрь, по 12 контейнеров массой брутто 3 т, по 6 или 5 контейнеров массой брутто 5 т.

Рис. 9.5

Рис. 9.6

При погрузке:

одних 3-тонных контейнеров - контейнеры 1 - 10 устанавливаются попарно стороной (2100 мм) по длине вагона, а контейнеры 11 - 12 стороной 2100 мм поперек вагона (рис. 9.5);

шести контейнеров массой брутто 5 т - контейнеры 1 - 5 с дверью на стороне (2650 мм) устанавливаются этой стороной поперек вагона, а контейнер 6 (с торцовой дверью) устанавливается стороной 2650 мм по длине вагона (рис. 9.6);

пяти контейнеров массой брутто 5 т, с торцовой дверью, размещаются стороной 2650 мм по длине вагона (рис. 9.7);

при совместной погрузке контейнеров массой брутто 3 и 5 т в контейнеровозе контейнеры массой брутто 3 т устанавливаются в середине вагона (контейнеры 3 - 5 и 7 - 9 стороной (2100 мм) по длине, и контейнер 2 поперек вагона), а контейнеры 1 и 6 массой брутто 5 т с торцовой дверью, устанавливаются по торцам вагона стороной (2650 мм) по длине вагона (рис. 9.8).

§ 2. Перед погрузкой пол платформы, а также опорные поверхности контейнеров должны быть тщательно очищены от снега, льда и мусора. В зимнее время (с 1 октября по 15 апреля) пол платформы должен быть посыпан тонким слоем (1 - 2 мм) чистого сухого песка. Торцовые борта платформ должны дополнительно закрепляться короткими деревянными стойками (по две стойки на каждый борт).

При размещении контейнеров на платформах, продольные борта которых оборудованы запорными устройствами в виде закидок, каждую секцию борта необходимо закреплять одной деревянной стойкой.

§ 3. На специализированную для перевозки крупнотоннажных контейнеров платформу длиной базы 9294 и 9720 мм контейнеры длиной 12, 19 м, шириной 2,44 м, высотой 2,742 м (2,896 м), массой брутто 30,48 т устанавливают по одному, а контейнеры длиной 6,06 м, шириной 2,44 м, высотой 2,44 (2,59 м), массой брутто 20,32 т или 24 т - по два торцовыми дверями друг к другу. На специализированную платформу длиной базы 14720 мм устанавливают один контейнер массой брутто 30,48 т и один контейнер массой брутто 20,32 т или 24 т торцовыми дверями друг к другу или устанавливают три контейнера массой брутто 20,32 т или 24 т дверями внутрь вагона. При этом все погруженные контейнеры могут иметь одинаковую - 2,742 м (2,896 м) - или различную высоту.

На каждой платформе должны быть погружены только груженые или только порожние контейнеры.

Допускается совместная перевозка порожних и груженых контейнеров максимальной массой брутто 20,32 т или 24 т на платформе длиной базы 14720 мм в следующих случаях при условии погрузки:

одного порожнего между двух груженых контейнеров. При этом разница в массе брутто груженых контейнеров не должна превышать 12 т;

двух порожних контейнеров с установкой по торцам платформы и одного груженого контейнера посередине платформы.

При погрузке на платформу длиной базы 9294 или 9720 мм двух груженых контейнеров длиной 6,06 м разница в их массе брутто не должна превышать 15 т.

При погрузке на платформу длиной базы 14720 мм трех груженых контейнеров длиной 6,06 м посередине платформы должен устанавливаться контейнер наибольшей массы брутто (до 20,32 или 24 т), а по торцам платформы - контейнеры с меньшей массой брутто.

При погрузке на платформу длиной базы 14720 мм одного груженого контейнера длиной 12,192 м и одного груженого контейнера длиной 6,06 м первый контейнер должен иметь загрузку нетто не менее 13,5 т, а второй - не менее 6,4 т.

Рис. 9.7

Рис. 9.8

Перед погрузкой полы платформы, а также опорные поверхности контейнеров должны быть тщательно очищены от снега, льда и мусора.

Контейнеры устанавливают на платформы так, чтобы упорные головки, расположенные на платформах и предварительно приведенные в рабочее (вертикальное) положение, вошли в отверстия фитингов, расположенных снизу контейнеров (рис. 9.9, а). После установки контейнеров работник, ответственный за погрузку, обязан через боковые отверстия в фитингах, проверить правильность расположения упорных головок в рабочем положении, которыми контейнеры закрепляются от продольных и поперечных перемещений.

Универсальные контейнеры длиной 6,06 м, шириной 2,44 м, высотой 2,44 (2,59) м и массой брутто 20,32 или 24 т допускается грузить и на обычные платформы. В зимнее время (с 1 октября по 15 апреля) пол платформы в местах соприкосновения его с фитингами контейнера должен быть посыпан тонким слоем (1 - 2 мм) чистого сухого песка.

На обычную платформу контейнеры грузят таким порядком: на середину платформы симметрично продольной и поперечной ее осям укладывают поперечный брусок длиной 2450 мм и прибивают его к полу платформы 24 гвоздями в летний период и 32 гвоздями в зимний. Вплотную к поперечному бруску дверями внутрь устанавливают два контейнера симметрично продольной оси платформы.

Рис. 9.9:

а - размещение 20-тонных контейнеров на специализированной платформе; б, в - на обычной платформе; 1 - контейнер; 2 - фитинг; 3 - упорная головка; 4 - рама платформы; 5 - стойка; 6 - поперечный брусок; 7 - распорный брусок; 8 - упорный брусок; 9 - поперечный брусок; 10 - растяжка (в случае а один контейнер не показан, а в случаях б, в продольные борта условно не показаны)

Во избежание перемещений вдоль платформы контейнеры закрепляют с помощью двух поперечных брусков длиной, равной внутренней ширине платформы, укладываемых вплотную к торцовым бортам платформы и прибиваемых к полу платформы каждый восемью гвоздями.

В распор между поперечными брусками и фитингами контейнера с каждой стороны платформы укладывают по два распорных бруска длиной 200 мм для платформ с базой 9294 мм и длиной 400 мм для платформы с базой 9720 мм и прибивают каждый к полу платформы двумя - четырьмя гвоздями. Длина распорных брусков уточняется по месту. В торцовые стоечные скобы устанавливают короткие стойки.

От поперечных перемещений каждый контейнер закрепляют с помощью четырех упорных брусков длиной не менее 400 мм. Упорные бруски устанавливают вплотную между боковыми стенками контейнеров и боковыми бортами, упирая их в фитинги и прибивая к полу вагона двумя гвоздями (рис. 9.9, б).

Поперечные, распорные и упорные бруски, применяемые для крепления контейнеров, должны быть высотой не менее 60 мм и шириной 125 - 150 мм, а гвозди - диаметром не менее 5 мм, длиной, равной высоте бруска плюс толщина пола.

Взамен упорных брусков каждый контейнер можно закреплять четырьмя растяжками из проволоки диаметром 6 мм в две нити каждая при массе брутто контейнера до 10 т и в четыре нити при массе брутто до 20 т. Растяжки увязывают за вторые и четвертые стоечные скобы платформы и отверстия в верхних фитингах контейнера (рис. 9.9, в).

Вместо проволочных растяжек могут применяться постоянные многооборотные приспособления, прочность которых должна быть не ниже предусмотренной в главе 1 ТУ. Ответственность за качество и прочность этих приспособлений несет грузоотправитель.

Специализированные контейнеры

§ 4. Специализированные контейнеры перевозят на платформах. Перед погрузкой пол платформ, а также опорные поверхности таких контейнеров должны быть очищены от остатков груза, мусора и льда.

В зимнее время пол платформы должен быть посыпан тонким слоем (1 - 2 мм) чистого сухого песка. Борта платформ должны быть исправными и надежно закрыты. При размещении контейнеров на платформах, продольные борта которых оборудованы запорными устройствами в виде закидок, каждую секцию борта необходимо закреплять одной короткой деревянной стойкой.

§ 5. Специализированные контейнеры конструкции «Гипроникель» применяют для перевозки концентратов руд цветных металлов (олова, цинка, меди и др.), а также других грузов.

Контейнер конструкции «Гипроникель» типа СК-2-3,2(5) (рис. 9.10) с полезным объемом 1,25 м3, массой брутто 3,2 - 5 т представляет собой металлический усеченный конус с крышкой, которая крепится к корпусу контейнера тремя замками. Груженые контейнеры типа СК-2-3,2(5) перевозят на универсальных четырехосных платформах. Устанавливают контейнеры на платформу целыми комплектами симметрично продольным и поперечным осям платформ вплотную один к одному в два ряда по ширине платформы.

При массе брутто контейнера от 4,5 до 5 т на платформе размещают 12 контейнеров (рис. 9.11); при массе брутто от 4,2 до 4,5 т - 14 шт. (рис. 9.12); при массе брутто от 3,5 до 4,2 т - 16 шт. (рис. 9.13) и при массе брутто 3,5 т - 18 контейнеров (рис. 9.14).

Комплект груженых контейнеров закрепляют восемью инвентарными металлическими растяжками I и II типов (табл. 9.1) диаметром не менее 25 мм, которые крепят одним концом к контейнеру, а другим - к боковым стоечным скобам платформы (рис. 9.15). При установке растяжки нижний ее крюк пропускают через боковую стоечную скобу платформы, а верхний пропускают в отверстия обода специализированного контейнера.

Рис. 9.10

Контейнеры, закрепленные инвентарными растяжками, соединяют между собой в поперечном направлении четырьмя инвентарными металлическими стяжками (рис. 9.16), крюки которых пропускают через отверстия ободов контейнеров. Остальные контейнеры, размещенные на платформе, должны быть соединены между собой в поперечном и продольном направлениях дугообразными скобами (рис. 9.17), устанавливаемыми в процессе погрузки.

Контейнеры, размещенные в рядах, расположенных у торцовых бортов платформы, дополнительно закрепляют упорными брусками сечением 100×100×2700 мм, которые укладывают на пол платформы вплотную к нижней части контейнеров и прибивают к полу каждый 10-ю гвоздями диаметром 6 мм, длиной 150 мм.

При размещении на платформе 18 специализированных контейнеров допускается вместо гвоздевого крепления упорных брусков укладывать их враспор между контейнерами и торцовыми бортами платформы. При этом торцовые борта платформы, не оборудованные клиновыми запорами, закрепляются двумя короткими деревянными стойками.

Рис. 9.11:

1 - растяжка тип; 2 - упорный брусок; 3 - скоба; 4 - инвентарная стяжка

Рис. 9.12:

1 - растяжка тип II; 2 - растяжка тип I; 3 - упорный брусок; 4 - скоба; 5 - инвентарная стяжка

Рис. 9.13:

1 - растяжка тип II; 2, 4 - растяжка тип I; 3 - скоба; 5 - брусок

Рис. 9.14:

1 - растяжка тип I; 2, 5 - растяжка тип II; 3 - брусок; 4 - скоба

Таблица 9.1

Тип растяжки

Размеры, мм

А

Вmax

Вmin

I

460

1730

1330

II

1020

2290

1890

Все инвентарные растяжки и стяжки должны иметь маркировку с указанием типа и даты последнего испытания. Маркировка проставляется на стяжной муфте. Испытание растяжек и стяжек производится растягивающей нагрузкой 5 т в течение 10 мин. Нагрузку прикладывают к крюкам растяжки или стяжки. Ответственность за испытание несет грузоотправитель.

Порожние контейнеры и крышки к ним перевозят в полувагонах пакетами (рис. 9.18). Пакет формируется из девяти контейнеров. Сверху пакет накрывается крышкой. Пакет крышек состоит из 8 шт. Контейнеры и крышки в пакете соединяют между собой четырьмя резьбовыми стержнями диаметром 20 мм, пропускаемыми в отверстия ободов контейнеров и в крышках. Инвентарные растяжки и дугообразные скобы увязывают проволокой в отдельный пакет и укладывают на пол вагона. В полувагон загружается 11 пакетов контейнеров и 11 пакетов крышек. Торцовые двери полувагона ограждают металлическим упором, навешиваемых на верхнюю обвязку боковых стенок вагона.

Таблица 9.2

Тип контейнера

Масса контейнера брутто, т

Число контейнеров в вагоне грузоподъемностью

63 т

64 т

65 т

всего

в том числе

всего

в том числе

всего

в том числе

в нижнем ярусе

в верхнем ярусе

в нижнем ярусе

в верхнем ярусе

в нижнем ярусе

в верхнем ярусе

МК-07 (0,5)

0,80 - 0,95

78 - 67

39

39 - 28

78 - 68

39

39 - 29

78 - 69

39

39 - 30

0,96 - 1,10

66 - 58

39

27 - 19

67 - 59

39

28 - 20

68 - 60

39

29 - 21

1,11 - 1,25

57 - 51

39 - 38

18 - 13

58 - 52

39

19 - 13

59 - 52

39

20 - 13

1,26 - 1,40

50 - 45

37 - 32

13

51 - 46

38 - 33

13

52 - 47

39 - 34

13

1,41 - 1,52

45 - 42

32 - 29

13

46 - 42

33 - 29

13

46 - 43

33 - 30

13

МК-1 (1,0)

1,16 - 1,30

53 - 49

27

26 - 22

54 - 50

27

27 - 23

54 - 50

27

27 - 23

1,31 - 1,50

48 - 42

27

21 - 15

49 - 43

27

22 - 16

50 - 44

27

23 - 17

1,51 - 1,70

42 - 37

27

15 - 10

43 - 38

27

16 - 11

43 - 38

27

16 - 11

1,71 - 1,90

37 - 33

27 - 24

10 - 9

38 - 34

27 - 25

11 - 9

38 - 34

27 - 25

11 - 9

1,91 - 2,04

33 - 31

24 - 22

9

34 - 31

25 - 22

9

34 - 32

25 - 23

9

МК-1,5

1,56 - 1,68

40 - 37

20

19 - 17

40 - 38

20

20 - 18

40 - 38

20

20 - 18

1,71 - 1,80

37 - 35

20

17 - 15

38 - 36

20

18 - 16

38 - 36

20

18 - 16

1,81 - 1,90

35 - 33

20

15 - 13

35 - 34

20

15 - 14

35 - 34

20

15 - 14

1,91 - 2,05

33 - 31

20

13 - 11

34 - 31

20

14 - 11

34 - 31

20

14 - 11

МКР (МКО)-1,0

Не более 0,83

-

-

-

-

 

-

78

39

39

 

-

-

-

-

 

-

-

-

-

0,90

-

-

-

-

 

-

72

36

36

 

-

-

-

-

 

-

-

-

-

Примечания. 1. При промежуточных значениях массы контейнеров их число определяют линейной интерполяцией.

2. Дробные числа контейнеров округляют в сторону увеличения с учетом допускаемого перегруза.

3. При длине контейнера МК-1,5 более 1200 мм в нижнем ярусе размещают 18 шт., в верхнем 18 - 14 шт., по девять контейнеров в ряду.

4. Масса контейнера МКР (МКО)-1,0 регулируется высотой его заполнения до 1200 мм.

5. При большей массе брутто одного контейнера должно загружаться меньшее число контейнеров, чем указано в таблице.

Рис. 9.15:

1 - крюк; 2 - тяга; 3 - стяжной механизм

Рис. 9.16:

1 - стяжной механизм; 2 - крюк

§ 6. Груженые мягкие контейнеры прямоугольной и цилиндрической форм из резинотканевых и полимерных материалов МК-0,7-0,5; МК-1 и МК-1,5 массой брутто до 2,05 т и типа МКР (МКО)-1 массой брутто до 1 т из полимерных материалов для перевозки сыпучей продукции размещают в четырехосном полувагоне в два яруса, вплотную друг к другу, симметрично относительно продольной и поперечной осей вагона в количестве, обеспечивающем полное использование грузоподъемности или вместимости вагона. В зависимости от рода груза и грузоподъемности вагона число погруженных контейнеров должно соответствовать данным, указанным в табл. 9.2, при этом общий вес груза не должен превышать грузоподъемности вагона с учетом допускаемого перегруза.

Контейнеры МК-0,7 (0,5) размещают в вагоне в количестве 43 - 78 шт.: в нижнем ярусе - от 30 до 39 шт., в два-три ряда по ширине и 13 контейнеров по длине вагона; в верхнем ярусе - от 13 до 39 шт., в один - три ряда по ширине и 13 контейнеров по длине вагона (рис. 9.19).

Контейнеры МК-1,0 размещают в два яруса длинной стороной вдоль продольной оси вагона в количестве 30 - 54 шт.: в нижнем ярусе - от 23 до 27 шт., в два-три ряда по ширине и девять контейнеров по длине вагона; в верхнем ярусе - от 9 до 27 шт., в один - три ряда по ширине и девять контейнеров по длине вагона (рис. 9.20).

Рис. 9.17

Рис. 9.18:

1 - пакет контейнеров; 2 - пакет крышек

Рис. 9.19:

а - схема размещения 78 контейнеров МК-0,7 (0,5) в полувагоне, в каждом ярусе по 39 шт.; б - примеры размещения контейнеров в ярусе - 31, 30, 18, 13 шт.

Рис. 9.20:

а - схема размещения 54 контейнеров МК-1,0 в полувагоне, в каждом ярусе по 27 шт.; б - примеры размещения контейнеров в ярусе - 23, 22, 14, 9 шт.

Контейнеры МК-1,5 в вагоне размещают в количестве 32 - 40 шт.: в нижнем ярусе - 18 - 20 шт., в два ряда по ширине и 9 - 10 контейнеров по длине вагона; в верхнем ярусе - от 12 до 20 шт., в один - два ряда по ширине и 9 - 10 контейнеров по длине вагона (рис. 9.21).

Контейнеры МКР (МКО)-1,0 размещают в вагоне в количестве 72 - 78 шт. по 36 - 39 шт. в каждом ярусе, в три ряда по ширине и 12 - 13 контейнеров по длине вагона, при этом оба яруса должны быть заполнены полностью (рис. 9.22).

Люковые запоры полувагонов при погрузке контейнеров всех типов, кроме МК-1,5, отправитель увязывает проволокой диаметром не менее 4 мм в один оборот, которую получатель должен снять после выгрузки.

Порожние контейнеры отправляют в крытых вагонах, полувагонах и универсальных контейнерах пакетами, по 3 - 7 шт. в каждом пакете. Пакеты увязывают веревкой диаметром не менее 8 мм или лентой из хлопчатобумажных или синтетических волокон шириной не менее 15 мм.

Размещение тюков прессованной соломы в четырехосных полувагонах

§ 7. Солома должна быть плотно спрессована в тюк (размеры в мм: длина 1000, ширина 500, высота 360), надежно обвязанный проволокой вдоль длины в двух местах.

§ 8. В полувагоны с объемом кузова 64,7 и 66,8 м3 тюки прессованной соломы грузят в количестве 508 шт. с использованием верхней суженной части габарита погрузки (с «шапкой»). Тюки размещают, как указано на рис. 9.23, следующим порядком: на пол полувагона вплотную друг к другу укладывают на ребро (500 мм) пять тюков по ширине, в четыре яруса по высоте и 12 рядов по длине вагона. Затем по периметру вагона укладывают на торец тюки первого яруса «шапки», а в пространство между ними грузят тюки на ребро (500 мм) по ширине вагона и 11 тюков по длине.

Аналогично формируют второй и третий ярусы «шапки».

Рис. 9.21:

а - схема размещения 10 контейнеров МК-1,5, в полувагоне, в каждом ярусе по 20 шт.; б - примеры размещения контейнеров в ярусе - 14, 11 шт.

§ 9. В полувагоны с объемом кузова 70,5; 72,5 и 74 м3 тюки прессованной соломы грузят в количестве 560 шт. с использованием верхней суженной части габарита погрузки (с «шапкой»). Тюки размещают, как указано на рис. 9.24, следующим порядком: на пол полувагона вплотную друг к другу укладывают на ребро (500 мм) пять тюков по ширине, в пять ярусов по высоте и 12 рядов по длине вагона. Затем по периметру вагона укладывают на боковую сторону (360 мм) тюки ограждения первого яруса «шапки», вплотную к нему по периметру укладывают тюки на торец (500 мм), а в пространство между ними грузят четыре тюка на боковую сторону (360 мм) по ширине вагона и 10 тюков по длине вагона.

Второй ярус формируют аналогично первому.

Рис. 9.22

Рис. 9.23

Рис. 9.24

Глава 10

РАЗМЕЩЕНИЕ И КРЕПЛЕНИЕ ДЛИННОМЕРНЫХ ГРУЗОВ, ПЕРЕВОЗИМЫХ НА СЦЕПАХ ЧЕТЫРЕХОСНЫХ ПЛАТФОРМ С ПРИМЕНЕНИЕМ ТУРНИКЕТНЫХ ОПОР

Общие требования

§ 1. Настоящими Техническими условиями устанавливаются способы размещения и крепления на сцепах четырехосных платформ длинномерных грузов с использованием турникетных опор. При применении турникетных опор должны соблюдаться требования, изложенные в § 45 - 47 главы 1 ТУ.

Грузоотправитель обязан перед установкой турникетов проверить соответствие проектам конструкции турникетов, креплений (бандажей, растяжек, обвязок, кронштейнов, упоров и других приспособлений для установки и крепления груза), исправность турникетов и комплектов крепления. Удалив грязь, он обязан смазать тонким слоем универсальной смазки (УС-2 ГОСТ 1033-79) трущиеся поверхности рам, поверхности пятника, подпятника и скользунов, сделать записи о результатах осмотра в документации в соответствии с руководством по эксплуатации, в котором изложены требования по осмотру, периодичности ремонтов и т.д.

Вес груза не должен превышать грузоподъемности турникета.

Длинномерный груз на турникетах размещают так, чтобы его общий центр тяжести располагался в вертикальной плоскости, проходящей через продольные оси платформ сцепа.

Размещение и крепление длинномерных грузов с применением турникетов типа ЦНИИ МПС

§ 2. Характеристика турникета типа ЦНИИ МПС дана в табл. 10.1 рабочие проекты № 1797 и 1943 СКБ Главмостостроя Минтрансстроя СССР. Адрес калькодержателя: Московский городской центр научно-технической информации и пропаганды (101820, г. Москва, Центр, проезд Серова, 1).

При проверке габаритности и определении степени негабаритности погрузки расчетная длина груза принимается больше фактической с каждой торцовой стороны на 400 мм, а расчетная высота - на 100 мм.

Турникет (рис. 10.1) состоит из верхней 1, промежуточной 10 и нижней рам 9, боковых скользунов 2, сферических подпятников 5 и пятника 6, шкворня 7, продольных 8 и поперечных 4 упоров, элементов усиления продольных упоров 11, ограничителей хода верхней рамы 12, боковых скоб 3 для установки фиксаторов - деревянных стоек. Промежуточная и верхняя рамы имеют наклонные и горизонтальные поверхности скольжения. Турникет на платформе закрепляется с помощью продольных и поперечных упоров.

Таблица 10.1

Параметры турникета

№ рабочего проекта

1797

1943

Грузоподъемность (без учета веса турникета), т:

 

 

одного турникета

42,5

55

комплекта из двух турникетов

85

110

Вес, кг:

 

 

одного турникета

2820

4380

комплекта из двух турникетов

5640

8760

Высота над уровнем пола платформы, мм

455

490

Погрузочная ширина верхней рамы, мм

2760

2760

Погрузочная длина верхней рамы, мм

1960

2066

Длина нижней рамы турникета, мм

1725

3240

Продольный угол поворота турникета, град

5

5

Удельная инерционная сила, кгс/т:

 

 

продольная

530

480

поперечная и вертикальная

§ 28 и 29 главы I ТУ

 

§ 3. Перед погрузкой верхнюю и нижнюю рамы каждого турникета с обеих сторон закрепляют фиксаторами - деревянными стойками - сечением 30×50 мм, которые вставляют в боковые скобы верхней и нижней рам, выполненные из швеллеров № 6; 5. Фиксаторы устанавливают для того, чтобы во время погрузки верхняя рама не смещалась относительно промежуточной. После окончания погрузки фиксаторы-стойки должны быть сняты.

Железнодорожные рельсы длиной 25 м

§ 4. Рельсы Р50, Р65 и Р75 длиной 25 м (24920 и 28840 мм) грузят на сцеп из двух четырехосных платформ грузоподъемностью 62 и 63, 66 т с использованием турникетов типа ЦНИИ МПС, рабочий проект № 1943 СКБ Главмостостроя Минтрансстроя (см. табл. 10.1).

Рис. 10.1

Для транспортировки рельсов на сцепе из двух платформ применяют два одинаковых турникета (см. рис. 10.1). Каждый турникет размещают в середине платформы. При установке турникета на платформу необходимо, чтобы продольные упоры 8 турникета вошли в стоечные скобы платформы и плотно, без зазоров, прилегали к их внутренним поверхностям с наружной стороны сцепа, а поперечные упоры турникета 4 находились с внешней стороны армирующих уголков платформы.

Рис. 10.2:

1 - ограничители; 2 - упоры; 3 - подкладки размерами 60×100×2240 мм; 4 - подкладки размерами 60×150×2240 мм; 5 - гвозди длиной 100 - 150 мм

На верхней раме турникета (рис. 10.2) приварены ограничители перемещений деревянной подкладки и упоры для предотвращения поперечных перемещений рельсов, а также две скобы 3 (см. рис. 10.1) для крепления рельсов поперечными обвязками.

На сцепе (рис. 10.3 и 10.4) рельсы закрепляют с помощью деревянных прокладок размерами 25×100×2100 мм, поперечных обвязок из проволоки диаметром 6 мм в шесть нитей и торцовых многооборотных обвязок из металлических стержней. Для размещения рельсов на верхней раме каждого турникета (см. рис. 10.2) в крайних пазах укладывают две многооборотные деревянные подкладки размерами 60×100×2240 мм, каждую из которых прибивают четырьмя гвоздями длиной 100 мм через отверстия в швеллере, а в средней части - одну подкладку размером 60×150×2240 мм. Эту подкладку закрепляют с каждой боковой стороны шестью гвоздями длиной 100 - 150 мм через отверстия в ограничителях.

Рис. 10.3:

а - Р50 на сцепе из платформ грузоподъемностью 62 и 63 т (91 шт.); б - Р50 на сцепе из платформ грузоподъемностью 63 и 66 т (93 шт.); 1 - поперечная проволочная обвязка; 2 - торцовая обвязка; 3 - прокладка; 4 - подкладка; 5 - упор

Рельсы Р50 загружают на сцеп высотой в семь рядов (см. рис. 10.3), рельсы Р65 - в шесть рядов, рельсы Р75 - в пять рядов (см. рис. 10.4). Число рельсов, размещаемых в рядах, указано в табл. 10.2.

Первый ряд рельсов (см. рис. 10.3 и 10.4) укладывают на подкладки верхних рам турникетов головками вверх так, чтобы подошвы крайних рельсов вплотную прилегали к вертикальной части поперечных упоров. Следующий ряд рельсов размещают головками вниз. Эти два ряда называют сдвоенным рядом рельсов.

Между сдвоенными, а также верхним и последующим рядами рельсов над серединой турникета и над сцеплением платформ укладывают прокладки размерами не менее 25×100×2100 мм. Поверхности подкладок и прокладок в зимнее время в местах опирания рельсов должны быть посыпаны тонким слоем чистого сухого песка.

Пакет рельсов крепят поперечными обвязками из проволоки диаметром 6 мм в шесть нитей (см. рис. 10.3 и 10.4), которые увязывают за боковые скобы верхних рам турникетов (см. рис. 10.1), а также торцовыми многооборотными стальными обвязками (рис. 10.5), состоящими из пяти звеньев. Боковые звенья выполняют из стержня диаметром 24 - 25 мм, а торцовые - диаметром 28 - 30 мм. Левую скобу торцовой обвязки вставляют в боковую скобу верхней части турникета (см. рис. 10.5) и стержни левой скобы сваривают между собой. Длина сварного шва в каждом соединении звеньев торцовой обвязки должна быть не менее 100 - 150 мм, а высота катета сварного шва 8 - 10 мм. Правую скобу торцовой обвязки соединяют с боковой скобой турникета с помощью валика диаметром 40 мм. Каждую обвязку закрепляют к торцовой части верхнего ряда рельсов с помощью трех деревянных брусков длиной 50 мм. Бруски забивают между рядами рельсов так, чтобы они выступали за торцы рельсов на 130 - 150 мм. Торцовую обвязку привязывают к каждому бруску проволокой диаметром 6 мм в четыре нити. При перевозке рельсов с болтовыми отверстиями торцовую обвязку закрепляют дополнительно в двух местах к отверстиям рельсов проволокой диаметром 6 мм в четыре нити. При обрыве торцовой обвязки в пути следования каждые два звена соединяют между собой проволокой диаметром 6 мм в восемь нитей.

После окончания погрузки и крепления рельсов поднимают торцовые борта с наружных сторон сцепа и секции продольных бортов, расположенные над тележками, и закрепляют их у платформ с металлическими бортами клиновыми запорами, а у платформ с деревянными бортами - закидками. Открытые секции продольных бортов в средней части каждой платформы сцепа должны быть закреплены за кольца на продольных балках, а при отсутствии колец увязаны средствами грузоотправителя проволокой диаметром не менее 4 мм. При этом обе секции продольного борта связывают за увязочные крюки бортовых петель и секции продольного борта одной и другой сторон закрепляют между собой проволокой, которую для этого пропускают под платформой ниже уровня боковых и хребтовых балок. В случаях, не предусмотренных настоящим параграфом, действуют положения главы 1 ТУ.

Рис. 10.4:

а - Р65 на сцепе из платформ грузоподъемностью 63 и 66 т (74 шт.); б - Р65 на сцепе из платформ грузоподъемностью 62 т (73 шт.); в - Р75 на сцепе из платформ грузоподъемностью 63 и 66 т (64 шт.); г - Р75 на сцепе из платформ грузоподъемностью 62 т (63 шт.); 1 - поперечная проволочная обвязка; 2 - прокладки; 3 - торцовая обвязка; 4 - упор; 5 - подкладки; 6 - фиксатор; 7 - скобы из швеллера; 8 - боковые скобы верхней рамы турникета

Железобетонные балки пролетных строений автодорожных мостов длиной 24 м

§ 5. Железобетонные балки пролетных строений автодорожных мостов грузят на сцеп из двух четырехосных платформ грузоподъемностью 62 и 63, 66 т на тележках ЦНИИ-Х3 с использованием турникетов типа ЦНИИ МПС, рабочий проект № 1797 СКБ Главмостостроя Минтрансстроя (см. табл. 10.1) со специальными металлическими приспособлениями, рабочий проект № 1898 ПКБ ЦНИИС Минтрансстроя (адрес ПКБ: 129329, г. Москва, Игарский проезд, 2).

Таблица 10.2

Ряд укладки

Число рельсов в ряду на сцепе из платформ грузоподъемностью, т, постройки

до 1964 г.

с 1964 г.

до 1964 г.

с 1964 г.

до 1964 г.

с 1964 г.

 

Р50

Р65

Р75

1-й

17/15*

17/15

15/14

15/14

15/14

15/14

2-й

13/12

14/13

14/13

14/13

13/11

13/12

3-й

12/11

12/11

10/7

10/8

10/-

10/-

4-й

11/-

11/-

-

-

-

 

* Числитель - рельсы расположены головками вверх, знаменатель - головками вниз.

§ 6. Для транспортировки балок на сцепе из двух четырехосных платформ применяют два одинаковых турникета со специальными приспособлениями для крепления груза. К. верхним рамам турникетов для обеспечения поперечной устойчивости балок прикреплены кронштейны 2 и подкосы 3, 4, а также подставка 9 для размещения одной балки на более высоком уровне (рис. 10.6).

Рис. 10.5:

1 - скоба левая; 2 - деревянные бруски; 3 - четвертое звено торцовой обвязки; 4 - проволочное соединение брусков со стержнем торцовой обвязки; 5 - верхний ряд рельсов; 6 - второй сдвоенный ряд рельсов; 7 - третье звено торцовой обвязки; 8 - первый сдвоенный ряд рельсов; 9 - второе звено торцовой обвязки; 10 - первое звено торцовой обвязки; 11 - скоба правая; 12 - валик; 13, 14 - четвертое и пятое звенья торцовой обвязки; 15 - шплинт или проволока диаметром 6 мм

Рис. 10.6:

1 - упор; 2 - кронштейн; 3, 4 - подкосы в рабочем и нерабочем положениях; 5, 6 - нижнее и верхнее отверстия для болта; 7 - деревянный вкладыш; 8 - увязка балок; 9 - подставка; 10 - верхняя рама турникета

Грузоотправитель обязан проверить соответствие турникетов проекту № 1797 и приспособлений - проекту № 1898. При установке турникетов на платформы (рис. 10.7) необходимо, чтобы продольные упоры нижних рам вошли в третьи пары стоечных скоб (от торцов сцепа) и прилегали к их стенкам, обращенным к середине сцепа, а поперечные упоры находились с внешней стороны армирующих уголков пола платформы.

§ 7. Железобетонные балки автодорожных мостов, перевозимые согласно настоящим Техническим условиям, могут быть двух типов: крайними, имеющими выпуск арматуры с одной стороны верхней части балки, и промежуточными с выпусками арматуры с двух сторон (см. рис. 10.6). Длина балки должна быть 24 м, высота 1200 мм, ширина нижнего пояса 620 мм, ширина верхней части с выпусками арматуры 1928 мм, а по бетону у крайних балок 1740 мм, промежуточных 1400 мм. Допускаются отклонения длины и ширины балок до 5 мм.

Рис. 10.7:

1 - продольные упоры; 2 - поперечные упоры; 3 - фиксатор; 4 - блок-пригруз; 5 - балка; 6 - растяжка с натяжным устройством; 7, 8 - поперечное и продольное крепления; 9 - проволочные растяжки

Вес промежуточной балки 33 - 34 т, крайней - 36 - 37 т.

§ 8. На сцеп грузят две промежуточные или одну промежуточную и одну крайнюю балки (см. рис. 10.6). Последняя должна размещаться только на подставке. Каждую балку устанавливают обязательно на среднюю и две крайние деревянные подкладки (рис. 10.8) высотой 80 - 100 мм, уложенные в гнезда верхней рамы.

§ 9. Балки на сцепе от поперечных перемещений закрепляют с помощью упоров с винтовой резьбой (см. рис. 10.6). Упоры закреплены на кронштейнах и треногих подкосах.

От продольных перемещений каждую балку с обоих торцов крепят к верхней раме турникета с помощью приспособления, состоящего из двух растяжек с винтовым натяжным устройством - (рис. 10.9), уголка и подвески с запорным устройством (рис. 10.10), а также растяжки с болтами.

Для предупреждения самораскручивания все резьбовые соединения должны иметь контргайки или шплинты.

§ 10. Порядок погрузки балок следующий. При отведенных в стороны подкосах (см. рис. 10.6) балку опускают на турникет и устанавливают между основаниями кронштейна и подкоса.

Установив балку и не снимая стропов, ее закрепляют: треногий подкос переводят в рабочее положение. При этом болт подкоса переставляют из нижнего в верхнее отверстие, завинчивают гайку, шплинтуют и с помощью стопорных винтов прижимают упоры вплотную к обеим сторонам стенки балки.

Аналогично устанавливают на подставку турникета вторую балку и закрепляют стопорными винтами.

Балки закрепляют деревянными вкладышами, укладываемыми в распор между балками и основаниями кронштейна и подкоса, растяжками и торцовыми приспособлениями. Каждый вкладыш закрепляют четырьмя гвоздями через отверстия в ребре основания подкоса.

Рис. 10.8:

1 - подставка; 2 - средние подкладки; 3 - крайние подкладки; 4 - продольная ось платформ

Рис. 10.9:

1 - растяжка торцовая; 2 - натяжное устройство; 3 - уголок; 4 - подвеска; 5 - запорное устройство подвески; 6 - растяжка с болтом; 7 - увязка балок; 8 - монтажная петля

При установке торцового приспособления под нижнюю грань торцовой части балки подводят уголок (см. рис. 10.9) и закрепляют его с помощью подвески, которую накидывают на балку и фиксируют запорным устройством (см. рис. 10.10). Затем натягивают растяжки.

Рис. 10.10:

1 - клин в рабочем положении; 2 - клин в нерабочем положении; 3 - валик; 4 - прижимные планки; 5 - накидные уголки в рабочем положении

Рис. 10.11:

1 - поперечный упорный брусок; 2 - штырь; 3 - растяжка; 4 - стойка; 5 - распорный брусок; 6 - скоба

Погруженные и закрепленные балки увязывают между собой за монтажные петли (см. рис. 10.6 и 10.9) растяжками из проволоки диаметром 6 мм в шесть нитей.

§ 11. Для равномерной загрузки платформ над их тележками, обращенными к середине сцепа, симметрично относительно продольной оси платформ укладывают железобетонные блоки-пригрузы (см. рис. 10.7 и 10.11) весом 8 т. От продольного смещения блоки-пригрузы закрепляют металлическими упорными и распорными брусками, а также проволочными растяжками.

Упорные бруски изготовляют в виде коробки из швеллера № 22 и стальной полосы шириной 210 мм, толщиной 8 мм, а распорные бруски - из швеллера № 14; к упорным брускам прикрепляют электросваркой штыри, которые входят в две боковые и две торцовые скобы платформы. Каждый блок закрепляют четырьмя растяжками из проволоки диаметром 6 мм в восемь нитей, увязываемых за монтажные петли блоков и стоечные скобы платформ или кронштейнов. Поперечное ограждение блоков осуществляется металлическими стойками, установленными в боковые стоечные скобы платформ.

Металлические балки мостовых кранов длиной до 44 м

§ 12. Главные балки мостовых кранов размещают на сцепах из четырехосных платформ с базой 9720 мм грузоподъемностью 62, 63 и 66 т на тележках ЦНИИ-Х3 с использованием турникета типа ЦНИИ МПС (см. рис. 10.1), рабочий проект № 1797 СКВ Главмостостроя Минтрансстроя (см. табл. 10.1).

§ 13. Для транспортировки балок на сцепе платформ применяют два одинаковых турникета. Грузоотправитель обязан проверить соответствие конструкции турникетов проекту № 1797, а также соблюдать правила эксплуатации, записанные в документации проекта.

§ 14. Для крепления балок к турникету верхние рамы турникета оборудуют опорными листами размерами 440×1050 мм, толщиной 12 мм (рис. 10.12).

Каждый опорный лист имеет 18 отверстий диаметром 31 мм, расположенных в два ряда. Расстояние от боковой кромки листа до отверстия 50 - 60 мм, а между отверстиями 120 мм.

Опорные листы приваривают к верхней раме турникета по всему контуру прилегания сварными швами с катетом 8 мм. Между опорными листами и верхней рамой турникета устанавливают ребра жесткости толщиной 12 мм, которые приваривают к опорному листу и к листу верхней рамы турникета.

§ 15. Для перевозки балок мостовых кранов турникет на грузонесущей платформе сцепа устанавливается так, чтобы его продольные упоры входили в отверстия одной из пар стоечных скоб, расположенных в середине платформы (рис. 10.13, а, б и 10.14, а, б). В этом случае турникет будет смещен от поперечной оси платформы внутрь или наружу сцепа на 540 или 1080 мм, а база сцепа соответственно может составлять:

для двух платформ при смещении центра тяжести турникета на 540 мм внутрь сцепа 13,54 м, при смещении наружу сцепа 15,7 м;

для трех платформ при смещении центра тяжести турникета на 1080 мм внутрь сцепа 27,08 м, при смещении на 540 мм наружу сцепа 30,32 м.

Рис. 10.12:

1 - опорные листы; 2 - ребра жесткости; 3 - отверстия для болтов

§ 16. Балки мостовых кранов, перевозимые согласно настоящим Техническим условиям, могут иметь вес от 20 до 51 т, длину от 22 до 44 м, имеют коробчатое прямоугольное сечение. На них может быть смонтировано вспомогательное оборудование (редукторы, настилы и др.).

Рис. 10.13:

а - размещение балок на сцепах с базой 13,54 м; б - то же с базой 15,7 м

Рис. 10.14:

а - размещение балок на сцепах с базой 27,08 м; б - то же с базой 30,32 м

В целях лучшего использования грузоподъемности подвижного состава балки длиной 16,0 - 28,0 м перевозят на сцепе из двух платформ с базой 13,54 м; длиной 28,1 - 29,92 м - на сцепе из трех платформ с базой 15,7 м; длиной 30,0 - 42,64 м - на сцепе из трех платформ с базой 27,08 м; длиной 42,7 - 44,0 м - на сцепе из четырех платформ с базой 30,32 м. Продольное смещение центра тяжести балок в сторону платформ прикрытия составляет 0,95 м для балок длиной 28,1 - 29,92 м и 0,68 м для балок длиной 42,7 - 44 м (см. рис. 10.13, а и 10.14, а). Торцовый контур балок не должен выходить за пределы концевой балки крайних платформ сцепа, за исключением платформ прикрытия (см. рис. 10.13, а и 10.14, а).

Поперечное смещение центра тяжести балок от вертикальной плоскости, проходящей через продольную ось сцепа, допускается не более 50 мм. При этом расстояния боковых точек груза от оси пути не должны быть больше указанных в табл. 10.3.

Минимальная опорная ширина балок составляет не менее 1,75 высоты центра тяжести груза над уровнем верхней рамы турникета.

Таблица 10.3

Длина груза, м

Максимальное расстояние от оси пути до боковых точек груза при расположении на высоте, мм, от головки рельсов

до 3900

4000

4100

4200

4300

4400

4500

4600

4700

4800

4900

5000

5100

5200

Для сцепов с базой 13,54 м

16,0 - 23,6

1590

1513

1436

1357

1281

1203

1127

1049

972

895

818

740

662

585

23,7 - 25,0

1556

1479

1402

1323

1247

1169

1093

1015

938

861

784

706

628

551

25,1 - 26,5

1521

1444

1367

1288

1212

1134

1058

980

903

826

749

671

593

516

26,6 - 28,0

1481

1404

1327

1248

1172

1094

1018

940

863

786

709

631

553

476

Для сцепов с базой 15,7 м

28,1 - 29,0

1451

1374

1297

1218

1142

1064

988

910

833

756

679

601

523

446

29,1 - 29,92

1424

1347

1270

1191

1115

1037

961

883

806

729

652

574

496

419

Для сцепов с базой 27,08 м

30,0 - 40,7

1401

1324

1247

1168

1092

1014

938

860

783

706

629

551

473

396

40,8 - 41,7

1362

1285

1208

1129

1053

975

899

821

744

667

590

512

434

357

41,8 - 42,64

1339

1263

1185

1106

1030

952

876

798

721

644

567

489

411

334

Для сцепов с базой 30,32 м

42,7 - 44,0

1321

1244

1167

1088

1012

934

858

780

703

626

549

471

393

316

Рис. 10.15:

1 - накладные листы; 2 - болты с гайками и контргайками

Рис. 10.16:

1 - балка; 2 - опорные листы; 3 - накладной лист; 4 - болты М30 с гайками и контргайками; 5 - сварной шов

Платформы прикрытия с внешних сторон сцепов загружаются попутным грузом, размещение и крепление которого выполняются в соответствии с требованиями Технических условий погрузки и крепления грузов.

§ 17. На сцепах с базой 13,54 и 27,08 м все торцовые и продольные борта платформ сцепа должны быть открыты.

На сцепах с базой 15,7 и 30,32 м также открываются торцовые и продольные борта платформ сцепа, а также торцовый и примыкающие к нему два продольных борта платформы прикрытия со стороны свесов груза.

Открытые секции боковых бортов закрепляются за кольца на продольных балках платформ, а при отсутствии колец увязываются средствами грузоотправителя проволокой диаметром 6 мм в соответствии с требованиями § 5 главы 1 ТУ.

§ 18. При установке турникета на платформу необходимо, чтобы продольные упоры 8 (см. рис. 10.1) турникета вошли в стоечные скобы платформы и плотно, без зазоров, прилегали к их внутренним поверхностям с наружной стороны сцепа, а поперечные упоры 4 находились с внешней стороны армирующих уголков платформы.

§ 19. Перед размещением балок на опорные листы верхней рамы турникета укладывают металлические накладные листы (рис. 10.15) размерами 440×(400 ÷ 450) мм и толщиной 16 мм, имеющие по четыре отверстия диаметром 31 мм. Каждый накладной лист закрепляют к опорному листу четырьмя болтами М30 с гайками и контргайками, которые должны быть туго затянуты. Резьба болтов должна выходить за плоскость гаек на три-шесть витков. Контргайки от самораскручивания приваривают к болтам.

Крепление балок к накладным листам осуществляется сварными соединениями. Для этого в местах контактирования боковых кромок балок и накладных листов с наружной стороны сцепа наносят сварочные швы длиной не менее 260 мм с катетом 8 мм (рис. 10.16).

§ 20. При разгрузке сцепа для снятия балок болты, скрепляющие опорные и накладные листы, срезаются и балки снимаются вместе с накладными листами.

Железобетонные стропильные фермы длиной 24 и 18 м

§ 21. Железобетонные стропильные фермы длиной 24 м, высотой 3300 мм, весом 10,5 - 18,2 т и длиной 18 м, высотой 3000 мм, весом 7,7 - 11,7 т, шириной верхнего и нижнего поясов 240 и 280 мм размещают и закрепляют на сцепе из двух платформ с базой 9720 мм на тележках ЦНИИ-Х3 с использованием турникетов типа ЦНИИ МПС, проект № 1797 СКБ Главмостостроя и специальных приспособлений ЦНИИС и СКБ Главстройпрома Минтрансстроя, проекты № 1516 для ферм длиной 24 м и № 1548 для ферм длиной 18 м (адрес СКБ: 119034, г. Москва, Всеволжский переулок, 2). Турникеты устанавливаются так, чтобы продольные упоры 8 нижних рам вошли в пятые пары стоечных скоб (рис. 10.17), считая от середины сцепа, при погрузке ферм длиной 24 м, и в четвертые пары стоечных скоб (рис. 10.18) при погрузке ферм длиной 18 м, а поперечные упоры 4 охватывали с внешней стороны пол платформы. При этом торцовые борта в середине сцепа и средние секции боковых бортов платформ должны быть открыты и закреплены в установленном порядке.

Рис. 10.17:

1 - турникет; 2 - стойка; 3 - хомут; 4 - упорный винт; 5 - стяжной болт; 6 - прокладка; 7 - ригель; 8 - стержневая растяжка; 9 - стяжная муфта; 10 - блоки пригруза; 11 - проволочная растяжка; 12 - распорный брус

Рис. 10.18:

1 - турникет; 2 - стойка; 3 - хомут; 4 - упорный винт; 5 - стяжной болт; 6 - прокладка; 7 - ригель; 8 - стержневая растяжка; 9 - стяжная муфта

§ 22. На сцепах из двух платформ грузят один пакет ферм, которые устанавливают обязательно на подкладки (рис. 10.19) высотой 60 - 80 мм, уложенные в соответствующие гнезда верхней рамы турникета. Число ферм в пакете определяется шириной поясов: при ширине пояса 240 мм в пакет устанавливают семь ферм длиной 18 м и пять длиной 24 м, при ширине пояса 280 мм - шесть ферм длиной 18 м четыре длиной 24 м (см. рис. 10.17 и 10.18).

§ 23. При перевозке ферм длиной 24 м для равномерной загрузки платформ над их тележками, обращенными к середине сцепа, симметрично продольной оси платформы укладывают блоки-пригрузы 10 (см. рис. 10.17).

§ 24. Фермы грузят следующим порядком. На средней подкладке (см. рис. 10.18) выполняют разметку мест установки ферм и зависимости от их числа в пакете и ширины нижнего пояса. В соответствии с местоположением крайней фермы устанавливают верхний и нижний винты упоров 11 (см. рис. 10.17 и 10.18). Первую (крайнюю) ферму пакета после установки ее на подкладки, не снимая стропов, временно закрепляют к стойкам 10 обоих турникетов с помощью инвентарных цепных или проволочных стяжек. Каждую последующую устанавливаемую ферму так же временно закрепляют к ранее установленной ферме или непосредственно к стойке. Между нижними поясами ферм над средними подкладками устанавливают вертикальные деревянные прокладки 6 сечением 30×60×120 мм, длиной 360 - 400 мм (см. рис. 10.17 и 10.18).

§ 25. Для обеспечения устойчивости ферм их соединяют в пакет с помощью четырех (трех) хомутов 3 (см. рис. 10.17 и 10.18) и прокладок сечением 30×60×120 мм, длиной 400 - 450 мм, при этом верхний болт 1 хомута должен проходить через прокладки 2 (рис. 10.20 и 10.21), для чего в последних заранее сверлят соответствующие отверстия. После соединения пакета его закрепляют от опрокидывания и смещения в поперечном направлении путем прижатия нижних и верхних упорных винтов 4 стоек 2 и установки двух стяжных болтов 5 и прокладок 6 сверху пакета ферм (см. рис. 10.17 и 10.18). Стяжные болты 5 так же, как и верхние болты (шпильки) хомутов, должны проходить через прокладки (см. рис. 10.20 и 10.21). При этом болты (шпильки) должны закрепляться гайками и контргайками 4 со шплинтами 5. В продольном направлении пакет ферм прикрепляют к верхним рамам турникетов с помощью четырех ригелей 7 и четырех пар стержневых растяжек 8 (см. рис. 10.17 и 10.18). Длина растяжек регулируется стяжными муфтами 9.

Рис. 10.19:

1 - средняя подкладка; 2 - крайняя подкладка

Рис. 10.20:

а - соединение ферм длиной 24 м в пакеты с поясами шириной 240 мм; б - то же с поясами шириной 280 мм; 1 - стяжной болт (шпилька); 2 - прокладка; 3 - накладка (уголок); 4 - контргайка; 5 - шплинт

Рис. 10.21:

а - соединение ферм длиной 18 м в пакеты с поясами шириной 240 мм; б - то же с поясами шириной 280 мм; 1 - стяжной болт (шпилька); 2 - прокладка; 3 - накладка (уголок); 4 - контргайка; 5 - шплинт

Рис. 10.22:

1 - турникет; 2 - стойка; 3 - стержневая растяжка; 4 - блок пригруза; 5 - проволочная растяжка; 6 - распорный брус; 7 - проволочная растяжка; 8 - распорный брус

§ 26. Пригрузы 10 выполняют в виде двух железобетонных блоков размерами 400×450×3700 мм (общий вес 3,3 т). На каждую платформу сцепа устанавливают два блока вплотную к крайним секциям боковых бортов (см. рис. 10.17) и закрепляют их двумя парами растяжек 11 в четыре нити проволоки диаметром 6 мм. Между блоками-пригрузами устанавливают по месту деревянные распорные бруски 12 сечением 50×100 мм, которые прикрепляют к полу платформы пятью гвоздями длиной 150 мм.

§ 27. Грузоотправитель несет ответственность за прочность элементов крепления груза и за соблюдение настоящих Технических условий.

§ 28. Выгрузку ферм производят в порядке, обратном погрузке. Порядок возврата турникетных устройств устанавливается Техническими условиями, разработанными грузоотправителем и утвержденными отделением дороги по месту отгрузки груза, которые должны быть приложены к перевозочным документам при отправлении ферм.

В Технических условиях на возврат турникетных устройств должно быть предусмотрено максимальное использование грузоподъемности (вместимости) вагона.

При использовании арендованных платформ и применении пригруза в случае перевозки ферм длиной 24 м возврат турникетных устройств производят без их демонтажа на том же сцепе платформ (рис. 10.22), при этом верхнюю раму турникета прикрепляют к нижней раме или платформе с помощью двух пар растяжек 7 в четыре нити проволоки диаметром 6 мм, а ригели и стержневые растяжки 3 закрепляют деревянными брусками 6, прибитыми к полу платформ 10-ю гвоздями длиной 125 - 150 мм.

§ 29. Надзор, техническое обслуживание и ремонт турникетных устройств выполняет грузоотправитель согласно своей нормативно-технической документации.

Размещение и крепление длинномерных грузов с применением турникетов типа Минэнерго СССР

§ 30. Турникет типа Минэнерго СССР (рабочий проект № 101.01) с литерой О2 - опытного производственно-технического предприятия «Энерготехпром», адрес предприятия: 127577, г. Москва, Высоковольтный проезд, 1. Литеру О2 наносят несмываемой краской на продольной балке турникета.

§ 31. Турникет типа Минэнерго СССР (рис. 10.23) состоит из трех рам: верхней 1, промежуточной 2 и нижней 3. Крепление турникета осуществляется продольными винтовыми 4 и поперечными упорами 5. Продольные балки нижней рамы имеют криволинейные направляющие 6. Промежуточная рама опирается на эти направляющие четырьмя цапфами 7 с ползунами 8.

Во время соударений вагонов промежуточная рама с верхней рамой и грузом перемещается относительно нижней рамы. При этом цапфы с ползунами скользят по криволинейным направляющим. Верхняя рама зафиксирована на промежуточной раме двумя дугообразными и боковыми элементами.

При проходе кривых участков пути верхняя рама поворачивается относительно промежуточной рамы.

Железобетонные стойки опор ВЛ

§ 32. Железобетонные стойки длиной 22,2 - 26,4 м (табл. 10.4) размещают на сцепах платформ, построенных после второго полугодия 1964 г. и оборудованных тележками ЦНИИ-Х3 на роликовых подшипниках.

§ 33. Для размещения и крепления железобетонных стоек в зависимости от их типоразмеров применяют четыре или пять пар бандажей (рис. 10.24). Каждый бандаж 1 имеет желоб 2 с резиновыми прокладками 3 и обвязки 4 из цепи с болтом 5 для их натягивания. Цепи одним концом приварены к бандажам. Установка бандажей друг на друге обеспечивается с помощью зубьев 6, которые входят в пазы 7 верхнего бандажа.

Рис. 10.23:

1, 2, 3 - соответственно верхняя, промежуточная и нижняя рамы; 4 - винтовой продольный упор; 5 - поперечный упор; 6 - криволинейная направляющая; 7 - цапфа; 8 - ползун; 9 - дугообразный ограничитель; 10 - боковой элемент; 11 - проволочная скрутка

Нижние бандажи в нижней части оснащены двумя дугообразными ограничителями 9, которые входят в сопряжение с боковыми элементами 10 промежуточной рамы (см. рис. 10.23) и являются одновременно верхней рамой турникета.

Таблица 10.4

Вид стойки

Длина, м

Наружный диаметр нижней части, мм

Наружный диаметр верхней части, мм

Вес одной стойки, т

Цилиндрическая

26,4

560

560

6,83

22,2

560

560

6,75

Коническая

26,0

650

410

7,18

22,6

560

334

5,06

Верхние бандажи 8 шарнирно соединены (сечение В-В на рис. 10.24) с цепной растяжкой 9, которая нижним концом укреплена к натяжному узлу 10 кулисы 11. Кулиса имеет шарнирное соединение (сечение Б-Б на рис. 10.24) с нижним бандажом, а средней частью опирается на поперечные балки нижней рамы.

Турникеты, бандажи и другие элементы крепления для каждого типа стоек изготовляются по рабочим проектам предприятия «Энерготехпром» (табл. 10.5).

§ 34. Для транспортировки стоек применяются два одинаковых турникета с комплектами крепления, на которых должны быть нанесены инвентарный номер и дата очередного освидетельствования.

Рис. 10.24:

1 - бандаж; 2 - желоб; 3 - резиновая прокладка; 4 - обвязка; 5 - натяжной болт; 6 - зуб; 7 - паз; 8 - верхний бандаж; 9 - растяжка; 10 - натяжной узел; 11 - кулиса; 12 - проволочная скрутка

§ 35. Каждый турникет размещают симметрично продольной и поперечной осям платформы. При установке турникета на платформу необходимо, чтобы поперечные упоры 5 (см. рис. 10.23) турникета находились с внешней стороны армирующих уголков платформы.

Винтовые упоры 4 с упорными шайбами на конце должны быть завинчены до плотного соединения со стоечными скобами платформы и застопорены от раскручивания проволокой 11, пропущенной через отверстия в винте и кронштейне винтового упора. Упорные шайбы винтов должны размещаться между бортиками поверхностей скоб.

§ 36. Цилиндрические и конические стойки длиной 26,4; 22,2 и 26 м размещают на бандажах симметрично вертикальной плоскости, проходящей через поперечную и продольную оси сцепа.

Штабель конических стоек длиной 22,6 м должен быть смещен в одну сторону относительно оси сцепа.

Таблица 10.5

Вид стойки

Длина, м

Комплект крепления

Общее число стоек на сцепе, шт.

Число стоек в ярусе, шт.

Обозначение

Общий вес с турникетами, кг

1-м (нижнем)

2-м

3-м

4-м

5-м

Цилиндрическая

26,4

101.04

10,7

16

4

4

4

4

-

22,2

101.03

10,7

18

4

5

4

4

2

Коническая

26,0

101.02

10,8

16

4

4

4

4

-

22,0

101.06

13,3

23

5

5

5

5

3

Рис. 10.25:

1 - турникет; 2 - бандаж; 3 - обвязка; 4 - растяжка

Рис. 10.26:

1 - турникет; 2 - бандаж; 3 - обвязка; 4 - растяжка

§ 37. Цилиндрические стойки длиной 26,4 м и конические длиной 26 м размещают и закрепляют (рис. 10.25 и 10.26) с применением комплектов крепления соответственно № 101.04 и 101.02 (см. табл. 10.4). На сцепе размещают 16 стоек (в каждом ярусе по 4 шт.). Стойки укладывают на бандажи в желоба с резиновыми прокладками. При этом конические стойки размещают утолщенными частями в первом и третьем ярусах в одну, а во втором и четвертом - в противоположную, торцовую сторону сцепа.

Цепными обвязками закрепляют над одним турникетом стойки первого, третьего и четвертого, а над другим - второго и четвертого ярусов.

§ 38. Цилиндрические стойки длиной 22,2 м размещают на сцепе платформ с использованием комплекта крепления № 101.03 в пять ярусов по высоте в количестве 13 шт.: в первых четырех ярусах - по четыре стойки, в пятом - две. Цепными обвязками закрепляют над одним турникетом стойки первого, третьего и совместно четвертого, а над другим - второго и совместно четвертого и пятого ярусов (рис. 10.27).

§ 39. Конические стойки длиной 22,6 м с использованием комплекта крепления № 101.06 размещают на сцепе платформ в пять ярусов по высоте: в первых четырех ярусах - по пять стоек, в верхнем - три. В каждом ярусе стойки укладывают утолщенными частями в одну и другую сторону сцепа (рис. 10.28). Цепными обвязками закрепляют над одним турникетом стойки первого, третьего и пятого ярусов, а над другим турникетом - стойки второго, четвертого и пятого ярусов.

§ 40. Закрепляют стойки цепными обвязками 4 (см. рис. 10.24) следующим образом: две цепи каждой обвязки соединяют между собой, после чего вращением болта 5 натягивают обвязки и прижимают стойки к резиновым прокладкам желоба. Болт должен быть завернут до натяжения обвязки и застопорен проволокой, пропущенной через отверстия в головке болта и щеки натяжного устройства.

Рис. 10.27:

1 - турникет; 2 - бандаж; 3 - обвязка; 4 - растяжка

Рис. 10.28:

1 - турникет; 2 - бандаж; 3 - обвязка; 4 - растяжка

§ 41. На каждом сцепе платформ после окончания погрузки верхние бандажи 8 закрепляют к кулисам 11 четырьмя цепными растяжками с винтовыми натяжными узлами 10, которые после натяжения цепных растяжек стопорятся проволокой 12, продеваемой через отверстия в гайке и цепи.

§ 42. Все проволочные скрутки выполняют из проволоки диаметром 4 мм в две нити.

Во всех шарнирных соединениях и болтовых прижимах проверяют наличие шплинтов и проволочных скруток.

§ 43. После окончания погрузки и крепления стоек внешние торцовые борта сцепа должны быть подняты и закреплены клиновыми запорами. Открытые секции продольных бортов каждой платформы сцепа должны быть закреплены средствами грузоотправителя в соответствии с § 5 главы 1 ТУ.

§ 44. Порядок возврата турникетных устройств установлен Техническими условиями, разработанными отправителем и утвержденными отделением дороги по месту отгрузки груза, которые должны быть приложены к перевозочным документам при отправлении стоек.

В Технических условиях на возврат турникетных устройств должно быть предусмотрено максимальное использование грузоподъемности (вместимости) вагона.

Железобетонные балки ЗБДР-18

§ 45. Железобетонные балки ЗБДР-18 длиной 18 м и весом 12,1 т (рис. 10.29) размещают на сцепе платформ с тележками ЦНИИ-Х3 постройки с 1964 г. и закрепляют с использованием турникетов типа Минэнерго СССР (проект № 101.01 с литерой О2) (см. рис. 10.23) симметрично продольной и поперечной осям сцепа (рис. 10.30). При установке турникетов на платформу необходимо, чтобы поперечные упоры 5 турникета находились с внешней стороны армирующих уголков платформы.

Рис. 10.29

Рис. 10.30:

1 - турникет типа Минэнерго СССР; 2 - комплект крепления № 101.11; 3 - пакет из 10 кровельных балок типа ЗБДР-18

Винтовые упоры 4 с упорными шайбами на конце должны быть завинчены до полного соединения со стоечными скобами платформ и застопорены от раскручивания проволокой 11, пропущенной через отверстия в винте и кронштейне винтового упора. Упорные шайбы винтов должны размещаться между бортиками поверхностей скоб.

Рис. 10.31:

1 - турникет; 2 - балка ЗБДР-18; 3 - прижим; 4 - болт неподвижный; 5 - наголовник; 6 - болт стяжной; 7 - гайка; 8 - тяга; 9 - прокладка резиновая; 10 - болт подвижной; 11 - проволока; 12 - шарнир; 13 - стойка; 14 - скоба

Рис. 10.32:

а - установка балки I; б - фиксация балок I и II

Балки фиксируются от смещений в продольном и поперечном направлениях двумя комплектами крепления № 101.11 (рис. 10.31). Комплект крепления № 101.11 состоит из скобы 14, соединенной с помощью четырех шарниров 12 из двух стоек 13 с двумя прижимами 3, оснащенными восемью регулируемыми болтами 10 и двумя нерегулируемыми болтами 4, которые через резиновую прокладку 9 контактируют с верхними наклонными поверхностями кровельных балок. Пакет балок обжат в горизонтальном направлении болтами 6, а в вертикальном направлении - болтами 10 и гайками 7 через наголовник 5.

Кровельные балки загружают на сцеп в последовательности, обозначенной на рис. 10.31 римскими цифрами, при условии откинутых стоек 13, с прижимами 3 и обязательной фиксацией тяг 8 в вертикальном положении.

Балка № 1 устанавливается вплотную к тягам 8 и крепится к головкам тяг 5, как указано на рис. 10.32, а.

Балка № 2 крепится к балке № 1 двумя накидными хомутами (рис. 10.32, б). Последующие балки крепятся к ранее установленным так же, как балка № 2. Выгрузка производится в обратной последовательности с обязательной постановкой хомутов (см. рис. 10.32, б) и фиксаторов (см. рис. 10.32, а).

Все шарнирные и резьбовые соединения должны быть зашплинтованы или иметь проволочные скрутки.

Все проволочные скрутки выполняют из отожженной проволоки диаметром 4 мм в две нити.

В п. 4 накладной грузоотправитель производит запись «Очередное техническое освидетельствование и осмотр турникетов произведены, размещение и крепление груза соответствуют техническим условиям».

§ 46. После окончания погрузки и крепления стоек внешние торцовые и примыкающие к ним продольные секции бортов (см. рис. 10.30) платформы должны быть подняты и закреплены клиновыми запорами. Открытые секции продольных бортов каждой платформы сцепа должны быть закреплены средствами грузоотправителя в соответствии с § 5 главы 1 ТУ.

§ 47. Возврат турникетных устройств производится грузополучателем по Техническим условиям, утвержденным отделением дороги грузоотправителя, которые должны быть приложены к перевозочным документам при отправлении балок.

В Технических условиях на возврат турникетных устройств должно быть предусмотрено максимальное использование вместимости или грузоподъемности вагона.

РАЗДЕЛ II

ТЕХНИЧЕСКИЕ УСЛОВИЯ РАЗМЕЩЕНИЯ В ПОДВИЖНОМ СОСТАВЕ ГРУЗОВ МЕЛКИХ ФРАКЦИЙ, ПЕРЕВОЗИМЫХ БЕЗ ТАРЫ

Общие положения

§ 1. К перевозке на открытом подвижном составе допускаются грузы мелких фракций, предусмотренные Правилами перевозок грузов на открытом подвижном составе, с обязательным применением мер, исключающих потери этих грузов от выдувания воздушным потоком и просыпания через конструктивные зазоры, щели и неплотности кузова вагона при транспортировке.

§ 2. Перед погрузкой грузов, содержащих мелкие фракции, отправитель обязан убедиться в том, что перевозка предъявляемого груза в данном виде подвижного состава не вызовет его потерь, загрязнения им железнодорожного пути и окружающей среды. Для этого грузоотправитель обязан принять дополнительные меры по уплотнению зазоров кузова вагона.

Разравнивание и уплотнение грузов мелких фракций

§ 3. Независимо от рода груза, содержащего мелкие фракции, поверхность его после погрузки на открытый подвижной состав должна быть разровнена, а при необходимости и уплотнена.

§ 4. В зависимости от гранулометрического состава и плотности сыпучего груза мелких фракций могут применяться следующие устройства для разравнивания и уплотнения его поверхности:

скребковые разравниватели и направляющие рассекатели потока под выпускным отверстием бункера при объемном весе груза более 1000 кг/м3 (концентраты руд черных и цветных металлов и др.);

установки конструкции НИИЖТа статического действия для разравнивания и уплотнения сыпучего груза с объемным весом 800 - 1000 кг/м3 в полувагоне (приложение 1);

установки конструкции НИИЖТа вибростатического действия для разравнивания и уплотнения сыпучего груза с объемным весом менее 800 кг/м3 (приложение 1);

накладные вибраторы для мелкокусковых легковесных грузов (кокс, торфяные и буроугольные брикеты и др.).

Для разравнивания и уплотнения поверхности грузов мелких фракций могут применяться также установки других конструкций. Конструкции всех устройств и установок, взаимодействующих с вагонами, должны быть согласованы с Министерством путей сообщения в установленном порядке.

Защита сыпучих грузов от просыпания в зазоры кузова полувагона

§ 5. Перед погрузкой сыпучих грузов мелких фракций в полувагоны с нижними разгрузочными люками отправитель обязан принять меры по уплотнению имеющихся зазоров, в том числе и конструктивных, через которые возможно просыпание груза при перевозках. Технология уплотнения зазоров разрабатывается грузоотправителем по согласованию с железной дорогой.

§ 6. В качестве уплотнителей зазоров должны применяться материалы, не загрязняющие подвижной состав и перевозимый груз. Зазоры необходимо уплотнять и при перевозке сыпучих грузов в замкнутых кольцевых маршрутах, если конструкция кузова вагона не обеспечивает сохранность перевозимого груза.

§ 7. Зазоры в полах полувагонов можно уплотнять двумя способами:

по всей поверхности пола полувагона распределяется сыпучий груз слоем 20 - 30 мм, увлажняемый в процессе распределения концентратом сульфитно-спиртовой барды 20 %-ной концентрации;

пол вагона предварительно увлажняется связующими материалами (КБЖ). Расход связующего материала устанавливается грузоотправителем в зависимости от рода перевозимого груза и его гранулометрического состава.

Технология уплотнения зазоров в полах полувагонов приведена в приложении 2.

§ 8. Отправитель по согласованию с железной дорогой может разрабатывать и применять другие связующие материалы или способы для уплотнения зазоров кузовов вагонов, обеспечивающие сохранность перевозимого груза и подвижного состава.

Защита сыпучих грузов от выдувания при перевозке в полувагонах

§ 9. При погрузке грузов мелких фракций на открытый подвижной состав отправитель обязан принять меры, предотвращающие выдувание мелких частиц груза в процессе перевозки.

§ 10. В качестве связующих веществ отправитель должен применять пленкообразующие растворы, которые создают на поверхности сыпучего груза, погруженного на открытый подвижной состав, защитные пленки или обеспечивают сцепление мелких частиц груза, создавая защитный слой.

§ 11. Отправитель несет ответственность за нанесение прочного защитного покрытия, выдерживающего динамические и аэродинамические нагрузки, возникающие при движении поезда с максимально установленной скоростью. Защитные пленки необходимо наносить на предварительно разровненную и уплотненную поверхность. Они не должны загрязнять перевозимый груз, вызывать дополнительные затраты в пункте выгрузки.

§ 12. Установки для нанесения пленкообразующего раствора на поверхность сыпучего груза, погруженного в вагоны, должны входить в механизированный погрузочный комплекс, не нарушая принятой технологии выполнения работ и не увеличивая простой вагонов под грузовыми операциями.

Защитные покрытия отправитель выбирает в зависимости от близости сырьевых баз исходных продуктов, обеспечивающих ритмичную работу промышленных установок. По согласованию с железной дорогой он может разрабатывать и применять другие защитные средства.

Рекомендации для выбора состава защитного покрытия в зависимости от рода груза и технологии нанесения приведены в приложении 3. После нанесения связующего вещества отправитель обязан убедиться в качественном покрытии им поверхности груза, отсутствии остатков этого вещества на стенках кузова вагона, сцепных устройствах и тормозной магистрали.

ПРИЛОЖЕНИЕ 1

Установка статического действия (рис. 1 (II)) состоит из рабочего органа - катка-уплотнителя 9, изготовленного из листовой прокатной стали Ст3 толщиной 8 мм, четырех опор 7 из швеллеров, соединенных поверху балками 2 и 4 по типу порталов, механизма подъема тельфера 1 и системы дистанционного управления. Каток-уплотнитель крепится к раме подвески 6 из швеллеров. Механизм подъема связан с катком посредством троса и траверсы 3.

Вибрационный каток-уплотнитель (рис. 2 (II)) содержит наклонную плиту предварительного уплотнения 10 и каток-уплотнитель 5, который связан с вибровозбудителем 3 и электродвигателем 2 посредством оси 9 и балки 4. Каток и плита закреплены на раме подвески 1, которая соединена с балками 4.

Рис. 1 (II)

1 - тельфер; 2, 4 - соединительные балки; 3 - траверса; 5 - подшипники; 6 - рама подвески; 7 - опоры установки; 8 - запорные замки; 9 - каток-уплотнитель; 10 - полувагон

Рис. 2 (II):

1 - рама подвески; 2 - электродвигатель; 3 - вибровозбудитель; 4 - балки; 5 - каток-уплотнитель; 6 - блок подъема катка; 7 - поворотная обойма; 8 - поперечная балка; 9 - ось катка; 10 - плита предварительного уплотнения

Рис. 3. (II)

Рис. 4 (II):

1 - полувагон; 2 - насос; 3 - лебедки; 4 - форсунки; 5 - каток-уплотнитель

Рама имеет на конце поперечную балку 8, поворотную обойму 7 и блок подъема катка 6. Рама 1 закрепляется на портале, на котором имеется лебедка для подъема и опускания устройства. Трос лебедки взаимодействует с блоком 6. Вибровозбудитель 3 сообщает колебания плите 10 и катку 5. В зависимости от свойств груза можно изменять угол наклона плиты от 10 до 40°. Виброкаток крепится к опорам при помощи рамы 1 так, как указано на рис. 1 (II).

Техническая характеристика катков-уплотнителей приведена в табл. 1.

Оптимальные вес и диаметр катков-уплотнителей определяются из условий прохождения его по поверхности груза, не зарываясь и не создавая волнообразной поверхности уплотненного груза, и зависят от требуемой высоты уплотнения Dh и объемного веса груза согласно табл. 2.

Максимальная высота шапки груза Нmaх до уплотнения для конкретных условий определяется в зависимости от объемного веса груза и угла естественного откоса:

где В - внутренняя ширина полувагона, мм; a - угол естественного откоса груза, град; К - величина, на которую усеченная шапка груза меньше треугольной, расчетной (рис. 3 (II)). Она зависит от крупности, влажности, объемного веса груза и высоты падения его в вагон при погрузке (К = 50 ÷ 100 мм); п - величина, на которую основание шапки должно быть ниже верхней грани обвязочного бруса (50 мм).

Таблица 1

Наименование параметра

Каток-уплотнитель

Вибрационный каток-уплотнитель

Общая длина катка-уплотнителя, мм

2650

Длина цилиндрической части, мм

1590

Длина конусных концов, мм

530

Диаметр цилиндрической части, мм

800 - 1200

Угол конусных концов и образующей цилиндра, град

20 - 25

Вес катка-уплотнителя, кг

2500 - 4000

1500 - 2000

Вес пригруза, кг

-

500 - 2000

Угол наклона плиты предварительного уплотнения, град

-

10 - 40

Частота вынуждающей силы, Гц

-

24 - 25

Амплитуда вынуждающей силы не более, тс

-

3,5

Мощность электродвигателя, кВт

-

14 - 16

Оптимальная высота шапки после уплотнения 200 - 300 мм

Hoпт =Hmaх - Dh,

где Dh - величина, на которую изменяется высота шапки груза после уплотнения (см. табл. 2).

Уплотнение и разравнивание выполняются прокаткой рабочего органа (катка-уплотнителя или виброкатка) по поверхности груза. В результате формируется шапка обтекаемой формы и оптимальной высоты.

Операции выполняются в следующей последовательности.

Полувагон, загруженный сыпучим грузом выше уровня бортов, подается под установку (см. рис. 1 (II)) со скоростью 0,5 км/ч. С пульта управления включается тельфер 1 и поднимается каток 9 с защелок запорных замков 8. После этого он опускается на поверхность груза в полувагоне. При движении полувагона под установкой каток, свободно вращающийся в подшипниках 5, разравнивает и равномерно уплотняет поверхность груза, формируя уплотненную поверхность шапки. Высота шапки груза после уплотнения составляет 200 - 300 мм (см. рис. 3 (II)). По окончании работ каток поднимается и автоматически закрепляется в запорных замках 8.

Таблица 2

Диаметр катка, мм

Вес катка, кг

Объемный вес груза, кг/см3

Высота уплотнения, мм

1200

2400

750 - 760

500

2800

770

500

3000

780 - 790

500

3700

800

500

4000

810 - 820

450

1000

4000

830 - 840

450 - 350

3800

850

350

800

 

860 - 870

350 - 250

2700

880 - 900

250 - 100

ПРИЛОЖЕНИЕ 2

В дозатор, расположенный над полувагонами, подается сыпучий груз. В процессе движения полувагонов под дозатором происходит равномерное распределение сыпучего груза по всей поверхности пола вагона с одновременным смачиванием его связующим раствором из распылительных форсунок. Дозатор должен размещаться над погрузочными путями перед загрузочным бункером, что дает возможность уплотнять зазоры кузова вагона непосредственно перед погрузкой, совмещая операции. Этот же раствор и распылительные форсунки используются для покрытия поверхности сыпучего груза после погрузки его в полувагоны с целью предотвращения выдувания.

ПРИЛОЖЕНИЕ 3

Пленкообразующий состав наносится (рис. 4 (II)) при движении вагонов с грузом 1 под поливочным устройством с форсунками 4, которые могут крепиться на катке-уплотнителе 5 или иметь самостоятельную подвеску с использованием лебедки 3. Передвижение вагонов осуществляется маневровым устройством или локомотивом. Поверхность груза должна иметь равномерный слой защитного покрытия.

Наименование груза

Состав защитного покрытия

Каменный уголь

25 - 30 %-ный водный раствор сульфитно-спиртовой барды

Железорудные концентраты

Водная эмульсия топочного мазута

20 - 25 %-ный водный раствор сульфитно-спиртовой барды

Руды цветных металлов

То же

РАЗДЕЛ III

ТЕХНИЧЕСКИЕ УСЛОВИЯ РАЗМЕЩЕНИЯ И КРЕПЛЕНИЯ ГРУЗОВ В КРЫТЫХ ВАГОНАХ

Общие положения

§ 1. Размещать и крепить грузы в крытых вагонах необходимо с учетом обеспечения безопасности движения поездов, производства маневровых и погрузочно-разгрузочных работ, полного использования грузоподъемности или вместимости вагонов, сохранности перевозимых грузов и подвижного состава. Грузоотправитель или организация, производящая погрузку, несут полную ответственность за неправильное размещение и крепление грузов в крытых вагонах и за погрузку грузов в нестандартной недоброкачественной упаковке. В случае погрузки грузов, на тару и упаковку которых стандарты не установлены, а также при отгрузке сельскохозяйственных продуктов колхозами и сбытовыми организациями союза потребительских обществ в нестандартной таре в накладной в графе под наименованием груза делается отметка «Тара нестандартная. Сохранность груза обеспечивается».

Работники, ответственные за погрузку, размещение и крепление грузов, удостоверяют правильность размещения и крепления груза в вагоне на обороте накладной в гр. 1 записью «Груз размещен и закреплен согласно разделу III Технических условий правильно» и подписью с указанием занимаемой должности и фамилии.

Указанные работники подвергаются испытаниям по определению знаний общих требований к размещению и креплению грузов и Технических условий погрузки и крепления на отгружаемую продукцию порядком, предусмотренным в главе 1 ТУ.

§ 2. Груз должен быть размещен в вагоне равномерно. Если невозможно обеспечить равномерное размещение грузов, допускается смещение общего центра тяжести грузов от вертикальной плоскости, в которой находится поперечная ось вагона, не более чем на 1/8 длины базы вагона. При этом разница в загрузке тележек четырехосных вагонов не должна превышать 10 т. Одновременно необходимо соблюдать условие, чтобы нагрузка, передаваемая на каждую тележку четырехосного вагона, не превышала половины грузоподъемности, установленной для вагона данного типа, с учетом допускаемого перегруза1.

1 Перегруз вагонов сверх установленной грузоподъемности не должен превышать размеров, опубликованных в Сборнике правил перевозок и тарифов железнодорожного транспорта Союза ССР № 160, изд. 1984 г.

Поперечное смещение общего центра тяжести грузов от вертикальной плоскости, в которой находится продольная ось вагона, допускается не более 100 мм.

§ 3. В целях максимального использования грузоподъемности и вместимости вагонов загрузка их должна производиться с применением рациональных методов подготовки грузов к перевозке (прессование, дробление, вибрирование, уплотнение легковесных грузов, разборка на узлы, пакетирование, упаковка отдельных мест размером, кратным объему вагона, стандартизация и рационализация тары и др.), а также с установкой приспособлений и оборудования для погрузки в несколько ярусов (щиты, стеллажи и др.). При погрузке грузов в транспортных пакетах должно быть предусмотрено размещение пакетов в два и более ярусов.

§ 4. При совместной погрузке в один вагон грузов разного веса, а также в различной упаковке грузы большего веса и грузы в жесткой упаковке должны размещаться внизу, а грузы меньшего веса в мягкой, решетчатой, фанерной, картонной и тому подобной упаковке - наверху.

Запрещается совместная погрузка в один вагон таких грузов, которые по своим свойствам могут повредить или испортить другие грузы.

§ 5. Грузы в крытом вагоне должны быть уложены от торцов к междверному пространству плотно, без зазоров1 в поперечном и продольном направлениях так, чтобы не было сдвига, падения, навалов на двери, потертости и повреждения их при перевозке. В междверном пространстве груз также укладывают плотно и без зазоров, а в целях исключения в процессе перевозки навала его на двери они должны быть ограждены щитами, брусками или досками толщиной не менее 40 мм в зависимости от груза и на всю высоту погрузки. Зазоры, в результате которых груз может сместиться, должны заполняться малоценными материалами (например, горбыль, обрезки древесины, картона, пенопласта, выбракованные резиновые покрышки и др.).

1 При наличии дополнительных требований по транспортировке отдельных грузов, установленных Правилами перевозок, необходимо руководствоваться также этими требованиями.

При погрузке в вагон тарно-упаковочных и штучных грузов должно обеспечиваться свободное открывание дверей вагона для выгрузки с обеих сторон. Грузы в междверном пространстве должны быть уложены на расстоянии 250 мм от дверей. Если грузы, уложенные в междверном пространстве, неустойчивы от поперечного сдвига, их необходимо закреплять упорными и распорными брусками, обвязками и другими приспособлениями. Кроме того, груз может закрепляться от завала в свободное пространство по ярусам или по всей высоте погрузки одновременно щитами и распорными брусками. Размеры брусков и щитов определяют исходя из требований § 27 - 29, 31, 39 главы 1 ТУ. При этом следует учитывать только те инерционные силы, которые воздействуют на упорные бруски или щиты.

При разработке и совершенствовании схем размещения и крепления тарно-штучных грузов в крытых вагонах следует руководствоваться § 27 - 29, 31, 37, 41, 42, 44 главы 1 ТУ.

§ 6. В целях обеспечения сохранности подвижного состава необходимо размещать тарно-штучные грузы в крытых вагонах с учетом § 11, 24, 26, 29 раздела IV ТУ, Технических условий обеспечения сохранности вагонов при погрузке и выгрузке грузов и ГОСТ 22235-76 (п. 1.3).

При погрузке штучных тяжеловесных грузов весом 500 кг и более в крытые вагоны постройки до 1964 г. удельная расчетная нагрузка на исправный пол вагона не должна превышать 1,35 тс/м2. Эта величина должна учитываться и при разработке новых схем размещения и крепления грузов в указанных выше крытых вагонах. В вагонах старого типа с ветхим полом при размещении груза необходимо предусматривать укладку на пол щитов, досок.

§ 7. Для обеспечения сохранности грузов в ящичной таре необходимо, чтобы тара на протяжении всего транспортного процесса сохраняла прочность и жесткость в условиях динамических воздействий. При выборе и конструировании тары должны учитываться воздействия на нее вертикальных, продольных и поперечных горизонтальных нагрузок, а также веса груза с учетом тары и упаковки. Допускаемые величины нагрузок на тару могут быть определены по следующим формулам:

Pв = Kв(nв - 1)Q; Pпp = Kпp(nпp - 1)Q; Pп = Kп(nп - 1)Q,

где Pв, Pпp, Pп - соответственно вертикальные, продольные и поперечные горизонтальные нагрузки; nв, nпp, nп - число ящиков, располагаемых в крытом четырехосном вагоне, соответственно по высоте: в одном вертикальном ряду, между торцовой частью вагона и междверным пространством в одном продольном ряду, по ширине вагона в одном поперечном ряду; Q - вес брутто одного ящика; Кв, Кпp, Кп - постоянные коэффициенты, учитывающие соответственно вертикальные, продольные и поперечные динамические нагрузки. Их значения соответственно равны 1,5; 2 - 3 и 0,5.

§ 8. При проверке новых способов перевозки и крепления тарно-штучных грузов должны быть использованы положения, изложенные в § 49 - 53 главы 1 ТУ применительно к крытым вагонам и в Сборнике правил перевозок и тарифов железнодорожного транспорта Союза ССР № 212.

§ 9. При погрузке фанеры, листового и сортового металла, металлических труб, бочек, погруженных в накат, шифера, древесно-стружечных плит и других подобных грузов торцовые стены вагона на высоту погрузки Н по всей ширине вагона должны быть ограждены щитами (рис. 1 (III)) из досок (горбылей) толщиной не менее 40 мм или равнопрочным материалом.

Допускается при погрузке фанеры, бочек в накат, древесно-стружечных плит и других аналогичных грузов торцовые стены вагона ограждать на высоту погрузки этими же грузами, установленными вертикально.

Загрузка пачек листового металла, шифера и других подобных грузов в крытом вагоне производится равномерно по всей площади пола. От продольного сдвига крепление пачек осуществляется упорными и распорными брусками порядком, предусмотренным § 5 настоящего раздела.

Рис. 1 (III)

§ 10. Бочки с жидкостями и сухими грузами (канифоль, хлорная известь и др.) размещают в вагоне накатом вдоль вагона и на торец. Бочки с жидкостями устанавливают обязательно пробками вверх. Пробки должны быть плотно загнаны в отверстия и не выступать над поверхностью днища.

Способ размещения бочек в вагоне устанавливается в зависимости от объема кузова и размера бочек. В каждый ярус и ряд погрузки должны быть установлены однотипные по размеру бочки.

При загрузке накатом в два яруса и более бочки размещают длиной по ширине вагона и обязательно подклинивают деревянными брусками с обеих сторон. Для того чтобы клинья не выпали из-под бочек, находящихся в рядах у торцовых стен и у междверного пространства, их прибивают гвоздями.

При погрузке бочек на торец по верху первого яруса каждого ряда укладывают прокладки. При этом каждая бочка второго и последующих ярусов устанавливается с опорой на две прокладки сечением 50×250 мм каждая.

Возможность постановки прокладок меньшего сечения устанавливает грузоотправитель исходя из размеров бочек, их веса и условий механизации погрузочно-разгрузочных работ. При этом грузоотправитель несет ответственность за сохранность груза.

В случаях когда между штабелями бочек и стенами вагонов образуется свободное пространство, все ярусы бочек должны быть раскреплены с помощью распорных брусков и досок в соответствии с § 5 данного раздела.

§ 11. При погрузке грузов в мягкой таре упаковочные материалы (ткань, бумага, лента металлическая, проволока и веревка для обтягивания кип, тюков, рулонов), используемые грузоотправителем, должны обеспечивать полную сохранность грузов при транспортировке и погрузочно-разгрузочных операциях. Отправители при загрузке грузов в мягкой таре обязаны применять предохранительные меры, исключающие потертость груза в пути следования. Грузы в мягкой упаковке должны укладываться в вагоне плотно. Для этого следует подбирать по возможности упакованные места с одинаковыми габаритами. Грузы, размещенные во втором ярусе, необходимо расклинивать.

§ 12. Бутылки с жидкостями должны перевозиться затаренными в ящики, барабаны полиэтиленовые и обрешетки. Гнезда обрешеток выстилают мягким негорючим прокладочным и поглощающим материалом. Ящики и обрешетки с бутылями при погрузке в два яруса и более устанавливают в вагоне с обязательным устройством приспособлений для такой погрузки (прокладки, стеллажи) и закрепляют в каждой половине вагона распорными брусками или щитами из досок (горбылей). Если между рядами ящиков и корзин с бутылями и стенами вагона образуются зазоры, все ярусы грузов должны быть раскреплены с помощью досок и брусьев, как указано в § 5.

§ 13. При перевозке в вагоне сыпучих грузов (цемент, алебастр, минеральные удобрения и др.) дверные проемы также должны быть ограждены щитами и заделаны дополнительно крафт-бумагой или другими прочными уплотнительными материалами, обеспечивающими сохранность грузов.

Люковые отверстия вагонов должны быть плотно закрыты и закреплены. Если сыпучие грузы загружены выше уровня люков, люковые отверстия с внутренней стороны обшивают мешковиной или плотной бумагой в несколько слоев.

Перевозка цемента, извести, минеральных удобрений и других подобных грузов, способных спрессовываться, а при попадании влаги затвердевать, в вагонах с самоуплотняющимися дверями должна осуществляться только в таре. Перечень таких грузов устанавливает МПС.

§ 14. При перевозке грузов боковые и верхние загрузочные люки, печные разделки и люки в самоуплотняющихся дверях крытых вагонов плотно закрывают на запорные устройства. Данное положение не распространяется на установку и закрепление печных разделок при перевозке грузов с отоплением или вентилированием, когда Правилами перевозок грузов предусмотрен специальный порядок закрепления люков.

При перевозке всех грузов, кроме насыпных, верхние люки дополнительно закрепляют деревянным бруском с проволочной увязкой. Сечение бруска должно быть не менее 40×40 мм, длина - не менее 600 мм. Брусок посередине плотно притягивают к потолку проволокой диаметром не менее 4 мм в две нити, пропускаемой через корпус запорного устройства, расположенного на крышке люка (рис. 2 (III), а). Проволока должна быть закручена в два-три оборота специальной металлической пластинкой с двумя отверстиями диаметром 6 - 10 мм и расстоянием между ними 35 мм.

Запорные устройства, расположенные на потолке вагона, закрепляют проволокой диаметром не менее 4 мм в две нити, как показано на рис. 2 (III), б.

Рис. 2 (III):

1 - горловина люка; 2 - крышка люка; 3 - зуб запорного устройства; 4 - кронштейн запорного устройства; 5 - защелка запорного устройства

В обоих случаях концы проволоки увязки отгибают вверх таким образом, чтобы не вызывать травмы при погрузке и выгрузке. Указанные работы выполняются грузоотправителем или организацией, производящей погрузку грузов в вагон.

§ 15. После выгрузки груза получатель обязан очистить вагон от остатков груза и мусора, освободить его от щитов, брусков, обвязок и других реквизитов крепления, закрыть двери и люки вагонов на запоры, удалить с него меловые разметки. При этом дверь порожнего вагона должна быть закрыта на второе ушко накладки, считая от болта крепления накладки.

Зерновые грузы

§ 16. Зерновые хлебные грузы насыпью перевозят в крытых вагонах со съемными хлебными щитами или самоуплотняющимися дверями.

В вагонах с объемом кузова 120 м3, не оборудованных самоуплотняющимися дверями, перевозка хлебных грузов производится с установкой съемных хлебных щитов.

Крепление съемных хлебных щитов высотой не менее 1700 мм производится грузоотправителями. Щиты крепят (через отверстия в металлических личинках щита) к дверным стойкам вагона с каждой стороны двумя гвоздями длиной 100 - 110 мм. Наращивание хлебных щитов производится после установки дверных ограждений вначале с противоположной стороны погрузки, а после загрузки левой и правой стороны, а также середины вагона наращивают второй хлебный щит.

Подготовка самоуплотняющейся двери под перевозку зерна без хлебных щитов осуществляется в точном соответствии с Инструкцией № 407/ЦВК (изд. 1969 г.) работниками вагонного хозяйства.

В книге осмотра вагонов (форма ВУ-14) делается отметка о пригодности вагона под перевозку зерна без постановки хлебных щитов.

Перед погрузкой зерна и хлебных грузов в вагоны с самоуплотняющимися дверями грузоотправитель обязан произвести уплотнение дверных проемов рейками, паклей и другими материалами.

Зерно грузят через верхние загрузочные люки при закрытых дверях и разгрузочных люках вагона. Порядок закрывания и открывания двери вагона и разгрузочного люка следующий (рис. 3 (III)): крышку люка 1 прижимают к раме 6, при этом ручку люка 5 устанавливают вдоль вагона с расположением защелки запора люка наружу; поворачивают ручку люка вниз для зацепления ее зуба с кронштейном запора.

Рис. 3 (III)

Рис. 4 (III)

Убедившись, что крышка люка не открывается, ручку поворачивают вверх до зацепления защелки на ручке 3 с крючком крышки люка 4, при этом ушко 8, расположенное на верхнем конце ручки, должно войти в паз блокирующего устройства 7. Дверь задвигается до отказа к передней и задней стойкам дверного проема; дверную накладку закладывают в пробой и фиксируют защелкой (рис. 4 (III)). При отсутствии защелки 3 и крючка 4 (см. рис. 3 (III)) фиксирование ручки разгрузочного люка, введенной в паз блокирующего устройства 7, осуществляется с помощью подпружиненного фиксатора, который входит конусной частью в отверстие ушка ручки люка.

При запирании двери закидной шток должен войти в ушко ручки люка, одновременно вытесняя подпружиненный фиксатор, осуществляя блокировку закидки с люком двери. После закрытия двери и запирания ее закидкой с фиксацией защелкой пробоя и общей подготовки вагона производится загрузка его зерном.

Отсыпка (дозировка) зерна при взвешивании производится через люк двери при открытой закидке, т.е. выведенной из зацепления с пробоем двери. Для этого необходимо отвести защелку ручки люка с помощью штыря 2 вниз, ручку из закрытого положения повернуть на себя вниз на 180°. Поворот ручки вдоль вагона не производится, чтобы не вывести из зацепления зуб ручки с кронштейном. После отсыпки зерна ручку люка ставят на место (при этом необходимо убедиться в зацеплении защелки с крючком на крышке люка) и дверь запирают закидкой.

Порядок выгрузки зерна следующий: отводят защелку дверного запора и открывают дверную закидку. При этом ручку люка освобождают от зацепления; открывают разгрузочный люк, для чего отводят защелку 3 вниз и поворачивают ручку люка на себя вниз, затем поворотом ее на 90° вдоль вагона вправо или влево освобождают от зацепления зуба с кронштейном запора. После освобождения дверного проема от зерна через разгрузочный люк открывают дверь вагона.

§ 17. При перевозке зерна насыпью (ржи, пшеницы, ячменя, овса, кукурузы в зерне и др.) в четырехосных крытых вагонах со съемными щитами размещение груза должно производиться на 10 см ниже верхней кромки щита в дверном проеме вагона. При этом начало подъема зерна под углом естественного откоса в сторону торцовых стен вагона должно быть удалено от края хлебного щита на расстояние не менее 100 см для ржи, пшеницы, ячменя, овса, кукурузы в зерне, а для гороха и гречихи - на расстояние не менее 150 см.

Просо, семя льняное, горчичное и рыжика загружаются на 10 см ниже верхней кромки хлебного щита без подъема к торцовым стенам вагона.

Бумага в рулонах диаметром (800 ± 50) и (850 ± 50) мм, шириной от 420 до 1680 мм

§ 18. Настоящими Техническими условиями устанавливаются способы размещения и крепления бумаги в рулонах диаметром (800 ± 50) и (850 ± 50) мм, шириной от 420 до 1680 мм в крытых вагонах объемом кузова 106 и 120 м3.

Для перевозки бумаги должны подаваться вагоны исправные, годные для перевозки данного груза, очищенные от остатков ранее перевозимого груза и мусора, со снятыми реквизитами крепления (проволокой, гвоздями, досками, скрутками и т.д.).

Пригодность подаваемых вагонов для перевозки бумаги в коммерческом отношении определяет грузоотправитель. Перед погрузкой грузоотправитель должен убедиться в том, что перевозка бумаги в данном вагоне не вызовет ее порчи и повреждения. Люки в крыше, печные разделки и боковые люки должны быть плотно закрыты.

Для предотвращения порчи бумаги при взаимодействии ее с конструктивными деталями вагона (несъемным оборудованием, выступающими головками болтов и т.п.) грузоотправитель должен принять дополнительные меры по ограждению выступающих частей внутри кузова вагона.

Для этого допускается:

установка дополнительных креплений внутри вагона;

застилка пола вагона бумагой в два - четыре слоя;

обивка частей несъемного оборудования вагона.

Не допускается погрузка в вагон рулонов с механическими повреждениями, вмятинами, неисправной упаковкой и следами подмочки. Рулоны диаметром (800 ± 50) мм устанавливают в первом ярусе в три ряда по ширине вагона, с отступлением от боковых стен вагонов на 30 - 50 мм. Рулоны диаметром (850 ± 50) мм устанавливают в первом ярусе в шахматном порядке с отступлением от боковых стен вагонов на 30 - 50 мм.

В одном вагоне по указанным схемам разрешается загружать бумагу в рулонах не более трех различных размеров по ширине.

§ 19. Рулоны бумаги в междверном пространстве устанавливают так, чтобы обеспечивалась возможность их разгрузки с любой стороны вагона. Для удобства разгрузки у дверей вагона устанавливают по одному - два рулона. При загрузке рулонов бумаги в три яруса и выше дверные проемы с обеих сторон вагона ограждают двумя досками (горбылем) сечением не менее 30×200 мм, обернутыми упаковочным материалом в два-три слоя. При этом головки гвоздей, закрепляющих эти доски, не должны выступать наружу.

Бумага в рулонах диаметром (800 ± 50) мм

§ 20. Бумагу в рулонах диаметром (800 ± 50) мм, шириной 1400 - 1680 мм в крытый вагон объемом кузова 106 м3 грузят в один ярус на торец (рис. 5 (III)).

Рулоны устанавливают в три продольных ряда. До междверного пространства с каждой стороны вагона размещают семь рулонов по длине и три рулона по ширине вагона. Всего с обеих сторон вагона размещают 42 рулона. В междверном пространстве размещают шесть-семь рулонов. Всего в вагоне 48 - 49 рулонов.

§ 21. Бумагу в рулонах диаметром (800 ± 50) мм, шириной 1680 мм в крытый вагон объемом кузова 120 м3 размещают в два яруса, второй - внакат (рис. 6 (III)).

Рулоны первого яруса устанавливают в три продольных ряда. До междверного пространства с каждой стороны вагона размещают семь рулонов по длине и три рулона по ширине, а всего с обеих сторон вагона устанавливают 42 рулона. В междверном пространстве размещают шесть-семь рулонов. Всего в первом ярусе размещают 48 - 49 рулонов.

Рулоны второго яруса грузят внакат до междверного пространства с той и другой стороны вагона по шесть рулонов, располагая их поперек продольной оси вагона в один рулон вдоль оси вагона вплотную к одному из поперечных рулонов. Для крепления рулонов второго яруса от перемещения в пространство между продольными и поперечными рулонами помещается распорная клетка. Всего во втором ярусе размещают 13 рулонов.

Рулоны, размещенные у торцовой стены вагона, подклинивают двумя клиньями размерами 120×200 мм.

Всего в вагоне размещают 61 - 62 рулона.

§ 22. Бумагу в рулонах шириной 800 - 1200 мм в крытый вагон объемом кузова 106 м3 загружают в два яруса с размещением рулонов на торец (рис. 7 (III)).

В первом ярусе рулоны загружают в три продольных ряда. До междверного пространства по обеим сторонам вагона размещают семь рулонов по длине и три рулона по ширине вагона.

Всего с обеих сторон вагона размещают 42 рулона. В междверном пространстве размещают шесть-семь рулонов, а всего в первом ярусе размещают 48 - 49 рулонов.

Рис. 5 (III)

Рис. 6 (III):

1 - рулон бумаги; 2 - распорная клетка; 3 - клин

Во втором ярусе рулоны устанавливают на торец на рулоны первого яруса. При этом в середине дверного пространства во втором ярусе размещают четыре-пять рулонов. Всего по этой схеме в вагоне размещают 94 - 96 рулонов.

§ 23. Бумагу в рулонах шириной 40 - 1400 мм в крытый вагон объемом кузова 120 м3 загружают в два яруса с размещением рулонов на торец (рис. 8 (III)).

В первом ярусе рулоны загружают в три продольных ряда. До междверного пространства по обеим сторонам вагона размещают семь рулонов по длине и три по ширине вагона. Всего с обеих сторон вагона размещают 42 рулона.

Рис. 7 (III)

Рис. 8 (III)

В междверном пространстве размещают шесть-семь рулонов, а всего в первом ярусе размещают 48 - 49 рулонов. Во втором ярусе рулоны устанавливают на торец на рулоны первого яруса. При этом в середине дверного пространства во втором ярусе размещают четыре-пять рулонов. Всего во втором ярусе размещают 46 - 47 рулонов.

Всего в вагоне по этой схеме размещают 94 - 96 рулонов.

§ 24. Бумагу в рулонах шириной 620 - 800 мм в крытый вагон объемом кузова 106 м3 загружают в три яруса с размещением рулонов на торец (рис. 9 (III)).

С каждой стороны вагона до междверного пространства устанавливают три ряда рулонов в три яруса. До междверного пространства по обеим сторонам вагона в каждом ярусе размещают семь рулонов по длине и три по ширине вагона. Всего с обеих сторон вагона в трех ярусах размещают 126 рулонов. В междверном пространстве в первом и втором ярусах размещают по шесть-семь рулонов, а в третьем ярусе в середине дверного пространства - четыре-пять рулонов. Всего в междверном пространстве размещают 16 - 19 рулонов. Всего по этой схеме в вагоне размещают 142 - 145 рулонов.

Рис. 9 (III):

1 - рулон бумаги; 2 - доски дверного ограждения

Рис. 10 (III):

1 - рулон бумаги; 2 - доски дверного ограждения

§ 25. Бумагу в рулонах шириной 710 - 930 мм в крытый вагон объемом кузова 120 м3 загружают в три яруса с размещением рулонов на торец (рис. 10 (III)).

С каждой стороны вагона до междверного пространства размещают в три яруса семь рулонов по длине и три рулона по ширине вагона в каждом ярусе.

Всего с обеих сторон вагона в трех ярусах размещают 126 рулонов. В междверном пространстве в первом и втором ярусах размещают 12 - 14 рулонов.

В середине междверного пространства в третьем ярусе размещают четыре-пять рулонов. Всего по этой схеме размещают 142 - 145 рулонов.

§ 26. Бумагу в рулонах шириной 510 - 600 мм в крытый вагон объемом кузова 106 м загружают в четыре яруса с установкой рулонов на торец (рис. 11 (III)).

Рис. 11 (III):

1 - рулон бумаги; 2 - доски дверного ограждения

Рис. 12 (III):

1 - рулон бумаги; 2 - доски дверного ограждения

С каждой стороны вагона до междверного пространства размещают семь рулонов по длине и три рулона по ширине вагона в четыре яруса. Всего с обеих сторон вагона в четырех ярусах размещают 168 рулонов. В междверном пространстве в первом, втором и третьем ярусах размещают по шесть-семь рулонов, а всего 18 - 21 рулон. В четвертом ярусе в середине дверного пространства размещают четыре-пять рулонов.

Всего по этой схеме в вагоне размещают 190 - 194 рулона.

§ 27. Бумагу в рулонах шириной 560 - 700 мм в крытом вагоне объемом кузова 120 м3 загружают в четыре яруса с размещением рулонов на торец (рис. 12 (III)).

С каждой стороны вагона до междверного пространства размещают семь рулонов по длине и три рулона по ширине вагона в четыре яруса. Всего с обеих сторон вагона до междверного пространства размещают 168 рулонов.

В междверном пространстве в первом, втором и третьем ярусах размещают по шесть-семь рулонов, а всего 18 - 21 рулон.

Рис. 13 (III)

1 - рулон бумаги; 2 - доски дверного ограждения

Рис. 14 (III):

1 - рулон бумаги; 2 - доски дверного ограждения

В четвертом ярусе в середине дверного пространства размещают четыре - пять рулонов. Всего по этой схеме размещают 190 - 194 рулона.

§ 28. Бумагу в рулонах шириной 420 - 480 мм в крытый вагон объемом кузова 106 м3 загружают в пять ярусов с размещением рулонов на торец (рис. 13 (III)). С каждой стороны вагона до междверного пространства размещают в каждом ярусе семь рулонов по длине и три рулона по ширине вагона. Всего с обеих сторон вагона до междверного пространства размещают 210 вагонов.

В междверном пространстве в первом, втором, третьем и четвертом ярусах размещают по шесть-семь рулонов, а всего 24 - 28 рулонов. В пятом ярусе и в середине дверного пространства размещают четыре-пять рулонов. Всего размещают 238 - 243 рулона.

§ 29. Бумагу в рулонах шириной 485 - 550 мм в крытый вагон объемом кузова 120 м загружают в пять ярусов с размещением рулонов на торец (рис. 14 (III)).

Рис. 15 (III):

1 - рулон бумаги; 2 - доски дверного ограждения

Рис. 16 (III):

1 - рулон бумаги; 2 - доски дверного ограждения

В каждом ярусе с каждой стороны вагона до междверного пространства размещают семь рулонов по длине и три рулона по ширине вагона. Всего с обеих сторон вагона до междверного пространства размещают 210 рулонов. В междверном пространстве в первом, втором и третьем ярусах размещают по шесть-семь рулонов, а всего 18 - 21. В четвертом и пятом ярусах в середине дверного пространства размещают четыре-пять рулонов. Всего по этой схеме в вагоне размещают 236 - 241 рулон.

§ 30. Бумагу в рулонах шириной 350 - 400 мм в крытый вагон объемом кузова 106 м3 загружают в шесть ярусов с размещением рулонов на торец (рис. 15 (III)).

В каждом ярусе с каждой стороны вагона до междверного пространства размещают семь рулонов по длине и три рулона по ширине вагона. Всего с обеих сторон до междверного пространства размещают 252 рулона.

В междверном пространстве в первом, втором, третьем и четвертом ярусах размещают по шесть-семь рулонов, а всего 24 - 28 рулонов. В пятом и шестом ярусах в середине дверного пространства размещают по четыре-пять рулонов. Всего по этой схеме в вагоне размещают 284 - 290 рулонов.

§ 31. Бумагу в рулонах шириной 400 - 465 мм в крытый вагон объемом кузова 120 м3 загружают в шесть ярусов с размещением на торец (рис. 16 (III)). В каждом ярусе с каждой стороны вагона до междверного пространства размещают семь рулонов по длине и три рулона по ширине вагона. Всего с обеих сторон вагона до междверного пространства размещают 252 рулона.

В междверном пространстве в первом, втором, третьем и четвертом ярусах размещают по шесть-семь рулонов, а всего 24 - 28 рулонов. В пятом и шестом ярусах в середине дверного пространства размещают четыре-пять рулонов. Всего по этой схеме в вагоне размещают 284 - 290 рулонов.

Бумага в рулонах диаметром (850 ± 50) мм

§ 32. Бумагу в рулонах шириной 1680 мм в крытый вагон объемом кузова 106 м3 грузят в один ярус на торец (рис. 17 (III)).

Рулоны устанавливают в три продольных ряда. До междверного пространства с каждой стороны вагона у боковых стен размещают по шесть рулонов, а в середине - по пять рулонов. Всего с обеих сторон вагона размещают 34 рулона. В междверном пространстве размещают семь рулонов, всего в вагоне 41 рулон.

Рис. 17 (III)

§ 33. Бумагу в рулонах диаметром (850 ± 50) мм, шириной 1680 мм в крытый вагон объемом кузова 120 м3 размещают в два яруса, второй - внакат (рис. 18 (III)).

Рулоны первого яруса устанавливают в три продольных ряда. До междверного пространства в каждом ряду размещают по шесть рулонов, а всего с обеих сторон вагона устанавливают 36 рулонов. В междверном пространстве размещают восемь рулонов. Всего в первом ярусе устанавливается 44 рулона.

Рулоны второго яруса грузят внакат до междверного пространства с той и другой стороны вагона по шесть рулонов, располагая их поперек продольной оси вагона и один рулон - вдоль оси вагона вплотную к одному из поперечных рулонов. Для крепления рулонов второго яруса от перемещения в пространство между продольными и поперечными рулонами помещается распорная клетка. Всего во втором ярусе размещают 13 рулонов.

Рулоны, размещенные у торцовых стен вагона, подклиниваются двумя клиньями размерами 120×200 мм.

Общее количество рулонов 57.

§ 34. Распорная клетка изготовляется из деревянных брусков сечением 90×90 мм и досок сечением 54×100 мм, скрепленных гвоздями длиной 150 мм (рис. 19 (III)). Элементы клетки (рис. 20 (III)), состоящие из двух брусков сечением 90×90 мм, скрепленных гвоздями длиной 150 мм, и опоры, состоящей из доски и фигурного бруска, изготовляются заранее, при этом глубина треугольного пропила должна быть в пределах 30 - 40 мм.

§ 35. Распорную клетку в вагоне устанавливают следующим образом.

Два изготовленных элемента клетки укладывают так, чтобы опорные части клетки вплотную прилегали к цилиндрической поверхности рулона, а два нижних бруска входили под цилиндрическую поверхность продольного рулона, исключая его перемещение поперек вагона.

Концы верхних брусков отпиливают по месту их установки так, чтобы между торцовой поверхностью продольного рулона и концами верхнего бруска вплотную укладывался поперечный брусок, который скрепляют четырьмя гвоздями с нижними брусками.

Для предотвращения перекосов распорной клетки верхние бруски закрепляют доской длиной 1 м четырьмя гвоздями.

§ 36. Бумагу в рулонах шириной 1680 и 1260 мм в крытый вагон объемом кузова 120 м3 загружают в два яруса комбинированным способом - на торец и внакат (рис. 21 (III)).

Рис. 18 (III):

1 - распорная клетка; 2 - рулон бумаги; 3 - клин

Рис. 19 (III)

Рис. 20 (III):

1 - опора; 2 - треугольный пропил; 3 - гвозди; 4 - верхний брусок; 5 - нижний брусок; 6 - поперечный брусок

Рис. 21 (III)

В первом ярусе междверного пространства с каждой стороны вагона устанавливают на торец рулоны шириной 1680 мм в три продольных ряда, по пять рулонов в каждом ряду.

Во втором ярусе, начиная от торцовых стен вагона, размещают внакат на равных расстояниях от боковых стен по пять рулонов шириной 1680 мм с каждой стороны вагона. Всего с каждой стороны вагона размещают по 20 рулонов шириной 1680 мм. Вплотную к ним с каждой стороны вагона устанавливают на торец в два яруса шесть рулонов шириной 1260 мм, по три в каждом ярусе, которые закрепляют от продольного сдвига рулоны второго яруса, погруженные внакат.

В междверном пространстве устанавливают восемь рулонов шириной 1680 мм в один ярус. Всего в вагоне по этой схеме размещают 48 рулонов шириной 1680 мм и 12 рулонов шириной 1260 мм.

§ 37. Бумагу в рулонах шириной 1680 и 840 мм в крытый вагон объемом кузова 120 м3 загружают в два яруса комбинированным способом - на торец и внакат (рис. 22 (III)).

В первом ярусе от торцовых стен до междверного пространства вагона устанавливают рулоны шириной 1680 мм на торец в три продольных ряда, по пять рулонов в каждом ряду.

Во втором ярусе, начиная от торцовых стен вагона, размещают внакат на равных расстояниях от боковых стен по пять рулонов шириной 1680 мм. Вплотную к ним в каждом продольном ряду устанавливают на торец по основному рулону шириной 840 мм и на них также на торец по одному рулону шириной 1680 мм, которыми закрепляют от продольного сдвига рулоны второго яруса, погруженные внакат.

Рулоны, размещенные во втором ярусе у торцовой стены вагона (см. рис. 21 (III) и 22 (III)), закрепляют двумя клиньями размерами 120×200 мм.

В междверном пространстве устанавливают восемь рулонов шириной 1680 мм. Всего в вагоне по этой схеме размещают 54 рулона шириной 1680 мм и шесть рулонов шириной 840 мм.

§ 38. Бумагу в рулонах шириной 1260 мм в крытый вагон объемом кузова 120 м3 загружают в два яруса с размещением рулонов на торец (рис. 23 (III)).

В первом ярусе рулоны загружают в три продольных ряда. До междверного пространства во всех рядах устанавливают по шесть рулонов. Всего с обеих сторон вагона размещают 36 рулонов.

Рис. 22 (III)

Рис. 23 (III)

В междверном пространстве устанавливают шесть-восемь рулонов, а всего в первом ярусе размещают 42 - 44 рулона. Во втором ярусе рулоны устанавливают на торец на рулоны первого яруса. В междверном пространстве во втором ярусе устанавливают только два рулона в среднем ряду. Всего во втором ярусе размещают 38 рулонов.

Всего в вагоне по этой схеме размещают 80 - 82 рулона.

§ 39. Бумагу в рулонах шириной 1260 и 1680 мм в крытый вагон объемом кузова 120 м3 размещают следующим порядком (рис. 24 (III)).

В первом и втором ярусах от торцовых стен вагона до междверного пространства устанавливают на торец рулоны шириной 1260 мм в три продольных ряда, по шесть рулонов в ряду каждого яруса.

В междверном пространстве устанавливают на торец в один ярус восемь рулонов шириной 1680 мм, которыми закрепляют от продольного сдвига рулоны второго яруса.

Всего в вагоне по этой схеме размещают 72 рулона шириной 1260 мм и восемь рулонов шириной 1680 мм.

§ 40. Бумагу в рулонах шириной 840 мм в крытый вагон объемом кузова 120 м3 загружают в три яруса с размещением рулонов на торец (рис. 25 (III)).

С каждой стороны вагона до междверного пространства устанавливают в два яруса три продольных ряда рулонов, по шесть рулонов в каждом ряду яруса. Всего с обеих сторон в двух ярусах размещают 72 рулона.

Рис. 24 (III)

Рис. 25 (III):

1 - рулон бумаги; 2 - доски дверного ограждения

В междверном пространстве в первом и втором ярусах размещают 12 - 16 рулонов. В третьем ярусе до междверного пространства рулоны размещают аналогично первому и второму ярусам.

В междверном пространстве в третьем ярусе устанавливают два рулона в среднем ряду. Всего по этой схеме размещают 122 - 126 рулонов.

§ 41. Бумагу в рулонах шириной 840 - 1260 мм в крытый вагон объемом кузова 120 м3 загружают в три яруса с установкой рулонов на торец (рис. 26 (III)).

С каждой стороны вагона до междверного пространства устанавливают три продольных ряда рулонов шириной 840 мм в три яруса, по шесть рулонов в ряду каждого яруса. Всего с обеих сторон вагона до междверного пространства размещают 108 рулонов.

В междверном пространстве в первом ярусе устанавливают восемь рулонов шириной 840 мм, во втором ярусе - восемь рулонов шириной 1260 мм, которыми закрепляют от продольного сдвига рулоны третьего яруса. Всего в вагоне размещают 116 рулонов шириной 840 мм и восемь рулонов шириной 1260 мм.

§ 42. Бумагу в рулонах шириной 594 мм в крытый вагон объемом кузова 106 м3 загружают в четыре яруса с установкой рулонов на торец (рис. 27 (III)).

Рис. 26 (III)

Рис. 27 (III):

1 - рулон бумаги; 2 - доски дверного ограждения

С каждой стороны вагона до междверного пространства устанавливают три продольных ряда рулонов в четыре яруса. В продольных рядах, расположенных у боковых стен вагона, укладывают по шесть рулонов, а всего в средних рядах по пять рулонов в каждом ярусе. Всего с обеих сторон вагона в четырех ярусах размещают 136 рулонов. В междверном пространстве в первом, втором и третьем ярусах размещают по семь рулонов, а всего - 21 рулон.

В четвертом ярусе устанавливают три рулона в среднем ряду. Всего по этой схеме в вагоне размещают 160 рулонов.

§ 43. Бумагу в рулонах шириной 594 мм в крытом вагоне объемом кузова 120 м3 загружают в четыре яруса с размещением рулонов на торец (рис. 28 (III)).

С каждой стороны вагона до междверного пространства устанавливают три продольных ряда рулонов в четыре яруса, по шесть рулонов в ряду каждого яруса. Всего с обеих сторон вагона до междверного пространства размещают 144 рулона.

В междверном пространстве в первом, втором и третьем ярусах размещают по восемь рулонов, а всего - 24 рулона. В четвертом ярусе в среднем ряду устанавливают два рулона. Всего по этой схеме размещают 170 рулонов.

Рис. 28 (III):

1 - рулон бумаги; 2 - доски дверного ограждения

Рис. 29 (III):

1 - рулон бумаги; 2 - доски дверного ограждения

§ 44. Бумагу в рулонах шириной 420 мм в крытый вагон объемом кузова 120 м3 загружают в шесть ярусов с размещением рулонов на торец (рис. 29 (III)).

С каждой стороны вагона до междверного пространства устанавливают три продольных ряда рулонов в шесть ярусов по шесть рулонов в ряду каждого яруса. Всего с обеих сторон вагона до междверного пространства размещают 216 рулонов. В междверном пространстве в первом, втором, третьем и четвертом ярусах размещают по восемь рулонов, а всего - 32 рулона.

В пятом и шестом ярусах в среднем ряду устанавливают по два рулона. Всего по этой схеме в вагоне размещают 252 рулона.

§ 45. Бумагу в рулонах шириной 420 мм в крытый вагон объемом кузова 106 м3 загружают в пять ярусов с размещением рулонов на торец (рис. 30 (III)).

Рис. 30 (III):

1 - рулон бумаги; 2 - доски дверного ограждения

С каждой стороны вагона до междверного пространства устанавливают три продольных ряда рулонов. В продольных рядах, расположенных у боковых стен вагонов, размещают по шесть рулонов, а в среднем ряду - по пять рулонов в каждом ярусе. Всего с обеих сторон вагона до междверного пространства размещают 170 рулонов. В междверном пространстве в первом, втором, третьем и четвертом ярусах размещают по семь рулонов, а всего - 28 рулонов. В пятом ярусе в среднем ряду устанавливают три рулона. Всего по этой схеме в вагоне размещают 201 рулон.

Плитка керамическая в пакетах

§ 46. Настоящими Техническими условиями устанавливается способ размещения и крепления в четырехосных крытых вагонах пакетов плиток керамических (облицовочной и метлахской), сформированных с использованием многооборотных ящичных поддонов, соответствующих требованиям ОСТ 63.30-78 (рис. 31 (III)).

§ 47. В вагоне устанавливают 58 пакетов: вес пакета (брутто) составляет от 1,0 до 1,1 т, габаритные размеры пакета: длина 1240 мм, ширина - 835 мм, высота - 920 мм.

§ 48. Перед погрузкой пакетов в вагоне вплотную к торцовым стенкам устанавливают две ограждающие металлические рамы (рис. 32 (III), поз. 1), изготовленные из швеллера № 8 по чертежу ПКТИСХ «Оргснаб» Госснаба СССР № 17.096-000, имеющие габаритные размеры: длина - 2600 мм, высота - 1360 мм. Установка рам в вагоне по схеме рис. 32 (III).

§ 49. Пакеты размещают в два ряда по ширине и в два яруса по высоте длинной стороной поперек вагона, начиная от торцовых стен к середине вплотную к ограждающим рамам и друг к другу. От одной торцовой стенки до междверного пространства устанавливают 28 пакетов, а от другой - 24 пакета. В междверном пространстве размещают шесть пакетов в два яруса по высоте длинной стороной вдоль вагона.

§ 50. В междверном пространстве между штабелями пакетов устанавливают две металлические распорные рамы (см. рис. 32 (III) поз. 4), соединенные между собой тремя парами телескопических распорок (см. рис. 32 (III), поз. 5) и имеющие габаритные размеры: длина - 2600 мм, высота - 1360 мм. Рамы изготовляют по чертежам ПКТИСХ «Оргснаб» Госснаба СССР № 17.095-000 и 17.095-200. Установка рам в вагоне по схеме рис. 33 (III).

§ 51. Пакеты верхнего яруса устанавливают на крышки поддонов нижнего яруса между угловых упоров, являющихся конструктивными элементами поддонов.

§ 52. От поперечного смещения пакетов в сторону дверей на пол вагона вплотную к дверным стойкам укладывают в положении «на ребро» две доски сечением 50×200 мм и длиной 3000 мм.

§ 53. Порожние поддоны в сложенном виде (см. рис. 31 (III), б) увязывают в пакеты по 6 шт. в каждом проволокой диаметром 6 мм в две нити.

Рис. 31 (III):

а - поддон в рабочем положении; б - в сложенном виде

Рис. 32 (III):

1 - ограждающая рама; 2 - пакет; 3 - доска сечением 50×200 мм; 4 - рама; 5 - распорка

Габаритные размеры пакета: длина - 1240 мм, ширина - 835 мм, высота - 1881 мм. Вес пакета 1,1 т.

Возврат пакетов порожних поддонов и многооборотных металлических рам производится повагонными или мелкими отправками.

§ 54. При возврате порожних поддонов повагонными отправками в вагоне устанавливают 29 пакетов. Размещение и крепление пакетов производится по схеме рис. 34 (III) в один ярус. Два комплекта металлических рам и телескопических распорок размещают в междверном пространстве перпендикулярно продольной оси вагона и закрепляют от боковых смещений двумя досками сечением 50×200 мм и длиной 300 мм, уложенными на пол вагона в положение «на ребро» вплотную к дверным стойкам.

Рис. 33 (III):

1 - рама (чертеж № 17.096-000 СБ); 2 - рама (чертеж № 17.095-000 СБ)

Рис. 34 (III):

1 - пакет; 2 - доска сечением 50×200 мм; 3 - рама; 4 - ограждающая рама

Адрес калькодержателя технической документации: 603000, г. Горький, ГСП-228, ул. Гагарина, 28; рабочие проекты № 17.096-000; 17.095-200; 17.095-000.

Прессованная солома в тюках

§ 55. Солома должна быть плотно спрессована в тюк (размеры в мм: длина - 1000, ширина - 500, высота - 360), надежно обвязанный проволокой вдоль длины в двух местах.

§ 56. В крытый вагон объемом кузова 106 м3 тюки спрессованной соломы в количестве 516 шт. размещают согласно рис. 35 (III) следующим порядком: на пол вагона укладывают вплотную друг к другу по ширине вагона пять тюков по высоте в семь ярусов и по длине в 14 рядов, причем в седьмом ярусе грузят семь тюков на боковую сторону (360 мм) по длине.

Рис. 35 (III)

Рис. 36 (III)

§ 57. В крытый вагон объемом кузова 120 м3 тюки прессованной соломы в количестве 588 шт. размещают согласно рис. 36 (III) следующим порядком: на пол вагона вплотную друг к другу укладывают по ширине вагона пять тюков в восемь ярусов по высоте и 14 рядов по длине, в девятом ярусе грузят два тюка на боковую сторону (360 мм) по длине.

Радиаторы чугунные отопительные марки М-140АO в пакетах

§ 58. Настоящие Технические условия устанавливают способ размещения и крепления пакетов радиаторов чугунных отопительных марки М-140АО (рис. 37 (III)), сформированных с помощью металлических стяжек (рис. 38 (III)) конструкции ПКТИСХ «Оргснаб» (черт. № 24.030-000).

§ 59. Пакет состоит из 13 восьмисекционных радиаторов и имеет габаритные размеры: длину - 1190 мм, ширину - 880 мм, высоту - 830 мм. Вес пакета 860 кг.

§ 60. В крытом вагоне (рис. 39 (III)) размещают 78 пакетов. Перед погрузкой пакетов к торцовым стенам вагона устанавливают электропогрузчиком две упорные металлические рамы, изготовленные из двух одинаковых полурам по черт. № 17.102-00-00 (рис. 40 (III)) из швеллера 8 и имеющие размеры: длину - 2600 мм, высоту - 2740 мм, толщину - 120 мм.

§ 61. Пакеты радиаторов размещают двумя симметричными штабелями по 36 пакетов в каждом последовательно от торцовых стен к середине, устанавливают их вплотную к упорным рамам и между собой длинной стороной поперек вагона в два ряда по ширине, в шесть рядов по длине и в три яруса по высоте кузова.

Рис. 37 (III):

1 - радиатор; 2 - стяжка для радиаторов

Рис. 38 (III):

1 - пята; 2 - косынка; 3 - опорный стакан; 4 - стакан; 5 - цепная петля; 6 - болт

В междверном пространстве устанавливают шесть пакетов длинной стороной вдоль продольной оси вагона: четыре пакета устанавливают посередине вагона в два яруса, два остальных - против дверного проема, по одному с каждой стороны.

§ 62. Дверные проемы ограждают рамами-упорами 4 (см. рис. 39 (III)), уложенными на пол вагона вплотную к дверным стойкам. Рамы изготовляют из швеллера 5 по черт. № 24.029-00-000 длиной 2400 мм (рис. 41 (III)).

§ 63. От опрокидывания пакеты верхнего яруса в продольном направлении закрепляют двумя распорками 3 (см. рис. 39 (III)), изготовленными по черт. № 17.099-00-000 из толстостенной трубы 83×4 и имеющими два упора: один фиксированный, другой подвижной с фиксатором (рис. 42 (III)).

§ 64. Вагоны постройки до 1974 г. загружают до полной грузоподъемности согласно схеме (см. рис. 39 (III)) путем уменьшения числа пакетов, устанавливаемых в междверном пространстве.

§ 65. Техническое освидетельствование инвентарных средств крепления производит грузоотправитель согласно его нормативно-технической документации.

§ 66. Возврат стяжек для радиаторов, упорных рам, рам-упоров и распорок осуществляется мелкими отправками в связках, пригодных для механизированной погрузки и выгрузки, или повагонными отправками в полувагонах по схеме рис. 43 (III).

Рис. 39 (III):

1 - рама упорная; 2 - транспортный пакет из 13 радиаторов; 3 - распорка; 4 - рама-упор

Рис. 40 (III)

Рис. 41 (III)

Рис. 42 (III)

Рис. 43 (III)

В одном полувагоне размещают 30 комплектов стяжек для радиаторов и средств крепления.

У торцовых дверей полувагона устанавливают по две упорных рамы 1 в разобранном состоянии и увязанных проволочными скрутками. На пол полувагона между рамами укладывают комплекты стяжек для радиаторов 4 длинной стороной поперек вагона. Поверх стяжек укладывают по 30 комплектов рам-упоров 2 и распорок 3.

В верхнем ярусе устанавливают остальные комплекты упорных рам 1 в вертикальном положении длинной стороной поперек вагона.

Калькодержателем технической документации на многооборотные средства крепления является ПКТИСХ «Оргснаб», адрес: 603098, г. Горький, пр. Гагарина, 28.

РАЗДЕЛ IV

ТЕХНИЧЕСКИЕ УСЛОВИЯ ОБЕСПЕЧЕНИЯ СОХРАННОСТИ ВАГОНОВ ПРИ ПОГРУЗКЕ И ВЫГРУЗКЕ ГРУЗОВ

Общие положения

§ 1. Настоящие Технические условия устанавливают основные требования по обеспечению сохранности железнодорожных грузовых вагонов при производстве погрузочно-разгрузочных работ1, выполняемых на железнодорожных станциях и подъездных путях промышленных предприятий, морских и речных портов и других организаций и учреждений.

1 Под погрузочно-разгрузочными работами понимают также работы по очистке вагонов, уплотнению, рыхлению и разогреву грузов.

Предусмотренные Техническими условиями погрузочно-разгрузочные работы должны выполняться в строгом соответствии с Правилами по технике безопасности и производственной санитарии при погрузке и выгрузке вагонов.

§ 2. Руководители предприятий, организаций и учреждений, осуществляющих погрузку и выгрузку вагонов, несут ответственность за соблюдение настоящих Технических условий.

Работники, непосредственно связанные с выполнением грузовых операций с вагонами, техническим обслуживанием вагонов и погрузочно-разгрузочных устройств, несут личную ответственность за обеспечение сохранности вагонов. К выполнению указанных работ не допускаются лица, не сдавшие испытаний в знании настоящих Технических условий.

§ 3. Грузоотправители обязаны подготавливать грузы к перевозке и производить погрузку и крепление их на подвижном составе в полном соответствии с действующими Техническими условиями погрузки и крепления грузов и Инструкцией по перевозке негабаритных и тяжеловесных грузов на железных дорогах СССР колеи 1520 мм и Правилами перевозок грузов, утвержденными МПС.

Перевозимые насыпные грузы должны соответствовать установленным Правилами перевозок грузов и Техническими условиями погрузки и крепления грузов требованиям предотвращения самовозгорания, слеживания, комкования и смерзания.

При загрузке и разгрузке вагонов не допускается попадание груза на межвагонные соединения, стояночный тормоз и буксовые узлы колесных пар.

Грузополучатели обязаны выгружать грузы из вагонов без повреждений подвижного состава.

§ 4. Погрузочно-разгрузочные устройства (установки, машины, оборудование, сооружения, эстакады, погрузочно-разгрузочные пути и др.), используемые для выполнения грузовых операций с вагонами, должны находиться в исправном техническом состоянии и отвечать требованиям ГОСТ 22235-76.

Проверка обеспечения эксплуатируемыми погрузочно-разгрузочными устройствами сохранности вагонов должна производиться периодически комиссией с участием представителей дороги и предприятий, эксплуатирующих соответствующие устройства. При обнаружении неисправностей погрузочно-разгрузочных устройств, вызывающих повреждения вагонов, дальнейшее применение их должно запрещаться до устранения неисправностей.

§ 5. Новые типы погрузочно-разгрузочных устройств, взаимодействующих с грузовыми вагонами, перед вводом в эксплуатацию должны быть подвергнуты комиссионному осмотру с участием представителей МПС (дороги) и головного министерства-изготовителя вагонов для установления соответствия проекту и испытаны в части правильности наладки, регулировки режимов работы и обеспечения сохранности загружаемых или разгружаемых вагонов, с представлением соответствующего акта в Главное управление вагонного хозяйства МПС. Испытания опытных образцов погрузочно-разгрузочных устройств должны проводиться в соответствии с ГОСТ 15001-73. Программа и методика испытания должны быть согласованы с МПС и головным министерством-изготовителем вагонов.

При проектировании новых и реконструкции существующих устройств, предназначенных для погрузки, выгрузки, очистки вагонов от остатков сыпучих материалов и уплотнения в них легковесных грузов, рыхления или разогрева смерзшегося в вагонах груза, должны соблюдаться требования настоящих Технических условий и ГОСТ 22235-76, а проекты устройств в обязательном порядке согласовываться с Главным управлением вагонного хозяйства МПС и головным министерством-изготовителем вагонов.

Конструкция устройств, работающих внутри кузова вагона, должна обеспечивать беспрепятственный ввод и свободное их перемещение в вагоне.

Габариты устройств должны отвечать требованиям ГОСТ 9238-83.

§ 6. В местные инструкции по эксплуатации погрузочно-разгрузочных устройств должны быть включены указания по обеспечению сохранности подвижного состава в соответствии с настоящими Техническими условиями и ГОСТ 22235-76.

§ 7. При подаче вагонов для погрузки или выгрузки грузов и выводе вагонов должны соблюдаться следующие требования:

а) до расцепки вагонов должны быть перекрыты концевые краны, разъединены соединительные рукава и выпущен сжатый воздух из тормозной системы вагонов; крышки люков полувагонов должны быть закрыты на обе закидки и на запорные секторы, а торцовые двери - на оба запора или в открытом положении закреплены к стенкам вагона (при погрузке груза, не размещающегося в пределах внутренней длины кузова полувагона).

Тормозные соединительные рукава при подаче вагонов на подъездные пути, маневровых передвижениях и выводе с подъездных путей должны быть соединены между собой;

б) борта платформ при подаче их к высоким (1100 мм и более) грузовым платформам (рампам) под погрузку или разгрузку самоходом колесных, гусеничных и других грузов должны быть опущены, а после вывода с места погрузки или выгрузки - подняты и закреплены. В случаях если груз не может быть перевезен при закрытых бортах, борта платформ могут быть оставлены в опущенном положении при условии их закрепления в полном соответствии с требованиями Технических условий погрузки и крепления грузов;

в) проволочные закрутки с дверных накладок крытых и изотермических вагонов, с увязочных устройств полувагонов и со стоечных скоб платформ, растяжки, обвязки с элементов вагонов должны сниматься с помощью специальных ножниц и кусачек или другими способами, не вызывающими повреждений вагонов.

§ 8. Категорически запрещается снимать борта платформ, двери полувагонов, другие узлы, детали и съемное оборудование вагонов без специального разрешения МПС.

§ 9. Под погрузку грузов должны подаваться исправные вагоны. Сдача под выгрузку и прием после выполнения грузовых операций поврежденных вагонов без соответствующего оформления не допускаются.

После выгрузки вагоны должны быть очищены внутри и снаружи от остатков груза и освобождены от использованных реквизитов крепления; двери, борта, крышки загрузочных и разгрузочных люков вагонов - закрыты и закреплены.

Не допускается открывать и закрывать двери, погрузочные и разгрузочные люки вагонов с применением тракторов, погрузчиков, лебедок, кранов и другой техники, не согласованной с МПС для выполнения данных работ.

§ 10. При маневровых передвижениях на погрузочно-разгрузочных путях должны соблюдаться следующие требования:

а) перед каждым передвижением вагонов погрузочно-разгрузочные машины и устройства должны быть выведены за пределы габарита подвижного состава во избежание повреждений вагонов. Необходимо предварительно убедиться в отсутствии на путях остатков груза, льда и снега, которые могут препятствовать свободному передвижению вагонов и вызвать сход вагонов или повреждение тормозного оборудования, предохранительных приспособлений, буксовых крышек, рессорного подвешивания и других деталей вагонов;

б) во избежание самопроизвольного перемещения стоящих на погрузочно-разгрузочных путях вагонов они должны быть надежно закреплены от угона ручными тормозами или тормозными башмаками в количестве и порядком, предусмотренным техническо-распорядительным актом станции (подъездного пути);

в) при передвижении вагонов маневровыми лебедками крюк или другое приспособление чалочного каната (троca) должны крепиться только за специальный кронштейн, на концевых вагонах - за корпус автосцепки, а также за специальное приспособление, устанавливаемое в зев автосцепки. Не допускается опирание каната (троса) на угловую стойку или другие элементы вагона.

Категорически запрещается подтягивать вагон за детали стояночного тормоза;

г) подтягивать вагоны кранами допускается только с применением специальных блоков, направляющих тяговый канат (трос) по оси пути и исключающих возможность отрыва кузова вагона от тележек и схода колесных пар с рельсов;

д) при использовании подвагонных маневровых тележек, передающих тяговое усилие на вагон через бандажи колесных пар, разрешается перемещать сцепы, состоящие не более чем из трех груженых или пяти порожних четырехосных вагонов.

Конструкция подвагонных маневровых устройств должна исключать образование вмятин и насечек на гребне, поверхности катания колеса и оси колесной пары;

е) при скатывании полувагонов с вагоноопрокидывателей скорость их соударения со стоящим на пути подвижным составом не должна превышать 5 км/ч;

ж) запрещается: перемещать вагоны с помощью толкателей, тракторов, бульдозеров и других средств, если тяговое усилие передается не через автосцепку, обод колеса или кронштейн для подтягивания вагона и не приняты меры против самопроизвольного ухода вагонов; производить маневры со скоростью более 3 км/ч при подходе локомотива (одиночного или с вагонами) к вагонам и со скоростью более 5 км/ч при подходе одиночных вагонов или сцепов к стоящим на пути вагонам независимо от их осности и загрузки.

Допускаемые радиусы кривых железнодорожного пути, на которых выполняется передвижение и сцепление вагонов, должны соответствовать ГОСТ 22235-76.

§ 11. В целях предупреждения повреждений вагонов запрещается:

а) погрузка на платформы и в полувагоны с деревянными или металлическими кузовами, не оборудованными защитными экранами, агломерата, окатышей, металла, проволоки и других грузов с температурой выше 100 °С, а в полувагоны с кузовами, оборудованными защитными экранами, - с температурой выше 700 °С, в крытые вагоны - с температурой выше 80 °С;

б) орошение грузов после погрузки в вагон с целью их охлаждения;

в) погрузка граншлака, свекловичного жома и других грузов, если из них стекает влага на ходовые части и автотормозное оборудование вагонов;

г) погрузка и выгрузка из вагона свекловичного жома и других грузов, а также очистка вагонов от остатков перевезенных грузов гидравлическим способом без разрешения Главного управления вагонного хозяйства МПС. При этом должна быть обеспечена защита букс, тормозных приборов и воздушной магистрали от попадания в них влаги;

д) погрузка и выгрузка круглого леса, пиломатериалов и других длинномерных грузов с установкой слег непосредственно на обшивку боковых стен полувагонов и борта платформ. Слеги должны опираться на пол платформы или верхнюю обвязку полувагона;

е) крепление различных грузов с перебрасыванием увязочной проволоки через борта платформ, имеющих внутренние стоечные гнезда или увязочные устройства, если груз не перекрывает (загораживает) эти гнезда и устройства; увязку груза на таких платформах производить только использованием внутренних стоечных гнезд или увязочных устройств. На платформах, имеющих наружные стоечные скобы, растяжки и обвязки пропускают при наличии металлических бортов под бортами или через них, а при деревянных бортах - под бортами. При этом должна быть обеспечена сохранность бортов платформ. Крепить груз через борт допускается в случаях, когда место закрепления растяжки или обвязки к грузу находится выше бортов платформы;

ж) погрузка на четырехосные платформы с деревянными бортами навалочных грузов без установки в торцовые и боковые стоечные скобы коротких стоек;

з) многоярусная укладка тарных и штучных грузов в крытых вагонах не вплотную друг к другу или без закрепления их от возможного смещения в процессе транспортировки. Зазор между закрепленным штабелем погруженного в вагон груза и полотном двери крытого вагона должен быть не менее 250 мм, а при погрузке лесоматериалов и дров - не менее 150 мм;

и) размещение грузов (железобетонных плит, металлоконструкций и др.) в наклонном положении с опорой на стенки кузова полувагона;

к) выгрузка сыпучих грузов с платформ бульдозером с заездом его на настил пола платформ, сгребанием ковшом экскаватора, а также погрузка и выгрузка тяжеловесных грузов сталкиванием их на платформы или с платформ и волочением по полу вагона. Разгрузка платформ с сыпучими грузами должна производиться с помощью устройств, имеющих предохранительные приспособления, предотвращающие повреждения пола и бортов. Зазор от режущих кромок лопаты (ножа) до элементов вагона должен быть не менее 0,05 м;

л) погрузка и выгрузка с платформ колесных, гусеничных и других тяжеловесных грузов путем наката их по откинутым боковым и торцовым бортам, с разворотом по полу платформ. Выполнение этих операций допускается только при применении прочных перекидных мостков и приспособлений, предохраняющих борта и пол платформ от повреждений;

м) погрузка неподготовленного к перевозке металлического лома (неразделенного, непакетированного). Работы по разрезке и уплотнению металлолома непосредственно в полувагонах не допускаются;

н) исправление погрузки при сдвиге груза на открытом подвижном составе и восстановление сыпучести смерзшегося или слежавшегося в вагонах груза путем соударения таких вагонов с другими вагонами, стационарными устройствами, ударами копра или с использованием других подобных способов;

о) крепление грузов к элементам конструкции вагонов с применением сварки и сверления без специального разрешения МПС;

п) применение ломов, топоров при разгрузке рефрижераторных вагонов и вагонов-ледников, а также забивание гвоздей в пол и обшивку этих вагонов при креплении в них грузов; при экипировке вагона-ледника не допускается разбивать куски льда в баках и пристенных карманах вагона;

р) погрузка фанеры, листового и сортового металла, металлических труб, бочек в накат, шифера, древесностружечных плит и других подобных грузов без ограждения торцовых стен вагона на высоту погрузки по всей ширине вагона щитами из досок (горбылей) толщиной не менее 40 мм или равнопрочными материалами. Допускается при погрузке фанеры, бочек в накат, древесностружечных плит и других аналогичных грузов торцовые стены вагона ограждать на высоту погрузки этими же грузами, установленными вертикально. Под наружные концы крайних штабелей из фанеры, листового и сортового металла, труб, древесностружечных плит и других подобных грузов должны укладываться поперечные подкладки сечением не менее 100×150 мм так, чтобы штабеля имели наклон внутрь вагона.

Погрузка и разгрузка вагонов кранами и другими грузоподъемными устройствами

§ 12. Операции по погрузке или выгрузке вагонов могут выполняться только при исправном состоянии всех устройств управления, тормозов и сигналов крана, достаточной освещенности рабочей зоны и возможности полного и удобного ее обзора из кабины крана. Если из кабины крана не обеспечивается обзор рабочей зоны внутри кузовов вагонов, а также при плохой видимости должен быть выделен рабочий для подачи сигналов машинисту крана.

§ 13. При выгрузке краном груза из кузовов вагонов и подтягивании его к вагону рабочий канат (трос) крана не должен отклоняться от вертикали. Защемленные грузом чалочные канаты, стропы или цепи не допускается выдергивать или освобождать способом, вызывающим повреждения вагонов.

§ 14. При перемещениях краном груза или грузозахватного органа без груза вблизи вагона расстояние между ними и кузовом вагона должно быть не менее 0,5 м как по вертикали, так и по горизонтали.

§ 15. Выгружать сыпучие грузы из полувагонов следует через люки и при помощи вагоноопрокидывателей. Грейферная разгрузка полувагонов как исключение допускается при перегрузке грузов, перевозимых в железнодорожно-водном сообщении, при условии обеспечения сохранности вагонов. В других случаях разгрузка грейфером допускается по разрешению МПС.

Грейфер на груз должен опускаться вертикально. Опирание грейфера на элементы конструкции вагона не допускается.

Запрещается бросать грейфер на груз в вагоне, а также выгружать грузы из полувагонов и платформ кранами с грейферами, имеющими зубья, за исключением случаев, когда такие грейферы имеют специальные ограничительные устройства. При использовании многочелюстных грейферов зачерпывать насыпной груз необходимо без касания грейфером пола вагона. Запрещается применение для разгрузки вагонов грейферов, размеры которых по ширине вагона превышают 2,5 м.

§ 16. Не допускается раскачивание грузов и удары ими, грейфером, подъемным электромагнитом, различным специальным грузозахватным оборудованием как с грузом, так и без него по бортам и полу платформ, обшивке, верхней обвязке, крышкам люков и другим элементам кузовов и рам полувагонов.

§ 17. При экскаваторном, грейферном и других способах погрузки насыпных материалов с весом отдельных кусков менее 100 кг общий вес груза, одновременно высыпаемого на одну крышку люка полувагона, не должен превышать 5 т, а высота падения - 2,5 м.

Навалочные грузы, выгружаемые через нижние люки полувагона, должны при погрузке иметь размер отдельных кусков в любом измерении не более 400 мм.

При погрузке крупнокусковых насыпных материалов с весом отдельных кусков более 100 кг, но не более 500 кг грейфер или ковш должен раскрываться на высоте не более 2,5 м от пола вагона или от поверхности груза; предварительно на днище полувагона должен насыпаться мелкокусковой груз слоем 300 - 500 мм или должны приниматься иные меры, обеспечивающие сохранность пола вагона. Общий вес груза, падающего на насыпанный слой, не должен превышать 7 т. При погрузке вагонов экскаваторами с ковшом вместимостью более 3 м3 должны разрабатываться специальные меры, обеспечивающие сохранность подвижного состава.

Навалочные грузы в виде отдельных кусков весом более 500 кг, а также штучные грузы и контейнеры следует грузить в полувагоны без сбрасывания.

При погрузке механизмами сбрасывать штучные грузы на пол платформ не допускается.

§ 18. При погрузке и разгрузке вагонов краном с подъемным электромагнитом необходимо соблюдать следующие требования:

а) не поднимать захваченный магнитной плитой груз над кузовом вагона более чем на 0,5 м во избежание повреждения вагона в случае падения груза при внезапном прекращении подачи электроэнергии;

б) при транспортировке поднятого магнитной плитой груза не проносить его над вагонами;

в) во избежание перекоса и отрыва груза центр электромагнита или середину траверсы с несколькими электромагнитами располагать над центром тяжести захватываемого груза;

г) при погрузке металлического лома, рулонов и других подобных грузов выключать электромагнитную плиту следует на высоте не более 0,5 м от пола вагона или от поверхности уложенного в кузов груза. Слитки, болванки, балки и другие металлические грузы должны при погрузке укладывать в кузов вагона без сбрасывания;

д) не отключать электромагнит при опускании магнитной плиты на груз в вагоне.

§ 19. При погрузке тяжеловесные грузы и контейнеры должны плавно опускать на пол вагона или соответствующие подкладки.

§ 20. Запрещается погрузка в вагон и выгрузка краном из вагона контейнеров и крупногабаритных ящичных грузов при отклонении их от вертикального положения.

§ 21. При погрузке лесных грузов и труб должны соблюдаться следующие требования:

а) свободное падение бревен допускается с высоты не более 2,5 м от нижнего ряда бревен, который должны укладывать на пол вагона без сбрасывания;

б) для предотвращения распора грузом боковых стенок полувагонов обязательна постановка поперечных креплений в полном соответствии с требованиями Технических условий погрузки и крепления грузов;

в) подготовленные к погрузке пакеты пиломатериалов, круглого леса и труб должны иметь габаритные размеры, удовлетворяющие требованиям действующих стандартов, и грузиться в вагон без сбрасывания.

§ 22. При выгрузке лесных грузов и труб запрещается:

а) подъем пачек груза кранами без предварительного снятия стяжек и увязочной проволоки крепления пачек к кузову вагона;

б) выгрузка краном груза целым штабелем из полувагона при смещении штабеля бревен или труб вплотную к торцовым дверям полувагона.

§ 23. Если при погрузочных и разгрузочных работах оказывается необходимым опирание рабочего каната (троса) погрузочно-разгрузочных машин на обвязку дверного проема крытого вагона, верхнюю обвязку полувагона или другие элементы вагона, то во избежание их повреждения должны применяться вспомогательные блоки или соответствующие подкладки. Непосредственное касание канатом (тросом) элементов вагона не допускается.

Погрузка и разгрузка крытых и изотермических вагонов погрузчиками и разгрузчиками

§ 24. Максимальная нагрузка от колеса погрузчика с грузом на пол вагона не должна превышать 2,2 тс для крытых вагонов, рама которых снабжена четырьмя продольными балочками для опоры настила пола (согласно трафарету на кузове вагона), и 1,5 тс для остальных крытых вагонов. При нагрузках, превышающих названные пределы, по указанию ответственного за погрузку на пути следования погрузчика должны предварительно укладывать стальные листы толщиной 4 - 5 мм.

При загрузке и разгрузке рефрижераторных вагонов, построенных в ГДР в 1964 г. и позже, допускается движение погрузчиков по покрытому резиной полу или напольным решеткам. При этом нагрузка от колеса погрузчика с грузом на пол вагона не должна превышать 1,2 тс. При нагрузке выше 1,2 тс, но не более 1,5 тс на пути следования погрузчика должны укладывать стальные листы толщиной 4 - 5 мм.

При погрузке и разгрузке рефрижераторных поездов и секций постройки до 1964 г., а также вагонов-ледников независимо от их конструкции разрешается использование погрузчиков при условии укладки на пол вагона стальных листов указанной толщины. При этом нагрузка от колеса погрузчика не должна превышать 1,2 тс.

Перед въездом погрузчиков в изотермические вагоны напольные решетки должны быть подняты или убраны. В пятивагонных секциях Брянского машиностроительного завода выпуска 1969 г. и более позднего, а также в вагонах, у которых при заводском ремонте пол был заменен на типовой, разрешается передвижение по напольным решеткам погрузчиков с нагрузкой от колеса не более 1,2 тс.

§ 25. Колеса погрузчика (разгрузчика) должны иметь резиновые шины. Расстояние между колесами должно быть не менее - 750 мм.

Вилки с грузом должны быть подняты над полом вагона на высоту не менее 0,2 м, а рама погрузчика полностью отклонена назад.

При въезде в вагон и передвижении погрузчика внутри вагона во избежание соскальзывания груза и падения его на пол следует располагать груз на вилках погрузчика равномерно, а в процессе транспортировки не допускать поперечных перекосов погрузчика. При принудительном сталкивании груза с вилок погрузчика необходимо обеспечить безударную укладку его на пол вагона. Запрещается использовать для работ внутри крытых и изотермических вагонов погрузчики, габаритная высота которых в транспортном положении не обеспечивает зазора, равного 100 мм от верхней кромки дверного проема вагона.

§ 26. При укладке в крытых вагонах грузов во второй или третий ярус подъем груза или каретки погрузчика до упора в элементы крыши вагона не допускается. Минимальный зазор от крыши должен составлять 100 мм.

§ 27. Самоходные разгрузчики непрерывного действия, используемые на выгрузке сыпучих грузов из крытых вагонов, должны быть оборудованы ограничителями, предотвращающими повреждение пола, боковых и торцовых стен вагонов режущими элементами рабочих органов.

§ 28. Самоходные устройства, предназначенные для работы внутри крытых вагонов, должны иметь ровную поверхность катания ходовых колес (гусеничных лент) без металлических ребер, зубьев и других выступающих элементов. При применении самоходных устройств с выступающими элементами на ходовых частях в вагоне на пути следования устройств должны укладываться металлические листы толщиной 4 - 5 мм.

§ 29. Открывать и закрывать самоуплотняющиеся двери крытых вагонов необходимо в соответствии с требованиями инструкций по эксплуатации указанных вагонов.

Погрузка и разгрузка вагонов-цистерн, бункерных полувагонов, вагонов-цементовозов и других специализированных вагонов

§ 30. Налив и слив грузов, перевозимых в вагонах, цистернах и бункерных полувагонах, должны производиться с соблюдением требований, предусмотренных Правилами перевозок грузов и инструкциями по эксплуатации таких вагонов.

Запрещается наливать продукт с температурой выше 100 °С в цистерны, оборудованные универсальным сливным прибором (за исключением цистерн с паровой рубашкой).

При наливе нефтебитума в бункерные полувагоны температура груза не должна превышать 150 °С, а расстояние от поверхности налитого груза до верхних кромок бортов бункера не должно быть менее 0,25 м.

Крышки люков цистерн и крышки (заглушки) сливных приборов после налива и слива, клапаны сливных приборов цистерн перед наливом и после слива груза должны быть плотно закрыты. Запрещается открывать нижний сливной прибор ударами кувалды и других тяжелых предметов по его деталям, снимать патрубки модернизированных сливных приборов цистерн при сливе или наливе, создавать в цистернах давление для ускорения слива, применять обогрев цистерн открытым пламенем.

Налив цистерны должен производиться при исправном предохранительном клапане.

После слива из цистерны предварительно разогретого острым паром продукта крышка люка и сливной прибор должны быть закрыты при температуре котла не выше 50 °С.

§ 31. В целях предупреждения повреждений кислотных и меланжевых цистерн:

а) при осмотре цистерны перед наливом крышка люка открывается только на время этого осмотра, а по окончании его немедленно закрывается с обязательной постановкой под нее кислотостойкой прокладки и закрепления до полной герметичности. Запрещается оставлять цистерны с неплотно закрытыми крышками люков;

б) после налива (слива) кислоты грузоотправитель (грузополучатель) обязан немедленно закрыть крышку люка с кислотостойкой прокладкой, плотно завернуть гайки-барашки, опломбировать цистерну, нейтрализовать и протереть ее котел от подтеков кислот. Слив кислот должен производиться полностью с удалением шлама. При работах с цистернами для перевозки кислоты не допускаются касание, вдавливание и трение посторонними жесткими предметами о гуммировку;

в) запрещается приготовление меланжа, а также ингибирование соляной кислоты непосредственно в цистернах в процессе налива. Температура меланжа при наливе в цистерны должна быть не выше +30 °С, а в летнее время - не выше +40 °С;

г) при постановке в резерв кислотные цистерны должны быть полностью освобождены от остатка груза и шлама, нейтрализованы и тщательно протерты внутри средствами предприятия, производящего налив кислоты. Крышки люков герметически закрывают с применением прокладок.

§ 32. Категорически запрещается:

а) выкалывание застывшего битума ломами и другим подручным инструментом, вырезка отверстий в бункерах бункерных полувагонов, котлах цистерн, кузовах хопперов-цементовозов для выгрузки застывшего или слежавшегося груза;

б) разогрев застывшего битума в бункерных полувагонах при помощи костров, жаровен, форсунок и подобных средств, которые могут вызвать пережог металла бункеров и другие неисправности элементов конструкции этих вагонов, в частности тормозных приборов.

§ 33. В специализированных вагонах должны перевозиться лишь те грузы, для которых они предназначены. Грузоотправители и грузополучатели должны иметь устройства для загрузки и разгрузки специализированных вагонов.

Перед загрузкой специализированного подвижного состава должны быть проверены:

температура, влажность и другие свойства грузов, перевозимых насыпью, для предотвращения слеживания, комкования и смерзания груза;

пригодность вагонов для перевозки данного груза;

исправность загрузочных и разгрузочных устройств вагонов;

комплектность и исправность устройств для крепления грузов в вагоне.

При невыполнении этих условий погрузка в специализированные вагоны не допускается.

При эксплуатации цистерн-цементовозов должны выполняться следующие требования:

температура цемента при погрузке не должна быть выше 100 °С;

патрубок загрузочного устройства, детали системы механизированной разгрузки, а также наружная поверхность цистерны после погрузки и выгрузки должны быть очищены от остатков груза. Способы очистки не должны допускать их повреждений;

погрузочно-разгрузочные люки должны быть закрыты, а работа выгрузочных устройств проверена.

В пунктах механизированной разгрузки цистерн-цементовозов компрессорные установки должны быть оборудованы маслоотделяющими фильтрами и контрольно-измерительной аппаратурой, в том числе для контроля давления в котлах загружаемых цистерн-цементовозов (давление в котле не должно превышать 2 ат). Во избежание повреждения системы механизированной разгрузки цементовозов запрещается зачищать остатки груза лопатами и ломами.

Устранять забивку цементом патрубка разгрузочного устройства необходимо порядком, предусмотренным Инструкцией по эксплуатации указанных вагонов.

При эксплуатации вагонов-хопперов должны выполняться следующие требования:

зависающий в вагоне груз должен удаляться при помощи вибромашины. Вынуждающая сила вибромашины, устанавливаемой на скобах, расположенных в нижней части бункеров, не должна превышать 650 кгс при частоте не более 47 Гц; вынуждающая сила навесной вибромашины, устанавливаемой на нижнюю обвязку хоппера, и прижимной вибромашины, воздействующей на стойки и нижнюю обвязку, не должна превышать 3700 кгс при частоте 24 - 25 Гц;

вибрационные машины должны включаться периодически не более чем на 3 с;

допускается для удаления зависшего груза применять специальные лопаты-шуровки;

штурвал ручного привода механизма разгрузки при открывании и закрывании крышек разгрузочных люков вращать без применения рычагов (труб, ломов и т.д.).

После загрузки и разгрузки очистить крышки, места отбуртовок люков и вагон снаружи от остатков грузов, закрыть крышки запирающим рычагом (запорным механизмом). Погрузочно-разгрузочные люки должны быть закрыты, а работа выгрузочных устройств проверена.

Температура загружаемого цемента не должна быть выше 70 °С.

При эксплуатации вагонов-хопперов с пневматическим приводом механизма разгрузки должны выполняться следующие требования:

давление сжатого воздуха, подаваемого в механизм разгрузки, должно быть не выше 6 кгс/см2;

при ручном управлении механизмом разгрузки крышки разгрузочных люков открывать одновременно с двух сторон рычагом длиной не более 800 мм. Перед открыванием крышки вывести фиксатор из зацепления с приводным валом.

При замерзании трубопроводов и приборов пневмосистем механизма разгрузки разогревать их открытым пламенем не допускается.

Остукивание металлических элементов кузова (рамы) для удаления остатков груза допускается производить ударами молотка весом не более 2 кг.

При эксплуатации двухъярусных вагонов для перевозки легковых автомобилей должны выполняться следующие требования:

после загрузки (разгрузки) вагона переездные площадки установить в транспортное положение и зафиксировать с помощью крюковых захватов, а колесные упоры закрепить;

при погрузке колесные упоры убрать с пути следования колес автомобилей;

скорость автомобилей при движении по площадке вагона не должна превышать 15 км/ч, а при въезде в направляющие и переезде из вагона в вагон - 6 км/ч.

В вагоны для перевозки горячих окатышей и агломерата груз должен загружаться с температурой не выше 700 °С.

Разгрузка полувагонов через нижние люки и очистка их от остатков грузов

§ 34. Открывать и закрывать секторы и закидки запорных устройств крышек люков полувагонов необходимо специальными баграми, легкими ломиками или кувалдами весом до 5 кг. При этом не допускаются сильные удары, вызывающие излом или изгиб пальцев секторов.

§ 35. Все механические устройства для закрывания крышек люков полувагонов независимо от их типа и конструктивного оформления должны быть снабжены ограничителями усилия, передаваемого на крышку люка (до 500 кгс).

Крышки люков перед закрыванием механическими устройствами должны быть очищены от остатков груза.

§ 36. Накладные вибрационные устройства, устанавливаемые на верхнюю обвязку полувагонов, не должны развивать вынуждающую силу по амплитуде более 9 тс при частоте 24 - 25 Гц и весе машины, свободно устанавливаемой на верхней обвязке полувагона, не менее 5 т.

§ 37. Длина каждого опорного элемента, контактирующего с верхней обвязкой полувагона и передающего вибрационные нагрузки, должна быть не менее 3 м для машин, работающих в ударно-вибрационном режиме, 2,5 м - для машин, работающих в вибрационном режиме.

Контактирующие поверхности опорных элементов должны быть гладкими, не иметь выступающих швов и накладок.

§ 38. Вибромашины должны устанавливаться без ударов с перекрытием опорными элементами двух стоек с каждой стороны кузова полувагона. Общее время работы вибромашины при разгрузке каждого полувагона не должно превышать 7 мин.

Машинист мостового или козлового крана, обслуживающий вибратор, должен иметь полный обзор внутренней части кузова очищаемого вагона; при использовании стрелового крана выделяется рабочий, подающий сигналы машинисту крана. Рабочий должен находиться в безопасной зоне на специальной вышке, помосте и др.

Запрещается применять накладные вибраторы для восстановления сыпучести смерзшихся грузов вибрацией кузова полувагона. Накладные вибраторы допускается применять только для зачистки полувагонов от остатков разрыхленных грузов.

§ 39. Запрещается для очистки кузова полувагона от налипшего, примерзшего и остатков невысыпавшегося груза использовать средства и способы, вызывающие повреждения внутренней поверхности кузова и элементов полувагона, в том числе остукивание кувалдами кузова, крышек разгрузочных люков и балок рамы.

При применении для очистки кузовов полувагонов специализированных агрегатов со скребками и металлическими щетками должны быть предусмотрены ограничители, исключающие возможность повреждения стенок и торцовых дверей при передвижении самоходных агрегатов вдоль очищаемых полувагонов или при протягивании полувагонов под агрегатами.

Очистные устройства, оборудованные механическими щетками, должны обеспечивать удельное давление ворса щеток не более 3 кгс/см2.

Турбореактивная установка для газодинамической очистки вагонов не должна допускать нагрева отдельных узлов и деталей вагонов выше установленного уровня (см. § 49).

Установка должна иметь:

защитные экраны с обеих сторон вагонов в зоне интенсивных потоков газовых струй (при очистке вагонов в закрытом помещении);

устройства контроля температуры деталей вагонов (допускается применение переносного устройства).

Перед подачей вагонов под очистку крышки букс с подшипниками скольжения следует плотно закрыть, соединительные рукава тормозной магистрали соединить, а торцовые двери полувагонов закрыть на оба запора или закрепить в открытом положении. После очистки следует проверить техническое состояние вагонов и выявленные неисправности устранить. Не допускается:

запуск двигателя при расположении вагонов под насадком;

работа двигателя при остановке полувагонов под насадком;

подача под очистку вагонов с отсутствующими буксовыми крышками.

§ 40. Вибрационные штыревые рыхлители, передающие воздействие непосредственно на массив разрыхляемого груза, не должны иметь вынуждающую силу по амплитуде более 20 тс при частоте 24 - 25 Гц.

Использование виброрыхлителей, рыхлящие органы которых контактируют с элементами кузова вагона, не допускается.

§ 41. Виброрыхлители-разгрузчики, предназначенные для рыхления и выгрузки груза вибрацией кузова полувагона, должны применяться только в комплекте с направляющими устройствами, исключающими в режиме рыхления контакт вибрирующих деталей рыхлителей с элементами полувагона.

В режиме рыхления параметры машины должны соответствовать требованиям § 40.

В режиме выгрузки параметры машины должны соответствовать требованиям § 36.

§ 42. В нижнем рабочем положении виброрыхлителя между концами его штырей, клиньев или других рыхлящих органов и полом полувагона должен оставаться зазор не менее 50 мм.

§ 43. Суммарное рабочее время виброрыхлителя на каждом полувагоне не должно превышать 60 мин, в том числе 7 мин работы в режиме выгрузки - виброочистки кузова полувагона.

§ 44. На виброударные установки для рыхления смерзшихся грузов, работающие с вибромолотами типа ВМ-7, которые развивают вынуждающую силу в пределах 7000 кгс при весе ударной части до 700 кг и частоте ударов 24 - 25 Гц, не распространяются ограничения по времени действия вибромеханизмов, предусмотренные § 38 и 43.

§ 45. Вибрационные штыревые рыхлители, виброрыхлители-разгрузчики, бурорыхлительные машины, а также специализированные устройства со скребками клинового, ножевого, ковшового (экскаваторного) и других типов должны быть снабжены автоматическими устройствами (ограничителями), обеспечивающими зазор не менее 0,05 м от рабочих органов до плоскости торцовых стен (дверей), боковых стен и пола вагонов. Это расстояние должно быть обеспечено как при передвижении самоходных агрегатов вдоль полувагонов и платформ, так и при передвижении полувагонов и платформ под агрегатами.

Допускается эксплуатация машин без указанных автоматических устройств при следующих ограничениях перемещения рабочих органов в процессе работы машин:

расстояние от оси железнодорожного пути до наружного контура крайнего рабочего органа по горизонтали не более 1,3 м при совмещении оси машины с осью пути;

расстояние от уровня головок рельсов до рабочего органа в нижнем положении не менее 1,5 м;

расстояние от плоскости торцовых стен (дверей) до рабочего органа не менее 0,05 м.

§ 46. Тепляки (гаражи) с конвективным способом разогрева груза в вагонах должны быть оборудованы охлаждающими устройствами (если предусматриваются рабочие режимы, требующие охлаждения), устройствами автоматической регистрации температурного режима в секции разогрева и ограничения предельно допустимой температуры разогрева, комплектом контрольно-измерительных приборов для замера температуры, приспособлениями, защищающими буксы и тормозные приборы от попадания влаги.

Перед подачей вагонов в тепляк воздух из тормозной системы вагонов должен быть выпущен, рукава тормозной магистрали соединены.

К эксплуатации допускаются тепляки, прошедшие испытания с разогревом груза в вагонах с деревянной и металлической обшивками кузова.

§ 47. При применении в тепляках орошающих устройств для охлаждения тормозных приборов вагонов на них до ввода в тепляк должны быть установлены следующие защитные приспособления:

а) резиновый жгут или хомут на шток тормозного цилиндра, у которого нет уплотняющего сальника (тонкий шток), и уплотняющее приспособление на место соединения передней (со стороны штока) крышки с корпусом тормозного цилиндра для предохранения от попадания внутрь цилиндра воды;

б) резиновые пробки для закрывания атмосферных отверстий воздухораспределителей;

в) защитные приспособления для предотвращения попадания воды через режимное устройство воздухораспределителей и демпфер авторежима;

г) пробка в отверстие диаметром 10 мм в нижней части тормозного цилиндра со стороны передней крышки;

д) заглушки на рукава тормозной магистрали крайних вагонов.

§ 48. При эксплуатации тепляков (гаражей) для размораживания смерзшихся грузов температурный режим должен обеспечивать сохранность вагонов. В тепляках, не оборудованных охлаждающими устройствами, при рабочей температуре в секции до 60 °С время нахождения вагонов в тепляке не ограничивается. При температуре в секции от 60 до 100 °С время разогрева вагонов не должно превышать 1 ч; при необходимости более длительного времени разогрева смерзшихся грузов при указанных температурах или применении рабочей температуры 100 - 130 °С тепляки должны быть оборудованы охлаждающими устройствами.

Максимальная температура в секции тепляка не должна превышать 130 °С.

В тепляках, оборудованных охлаждающими устройствами, нижняя система охлаждения включается при превышении температуры тормозного цилиндра 55 °С или в секции 100 °С. Система охлаждения не должна выключаться до окончания процесса разогрева груза.

Верхняя система охлаждения включается:

при разогреве груза в вагонах с деревянной обшивкой кузова при достижении в секции температуры 100 °С, а затем через каждый час на 3 мин;

независимо от конструкции вагонов - за 5 мин до вывода вагонов из тепляка.

Вода, идущая на охлаждение, должна подаваться на детали и узлы вагонов равномерно по всей длине тепляка и не должна быть загрязнена механическими или химическими примесями.

Давление в сети не должно быть менее 0,5 кгс/см2, а температура воды выше 25 °С.

При эксплуатации тепляков с верхним подводом теплоносителя и остропиковой технологией разогрева смерзшегося груза в вагонах максимальная температура теплоносителя на входе в секцию не должна превышать 160 °С, в секции 90 °С и на выходе из секции 60 °С.

§ 49. При разогреве в тепляках грузов в вагонах температура нагрева ответственных узлов вагона не должна превышать:

55 °С - тормозных устройств (двухкамерного резервуара, воздухораспределителя, тормозного цилиндра, приборов грузового авторежима, концевых кранов, регулятора рычажной передачи);

70 °С - соединительных рукавов, тормозной магистрали, воздушных резервуаров;

80 °С - буксового узла на роликовых подшипниках;

130 °С - крышек разгрузочных люков полувагонов;

90 °С - деревянной и металлической обшивок и остальных узлов и деталей вагонов (кроме специальных вагонов) при разогреве груза в тепляках.

Запрещается эксплуатировать тепляки без устройств автоматической регистрации температурного режима в секции разогрева и ограничения предельно допустимой температуры разогрева, а также без полного комплекта контрольно-измерительных приборов для замера температуры в следующих местах:

на входе теплоносителя в секцию;

не менее чем в трех точках по длине секции тепляка - на расстоянии 0,20 - 0,25 м от стенок вагона и на высоте 1,5 м от уровня головок рельсов;

на тормозном цилиндре вагона, стоящего вторым от ворот секции;

на входе воды, идущей на охлаждение вагонов.

При устойчивом тепловом режиме работы тепляка замер температуры на тормозном цилиндре должен проводиться с периодичностью, согласованной с управлением железной дороги.

Режим работы тепляка не должен допускать нагревания деталей вагонов выше уровня, установленного настоящим параграфом.

При разогреве груза в цистернах температура в тепляке, кроме того, должна ограничиваться в соответствии с требованиями взрывобезопасности груза.

При разогреве энергетических или коксующихся углей в полувагонах температура в секции не должна превышать 100 °С.

Разогрев в тепляках крытых вагонов, загруженных горюче-смазочными материалами, не допускается.

§ 50. После вывода вагонов из тепляка необходимо:

а) снять с тормозных приборов вагонов защитные приспособления;

б) проверить работу тормозного оборудования на торможение и отпуск;

в) смазать все шарнирные соединения рычажной передачи и авторегуляторов хода поршня тормозного цилиндра;

г) проверить состояние букс вагонов. При обильном вытекании смазки из букс с роликовыми подшипниками следует вскрыть смотровые крышки и при необходимости добавить смазку. При обводнении масла в буксах на подшипниках скольжения проводится ревизия букс с заменой подбивочных материалов и масла.

Примечание. При обильном вытекании смазки из букс с роликовыми подшипниками вскрывать смотровые крышки и добавлять смазку должны только работники вагонного хозяйства железной дороги, допущенные для производства этих работ, согласно требованиям действующих инструкций МПС и техническим указаниям по эксплуатации и ремонту вагонных букс с роликовыми подшипниками с оплатой указанных работ за счет предприятия, эксплуатирующего тепляк.

§ 51. Категорически запрещается разгрузка смерзшихся грузов с применением клин-баб, металлических болванок, взрывания; рыхление, перемещение, а также проталкивание груза в проемы люков полувагона грейферами и другими грузозахватными органами кранов; применение устройств для оттаивания груза у крышек люков и бортов открытым пламенем и других методов, вызывающих повреждение подвижного состава.

Разгрузка полувагонов на вагоноопрокидывателях и инерционных машинах. Уплотнение насыпных грузов

§ 52. После разгрузки на вагоноопрокидывателе каждый вагон должны тщательно осмотреть и установить на место выпавшие чеки и тормозные колодки, пружины и другие детали рессорного комплекта и буксового узла, закрыть крышки люков на обе закидки и зафиксировать их запорными секторами, пополнить смазку в буксах на подшипниках скольжения и устранить другие возникающие неисправности силами и за счет средств предприятия, эксплуатирующего вагоноопрокидыватель.

§ 53. Конструкции эксплуатируемых вагоноопрокидывателей должны соответствовать следующим основным требованиям:

а) упоры и опорные балочки на крюках зажимов должны иметь длину не менее 800 мм;

б) опорные поверхности зажимов и упоров должны быть армированы упругим материалом. Механизмы зажимов должны обеспечивать их одновременное и равномерное прижатие к верхней обвязке полувагона;

в) привалочные стенки вагоноопрокидывателей должны быть армированы рифлеными резиновыми плитами толщиной не менее 100 мм;

г) поверхность привалочной стенки должна иметь уклон, соответствующий углу наклона кузова вагона при его опрокидывании, для обеспечения равномерного прилегания к стенке стоек вагона по всей высоте;

д) элементы конструкции вагоноопрокидывателей должны содержаться в соответствии с нормативами на содержание вагоноопрокидывателей из условия сохранности вагонов;

е) конструкция вагоноопрокидывателей не должна допускать обезгруживания тележек вагона на протяжении всего цикла разгрузки;

ж) для выгрузки рудных концентратов, а также слеживающихся и смерзающихся грузов каждый вагоноопрокидыватель должен быть оснащен специальным щитом или другим устройством, предохраняющим обшивку боковых стенок от повреждения падающими глыбами груза;

з) иметь исправную блокировку, исключающую возможность опрокидывания полувагона до отцепки и скатывания с вагоноопрокидывателя ранее разгруженного вагона;

и) вибрационные устройства вагоноопрокидывателя, взаимодействующие с верхней обвязкой полувагона, не должны развивать вынуждающую силу по амплитуде более 9 тс, приходящуюся на один вагон, при частоте 24 - 25 Гц;

к) устройства автоматизации вагоноопрокидывателей должны обеспечивать:

блокировку, исключающую вращение ротора до полного выхода из вагоноопрокидывателя ранее выгруженного вагона, а также при работе вагонотолкателя;

блокировку, исключающую действие вагонотолкателя при вращении ротора вагоноопрокидывателя;

угловую скорость ротора при опирании полувагона на привалочную стенку, не превышающую 0,7 об/мин;

включение и выключение вибрационных устройств с ограничением продолжительности их работы до 10 с.

Вагоноопрокидыватели должны быть оборудованы конечными выключателями и сигнализацией положения ротора и полувагона на его платформе.

Вагоноопрокидыватели должны быть оборудованы системой переключения, обеспечивающей низкие скорости поворота на начальном этапе опрокидывания и плавный подход полувагона к привалочной стенке и упорам. Полувагоны на платформе вагоноопрокидывателя должны устанавливаться (фиксироваться) в положении, обеспечивающем опирание верхней обвязки кузова на все упоры при разгрузке.

§ 54. Запрещается разгрузка вагонов на вагоноопрокидывателе при неисправностях пружинных буферов платформы вагоноопрокидывателя, а также при неисправности зажимов и упоров, устройств блокировки и сигнализации и повреждении резинового армирования на более половины площади контактирования с элементами вагона.

§ 55. Запрещается удаление остатков груза из полувагона при разгрузке на вагоноопрокидывателе ударами по деталям кузова. Применение вибраторов для очистки полувагонов от остатков грузов на вагоноопрокидывателе и их рабочий режим должны быть согласованы с Главным управлением вагонного хозяйства МПС.

Выгрузка из полувагонов смерзшегося в монолит груза должна производиться только после восстановления его сыпучести.

§ 56. Для обеспечения сохранности вагонов при выгрузке сыпучих и кусковых грузов на инерционных машинах их основные узлы, особенно наклонный путь и контррельсы, щитовыжиматель, упоры, гидросистема и система сигнализации, должны находиться в исправном состоянии.

Запрещается подача вагонов на инерционную машину при отсутствии контррельсов у верхней нити рельсового пути на мосту машины и на подходах к машине.

Резонансная вибрационная машина с жестко закрепленным на ее мосту вагоном должна обеспечивать ускорение горизонтальных колебаний вагона на уровне пола не более 12 м/с2, а вертикальных - не более 9 м/с2. Амплитуда горизонтальных колебаний мостовых и безмостовых машин должна составлять не более 110 мм, а вертикальных колебаний безмостовых машин - не более 25 мм. Угол поперечного наклона рельсовой колеи на машине не должен быть более 10° (предельное возвышение верхнего рельса 0,265 м).

Постоянное усилие продольного сжатия приборов автосцепки вагонов механизмами машин в процессе разгрузки должно быть не менее 20 тс.

Зазоры между рельсами на мосту машины и рельсами железнодорожного пути на подходах к машине не должны быть более 0,02 м.

В процессе разгрузки вагон должен находиться в расторможенном состоянии, при этом тормозное оборудование должно быть закреплено устройствами, ограничивающими относительное перемещение тормозной рычажной передачи. При незакрепленных перемещающихся дверях разгрузка вагона на машине не допускается. Открытая дверь вагона должна закрепляться струбциной, исключающей ее соударение с дверными упорами, а закрытая, если в процессе работы происходит ее перемещение, - дополнительным креплением дверного закидного элемента замка.

Машина должна иметь блокировки, исключающие возможность надвига вагона на мост или его уборку до готовности машины к соответствующей операции, а также контррельсы у верхней нити рельсового пути на мосту машины и на подходе к машине.

После разгрузки следует проверить и подтянуть крепление ослабленных резьбовых соединений вагонов, при необходимости добавить масло в буксы с подшипниками скольжения.

§ 57. Элеваторно-ковшовые разгрузчики, предназначенные для разгрузки сыпучих грузов из полувагонов, должны иметь ширину захватывающей части не более 2,5 м и быть оборудованы ограничителями перемещения механизма в вагоне, обеспечивающими зазор между рабочими органами разгрузчика и торцовыми дверями и выступающими элементами пола вагона не менее 0,05 м. Ось ковша разгрузчика должна совпадать при работе с продольной осью полувагона. При выгрузке элеваторно-ковшовыми разгрузчиками полувагон должен закрепляться тормозными башмаками с обеих сторон.

§ 58. Вибрационные машины, предназначенные для уплотнения насыпных грузов при погрузке, навешиваемые на нижнюю обвязку вагонов, должны иметь вынуждающую силу по амплитуде не более 3500 кгс при частоте 24 - 25 Гц. Продолжительность вибрации за один цикл погрузки не должна быть более 5 мин. Машины должны быть снабжены приспособлениями для жесткой связи с вагонами и иметь площадь контакта с нижней обвязкой вагона не менее 0,08 м2 при собственном весе не более 500 кг.

СОДЕРЖАНИЕ

Раздел I. Технические условия размещения и крепления грузов на открытом подвижном составе. 1

Глава 1. Общие требования к размещению и креплению грузов в вагонах. 1

Общие положения. 1

Указания по перевозке грузов, не предусмотренных техническими условиями. 19

Указания по разработке технических условий размещения и крепления грузов. 45

Глава 2. Размещение и крепление лесоматериалов. 52

Общие положения. 52

Лесоматериалы, погруженные в пределах обычного габарита. 56

Круглый лес. 56

Пиломатериалы.. 64

Короткомерные лесоматериалы.. 66

Лесоматериалы в пакетах. 74

Лесоматериалы, погруженные в пределах зонального габарита. 90

Непакетированные лесоматериалы.. 91

Пакетированные лесоматериалы.. 98

Древесина в хлыстах на специальных лесовозных платформах. 111

Глава 3. Размещение и крепление металлопродукции и металлолома. 115

Общие положения. 115

Сортовая прокатная сталь. 117

Листовой металл. 139

Слябы.. 168

Слитки. 176

Блюмсы.. 180

Изложницы.. 183

Рулоны (штрипсы) 190

Бандажи и цельнокатаные колеса. 195

Металлические прокатные валки. 198

Стрелочные переводы.. 201

Металлолом.. 203

Колесные пары.. 204

Тележки для изложниц. 206

Трубы.. 207

Глава 4. Размещение и крепление железобетонных, асбестоцементных и других изделий и конструкций. 217

Железобетонные изделия и конструкции. 218

Асбестоцементные изделия. 250

Изделия крупнопанельного домостроения. 256

Железобетонные изделия в вагонах-самосвалах. 268

Пакеты из мешков с цементом.. 272

Глава 5. Размещение и крепление грузов в ящичной упаковке и неупакованных с плоскими опорами. 274

Глава 6. Размещение и крепление грузов цилиндрической формы.. 285

Глава 7. Размещение и крепление машин на колесном ходу. 289

Глава 8. Размещение и крепление машин на гусеничном ходу. 325

Глава 9. Размещение и крепление контейнеров и соломы на открытом подвижном составе. 342

Глава 10. Размещение и крепление длинномерных грузов, перевозимых на сцепах четырехосных платформ с применением турникетных опор. 356

Раздел ii. Технические условия размещения в подвижном составе грузов мелких фракций, перевозимых без тары.. 380

Приложение 1. 381

Приложение 2. 384

Приложение 3. 384

Раздел iii. Технические условия размещения и крепления грузов в крытых вагонах. 385

Раздел iv. Технические условия обеспечения сохранности вагонов при погрузке и выгрузке грузов. 412

 

 



© 2013 Ёшкин Кот :-)