Информационная система
«Ёшкин Кот»

XXXecatmenu

ТИПОВЫЕ ТЕХНОЛОГИЧЕСКИЕ КАРТЫ
НА ОТДЕЛОЧНЫЕ РАБОТЫ С ПРИМЕНЕНИЕМ
КОМПЛЕКТНЫХ СИСТЕМ КНАУФ

МДС 81-39.2005

Том 2

Типовые технологические карты
на устройство перегородок, облицовок стен
и подвесных потолков с использованием
гипсоволокнистых листов

2005

РАЗРАБОТАНЫ ОАО «Тулаоргтехстрой» (директор - В.А. Моисеев, специалисты - В.П. Кретова, К.М. Петрухина, Ю.А. Голышева, Т.П. Сиротская) при участии специалистов ООО «Кнауф Сервис» (Б. Гофманн, А.А. Федулов, М.В. Монастырский) и ООО «Кнауф Гипс Маркетинг» (В.Д. Иващенко, М.И. Бережной, Ю.А. Тамбовский).

УТВЕРЖДЕНЫ приказом Генерального директора КНАУФ по России и СНГ доктором X. Юрковичем от 20.02.2003.

Эксперты: зам. директора ЦНИЭПсельстрой, член-корреспондент Международной академии экономики и инвестиций в строительстве, канд. техн. наук В.П. Березин; доцент кафедры технологии и организации управления в строительстве МГСУ Н.М. Шумейко.

Типовые технологические карты на устройство перегородок, облицовок стен и подвесных потолков предназначены для использования при разработке проектов производства работ (ППР), проектов организации строительства (ПОС), другой организационно-технологической документации, а также являются информационным материалом для строительных организаций, производящих отделочные работы с применением комплектных систем Кнауф.

Данные технологические карты отражают современную технологию производства внутренних отделочных работ, содержат ведомость потребности в материалах и изделиях и калькуляцию трудовых затрат индивидуальных элементных сметных норм Кнауф. В технологических картах приведен полный перечень необходимого инвентаря, приспособлений и инструмента, позволяющих повысить производительность труда и качество выполняемых работ.

СОДЕРЖАНИЕ

Введение. 2

Перегородка С 361. 2

Перегородка С 362. 14

Перегородка С 363 «Противопожарная стена». 26

Перегородка С 365. 38

Перегородка С 366. 50

Перегородка С 367 «Стена безопасности». 60

Облицовка С 663. 72

Облицовка С 665. 82

Облицовка С 666. 91

Потолок П 212. 101

Потолок П 213. 108

Требования к качеству и приемке работ. 115

Техника безопасности и охрана труда, экологическая и пожарная безопасность. 121

Перечень потребного инвентаря, приспособлений и инструмента. 123

Приложение. Графическая часть к организации и технологии выполнения работ. 126

Список литературы.. 145

ВВЕДЕНИЕ

Фирма КНАУФ завершила свою многолетнюю работу по созданию полного пакета технической и нормативной документации, которую вела с 1999 г. За это время были выпущены ГОСТы на гипсокартонные и гипсоволокнистые листы (ГКЛ и ГВЛ), своды правил по проектированию и строительству с применением ГКЛ и ГВЛ, разработаны альбомы чертежей ненесущих перегородок, облицовок стен, подвесных потолков, сборных оснований полов из ГКЛ и ГВЛ, проведен ряд испытаний на определение огнестойкости и шумозащиты наших конструкций.

С применением материалов и технологий КНАУФ велись отделочные работы на таких объектах, как здание Верховного Суда РФ, Казанский вокзал, кинотеатр «Октябрь», два киноцентра «Киностар де Люкс» при ТЦ «Мега», бизнес-центр компаний «Сименс» и «Мерседес Бенц», жилые высотные дома в Москве, музыкальные театры в городах Ростове-на-Дону и Челябинске, железнодорожный вокзал в г. Екатеринбурге, здание Сбербанка в г. Воронеже, здание детской областной больницы в г. Туле, здание торгово-развлекательного центра с шестью кинозалами в г. Волгограде и множество других.

Фирма КНАУФ выпускает свои вышеназванные нормативные документы, которые наиболее полно отражают достигнутый прогресс в области отделочных работ и максимально приближены к европейским стандартам.

Все нормативные документы и технологические карты выйдут в трех томах. В 1-м томе будут даны индивидуальные элементные сметные нормы расхода материалов и затрат труда на устройство перегородок, облицовок стен и подвесных потолков с использованием ГКЛ и ГВЛ и типовые технологические карты на устройство вышеназванных конструкций с использованием ГКЛ. Во 2-м томе - технологические карты на устройство тех же конструкций с использованием ГВЛ, а в 3-м томе - нормы расхода материалов и затрат труда на штукатурные работы гипсовыми смесями КНАУФ и устройство сборных оснований полов из ГВЛ, а также все необходимые для этих видов работ технологические карты.

ТИПОВАЯ ТЕХНОЛОГИЧЕСКАЯ КАРТА
НА УСТРОЙСТВО ПЕРЕГОРОДОК
НА МЕТАЛЛИЧЕСКОМ КАРКАСЕ
КОМПЛЕКТНОЙ СИСТЕМЫ КНАУФ
С ПРИМЕНЕНИЕМ ГИПСОВОЛОКНИСТЫХ ЛИСТОВ

Перегородка С 361

1. ОБЛАСТЬ ПРИМЕНЕНИЯ

1.1. Типовая технологическая карта предназначена для разработки проектов производства работ (ППР), проектов организации строительства (ПОС), другой организационно-технологической документации, а также является информационным пособием для строительных организаций, занимающихся устройством перегородок С 361 с применением гипсоволокнистых листов (ГВЛ).

1.2. Сборные перегородки С 361 являются межкомнатными с шумозащитой 43 - 47 дБ и пределом огнестойкости EI 30 - EI 60, которые устраиваются в помещениях высотой до 8 м и предназначены для жилых, общественных и производственных зданий:

- любой степени огнестойкости;

- любых конструктивных систем и типов;

- любого уровня ответственности, включая повышенный;

- различной этажности;

- возводимых в ветровых районах до V включительно;

- возводимых в районах как с обыкновенными, так и со сложными инженерно-геологическими условиями и сейсмичностью до 9 баллов.

1.3. Перегородка С 361 имеет конструкцию, отвечающую требованиям рабочих чертежей серии 1.031.9-3.01 «Комплектные системы КНАУФ. Перегородки поэлементной сборки из гипсоволокнистых листов на металлическом и деревянном каркасах для жилых, общественных и производственных зданий», выпуск 1. Серия выпущена ЗАО «НП Челябинский Промстройпроект» при участии фирмы КНАУФ.

1.4. Перегородка С 361 состоит из одинарного металлического каркаса; двусторонней обшивки одним слоем ГВЛ толщиной 10 или 12,5 мм; звукоизоляционного слоя. Масса одного 1 м2 перегородки: при толщине ГВЛ 10 мм - 28 кг; при толщине ГВЛ 12,5 мм - 34 кг.

1.5. Каркас перегородки С 361 состоит из направляющих и стоечных оцинкованных металлических профилей, отвечающих требованиям ТУ 1121-004-04001508-2003. Стандартная длина профилей составляет: 2750; 3000; 4000; 4500 мм. По согласованию с заказчиком могут быть выпущены профили длиной от 500 до 6000 мм. Номинальная толщина профилей должна быть не менее 0,6 мм. Стенки направляющих и стоечных, а также полки стоечных профилей усилены продольными гофрами, увеличивающими их жесткость.

Направляющие профили имеют П-образную, а стоечные профили - С-образную формы. Размеры их стенок и полок (а×b) представлены в таблицах 1.1 и 1.2.

Таблица 1.1

Геометрические размеры направляющих профилей

Размер

Профиль

ПН 50

ПН 75

ПН 100

a×b, мм

50×40

75×40

100×40

Таблица 1.2

Геометрические размеры стоечных профилей

Размер

Профиль

ПС 50

ПС 75

ПС 100

a×b, мм

50×50

75×50

100×50

Направляющие профили производятся с готовыми отверстиями в стенках диаметром 8 мм, предназначенными для крепления дюбелями к несущим основаниям. В стоечных профилях имеются 3 пары отверстий в стенках диаметром 33 мм (в центре и по краям), которые позволяют монтировать технические коммуникации внутри перегородки.

Предельно допустимая высота перегородки С 361 варьируется в зависимости от ширины стенки и шага установки стоечных профилей (таблица 1.3). Данная технологическая карта может быть использована при устройстве перегородок высотой до 3,0 м.

Таблица 1.3

Максимальная высота перегородки С 361
(применительно к ГВЛ толщиной 12,5 мм)

Максимальная высота перегородки, м

Проектный шаг, мм

Тип профиля

3,0

600

ПС 50

4,0

400

5,0

300

4,5

600

ПС 75

6,0

400

7,0

300

5,0

600

ПС 100

6,5

400

8,0

300

При использовании ГВЛ другой номинальной толщины максимальная высота перегородки определяется по таблице перегородок на металлическом каркасе из альбома чертежей серии 1.031.9-3.01.

1.6. ГВЛ представляет собой экологически чистый листовой отделочный материал, изготовленный из строительного гипса марки не ниже Г-4 (ГОСТ 125-79), распушенной целлюлозной макулатуры марок МС-10 и МС-11 (ГОСТ 10700-89), содержащей различные технологические добавки. Типовой размер ГВЛ, который применялся при разработке данной технологической карты, равен 2500×1200×(10) 12,5 мм.

По заказу строительных организаций могут выпускаться партии листов других типоразмеров согласно ГОСТ Р 51829-2001, которые приведены в таблице 1.4.

Таблица 1.4

Размеры ГВЛ

Длина, мм

1500; 2000; 2500; 2700; 3000

Ширина, мм

500; 1000; 1200

Толщина, мм

10; 12,5; 15; 18; 20

ГВЛ выпускаются с различными формами продольных кромок: фальцевая (ФК); прямая (ПК). Данная технологическая карта предусматривает обшивку каркаса ГВЛ с фальцевой кромкой (ФК).

Масса 1 м2 (поверхностная плотность) ГВЛ - 1,05S < m < 1,2S (кг/м2), где S - толщина листа, мм. Удельная активность естественных радионуклидов не более 370 Бк/кг (ГОСТ 12.1.044-89*), т.е. ГВЛ относится к I группе.

Пожаротехнические характеристики ГВЛ соответствуют:

- горючесть - Г1 (ГОСТ 30244-94);

- воспламеняемость - В1 (ГОСТ 30402-96);

- дымообразующая способность - Д1 (ГОСТ 12.1.044-89);

- токсичность - Т1 (ГОСТ 12.1.044-89).

Отпускная влажность листов не должна превышать 1,5 %; плотность - не более 1250 кг/м3.

1.7. Для крепления ГВЛ к каркасу перегородок применяют самонарезающие винты с зенкующей головкой, а для крепления элементов каркаса перегородок к конструкциям здания - дюбели.

1.8. Монтаж перегородок производят в период отделочных работ по окончании «мокрых» процессов, способных существенно повысить влажность воздуха внутри помещения, до устройства чистого пола.

В помещениях, где производят монтаж перегородок С 361, температура воздуха не должна быть ниже +10 °С.

Температурно-влажностный режим помещения должен соответствовать требованиям СНиП 23-02-2003 «Тепловая защита зданий».

1.9. Типовая технологическая карта разработана на измеритель конечной продукции - 1 м2 перегородки. Привязка типовой технологической карты к конкретному объекту и условиям строительства состоит в уточнении необходимых материальных ресурсов и схем организации строительного процесса, соответствующего рабочим чертежам.

2. ОРГАНИЗАЦИЯ И ТЕХНОЛОГИЯ ВЫПОЛНЕНИЯ РАБОТ

2.1. К устройству перегородок С 361 рекомендуется приступать только после:

- наличия утвержденной проектной документации (рабочих чертежей);

- наличия проекта производства работ, который должен предусматривать комплексную механизацию работ с наиболее полным использованием специализированного инструмента и приспособлений, способствующих повышению производительности труда, сокращению сроков возведения перегородок, уменьшающих трудозатраты и создающих наиболее безопасные условия труда;

- производства организационно-технологической подготовки, которая включает в себя подготовку необходимой оснастки, средств подмащивания и доставки ГВЛ в зону производства работ (рисунок 3)*.

______________________

* Все рисунки, указанные в тексте, приведены в приложении.

2.2. До начала монтажа элементов перегородки необходимо закончить все общестроительные, а также строительно-монтажные работы, которые могут вызвать повышение влажности ГВЛ, произвести уборку строительного мусора и инструментальную проверку соответствия основания для установки направляющих и стоечных профилей каркаса перегородки. Подготовленное основание должно быть оформлено актом приемки за подписью ответственных представителей строительной организации.

2.3. Работы по монтажу перегородок С 361 выполняют под руководством ИТР. Рабочие, выполняющие монтажные работы, должны пройти техническое обучение в учебных центрах «КНАУФ» или других специализированных учебных заведениях и иметь удостоверение на право производства работ.

2.4. Перегородки возводят поточно-расчлененным методом, по захваткам, со специализацией звеньев бригады на выполнение однотипных работ и оснащенных соответствующим набором инструментов, инвентаря и средств подмащивания. Каждое звено состоит из двух человек: монтажник конструкций 4-го разряда, монтажник конструкций 3-го разряда.

2.5. Доставку на объект ГВЛ, упакованных в полиэтиленовую пленку, производят централизованно автотранспортом. По согласованию с потребителем допускается транспортировать листы в непакетированном виде (без обвязки или упаковки в пленку). Размер упаковки ГВЛ 2500×1200×650 мм. Габариты пакетов не должны превышать по длине 4100 мм, ширине 1300 мм, высоте 800 мм; масса пакета не должна быть более 3000 кг (рисунок 1).

ГВЛ следует хранить в помещениях с сухим и нормальным влажностным режимом, раздельно по видам и размерам, с соблюдением техники безопасности и сохранности продукции. Общая высота складируемого штабеля с ГВЛ не должна превышать 3,5 м (рисунок 2). Расстояние между штабелями складирования не должно быть менее 1 м.

2.6. Доставку на объект металлических профилей каркаса перегородок допускается производить автотранспортом при условии их защиты от механических воздействий. Хранение профилей на закрытых приобъектных складах должно производиться в кондукторе пакетами по типам.

2.7. При производстве погрузочно-разгрузочных работ следует избегать ударов. Укладку пакетов с профилями на транспортные средства следует осуществлять погрузчиками. Вышеуказанные работы должны производиться в соответствии с требованиями ГОСТ 12.3.009-76*.

2.8. Подъем материалов на этажи рекомендовано производить с помощью машин и механизмов, указанных в сборнике ЕНиР-1 «Внутрипостроечные транспортные работы».

2.9. Транспортирование ГВЛ к месту производства работ на этаже следует осуществлять ручными тележками. При переносе ГВЛ вручную - с помощью специальных приспособлений.

2.10. Устройство перегородки С 361 предусмотрено производить в следующем порядке:

- разметка проектного положения перегородки;

- установка элементов одинарного каркаса;

- обшивка каркаса ГВЛ с одной стороны;

- прокладка проектных инженерных коммуникаций;

- установка и закрепление изоляционного материала внутри перегородки;

- обшивка каркаса ГВЛ с другой стороны;

- установка электротехнических коробок, розеток, выключателей и т.п. и их крепление к ГВЛ;

- заделка стыков между ГВЛ и углублений от винтов;

- подготовка поверхности перегородок под чистовую отделку.

2.10.1. Разметка проектного положения перегородки (рисунок 4).

Разметку проектного положения элементов каркаса перегородки С 361 производят в строгом соответствии с проектным решением и согласно рабочим чертежам. Для быстрой и безошибочной установки перегородок рекомендуется отмечать на полу места расположения стоечных профилей, дверных и других проемов. В дверном проеме должно быть указано, какая устанавливается дверь (правая или левая). Разметку производят с помощью складного метра, рулетки, метростата и шнуроотбойного устройства. Разметку больших помещений производят с помощью лазерного или оптического нивелира.

Вначале разметку проектного положения каркаса выполняют на полу. Разметку начинают от стены, расположенной параллельно возводимой перегородке, вынося горизонтальную ось. Затем на этой оси отмечают расположение стоечных профилей с проектным шагом, дверных и других проемов, а также выводов и сквозных проходов коммуникаций. Для данной технологической карты шаг равен 600 мм.

Расстояние от стоечного профиля, примыкающего к стене, до первого отстоящего от стены профиля должно быть меньше проектного шага на 25 мм.

Затем с помощью метростата и шнуроотбойного устройства (если высота помещения больше 3 м, то - нивелира или отвеса) разметку зеркально переносят на потолок. Вертикальные оси каркаса перегородки с помощью метростата и отвеса наносят на стены помещения, примыкающие к каркасу.

2.10.2. Установка элементов одинарного каркаса (рисунок 6).

Элементы каркаса перегородки С 361 состоят из направляющих профилей (ПН) и стоечных профилей (ПС), имеющих стандартные размеры.

На полках стоечных профилей выполнены продольные гофры, которые увеличивают их жесткость. Центральный гофр является ориентиром как при точной сборке каркаса, так и при установке ГВЛ.

Типоразмеры стоечных и направляющих профилей выбирают исходя из высоты конструкции перегородки в полном соответствии с рабочими чертежами.

Допускается соединение стоечных профилей по длине методом насадки или встык с дополнительным профилем. В этих случаях длина нахлеста определяется по таблице 2.1, а длина дополнительного профиля должна быть не менее 20-кратной величины стенки стоечного профиля.

Таблица 2.1

Соединение стоечных профилей

Тип профиля

Длина нахлеста, см

ПС 50

≥50

ПС 65

≥65

ПС 75

≥75

ПС 100

≥100

Соединение (удлинение) профилей производят с помощью просекателя методом «просечки с отгибом», в отдельных случаях посредством винтов LN 3,5×9.

Стоечные профили должны иметь высоту на 10 мм меньше расстояния между стенками верхних и нижних направляющих профилей.

Установку направляющих профилей осуществляют согласно разметке их проектного положения на полу и на потолке.

С целью повышения звукоизоляционной способности перегородки на стенки направляющих профилей ПН наклеивают уплотнительную ленту. После раскроя и полной подготовки направляющих профилей приступают к их монтажу по линии разметки на полу, а затем - на потолке. Крепление направляющих профилей осуществляют дюбелями с шагом не более 1 м. Закреплять профиль ПН необходимо не менее чем в трех точках независимо от его длины. При необходимости дополнительные отверстия в стенке направляющего профиля высверливают дрелью.

Установку стоечных профилей также осуществляют по их проектному положению, а их типоразмер должен соответствовать рабочим чертежам (в рассматриваемом случае шаг стоек равен 600 мм).

Предварительно на стоечные профили, примыкающие к конструкциям здания, наклеивается уплотнительная лента. Стоечные профили устанавливают в закрепленные в проектном положении направляющие профили.

Установку стоек начинают от стен, к которым профили крепятся дюбелями с шагом не более 1 м, но не менее трех креплений на одну стойку. Каждая стойка устанавливается строго вертикально и с помощью просекателя закрепляется к направляющему профилю на полу и на потолке. Закрепление производят не менее чем в двух точках с каждой стороны направляющего профиля (т.е. четыре просечки вверху и четыре просечки внизу).

Если высота помещения превышает длину ГВЛ, то в местах торцевых стыков устраивают горизонтальные вставки из ПН, на которых должны располагаться поперечные швы. Для устройства вставок из направляющего профиля вырезают заготовки путем надреза полок профиля и отгиба согласно рабочим чертежам.

Крепление вставок к полкам стоечных профилей осуществляют просекателем, а к стенкам - самонарезающими винтами длиной 9 мм.

Если перегородка имеет дверной проем, то дверная коробка устанавливается одновременно с монтажом каркаса. По дверной коробке монтируют опорные стоечные профили, дверную перемычку из направляющего профиля и промежуточные стойки над проемом. Стоечные профили, ограничивающие дверной проем, устанавливают на всю высоту перегородки, независимо от размера шага (рисунок 7).

Стоечные профили для крепления ГВЛ и дверной коробки не совмещаются. Опорные стойки для дверей массой до 35 кг укрепляют вставкой из деревянных брусков или дополнительным профилем. Для этого на всю длину стойки вставляют деревянный брусок такого же сечения или соединяют с помощью винтов LN 3,5×9 с одноразмерным направляющим или стоечным профилем таким образом, чтобы получилось коробчатое сечение. Если в проекте не указано наличие «левой» или «правой» двери, то усиливают обе стойки.

Брус должен быть выполнен из древесины хвойных пород не ниже второго сорта по ГОСТ 8486-86 и обработан антисептиками и антипиренами в соответствии с требованиями СНиП 3.03.01-87. Влажность древесины не должна превышать 12 % ± 3 %.

Перед установкой стоечных профилей, ограничивающих дверной проем, в местах их установки крепят с помощью анкерных дюбелей 4 уголка: два верхних и два нижних.

Эти уголки, имеющие клипсы, крепятся внутри направляющих профилей и предназначены для увеличения жесткости дверного проема. С помощью клипс к ним крепятся стоечные профили дверного проема, которые не доходят до направляющих профилей на 3 - 5 мм.

Положение уголков в дверном проеме перегородки и крепление к ним стоечных профилей показаны на рисунке 7.

Затем монтируют из направляющего профиля перемычку, ограничивающую высоту дверного проема. Горизонтальность установки перемычки проверяют с помощью уровня. Крепление перемычки из профиля ПН к стоечным профилям производят в двух точках с каждой стороны с помощью просекателя.

После установки перемычки монтируют промежуточные стойки над дверным проемом с сохранением проектного шага. Это необходимо для того, чтобы вертикальный стыковочный шов ГВЛ оказался над дверным проемом, что снижает вероятность трещинообразования в швах.

В местах сопряжения перегородок с коммуникациями между стоечными профилями устанавливают перемычки из направляющего профиля с их закреплением просекателем к профилю ПС. При групповой прокладке трубопровода допускается устройство общего обрамления.

При необходимости пропуска инженерных коммуникаций больших размеров допускается срезка вертикальных стоек с установкой по краям отверстия дополнительных стоечных профилей каркаса на всю высоту перегородки. В местах пересечения перегородок трубопроводами парового, водяного отопления и водоснабжения устанавливают гильзы.

Контроль за точностью установки каркаса осуществляют с помощью складного метра, метростата или нивелира.

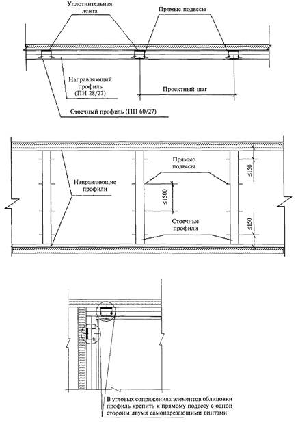
Если длина перегородки превышает 15 м, то требуется устройство деформационного шва (рисунок 10). Кроме того, деформационные швы перегородки должны повторять деформационные швы здания.

На смонтированный в проектное положение каркас перегородки необходимо оформить акт приемки за подписью главного инженера строительной организации и лица - надзора от проектной организации.

2.10.3. Обшивка каркаса гипсоволокнистыми листами с одной стороны.

Перед установкой ГВЛ в местах примыкания обшивки к поверхностям потолка и стен (колонн), выполненных из другого материала, наклеивают разделительную ленту.

Установка ГВЛ начинается от основной стены помещения в вертикальном положении. Перед установкой на торцах каждого ГВЛ, образующих горизонтальный стык, делают фальц шириной 30 мм и глубиной 2 мм (рисунок 5).

Горизонтальную стыковку ГВЛ выполняют вразбежку с шагом не менее 400 мм. Торцы опираются на вставку из направляющего профиля. Между полом и ГВЛ оставляется зазор около 10 мм. По вертикали ГВЛ стыкуются только на стойках каркаса (рисунок 8).

Крепление ГВЛ осуществляют самонарезающими винтами с зенкующей головкой длиной 30 мм с помощью электрошуруповерта с магнитной головкой. Шаг винтов 250 мм. Крепятся ГВЛ по периметру и по центральной вертикальной оси, где нанесены звездочки (рисунок 9).

Монтаж ГВЛ ведется в одном направлении с открытой частью профиля. Установка винтов, закрепляющих предыдущий лист, со стороны стенки профиля предотвращает отгибание слабого края полки внутрь профиля при креплении следующего листа.

Крепление винтами на стыке ГВЛ осуществляют вразбежку через 50 мм с винтами соседнего ряда и отступлением от края ГВЛ на 10 мм. Крепежные винты должны входить в ГВЛ под прямым углом и проникать в полку профиля на глубину не менее 10 мм. Головки винтов должны быть утоплены в поверхность ГВЛ на глубину, позволяющую их зашпаклевать.

2.10.4. Прокладка проектных инженерных коммуникаций.

Облицевав одну сторону каркаса перегородки ГВЛ, приступают к монтажу электротехнической проводки. Кабели размещают перпендикулярно стойкам каркаса (для чего в них имеются отверстия) в строгом соответствии с рабочим проектом. Не допускается размещать электропроводку вдоль стоек или внутри них во избежание ее повреждения при обшивке ГВЛ с другой стороны. Прокладку электросети выполняет специализированное звено электромонтажников. В ГВЛ вырезают отверстия под коробки, розетки, выключатели, а проводку выводят наружу. При необходимости производят прокладку и других коммуникационных сетей, предусмотренных проектом.

2.10.5. Установка и закрепление изоляционного материала внутри перегородок.

Установку изоляционного материала производят после обшивки каркаса с одной стороны и прокладки инженерных сетей.

Установка изоляционного (минераловатного) материала производится вручную в пространство между стоечными профилями. При необходимости изоляционный материал прикрепляют к смонтированным ГВЛ или фиксируют с помощью вкладышей, крепящихся к стенкам профиля ПС.

2.10.6. Обшивка каркаса перегородки гипсоволокнистыми листами с другой стороны.

Обшивка каркаса перегородки ГВЛ с обратной стороны производится после укладки изоляционного слоя в той же последовательности и с теми же требованиями, что изложены выше в п. 2.10.3, но со смещением на один шаг профиля относительно листов другой стороны.

Раскрой доборных листов осуществляют в процессе выполнения работ. Примыкание листов обшивки к дверным коробкам осуществляют «заподлицо».

2.10.7. Установка электротехнических коробок, розеток, выключателей и их крепление к ГВЛ.

По окончании монтажа ГВЛ с обеих сторон каркаса устанавливают электрические коробки, розетки, выключатели и т.п., которые крепят к ГВЛ с помощью специальной фурнитуры. Отверстия под электрические розетки, выключатели и т.п. в целях пожарной безопасности вырезают с противоположных сторон перегородки, со смещением минимум на 200 мм. Эти работы выполняет звено электромонтажников.

2.10.8. Заделка стыков между ГВЛ и углублений от винтов.

Шпаклевание стыков между ГВЛ производят при стабильной температуре и влажности воздуха в помещениях, соответствующих режиму эксплуатации (t не должна быть ниже +10 °С). Недопустимы сквозняки и резкие колебания температуры в помещениях. Предварительно кромки ГВЛ обрабатывают грунтовкой Тифенгрунд.

Заделке шпаклевочной смесью Фугенфюллер ГВ подлежат продольные и поперечные швы, стыки между перегородкой и стенами (колоннами), перегородкой и потолком. Продольные и поперечные швы ГВЛ заделывают с применением армирующей ленты.

До обработки стыков необходимо проверить надежность крепления ГВЛ. Выступающие головки винтов следует довернуть. Производство работ, ведущих к повышению влажности в помещении, к этому времени должно быть завершено.

В зависимости от назначения помещений требования к отделке поверхностей из ГВЛ можно разделить на 3 вида, как это принято в большинстве европейских стран:

Качество 1 (К1) - определяет качество поверхности швов и поверхностей ГВЛ, к которым не предъявляют оптические требования, т.е. поверхность может иметь волнистый рельеф, где гребень не должен превышать 1,5 мм. Такая поверхность ГВЛ предназначена для облицовки плиткой, оштукатуривания или под облицовку какими-либо другими материалами.

Качество 2 (К2) - соответствует существующему стандартному качеству поверхностей стен и потолков. Шпаклевание выполняется с целью достижения плавных переходов от поверхностей сопряжений к поверхности ГВЛ. Все переходы от швов, внутренних и внешних углов, крепежных элементов должны быть незаметны на глаз. Для этой цели зашпаклеванные швы обрабатывают пастой Кнауф Финиш на ширину примерно 30 см. Такая поверхность ГВЛ предназначена для структурированной окраски, оклейки структурными обоями, для тонкослойного оштукатуривания.

Качество 3 (К3) - предъявляет повышенные требования к качеству поверхности стен и потолков, т.е. кроме стандартного шпаклевания для К2, необходимо полное покрытие поверхности ГВЛ шпаклевочным материалом с последующим шлифованием. Для этих целей чаще всего используют пасту Финиш или Редигипс, а также шпаклевочные смеси.

Такая поверхность предназначена для высококачественной окраски стен и потолков любыми видами красок, оклейки глянцевыми тонкослойными обоями, оштукатуривания тонкоструктурированными растворными смесями с крупностью зерна менее 1 мм.

В данной технологической карте отделка поверхности относится к виду К1, на которую даются нормативы трудозатрат и расхода материалов. Более качественная отделка поверхности оговаривается заказчиком и на нее составляется отдельная смета.

Последовательность действий при обработке продольных и поперечных стыков между ГВЛ следующая:

- перед шпаклеванием обработка грунтовкой глубокого проникновения всех стыков;

- нанесение шпателем первого слоя шпаклевки на стык между листами шириной чуть больше ширины армирующей ленты;

- вдавливание шпателем армирующей ленты в нанесенную шпаклевку;

- после высыхания первого слоя шпаклевки широким шпателем нанесение второго слоя шпаклевки на всю ширину стыковочного шва.

Заделке шпаклевочной смесью Фугенфюллер ГВ подлежат углубления от винтов, стыки между перегородкой и стенами (колоннами), перегородкой и потолком. В местах стыковок на эти конструкции предварительно крепится самоклеящаяся разделительная лента. После заделки стыков и полного высыхания шпаклевки излишки ленты срезаются, а шов шлифуется.

В некоторых случаях при монтаже перегородок образуются внешние углы, которые защищают от механических повреждений при помощи металлических перфорированных уголков из оцинкованной стали (ПУ 31×31×0,4), которые крепят к ГВЛ с помощью специального приспособления, указанного в перечне инструментов. После крепления уголки шпаклюют и после высыхания шлифуют.

По окончании всех шпаклевочных работ поверхность перегородок обрабатывается с помощью кисти, щетки или валика грунтовкой Тифенгрунд. Это необходимо сделать с целью предотвращения образования трещин в швах из-за возможного изменения влажностного режима в помещении (особенно весной, осенью или при проведении отделочных работ мокрым способом).

3. ПОТРЕБНОСТЬ В ИНВЕНТАРЕ И МАТЕРИАЛАХ

Перечень потребного инвентаря, приспособлений и инструмента - см. на стр. 144.

Таблица 3.1

Нормативные показатели расхода материалов на устройство 1 м2 перегородки С 361

Наименование материалов

Ед. измерения

Размер перегородки, м

4×2,7
(глухая)

6×2,7
(один проем)

9×2,7
(два проема)

16,2×2,7
(три проема и темпер. шов)

1

2

3

4

5

6

Каркас и крепежные изделия

Профиль направляющий ПН 50/40,
ТУ 1121-004-04001508-2003

м

1,51

1,58

1,61

1,59

Профиль стоечный ПС 50/50,
ТУ 1121-004-04001508-2003

м

2,04

2,54

2,6

2,44

Профиль направляющий ПН 28/27 (на устройство темпер. шва),
ТУ 1121-004-04001508-2003

м

-

-

-

0,15

Лента уплотнительная типа Дихтунгсбанд сеч. 50×3,2 мм

м

1,26

1,17

1,07

0,94

Дюбель типа К 6/35

шт.

1,69

1,63

1,43

1,17

Материал изолирующий из минеральных волокон

м2

1,03

1,03

1,03

1,03

Брусок деревянный, размер 50×50×2695 мм

м

-

0,39

0,54

0,44

Дюбели анкерные металлические

шт.

-

0,7

0,97

0,79

Верхний уголок для крепления несущих элементов двери 100×123 мм

шт.

-

0,14

0,20

0,16

Нижний уголок для крепления несущих элементов двери 100×123 мм

шт.

-

0,14

0,20

0,16

Обшивка

Лист гипсоволокнистый ГВЛ 12,5 мм, ГОСТ Р 51829-2001

м2

2,1

2,26

2,35

2,3

Лист гипсоволокнистый ГВЛ 10 мм, ГОСТ Р 51829-2001

м2

-

-

-

0,007

Винт самонарезающий с острым концом и зенкующей головкой, ГОСТ 11652-80*, длиной, мм:

 

 

 

 

 

30

шт.

35,33

37,88

36,01

36,12

45

шт.

-

-

-

0,69

9

шт.

-

-

-

0,88

Заделка швов

Шпаклевка Фугенфюллер ГВ, ТУ 5745-011-04001508-97

кг

0,92

0,91

0,90

0,89

Лента армирующая

м

2,27

2,49

2,64

2,86

Лента разделительная 50 мм

м

1,77

1,62

1,42

1,15

Грунтовка Тифенгрунд

кг

0,22

0,22

0,22

0,22

4. НОРМАТИВНЫЕ И ТЕХНИКО-ЭКОНОМИЧЕСКИЕ ПОКАЗАТЕЛИ
(ИЗМЕРИТЕЛЬ КОНЕЧНОЙ ПРОДУКЦИИ - 1 м2)


Таблица 4.1

Затраты труда на устройство перегородки С 361

№ п.п.

Наименование технологических процессов

Единица измерения

Объем работ

Обоснование

Норма времени

Затраты труда

рабочих, чел.-ч

машиниста, чел.-ч (работа машин, маш.-ч)

рабочих, чел.-ч

машиниста, чел.-ч (работа машин, маш.-ч)

1

Устройство каркаса

м2

1

Расчет ОАО «Тулаоргтехстрой» методом технического нормирования

0,31

-

0,31

-

2

Обшивка каркаса

м2

1

0,30

-

0,30

-

3

Устройство изоляционного слоя

м2

1

0,1

-

0,1

-

4

Заделка швов, обработка поверхности

м2

1

0,33

-

0,33

-

5

Подача материалов на этажи подъемником грузоподъемностью до 1 т при высоте подъема до 8 м (добавлять на каждые следующие 6 м)

100 т

0,00034

Е1-16

36
(6,8)

9
(1,7)

0,0122
(0,001904)

0,0031
(0,000476)

6

Перевозка материалов по этажу ручными тележками на расстояние до 30 м

1 т

0,034

Е1-21

1,1

-

0,037

-

 

Итого:

 

 

 

 

 

1,089

0,0031

Затраты труда на устройство перегородок с проемами и деформационными швами
(без учета прочих работ)

С одним дверным проемом

1,08 чел.-ч

С двумя дверными проемами

1,09 чел.-ч

С тремя дверными проемами и деформационным швом

1,1 чел.-ч

Таблица 4.2

График производства работ

№ п.п.

Наименование технологических процессов

Единица измерения

Объем работ

Затраты труда

Принятый состав звена

Продолжительность процесса, ч

рабочих, чел.-ч

машиниста, чел.-ч (работа машин, маш.-ч)

1

Устройство каркаса

м2

1

0,31

 

Монтажники конструкций 4-го и 3-го разрядов, 2 чел.

0,155

2

Обшивка каркаса

м2

1

0,30

 

0,15

3

Устройство изоляционного слоя

м2

1

0,1

 

0,05

4

Заделка швов, обработка поверхности

м2

1

0,33

 

0,165

5

Прочие работы

м2

1

0,049

0,0031

0,025

 

Итого:

 

 

1,089

 

 

0,545

 


Рисунок 4.1 - График движения рабочей силы

Таблица 4.3

Технико-экономические показатели

№ п.п.

Наименование

Единица измерения

Количество

1

Продолжительность работ

ч

0,545

2

Трудоемкость на 1 м2:

 

по нормам

чел.-ч

1,04

 

по графику (с учетом прочих работ)

 

1,089

3

Максимальная численность рабочих

чел.

2

4

Выработка на 1 чел.-ч

м2

1,82

ТИПОВАЯ ТЕХНОЛОГИЧЕСКАЯ КАРТА
НА УСТРОЙСТВО ПЕРЕГОРОДОК
НА МЕТАЛЛИЧЕСКОМ КАРКАСЕ
КОМПЛЕКТНОЙ СИСТЕМЫ КНАУФ
С ПРИМЕНЕНИЕМ ГИПСОВОЛОКНИСТЫХ ЛИСТОВ

Перегородка С 362

1. ОБЛАСТЬ ПРИМЕНЕНИЯ

1.1. Типовая технологическая карта предназначена для разработки проектов производства работ (ППР), проектов организации строительства (ПОС), другой организационно-технологической документации, а также является информационным пособием для строительных организаций, производящих устройство перегородок С 362 с применением гипсоволокнистых листов (ГВЛ).

1.2. Сборные перегородки С 362 предназначены для устройства перегородок с шумозащитой 46 - 50 дБ и пределом огнестойкости EI 90, которые устраиваются в помещениях высотой до 8 м и предназначены для жилых, общественных и производственных зданий:

- любой степени огнестойкости;

- любых конструктивных систем и типов;

- любого уровня ответственности, включая повышенный;

- различной этажности;

- возводимых в ветровых районах до V включительно;

- возводимых в районах как с обыкновенными, так и со сложными инженерно-геологическими условиями и сейсмичностью до 9 баллов.

1.3. Перегородка С 362 имеет конструкцию, отвечающую требованиям рабочих чертежей серии 1.031.9-3.01 «Комплектные системы КНАУФ. Перегородки поэлементной сборки из гипсоволокнистых листов на металлическом и деревянном каркасах для жилых, общественных и производственных зданий», выпуск 1. Серия выпущена ЗАО «НП Челябинский Промстройпроект» при участии фирмы КНАУФ.

1.4. Перегородка С 362 состоит из одинарного металлического каркаса; двусторонней обшивки двумя слоями гипсоволокнистых листов толщиной 10 или 12,5 мм; звукоизоляционного слоя. Масса одного 1 м2 перегородки: при толщине ГВЛ 10 мм - 53 кг; при толщине ГВЛ 12,5 мм - 65 кг.

1.5. Каркас системы С 362 состоит из направляющих и стоечных оцинкованных металлических профилей, отвечающих требованиям ТУ 1121-004-04001508-2003. Стандартная длина профилей составляет: 2750; 3000; 4000; 4500 мм. По согласованию с заказчиком могут быть выпущены профили длиной от 500 до 6000 мм. Номинальная толщина профилей должна быть не менее 0,6 мм. Стенки направляющих и стоечных, а также полки стоечных профилей усилены продольными гофрами, увеличивающими их жесткость.

Направляющие профили имеют П-образную, а стоечные профили - С-образную формы. Размеры их стенок и полок (a×b) представлены в таблицах 1.1 и 1.2.

Таблица 1.1

Геометрические размеры направляющих профилей

Размер

Профиль

ПН 50

ПН 75

ПН 100

a×b, мм

50×40

75×40

100×40

Таблица 1.2

Геометрические размеры стоечных профилей

Размер

Профиль

ПС 50

ПС 75

ПС 100

a×b, мм

50×50

75×50

100×50

Направляющие профили производятся с готовыми отверстиями в стенках диаметром 8 мм, предназначенными для крепления дюбелями к несущим основаниям. В стоечных профилях имеются 3 пары отверстий в стенках диаметром 33 мм (в центре и по краям), которые позволяют монтировать технические коммуникации внутри перегородки.

Предельно допустимая высота перегородки С 362 варьируется в зависимости от ширины стенки и шага установки стоечных профилей. Она представлена в таблице. 1.3. Данная технологическая карта может быть использована при устройстве перегородок высотой до 4,0 м.

Таблица 1.3

Максимальная высота перегородки С 362
(применительно к ГВЛ толщиной 12,5 мм)

Максимальная высота перегородки, м

Проектный шаг, мм

Тип профиля

4,0

600

ПС 50/50

5,0

400

6,0

300

5,5

600

ПС 75/50

6,5

400

7,5

300

6,5

600

ПС 100/50

7,5

400

9,0

300

При использовании ГВЛ другой номинальной толщины максимальная высота перегородки определяется по таблице перегородок на металлическом каркасе из альбома чертежей серии 1.031.9-3.01.

1.6. ГВЛ представляет собой экологически чистый листовой отделочный материал, изготовленный из строительного гипса марки не ниже Г-4 (ГОСТ 125-79), распушенной целлюлозной макулатуры марок МС-10 и МС-11 (ГОСТ 10700-89), содержащий различные технологические добавки. Типовой размер ГВЛ, который применялся при разработке данной технологической карты, равен 2500×1200×(10) 12,5 мм.

По заказу строительных организаций могут выпускаться партии листов других типоразмеров согласно ГОСТ Р 51829-2001, которые приведены в таблице 1.4.

Таблица 1.4

Размеры ГВЛ

Длина, мм

1500; 2000; 2500; 2700; 3000

Ширина, мм

500; 1000; 1200

Толщина, мм

10; 12,5; 15; 18; 20

ГВЛ выпускают с различными формами продольных кромок: фальцевая (ФК); прямая (ПК). Данная технологическая карта предусматривает обшивку каркаса ГВЛ с фальцевой кромкой (ФК).

Масса 1 м2 (поверхностная плотность) ГВЛ - 1,05S < m < 1,2S (кг/м2), где S - толщина листа, мм. Удельная активность естественных радионуклидов не более 370 Бк/кг (ГОСТ 12.1.044-89*), т.е. ГВЛ относится к I группе.

Пожаротехнические характеристики ГВЛ соответствуют:

- горючесть - Г1 (ГОСТ 30244-94);

- воспламеняемость - В1 (ГОСТ 30402-96);

- дымообразующая способность - Д1 (ГОСТ 12.1.044-89);

- токсичность - Т1 (ГОСТ 12.1.044-89).

Отпускная влажность листов не должна превышать 1,5 %; плотность - не более 1250 кг/м3.

1.7. Для крепления ГВЛ к каркасу перегородок применяют самонарезающие винты с зенкующей головкой, а для крепления элементов каркаса перегородок к конструкциям здания - дюбели.

1.8. Монтаж перегородок производят в период отделочных работ по окончании «мокрых» процессов, способных существенно повысить влажность воздуха внутри помещения, до устройства чистого пола.

В помещениях, где производят монтаж перегородок С 361, температура воздуха не должна быть ниже +10 °С.

Температурно-влажностный режим помещения должен соответствовать требованиям СНиП 23-02-2003 «Тепловая защита зданий».

1.9. Типовая технологическая карта разработана на измеритель конечной продукции 1 м2 перегородки. Привязка типовой технологической карты к конкретному объекту и условиям строительства состоит в уточнении необходимых материальных ресурсов и схем организации строительного процесса, соответствующего рабочим чертежам.

2. ОРГАНИЗАЦИЯ И ТЕХНОЛОГИЯ ВЫПОЛНЕНИЯ РАБОТ

2.1. К устройству перегородок С 362 рекомендуется приступать только после:

- наличия утвержденной проектной документации (рабочих чертежей);

- наличия проекта производства работ, который должен предусматривать комплексную механизацию работ с наиболее полным использованием специализированного инструмента и приспособлений, способствующих повышению производительности труда, сокращению сроков возведения перегородок, уменьшающих трудозатраты и создающих наиболее безопасные условия труда;

- производства организационно-технологической подготовки, которая включает в себя подготовку необходимой оснастки, средств подмащивания и доставки ГВЛ в зону производства работ (см. рисунок 3).

2.2. До начала монтажа элементов перегородки необходимо закончить все общестроительные, а также строительно-монтажные работы, которые могут вызвать повышение влажности ГВЛ. Произвести уборку строительного мусора. Произвести инструментальную проверку соответствия основания для установки направляющих и стоечных профилей каркаса перегородки. Подготовленное основание должно быть оформлено актом приемки за подписью ответственных представителей строительной организации.

2.3. Работы по монтажу перегородок С 362 выполняют под руководством ИТР. Рабочие, выполняющие монтажные работы, должны пройти техническое обучение в учебных центрах «КНАУФ» или других специализированных учебных заведениях и иметь удостоверение на право производства работ.

2.4. Перегородки возводят поточно-расчлененным методом, по захваткам, со специализацией звеньев бригады на выполнение однотипных работ и оснащенных соответствующим набором инструментов, инвентаря и средств подмащивания. Каждое звено состоит из двух человек: монтажник конструкций 4-го разряда, монтажник конструкций 3-го разряда.

2.5. Доставку на объект ГВЛ, упакованных в полиэтиленовую пленку, следует производить централизованно автотранспортом. По согласованию с потребителем допускается транспортировать листы в непакетированном виде (без обвязки или упаковки в пленку). Размер упаковки ГВЛ 2500×1200×650 мм. Габариты пакетов не должны превышать по длине 4100 мм, ширине - 1300 мм, высоте - 800 мм; масса пакета не должна быть более 3000 кг (см. рисунок 1).

ГВЛ следует хранить в помещениях с сухим и нормальным влажностным режимом, раздельно по видам и размерам, с соблюдением техники безопасности и сохранности продукции. Общая высота складируемого штабеля с ГВЛ не должна превышать 3,5 м. Расстояние между штабелями складирования не должно быть менее 1 м (см. рисунок 2).

2.6. Доставку на объект металлических профилей каркаса перегородок допускается производить автотранспортом при условии их защиты от механических воздействий. Хранение профилей на закрытых приобъектных складах должно производиться в кондукторе пакетами по типам.

2.7. При производстве погрузочно-разгрузочных работ следует избегать ударов. Укладку пакетов с профилями на транспортные средства следует осуществлять погрузчиками. Вышеуказанные работы должны производиться в соответствии с требованиями ГОСТ 12.3.009-76*.

2.8. Подъем материалов на этажи рекомендовано производить с помощью машин и механизмов, указанных в сборнике ЕНиР-1 «Внутрипостроечные транспортные работы».

2.9. Транспортирование ГВЛ к месту производства работ на этаже следует осуществлять ручными тележками. При переносе ГВЛ вручную - с помощью специальных приспособлений.

2.10. Устройство перегородки С 362 предусмотрено производить в следующем порядке:

- разметка проектного положения перегородки;

- установка элементов одинарного каркаса;

- обшивка каркаса 1-м слоем ГВЛ с одной стороны;

- прокладка проектных инженерных коммуникаций;

- установка и закрепление изоляционного материала внутри перегородки;

- обшивка каркаса 1-м слоем ГВЛ с другой стороны;

- заделка стыков между ГВЛ 1-го слоя;

- обшивка каркаса 2-м слоем ГВЛ с двух сторон;

- установка электротехнических коробок, розеток, выключателей и т.п. и их крепление к ГВЛ;

- заделка стыков между ГВЛ 2-го слоя;

- подготовка поверхности перегородок под чистовую отделку.

2.10.1. Разметка проектного положения перегородки (см. рисунок 4).

Разметку проектного положения элементов каркаса перегородки С 362 производят в строгом соответствии с проектным решением и согласно рабочим чертежам. Для быстрой и безошибочной установки перегородок рекомендуется отмечать на полу места расположения стоечных профилей, дверных и других проемов. В дверном проеме должно быть указано, какая устанавливается дверь (правая или левая). Разметку производят с помощью складного метра, рулетки, метростата и шнуроотбойного устройства. Разметку больших помещений производят с помощью лазерного или оптического нивелира.

Вначале разметку проектного положения каркаса выполняют на полу. Разметку начинают от стены, расположенной параллельно возводимой перегородке, вынося горизонтальную ось. Затем на этой оси отмечают расположение стоечных профилей с проектным шагом, дверных и других проемов, а также выводов и сквозных проходов коммуникаций. Для данной технологической карты шаг равен 600 мм.

Расстояние от стоечного профиля, примыкающего к стене, до первого отстоящего от стены профиля должно быть меньше проектного шага на 25 мм.

Затем с помощью метростата и шнуроотбойного устройства (если высота помещения больше 3 м, то - нивелира или отвеса) разметку зеркально переносят на потолок. Вертикальные оси каркаса перегородки с помощью метростата и отвеса наносят на стены помещения, примыкающие к каркасу.

2.10.2. Установка элементов одинарного каркаса (см. рисунок 12).

Элементы каркаса перегородки С 362 состоят из направляющих профилей (ПН) и стоечных профилей (ПС), имеющих стандартные размеры.

На полках стоечных профилей выполнены продольные гофры, которые увеличивают их жесткость. Центральный гофр является ориентиром, как при точной сборке каркаса, так и при установке ГВЛ.

Типоразмеры стоечных и направляющих профилей выбирают исходя из высоты конструкции перегородки и в полном соответствии с рабочими чертежами.

Допускается соединение стоечных профилей по длине методом насадки или встык с дополнительным профилем. В этих случаях длина нахлеста определяется согласно нижеприведенной таблице 2.1, а длина дополнительного профиля должна быть не менее 20-кратной величины стенки стоечного профиля.

Таблица 2.1

Соединение стоечных профилей

Тип профиля

Длина нахлеста, см

ПС 50

≥50

ПС 75

≥75

ПС 100

≥100

Соединение (удлинение) профилей производят с помощью просекателя методом «просечки с отгибом», в отдельных случаях посредством винтов LN 3,5×9.

Стоечные профили должны иметь высоту на 10 мм меньше расстояния между стенками верхних и нижних направляющих профилей.

Установку направляющих профилей осуществляют согласно разметке их проектного положения на полу и на потолке.

С целью повышения звукоизоляционной способности перегородки на стенки направляющих профилей ПН наклеивают уплотнительную ленту. После раскроя и полной подготовки направляющих профилей приступают к их монтажу по линии разметки на полу, а затем - на потолке. Крепление направляющих профилей осуществляют дюбелями с шагом не более 1 м. Закреплять профиль ПН необходимо не менее чем в трех точках независимо от его длины. При необходимости дополнительные отверстия в стенке направляющего профиля высверливают дрелью.

Установку стоечных профилей также осуществляют по их проектному положению, а их типоразмер должен соответствовать рабочим чертежам (в рассматриваемом случае шаг стоек равен 600 мм).

Предварительно на стоечные профили, примыкающие к конструкциям здания, наклеивается уплотнительная лента. Стоечные профили устанавливают в закрепленные в проектном положении направляющие профили.

Установку стоек начинают от стен, к которым профили крепятся дюбелями с шагом не более 1 м, но не менее трех креплений на одну стойку. Каждая стойка устанавливается строго вертикально и с помощью просекателя закрепляется к направляющему профилю на полу и на потолке. Закрепление производят не менее чем в двух точках с каждой стороны направляющего профиля (т.е. четыре просечки вверху и четыре просечки внизу).

Устройство вставок в каркасе 2-слойной перегородки не требуется.

Если перегородка имеет дверной проем, то дверную коробку устанавливают одновременно с монтажом каркаса. По дверной коробке монтируют опорные стоечные профили, дверную перемычку из направляющего профиля и промежуточные стойки над проемом. Стоечные профили, ограничивающие дверной проем, устанавливают на всю высоту перегородки, независимо от размера шага (см. рисунок 7).

Стоечные профили для крепления ГВЛ и дверной коробки не совмещаются. Опорные стойки для дверей массой до 35 кг укрепляют вставкой из деревянных брусков или дополнительным профилем. Для этого на всю длину стойки вставляют деревянный брусок такого же сечения или соединяют с помощью винтов LN 3,5×9 с одноразмерным направляющим или стоечным профилем таким образом, чтобы получилось коробчатое сечение. Если в проекте не указано наличие «левой» или «правой» двери, то усиливают обе стойки.

Брус должен быть выполнен из древесины хвойных пород не ниже второго сорта по ГОСТ 8486-86 и обработан антисептиками и антипиренами в соответствии с требованиями СНиП 3.03.01-87. Влажность древесины не должна превышать 12 % ± 3 %.

Перед установкой стоечных профилей, ограничивающих дверной проем, в местах их установки крепят с помощью анкерных дюбелей 4 уголка: два верхних и два нижних (см. рисунок 7).

Эти уголки, имеющие клипсы, крепятся внутри направляющих профилей и предназначены для увеличения жесткости дверного проема. С помощью клипс к ним крепятся стоечные профили дверного проема, которые не доходят до направляющих профилей на 3 - 5 мм.

Положение уголков в дверном проеме перегородки и крепление к ним стоечных профилей показаны на рисунке 7.

Затем монтируют из направляющего профиля перемычку, ограничивающую высоту дверного проема. Горизонтальность установки перемычки проверяют с помощью уровня. Крепление перемычки из профиля ПН к стоечным профилям производят в двух точках с каждой стороны с помощью просекателя.

После установки перемычки монтируют промежуточные стойки над дверным проемом с сохранением проектного шага. Это необходимо для того, чтобы вертикальный стыковочный шов ГВЛ оказался над дверным проемом, что снижает вероятность трещинообразования в швах.

В местах сопряжения перегородок с коммуникациями между стоечными профилями устанавливают перемычки из направляющего профиля с их закреплением просекателем к профилю ПС. При групповой прокладке трубопровода допускается устройство общего обрамления.

При необходимости пропуска инженерных коммуникаций больших размеров допускается срезка вертикальных стоек с установкой по краям отверстия дополнительных стоечных профилей каркаса на всю высоту перегородки. В местах пересечения перегородок трубопроводами парового, водяного отопления и водоснабжения устанавливают гильзы.

Контроль за точностью установки каркаса осуществляют с помощью складного метра, метростата или нивелира.

Если длина перегородки превышает 15 м, то требуется устройство деформационного шва (рисунок 11). Кроме того, деформационные швы перегородки должны повторять деформационные швы здания.

На смонтированный в проектное положение каркас перегородки необходимо оформить акт приемки за подписью главного инженера строительной организации и лица - надзора от проектной организации.

2.10.3. Обшивка каркаса 1-м слоем гипсоволокнистых листов с одной стороны.

Перед установкой ГВЛ в местах примыкания обшивки к поверхностям потолка и стен (колонн), выполненных из другого материала, наклеивают разделительную ленту.

Установка ГВЛ начинается от основной стены помещения в вертикальном положении. Перед установкой на торцах каждого ГВЛ, образующего горизонтальный стык, делают фальц шириной 30 мм и глубиной 2 мм (см. рисунок 5).

Горизонтальную стыковку ГВЛ выполняют вразбежку с шагом не менее 400 мм. Между полом и ГВЛ оставляется зазор около 10 мм. По вертикали ГВЛ стыкуются только на стойках каркаса.

Крепление ГВЛ осуществляют самонарезающими винтами с зенкующей головкой длиной 30 мм с помощью электрошуруповерта с магнитной головкой. Шаг винтов 750 мм. Крепятся ГВЛ по периметру и по центральной вертикальной оси (рисунок 15).

Монтаж ГВЛ ведется в одном направлении с открытой частью профиля. Установка винтов, закрепляющих предыдущий лист, со стороны стенки профиля предотвращает отгибание слабого края полки внутрь профиля при креплении следующего листа.

Крепление винтами на стыке ГВЛ осуществляют вразбежку через 50 мм с винтами соседнего ряда и отступлением от края ГВЛ на 10 мм. Крепежные винты должны входить в ГВЛ под прямым углом и проникать в полку профиля на глубину не менее 10 мм. Головки винтов должны быть утоплены в поверхность ГВЛ на глубину, позволяющую их зашпаклевать.

2.10.4. Прокладка проектных инженерных коммуникаций.

Облицевав одну сторону каркаса перегородки ГВЛ, приступают к монтажу электротехнической проводки. Кабели размещают перпендикулярно стойкам каркаса (для чего в них имеются отверстия) в строгом соответствии с рабочим проектом. Не допускается размещать электропроводку вдоль стоек или внутри них во избежание ее повреждения при обшивке ГВЛ с другой стороны. Прокладку электросети выполняет специализированное звено электромонтажников. В ГВЛ вырезают отверстия под коробки, розетки, выключатели, а проводку выводят наружу. При необходимости производят прокладку и других коммуникационных сетей, предусмотренных проектом.

2.10.5. Установка и закрепление изоляционного материала внутри перегородок.

Установку изоляционного материала производят после обшивки каркаса с одной стороны и прокладки инженерных сетей.

Установка изоляционного (минераловатного) материала производится вручную в пространство между стоечными профилями. При необходимости изоляционный материал прикрепляют к смонтированным ГВЛ или фиксируют с помощью вкладышей, крепящихся к стенкам профиля ПС.

2.10.6. Обшивка каркаса перегородки гипсоволокнистыми листами с другой стороны.

Обшивка каркаса перегородки ГВЛ с обратной стороны производится после укладки изоляционного слоя в той же последовательности и с теми же требованиями, что изложены выше в п. 2.10.3, но со смещением на один шаг профиля относительно листов другой стороны.

Раскрой доборных листов осуществляется в процессе выполнения работ. Примыкание листов обшивки к дверным коробкам осуществляют “заподлицо”.

2.10.7. Заделка стыков между ГВЛ 1-го слоя.

До заделки швов необходимо проверить надежность крепления ГВЛ. Выступающие головки винтов довернуть. Производство работ, ведущих к повышению влажности в помещении, к этому времени должно быть завершено.

Заделку продольных швов между ГВЛ производят при температуре и влажности воздуха в помещениях, соответствующих режиму эксплуатации (t не должна быть ниже +10 °С). Недопустимы сквозняки, резкие колебания температуры и влажности в помещениях. Предварительно кромки ГВЛ обрабатывают грунтовкой Тифенгрунд.

Заделке шпаклевочной смесью Фугенфюллер ГВ подлежат продольные и поперечные швы, стыки между перегородкой и стенами (колоннами), перегородкой и потолком.

Последовательность действий при обработке продольных и поперечных швов между ГВЛ следующая:

- нанесение шпателем первого слоя шпаклевки на стык между листами шириной чуть большей ширины армирующей ленты;

- после высыхания первого слоя шпаклевки широким шпателем нанесение второго слоя шпаклевки на всю ширину стыковочного шва.

2.10.8. Обшивка каркаса вторым слоем ГВЛ с двух сторон (рисунок 13).

Установку листов второго слоя производят сначала с одной стороны, а затем - с другой. ГВЛ второго слоя устанавливают со смещением на один шаг относительно вертикальных и не менее 400 мм относительно горизонтальных стыков первого слоя. Крепление второго слоя ГВЛ производят к каркасу с помощью самонарезающих винтов длиной не менее 45 мм с шагом 250 мм.

2.10.9. Установка электротехнических коробок, розеток, выключателей и их крепление к ГВЛ.

По окончанию монтажа ГВЛ с обеих сторон каркаса устанавливают электрические коробки, розетки, выключатели и т.п., которые крепят к ГВЛ с помощью специальной фурнитуры. Отверстия под электрические розетки, выключатели и т.п. в целях пожарной безопасности вырезают с противоположных сторон перегородки со смещением минимум на 200 мм. Эти работы выполняет звено электромонтажников.

2.10.10. Заделка стыков между ГВЛ и углублений от винтов.

Шпаклевание стыков между ГВЛ производят при стабильной температуре и влажности воздуха в помещениях соответствующих режиму эксплуатации (t не должна быть ниже + 10 °С). Недопустимы сквозняки и резкие колебания температуры в помещениях. Предварительно кромки ГВЛ обрабатывают грунтовкой Тифенгрунд.

Заделке шпаклевочной смесью Фугенфюллер ГВ подлежат продольные и поперечные швы, стыки между перегородкой и стенами (колоннами), перегородкой и потолком. Продольные и поперечные швы ГВЛ заделывают с применением армирующей ленты.

До обработки стыков необходимо проверить надежность крепления ГВЛ. Выступающие головки винтов - довернуть. Производство работ, ведущих к повышению влажности в помещении, к этому времени должно быть завершено.

В зависимости от назначения помещений требования к отделке поверхностей из ГВЛ можно разделить на 3 вида, как это принято в большинстве европейских стран:

Качество 1 (К1) - определяет качество поверхности швов и поверхностей ГВЛ, к которым не предъявляются оптические требования, т.е. поверхность может иметь волнистый рельеф, где гребень не должен превышать 1,5 мм. Такая поверхность ГВЛ предназначена для облицовки плиткой, оштукатуривания или под облицовку какими-либо другими материалами.

Качество 2 (К2) - соответствует существующему стандартному качеству поверхностей стен и потолков. Шпаклевание выполняется с целью достижения плавных переходов от поверхностей сопряжений к поверхности ГВЛ. Все переходы от швов, внутренних и внешних углов, крепежных элементов должны быть незаметны на глаз. Для этой цели зашпаклеванные швы обрабатывают пастой Финиш на ширину примерно 30 см.

Такая поверхность ГВЛ предназначена для структурированной окраски, оклейки структурными обоями, для тонкослойного оштукатуривания.

Качество 3 (К3) - предъявляет повышенные требования к качеству поверхности стен и потолков, т.е. кроме стандартного шпаклевания для К2, необходимо полное покрытие поверхности ГВЛ шпаклевочным материалом с последующим шлифованием. Для этих целей чаще всего используют пасту Финиш или Редигипс, а также шпаклевочные смеси.

Такая поверхность предназначена для высококачественной окраски стен и потолков любыми видами красок, оклейки глянцевыми тонкослойными обоями, оштукатуривания тонкоструктурированными растворными смесями с крупностью зерна менее 1 мм.

В данной технологической карте отделка поверхности относится к виду К1, на которую даются нормативы трудозатрат и расхода материалов. Более качественная отделка поверхности оговаривается заказчиком и на нее составляется отдельная смета.

Последовательность действий при обработке продольных и поперечных стыков между ГВЛ следующая:

- перед шпаклеванием обработка грунтовкой глубокого проникновения всех стыков;

- нанесение шпателем первого слоя шпаклевки на стык между листами шириной чуть больше ширины армирующей ленты;

- вдавливание шпателем армирующей ленты в нанесенную шпаклевку;

- после высыхания первого слоя шпаклевки широким шпателем нанесение второго слоя шпаклевки на всю ширину стыковочного шва.

Заделке шпаклевочной смесью Фугенфюллер ГВ подлежат углубления от винтов, стыки между перегородкой и стенами (колоннами), перегородкой и потолком. В местах стыковок на эти конструкции предварительно крепится самоклеящаяся разделительная лента. После заделки стыков и полного высыхания шпаклевки излишки ленты срезаются, а шов шлифуется.

В некоторых случаях при монтаже перегородок образуются внешние углы, которые защищают от механических повреждений при помощи металлических перфорированных уголков из оцинкованной стали (ПУ 31×31×0,4), которые крепят к ГВЛ с помощью специального приспособления, указанного в перечне инструментов. После крепления уголки шпаклюют и после высыхания шлифуют.

По окончании всех шпаклевочных работ поверхность перегородок обрабатывают с помощью кисти, щетки или валика грунтовкой Тифенгрунд. Это необходимо сделать с целью предотвращения образования трещин в швах из-за возможного изменения влажностного режима в помещении (особенно весной, осенью или при проведении отделочных работ мокрым способом).

3. ПОТРЕБНОСТЬ В ИНВЕНТАРЕ И МАТЕРИАЛАХ

Перечень потребного инвентаря, приспособлений и инструмента - см. на стр. 144.

Таблица 3.1

Нормативные показатели расхода материалов на устройство 1 м2
перегородки С 362
(измеритель конечной продукции - 1 м2)

Наименование материалов

Ед. измерения

Размер перегородки, м

4×2,7
(глухая)

6×2,7
(один проем)

9×2,7
(два проема)

16,2×2,7
(три проема и темпер. шов)

Каркас и крепежные изделия

Профиль направляющий ПН 50/40,
ТУ 1121-004-04001508-2003

м

0,76

0,86

0,89

0,87

Профиль стоечный ПС 50/50,
ТУ 1121-004-04001508-2003

м

2,04

2,54

2,6

2,44

Профиль направляющий потолочный ПНП 28/27, (на устройство темпер. шва),
ТУ 1121-004-04001508-2003

м

-

-

-

0,15

Лента уплотнительная типа Дихтунгсбанд сеч. 50×3,2 мм

м

1,26

1,17

1,07

0,94

Дюбель типа К 6/35

шт.

1,69

1,63

1,43

1,17

Материал изолирующий из минеральных волокон

м2

1,03

1,03

1,03

1,03

Брусок деревянный, размер 50×50×2695 мм

м

-

0,39

0,54

0,44

Дюбели анкерные металлические

шт.

-

0,7

0,97

0,79

Верхний уголок для крепления несущих элементов двери 100×123 мм

шт.

-

0,14

0,20

0,16

Нижний уголок для крепления несущих элементов двери 100×123 мм

шт.

-

0,14

0,20

0,16

Обшивка

Лист гипсоволокнистый ГВЛ 10 мм, ГОСТ Р 51829-2001

м2

4,21

4,49

4,67

4,7

Винт самонарезающий с острым концом и зенкующей головкой по ГОСТ 11652-80* длиной, мм:

 

 

 

 

 

30

шт.

13,53

14,19

15,23

13,20

45

шт.

35,33

37,88

36,01

36,12

22

шт.

-

-

-

0,69

ГОСТ 11650-80:

 

 

 

 

 

длиной 9 мм

шт.

-

-

-

0,88

Заделка швов

Шпатлевка Фугенфюллер ГВ,
ТУ 5745-011-04001508-97

кг

1,79

1,79

1,76

1,74

Лента армирующая

м

2,27

2,49

2,64

2,86

Лента разделительная 50 мм

м

1,77

1,62

1,42

1,15

Грунтовка Тифенгрунд

кг

0,25

0,25

0,25

0,25

4. НОРМАТИВНЫЕ И ТЕХНИКО-ЭКОНОМИЧЕСКИЕ ПОКАЗАТЕЛИ
(ИЗМЕРИТЕЛЬ КОНЕЧНОЙ ПРОДУКЦИИ - 1 м2)


Таблица 4.1

Затраты труда на устройство перегородки С 362

№ п.п.

Наименование технологических процессов

Единица измерения

Объем работ

Обоснование

Норма времени

Затраты труда

рабочих, чел.-ч

машиниста, чел.-ч (работа машин, маш.-ч)

рабочих, чел.-ч

машиниста, чел.-ч (работа машин, маш.-ч)

1

2

3

4

5

6

7

8

9

1

Устройство каркаса

м2

1

Расчет ОАО «Тулаоргтехстрой» методом технического нормирования

0,28

-

0,28

-

2

Обшивка каркаса

м2

1

 

0,56

-

0,56

-

3

Устройство изоляционного слоя

м2

1

 

0,1

-

0,1

-

4

Заделка швов, обработка поверхности

м2

1

 

0,5

-

0,5

-

5

Подача материалов на этажи подъемником грузоподъемностью до 1 т при высоте подъема до 8 м (добавлять на каждые следующие 6 м)

100 т

0,00053

Е1-16

36
(6,8)

9
(1,7)

0,019
(0,003604)

0,0048
(0,000901)

6

Перевозка материалов по этажу ручными тележками на расстояние до 30 м

1 т

0,053

Е1-21

1,1

-

0,0583

-

 

Итого:

 

 

 

 

 

1,517

0,0048

Затраты труда на устройство перегородок с проемами и деформационными швами
(без учета прочих работ)

С одним дверным проемом

1,47 чел.-ч

С двумя дверными проемами

1,49 чел.-ч

С двумя дверными проемами и деформационным швом

1,50 чел.-ч

Таблица 4.2

График производства работ

№ п.п.

Наименование технологических процессов

Единица измерения

Объем работ

Затраты труда

Принятый состав звена

Продолжительность процесса, ч

рабочих, чел.-ч

машиниста, чел.-ч (работа машин, маш.-ч)

1

Устройство каркаса

м2

1

0,28

 

Монтажники конструкций 4-го и 3-го разрядов, 2 чел.

0,14

2

Обшивка каркаса

м2

1

0,56

 

0,28

3

Устройство изоляционного слоя

м2

1

од

 

0,05

4

Заделка швов, обработка поверхности

м2

1

0,5

 

0,25

5

Прочие работы

м2

1

0,077

0,0048

 

0,0385

 

Итого:

 

 

1,517

 

 

0,76


Рисунок 4.1 - График движения рабочей силы

Таблица 4.3

Технико-экономические показатели

№ п.п.

Наименование

Единица измерения

Количество

1

Продолжительность работ

ч

0,76

2

Трудоемкость на 1 м2:

чел.-ч

 

по нормам

 

1,44

 

по графику (с учетом прочих работ)

 

1,517

3

Максимальная численность рабочих

чел.

2

4

Выработка на 1 чел.-ч

м2

1,32

ТИПОВАЯ ТЕХНОЛОГИЧЕСКАЯ КАРТА
НА УСТРОЙСТВО ПЕРЕГОРОДОК
НА МЕТАЛЛИЧЕСКОМ КАРКАСЕ
КОМПЛЕКТНОЙ СИСТЕМЫ КНАУФ
С ПРИМЕНЕНИЕМ ГИПСОВОЛОКНИСТЫХ ЛИСТОВ

Перегородка С 363 «Противопожарная стена»

I. ОБЛАСТЬ ПРИМЕНЕНИЯ

1.1. Типовая технологическая карта предназначена для разработки проектов производства работ (ППР), проектов организации строительства (ПОС), другой организационно-технологической документации, а также является информационным пособием для строительных организаций, производящих устройство перегородок С 363 с применением гипсоволокнистых листов (ГВЛ).

1.2. Сборные перегородки С 363 являются межкомнатными с шумозащитой 52 - 54 дБ и пределом огнестойкости EI 150, которые устраиваются в помещениях высотой до 9,5 м и предназначены для жилых, общественных и производственных зданий:

- любой степени огнестойкости;

- любых конструктивных систем и типов;

- любого уровня ответственности, включая повышенный;

- различной этажности;

- возводимых в ветровых районах до V включительно;

- возводимых в районах как с обыкновенными, так и со сложными инженерно-геологическими условиями, и сейсмичностью до 9 баллов.

По огнестойкости и пожарной опасности перегородки С 363 должны удовлетворять требованиям п. 5.14 СНиП 21-01-97*.

1.3. Перегородка С 363 имеет конструкцию, отвечающую требованиям рабочих чертежей серии 1.031.9-3.01 «Комплектные системы КНАУФ. Перегородки поэлементной сборки из гипсоволокнистых листов на металлическом и деревянном каркасах для жилых, общественных и производственных зданий», выпуск 1. Серия выпущена ЗАО «НП Челябинский Промстройпроект» при участии фирмы КНАУФ.

1.4. Перегородка С 363 состоит из одинарного металлического каркаса; двусторонней обшивки тремя слоями ГВЛ толщиной 12,5 мм; звукоизоляционного слоя. Масса одного 1 м2 перегородки - около 97 кг.

1.5. Каркас системы С 363 состоит из направляющих и стоечных оцинкованных металлических профилей, отвечающих требованиям ТУ 1121-004-04001508-2003. Стандартная длина профилей: 2750; 3000; 4000; 4500 мм. По согласованию с заказчиком могут быть выпущены профили длиной от 500 до 6000 мм. Номинальная толщина профилей должна быть не менее 0,6 мм. Стенки направляющих и стоечных, а также полки стоечных профилей усилены продольными гофрами, увеличивающими их жесткость.

Направляющие профили имеют П-образную, а стоечные профили - С-образную формы. Размеры их стенок и полок (a×b) представлены в таблицах 1.1 и 1.2.

Таблица 1.1

Геометрические размеры направляющих профилей

Размер

Профиль

ПН 50

ПН 75

ПН 100

a×b, мм

50×40

75×40

100×40

Таблица 1.2

Геометрические размеры стоечных профилей

Размер

Профиль

ПС 50

ПС 75

ПС 100

a×b, мм

50×50

75×50

100×50

Направляющие профили производятся с готовыми отверстиями в стенках диаметром 8 мм, предназначенными для крепления дюбелями к несущим основаниям. В стоечных профилях имеются 3 пары отверстий в стенках диаметром 33 мм (в центре и по краям), которые позволяют монтировать технические коммуникации внутри перегородки.

Предельно допустимые высоты перегородки С 363 варьируются в зависимости от ширины стенки и шага установки стоечных профилей. Они представлены в таблице 1.3. Данная технологическая карта может быть использована при устройстве перегородок высотой до 4,5 м.

Таблица 1.3

Максимальная высота перегородки С 363
(применительно к ГВЛ толщиной 12,5 мм)

Максимальная высота перегородки, м

Проектный шаг, мм

Тип профиля

4,5

600

ПС 50

5,5

400

6,0

300

6,0

600

ПС 75

7,0

400

8,0

300

7,0

600

ПС 100

8,0

400

9,5

300

1.6. ГВЛ представляет собой экологически чистый листовой отделочный материал, изготовленный из строительного гипса марки не ниже Г-4 (ГОСТ 125-79), распушенной целлюлозной макулатуры марок МС-10 и МС-11 (ГОСТ 10700-89), содержащей различные технологические добавки. Типовой размер ГВЛ, который применялся при разработке данной технологической карты, равен 2500×1200×12,5 мм.

По заказу строительных организаций могут выпускаться партии листов других типоразмеров согласно ГОСТ Р 51829-2001, которые приведены в таблице 1.4.

Таблица 1.4

Размеры ГВЛ

Длина, мм

1500; 2000; 2500; 2700; 3000

Ширина, мм

500; 1000; 1200

Толщина, мм

10; 12,5; 15; 18; 20

ГВЛ выпускаются с различными формами продольных кромок: фальцевая (ФК); прямая (ПК). Данная технологическая карта предусматривает обшивку каркаса ГВЛ с фальцевой кромкой (ФК).

Масса 1 м2 (поверхностная плотность) ГВЛ - 1,05S < m <1,2S (кг/м2), где S - толщина листа, мм. Удельная активность естественных радионуклидов не более 370 Бк/кг (ГОСТ 12.1.044-89*), т.е. ГВЛ относится к I группе.

Пожаротехнические характеристики ГВЛ соответствуют:

- горючесть - Г1 (ГОСТ 30244-94);

- воспламеняемость - В1 (ГОСТ 30402-96);

- дымообразующая способность - Д1 (ГОСТ 12.1.044-89*);

- токсичность - Т1 (ГОСТ 12.1.044-89*).

Отпускная влажность листов не должна превышать 1,5 %; плотность - не более 1250 кг/м3.

1.7. Для крепления ГВЛ к каркасу перегородок применяют самонарезающие винты с зенкующей головкой, а для крепления элементов каркаса перегородок к конструкциям здания - дюбели.

1.8. Монтаж перегородок производят в период отделочных работ по окончании «мокрых» процессов, способных существенно повысить влажность воздуха внутри помещения, до устройства чистого пола.

В помещениях, где производят монтаж перегородок С 363, температура воздуха не должна быть ниже +10 °С.

Температурно-влажностный режим помещения должен соответствовать требованиям СНиП 23-02-2003 «Тепловая защита зданий».

1.9. Типовая технологическая карта разработана на измеритель конечной продукции 1 м2 перегородки. Привязка типовой технологической карты к конкретному объекту и условиям строительства состоит в уточнении необходимых материальных ресурсов и схем организации строительного процесса, соответствующего рабочим чертежам.

2. ОРГАНИЗАЦИЯ И ТЕХНОЛОГИЯ ВЫПОЛНЕНИЯ РАБОТ

2.1. К устройству перегородок С 363 рекомендуется приступать только после:

- наличия утвержденной проектной документации (рабочих чертежей);

- наличия проекта производства работ, который должен предусматривать комплексную механизацию работ с наиболее полным использованием специализированного инструмента и приспособлений, способствующих повышению производительности труда, сокращению сроков возведения перегородок, уменьшающих трудозатраты и создающих наиболее безопасные условия труда;

- производства организационно-технологической подготовки, которая включает в себя подготовку необходимой оснастки, средств подмащивания и доставки ГВЛ в зону производства работ (см. рисунок 3).

2.2. До начала монтажа элементов перегородки необходимо закончить все общестроительные, а также строительно-монтажные работы, которые могут вызвать повышение влажности ГВЛ. Произвести уборку строительного мусора. Произвести инструментальную проверку соответствия основания для установки направляющих и стоечных профилей каркаса перегородки. Подготовленное основание должно быть оформлено актом приемки за подписью ответственных представителей строительной организации.

2.3. Работы по монтажу перегородок С 363 выполняют под руководством ИТР. Рабочие, выполняющие монтажные работы, должны пройти техническое обучение в учебных центрах «КНАУФ» или других специализированных учебных заведениях и иметь удостоверение на право производства работ.

2.4. Перегородки возводят поточно-расчлененным методом, по захваткам, со специализацией звеньев бригады на выполнение однотипных работ и оснащенных соответствующим набором инструментов, инвентаря и средств подмащивания. Каждое звено состоит из двух человек: монтажник конструкций 4-го разряда, монтажник конструкций 3-го разряда.

2.5. Доставку на объект ГВЛ, упакованных в полиэтиленовую пленку, следует производить централизованно автотранспортом. По согласованию с потребителем допускается транспортировать листы в непакетированном виде (без обвязки или упаковки в пленку). Размер упаковки ГВЛ 2500×1200×650 мм. Габариты пакетов не должны превышать по длине 4100 мм, ширине 1300 мм, высоте 800 мм; масса пакета не должна быть более 3000 кг (см. рисунок 1).

Хранение ГВЛ производить в помещениях с сухим и нормальным влажностным режимом, раздельно по видам и размерам, с соблюдением техники безопасности и сохранности продукции. Общая высота складируемого штабеля с ГВЛ не должна превышать 3,5 м (см. рисунок 2). Расстояние между штабелями складирования не должно быть менее 1 м.

2.6. Доставку на объект металлических профилей каркаса перегородок допускается производить автотранспортом при условии их защиты от механических воздействий. Хранение профилей на закрытых приобъектных складах должно производиться в кондукторе пакетами по типам.

2.7. При производстве погрузочно-разгрузочных работ следует избегать ударов. Укладку пакетов с профилями на транспортные средства следует осуществлять погрузчиками. Вышеуказанные работы должны производиться в соответствии с требованиями ГОСТ 12.3.009-76*.

2.8. Подъем материалов на этажи рекомендовано производить с помощью машин и механизмов, указанных в сборнике ЕНиР-1 «Внутрипостроечные транспортные работы».

2.9. ГВЛ к месту производства работ на этаже транспортируют ручными тележками. При переносе ГВЛ вручную - с помощью специальных приспособлений.

2.10. Устройство перегородки С 363 предусмотрено производить в следующем порядке:

- разметка проектного положения перегородки;

- установка элементов одинарного каркаса;

- обшивка каркаса первым слоем ГВЛ с одной стороны;

- прокладка проектных инженерных коммуникаций;

- установка и закрепление изоляционного материала внутри перегородки;

- обшивка каркаса 1-м слоем ГВЛ с другой стороны;

- заделка стыков 1-го слоя ГВЛ с обеих сторон перегородки;

- обшивка каркаса 2-м слоем ГВЛ с двух сторон перегородки;

- заделка стыков 2-го слоя ГВЛ с обеих сторон перегородки;

- обшивка каркаса 3-м слоем ГВЛ с двух сторон перегородки;

- установка электротехнических коробок, розеток, выключателей и т.п. и их крепление к ГВЛ;

- заделка стыков между ГВЛ 3-го слоя обшивки и углублений от винтов;

- подготовка поверхности перегородок под чистовую отделку.

2.10.1. Разметка проектного положения перегородки (см. рисунок 4).

Разметку проектного положения элементов каркаса перегородки С 363 производят в строгом соответствии с проектным решением, согласно рабочим чертежам. Для быстрой и безошибочной установки перегородок рекомендуется отмечать на полу места расположения стоечных профилей, дверных и других проемов. В дверном проеме должно быть указано, какая устанавливается дверь (правая или левая). Разметку производят с помощью складного метра, рулетки, метростата и шнуроотбойного устройства. Разметку больших помещений производят с помощью лазерного или оптического нивелира.

Вначале разметку проектного положения каркаса выполняют на полу. Разметку начинают от стены, расположенной параллельно возводимой перегородке, вынося горизонтальную ось. Затем на этой оси отмечают расположение стоечных профилей с проектным шагом, дверных и других проемов, а также выводов и сквозных проходов коммуникаций. Для данной технологической карты шаг равен 600 мм.

Расстояние от стоечного профиля, примыкающего к стене, до первого отстоящего от стены профиля должно быть меньше проектного шага на 25 мм.

Затем с помощью метростата и шнуроотбойного устройства (если высота помещения больше 3 м, то - нивелира или отвеса) разметку зеркально переносят на потолок. Вертикальные оси каркаса перегородки с помощью метростата и отвеса наносят на стены помещения, примыкающие к каркасу.

2.10.2. Установка элементов одинарного каркаса (см. рисунок 12).

Элементы каркаса перегородки С 363 состоят из направляющих профилей (ПН) и стоечных профилей (ПС), имеющих стандартные размеры.

На полках стоечных профилей выполнены продольные гофры, которые увеличивают их жесткость. Центральный гофр является ориентиром, как при точной сборке каркаса, так и при установке ГВЛ.

Типоразмеры стоечных и направляющих профилей выбирают исходя из высоты конструкции перегородки и в полном соответствии с рабочими чертежами.

Допускается соединение стоечных профилей по длине методом насадки или встык с дополнительным профилем. В этих случаях длина нахлеста определяется согласно нижеприведенной таблице 2.1, а длина дополнительного профиля должна быть не менее 20-кратной величины стенки стоечного профиля.

Таблица 2.1

Соединение стоечных профилей

Тип профиля

Длина нахлеста, см

ПС 50

≥50

ПС 75

≥75

ПС 100

≥100

Соединение (удлинение) профилей производят с помощью просекателя методом «просечки с отгибом», в отдельных случаях посредством винтов LN 3,5×9.

Стоечные профили должны иметь высоту на 10 мм меньше расстояния между стенками верхних и нижних направляющих профилей.

Установку направляющих профилей осуществляют согласно разметке их проектного положения на полу и на потолке.

С целью повышения звукоизоляционной способности перегородки на стенки направляющих профилей ПН наклеивают уплотнительную ленту. После раскроя и полной подготовки направляющих профилей приступают к их монтажу по линии разметки на полу, а затем - на потолке. Крепление направляющих профилей осуществляют дюбелями с шагом не более 1 м. Закреплять профиль ПН необходимо не менее чем в трех точках независимо от его длины. При необходимости дополнительные отверстия в стенке направляющего профиля высверливают дрелью.

Установку стоечных профилей также осуществляют по их проектному положению, а их типоразмер должен соответствовать рабочим чертежам (в рассматриваемом случае шаг стоек равен 600 мм).

Предварительно на стоечные профили, примыкающие к конструкциям здания, наклеивается уплотнительная лента. Стоечные профили устанавливают в закрепленные в проектном положении направляющие профили.

Установку стоек начинают от стен, к которым профили крепятся дюбелями с шагом не более 1 м, но не менее трех креплений на одну стойку. Каждая стойка устанавливается строго вертикально и с помощью просекателя закрепляется к направляющему профилю на полу и на потолке. Закрепление производят не менее чем в двух точках с каждой стороны направляющего профиля (т.е. четыре просечки вверху и четыре просечки - внизу).

Устройство вставок в каркасе 3-слойной перегородки не требуется.

Если перегородка имеет дверной проем, то дверную коробку устанавливают одновременно с монтажом каркаса. По дверной коробке монтируют опорные стоечные профили, дверную перемычку из направляющего профиля и промежуточные стойки над проемом. Стоечные профили, ограничивающие дверной проем, устанавливают на всю высоту перегородки, независимо от размера шага (см. рисунок 7).

Стоечные профили для крепления ГВЛ и дверной коробки не совмещаются. Опорные стойки для дверей массой до 35 кг укрепляют вставкой из деревянных брусков или дополнительным профилем. Для этого на всю длину стойки вставляют деревянный брусок такого же сечения или соединяют с помощью винтов LN 3,5×9 с одноразмерным направляющим или стоечным профилем таким образом, чтобы получилось коробчатое сечение. Если в проекте не указано наличие «левой» или «правой» двери, то усиливают обе стойки.

Брус должен быть выполнен из древесины хвойных пород не ниже второго сорта по ГОСТ 8486-86 и обработан антисептиками и антипиренами в соответствии с требованиями СНиП 3.03.01-87. Влажность древесины не должна превышать 12 % ± 3 %.

Перед установкой стоечных профилей, ограничивающих дверной проем, в местах их установки крепят с помощью анкерных дюбелей 4 уголка: два верхних и два нижних (см. рисунок 7).

Эти уголки, имеющие клипсы, крепятся внутри направляющих профилей и предназначены для увеличения жесткости дверного проема. С помощью клипс к ним крепятся стоечные профили дверного проема, которые не доходят до направляющих профилей на 3 - 5 мм.

Положение уголков в дверном проеме перегородки и крепление к ним стоечных профилей показаны на рисунке 7.

Затем монтируют из направляющего профиля перемычку, ограничивающую высоту дверного проема. Горизонтальность установки перемычки проверяют с помощью уровня. Крепление перемычки из профиля ПН к стоечным профилям производят в двух точках с каждой стороны с помощью просекателя.

После установки перемычки монтируют промежуточные стойки над дверным проемом с сохранением проектного шага. Это необходимо для того, чтобы вертикальный стыковочный шов ГВЛ оказался над дверным проемом, что снижает вероятность трещинообразования в швах.

В местах сопряжения перегородок с коммуникациями между стоечными профилями устанавливают перемычки из направляющего профиля с их закреплением просекателем к профилю ПС. При групповой прокладке трубопровода допускается устройство общего обрамления.

При необходимости пропуска инженерных коммуникаций больших размеров допускается срезка вертикальных стоек с установкой по краям отверстия дополнительных стоечных профилей каркаса на всю высоту перегородки. В местах пересечения перегородок трубопроводами парового, водяного отопления и водоснабжения устанавливают гильзы.

Контроль за точностью установки каркаса осуществляют с помощью складного метра, метростата или нивелира.

На смонтированный в проектное положение каркас перегородки необходимо оформить акт приемки за подписью главного инженера строительной организации и лица - надзора от проектной организации.

2.10.3. Обшивка каркаса первым слоем ГВЛ с одной стороны.

Перед установкой ГВЛ в местах примыкания обшивки к поверхностям потолка и стен (колонн), выполненных из другого материала, наклеивают разделительную ленту.

Установка ГВЛ начинается от основной стены помещения в вертикальном положении. Перед установкой на торцах каждого ГВЛ, образующих горизонтальный стык, делают фальц шириной 30 мм и глубиной 2 мм (см. рисунок 5).

Горизонтальную стыковку ГВЛ выполняют вразбежку с шагом не менее 400 мм. Между полом и ГВЛ оставляется зазор около 10 мм. По вертикали ГВЛ стыкуются только на стойках каркаса.

Крепление ГВЛ осуществляют самонарезающими винтами с зенкующей головкой длиной 30 мм с помощью электрошуруповерта с магнитной головкой. Шаг винтов 750 мм. Крепятся ГВЛ по периметру и по центральной вертикальной оси (см. рисунок 16).

Монтаж ГВЛ ведется в одном направлении с открытой частью профиля. Установка винтов, закрепляющих предыдущий лист, со стороны стенки профиля предотвращает отгибание слабого края полки внутрь профиля при креплении следующего листа.

Крепление винтами на стыке ГВЛ осуществляют вразбежку через 50 мм с винтами соседнего ряда и отступлением от края ГВЛ на 10 мм. Крепежные винты должны входить в ГВЛ под прямым углом и проникать в полку профиля на глубину не менее 10 мм. Головки винтов должны быть утоплены в поверхность ГВЛ на глубину, позволяющую их зашпаклевать.

2.10.4. Прокладка проектных инженерных коммуникаций.

Облицевав одну сторону каркаса перегородки первым слоем ГВЛ, приступают к монтажу электротехнической проводки. Кабели размещают перпендикулярно стойкам каркаса (для чего в них имеются отверстия) в строгом соответствии с рабочим проектом. Не допускается размещать электропроводку вдоль стоек или внутри них, во избежание ее повреждения при обшивке ГВЛ с другой стороны. Прокладку электросети выполняет специализированное звено электромонтажников. При необходимости производят прокладку и других коммуникационных сетей, предусмотренных проектом.

2.10.5. Установка и закрепление изоляционного материала внутри перегородок.

Установку изоляционного материала производят после обшивки каркаса с одной стороны и прокладки инженерных сетей.

Установка изоляционного (минераловатного) материала производится вручную в пространство между стоечными профилями. При необходимости изоляционный материал прикрепляют к смонтированным ГВЛ или фиксируют с помощью вкладышей, крепящихся к стенкам профиля ПС.

2.10.6. Обшивка каркаса перегородки первым слоем ГВЛ с другой стороны.

Обшивка каркаса перегородки ГВЛ с обратной стороны производится после укладки изоляционного слоя в той же последовательности и с теми же требованиями, что изложены выше в п. 2.10.3, но со смещением на один шаг профиля относительно листов другой стороны. Раскрой доборных листов осуществляется в процессе выполнения работ.

2.10.7. Заделка стыков между ГВЛ первого слоя.

До заделки швов необходимо проверить надежность крепления ГВЛ. Выступающие головки винтов довернуть. Производство работ, ведущих к повышению влажности в помещении, к этому времени должно быть завершено.

Заделку продольных швов между ГВЛ производят при температуре и влажности воздуха в помещениях, соответствующих режиму эксплуатации (t не должна быть ниже +10 °С). Недопустимы сквозняки, резкие колебания температуры и влажности в помещениях. Предварительно кромки ГВЛ обрабатывают грунтовкой Тифенгрунд.

Заделке шпаклевочной смесью Фугенфюллер ГВ подлежат продольные и поперечные швы, стыки между перегородкой и стенами (колоннами), перегородкой и потолком.

Последовательность действий при обработке продольных и поперечных швов между ГВЛ следующая:

- нанесение шпателем первого слоя шпаклевки на стык между листами шириной чуть больше ширины армирующей ленты;

- после высыхания первого слоя шпаклевки широким шпателем нанесение второго слоя шпаклевки на всю ширину стыковочного шва.

2.10.8. Обшивка каркаса вторым слоем ГВЛ с двух сторон (см. рисунок 14).

Установку листов второго слоя производят сначала с одной стороны, а затем - с другой. ГВЛ второго слоя устанавливают со смещением на один шаг относительно вертикальных и не менее 400 мм относительно горизонтальных швов первого слоя. Крепление второго слоя ГВЛ производят к каркасу с помощью самонарезающих винтов длиной не менее 45 мм с шагом 500 мм (см. рисунок 16).

2.10.9. Заделка швов второго слоя ГВЛ обшивки.

Швы второго слоя ГВЛ заделывают в последовательности аналогичной заделке швов первого слоя ГВЛ (п. 2.10.7).

2.10.10. Обшивка каркаса третьим слоем ГВЛ с двух сторон (см. рисунок 14).

Установку листов третьего слоя производят сначала с одной стороны, а затем - с другой. ГВЛ третьего слоя устанавливают со смещением на один шаг относительно вертикальных и не менее 400 мм относительно горизонтальных стыков второго слоя. Крепление третьего слоя ГВЛ производят к каркасу с помощью самонарезающих винтов длиной не менее 22 мм с шагом 250 мм (см. рисунок 16).

2.10.11. Установка электротехнических коробок, розеток, выключателей и их крепление к ГВЛ.

По окончанию монтажа ГВЛ с обеих сторон каркаса устанавливают электрические коробки, розетки, выключатели и т.п., которые крепят к ГВЛ с помощью специальной фурнитуры. Отверстия под электрические розетки, выключатели и т.п., в целях пожарной безопасности, вырезают с противоположных сторон перегородки, со смещением минимум на 200 мм. Эти работы выполняет звено электромонтажников.

2.10.12. Заделка стыков между ГВЛ и углублений от винтов.

Шпаклевание стыков между ГВЛ производят при стабильной температуре и влажности воздуха в помещениях, соответствующих режиму эксплуатации (t не должна быть ниже +10 °С). Недопустимы сквозняки и резкие колебания температуры в помещениях. Предварительно кромки ГВЛ обрабатывают грунтовкой Тифенгрунд.

Заделке шпаклевочной смесью Фугенфюллер ГВ подлежат продольные и поперечные швы, стыки между перегородкой и стенами (колоннами), перегородкой и потолком. Продольные и поперечные швы ГВЛ заделываются с применением армирующей ленты.

До обработки стыков необходимо проверить надежность крепления ГВЛ. Выступающие головки винтов - довернуть. Производство работ, ведущих к повышению влажности в помещении, к этому времени должно быть завершено.

В зависимости от назначения помещений, требования к отделке поверхностей из ГВЛ можно разделить на 3 вида, как это принято в большинстве европейских стран:

Качество 1 (К1) - определяет качество поверхности швов и поверхностей ГВЛ, к которым не предъявляются оптические требования, т.е. поверхность может иметь волнистый рельеф, где гребень не должен превышать 1,5 мм. Такая поверхность ГВЛ предназначена для облицовки плиткой, оштукатуривания или под облицовку какими-либо другими материалами.

Качество 2 (К2) - соответствует существующему стандартному качеству поверхностей стен и потолков. Шпаклевание выполняется с целью достижения плавных переходов от поверхностей сопряжений к поверхности ГВЛ. Все переходы от швов, внутренних и внешних углов, крепежных элементов должны быть незаметны на глаз. Для этой цели зашпаклеванные швы обрабатывают пастой Финиш на ширину примерно 30 см.

Такая поверхность ГВЛ предназначена для структурированной окраски, оклейки структурными обоями, для тонкослойного оштукатуривания.

Качество 3 (К3) - предъявляет повышенные требования к качеству поверхности стен и потолков, т.е. кроме стандартного шпаклевания для К2 необходимо полное покрытие поверхности ГВЛ шпаклевочным материалом с последующим шлифованием. Для этих целей чаще всего используют пасту Финиш или Редигипс, а также шпаклевочные смеси.

Такая поверхность предназначена для высококачественной окраски стен и потолков любыми видами красок, оклейки глянцевыми тонкослойными обоями, оштукатуривания тонкоструктурированными растворными смесями с крупностью зерна менее 1 мм.

В данной технологической карте отделка поверхности относится к виду К1, на которую даются нормативы трудозатрат и расхода материалов. Более качественная отделка поверхности оговаривается заказчиком и на нее составляется отдельная смета.

Последовательность действий при обработке продольных и поперечных стыков между ГВЛ следующая:

- перед шпаклеванием обработка грунтовкой глубокого проникновения всех стыков;

- нанесение шпателем первого слоя шпаклевки на стык между листами шириной чуть больше ширины армирующей ленты;

- вдавливание шпателем армирующей ленты в нанесенную шпаклевку;

- после высыхания первого слоя шпаклевки широким шпателем нанесение второго слоя шпаклевки на всю ширину стыковочного шва.

Заделке шпаклевочной смесью Фугенфюллер ГВ подлежат углубления от винтов, стыки между перегородкой и стенами (колоннами), перегородкой и потолком. В местах стыковок на эти конструкции предварительно крепится самоклеящаяся разделительная лента. После заделки стыков и полного высыхания шпаклевки излишки ленты срезаются, а шов шлифуется.

В некоторых случаях при монтаже перегородок образуются внешние углы, которые защищают от механических повреждений при помощи металлических перфорированных уголков из оцинкованной стали (ПУ 31×31×0,4), которые крепят к ГВЛ с помощью специального приспособления, указанного в перечне инструментов. После крепления уголки шпаклюют и после высыхания шлифуют.

По окончании всех шпаклевочных работ поверхность перегородок обрабатывают с помощью кисти, щетки или валика грунтовкой Тифенгрунд. Это необходимо сделать для предотвращения образования трещин в швах из-за возможного изменения влажностного режима в помещении (особенно весной, осенью или при проведении отделочных работ мокрым способом).

3. ПОТРЕБНОСТЬ В ИНВЕНТАРЕ И МАТЕРИАЛАХ

Перечень потребного инвентаря, приспособлений и инструмента - см. на стр. 144.

Таблица 3.1

Нормативные показатели расхода материалов на устройство 1 м2
перегородки С 363

Наименование материалов

Ед. измерения

Размер перегородки, м

4×2,7
(глухая)

6×2,7
(один проем)

9×2,7
(два проема)

1

2

3

4

5

Каркас и крепежные изделия

Профиль направляющий ПН 50/40, ТУ 1121-004-04001508-2003

м

0,76

0,86

0,89

Профиль стоечный ПС 50/50, ТУ 1121-004-04001508-2003

м

2,04

2,54

2,6

Лента уплотнительная типа Дихтунгсбанд сеч. 50×3,2 мм

м

1,26

1,17

1,07

Материал изолирующий из минеральных волокон

м2

1,03

1,03

1,03

Брусок деревянный, размер 50×50×2695 мм

м

-

0,39

0,54

Дюбели анкерные металлические

шт.

1,69

2,33

2,4

Верхний уголок для крепления несущих элементов двери 100×123 мм

шт.

-

0,14

0,20

Нижний уголок для крепления несущих элементов двери 100×123 мм

шт.

-

0,14

0,20

Облицовка

Лист гипсоволокнистый ГВЛ 12,5 мм, ГОСТ Р 51829-2001

м2

6,32

6,73

7,01

Винт самонарезающий с острым концом и зенкующей головкой, ГОСТ 11652-80*, длиной, мм:

 

 

 

 

30

шт.

13,53

14,19

15,23

45

шт.

17,67

20,29

20,77

22

шт.

35,33

37,88

36,01

Заделка швов

Шпатлевка Фугенфюллер ГВ, ТУ 5745-011-04001508-97

кг

2,67

2,66

2,62

Лента армирующая

м

2,27

2,49

2,64

Лента разделительная 50 мм

м

1,77

1,62

1,42

Грунтовка Тифенгрунд

кг

0,27

0,27

0,27

4. НОРМАТИВНЫЕ И ТЕХНИКО-ЭКОНОМИЧЕСКИЕ ПОКАЗАТЕЛИ
(ИЗМЕРИТЕЛЬ КОНЕЧНОЙ ПРОДУКЦИИ - 1 м2)


Таблица 4.1

Затраты труда на устройство перегородки С 363

№ п.п.

Наименование технологических процессов

Единица измерения

Объем работ

Обоснование

Норма времени

Затраты труда

рабочих, чел.-ч

машиниста, чел.-ч (работа машин, маш.-ч)

рабочих, чел.-ч

машиниста, чел.-ч (работа машин, маш.-ч)

1

2

3

4

5

6

7

8

9

1

Устройство каркаса

м2

1

Расчет ОАО «Тулаоргтехстрой» методом технического нормирования

0,28

-

0,28

-

2

Обшивка каркаса

м2

1

0,86

-

0,86

-

3

Устройство изоляционного слоя

м2

1

0,1

-

0,1

-

4

Заделка швов, обработка поверхности

м2

1

0,64

-

0,64

-

5

Подача материалов на этажи подъемником грузоподъемностью до 1 т при высоте подъема до 8 м (добавлять на каждые следующие 6 м)

100 т

0,00097

Е1-16

36
(6,8)

9
(1,7)

0,035
(0,0066)

0,0087
(0,0016)

6

Перевозка материалов по этажу ручными тележками на расстояние до 30 м

1 т

0,097

Е1-21

1,1

-

0,107

-

 

Итого:

 

 

 

 

 

2,022

0,0087

Затраты труда на устройство перегородок с проемами и деформационными швами (без учета прочих работ)

С одним дверным проемом

1,91 чел.-ч

С двумя дверными проемами

1,93 чел.-ч

Таблица 4.2

График производства работ

№ п.п.

Наименование технологических процессов

Единица измерения

Объем работ

Затраты труда

Принятый состав звена

Продолжительность процесса, ч

рабочих, чел.-ч

машиниста, чел.-ч (работа машин, маш.-ч)

1

Устройство каркаса

м2

1

0,28

 

Монтажники конструкций 4-го и 3-го разрядов

0,14

2

Обшивка каркаса

м2

1

0,86

 

0,43

3

Устройство изоляционного слоя

м2

1

од

 

0,05

4

Заделка швов, обработка поверхности

м2

1

0,64

 

0,32

5

Прочие работы

м2

1

0,142

0,00783

 

0,071

 

Итого:

 

 

2,022

 

 

1,011


 

Рисунок 4.1 - График движения рабочей силы

Таблица 4.3

Технико-экономические показатели

№ п.п.

Наименование

Единица измерения

Количество

1

Продолжительность работ

ч

1,01

2

Трудоемкость на 1 м2:

 

по нормам

чел.-ч

1,88

 

по графику (с учетом прочих работ)

 

2,022

3

Максимальная численность рабочих

чел.

2

4

Выработка на 1 чел.-ч

м2

0,99

ТИПОВАЯ ТЕХНОЛОГИЧЕСКАЯ КАРТА
НА УСТРОЙСТВО ПЕРЕГОРОДОК
НА ДВОЙНОМ МЕТАЛЛИЧЕСКОМ КАРКАСЕ
КОМПЛЕКТНОЙ СИСТЕМЫ КНАУФ
С ПРИМЕНЕНИЕМ ГИПСОВОЛОКНИСТЫХ ЛИСТОВ

Перегородка С 365

1. ОБЛАСТЬ ПРИМЕНЕНИЯ

1.1. Типовая технологическая карта предназначения для разработки проектов производства работ (ППР), проектов организации строительства (ПОС), другой организационно-технологической документации, а также является информационным пособием для строительных организаций, производящих устройство перегородок С 365 с применением гипсоволокнистых листов (ГВЛ).

1.2. Сборные перегородки С 365 являются межкомнатными с шумозащитой 43 - 55 дБ и пределом огнестойкости EI 90, которые устраиваются в помещениях до 6,5 м и предназначены для жилых, общественных и производственных зданий:

- любой степени огнестойкости;

- любых конструктивных систем и типов;

- любого уровня ответственности, включая повышенный;

- различной этажности;

- возводимых в ветровых районах до V включительно;

- возводимых в районах как с обыкновенными, так и со сложными инженерно-геологическими условиями, и сейсмичностью до 9 баллов.

1.3. Перегородка С 365 имеет конструкцию, отвечающую требованиям рабочих чертежей серии 1.031.9-3.01 «Комплектные системы КНАУФ. Перегородки поэлементной сборки из гипсоволокнистых листов на металлическом и деревянном каркасах для жилых, общественных и производственных зданий», выпуск 1. Серия выпущена ЗАО «НП Челябинский Промстройпроект» при участии фирмы КНАУФ.

1.4. Она состоит из двойного металлического каркаса; двусторонней обшивки двумя слоями гипсоволокнистых листов толщиной 10 или 12,5 мм; звукоизоляционного слоя. Масса 1 м2 перегородки составляет: при толщине ГВЛ 10 мм - 55 кг; при толщине ГВЛ 12,5 мм - 68 кг.

1.5. Каркас перегородки С 365 состоит из направляющих и стоечных оцинкованных металлических профилей, отвечающих требованиям ТУ 1121-004-04001508-2003. Стандартная длина профилей: 2750; 3000; 4000; 4500 мм. По согласованию с заказчиком могут быть выпущены профили длиной от 500 до 6000 мм. Номинальная толщина профилей должна быть не менее 0,6 мм. Стенки направляющих и стоечных, а также полки стоечных профилей усилены продольными гофрами, увеличивающими их жесткость.

Направляющие профили имеют П-образную, а стоечные профили - С-образную формы. Размеры их стенок и полок (a×b) представлены в таблицах 1.1 и 1.2.

Таблица 1.1

Геометрические размеры направляющих профилей

Размер

Профиль

ПН 50

ПН 75

ПН 100

a×b, мм

50×40

75×40

100×40

Таблица 1.2

Геометрические размеры стоечных профилей

Размер

Профиль

ПС 50

ПС 75

ПС 100

a×b, мм

50×50

75×50

100×50

Направляющие профили производятся с готовыми отверстиями в стенках диаметром 8 мм, предназначенными для крепления дюбелями к несущим основаниям. В стоечных профилях имеются 3 пары отверстий в стенках диаметром 33 мм (в центре и по краям), которые позволяют монтировать технические коммуникации внутри перегородки.

Предельно допустимая высота перегородки С 365 варьируется в зависимости от ширины стенки и шага установки стоечных профилей (таблица 1.3). Данная технологическая карта может быть использована при устройстве перегородок высотой до 4,5 м.

Таблица 1.3

Максимальная высота перегородки С 365

Максимальная высота перегородки, м

Проектный шаг, мм

Тип профиля

4,5

600

ПС 50

6,0

600

ПС 75

6,5

600

ПС 100

При использовании ГВЛ другой номинальной толщины максимальная высота перегородки определяется по таблице перегородок на металлическом каркасе из альбома чертежей серии 1.031.9-3.01.

1.6. ГВЛ представляет собой экологически чистый листовой отделочный материал, изготовленный из строительного гипса марки не ниже Г-4 (ГОСТ 125-79), распушенной целлюлозной макулатуры марок МС-10 и МС-11 (ГОСТ 10700-89), содержащей различные технологические добавки. Типовой размер ГВЛ, который применялся при разработке данной технологической карты, равен 2500×1200× (10) 12,5 мм.

По заказу строительных организаций могут выпускаться партии листов других типоразмеров согласно ГОСТ Р 51829-2001, которые приведены в таблице 1.4.

Таблица 1.4

Размеры ГВЛ

Длина, мм

1500; 2000; 2500; 2700; 3000

Ширина, мм

500; 1000; 1200

Толщина, мм

10; 12,5; 15; 18; 20

ГВЛ выпускаются с различными формами продольных кромок: фальцевая (ФК); прямая (ПК). Данная технологическая карта предусматривает обшивку каркаса ГВЛ с фальцевой кромкой (ФК).

Масса 1 м2 (поверхностная плотность) ГВЛ - 1,05S < m < 1,2S (кг/м2), где S - толщина листа, мм. Удельная активность естественных радионуклидов не более 370 Бк/кг (ГОСТ 12.1.044-89*), т.е. ГВЛ относится к I группе.

Пожаротехнические характеристики ГВЛ соответствуют:

- горючесть - Г1 (ГОСТ 30244-94);

- воспламеняемость - В1 (ГОСТ 30402-96);

- дымообразующая способность - Д1 (ГОСТ 12.1.044-89);

- токсичность - Т1 (ГОСТ 12.1.044-89).

Отпускная влажность листов не должна превышать 1,5 %; плотность - не более 1250 кг/м3.

1.7. Для крепления ГВЛ к каркасу перегородок применяют самонарезающие винты с зенкующей головкой, а для крепления элементов каркаса перегородок к конструкциям здания - дюбели.

1.8. Монтаж перегородок производят в период отделочных работ по окончании «мокрых» процессов, способных существенно повысить влажность воздуха внутри помещения, до устройства чистого пола.

В помещениях, где производят монтаж перегородок С 365, температура воздуха не должна быть ниже +10 °С.

Температурно-влажностный режим помещения должен соответствовать требованиям СНиП 23-02-2003 «Тепловая защита зданий».

1.9. Типовая технологическая карта разработана на измеритель конечной продукции - 1 м2 перегородки. Привязка типовой технологической карты к конкретному объекту и условиям строительства состоит в уточнении необходимых материальных ресурсов и схем организации строительного процесса, соответствующего рабочим чертежам.

2. ОРГАНИЗАЦИЯ И ТЕХНОЛОГИЯ ВЫПОЛНЕНИЯ РАБОТ

2.1. К устройству перегородок С365 рекомендуется приступать только после:

- наличия утвержденной проектной документации (рабочих чертежей);

- наличия проекта производства работ, который должен предусматривать комплексную механизацию работ с наиболее полным использованием специализированного инструмента и приспособлений, способствующих повышению производительности труда, сокращению сроков возведения перегородок, уменьшающих трудозатраты и создающих наиболее безопасные условия труда;

- производства организационно-технологической подготовки, которая включает в себя подготовку необходимой оснастки, средств подмащивания и доставки ГВЛ в зону производства работ (см. рисунок 3).

2.2. До начала монтажа элементов перегородки необходимо закончить все общестроительные, а также строительно-монтажные работы, которые могут вызвать повышение влажности ГВЛ. Произвести уборку строительного мусора. Произвести инструментальную проверку соответствия основания для установки направляющих и стоечных профилей каркаса перегородки. Подготовленное основание должно быть оформлено актом приемки за подписью ответственных представителей строительной организации.

2.3. Работы по монтажу перегородок С 365 выполняют под руководством ИТР. Рабочие, выполняющие монтажные работы, должны пройти техническое обучение в учебных центрах «КНАУФ» или других специализированных учебных заведениях и иметь удостоверение на право производства работ.

2.4. Перегородки возводят поточно-расчлененным методом, по захваткам, со специализацией звеньев бригады на выполнение однотипных работ и оснащенных соответствующим набором инструментов, инвентаря и средств подмащивания. Каждое звено состоит из двух человек: монтажник конструкций 4-го разряда, монтажник конструкций 3-го разряда.

2.5. Доставку на объект ГВЛ, упакованных в полиэтиленовую пленку, производить централизованно автотранспортом. По согласованию с потребителем допускается транспортировать листы в непакетированном виде (без обвязки или упаковки в пленку). Размер упаковки ГВЛ 2500×1200×650 мм. Габариты пакетов не должны превышать по длине 4100 мм, ширине 1300 мм, высоте 800 мм; масса пакета не должна быть более 3000 кг (см. рисунок 1).

Хранение ГВЛ производить в помещениях с сухим и нормальным влажностным режимом, раздельно по видам и размерам, с соблюдением техники безопасности и сохранности продукции. Общая высота складируемого штабеля с ГВЛ не должна превышать 3,5 м (см. рисунок 2). Расстояние между штабелями складирования не должно быть менее 1 м.

2.6. Доставку на объект металлических профилей каркаса перегородок допускается производить автотранспортом при условии их защиты от механических воздействий. Хранение профилей на закрытых приобъектных складах должно производиться в кондукторе пакетами по типам.

2.7. При производстве погрузочно-разгрузочных работ следует избегать ударов. Укладку пакетов с профилями на транспортные средства следует осуществлять погрузчиками. Вышеуказанные работы должны производиться в соответствии с требованиями ГОСТ 12.3.009-76*.

2.8. Подъем материалов на этажи рекомендовано производить с помощью машин и механизмов, указанных в сборнике ЕНиР-1 «Внутрипостроечные транспортные работы».

2.9. Транспортирование ГВЛ к месту производства работ на этаже следует осуществлять ручными тележками. При переносе ГВЛ вручную - с помощью специальных приспособлений.

2.10. Устройство перегородки системы С 365 предусмотрено производить в следующем порядке:

- разметка проектного положения перегородки;

- установка элементов двойного каркаса;

- обшивка каркаса первым слоем ГВЛ с одной стороны;

- прокладка проектных инженерных коммуникаций;

- установка и закрепление изоляционного материала внутри перегородки;

- обшивка каркаса первым слоем ГВЛ с другой стороны;

- заделка стыков между ГВЛ первого слоя;

- обшивка каркаса вторым слоем ГВЛ с двух сторон;

- установка электротехнических коробок, розеток, выключателей и т.п. и их крепление к ГВЛ;

- заделка стыков между ГВЛ второго слоя и углублений от винтов;

- подготовка поверхности перегородок под чистовую отделку.

2.10.1. Разметка проектного положения перегородки (см. рисунок 4).

Разметку проектного положения элементов каркаса перегородки С 365 производят в строгом соответствии с проектным решением и согласно рабочим чертежам. Для быстрой и безошибочной установки перегородок рекомендуется вначале отмечать на полу места расположения стоечных профилей, дверных и других проемов. В дверном проеме должно быть указано, какая устанавливается дверь (правая или левая). Разметку производят с помощью складного метра, рулетки, метростата и шнуроотбойного устройства. Разметку больших помещений производят с помощью лазерного или оптического нивелира.

Разметку начинают от стены, расположенной параллельно возводимой перегородке, вынося горизонтальную ось. Затем на этой оси отмечают расположение стоечных профилей с проектным шагом, дверных и других проемов, а также выводов и сквозных проходов коммуникаций. Для данной технологической карты шаг равен 600 мм.

Расстояние от стоечных профилей двойного каркаса, примыкающих к стене, до первых отстоящих от стены профилей должно быть меньше проектного шага на 25 мм.

Затем с помощью метростата и шнуроотбойного устройства (если высота помещения больше 3 м, то - нивелира или отвеса) разметку зеркально переносят на потолок. Вертикальные оси каркаса перегородки с помощью метростата и отвеса наносят на стены помещения, примыкающие к каркасу.

2.10.2. Установка элементов двойного каркаса (см. рисунок 17).

Элементы каркаса перегородки С 365 состоят из направляющих профилей (ПН) и стоечных профилей (ПС), имеющих стандартные размеры. На полках стоечных профилей выполнены продольные гофры, которые увеличивают их жесткость. Центральный гофр является ориентиром, как при точной сборке каркаса, так и при установке ГВЛ.

Типоразмеры стоечных и направляющих профилей выбирают исходя из высоты конструкции перегородки, в полном соответствии с рабочими чертежами.

Допускается соединение стоечных профилей по длине методом насадки или встык с дополнительным профилем. В этих случаях длина нахлеста определяется согласно таблице 2.1, а длина дополнительного профиля должна быть не менее 20-кратной величины стенки стоечного профиля.

Таблица 2.1

Соединение стоечных профилей

Тип профиля

Длина нахлеста, см

ПС 50

≥50

ПС 65

≥65

ПС 75

≥75

ПС 100

≥100

Соединение (удлинение) профилей производят с помощью просекателя методом «просечки с отгибом», в отдельных случаях посредством винтов LN 3,5×9.

Стоечные профили должны иметь высоту на 10 мм меньше расстояния между стенками верхних и нижних направляющих профилей.

Установку направляющих профилей осуществляют согласно разметке их проектного положения на полу и на потолке.

С целью повышения звукоизоляционной способности перегородки на стенки направляющих профилей ПН наклеивают уплотнительную ленту. После раскроя и полной подготовки направляющих профилей приступают к их монтажу по линии разметки на полу, а затем - на потолке. Крепление направляющих профилей осуществляют дюбелями с шагом не более 1 м. Закреплять профиль ПН необходимо не менее чем в трех точках независимо от его длины. При необходимости дополнительные отверстия в стенке направляющего профиля высверливают дрелью.

Установку стоечных профилей также осуществляют по их проектному положению, а их типоразмер должен соответствовать рабочим чертежам (в рассматриваемом случае шаг стоек равен 600 мм).

Предварительно на стоечные профили, примыкающие к конструкциям здания, наклеивается уплотнительная лента. Уплотнительную ленту устанавливают между стенками спаренных стоечных профилей двойного каркаса не менее чем в четырех точках по высоте, небольшими отрезками. Стоечные профили устанавливают в закрепленные в проектном положении направляющие профили.

Установку стоек начинают от стен, к которым профили крепятся дюбелями с шагом не более 1 м, но не менее трех креплений на одну стойку. Каждая стойка устанавливается строго вертикально и с помощью просекателя закрепляется к направляющему профилю на полу и на потолке. Закрепление производят не менее чем в двух точках с каждой стороны направляющего профиля (т.е. четыре просечки вверху и четыре просечки - внизу). Устройство вставок в каркасах 2-слойной перегородки не требуется.

Если перегородка имеет дверной проем, то дверная коробка устанавливается одновременно с монтажом каркаса. По дверной коробке монтируют опорные стоечные профили, дверную перемычку из направляющего профиля и промежуточные стойки над проемом. Стоечные профили, ограничивающие дверной проем, устанавливают на всю высоту перегородки, независимо от размера шага (см. рисунок 18).

Стоечные профили для крепления ГВЛ и дверной коробки не совмещаются. Опорные стойки для дверей массой до 35 кг укрепляют вставкой из деревянных брусков или дополнительным профилем. Для этого на всю длину стойки вставляют деревянный брусок такого же сечения или соединяют с помощью винтов LN 3,5×9 с одноразмерным направляющим или стоечным профилем, таким образом, чтобы получилось коробчатое сечение. Если в проекте не указано наличие «левой» или «правой» двери, то усиливают обе стойки. Эти технологические операции выполняют в обоих каркасах.

Брус должен быть выполнен из древесины хвойных пород не ниже второго сорта по ГОСТ 8486-86 и обработан антисептиками и антипиренами в соответствии с требованиями СНиП 3.03.01-87. Влажность древесины не должна превышать 12 % ± 3 %.

Перед установкой стоечных профилей, ограничивающих дверной проем, в местах их установки крепят с помощью анкерных дюбелей 4 уголка: два верхних и два нижних (см. рисунок 18).

Эти уголки, имеющие клипсы, крепятся внутри направляющих профилей и предназначены для увеличения жесткости дверного проема. С помощью клипс к ним крепятся стоечные профили дверного проема, которые не доходят до направляющих профилей на 3 - 5 мм.

Положение уголков в дверном проеме перегородки и крепление к ним стоечных профилей показаны на рисунке 18.

Затем монтируют из направляющего профиля перемычку, ограничивающую высоту дверного проема. Горизонтальность установки перемычки проверяют с помощью уровня. Крепление перемычки из профиля ПН к стоечным профилям производят в двух точках с каждой стороны с помощью просекателя.

После установки перемычки монтируют промежуточные стойки над дверным проемом с сохранением проектного шага. Это необходимо для того, чтобы вертикальный стыковочный шов ГВЛ оказался над дверным проемом, что снижает вероятность трещинообразования в швах.

В местах сопряжения перегородок с коммуникациями между стоечными профилями устанавливают перемычки из направляющего профиля с их закреплением просекателем к профилю ПС. При групповой прокладке трубопровода допускается устройство общего обрамления.

При необходимости пропуска инженерных коммуникаций больших размеров допускается срезка вертикальных стоек с установкой по краям отверстия дополнительных стоечных профилей каркаса на всю высоту перегородки. В местах пересечения перегородок трубопроводами парового, водяного отопления и водоснабжения устанавливают гильзы.

Контроль за точностью установки каркаса осуществляют с помощью складного метра, метростата или нивелира.

Если длина перегородки превышает 15 м, то требуется устройство деформационного шва (см. рисунок 19). Кроме того, деформационные швы перегородки должны повторять деформационные швы здания.

На смонтированный в проектное положение каркас перегородки необходимо оформить акт приемки за подписью главного инженера строительной организации и лица - надзора от проектной организации.

2.10.3. Обшивка каркаса 1-м слоем гипсоволокнистых листов с одной стороны.

Перед установкой ГВЛ в местах примыкания обшивки к поверхностям потолка и стен (колонн), выполненных из другого материала, наклеивают разделительную ленту.

Установка ГВЛ начинается от основной стены помещения в вертикальном положении. Перед установкой на торцах каждого ГВЛ, образующих горизонтальный стык, делают фальц шириной 30 мм и глубиной 2 мм (см. рисунок 5).

Горизонтальную стыковку ГВЛ выполняют вразбежку с шагом не менее 400 мм. Между полом и ГВЛ оставляется зазор около 10 мм. По вертикали ГВЛ стыкуются только на стойках каркаса.

Крепление ГВЛ осуществляют самонарезающими винтами с зенкующей головкой длиной 30 мм с помощью электрошуруповерта с магнитной головкой. Шаг винтов 750 мм (см. рисунок 15). Крепятся ГВЛ по периметру и по центральной вертикальной оси.

Монтаж ГВЛ ведется в одном направлении с открытой частью профиля. Установка винтов, закрепляющих предыдущий лист, со стороны стенки профиля предотвращает отгибание слабого края полки внутрь профиля при креплении следующего листа.

Крепление винтами на стыке ГВЛ осуществляют вразбежку через 50 мм с винтами соседнего ряда и отступлением от края ГВЛ на 10 мм. Крепежные винты должны входить в ГВЛ под прямым углом и проникать в полку профиля на глубину не менее 10 мм. Головки винтов должны быть утоплены в поверхность ГВЛ на глубину, позволяющую их зашпаклевать.

2.10.4. Прокладка проектных инженерных коммуникаций.

Облицевав одну сторону каркаса перегородки ГВЛ, приступают к монтажу электротехнической проводки. Кабели размещают перпендикулярно стойкам каркаса (для чего в них имеются отверстия) в строгом соответствии с рабочим проектом. Не допускается размещать электропроводку вдоль стоек или внутри них, во избежание ее повреждения при обшивке ГВЛ с другой стороны. Прокладку электросети выполняет специализированное звено электромонтажников. В ГВЛ вырезают отверстия под коробки, розетки, выключатели, а проводку выводят наружу. При необходимости производят прокладку и других коммуникационных сетей, предусмотренных проектом.

2.10.5. Установка и закрепление изоляционного материала внутри перегородок.

Установку изоляционного материала производят после обшивки каркаса с одной стороны и прокладки инженерных сетей.

Установка изоляционного (минераловатного) материала производится вручную в пространство между стоечными профилями. При необходимости изоляционный материал прикрепляют к смонтированным ГВЛ или фиксируют с помощью вкладышей, крепящихся к стенкам профиля ПС.

2.10.6. Обшивка каркаса перегородки гипсоволокнистыми листами с другой стороны.

Обшивка каркаса перегородки ГВЛ с обратной стороны производится после укладки изоляционного слоя в той же последовательности и с теми же требованиями, что изложены выше в п. 2.10.2, но со смещением на один шаг профиля относительно листов другой стороны.

Раскрой доборных листов осуществляют в процессе выполнения работ. Примыкание листов обшивки к дверным коробкам осуществляют «заподлицо».

2.10.7. Заделка стыков между ГВЛ первого слоя.

До заделки стыков необходимо проверить надежность крепления ГВЛ. Выступающие головки винтов довернуть. Производство работ, ведущих к повышению влажности в помещении, к этому времени должно быть завершено.

Заделку продольных стыков между ГВЛ производят при температуре и влажности воздуха в помещениях, соответствующих режиму эксплуатации (t не должна быть ниже +10 °С). Недопустимы сквозняки, резкие колебания температуры и влажности в помещениях. Предварительно кромки ГВЛ обрабатывают грунтовкой Тифенгрунд.

Заделке шпаклевочной смесью Фугенфюллер ГВ подлежат продольные и поперечные стыки, стыки между перегородкой и стенами (колоннами), перегородкой и потолком.

Последовательность действий при обработке продольных и поперечных стыков между ГВЛ:

- нанесение шпателем первого слоя шпаклевки на стык между листами шириной чуть большей ширины армирующей ленты;

- после высыхания первого слоя шпаклевки широким шпателем нанесение второго слоя шпаклевки на всю ширину стыковочного шва.

2.10.8. Обшивка каркаса вторым слоем ГВЛ с двух сторон (см. рисунок 13).

Установку листов второго слоя производят сначала с одной стороны, а затем - с другой. ГВЛ второго слоя устанавливают со смещением на один шаг относительно вертикальных и не менее 400 мм относительно горизонтальных стыков первого слоя. Крепление второго слоя ГВЛ производят к каркасу с помощью самонарезающих винтов длиной 45 мм с шагом 250 мм (см. рисунок 15).

2.10.9. Установка электротехнических коробок, розеток, выключателей и их крепление к ГВЛ.

По окончанию монтажа ГВЛ с обеих сторон каркаса устанавливают электрические коробки, розетки, выключатели и т.п., которые крепят к ГВЛ с помощью специальной фурнитуры. Отверстия под электрические розетки, выключатели и т.п. в целях пожарной безопасности, вырезают с противоположных сторон перегородки, со смещением минимум на 200 мм. Эти работы выполняет звено электромонтажников.

2.10.10. Заделка стыков между ГВЛ и углублений от винтов.

Шпаклевание стыков между ГВЛ производят при стабильной температуре и влажности воздуха в помещениях соответствующих режиму эксплуатации (Г не должна быть ниже +10 °С). Недопустимы сквозняки и резкие колебания температуры в помещениях. Предварительно кромки ГВЛ обрабатывают грунтовкой Тифенгрунд.

Заделке шпаклевочной смесью Фугенфюллер ГВ подлежат продольные и поперечные стыки, стыки между перегородкой и стенами (колоннами), перегородкой и потолком. Продольные и поперечные стыки ГВЛ заделывают с применением армирующей ленты.

До обработки стыков необходимо проверить надежность крепления ГВЛ. Выступающие головки винтов - довернуть. Производство работ, ведущих к повышению влажности в помещении, к этому времени должно быть завершено.

В зависимости от назначения помещений требования к отделке поверхностей из ГВЛ можно разделить на 3 вида, как это принято в большинстве европейских стран:

Качество 1 (К1) - определяет качество поверхности швов и поверхностей ГВЛ, к которым не предъявляются оптические требования, т.е. поверхность может иметь волнистый рельеф, где гребень не должен превышать 1,5 мм. Такая поверхность ГВЛ предназначена для облицовки плиткой, оштукатуривания или под облицовку какими-либо другими материалами.

Качество 2 (К2) - соответствует существующему стандартному качеству поверхностей стен и потолков. Шпаклевание выполняется с целью достижения плавных переходов от поверхностей сопряжений к поверхности ГВЛ. Все переходы от швов, внутренних и внешних углов, крепежных элементов должны быть незаметны на глаз. Для этой цели зашпаклеванные швы обрабатывают пастой Финиш на ширину примерно 30 см.

Такая поверхность ГВЛ предназначена для структурированной окраски, оклейки структурными обоями, для тонкослойного оштукатуривания.

Качество 3 (К3) - предъявляет повышенные требования к качеству поверхности стен и потолков, т.е. кроме стандартного шпаклевания для К2, необходимо полное покрытие поверхности ГВЛ шпаклевочным материалом с последующим шлифованием. Для этих целей чаще всего используют пасту Финиш или Редигипс, а также шпаклевочные смеси.

Такая поверхность предназначена для высококачественной окраски стен и потолков любыми видами красок, оклейки глянцевыми тонкослойными обоями, оштукатуривания тонкоструктурированными растворными смесями с крупностью зерна менее 1 мм.

В данной технологической карте отделка поверхности относится к виду К1, на которую даются нормативы трудозатрат и расхода материалов. Более качественная отделка поверхности оговаривается заказчиком и на нее составляется отдельная смета.

Последовательность действий при обработке продольных и поперечных стыков между ГВЛ следующая:

- перед шпаклеванием обработка грунтовкой глубокого проникновения всех стыков;

- нанесение шпателем первого слоя шпаклевки на стык между листами шириной чуть больше ширины армирующей ленты;

- вдавливание шпателем армирующей ленты в нанесенную шпаклевку;

- после высыхания первого слоя шпаклевки широким шпателем нанесение второго слоя шпаклевки на всю ширину стыковочного шва.

Заделке шпаклевочной смесью Фугенфюллер ГВ подлежат углубления от винтов, стыки между перегородкой и стенами (колоннами), перегородкой и потолком. В местах стыковок на эти конструкции предварительно крепится самоклеящаяся разделительная лента. После заделки стыков и полного высыхания шпаклевки излишки ленты срезают, а шов - шлифуют.

В некоторых случаях при монтаже перегородок образуются внешние углы, которые защищают от механических повреждений при помощи металлических перфорированных уголков из оцинкованной стали (ПУ 31×31×0,4), которые крепят к ГВЛ с помощью специального приспособления, указанного в перечне инструментов. После крепления уголки шпаклюют и после высыхания шлифуют.

По окончании всех шпаклевочных работ поверхность перегородок обрабатывают с помощью кисти, щетки или валика грунтовкой Тифенгрунд. Это необходимо сделать с целью предотвращения образования трещин в швах из-за возможного изменения влажностного режима в помещении (особенно весной, осенью или при проведении отделочных работ мокрым способом).

3. ПОТРЕБНОСТЬ В ИНВЕНТАРЕ И МАТЕРИАЛАХ

Перечень потребного инвентаря, приспособлений и инструмента - см. на стр. 144.

Таблица 3.1

Нормативные показатели расхода материалов на устройство 1 м2
перегородки С 365

Наименование материалов

Ед. измерения

Размер перегородки, м

4×2,7
(глухая)

6×2,7
(один проем)

9×2,7
(два проема)

16,2×2,7
(три проема и деформационный шов)

1

2

3

4

5

6

Каркас и крепежные изделия

Профиль направляющий ПН 50/40, ТУ 1121-004-04001508-2003

м

1,51

1,71

1,79

1,74

Профиль стоечный ПС 50/50, ТУ 1121-004-04001508-2003

м

4,07

5,08

5,21

4,87

Профиль направляющий потолочный ПНП 28/27 (на устройство деформ. шва), ТУ 1121-004-04001508-2003

м

-

-

-

0,29

Лента уплотнительная типа Дихтунгсбанд сеч. 50×3,2 мм

м

2,67

2,53

2,33

2,07

Дюбель типа К 6/35

шт.

3,38

3,26

2,86

2,34

Дюбели анкерные металлические

шт.

-

1,40

1,94

1,58

Верхний уголок для крепления несущих элементов двери 100×123 мм

шт.

-

0,28

0,39

0,32

Нижний уголок для крепления несущих элементов двери 100×123 мм

шт.

-

0,28

0,39

0,32

Материал изолирующий из минеральных волокон

м2

2,06

2,06

2,06

2,06

Брусок деревянный, размер 50×50×2695 мм

м

-

0,78

1,08

0,88

Обшивка

Лист гипсоволокнистый ГВЛ 10 мм, ГОСТ Р 51829-2001

м2

4,21

4,49

4,67

4,7

Винт самонарезающий с острым концом и зенкующей головкой, ГОСТ 11652-80*, длиной, мм:

 

 

 

 

 

30

шт.

13,53

14,19

15,23

13,20

45

шт.

35,33

37,88

36,01

36,12

22

шт.

-

-

-

0,69

ГОСТ 11650-80

 

 

 

 

 

длиной 9 мм

шт.

-

-

-

1,76

Заделка швов

Шпаклевка Фугенфюллер ГВ, ТУ 5745-011-04001508-97

кг

1,79

1,79

1,76

1,74

Лента армирующая

м

2,27

2,49

2,64

2,86

Лента разделительная 50 мм

м

1,77

1,62

1,42

1,15

Грунтовка Тифенгрунд

кг

0,25

0,25

0,25

0,25

4. НОРМАТИВНЫЕ И ТЕХНИКО-ЭКОНОМИЧЕСКИЕ ПОКАЗАТЕЛИ
(ИЗМЕРИТЕЛЬ КОНЕЧНОЙ ПРОДУКЦИИ - 1 м2)


Таблица 4.1

Затраты труда на устройство перегородки С 365

№ п.п.

Наименование технологических процессов

Единица измерения

Объем работ

Обоснование

Норма времени

Затраты труда

рабочих, чел.-ч

машиниста, чел.-ч (работа машин, маш.-ч)

рабочих, чел.-ч

машиниста, чел.-ч (работа машин, маш.-ч)

1

2

3

4

5

6

7

8

9

1

Устройство каркаса

м2

1

Расчет ОАО «Тулаоргтехстрой» методом технического нормирования

0,62

-

0,62

-

2

Обшивка каркаса

м2

1

0,62

-

0,62

-

3

Устройство изоляционного слоя

м2

1

0,2

-

0,2

-

4

Заделка швов, обработка поверхности

м2

1

0,44

-

0,44

-

5

Подача материалов на этажи подъемником грузоподъемностью до 1 т при высоте подъема до 8 м (добавлять на каждые следующие 6 м)

100 т

0,00055

Е1-16

36
(6,8)

9
(1,7)

0,0198
(0,0037)

0,005
(0,0009)

6

Перевозка материалов по этажу ручными тележками на расстояние до 30 м

1 т

0,055

Е1-21

1,1

-

0,060

-

 

Итого:

 

 

 

 

 

1,96

0,005

Затраты труда на устройство перегородок с проемами и деформационными швами (без учета прочих работ)

С одним дверным проемом

1,94 чел.-ч

С двумя дверными проемами

1,965 чел.-ч

С тремя дверными проемами и деформационным швом

1,97 чел.-ч

Таблица 4.2

График производства работ

№ п.п.

Наименование технологических процессов

Единица измерения

Объем работ

Затраты труда

Принятый состав звена

Продолжительность процесса, ч

рабочих, чел.-ч

машиниста, чел.-ч (работа машин, маш.-ч)

1

Устройство каркаса

м2

1

0,62

 

Монтажники конструкций 4-го и 3-го разрядов

0,31

2

Обшивка каркаса

м2

1

0,62

 

0,31

3

Устройство изоляционного слоя

м2

1

0,2

 

0,1

4

Обработка поверхности, заделка швов

м2

1

0,44

 

0,22

5

Прочие работы

м2

1

0,08

0,005

 

0,04

 

Итого:

 

 

1,96

 

 

0,98


Рисунок 4.1 - График движения рабочей силы

Таблица 4.3

Технико-экономические показатели

№ п.п.

Наименование

Единица измерения

Количество

1

Продолжительность работ

ч

0,98

2

Трудоемкость на 1 м2:

 

 

по нормам

чел.-ч

1,88

по графику (с учетом прочих работ)

 

1,96

3

Максимальная численность рабочих

чел.

2

4

Выработка на 1 чел.-ч

м2

1,02

ТИПОВАЯ ТЕХНОЛОГИЧЕСКАЯ КАРТА
НА УСТРОЙСТВО ПЕРЕГОРОДОК
НА РАЗНЕСЕННОМ ДВОЙНОМ
МЕТАЛЛИЧЕСКОМ КАРКАСЕ
КОМПЛЕКТНОЙ СИСТЕМЫ КНАУФ
С ПРИМЕНЕНИЕМ ГИПСОВОЛОКНИСТЫХ ЛИСТОВ

Перегородка С 366

1. ОБЛАСТЬ ПРИМЕНЕНИЯ

1.1. Типовая технологическая карта предназначена для разработки проектов производства работ (ППР), проектов организации строительства (ПОС), другой организационно-технологической документации, а также является информационным пособием для строительных организаций, производящих устройство перегородок С 366 с применением гипсоволокнистых листов (ГВЛ).

1.2. Сборные перегородки С 366 являются межкомнатными с шумозащитой 51 - 56 дБ и пределом огнестойкости EI 150, которые устраиваются в помещениях высотой до 6,5 м и предназначены для жилых, общественных и производственных зданий:

- любой степени огнестойкости;

- любых конструктивных систем и типов;

- любого уровня ответственности, включая повышенный;

- различной этажности;

- возводимых в ветровых районах до V включительно;

- возводимых в районах как с обыкновенными, так и со сложными инженерно-геологическими условиями, сейсмичностью до 9 баллов.

1.3. Перегородка С 366 имеет конструкцию, отвечающую требованиям рабочих чертежей серии 1.031.9-3.01 «Комплектные системы КНАУФ. Перегородки поэлементной сборки из гипсоволокнистых листов на металлическом и деревянном каркасах для жилых, общественных и производственных зданий», выпуск 1. Серия выпущена ЗАО «НП Челябинский Промстройпроект» при участии фирмы КНАУФ.

1.4. Перегородка С 366 состоит из двойного металлического каркаса с пространством для пропуска коммуникаций, двусторонней обшивки двумя слоями гипсоволокнистых листов толщиной 12,5 мм, звукоизоляционного слоя. При монтаже перегородки С 366 в санитарно-технических помещениях с влажным влажностным режимом необходимо использовать влагостойкие гипсоволокнистые листы (ГВЛВ). Масса 1 м2 перегородки при толщине ГВЛ 12,5 мм - 69 кг.

1.5. Каркас системы С 366 состоит из направляющих и стоечных оцинкованных металлических профилей, отвечающих требованиям ТУ 1121-004-04001508-2003. Стандартная длина профилей составляет: 2750; 3000; 4000; 4500 мм. По согласованию с заказчиком могут быть выпущены профили длиной от 500 до 6000 мм. Номинальная толщина профилей должна быть не менее 0,6 мм. Стенки направляющих и стоечных, а также полки стоечных профилей усилены продольными гофрами, увеличивающими их жесткость.

Направляющие профили имеют П-образную, а стоечные профили - С-образную формы. Размеры их стенок и полок (a×b) представлены в таблицах 1.1 и 1.2.

Таблица 1.1

Геометрические размеры направляющих профилей

Размер

Профиль

ПН 50

ПН 75

ПН 100

a×b, мм

50×40

75×40

100×40

Таблица 1.2

Геометрические размеры стоечных профилей

Размер

Профиль

ПС 50

ПС 75

ПС 100

a×b, мм

50×50

75×50

100×50

Направляющие профили производятся с готовыми отверстиями в стенках диаметром 8 мм, предназначенными для крепления дюбелями к несущим основаниям. В стоечных профилях имеются 3 пары отверстий диаметром 33 мм (в центре и по краям), которые позволяют монтировать технические коммуникации внутри перегородки.

Предельно допустимая высота перегородки С 366 варьируется в зависимости от ширины стенки и шага установки стоечных профилей, толщины ГВЛ. Данная технологическая карта может быть использована для устройства перегородки высотой до 4,5 м.

1.6. ГВЛ (ГВЛВ) представляет собой экологически чистый листовой отделочный материал, изготовленный из строительного гипса марки не ниже Г-4 (ГОСТ 125-79), распушенной целлюлозной макулатуры марок МС-10 и МС-11 (ГОСТ 10700-89), содержащей различные технологические добавки. Типовой размер ГВЛ, который применялся при разработке данной технологической карты, равен 2500×1200×12,5 мм.

По заказу строительных организаций могут выпускаться партии листов других типоразмеров согласно ГОСТ Р 51829-2001, которые приведены в таблице 1.3.

Таблица 1.3

Размеры ГВЛ

Длина, мм

1500; 2000; 2500; 2700; 3000

Ширина, мм

500; 1000; 1200

Толщина, мм

10; 12,5; 15; 18; 20

ГВЛ выпускают с различными формами продольных кромок: фальцевая (ФК); прямая (ПК). Данная технологическая карта предусматривает обшивку каркаса ГВЛ с фальцевой кромкой (ФК).

Масса 1 м2 (поверхностная плотность) ГВЛ - 1,05S < m < 1,2S (кг/м2), где S - толщина листа, мм. Удельная активность естественных радионуклидов не более 370 Бк/кг (ГОСТ 12.1.044-89*), т.е. ГВЛ относится к I группе.

Пожаротехнические характеристики ГВЛ соответствуют:

- горючесть - Г1 (ГОСТ 30244-94);

- воспламеняемость - В1 (ГОСТ 30402-96);

- дымообразующая способность - Д1 (ГОСТ 12.1.044-89);

- токсичность - Т1 (ГОСТ 12.1.044-89).

Отпускная влажность листов не должна превышать 1,5 %; плотность - не более 1250 кг/м3.

1.7. Для крепления ГВЛ к каркасу перегородок применяют самонарезающие винты с зенкующей головкой, а для крепления элементов каркаса перегородок к конструкциям здания - дюбели.

1.8. Монтаж перегородок производят в период отделочных работ по окончании «мокрых» процессов, способных существенно повысить влажность воздуха внутри помещения, до устройства чистого пола.

В помещениях, где производят монтаж перегородок С 366, температура воздуха не должна быть ниже +10 °С.

Температурно-влажностный режим помещения должен соответствовать требованиям СНиП 23-02-2003 «Тепловая защита зданий».

1.9. Типовая технологическая карта разработана на измеритель конечной продукции 1 м2 перегородки. Привязка типовой технологической карты к конкретному объекту и условиям строительства состоит в уточнении необходимых материальных ресурсов и схем организации строительного процесса, соответствующего рабочим чертежам.

2. ОРГАНИЗАЦИЯ И ТЕХНОЛОГИЯ ВЫПОЛНЕНИЯ РАБОТ

2.1. К устройству перегородок С 366 рекомендуется приступать только после:

- наличия утвержденной проектной документации (рабочих чертежей);

- наличия проекта производства работ, который должен предусматривать комплексную механизацию работ с наиболее полным использованием специализированного инструмента и приспособлений, способствующих повышению производительности труда, сокращению сроков возведения перегородок, уменьшающих трудозатраты и создающих наиболее безопасные условия труда;

- производства организационно-технологической подготовки, которая включает в себя подготовку необходимой оснастки, средств подмащивания и доставки ГВЛ в зону производства работ (см. рисунок 3).

2.2. До начала монтажа элементов перегородки необходимо закончить все общестроительные, а также строительно-монтажные работы, которые могут вызвать повышение влажности ГВЛ. Произвести уборку строительного мусора. Произвести инструментальную проверку соответствия основания для установки направляющих и стоечных профилей каркаса перегородки. Подготовленное основание должно быть оформлено актом приемки за подписью ответственных представителей строительной организации.

2.3. Работы по монтажу перегородок С 366 выполняют под руководством ИТР. Рабочие, выполняющие монтажные работы, должны пройти техническое обучение в учебных центрах «КНАУФ» или других специализированных учебных заведениях и иметь удостоверение на право производства работ.

2.4. Возведение перегородок производят поточно-расчлененным методом, по захваткам, со специализацией звеньев бригады на выполнение однотипных работ и оснащенных соответствующим набором инструментов, инвентаря и средств подмащивания. Каждое звено состоит из двух человек: монтажник конструкций 4-го разряда, монтажник конструкций 3-го разряда.

2.5. Доставку на объект ГВЛ, упакованных в полиэтиленовую пленку, следует производить централизованно автотранспортом. По согласованию с потребителем допускается транспортировать листы в непакетированном виде (без обвязки или упаковки в пленку). Размер упаковки ГВЛ 2500×1200×650 мм. Габариты пакетов не должны превышать по длине 4100 мм, ширине 1300 мм, высоте 800 мм; масса пакета не должна быть более 3000 кг (см. рисунок 1).

ГВЛ следует хранить в помещениях с сухим и нормальным влажностным режимом, раздельно по видам и размерам, с соблюдением техники безопасности и сохранности продукции. Общая высота складируемого штабеля с ГВЛ не должна превышать 3,5 м (см. рисунок 2). Расстояние между штабелями складирования не должно быть менее 1 м.

2.6. Доставку на объект металлических профилей каркаса перегородок допускается производить автотранспортом при условии их защиты от механических воздействий. Хранение профилей на закрытых приобъектных складах должно производиться в кондукторе пакетами по типам.

2.7. При производстве погрузочно-разгрузочных работ следует избегать ударов. Укладку пакетов с профилями на транспортные средства следует осуществлять погрузчиками. Вышеуказанные работы должны производиться в соответствии с требованиями ГОСТ 12.3.009-76*.

2.8. Подъем материалов на этажи рекомендовано производить с помощью машин и механизмов, указанных в сборнике ЕНиР-1 «Внутрипостроечные транспортные работы».

2.9. Транспортирование ГВЛ к месту производства работ на этаже следует осуществлять ручными тележками. При переносе ГВЛ вручную - с помощью специальных приспособлений.

2.10. Устройство перегородки С 366 предусмотрено производить в следующем порядке:

- разметка проектного положения перегородки;

- установка элементов первого каркаса;

- установка элементов второго каркаса;

- установка траверс-перемычек на стоечных профилях каркасов;

- обшивка каркаса первым слоем ГВЛ с одной стороны;

- прокладка проектных инженерных коммуникаций;

- установка и закрепление изоляционного материала внутри перегородки;

- обшивка каркаса первым слоем ГВЛ с другой стороны;

- заделка стыков между ГВЛ первого слоя;

- обшивка каркаса вторым слоем ГВЛ с двух сторон;

- установка электротехнических коробок, розеток, выключателей и т.п. и их крепление к ГВЛ;

- заделка стыков между ГВЛ второго слоя и углублений от винтов;

- подготовка поверхности перегородок под чистовую отделку.

2.10.1. Разметка проектного положения перегородки (см. рисунок 4).

Разметку проектного положения элементов сложного каркаса перегородки С 366 производят в строгом соответствии с проектным решением, согласно рабочим чертежам. Для быстрой и безошибочной установки перегородок рекомендуется вначале отмечать на полу места расположения стоечных профилей, дверных и других проемов. Разметку производят с помощью складного метра, рулетки, метростата и шнуроотбойного устройства. Разметку больших помещений производят с помощью лазерного или оптического нивелира.

Разметку начинают от стены, расположенной параллельно возводимой перегородке, вынося горизонтальную ось, затем от этой оси размечают оси первого и второго каркасов. Затем на этой оси отмечают расположение стоечных профилей с проектным шагом, а также выводов и сквозных проходов коммуникаций. Для данной технологической карты шаг равен 600 мм.

Расстояние от стоечных профилей двойного каркаса, примыкающих к стене, до первых отстоящих от стены профилей должно быть меньше проектного шага на 25 мм.

Затем с помощью метростата и шнуроотбойного устройства (если высота помещения больше 3 м, то - нивелира или отвеса) разметку зеркально переносят на потолок. Вертикальные оси каркаса перегородки с помощью метростата и отвеса наносят на стены помещения, примыкающие к каркасу.

2.10.2. Установка элементов двойного каркаса (см. рисунок 20).

Элементы сложного каркаса перегородки С 366 состоят из направляющих профилей (ПН) и стоечных профилей (ПС), имеющих стандартные размеры. На полках стоечных профилей выполнены продольные гофры, которые увеличивают их жесткость. Центральный гофр является ориентиром как при точной сборке каркаса, так и при установке ГВЛ.

Типоразмеры стоечных и направляющих профилей выбирают исходя из высоты конструкции перегородки в полном соответствии с рабочими чертежами.

Допускается соединение стоечных профилей по длине методом насадки или встык с дополнительным профилем. В этих случаях длина нахлеста определяется согласно таблице 2.1, а длина дополнительного профиля должна быть не менее 20-кратной величины стенки стоечного профиля.

Таблица 2.1

Соединение стоечных профилей

Тип профиля

Длина нахлеста, см

1

2

ПС 50

≥50

ПС 65

≥65

ПС 75

≥75

ПС 100

≥100

Соединение (удлинение) профилей производят с помощью просекателя методом «просечки с отгибом», в отдельных случаях - посредством винтов LN 3,5×9.

Стоечные профили должны иметь высоту на 10 мм меньше расстояния между стенками верхних и нижних направляющих профилей.

Установку направляющих профилей осуществляют согласно разметке их проектного положения на полу и на потолке.

С целью повышения звукоизоляционной способности перегородки на стенки направляющих профилей ПН наклеивают уплотнительную ленту. После раскроя и полной подготовки направляющих профилей приступают к их монтажу по линии разметки на полу, а затем - на потолке. Крепление направляющих профилей осуществляют дюбелями с шагом не более 1 м. Закреплять профиль ПН необходимо не менее чем в трех точках независимо от его длины. При необходимости дополнительные отверстия в стенке направляющего профиля высверливают дрелью.

Установку стоечных профилей также осуществляют согласно их проектному положению, а их типоразмер должен соответствовать рабочим чертежам (в рассматриваемом случае шаг стоек равен 600 мм).

Предварительно на стоечные профили, примыкающие к конструкциям здания, наклеивают уплотнительную ленту.

Стоечные профили устанавливают в закрепленные в проектном положении направляющие профили.

Установку стоек начинают от стен, к которым профили крепятся дюбелями с шагом не более 1 м, но не менее трех креплений на одну стойку. Каждая стойка устанавливается строго вертикально и с помощью просекателя закрепляется к направляющему профилю на полу и на потолке. Закрепление производят не менее чем в двух точках с каждой стороны направляющего профиля (т.е. четыре просечки вверху и четыре просечки - внизу). Устройство вставок в каркасах 2-слойной перегородки не требуется.

Каждую пару стоечных профилей соединяют полосами ГВЛ высотой 300 мм через 600 мм по высоте. Крепление полос производят самонарезающими винтами длиной 30 мм к каждому профилю (см. рисунок 20).

В местах сопряжения перегородок с коммуникациями между стоечными профилями устанавливают перемычки из направляющего профиля с их закреплением просекателем к профилю ПС. При групповой прокладке трубопровода допускается устройство общего обрамления.

При необходимости пропуска инженерных коммуникаций больших размеров допускается срезка вертикальных стоек с установкой по краям отверстия дополнительных стоечных профилей каркаса на всю высоту перегородки. В местах пересечения перегородок трубопроводами парового, водяного отопления и водоснабжения устанавливают гильзы.

Контроль за точностью установки каркаса осуществляют с помощью складного метра, метростата или нивелира.

На смонтированный в проектное положение каркас перегородки необходимо оформить акт приемки за подписью главного инженера строительной организации и лица-надзора от проектной организации.

2.10.3. Обшивка каркаса 1-м слоем ГВЛ с одной стороны.

Перед установкой ГВЛ в местах примыкания обшивки к поверхностям потолка и стен (колонн), выполненных из другого материала, наклеивают разделительную ленту.

Установка ГВЛ начинается от основной стены помещения в вертикальном положении. Перед установкой на торцах каждого ГВЛ, образующих горизонтальный стык, делают фальц шириной 30 мм и глубиной 2 мм (см. рисунок 5).

Горизонтальную стыковку ГВЛ выполняют вразбежку с шагом не менее 400 мм. Между полом и ГВЛ оставляется зазор около 10 мм. По вертикали ГВЛ стыкуются только на стойках каркаса.

Крепление ГВЛ осуществляют самонарезающими винтами с зенкующей головкой длиной 30 мм с помощью электрошуруповерта с магнитной головкой. Шаг винтов 750 мм. Крепятся ГВЛ по периметру и по центральной вертикальной оси (см. рисунок 15).

Монтаж ГВЛ ведется в одном направлении с открытой частью профиля. Установка винтов, закрепляющих предыдущий лист, со стороны стенки профиля предотвращает отгибание слабого края полки внутрь профиля при креплении следующего листа.

Крепление винтами на стыке ГВЛ осуществляют вразбежку через 50 мм с винтами соседнего ряда и отступлением от края ГВЛ на 10 мм. Крепежные винты должны входить в ГВЛ под прямым углом и проникать в полку профиля на глубину не менее 10 мм. Головки винтов должны быть утоплены в поверхность ГВЛ на глубину, позволяющую их зашпаклевать.

2.10.4. Прокладка проектных инженерных коммуникаций.

Облицевав одну сторону каркаса перегородки ГВЛ, приступают к монтажу электротехнической проводки. Кабели размещают перпендикулярно стойкам каркаса (для чего в них имеются отверстия) в строгом соответствии с рабочим проектом. Не допускается размещать электропроводку вдоль стоек или внутри них, во избежание ее повреждения при обшивке ГВЛ с другой стороны. Прокладку электросети выполняет специализированное звено электромонтажников. В ГВЛ вырезают отверстия под коробки, розетки, выключатели, а проводку выводят наружу. При необходимости производят прокладку и других коммуникационных сетей, предусмотренных проектом.

2.10.5. Установка и закрепление изоляционного материала внутри перегородок.

Установку изоляционного материала производят после обшивки каркаса с одной стороны и прокладки инженерных сетей.

Установка изоляционного (минераловатного) материала производится вручную в пространство между стоечными профилями. При необходимости изоляционный материал прикрепляют к смонтированным ГВЛ или фиксируют с помощью вкладышей, крепящихся к стенкам профиля ПС.

2.10.6. Обшивка каркаса перегородки гипсоволокнистыми листами с другой стороны.

Обшивка каркаса перегородки ГВЛ с обратной стороны производится после укладки изоляционного слоя в той же последовательности и с теми же требованиями, что изложены выше в п. 2.10.3, но со смещением на один шаг профиля относительно листов другой стороны. Раскрой доборных листов осуществляют в процессе выполнения работ.

2.10.7. Заделка стыков между ГВЛ 1-го слоя.

До заделки стыков необходимо проверить надежность крепления ГВЛ. Выступающие головки винтов довернуть. Производство работ, ведущих к повышению влажности в помещении, к этому времени должно быть завершено.

Заделку продольных стыков между ГВЛ производят при температуре и влажности воздуха в помещениях, соответствующих режиму эксплуатации (t не должна быть ниже +10 °С). Недопустимы сквозняки, резкие колебания температуры и влажности в помещениях. Предварительно кромки ГВЛ обрабатывают грунтовкой Тифенгрунд.

Заделке шпаклевочной смесью Фугенфюллер ГВ подлежат продольные и поперечные стыки, стыки между перегородкой и стенами (колоннами), перегородкой и потолком.

Последовательность действий при обработке продольных и поперечных стыков между ГВЛ следующая:

- нанесение шпателем первого слоя шпаклевки на стык между листами шириной чуть большей ширины армирующей ленты;

- после высыхания первого слоя шпаклевки широким шпателем нанесение второго слоя шпаклевки на всю ширину стыковочного шва.

2.10.8. Обшивка каркаса вторым слоем ГВЛ с двух сторон (см. рисунок 13).

Установку листов второго слоя производят сначала с одной стороны, а затем - с другой. ГВЛ второго слоя устанавливают со смещением на один шаг относительно вертикальных и не менее 400 мм относительно горизонтальных стыков первого слоя. Крепление второго слоя ГВЛ производят к каркасу с помощью самонарезающих винтов длиной не менее 45 мм с шагом 250 мм (см. рисунок 15).

2.10.9. Установка электротехнических коробок, розеток, выключателей и их крепление к ГВЛ.

По окончанию монтажа ГВЛ с обеих сторон каркаса устанавливают электрические коробки, розетки, выключатели и т.п., которые крепят к ГВЛ с помощью специальной фурнитуры. Отверстия под электрические розетки, выключатели и т.п. в целях пожарной безопасности, вырезают с противоположных сторон перегородки со смещением минимум на 200 мм. Эти работы выполняет звено электромонтажников.

2.10.10. Заделка стыков между ГВЛ и углублений от винтов.

Шпаклевание стыков между ГВЛ производят при стабильной температуре и влажности воздуха в помещениях соответствующих режиму эксплуатации (t не должна быть ниже +10 °С). Недопустимы сквозняки и резкие колебания температуры в помещениях. Предварительно кромки ГВЛ обрабатывают грунтовкой Тифенгрунд.

Заделке шпаклевочной смесью Фугенфюллер ГВ подлежат продольные и поперечные стыки, стыки между перегородкой и стенами (колоннами), перегородкой и потолком. Продольные и поперечные швы ГВЛ заделывают с применением армирующей ленты.

До обработки стыков необходимо проверить надежность крепления ГВЛ. Выступающие головки винтов - довернуть. Производство работ, ведущих к повышению влажности в помещении, к этому времени должно быть завершено.

В зависимости от назначения помещений, требования к отделке поверхностей из ГВЛ можно разделить на 3 вида, как это принято в большинстве европейских стран:

Качество 1 (К1) - определяет качество поверхности швов и поверхностей ГВЛ, к которым не предъявляются оптические требования, т.е. поверхность может иметь волнистый рельеф, где гребень не должен превышать 1,5 мм. Такая поверхность ГВЛ предназначена для облицовки плиткой, оштукатуривания или под облицовку какими-либо другими материалами.

Качество 2 (К2) - соответствует существующему стандартному качеству поверхностей стен и потолков. Шпаклевание выполняется с целью достижения плавных переходов от поверхностей сопряжений к поверхности ГВЛ. Все переходы от швов, внутренних и внешних углов, крепежных элементов должны быть незаметны на глаз. Для этой цели зашпаклеванные швы обрабатывают пастой Финиш на ширину примерно 30 см.

Такая поверхность ГВЛ предназначена для структурированной окраски, оклейки структурными обоями, для тонкослойного оштукатуривания.

Качество 3 (К3) - предъявляет повышенные требования к качеству поверхности стен и потолков, т.е. кроме стандартного шпаклевания для К2, необходимо полное покрытие поверхности ГВЛ шпаклевочным материалом с последующим шлифованием. Для этих целей чаще всего используют пасту Финиш или Редигипс, а также шпаклевочные смеси.

Такая поверхность предназначена для высококачественной окраски стен и потолков любыми видами красок, оклейки глянцевыми тонкослойными обоями, оштукатуривания тонкоструктурированными растворными смесями с крупностью зерна менее 1 мм.

В данной технологической карте отделка поверхности относится к виду К1, на которую даются нормативы трудозатрат и расхода материалов. Более качественная отделка поверхности оговаривается заказчиком и на нее составляется отдельная смета.

Последовательность действий при обработке продольных и поперечных стыков между ГВЛ следующая:

- перед шпаклеванием обработка грунтовкой глубокого проникновения всех стыков;

- нанесение шпателем первого слоя шпаклевки на стык между листами шириной чуть больше ширины армирующей ленты;

- вдавливание шпателем армирующей ленты в нанесенную шпаклевку;

- после высыхания первого слоя шпаклевки широким шпателем нанесение второго слоя шпаклевки на всю ширину стыковочного шва.

Заделке шпаклевочной смесью Фугенфюллер ГВ подлежат углубления от винтов, стыки между перегородкой и стенами (колоннами), перегородкой и потолком. В местах стыковок на эти конструкции предварительно крепится самоклеящаяся разделительная лента. После заделки стыков и полного высыхания шпаклевки излишки ленты срезаются, а шов шлифуется.

Поверхность перегородки с одной стороны, где идет прямое попадание воды, обрабатывается гидроизоляционным составом Флехендихт, углы дополнительно проклеиваются уплотнительной гидроизоляционной лентой Флехендихтбанд. Другая сторона, где нет прямого попадания воды, обрабатывается грунтовкой Тифенгрунд.

В некоторых случаях при монтаже перегородок образуются внешние углы, которые защищают от механических повреждений при помощи металлических перфорированных уголков из оцинкованной стали (ПУ 31×31×0,4), которые крепят к ГВЛ с помощью специального приспособления, указанного в перечне инструментов. После крепления уголки шпаклюют и после высыхания шлифуют.

По окончании всех шпаклевочных работ поверхность перегородок обрабатывается с помощью кисти, щетки или валика грунтовкой Тифенгрунд. Это необходимо сделать с целью предотвращения образования трещин в швах из-за возможного изменения влажностного режима в помещении (особенно весной, осенью или при проведении отделочных работ мокрым способом).

3. ПОТРЕБНОСТЬ В ИНВЕНТАРЕ И МАТЕРИАЛАХ

Перечень потребного инвентаря, приспособлений и инструмента - см. на стр. 144.

Таблица 3.1

Нормативные показатели расхода материалов на устройство 1 м2
перегородки С 366

Наименование материалов

Ед. изм.

Количество

1

2

3

Каркас и крепежные изделия

Профиль направляющий ПН 50/40, ТУ 1121-004-04001508-2003

м

1,51

Профиль стоечный ПС 50/50, ТУ 1121-004-04001508-2003

м

4,07

Лента уплотнительная типа Дихтунгсбанд сеч. 50×3,2 мм

м

2,52

Дюбель типа К 6/35

шт.

3,38

Материал изолирующий из минеральных волокон

м2

1,03

Обшивка

Лист гипсоволокнистый ГВЛВ 12,5 мм, ГОСТ Р 51829-2001

м2

4,28

Винт самонарезающий с острым концом и зенкующей головкой по ГОСТ 11652-80* длиной, мм:

 

 

30

шт.

18,04

45

шт.

35,33

Заделка швов

Шпаклевка Фугенфюллер ГВ, ТУ 5745-011-04001508-97

кг

1,79

Лента армирующая

м

2,27

Лента разделительная 50 мм

м

0,88

Грунтовка Тифенгрунд

кг

0,12

Состав гидроизоляционный Флехендихт

кг

0,5

Лента уплотнительная гидроизоляционная Флехендихтбанд

м

0,38

4. НОРМАТИВНЫЕ И ТЕХНИКО-ЭКОНОМИЧЕСКИЕ ПОКАЗАТЕЛИ
(ИЗМЕРИТЕЛЬ КОНЕЧНОЙ ПРОДУКЦИИ - 1 м2)


Таблица 4.1

Затраты труда на устройство перегородки С 366

№ п.п.

Наименование технологических процессов

Единица измерения

Объем работ

Обоснование

Норма времени

Затраты труда

рабочих, чел.-ч

машиниста, чел.-ч (работа машин, маш.-ч)

рабочих, чел.-ч

машиниста, чел.-ч (работа машин, маш.-ч)

1

2

3

4

5

6

7

8

9

1

Устройство каркаса

м2

1

Расчет ОАО «Тулаоргтехстрой» методом технического нормирования

0,07

-

0,07

-

2

Обшивка каркаса

м2

1

0,62

-

0,62

-

3

Устройство изоляционного слоя

м2

1

0,1

-

0,1

-

4

Заделка швов, обработка поверхности

м2

1

0,44

-

0,44

-

5

Подача материалов на этажи подъемником грузоподъемностью до 1 т при высоте подъема до 8 м (добавлять на каждые следующие 6 м)

100 т

0,00069

Е1-16

36
(6,8)

9
(1,7)

0,0248
(0,0047)

0,0062
(0,00117)

6

Перевозка материалов по этажу ручными тележками на расстояние до 30 м

1 т

0,069

Е1-21

1,1

-

0,0759

-

 

Итого:

 

 

 

 

 

1,96

0,0062

Таблица 4.2

График производства работ

№ п.п.

Наименование технологических процессов

Единица измерения

Объем работ

Затраты труда

Принятый состав звена

Продолжительность процесса, ч

рабочих, чел.-ч

машиниста, чел.-ч (работа машин, маш.-ч)

1

Устройство каркаса

м2

1

0,7

 

Монтажники конструкций 4-го и 3-го разрядов

0,31

2

Обшивка каркаса

м2

1

0,62

 

0,31

3

Устройство изоляционного слоя

м2

1

0,1

 

0,1

4

Обработка поверхности, заделка швов,

м2

1

0,44

 

0,22

5

Прочие работы

м2

1

0,1007

0,0062

 

0,05

 

Итого:

 

 

1,96

 

 

0,99

 


Рисунок 4.1 - График движения рабочей силы

Таблица 4.3

Технико-экономические показатели

№ п.п.

Наименование

Единица измерения

Количество

1

Продолжительность работ

ч

0,98

2

Трудоемкость на 1 м2:

чел.-ч

 

по нормам

 

1,86

 

по графику (с учетом прочих работ)

 

1,96

3

Максимальная численность рабочих

чел.

2

4

Выработка на 1 чел.-ч

м2

1,02

ТИПОВАЯ ТЕХНОЛОГИЧЕСКАЯ КАРТА
НА УСТРОЙСТВО ПЕРЕГОРОДОК
НА МЕТАЛЛИЧЕСКОМ КАРКАСЕ
КОМПЛЕКТНОЙ СИСТЕМЫ КНАУФ
С ПРИМЕНЕНИЕМ ГИПСОВОЛОКНИСТЫХ ЛИСТОВ

Перегородка С 367
«Стена безопасности»

1. ОБЛАСТЬ ПРИМЕНЕНИЯ

1.1. Типовая технологическая карта предназначена для разработки проектов производства работ (ППР), проектов организации строительства (ПОС), другой организационно-технологической документации, а также является информационным пособием для строительных организаций, производящих устройство перегородок С 367 с применением гипсоволокнистых листов (ГВЛ).

1.2. Сборные перегородки С 367 с расчетной шумозащитой 54 дБ и пределом огнестойкости EI 90 предназначены для использования в качестве защиты соседних помещений от ударного воздействия (до 300 Nm) обрушивающихся строительных деталей в очаге пожара; применяются в жилых, общественных и производственных зданиях с высотой помещения до 9 м. Перегородки применяются в зданиях:

- любой степени огнестойкости;

- любых конструктивных систем и типов;

- любого уровня ответственности, включая повышенный;

- различной этажности;

- возводимых в ветровых районах до V включительно;

- возводимых в районах как с обыкновенными, так и со сложными инженерно-геологическими условиями, сейсмичностью до 9 баллов.

1.3. Перегородка С 367 имеет конструкцию, отвечающую требованиям рабочих чертежей серии 1.031.9-3.01 «Комплектные системы КНАУФ. Перегородки поэлементной сборки из гипсоволокнистых листов на металлическом и деревянном каркасах для жилых, общественных и производственных зданий», выпуск 1. Серия выпущена ЗАО «НП Челябинский Промстройпроект» при участии фирмы КНАУФ.

1.4. Перегородка С 367 состоит из одинарного металлического каркаса; двусторонней обшивки тремя слоями гипсоволокнистых листов толщиной 12,5 мм и двумя слоями листовой оцинкованной стали толщиной 0,5 мм между слоями ГВЛ с каждой стороны. Масса 1 м перегородки - 103 кг.

1.5. Каркас системы С 367 состоит из направляющего профиля ПН 100 и стоечного профиля ПС 100, отвечающих требованиям ТУ 1121-004-04001508-2003. Стандартная длина профилей составляет: 2750; 3000; 4000; 4500 мм. По согласованию с заказчиком могут быть выпущены профили длиной от 500 до 6000 мм. Номинальная толщина профилей должна быть не менее 0,6 мм. Стенки направляющих и стоечных, а также полки стоечных профилей усилены продольными гофрами, увеличивающими их жесткость.

Направляющие профили имеют П-образную, а стоечные профили - С-образную формы. Размеры их стенок и полок (a×b) представлены в таблицах 1.1 и 1.2.

Таблица 1.1

Геометрические размеры направляющих профилей

Размер

Профиль

ПН 100

a×b, мм

100×40

Таблица 1.2

Геометрические размеры стоечных профилей

Размер

Профиль

ПС 100

a×b, мм

100×50

Направляющие профили производят с готовыми отверстиями в стенках диаметром 8 мм, предназначенными для крепления дюбелями к несущим основаниям. В стоечных профилях имеются 3 пары отверстий в стенках диаметром 33 мм (в центре и по краям), которые позволяют монтировать технические коммуникации внутри перегородки.

Данная технологическая карта может быть использована для устройства перегородки высотой до 4 м.

1.6. ГВЛ представляет собой экологически чистый листовой отделочный материал, изготовленный из строительного гипса марки не ниже Г-4 (ГОСТ 125-79), распушенной целлюлозной макулатуры марок МС-10 и МС-11 (ГОСТ 10700-89), содержащей различные технологические добавки. Типовой размер ГВЛ, который применялся при разработке данной технологической карты, равен 2500×1200×12,5 мм.

По заказу строительных организаций могут выпускаться партии листов других типоразмеров согласно ГОСТ Р 51829-2001, которые приведены в таблице 1.3.

Таблица 1.3

Размеры ГВЛ

Длина, мм

1500; 2000; 2500; 2700; 3000

Ширина, мм

500; 1000; 1200

Толщина, мм

10; 12,5; 15; 18; 20

ГВЛ выпускают с различными формами продольных кромок: фальцевая (ФК); прямая (ПК). Данная технологическая карта предусматривает обшивку каркаса ГВЛ с фальцевой кромкой (ФК).

Масса 1 м2 (поверхностная плотность) ГВЛ - 1,05S < m < 1,2S (кг/м2), где S - толщина листа, мм. Удельная активность естественных радионуклидов не более 370 Бк/кг (ГОСТ 12.1.044-89*), т.е. ГВЛ относится к I группе.

Пожаротехнические характеристики ГВЛ соответствуют:

- горючесть - Г1 (ГОСТ 30244-94);

- воспламеняемость - В1 (ГОСТ 30402-96);

- дымообразующая способность - Д1 (ГОСТ 12.1.044-89);

- токсичность - Т1 (ГОСТ 12.1.044-89).

Отпускная влажность листов не должна превышать 1,5 %; плотность - не более 1250 кг/м3.

1.7. Для крепления ГВЛ к каркасу перегородок применяют самонарезающие винты с зенкующей головкой, а для крепления элементов каркаса перегородок к конструкциям здания - дюбели.

1.8. Монтаж перегородок производят в период отделочных работ по окончании «мокрых» процессов, способных существенно повысить влажность воздуха внутри помещения, до устройства чистого пола.

В помещениях, где производят монтаж перегородок С 367, температура воздуха не должна быть ниже +10 °С.

Температурно-влажностный режим помещения должен соответствовать требованиям СНиП 23-02-2003 «Тепловая защита зданий».

1.9. Типовая технологическая карта разработана на измеритель конечной продукции - 1 м2 перегородки. Привязка типовой технологической карты к конкретному объекту и условиям строительства состоит в уточнении необходимых материальных ресурсов и схем организации строительного процесса, соответствующего рабочим чертежам.

2. ОРГАНИЗАЦИЯ И ТЕХНОЛОГИЯ ВЫПОЛНЕНИЯ РАБОТ

2.1. К устройству перегородок С367 рекомендуется приступать только после:

- наличия утвержденной проектной документации (рабочих чертежей);

- наличия проекта производства работ, который должен предусматривать комплексную механизацию работ с наиболее полным использованием специализированного инструмента и приспособлений, способствующих повышению производительности труда, сокращению сроков возведения перегородок, уменьшающих трудозатраты и создающих наиболее безопасные условия труда;

- производства организационно-технологической подготовки, которая включает в себя подготовку необходимой оснастки, средств подмащивания и доставки ГВЛ в зону производства работ (см. рисунок 3).

2.2. До начала монтажа элементов перегородки необходимо закончить все общестроительные, а также строительно-монтажные работы, которые могут вызвать повышение влажности ГВЛ. Произвести уборку строительного мусора. Произвести инструментальную проверку соответствия основания для установки направляющих и стоечных профилей каркаса перегородки. Подготовленное основание должно быть оформлено актом приемки за подписью ответственных представителей строительной организации.

2.3. Работы по монтажу перегородок С 367 выполняют под руководством ИТР. Рабочие, выполняющие монтажные работы, должны пройти техническое обучение в учебных центрах «КНАУФ» или других специализированных учебных заведениях и иметь удостоверение на право производства работ.

2.4. Перегородки возводят поточно-расчлененным методом, по захваткам, со специализацией звеньев бригады на выполнение однотипных работ и оснащенных соответствующим набором инструментов, инвентаря и средств подмащивания. Каждое звено состоит из двух человек: монтажник конструкций 4-го разряда, монтажник конструкций 3-го разряда.

2.5. Доставку на объект ГВЛ, упакованных в полиэтиленовую пленку, следует производить централизованно автотранспортом. По согласованию с потребителем допускается транспортировать листы в непакетированном виде (без обвязки или упаковки в пленку). Размер упаковки ГВЛ 2500×1200×650 мм. Габариты пакетов не должны превышать по длине 4100 мм, ширине 1300 мм, высоте 800 мм; масса пакета не должна быть более 3000 кг (см. рисунок 1).

Хранение ГВЛ следует производить в помещениях с сухим и нормальным влажностным режимом, раздельно по видам и размерам, с соблюдением техники безопасности и сохранности продукции. Общая высота складируемого штабеля с ГВЛ не должна превышать 3,5 м (см. рисунок 2). Расстояние между штабелями складирования не должно быть менее 1 м.

2.6. Доставку на объект металлических профилей каркаса перегородок допускается производить автотранспортом при условии их защиты от механических воздействий. Хранение профилей на закрытых приобъектных складах должно производиться в кондукторе пакетами по типам.

2.7. При производстве погрузочно-разгрузочных работ следует избегать ударов. Укладку пакетов с профилями на транспортные средства следует осуществлять погрузчиками. Вышеуказанные работы должны производиться в соответствии с требованиями ГОСТ 12.3.009-76*.

2.8. Подъем материалов на этажи рекомендовано производить с помощью машин и механизмов, указанных в сборнике ЕНиР-1 «Внутрипостроечные транспортные работы».

2.9. Транспортирование ГВЛ к месту производства работ на этаже следует осуществлять ручными тележками. При переносе ГВЛ вручную - с помощью специальных приспособлений.

2.10. Монтаж перегородки системы С 367 предусмотрено производить в следующем порядке:

- разметка проектного положения перегородки;

- установка элементов одинарного каркаса;

- обшивка каркаса первым слоем ГВЛ с одной стороны;

- прокладка проектных инженерных коммуникаций;

- установка и закрепление изоляционного материала внутри перегородки;

- обшивка каркаса первым слоем ГВЛ с другой стороны;

- заделка стыков между ГВЛ первого слоя;

- установка и закрепление листов оцинкованной стали с двух сторон (первый слой);

- обшивка каркаса вторым слоем ГВЛ с двух сторон;

- заделка стыков между ГВЛ второго слоя;

- установка и закрепление листов оцинкованной стали с двух сторон (второй слой);

- обшивка каркаса третьим слоем ГВЛ с двух сторон;

- установка электротехнических коробок, розеток, выключателей и т.п. и их крепление к ГВЛ;

- заделка стыков между ГВЛ третьего слоя и углублений от винтов;

- подготовка поверхности перегородок под чистовую отделку.

2.10.1. Разметка проектного положения перегородки (см. рисунок 4).

Разметку проектного положения элементов каркаса перегородки С 367 производят в строгом соответствии с проектным решением и согласно рабочим чертежам. Для быстрой и безошибочной установки перегородок рекомендуется вначале отмечать на полу места расположения стоечных профилей, дверных и других проемов. В дверном проеме должно быть указано, какая устанавливается дверь (правая или левая). Разметку производят с помощью складного метра, рулетки, метростата и шнуроотбойного устройства. Разметку больших помещений производят с помощью лазерного или оптического нивелира.

Разметку начинают от стены, расположенной параллельно возводимой перегородке, вынося горизонтальную ось. Затем на этой оси отмечают расположение стоечных профилей с проектным шагом, дверных и других проемов, а также выводов и сквозных проходов коммуникаций. Проектный шаг стоечного профиля составляет 300 мм.

Расстояние от стоечного профиля, примыкающего к стене, до первого отстоящего от стены профиля должно быть меньше проектного шага на 25 мм.

Затем с помощью метростата и шнуроотбойного устройства (если высота помещения больше 3 м, то - нивелира или отвеса) разметку зеркально переносят на потолок. Вертикальные оси каркаса перегородки с помощью метростата и отвеса наносят на стены помещения, примыкающие к каркасу.

2.10.2. Установка элементов одинарного каркаса (см. рисунок 12).

Элементы каркаса перегородки С 367 состоят из направляющих профилей (ПН 100) и стоечных профилей (ПС 100), имеющих стандартные размеры. На полках стоечных профилей выполнены продольные гофры, которые увеличивают их жесткость. Центральный гофр является ориентиром как при точной сборке каркаса, так и при установке ГВЛ.

Типоразмеры стоечных и направляющих профилей выбирают исходя из высоты конструкции перегородки в полном соответствии с рабочими чертежами.

Допускается соединение стоечных профилей по длине методом насадки или встык с дополнительным профилем. В этих случаях длина нахлеста определяется по таблице 2.1, а длина дополнительного профиля должна быть не менее 20-кратной величины стенки стоечного профиля.

Таблица 2.1

Соединение стоечных профилей

Тип профиля

Длина нахлеста, см

ПС 100

≥100

Соединение (удлинение) профилей производят с помощью просекателя методом «просечки с отгибом», в отдельных случаях посредством винтов LN 3,5×9.

Стоечные профили должны иметь высоту на 10 мм меньше расстояния между стенками верхних и нижних направляющих профилей.

Установку направляющих профилей осуществляют согласно разметке их проектного положения на полу и на потолке.

С целью повышения звукоизоляционной способности перегородки на стенки направляющих профилей ПН наклеивают уплотнительную ленту. После раскроя и полной подготовки направляющих профилей приступают к их монтажу по линии разметки на полу, а затем - на потолке. Крепление направляющих профилей осуществляют дюбелями с шагом не более 1 м. Закреплять профиль ПН необходимо не менее чем в трех точках независимо от его длины. При необходимости дополнительные отверстия в стенке направляющего профиля высверливают дрелью.

Установку стоечных профилей также осуществляют согласно их проектному положению, а их типоразмер должен соответствовать рабочим чертежам (шаг стоечных профилей равен 300 мм).

Предварительно на стоечные профили, примыкающие к конструкциям здания, наклеивают уплотнительную ленту. Стоечные профили устанавливают в закрепленные в проектном положении направляющие профили.

Установку стоек начинают от стен, к которым профили крепятся дюбелями с шагом не более 1 м, но не менее трех креплений на одну стойку. Каждая стойка устанавливается строго вертикально и с помощью просекателя закрепляется к направляющему профилю на полу и на потолке. Закрепление производят не менее чем в двух точках с каждой стороны направляющего профиля (т.е. четыре просечки вверху и четыре просечки - внизу). Устройство вставок в каркасах 3-слойной перегородки не требуется.

Если перегородка имеет дверной проем, то дверную коробку устанавливают одновременно с монтажом каркаса. По дверной коробке монтируют опорные стоечные профили, дверную перемычку из направляющего профиля и промежуточные стойки над проемом. Стоечные профили, ограничивающие дверной проем, устанавливают на всю высоту перегородки, независимо от размера шага (см. рисунок 7).

Стоечные профили для крепления ГВЛ и дверной коробки не совмещаются. Опорные стойки для дверей массой до 35 кг укрепляют вставкой из деревянных брусков или дополнительным профилем. Для этого на всю длину стойки вставляют деревянный брусок такого же сечения или соединяют с помощью винтов LN 3,5×9 с одноразмерным направляющим или стоечным профилем таким образом, чтобы получилось коробчатое сечение. Если в проекте не указано наличие «левой» или «правой» двери, то усиливают обе стойки.

Брус должен быть выполнен из древесины хвойных пород не ниже второго сорта по ГОСТ 8486-86 и обработан антисептиками и антипиренами в соответствии с требованиями СНиП 3.03.01-87. Влажность древесины не должна превышать 12 % ± 3 %.

Перед установкой стоечных профилей, ограничивающих дверной проем, в местах их установки крепят с помощью анкерных дюбелей 4 уголка: два верхних и два нижних (см. рисунок 7).

Эти уголки, имеющие клипсы, крепятся внутри направляющих профилей и предназначены для увеличения жесткости дверного проема. С помощью клипс к ним крепят стоечные профили дверного проема, которые не доходят до направляющих профилей на 3 - 5 мм.

Затем монтируют из направляющего профиля перемычку, ограничивающую высоту дверного проема. Горизонтальность установки перемычки проверяют с помощью уровня. Крепление перемычки из профиля ПН к стоечным профилям производят в двух точках с каждой стороны с помощью просекателя.

После установки перемычки монтируют промежуточные стойки над дверным проемом с сохранением проектного шага. Это необходимо для того, чтобы вертикальный стыковочный шов ГВЛ оказался над дверным проемом, что снижает вероятность трещинообразования в швах.

В местах сопряжения перегородок с коммуникациями между стоечными профилями устанавливают перемычки из направляющего профиля с их закреплением просекателем к профилю ПС. При групповой прокладке трубопровода допускается устройство общего обрамления.

При необходимости пропуска инженерных коммуникаций больших размеров допускается срезка вертикальных стоек с установкой по краям отверстия дополнительных стоечных профилей каркаса на всю высоту перегородки. В местах пересечения перегородок трубопроводами парового, водяного отопления и водоснабжения устанавливают гильзы.

Контроль за точностью установки каркаса осуществляют с помощью складного метра, метростата или нивелира.

На смонтированный в проектное положение каркас перегородки необходимо оформить акт приемки за подписью главного инженера строительной организации и лица-надзора от проектной организации.

2.10.3. Обшивка каркаса первым слоем ГВЛ с одной стороны.

Перед установкой ГВЛ в местах примыкания обшивки к поверхностям потолка и стен (колонн), выполненных из другого материала, наклеивают разделительную ленту.

Установка ГВЛ начинается от основной стены помещения в вертикальном положении. Перед установкой на торцах каждого ГВЛ, образующих горизонтальный стык, делают фальц шириной 30 мм и глубиной 2 мм (см. рисунок 5).

Горизонтальную стыковку ГВЛ выполняют вразбежку с шагом не менее 400 мм. Между полом и ГВЛ оставляется зазор около 10 мм. По вертикали ГВЛ стыкуются только на стойках каркаса.

Крепление ГВЛ осуществляют самонарезающими винтами с зенкующей головкой длиной 30 мм с помощью электрошуруповерта с магнитной головкой. Шаг винтов 750 мм. Крепятся ГВЛ по периметру и по центральной вертикальной оси (см. рисунок 16).

Монтаж ГВЛ ведется в одном направлении с открытой частью профиля. Установка винтов, закрепляющих предыдущий лист, со стороны стенки профиля предотвращает отгибание слабого края полки внутрь профиля при креплении следующего листа.

Крепление винтами на стыке ГВЛ осуществляют вразбежку через 50 мм с винтами соседнего ряда и отступлением от края ГВЛ на 10 мм. Крепежные винты должны входить в ГВЛ под прямым углом и проникать в полку профиля на глубину не менее 10 мм. Головки винтов должны быть утоплены в поверхность ГВЛ на глубину, позволяющую их зашпаклевать.

2.10.4. Прокладка проектных инженерных коммуникаций.

Облицевав одну сторону каркаса перегородки первым слоем ГВЛ, приступают к монтажу электротехнической проводки. Кабели размещают перпендикулярно стойкам каркаса (для чего в них имеются отверстия) в строгом соответствии с рабочим проектом. Не допускается размещать электропроводку вдоль стоек или внутри них во избежание ее повреждения при обшивке ГВЛ с другой стороны. Прокладку электросети выполняет специализированное звено электромонтажников. При необходимости производят прокладку и других коммуникационных сетей, предусмотренных проектом.

2.10.5. Установка и закрепление изоляционного материала внутри перегородок.

Установку изоляционного материала производят после обшивки каркаса с одной стороны и прокладки инженерных сетей.

Установка изоляционного (минераловатного) материала производится вручную в пространство между стоечными профилями. При необходимости изоляционный материал прикрепляют к смонтированным ГВЛ или фиксируют с помощью вкладышей, крепящихся к стенкам профиля ПС.

2.10.6. Обшивка каркаса перегородки первым слоем ГВЛ с другой стороны.

Обшивка каркаса перегородки ГВЛ с обратной стороны производится после укладки изоляционного слоя в той же последовательности и с теми же требованиями, что изложены выше в п. 2.10.3, но со смещением на один шаг профиля относительно листов другой стороны. Раскрой доборных листов осуществляют в процессе выполнения работ.

2.10.7. Заделка стыков между ГВЛ первого слоя.

До заделки стыков необходимо проверить надежность крепления ГВЛ. Выступающие головки винтов довернуть. Производство работ, ведущих к повышению влажности в помещении, к этому времени должно быть завершено.

Заделку продольных стыков между ГВЛ производят при температуре и влажности воздуха в помещениях, соответствующих режиму эксплуатации (t не должна быть ниже +10 °С). Недопустимы сквозняки, резкие колебания температуры и влажности в помещениях. Предварительно кромки ГВЛ обрабатывают грунтовкой Тифенгрунд.

Заделке шпаклевочной смесью Фугенфюллер ГВ подлежат продольные и поперечные стыки, стыки между перегородкой и стенами (колоннами), перегородкой и потолком.

Последовательность действий при обработке продольных и поперечных стыков между ГВЛ следующая:

- нанесение шпателем первого слоя шпаклевки на стык между листами шириной чуть больше ширины армирующей ленты;

- после высыхания первого слоя шпаклевки широким шпателем нанесение второго слоя шпаклевки на всю ширину стыковочного шва.

2.10.8. Установка и закрепление листов оцинкованной стали с двух сторон (первый слой).

Стальные листы устанавливают на всю поверхность перегородки с нахлестом 10 см как по вертикали, так и по горизонтали. Крепление каждого листа производят не менее чем в четырех точках самонарезающими винтами длиной не менее 22 мм.

2.10.9. Обшивка каркаса вторым слоем ГВЛ с двух сторон (см. рисунок 14).

Установку листов второго слоя производят сначала с одной стороны, а затем - с другой. ГВЛ второго слоя устанавливают со смещением на один шаг относительно вертикальных и не менее 400 мм относительно горизонтальных швов первого слоя. Крепление второго слоя ГВЛ производят к каркасу с помощью самонарезающих винтов длиной не менее 45 мм с шагом 500 мм (см. рисунок 16).

2.10.10. Заделка швов второго слоя ГВЛ обшивки.

Швы второго слоя ГВЛ заделывают в последовательности, аналогичной заделке швов первого слоя ГВЛ (п. 2.10.7).

2.10.11. Установка и закрепление листов оцинкованной стали с двух сторон (второй слой).

Монтаж листов из оцинкованной стали осуществляют аналогично п. 2.10.8. Крепление каждого листа производят не менее чем в четырех точках самонарезающими винтами длиной не менее 45 мм.

2.10.12. Обшивка каркаса третьим слоем ГВЛ с двух сторон (см. рисунок 14).

Установку листов третьего слоя производят сначала с одной стороны, а затем - с другой. ГВЛ третьего слоя устанавливают со смещением на один шаг относительно вертикальных и не менее 400 мм относительно горизонтальных стыков второго слоя.

Крепление третьего слоя ГВЛ производят к каркасу с помощью самонарезающих винтов длиной не менее 22 мм с шагом 250 мм (см. рисунок 16).

2.10.13. Установка электротехнических коробок, розеток, выключателей и их крепление к ГВЛ.

По окончании монтажа ГВЛ с обеих сторон каркаса устанавливают электрические коробки, розетки, выключатели и т.п., которые крепят к ГВЛ с помощью специальной фурнитуры. Отверстия под электрические розетки, выключатели и т.п. в целях пожарной безопасности вырезают с противоположных сторон перегородки со смещением минимум на 200 мм. Эти работы выполняет звено электромонтажников.

2.10.14. Заделка стыков между ГВЛ и углублений от винтов.

Шпаклевание стыков между ГВЛ производят при стабильной температуре и влажности воздуха в помещениях, соответствующих режиму эксплуатации (t не должна быть ниже +10 °С). Недопустимы сквозняки и резкие колебания температуры в помещениях. Предварительно кромки ГВЛ обрабатывают грунтовкой Тифенгрунд.

Заделке шпаклевочной смесью Фугенфюллер ГВ подлежат продольные и поперечные стыки, стыки между перегородкой и стенами (колоннами), перегородкой и потолком. Продольные и поперечные стыки между ГВЛ заделывают с применением армирующей ленты.

До обработки стыков необходимо проверить надежность крепления ГВЛ. Выступающие головки винтов - довернуть. Производство работ, ведущих к повышению влажности в помещении, к этому времени должно быть завершено.

В зависимости от назначения помещений требования к отделке поверхностей из ГВЛ можно разделить на 3 вида, как это принято в большинстве европейских стран:

Качество 1 (К1) - определяет качество поверхности швов и поверхностей ГВЛ, к которым не предъявляются оптические требования, т.е. поверхность может иметь волнистый рельеф, где гребень не должен превышать 1,5 мм. Такая поверхность ГВЛ предназначена для облицовки плиткой, оштукатуривания или под облицовку какими-либо другими материалами.

Качество 2 (К2) - соответствует существующему стандартному качеству поверхностей стен и потолков. Шпаклевание выполняется с целью достижения плавных переходов от поверхностей сопряжений к поверхности ГВЛ. Все переходы от швов, внутренних и внешних углов, крепежных элементов должны быть незаметны на глаз. Для этой цели зашпаклеванные швы обрабатывают пастой Финиш на ширину примерно 30 см.

Такая поверхность ГВЛ предназначена для структурированной окраски, оклейки структурными обоями, для тонкослойного оштукатуривания.

Качество 3 (К3) - предъявляет повышенные требования к качеству поверхности стен и потолков, т.е. кроме стандартного шпаклевания для К2 необходимо полное покрытие поверхности ГВЛ шпаклевочным материалом с последующим шлифованием. Для этих целей чаще всего используют пасту Финиш или Редигипс, а также шпаклевочные смеси.

Такая поверхность предназначена для высококачественной окраски стен и потолков любыми видами красок, оклейки глянцевыми тонкослойными обоями, оштукатуривания тонкоструктурированными растворными смесями с крупностью зерна менее 1 мм.

В данной технологической карте отделка поверхности относится к виду К1, на которую даются нормативы трудозатрат и расхода материалов. Более качественная отделка поверхности оговаривается заказчиком и на нее составляется отдельная смета.

Последовательность действий при обработке продольных и поперечных стыков между ГВЛ следующая:

- перед шпаклеванием обработка грунтовкой глубокого проникновения всех стыков;

- нанесение шпателем первого слоя шпаклевки на стык между листами шириной чуть больше ширины армирующей ленты;

- вдавливание шпателем армирующей ленты в нанесенную шпаклевку;

- после высыхания первого слоя шпаклевки широким шпателем нанесение второго слоя шпаклевки на всю ширину стыковочного шва.

Заделке шпаклевочной смесью Фугенфюллер ГВ подлежат углубления от винтов, стыки между перегородкой и стенами (колоннами), перегородкой и потолком. В местах стыковок на эти конструкции предварительно крепится самоклеящаяся разделительная лента. После заделки стыков и полного высыхания шпаклевки излишки ленты срезаются, а шов шлифуется.

В некоторых случаях при монтаже перегородок образуются внешние углы, которые защищают от механических повреждений при помощи металлических перфорированных уголков из оцинкованной стали (ПУ 31×31×0,4), которые крепят к ГВЛ с помощью специального приспособления, указанного в перечне инструментов. После крепления уголки шпаклюют и после высыхания шлифуют.

По окончании всех шпаклевочных работ поверхность перегородок обрабатывают с помощью кисти, щетки или валика грунтовкой Тифенгрунд. Это необходимо сделать с целью предотвращения образования трещин в швах из-за возможного изменения влажностного режима в помещении (особенно весной, осенью или при проведении отделочных работ мокрым способом).

3. ПОТРЕБНОСТЬ В ИНВЕНТАРЕ И МАТЕРИАЛАХ

Перечень потребного инвентаря, приспособлений и инструмента - см. на стр. 144.

Таблица 3.1

Нормативные показатели расхода материалов на устройство 1 м2
перегородки С 367

Наименование материалов

Ед. изм.

Размер перегородки, м

4×2,7
(глухая)

6×2,7
(один проем)

9×2,7
(два проема)

1

2

3

4

5

Каркас и крепежные изделия

Профиль направляющий ПН 100/40, ТУ 1121-004-04001508-2003

м

0,76

0,86

0,89

Профиль стоечный ПС 100/50, ТУ 1121-004-04001508-2003

м

3,82

4,16

4,2

Лента уплотнительная типа Дихтунгсбанд, сеч. 95×3,2 мм

м

1,26

1,17

1,07

Дюбель типа К 6/35

шт.

1,6

1,42

1,24

Дюбель анкерный металлический

шт.

0,85

1,62

1,91

Материал изолирующий из минеральных волокон

м2

1,03

1,03

1,03

Брусок деревянный, размер 50×50×2695 мм

м

-

0,39

0,54

Верхний уголок для крепления несущих элементов двери 100×123 мм

шт.

-

0,14

0,20

Нижний уголок для крепления несущих элементов двери 100×123 мм

шт.

-

0,14

0,20

Обшивка

Лист гипсоволокнистый ГВЛ 12,5 мм, ГОСТ Р 51829-2001

м2

6,32

6,73

7,01

Винт самонарезающий с острым концом и зенкующей головкой, ГОСТ 11652-80*, длиной, мм:

 

 

 

 

30

шт.

19,94

22,14

22,72

45

шт.

26,7

29,66

30,55

22

шт.

51,52

57,32

59,13

Сталь листовая оцинкованная толщиной 0,5 мм, ГОСТ 19904-90

м2

4,49

4,49

4,49

Заделка швов

Шпаклевка Фугенфюллер ГВ, ТУ 5745-011-04001508-97

кг

2,75

2,74

2,70

Лента армирующая

м

2,27

2,49

2,64

Лента разделительная 50 мм

м

1,77

1,62

1,42

Грунтовка Тифенгрунд

кг

0,27

0,27

0,27

4. НОРМАТИВНЫЕ И ТЕХНИКО-ЭКОНОМИЧЕСКИЕ ПОКАЗАТЕЛИ
(ИЗМЕРИТЕЛЬ КОНЕЧНОЙ ПРОДУКЦИИ - 1 м2)


Таблица 4.1

Затраты труда на устройство перегородки С 367

№ п.п.

Наименование технологических процессов

Единица измерения

Объем работ

Обоснование

Норма времени

Затраты труда

рабочих, чел.-ч

машиниста, чел.-ч (работа машин, маш.-ч)

рабочих, чел.-ч

машиниста, чел.-ч (работа машин, маш.-ч)

1

2

3

4

5

6

7

8

9

1

Устройство каркаса

м2

1

Расчет ОАО «Тулаоргтехстрой» методом технического нормирования

0,54

-

0,54

-

2

Обшивка каркаса

м2

1

1,1

-

1,1

-

3

Устройство изоляционного слоя

м2

1

0,1

-

0,1

-

4

Заделка швов, обработка поверхности

м2

1

0,54

-

0,54

-

5

Подача материалов на этажи подъемником грузоподъемностью до 1 т при высоте подъема до 8 м (добавлять на каждые следующие 6 м)

100 т

0,00103

Е1-16

36
(6,8)

9
(1,7)

0,037
(0,007)

0,0093
(0,0017)

6

Перевозка материалов по этажу ручными тележками на расстояние до 30 м

1 т

0,103

Е1-21

1,1

 

0,1133

 

 

Итого:

 

 

 

 

 

2,43

0,0093

Затраты труда на устройство перегородок с проемами (без учета прочих работ)

С одним дверным проемом

2,40 чел.-ч

С двумя дверными проемами

2,425 чел.-ч

Таблица 4.2

График производства работ

№ п.п.

Наименование технологических процессов

Единица измерения

Объем работ

Затраты труда

Принятый состав звена

Продолжительность процесса, ч

рабочих, чел.-ч

машиниста, чел.-ч (работа машин, маш.-ч)

1

Устройство каркаса

м2

1

0,54

 

Монтажники конструкций 4-го и 3-го разрядов

0,27

2

Обшивка каркаса

м2

1

1,1

 

0,55

3

Устройство изоляционного слоя

м2

1

0,1

 

0,05

4

Обработка поверхности, заделка швов

м2

1

0,54

 

0,27

5

Прочие работы

м2

1

0,15

0,0093

 

0,075

 

Итого:

 

 

2,43

 

 

1,215


Рисунок 4.1 - График движения рабочей силы

Таблица 4.3

Технико-экономические показатели

№ п.п.

Наименование

Единица измерения

Количество

1

Продолжительность работ

ч

1,215

2

Трудоемкость на 1 м2:

 

 

по нормам

чел.-ч

2,28

по графику (с учетом прочих работ)

 

2,43

3

Максимальная численность рабочих

чел.

2

4

Выработка на 1 чел.-ч

м2

0,82

ТИПОВАЯ ТЕХНОЛОГИЧЕСКАЯ КАРТА
НА УСТРОЙСТВО ОБЛИЦОВОК
НА МЕТАЛЛИЧЕСКОМ КАРКАСЕ
КОМПЛЕКТНОЙ СИСТЕМЫ КНАУФ
С ПРИМЕНЕНИЕМ ГИПСОВОЛОКНИСТЫХ ЛИСТОВ

Облицовка С 663

1. ОБЛАСТЬ ПРИМЕНЕНИЯ

1.1. Типовая технологическая карта предназначена для разработки проектов производства работ (ППР), проектов организации строительства (ПОС), другой организационно-технологической документации, а также является информационным пособием для строительных организаций, производящих устройство облицовок С 663 с применением гипсоволокнистых листов (ГВЛ).

1.2. Сборные облицовки С 663 предназначены для отделки и повышения изоляционных свойств стен помещений высотой до 10 м жилых, общественных и производственных зданий:

- любой степени огнестойкости;

- любых конструктивных систем и типов;

- любого уровня ответственности, включая повышенный;

- различной этажности;

- возводимых в ветровых районах до V включительно;

- для зданий, возводимых в районах как с обыкновенными, так и со сложными инженерно-геологическими условиями и сейсмичностью до 9 баллов.

1.3. Облицовка °С 663 имеет конструкцию, отвечающую требованиям рабочих чертежей серии М25.41/2000 «Комплектные системы КНАУФ. Облицовка из гипсоволокнистых листов ограждающих конструкций жилых, общественных и производственных зданий. Стены. Мансардные помещения. Коммуникационные шахты», выпуск 1. Серия разработана ОАО «ЦНИИпромзданий» при участии фирмы «КНАУФ».

1.4. Облицовка С 663 состоит из одинарного металлического каркаса, усиленного креплением к базовой стене прямыми подвесами; облицовки одним или двумя слоями гипсоволокнистых листов толщиной 10 или 12,5 мм. Масса 1 м2 облицовки: однослойной ~14 или ~17 кг, двухслойной ~27 или ~33 кг.

1.5. Каркас облицовки С 663 состоит из оцинкованного металлического направляющего профиля (ПН 28/27), имеющего П-образную форму, и потолочного профиля (ПП 60/27), имеющего С-образную форму, отвечающих требованиям ТУ 1121-004-04001508-2003.

Стандартная длина профилей составляет: 2750; 3000; 4000; 4500 мм. По согласованию с заказчиком могут быть выпущены профили длиной от 500 до 6000 мм. Номинальная толщина профилей должна быть не менее 0,6 мм.

На полках потолочных профилей устроены продольные гофры, которые увеличивают их жесткость. Центральный гофр является ориентиром как для точной сборки каркаса, так и при установке гипсоволокнистых листов.

1.6. ГВЛ представляет собой экологически чистый листовой отделочный материал, изготовленный из строительного гипса марки не ниже Г-4 (ГОСТ 125-79), распушенной целлюлозной макулатуры марок МС-10 и МС-11 (ГОСТ 10700-89), содержащей различные технологические добавки. Типовой размер ГВЛ, который применялся при разработке данной технологической карты, равен 2500×1200×(10) 12,5 мм.

По заказу строительных организаций могут выпускаться партии листов других типоразмеров согласно ГОСТ Р 51829-2001, которые приведены в таблице 1.1.

Таблица 1.1

Размеры ГВЛ

Длина, мм

1500; 2000; 2500; 2700; 3000

Ширина, мм

500; 1000; 1200

Толщина, мм

10; 12,5; 15; 18; 20

ГВЛ выпускаются с различными формами продольных кромок: фальцевая (ФК); прямая (ПК). Данная технологическая карта предусматривает обшивку каркаса ГВЛ с фальцевой кромкой (ФК).

Масса 1 м2 (поверхностная плотность) ГВЛ - 1,05S < m < 1,2S (кг/м2), где S - толщина листа, мм. Удельная активность естественных радионуклидов не более 370 Бк/кг (ГОСТ 12.1.044-89*), т.е. ГВЛ относится к I группе.

Пожаротехнические характеристики ГВЛ соответствуют:

- горючесть - Г1 (ГОСТ 30244-94);

- воспламеняемость - В1 (ГОСТ 30402-96);

- дымообразующая способность - Д1 (ГОСТ 12.1.044-89);

- токсичность - Т1 (ГОСТ 12.1.044-89).

Отпускная влажность листов не должна превышать 1,5 %; плотность - не более 1250 кг/м3.

1.7. Для крепления каркаса к базовым стенам используют прямые подвесы, которые с помощью дюбелей крепят к стенам. Крепление ГВЛ к каркасу осуществляют самонарезающими винтами с зенкующей головкой.

1.8. Монтаж облицовки производят в период отделочных работ по окончании «мокрых» процессов, способных существенно повысить влажность воздуха внутри помещения, до устройства чистого пола.

В помещениях, где производят монтаж облицовки С 663, температура воздуха не должна быть ниже +10 °С.

Температурно-влажностный режим помещения должен соответствовать требованиям СНиП 23-02-2003 «Тепловая защита зданий».

1.9. Типовая технологическая карта разработана на измеритель конечной продукции 1 м2 облицовки. Привязка типовой технологической карты к конкретному объекту и условиям строительства состоит в уточнении необходимых материальных ресурсов и схем организации строительного процесса, соответствующего рабочим чертежам.

2. ОРГАНИЗАЦИЯ И ТЕХНОЛОГИЯ ВЫПОЛНЕНИЯ РАБОТ

2.1. К устройству облицовок С 663 рекомендуется приступать только после:

- наличия утвержденной проектной документации (рабочих чертежей);

- наличия проекта производства работ, который должен предусматривать комплексную механизацию работ с наиболее полным использованием специализированного инструмента и приспособлений, способствующих повышению производительности труда, сокращению сроков устройства облицовок, уменьшающих трудозатраты и создающих наиболее безопасные условия труда;

- производства организационно-технологической подготовки, которая включает в себя подготовку необходимой оснастки, средств подмащивания и доставки ГВЛ в зону производства работ (см. рисунок 21).

2.2. До начала монтажа элементов облицовки необходимо закончить все общестроительные, а также строительно-монтажные работы, которые могут вызвать повышение влажности ГВЛ. Произвести уборку строительного мусора. Произвести инструментальную проверку соответствия основания для установки направляющих и стоечных профилей каркаса облицовки. Подготовленное основание должно быть оформлено актом приемки за подписью ответственных представителей строительной организации.

2.3. Работы по монтажу облицовки С 663 выполняют под руководством ИТР. Рабочие, выполняющие монтажные работы, должны пройти техническое обучение в учебных центрах «КНАУФ» или других специализированных учебных заведениях и иметь удостоверение на право производства работ.

2.4. Устройство облицовок производят поточно-расчлененным методом, по захваткам, со специализацией звеньев бригады на выполнение однотипных работ и оснащенных соответствующим набором инструментов, инвентаря и средств подмащивания. Каждое звено состоит из двух человек: монтажник конструкций 4-го разряда, монтажник конструкций 3-го разряда.

2.5. Доставку на объект ГВЛ, упакованных в полиэтиленовую пленку, следует производить централизованно автотранспортом. Размер упаковки ГВЛ 2500×1200×650 мм. По согласованию с потребителем допускается транспортировать листы в непакетированном виде (без обвязки или упаковки в пленку). Габариты пакетов не должны превышать по длине 4100 мм, ширине 1300 мм, высоте 800 мм; масса пакета не должна быть более 3000 кг (см. рисунок 1).

Хранение ГВЛ следует производить в помещениях с сухим и нормальным влажностным режимом, раздельно по видам и размерам, с соблюдением техники безопасности и сохранности продукции. Общая высота складируемого штабеля с ГВЛ не должна превышать 3,5 м (см. рисунок 2). Расстояние между штабелями складирования не должно быть менее 1 м.

2.6. Доставку на объект металлических профилей каркаса облицовки допускается производить автотранспортом при условии их защиты от механических воздействий. Хранение профилей на закрытых приобъектных складах должно производиться в кондукторе пакетами по типам.

2.7. При производстве погрузочно-разгрузочных работ следует избегать ударов. Укладку пакетов с профилями на транспортные средства следует осуществлять погрузчиками. Вышеуказанные работы должны производиться в соответствии с требованиями ГОСТ 12.3.009-76.

2.8. Подъем материалов на этажи рекомендовано производить с помощью машин и механизмов, указанных в сборнике ЕНиР-1 «Внутрипостроечные транспортные работы».

2.9. Транспортировать ГВЛ к месту производства работ на этаже следует ручными тележками. При переносе ГВЛ вручную - с помощью специальных приспособлений.

2.10. Устройство облицовки С 663 предусмотрено производить в следующем порядке:

- разметка проектного положения облицовки;

- установка элементов каркаса;

- прокладка проектных инженерных коммуникаций;

- установка и закрепление изоляционного материала в каркасе облицовки;

- обшивка каркаса ГВЛ (в один или два слоя, в зависимости от требований заказчика);

- установка электротехнических коробок, розеток, выключателей и т.п. и их крепление к ГВЛ;

- подготовка поверхности облицовок под чистовую отделку.

2.10.1. Разметка проектного положения облицовки (см. рисунок 22).

Разметку проектного положения элементов каркаса облицовки С 663 производят в строгом соответствии с проектным решением согласно рабочим чертежам. Для быстрой и безошибочной установки облицовки рекомендуется вначале отмечать на полу места расположения стоечных профилей (профиль ПП), дверных и других проемов. Разметку производят с помощью складного метра, рулетки, метростата и шнуроотбойного устройства. Разметку больших помещений производят с помощью лазерного или оптического нивелира.

Вначале разметку проектного положения каркаса выполняют на полу. Разметку начинают от стены, расположенной параллельно возводимой облицовке, вынося горизонтальную ось. Затем на этой оси отмечают места расположения стоечных профилей (ПП) с проектным шагом, дверных и других проемов, а также выводов и сквозных проходов коммуникаций. Для данной технологической карты шаг равен 600 мм.

Расстояние от стоечного профиля, примыкающего к стене, до первого отстоящего от стены профиля должно быть меньше проектного шага на 25 мм.

Затем с помощью метростата и шнуроотбойного устройства (если высота помещения больше 3 м, то нивелира или отвеса) разметку зеркально переносят на потолок. Вертикальные оси каркаса облицовки с помощью метростата и отвеса наносят на стены помещения, примыкающие к каркасу.

2.10.2. Установка элементов каркаса (см. рисунок 23).

Установку направляющих профилей осуществляют согласно разметке их проектного положения на полу и на потолке.

С целью повышения изолирующей способности облицовки на стенки потолочных направляющих профилей наклеивают уплотнительную ленту. После раскроя и полной подготовки направляющих профилей приступают к их монтажу по линии разметки на полу, а затем - на потолке.

Крепление потолочных направляющих профилей осуществляют дюбелями с шагом не более 1 м. Закреплять профиль необходимо не менее чем в трех точках. Направляющие профили выпускаются с готовыми отверстиями диаметром 8 мм в стенке профиля с шагом около 250 мм, предназначенными для установки дюбелей, что существенно облегчает процесс крепления профиля к существующему основанию. При их отсутствии дополнительные отверстия в стенке профиля просверливают дрелью.

Длина стоечных профилей (профиль ПП) должна быть на 10 мм меньше расстояния между стенками потолочных направляющих профилей. Стоечные профили устанавливают в направляющие профили и крепят к базовым стенам при помощи прямых подвесов. Подвесы устанавливают с шагом не более 1500 мм, но не менее трех креплений на один профиль. Крайние нижний и верхний подвесы крепят на расстоянии не более 150 мм от перекрытия. С целью ослабления «звуковых мостиков» между подвесами и несущей поверхностью прокладывается уплотнительная лента. Профили закрепляют к подвесам самонарезающими винтами длиной 9 мм. Выступающие концы подвесов отгибают или обрезают.

Если высота помещения превышает длину ГВЛ, то в местах поперечных торцевых стыков при однослойной облицовке устанавливают горизонтальные вставки из потолочного профиля (ПП). Вставки рекомендуется крепить с помощью одноуровневых соединителей, применяемых при устройстве подвесных потолков. Одноуровневые соединители должны быть закреплены на потолочных профилях до их монтажа в местах установки горизонтальных вставок.

В местах сопряжения облицовок с коммуникациями между стойками также устанавливают вставки из потолочного профиля. При групповой прокладке трубопровода допускается устройство общего обрамления.

При необходимости пропуска инженерных коммуникаций больших размеров допускается срезка вертикальных стоек с установкой по краям отверстия дополнительных потолочных профилей каркаса на всю высоту облицовки.

Контроль за точностью установки каркаса осуществляют с помощью складного метра, метростата или лазерного нивелира.

Если длина облицовки превышает 15 м, то требуется устройство деформационного шва (см. рисунок 24). Кроме того, деформационные швы облицовки должны повторять деформационные швы здания.

На смонтированный в проектное положение каркас необходимо оформить акт приемки на скрытые работы за подписью главного инженера строительной организации и лица-надзора от проектной организации.

2.10.3. Прокладка проектных инженерных коммуникаций.

Произведя монтаж каркаса облицовки, приступают к монтажу электротехнической проводки. Кабели размещают перпендикулярно стойкам каркаса в строгом соответствии с рабочим проектом. Не допускается размещать электропроводку вдоль стоек или внутри них во избежание ее повреждения при обшивке ГВЛ. Прокладку электросети выполняет специализированное звено электромонтажников. При необходимости производят прокладку и других коммуникационных сетей, предусмотренных проектом.

2.10.4. Установка и закрепление изоляционного материала.

Установка изоляционного материала производится только при необходимости улучшения теплоизоляции наружных стен после проведения теплотехнического расчета с целью определения точки росы. Если точка росы будет находиться на внутренней поверхности стены или внутри теплоизоляционного слоя, то установку последнего проводить нельзя. Изоляционный материал может фиксироваться на стене с помощью клея или пластиковых дюбелей с широкой шляпкой.

2.10.5. Обшивка каркаса гипсоволокнистыми листами в один или два слоя (в зависимости от требований заказчика).

Перед установкой ГВЛ в местах примыкания обшивки к поверхностям потолка и стен (колонн), выполненных из другого материала, наклеивают разделительную ленту.

Установка ГВЛ начинается от основной стены помещения в вертикальном положении. Перед установкой на торцах каждого ГВЛ, образующих горизонтальный стык, делают фальц шириной 30 мм и глубиной 2 мм (см. рисунок 5).

Горизонтальную стыковку ГВЛ выполняют вразбежку с шагом не менее 400 мм. При однослойной обшивке торцы ГВЛ опираются на вставку из профиля ПП 60×27. Между полом и ГВЛ оставляется зазор около 10 мм. По вертикали ГВЛ стыкуются только на стойках каркаса.

При однослойной обшивке шаг винтов 250 мм, длина винтов 30 мм (см. рисунок 9).

Крепление винтами на стыке ГВЛ осуществляют вразбежку через 50 мм с винтами соседнего ряда и отступлением от края ГВЛ на 10 мм. Крепежные винты должны входить в ГВЛ под прямым углом и проникать в полку профиля на глубину не менее 10 мм. Головки винтов должны быть утоплены в поверхность ГВЛ на глубину, позволяющую их зашпаклевать.

Если предполагается двухслойная обшивка, то шаг винтов первого слоя ГВЛ 750 мм, длина винтов 30 мм. Горизонтальные вставки для стыков ГВЛ из направляющего профиля не требуются. Шаг винтов второго слоя ГВЛ - 250 мм. Длина винтов 45 мм (см. рисунок 15). ГВЛ второго слоя устанавливают со смещением на один шаг относительно вертикальных и не менее 400 мм относительно горизонтальных стыков первого слоя. Листы ГВЛ должны быть смещены по горизонтали на один шаг профиля относительно листов ГВЛ первого слоя обшивки.

Кроме того, стыки ГВЛ первого слоя при 2-слойной обшивке должны быть заделаны. Шпаклевание стыков между ГВЛ 1-го слоя производят при стабильной температуре и влажности воздуха в помещениях, соответствующих режиму эксплуатации (t не должна быть ниже +10 °С). Недопустимы сквозняки и резкие колебания температуры в помещениях.

До заделки швов необходимо проверить надежность крепления ГВЛ. Выступающие головки винтов довернуть. Производство работ, ведущих к повышению влажности в помещении, к этому времени должно быть завершено. Предварительно кромки ГВЛ обрабатывают грунтовкой Тифенгрунд.

Заделке шпаклевочной смесью Фугенфюллер ГВ подлежат продольные и поперечные стыки между ГВЛ, стыки между облицовкой и потолком.

Последовательность действий при обработке продольных и поперечных стыков между ГВЛ первого слоя в двухслойной облицовке следующая:

- нанесение шпателем первого слоя шпаклевки на стык между листами шириной чуть больше ширины армирующей ленты;

- после высыхания первого слоя шпаклевки широким шпателем нанесение второго слоя шпаклевки на всю ширину стыковочного шва.

2.10.6. Установка электротехнических коробок, розеток, выключателей и их крепление к ГВЛ.

По окончании монтажа ГВЛ устанавливают электрические коробки, розетки, выключатели и т.п., которые крепят к ГВЛ с помощью специальной фурнитуры. Эти работы выполняет звено электромонтажников.

2.10.7. Заделка стыков между ГВЛ и углублений от винтов (обработка поверхности ГВЛ для однослойной облицовки или для второго слоя двухслойной облицовки).

Шпаклевание стыков между ГВЛ производят при стабильной температуре и влажности воздуха в помещениях, соответствующих режиму эксплуатации (t не должна быть ниже +10 °С). Недопустимы сквозняки и резкие колебания температуры в помещениях. Предварительно кромки ГВЛ обрабатывают грунтовкой Тифенгрунд.

Заделке шпаклевочной смесью Фугенфюллер ГВ подлежат продольные и поперечные стыки, стыки между облицовкой и потолком. Продольные и поперечные стыки между ГВЛ заделываются с применением армирующей ленты.

До обработки стыков необходимо проверить надежность крепления ГВЛ. Выступающие головки винтов - довернуть. Производство работ, ведущих к повышению влажности в помещении, к этому времени должно быть завершено.

В зависимости от назначения помещений требования к отделке поверхностей из ГВЛ можно разделить на 3 вида, как это принято в большинстве европейских стран:

Качество 1 (К1) - определяет качество поверхности швов и поверхностей ГВЛ, к которым не предъявляются оптические требования, т.е. поверхность может иметь волнистый рельеф, где гребень не должен превышать 1,5 мм. Такая поверхность ГВЛ предназначена для облицовки плиткой, оштукатуривания или под облицовку какими-либо другими материалами.

Качество 2 (К2) - соответствует существующему стандартному качеству поверхностей стен и потолков. Шпаклевание выполняется с целью достижения плавных переходов от поверхностей сопряжений к поверхности ГВЛ. Все переходы от швов, внутренних и внешних углов, крепежных элементов должны быть незаметны на глаз. Для этой цели зашпаклеванные швы обрабатывают пастой Финиш на ширину примерно 30 см.

Такая поверхность ГВЛ предназначена для структурированной окраски, оклейки структурными обоями, для тонкослойного оштукатуривания.

Качество 3 (К3) - предъявляет повышенные требования к качеству поверхности стен и потолков, т.е. кроме стандартного шпаклевания для К2 необходимо полное покрытие поверхности ГВЛ шпаклевочным материалом с последующим шлифованием. Для этих целей чаще всего используют пасту Финиш или Редигипс, а также шпаклевочные смеси.

Такая поверхность предназначена для высококачественной окраски стен и потолков любыми видами красок, оклейки глянцевыми тонкослойными обоями, оштукатуривания тонкоструктурированными растворными смесями с крупностью зерна менее 1 мм.

В данной технологической карте отделка поверхности относится к виду К1, на которую даются нормативы трудозатрат и расхода материалов. Более качественная отделка поверхности оговаривается заказчиком и на нее составляется отдельная смета.

Последовательность действий при обработке продольных и поперечных стыков между ГВЛ следующая:

- перед шпаклеванием обработка грунтовкой глубокого проникновения всех стыков;

- нанесение шпателем первого слоя шпаклевки на стык между листами шириной чуть больше ширины армирующей ленты;

- вдавливание шпателем армирующей ленты в нанесенную шпаклевку;

- после высыхания первого слоя шпаклевки широким шпателем нанесение второго слоя шпаклевки на всю ширину стыковочного шва.

Заделке шпаклевочной смесью Фугенфюллер ГВ подлежат углубления от винтов, стыки между облицовкой и стенами (колоннами), облицовкой и потолком. В местах стыковок на эти конструкции предварительно крепится самоклеящаяся разделительная лента. После заделки стыков и полного высыхания шпаклевки излишки ленты срезаются, а шов шлифуется.

В некоторых случаях при монтаже облицовок образуются внешние углы, которые защищают от механических повреждений при помощи металлических перфорированных уголков из оцинкованной стали (ПУ 31*31×0,4), которые крепят к ГВЛ с помощью специального приспособления, указанного в перечне инструментов. После крепления уголки шпаклюют и после высыхания шлифуют.

По окончании всех шпаклевочных работ поверхность облицовок обрабатывают с помощью кисти, щетки или валика грунтовкой Тифенгрунд. Это необходимо сделать с целью предотвращения образования трещин в швах из-за возможного изменения влажностного режима в помещении (особенно весной, осенью или при проведении отделочных работ мокрым способом).

3. ПОТРЕБНОСТЬ В ИНВЕНТАРЕ И МАТЕРИАЛАХ

Перечень потребного инвентаря, приспособлений и инструмента - см. на стр. 144.

Таблица 3.1

Нормативные показатели расхода материалов на устройство 1 м2
облицовки С 663

Наименование материалов

Ед. изм.

С оконным проемом

С дверным проемом

1-й слой

2-й слой

1-й слой

2-й слой

1

2

3

4

5

6

Каркас и крепежные изделия

Профиль направляющий потолочный ПНП 28/27, ТУ 1121-004-04001508-2003

м

0,77

0,77

0,79

0,79

Профиль потолочный ПП 60/27, ТУ 1121-004-04001508-2003

м

2,69

2,36

2,77

2,41

Профиль угловой ПУ 31/31, ТУ 1121-004-04001508-2003

м

0,46

0,46

-

-

Лента уплотнительная типа Дихтунгсбанд сеч. 30×3,2 мм

м

0,93

0,93

0,95

0,95

Дюбель типа К 6/35

шт.

3,35

3,35

3,54

3,54

Подвес прямой

шт.

2,4

2,4

2,62

2,62

Соединитель одноуровневый

шт.

1,16

-

1,14

-

Брусок деревянный, размер 60×27×2690 мм

м

-

-

0,37

0,37

Винт самонарезающий с острым концом длиной 9 мм, ГОСТ 11650-80*

шт.

8,29

4,8

8,25

5,25

Обшивка

Лист гипсоволокнистый ГВЛ 10,0 мм, ГОСТ Р 51829-2001

м2

1,07

2,12

1,12

2,25

Винт самонарезающий с острым концом и зенкующей головкой, ГОСТ 11652-80*, длиной, мм:

 

 

 

 

30

шт.

18,55

7,35

19,43

7,90

45

шт.

-

18,55

-

18,44

Клей Перлфикс ГВ

кг

0,6

1,19

0,76

1,53

Заделка швов

Шпаклевка Фугенфюллер ГВ, ТУ 5745-011-04001508-97

кг

0,45

0,96

0,42

0,84

Лента армирующая

м

1,20

1,53

1,51

1,55

Лента разделительная 50 мм

м

0,44

0,44

0,43

0,43

Герметик акриловый (туба - 310 мм)

шт.

0,07

0,07

-

-

Грунтовка Тифенгрунд

кг

0,11

0,12

0,11

0,12

4. НОРМАТИВНЫЕ И ТЕХНИКО-ЭКОНОМИЧЕСКИЕ ПОКАЗАТЕЛИ
(ИЗМЕРИТЕЛЬ КОНЕЧНОЙ ПРОДУКЦИИ - 1 м2)


Таблица 4.1

Затраты труда на устройство облицовки С 663 без проемов

№ п.п.

Наименование технологических процессов

Единица измерения

Объем работ

Обоснование

Норма времени

Затраты труда

рабочих, чел.-ч

машиниста, чел.-ч (работа машин, маш.-ч)

рабочих, чел.-ч

машиниста, чел.-ч (работа машин, маш.-ч)

1

Устройство каркаса

м2

1

Расчет ОАО «Тулаоргтехстрой» методом технического нормирования

0,50
(0,45)

-

0,50
(0,45)

-

2

Обшивка каркаса

м2

1

0,17
(0,34)

-

0,17
(0,34)

-

3

Заделка швов, обработка поверхности

м2

1

0,135
(0,25)

-

0,135
(0,25)

-

4

Подача материалов на этажи подъемником грузоподъемностью до 1 т при высоте подъема до 8 м (добавлять на каждые следующие 6 м)

100 т

0,00014 (0,00027)

Е1-16

36

9

0,0050
(0,0133)

0,0013
(0,0024)

5

Перевозка материалов по этажу ручными тележками на расстояние до 30 м

1 т

0,014 (0,027)

Е1-21

1,1

-

0,015
(0,03)

-

 

Итого:

 

 

 

 

 

0,825
(1,083)

0,0013
(0,0024)

Затраты труда на облицовки стен с проемами (без учета прочих работ)

Одним слоем ГВЛ с оконным проемом

0,87 чел.-ч

Двумя слоями ГВЛ с оконным проемом

1,20 чел.-ч

Одним слоем ГВЛ с дверным проемом

0,84 чел.-ч

Двумя слоями ГВЛ с дверным проемом

1,07 чел.-ч

Примечание - В скобках указаны значения для двухслойной облицовки.

Таблица 4.2

График производства работ

№ п.п.

Наименование технологических процессов

Единица измерения

Объем работ

Затраты труда

Принятый состав звена

Продолжительность процесса, ч

рабочих, чел.-ч

машиниста, чел.-ч (работа машин, маш.-ч)

1

Устройство каркаса

м2

1

0,50
(0,45)

 

Монтажники конструкций 4-го и 3-го разрядов

0,25
(0,225)

2

Обшивка каркаса

м2

1

0,17
(0,34)

 

0,085
(0,17)

4

Обработка поверхности, заделка швов,

м2

1

0,135
(0,25)

 

0,0675
(0,125)

5

Прочие работы

м2

1

0,02
(0,025)

0,001

0,01
(0,0125)

 

Итого:

 

 

0,825
(1,065)

 

 

0,412
(0,53)


Рисунок 4.1 - График движения рабочей силы

Таблица 4.3

Технико-экономические показатели

№ п.п.

Наименование

Единица измерения

Количество

1

Продолжительность работ

ч

0,412
(0,53)

2

Трудоемкость на 1 м2:

чел.-ч

по нормам

 

0,805
(1,04)

по графику (с учетом прочих работ)

 

0,825
(1,065)

3

Максимальная численность рабочих

чел.

2

4

Выработка на 1 чел.-ч

м2

2,43
(1,89)

ТИПОВАЯ ТЕХНОЛОГИЧЕСКАЯ КАРТА
НА УСТРОЙСТВО ОБЛИЦОВОК
НА МЕТАЛЛИЧЕСКОМ КАРКАСЕ
КОМПЛЕКТНОЙ СИСТЕМЫ КНАУФ
С ПРИМЕНЕНИЕМ ГИПСОВОЛОКНИСТЫХ ЛИСТОВ

Облицовка С 665

1. ОБЛАСТЬ ПРИМЕНЕНИЯ

1.1. Типовая технологическая карта предназначена для разработки проектов производства работ (ППР), проектов организации строительства (ПОС), другой организационно-технологической документации, а также является информационным пособием для строительных организаций, производящих устройство облицовок С 665 с применением гипсоволокнистых листов (ГВЛ).

1.2. Сборные облицовки С 665 предназначены для отделки и повышения изоляционных свойств стен помещений высотой до 4 м жилых, общественных и производственных зданий:

- при неровности базовой стены свыше 100 мм, а также в случаях, когда вдоль стены проложены (или необходимо проложить) инженерные коммуникации;

- любой степени огнестойкости;

- любых конструктивных систем и типов;

- любого уровня ответственности, включая повышенный;

- различной этажности;

- возводимых в ветровых районах до V включительно;

- для зданий, возводимых в районах как с обыкновенными, так и со сложными инженерно-геологическими условиями и сейсмичностью до 9 баллов.

1.3. Облицовка С 665 имеет конструкцию, отвечающую требованиям рабочих чертежей серии М25.41/2000 «Комплектные системы КНАУФ. Облицовка из гипсоволокнистых листов ограждающих конструкций жилых, общественных и производственных зданий. Стены. Мансардные помещения. Коммуникационные шахты», выпуск 1. Серия разработана ОАО «ЦНИИпромзданий» при участии фирмы «КНАУФ».

1.4. Облицовка С 665 состоит из металлического каркаса; обшивки одним слоем гипсоволокнистых листов толщиной 10 или 12,5 мм. Масса 1 м2 облицовки - 18 кг.

1.5. Каркас облицовки С 665 состоит из направляющих и стоечных оцинкованных металлических профилей, отвечающих требованиям ТУ 1121-004-04001508-2003. Стандартная длина профилей составляет: 2750; 3000; 4000; 4500 мм. По согласованию с заказчиком могут быть выпущены профили длиной от 500 до 6000 мм. Номинальная толщина профилей должна быть не менее 0,6 мм. Стенки направляющих и стоечных, а также полки стоечных профилей усилены продольными гофрами, увеличивающими их жесткость.

Направляющие профили имеют П-образную, а стоечные профили - С-образную формы. Размеры их стенок и полок (a×b) представлены в таблицах 1.1 и 1.2.

Таблица 1.1

Геометрические размеры направляющих профилей

Размер

Профиль

ПН 75

ПН 100

a×b, мм

75×40

100×40

Таблица 1.2

Геометрические размеры стоечных профилей

Размер

Профиль

ПС 75

ПС 100

a×b, мм

75×50

100×50

Направляющие профили производятся с готовыми отверстиями в стенках диаметром 8 мм, предназначенными для крепления дюбелями к несущим основаниям. В стоечных профилях имеются 3 пары отверстий в стенках диаметром 33 мм (в центре и по краям), которые позволяют монтировать технические коммуникации внутри облицовки.

Предельно допустимая высота облицовки С 665 представлена в таблице 1.3.

Таблица 1.3

Максимальная высота облицовки С 665

Максимальная высота перегородки, м

Шаг крепления стоечных профилей по высоте, мм

Марка стоечного профиля

3,00

600

ПН 75

4,00

600

ПН 100

1.6. ГВЛ представляет собой экологически чистый листовой отделочный материал, изготовленный из строительного гипса марки не ниже Г-4 (ГОСТ 125-79), распушенной целлюлозной макулатуры марок МС-10 и МС-11 (ГОСТ 10700-89), содержащей различные технологические добавки. Типовой размер ГВЛ, который применялся при разработке данной технологической карты равен 2500×1200×(10) 12,5 мм.

По заказу строительных организаций могут выпускаться партии листов других типоразмеров согласно ГОСТ Р 51829-2001, которые приведены в таблице 1.4.

Таблица 1.4

Размеры ГВЛ

Длина, мм

1500; 2000, 2500, 2700; 3000

Ширина, мм

500; 1000; 1200

Толщина, мм

10; 12,5; 15; 18; 20

ГВЛ выпускаются с различными формами продольных кромок: фальцевая (ФК) и прямая (ПК). Данная технологическая карта предусматривает обшивку каркаса ГВЛ с фальцевой кромкой (ФК).

Масса 1 м2 (поверхностная плотность) ГВЛ - 1,05S < m < 1,2S (кг/м2), где S - толщина листа, мм. Удельная активность естественных радионуклидов не более 370 Бк/кг (ГОСТ 12.1.044-89*), т.е. ГВЛ относится к I группе.

Пожаротехнические характеристики ГВЛ соответствуют:

- горючесть - Г1 (ГОСТ 30244-94);

- воспламеняемость - В1 (ГОСТ 30402-96);

- дымообразующая способность - Д1 (ГОСТ 12.1.044-89);

- токсичность - Т1 (ГОСТ 12.1.044-89).

Отпускная влажность листов не должна превышать 1,5 %; плотность - не более 1250 кг/м3.

1.7. Для крепления ГВЛ к каркасу облицовки применяют самонарезающие винты с зенкующей головкой. Для крепления каркаса к конструкциям пола, потолка и стен используют дюбели.

1.8. Монтаж облицовки производят в период отделочных работ по окончании «мокрых» процессов, способных существенно повысить влажность воздуха внутри помещения, до устройства чистого пола.

В помещениях, где производят монтаж облицовки С 665, температура воздуха не должна быть ниже +10 °С.

Температурно-влажностный режим помещения должен соответствовать требованиям СНиП 23-02-2003 «Тепловая защита зданий».

1.9. Типовая технологическая карта разработана на измеритель конечной продукции - 1 м2 облицовки. Привязка типовой технологической карты к конкретному объекту и условиям строительства состоит в уточнении необходимых материальных ресурсов и схем организации строительного процесса, соответствующего рабочим чертежам.

2. ОРГАНИЗАЦИЯ И ТЕХНОЛОГИЯ ВЫПОЛНЕНИЯ РАБОТ

2.1. К устройству облицовок С 665 рекомендуется приступать только после:

- наличия утвержденной проектной документации (рабочих чертежей);

- наличия проекта производства работ, который должен предусматривать комплексную механизацию работ с наиболее полным использованием специализированного инструмента и приспособлений, способствующих повышению производительности труда, сокращению сроков устройства облицовок, уменьшающих трудозатраты и создающих наиболее безопасные условия труда;

- производства организационно-технологической подготовки, которая включает в себя подготовку необходимой оснастки, средств подмащивания и доставки ГВЛ в зону производства работ (см. рисунок 21).

2.2. До начала монтажа элементов облицовки необходимо закончить все общестроительные, а также строительно-монтажные работы, которые могут вызвать повышение влажности ГВЛ. Произвести уборку строительного мусора. Произвести инструментальную проверку соответствия основания для установки направляющих и стоечных профилей каркаса облицовки. Подготовленное основание должно быть оформлено актом приемки за подписью ответственных представителей строительной организации.

2.3. Работы по монтажу облицовки С 665 выполняют под руководством ИТР. Рабочие, выполняющие монтажные работы, должны пройти техническое обучение в учебных центрах «КНАУФ» или других специализированных учебных заведениях и иметь удостоверение на право производства работ.

2.4. Устройство облицовок производят поточно-расчлененным методом, по захваткам, со специализацией звеньев бригады на выполнение однотипных работ и оснащенных соответствующим набором инструментов, инвентаря и средств подмащивания. Каждое звено состоит из двух человек: монтажник конструкций 4-го разряда, монтажник конструкций 3-го разряда.

2.5. Доставку на объект ГВЛ, упакованных в полиэтиленовую пленку, следует производить централизованно автотранспортом. Размер упаковки ГВЛ 2500×1200×650 мм. По согласованию с потребителем допускается транспортировать листы в непакетированном виде (без обвязки или упаковки в пленку). Габариты пакетов не должны превышать по длине 4100 мм, ширине 1300 мм, высоте 800 мм; масса пакета не должна быть более 3000 кг (см. рисунок 1).

ГВЛ следует хранить в помещениях с сухим и нормальным влажностным режимом, раздельно по видам и размерам, с соблюдением техники безопасности и сохранности продукции. Общая высота складируемого штабеля с ГВЛ не должна превышать 3,5 м (см. рисунок 2). Расстояние между штабелями складирования не должно быть менее 1 м.

2.6. Доставку на объект металлических профилей каркаса облицовки допускается производить автотранспортом при условии их защиты от механических воздействий. Хранение профилей на закрытых приобъектных складах должно производиться в кондукторе пакетами по типам.

2.7. При производстве погрузочно-разгрузочных работ следует избегать ударов. Укладку пакетов с профилями на транспортные средства следует осуществлять погрузчиками. Вышеуказанные работы должны производиться в соответствии с требованиями ГОСТ 12.3.009-76.

2.8. Подъем материалов на этажи рекомендовано производить с помощью машин и механизмов, указанных в сборнике ЕНиР-1 «Внутрипостроечные транспортные работы».

2.9. Транспортировать ГВЛ к месту производства работ на этаже следует ручными тележками. При переносе ГВЛ вручную - с помощью специальных приспособлений.

2.10. Облицовку С 665 предусмотрено производить в следующем порядке:

- разметка проектного положения облицовки;

- установка элементов каркаса;

- прокладка проектных инженерных коммуникаций;

- установка и закрепление изоляционного материала в каркасе облицовки;

- обшивка каркаса ГВЛ;

- установка электротехнических коробок, розеток, выключателей и т.п. и их крепление к ГВЛ;

- подготовка поверхности облицовок под чистовую отделку.

2.10.1. Разметка проектного положения облицовки (см. рисунок 22).

Разметку проектного положения элементов каркаса облицовки С 665 производят в строгом соответствии с проектным решением и согласно рабочим чертежам. Для быстрой и безошибочной установки облицовки рекомендуется вначале отмечать на полу места расположения направляющих и стоечных профилей, дверных и других проемов. Разметку производят с помощью складного метра, рулетки, метростата и шнуроотбойного устройства. Разметку больших помещений производят с помощью лазерного или оптического нивелира.

Вначале разметку проектного положения каркаса выполняют на полу. Разметку начинают от стены, расположенной параллельно возводимой облицовке, вынося горизонтальную ось. Затем на этой оси отмечают места расположения стоечных профилей с проектным шагом, дверных и других проемов, а также выводов и сквозных проходов коммуникаций. Для данной технологической карты шаг равен 600 мм (см. рисунок 25).

Расстояние от стоечного профиля, примыкающего к стене, до первого отстоящего от стены профиля должно быть меньше проектного шага на 25 мм.

Затем с помощью метростата и шнуроотбойного устройства (если высота помещения больше 3 м, то - нивелира или отвеса) разметку зеркально переносят на потолок. Вертикальные оси каркаса облицовки с помощью метростата и отвеса наносят на стены помещения, примыкающие к каркасу.

2.10.2. Установка элементов каркаса.

Элементы каркаса облицовки С 665 состоят из направляющих профилей (ПН) и стоечных профилей (ПС), имеющих стандартные размеры.

На полках стоечных профилей выполнены продольные гофры, которые увеличивают их жесткость. Центральный гофр является ориентиром как при точной сборке каркаса, так и при установке ГВЛ.

Типоразмеры стоечных и направляющих профилей выбирают исходя из высоты конструкции облицовки в полном соответствии с рабочими чертежами.

Допускается соединение стоечных профилей по длине методом насадки или встык с дополнительным профилем. В этих случаях длина нахлеста определяется согласно таблице 2.1, а длина дополнительного профиля должна быть не менее 20-кратной величины стенки стоечного профиля.

Таблица 2.1

Соединение стоечных профилей

Тип профиля

Длина нахлеста, см

ПС 75

≥75

ПС 100

≥100

Соединение (удлинение) профилей производят с помощью просекателя методом «просечки с отгибом», в отдельных случаях посредством винтов LN 3,5×9.

Стоечные профили должны иметь высоту на 10 мм меньше расстояния между стенками верхних и нижних направляющих профилей.

Установку направляющих профилей осуществляют согласно разметке их проектного положения на полу и на потолке.

С целью повышения звукоизоляционной способности облицовки на стенки направляющих профилей ПН наклеивают уплотнительную ленту. После раскроя и полной подготовки направляющих профилей приступают к их монтажу по линии разметки на полу, а затем - на потолке. Крепление направляющих профилей осуществляют дюбелями с шагом не более 1 м. Закреплять профиль ПН необходимо не менее чем в трех точках независимо от его длины. При необходимости дополнительные отверстия в стенке направляющего профиля высверливают дрелью.

Установку стоечных профилей также осуществляют по их проектному положению, а их типоразмер должен соответствовать рабочим чертежам (в рассматриваемом случае шаг стоек равен 600 мм, см. рисунок 25).

Предварительно на стоечные профили, примыкающие к конструкциям здания, наклеивают уплотнительную ленту. Стоечные профили устанавливают в закрепленные в проектном положении направляющие профили.

Установку стоек начинают от стен, к которым профили крепятся дюбелями с шагом не более 1 м, но не менее трех креплений на одну стойку. Каждую стойку устанавливают строго вертикально и с помощью просекателя закрепляют к направляющему профилю на полу и на потолке. Закрепление производят не менее чем в двух точках с каждой стороны направляющего профиля (т.е. четыре просечки вверху и четыре просечки - внизу).

Если высота помещения превышает длину ГВЛ, то в местах торцевых стыков устраивают горизонтальные вставки из ПН, на которых должны располагаться поперечные швы. Для устройства вставок из направляющего профиля вырезают заготовки путем надреза полок профиля и отгиба согласно рабочим чертежам.

Крепление вставок к полкам стоечных профилей осуществляют просекателем, а к стенкам - самонарезающими винтами длиной 9 мм.

В местах сопряжения облицовки с коммуникациями между стоечными профилями устанавливают перемычки из направляющего профиля с их закреплением просекателем к профилю ПС. При групповой прокладке трубопровода допускается устройство общего обрамления.

При необходимости пропуска инженерных коммуникаций больших размеров допускается срезка вертикальных стоек с установкой по краям отверстия дополнительных стоечных профилей каркаса на всю высоту облицовки. В местах пересечения облицовки трубопроводами парового, водяного отопления и водоснабжения устанавливают гильзы.

Контроль за точностью установки каркаса осуществляют с помощью складного метра, метростата или нивелира.

Если длина облицовки превышает 15 м, то требуется устройство деформационного шва (см. рисунок 27). Кроме того, деформационные швы облицовки должны повторять деформационные швы здания.

На смонтированный в проектное положение каркас облицовки необходимо оформить акт приемки за подписью главного инженера строительной организации и лица-надзора от проектной организации.

2.10.3. Прокладка проектных инженерных коммуникаций.

Произведя монтаж каркаса облицовки, приступают к монтажу электротехнической проводки. Кабели размещают перпендикулярно стойкам каркаса в строгом соответствии с рабочим проектом. Не допускается размещать электропроводку вдоль стоек или внутри них во избежание ее повреждения при обшивке ГВЛ. Прокладку электросети выполняет специализированное звено электромонтажников. При необходимости производят прокладку и других коммуникационных сетей, предусмотренных проектом.

2.10.4. Установка и закрепление изоляционного материала.

Установка изоляционного материала производится только при необходимости улучшения теплоизоляции наружных стен после проведения теплотехнического расчета с целью определения точки росы. Если точка росы будет находиться на внутренней поверхности стены или внутри теплоизоляционного слоя, то установку последнего проводить нельзя. Изоляционный материал может фиксироваться на стене с помощью клея или пластиковых дюбелей с широкой шляпкой.

2.10.5. Обшивка каркаса гипсоволокнистыми листами.

Перед установкой ГВЛ в местах примыкания обшивки к поверхностям потолка и стен (колонн), выполненных из другого материала, наклеивают разделительную ленту.

Установка ГВЛ начинается от основной стены помещения в вертикальном положении. Перед установкой на торцах каждого ГВЛ, образующих горизонтальный стык, делают фальц шириной 30 мм и глубиной 2 мм (см. рисунок 5).

Горизонтальную стыковку ГВЛ выполняют вразбежку с шагом не менее 400 мм. Торцы опираются на вставку из направляющего профиля. Между полом и ГВЛ оставляется зазор около 10 мм. По вертикали ГВЛ стыкуются только на стойках каркаса.

Крепление ГВЛ осуществляют самонарезающими винтами с зенкующей головкой длиной 30 мм с помощью электрошуруповерта с магнитной головкой. Шаг винтов 250 мм. Крепятся ГВЛ по периметру и по центральной вертикальной оси (см. рисунок 9).

Монтаж ГВЛ ведется в одном направлении с открытой частью профиля. Установка винтов, закрепляющих предыдущий лист, со стороны стенки профиля предотвращает отгибание слабого края полки внутрь профиля при креплении следующего листа.

Крепление винтами на стыке ГВЛ осуществляют вразбежку через 50 мм с винтами соседнего ряда и отступлением от края ГВЛ на 10 мм. Крепежные винты должны входить в ГВЛ под прямым углом и проникать в полку профиля на глубину не менее 10 мм. Головки винтов должны быть утоплены в поверхность ГВЛ на глубину, позволяющую их зашпаклевать.

2.10.6. Установка электротехнических коробок, розеток, выключателей и их крепление к ГВЛ.

По окончании монтажа ГВЛ устанавливают электрические коробки, розетки, выключатели и т.п., которые крепят к ГВЛ с помощью специальной фурнитуры. Эти работы выполняет звено электромонтажников.

2.10.7. Подготовка поверхности облицовки под чистовую отделку.

Шпаклевание стыков между ГВЛ производят при стабильной температуре и влажности воздуха в помещениях, соответствующих режиму эксплуатации (t не должна быть ниже +10 °С). Недопустимы сквозняки и резкие колебания температуры в помещениях. Предварительно кромки ГВЛ обрабатывают грунтовкой Тифенгрунд.

Заделке шпаклевочной смесью Фугенфюллер ГВ подлежат продольные и поперечные стыки, стыки между облицовкой и потолком. Продольные и поперечные стыки между ГВЛ заделываются с применением армирующей ленты.

До обработки стыков необходимо проверить надежность крепления ГВЛ. Выступающие головки винтов - довернуть. Производство работ, ведущих к повышению влажности в помещении, к этому времени должно быть завершено.

В зависимости от назначения помещений требования к отделке поверхностей из ГВЛ можно разделить на 3 вида, как это принято в большинстве европейских стран:

Качество 1 (К1) - определяет качество поверхности швов и поверхностей ГВЛ, к которым не предъявляются оптические требования, т.е. поверхность может иметь волнистый рельеф, где гребень не должен превышать 1,5 мм. Такая поверхность ГВЛ предназначена для облицовки плиткой, оштукатуривания или под облицовку какими-либо другими материалами.

Качество 2 (К2) - соответствует существующему стандартному качеству поверхностей стен и потолков. Шпаклевание выполняется с целью достижения плавных переходов от поверхностей сопряжений к поверхности ГВЛ. Все переходы от швов, внутренних и внешних углов, крепежных элементов должны быть незаметны на глаз. Для этой цели зашпаклеванные швы обрабатывают пастой Финиш на ширину примерно 30 см.

Такая поверхность ГВЛ предназначена для структурированной окраски, оклейки структурными обоями, для тонкослойного оштукатуривания.

Качество 3 (К3) - предъявляет повышенные требования к качеству поверхности стен и потолков, т.е. кроме стандартного шпаклевания для К2 необходимо полное покрытие поверхности ГВЛ шпаклевочным материалом с последующим шлифованием. Для этих целей чаще всего используют пасту Финиш или Редигипс, а также шпаклевочные смеси.

Такая поверхность предназначена для высококачественной окраски стен и потолков любыми видами красок, оклейки глянцевыми тонкослойными обоями, оштукатуривания тонкоструктурированными растворными смесями с крупностью зерна менее 1 мм.

В данной технологической карте отделка поверхности относится к виду К1, на которую даются нормативы трудозатрат и расхода материалов. Более качественная отделка поверхности оговаривается заказчиком и на нее составляется отдельная смета.

Последовательность действий при обработке продольных и поперечных стыков между ГВЛ следующая:

- перед шпаклеванием обработка грунтовкой глубокого проникновения всех стыков;

- нанесение шпателем первого слоя шпаклевки на стык между листами шириной чуть больше ширины армирующей ленты;

- вдавливание шпателем армирующей ленты в нанесенную шпаклевку;

- после высыхания первого слоя шпаклевки широким шпателем нанесение второго слоя шпаклевки на всю ширину стыковочного шва.

Заделке шпаклевочной смесью Фугенфюллер ГВ подлежат углубления от винтов, стыки между облицовкой и стенами (колоннами), облицовкой и потолком. В местах стыковок на эти конструкции предварительно крепится самоклеящаяся разделительная лента. После заделки стыков и полного высыхания шпаклевки излишки ленты срезаются, а шов шлифуется.

В некоторых случаях при монтаже облицовок образуются внешние углы, которые защищают от механических повреждений при помощи металлических перфорированных уголков из оцинкованной стали (ПУ 31×31×0,4), которые крепят к ГВЛ с помощью специального приспособления, указанного в перечне инструментов. После крепления уголки шпаклюют и после высыхания шлифуют.

По окончании всех шпаклевочных работ поверхность облицовок обрабатывается с помощью кисти, щетки или валика грунтовкой Тифенгрунд. Это необходимо сделать с целью предотвращения образования трещин в швах из-за возможного изменения влажностного режима в помещении (особенно весной, осенью или при проведении отделочных работ мокрым способом).

3. ПОТРЕБНОСТЬ В ИНВЕНТАРЕ И МАТЕРИАЛАХ

Перечень потребного инвентаря, приспособлений и инструмента - см. на стр. 144.

Таблица 3.1

Нормативные показатели расхода материалов на устройство 1 м2
облицовки С 665

Наименование материалов

Ед. изм.

С 665 (6×2,7 м)

С оконным проемом

с дверным проемом

Каркас и крепежные изделия

Профиль направляющий ПН 75/40, ТУ 1121-004-04001508-2003

м

1,21

1,22

Профиль стоечный ПС 75/50, ТУ 1121-004-04001508-2003

м

2,25

2,34

Профиль угловой ПУ 31/31, ТУ 1121-004-04001508-2003

м

0,46

-

Лента уплотнительная типа Дихтунгсбанд, сеч. 70×3,2 мм

м

1,16

1,17

Дюбель типа К 6/35

шт.

1,53

1,49

Брусок деревянный, размер 75×50×2690 мм

м

-

0,37

Обшивка

Лист гипсоволокнистый ГВЛ 10 мм, ГОСТ Р 51829-2001

м2

1,07

1,12

Винт самонарезающий с острым концом и зенкующей головкой, ГОСТ 11652-80*, длиной, мм:

 

 

 

30

шт.

18,55

19,43

Клей Перлфикс

кг

0,6

0,76

Заделка швов

Шпатлевка Фугенфюллер ГВ, ТУ 5745-011-04001508-97

кг

0,45

0,42

Лента армирующая

м

1,2

1,51

Лента разделительная 50 мм

м

0,82

0,8

Герметик акриловый (туба - 310 мм)

шт.

0,07

-

Грунтовка Тифенгрунд

кг

0,11

0,11

4. НОРМАТИВНЫЕ И ТЕХНИКО-ЭКОНОМИЧЕСКИЕ ПОКАЗАТЕЛИ
(ИЗМЕРИТЕЛЬ КОНЕЧНОЙ ПРОДУКЦИИ - 1 м2).


Таблица 4.1

Затраты труда на устройство облицовки С 665

№ п.п.

Наименование технологических процессов

Единица измерения

Объем работ

Обоснование

Норма времени

Затраты труда

рабочих, чел.-ч

машиниста, чел.-ч (работа машин, маш.-ч)

рабочих, чел.-ч

машиниста, чел.-ч (работа машин, маш.-ч)

1

Устройство каркаса

м2

1

Расчет ОАО «Тулаоргтехстрой» методом технического нормирования

0,35

-

0,35

-

2

Обшивка каркаса

м2

1

0,17

-

0,17

-

3

Заделка швов, обработка поверхности

м2

1

0,135

-

0,135

-

4

Подача материалов на этажи подъемником грузоподъемностью до 1 т при высоте подъема до 8 м

100 т

0,00015

Е1-16

36

9

0,0054

0,0014

5

Перевозка материалов по этажу ручными тележками на расстояние до 30 м

1 т

0,015

Е1-21

1,1

-

0,0165

 

 

Итого:

 

 

 

 

 

0,677

0,0014

Затраты труда на устройство облицовок с проемами (без учета прочих работ)

С оконным проемом

0,72 чел.-ч

С дверным проемом

0,69 чел.-ч

Таблица 4.2

График производства работ

№ п.п.

Наименование технологических процессов

Единица измерения

Объем работ

Затраты труда

Принятый состав звена

Продолжительность процесса, ч

рабочих, чел.-ч

машиниста, чел.-ч (работа машин, маш.-ч)

1

Устройство каркаса

м2

1

0,35

-

Монтажники конструкций 4-го и 3-го разрядов

0,175

2

Обшивка каркаса

м2

1

0,17

-

0,085

3

Обработка поверхности, заделка швов

м2

1

0,135

-

0,0675

4

Прочие работы

м2

1

0,0219

0,0014

0,011

 

Итого:

 

 

0,677

 

 

0,34


Рисунок 4.1 - График движения рабочей силы

Таблица 4.3

Технико-экономические показатели

№ п.п.

Наименование

Единица измерения

Количество

1

Продолжительность работ

ч

0,34

2

Трудоемкость на 1 м2:

по нормам

чел.-ч

0,655

по графику (с учетом прочих работ)

 

0,677

3

Максимальная численность рабочих

чел.

2

4

Выработка на 1 чел.-ч

м2

2,94

ТИПОВАЯ ТЕХНОЛОГИЧЕСКАЯ КАРТА
НА УСТРОЙСТВО ОБЛИЦОВОК
НА МЕТАЛЛИЧЕСКОМ КАРКАСЕ
КОМПЛЕКТНОЙ СИСТЕМЫ КНАУФ
С ПРИМЕНЕНИЕМ ГИПСОВОЛОКНИСТЫХ ЛИСТОВ

Облицовка С 666

1. ОБЛАСТЬ ПРИМЕНЕНИЯ

1.1. Типовая технологическая карта предназначена для разработки проектов производства работ (ППР), проектов организации строительства (ПОС), другой организационно-технологической документации, а также является информационным пособием для строительных организаций, производящих устройство облицовок С 666 с применением гипсоволокнистых листов (ГВЛ).

1.2. Сборные облицовки С 666 предназначены для отделки и повышения изоляционных свойств стен помещений высотой до 4,25 м жилых, общественных и производственных зданий:

- при неровности базовой стены свыше 100 мм, а также в случаях, когда вдоль стены проложены (или необходимо проложить) инженерные коммуникации;

- любой степени огнестойкости;

- любых конструктивных систем и типов;

- любого уровня ответственности, включая повышенный;

- различной этажности;

- возводимых в ветровых районах до V включительно;

- для зданий, возводимых в районах как с обыкновенными, так и со сложными инженерно-геологическими условиями и сейсмичностью до 9 баллов.

1.3. Облицовка С 666 имеет конструкцию, отвечающую требованиям рабочих чертежей серии М25.41/2000 «Комплектные системы КНАУФ. Облицовка из гипсоволокнистых листов ограждающих конструкций жилых, общественных и производственных зданий. Стены. Мансардные помещения. Коммуникационные шахты», выпуск 1. Серия разработана ОАО «ЦНИИпромзданий» при участии фирмы «КНАУФ».

1.4. Облицовка С 666 состоит из металлического каркаса, обшивки двумя слоями гипсоволокнистых листов толщиной 10 или 12,5 мм. Масса 1 м2 облицовки в зависимости от толщины ГВЛ ~ 28 или ~ 34 кг.

1.5. Каркас облицовки С 666 состоит из направляющих и стоечных оцинкованных металлических профилей, отвечающих требованиям ТУ 1121-004-04001508-2003. Стандартная длина профилей составляет: 2750; 3000; 4000; 4500 мм. По согласованию с заказчиком могут быть выпущены профили длиной от 500 до 6000 мм. Номинальная толщина профилей должна быть не менее 0,6 мм. Стенки направляющих и стоечных, а также полки стоечных профилей усилены продольными гофрами, увеличивающими их жесткость.

Направляющие профили имеют П-образную, а стоечные профили - С-образную формы. Размеры их стенок и полок (a×b) представлены в таблицах 1.1 и 1.2.

Таблица 1.1

Геометрические размеры направляющих профилей

Размер

Профиль

ПН 50

ПН 75

ПН 100

a×b, мм

50×40

75×40

100×40

Таблица 1.2

Геометрические размеры стоечных профилей

Размер

Профиль

ПС 50

ПС 75

ПС 100

a×b, мм

50×50

75×50

100×50

Направляющие профили производятся с готовыми отверстиями в стенках диаметром 8 мм, предназначенными для крепления дюбелями к несущим основаниям. В стоечных профилях имеются 3 пары отверстий в стенках диаметром 33 мм (в центре и по краям), которые позволяют монтировать технические коммуникации внутри облицовки.

Предельно допустимая высота облицовки С 666 представлена в таблице 1.3.

Таблица 1.3

Максимальная высота облицовки С 666

Максимальная высота перегородки, м

Шаг крепления стоечных профилей по высоте, мм

Марка стоечного профиля

2,60

600

ПН 50

3,50

600

ПН 75

4,25

600

ПН 100

1.6. ГВЛ представляет собой экологически чистый листовой отделочный материал, изготовленный из строительного гипса марки не ниже Г-4 (ГОСТ 125-79), распушенной целлюлозной макулатуры марок МС-10 и МС-11 (ГОСТ 10700-89), содержащей различные технологические добавки. Типовой размер ГВЛ, который применялся при разработке данной технологической карты, равен 2500×1200×(10) 12,5 мм.

По заказу строительных организаций могут выпускаться партии листов других типоразмеров согласно ГОСТ Р 51829-2001, которые приведены в таблице 1.4.

Таблица 1.4

Размеры ГВЛ

Длина, мм

1500; 2000; 2500; 2700; 3000

Ширина, мм

500; 1000; 1200

Толщина, мм

10; 12,5; 15; 18; 20

ГВЛ выпускают с различными формами продольных кромок: фальцевая (ФК); прямая (ПК). Данная технологическая карта предусматривает обшивку каркаса ГВЛ с фальцевой кромкой (ФК).

Масса 1 м2 (поверхностная плотность) ГВЛ - 1,05S < m < 1,2S (кг/м2), где S - толщина листа, мм. Удельная активность естественных радионуклидов не более 370 Бк/ кг (ГОСТ 12.1.044-89*), т.е. ГВЛ относится к I группе.

Пожаротехнические характеристики ГВЛ соответствуют:

- горючесть - Г1 (ГОСТ 30244-94);

- воспламеняемость - В1 (ГОСТ 30402-96);

- дымообразующая способность - Д1 (ГОСТ 12.1.044-89);

- токсичность - Т1 (ГОСТ 12.1.044-89).

Отпускная влажность листов не должна превышать 1,5 %; плотность - не более 1250 кг/м3.

1.7. Для крепления ГВЛ к каркасу облицовки применяют самонарезающие винты с зенкующей головкой. Для крепления каркаса к конструкциям пола, потолка и стен используют дюбели.

1.8. Монтаж облицовки производят в период отделочных работ по окончании «мокрых» процессов, способных существенно повысить влажность воздуха внутри помещения, до устройства чистого пола.

В помещениях, где производят монтаж облицовки С 666, температура воздуха не должна быть ниже +10 °С.

Температурно-влажностный режим помещения должен соответствовать требованиям СНиП 23-02-2003 «Тепловая защита зданий».

1.9. Типовая технологическая карта разработана на измеритель конечной продукции - 1 м2 облицовки. Привязка типовой технологической карты к конкретному объекту и условиям строительства состоит в уточнении необходимых материальных ресурсов и схем организации строительного процесса, соответствующего рабочим чертежам.

2. ОРГАНИЗАЦИЯ И ТЕХНОЛОГИЯ ВЫПОЛНЕНИЯ РАБОТ

2.1. К устройству облицовок С 666 рекомендуется приступать только после:

- наличия утвержденной проектной документации (рабочих чертежей);

- наличия проекта производства работ, который должен предусматривать комплексную механизацию работ с наиболее полным использованием специализированного инструмента и приспособлений, способствующих повышению производительности труда, сокращению сроков устройства облицовок, уменьшающих трудозатраты и создающих наиболее безопасные условия труда;

- производства организационно-технологической подготовки, которая включает в себя подготовку необходимой оснастки, средств подмащивания и доставки ГВЛ в зону производства работ (см. рисунок 21).

2.2. До начала монтажа элементов облицовки необходимо закончить все общестроительные, а также строительно-монтажные работы, которые могут вызвать повышение влажности ГВЛ. Произвести уборку строительного мусора. Произвести инструментальную проверку соответствия основания для установки направляющих и стоечных профилей каркаса облицовки. Подготовленное основание должно быть оформлено актом приемки за подписью ответственных представителей строительной организации.

2.3. Работы по монтажу облицовки С 666 выполняют под руководством ИТР. Рабочие, выполняющие монтажные работы, должны пройти техническое обучение в учебных центрах «КНАУФ» или других специализированных учебных заведениях и иметь удостоверение на право производства работ.

2.4. Устройство облицовок производят поточно-расчлененным методом, по захваткам, со специализацией звеньев бригады на выполнение однотипных работ и оснащенных соответствующим набором инструментов, инвентаря и средств подмащивания. Каждое звено состоит из двух человек: монтажник конструкций 4-го разряда, монтажник конструкций 3-го разряда.

2.5. Доставку на объект ГВЛ, упакованных в полиэтиленовую пленку, следует производить централизованно автотранспортом. Размер упаковки ГВЛ 2500×1200×650 мм. По согласованию с потребителем допускается транспортировать листы в непакетированном виде (без обвязки или упаковки в пленку). Габариты пакетов не должны превышать по длине 4100 мм, ширине 1300 мм, высоте 800 мм; масса пакета не должна быть более 3000 кг (см. рисунок 1).

ГВЛ следует хранить в помещениях с сухим и нормальным влажностным режимом, раздельно по видам и размерам, с соблюдением техники безопасности и сохранности продукции. Общая высота складируемого штабеля с ГВЛ не должна превышать 3,5 м (см. рисунок 2). Расстояние между штабелями складирования не должно быть менее 1 м.

2.6. Доставку на объект металлических профилей каркаса облицовки допускается производить автотранспортом при условии их защиты от механических воздействий. Хранение профилей на закрытых приобъектных складах должно производиться в кондукторе пакетами по типам.

2.7. При производстве погрузочно-разгрузочных работ следует избегать ударов. Укладку пакетов с профилями на транспортные средства следует осуществлять погрузчиками. Вышеуказанные работы должны производиться в соответствии с требованиями ГОСТ 12.3.009-76.

2.8. Подъем материалов на этажи рекомендовано производить с помощью машин и механизмов, указанных в сборнике ЕНиР-1 «Внутрипостроечные транспортные работы».

2.9. ГВЛ транспортируют к месту производства работ на этаже ручными тележками. При переносе ГВЛ вручную - с помощью специальных приспособлений.

2.10. Облицовку С 666 предусмотрено производить в следующем порядке:

- разметка проектного положения облицовки;

- установка элементов каркаса;

- прокладка проектных инженерных коммуникаций;

- установка и закрепление изоляционного материала;

- обшивка каркаса первым слоем ГВЛ;

- заделка стыков первого слоя ГВЛ;

- обшивка каркаса вторым слоем ГВЛ;

- установка электротехнических коробок, розеток, выключателей и т.п. и их крепление к ГВЛ;

- подготовка поверхности облицовок под чистовую отделку.

2.10.1. Разметка проектного положения облицовки (см. рисунок 22).

Разметку проектного положения элементов каркаса облицовки С 666 производят в строгом соответствии с проектным решением и согласно рабочим чертежам. Для быстрой и безошибочной установки облицовки рекомендуется вначале отмечать на полу места расположения стоечных профилей, дверных и других проемов. Разметку производят с помощью складного метра, рулетки, метростата и шнуроотбойного устройства. Разметку больших помещений производят с помощью лазерного или оптического нивелира.

Вначале разметку проектного положения каркаса выполняют на полу. Разметку начинают от стены, расположенной параллельно возводимой облицовке, вынося горизонтальную ось. Затем на этой оси отмечают места расположения стоечных профилей с проектным шагом, дверных и других проемов, а также выводов и сквозных проходов коммуникаций. Для данной технологической карты шаг равен 600 мм (см. рисунок 26).

Расстояние от стоечного профиля, примыкающего к стене, до первого отстоящего от стены профиля должно быть меньше проектного шага на 25 мм.

Затем с помощью метростата и шнуроотбойного устройства (если высота помещения больше 3 м, то - нивелира или отвеса) разметку зеркально переносят на потолок. Вертикальные оси каркаса облицовки с помощью метростата и отвеса наносят на стены помещения, примыкающие к каркасу.

2.10.2. Установка элементов каркаса.

Элементы каркаса облицовки С 666 состоят из направляющих профилей (ПН) и стоечных профилей (ПС), имеющих стандартные размеры.

На полках стоечных профилей выполнены продольные гофры, которые увеличивают их жесткость. Центральный гофр является ориентиром как при точной сборке каркаса, так и при установке ГВЛ.

Типоразмеры стоечных и направляющих профилей выбирают исходя из высоты конструкции облицовки в полном соответствии с рабочими чертежами.

Допускается соединение стоечных профилей по длине методом насадки или встык с дополнительным профилем. В этих случаях длина нахлеста определяется по таблице 2.1, а длина дополнительного профиля должна быть не менее 20-кратной величины стенки стоечного профиля.

Таблица 2.1

Соединение стоечных профилей

Тип профиля

Длина нахлеста, см

ПС 50

≥50

ПС 75

≥75

ПС 100

≥100

Соединение (удлинение) профилей производят с помощью просекателя методом «просечки с отгибом», в отдельных случаях посредством винтов LN 3,5×9.

Стоечные профили должны иметь высоту на 10 мм меньше расстояния между стенками верхних и нижних направляющих профилей.

Установку направляющих профилей осуществляют согласно разметке их проектного положения на полу и на потолке.

С целью повышения звукоизоляционной способности облицовки на стенки направляющих профилей ПН наклеивают уплотнительную ленту. После раскроя и полной подготовки направляющих профилей приступают к их монтажу по линии разметки на полу, а затем - на потолке. Крепление направляющих профилей осуществляют дюбелями с шагом не более 1 м. Закреплять профиль ПН необходимо не менее чем в трех точках независимо от его длины. При необходимости дополнительные отверстия в стенке направляющего профиля высверливают дрелью.

Установку стоечных профилей также осуществляют по проектному положению, а их типоразмер должен соответствовать рабочим чертежам (в рассматриваемом случае шаг стоек равен 600 мм).

Предварительно на стоечные профили, примыкающие к конструкциям здания, наклеивают уплотнительную ленту. Стоечные профили устанавливают в закрепленные в проектном положении направляющие профили.

Установку стоек начинают от стен, к которым профили крепят дюбелями с шагом не более 1 м, но не менее трех креплений на одну стойку. Каждую стойку устанавливают строго вертикально и с помощью просекателя закрепляют к направляющему профилю на полу и на потолке. Закрепление производят не менее чем в двух точках с каждой стороны направляющего профиля (т.е. четыре просечки вверху и четыре просечки - внизу).

В местах сопряжения облицовки с коммуникациями между стоечными профилями устанавливают перемычки из направляющего профиля с их закреплением просекателем к профилю ПС. При групповой прокладке трубопровода допускается устройство общего обрамления.

При необходимости пропуска инженерных коммуникаций больших размеров допускается срезка вертикальных стоек с установкой по краям отверстия дополнительных стоечных профилей каркаса на всю высоту облицовки. В местах пересечения облицовки трубопроводами парового, водяного отопления и водоснабжения устанавливают гильзы.

Контроль за точностью установки каркаса осуществляют с помощью складного метра, метростата или нивелира.

Если длина облицовки превышает 15 м, то требуется устройство деформационного шва (см. рисунок 27). Кроме того, деформационные швы облицовки должны повторять деформационные швы здания.

На смонтированный в проектное положение каркас облицовки необходимо оформить акт приемки за подписью главного инженера строительной организации и лица-надзора от проектной организации.

2.10.3. Прокладка проектных инженерных коммуникаций.

Произведя монтаж каркаса облицовки, приступают к монтажу электротехнической проводки. Кабели размещают перпендикулярно стойкам каркаса в строгом соответствии с рабочим проектом. Не допускается размещать электропроводку вдоль стоек или внутри них во избежание ее повреждения при обшивке ГВЛ. Прокладку электросети выполняет специализированное звено электромонтажников. При необходимости производят прокладку и других коммуникационных сетей, предусмотренных проектом.

2.10.4. Установка и закрепление изоляционного материала.

Установка изоляционного материала производится только при необходимости улучшения теплоизоляции наружных стен после проведения теплотехнического расчета с целью определения точки росы. Если точка росы будет находиться на внутренней поверхности стены или внутри теплоизоляционного слоя, то установку последнего проводить нельзя. Изоляционный материал может фиксироваться на стене с помощью клея или пластиковых дюбелей с широкой шляпкой.

2.10.5. Обшивка каркаса первым слоем ГВЛ.

Перед установкой ГВЛ в местах примыкания обшивки к поверхностям потолка и стен (колонн), выполненных из другого материала, наклеивают разделительную ленту.

Установка ГВЛ начинается от основной стены помещения в вертикальном положении. Перед установкой на торцах каждого ГВЛ, образующих горизонтальный стык, делают фальц шириной 30 мм и глубиной 2 мм (см. рисунок 5).

Горизонтальную стыковку ГВЛ выполняют вразбежку с шагом не менее 400 мм. Между полом и ГВЛ оставляется зазор около 10 мм. По вертикали ГВЛ стыкуют только на стойках каркаса.

Крепление ГВЛ осуществляют самонарезающими винтами с зенкующей головкой длиной 30 мм с помощью электрошуруповерта с магнитной головкой. Шаг винтов 750 мм. Крепятся ГВЛ по периметру и по центральной вертикальной оси, где нанесены звездочки (см. рисунок 15).

Монтаж ГВЛ ведется в одном направлении с открытой частью профиля. Установка винтов, закрепляющих предыдущий лист, со стороны стенки профиля предотвращает отгибание слабого края полки внутрь профиля при креплении следующего листа.

Крепление винтами на стыке ГВЛ осуществляют вразбежку через 50 мм с винтами соседнего ряда и отступлением от края ГВЛ на 10 мм. Крепежные винты должны входить в ГВЛ под прямым углом и проникать в полку профиля на глубину не менее 10 мм. Головки винтов должны быть утоплены в поверхность ГВЛ на глубину, позволяющую их зашпаклевать.

2.10.6. Заделка стыков между ГВЛ первого слоя.

До заделки стыков необходимо проверить надежность крепления ГВЛ. Выступающие головки винтов довернуть. Производство работ, ведущих к повышению влажности в помещении, к этому времени должно быть завершено.

Заделку продольных стыков между ГВЛ производят при температуре и влажности воздуха в помещениях, соответствующих режиму эксплуатации (t не должна быть ниже +10 °С). Недопустимы сквозняки, резкие колебания температуры и влажности в помещениях. Предварительно кромки ГВЛ обрабатывают грунтовкой Тифенгрунд.

Заделке шпаклевочной смесью Фугенфюллер ГВ подлежат продольные и поперечные стыки, стыки между облицовкой и стенами (колоннами), облицовкой и потолком.

Последовательность действий при обработке продольных и поперечных швов между ГВЛ следующая:

- нанесение шпателем первого слоя шпаклевки на стык между листами шириной чуть больше ширины армирующей ленты;

- после высыхания первого слоя шпаклевки широким шпателем нанесение второго слоя шпаклевки на всю ширину стыковочного шва.

2.10.7. Обшивка каркаса вторым слоем ГВЛ.

ГВЛ второго слоя устанавливают со смещением на один шаг относительно вертикальных и не менее 400 мм относительно горизонтальных стыков первого слоя. Крепление второго слоя ГВЛ производят к каркасу с помощью самонарезающих винтов длиной не менее 45 мм с шагом 250 мм (см. рисунок 15).

2.10.8. Установка электротехнических коробок, розеток, выключателей и их крепление к ГВЛ.

По окончании монтажа ГВЛ устанавливают электрические коробки, розетки, выключатели и т.п., которые крепят к ГВЛ с помощью специальной фурнитуры. Эти работы выполняет звено электромонтажников.

2.10.9. Подготовка поверхности облицовки под чистовую отделку.

Шпаклевание стыков между ГВЛ производят при стабильной температуре и влажности воздуха в помещениях, соответствующих режиму эксплуатации (t не должна быть ниже +10 С). Недопустимы сквозняки и резкие колебания температуры в помещениях. Предварительно кромки ГВЛ обрабатывают грунтовкой Тифенгрунд.

Заделке шпаклевочной смесью Фугенфюллер ГВ подлежат продольные и поперечные стыки, стыки между облицовкой и потолком. Продольные и поперечные стыки между ГВЛ заделываются с применением армирующей ленты.

До обработки стыков необходимо проверить надежность крепления ГВЛ. Выступающие головки винтов довернуть. Производство работ, ведущих к повышению влажности в помещении, к этому времени должно быть завершено.

В зависимости от назначения помещений требования к отделке поверхностей из ГВЛ можно разделить на 3 вида, как это принято в большинстве европейских стран:

Качество 1 (К1) - определяет качество поверхности швов и поверхностей ГВЛ, к которым не предъявляются оптические требования, т.е. поверхность может иметь волнистый рельеф, где гребень не должен превышать 1,5 мм. Такая поверхность ГВЛ предназначена для облицовки плиткой, оштукатуривания или под облицовку какими-либо другими материалами.

Качество 2 (К2) - соответствует существующему стандартному качеству поверхностей стен и потолков. Шпаклевание выполняется с целью достижения плавных переходов от поверхностей сопряжений к поверхности ГВЛ. Все переходы от швов, внутренних и внешних углов, крепежных элементов должны быть незаметны на глаз. Для этой цели зашпаклеванные швы обрабатывают пастой Финиш на ширину примерно 30 см.

Такая поверхность ГВЛ предназначена для структурированной окраски, оклейки структурными обоями, для тонкослойного оштукатуривания.

Качество 3 (К3) - предъявляет повышенные требования к качеству поверхности стен и потолков, т.е. кроме стандартного шпаклевания для К2 необходимо полное покрытие поверхности ГВЛ шпаклевочным материалом с последующим шлифованием. Для этих целей чаще всего используют пасту Финиш или Редигипс, а также шпаклевочные смеси.

Такая поверхность предназначена для высококачественной окраски стен и потолков любыми видами красок, оклейки глянцевыми тонкослойными обоями, оштукатуривания тонкоструктурированными растворными смесями с крупностью зерна менее 1 мм.

В данной технологической карте отделка поверхности относится к виду К1, на которую даются нормативы трудозатрат и расхода материалов. Более качественная отделка поверхности оговаривается заказчиком и на нее составляется отдельная смета.

Последовательность действий при обработке продольных и поперечных стыков между ГВЛ следующая:

- перед шпаклеванием обработка грунтовкой глубокого проникновения всех стыков;

- нанесение шпателем первого слоя шпаклевки на стык между листами шириной чуть больше ширины армирующей ленты;

- вдавливание шпателем армирующей ленты в нанесенную шпаклевку;

- после высыхания первого слоя шпаклевки широким шпателем нанесение второго слоя шпаклевки на всю ширину стыковочного шва.

Заделке шпаклевочной смесью Фугенфюллер ГВ подлежат углубления от винтов, стыки между облицовкой и стенами (колоннами), облицовкой и потолком. В местах стыковок на эти конструкции предварительно крепится самоклеящаяся разделительная лента. После заделки стыков и полного высыхания шпаклевки излишки ленты срезаются, а шов шлифуется.

В некоторых случаях при монтаже облицовок образуются внешние углы, которые защищают от механических повреждений при помощи металлических перфорированных уголков из оцинкованной стали (ПУ 31×31×0,4), которые крепят к ГВЛ с помощью специального приспособления, указанного в перечне инструментов. После крепления уголки шпаклюют и после высыхания шлифуют.

По окончании всех шпаклевочных работ поверхность облицовок обрабатывают с помощью кисти, щетки или валика грунтовкой Тифенгрунд. Это необходимо сделать с целью предотвращения образования трещин в швах из-за возможного изменения влажностного режима в помещении (особенно весной, осенью или при проведении отделочных работ мокрым способом).

3. ПОТРЕБНОСТЬ В ИНВЕНТАРЕ И МАТЕРИАЛАХ

Перечень потребного инвентаря, приспособлений и инструмента - см. на стр. 144.

Таблица 3.1

Нормативные показатели расхода материалов на устройство 1 м2
облицовки С 666

Наименование материалов

Ед. изм.

С 666 (6×2,7 м)

с оконным проемом

с дверным проемом

1

2

3

4

Каркас и крепежные изделия

Профиль направляющий ПН 75/40, ТУ 1121-004-04001508-2003

м

0,88

0,86

Профиль стоечный ПС 75/50, ТУ 1121-004-04001508-2003

м

2,25

2,34

Профиль угловой ПУ 31/31, ТУ 1121-004-04001508-2003

м

0,46

-

Лента уплотнительная типа Дихтунгсбанд сеч. 70×3,2 мм

м

1,16

1,17

Дюбель типа К 6/35

шт.

1,53

1,49

Брусок деревянный, размер 75×50×2690 мм

м

-

0,37

Обшивка

Лист гипсоволокнистый ГВЛ 10 мм

м2

2,12

2,25

Винт самонарезающий с острым концом и зенкующей головкой, ГОСТ 11652-80*, длиной, мм:

30

шт.

7,35

7,90

45

шт.

18,55

18,44

Клей Перлфикс

кг

1,19

1,37

Заделка швов

Шпаклевка Фугенфюллер ГВ, ТУ 5745-011-04001508-97

кг

0,96

0,84

Лента армирующая

м

1,53

1,55

Лента разделительная 50 мм

м

0,82

0,8

Герметик акриловый (туба - 310 мм)

шт.

0,07

-

Грунтовка Тифенгрунд

кг

0,12

0,12

4. НОРМАТИВНЫЕ И ТЕХНИКО-ЭКОНОМИЧЕСКИЕ ПОКАЗАТЕЛИ
(ИЗМЕРИТЕЛЬ КОНЕЧНОЙ ПРОДУКЦИИ - 1 м2)


Таблица 4.1

Затраты труда на устройство облицовки С 666

№ п.п.

Наименование технологических процессов

Единица измерения

Объем работ

Обоснование

Норма времени

Затраты труда

рабочих, чел.-ч

машиниста, чел.-ч (работа машин, маш.-ч)

рабочих, чел.-ч

машиниста, чел.-ч (работа машин, маш.-ч)

1

Устройство каркаса

м2

1

Расчет ОАО «Тулаоргтехстрой» методом технического нормирования

0,3

-

0,3

-

2

Обшивка каркаса

м2

1

0,34

-

0,34

-

3

Заделка швов, обработка поверхности

м2

 

0,25

-

0,25

-

4

Подача материалов на этажи подъемником грузоподъемностью до 1 т при высоте подъема до 8 м (добавлять на каждые следующие 6 м)

100 т

0,00028

Е1-16

36

9

0,010

0,0025

5

Перевозка материалов по этажу ручными тележками на расстояние до 30 м

1 т

0,028

Е1-21

1,1

-

0,031

-

 

Итого:

 

 

 

 

 

0,931

0,0025

Затраты труда на устройство облицовок с проемами (без учета прочих работ)

С оконным проемом

0,97 чел.-ч

С дверным проемом

0,92 чел.-ч

Таблица 4.2

График производства работ

№ п.п.

Наименование технологических процессов

Единица измерения

Объем работ

Затраты труда

Принятый состав звена

Продолжительность процесса, ч

рабочих, чел.-ч

машиниста, чел.-ч (работа машин, маш.-ч)

1

Устройство каркаса

м2

1

0,3

 

Монтажники конструкций 4-го и 3-го разрядов

0,15

2

Обшивка каркаса

м2

1

0,34

 

0,17

3

Обработка поверхности, заделка швов

м2

1

0,25

 

0,125

4

Прочие работы

м2

1

0,041

0,0025

0,0205

 

Итого:

 

 

0,931

 

 

0,465


Рисунок 4.1 - График движения рабочей силы

Таблица 4.3

Технико-экономические показатели

№ п.п.

Наименование

Единица измерения

Количество

1

Продолжительность работ

ч

0,465

2

Трудоемкость на 1 м2:

чел.-ч

 

по нормам

 

0,89

 

по графику (с учетом прочих работ)

 

0,931

3

Максимальная численность рабочих

чел.

2

4

Выработка на 1 чел.-ч

м2

2,15

ТИПОВАЯ ТЕХНОЛОГИЧЕСКАЯ КАРТА
НА УСТРОЙСТВО ПОДВЕСНОГО ПОТОЛКА
НА МЕТАЛЛИЧЕСКОМ КАРКАСЕ
КОМПЛЕКТНОЙ СИСТЕМЫ «КНАУФ»
С ПРИМЕНЕНИЕМ ГИПСОВОЛОКНИСТЫХ ЛИСТОВ

Потолок П 212

1. ОБЛАСТЬ ПРИМЕНЕНИЯ

1.1. Типовая технологическая карта предназначена доя разработки проектов производства работ (ППР), проектов организации строительства (ПОС), другой организационно-технологической документации, а также является информационным пособием для строительных организаций, производящих устройство подвесных потолков на металлическом каркасе с обшивкой гипсоволокнистыми листами П 212.

1.2. Подвесной потолок П 212 не является несущим конструктивным элементом здания и предназначен для повышения звукоизоляции, скрытия электропроводки и другого инженерного оборудования, декоративной отделки помещений, а также для повышения предела огнестойкости несущих конструкций перекрытия.

Подвесной потолок предназначен для применения в зданиях любого назначения с неагрессивной средой и нормальным температурно-влажностным режимом согласно СНиП 23-02-2003 «Тепловая защита зданий».

1.3. Потолок П 212 имеет конструкцию, отвечающую требованиям рабочих чертежей серии 1.045.9-2.00 «Комплектные системы КНАУФ. Подвесные потолки поэлементной сборки из гипсокартонных и гипсоволокнистых листов на деревянном и металлическом каркасах для жилых, общественных и производственных зданий», выпуск 1. Серия разработана ООО «Стройпроект-XXI» (г. Краснодар) при участии фирмы «КНАУФ».

1.4. Подвесной потолок П 212 состоит из двухуровневого металлического каркаса, подвешенного к несущим конструкциям перекрытия при помощи подвесов с зажимами; обшивки малоформатными гипсоволокнистыми листами толщиной 10 мм. Масса 1 м2 потолка = 13 кг.

1.5. Каркас потолка П 212 состоит из оцинкованного металлического потолочного профиля ПП 60/27, отвечающего требованиям ТУ 1121-004-04001508-2003. Стандартная длина профиля - 2750, 3000, 4000, 4500 мм. По согласованию с заказчиком могут быть выпущены профили длиной от 500 до 6000 мм. Номинальная толщина профилей должна быть не менее 0,6 мм.

1.6. ГВЛ представляет собой экологически чистый листовой отделочный материал, изготовленный из строительного гипса марки не ниже Г-4 (ГОСТ 125-79), распушенной целлюлозной макулатуры марок МС-10 и МС-11 (ГОСТ 10700-89), содержащей различные технологические добавки. Типовой размер малоформатного ГВЛ, который применялся при разработке данной технологической карты, равен 1500×1200×10 мм.

По заказу строительных организаций могут выпускаться партии листов других типоразмеров согласно ГОСТ Р 51829-2001, которые приведены в таблице 1.1.

Таблица 1.1

Размеры ГВЛ

Длина, мм

1500; 2000; 2500; 2700; 3000

Ширина, мм

500; 1000; 1200

Толщина, мм

10; 12,5; 15; 18; 20

ГВЛ выпускают с различными формами продольных кромок: фальцевая (ФК); прямая (ПК). Данная технологическая карта предусматривает обшивку каркаса ГВЛ с фальцевой кромкой (ФК).

Масса 1 м2 (поверхностная плотность) ГВЛ - 1,05S < m < 1,2S (кг/м2), где S - толщина листа, мм. Удельная активность естественных радионуклидов не более 370 Бк/кг (ГОСТ 12.1.044-89*), т.е. ГВЛ относится к I группе.

Пожаротехнические характеристики ГВЛ соответствуют:

- горючесть - Г1 (ГОСТ 30244-94);

- воспламеняемость - В1 (ГОСТ 30402-96);

- дымообразующая способность - Д1 (ГОСТ 12.1.044-89);

- токсичность - Т1 (ГОСТ 12.1.044-89).

Отпускная влажность листов не должна превышать 1,5 %, плотность - не более 1250 кг/м3.

1.7. Для крепления каркаса к несущим конструкциям перекрытия используют регулируемые подвесы, состоящие из тяги подвеса и подвеса с зажимом. Крепление ГВЛ к каркасу осуществляют самонарезающими винтами с зенкующими головками.

1.8. Монтаж потолков ведут в период отделочных работ по окончании «мокрых» процессов, способных существенно повысить влажность воздуха внутри помещения, до устройства чистого пола.

В холодное время года в помещениях, где производится устройство подвесного потолка П 212, температура воздуха не должна быть ниже +10 °С. Температурно-влажностный режим помещения должен соответствовать требованиям СНиП 23-02-2003 «Тепловая защита зданий».

1.9. Типовая технологическая карта разработана на измеритель конечной продукции - 1 м2 потолка.

Привязка типовой технологической карты к конкретному объекту и условиям строительства состоит в уточнении объемов, потребности в материальных ресурсах и схем организации строительного процесса, соответствующих рабочим чертежам.

2. ТЕХНОЛОГИЯ И ОРГАНИЗАЦИЯ ВЫПОЛНЕНИЯ РАБОТ

2.1. К устройству подвесного потолка П 212 рекомендуется приступать только после:

- наличия утвержденной проектной документации (рабочих чертежей);

- наличия проекта производства работ, который должен предусматривать максимально комплексную механизацию работ с наиболее полным использованием специализированного инструмента и приспособлений, способствующих повышению производительности труда, сокращению сроков устройства подвесных потолков, уменьшающих трудозатраты и создающих наиболее безопасные условия труда;

- производства организационно-технологической подготовки, которая включает в себя подготовку необходимой оснастки, средств подмащивания и доставки ГВЛ в зону производства работ (см. рисунок 28).

2.2. До начала монтажа подвесного потолка необходимо закончить все общестроительные, а также строительно-монтажные работы, которые могут вызвать повышение влажности ГВЛ. Произвести уборку строительного мусора. Перекрытия для монтажа подвесного потолка П 212 должны быть приняты по акту, за подписью ответственных представителей строительной организации.

2.3. Работы по монтажу подвесного потолка П 212 выполняют под руководством ИТР. Рабочие, выполняющие монтажные работы, должны пройти техническое обучение в учебных центрах «КНАУФ» или других специализированных учебных заведениях и иметь удостоверение на производство работ.

2.4. Устройство подвесного потолка производят поточно-расчлененным методом, по захваткам, со специализацией звеньев бригады на выполнение однотипных работ и оснащенных соответствующим набором инструментов, инвентаря и средств подмащивания. Каждое звено состоит из двух человек: монтажник конструкций 4-го разряда, монтажник конструкций 3-го разряда.

2.5. Доставку на объект ГВЛ, упакованных в полиэтиленовую пленку, следует производить централизованно автотранспортом. Размер упаковки ГВЛ 1650×1250×900 мм. По согласованию с потребителем допускается транспортировать листы в непакетированном виде (без обвязки или упаковки в пленку). Масса пакета не должна быть более 3000 кг.

ГВЛ следует хранить в помещениях с сухим и нормальным влажностным режимом, раздельно по видам и размерам, с соблюдением техники безопасности и сохранности продукции. Общая высота складируемого штабеля с ГВЛ не должна превышать 3,5 м (см. рисунок 2). Расстояние между штабелями складирования не должно быть менее 1 м.

2.6. Доставку на объект металлических профилей каркаса потолков допускается производить автотранспортом при условии их защиты от механических воздействий. Хранить профили следует на закрытых приобъектных складах в кондукторе пакетами по типам.

2.7. При производстве погрузочно-разгрузочных работ следует избегать ударов. Укладку пакетов с профилями на транспортные средства следует осуществлять погрузчиками. Вышеуказанные работы должны производиться в соответствии с требованиями ГОСТ 12.3.009-76.

2.8. Подъем материалов на этажи рекомендовано производить с помощью машин и механизмов, указанных в сборнике ЕНиР-1 «Внутрипостроечные транспортные работы».

2.9. Малоформатные ГВЛ транспортируют к месту производства работ на этаже ручными тележками. При переносе ГВЛ вручную - с помощью специальных приспособлений.

2.10. Устройство подвесного потолка П 212 предусмотрено производить в следующем порядке:

- разметка проектного положения подвесного потолка (см. рисунок 29);

- установка элементов металлического 2-уровневого каркаса;

- обшивка каркаса подвесного потолка малоформатными ГВЛ;

- заделка стыков между ГВЛ и углублений от винтов;

- подготовка поверхности подвесного потолка под чистовую отделку.

2.10.1. Разметку проектного положения элементов каркаса подвесного потолка П 212 производят в строгом соответствии с проектным решением и согласно рабочим чертежам. Разметка установки элементов каркаса подвесного потолка включает:

- разметку на перекрытиях помещения точек закрепления тяг подвесов и осей основных профилей;

- выноску в углах помещения отметок уровня стенок несущих профилей, разметку уровня по периметру помещения.

Разметку производят с помощью складного метра, рулетки, метростата и шнуроотбойного устройства. Разметку больших помещений производят с помощью лазерного и оптического нивелира.

Вначале на перекрытиях помещения с помощью нивелира и шнуроотбойного приспособления отбивают осевые линии строго по центру помещения (вдоль и поперек). Затем от этих линий производят разметку основных профилей (см. рисунок 29). Шаг основных и несущих профилей указан на рисунке 30. Расстояние от стен до ближайших к стенам помещения основных профилей должно быть не более 100 мм.

После этого необходимо произвести разметку точек закрепления тяг подвесов. Шаг точек установки тяг указан на рисунке 30. Первые тяги от стены устанавливают на расстоянии 1/3 шага тяг.

Рекомендуется предварительно сделать два варианта разметки осей основных профилей и выбрать вариант с наименьшим расходом профилей и ГВЛ.

После разметки элементов каркаса подвесного потолка на перекрытии по всему периметру помещения на стенах с помощью метростата и шнуроотбойного приспособления проводят горизонтальную линию, которая должна совпадать с проектным уровнем стенок несущих профилей.

2.10.2. Установка элементов металлического двухуровневого каркаса подвесного потолка (см. рисунок 30).

Каркас потолка П 212 состоит из потолочного профиля ПП 60/27, имеющего С-образную форму. При монтаже элементов каркаса используют подвесы с зажимами, тяги подвеса, анкерные металлические дюбели с гвоздями, самонарезающие винты длиной 9 мм. Допускается удлинение профиля с помощью дополнительных профилей ПП 60/27 и удлинителя.

Монтаж элементов каркаса потолка П 212 производят в следующем порядке:

- установка и проектное закрепление с помощью металлических анкерных дюбелей с гвоздями к перекрытиям помещения тяг подвесов с проектным шагом (см. рисунок 30), первые тяги устанавливают на расстоянии ⅓ шага тяг;

- установка и закрепление на тяги подвесов с зажимами;

- монтаж основных металлических профилей к ранее смонтированным подвесам с проектным шагом (см. рисунок 30), первый профиль от стены - на расстоянии не более 100 мм;

- выравнивание с помощью регулировки подвесов в одной плоскости по строительному уровню;

- установка двухуровневых соединителей с проектным шагом (см. рисунок 30) на смонтированный основной профиль;

- навеска несущих профилей на двухуровневые соединители.

Контроль за точностью установки собранной конструкции каркаса П 212 осуществляют с помощью нивелира или гидроуровня.

На смонтированный в проектное положение каркас оформляют акт приемки на скрытые работы за подписью главного инженера строительной организации.

2.10.3. Обшивка каркаса подвесного потолка малоформатными ГВЛ (см. рисунок 32).

До начала производства работ по обшивке каркаса потолка на стены по линии их контакта с ГВЛ наклеивают разделительную ленту.

Установку ГВЛ в проектное положение производят с помощью телескопического подъемника, а при его отсутствии - вручную с использованием инвентарных подпорок.

ГВЛ располагают параллельно основным профилям так, чтобы поперечные стыки находились на несущих профилях.

Перед установкой на торцах каждого ГВЛ делают с помощью отборного рубанка фальц шириной 30 мм и глубиной 2 мм (см. рисунок 5).

Смещение стыков смежных листов должно составлять не менее 400 мм.

Крепление ГВЛ к каркасу осуществляют самонарезающими винтами длиной 30 мм с зенкующей головкой с шагом 150 мм для ГВЛ толщиной 10 мм (см. рисунок 32).

Крепежные винты должны входить в лист под прямым углом и проникать в металлический профиль каркаса на глубину не менее 10 мм.

Головки винтов должны быть утоплены в поверхность гипсоволокнистого листа на глубину, позволяющую их зашпаклевать.

Изогнутые, неправильно завернутые винты удаляют и заменяют на новые, размещая их на расстоянии 50 мм от прежних.

2.10.4. Подготовка поверхности подвесного потолка под чистовую отделку.

Предварительно кромки ГВЛ обрабатывают грунтовкой Тифенгрунд.

Стыки, образованные фальцевой кромкой, заделывают шпаклевочной смесью Фугенфюллер ГВ и армирующей лентой.

На армирующую ленту, уложенную путем вдавливания в первый слой шпаклевки после его высыхания, наносят второй слой.

Поперечные стыки ГВЛ заделывают так же, как и продольные.

Углубления от винтов шпаклюют в один слой.

Стыки, образованные между стенами и ГВЛ, заделывают шпаклевкой Фугенфюллер ГВ в следующем порядке:

- равномерное заполнение стыков слоем шпаклевки;

- нанесение накрывочного слоя шпаклевки;

- срезка излишков разделительной ленты после высыхания шпаклевки.

После полного высыхания шпаклевки поверхность шлифуют шлифовальными приспособлениями до получения единой плоскости и обрабатывают грунтовкой Тифенгрунд.

3. ПОТРЕБНОСТЬ В ИНВЕНТАРЕ И МАТЕРИАЛАХ

Перечень потребного инвентаря, приспособлений и инструмента - см. на стр. 144.

Таблица 3.1

Нормативные показатели расхода материалов на устройство 1 м2
потолка П 212

Наименование материалов

Ед. изм.

Двухуровневый
П 212

Каркас и крепежные изделия

Профиль потолочный ПП 60/27, ТУ 1121-004-04001508-2003

м

3,96

Удлинитель профилей 60/27

шт.

0,72

Соединитель профилей двухуровневый ПП

шт.

3,29

Подвес с зажимом для профиля ПП 60/27

шт.

1,48

Тяга подвеса

шт.

1,48

Дюбель анкерный металлический с гвоздем

шт.

1,48

Винт самонарезающий с острым концом длиной 9 мм, ГОСТ 11650-80*

шт.

4,26

Обшивка

Лист гипсоволокнистый малоформатный 1500×1200×10 мм, ГОСТ Р 51829-2001

м2

1,10

Винт самонарезающий с острым концом и зенкующей головкой, ГОСТ 11652-80*, длиной 30 мм

шт.

24,67

Заделка швов

Шпаклевка Фугенфюллер ГВ, ТУ 5445-011-04001508-97

кг

0,56

Лента армирующая

м

1,23

Лента разделительная 50 мм

м

1,35

Грунтовка Тифенгрунд

кг

0,11

4. НОРМАТИВНЫЕ И ТЕХНИКО-ЭКОНОМИЧЕСКИЕ ПОКАЗАТЕЛИ
(ИЗМЕРИТЕЛЬ КОНЕЧНОЙ ПРОДУКЦИИ - 1 м2)


Таблица 4.1

Затраты труда на устройство потолка П 212

№ п.п.

Наименование технологических процессов

Единица измерения

Объем работ

Обоснование

Норма времени

Затраты труда

рабочих, чел.-ч

машиниста, чел.-ч (работа машин, маш.-ч)

рабочих, чел.-ч

машиниста, чел.-ч (работа машин, маш.-ч)

1

Устройство каркаса

м2

1

Расчет ОАО «Тулаоргтехстрой» методом технического нормирования

0,43

-

0,43

-

2

Обшивка каркаса

м2

1

0,35

-

0,35

-

3

Заделка швов, обработка поверхности

м2

1

0,22

-

0,22

-

4

Подача материалов на этажи подъемником грузоподъемностью до 1 т при высоте подъема до 8 м

100 т

0,00013

Е1-16

36

9

0,0047

0,0012

5

Перевозка материалов по этажу ручными тележками на расстояние до 30 м

1 т

0,013

Е1-21

1,1

-

0,0143

 

 

Итого:

 

 

 

 

 

1,019

0,0012

Таблица 4.2

График производства работ

№ п.п.

Наименование технологических процессов

Единица измерения

Объем работ

Затраты труда

Принятый состав звена

Продолжительность процесса, ч

рабочих, чел.-ч

машиниста, чел.-ч (работа машин, маш.-ч)

1

Устройство каркаса

м2

1

0,43

-

Монтажники конструкций 4-го и 3-го разрядов, 2 чел.

0,215

2

Обшивка каркаса

м2

1

0,35

-

0,175

3

Обработка поверхности, заделка швов

м2

1

0,22

-

0,11

4

Прочие работы

м2

1

0,019

0,0012

0,0095

 

Итого:

 

 

1,019

 

 

0,51


Рисунок 4.1 - График движения рабочей силы

Таблица 4.3

Технико-экономические показатели

№ п.п.

Наименование

Единица измерения

Количество

1

Продолжительность работ

ч

0,51

2

Трудоемкость на 1 м2:

чел.-ч

 

по нормам

 

1,00

 

по графику (с учетом прочих работ)

 

1,019

3

Максимальная численность рабочих

чел.

2

4

Выработка на 1 чел.-ч

м2

1,96

ТИПОВАЯ ТЕХНОЛОГИЧЕСКАЯ КАРТА
НА УСТРОЙСТВО ПОДВЕСНОГО ПОТОЛКА
НА МЕТАЛЛИЧЕСКОМ КАРКАСЕ
КОМПЛЕКТНОЙ СИСТЕМЫ «КНАУФ»
С ПРИМЕНЕНИЕМ ГИПСОВОЛОКНИСТЫХ ЛИСТОВ

Потолок П 213

1. ОБЛАСТЬ ПРИМЕНЕНИЯ

1.1. Типовая технологическая карта предназначена для разработки проектов производства работ (ППР), проектов организации строительства (ПОС), другой организационно-технологической документации, а также является информационным пособием для строительных организаций, производящих устройство подвесных потолков на металлическом каркасе с обшивкой гипсоволокнистыми листами П 213.

1.2. Подвесной потолок П 213 не является несущим конструктивным элементом здания и предназначен для повышения звукоизоляции, скрытия электропроводки и другого инженерного оборудования, декоративной отделки помещений, а также для повышения предела огнестойкости несущих конструкций перекрытия.

Подвесной потолок предназначен для применения в зданиях любого назначения с неагрессивной средой и нормальным температурно-влажностным режимом согласно СНиП 23-02-2003 «Тепловая защита зданий».

1.3. Потолок П 213 имеет конструкцию, отвечающую требованиям рабочих чертежей серии 1.045.9-2.00 «Комплектные системы КНАУФ. Подвесные потолки поэлементной сборки из гипсокартонных и гипсоволокнистых листов на деревянном и металлическом каркасах для жилых, общественных и производственных зданий», выпуск 1. Серия разработана ООО «Стройпроект-XXI» (г. Краснодар) при участии фирмы «КНАУФ».

1.4. Подвесной потолок П 213 состоит из одноуровневого металлического каркаса, подвешенного к несущим конструкциям перекрытия при помощи подвесов с зажимами, и потолочного направляющего профиля, закрепленного к стенам по периметру помещения; обшивки малоформатными гипсоволокнистыми листами толщиной 10 мм. Масса 1 м2 потолка - 13 кг.

1.5. Каркас потолка П 213 состоит из оцинкованных металлических профилей ПП 60/27 и ПН 28/27, отвечающих требованиям ТУ 1121-004-04001508-2003. Стандартная длина профилей составляет: 2750, 3000, 4000, 4500. По согласованию с заказчиком могут быть выпущены профили длиной от 500 до 6000 мм.

1.6. ГВЛ представляет собой экологически чистый листовой отделочный материал, изготовленный из строительного гипса марки не ниже Г-4 (ГОСТ 125-79), распушенной целлюлозной макулатуры марок МС-10 и МС-11 (ГОСТ 10700-84), содержащей различные технологические добавки. Типовой размер малоформатного ГВЛ, который применялся при разработке данной технологической карты, равен 1500×1200×10 мм.

По заказу строительных организаций могут выпускаться партии листов других типоразмеров согласно ГОСТ Р 51829-2001, которые приведены в таблице 1.1.

Таблица 1.1

Размеры ГВЛ

Длина, мм

1500; 2000; 2500; 2700; 3000

Ширина, мм

500; 1000; 1200

Толщина, мм

10; 12,5; 15; 18; 20

ГВЛ выпускают с различными формами продольных кромок: фальцевая (ФК); прямая (ПК). Данная технологическая карта предусматривает обшивку каркаса ГВЛ с фальцевой кромкой (ФК).

Масса 1 м2 (поверхностная плотность) ГВЛ - 1,05S < m < 1,2S (кг/м2), где S - толщина листа, мм. Удельная активность естественных радионуклидов не более 370 Бк/кг (ГОСТ 12.1.044-89*), т.е. ГВЛ относится к I группе.

Пожаротехнические характеристики ГВЛ соответствуют:

- горючесть - Г1 (ГОСТ 30244-94);

- воспламеняемость - В1 (ГОСТ 30402-96);

- дымообразующая способность - Д1 (ГОСТ 12.1.044-89);

- токсичность - Т1 (ГОСТ 12.1.044-89).

Отпускная влажность листов не должна превышать 1,5 %; плотность - не более 1250 кг/м3.

1.7. Для крепления каркаса к несущим конструкциям перекрытия используют регулируемые подвесы, состоящие из тяги подвеса и подвеса с зажимом. Крепление ГВЛ к каркасу осуществляют самонарезающими винтами с зенкующими головками.

1.8. Монтаж потолков ведут в период отделочных работ по окончании «мокрых» процессов, способных существенно повысить влажность воздуха внутри помещения, до устройства чистого пола.

В холодное время года в помещениях, где производится устройство подвесного потолка П 213, температура воздуха не должна быть ниже +10 °С. Температурно-влажностный режим помещения должен соответствовать требованиям СНиП 23-02-2003 «Тепловая защита зданий».

1.9. Типовая технологическая карта разработана на измеритель конечной продукции - 1 м2 потолка.

Привязка типовой технологической карты к конкретному объекту и условиям строительства состоит в уточнении объемов, потребности в материальных ресурсах и схем организации строительного процесса, соответствующего рабочим чертежам.

2. ТЕХНОЛОГИЯ И ОРГАНИЗАЦИЯ ВЫПОЛНЕНИЯ РАБОТ

2.1. К устройству подвесного потолка П 213 рекомендуется приступать только после:

- наличия утвержденной проектной документации (рабочих чертежей);

- наличия проекта производства работ, который должен предусматривать максимально комплексную механизацию работ с наиболее полным использованием специализированного инструмента и приспособлений, способствующих повышению производительности труда, сокращению сроков устройства подвесных потолков, уменьшающих трудозатраты и создающих наиболее безопасные условия труда;

- производства организационно-технологической подготовки, которая включает в себя подготовку необходимой оснастки, средств подмащивания и доставки ГВЛ в зону производства работ (см. рисунок 28).

2.2. До начала монтажа подвесного потолка необходимо закончить все общестроительные, а также строительно-монтажные работы, которые могут вызвать повышение влажности ГВЛ. Произвести уборку строительного мусора. Перекрытия для монтажа подвесного потолка П 213 должны быть приняты По акту, за подписью ответственных представителей строительной организации.

2.3. Работы по монтажу подвесного потолка П 213 выполняют под руководством ИТР. Рабочие, выполняющие монтажные работы, должны пройти техническое обучение в учебных центрах «КНАУФ» или других специализированных учебных заведениях и иметь удостоверение на производство работ.

2.4. Устройство подвесного потолка производят поточно-расчлененным методом, по захваткам, со специализацией звеньев бригады на выполнение однотипных работ и оснащенных соответствующим набором инструментов, инвентаря и средств подмащивания. Каждое звено состоит из двух человек: монтажник конструкций 4-го разряда; монтажник конструкций 3-го разряда.

2.5. Доставку на объект ГВЛ, упакованных в полиэтиленовую пленку, следует производить централизованно автотранспортом. Размер упаковки ГВЛ 1650×1250×900 мм. По согласованию с потребителем допускается транспортировать листы в непакетированном виде (без обвязки или упаковки в пленку). Масса пакета не должна быть более 3000 кг.

ГВЛ следует хранить в помещениях с сухим и нормальным влажностным режимом, раздельно по видам и размерам, с соблюдением техники безопасности и сохранности продукции. Общая высота складируемого штабеля с ГВЛ не должна превышать 3,5 м (см. рисунок 2). Расстояние между штабелями складирования не должно быть менее 1 м.

2.6. Доставку на объект металлических профилей каркаса потолков допускается производить автотранспортом при условии их защиты от механических воздействий. Хранение профилей на закрытых приобъектных складах должно производиться в кондукторе пакетами по типам.

2.7. При производстве погрузочно-разгрузочных работ следует избегать ударов. Укладку пакетов с профилями на транспортные средства следует осуществлять погрузчиками. Вышеуказанные работы должны производиться в соответствии с требованиями ГОСТ 12.3.009-76.

2.8. Подъем материалов на этажи рекомендовано производить с помощью машин и механизмов, указанных в сборнике ЕНиР-1 «Внутрипостроечные транспортные работы».

2.9. Малоформатные ГВЛ транспортируют к месту производства работ на этаже ручными тележками. При переносе ГВЛ вручную - с помощью специальных приспособлений.

2.10. Монтаж подвесного потолка П 213 предусмотрено производить в следующем порядке:

- разметка проектного положения подвесного потолка (см. рисунок 29);

- установка элементов металлического одноуровневого каркаса;

- обшивка каркаса подвесного потолка ГВЛ;

- заделка стыков между ГВЛ и углублений от винтов;

- подготовка поверхности подвесного потолка под чистовую отделку.

2.10.1. Разметка проектного положения подвесного потолка П 213 (см. рисунок 29).

Разметку проектного положения элементов каркаса подвесного потолка П 213 производят в строгом соответствии с проектным решением и согласно рабочим чертежам. Разметка установки элементов каркаса подвесного потолка включает:

- разметку на перекрытиях помещения точек закрепления тяг подвесов и осей основных профилей;

- выноску в углах помещения отметок уровня направляющих профилей;

- разметку на стенах по периметру помещения осей направляющего профиля.

Разметку производят с помощью складного метра, рулетки, метростата и шнуроотбойного устройства. Разметку больших помещений производят с помощью лазерного и оптического нивелира.

Вначале на перекрытиях помещения с помощью нивелира и шнуроотбойного приспособления отбивают осевые линии строго по центру помещения (вдоль и поперек). Затем от этих линий производят разметку осей основных и несущих профилей. Шаг основных и несущих профилей указан на рисунке 31.

После этого необходимо произвести разметку точек закрепления тяг подвесов. Шаг точек установки тяг указан на рисунке 31.

Рекомендуется предварительно сделать два варианта разметки осей основных профилей и выбрать вариант с наименьшим расходом профилей и ГВЛ.

После разметки элементов каркаса подвесного потолка на перекрытии по всему периметру помещения на стенах с помощью метростата и шнуроотбойного приспособления проводят горизонтальную линию, которая должна совпадать с проектным уровнем несущих профилей.

2.10.2. Установка элементов металлического одноуровневого каркаса подвесного потолка (см. рисунок 31).

Каркас потолка П 213 состоит из потолочного профиля ПП 60/27 и направляющего профиля ПН 28/27. При монтаже элементов каркаса используют подвесы с зажимами, тяги подвеса, анкерные металлические дюбели с гвоздями, самонарезающие винты длиной 9 мм.

Допускается удлинение профиля ПП 60/27 с помощью удлинителя и дополнительных профилей. В стенке профиля ПН имеются отверстия диаметром 8 мм, которые расположены с шагом около 250 мм и предназначены для установки дюбелей. При необходимости дополнительные отверстия в стенке профиля просверливают дрелью.

Монтаж элементов каркаса потолка П 213 производят в следующем порядке (см. рисунок 31):

- установка и закрепление с проектным шагом направляющих профилей с предварительно наклеенной уплотнительной лентой «Дихтунгсбанд»;

- установка и проектное закрепление с помощью металлических анкерных дюбелей с гвоздями к перекрытиям помещения тяг подвесов с шагом 1000 мм;

- установка и закрепление на тяги подвесов с зажимами;

- монтаж основных металлических профилей к ранее смонтированным подвесам с проектным шагом 1200 мм, первый профиль от стены - на расстоянии не более 1170 мм;

- выравнивание с помощью регулировки подвесов в одной плоскости по строительному уровню;

- установка одноуровневых соединителей с проектным шагом 500 мм на смонтированный основной профиль;

- навеска предварительно нарезанных по заданным размерам несущих профилей (ПП) на одноуровневые соединители.

Контроль за точностью установки собранной конструкции каркаса П 213 осуществляют с помощью нивелира или гидроуровня.

На смонтированный в проектное положение каркас оформляют акт приемки на скрытые работы за подписью главного инженера строительной организации.

2.10.3. Обшивка каркаса подвесного потолка малоформатными ГВЛ (см. рисунок 32).

До начала производства работ по обшивке каркаса потолка на стены по линии их контакта с ГВЛ наклеивают разделительную ленту.

Установку ГВЛ в проектное положение производят с помощью телескопического подъемника, а при его отсутствии - вручную с использованием инвентарных подпорок.

ГВЛ располагают параллельно основным профилям так, чтобы поперечные стыки находились на несущих профилях.

Перед установкой на торцах каждого ГВЛ делают с помощью отборного рубанка фальц шириной 30 мм и глубиной 2 мм (см. рисунок 5).

Смещение стыков смежных листов должно составлять не менее 400 мм.

Крепление ГВЛ к каркасу осуществляют самонарезающими винтами длиной 30 мм с зенкующей головкой с шагом 150 мм для ГВЛ толщиной 10 мм (см. рисунок 32).

Крепежные винты должны входить в лист под прямым углом и проникать в металлический профиль каркаса на глубину не менее 10 мм.

Головки винтов должны быть утоплены в поверхность гипсоволокнистого листа на глубину, позволяющую их зашпаклевать.

Изогнутые, неправильно завернутые винты удаляют и заменяют на новые, размещая их на расстоянии 50 мм от прежних.

2.10.4. Подготовка поверхности подвесного потолка под чистовую отделку.

Предварительно кромки ГВЛ обрабатывают грунтовкой Тифенгрунд.

Стыки, образованные фальцевой кромкой, заделывают шпаклевочной смесью Фугенфюллер ГВ и армирующей лентой.

На армирующую ленту, уложенную путем вдавливания в первый слой шпаклевки после его высыхания, наносят второй слой.

Поперечные стыки ГВЛ заделывают так же, как и продольные.

Углубления от винтов шпаклюют в один слой.

Стыки, образованные между стенами и ГВЛ, заделывают шпаклевкой Фугенфюллер ГВ в следующем порядке:

- равномерное заполнение стыков слоем шпаклевки;

- нанесение накрывочного слоя шпаклевки;

- срезка излишков разделительной ленты после высыхания шпаклевки.

После полного высыхания шпаклевки поверхность шлифуют шлифовальными приспособлениями до получения единой плоскости и обрабатывают грунтовкой Тифенгрунд.

3. ПОТРЕБНОСТЬ В ИНВЕНТАРЕ И МАТЕРИАЛАХ

Перечень потребного инвентаря, приспособлений и инструмента - см. на стр. 144.

Таблица 3.1

Нормативные показатели расхода материалов на устройство 1 м2
потолка П 213

Наименование материалов

Ед. изм.

Одноуровневый
П 213

1

2

3

Каркас и крепежные изделия

Профиль потолочный ПП 60/27, ТУ 1121-004-04001508-2003

м

2,85

Профиль направляющий потолочный ПНП 28/27, ТУ 1121-004-04001508-2003

м

1,36

Удлинитель профилей 60/27

шт.

0,54

Соединитель профилей одноуровневый ПП

шт.

1,59

Подвес с зажимом для профиля ПП 60/27

шт.

0,67

Тяга подвеса

шт.

0,67

Дюбель анкерный металлический с гвоздем

шт.

0,67

Дюбель типа К 6/35

шт.

3,22

Винт самонарезающий с острым концом длиной 9 мм, ГОСТ 11650-80*

шт.

3,68

Лента уплотнительная типа Дихтунгсбанд, сеч. 30×3,2 мм

м

1,35

Обшивка

Лист гипсоволокнистый малоформатный 1500×1200×10 мм, ГОСТ Р 51829-2001

м2

1,11

Винт самонарезающий с острым концом и зенкующей головкой, ГОСТ 11652-80*, длиной 30 мм

шт.

31,32

Заделка швов

Шпаклевка Фугенфюллер ГВ, ТУ 5445-011-04001508-97

кг

0,56

Лента армирующая

м

1,23

Лента разделительная 50 мм

м

1,35

Грунтовка Тифенгрунд

кг

0,11

4. НОРМАТИВНЫЕ И ТЕХНИКО-ЭКОНОМИЧЕСКИЕ ПОКАЗАТЕЛИ
(ИЗМЕРИТЕЛЬ КОНЕЧНОЙ ПРОДУКЦИИ - 1 м2)


Таблица 4.1

Затраты труда на устройство потолка П 213

№ п.п.

Наименование технологических процессов

Единица измерения

Объем работ

Обоснование

Норма времени

Затраты труда

рабочих, чел.-ч

машиниста, чел.-ч (работа машин, маш.-ч)

рабочих, чел.-ч

машиниста, чел.-ч (работа машин, маш.-ч)

1

Устройство каркаса

м2

1

Расчет ОАО «Тулаоргтехстрой» методом технического нормирования

0,48

-

0,48

-

2

Обшивка каркаса

м2

1

0,35

-

0,35

-

3

Заделка швов, обработка поверхности

м2

1

0,22

-

0,22

-

4

Подача материалов на этажи подъемником грузоподъемностью до 1 т при высоте подъема до 8 м

100 т

0,00015

Е1-16

36

9

0,0054

0,00135

5

Перевозка материалов по этажу ручными тележками на расстояние до 30 м

1 т

0,015

Е1-21

1,1

-

0,0165

-

 

Итого:

 

 

 

 

 

1,072

0,00135

Таблица 4.2

График производства работ

№ п.п.

Наименование технологических процессов

Единица измерения

Объем работ

Затраты труда

Принятый состав звена

Продолжительность процесса, ч

рабочих, чел.-ч

машиниста, чел.-ч (работа машин, маш.-ч)

1

Устройство каркаса

м2

1

0,48

-

Монтажники конструкций 4-го и 3-го разрядов

0,24

2

Обшивка каркаса

м2

1

0,35

-

0,175

3

Обработка поверхности, заделка швов

м2

1

0,22

-

0,11

4

Прочие работы

м2

1

0,022

0,00165

0,011

 

Итого:

 

 

1,072

 

 

0,536

 


Рисунок 4.1 - График движения рабочей силы

Таблица 4.3

Технико-экономические показатели

№ п.п.

Наименование

Единица измерения

Количество

1

Продолжительность работ

ч

0,536

2

Трудоемкость на 1 м2:

 

по нормам

чел.-ч

1,05

 

по графику (с учетом прочих работ)

 

1,072

3

Максимальная численность рабочих

чел.

2

4

Выработка на 1 чел.-ч

м2

1,87

ТРЕБОВАНИЯ К КАЧЕСТВУ И ПРИЕМКЕ РАБОТ

При монтаже конструкций необходимо осуществлять следующие виды контроля качества:

- входной контроль качества;

- операционный контроль качества;

- приемочный контроль качества.

1. При входном контроле проверяют соответствие качества поступающих изделий и комплектующих требованиям ГОСТов и ТУ. Проверяют соответствия изделий проекту, их внешний вид, наличие дефектов. Исполнителем этого вида контроля является звеньевой, бригадир, при необходимости - мастер.

1.1. Металлические профили, применяемые для устройства каркаса конструкций, должны соответствовать требованиям ТУ 1121-004-04001508-2003. Профили должны быть прямолинейными. Местная кривизна профилей не должна превышать 2 мм на 1 м длины профиля. Предельное отклонение длины профилей не должно превышать ±3 мм. Допуск на высоту стенки профилей типа ПС - 0 - 0,5 мм, типа ПН - 0 + 0,5 мм. Предельные отклонения по толщине профилей не должны превышать допусков на толщину листовой оцинкованной стали, установленных соответствующими стандартами.

1.2. Применяемые ГВЛ для обшивки каркаса должны соответствовать требованиям ГОСТ Р 51829-2001. ГВЛ должны иметь прямоугольную форму в плане. Отклонение от прямоугольности не должно превышать значений, указанных в нижеприведенной таблице 1.

Таблица 1

Номенклатура ГВЛ

Толщина s, мм

Ширина В, мм

Длина L, мм

Предельные отклонения от номинальных размеров листов, мм

При длине L и ширине В, мм

по длине

по ширине

по толщине

10

 

1500

0 - 3

0 - 3

±0,3

L ≤ 500

12,5

500

2000

B ≤ 1200

15

1000

2500

 

18

1200

2700

0 - 5

0 - 4

±0,3

L > 2500

20

 

3000

B > 1200

На лицевой поверхности ГВЛ не должно быть загрязнений, масляных пятен, задиров, налипов. Не допускаются повреждения углов и продольных кромок.

1.3. Самонарезающие винты, применяемые для крепления ГВЛ к каркасу, должны отвечать требованиям ГОСТ 11652-80 и иметь сертификаты соответствия. Подвесы, тяги, соединители должны соответствовать ГОСТ 14918-80 и быть термически обработаны, иметь защитное покрытие по ГОСТ 9.303-84 и выдерживать статическую нагрузку не менее 15 кгс. Их поверхность должна быть чистой, без надрывов, вмятин, отслоений цинкового покрытия, следов окисления, трещин и прочих дефектов, ухудшающих эксплуатационные качества.

1.4. Применяемые изоляционные материалы должны соответствовать требованиям ГОСТ 9573-96, ГОСТ 21880-94, ГОСТ 10499-95 и ГОСТ 16381-77 и иметь гигиенические и пожарные сертификаты.

1.5. При операционном контроле (таблица 2) выявляются и устраняются дефекты, возникающие в процессе монтажа каркаса, ГВЛ, заделки стыков ГВЛ.

Проверяются:

- правильность сборки каркаса;

- надежность крепления каждого слоя ГВЛ к каркасу винтами (их головки должны быть углублены в ГВЛ так, чтобы это не затрудняло последующие шпаклевочные работы);

- зазор между смежными листами каждого слоя ГВЛ должен быть не более 1 мм;

- сопряжения конструкции из ГВЛ с другими строительными конструкциями (шпаклевочная смесь должна быть уложена без разрывов по всему контуру сопряжения на всю глубину стыка);

- установка и закрепление перфорированного углового профиля на всех внешних углах и открытых торцах конструкции из ГВЛ;

- отсутствие трещин, поврежденных мест, отбитости углов;

- отсутствие у конструкции из ГВЛ зыбкости при визуальном контроле.

3. Приемочный контроль качества смонтированной конструкции из ГВЛ должен производиться в соответствии с требованиями СНиП 3.04.01-87, предъявляемыми к качеству поверхности (таблица 3).

Акты на скрытые работы:

- акт на установку металлического каркаса конструкции;

- акт на обшивку металлического каркаса ГВЛ;

- акт на обработанную поверхность под чистовую отделку.


Таблица 2

Таблица операционного контроля качества работ

№ п.п.

Наименование технологических процессов, подлежащих контролю

Предмет контроля

Способ контроля и инструмент

Время проведения контроля

Ответственный за контроль

Технические характеристики оценки качества

1

2

3

4

5

6

7

1

Подготовительные предмонтажные работы

Состояние поверхности базового основания под конструкцию

Визуальный

До начала разметки положения конструкции

Звеньевой, бригадир

Поверхность основания должна соответствовать требованиям рабочего проекта

Складирование

Визуальный

 

 

Штабель листов ГВЛ не более 50 шт. на инвентарном поддоне. Элементы каркаса в кондукторе или на трех деревянных подкладках

Перегородки и облицовки

2

Разметка проектного положения конструкции

Правильность выполнения разметочных работ

Инструментальный: лазерный или оптический нивелир, метростат, складной метр или отвес, шнуроотбойное устройство, мел, карандаш

До начала производства монтажных работ

Бригадир или мастер

Точность разметки и соответствие проектному положению конструкции, разбивочных рисок для монтажа элементов каркаса (ПН, ПС)

3

Установка направляющих профилей (ПН) (перегородки и облицовки)

Точность и правильность установки в соответствии с проектом. Надежность узлов крепления

Инструментальный с помощью складного метра, уровня отвеса, измерительной линейки или метростата

В процессе установки направляющих профилей

Звеньевой

1. Наличие уплотняющей ленты на стенке направляющего профиля.

2. Точность установки (ПН) по разметке, их крепление дюбелями с шагом не более 1 м и не менее 3 шт. на 1 ПН.

3. Допустимые отклонения между дюбелями крепления к несущим конструкциям должны быть не более ±5 мм

4

Установка стоечных профилей (ПС) (перегородки и облицовки)

Точность и правильность установки. Надежность узлов крепления

То же

В процессе установки стоек

Звеньевой

Точность шага стоек каркаса (рядовых - согласно проектному шагу, первой - минус 25 мм);

наличие на стойках, примыкающих к основным конструкциям, наклеенной уплотнительной ленты;

крепление стоек (ПС) к направляющим профилям (ПН) с помощью просекателя не менее чем в двух точках с каждой стороны ПН; наличие перемычек и дополнительных стоек над дверным проемом, наличие в стойке дверного проема усиления в виде деревянного бруса или дополнительного профиля со стороны навески дверного полотна

5

Установка ГВЛ (перегородки и облицовки)

Правильность установки ГВЛ

Визуальный и инструментальный: складной метр, угольник

В процессе обшивки каркаса

Звеньевой

Наличие зазора между ГВЛ и верхним и нижним перекрытием (10 мм), крепление листов на стойках каркаса с предусмотренным шагом и проверка стыковочных швов;

соблюдение расстояния от края листа до самонарезающего винта (10 мм). Шаг винтов 750 мм для первого слоя, 500 мм - для второго слоя, 250 мм - для третьего слоя (трехслойная обшивка каркаса); 750 мм и 250 мм (двухслойная обшивка каркаса); 250 мм при однослойной обшивке.

Заглубление головок винтов в ГВЛ на глубину, позволяющую провести шпаклевочные работы; наличие перепадов между смежными листами (не должно превышать 0,5 мм); наличие разделительной ленты в местах примыкания ГВЛ к основным конструкциям здания

6

Прокладка проектных коммуникаций (облицовки и перегородки)

Соответствие проекту

Визуальный

До установки изоляционного слоя

Мастер

Надежность крепления и соответствие проектному положению

7

Установка листов оцинкованной стали (перегородка С 367)

Правильность установки

Визуальный и инструментальный: складной метр

В процессе облицовки

Рабочий

Наличие нахлеста на ранее установленные листы оцинкованной стали не менее 10 см. Крепление каждого листа не менее чем в четырех точках

8

Устройство изоляции (перегородки)

Правильность раскроя, установки и закрепления изоляционного материала

Визуальный и инструментальный с помощью складного метра

После установки ГВЛ с одной стороны каркаса и выполнения электромонтажных работ

Звеньевой

Соответствие проекту изоляционного материала;

правильность его закрепления;

отсутствие зазора в стыке между изоляционными плитами и элементами каркаса (не более 2 мм)

9

Заделка швов ГВЛ (перегородки и облицовки)

Соблюдение технологии выполнения работ по заделке швов

Визуальный и инструментальный: линейка

В процессе заделки мест примыканий

Бригадир, рабочий

Соответствие проекту применяемых материалов; нанесение грунтовки, шпаклевки.

Шпаклевка углублений от винтов.

Для последнего слоя ГВЛ обшивки необходимы: установка армирующей ленты; наличие накрывочного выравнивающего слоя шпаклевки

Потолки

10

Разметка проектного положения мест установки элементов каркаса

Правильность выполнения разметочных работ

Инструментальный: лазерный нивелир, шнуроотбойное устройство, мел, карандаш

До начала производства монтажных работ

Бригадир или мастер

Точность разметки осей основных профилей, вынос отметок низа несущих элементов разбивка мест расположения тяг и подвесов

11

Монтаж каркаса потолка

Точность и правильность установки в соответствии с проектом. Надежность узлов крепления

Инструментальный с помощью складного метра, уровня отвеса, измерительной линейки, нивелира

В процессе монтажа

Звеньевой

Крепление тяг и подвесов с зажимами к базовому перекрытию;

закрепление основных профилей к подвесам с зажимами;

установка двухуровневых соединителей несущих профилей;

точность шага основных и несущих профилей

12

Обшивка каркаса потолка ГВЛ

Правильность установки ГВЛ

Визуальный и инструментальный: складной метр, угольник

В процессе обшивки каркаса

Звеньевой

Наличие зазоров между стенами и ГВЛ не более 10 мм;

заглубление головок винтов в ГВЛ на глубину не менее 1 мм;

наличие разделительной ленты в местах примыкания ГВЛ к стенам помещения. Шаг установки винтов 150 мм

13

Заделка стыков

Соблюдение технологии выполнения работ по заделке стыков

Визуальный и инструментальный

В процессе заделки

Бригадир

Соответствие проекту применяемых материалов; нанесение шпаклевки, установка армирующей ленты.

Наличие накрывочного выравнивающего слоя шпаклевки.

Шпаклевание углублений от винтов.

Шлифование зашпаклеванных поверхностей; нанесение грунтовки


Таблица 3

Контроль качества поверхности конструкции из ГВЛ

№ п.п.

Технические требования

Предельные отклонения

Контроль

1

Поверхность из ГВЛ должна иметь отклонения и неровности, не превышающие показатели для высококачественной штукатурки:

 

Измерительный, не менее пяти измерений на 50 - 70 м2 поверхности покрытия или на площади отдельных участков, выявленных сплошным визуальным осмотром, акт приемки

отклонения по вертикали (горизонтали) 1 мм на 1 м

Но не более 5 мм на всю высоту (длину, ширину) помещения

неровности поверхностей плавного очертания на 4 м2 не более двух глубиной (высотой) до 2 мм

 

отклонения дверных и оконных откосов, пилястр и т.п. от вертикали и горизонтали 1 мм на 1 м

Но не более 3 мм на весь элемент

2

Покрытия из ГВЛ не должны быть зыбкими, при легком простукивании деревянным молотком в зашпаклеванных стыках между ГВЛ не должны появляться трещины

 

 

3

Заделанные стыки между ГВЛ не должны быть заметны, а смежные листы должны находиться в единой плоскости, на поверхности не должно быть раковин, изломов, трещин, наплывов шпаклевочного раствора

 

 

ТЕХНИКА БЕЗОПАСНОСТИ И ОХРАНА ТРУДА, ЭКОЛОГИЧЕСКАЯ И ПОЖАРНАЯ БЕЗОПАСНОСТЬ

Монтаж конструкций из ГВЛ следует производить с соблюдением требований СНиП 12-03-2001 (разделы 1-7), а также СНиП 12-04-2002.

К монтажу допускаются лица не моложе 18 лет, прошедшие инструктаж по технике безопасности, производственной санитарии, обученные приемам работы в учебных центрах «КНАУФ» или других учебных заведениях и имеющие удостоверение на право производства работ.

Рабочие должны быть обеспечены спецодеждой и средствами индивидуальной защиты.

Используемые при производстве работ инструменты, оснастка и приспособления должны быть инвентарными в соответствии с нормокомплектом и отвечать безопасным условиям их эксплуатации.

Для подмащивания при производстве работ следует применять сборно-разборные подмости, отвечающие требованиям ГОСТ 24258-88.

Перед началом работы рабочие места и проходы к ним необходимо очистить от строительного мусора и посторонних предметов.

Помещения для подготовки работ (разметка, раскрой ГВЛ и т.д.) должны быть светлыми и проветриваемыми.

Производство работ в отапливаемых в холодное время года зданиях с помощью передвижных тепловых агрегатов разрешается только после тщательного проветривания (не реже одного раза в смену).

Места, опасные для прохода людей, необходимо ограждать. В этих местах должны вывешиваться предупредительные плакаты.

Работу с электроинструментами следует осуществлять в соответствии с требованиями ГОСТ 12.1.013-78.

К работе с электроинструментом допускаются лица не моложе 18 лет, прошедшие медосмотр, имеющие 1-ю квалификационную группу по технике безопасности, знающие устройства и имеющие практический опыт работы с ними, а также имеющие удостоверение на право работы с электроинструментами.

Перед началом работ с электроинструментами рабочие должны надеть спецодежду, проверить исправность средств индивидуальной защиты, пройти инструктаж по технике безопасных методов производства работ электроинструментом, осмотреть и проверить электроинструмент на холостом ходу.

При обнаружении неисправностей работу с электроинструментом необходимо прекратить и сообщить об этом производителю работ.

При монтаже конструкций запрещается:

- работать с электроинструментом с приставных лестниц;

- натягивать и перегибать провода переносного электроинструмента;

- передавать электроинструмент другим лицам;

- разбирать и производить самим ремонт электроинструмента;

- держаться при работе за питающий провод;

- оставлять без надзора электроинструмент, подсоединенный к электросети.

При прекращении подачи напряжения, перерывах в работе, а также по окончании рабочей смены электроинструмент следует отключить от электросети.

Перед началом и по окончании работ следует проверить в присутствии мастера исправность всех механизмов и инструментов.

Запрещается принимать пищу в помещениях, где укладывают минераловатные плиты в конструкции.

При необходимости искусственного освещения помещений следует применять переносные электролампы во взрывобезопасном исполнении.

Погрузочно-разгрузочные работы должны производиться в соответствии с ГОСТ 12.3.009-76.

При использовании подъемников для вертикальной подачи элементов конструкций на этаж схема их установки и подключения должна быть отражена в проекте производства работ. Безопасная работа этих механизмов должна отвечать требованиям ГОСТ 12.3.033-84 и паспортным параметрам.

Пожарная безопасность участка производства работ при устройстве конструкций из ГВЛ должна отвечать требованиям ППБ 01-03 «Правила пожарной безопасности в Российской Федерации».


ПЕРЕЧЕНЬ ПОТРЕБНОГО ИНВЕНТАРЯ, ПРИСПОСОБЛЕНИЙ И ИНСТРУМЕНТА

№ п.п.

Наименование

Тип

Марка

Количество

Техническая характеристика

№ чертежа и исполнитель

Примечание

1

2

3

4

5

6

7

8

1

Тележка

Ручная

 

1

Масса 21 кг

 

Для транспортирования ГВЛ на этаже

2

Ручки для переноса ГВЛ

Инв.

 

2

 

 

Для переноски ГВЛ

3

Метростат - 300 с насадкой

Инв.

 

1

Масса 2,600 кг

Длина 3 м

 

Монтажное приспособление

4

Уровень

Гидравлический

 

1

 

 

Для разметки горизонтальных положений элементов конструкций

5

Метр

Складной

 

2

 

 

Для раскроя ГВЛ

6

Шнуроотбойное приспособление

 

 

1

Длина 15 м

 

Для нанесения разметочных линий на плоские поверхности

7

Нож для резки ГВЛ

Специальный

 

1

Масса 0,190 кг

 

Для резки ГВЛ

8

Ножовка с каленым зубом и углом наклона 45°

Инв.

 

1

 

 

То же

9

Приспособление для установки угловых профилей с киянкой

Инв.

 

1

Масса 1,800 кг

 

Для крепления угловых профилей

10

Просекатель

Инв.

 

1

Масса 0,980 кг

 

Для соединения профилей

11

Дрель-перфоратор

Электрич.

 

1

Мощность 750 Вт

 

Для высверливания отверстий

12

Шуруповерт с комплектом приспособлений

Электрич.

 

1

Масса 1,460 кг

4000 об/мин, мощность 600 Вт

 

Для ввинчивания самонарезающих винтов

13

Ножницы по металлу

Электрич

 

1

Масса 1,395 кг

 

Для резки профиля

14

Ножницы по металлу

Инв.

 

1

 

 

 

15

Миксер-насадка к дрели

Инв.

 

1

Масса 0,410 кг

 

Для приготовления шпаклевочной смеси

16

Корыто для шпаклевочной смеси

Инв.

 

1

Масса 0,430 кг

 

 

17

Мастерок для приготовления шпаклевочной смеси

 

 

1

Масса 0,175 кг

Ширина 8 см

 

Для приготовления и подачи шпаклевочной смеси

18

Шпатель с отверткой

Инв.

 

1

Масса 0,120 кг

 

Для шпаклевания стыков, углублений от винтов и дополнительной затяжки последних

19

Шпатель

Узкий

 

1

Масса 0,225 кг

 

Для шпаклевки швов

20

Шпатель шириной, см:

Широкий

 

 

 

 

Для нанесения накрывочных слоев шпаклевки

 

20

 

 

1

Масса 0,200 кг

 

 

25

 

 

1

» 0,220 кг

 

 

30

 

 

1

» 0,260 кг

 

21

Шпатель для внутренних углов

Инв.

 

1

Масса 0,185 кг

 

Для шпаклевки внутренних углов

22

Шпатель для внешних углов

Инв.

 

1

Масса 0,210 кг

 

Для шпаклевки внешних углов

23

Шлифовальное приспособление

Ручное

 

1

Масса 0,400 кг

 

Для шлифования зашпаклеванных швов и поверхности ГВЛ

24

Приспособление шлифовальное с деревянной ручкой

Инв.

 

1

Масса 0,970 кг

25

Съемная сетка к ручному шлифовальному приспособлению

Инв.

 

1

Масса 0,020 кг

26

Нивелир

Лазерный или обычный

 

1

 

 

Для разметки проектного положения перегородок

27

Набор круглых фрез

 

 

1

Масса 0,150 - 0,330 кг

 

Для электророзеток диаметром 60 - 120 мм

28

Дрель

Электрическая

 

1

 

 

Для устройства отверстий диаметром до 90 мм

29

Пилка

Узкая

 

1

Масса 0,100 кг

 

Для устройства отверстий прямоугольной формы или сложной конфигурации

30

Рубанок отборный

Инвент.

 

1

Масса 0,250 кг

 

Для создания фальцевой кромки

31

Рубанок обдирочный

 

 

1

Масса 0,540 кг

 

Для выравнивания обрезанных кромок и для доводки до требуемых размеров

32

Запасная рабочая часть для рубанка обдирочного

 

 

2

Масса 0,040 кг

 

 

33

Приспособление, поддерживающее ГВЛ

Инв.

 

2

Масса 1,960 кг

 

Для поддержки ГВЛ при монтаже

34

Рамочный подъемник для ГВЛ

Инв.

 

1

Масса 50 кг

 

Для подъема ГВЛ при монтаже потолков

35

Прокалывающее устройство

Инв.

 

1

Масса 0,2 кг

 

Для прокалывания ГВЛ

Примечание - Нумерация в таблице соответствует номерам рисунков на вклейке.


Приложение

ГРАФИЧЕСКАЯ ЧАСТЬ К ОРГАНИЗАЦИИ И ТЕХНОЛОГИИ
ВЫПОЛНЕНИЯ РАБОТ

Рисунок 1 - Схема строповки пакета ГВЛ

Рисунок 2 - Схема складирования ГВЛ на объекте

Рисунок 3 - Схема организации рабочего места

1, 2 - ось каркаса перегородки, параллельная основной конструкции здания;
а - расстояние между стеной и осью перегородки (план)

Рисунок 4 - Разметка проектного положения перегородки С 361 с дверным проемом (план)

Рисунок 5 - Схема устройства горизонтального шва

1 - ПН на полу; 2 - ПН на потолке; 3, 4 - ПС, примыкающие к конструкциям здания; 5, 6 - ПС,
ограничивающие дверной проем; 7 - 15 - монтаж профиля каркаса с сохранением проектного шага; 16 -
монтаж перемычки над дверным проемом; 17 - монтаж ПС с сохранением шага над дверным проемом;
18, 19 - монтаж горизонтальных вставок из ПН под горизонтальные швы ГКЛ

Рисунок 6 - Последовательность монтажа элементов каркаса перегородки С 361

Рисунок 7 - Монтаж элементов дверного проема

Рисунок 8 - Схема расположения листов ГВЛ перегородки С 361 (сплошные линии -
листы на лицевой стороне, пунктирные линии - листы на обратной стороне)

Рисунок 9 - Схема расположения самонарезающих винтов при однослойной облицовке

Рисунок 10 - Схема устройства деформационного шва в перегородке С 361

Рисунок 11 - Схема устройства деформационного шва в перегородке С 362

1, 2, 16 - направляющий профиль (ПН); 3 - 15, 17 - стоечный профиль (ПС)

Рисунок 12 - Схема монтажа элементов каркаса перегородки С 362

Рисунок 13 - Схема расположения ГВЛ перегородки С 362 (сплошные линии - листы
первого слоя, пунктирные - листы второго слоя)

Рисунок 14 - Схема расположения ГВЛ перегородки С 363 (сплошные линии - листы
первого слоя, пунктирные - листы второго слоя, штрихпунктирные - листы третьего
слоя; второй слой смещен относительно первого на один шаг стойки)

Рисунок 15 - Схема расположения самонарезающих винтов при двухслойной
облицовке ГВЛ

Рисунок 16 - Схема расположения самонарезающих винтов при трехслойной облицовке
ГВЛ

1 - направляющие пола и потолка; 2 - стойки несущего каркаса; 3 - первый слой ГВЛ с двух сторон;
4 - второй слой ГВЛ с двух сторон; 5 - разделительная лента; 6 - уплотнительная лента; 7 - профиль
направляющий потолка; 8 - профиль стоечный; 9 - профиль направляющий пола

Рисунок 17 - Схема монтажа элементов двойного каркаса и облицовки из ГВЛ
перегородки С 365

Рисунок 18 - Схема монтажа элементов дверного проема в двойном каркасе перегородки С 365

Рисунок 19 - Схема устройства деформационного шва в перегородке С 365

1 - направляющие профили пола; 2 - стоечные профили, примыкающие к основным конструкциям;
3 - стоечные профили; 4 - вставка из ГВЛВ; 5 - первый слой ГВЛВ; 6 - второй
слой ГВЛВ

Рисунок 20 - Конструкция перегородки С 366 с двойным металлическим каркасом с
пространством для пропуска коммуникаций

Рисунок 21 - Схема организации рабочего места при облицовке стен

1, 2, 3, 4 - нанесение точек на основные конструкции помещения; 5, 6, 7, 8 - разметка оси шнуроотбойным устройством

Рисунок 22 - Разметка проектного положения облицовки (разрез)

Рисунок 23 - Схема крепления стоек каркаса с помощью прямых подвесов в облицовке С 663

Примечание - При устройстве деформационных швов требуется установить дополнительно два потолочных профиля по обеим сторонам шва.

Рисунок 24 - Схема устройства деформационных швов в облицовке С 663

Рисунок 25 - Схема монтажа каркаса в облицовке С 665

Рисунок 26 - Схема монтажа каркаса в облицовке С 666

Примечание - При устройстве деформационных швов требуется установить дополнительно два стоечных профиля по обеим сторонам шва.

Рисунок 27 - Схема устройства деформационных швов в однослойной и двухслойной облицовках

Рисунок 28 - Схема организации рабочего места при устройстве подвесных потолков

1, 2 - разметка центральных взаимно перпендикулярных осей; 1' - разметка положения
основных профилей; 2' - разметка положения несущих профилей; 3 - разметка положения
подвесов потолка; 4 - разметка на примыкающих стенах помещения положения профилей
ПНП (для конструкции П 213)

Рисунок 29 - Разметка проектного положения подвесного потолка

Межосевые расстояния при устройстве каркаса

Наименование

Условное обозначение

Расстояние, мм

Расстояние между подвесами (дюбелями) при нагрузке Р, кН/м2:

Р ≤ 0,15

а

900

0,15 < Р ≤ 0,30

 

750

0,30 < Р ≤ 0,50

 

600

Межосевое расстояние основных профилей при нагрузке Р, кН/м2:

Р ≤ 0,15

с

≤1000

0,15 < Р ≤ 0,30

 

≤1000

0,30 < Р ≤ 0,50

 

≤750

Межосевое расстояние несущих профилей при поперечном монтаже листов

b

500

Рисунок 30 - Схема устройства каркаса подвесного потолка П 212

Межосевые расстояния при устройстве каркаса

Наименование

Условное обозначение

Расстояние, мм

Расстояние между подвесами (дюбелями) при нагрузке Р, кН/м2:

 

 

Р ≤ 0,15

а

1000

0,15 < Р ≤ 0,30

 

650

0,30 < Р ≤ 0,50

 

 

для анкерного подвеса с тягой и комбинированного подвеса с тягой

 

400

для прямого и нониус-подвеса

 

650

Межосевое расстояние основных профилей при нагрузке Р, кН/м2:

 

 

Р ≤ 0,15

c

1200

0,15 < Р ≤ 0,30

 

 

0,30 < Р ≤ 0,50

 

 

Межосевое расстояние несущих профилей при поперечном монтаже листов

b

500

Расстояние между дюбелями крепления ПН-профиля

-

500

Рисунок 31 - Схема устройства каркаса подвесного потолка П 213

Рисунок 32 - Схема расположения листов ГВЛ и самонарезающих винтов в подвесных потолках

Инструменты и приспособления для монтажа ГВЛ

 

 

Перегородки КНАУФ

Облицовки КНАУФ

Подвесной потолок КНАУФ

СПИСОК ЛИТЕРАТУРЫ

СНиП 3.03.01-87. Несущие и ограждающие конструкции.

СНиП 3.04.01-87. Изоляционные работы и отделочные покрытия.

СНиП 12-03-2001 Безопасность труда в строительстве. Ч. 1. Общие требования.

СНиП 12-04-2002. Безопасность труда в строительстве. Ч. 2. Строительное производство.

СНиП 23-02-2003. Тепловая защита зданий.

ГОСТ 9.303-84. Покрытия металлические и неметаллические неорганические. Общие правила к выбору.

ГОСТ 12.1.013-78. Строительство. Электробезопасность. Общие требования.

ГОСТ 12.1.044-89. ССБТ. Пожаровзрывоопасность веществ и материалов. Номенклатура показателей и методы их определения.

ГОСТ 12.2.003-91. ССБТ. Оборудование производственное. Общие требования безопасности.

ГОСТ 12.3.009-76. ССБТ. Работы погрузочно-разгрузочные. Общие требования безопасности.

ГОСТ 12.3.033-84. ССБТ. Строительные машины. Общие требования безопасности при эксплуатации.

ГОСТ 125-79. Вяжущие гипсовые. Технические условия.

ГОСТ 8486-86. Пиломатериалы хвойных пород. Технические условия.

ГОСТ 9573-96. Плиты из минеральной ваты на синтетическом связующем теплоизоляционные. Технические условия.

ГОСТ 10499-95. Изделия теплоизоляционные из стеклянного штапельного волокна. Технические условия.

ГОСТ 11652-80. Винты самонарезающие с потайной головкой и заостренным концом для металла и пластмассы. Конструкция и размеры.

ГОСТ 14918-80. Сталь тонколистовая оцинкованная с непрерывных линий. Технические условия.

ГОСТ 16381-77. Материалы и изделия строительные теплоизоляционные. Классификация и общие механические требования.

ГОСТ 19904-90. Прокат листовой холоднокатаный. Сортамент.

ГОСТ 21880-94. Маты прошивные из минеральной ваты теплоизоляционные. Технические условия.

ГОСТ 24258-88. Средства подмащивания. Общие технические условия.

ГОСТ 30244-94. Материалы строительные. Методы испытаний на горючесть.

ГОСТ 30402-96. Материалы строительные. Методы испытаний на воспламеняемость.

ГОСТ Р 51829-2001 Листы гипсоволокнистые. Технические условия.

ТУ 1121-004-04001508-2003. Профили стальные, оцинкованные, тонкостенные. Технические условия.

ТУ 5742-011-04001508-97. Шпаклевки гипсовые. Технические условия.

ППБ 01-03. Правила пожарной безопасности в Российской Федерации.

Серия 1.031.9-3.01. Комплектные системы КНАУФ. Перегородки поэлементной сборки из гипсоволокнистых листов на металлическом и деревянном каркасах для жилых, общественных и промышленных зданий.

Серия М25.41/2000. Комплектные системы КНАУФ. Облицовка из гипсоволокнистых листов ограждающих конструкций жилых, общественных и производственных зданий. Стены. Мансардные помещения. Коммуникационные шахты.

Серия 1.045.9-2.00. Комплектные системы КНАУФ. Подвесные потолки поэлементной сборки из гипсокартонных и гипсоволокнистых листов на деревянном и металлическом каркасах для жилых, общественных и производственных зданий.

 

 



© 2013 Ёшкин Кот :-)