Документы по стандартизации
Конструкции
металлические
«ЦНИИПСК им. Мельникова»
СТАНДАРТ
ОРГАНИЗАЦИИ
Система
проектной документации для строительства
КОНСТРУКЦИИ
МЕТАЛЛИЧЕСКИЕ
Состав
и оформление рабочих чертежей марки КМ
СТО
02494680-0035-2004
Москва
2004
ЦЕНТРАЛЬНЫЙ
ОРДЕНА ТРУДОВОГО КРАСНОГО ЗНАМЕНИ НАУЧНО-ИССЛЕДОВАТЕЛЬСКИЙ И ПРОЕКТНЫЙ ИНСТИТУТ
СТРОИТЕЛЬНЫХ МЕТАЛЛОКОНСТРУКЦИЙ им. Н.П. МЕЛЬНИКОВА

|
цниипск
им.
МЕЛЬНИКОВА
(Основан в 1880 г.)
|

|
СТАНДАРТ
ОРГАНИЗАЦИИ
Система
проектной документации для строительства
КОНСТРУКЦИИ
МЕТАЛЛИЧЕСКИЕ
Состав
и оформление рабочих чертежей марки КМ
СТО
02494680-0035-2004
Предисловие
1 РАЗРАБОТАН ЗАО Центральный ордена Трудового Красного Знамени
научно-исследовательский и проектный институт строительных металлоконструкций
им. Мельникова (ЗАО «ЦНИИПСК им. Мельникова»)
2 ПРИНЯТ на научно-техническом совете ЦНИИПСК им. Мельникова 01.04.2004
г.
3 ВЗАМЕН СТП 13-95
4 Разработка, согласование, утверждение, издание (тиражирование),
обновление (изменение или пересмотр) и отмена настоящего стандарта производится
организацией - разработчиком.
СОДЕРЖАНИЕ
Введение
Настоящий стандарт разработан
в соответствии с Федеральным законом «О техническом регулировании» от 27
декабря 2002 г. № 184-ФЗ и предназначен для обеспечения единой нормативной базы
в деятельности института в области металлостроительства и качества продукции.
Стандарт может применяться
проектными организациями, если они имеют сертификаты соответствия, выданные
Органом по сертификации в системе добровольной сертификации, созданной ЗАО
«ЦНИИПСК им. Мельникова».
ЗАО «ЦНИИПСК
им. Мельникова» не несёт никакой ответственности за использование данного
стандарта организациями, не имеющими сертификатов соответствия.
СТАНДАРТ
ОРГАНИЗАЦИИ
Утвержден и введен в действие
Приказом ЗАО «ЦНИИПСК им. Мельникова» от 6 апреля 2004 № 52
Дата введения 2004-04-06
Настоящий стандарт
устанавливает состав и правила оформления в системе СПДС рабочих чертежей металлических
конструкций марки КМ зданий и сооружений, всех отраслей промышленности и
народного хозяйства, кроме чертежей выполняемых в системе ЕСКД в соответствии с
требованиями заказчика. Стандарт распространяется на стадии проектирования
«Рабочий проект» и «Рабочая документация».
Стандарт обязателен для
подразделений, выполняющих проектные работы.
В настоящем стандарте
использованы ссылки на следующие нормативные документы:
ГОСТ
2.312-72* ЕСКД. Условные изображения и обозначения швов сварных соединений.
ГОСТ
2.410-68* ЕСКД. Правила выполнения чертежей металлических конструкций.
ГОСТ
21.101-97 СПДС. Основные требования к проектной и рабочей документации.
ГОСТ
21.501-93 СПДС. Правила выполнения архитектурно-строительных рабочих
чертежей.
ГОСТ
26047-83. Конструкции строительные стальные. Условные обозначения (марки).
СН
460-74. Временная инструкция о составе и оформлении строительных рабочих
чертежей зданий и сооружений.
3.1 Рабочие чертежи металлических конструкций (далее - чертежи марки КМ)
должны выполняться в соответствии с требованиями настоящего стандарта и
согласно СТП 15-03 и СТП 17-00.
3.2 В состав чертежей марки КМ должны быть включены следующие разделы:
- общие данные;
- нагрузки и воздействия на
металлоконструкции;
- задание на проектирование
фундаментов;
- чертежи общего вида
металлических конструкций здания или сооружения (при необходимости);
- схемы расположения
элементов металлоконструкций;
- чертежи элементов
металлоконструкций;
- узлы металлоконструкций;
спецификация металлопроката.
3.3 Чертежи марки КМ должны содержать все данные, необходимые и
достаточные для разработки деталировочных чертежей КМД.
3.4 При проектировании объектов, входящих в перечни органов
государственного надзора, необходимо учитывать требования, отражающие их
специфику и вид строительства.
4.1 Общие данные должны разрабатываться в соответствии с требованиями ГОСТ 21.101.
Пример выполнения общих
данных приведен на рисунке 1.
4.2 В общих указаниях в дополнение к сведениям, предусмотренным ГОСТ 21.101 и ГОСТ 21.501, следует приводить:
- сведения об основных
конструктивных особенностях здания и сооружения;
- описание основных
параметров здания и сооружения;
- расчетную схему
конструкций с необходимыми пояснениями (если это необходимо);
- ссылки на принятые нормы
проектирования, технические задания и технические условия на металлопрокат,
метизы и пр.;
- описание принятых
монтажных и заводских соединений;
- указания по выполнению
сварных соединений;
составление указаний по
сварке и выбору сварочных материалов приведено в приложении А;
- указания по выполнению
соединений на болтах, винтах и других крепежных деталях;
составление указаний по
выполнению монтажных соединений на болтах приведено в приложении Б;
- указания по защите стальных
строительных конструкций от коррозии;
составление указаний по
защите от коррозии стальных строительных конструкций при эксплуатации в
неагрессивных и агрессивных условиях приведено в приложении В;
- требования к изготовлению и
монтажу, в том числе требования по контролю сварных швов, а также точности в
соответствии с действующими нормативными документами, если эти требования
выходят за рамки строительных норм и правил по изготовлению и монтажу
металлоконструкций;
составление указаний по
изготовлению и монтажу строительных конструкций приведено в приложении Г;
- другие необходимые
сведения.
4.3 На листе общих данных приводят принятые в чертежах конструкций условные
изображения и обозначения, не вошедшие в государственные стандарты и которые
даны в таблице 1.
4.4 В дополнение к ГОСТ 2.312, условные изображения и обозначения швов сварных соединений в чертежах
марки КМ принимаются согласно таблице 2 и их приводят на листе общих данных.
Обозначение швов в этом
случае можно указывать без выносных линий, помещая их непосредственно над или
под изображением соответствующего сварного шва вне зависимости от того,
является ли сварной шов видимым или невидимым.
Таблица 1
Наименование
|
Изображение
|
1. Обозначение узла (выносного элемента)
|

|
2. Болт класса точности В (постоянный)
|

|
3. Болт временный
|

|
4. Болт высокопрочный
|

|
5. Болт самонарезающий
|

|
Таблица 2
Наименование
|
Изображение
|
Размеры изображения, мм
|
заводской
|
монтажный
|
1. Шов сварного соединения стыкового -
сплошной:
|
|
|
|
а) с видимой стороны
|

|

|

|
б) с невидимой стороны
|

|

|

|
2. То же, прерывистый
|
|
|
|
а) с видимой стороны
|

|

|

|
б) с невидимой стороны
|

|

|

|
3. Шов сварного соединения углового,
таврового или внахлестку - сплошной
|
|
|
|
а) с видимой стороны
|

|

|

|
б) с невидимой стороны
|

|

|
4. То же, прерывистый:
|
|
|
|
а) с видимой стороны
|

|

|

|
б) с невидимой стороны
|

|

|

|
5. Шов сварного соединения внахлестку
контактный точечный
|

|
|

|
6. Шов сварного соединения
электрозаклепочный внахлестку (с круглым отверстием)
|

|
|

|
кf - катет углового шва;
l - длина свариваемого участка;
а - расстояние в свету между участками.
5.1 Состав и величины нагрузок и воздействий при разработке чертежей марки
КМ следует принимать в соответствии с требованиями строительных норм и правил,
технологическими и архитектурно-строительными заданиями.
5.2 Указываются нормативные и расчетные значения нагрузок, принятые
коэффициенты надежности по нагрузке и данные по возможным сочетаниям
технологических и других нагрузок и воздействий.
6.1 Задание на проектирование фундаментов должно включать:
- значение нагрузок на
фундаменты;
- принятое правило знаков
нагрузок на фундаменты;
- схемы расположения
фундаментных болтов для каждой марки фундамента;
- диаметры, высоты
выступающей частей, длины нарезок, марки сталей фундаментных болтов;
- требования к
деформативности фундаментов, если в этом есть необходимость;
Пример задания на
проектирование фундаментов приведен на рисунке 2.
7.1 Чертежи общих видов конструкций здания (сооружения) содержат схему
конструкций со связями, с указанием взаимного расположения конструкций, их
соединений и опирания на фундаменты.
Пример выполнения чертежей
общего вида приведен на рисунках 3, 4, 5 и 6.
7.2 На чертежах общих видов следует указывать:
- основные габаритные размеры
конструкций;
- привязку и основные
параметры технологического оборудования (подъемно-транспортного и др.),
влияющего на конструкции;
- характерные отметки;
- примыкающие строительные
конструкции, не разрабатываемые в данном комплекте чертежей.
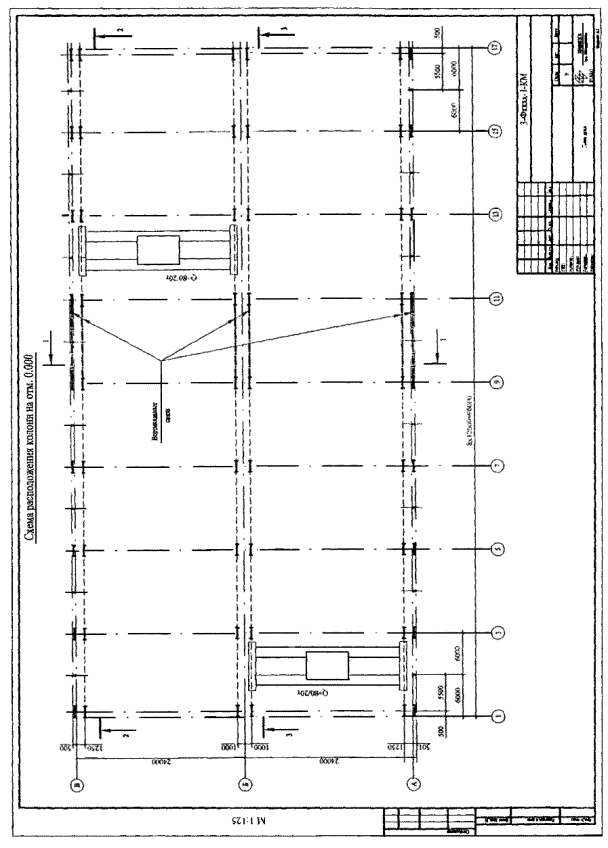
8.1 Схемы расположения элементов металлических конструкций следует
выполнять по ГОСТ 21.501 со следующим изменением: вместо спецификации по ГОСТ 21.101 приводят таблицу сечений и усилий.
8.2 Таблицу сечений и усилий следует выполнять по форме 1 в соответствии с приложением
Д.
8.3 При выполнении схем расположения элементов металлических конструкций на
нескольких листах, таблицу сечения и усилий следует размещать или по частям на
каждом листе, или группировать на одном листе общие по всем листам таблицы.
8.4 В технических требованиях, помещаемых на схемах расположения элементов
металлоконструкций, следует приводить:
- значения усилия для расчета
прикрепления элементов, не указанные на чертежах и в таблице сечений и усилий;
- дополнительные технические
требования по изготовлению и монтажу, отсутствующие в общих данных.
8.5 Маркировка элементов конструкций производится, как правило, на схемах
расположения элементов, а элементы конструкций, которые не попали на схемы
расположения элементов, маркируются на чертежах общих видов, узлов. Маркировку
элементов конструкций производить по ГОСТ 26047.
Пример выполнения схем и
маркировки элементов металлоконструкций приведен на рисунке 7.
9.1 Чертежи элементов металлических конструкций выполняют, если на чертежах
общих видов и схемах расположения элементов металлоконструкций конструктивные
особенности элементов выявлены недостаточно для разработки рабочих
деталировочных чертежей.
9.2 Чертежи элементов металлоконструкций следует выполнять в виде схем, на
которых указывают:
- геометрические размеры;
- опорные реакции;
- размеры отдельных деталей,
а также усилия;
- тип монтажных и заводских
соединений;
- наименование сталей или
марки металла всех деталей, входящих в состав элемента;
- технические требования.
Размеры сварных швов, диаметры,
классы прочности, шаги, количество крепежных изделий и технические требования к
ним не указывают - они определяются при разработке рабочих деталировочных
чертежей марки КМД.
9.3 В технических требованиях на чертежах элементов металлоконструкций следует
указывать:
- усилия для расчета
прикреплений, не указанные на чертеже;
- дополнительные требования
по изготовлению и монтажу элементов;
- номера листов,
соответствующих схем расположения элементов металлоконструкций;
- другие требования.
9.4 На чертежах элементов металлоконструкций дают ссылки на узлы. Узлы,
обозначенные на схемах расположения элементов металлоконструкций, на чертежах
элементов металлоконструкций не указывают.
9.5 Если при изображении элемента необходимо показать более детально часть
конструкции или узел, то их следует изображать в более крупном масштабе с
необходимой степенью детализации.
9.6 Пример выполнения схемы элемента металлоконструкции приведен на рисунке
8.
10.1 На чертежах марки КМ приводят принципиальные решения узлов
металлических конструкций (далее - узлы), обеспечивающих работу принятой
расчетной схемы сооружения.
10.2 На чертежах узлов необходимо изображать все элементы, сходящиеся в
узле, с указанием привязок к координационным осям, осям элементов, поверхностям
деталей, отметки в соответствии с рисунком 9.
10.3 При примыкании металлических конструкций к элементам, не разработанным в
данном комплекте чертежей, в чертежах узлов следует указывать конфигурацию этих
элементов, их размеры, привязки и другие данные, необходимые для разработки
деталировочных чертежей.
10.4 На чертежах узлов указывают:
- усилия, действующие в
элементах, если они не оговорены в таблице сечений и усилий;
- привязка к координационным
осям;
- толщины элементов;
- размеры сварных швов;
- количество, шаги, диаметры,
типы, классы прочности болтов, заклепок и других крепежных изделий;
- требования к обрабатываемым
поверхностям;
- сечения, наименования или
марки металла деталей, не оговоренные в таблице сечений и усилий;
- технические требования;
Толщины деталей, размеры
сварных швов, количество, шаги, диаметры, класс прочности крепежных изделий не
указывают, если они могут быть определены при разработке деталировочных
чертежей.
11.1 Спецификация металлопроката (СМ) предназначается для заказа
металлопроката.
11.2 СМ должна выполняться в соответствии с рисунком 10 или рисунком 11 по чертежам КМ, без учета
отходов на обработку и массы наплавленного металла.
11.3 Для объектов строительства с выпуском комплектов рабочих чертежей марки
КМ этапами необходимо составлять СМ на каждый этап.
11.4 СМ следует составлять на каждый вид элементов конструкций в
соответствии с разделами прейскуранта оптовых цен на строительные стальные
конструкции или других нормативных документов.
11.5 На основе СМ составляют свободную спецификацию металлопроката (СМС) по
той же форме.
11.6 СМ и СМС допускается объединять в отдельный сборник (ССМ) со своим
титульным листом по ГОСТ 21.110 и оглавлением.
Каждой СМ, СМС и ССМ
присваивают самостоятельное обозначение, состоящее из обозначения рабочих
чертежей по ГОСТ 21.101
и СТП 15-95 через дефис шифра СМ, СМ С или ССМ и порядкового номера СМ.
Например, XX - ХХХХ
- XX - КМ.СМ.16
XX - ХХХХ - XX - КМ.СМ.С
XX - ХХХХ - XX - КМ.ССМ
СМ, СМС и ССМ записывают в
ведомость прилагаемых документов.
11.7 При выполнении СМ в виде отдельных листов рабочих чертежей марки КМ,
таблицы СМ (рис. 11) входят в состав комплекта рабочих чертежей марки КМ.
11.8 В графах СМ и СМС следует указывать:
в графе «Марка или наименование
металла, ГОСТ, ТУ» - марку или наименование металла и номер государственного
стандарта или технических условий, по которым производится поставка;
в графе «Наименование
профиля, ГОСТ, ТУ» - наименование подгруппы профиля по «Общероссийскому классификатору
продукции ОК 005-93». - М:, ИПК Издательство стандартов, 2000;
в графе «Номер строки» -
последовательные номера всех строк, в которых указана масса;
в графе «Номер или размеры
профиля, мм» - номер или размеры профиля в соответствии с условными обозначениями,
приведенными в государственных стандартах или технических условиях, и длину
профиля, если его поставляют в мерных длинах. Длину профиля указывают во второй
строке. В пределах наименования профили записывают по возрастанию их номеров
или размеров;
в графе «Код марки или
наименование металла» - четырехразрядный код марки или наименования металла в
соответствии с ОКП (блок марок металла и сплавов);
в графе «Код профиля» -
четырехразрядный код профиля в соответствии с ОКП (блок профилей);
в графе «Код техн. хар.» -
четырехразрядный код технической характеристики профиля в соответствии с ОКП
(блок технических требований);
В графе «Код усл. поставки»
- двухразрядные коды условий поставки в соответствии с ОКП (блок форм заказа и
условий поставки). Графу заполняют при необходимости;
в графе «Масса, т» - массу
по рабочим чертежам КМ, определяемую с точностью до одной десятой тонны;
в графе «Общая масса, т» -
массу по рабочим чертежам КМ, определяемую с точностью до одной десятой тонны.
По каждому наименованию
профиля приводят строку «Итого», а для каждой марки стали - строку «Всего»;
В графах «Код марки или
наименование металла», «Код профиля», «Код техн. хар.», «Код усл. поставки»
записывают коды только по требованию заказчика.
11.9 В конце каждой СМ и СМС приводят строки:
«Всего масса металла», «В
том числе по маркам или наименованиям», «В том числе по укрупненным видам
сортамента».
11.10 Пример выполнения СМ приведен в приложении Е.

Рисунок 1

Рисунок 2

Рисунок 3

Рисунок 4

Рисунок 5

Рисунок 6

Рисунок 7

Рисунок 8

Рисунок 9

Рисунок 10

Рисунок 11
(справочное)
А Общие указания
1 Все заводские соединения элементов металлоконструкций - сварные.
Монтажные сварные соединения указаны в узлах.
2 Материалы для сварки, соответствующие сталям, принимать по таблице 55*
СНиП II-23-81* (издание 1991 г.).
3 Указания по сварке конструкций:
- стыковые, поясные и
угловые швы в элементах длиной более 2 м рекомендуется выполнять автоматической
сваркой под флюсом; прочие заводские швы всех элементов - механизированной
сваркой в среде углекислого газа или в его смеси с аргоном;
- значения коэффициентов
βf, βz и расчетные сопротивления
металла шва срезу Rωf, Rωz - приняты по таблицам 3,
4*, 34* СНиП II-23-81*;
- указанные на чертежах
размеры угловых швов приняты из расчета: заводские - для механизированной
сварки в среде углекислого газа сварочной проволокой диаметром 1,4 - 1,6 мм в
нижнем положении и горизонтальном на вертикальной плоскости; проволокой
диаметром 0,8 - 1,4 мм - в вертикальном и потолочном положениях; монтажные -
для ручной дуговой сварки;
- при переходе на другие
виды сварки или сварочные материалы, а так же при применении специальных мер,
направленных на повышение производительности процесса сварки, размеры всех
оговоренных сварных швов должны быть пересчитаны в соответствии с указаниями СНиП II-23-81*;
- при сварке конструкций из
стали с расчетным сопротивлением до 2400 кг/см2, свариваемых со
сталями более высокой прочности, применять электроды типа Э42А.
4 Размеры расчетных сварных швов принимать в зависимости от усилий,
указанных на схемах и в ведомостях элементов конструкций, кроме оговоренных в
узлах, а также в зависимости от толщин свариваемых элементов.
5 Сварные швы с разделкой кромок выполнять с полным проваром, с
обязательной зачисткой и последующей подваркой корня шва. Применение сварки на
остающихся подкладках запрещается, кроме отдельных особых случаев, оговоренных
в чертежах КМ или при условии согласования с автором проекта.
Качество всех сварных швов с
полным проваром должно быть проверено неразрушающими методами контроля.
Контроль качества сварных соединений должен проводиться с учетом требований ГОСТ
23118-99 «Конструкции стальные строительные. Общие технические условия».
Начало и конец стыковых швов
и угловых швов с полным проваром выводить за пределы свариваемых деталей на
выводные планки с последующим их удалением и зачисткой мест установки.
6 Минимальные катеты угловых швов следует принимать по таблице 38* СНиП II-23-81*.
Минимальная длина угловых
швов - 60 мм.
7 При сварке тавровых, угловых и крестообразных соединений из низколегированной
стали С345 толщиной 20 мм и более, с целью уменьшения вероятности разрушений
сварных соединений, связанных с физической неоднородностью проката по толщине,
при разработке технологии сварки должны быть предусмотрены дополнительные
технологические мероприятия:
- обязательная тщательная
прокалка сварочных материалов и выдача их в работу в соответствии с
требованиями по их подготовке, хранению и использованию;
- обязательная зачистка
свариваемых элементов перед сваркой от прокатной окалины, ржавчины и других
загрязнений на ширину 20 мм в каждую сторону от кромки разделки;
- соблюдение проектных
размеров расчетных и нерасчетных угловых швов, не допуская их уменьшения;
- исключение резких
западаний между валиками глубиной более 0,5 мм, подрезов при переходе от
металла шва к основному металлу и др. концентраторов напряжений;
- контроль швов с полным
проваром ультразвуковой дефектоскопией или контроль проникающим излучением для
обнаружения возможных трещин и несплошностей в сварных швах и околошовной зоне.
8 В пункте 7 приведены основные требования при выполнении сварных соединений
металлоконструкций с учетом физической неоднородности проката по толщине.
Заводы - изготовители, монтажные организации (в случае необходимости выполнения
монтажной сварки) на основании принятой технологии и имеющегося практического
опыта могут применять и другие технологические мероприятия, направленные на
обеспечение качественного выполнения сварных соединений в соответствии с чертежами
КМ и требованиями норм.
9 С целью предупреждения образования трещин в сварных соединениях и
слоистого растрескивания проката под действием сварочных напряжений и нагрузок,
обратить особое внимание на неукоснительное соблюдение технологии сборки и сварки
металлоконструкций, обеспечение требований норм, технических условий,
стандартов, работы службы ОТК завода на всех этапах изготовления
металлоконструкций.
10 Окончательный контроль качества сварных соединений конструкций из
сталей С345 следует проводить не ранее 48 часов с момента завершения сварки
проверяемого узла. Выявленные дефекты в сварных конструкциях должны быть
освидетельствованы и исправлены. Без выполнения указанных требований
запрещается огрунтовка и отправка металлоконструкций с завода - изготовителя и
их приемка на монтаже.
11 Сварка соединений из высокопрочных сталей С375 и выше должна
выполняться по специально разработанной технологии, учитывающей специфику
конструкций, их напряженного состояния и других факторов.
Технология сварки может быть
разработана институтом ЦНИИПСК им. Мельникова в рамках отдельного соглашения
(договора).
Б Указания по выполнению сварных стыков
прокатных и сварных балок
1 Заводские и монтажные соединения (стыки) прокатных и сварных балок выполняются
встык с полным проваром кромок полок и стенок и должны быть равнопрочны
основному металлу сечения.
2 Расположение монтажных стыков указано либо в чертежах КМ, либо
определяется заводом - изготовителем (совместно с монтажной организацией) при
обязательном согласовании с авторами проекта.
3 Технология сборки и сварки заводских и монтажных соединений (стыков)
может быть разработана институтом ЦНИИПСК им. Мельникова в рамках
дополнительного соглашения (договора).
В Указания по выполнению сварных соединений
элементов из уголковых профилей с фасовками в узлах решетчатых конструкций
При выполнении сварных
соединений элементов решетки из уголковых профилей с фасовками стропильных и
подстропильных ферм, ветвей колонн, связей и других решетчатых конструкций
необходимо соблюдать следующие дополнительные требования (см. узел А):
1 Сварные швы, прикрепляющие элементы решетки к фасонкам, следует
выполнять с обваркой торцов уголков.
2 Длины нахлестки уголков на фасонку lн1, lн2 определять исходя из несущей
способности фасонки (вырыв, срез и пр. факторы) и сварных швов по обушку и
перу, обеспечивающих передачу действующих в них усилий. Длины lн1, lн2 принимать не менее 1,7b0 по обушку и 1,1b0 по перу (где b0 - ширина примыкающей к
фасонке полки уголка).
3 При сборке узлов необходимо прижать уголки решетки к фасонке по всей
плоскости примыкания с целью обеспечения требований по зазорам в соответствии с
ГОСТ 14771-76* или ГОСТ 5264-80* (тип соединений Т1, Н1).
Постановка прихваток разрешается
на расстоянии 30 - 35 мм от торца уголка.
4 Сварные швы крепления уголков к фасонкам выполнять в следующей
последовательности:
4.1 Выполнить сварку шва Ш1 по перу уголка с началом у края фасонки (см.
пункт 5) и окончанием на середине торца уголка;
4.2 Выполнить сварку шва Ш2 по обушку уголка с началом у края фасонки (см.
пункт 5) и окончанием на середине торца уголка с перекрытием шва Ш1 на 20 - 30
мм;
4.3 Выполнить при необходимости дополнительные проходы швов Ш1 и Ш2 по
обушку и перу со смещением начала каждого последующего прохода на 10 мм,
обеспечивающих расчетные величины катетов.
5 Начало швов Ш1 и Ш2 выполнять с отступлением от края фасонки не менее,
чем на 10 - 15 мм.
6 Кратеры сварных швов должны быть заварены и не должны иметь трещин.
7 Качество сварных швов должно быть проконтролировано.

(справочное)
А Фрикционные соединения на
высокопрочных болтах
1 Соединения запроектированы в соответствии с положениями СНиП II-23-81* (издание 1991 г.) и
рассчитаны в предположении передачи действующих в элементах усилий силами
трения, возникающими по соприкасавшимся плоскостям соединяемых элементов от
натяжения высокопрочных болтов. Распределение продольной силы между болтами
принято равномерным. Определение усилий на болты от действующих нагрузок см. в
указаниях на чертежах КМ. Численная величина сил трения прямо пропорциональна
значениям коэффициентов трения на контактных поверхностях, усилиям
предварительного натяжения высокопрочных болтов и количеству плоскостей трения.
2 Высокопрочные болты, гайки и шайбы принимать:
- болты М20, 24-6gх1.110 ГОСТ
22353-77*;
- гайки М20, 24-6Н.110 ГОСТ
22354-77*;
- шайбы 20, 24 ГОСТ
22355-77*.
Технические требования и
материал болтов, гаек и шайб по ГОСТ
22356-77*.
Примечание. При
расчетной температуре района строительства от -40 °С до -65 °С следует
применять болты и гайки климатического исполнения ХЛ, категории размещения 1
(ХЛ1).
3 Диаметр отверстий принимать равным 28 мм для болтов М24 и 23 мм для
болтов М20, кроме оговоренных на чертежах. При сверлении отверстий использовать
кондукторы либо другое специализированное оборудование, обеспечивающее
выполнение требования по качеству и допускаемым отклонениям в размерах
отверстии в соответствии с требованиями по изготовлению конструкции (см. раздел
IV).
4 В местах установки высокопрочных болтов контактные поверхности
элементов конструкций и накладок не должны грунтоваться и окрашиваться.
5 Способ обработки (очистки) контактных поверхностей соединения -
стальными щетками без консервации. Расчетное знамение коэффициента трения
принято μ = 0,35.
6 Способ регулирования натяжения болтов - по моменту закручивания («по
М»).
7 Плотность стяжки пакета проверяется щупом толщиной 0,3 мм, который не
должен проникать в зону крайнего отверстия, ограниченную радиусом 1,3d0 от центра этого отверстия (d0 - диаметр отверстия).
8 После приемки соединения на каждом узле в доступном для осмотра месте
наносится клеймо бригадира и лица, ответственного за выполнение соединении на
болтах. Высота клейма должна быть не менее 8 мм. Место установки клейма
(размером около 100×100 мм) окрашивается белой краской.
9 Все работы по натяжению и контролю за натяжением следует регистрировать
в журнале контроля за выполнением монтажных соединений на высокопрочных болтах.
10 Количество болтов в соединениях и толщины накладок определяется в
соответствии с Указаниями по расчету узлов на высокопрочных болтах, если они не
оговорены на чертежах узлов.
11 Накладки одинаковой геометрической формы, но отличающиеся по толщине
менее, чем на 4 мм, следует унифицировать и принимать по большей из них. Не
допускается применение накладок одинаковой толщины и геометрической формы из
разных сталей.
12 Расстояния между центрами отверстия и до края элемента в продольном и
поперечном направлениях принимаются в соответствии с табл. 39 СНиП II-23-81*, кроме оговоренных на
чертежах КМ.
13 При перепаде плоскостей соединяемых элементов от 0,5 до 3 мм, для
обеспечения плавного изгиба накладки, кромку выступающей детали необходимо
сгладить наждачным камнем на расстоянии не менее 30 мм от края. При перепаде
более 3 мм следует применять прокладки из стали С235 и выше по ГОСТ 27772-88 и обрабатывать их на монтаже с двух сторон тем же способом, что и
накладки.
14 Каждый болт устанавливается в соединение с двумя круглыми шайбами:
одна ставится под головку болта, другая - под гайку. Ставить более одной шайбы
с каждой стороны пакета запрещается.
Б Соединения на постоянных болтах класса
точности В, работающих на срез и растяжение
1 Соединения на болтах класса точности В рассчитаны в предположении
передачи действующих в элементах усилии сопротивлением соединяемых элементов
смятию, болтов срезу и растяжению. При выполнении монтажных соединений на
болтах руководствоваться «Рекомендациями и нормативами по технологии постановки
болтов в монтажных соединениях металлоконструкции», Москва,
ЦНИИпроектстальконструкция, 1988 г.
2 Болты класса точности В, гайки и шайбы принимать:
- болты класса прочности
5,6:
· болты М12, 16, 20, 24-6gx1.5.6 ГОСТ
7798-70*, ГОСТ 1759.0-87*
и ГОСТ
1759.4-87*; клеймо завода и маркировка класса прочности обязательны;
применение автоматной стали, а также облегченных болтов (диаметр гладкой части
равен среднему диаметру резьбы) не допускается;
· гайки класса прочности 5: М12, 16, 20, 24-6Н.5
ГОСТ
5915-70*, ГОСТ 1759, 5-87;
- болты класса прочности
8.8:
· болты М16, 20, 24-6gх1.8.8 ГОСТ
7798-70*, ГОСТ 1759.0-87*и
ГОСТ
1759.4-87*; применение облегченных болтов (диаметр гладкой части равен
среднему диаметру резьбы) не допускается;
· гайки класса прочности 8: М16, 20, 24 - 6Н.8
ГОСТ
5915-70*, ГОСТ 1759.5-87;
- болты класса прочности
10.9;
· болты М16, 20, 24-6gх1.10.9 ГОСТ
7798-70*, ГОСТ 1759, 0-87*
и ГОСТ
1759, 4-87*; применение облегченных болтов (диаметр гладкой части равен
среднему диаметру резьбы) не допускается;
· гайки класса прочности 10: М16, 20, 24-6Н.10
ГОСТ
5915-70*, ГОСТ 1759.5-87.
Шайбы для болтов всех
классов прочности
- шайбы (плоские) 12, 16,
20, 24 ГОСТ 11371-78*
и ГОСТ 18123-82*;
3 Болты классов прочности 5.6, 8.8, 10.9 диаметрами db ≥ 16 мм применять с гарантированными характеристиками ударной
вязкости по ГОСТ 1759.4-87*.
4 Применение болтов без маркировки не допускается.
5 Разность номинальных диаметров отверстия и болтов принимать равной 2
мм, кроме оговоренных в чертежах КМ.
При сверлении отверстий
использовать кондукторы либо другое специализированное оборудование,
обеспечивающее выполнение требований по качеству и допускаемым отклонениям в
размерах отверстий. Допускаемые отклонения от номинального диаметра и
овальность - не более +1,0 мм. Отклонение расстояния между центрами отверстий в
группе не должно превышать 1,0 мм как для смежных, так и для крайних отверстий.
Несовпадение осей отверстий (чернота) не более 1,5 мм.
6 При сборке соединений резьба болтов не должна находиться в отверстии
на глубине более половины толщины элемента, прилегающего к гайке. В односрезных
соединениях головки болтов следует располагать со стороны более тонкого элемента,
в двухсрезных - со стороны более тонкой накладки.
7 Под головки болтов и под гайки должны устанавливаться по одной круглой
шайбе.
8 Гайки должны быть закреплены от самоотвинчивания постановкой
контргаек.
9 Гайки и контргайки должны быть затянуты до отказа ключом с длиной
рукоятки 150 - 200 мм для болтов М12, 250 - 300 мм - М16, 450 - 500 мм - М20,
600 - 650 мм - М24 с усилием не менее 30 кг.
10 Плотность стяжки пакета проверяется щупом толщиной 0,3 мм, который не
должен проникать в зону крайнего отверстия, ограниченную радиусом 1,3d0 от центра этого отверстия.
В Фланцевые соединения на высокопрочных
болтах.
1 Изготовление и монтаж конструкций с сланцевыми соединениями следует
выполнять в соответствии с разделом IV общих
данных, «Рекомендациями по расчету, проектированию, изготовлению и монтажу
фланцевых соединений стальных строительных конструкций» (ВНИПИПСК, ЦНИИПСК,
Москва, 1989 г.) и настоящими Указаниями.
2 Высокопрочные болты, гайки и шайбы принимать:
- болты М24-6gx1.110ХЛ1
ГОСТ
22353-77*;
- гайки М24-6Н.110ХЛ1 ГОСТ
22354-77*;
- шайбы 24 ГОСТ
22355-77*.
Технические требования и
материал болтов, гаек и шайб по ГОСТ
22356-77*.
3 Для фланцев элементов стальных конструкций, подверженных растяжению,
изгибу или их совместному действие следует применять листовую сталь по ГОСТ 19903-74* с гарантированными механическими свойствами в направлении толщины
проката по ТУ 14-1-4431-88 классов 3 - 5 марок 09Г2С-15 и 14Г2АФ-15 или по ТУ
14-105-465-89 марки 14Г2АФ-15.
Фланцы могут быть выполнены
из листовой низколегированной стали С345, С375 по ГОСТ
27772-88 категории качества 3 или 4 при относительном сужении в направлении
толщины проката Ψz ≥ 15 %.
Проверку механических
свойств стали в направлении толщины проката осуществляет завод - изготовитель
строительных стальных конструкций по методике, изложенной в приложении 8
«Рекомендаций…» (см. п. 1 настоящего раздела).
4 При сверлении отверстий использовать кондукторы либо другое
специализированное оборудование, обеспечивающее выполнение требований по
качеству и допускаемым отклонениям в размерах отверстий в соответствии с
требованиями по изготовлению.
Диаметр отверстий - 28 мм,
кроме оговоренных на чертежах КМ.
5 Качество стали для фланцев должно удовлетворять требованиям, указанным
в таблице 1 «Рекомендаций…» (см. пункт 1 настоящего раздела).
Контроль качества стали
методами ультразвуковой дефектоскопии осуществляет завод - изготовитель
строительных стальных конструкций.
6 Контроль качества сварных швов, соединяющих фланцы с поясами ферм
производить в соответствии с табл. 1 и 4 ГОСТ 23118-99 и табл. 8, 9, 10 СП 53-101-98.
7 Контактные поверхности фланцев на заводе - изготовителе не грунтовать и
не окрашивать, на монтаже обрабатывать стальными щетками.
8 Конструкции с фланцевыми соединениями должны проходить общую сборку на
заводе - изготовителе, в процессе которой проверяется соответствие их чертежам
и выполнение требований по допускам.
Конструкции, выполненные с
отклонениями, превышающими допускаемые, подлежат отбраковке. Категорически
запрещается производить стяжку фланцев в случае превышения допускаемых зазоров
между фланцами.
9 Для обеспечения плотного прилегания фланцев необходимо производить
фрезерование торцевых поверхностей в готовом изделии (после их приварки).
10 Результаты натяжения и контроля за натяжением должны регистрироваться
в журнале контроля за выполнением монтажных соединений на высокопрочных болтах.
11 Постановка шайб под гайками и головками болтов обязательна.
12 Плотность стяжки фланцев ферм контролируется щупом толщиной 0,1 мм,
который не должен проникать в зону крайнего отверстия, ограниченную радиусом
1,3d0 от центра этого отверстия.
(справочное)
1 Общая часть
1.1 Настоящие указания распространяются на защиту от коррозии стальных
строительных конструкций, эксплуатирующихся в слабоагрессивных условиях и
неагрессивных условиях внутри помещений.
1.2 Защита стальных строительных конструкций от коррозии должна
производиться в соответствии с требованиями СНиП 2.03.11-85 «Защита строительных
конструкций от коррозии», ГОСТ 9.402-80 «Подготовка металлических поверхностей перед окрашиванием», СНиП 3.04.03-85 «Защита строительных конструкций и сооружений от коррозии».
1.3 Для обеспечения надежности защитных покрытий металлоконструкции должны
быть полностью защищены от коррозии на заводе - изготовителе. При отсутствии у
Заказчика возможности размещения заказа на заводе, имеющем оборудование для
полной защиты от коррозии металлоконструкций, допускается подготовку
поверхности и грунтование проводить на заводе, а окончательную окраску на
строительно-монтажной площадке.
1.4 Технологический процесс защиты металлоконструкций от коррозии включает
в себя следующие операции:
- подготовку поверхности
перед окрашиванием;
- нанесение и сушку
лакокрасочных покрытий;
- контроль качества
выполняемых работ.
2 Подготовка поверхности перед окрашиванием
2.1 Подготовка поверхности включает в себя очистку поверхности
металлоконструкций от окислов (прокатной окалины и ржавчины), механических,
жировых и других загрязнений.
Предварительно с поверхности
металлоконструкций должны быть полностью удалены вспомогательные элементы,
заусенцы, сварочные брызги, остатки флюса, зачищены сварные швы, скруглены
острые кромки радиусом менее 0,3 мм с помощью ручного или механизированного
абразивного инструмента.
2.2 Обезжиривание поверхности следует производить до степени 1 по ГОСТ 9.402-80 кистями или ветошью, смоченными уайт - спиритом, нефрасом или бензином
марки Б-70.
2.3 Очистку поверхности вновь изготавливаемых конструкций от окислов
следует производить дробеметным или дробеструйным (пескоструйным) способами до
степени 3 по ГОСТ 9.402-80 при условии, что интервал с момента изготовления окрашенных
металлоконструкций до подведения тепла в здании не превышает 6 месяцев и до
степени 2 - при интервале более 6 месяцев. При этом окрашенные
металлоконструкции должны храниться на деревянных подкладках с прокладками из
полиэтиленовой пленки.
Поверхность, очищенная до
степени 2, должна быть матовой, серого цвета, с равномерной шероховатостью,
максимальная величина которой составляет 40 мкм, без видимых невооруженным
глазом остатков продуктов коррозии и прокатной окалины.
На поверхности
металлоконструкций, очищенных от окислов до степени 3, допускается наличие
отдельных полос и вкраплений ржавчины и прокатной окалины, занимающих не более
5 % поверхности.
2.4 Для исключения образования на очищенной поверхности вторичной ржавчины
интервал между подготовкой поверхности и нанесением защитных покрытий должен
быть сведен до минимума. Он не должен превышать 6 часов на открытом воздухе и
24 часов внутри помещений в условиях, исключающих попадание на очищенную
поверхность пыли, масла, влаги, др. загрязнений и конденсацию на ней влаги.
3 Нанесение лакокрасочных покрытий
3.1 Цвет покрытия выбирается Заказчиком в соответствии с рекомендациями архитектора.
3.2 Нанесение лакокрасочных покрытий следует производить по одному из
вариантов: вариант 1 - при интервале с момента изготовления окрашенных
металлоконструкций до подведения тепла в здание не более 6 месяцев, вариант 2 -
при интервале от 6 месяцев до 2-х лет.
Вариант 1
1 Грунтовка ГФ-0119 (или ФЛ-ОЗК, ГФ-021) - 1 слой;
2 Эмаль ПФ-115 (или ПФ-133) - 2 слоя.
Общая толщина покрытия
составляет не менее 60 мкм.
Вариант 2
1 Грунтовка ВЛ-02 - 1 слой;
2 Грунтовка АК-070 (или АК-069) - 1 слой;
3 Эмаль ХВ-124 (или ХВ-125, ХВ-16) - 4 слоя.
Общая толщина
покрытия составляет не менее 110 мкм.
3.3 Нанесение лакокрасочных покрытий следует производить при температуре
окружающего воздуха не ниже 15 °С и относительной влажности воздуха не выше 80
%, если нет других указаний в нормативно-технической документации на каждый
конкретный материал.
3.4 Нанесение лакокрасочных покрытий следует производить методами
пневматического или безвоздушного распыления. При окрашивании мест крепежа и
исправлении дефектов покрытия металлоконструкций после его монтажа допускается
применение кисти.
Для обеспечения
качественного окрашивания наиболее коррозионно-уязвимых мест следует острые
кромки, углы, сварные швы и труднодоступные места перед распылением окрашивать
кистью.
3.5 Лакокрасочные материалы следует подготавливать к работе в соответствии
с ГОСТ или ТУ на эти материалы.
3.6 Лакокрасочные покрытия, повреждённые в результате транспортирования,
хранения и монтажа металлоконструкций, должны быть восстановлены.
4 Контроль качества
4.1 Используемые лакокрасочные материалы должны соответствовать
требованиям ГОСТ или ТУ на эти материалы, иметь паспорта заводов -
изготовителей и не истекший срок годности.
4.2 Качество нанесенного покрытия контролируют по внешнему виду путем визуального
осмотра 100 % поверхности конструкций, времени высыхания, адгезии и толщине.
Нанесенное лакокрасочное
покрытие должно быть сплошным (без не прокрашенных мест), без посторонних
включений, потеков, морщин, пузырей, оспин и других дефектов, снижающих
защитные свойства покрытий. Покрытие должно быть однородным и достаточным по
толщине, иметь удовлетворительную адгезию (1 - 2 балла). По своим декоративным
свойствам покрытие должно соответствовать требованиям V - VI класса по ГОСТ
9.032-74.
Адгезию покрытий определяют
методом решетчатых надрезов по ГОСТ 15140-78.
Толщину лакокрасочных
покрытий определяют методом неразрушающего контроля с помощью толщиномеров
магнитного или электромагнитного типов, например МТ-33Н, МТ-50НЦ или других
марок.
Предпочтительно нанесение
лакокрасочных покрытий различных цветов (каждый слой своего цвета), что
позволяет проконтролировать порядок и количество нанесенных слоев покрытия и
получить лакокрасочное покрытие более высокого качества.
4.3 Выполненные в соответствии с настоящими требованиями покрытия
обеспечивают защиту металлоконструкций от коррозии в течение 5 лет для системы
покрытий по варианту 1 и 10 лет - для варианта 2.
5 Защита монтажных соединений на болтах
5.1 Защиту соединений на высокопрочных болтах следует выполнять в
соответствии с п. 4.34 СНиП 3.03.01-87, а также с учетом следующих
требований: контуры накладок, головки болтов, гайки и выступающие из них части
резьбы болтов следует защищать, применяя эмаль с алюминиевой пудрой в
соответствии с указаниями в пункте 5.2.
5.2 Для защиты стыков на высокопрочных болтах на монтажной площадке
следует применять эмали, указанные в разделе 3, с исходной вязкостью (без разбавления
растворителем) с добавлением алюминиевой пудры до консистенции, исключающей
затекание эмали внутрь пакета более чем на 20 мм.
5.3 Зазоры в стыках между элементами, соединяемыми на высокопрочных болтах
(см. рис. 1), следует заполнить нетвердеющей герметизирующей мастикой НГМ по ГОСТ 14791-79.

Рис. 1
5.4 После сборки соединения на болтах без контролируемого натяжения
монтажные соединения, включая головки болтов, гайки, выступающие части резьбы
болтов, должны быть очищены, огрунтованы, а щели в местах перепадов
зашпатлеваны.
Для защиты соединения на
болтах может использоваться грунтовка, применяемая для защиты соответствующей
конструкции. Для шпатлевки следует использовать состав по рецептуре в пункте 5.2.
6 Техника безопасности
При проведении
антикоррозионных работ необходимо руководствоваться:
- СНиП
12-03-99 «Безопасность труда в строительстве. Часть 1. Общие требования»;
- ГОСТ 12.3.005-75
«Работы окрасочные. Общие требования безопасности»;
- ГОСТ
12.4.011-75 «Средства защиты работающих. Классификация»;
- ГОСТ
12.3.016-87 «Антикоррозионные работы в строительстве. Требования
безопасности»;
- ГОСТ
12.1.005-76 «Воздух рабочей зоны».
(справочное)
1 Для обеспечения работоспособности стальных конструкций, надежности и
долговечности при эксплуатации, их изготовление должно выполняться на
специализированном заводе, имеющем опыт изготовления подобных конструкций.
2 Изготовления стальных конструкций выполнять в соответствии с ГОСТ 23118-99 «Конструкции стальные строительные», СП 53-101-98 «Изготовление и контроль качества стальных строительных конструкций»,
указаниями и требованиями настоящего проекта КМ, а также с учетом
дополнительных технических требований монтажной организации.
3 Монтаж стальных конструкций производить с соблюдением требований СНиП 3.03.01-87 «Несущие и ограждающие конструкции» и в соответствии с разработанным
специализированной организацией «Проектом производства работ» (ППР), в котором
необходимо учесть всю специфику данного сооружения.
Принципиальные решения по
ППР следует согласовать с авторами проекта КМ.
(обязательное)
1 Данные об элементах металлических конструкций, разработанных в
чертежах марки КМ, вносят в таблицу по форме 1:
Форма 1

В графах таблицы сечений и усилий
по форме 1
следует приводить:
в графе «Марка» - марку
элемента по схеме расположения элементов или общему виду;
в графе «эскиз» -
расположение деталей сечения элемента, позиции деталей сечения, необходимые
размеры;
в графе «поз.» - порядковые
номера позиций деталей;
в графе «состав» -
сокращенное обозначение профилей, составляющих сечение, состоящее из условного
обозначения профилей по ГОСТ 2.410
и номера или размеров профиля по соответствующим стандартам или техническим
условиям. При выполнении таблицы автоматизированным способом
допускаются другие условные обозначения профилей;
в графе «Усилие для прикрепления» -
А - реакция в опорном сечении элемента, кН;
N - продольное усилие в элементе, кН;
М - изгибающий момент в опорном сечении элемента, кН.м;
в графе «Наименование или марка металла» - наименование или марку
металла для всего элемента, если все детали элемента выполнены из одного
металла, и по позициям, если наименование или марки металла деталей различны;
в графе «Примечание» - указывают другие необходимые данные об элементе.
Пример заполнения таблицы сечений и усилий приводится:
Таблица
сечений и усилий
Форма 1
Марка
|
Сечение
|
Усилие для прикрепления
|
Наименование или марка металла
|
Примечание
|
эскиз
|
поз.
|
состав
|
А, тс
|
N, тс
|
М, тс. м
|
ФС1
|
Сложный
|
|
|
|
|
|
|
Лист 12
|
Б1
|

|
1
|
I 40Б1
|
20
|
-
|
-
|
С345-3
|
|
2
|
L 100×8
|
-
|
-
|
-
|
С245
|
|
Б2
|

|
1
|
-900×8
|
30
|
-
|
80
|
С345-3
|
|
2
|
-200×16
|
|
К1
|

|
|
I 40Ш1
|
14
|
-38
|
-41
|
С345-3
|
|
2 В чертежах марки КМ, в зависимости от характера конструктивного
элемента схемы, допускается применение других таблиц сечений и усилий.
(справочное)


Ключевые слова: система проектной документации для строительства,
конструкции металлические, общие данные, нагрузки и воздействия, спецификация
металлопроката