КАРТА ТРУДОВОГО ПРОЦЕССА СТРОИТЕЛЬНОГО ПРОИЗВОДСТВА
|
КТ-4.1-4.4-77
|
|
Разработана конструкторско-технологическим институтом Минпромстроя СССР*
Откорректирована и рекомендована ВНИПИ труда в строительстве Госстроя СССР для внедрения в строительное производство
|
|
УСТАНОВКА КОЛОНН В СТАКАНЫ ФУНДАМЕНТОВ С ПОМОЩЬЮ РШИ
|
|
Входит в комплект карт ККТ-4.1-4
Монтаж сборных железобетонных конструкций каркасных зданий
|
|
Взамен КТ-4.1-4.4-70
|
|
*
300600,
г. Тупа, проспект Ленина, 108.
1.1. Карта предназначена для организации труда рабочих при установке колонн массой до 6 т в стаканы фундаментов с помощью рамно-шарнирных индикаторов (РШИ).
1.2. Показатели производительности труда
|
По карте
|
По ЕНиР
|
Выработка на 1 чел.-день, колонн
|
6,9
|
1,7
|
Затраты труда на одну колонну, чел-ч
|
1,17
|
4,70
|
Примечание. В затраты труда включено время на
подготовительно-заключительные работы и отдых.
1.3. Снижение затрат труда и повышение выработки рабочих достигается за счет использования рамно-шарнирных индикаторов (РШИ).
2.1. До начала работ необходимо: закончить устройство фундаментов под каркас здания; инструментально проверить положение фундаментов в плане; вынести на фундаменты основные разбивочные оси и отметки; принять меры к предотвращению засорения стаканов фундаментов грунтом и строительным мусором; засыпать пазухи фундаментов; складировать колонны на приобъектном складе (или доставлять их в соответствии с почасовым графиком монтажа); подготовить места приемки раствора для выравнивания дна стаканов фундаментов и замоноличивания стыков; доставить в зону монтажа приспособления, инвентарь и разложить их на рабочем месте; установить рамно-шарнирные индикаторы на верхних обрезах фундаментов и выверить их по базовым осям.
2.2. Работы следует выполнять, строго соблюдая правила техники безопасности и охраны труда рабочих согласно СНиП III-А.11-70, § 14.
3.1. Исполнители
монтажник конструкции V разряда (М1) - 1
монтажник конструкций IV (М2) - 1
монтажник конструкций III (М3) - 1
монтажник конструкций II (М4) - 1
3.2. Инструменты, приспособления и инвентарь
Наименование, назначение и основные параметры
|
ГОСТ, № чертежа
|
Количество,
шт.
|
Строп двухветвевой
|
РЧ-507-72 ЦНИИОМТП*
|
1
|
Ящик стальной для раствора
|
-
|
1
|
Лом монтажный
|
ГОСТ 1405-72
|
1
|
Щетка стальная
|
Каталог-справочник ЦНИИТЭстроймаша, ** стр. 83
|
1
|
Приспособление для проверки вертикальности колонн
|
Рабочие чертежи СУ-19 треста Мосстрой-4 ***
|
1
|
Шаблон для разметки колонн
|
Рабочие чертежи треста Мосоргстрой ****
|
1
|
Кувалда (5,5 кг)
|
ГОСТ 11402-65
|
1
|
Метр стальной складной
|
ГОСТ 7253-54
|
1
|
Ковш штукатурный для раствора
|
ГОСТ 7945-63
|
1
|
Кельма
|
ГОСТ 9533-71
|
1
|
Лопата
|
ГОСТ 3620-63
|
1
|
* Рабочие чертежи
можно приобрести в Бюро внедрения ЦНИИОМТП.
** 121019, Москва, Г-19, ул.
Маркса и Энгельса, 7/10.
*** Москва, В-44, Ленинский
проспект, 2г.
**** 113095, Москва, Ж-95,
Б. Полянка, 51а.
4.1. Операции по установке колонны выполняют в следующем порядке: подготовляют колонну и фундаменты; стропят и перемещают колонну к месту установки; устанавливают в рабочее положение поворотно-выдвижную люльку РШИ; устанавливают колонну в стакан фундамента; временно закрепляют и выверяют ее положение при помощи РШИ; расстроповывают колонну.
4.2. После установки колонн каждой ячейки и последующей инструментальной проверки их положения звено бетонщиков замоноличивает колонны в фундаментах.
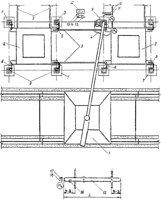
4.3. Организация рабочего места

- рабочие места монтажников
1 -
кран; 2 - рамно-шарнирные индикаторы; 3 - соединительные тяги; 4 -
поворотно-выдвижная люлька; 5 - поворотные хомуты; 8 - откидные хомуты; 7 - фундаменты;
8 - установленные колонны; 9 - монтируемая колонна; 10 - приспособление для
проверки вертикальности колонн; 11 - монтажный лом; 12 - ящик с раствором; 13 -
штукатурный ковш; 14 - кельма; 15 - колонна, подготовленная к установке; 16 -
шаблон для разметки колонн; 17 - стальная щетка; 18 - кувалда; 19 - лопата
4.4. График трудового процесса

4.5. Описание операции
№ по графику
|
Наименование операций, их продолжительность *, исполнители и орудия труда; характеристика приемов труда
|
1
|
2
|
1
|
ПОДГОТОВКА КОЛОННЫ К УСТАНОВКЕ; 13,5 мин; М4; шаблон для разметки колонн, метр, щетка, кувалда
Монтажник М4 осматривает колонну, проверяет наличие и правильность расположения закладных деталей, а также основные размеры колонны. С помощью кувалды и стальной щетки он очищает закладные детали и оголовок колонны от наплывов бетона, грязи, наледи.



|
|
Затем последовательно прикладывает шаблон на одном уровне к углам колонны, прижимает его створки к граням колонны и графитовым стержнем по рабочей грани створки шаблона наносит на колонну риску. Прикладывая шаблон к другой грани колонны, монтажник наносит вторую риску. На другом конце колонны он выполняет аналогичные операции, после чего проводит между рисками сплошную линию, являющуюся фактической осью колонны


|
3
|
ПОДЪЕМ И ПЕРЕМЕЩЕНИЕ КОЛОННЫ К МЕСТУ УСТАНОВКИ; М2 - 1 мин; М4 - 0,5 мин; строп
По команде монтажника машинист крана переводит колонну в вертикальное положение и приподнимает ее на 20 - 30 см от земли. Убедившись в надежности строповки, монтажник М4 подает команду машинисту крана переместить колонну в зону монтажа. Монтажник М2 центрирует колонну над хомутом РШИ

|
4
|
ПОДГОТОВКА ФУНДАМЕНТА К УСТАНОВКЕ КОЛОННЫ; 3,5 мин: М1, М2, М3; ящик с раствором, ковш, кельма, лопата
Монтажники М1 и М2 снимают с фундамента деревянный щит (крышку) и при необходимости лопатой и кельмой очищают дно стакана от грунта и мусора. Монтажник М1 восстанавливает риски и отметку дна стакана фундамента. Монтажник М3 лопатой укладывает раствор на дно стакана, а монтажник М2 кельмой разравнивает и заглаживает его

|
5
|
УСТАНОВКА ПОВОРОТНО-ВЫДВИЖНОЙ ЛЮЛЬКИ В РАБОЧЕЕ ПОЛОЖЕНИЕ; 1,5 мин; М3
Монтажник М3, ослабив зажимной винт фиксатора, вращением рукоятки против часовой стрелки поворачивает люльку в рабочее положение, а затем, вращая рукоятку по часовой стрелке, закрепляет люльку

|
6
|
УСТАНОВКА КОЛОННЫ В СТАКАН ФУНДАМЕНТА; 7 мин; М1, М2, М3; строп
Монтажник М2, стоя на верхней площадке РШИ, принимает и наводит колонну на хомут. Машинист крана плавно опускает колонну, а монтажник М3, находящийся в поворотно-выдвижной люльке, удерживает ее от раскачивания. Монтажник М1, стоя на фундаменте, принимает колонну, ориентирует над стаканом фундамента и подает команду машинисту крана опустить ее

|
7
|
ВРЕМЕННОЕ ЗАКРЕПЛЕНИЕ КОЛОННЫ ХОМУТОМ; 2 мин; М1, М2, М3; строп, лом, приспособление для проверки вертикальности колонны
Монтажники М2 и М3 заводят колонну в угловой упор корпуса хомута, охватывают ее прижимным тросом, конец которого закрепляют на корпусе хомута. Затем вращением штурвала натяжного механизма прижимают колонну к двум граням хомута. Равномерное притяжение колонны обеспечивается установленной на хомуте скобой, отклоняющей трос.

|
|
Монтажник М1 прикладывает приспособление для проверки вертикальности к грани колонны так, чтобы оно опиралось своими внутренними упорами на две плоскости, и по уровням следит одновременно за положением двух плоскостей колонны. Монтажник М3 по команде монтажника М1 ломом рихтует низ колонны до тех пор, пока она не займет строго вертикальное положение

|
8
|
РАССТРОПОВКА КОЛОННЫ; 1,5 мин; М2; строп
После установки и закрепления колонны машинист крана ослабляет натяжение ветвей стропа, а монтажник М2, стоя на верхней площадке РШИ, расстроповывает колонну и подает команду машинисту крана поднять строп

|
*
На одну колонну.
СОДЕРЖАНИЕ
|