Информационная система
«Ёшкин Кот»

XXXecatmenu

СОВЕТ ЭКОНОМИЧЕСКОЙ ВЗАИМОПОМОЩИ

СТАНДАРТ СЭВ

СТ СЭВ 4398-83

 

СВЕКЛОРЕЗКИ

Типы, основные параметры и размеры

 

 

Группа Г74

 

Утвержден Постоянной Комиссией по сотрудничеству
в области стандартизации

Дрезден, декабрь 1983 г.

Настоящий стандарт СЭВ распространяется на свеклорезки, применяемые в свеклосахарном производстве.

1. ТИПЫ

Устанавливаются три типа свеклорезок:

1 - центробежные свеклорезки;

2 - барабанные свеклорезки;

3 - дисковые свеклорезки.

2. ОСНОВНЫЕ ПАРАМЕТРЫ И РАЗМЕРЫ

Основные параметры и размеры свеклорезок должны соответствовать указанным в таблице и на черт. 1 - 3.

Пример условного обозначения центробежной свеклорезки с 12 ножевыми рамами и внутренним диаметром барабана 1200 mm.

Свеклорезка 1-1200´12 СТ СЭВ 4398-83

Параметр

Значение параметра для свеклорезок

типа 1

типа 2

типа 3

Количество ножевых рам, шт.

12

16

24

8

12

18

20

22

24

28

Количество ножей в раме, шт.

2

2

2

6

3

3

2

2

2

Производительность резания*, t/сут., не менее

1510

2000

3000

1500

2000

2100

2160

2000

2500

3000

Скорость резания, регулируемая, m/s

До 8

До 8

До 6

До 6

До 6

До 7

До 7

Диаметр барабана** (внутренний) D, mm

1200

1600

1600

1200

2000

2000

2000 2200

2200 2000

2400

Установленная мощность, kW, не более

75

100

125

55

71

50

50

65

60

80

Габаритные размеры, man, не более:

длина L

4830

5710

5500

4700

3700

3700

3500

3600

4200

ширина В

2260

2660

3000

1900

2400

2400

2650

2400

3000

высота Н

3150

3600

4100

2100

3600

3600

2800

2700

2800

Масса с тиристорным преобразователем, kg, не более

6950

9930

12000

8000

7000

7000

7700

7700

10500

* Для типов 1 и 2 при средней скорости резания. Для типа 1 при массе стружки в 100 g, длине 8 m и обозначении шага ножа 8.

** Для типа 3 диаметр диска

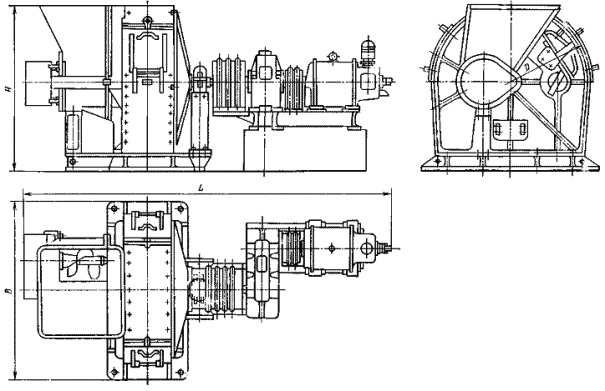
Тип 1

Черт. 1

Тип 2

Черт. 2

Тип 3

Черт. 3

Примечание к черт. 1 - 3. Чертежи не определяют конструкцию.

 

ИНФОРМАЦИОННЫЕ ДАННЫЕ

 

1. Автор - делегация СССР в Постоянной Комиссии по сотрудничеству в области машиностроения.

2. Тема - 17.144.02-81.

3. Стандарт СЭВ утвержден на 54-м заседании ПКС.

4. Сроки начала применения стандарта СЭВ:

Страны - члены СЭВ

Сроки начала применения стандарта СЭВ

в договорно-правовых отношениях по экономическому и научно-техническому сотрудничеству

в народном хозяйстве

НРБ

-

-

ВНР

-

-

СРВ

 

 

ГДР

 

 

Республика Куба

 

 

МНР

 

 

ПНР

 

 

СРР

Январь 1986 г.

-

СССР

Январь 1986 г.

Январь 1986 г.

ЧССР

Январь 1986 г.

Январь 1986 г.

5. Срок проверки - 1990 г.

 

СОДЕРЖАНИЕ

 

 



© 2013 Ёшкин Кот :-)