Информационная система
«Ёшкин Кот»

XXXecatmenu

МИНИСТЕРСТВО ТРАНСПОРТА РОССИЙСКОЙ ФЕДЕРАЦИИ

ГОСУДАРСТВЕННАЯ СЛУЖБА ДОРОЖНОГО ХОЗЯЙСТВА

(РОСАВТОДОР)

Введены в действие

распоряжением Минтранса России

от 23.05.2003 г. № ОС-468-р

ТЕХНОЛОГИЧЕСКИЕ КАРТЫ
НА УСТРОЙСТВО ЗЕМЛЯНОГО
ПОЛОТНА И ДОРОЖНОЙ ОДЕЖДЫ

Москва 2004

Работа выполнена в институте проблем дорожно-транспортного комплекса (Дортранснии) Ростовского государственного строительного университета.

Руководители разработки: д-р техн. наук, профессор Илиополов С.К., канд. техн. наук, доцент Матуа В.П.

Исполнители: канд. техн. наук, доцент Баранова Е.М. (тех. карты № 3, № 5, № 7, № 9, № 13, № 14, № 16, № 17); канд. техн. наук, доцент Аннабердиев А.Х. (тех. карта № 1, приложение 1, вопросы безопасности труда и выбора комплекта машин); инженеры Дружинин В.И., Ярмов М.Н., совместно (тех. карты № 2, № 4, № 6, № 8, № 10, № 11, № 12, № 15, № 18); инж. Тимофеев Ю.Л. (тех. карта № 8).

В составлении электронного варианта технологических планов специализированных потоков и построении почасовых графиков использования машин и механизмов принимали участие инженеры Игнатенко А.М., Рудов И.А. и Токарев А.Ю.

ОБЩАЯ ЧАСТЬ

Типовые технологические карты по сооружению земляного полотна и устройству конструктивных слоев дорожных одежд разработаны в целях обеспечения дорожного строительства наиболее рациональными решениями по технологии и организации производства работ, повышения производительности труда и качества выполняемых технологических процессов.

Настоящие типовые технологические карты состоят из двух разделов:

Раздел 1 - Сооружение земляного полотна автомобильных дорог;

Раздел 2 - Устройство оснований и покрытий дорожных одежд.

В комплект технологических карт по сооружению земляного полотна в качестве примера включены следующие виды работ:

1. Возведение насыпи земляного полотна автомобильных дорог из грунта боковых резервов бульдозером.

2. Возведение насыпи земляного полотна автомобильных дорог из грунта притрассовых карьеров скрепером.

3. Возведение насыпи земляного полотна автомобильных дорог высотой до 1,5 м с разработкой грунта в карьере экскаваторами и транспортировкой автомобилями-самосвалами.

4. Устройство выемки глубиной 1 м с разработкой грунта скрепером.

5. Возведение насыпи земляного полотна автомобильных дорог высотой 9 м с разработкой грунта в карьере экскаваторами и транспортировкой автомобилями-самосвалами.

6. Возведение земляного полотна типа полувыемка-полунасыпь.

7. Устройство выемки глубиной 5 м с разработкой грунта экскаваторами и транспортировкой автомобилями-самосвалами.

8. В специальном разделе приведена технология и организация производства геодезических работ при устройстве земляного полотна для различных форм рельефа местности.

В комплект технологических карт по устройству оснований и покрытий дорожных одежд включены следующие виды дорожно-строительных работ:

9. Устройство двухслойного щебеночного основания автомобильных дорог по методу заклинки.

10. Устройство однослойных щебеночных (гравийных) оснований и покрытий автомобильных дорог из плотных смесей.

11. Устройство щебеночного основания, обработанного в верхней части пескоцементной смесью методом пропитки (вдавливания).

12. Устройство основания из «тощего» бетона класса В5 (М75) с использованием бетоноукладчика ДС-111.

13. Устройство щебеночного покрытия (основания) автомобильных дорог по способу пропитки битумом.

14. Устройство верхнего слоя основания дорожных одежд из гравийной смеси по способу смешения на дороге.

15. Строительство двухслойных асфальтобетонных покрытий автомобильных дорог.

16. Устройство цементобетонного покрытия шириной 7,5 м и толщиной 0,2 м с использованием комплекта машин ДС-110.

17. Устройство одиночной поверхностной обработки на вязких битумах.

18. Устройство двойной поверхностной обработки с применением катионных битумных эмульсий.

19. Регенерация дорожной одежды методом холодного ресайклинга с применением ресайклера WR 2500 и смесительной установки WM 400.

Выполнение работ предусмотрено комплексными механизированными звеньями.

Технологические карты предназначены для практического применения при строительстве, реконструкции автомобильных дорог, разработке проектно-технологической документации; обучения рабочих и специалистов дорожно-строительных организаций передовой технологии и организации работ, а также для студентов высших и среднетехнических учебных заведений дорожной специальности.

При производстве работ должны выполняться требования СНиП 3.06.03-85 «Автомобильные дороги», СНиП 2.05.02-85 «Автомобильные дороги».

Организационно-технические и технологические решения, которые легли в основу при разработке карт, приведены в положениях действующих строительных норм и правил (СНиП), единичных расценок на строительные и монтажные работы (ЕНиР) и обеспечивают достижение высоких технико-экономических и качественных показателей.

При составлении технологических карт были использованы разработки Всесоюзного проектно-технологического института транспортного строительства «ВПТИТРАНССТРОЙ», Союздорнии, Росдорнии, Миндорстроя Украины, МАДИ (ГТУ), СибАДИ, а также передовой отечественный и зарубежный опыт строительства в дорожной отрасли.

Технологические планы потоков по возведению насыпи и разработке выемок земляного полотна, устройству конструктивных слоев дорожных одежд и слоев износа содержат описание рабочих процессов в их технологической последовательности с указанием и расчетом потребных ресурсов, почасовыми графиками использования машин и механизмов и схемой организации их движения при производстве работ.

В технологических картах приводятся объемы производимых работ по процессам на принятую сменную захватку и на укрупненный показатель (на устройство 1 км земляного полотна, слоя основания или покрытия) с расчетом производительности механизмов по нормативным источникам или формулам (приложение 1).

В конце каждой технологической карты помещаются сведения о составе отряда с необходимым количеством рабочих (в чел.-днях) и машин (в маш.-сменах). Заработная плата рабочих определяется по существующей тарифной сетке (приложение 2).

Количество захваток должно быть оптимальным. Чем меньше общий фронт работ, тем легче управлять работами и легче, при необходимости, использовать машины на нескольких захватках. При этом длина сменной захватки может быть определена в зависимости от наибольшей производительности ведущей машины, АБЗ, ЦБЗ, заданных объемов работ или срока строительства (приложение 3).

При организации работ необходимо стремиться к полной загрузке каждого механизма. В тех случаях, когда машины не могут быть полностью загружены на одной захватке, их используют на других захватках.

Скорость потока - производительность отряда в смену определяется исходя из наличия в отряде комплекта ведущих машин и по этой же производительности подбирают остальные машины отряда.

После того как назначено количество захваток, рассчитывают потребное число механизмов и определяют коэффициент внутрисменной их загрузки. Затем составляют технологический план потока с указанием порядковых номеров процессов, выполняемых на разных захватках. Они должны соответствовать нумерации, принятой в технологической последовательности работ, составленной в табличной форме.

В тех случаях, когда одна и та же машина используется на двух или нескольких захватках, то на схеме она обозначается одинаковым номером.

Операционный контроль качества работ по устройству земляного полотна следует осуществлять в соответствии с технологией контроля качества, которая приводится в каждой карте применительно к конкретным видам работ.

Во всех случаях применения технологических карт необходима привязка их к местным условиям. При этом следует уточнить потребное количество трудовых и материально-технических ресурсов, а также, в зависимости от дальности транспортировки материалов, определить расчетным путем потребное количество транспортных средств. После привязки к конкретным условиям карты могут быть использованы при сооружении земляного полотна и устройстве оснований и покрытий автомобильных дорог любых технических категорий.

РАЗДЕЛ 1. СООРУЖЕНИЕ ЗЕМЛЯНОГО ПОЛОТНА АВТОМОБИЛЬНЫХ ДОРОГ

Технологическая карта № 1

ВОЗВЕДЕНИЕ НАСЫПИ ЗЕМЛЯНОГО ПОЛОТНА АВТОМОБИЛЬНЫХ ДОРОГ ИЗ ГРУНТА БОКОВЫХ РЕЗЕРВОВ БУЛЬДОЗЕРОМ

1. ОБЛАСТЬ ПРИМЕНЕНИЯ

Технологическая карта разработана на возведение земляного полотна высотой до 1,5 м из грунта боковых резервов на основе методов научной организации труда и предназначена для использования при разработке проектов производства работ и организации труда на строительном объекте.

В технологической карте принято возведение насыпи земляного полотна из грунта II группы двусторонних боковых резервов бульдозером. Глубина боковых резервов не должна превышать 1,5 м.

Во всех случаях применения технологической карты необходима привязка ее к конкретным условиям производства работ.

2. ОРГАНИЗАЦИЯ И ТЕХНОЛОГИЯ ПРОИЗВОДСТВА РАБОТ

2.1. Рабочий цикл бульдозера при возведении земляного полотна из боковых резервов состоит из следующих операций:

·        зарезания грунта;

·        перемещения грунта;

·        укладки и распределения грунта;

·        обратного холостого хода.

Зарезание грунта осуществляют прямоугольным, клиновым или гребенчатым способом (рис. 1).

Перемещение грунта к месту укладки начинают сразу же по окончании набора его перед отвалом. Для уменьшения потерь при перемещении грунта применяют два способа: по траншее в грунте естественного состояния; по траншее, образованной из валов грунта, осыпавшегося во время предыдущих проходов бульдозера.

Рис. 1. Способы резания грунта бульдозером:

а - прямоугольный; б - клиновой; в - гребенчатый.

Стрелкой показано направление движения

Укладку перемещаемого грунта выполняют различными способами: «от себя», «на себя», отдельными кучами, «вполуприжим», «вприжим» (рис. 2).

Рис. 2. Схема укладки грунта бульдозером:

а - «от себя»; б - «на себя»; в - «отдельными кучами»; г - «вполуприжим»; д - «вприжим»

Обратный холостой ход осуществляется задним или передним ходом.

При перемещении грунта на расстояние менее чем 50 м холостой ход бульдозера выполняют задним ходом.

2.2. До возведения земляного полотна необходимо:

- восстановить и закрепить трассу дороги и полосу отвода;

- очистить территорию в пределах полосы отвода от кустарника, пней и валунов;

- произвести плановую и высотную разбивку земляного полотна;

- устроить временный водоотвод.

2.3. Работы по возведению земляного полотна (рис. 3) из боковых резервов бульдозером для данного примера выполняются в разработанной технологической последовательности процессов производства работ на семи захватках длиной 200 м каждая (основные земляные работы) и одной - 600 м (заключительные земляные работы). Выполнение работ осуществляется поточным способом.

2.4. На первой захватке выполняются следующие технологические операции:

Рис. 3. Конструкции земляного полотна в поперечном профиле

срезка растительного слоя грунта бульдозером (принят бульдозер ДЗ-171);

уплотнение основания насыпи пневмокатком (принят каток ДУ-101).

Толщину срезаемого растительного слоя грунта устанавливают по согласованию с землепользователем. В карте принята толщина этого слоя 10 см.

Работы выполняют бульдозером ДЗ-171 по поперечной схеме. Грунт срезают от оси дороги поперечными проходами бульдозера, перекрывая каждый предыдущий след на 0,25 - 0,30 м, и перемещают за пределы полосы отвода.

В дальнейшем срезанный растительный грунт используют для укрепления резервов и откосов земляного полотна.

Основание насыпи уплотняют катком ДУ-101 за 4 прохода по одному следу. При уплотнении каждый предыдущий след перекрывают последующим на 1/3 его ширины. Движение катка осуществляется по круговой схеме.

Основание насыпи должно иметь коэффициент уплотнения не ниже 0,98.

2.5. На второй захватке выполняют следующие технологические операции:

·        разработку грунта в резерве и перемещение его в насыпь бульдозером (принят бульдозер ДЗ-171);

·        разравнивание грунта в насыпи бульдозером.

Технологической картой предусмотрено возведение земляного полотна бульдозерами ДЗ-171 общей сменной производительностью 5400 м3/см. Расстояние, на которое перемещают разрабатываемый грунт, составляет 15 м.

Разработку резерва осуществляют по траншейной схеме (рис. 4) с резанием грунта клиновым или гребенчатым способом (рис. 1). При поперечном уклоне резерва в сторону насыпи резание выполняют прямоугольным способом.

Рис. 4. Способы траншейной разработки резерва:

1 - 7 - траншеи; 8 - 13 - стенки; z = 0,25 - 0,3 м - ширина перекрытия следа

Разработку грунта следует вести на первой передаче, так как с увеличением скорости возрастают потери грунта.

Первое резание в резерве производят на расстоянии от края подошвы насыпи, обеспечивающем набор грунта на полный отвал.

Для более эффективного использования тяговой мощности трактора разработанный грунт следует перемещать после первого резания к бровке отсыпаемого слоя, а затем вместе с грунтом от второго резания - к оси земляного полотна.

Отсыпают грунт слоями от оси земляного полотна к бровке насыпи у разрабатываемого резерва. При подходе к месту укладки следует приподнять отвал бульдозера и при движении вперед распределить грунт на участке, затем, возвращаясь задним ходом, произвести дополнительную планировку. После разравнивания грунта поверхность каждого слоя должна иметь уклон 30 - 40 %о, на ней не должно быть замкнутых впадин.

После разработки в резерве первой траншеи на глубину, обеспечивающую устройство слоя насыпи заданной толщины (0,20 - 0,30 м), бульдозер перемещают для разработки второй траншеи, отстоящей от первой на 0,6 - 0,8 м.

Технологической картой предусмотрена одновременная разработка боковых резервов с двух сторон земляного полотна.

Грунт межтраншейных стенок следует использовать для отсыпки верхнего слоя или для присыпки обочин.

2.6. На третьей захватке выполняют работы по уплотнению грунта насыпи.

Грунт уплотняют слоями толщиной 0,25 - 0,30 м последовательными круговыми проходами пневмокатка ДУ-101 по всей ширине насыпи за десять проходов по одному следу.

Уплотнять грунт следует при оптимальной влажности, определенной по ГОСТ 22733-77, которая не должна выходить за пределы указанной в табл. 1 для разных типов грунтов.

Таблица 1

Вид грунта

Влажность при требуемом коэффициенте уплотнения

1 - 0,98

0,95

0,90

Пески пылеватые, супеси легкие, крупные

Не более 1,35

Не более 1,6

Не нормируется

Супеси легкие и пылеватые

0,8 - 1,25

0,75 - 1,35

0,7 - 1,6

Супеси тяжелые пылеватые и суглинки легкие пылеватые

0,85 - 1,15

0,8 - 1,2

0,75 - 1,4

Суглинки тяжелые пылеватые, глины

0,95 - 1,05

0,9 - 1,1

0,85 - 1,2

При недостаточной влажности грунт увлажняют с помощью поливомоечной машины. В технологической карте (табл. 3) расход воды на эти цели принят в количестве 3 % от объема грунта.

Уплотнение следует начинать на расстоянии 2 м от бровки насыпи. Затем, смещая каток при каждом последующем проходе на 1/3 ширины следа в сторону бровки, прикатывают края насыпи, после чего уплотнение продолжают круговыми проходами катка, смещая полосы уплотнения от краев насыпи к ее оси, с перекрытием каждого следа на 1/3 ширины.

Каждый последующий проход по одному и тому же следу начинают после перекрытия предыдущими проходами всей ширины земляного полотна.

Требуемый коэффициент уплотнения грунта приведен в табл. 2. При оптимальной влажности грунта для достижения коэффициента уплотнения 0,95 ориентировочно назначают 6 - 8 проходов катка для связных и 4 - 6 - для несвязных грунтов; для достижения коэффициента уплотнения 0,98 - 8 - 12 проходов для связных и 6 - 8 - для несвязных грунтов. Необходимое количество проходов катка по одному следу уточняется пробной укаткой.

Таблица 2

Элементы земляного полотна

Глубина расположения слоя от поверхности покрытия, м

Наименьший коэффициент уплотнения грунта при типе дорожных одежд

капитальном

облегченном и переходном

в дорожно-климатических зонах

I

II, III

IV, V

I

II, III

IV, V

Рабочий слой

До 1,5

0,98 - 0,96

1,0 - 0,98

0,98 - 0,95

0,95 - 0,93

0,98 - 0,95

0,95

Для связных грунтов на начальном этапе уплотнения давление в шинах катка не должно превышать 0,2 - 0,3 МПа, на заключительном этапе - 0,6 - 0,8 МПа. При уплотнении песков давление в шинах на всех стадиях уплотнения не должно быть более 0,2 - 0,3 МПа.

Первый и последний проходы по полосе укатки выполняют на малой скорости пневмокатка (2 - 2,5 км/ч), промежуточные проходы - на большей (до 8 - 10 км/ч).

Отсыпку каждого последующего слоя можно производить только после разравнивания, уплотнения предыдущего и контроля качества работ.

2.7. На заключительном этапе работы выполняются следующие технологические операции:

·        планировка верха земляного полотна автогрейдером;

·        планировка откосов автогрейдером;

·        окончательное уплотнение верха земляного полотна катком;

·        планировка дна резервов автогрейдером;

·        покрытие откосов насыпи и дна резервов растительным грунтом бульдозером.

Технологической картой предусмотрено выполнение планировочных работ автогрейдером ДЗ-122.

Перед началом планировки необходимо проверить и восстановить положение оси и бровок земляного полотна в плане на прямых, переходных и основных кривых, а также в продольном профиле. Порядок производства геодезических работ изложен в технологической карте «Геодезические работы при устройстве земляного полотна».

Планировку следует начинать с наиболее низких участков (в продольном профиле).

Верх земляного полотна планируют путем последовательных проходов автогрейдера, начиная от краев с постепенным смещением к середине. Перекрытие следов составляет 0,3 - 0,5 м. Работы выполняют по челночной схеме за четыре прохода автогрейдера по одному следу.

Откосы насыпи и резервы планируются за два прохода автогрейдера по одному следу при его движении непосредственно по откосу (при заложении откосов не круче 1:3).

Окончательное уплотнение верха земляного полотна после планировки выполняется пневмокатком за два прохода по одному следу. Технология уплотнения аналогична изложенной в п. 2.6.

Дно резерва планируется автогрейдером по челночной схеме за четыре прохода по одному следу.

После окончания планировочных работ на данном участке проводятся работы по восстановлению растительного слоя грунта путем надвижки его на откосы насыпи и резервов бульдозером, перемещая его из валиков в поперечном направлении.

Технологическая последовательность процессов с расчетом объемов работ и потребных ресурсов приведена в табл. 3, состав отряда - в табл. 4.


Таблица 3

Технологическая последовательность процессов с расчетом объемов работ и потребных ресурсов

№ процессов

№ захваток

Источник обоснования норм выработки (ЕНиРы и расчеты)

Описание рабочих процессов в порядке их технологической последовательности с расчетом объемов работ

Единица измерения

Количество работ

Производительность в смену

Потребность в машино-сменах

Затраты труда и заработная плата на захватку длиной 200 м

на захватку l = 200 м

на 1 км

на захватку l = 200 м

на 1 км

Норма времени, чел.-ч

Заработная плата, руб.-коп.

на единицу измерения

на полный объем работ

на единицу измерения

на полный объем работ

1

2

3

4

5

6

7

8

9

10

11

12

13

14

I. Основные земляные работы (захватка l = 200 м)

1

I

Расчет

Снятие растительного слоя грунта толщиной 0,1 м бульдозером ДЗ-171 и перемещение его в обе стороны от оси дороги за пределы резервов в количестве

(21,6 + 18 × 2)0,1·200 = 1152 м3

м3

1152

5760

1206

1,0

4,8

0,014

16,13

0-30

345-60

2

 

Расчет

Уплотнение основания насыпи самоходным катком ДУ-101 на пневматических шинах за 4 прохода по одному следу

м2

4320

21600

8695

0,50

2,5

0,0009

3,89

0-01,93

83-38

3

II

Расчет

Разработка и перемещение грунта II группы бульдозером ДЗ-171 из боковых резервов в насыпь на расстояние до 15 м для отсыпки нижнего слоя насыпи на высоту 0,25 м в количестве

(21,6 + 20,1)/2 × 0,25·1,1·200 = 1146 м3

м3

1146

5730

1080

1,0

5,3

0,0057

6,53

0-12,2

139-81

4

II

Расчет

Разравнивание нижнего слоя грунта в насыпи бульдозером ДЗ-171 с перемещением 30 % грунта на расстояние до 5 м

м3

344

1720

1510

0,2

1,1

0,0039

1,34

0-08,4

28-90

5

 

Расчет

Увлажнение грунта водой до оптимальной влажности поливомоечной машиной МД 433-03 при дальности возки 3 км в количестве 3 % от массы грунта при его плотности 1,75 т/м3:

1146·1,75·0,03

т

60

300

68,0

0,9

4,4

0,079

4,74

1-47

88-20

6

III

Расчет

Уплотнение нижнего слоя грунта в насыпи толщиной 0,25 м в плотном теле самоходным катком ДУ-101 на пневматических шинах при 10 проходах по одному следу

м3

1146

5730

1355

0,8

4,2

0,008

9,17

0-17,2

197-11

7

IV

Расчет

Разработка и перемещение грунта II группы бульдозером ДЗ-171 из резерва в насыпь на расстояние до 15 м для отсыпки среднего слоя насыпи толщиной 0,25 м в количестве

(20,1 + 18,6)/2 × 0,25·1,1·200 = 1064 м3

м3

1064

5320

1080

1,0

4,9

0,0057

6,06

0-12,2

129-81

8

IV

Расчет

Разравнивание среднего слоя грунта в насыпи бульдозером ДЗ-171 при перемещении 30 % грунта на расстояние до 5 м

м3

320

1600

1510

0,2

1,1

0,0039

1,25

0-08,4

26-88

9

 

Расчет

Увлажнение грунта водой до оптимальной влажности поливомоечной машиной МД 433-03 при дальности возки 3 км в количестве 3 % от массы грунта при его плотности 1,75 т/м3:

1064·1,75·0,03

т

56

280

68,0

0,8

4,1

0,079

4,42

1-47

82-32

10

V

Расчет

Уплотнение второго слоя в насыпи самоходным катком ДУ-101 на пневматических шинах при 10 проходах по одному следу

 

1064

5320

1355

0,8

3,9

0,008

8,51

0-17,2

183-01

11

VI

Расчет

Разработка и перемещение грунта II группы из боковых резервов для отсыпки верхнего слоя насыпи толщиной 0,2 м бульдозером ДЗ-171 в количестве

((18,6 + 17,4)/2) × 0,2·1,1·200 = 792 м3

м3

792

3960

1080

0,7

3,7

0,0057

4,51

0-12,2

96-62

12

VI

Расчет

Разравнивание верхнего слоя грунта в насыпи бульдозером ДЗ-171 с перемещением 30 % грунта на расстояние до 5 м

м3

238

1190

1510

0,2

0,8

0,0039

0,93

0-08,4

19-99

13

 

Расчет

Увлажнение грунта водой до оптимальной влажности поливомоечной машиной МД 433-03 при дальности возки 3 км в количестве 3 % от массы грунта при его плотности 1,75 т/м3:

792·1,75·0,03

т

42

210

68,0

0,6

3,1

0,079

3,32

1-47

61-74

14

VII

Расчет

Уплотнение верхнего слоя грунта в насыпи самоходным катком ДУ-101 на пневматических шинах при 10 проходах в среднем по одному следу

м3

792

3960

1355

0,6

2,9

0,008

6,34

0-17,2

136-22

 

 

 

Итого на сменную захватку l = 200 м

 

 

 

 

 

 

 

77,14

 

1619-59

II. Заключительные земляные работы (захватка l = 600 м)

15

VIII

Расчет

Планировка откосов насыпи и боковых резервов длиной до 4 м автогрейдером ДЗ-122 в количестве

(3,6 + 1,4)2·600 = 6000 м2

м2

6000

10000

22860

0,3

0,4

0,00035

2,1

0-00,75

45-00

16

 

Расчет

Планировка поверхности земполотна и дна резервов автогрейдером ДЗ-122 площадью (17,4 + 15,3·2)·600 м2 приданием дну резерва уклона в сторону от оси дороги

м2

28800

48000

47060

0,6

1,0

0,00017

4,9

0-00,37

106-56

17

VIII

Расчет

Уплотнение верха насыпи самоходным катком ДУ-101 на пневматических шинах за 2 прохода по одному следу 17,4·600 = 10440 м2

м2

10440

17400

23500

0,44

0,74

0,00034

3,55

0-00,73

76-21

18

VIII

Расчет

Покрытие откосов насыпи и дна резервов растительным грунтом толщиной 0,1 м бульдозером ДЗ-171 в количестве 3456 м3 при перемещении грунта на среднее расстояние до 10 м

м3

3456

5760

2660

1,3

2,2

0,0003

1,04

0-06,4

221-18

 

 

 

Итого на сменную захватку l = 600 м

 

 

 

 

 

 

 

11-59

 

448-95

Рис. 5. Технологический план потока по возведению насыпи земляного полотна автомобильных дорог из грунта боковых резервов бульдозером


Таблица 4

Состав отряда

Машины

Профессия и разряд рабочего

Потребность в машино-сменах

Коэффициент загрузки

Количество рабочих

Примечание

на 1000 м

на захватку

I. Основные земляные работы (захватка 200 м)

Бульдозер ДЗ-171

Машинист VI разряда

21,7

4,34 (5)

0,87

5

 

Самоходный каток ДУ-101

Машинист VI разряда

13,5

2,7 (3)

0,90

3

 

Поливомоечная машина МД 433-03

Водитель IV разряда

11,6

2,32 (3)

0,77

3

 

II. Заключительные земляные работы (захватка 600 м)

Автогрейдер ДЗ-122

Машинист VI разряда

1,4

0,9 (1)

0,9

1

 

Бульдозер ДЗ-171

Машинист VI разряда

2,2

1,32 (2)

0,67

1

Принимается 1 бульдозер

Самоходный каток ДУ-101

Машинист VI разряда

0,74

0,44 (1)

0,44

1

 

 

ИТОГО:

 

14

 

14

 

Технологический план потока по возведению насыпи земляного полотна приведен на рис. 5.

Технология операционного контроля качества работ при возведении насыпи земляного полотна приведена в табл. 5.

Таблица 5

Технология операционного контроля качества работ при возведении насыпи грунта боковых резервов бульдозером

Основные операции, подлежащие контролю

Состав контроля

Метод и средства контроля

Режим и объем контроля

Лицо, осуществляющее контроль

Предельные отклонения от норм контролируемых параметров

Где регистрируются результаты контроля

1

2

3

4

5

6

7

Снятие растительного слоя грунта

Толщина снимаемого слоя грунта

Инструментальный

Измерительная линейка, визирки

Промеры не реже, чем через 100 м

Мастер

±20 % от проектной толщины

Общий журнал работ

Отсыпка грунта в насыпь

Однородность грунта в теле насыпи

Визуальный

Постоянно

Мастер, лаборант

-

Общий журнал работ

Разравнивание грунта в насыпи

 

Инструментальный

 

Мастер, геодезист

 

Общий журнал работ

Журнал технического нивелирования

1. Толщина слоя

1. Визирки

Промеры не реже, чем через 100 м

1. -

2. Высотные отметки продольного профиля

2. Нивелир, визирки

Промеры не реже, чем через 100 м

2. ±50 мм от проектных значений высотных отметок

3. Расстояние между осью и бровкой земляного полотна

3. Рулетка измерительная

Промеры через 50 м

3. ±10 см от проектных значений ширины

4. Крутизна откосов

4. Уклономер

Промеры через 50 м

4. Не более 10 % от проектного значения в сторону уменьшения

5. Поперечные уклоны

5. Уклономер

Промеры через 50 м

5. ±0,010 от проектных значений поперечных уклонов

Уплотнение грунта в насыпи

 

Визуальный

 

Мастер, лаборант

 

Общий журнал работ

Журнал пробного уплотнения грунта

Журнал контроля плотности земляного полотна

1. Режим уплотнения

1. Визуальный

1. Постоянно

1. -

2. Влажность уплотняемого слоя

Лабораторный

2. Метод режущего кольца

2. Не реже одного раза в смену

2. см. табл. 2

3. Фактическая плотность грунта

3. Метод режущего кольца

3. Не менее трех образцов (по оси земполотна и 1,5 - 2,0 м от бровки) не реже, чем через 50 м - для верхнего слоя, не реже, чем через 20 м - для нижних слоев

3. Снижение плотности грунта на 4 % от проектных значений до 10 % определений, остальные результаты не ниже проектных значений

Планировка верха земляного полотна и откосов

 

Инструментальный

 

Мастер, геодезист

 

Журнал технического нивелирования

Ведомость приемки земляного полотна

1. Высотные отметки продольного профиля

1. Нивелир, визирки

1. Промеры не реже, чем через 100 м

1. ±50 мм от проектных значений высотных отметок

2. Расстояние между осью и бровкой земляного полотна

2. Рулетка измерительная

2. Промеры через 50 м

2. ±10 см от проектных значений

3. Поперечные уклоны

3. Уклономер

3. Промеры не реже, чем через 100 м

3. ±0,010 от проектных значений

4. Ровность поверхности

4. Нивелир, нивелирная рейка

4. Промеры не реже, чем через 50 м в трех точках на поперечнике (по оси к бровкам)

4. ±50 мм от проектных значений

5. Крутизна откосов

5. Уклономер

5. Промеры через 50 м

5. Уменьшение крутизны до 10 % от проектного значения

3. БЕЗОПАСНОСТЬ ТРУДА

К управлению дорожными машинами допускаются лица, достигшие 18 лет, имеющие удостоверение на право управления данной машиной и знающие требования безопасного ведения работ.

При работе по возведению насыпей земляного полотна бульдозерами запрещается:

- производить земляные работы до очистки участка от леса, пней, валунов и разбивки границ полосы отвода;

- производить разработку грунта на расстоянии ближе 1 м от расположения подземных коммуникаций;

- производить без разрешения (ордера на разрытие) от организаций, эксплуатирующих эти коммуникации;

- перемещать грунт на подъем или под уклон более 30°;

- поворачивать бульдозер с загруженным или заглубленным отвалом;

- работать в глинистых грунтах в дождливую погоду;

- находиться на раме рыхлителя в момент опускания зубьев в грунт и во время их подъема.

Во избежание обрушения грунта (сползания насыпи) и опрокидывания бульдозера при сталкивании грунта под откос насыпи или засыпке траншей отвал бульдозера не выдвигается за край откоса, а при устройстве насыпи расстояние от края гусеницы или колеса бульдозера до бровки насыпи должно быть не менее 1 м.

При производстве работ по устройству земляного полотна бульдозером руководствуются следующей технической литературой:

1. СНиП III-4-80. Техника безопасности в строительстве.

2. СНиП 12-03-2001. Безопасность труда в строительстве. Часть I. Общие требования.

3. ТОИ Р-218-05-93. Типовая инструкция по охране труда для машиниста автогрейдера (прицепного грейдера).

4. ТОИ Р-218-07-93. Типовая инструкция по охране труда для машиниста катка.

5. ТОИ Р-218-26-94. Типовая инструкция по охране труда для машиниста автополивомоечной машины.

6. ТОИ Р-218-06-93. Типовая инструкция по охране труда для машиниста бульдозера.

7. Спельман Е.П. Техника безопасности при эксплуатации строительных машин и средств малой механизации. - М.: Стройиздат, 1986. - 271 с.: ил.

Технологическая карта № 2

ВОЗВЕДЕНИЕ НАСЫПИ ЗЕМЛЯНОГО ПОЛОТНА АВТОМОБИЛЬНЫХ ДОРОГ ИЗ ГРУНТА ПРИТРАССОВЫХ КАРЬЕРОВ СКРЕПЕРОМ

1. ОБЛАСТЬ ПРИМЕНЕНИЯ

1.1. Технологическая карта разработана на возведение земляного полотна высотой до 1,5 м из грунта притрассовых карьеров. Ведущий механизм - самоходный скрепер МоАЗ-6007 с вместимостью ковша 11 м3.

Карта разработана на основе методов научной организации труда и предназначена для составления проектов производства работ и организации труда на строительных объектах.

1.2. Эффективность применения скреперов определяется расстоянием транспортировки грунта, вместительностью ковша, трудовыми затратами и скоростью передвижения.

1.3. Выбор машин для производства основных земляных работ должен обосновываться технико-экономическим расчетом.

1.4. В состав работ входят:

·        снятие растительного слоя грунта;

·        рыхление грунта в карьерах (при необходимости);

·        разработка грунта в притрассовом карьере, его перемещение в насыпь и послойное разравнивание;

·        устройство временных въездов на насыпь;

·        увлажнение уплотненного слоя грунта (при необходимости);

·        послойное уплотнение грунта в насыпи;

·        срезка рыхлого грунта с откосов насыпи и планировка поверхности откосов;

·        планировка верха земляного полотна;

·        уплотнение верха земляного полотна;

·        покрытие откосов насыпи растительным грунтом.

1.5. Землевозные пути с односторонним движением скреперов и радиусами поворотов не менее 50 м следует устраивать по рациональным схемам, принятым в ППР.

2. ОРГАНИЗАЦИЯ И ТЕХНОЛОГИЯ ПРОИЗВОДСТВА РАБОТ

2.1. Рабочий цикл скрепера при возведении земляного полотна из грунта притрассовых карьеров состоит из следующих операций:

·        зарезание и набор грунта;

·        транспортировка грунта;

·        выгрузка грунта в насыпь;

·        обратный холостой ход.

Резание и набор грунта характеризуются толщиной срезаемой стружки и длиной пути набора.

Различают различные способы резания грунта (рис. 1).

Транспортировка грунта определяется скоростью движения машины по трассе. Путь транспортирования грунта к месту его укладки должен быть кратчайшим, с наименьшим числом поворотов и без труднопреодолимых подъёмов.

Разгрузка ковша производится при прямолинейном движении со скоростью до 2,5 м/с. Грунт выгружают послойно, горизонтальными продольными рядами, толщиной отсыпаемого слоя 20 - 30 см, а для сыпучих грунтов 10 - 15 см.

Обратный холостой ход определяется скоростью движения дорожной машины по трассе. Путь должен быть кратчайшим.

2.2. Перед возведением насыпи необходимо:

·        очистить площадь карьера и основания насыпи от корней, пней и валунов;

·        перенести столбы линии связи высокого напряжения, а также находящиеся на дорожной полосе различные строения;

·        выполнить разбивочные работы;

·        снять растительный слой грунта и переместить его во временные отвалы;

·        разрыхлить грунт в карьере (при необходимости);

·        создать водоотвод в карьере и от основания насыпи;

·        устроить временные дороги для транспортировки грунта от карьера к земляному полотну;

·        установить линии электропередач для необходимого освещения строительной территории.

Рис. 1. Способы резания грунта скрепером:

а - прямой стружкой; б - клиновой; в - гребенчатый; L - длина пути набора грунта; h - глубина резания (стрелкой указано направление движения скрепера)

2.3. Работы по возведению земляного полотна (рис. 2) из грунта притрассовых карьеров скреперами ведутся поточным методом на восьми захватках длиной 100 м каждая и на заключительном этапе при отделочных работах на одной захватке длиной 600 м. По разработанной технологической последовательности производства работ сменная производительность звена скреперов составила 3115 м3.

Среднее расстояние перемещения грунта принято 300 м.

2.4. На первой захватке выполняются следующие технологические операции:

срезка растительного слоя грунта;

уплотнение основания насыпи самоходным пневмокатком.

Рис. 2. Конструкция поперечного профиля земляного полотна

Толщина снимаемого растительного слоя грунта в карте принята 30 см, которая в установленном порядке согласовывается с землепользователем.

Впоследствии срезанный растительный грунт подвергается рекультивации и может быть использован для укрепления откосов земляного полотна.

Основание насыпи уплотняют пневмоколесным катком ДУ-101 за 4 прохода по одному следу при движении катка по круговой схеме с перекрытием каждого следа на 1/3 его ширины.

2.5. На второй захватке выполняют следующие технологические операции:

·        рыхление грунта (при необходимости) в притрассовом карьере бульдозером-рыхлителем;

·        разработка грунта в притрассовом карьере и перемещение его в насыпь для послойной отсыпки самоходным скрепером МоАЗ-6007;

·        разравнивание и планировка грунта бульдозером.

Для рыхления грунта (при необходимости) применяют бульдозер-рыхлитель ДЗ-171. Грунт рыхлят бороздами по направлению работы скрепера на толщину срезаемой им стружки.

Длина забоя в карьере не должна быть меньше длины пути набора грунта в ковш скрепера. Длина разгрузки грунта в насыпь должна соответствовать объему грунта с учетом толщины отсыпаемого слоя. В данном случае наименьшая длина забоя должна удовлетворять требованиям

Lmin ≥ lс + lн,

где lс  - длина скрепера с учетом толкача;

lн - длина набора грунта.

Длина пути набора грунта в ковш скрепера с применением толкача зависит от вида разрабатываемого грунта и емкости ковша, составляя: для песков и супесей - 11 - 18 м; для суглинков и глин - 14 - 26 м. Толщина стружки зависит от вида грунта, находясь в пределах для: песков - 30 - 35 см; супесей - 15 - 20 см, суглинков - 18 - 25 см; глин - 14 - 18 см. Причем наибольшая толщина в каждом случае означает набор грунта скрепером с помощью трактора-толкача.

Наполнение ковша скрепера в карьере производят только при прямолинейном движении скрепера на первой передаче со скоростью 2 - 4 км/ч.

Чтобы увеличить эффективность забора грунта в карьере, загрузку ковша скрепера в глинистых грунтах целесообразно осуществлять под уклон до 15°, а в песчаных - на подъем 2 - 3°. В карьерах с глинистыми грунтами создают забой под уклон даже при ровном рельефе местности. Разработка грунта в карьере происходит с середины под уклон поочередно с противоположных сторон. Уклон должен быть не более 15°.

Мощность трактора-толкача должна быть в 1,5 - 2 раза больше мощности тягача скрепера или равна ей, а скорости движения трактора-толкача и скрепера - одинаковыми.

В качестве толкача, обслуживающего скрепер при наборе грунта, в данной технологической карте выбран бульдозер ДЗ-94С-1.

При разработке карьера применяют различные способы резания грунта (см. рис. 1). Грунт на участках с уклоном 8 - 12° зарезают по обычной схеме - прямой стружкой. На горизонтальных участках - преимущественно для рыхлых грунтов - зарезание производят клиновым способом. При разработке песчаных и сыпучих грунтов применяют гребенчатый способ.

Разработку грунта в выемках или грунтовых карьерах производят в шахматной последовательности по шахматно-гребенчатой (рис. 3) или ребристо-шахматной схеме (рис. 4). В плотных неразрыхленных грунтах применяют ребристо-шахматную схему набора, которая обеспечивает хорошее наполнение ковша.

Рис. 3. Шахматно-гребенчатая схема зарезания грунта (цифрами указана последовательность зарезания)

Рис. 4. Ребристо-шахматная схема зарезания грунта (цифрами указана последовательность зарезания)

Для более рационального использования толкача необходимо, чтобы каждый скрепер начинал набор грунта там, где закончил загрузку предыдущий (рис. 5).

Рис. 5. Схема работы самоходного скрепера с толкачом:

а - линейная; б - ступенчатая; I - скрепер; II - толкач; 1 - 4 - пути набора грунта скреперами соответственно

1' - 4' - пути движения груженых скреперов; № 1" - 4" - пути порожних скреперов (сплошной пинией показан холостой ход толкача)

Карьер устраивают с двусторонним забоем. Разрабатывают его под уклон: три - четыре загрузки с одного склона, затем три - четыре - с другого, и так по всей ширине карьера.

Путь движения скреперов выбирают из расчета минимальной протяженности дороги, наименьшего числа поворотов груженого скрепера и обеспечения уклонов дороги, не превышающих для данного вида скрепера.

На въездах на насыпь земляного полотна для облегчения работы скреперов подъемы устраивают не более 10 %.

Расстояния между временными въездами на насыпь и съездами с нее при насыпях с высотой до 1,5 - 2 м принимают равными 50 - 80 м, а при более высоких насыпях - с высотой до 3 - 4 м их увеличивают до 100 - 120 м. По отношению к оси насыпи въезды и съезды располагают под углом таким образом, чтобы крутизна их не превышала для прицепных скреперов 18 - 20 %, а поперечный уклон - 8 - 10 %. При высоте земляного полотна до 1 - 1,5 м и пологих откосах (1:3 и положе) насыпи, въезды и съезды можно не устраивать.

Въезды устраивают одновременно с возведением земляного полотна основной дороги с помощью бульдозера ДЗ-171.

Временные дороги для транспортировки грунтов скреперами должны быть ровными и достаточно уплотненными.

Разгружают ковш только при прямолинейном движении скрепера на первой и второй передачах со скоростью 3 - 4 км/ч вдоль бровки отсыпаемой насыпи, начиная от бровки к оси.

При разгрузке грунта ковш скрепера опускают так, чтобы ножи его находились на высоте не более толщины отсыпаемого слоя, одновременно поднимая переднюю заслонку. Когда из передней части ковша высыпается грунт, выдвигают вперед заднюю стенку и высыпают оставшийся в ковше грунт. После этого скрепер перемещают вперед по насыпи с передней заслонкой и задней стенкой в положении, соответствующем загрузке.

Отсыпают грунт слоями не более 0,3 м (во избежание пробуксовки колес) по всей ширине насыпи. Отсыпку грунта ведут способом «от себя», чтобы задействовать движение груженого скрепера для уплотнения ранее уложенного слоя.

Разравнивание грунта производят бульдозерами ДЗ-171 слоями толщиной 0,3 м по челночной схеме. Разравнивать грунт следует по всей ширине земполотна от оси насыпи до откосов на второй скорости бульдозера с перекрытием каждого предыдущего следа на 0,5 - 0,8 м.

В необходимых случаях грунт перемещают бульдозером в продольном направлении для выравнивания продольного профиля земляного полотна.

После разравнивания грунта поперечные уклоны поверхности отсыпанного слоя должны соответствовать заданному проектному профилю и составлять 20 - 40 %о.

2.6. На третьей захватке выполняют работы по уплотнению насыпи.

Грунт уплотняют слоями толщиной 0,25 - 0,35 м последовательными круговыми проходами самоходного пневмокатка ДУ-101 по всей ширине насыпи с перемещением полос уплотнения от ее краев к оси и перекрытием каждого предыдущего следа на 1/3 его ширины, причем первый и второй проходы катка делают на расстоянии не менее 2 м от бровки насыпи. Количество проходов катка по одному следу назначается ориентировочно (пробной укаткой). Грунты следует уплотнять при оптимальной влажности, которая для различных видов приблизительно составляет:

Глины - 20 - 24 %;

Суглинки - 15 - 21 %;

Супеси - 13 - 20 %;

Песчано-пылеватые - 10 - 14 %.

Давление в шинах пневмокатка на начальной стадии уплотнения связных грунтов не должно превышать 0,2 - 0,3 МПа. Давление в шинах на заключительном этапе уплотнения создают: для супесей - 0,3 - 0,4 МПа, для суглинков - 0,6 - 0,8 МПа. При уплотнении песков на всех этапах уплотнения давление в шинах катка создают 0,2 - 0,3 МПа.

Коэффициент уплотнения грунта в слоях насыпи контролируют в соответствии с табл. 1.

Таблица 1

Элементы земляного полотна

Глубина расположения слоя от поверхности покрытия, м

Наименьший коэффициент уплотнения грунта при типе дорожных одежд

капитальном

облегченном и переходном

в дорожно-климатических зонах

I

II, III

IV, V

I

II, III

IV, V

Рабочий слой

До 1,5

0,98 - 0,96

1,0 - 0,98

0,98 - 0,95

0,95 - 0,93

0,98 - 0,95

0,95

Примечание. Большие значения коэффициента уплотнения грунта следует принимать при цементобетонных покрытиях и цементогрунтовых основаниях, а также при дорожных одеждах облегченного типа, меньшие значения - во всех остальных случаях.

2.7. На заключительной захватке при отделочных работах выполняются следующие технологические операции:

·        планировка верха земляного полотна автогрейдером;

·        планировка откосов автогрейдером;

·        окончательное уплотнение верха земляного полотна катком на пневмошинах;

·        покрытие откосов насыпи растительным грунтом, бульдозером.

В данной технологической карте планировочные работы выполняются автогрейдером ДЗ-122.

Перед началом планировки необходимо проверить и восстановить положение оси и бровок земляного полотна в плане на прямых, переходных и основных кривых, а также в продольном профиле. Порядок производства геодезических работ изложен в технологической карте «Геодезические работы при устройстве земляного полотна».

Верх земляного полотна планируют последовательными проходами автогрейдера, начиная от краев, с последовательным смещением к середине и перекрытием предыдущего следа на 0,3 - 0,5 м.

Работы выполняются по круговой схеме за 4 прохода автогрейдера по одному следу.

Откосы земляного полотна планируют за 2 прохода автогрейдера по одному следу при движении непосредственно по откосу (при заложении откосов не менее 1:3).

Окончательное уплотнение верха насыпи после его планировки выполняется катком на пневмошинах за 2 прохода по одному следу.

После окончания планировочных работ производят восстановление снятого растительного слоя грунта на полосах отвода и укрепление откосов насыпи путем надвижки бульдозером растительного слоя, перемещая его из валиков в поперечном направлении.

Технологическая последовательность процессов с расчетом объемов работ и потребных ресурсов приведена в табл. 2. Состав отряда - в табл. 3.


Таблица 2

Технологическая последовательность процессов с расчетом объемов работ и потребных ресурсов

№ процессов

№ захваток

Источник обоснования норм выработки (ЕНиРы и расчеты)

Описание рабочих процессов в порядке их технологической последовательности с расчетом объемов работ

Единица измерения

Количество работ

Производительность в смену

Потребность в машино-сменах

Затраты труда и заработная плата на захватку длиной 100 м

на захватку l = 100 м

на 1 км

на захватку l = 100 м

на 1 км

Норма времени, чел.-ч

Заработная плата, руб.-коп.

на единицу измерения

на полный объем работ

на единицу измерения

на полный объем работ

1

2

3

4

5

6

7

8

9

10

11

12

13

14

I. Основные земляные работы (захватка l = 100 м)

1

I

Расчет

Снятие растительного слоя грунта толщиной 0,3 м бульдозером ДЗ-171 и перемещение его в обе стороны от оси дороги в количестве

25,8·100 = 2580 м2

м2

2580

25800

2860

0,9

9,0

0,0028

7,22

0-06

154-80

2

I

Расчет

Уплотнение основания насыпи самоходным катком ДУ-101 на пневматических шинах за 4 прохода по одному следу

25,8·100 = 2580 м2

м2

2580

25800

6150

0,42

4,2

0,0013

3,35

0-02,8

72-24

3

I

Расчет

Разработка и перемещение грунта II группы в карьере самоходным скрепером МоАЗ-6007 на расстояние 300 м для отсыпки нижнего слоя на высоту 0,3 м в количестве

(25,8 + 24,0)/2·0,3·1,1·100 = 822

м3

822

8220

445

1,85

18,5

0,018

14,80

0-37

304-14

4

I

Расчет

Работа бульдозера-толкача ДЗ-94С-1 совместно со скрепером при разработке грунта в карьере

м3

822

8220

1780

0,46

4,6

0,0045

3,70

0-09,7

79-73

5

I

Расчет

Разравнивание грунта в насыпи бульдозером ДЗ-171 слоем 0,3 мс перемещением 50 % отсыпанного грунта:

822 × 0,5 = 411 м3

м3

411

4110

1510

0,27

2,72

0,0053

2,18

0-11,4

46-85

6

I

Расчет

Увлажнение грунта водой до оптимальной влажности поливомоечной машиной МД 433-03 при дальности возки 3 км в количестве 3 % от массы грунта при его плотности 1,75 т/м3:

8220·1,75·0,03 = 43

т

43

430

68

0,63

6,3

0,079

3,40

1-47

63-21

7

I

Расчет

Уплотнение нижнего слоя грунта в насыпи толщиной 0,3 м в плотном теле самоходным катком ДУ-101 на пневматических шинах при 10 проходах по одному следу

м3

822

8220

1195

0,69

6,90

0,0067

5,51

0-14,4

118-37

8

II

Расчет

Разработка и перемещение грунта II группы в карьере самоходным скрепером МоАЗ-6007 на расстояние 300 м для отсыпки второго слоя на высоту 0,3 м в количестве

(24,0 + 22,2)/2·0,3·1,1·100 = 762

м3

762

7620

445

1,71

17,10

0,018

13,72

0,37

281-94

9

II

Расчет

Работа бульдозера-толкача ДЗ-94С-1 совместно со скрепером при разработке грунта в карьере

м3

762

7620

1780

0,43

4,28

0,0045

3,43

0-09,7

73-91

10

II

Расчет

Разравнивание грунта в насыпи бульдозером ДЗ-171 слоем 0,3 м с перемещением 50 % отсыпанного грунта:

762 × 0,5 = 381 м3

м3

381

3810

1510

0,25

2,52

0,0053

2,02

0-11,4

43-43

11

II

Расчет

Увлажнение грунта водой до оптимальной влажности поливомоечной машиной МД 433-03 при дальности возки 3 км в количестве 3 % от массы грунта при его плотности 1,75 т/м3:

762·1,75·0,03 = 40

т

40

400

68

0,59

5,88

0,079

3,16

1-47

58-80

12

II

Расчет

Уплотнение второго слоя грунта в насыпи толщиной 0,3 м в плотном теле самоходным катком ДУ-101 на пневматических шинах при 10 проходах по одному следу

м3

762

7620

1195

0,64

6,38

0,0067

5,11

0-14,4

109-73

13

III

Расчет

Разработка и перемещение грунта II группы в карьере самоходным скрепером МоАЗ-6007 на расстояние 300 м для отсыпки третьего слоя на высоту 0,3 м в количестве

((22,2 + 20,4)/2)·0,3·1,1·100 = 703

м3

703

7030

445

1,58

15,80

0,018

12,65

0,37

260-11

14

III

Расчет

Работа бульдозера-толкача ДЗ-94С-1 совместно со скрепером при разработке грунта в карьере

м3

703

7030

1780

0,39

3,95

0,0045

3,16

0-09,7

68-19

15

III

Расчет

Разравнивание грунта в насыпи бульдозером ДЗ-171 слоем 0,3 м с перемещением 50 % отсыпанного грунта:

703/2 = 352 м3

м3

352

3515

1510

0,23

2,33

0,0053

1,87

0-11,4

40-13

16

III

Расчет

Увлажнение грунта водой до оптимальной влажности поливомоечной машиной МД 433-03 при дальности возки 3 км в количестве 3 % от массы грунта при его плотности 1,75 т/м3:

703·1,75·0,03 = 37

т

37

370

68

0,54

5,44

0,079

2,92

1-47

54-39

17

III

Расчет

Уплотнение третьего слоя грунта в насыпи толщиной 0,3 м в плотном теле самоходным катком ДУ-101 на пневматических шинах при 10 проходах по одному следу

м3

703

7030

1195

0,59

5,88

0,0067

4,71

0-14,4

101-23

18

IV

Расчет

Разработка и перемещение грунта II группы в карьере самоходным скрепером МоАЗ-6007 на расстояние 300 м для отсыпки верхнего слоя на высоту 0,3 м в количестве

((20,4 + 18,6)72) 0,3-1,1-100 = 644

м3

644

6435

445

1,48

14,46

0,018

11,59

0,37

238-28

19

IV

Расчет

Работа бульдозера-толкача ДЗ-94С-1 совместно со скрепером при разработке грунта в карьере

м3

644

6435

1780

0,36

3,62

0,0045

2,90

0-09,7

62-47

20

IV

Расчет

Разравнивание грунта в насыпи бульдозером ДЗ-171 слоем 0,3 м с перемещением 50 % отсыпного грунта:

644/2 = 322

м3

322

3218

1510

0,21

2,13

0,0053

1,71

0-11,4

36-71

21

IV

Расчет

Увлажнение грунта водой до оптимальной влажности поливомоечной машиной МД 433-03 при дальности возки 3 км в количестве 3 % от массы грунта при его плотности 1,75 т/м3:

644·1,75·0,03 = 34

т

34

338

68

0,5

5,0

0,079

2,69

1-47

49-98

22

IV

Расчет

Уплотнение верхнего слоя грунта в насыпи толщиной 0,3 м в плотном теле самоходным катком ДУ-101 на пневматических шинах при 10 проходах по одному следу

м3

644

6435

1195

0,54

5,38

0,0067

4,31

0-14,4

92-74

 

 

 

ИТОГО:

 

 

 

 

 

 

 

116,11

 

2411,38

II. Заключительные земляные работы (захватка l = 600 м)

23

 

Расчет

Планировка верха насыпи автогрейдером ДЗ-122 за 2 круговых прохода по одному следу. Объем работ:

18,6·600 = 11160

м2

11160

18600

23500

0,47

0,79

0,00034

3,79

0-00,73

81-47

24

 

Расчет

Планировка откосов насыпи длиной до 30 м автогрейдером ДЗ-122 при рабочем ходе в двух направлениях:

2,85·2·600 = 3420

м2

3420

5700

20500

0,17

0,28

0,00039

1,33

0-00,84

28-73

25

 

Расчет

Уплотнение верха насыпи самоходным катком ДУ-101 на пневматических шинах за 2 прохода по одному следу:

18·600 = 11160

м2

11160

18600

23500

0,47

0,79

0,00034

3,79

0-00,73

81-47

26

 

Расчет

Покрытие откосов насыпи растительным слоем толщиной 0,2 м и его распределение бульдозером ДЗ-171 в количестве 2,85·2·0,2·600 = 684

м3

684

1140

2285 (по нормам)

0,30

0,5

0,0035

2,39

0-07,5

51-30

 

 

 

ИТОГО:

 

 

 

 

 

 

 

11,3

 

242-97

Рис. 6. Технологический план потока по возведению насыпи земляного полотна автомобильных дорог при использовании в качестве ведущей машины скрепера МоАЗ-6007


Таблица 3

Состав отряда

Машины

Профессия и разряд рабочего

Потребность в машино-сменах

Коэффициент загрузки

Количество рабочих на машинах

Примечание

на 1000 м

на захватку

I. Основные земляные работы (захватка 100 м)

Бульдозер ДЗ-171

Машинист VI разряда

18,7

1,87 (2)

0,94

2

 

Самоходный каток ДУ-101

Машинист VI разряда

28,7

2,87 (3)

0,96

3

 

Самоходный скрепер МоАЗ-6007

Машинист VI разряда

65,9

6,6 (7)

0,94

7

 

Поливомоечная машина МД 433-03

Водитель IV разряда

22,6

2,3 (3)

0,7

3

 

Бульдозер-толкач ДЗ-94С-1

Машинист VI разряда

16,5

1,7 (2)

0,83

2

 

II. Заключительные земляные работы (захватка 600 м)

Автогрейдер ДЗ-122

Машинист VI разряда

1,07

0,64 (1)

0,64

1

 

Каток ДУ-101

Машинист VI разряда

0,79

0,47 (1)

0,47

1

 

Бульдозер ДЗ-171

Машинист VI разряда

0,5

0,3 (1)

0,3

1

 

 

ИТОГО:

 

20

 

20

 

Технологический план потока по возведению насыпи земляного полотна приведен на рис. 6.

Технология операционного контроля качества работ при возведении насыпи земляного полотна приведена в табл. 4.

Таблица 4

Технология операционного контроля качества работ при возведении насыпи грунта боковых резервов скрепером

Основные операции, подлежащие контролю

Состав контроля

Метод и средства контроля

Режим и объем контроля

Лицо, осуществляющее контроль

Предельные отклонения от норм контролируемых параметров

Где регистрируются результаты контроля

1

2

3

4

5

6

7

Снятие растительного слоя грунта

Толщина снимаемого слоя грунта

Инструментальный

Измерительная линейка, визирки

Промеры не реже, чем через 100 м

Мастер

±20 % от проектной толщины

Общий журнал работ

Отсыпка грунта в насыпь

Однородность грунта в теле насыпи

Визуальный

Постоянно

Мастер, лаборант

-

Общий журнал работ

Разравнивание грунта в насыпи

 

Инструментальный

 

Мастер, геодезист

 

Общий журнал работ

Журнал технического нивелирования

1. Толщина слоя

1. Визирки

Промеры не реже, чем через 100 м

1. -

2. Высотные отметки продольного профиля

2. Нивелир, визирки

Промеры не реже, чем через 100 м

2. ±50 мм от проектных значений высотных отметок

3. Расстояние между осью и бровкой земляного полотна

3. Рулетка измерительная

Промеры через 50 м

3. ±10 см от проектных значений ширины

4. Крутизна откосов

4. Уклономер

Промеры через 50 м

4. Не более 10 % от проектного значения в сторону уменьшения

5. Поперечные уклоны

5. Уклономер

Промеры через 50 м

5. ±0,010 от проектных значений поперечных уклонов

Уплотнение грунта в насыпи

 

Визуальный

 

Мастер, лаборант

 

Общий журнал работ

Журнал пробного уплотнения грунта

Журнал контроля плотности земляного полотна

1. Режим уплотнения

1. Визуальный

1. Постоянно

1. -

 

Лабораторный

 

 

2. Влажность уплотняемого слоя

2. Метод режущего кольца

2. Не реже одного раза в смену

2. см. табл. 2

3. Фактическая плотность грунта

3. Метод режущего кольца

3. Не менее трех образцов (по оси земполотна и 1,5 - 2,0 м от бровки) не реже, чем через 50 м - для верхнего слоя, не реже, чем через 20 м - для нижних слоев

3. Снижение плотности грунта на 4 % от проектных значений до 10 % определений, остальные результаты не ниже проектных значений

Планировка верха земляного полотна и откосов

 

Инструментальный

 

Мастер, геодезист

 

Журнал технического нивелирования

Ведомость приемки земляного полотна

1. Высотные отметки продольного профиля

1. Нивелир, визирки

1. Промеры не реже, чем через 100 м

1. ±50 мм от проектных значений высотных отметок

2. Расстояние между осью и бровкой земляного полотна

2. Рулетка измерительная

2. Промеры через 50 м

2. ±10 см от проектных значений

3. Поперечные уклоны

3. Уклономер

3. Промеры не реже, чем через 100 м

3. ±0,010 от проектных значений

4 Ровность поверхности

4. Нивелир, нивелирная рейка

4. Промеры не реже, чем через 50 м в трех точках на поперечнике (по оси к бровкам)

4. ±50 мм от проектных значений

5. Крутизна откосов

5. Уклономер

5. Промеры через 50 м

5. Уменьшение крутизны до 10 % от проектного значения

При производстве работ по устройству земляного полотна бульдозером руководствуются следующей технической литературой:

1. СНиП III-4-80. Техника безопасности в строительстве.

2. СНиП 12-03-2001. Безопасность труда в строительстве. Часть 1. Общие требования.

3. ТОИ Р-218-05-93. Типовая инструкция по охране труда для машиниста автогрейдера (прицепного грейдера).

4. ТОИ Р-218-07-93. Типовая инструкция по охране труда для машиниста катка.

5. ТОИ Р-218-26-94. Типовая инструкция по охране труда для машиниста автополивомоечной машины.

6. ТОИ Р-218-08-93. Типовая инструкция по охране труда для машиниста скрепера.

7. Спельман Е.П. Техника безопасности при эксплуатации строительных машин и средств малой механизации. - М.: Стройиздат, 1986. - 271 с.: ил.

Технологическая карта № 3

ВОЗВЕДЕНИЕ НАСЫПИ ЗЕМЛЯНОГО ПОЛОТНА АВТОМОБИЛЬНЫХ ДОРОГ ВЫСОТОЙ ДО 1,5 м С РАЗРАБОТКОЙ ГРУНТА В КАРЬЕРЕ ЭКСКАВАТОРАМИ ЭО-4225 И ТРАНСПОРТИРОВКОЙ АВТОМОБИЛЯМИ-САМОСВАЛАМИ

1. ОБЛАСТЬ ПРИМЕНЕНИЯ

Технологическая карта разработана на основе методов научной организации труда и предназначена для использования при разработке проектов производства работ и организации труда на строительном объекте.

Технологическая карта составлена на возведение насыпи земляного полотна высотой 1,5 м при разработке грунта II группы экскаваторами типа ЭО-4225 с вместимостью ковша 1,25 м3 и перевозке грунта автомобилями-самосвалами.

Для транспортировки грунта в данном технологическом процессе приняты автомобили-самосвалы КамАЗ-55111.

Во всех случаях применения технологической карты необходима привязка ее к конкретным условиям производства работ с учетом имеющихся материально-технических ресурсов.

2. ОРГАНИЗАЦИЯ И ТЕХНОЛОГИЯ ПРОИЗВОДСТВА РАБОТ

2.1. До возведения земляного полотна необходимо:

·        восстановить и закрепить трассу дороги и полосу отвода;

·        расчистить территорию в пределах полосы отвода от кустарников, пней и валунов;

·        произвести разбивку земляного полотна и грунтового карьера;

·        устроить временные землевозные дороги для транспортирования грунта;

·        устроить съезды в забой и выезды из него;

·        обеспечить отвод поверхностных и грунтовых вод от забоя;

·        устроить освещение забоя и отвалов при работе в темное время суток.

2.2. Работы по возведению земляного полотна (рис. 1) из сосредоточенного грунтового карьера при разработке грунта экскаваторами ЭО-4225 и транспортировании в насыпь автомобилями-самосвалами КамАЗ-55111 на среднее расстояние 2,5 км ведутся в разработанной технологической последовательности процессов производства работ (табл. 3) на 5 захватках длиной 200 м.

Рис. 1. Конструкция земляного полотна в поперечном профиле

Длина захватки при выполнении работ по отделке земляного полотна принята 800 м.

2.3. На первой захватке выполняются следующие технологические операции:

·        срезка растительного слоя грунта бульдозером;

·        уплотнение основания насыпи пневмокатком.

Толщину срезаемого растительного слоя грунта устанавливают по согласованию с землепользователем. В карте принята толщина этого слоя 30 см.

Работы в данной технологической карте выполняют бульдозером ДЗ-171 по поперечной схеме. Грунт срезают от оси дороги поперечными проходами бульдозера, перекрывая каждый предыдущий след на 0,25 - 0,3 м, и перемещают за пределы полосы отвода.

В дальнейшем срезанный растительный грунт используют для укрепления откосов земляного полотна.

Основание насыпи уплотняют катком ДУ-101 за 4 прохода по одному следу. При уплотнении каждый предыдущий след перекрывают последующим на 1/3 его ширины. Движение катка осуществляют по круговой схеме.

Основание насыпи должно иметь коэффициент уплотнения не ниже 0,98.

2.4. На второй, третьей, четвертой и пятой захватках выполняются технологические операции по устройству соответственно нижнего, второго, третьего и верхнего слоев грунта земляного полотна в следующей последовательности:

·        разработка грунта в карьере экскаватором с погрузкой в автомобили-самосвалы;

·        подвозка грунта автомобилями-самосвалами в насыпь для отсыпки соответственно нижнего, второго, третьего и верхнего слоя;

·        послойное разравнивание грунта в насыпи бульдозером;

·        послойное увлажнение грунта водой до оптимальной влажности (при необходимости);

·        послойное уплотнение грунта самоходными катками на пневматических шинах при 10 проходах по одному следу.

2.5. Ширина насыпи по верху на уровне дна корыта при принятой толщине дорожной одежды 0,6 м и крутизне откосов 1:3 составляет 18,6 м (см. рис. 1).

Отсыпка насыпи с учетом толщины снимаемого растительного слоя грунта предусмотрена в четыре слоя по 0,3 м каждый.

2.6. Технологической картой предусмотрено возведение насыпи земляного полотна с разработкой грунта экскаваторами ЭО-4225 и транспортировкой автомобилями-самосвалами КамАЗ-55111 на расстояние 2,5 км.

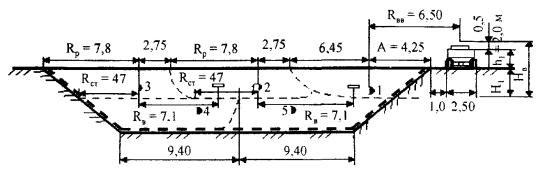
Разработку грунтового карьера экскаваторами «прямая лопата» производят по схеме (рис. 2).

Сечение забоя устанавливают в соответствии с рабочими характеристиками выбранного типа экскаватора (рис. 3).

При принятой схеме разработки грунтового карьера экскаватором вначале устраивается сквозная поперечная траншея  транспортные средства в этом случае размещаются выше уровня стоянки экскаватора. В дальнейшем разработка карьера ведется продольными проходами.

Рис. 2. Схема разработки грунтового карьера

Рис. 3. Сечение грунтового карьера (размеры в м):

Rр - наибольший радиус резания; Rв - наибольший радиус выгрузки; Rcm - радиус резания на уровне стояния гусениц; rвв - радиус выгрузки при наибольшей высоте выгрузки; Hв - наибольшая высота выгрузки; А - расстояние от кромки разрабатываемой траншеи до оси прохода экскаватора; H1 - глубина пионерной траншей; - уширенные лобовые забои; - проходки боковыми забоями

Глубина первой пионерной траншеи (рис. 3) определяется из условия обеспечения погрузки грунта в автомобиль-самосвал при использовании наибольшей высоты выгрузки

H1 = Hв - 0,5 - h1,

где Hв  - наибольшая высота выгрузки, м;

0,5  - расстояние по высоте между днищем ковша и верхом борта автомобиля, м;

h1    - погрузочная высота автомобиля-самосвала, м.

Расстояние от кромки разрабатываемой траншеи до оси прохода экскаватора определяется по условиям обеспечения погрузки грунта в автомобиль-самосвал при использовании наибольшего радиуса выгрузки

A = Rвв - 1 - b/2,

где Rвв  - наибольший радиус выгрузки при наибольшей высоте выгрузки, м;

1  - безопасный зазор между кромкой выемки и колесом автомобиля-самосвала, м;

b  - ширина базы автомобиля-самосвала, м.

Ось прохода экскаватора при разработке второй траншеи должна располагаться на расстоянии Rв от оси движения автомобиля-самосвала, который в нашем случае будет двигаться на уровне основания пионерной траншеи.

При разработке третьей траншеи положение оси прохода определяется размещением транспортных средств, которые будут двигаться на уровне стоянки экскаватора.

При разработке четвертой траншеи автомобили-самосвалы размещаются на уровне основания первого яруса и при разработке пятой траншеи - на уровне стоянки экскаватора.

Подобными расчетами можно определить количество проходов экскаватора и разработать схему его работы при других исходных данных и размерах грунтового карьера.

Уклоны дна проходок должны предотвращать приток и скопление в забоях грунтовых и поверхностных вод.

Рабочий цикл экскаватора с прямой лопатой состоит из следующих операций:

·        копания грунта (движение стрелы, рукояти и ковша);

·        поворота на разгрузку (поворот платформы со всем рабочим оборудованием);

·        разгрузки (открыванием днища ковша или поворотом ковша относительно рукояти);

·        поворота в забой;

·        опускания стрелы и рукояти с ковшом на подошву забоя.

Рис. 4. Схема работы экскаватора «прямая лопата»:

1 - ковш; 2 - гидроцилиндр ковша; 3 - рукоять; 4 - гидроцилиндр рукояти; 5 - стрела; 6 - гидроцилиндр стрелы; 7 - дополнительная нижняя часть стрелы; 8 - кабина; 9 - силовая установка; 10 - противовес; 11 - ходовая часть; 12 - опорно-поворотный круг

2.7. Транспортировку грунта из карьера в насыпь производят автомобилями-самосвалами КамАЗ-55111.

Количество транспортных средств, необходимых для перевозки грунта, определяют расчетом с учетом фактических условий работы и дальности возки. В каждый автомобиль-самосвал КамАЗ-55111 загружают 7,5 м3 грунта.

Грунт транспортируют до места производства работ и выгружают через каждые 5 м вдоль насыпи и через каждые 5 м по ее ширине (рис. 5).

Расстояние между центрами куч вдоль насыпи определяют по формуле

где Q     - грузоподъемность автомобиля-самосвала, т;

B  - ширина полосы (или средняя линия) рассыпаемого материала, м;

h   - толщина слоя, м;

ρ   - плотность материала, т/м3;

n   - количество куч, выгружаемых в каждом поперечном створе.

Рис. 5. Схема разгрузки грунта в насыпь

Расстояние между центрами куч по ширине насыпи

lп = B/n = 24,9/5 = 4,98 ≈ 5 м.

2.9. Грунт уплотняют слоями толщиной 0,30 м последовательными круговыми проходами пневмокатка ДУ-101 по всей ширине насыпи за десять проходов по одному следу.

Уплотнять грунт следует при оптимальной влажности, определенной по ГОСТ 22733-77, которая не должна выходить за пределы указанной в табл. 1 для разных типов грунтов.

При недостаточной влажности грунт увлажняют с помощью поливомоечной машины. В технологической карте расход воды на эти цели принят в количестве 3 % от объема грунта.

Первые два прохода катка следует выполнять на расстоянии 2 м от бровки насыпи, а затем, смещая проходы на 1/3 ширины следа в сторону бровки, уплотняют края насыпи, не доходя 0,3 - 0,5 м до откоса. После этого продолжают уплотнение круговыми проходами от края к середине (рис. 6).

В целях уплотнения грунта в краевых частях насыпи, прилегающих к откосу, ее следует отсыпать на 0,3 - 0,5 м шире проектного очертания.

Каждый последующий проход по одному и тому же следу начинают после перекрытия предыдущими проходами всей ширины земляного полотна.

Таблица 1

Вид грунта

Влажность, %, при требуемом коэффициенте уплотнения

1 - 0,98

0,95

0,90

Пески пылеватые, супеси легкие, крупные

Не более 1,35

Не более 1,6

Не нормируется

Супеси легкие и пылеватые

0,8 - 1,25

0,75 - 1,35

0,7 - 1,6

Супеси тяжелые пылеватые и суглинки легкие пылеватые

0,85 - 1,15

0,8 - 1,2

0,75 - 1,4

Суглинки тяжелые пылеватые, глины

0,95 - 1,05

0,9 - 1,1

0,85 - 1,2

Требуемый коэффициент уплотнения грунта приведен в табл. 2. При оптимальной влажности грунта для достижения коэффициента уплотнения 0,95 ориентировочно назначают 6 - 8 проходов катка для связных и 4 - 6 - для несвязных грунтов; для достижения коэффициента уплотнения 0,98 - 8 - 12 проходов для связных и 6 - 8 - для несвязных грунтов. Необходимое количество проходов катка по одному следу уточняют пробным уплотнением.

Таблица 2

Элементы земляного полотна

Глубина расположения слоя от поверхности покрытия, м

Наименьший коэффициент уплотнения грунта при типе дорожных одежд

капитальном

облегченном и переходном

в дорожно-климатических зонах

I

II, III

IV, V

I

II, III

IV, V

Рабочий слой

До 1,5

0,98 - 0,96

1,0 - 0,98

0,98 - 0,95

0,95 - 0,93

0,98 - 0,95

0,95

Для связных грунтов на начальном этапе уплотнения давление в шинах пневмокатка не должно превышать 0,2 - 0,3 МПа, на заключительном этапе - 0,6 - 0,8 МПа. При уплотнении песков давление в шинах на всех стадиях уплотнения не должно быть более 0,2 - 0,3 МПа.

Первый и последний проходы по полосе участка выполняют на малой скорости пневмокатка (2 - 2,5 км/ч), промежуточные проходы - на большой (до 8 км/ч).

Отсыпку каждого последующего слоя можно производить только после разравнивания и уплотнения предыдущего, а также контроля качества работ.

2.10. На заключительном этапе работы выполняются следующие технологические операции:

·        планировка верха земляного полотна автогрейдером;

·        планировка откосов автогрейдером;

·        покрытие откосов насыпи растительным грунтом.

Технологической картой предусматривается выполнять планировочные работы автогрейдером ДЗ-122.

Перед началом планировки необходимо проверить и восстановить положение оси и бровок земляного полотна в плане на прямых, переходных и основных кривых, а также в продольном профиле. Порядок производства геодезических работ изложен в технологической карте «Геодезические работы при устройстве земляного полотна».

Планировку следует начинать с наиболее низких участков (в продольном профиле).

Верх земляного полотна планируют путем последовательных проходов автогрейдера, начиная от краев с постепенным смещением к середине. Перекрытие следов составляет 0,3 - 0,5 м. Работы выполняют по челночной схеме за четыре прохода автогрейдера по одному следу.

Откосы насыпи планируются за два прохода автогрейдера по одному следу при его движении непосредственно по откосу (при крутизне откосов не менее 1:3).

После окончания планировочных работ на данном участке проводятся работы по восстановлению растительного слоя грунта путем надвижки его на откосы насыпи бульдозером, перемещая его из валиков в поперечном направлении.

Технологическая последовательность процессов с расчетом объемов работ и потребных ресурсов приведена в табл. 3, 4, 5.

Технологический план потока по возведению насыпи земляного полотна приведен на рис. 6.

Технология операционного контроля качества работ при возведении насыпи земляного полотна приведена в табл. 5.


Рис. 6. Технологический план потока по возведению насыпи земляного полотна (h = 1,5 м) с разработкой грунта экскаваторами ЭО-4225А и транспортировкой автомобилями-самосвалами КамАЗ-55111

Таблица 3

Технологическая последовательность процессов с расчетом объемов работ и потребных ресурсов

№ процессов

№ захваток

Источник обоснования норм выработки (ЕНиРы и расчеты)

Описание рабочих процессов в порядке их технологической последовательности с расчетом объемов работ

Единица измерения

Количество работ

Производительность в смену

Потребность в машино-сменах

Затраты труда и заработная плата на захватку длиной 200 м

на захватку l = 200 м

на 1 км

на захватку l = 200 м

на 1 км

Норма времени, чел.-ч

Заработная плата, руб.-коп.

на единицу измерения

на полный объем работ

на единицу измерения

на полный объем работ

1

2

3

4

5

6

7

8

9

10

11

12

13

14

I. Основные земляные работы (захватка l = 200 м)

1

I

Расчет

Снятие растительного слоя грунта толщиной 0,3 м бульдозером ДЗ-171 и перемещение его в обе стороны от оси дороги в количестве

(25,8 + 2)·200·0,3 = 1670

м3

1670

8340

1206

1,4

6,9

0,007

11,7

0-14

240-30

2

 

Расчет

Уплотнение основания насыпи самоходным катком ДУ-101 на пневматических шинах за 4 прохода по одному следу

м2

5160

25800

8695

0,6

3,0

0,0009

4,6

0-02

102-98

3

II

Расчет-

Разработка грунта II группы экскаватором ЭО-4225 с погрузкой грунта в автомобили-самосвалы

м3

1645

8220

780

2,10

10,5

0,02

33,80

0-42

688-44

4

II

Расчет

Транспортировка грунта по грунтовым дорогам на среднее расстояние 2,5 км с разгрузкой его в насыпь автосамосвалами КамАЗ-55111 при Vср = 22 км/ч. Количество грунта при его плотности 1,75 т/м3:

1645·1,75 = 2880

т

2880

14400

160

18

90

0,05

144

0-93

2672-46

5

II

Расчет

Разравнивание нижнего слоя грунта в насыпи бульдозером ДЗ-171 с перемещением 50 % отсыпанного грунта на расстояние до 5 м

м3

822

4110

1510

0,5

2,7

0,005

4,1

0-10

85-82

6

II

Расчет

Увлажнение грунта водой до оптимальной влажности поливомоечной машиной МД 433-03 при дальности возки 3 км в количестве 3 % от массы грунта:

2880·0,03 = 86,4

т

86

432

68

1,30

6,4

0,12

10,1

2-24

193-01

7

II

Расчет

Уплотнение нижнего слоя грунта в насыпи толщиной 0,3 м в плотном теле самоходным катком ДУ-101 на пневматических шинах при 10 проходах по одному следу

м3

1645

8220

1355

1,20

6,10

0,006

9,7

0-13

205-97

8

III

Расчет

Разработка грунта II группы экскаватором ЭО-4225 с погрузкой грунта в автомобили-самосвалы

м3

1525

7620

780

2,0

9,80

0,02

30,6

0,43

655-66

9

III

Расчет

Транспортировка грунта по грунтовым дорогам на среднее расстояние 2,5 км с разгрузкой его в насыпь автосамосвалами КамАЗ-55111 при Vср = 22 км/ч. Количество грунта при его плотности 1,75 т/м3:

1525·1,75 = 2669

т

2670

13350

160

16,7

83,4

0,05

133,5

0-93

2479-45

10

III

Расчет

Разравнивание второго слоя грунта в насыпи бульдозером ДЗ-171 с перемещением 50 % отсыпанного грунта на расстояние до 5 м

м3

763

3810

1510

0,51

2,51

0,005

3,80

0-11

85-82

11

III

Расчет

Увлажнение грунта водой до оптимальной влажности поливомоечной машиной МД 433-03 при дальности возки 3 км в количестве 3 % от массы грунта:

2670·0,03 = 80,1

т

80

400

68

1,2

5,90

0,12

9,4

2-23

178-16

12

III

Расчет

Уплотнение второго слоя грунта в насыпи толщиной 0,3 м в плотном теле самоходным катком ДУ-101 на пневматических шинах при 10 проходах по одному следу

м3

1525

7620

1355

1,1

5,6

0,006

9,2

0-12

188-80

13

IV

Расчет

Разработка грунта II группы экскаватором ЭО-4225 с погрузкой грунта в автомобили-самосвалы

м3

1405

7030

780

1,8

9,0

0,02

28,2

0-42

590-09

14

IV

Расчет

Транспортировка грунта по грунтовым дорогам на среднее расстояние 2,5 км с разгрузкой его в насыпь автосамосвалами КамАЗ-55111 при Vср = 22 км/ч. Количество грунта при его плотности 1,75 т/м:

1405·1,75 = 2459

т

2460

12295

160

15,4

76,8

0,05

123

0-93

2286-44

15

IV

Расчет

Разравнивание третьего слоя грунта в насыпи бульдозером ДЗ-171 с перемещением 50 % отсыпанного грунта на расстояние до 5 м

м3

703

3515

1510

0,50

2,3

0,005

3,50

0-12

85-82

16

IV

Расчет

Увлажнение грунта водой до оптимальной влажности поливомоечной машиной МД 433-03 при дальности возки 3 км в количестве 3 % от массы грунта:

2460·0,03 = 73,8

т

74

370

68

1,1

5,4

0,12

8,9

2-21

163-32

17

IV

Расчет

Уплотнение третьего слоя грунта в насыпи толщиной 0,3 м в плотном теле самоходным катком ДУ-101 на пневматических шинах при 10 проходах по одному следу

м3

1405

7030

1355

1,04

5,20

0,006

8,40

0-13

178-51

18

V

Расчет

Разработка грунта II группы экскаватором ЭО-4225 с погрузкой грунта в автомобили-самосвалы

м3

1290

6435

780

1,70

8,30

0,02

25,80

0-43

557-31

19

V

Расчет

Транспортировка грунта по грунтовым дорогам на среднее расстояние 2,5 км с разгрузкой его в насыпь автосамосвалами КамАЗ-55111 при Vср = 22 км/ч. Количество грунта при его плотности 1,75 т/м3:

1290·1,75 = 2260

т

2260

11290

160

14,1

70,6

0,005

113

0-93

203343

20

V

Расчет

Разравнивание верхнего слоя грунта в насыпи бульдозером ДЗ-171 с перемещением 50 % отсыпанного грунта на расстояние до 5 м

м3

645

3225

1510

0,40

2,10

0,005

3,20

0-11

68-66

21

V

Расчет

Увлажнение грунта водой до оптимальной влажности поливомоечной машиной МД 433-03 при дальности возки 3 км в количестве 3 % от массы грунта:

2260·0,03 = 67,8

т

68

340

68

1,0

5,0

0,12

8,16

2-18

148-47

22

V

Расчет

Уплотнение верхнего слоя грунта в насыпи толщиной 0,3 м в плотном теле самоходным катком ДУ-101 на пневматических шинах при 10 проходах по одному следу

м3

1290

6435

1355

0,95

4,75

0,006

7,7

0-13

136-06

 

 

 

ИТОГО:

 

 

 

 

 

 

 

732,36

 

14111,98

II. Заключительные земляные работы (захватка l = 800 м)

1

I

Расчет

Планировка верха насыпи автогрейдером ДЗ-122 за 2 круговых прохода по одному следу. Объем работ на 1 км:

18,6·1000 = 18600

м2

14880

18600

23500

0,63

0,79

0,0003

5,1

0-01

108-13

2

I

Расчет

Планировка откосов насыпи длиной до 30 м автогрейдером ДЗ-122 при рабочем ходе в двух направлениях:

2,85·2·1000 = 5700

м2

4560

5700

20500

0,22

0,28

0,0004

1,78

0-01

37-76

3

I

Расчет

Покрытие откосов насыпи растительным слоем толщиной 0,2 м и его распределение бульдозером ДЗ-171:

2,85·2·0,2·1000 = 1140

м3

912

1140

2285

0,4

0,5

0,0035

3,19

0-08

68-66

 

 

 

ИТОГО:

 

 

 

 

 

 

 

10,07

 

214-55


Таблица 4

Состав отряда

Машины

Профессия и разряд рабочего

Потребность в машино-сменах

Коэффициент загрузки

Количество рабочих

Примечание

на 1000 м

на 200 м

I. Основные земляные работы (захватка 200 м)

Экскаватор ЭО-4225

Машинист VI разряда, V разряда

37,6

7,6 (8)

0,95

16

 

Автосамосвал КамАЗ-55111

Водитель

320,8

64,2 (65)

0,99

65

 

Бульдозер ДЗ-171

Машинист VI разряда

16,5

3,3 (4)

0,83

4

 

Поливомоечная машина МД 433-03

Водитель

22,7

4,6 (5)

0,92

5

 

Самоходный каток на пневмошинах ДУ-101

Машинист VI разряда

24,65

4,89 (5)

0,98

5

 

II. Заключительные земляные работы (захватка 800 м)

Автогрейдер ДЗ-122

Машинист VI разряда

1,07

0,85 (1)

0,85

1

 

Самоходный каток на пневмошинах ДУ-101

Машинист VI разряда

0,79

0,63 (1)

0,63

1

 

Бульдозер ДЗ-171

Машинист VI разряда

0,5

0,41 (1)

0,4

1

 

 

ИТОГО:

 

90

 

98

 

Таблица 5

Технология операционного контроля качества работ при возведении насыпи экскаваторами

Основные операции, подлежащие контролю

Состав контроля

Метод и средства контроля

Режим и объем контроля

Лицо, осуществляющее контроль

Предельные отклонения от норм контролируемых параметров

Где регистрируются результаты контроля

1

2

3

4

5

6

7

Снятие растительного слоя грунта

Толщина снимаемого слоя грунта

Инструментальный

Измерительная линейка, визирки

Промеры не реже, чем через 100 м

Мастер

±20 % от проектной толщины

Общий журнал работ

Разработка грунта экскаватором

1. Отсутствие негабаритных камней

2. Однородность грунта

Визуальный

Постоянно

Мастер, лаборант

-

Общий журнал работ

Отсыпка грунта в насыпь автосамосвалами

 

Инструментальный

 

 

 

 

1. Порядок и способ отсыпки

2. Регулирование движения автомобилей по отсыпаемому слою

1. Рулетка измерительная

2. Визирки

Постоянно

Мастер

 

Общий журнал работ

Разравнивание грунта в насыпи

 

Инструментальный

 

Мастер, геодезист

 

Общий журнал работ

Журнал технического нивелирования

1. Толщина слоя

1. Визирки

1. Промеры не реже, чем через 100 м

1. -

2. Высотные отметки продольного профиля

2. Нивелир, визирки

2. Промеры не реже, чем через 100 м

2. ±50 мм от проектных значений высотных отметок

3. Расстояние между осью и бровкой земляного полотна

3. Рулетка измерительная

3. Промеры не реже, чем через 100 м

3. ±10 см от проектных значений ширины

4. Крутизна откосов

4. Уклономер

4. Промеры через 50 м

4. Уменьшение крутизны до 10 % от проектного значения

5. Поперечные уклоны

 

5. Промеры через 50 м

5. ±0,010 от проектных значений поперечных уклонов

Уплотнение грунта в насыпи

 

Визуальный

 

Мастер, лаборант

 

Общий журнал работ

Журнал пробного уплотнения грунта

Журнал контроля плотности земляного полотна

1. Режим уплотнения

1. Визуальный

1. Постоянно

1. -

 

Лабораторный

 

 

2. Влажность уплотняемого слоя

2. Метод режущего кольца

2. Не реже одного раза в смену

2. см. табл. 2

3. Фактическая плотность грунта

3. Метод режущего кольца

3. Не менее трех образцов (по оси земполотна и 1,5 - 2,0 м от бровки) не реже, чем через 50 м - для верхнего слоя, не реже, чем через 20 м - для нижних слоев

3. Снижение плотности грунта на 4 % от проектных значений до 10 % определений, остальные результаты не ниже проектных значений

Планировка верха земляного полотна и откосов

 

Инструментальный

 

Мастер, геодезист

 

Журнал технического нивелирования

Ведомость приемки земляного полотна

1. Высотные отметки продольного профиля

1. Нивелир, визирки

1. Промеры не реже, чем через 10

1. ±50 мм от проектных значений высотных отметок

2. Расстояние между осью и бровкой земляного полотна

2. Рулетка измерительная

2. Промеры через 50 м

2. ±10 мм от проектных значений

3. Поперечные уклоны

3. Уклономер

3. Промеры не реже, чем через 100 м

3. ±0,010 от проектных значений

4. Ровность поверхности

4. Нивелир, нивелирная рейка

4. Промеры не реже, чем через 50 м в трех точках на поперечнике (по оси к бровкам)

4. ±50 мм от проектных значений

5. Крутизна откосов

5. Уклономер

5. Промеры через 50 м

5. Уменьшение крутизны до 10 % от проектного значения

3. БЕЗОПАСНОСТЬ ТРУДА

Требования техники безопасности для одноковшовых экскаваторов являются общими и выполняются независимо от типа машин и вида сменного рабочего оборудования. Для работы экскаватор устанавливают на твердом, заранее спланированном основании (площадке) с уклоном, не превышающим допустимой величины, обусловленной техническим паспортом.

Для предупреждения опасности самопроизвольного смещения (откатывания) под гусеницы подкладывают инвентарные упоры.

Ожидающие погрузки транспортные средства должны находиться за пределами радиуса действия ковша экскаватора не ближе 5 м, становиться под погрузку и отъезжать после ее окончания только с разрешающего сигнала машиниста.

Погрузка в автотранспорт производится со стороны заднего или бокового борта.

При погрузке разных по свойствам грунтов в кузов самосвала вначале грузят сухой, затем вязкий грунт. Для предотвращения поломок транспортных средств грунт высыпают с минимальной высоты, допускающей беспрепятственное открывание днища ковша, при этом грунт равномерно распределяют по кузову и следят, чтобы он не пересыпался через борта.

При производстве работ по устройству земляного полотна бульдозером руководствуются следующей технической литературой:

1. СНиП III-4-80. Техника безопасности в строительстве.

2. СНиП 12-03-2001. Безопасность труда в строительстве. Часть 1. Общие требования.

3. ТОИ Р-218-05-93. Типовая инструкция по охране труда для машиниста автогрейдера (прицепного грейдера).

4. ТОИ Р-218-07-93. Типовая инструкция по охране труда для машиниста катка.

5. ТОИ Р-218-26-94. Типовая инструкция по охране труда для машиниста автополивомоечной машины.

6. ТОИ Р-218-25-94. Типовая инструкция по охране труда для машинистов одноковшовых гусеничных и пневмоколесных экскаваторов.

7. Спельман Е.П. Техника безопасности при эксплуатации строительных машин и средств малой механизации. - М.: Стройиздат, 1986. - 271 с.: ил.

Технологическая карта № 4

УСТРОЙСТВО ВЫЕМКИ ГЛУБИНОЙ 1 м С РАЗРАБОТКОЙ ГРУНТА СКРЕПЕРАМИ

1. ОБЛАСТЬ ПРИМЕНЕНИЯ

Технологическая карта разработана на основе методов научной организации труда и предназначена для использования при разработке проектов производства работ и организации труда на строительном объекте.

В технологической карте предусмотрена разработка выемки глубиной 1 м (грунт II группы) самоходными скреперами МоАЗ-6014 с вместимостью ковша 8,3 м3. Общая сменная производительность звена из 7 скреперов 2240 м3 при дальности возки 300 м.

1.2. В состав работ входят:

·        снятие растительного слоя грунта;

·        разработка и перемещение грунта;

·        срезка недобора грунта с откосов;

·        планировка верха земляного полотна и откосов;

·        нарезка кюветов;

·        подкатка верха земляного полотна.

2. ОРГАНИЗАЦИЯ И ТЕХНОЛОГИЯ ПРОИЗВОДСТВА РАБОТ

2.1. Перед началом основных работ по разработке выемки (рис. 1) необходимо выполнить следующие операции:

·        восстановить трассу дороги;

·        произвести разбивку и закрепление полосы отвода;

·        расчистить территорию в пределах полосы отвода от леса, кустарников, пней, корней и валунов;

·        произвести разбивку земляного полотна;

·        устроить временный водоотвод.

2.2. Работы по устройству выемки глубиной 1 м выполняются в разработанной технологической последовательности (табл. 1) поточным методом на трех захватках.

Рис. 1. Поперечный профиль выемки

2.3. На первой захватке производят работы по снятию растительного слоя грунта. Толщина срезаемого растительного слоя устанавливается проектом и согласовывается с землепользователем. В карте принята толщина срезаемого слоя 20 см. Срезка растительного грунта осуществляется бульдозером ДЗ-171 по поперечной схеме. Грунт срезают от оси дороги в поперечном направлении с перемещением за пределы полосы отвода, перекрывая каждый предыдущий след на 0,25 - 0,3 м.

Срезанный грунт впоследствии используется для укрепления откосов выемки.

2.4. На второй захватке выполняются следующие технологические операции:

·        разработка скрепером грунта в выемке с перемещением его в насыпь на расстояние 300 м;

·        зачистка откосов автогрейдером.

Движение скрепера при разработке и перемещении грунта осуществляется по эллиптической схеме. Полный рабочий цикл скрепера состоит из следующих операций: резания грунта (наполнения ковша), перемещения грунта, разгрузки ковша, холостого хода в забой.

Резание грунта скрепер осуществляет по прямой, параллельной оси дороги, со скоростью 2,5 - 3,5 км/ч на первой передаче. Наполнение и разгрузка ковша происходят на ходу.

Выемку разрабатывают по ребристо-шахматной схеме (рис. 2). Зарезание грунта можно производить по одному из трех способов, показанных на рис. 3.

Рис. 2. Ребристо-шахматная схема разработки грунта:

1 - 10 очередность проходок

Длина пути набора грунта в ковш скрепером определяется расчетом в зависимости от вида грунта и вместимости ковша и составляет: для песков - 8 - 10 м, для суглинков - 12 - 15 м, для глин - 17 - 21 м, при этом толщина стружки в зависимости от вида грунта достигает: для песков - 20 - 30 см, для супесей - 15 - 20 см, для суглинков - 12 - 18 см, для глин - 9 - 14 см.

Для наполнения ковша скрепером применяется трактор-толкач ДЗ-94С-1. На три скрепера принято использовать один толкач.

Начинают разрабатывать грунт от бровок выемок. После разработки выемки на полную глубину на откосах образуются гребни и бугры высотой до 15 - 20 см. Их срезку выполняют автогрейдером ДЗ-122, начиная зачистку с верхней части откоса и перемещая срезанный грунт в насыпь.

2.5. На третьей захватке выполняются следующие технологические операции:

·        планировка откосов автогрейдером;

·        планировка верха земляного полотна;

·        нарезка кюветов автогрейдером;

·        доработка кюветов вручную;

·        уплотнение верха земляного полотна катком на пневмошинах;

·        покрытие откосов выемки и кюветов растительным грунтом бульдозером.


Таблица 1

Технологическая последовательность процессов с расчетом объемов работ и потребных ресурсов

№ процессов

№ захваток

Источник обоснования норм выработки (ЕНиРы и расчеты)

Описание рабочих процессов в порядке их технологической последовательности с расчетом объемов работ

Единица измерения

Количество работ

Производительность в смену

Потребность в машино-сменах

Затраты труда и заработная плата на захватку длиной 200 м

на захватку

на 1 км

на захватку

на 1 км

Норма времени, чел.-ч

Заработная плата, руб.-коп.

на единицу измерения

на полный объем работ

на единицу измерения

на полный объем работ

1

2

3

4

5

6

7

8

9

10

11

12

13

14

1. Основные земляные работы (захватка l = 100 м)

1

1

Расчет

Снятие растительного слоя грунта при наличии корней кустарника толщиной 0,2 м бульдозером ДЗ-171:

27·100 = 2700

м2

2700

27000

5700

0,47

4,74

0,0014

3,78

0-03

81-00

2

2

Расчет

Разработка грунта II группы самоходным скрепером МоАЗ-6014 с перемещением его на расстояние до 300 м:

((25 + 19)/2)·1·100 = 2200

м3

2200

22000

320

6,88

68,75

0,025

55,0

0-54

1188-00

3

2

Расчет

Работа бульдозера-толкача ДЗ-94С-1 совместно со скрепером при разработке грунта в выемке

м3

2200

22000

1270

1,73

17,32

0,0063

13,86

0-13,5

297-00

4

2

Расчет

Зачистка откосов автогрейдером ДЗ-122 за один проход по одному следу:

3,17·2·100 = 6340

м2

634

6340

13560

0,047

0,47

0,0006

0,38

0-01,3

8-24

2. Заключительные земляные работы (захватка l = 200 м)

1

3

Расчет

Планировка откосов выемки автогрейдером ДЗ-122 за 2 прохода по одному следу:

3,17·2·200 = 1268

м2

634

6340

9410

0,13

0,67

0,00085

1,08

0-01,8

22-82

2

3

Расчет

Планировка верха земляного полотна автогрейдером ДЗ-122 за 2 круговых прохода по одному следу:

25·200 = 5000 м2

м2

5000

25000

23500

0,21

1,06

0,00034

1,7

0-00,73

36-50

3

3

Расчет

Нарезка кюветов автогрейдером ДЗ-122 при рабочем ходе в одном направлении:

((3,5 + 0,5)/2) × 0,5 × 2 × 200 = 400

м3

400

2000

630

0,63

3,17

0,013

5,2

0-28

112-00

4

3

Расчет

Доработка кюветов вручную (дорожный рабочий 3 разряда)

м3

4

20

4,4

0,91

4,55

1,8

7,2

30-71

122-84

5

3

Расчет

Уплотнение верха земполотна катком ДУ-101 на пневмошинах за четыре прохода по одному следу:

12 × 200 = 2400

м2

2400

12000

10100

0,24

1,19

0,00079

1,90

0-17

408-00

6

3

Расчет

Покрытие откосов выемки растительным слоем толщиной 0,1 м и его распределение бульдозером ДЗ-171 в количестве:

(4,72 + 0,5 + 1,58)30,1323200 = 272 м3

м3

272

1360

2285 (по норм.)

0,12

0,60

0,0035

0,95

0-07,5

20-40


Рис. 3. Способы резания грунта скрепером:

а - прямой стружкой; б - клиновой; в - гребенчатый; L - длина пути набора грунта; h - глубина резания (стрелкой указано направление движения скрепера)

Планировочные работы выполняют автогрейдером ДЗ-122. Перед началом работ проверяют и восстанавливают положение оси и бровок земляного полотна в плане, на прямых, переходных и основных кривых, а также в продольном профиле. Порядок производства геодезических работ изложен в технологической карте «Геодезические работы при устройстве земляного полотна».

Планировку начинают с наиболее низких в продольном профиле участков.

Откосы планируют автогрейдером за два прохода по одному следу. При планировке откосов выемки (если заложение откосов не менее 1:3) автогрейдер движется непосредственно по откосу, смещая проходы от верха к низу.

Верх земляного полотна планируют по челночной схеме за 4 прохода по одному следу, начиная от бровки, смещаясь к оси дороги.

Кюветы нарезают автогрейдером, двигаясь вдоль земляного полотна с разворотом в конце каждого рабочего хода. Срезанный грунт перемещают в насыпь. При резании угол захвата отвала автогрейдера должен быть в пределах 45 - 50°, а угол резания - 35 - 45°.

Доработка кюветов осуществляется вручную дорожным рабочим. Работа сводится к доведению кювета до проектных очертаний.

Уплотнение верха земляного полотна выполняют самоходным катком на пневмошинах ДУ-101 за 4 прохода по одному следу. Грунт начинают уплотнять у бровки с последующим смещением к оси. Перекрытие каждого следа при очередном проходе должно составлять 1/3 его ширины. В зависимости от вида грунта давление в шинах пневмокатка должно быть: для песков - 0,2 МПа, для супесей - 0,3 - 0,4 МПа, для суглинков и глин - 0,6 - 0,8 МПа.

Первый и последний проходы по уплотняемой полосе следует проводить при малой скорости катка - 2 - 2,5 км/ч, а промежуточные проходы на большей скорости - 8 - 10 км/ч.

После планировочных работ переходят к укреплению откосов выемки и земляного полотна. Ранее снятый слой растительного грунта надвигают на откосы бульдозером ДЗ-171 в поперечном направлении. Сухие откосы перед распределением растительного грунта необходимо увлажнять.

Технологическая последовательность процессов с расчетом объемов работ и потребных ресурсов приведена в табл. 1. Состав отряда - в табл. 2.

Технология операционного контроля качества работ при устройстве выемки приведена в табл. 3.

Технологический план потока по устройству выемки приведен на рис. 4.

Таблица 2

Состав отряда

Машины

Профессия и разряд рабочего

Потребность в машино-сменах

Коэффициент загрузки

Количество рабочих

Примечание

на 1000 м

на захватку

I. Основные земляные работы (захватка 100 м)

Бульдозер ДЗ-171

Машинист VI разряда

4,74

0,47 (1)

0,47

1

Совместно с заключительными земляными работами

Самоходный скрепер МоАЗ-6014

Машинист VI разряда

68,75

6,86 (7)

0,98

7

 

Бульдозер-толкач ДЗ-94С-1

Машинист VI разряда

17,32

1,73 (2)

0,87

2

 

Автогрейдер ДЗ-122

Машинист VI разряда

0,47

0,05

 

 

 

2. Заключительные земляные работы (захватка 200 м)

Автогрейдер ДЗ-122

Машинист VI разряда

4,9

0,97 (1)

1,0

1

Совместно с основными земляными работами

Самоходный каток ДУ-101

Машинист VI разряда

1,19

0,24 (1)

0,24

1

 

Бульдозер ДЗ-171

Машинист VI разряда

0,6

0,12

 

 

 

 

Машинист III разряда

 

 

 

1

 

 

 

Итого

12

 

13

 

Таблица 3

Технология операционного контроля качества работ при устройстве выемки скрепером

Основные операции, подлежащие контролю

Состав контроля

Метод и средства контроля

Режим и объем контроля

Лицо, осуществляющее контроль

Предельные отклонения от норм контролируемых параметров

Где регистрируются результаты контроля

1

2

3

4

5

6

7

Снятие растительного слоя грунта

Толщина снимаемого слоя грунта

Инструментальный

Измерительная линейка, визирки

Промеры не реже, чем через 100 м

Мастер

±20 % от проектной толщины

Общий журнал работ

Разработка грунта выемки

 

Инструментальный

 

Мастер-геодезист, мастер

 

Журнал технического нивелирования

Общий журнал работ

1. Отметка подошвы выемки

1. Нивелир, визирки

1 Промеры не реже, чем через 100 м

1. ±50 мм от проектных значений высотных отметок

2. Крутизна откосов

2. Уклономер

2. Промеры через 50 м

2. Уменьшение крутизны до 10 % от проектного значения

Планировка верха земляного полотна и откосов выемки

 

Инструментальный

 

Прораб, мастер, геодезист

 

Журнал технического нивелирования

Ведомость приемки земляного полотна

1. Высотные отметки продольного профиля

1. Нивелир

1. Промеры не реже, чем через 100 м

1. ±50 мм от проектных значений высотных отметок

2. Расстояние между осью земполотна и внутренней кромкой кювета

2. Рулетка измерительная

2. Промеры через 50 м

2. ±10 см от проектных значений

3. Поперечные уклоны верха земполотна

3. Уклономер

3. Промеры не реже, чем через 100 м

3. ±0,01 от проектных значений

4. Ровность поверхности

4. Нивелир

4. Промеры не реже, чем через 50 м в трех гонках на поперечнике

4. ±50 мм от проектных значений

5. Крутизна откосов

5. Уклономер

5. Промеры через 50 м

5. Уменьшение крутизны откосов до 10 % от проектного значения

Нарезка кюветов

1. Продольные уклоны

1. Нивелир

1. Промеры не реже, чем через 100 м

Прораб, мастер, геодезист

1. ±0,001 от проектных значений уклонов

Журнал технического нивелирования

Ведомость приемки земляного полотна

2. Поперечные размеры

2. Рулетка измерительная

2. Промеры через 50 м

2. ±5 см от проектных значений

3. Крутизна откосов

5. Уклономер

3. Промеры через 50 м

3. Уменьшение крутизны откосов до 10 % от проектного значения

Уплотнение верха земляного полотна

 

Визуальный

 

Мастер, лаборант

 

Общий журнал работ

Журнал пробного уплотнения грунта

Журнал контроля плотности земляного полотна

1. Режим и технология уплотнения

1. Визуально

1. -

Табл. 1. СНиП 3.06.03-85

1. -

2. Влажность уплотняемого слоя

Лабораторный

2. Отбор проб грунта в бюксы

2. Не реже одного раза в смену (не менее трех образцов) и обязательно при выпадении осадков

2. Снижение плотности грунта не более 4 % от проектных значений до 10 % определении

3. Фактическая плотность грунта

3. Метод режущего кольца

3. Не менее трех образцов (по оси земполотна и 1,5 - 2,0 от бровки) не реже, чем через 50 м

 


Рис. 4. Технологический план потока по разработке выемки (глубиной 1 м) скрепером МоАЗ-6014


3. БЕЗОПАСНОСТЬ ТРУДА

Инженерно-технический персонал и машинисты скреперов до начала земляных работ изучают проект или технологическую карту и выполняют работы в точном соответствии с ними. К управлению, техническому обслуживанию и ремонту машин допускаются лица, прошедшие обучение и имеющие удостоверение на право выполнения работ соответствующей квалификации. Машинист скрепера обязан иметь удостоверение водителя автомобиля.

До начала скреперных работ проводятся подготовительные работы: участок очищают от деревьев, пней, кустарника, валунов, устраивают временные дороги, освещают места разработки и выгрузки грунта, обозначают границы разработки выемки, выносят и закрепляют оси земляных сооружений.

Дистанция между движущимися скреперами должна быть не менее 5 м. Каждая машина должна быть оборудована исправным звуковым сигналом. Значение сигналов разъясняется всем работающим.

Грунт набирается при прямолинейном движении на низших передачах с максимально возможной толщиной стружки. Повороты при наполнении ковша могут привести к опрокидыванию скрепера. Чрезмерное заглубление ковша скрепера на плотных и недостаточно взрыхленных участках не допускается, так как при этом возникают сильные толчки, сопровождаемые подъемом задней части машины. Во избежание опрокидывания не допускаются крутые развороты, а также транспортирование порожнего скрепера с поднятым ковшом.

Разгрузка осуществляется только на ходу с одновременной послойной укладкой грунта в отсыпаемые места. При разгрузке движение задним ходом под откос и повороты не производятся.

Особое внимание обращается на организацию скреперных работ в зоне расположения действующих подземных коммуникаций.

При устройстве выемок скреперами запрещается:

·        осуществлять разработку грунта скрепером на расстоянии ближе 1 м от расположения подземных коммуникаций;

·        производить работы без разрешения (ордера на разрытие) от организаций, эксплуатирующих эти коммуникации;

·        использовать скреперы на глинистых грунтах в дождливую погоду;

·        нахождение людей в радиусе 10 м относительно работающих машин.

Расстояние приближения машин к откосам выемки при работе и остановках должно быть не менее 1 м.

При производстве работ по устройству земляного полотна бульдозером руководствуются следующей технической литературой:

1. СНиП III-4-80. Техника безопасности в строительстве.

2. СНиП 12-03-2001. Безопасность труда в строительстве. Часть 1. Общие требования.

3. ТОИ Р-218-05-93. Типовая инструкция по охране труда для машиниста автогрейдера (прицепного грейдера).

4. ТОИ Р-218-07-93. Типовая инструкция по охране труда для машиниста катка.

5. ТОИ Р-218-26-94. Типовая инструкция по охране труда для машиниста автополивомоечной машины.

6. ТОИ Р-218-08-93. Типовая инструкция по охране труда для машиниста скрепера.

7. Спельман Е.П. Техника безопасности при эксплуатации строительных машин и средств малой механизации. - М.: Стройиздат, 1986. - 271 с.: ил.

Технологическая карта № 5

ВОЗВЕДЕНИЕ НАСЫПИ ЗЕМЛЯНОГО ПОЛОТНА АВТОМОБИЛЬНЫХ ДОРОГ ВЫСОТОЙ 9 м С РАЗРАБОТКОЙ ГРУНТА В КАРЬЕРЕ ЭКСКАВАТОРАМИ ЭО-4225 И ТРАНСПОРТИРОВКОЙ АВТОМОБИЛЯМИ-САМОСВАЛАМИ

(сосредоточенные работы)

1. ОБЛАСТЬ ПРИМЕНЕНИЯ

Технологическая карта разработана на основе методов научной организации труда и предназначена для использования при разработке проектов производства работ и организации труда на строительном объекте.

Технологическая карта составлена на возведение насыпи земляного полотна высотой 9 м при разработке грунта II группы экскаваторами типа ЭО-4225 с вместимостью ковша 1,25 м3 и перевозке грунта автомобилями-самосвалами. Для транспортирования грунта в данном технологическом процессе приняты автомобили-самосвалы КамАЗ-55111.

Во всех случаях применения технологической карты необходима привязка ее к конкретным условиям производства работ с учетом имеющихся материально-технических ресурсов.

2. ОРГАНИЗАЦИЯ И ТЕХНОЛОГИЯ ПРОИЗВОДСТВА РАБОТ

2.1. До возведения земляного полотна необходимо:

·        восстановить и закрепить трассу дороги и полосу отвода;

·        расчистить территорию в пределах полосы отвода от кустарников, пней и валунов;

·        произвести разбивку земляного полотна и грунтового карьера;

·        устроить временные землевозные дороги для транспортирования грунта;

·        устроить съезды в забой и выезды из него;

·        обеспечить отвод поверхностных и грунтовых вод от забоя;

·        устроить освещение забоя и отвалов при работе в темное время суток.

2.2. Работы по возведению земляного полотна (рис. 1) из сосредоточенного грунтового карьера при разработке грунта экскаваторами ЭО-4225 и транспортировании в насыпь автомобилями-самосвалами КамАЗ-55111 на среднее расстояние 1,5 км ведутся в разработанной технологической последовательности процессов производства работ (табл. 3).

Рис. 1. Конструкция земляного полотна в поперечном профиле

Объем сосредоточенных земляных работ без присыпных обочин с учетом поправки на снятие растительного слоя толщиной 0,3 м составляет 28865 м3 (см. рис. 1). Толщина дорожной одежды принята 0,6 м.

Основные объемы работ рассчитаны для участка сосредоточенных работ длиной 100 м.

2.3. В первую очередь выполняются следующие технологические операции:

·     срезка растительного слоя грунта бульдозером;

·     уплотнение основания насыпи пневмокатком.

Толщину срезаемого растительного слоя грунта устанавливают по согласованию с землепользователем. В карте принята толщина этого слоя 30 см.

Работы, отмеченные в данной технологической карте, выполняют бульдозером ДЗ-171 по поперечной схеме (рис. 2). Грунт срезают от оси дороги поперечными проходами бульдозера, перекрывая каждый предыдущий след на 0,25 - 0,3 м, и перемещают за пределы полосы отвода.

Рис. 2. Срезка растительного грунта

Бульдозер ДЗ-171 за один проход перемещает 3,0 м3 грунта. Длину очищаемого за один прием участка (м) следует определять по формуле

где V   - объем грунта, который может переместить бульдозер за один проход, м3;

B   - ширина отвала бульдозера, м;

z    - перекрытие следа (0,25 - 0,3 м);

h    - толщина растительного слоя, м.

В дальнейшем срезанный растительный грунт используют для укрепления откосов земляного полотна.

Основание насыпи уплотняют катком ДУ-101 за 4 прохода по одному следу. При уплотнении каждый предыдущий след перекрывают последующим на 1/3 его ширины. Движение катка осуществляют по круговой схеме.

Основание насыпи должно иметь коэффициент уплотнения не ниже 0,98.

2.4. Технологической картой предусмотрено возведение насыпи земляного полотна с разработкой грунта экскаваторами ЭО-4225 и транспортировкой автомобилями-самосвалами КамАЗ-55111 на расстояние 1,5 км.

Разработку грунтового карьера экскаваторами «прямая лопата» производят по схеме (рис. 3).

Рис. 3. Схема разработки грунтового карьера

Сечение забоя устанавливают в соответствии с рабочими характеристиками выбранного типа экскаватора (рис. 4).

При принятой схеме разработки грунтового карьера экскаватором вначале устраивается сквозная поперечная траншея, транспортные средства в этом случае размещаются выше уровня стоянки экскаватора. В дальнейшем разработка карьера ведется продольными проходами.

Глубина первой пионерной траншеи (см. рис. 4) определяется из условия обеспечения погрузки грунта в автомобиль-самосвал при использовании наибольшей высоты выгрузки

H1 = Hв - 0,5 - h1,

где Нв    - наибольшая высота выгрузки, м;

0,5   - расстояние по высоте между днищем ковша и верхом борта автомобиля, м;

h1     - погрузочная высота автомобиля-самосвала, м.

Рис. 4. Сечение грунтового карьера:

Rр - наибольший радиус резания; Re - наибольший радиус выгрузки; Rcm - радиус резания на уровне стояния гусениц; rвв - радиус выгрузки при наибольшей высоте выгрузки; Hв - наибольшая высота выгрузки; A - расстояние от кромки разрабатываемой траншеи до оси прохода экскаватора; H1 - глубина пионерной траншеи; - уширенные лобовые забои; - проходки боковыми забоями

Расстояние от кромки разрабатываемой траншеи до оси прохода экскаватора определяется по условиям обеспечения погрузки грунта в автомобиль-самосвал при использовании наибольшего радиуса выгрузки

A = Rвв - 1 - b/2,

где Rвв   - наибольший радиус выгрузки при наибольшей высоте выгрузки, м;

1     - безопасный зазор между кромкой выемки и колесом автомобиля-самосвала, м;

b     - ширина базы автомобиля-самосвала, м.

Ось прохода экскаватора при разработке второй траншеи должна располагаться на расстоянии Rв от оси движения автомобиля-самосвала, который в нашем случае будет двигаться на уровне основания пионерной траншеи.

При разработке третьей траншеи положение оси прохода определяется размещением транспортных средств, которые будут двигаться на уровне стоянки экскаватора.

При разработке четвертой траншеи автомобили-самосвалы размещаются на уровне основания первого яруса и при разработке пятой траншеи - на уровне стоянки экскаватора.

Подобными расчетами можно определить количество проходов экскаватора и разработать схему его работы при других исходных данных и размерах грунтового карьера.

Уклоны дна проходок должны предотвращать приток и скопление в забоях грунтовых и поверхностных вод.

Рабочий цикл экскаватора с прямой лопатой состоит из следующих операций:

·        копания грунта (движение стрелы, рукояти и ковша);

·        поворота на разгрузку (поворота платформы со всем рабочим оборудованием);

·        разгрузки (открывания днища ковша или поворота ковша относительно рукояти);

·        поворота в забой;

·        опускания стрелы и рукояти с ковшом на подошву забоя.

2.5. Транспортировку грунта из карьера в насыпь производят автомобилями-самосвалами КамАЗ-55111.

Количество транспортных средств, необходимых для перевозки грунта, определяют расчетом с учетом фактических условий работы и дальности возки.

В каждый автомобиль-самосвал КамАЗ-55111 загружают 7,5 м3 грунта. Грунт транспортируют до места производства работ и выгружают через каждые 5 м вдоль насыпи и через каждые 5 м по ее ширине (рис. 5).

Рис. 5. Схема возведения насыпи земляного полотна

Расстояние между центрами куч вдоль насыпи определяют по формуле

где Q     - грузоподъемность автомобиля-самосвала, т;

B  - ширина полосы (или средняя линия) рассыпаемого материала, м;

h   - толщина слоя, м;

ρ   - плотность материала, т/м3;

n   - количество куч, выгружаемых в каждом поперечном створе.

Расстояние между центрами куч по ширине насыпи:

lп = B/n = 44,03/9 = 4,9 ≈ 5 м.

2.6. Грунт разравнивают слоями толщиной 0,3 м за 1 - 2 прохода бульдозера ДЗ-171 по одному следу (см. рис. 5).

После разравнивания грунта поверхность каждого слоя должна иметь уклон 30 - 40 о/оо от оси к бровкам земляного полотна, на ней не должно быть замкнутых впадин.

2.7. Грунт уплотняют слоями толщиной 0,30 м последовательными круговыми проходами пневмокатка ДУ-101 по всей ширине насыпи за десять проходов по одному следу (см. рис. 5).

Уплотнять грунт следует при оптимальной влажности, определенной по ГОСТ 22733-77, которая не должна выходить за пределы указанной в табл. 1 для разных типов грунтов.

При недостаточной влажности грунт увлажняют с помощью поливомоечной машины. В технологической карте расход воды на эти цели принят в количестве 3 % от массы грунта.

Первые два прохода катка следует выполнять на расстоянии 2 м от бровки насыпи, а затем, смещая проходы на 1/3 ширины следа в сторону бровки, уплотняют края насыпи не доходя 0,3 - 0,5 м до откоса. После этого продолжают уплотнение круговыми проходами от края к середине.

В целях уплотнения грунта в краевых частях насыпи, прилегающих к откосу, ее следует отсыпать на 0,3 - 0,5 м шире проектного очертания.

Таблица 1

Вид грунта

Влажность, %, при требуемом коэффициенте уплотнения

1 - 0,98

0,95

0,90

Пески пылеватые, супеси легкие, крупные

Не более 1,35

Не более 1,6

Не нормируется

Супеси легкие и пылеватые

0,8 - 1,25

0,75 - 1,35

0,7 - 1,6

Супеси тяжелые пылеватые и суглинки легкие пылеватые

0,85 - 1,15

0,8 - 1,2

0,75 - 1,4

Суглинки тяжелые пылеватые, глины

0,95 - 1,05

0,9 - 1,1

0,85 - 1,2

Каждый последующий проход по одному и тому же следу начинают после перекрытия предыдущими проходами всей ширины земляного полотна.

Требуемый коэффициент уплотнения грунта приведен в табл. 2. При оптимальной влажности грунта для достижения коэффициента уплотнения 0,95 ориентировочно назначают 6 - 8 проходов катка для связных и 4 - 6 - для несвязных грунтов; для достижения коэффициента уплотнения 0,98 - 8 - 12 проходов для связных и 6 - 8 - для несвязных грунтов.

Необходимое количество проходов катка по одному следу уточняют пробным уплотнением.

Таблица 2

Элементы земляного полотна

Глубина расположения слоя от поверхности покрытия, м

Наименьший коэффициент уплотнения грунта при типе дорожных одежд

капитальном

облегченном и переходном

в дорожно-климатических зонах

I

II, III

IV, V

I

II, III

IV, V

Рабочий слой

До 1,5

0,98 - 0,96

1,0 - 0,98

0,98 - 0,95

0,95 - 0,93

0,98 - 0,95

0,95

Для связных грунтов на начальном этапе уплотнения давление в шинах пневмокатка не должно превышать 0,2 - 0,3 МПа, на заключительном этапе - 0,6 - 0,8 МПа. При уплотнении песков давление в шинах на всех стадиях уплотнения не должно быть более 0,2 - 0,3 МПа.

Первый и последний проходы по полосе участка выполняют на малой скорости пневмокатка (2 - 2,5 км/ч), промежуточные проходы - на большой (до 8 км/ч).

Отсыпку каждого последующего слоя можно производить только после разравнивания и уплотнения предыдущего, а также контроля качества работ.

2.8. На заключительном этапе работы (рис. 6) выполняются следующие технологические операции:

·     планировка верха насыпи автогрейдером;

·     планировка откосов экскаватором-драглайном (рис. 7) с верхней стоянки;

·     покрытие откосов насыпи растительным грунтом экскаватором-драглайном.

Рис. 6. Схема планировки верха насыпи земляного полотна автогрейдером

Технологической картой предусмотрено планировку верха земляного полотна выполнять автогрейдером ДЗ-122 по круговой схеме движения от бровок к оси земляного полотна за два прохода по одному следу.

Перед началом работ автогрейдер устанавливают так, чтобы его крайние колеса, ближайшие к бровке земляного полотна, находились на расстоянии 0,8 - 1,0 м от нее. Отвал устанавливают в рабочее положение с одновременным выдвижением его к бровке на 0,8 - 1,0 м.

Угол захвата ножа автогрейдера должен составлять при первом проходе - 50°, при втором - 55°, а угол наклона соответствовать проектному поперечному профилю.

Рис. 7. Планировка откосов экскаватором-драглайном

Перекрытие следов при планировке верха земляного полотна 0,5 м.

Перед началом планировки откоса восстанавливают положение оси и бровок земляного полотна в плане и продольном профиле колышками через 20 м, обозначают подошву насыпи и устанавливают откосники-шаблоны, фиксирующие проектный профиль откоса.

По обочине насыпи колышками обозначают линию движения внешней гусеницы экскаватора. Порядок производства геодезических работ изложен в технологической карте «Геодезические работы при устройстве земляного полотна».

Работу по планировке откоса выполняют с верхней стоянки экскаватора (см. рис. 4).

Стрелу экскаватора устанавливают перпендикулярно линии бровки.

После планировки откоса на участке стоянки экскаватор перемещают по фронту работ на 2 м и планируют следующий участок, перекрывая предыдущий след на 1/3 ширины планировочной рамы.

Расчет объемов работ и потребных ресурсов приведен в табличной форме в соответствии с технологической последовательностью процессов (см. табл. 3).

Потребность комплексной механизированной бригады в машинах и механизмах определена из расчета их оптимальной загрузки (табл. 4).


Таблица 3

Технологическая последовательность процессов с расчетом объемов работ и потребных ресурсов

№ процессов

№ захваток

Источник обоснования норм выработки (ЕНиРы и расчеты)

Описание рабочих процессов в порядке их технологической последовательности с расчетом объемов работ

Единица измерения

Количество работ на объекте

Производительность в смену

Потребность в машино-сменах

Затраты труда и заработная плата на захватку длиной 200 м

Норма времени, чел.-ч

Заработная плата, руб.-коп.

на единицу измерения

на полный объем работ

на единицу измерения

на полный объем работ

1

2

3

4

5

6

7

8

9

10

11

12

I. Основные земляные работы

1

 

Расчет

Снятие растительного слоя грунта толщиной 0,3 м бульдозером ДЗ-171 и перемещение его в обе стороны от оси дороги в количестве

46,55·100·0,3 = 1400 м3

м3

1400

1206

1,2

0,007

9,8

0-15

210-00

2

 

Расчет

Уплотнение основания насыпи самоходным катком ДУ-101 на пневматических шинах за 4 прохода по одному следу

46,55·100 = 4655 м2

м2

4655

8695

0,5

0,0009

4,2

0-02

93-10

3

 

Расчет

Разработка грунта II группы экскаватором ЭО-4225 с погрузкой грунта в автомобили-самосвалы

м3

28865

780

37,0

0,02

577,3

0-39

11257-35

4

 

Расчет

Перевозка грунта по грунтовым дорогам на расстояние 1,5 км, со скоростью V = 22 км/ч с разгрузкой его в насыпь автомобилями-самосвалами КамАЗ-55111

Количество грунта при его плотности = 1,75 т/м3:

28865·1,75 = 50515 т

т

50515

195

259

0,04

2072,4

0-76

3839140

5

 

Расчет

Послойное разравнивание грунта в насыпи бульдозером ДЗ-171 слоями толщиной 0,3 м с перемещением 50 % отсыпанного грунта на расстояние до 5 м

м3

14430

1510

9,6

0,005

72,2

0-11

1587-30

6

 

Расчет

Послойное увлажнение грунта водой до оптимальной влажности поливомоечной машиной МД 433-03 при дальности возку 3 км в количестве 3 % от массы грунта

т

1515

68

22,3

0,12

181,8

2-19

3317-85

7

 

Расчет

Послойное уплотнение насыпи слоями толщиной 0,3 м в плотном теле самоходным катком ДУ-101 на пневматических шинах при 10 проходах по одному следу при длине гона до 200 м

м3

28865

1355

21,3

0,006

173,19

0-13

3752-45

 

 

 

ИТОГО:

 

 

 

 

 

3090,9

 

58609-45

II. Заключительные земляные работы

1

 

Расчет

Планировка верха насыпи автогрейдером ДЗ-122 за 2 круговых прохода по одному следу:

16,8·100 = 1680

м2

1680

23500

0,07

0,0003

0,50

0-01

16-80

2

 

Расчет

Планировка откосов насыпи экскаватором-драглайном ЭО-4112А с верхней стоянки:

16,4·2·100 = 3280 м2

м2

3280

600

5,4

0,027

86,60

0-51

1672-80

3

 

Расчет

Покрытие откосов насыпи растительным слоем толщиной 0,2 м и его распределение экскаватором-драглайном, оборудованным планировочной рамой

м2

3280

2050

1,6

0,008

26,20

0-15

49-20

 

 

 

ИТОГО:

 

 

 

 

 

115,3

 

1738-80


Таблица 4

Состав комплексной механизированной бригады

Машины

Профессия и разряд рабочего

Количество машин и коэффициент загрузки

Количество рабочих

Примечание

1. Основные земляные работы

Экскаватор ЭО-4225

Машинист VI разряда, V разряда

3 (1,0)

6

 

Автомобиль-самосвал КамАЗ-55111

Водитель

21 (1,0)

21

 

Бульдозер ДЗ-171

Машинист VI разряда

1 (0,78)

1

 

Поливомоечная машина МД 433-03

Водитель

2 (0,9)

2

 

Самоходный каток на пневмошинах ДУ-101

Машинист VI разряда

2 (0,87)

2

 

2. Заключительные земляные работы

Экскаватор-драглайн ЭО-4112А

Машинист VI разряда, V разряда

1 (1,0)

2

 

Автогрейдер

Машинист VI разряда

1 (0,07)

1

 

 

ИТОГО:

 

35

 

Примечание. 1. Производительность механизированной бригады в смену составляет

qсм = (Vср/M)·n = (28865/37)·3= 2340 м3/смену,

где Vср    - объем сосредоточенных земляных работ на объекте, м3;

M - общая потребность машино-смен ведущего механизма (экскаватора);

n  - количество ведущих механизмов в составе бригады.

Соответственно срок выполнения сосредоточенных работ:

28865 м3 : 2340 м3/смену = 12,3 смен.

Технология операционного контроля качества работ при возведении насыпи земляного полотна приведена в табл. 5.

Таблица 5

Технология операционного контроля качества работ при возведении насыпи экскаваторами

Основные операции, подлежащие контролю

Состав контроля

Метод и средства контроля

Режим и объем контроля

Лицо, осуществляющее контроль

Предельные отклонения от норм контролируемых параметров

Где регистрируются результаты контроля

1

2

3

4

5

6

7

Снятие растительного слоя грунта

Толщина снимаемого слоя грунта

Инструментальный

Измерительная линейка, визирки

Промеры не реже, чем через 100 м

Мастер

±20 % от проектной толщины

Общий журнал работ

Разработка грунта экскаватором

1. Отсутствие негабаритных камней

2. Однородность грунта

Визуальный

Постоянно

Мастер, лаборант

-

Общий журнал работ

Отсыпка грунта в насыпь автомобилями-самосвалами

 

Инструментальный

Постоянно

Мастер

-

Общий журнал работ

1. Порядок и способ отсыпки

2. Регулирование движения автомобилей по отсыпаемому слою

1. Рулетка измерительная

2. Визирки

Разравнивание грунта в насыпи

 

Инструментальный

 

Мастер, геодезист

 

Общий журнал работ

Журнал технического нивелирования

1. Толщина слоя

1. Визирки

1. Промеры не реже, чем через 100 м

1. -

2. Высотные отметки продольного профиля

2. Нивелир, визирки

2. Промеры не реже, чем через 100 м

2. ±50 мм от проектных значений высотных отметок

3. Расстояние между осью и бровкой земляного полотна

3. Рулетка измерительная

3. Промеры не реже, чем через 100 м

3. ±10 см от проектных значений ширины

4. Крутизна откосов

4. Уклономер

4. Промеры через 50 м

4. Уменьшение крутизны до 10 % от проектного значения

5. Поперечные уклоны

 

5. Промеры через 50 м

5. ±0,010 от проектных значений поперечных уклонов

Уплотнение грунта в насыпи

 

Визуальный

Лабораторный

 

Мастер, лаборант

 

Общий журнал работ

Журнал пробного уплотнения грунта

Журнал контроля плотности земляного полотна

1. Режим уплотнения

1. Метод режущего кольца

1. Постоянно

1. -

2. Влажность уплотняемого слоя

2. Метод режущего кольца

2. Не реже одного раза в смену

2. см. табл. 2

3. Фактическая плотность грунта

 

3. Не менее трех образцов (по оси земполотна и 1,5 - 2,0 м от бровки) не реже, чем через 50 м - для верхнего слоя, не реже, чем через 20 м - для нижних слоев

3. Снижение плотности грунта на 4 % от проектных значений до 10 % определений, остальные результаты не ниже проектных значений

Планировка верха земляного полотна и откосов

 

Инструментальный

 

Мастер, геодезист

 

Журнал технического нивелирования

Ведомость приемки

земляного полотна

1. Высотные отметки продольного профиля

1. Нивелир, визирки

1. Промеры не реже, чем через 10

1. ±50 мм от проектных значений высотных отметок

2. Расстояние между осью и бровкой земляного полотна

2. Рулетка измерительная

2. Промеры через 50 м

2. ±10 мм от проектных значений

3. Поперечные уклоны

3. Уклономер

3. Промеры не реже, чем через 100 м

3. ±0,010 от проектных значений

4. Ровность поверхности

4. Нивелир, нивелирная рейка

4. Промеры не реже, чем через 50 м в трех точках на поперечнике (по оси к бровкам)

4. ±50 мм от проектных значений

5. Крутизна откосов

5. Уклономер

5. Промеры через 50 м

5. Уменьшение крутизны до 10 % от проектного значения

3. БЕЗОПАСНОСТЬ ТРУДА

Требования техники безопасности для одноковшовых экскаваторов являются общими и выполняются независимо от типа машин и вида сменного рабочего оборудования. Для работы экскаватор устанавливают на твердом, заранее спланированном основании (площадке) с уклоном, не превышающим допустимой величины, обусловленной техническим паспортом.

Для предупреждения опасности самопроизвольного смещения (откатывания) под гусеницы подкладывают инвентарные упоры.

Ожидающие погрузки транспортные средства должны находиться за пределами радиуса действия ковша экскаватора не ближе 5 м, становиться под погрузку и отъезжать после ее окончания только с разрешающего сигнала машиниста.

Погрузка в автотранспорт производится со стороны заднего или бокового борта.

При погрузке разных по свойствам грунтов в кузов автомобиля-самосвала вначале грузят сухой, затем вязкий грунт. Для предотвращения поломок транспортных средств грунт высыпают с минимальной высоты, допускающей беспрепятственное открывание днища ковша, при этом грунт равномерно распределяют по кузову и следят, чтобы он не пересыпался через борта.

При производстве работ по устройству земляного полотна бульдозером руководствуются следующей технической литературой:

1. СНиП III-4-80. Техника безопасности в строительстве.

2. СНиП 12-03-2001. Безопасность труда в строительстве. Часть 1. Общие требования.

3. ТОИ Р-218-05-93. Типовая инструкция по охране труда для машиниста автогрейдера (прицепного грейдера).

4. ТОИ Р-218-07-93. Типовая инструкция по охране труда для машиниста катка.

5. ТОИ Р-218-26-94. Типовая инструкция по охране труда для машиниста автополивомоечной машины.

6. ТОИ Р-218-25-94. Типовая инструкция по охране труда для машинистов одноковшовых гусеничных и пневмоколесных экскаваторов.

7. Спельман Е.П. Техника безопасности при эксплуатации строительных машин и средств малой механизации. - М.: Стройиздат, 1986. - 271 с.: ил.

Технологическая карта № 6

ВОЗВЕДЕНИЕ ЗЕМЛЯНОГО ПОЛОТНА ТИПА ПОЛУВЫЕМКА-ПОЛУНАСЫПЬ

1. ОБЛАСТЬ ПРИМЕНЕНИЯ

1.1. Технологическая карта разработана на основе методов научной организации труда и предназначена для использования при составлении проектов производства работ и организации труда на строительных объектах.

Карта составлена на возведение земляного полотна шириной 12 м и высотой 3 м типа полувыемка-полунасыпь на косогоре крутизной 1:4. В качестве ведущего механизма принят бульдозер ДЗ-171 с разработкой грунта II группы.

Во всех случаях применения технологической карты необходима привязка ее к местным условиям.

1.2. В состав работ входят:

·     срезка растительного слоя грунта в пределах полосы отвода;

·     устройство нагорной канавы;

·     нарезка уступов;

·     разработка грунта в выемке с перемещением в насыпь;

·     послойное разравнивание грунта;

·     увлажнение уплотняемого слоя грунта водой (при необходимости);

·     послойное уплотнение грунта в насыпи;

·     срезка рыхлого грунта с откоса насыпи и планировка его поверхности;

·     планировка верха земляного полотна;

·     окончательное уплотнение верха земляного полотна.

1.3. Недопустимо отсыпать насыпь на косогоре до устройства продольных водоотводных канав (нагорной канавы).

2. ОРГАНИЗАЦИЯ И ТЕХНОЛОГИЯ ПРОИЗВОДСТВА РАБОТ

2.1. До возведения земляного полотна типа полувыемка-полунасыпь (рис. 1) необходимо:

·        восстановить и закрепить трассу дороги;

·        разбить и закрепить полосу отвода;

·        очистить территорию в пределах полосы отвода и карьеров от кустарника, пней и крупных камней;

·        разбить земляное полотно;

·        устроить временный водоотвод.

2.2. Работы по возведению земляного полотна ведутся в разработанной технологической последовательности (табл. 2) поточным методом на двух захватках длиной 125 м и на третьей захватке длиной 300 м при заключительных работах (рис. 4).

2.3. На первой захватке выполняются следующие технологические операции:

срезка растительного слоя грунта в пределах косогора бульдозером ДЗ-171;

устройство нагорной канавы универсальной землеройно-планировочной машиной - экскаватором-планировщиком ЭО-3533.

Бульдозером срезают и удаляют растительный грунт по челночной схеме, начиная с верхней части косогора, перемещая его вниз, за пределы полосы отвода, и укладывают в отвал для последующего использования. Толщина растительного слоя грунта в технологической карте принята 20 см.

Рис. 1. Поперечный профиль земляного полотна типа полувыемка-полунасыпь

Нагорную канаву разрабатывают экскаватором-планировщиком ЭО-3533 с ковшом вместимостью 0,5 м3. Экскаватор устанавливают на специально устроенной на косогоре «полке». При разработке канавы экскаватор передвигается вдоль оси дороги. Проектная глубина канавы указывается на колышках, закрепляющих положение её оси.

Разработка профиля нагорной канавы (рис. 2) производится в следующей последовательности: ковшом, установленным под углом откоса, срезают грунт по контуру одного, а затем - по контуру другого откоса; оставшийся по оси канавы грунт выбирают нормально установленным ковшом с зачисткой дна. Вырытый грунт отсыпают в банкет с низовой стороны нагорной канавы.

Рис. 2. Схема разработки профиля нагорной канавы экскаватором-планировщиком ЭО-3533:

1 - 3 - последовательность экскавации грунта

Планировка грунта в банкете при необходимости выполняется отвалом экскаватора ЭО-3533 при второй проходке.

2.4. На второй захватке выполняются следующие технологические операции:

·        нарезка уступов бульдозером;

·        разработка грунта в выемке с перемещением его в насыпь бульдозером;

·        послойное разравнивание грунта бульдозером;

·        увлажнение уплотняемого слоя грунта водой с помощью поливомоечной машины (при необходимости);

·        послойное уплотнение насыпи самоходным катком на пневмошинах.

Уступы нарезают бульдозером с поворотным отвалом Т-4АП2 ОБГН-4М на участках длиной 60 - 70 м. Нижний уступ нарезают шире устраиваемых выше уступов (шириной до 6 м). Следующий нарезают бульдозером, передвигающимся по насыпи, отсыпанной на высоту первого уступа, и т.д. (рис. 3).

Рис. 3. Нарезка уступов бульдозером с поворотным отвалом:

1 - уступ; 2 - отсыпанные слои насыпи

Ширина уступа может составлять 2 - 4 м, высота - 0,5 - 2,0 м. Верху уступов в основании насыпи придают поперечный уклон в сторону оси дороги 0,01 - 0,02, стенки уступов при высоте до 1 м делают вертикальными, а при высоте до 2 м - с наклоном 1:0,5.

Полувыемку разрабатывают бульдозером с поворотным отвалом. Разработку грунта начинают с её верхней части, устраивая площадку шириной не менее 3 м (рис. 5). Затем срезают грунт слоями толщиной 0,3 - 0,4 м с перемещением его вдоль откоса на расстояние 10 м.


Рис. 4. Технологический план потока по возведению земляного полотна типа полувыемка-полунасыпь


Срезанный грунт бульдозером с неповоротным отвалом ДЗ-171 перемещают вниз по косогору на устроенный уступ. Затем грунт перемещают бульдозером по уступу на расстояние до 20 м, разравнивая его слоями 0,3 - 0,4 м.

Рис. 5. Последовательность разработки полувыемки на косогоре

После отсыпки первого слоя на участке 30 м приступают к его уплотнению. Бульдозерами продолжают отсыпку первого слоя насыпи по вышеизложенной технологии на следующем участке такой же длины.

После отсыпки слоя на втором участке бульдозеры возвращаются на первый и выполняют работы по отсыпке очередного слоя по ранее уплотнённому.

Разработку грунта на косогоре и отсыпку следующих слоев производят в аналогичной последовательности.

Насыпь предусмотрено отсыпать на 0,5 м шире проектного очертания исходя из условий уплотнения грунта в краевых частях. Лишний грунт убирают при планировке откосов.

Уплотнение отсыпанного слоя выполняется самоходным катком на пневмошинах ДУ-101 за десять проходов по одному следу по челночной схеме. Начинать уплотнение следует на расстоянии не менее 1,5 - 2,0 м от бровки насыпи с постепенным приближением к откосу при каждом последующем проходе. При этом не допускается приближение кромки уплотняющего органа катка к бровке насыпи ближе 0,3 м. После этого укатку продолжают от края к середине насыпи с перекрытием предыдущего следа на 1/3 ширины.

Таблица 1

Элементы земляного полотна

Глубина расположения слоя от поверхности покрытия, м

Наименьший коэффициент уплотнения грунта при типе дорожных одежд

капитальном

облегченном и переходном

в дорожно-климатических зонах

I

II, III

IV, V

I

II, III

IV, V

Рабочий слой

До 1,5

0,98 - 0,96

1,0 - 0,98

0,98 - 0,95

0,95 - 0,93

0,98 - 0,95

0,95

Неподтопляемая часть насыпи

Св. 1,5 до 6

Св. 6

0,95 - 0,93

0,95

0,95

0,98

0,95

0,95

0,93

0,93

0,95

0,95

0,90

0,90

Подтопляемая часть насыпи

Св. 1,5 до 6

Св. 6

0,96 - 0,95

0,96

0,98 - 0,95

0,98

0,95

0,98

0,95 - 0,93

0,95

0,95

0,95

0,95

0,95

В рабочем слое выемки ниже зоны сезонного промерзания

До 1,2

До 0,8

-

-

0,95

-

-

0,95 - 0,92

-

-

0,95 - 0,92

-

-

0,90

Первый и последний проходы по полосе укатки пневмокаток выполняет со скоростью 2,0 - 2,5 км/ч, промежуточные проходы -5 - 8 км/ч.

Давление в шинах катка должно быть одинаковым и составлять: для связных грунтов в начале уплотнения - 0,2 - 0,3 МПа; на заключительном этапе для супесей - 0,3 - 0,4 МПа, для суглинков и глин 0,6 - 0,8 МПа; для песков на всех стадиях уплотнения - 0,2 - 0,3 МПа.

Плотность грунта после укатки слоя должна соответствовать установленным требованиям нормативных документов. При этом коэффициент уплотнения грунта в зависимости от проектной глубины расположения слоя от поверхности покрытия дорожной одежды должен соответствовать требованиям, приведенным в табл. 1.

Не следует допускать переувлажнение грунта, а при интенсивных дождях возведение насыпи из глинистых грунтов следует приостанавливать. Перед длительным перерывом в работе необходимо обеспечить водоотвод с поверхности незаконченной насыпи.

Сухие и слабовлажные грунты следует увлажнять принятой в карте поливомоечной машиной МД-433-03. Слой уплотняемого грунта должен полностью пропитаться водой. Технологической картой предусмотрен расход воды, равный 3 % от массы отсыпаемого в насыпь грунта.

2.5. На третьей захватке выполняются следующие технологические операции:

·        срезка излишков грунта с откоса насыпи и планировка поверхности откоса насыпи экскаватором-планировщиком;

·        планировка поверхности откоса полувыемки автогрейдером;

·        планировка верха земляного полотна автогрейдером;

·        нарезка кювета автогрейдером;

·        окончательное уплотнение верха земляного полотна пневмокатком.

Срезка излишков грунта с откосов насыпи и планировка поверхности откоса насыпи выполняются экскаватором-планировщиком ЭО-3533.

Перед срезкой грунта с откоса верхняя площадка насыпи должна быть спланирована, а бровка обозначена колышками через 20 м.

Срезаемый с откоса грунт используется в присыпных обочинах.

Для обеспечения проектного положения откоса сразу после срезки грунта через каждые 50 м устанавливают откосники и обозначают линии бровок.

Планировка поверхности откоса полувыемки выполняется автогрейдером ДЗ-122.

Планировка верха земляного полотна осуществляется также автогрейдером ДЗ-122 за четыре прохода по одному следу по челночной схеме.

Перед началом планировки необходимо проверить и восстановить положение оси и бровок земляного полотна в плане на прямых, переходных и основных кривых, а также в продольном профиле.

Планировку начинают с наиболее низких участков (в продольном профиле), планируя верх насыпи путём последовательных проходов автогрейдера, начиная от краёв с постепенным смещением к середине. Перекрытие предыдущего следа составляет 0,3 - 0,5 м. Угол захвата ножа автогрейдера устанавливается на 45 - 55° в сторону оси дороги.

Кювет нарезают автогрейдером ДЗ-122 при движении вдоль земляного полотна, строго следя за соблюдением проектного уклона. Угол резания при этом должен быть в пределах 35 - 45°.

Окончательное уплотнение верха земляного полотна производят самоходным пневмокатком ДУ-101 за четыре прохода по одному следу, по круговой схеме с перекрытием следов на 1/3. Необходимое давление в шинах пневмокатка указано в п. 2.4.

Технологическая последовательность процессов с расчетом объемов работ и потребных ресурсов приведена в табл. 2, состав отряда - в табл. 3.

Технологический план потока по устройству полувыемки-полунасыпи приведен на рис. 4. Технология операционного контроля качества работ при устройстве полувыемки-полунасыпи приведена в табл. 4.


Таблица 2

Технологическая последовательность процессов с расчетом объемов работ и потребных ресурсов

№ процессов

№ захваток

Источник обоснования норм выработки (ЕНиРы и расчеты)

Описание рабочих процессов в порядке их технологической последовательности с расчетом объемов работ

Единица измерения

Количество работ

Производительность в смену

Потребность в машино-сменах

Затраты труда и заработная плата на захватку длиной 125 м

на захватку l = 125 м

на 1 км

на захватку l = 125 м

на 1 км

Норма времени, чел.-ч

Заработная плата, руб.-коп.

на единицу измерения

на полный объем работ

на единицу измерения

на полный объем работ

1

2

3

4

5

6

7

8

9

10

11

12

13

14

I. Основные земляные работы (захватка l = 125 м)

1

I

Расчет

Срезка и удаление растительного слоя грунта толщиной 0,2 м бульдозером ДЗ-171 в пределах косогора в количестве:

36·125 = 4500

м2

4500

36000

4280

1,05

8,4

0,00187

8,41

0-04

180-00

2

I

Расчет

Устройство нагорной канавы экскаватором-планировщиком ЭО-3533 с выгрузкой грунта в банкет:

(2,85 + 0,6)·0,75·125/2 = 162

м3

162

1296

180

0,90

7,19

0,044

7,13

0-94,4

152-93

3

II

Расчет

Нарезка уступов и перемещение грунта бульдозером Т-4АП2 ОБГН-4М на расстояние 30 м:

227·3 = 680

м3

680

5440

750

0,9

7,25

0,011

7,48

0-24

163-20

4

II

Расчет

Разработка полувыемки и перемещение грунта в полунасыпь бульдозером Д3-171 на 10 м:

211 + 461 + 711 = 1383

м3

1383

11064

1950

0,70

5,67

0,0041

5,67

0-08,8

121-70

5

II

Расчет

Поперечное перемещение ранее разработанного грунта из выемки и продольное по уступу бульдозером Т-4АП2 ОБГН-4М на расстояние 20 м:

211 + 461 + 711 = 1383

м3

1383

11064

1250

1,11

8,85

0,0064

8,85

0-13,7

18947

6

II

Расчет

Послойное разравнивание грунта в насыпи толщиной 0,35 м бульдозером Т-4АП2 ОБГН-4М:

438 + 688 + 938 = 2064

м3

2064

16512

2960

0,70

5,58

0,0027

5,57

0-05,8

119-71

7

II

Расчет

Послойная подкатка грунта в насыпи при разработке уступов и выемок самоходным катком ДУ-101 на пневматических шинах за 4 прохода по одному следу:

750 + 1562 = 2312

м3

2312

18496

6150

0,38

3,00

0,0013

3,0

0-02,8

64-74

8

11

Расчет

Послойное увлажнение грунта водой до оптимальной влажности поливомоечной машиной МД 433-03 при дальности возки 3 км в количестве 3 % от массы грунта при его плотности 1,75 т/м3:

(438 + 688 + 938)·1,75·0,03 = 110

м3

ПО

880

68

1,62

12,94

0,079

8,69

1-47

161-70

9

II

Расчет

Послойное уплотнение грунта в насыпи толщиной 0,3 м в плотном теле самоходным катком ДУ-101 на пневматических шинах при 10 проходах по одному следу:

438 + 688 + 938 = 2064

м3

2064

16512

1195

1,73

13,82

0,0067

13,83

0-14,4

297-22

 

 

 

ИТОГО:

 

 

 

 

 

 

 

68,63

 

1450-67

II. Заключительные земляные работы (захватка l = 300 м)

11

III

Расчет

Планировка откосов выемки автогрейдером ДЗ-122 при рабочем ходе в двух направлениях:

5,9·300 = 1770

м2

1770

5900

9400

0,19

0,63

0,00085

1,50

0-01,8

31-86

12

III

Расчет

Планировка верха земляного полотна автогрейдером ДЗ-122 за четыре прохода по одному следу:

14,2·300 = 4260

м2

4260

14200

9090

0,47

1,56

0,00088

3,75

0-01,9

80-94

14

III

Расчет

Окончательное уплотнение верха земляного полотна самоходным катком ДУ-101 на пневматических шинах за 4 прохода по одному следу:

12·300 = 3600

м2

3600

12000

10125

0,36

1,19

0,0079

2,84

0-01,7

61-20

10

III

Расчет

Срезка избытка грунта с откоса насыпи и планировка откоса экскаватором-планировщиком ЭО-3533, оборудованным планировочным ковшом:

6,7·0,22·300 = 442

м3

442

1474

570

0,78

2,59

0,014

6,19

0-30

132-60

13

III

Расчет

Устройство кювета автогрейдером ДЗ-122:

(2,2 + 0,4)/2·0,4·300 = 156

м3

156

520

570

0,27

0,91

0,014

2,18

0-30

46-80

 

 

 

ИТОГО:

 

 

 

 

 

 

 

16,46

 

353-40


Таблица 3

Состав отряда

Машины

Профессия и разряд рабочего

Потребность в машино-сменах

Потребность в машинах

Коэффициент загрузки

Количество рабочих

на 1000 м

на захватку

1. Основные земляные работы (захватка 125 м)

Бульдозер ДЗ-171

Машинист VI разряда

14,07

1,75

2

0,88

2

Экскаватор-планировщик ЭО-3533

Машинист VI разряда

7,19

0,9

1

0,90

1

Бульдозер Т-4АП2 ОБГН-4М

Машинист VI разряда

21,68

2,7

3

0,90

3

Самоходный каток на пневматических шинах ДУ-101

Машинист VI разряда

16,82

2,11

3

0,70

3

Поливомоечная машина МД 433-03

Машинист VI разряда

12,94

1,62

2

0,81

2

2. Заключительные земляные работы (захватка 300 м)

Автогрейдер ДЗ-122

Машинист VI разряда

3,1

0,93

1

0,93

1

Экскаватор-планировщик ЭО-3533

Машинист VI разряда

2,59

0,78

1

0,79

1

Самоходный каток на пневматических шинах ДУ-101

Машинист VI разряда

1,19

0,36

 

 

 

Примечание. Самоходные катки ДУ-101 на пневматических шинах в количестве 3 штук используются при производстве основных и заключительных земляных работ.

Таблица 4

Технология операционного контроля качества работ при возведении земляного полотна высотой 3 м типа полувыемка-полунасыпь

Основные операции, подлежащие контролю

Состав контроля

Метод и средства контроля

Режим и объем контроля

Лицо, осуществляющее контроль

Предельные отклонения от норм контролируемых параметров

Где регистрируются результаты контроля

1

2

3

4

5

6

7

Снятие растительного слоя грунта

Толщина снимаемого слоя грунта

Инструментальный

Измерительная линейка, визирки

Промеры не реже, чем через 100 м

Мастер

±20 % от проектной толщины

Общий журнал работ

Устройство нагорной канавы

1. Поперечные размеры нагорной канавы (по дну)

Инструментальный

Измерительная рулетка

Промеры не реже, чем через 100 м

Мастер

±5 см от проектных значений

Общий журнал работ

2. Глубина нагорной канавы

Инструментальный

Нивелир

Промеры не реже, чем через 100 м

Геодезист

±5 см от проектных значений

Журнал технического нивелирования

Послойное разравнивание грунта в насыпи

1. Толщина разравниваемого слоя

Инструментальный

Измерительная линейка, визирки

Промеры не реже, чем через 100 м

Мастер

±20 % от проектной толщины

Общий журнал работ

2. Однородность грунта

Визуальный

Постоянно

Мастер, лаборант

-

Ведомость приёмки земляного полотна

Послойное уплотнение насыпи

1. Плотность грунта земляного полотна

Лабораторный

Метод режущего кольца Ускоренные и полевые экспресс-методы и приборы

Не реже, чем через 200 м при высоте насыпи до 3 м (не менее 3 точек: по оси земполотна и на расстоянии 1,5 - 2,0 м от бровки)

Лаборант

Снижение плотности грунта не более 4 % от проектных значений до 10 % определений

Журнал лабораторного контроля

2. Влажность уплотняемого грунта

Лабораторный

Отбор проб грунта в бюксы

Не реже одного раза в смену (не менее трёх образцов) и обязательно при выпадении осадков

Примечание: п.п. 1, 2 могут выполняться совместно

Лаборант

Табл. 1.

СНиП 3.06.03-85

Журнал лабораторного контроля

3. Режим и технология уплотнения

Визуальный

Постоянно

Мастер

Общий журнал работ

Планировка откосов насыпи и выемки

Крутизна откосов

Уклономер

Промеры через 50 м

Мастер

Уменьшение крутизны до 10 % от проектного значения

Общий журнал работ

Планировка верха земляного полотна

1. Высотные отметки продольного профиля

Инструментальный

Нивелир

Промеры не реже, чем через 100 м

Геодезист

±50 мм от проектных отметок

Журнал технического нивелирования

2. Расстояние между осью и бровкой земляного полотна

Инструментальный

Измерительная рулетка

Промеры не реже, чем через 100 м

Мастер

±10 см от проектных значений

Общий журнал работ

3. Поперечные уклоны

Инструментальный

Уклономер

Промеры не реже, чем через 100 м

Мастер, геодезист

±0,010 от проектных значений

Ведомость приемки земляного полотна

Устройство кювета

1. Поперечные размеры нагорной канавы (по дну)

Инструментальный

Измерительная рулетка

Промеры не реже, чем через 100 м

Мастер

±5 см от проектных значений

Общий журнал работ

2. Глубина нагорной канавы

Инструментальный

Нивелир

Промеры не реже, чем через 100 м

Геодезист

±5 см от проектных значений

Журнал технического нивелирования

3. БЕЗОПАСНОСТЬ ТРУДА

К управлению дорожными машинами допускаются лица, достигшие 18 лет, имеющие удостоверение на право управления данной машиной и знающие требования безопасного ведения работ.

При работе по возведению насыпей земляного полотна бульдозерами запрещается:

·        производить земляные работы до очистки участка от леса, пней, валунов и разбивки границ полосы отвода;

·        производить разработку грунта бульдозером на расстоянии ближе 1 м от расположения подземных коммуникаций;

·        производить без разрешения (ордера на разрытие) от организаций, эксплуатирующих эти коммуникации;

·        перемещать грунт на подъем или под уклон более 30°;

·        поворачивать бульдозер с загруженным или заглубленным отвалом;

·        работать в глинистых грунтах в дождливую погоду;

·        находиться на раме рыхлителя в момент опускания зубьев в грунт и во время их подъема.

Во избежание обрушения грунта (сползания насыпи) и опрокидывания бульдозера при сталкивании грунта под откос насыпи или засыпке траншей отвал бульдозера не выдвигается за край откоса, а при устройстве насыпи расстояние от края гусеницы или колеса бульдозера до бровки насыпи должно быть не менее 1 м. При производстве работ по устройству земляного полотна бульдозером руководствуются следующей технической литературой:

1. СНиП III-4-80. Техника безопасности в строительстве.

2. СНиП 12-03-2001. Безопасность труда в строительстве. Часть 1. Общие требования.

3. ТОИ Р-218-05-93. Типовая инструкция по охране труда для машиниста автогрейдера (прицепного грейдера).

4. ТОИ Р-218-07-93. Типовая инструкция по охране труда для машиниста катка.

5. ТОИ Р-218-26-94. Типовая инструкция по охране труда для машиниста автополивомоечной машины.

6. ТОИ Р-218-06-93. Типовая инструкция по охране труда для машиниста бульдозера.

7. Спельман Е.П. Техника безопасности при эксплуатации строительных машин и средств малой механизации. - М.: Стройиздат, 1986. - 271 с.: ил.

Технологическая карта № 7

УСТРОЙСТВО ВЫЕМКИ ГЛУБИНОЙ 5 м С РАЗРАБОТКОЙ ГРУНТА ЭКСКАВАТОРАМИ ЭО-4225 И ТРАНСПОРТИРОВКОЙ АВТОМОБИЛЯМИ-САМОСВАЛАМИ

1. ОБЛАСТЬ ПРИМЕНЕНИЯ

Технологическая карта разработана на основе методов научной организации труда и предназначена для использования при разработке проектов производства работ и организации труда на строительном объекте.

Технологическая карта составлена на устройство земляного полотна в выемке глубиной 5 м при разработке грунта II группы экскаваторами типа ЭО-4225 с вместимостью ковша 1,25 м3 и перевозке грунта автомобилями-самосвалами. Для транспортировки грунта в данном технологическом процессе приняты автомобили-самосвалы КамАЗ-55111.

Во всех случаях применения технологической карты необходима привязка ее к конкретным условиям производства работ с учетом имеющихся материально-технических ресурсов.

2. ОРГАНИЗАЦИЯ И ТЕХНОЛОГИЯ ПРОИЗВОДСТВА РАБОТ

2.1. До начала разработки выемки необходимо выполнить следующие работы:

·        восстановить и закрепить трассу дороги и полосу отвода;

·        расчистить территорию в пределах полосы отвода от кустарников, пней и валунов;

·        произвести разбивку земляного полотна;

·        устроить временные землевозные дороги для транспортирования грунта;

·        устроить съезды в забой и выезды из него;

·        обеспечить отвод поверхностных и грунтовых вод от забоя;

·        устроить освещение забоя и отвалов при работе в темное время суток;

·        снять растительный слой грунта в пределах дорожной полосы.

2.2. Работы по устройству земляного полотна в выемке экскаваторами ЭО-4225 (вместимость ковша 1,25 м3) с доработкой продольного и поперечного профиля до проектных очертаний автогрейдером ДЗ-122 ведутся в разработанной технологической последовательности процессов производства работ (табл. 1).

2.3. Срезку растительного грунта выполняют бульдозером ДЗ-171 по поперечной схеме (рис. 2). Грунт срезают от оси дороги поперечными проходами бульдозером, перекрывая каждый предыдущий след на 0,25 - 0,3 м, и перемещают за пределы полосы отвода.

Бульдозер ДЗ-171 за один проход перемещает 3,0 м3 грунта. Длину очищаемого за один прием участка (м) следует определять по формуле

где V - объем грунта, который может переместить бульдозер за один проход, м3;

B  - ширина отвала бульдозера, м;

z   - перекрытие следа (0,25 - 0,3 м);

h   - толщина растительного слоя, м.

В дальнейшем срезанный растительный грунт используют для укрепления откосов земляного полотна.

2.4. Разработку выемки экскаваторами производят до отметки, ниже проектной на толщину дорожной одежды. Грунт в выемке разрабатывают с недобором для предотвращения нарушения структуры грунта в основании. Допускаемый недобор грунта при разработке выемки экскаватором ЭО-4225 - 0,1 - 0,2 м.

Объем сосредоточенных земляных работ для принятого поперечного профиля земляного полотна, изображенного на рис. 1, составляет 51970 м3. Толщина дорожной одежды принята 0,6 м.

Основные объемы работ рассчитаны для участка сосредоточенных работ длиной 300 м.


Таблица 1

Технологическая последовательность процессов с расчетом объемов работ и потребных ресурсов

№ процессов

№ захваток

Источник обоснования норм выработки (ЕНиРы и расчеты)

Описание рабочих процессов в порядке их технологической последовательности с расчетом объемов работ

Единица измерения

Количество работ на объекте

Производительность в смену

Потребность в машино-сменах

Затраты труда и заработная плата на захватку длиной 200 м

Норма времени, чел.-ч

Заработная плата, руб.-коп.

на единицу измерения

на полный объем работ

на единицу измерения

на полный объем работ

1

2

3

4

5

6

7

8

9

10

11

12

I. Основные земляные работы

1

 

Расчет

Снятие растительного слоя грунта толщиной 0,3 м бульдозером ДЗ-171 и перемещение его в обе стороны от оси дороги:

53,7·300·0,3 = 3933 м3

м3

4833

1206

4,0

0,007

33,8

0-14

676-60

2

 

Расчет

Планировка землевозных дорог автогрейдером ДЗ-122

м2

12000

18600

0,65

0,0004

5,2

0-01

120-00

3

 

Расчет

Разработка грунта II группы экскаватором ЭО-4225:

(41,52 + 26,07)/2·5,15·300 = 52210 м3

м3

52210

780

66,9

0,02

1104,2

0-42

21928-20

4

 

Расчет

Транспортирование грунта автомобилями-самосвалами КамАЗ-55111 на среднее расстояние 1 км при плотности грунта = 1,75 т/м3:

51970·1,75 = 90950 т

т

90950

215

423

0,04

3384,2

0-69

62755-50

5

 

Расчет

Планировка дна выемки автогрейдером ДЗ-122 за 4 прохода по одному следу:

2535·300 = 7605 м2

м2

7605

23500

0,32

0,0003

2,6

0-01

76-05

6

 

Расчет

Уплотнение верха земляного полотна катком на пневмошинах ДУ-101:

18,6·300 = 5580 м2

м2

5580

8695

0,64

0,0009

5,13

0-02

111-60

7

 

Расчет

Планировка откосов выемки экскаватором-планировщиком ЭО-3533:

9,28·2·300 = 5568 м2

м2

5568

1110

5,02

0,014

80,3

0-30

1670-40

8

 

Расчет

Нарезка и планировка кюветов автогрейдером ДЗ-122 с обваловкой срезанного грунта на обочинах:

(1,8·0,45/2 + 2,0·0,45 + 0,68·0,45·2)·300·2 = 876 м3

м3

876

365

2,4

0,04

38,4

0-90

788-40

 

 

 

ИТОГО:

 

 

 

 

 

4653,8

 

88126-75

Примечание. Работы по окончательной планировке откосов выполняют в общем технологическом потоке строительства вслед за устройством дорожной одежды.


Рис. 1. Конструкция земляного полотна в поперечном профиле

Рис. 2. Срезка растительного грунта

Разработку выемки экскаваторами «прямая лопата» производят по схеме (рис. 3).

Рис. 3. Схема разработки выемки

Сечение забоя устанавливают в соответствии с рабочими характеристиками выбранного типа экскаватора (рис. 4).

Рис. 4. Сечение выемки:

Rр - наибольший радиус резания; Rв - наибольший радиус выгрузки; Rст - радиус резания на уровне стояния гусениц; Rвв - радиус выгрузки при наибольшей высоте выгрузки; H - наибольшая высота выгрузки; A - расстояние от кромки разрабатываемой траншеи до оси прохода экскаватора; H1 - глубина пионерной траншеи;  - уширенные лобовые забои;  - проходки боковыми забоями

При принятой схеме разработки выемки экскаватором вначале устраивается сквозная поперечная траншея транспортные средства в этом случае размещаются выше уровня стоянки экскаватора. В дальнейшем разработка выемки ведется продольными проходами.

Глубина первой пионерной траншеи (см. рис. 3) определяется из условия обеспечения погрузки грунта в автомобиль-самосвал при использовании наибольшей высоты выгрузки

H1 = Hв - 0,5 - h1,

где Hв  - наибольшая высота выгрузки, м;

0,5  -расстояние по высоте между днищем ковша и верхом борта автомобиля, м;

h1    - погрузочная высота автомобиля-самосвала, м.

Расстояние от кромки разрабатываемой траншеи до оси прохода экскаватора определяется по условиям обеспечения погрузки грунта в автомобиль-самосвал при использовании наибольшего радиуса выгрузки

A = Rвв - 1 - b/2,

где Rвв  - наибольший радиус выгрузки при наибольшей высоте выгрузки, м;

1  - безопасный зазор между кромкой выемки и колесом автомобиля-самосвала, м;

b  - ширина базы автомобиля-самосвала, м.

Ось прохода экскаватора при разработке второй траншеи должна располагаться на расстоянии Rв от оси движения автомобиля-самосвала, который в нашем случае будет двигаться на уровне основания пионерной траншеи.

При разработке третьей траншеи положение оси прохода определяется размещением транспортных средств, которые будут двигаться на уровне стоянки экскаватора.

При разработке четвертой траншеи автомобили-самосвалы размещаются на уровне основания первого яруса и при разработке пятой траншеи - на уровне стоянки экскаватора.

Подобными расчетами можно определить количество проходов экскаватора и разработать схему его работы при любых исходных данных и размерах выемки.

Уклоны дна проходок должны предотвращать приток и скопление в забоях грунтовых и поверхностных вод.

Рабочий цикл экскаватора с прямой лопатой состоит из следующих операций (рис. 5):

·        копания грунта (движение стрелы, рукояти и ковша);

·        поворота на разгрузку (поворота платформы со всем рабочим оборудованием);

·        разгрузки (открывания днища ковша или поворота ковша относительно рукояти);

·        поворота в забой;

·        опускания стрелы и рукояти с ковшом на подошву забоя.

2.5. Планировку верха земляного полотна выполняют автогрейдером ДЗ-122 за 4 прохода по одному следу по челночной схеме. Угол захвата ножа автогрейдера должен быть 35 - 70°, а угол наклона - в зависимости от проектного поперечного профиля (рис. 6).

Рис. 5. Схема работы экскаватора «прямая лопата»:

1 - ковш; 2 - гидроцилиндр ковша; 3 - рукоять; 4 - гидроцилиндр рукояти; 5 - стрела; 6 - гидроцилиндр стрелы; 7 - дополнительная нижняя часть стрелы; 8 - кабина; 9 - силовая установка; 10 - противовес; 11 - ходовая часть; 12 - опорно-поворотный круг

Рис. 6. Доработка выемки до проектных очертаний

2.6. Основание выемки уплотняют катком ДУ-101 за 4 прохода по одному следу. При уплотнении каждый предыдущий след перекрывают последующим на 1/3 его ширины. Движение катка осуществляют по круговой схеме (см. рис. 6).

Земляное полотно должно иметь коэффициент уплотнения не ниже 0,98.

2.7. При планировке откосов выемки длиной до 10 м используют экскаватор-планировщик ЭО-3533 гидравлический.

Откосы выемки планируют за 3 прохода экскаватора по участку работ:

I - при первом проходе (верхняя стоянка экскаватора) планируют верхнюю часть откоса (рис. 7);

II - при втором - среднюю;

III - при третьем - нижнюю (рис. 8).

Рис. 7. Планировка верхней части откоса выемки при верхней стоянке экскаватора ЭО-3533

После планировки на одном месте экскаватор перемещают вдоль бровки откоса на 2 м и планируют очередной участок, перекрывая предыдущий на 30 - 50 см.

Излишки грунта, осыпавшиеся к подошве откоса в процессе планировки, разравнивают автогрейдером вдоль подошвы откоса.

2.8. Кюветы нарезают автогрейдером за 4 прохода по одному участку.

Рис. 8. Планировка откосов выемки с нижней стоянки экскаватора ЭО-3533

Срезанный грунт укладывают во временные отвалы, расположенные по краям земляного полотна; в дальнейшем он будет использован для устройства присыпных обочин.

Геометрические параметры кювета, нарезаемого автогрейдером ниже уровня разработки выемки, определены из условия равенства площади его поперечного сечения площади сечения присыпной обочины (рис. 9) с учетом коэффициента относительного уплотнения грунта.

После завершения строительства дорожной одежды и надвижки растительного грунта на внешние и внутренние откосы выемки и дно кюветов глубина канав составит 0,7 м (см. рис. 1).

Расчет объемов работ и потребных ресурсов приведен в табличной форме в соответствии с технологической последовательностью процессов (см. табл. 1).

Состав комплексной механизированной бригады определен из расчета оптимальной загрузки машин и механизмов (табл. 2).

Технология операционного контроля качества работ при разработке выемки приведена в табл. 3.

Рис. 9. Геометрические параметры:

а - присыпной обочины; б - кювета

Таблица 2

Состав комплексной механизированной бригады

Машины

Профессия и разряд рабочего

Количество машин и коэффициент загрузки

Количество рабочих

Примечание

1. Основные земляные работы

Экскаватор ЭО-4225

Машинист VI разряда, V разряда

3 (1,0)

6

 

Автомобили-самосвалы КамАЗ-55111

Водитель

18 (1,0)

18

 

Бульдозер ДЗ-171

Машинист VI разряда

1 (0,82)

1

 

Автогрейдер ДЗ-122

Машинист VI разряда

1 (0,84)

1

 

Каток на пневматических шинах ДУ-101

Машинист VI разряда

1 (0,64)

1

 

Экскаватор-планировщик гидравлический ЭО-3533

Машинист VI разряда, V разряда

1 (1,0)

2

 

 

ИТОГО:

 

29

64

Примечание. 1. Производительность механизированной бригады в смену составляет

qсм = (Vср/M)·n = (52210/66,9)·3= 2340 м3/смену,

где Vср    - объем сосредоточенных земляных работ на объекте, м3;

M   - общая потребность в машино-сменах ведущего механизма (экскаватора);

n     - количество ведущих механизмов в составе бригады.

Соответственно срок выполнения сосредоточенных земляных работ:

52210 м3 : 2340 м3/смену = 22,3 смен.

Таблица 3

Технология операционного контроля качества работ при возведении насыпи экскаваторами

Основные операции, подлежащие контролю

Состав контроля

Метод и средства контроля

Режим и объем контроля

Лицо, осуществляющее контроль

Предельные отклонения от норм контролируемых параметров

Где регистрируются результаты контроля

1

2

3

4

5

6

7

Снятие растительного слоя грунта

Толщина снимаемого слоя грунта

Инструментальный

Измерительная линейка, визирки

Промеры не реже, чем через 100 м

Мастер

±20 % от проектной толщины

Общий журнал работ

Разработка грунта экскаватором

1. Отсутствие негабаритных камней

2. Однородность грунта

Визуальный

Постоянно

Мастер, лаборант

-

Общий журнал работ

Отсыпка грунта в насыпь автомобилями-самосвалами

1. Порядок и способ отсыпки

Инструментальный

1. Рулетка измерительная

Постоянно

Мастер

-

Общий журнал работ

2. Регулирование движения автомобилей по отсыпаемому слою

2. Визирки

Разравнивание грунта в насыпи

 

Инструментальный

 

Мастер, геодезист

 

Общий журнал работ

Журнал технического нивелирования

1. Толщина слоя

1. Визирки

1. Промеры не реже, чем через 100 м

1. -

2. Высотные отметки продольного профиля

2. Нивелир, визирки

2. Промеры не реже, чем через 100 м

2. ±50 мм от проектных значений высотных отметок

3. Расстояние между осью и бровкой земляного полотна

3. Рулетка измерительная

3 Промеры не реже, чем через 100 м

3. ±10 см от проектных значений ширины

4. Крутизна откосов

4. Уклономер

4. Промеры через 50 м

4. Уменьшение крутизны до 10 % от проектного значения

5. Поперечные уклоны

 

5. Промеры через 50 м

 

5. ±0,010 от проектных значений поперечных уклонов

Уплотнение грунта в насыпи

 

Визуальный Лабораторный

 

Мастер, лаборант

 

Общий журнал работ

Журнал пробного уплотнения грунта

Журнал контроля плотности земляного полотна

1. Режим уплотнения

1. Метод режущего кольца

1. Постоянно

1. -

2. Влажность уплотняемого слоя

2. Метод режущего кольца

2. Не реже одного раза в смену

2. см. табл. 2

3. Фактическая плотность грунта

 

3. Не менее трех образцов (по оси земполотна и 1,5 - 2,0 м от бровки) не реже, чем через 50 м - для верхнего слоя, не реже, чем через 20 м - для нижних слоев

3. Снижение плотности грунта на 4 % от проектных значений до 10 % определений, остальные результаты не ниже проектных значений

Планировка верха земляного полотна и откосов

 

Инструментальный

 

Мастер, геодезист

 

Журнал технического нивелирования

Ведомость приемки земляного полотна

1. Высотные отметки продольного профиля

1. Нивелир, визирки

1. Промеры не реже, чем через 10 м

1. ±50 мм от проектных значений высотных отметок

2. Расстояние между осью и бровкой земляного полотна

2. Рулетка измерительная

2. Промеры через 50 м

2 ±10 мм от проектных значений

3. Поперечные уклоны

3. Уклономер

3. Промеры не реже, чем через 100 м

3. ±0,010 от проектных значений

4. Ровность поверхности

4. Нивелир, нивелирная рейка

4. Промеры не реже, чем через 50 м в грех точках на поперечнике (по оси к бровкам)

4. ±50 мм от проектных значений

5. Крутизна откосов

5. Уклономер

5 Промеры через 50 м

5. Уменьшение крутизны до 10 % от проектного значения

3. БЕЗОПАСНОСТЬ ТРУДА

Требования техники безопасности для одноковшовых экскаваторов являются общими и выполняются независимо от типа машин и вида сменного рабочего оборудования. Для работы экскаватор устанавливают на твердом, заранее спланированном основании (площадке) с уклоном, не превышающим допустимой величины, обусловленной техническим паспортом.

Для предупреждения опасности самопроизвольного смещения (откатывания) под гусеницы подкатывают инвентарные упоры.

Ожидающие погрузки транспортные средства должны находиться за пределами радиуса действия ковша экскаватора не ближе 5 м, становиться под погрузку и отъезжать после ее окончания только с разрешающего сигнала машиниста.

Погрузка в автотранспорт производится со стороны заднего или бокового борта.

При погрузке вязких грунтов в кузов автомобиля-самосвала вначале грузят сухой грунт. Для предотвращения поломок транспортных средств грунт высыпают с минимальной высоты, допускающей беспрепятственное открывание днища ковша, при этом грунт равномерно распределяют по кузову и следят, чтобы он не пересыпался через борта.

При производстве работ по устройству земляного полотна бульдозером руководствуются следующей технической литературой:

1. СНиП III-4-80. Техника безопасности в строительстве.

2. СНиП 12-03-2001. Безопасность труда в строительстве. Часть 1. Общие требования.

3. ТОИ Р-218-05-93. Типовая инструкция по охране труда для машиниста автогрейдера (прицепного грейдера).

4. ТОИ Р-218-07-93. Типовая инструкция по охране труда для машиниста катка.

5. ТОИ Р-218-26-94. Типовая инструкция по охране труда для машиниста автополивомоечной машины.

6. ТОИ Р-218-25-94. Типовая инструкция по охране труда для машинистов одноковшовых гусеничных и пневмоколесных экскаваторов.

7. Спельман Е.П. Техника безопасности при эксплуатации строительных машин и средств малой механизации. - М.: Стройиздат, 1986. - 271 с.: ил.

Технологическая карта № 8

ГЕОДЕЗИЧЕСКИЕ РАБОТЫ ПРИ УСТРОЙСТВЕ ЗЕМЛЯНОГО ПОЛОТНА

1. ОБЛАСТЬ ПРИМЕНЕНИЯ

Технологическая карта разработана для производства геодезических работ при устройстве земляного полотна в зависимости от форм рельефа.

2. ТЕХНОЛОГИЯ И ОРГАНИЗАЦИЯ ПРОИЗВОДСТВА РАБОТ

2.1. Восстановление и закрепление трассы дороги

Восстановление трассы производится с целью закрепления на местности всех основных точек, определяющих положение проектной линии дороги. При этом руководствуются документами рабочего проекта: планом и профилем трассы, ведомостью прямых и кривых, схемой закрепления трассы. В состав работ по восстановлению трассы входят:

·        инструментальное восстановление пикетажа с контрольным промером линий и углов и с детальной разбивкой кривых;

·        закрепление трассы с выносом знаков крепления за пределы зоны земляных работ;

·        контрольное нивелирование по пикетажу с дополнительным сгущением сети рабочих реперов;

·        возможная корректировка и местное улучшение трассы.

Восстановление трассы начинают с отыскания на местности вершин углов поворота. Отдельные вершины, на которых не сохранились знаки крепления, находят промерами от постоянных местных предметов согласно абрисам их привязки или прямой засечкой по проектным углам из двух соседних вершин трассы. Одновременно с восстановлением вершин измеряют углы поворота трассы и сравнивают полученные значения с проектными. При обнаружении значительных расхождений направление трассы на местности не изменяют, а исправляют значение проектного угла поворота и пересчитывают по исправленному углу все элементы кривых.

Затем приступают к контрольному измерению линий с разбивкой пикетажа. Пикеты и точки пересечения трассой водотоков и магистралей устанавливают в створе по инструменту. При обнаружении во время промера расхождения со старым (изыскательским) пикетажем более чем на 1 м вставляются так называемые «рубленные» пикеты с целью обеспечить соответствие точек на местности точкам на проектном продольном профиле.

На закруглениях трассы детально разбивают переходные и круговые кривые, причем промежуточные точки на кривых разбивают через каждые 20 м при радиусе кривой более 500 м, на кривых радиусом от 100 до 500 м - через каждые 10 м, а на кривых радиусом менее 100 м - через 5 м.

Закрепление оси трассы осуществляют прочно забитыми кольями и высокими вехами (длиной 3 - 4 м), а также колышками с выносом их за пределы зоны работы машин с указанием расстояния выноски. При этом на длинных прямых участках высокие вехи устанавливаются через каждые 0,5 - 1 км. На прямых участках такие же вехи ставят в точках, соответствующих тангенсам кривых. Вершины углов поворота трассы закрепляют прочно вкопанными угловыми столбами с надписью (диаметром не менее 10 см и высотой 0,5 - 0,7 м). Закрепляют начальные и конечные точки переходных кривых. Столбы располагают на продолжении биссектрисы угла в 0,5 м от его вершины. Надпись обращают к вершине, которую отмечают колышком. На кривых с малыми биссектрисами устанавливают на продолжении тангенсов (вне зоны работ машин) по две вехи через 20 м от вершины, при этом составляется ведомость закрепления трассы на участке (табл. 1).

Пикеты обозначаются прочно вбитыми (вкопанными) столбами (после двойного промера) с указанием номера пикета. На прямых участках пикетажные столбы и вехи располагают не менее чем через 100 м, на кривых - не менее чем через 20 м, при этом составляется журнал выноски (табл. 2).

Таблица 1

Ведомость закрепления трассы на участке

№ знака закрепления

Положение закрепленной точки

Привязка

Описание знака закрепления

Эскиз знака

Примечание

Расстояние от оси, м

Отметка выносных столбов, м

км

пикет

плюс

вправо

влево

правого

левого

1

2

3

4

5

6

7

8

9

10

11

1

251

636

00

21,85

21,30

-

-

Влево и вправо от оси трассы закопаны типовые деревянные столбы (ТДС)

 

Схема закрепления знака с указанием направлений засечек

2

251

УГ

636

00

22,18

15,86

22,50

10,00

140,26

140,28

Влево от вершины угла закопаны типовые деревянные столбы (ТДС)

 

Схема закрепления знака с указанием направлений засечек

Контрольное нивелирование трассы включает все пикетные точки и всю сеть постоянных и временных реперов. Для закрепления высотных отметок на трассе вне пределов производства земляных работ устанавливают дополнительные временные реперы. Временные нивелирные реперы должны располагаться не реже чем через 500 м. Временные нивелирные реперы определяются путем проложения разомкнутых нивелирных ходов между двумя постоянными реперами или замкнутого нивелирного хода, опирающегося на один постоянный репер. Точность определения временных нивелирных реперов техническим нивелированием не должна превышать ±50 мм , где L - длина нивелирного хода в км.

Отметки временных реперов увязываются двойным нивелированием с существующими реперами, и все они заносятся в ведомость реперов (табл. 3).

Таблица 2

Журнал выносок

Наименование выносных точек

Пикетажное значение

Расстояние от оси по перпендикуляру

Привязочный угол

Схема расположения выносок

влево

вправо

1

2

3

4

5

6

Пикет

118 + 60

30,07/40,38

-

 

 

Осевой столб

120 + 41,21

35,00/36,74

-

95°

 

Пикет

123 + 46,17

-

26,01/36,13

-

 

Примечание. В числителе указывается расстояние до выносной точки к ближайшей трассе, а в знаменателе - до дальней.

Таблица 3

Ведомость реперов

№ по порядку

Проектный километр

Пикет

Плюс

№ репера

Отметка репера условная или относительно уровня моря

Расстояние репера от оси линии по ходу километража, м

Вид репера

влево

вправо

1

2

3

4

5

6

7

8

9

 

 

 

 

 

 

 

 

 

Примечание. В столбце 8 под видом репера подразумеваются марка, пень, вкопанный столб, цоколь и прочее.

Возможны корректировка и улучшение расположения трассы на местности для уменьшения объема земляных работ и увеличения устойчивости отдельных сооружений. Так, могут быть спрямлены некоторые участки, найден более удачный переход или обход мест, не устойчивых в геологическом отношении, более удачно размещены искусственные сооружения, несколько изменены радиусы кривых и уклоны продольного профиля. Все изменения, внесенные в проект при восстановлении трассы, передаются в проектную организацию для утверждения.

2.2. Разбивочные работы

Разбивку выполняют на основании данных проекта (продольный профиль, поперечные профили насыпей, план трассы), уточненных в процессе восстановления трассы по рабочим чертежам.

Разбивка состоит в обозначении на местности в плане и по высоте всех характерных точек поперечного профиля полотна: оси, бровок, кюветов, подошвы насыпей.

При разбивке выполняются следующие работы:

·        инструментальная разбивка поперечника на местности;

·        закрепление пикетов и плюсов выносными точками.

Знаки для разбивочных работ приведены на рис. 1.

Детальную разбивку земляного полотна выполняют в следующей последовательности:

·        вдоль восстановленной трассы выделяют основные проектные участки между смежными переломами плана и продольного профиля трассы;

·        в характерных переломах профиля земной поверхности восстанавливают поперечники или нормали к кривым и устанавливают границы земляного полотна с выделением его бровок;

·        производят зачистку или пропашку границ откосов и выемок, расстановку и закрепление разбивочных знаков (вех, вех-визирок, откосников и др.) для производства основных земляных работ;

·        разбивочные знаки устанавливают раздельно для каждого проектного участка за пределами работ;

·        одновременно устанавливают места размещения приборов для геодезического управления работой строительных машин.

Рис. 1. Геодезические знаки, используемые в ходе разбивочных работ:

1 - высотник насыпи; 2 - высотник срезки; 3 - осевой геодезический знак; 4 - обозначение водоотвода земляного полотна (дно кювета); 5 - обозначение ширины насыпи; 6 - обозначение ширины подстилающего слоя; 7 - обозначение ширины щебеночного основания; 8 - обозначение подошвы земляного полотна и уклона насыпи; К - красный; Ж - желтый; Б - белый; С - синий; Ч - черный цвета

Поперечники разбивают на прямолинейных участках трассы через 20 - 40 м и на всех переломах продольного профиля. Для этого в створе оси разбивают между пикетами плюсовые точки, которые служат осевыми точками поперечников. Сами же поперечники разбивают вправо и влево от этих точек, перпендикулярно к оси трассы.

На закруглениях трассы поперечники разбивают через 10 - 20 м по направлению к центру кривой.

Одновременно с разбивкой поперечников выносят в натуру красные (проектные) отметки. Проектная отметка дороги соответствует бровке земляного полотна в законченном виде.

В зависимости от рельефа местности земляное полотно может быть устроено возведением насыпи или разработкой выемки.

2.2.1. Возведение земляного полотна высотой до 1,5 м из боковых резервов

При разбивке поперечных профилей в насыпи (рис. 2) на местности закрепляют положение осевой точки О', проекции бровок А', А'1 и подошвы насыпи Б, Б1. Если поперечный уклон местности не больше 3 - 4°, то можно принять

О'А'1 = О'А' = B/2

и

А'Б = А'1Б1 = hm,

где B  - проектная ширина земляного полотна;

h  - высота насыпи;

1:m   - крутизна (уклон) откоса.

Рис. 2

Расстояние от оси до подошвы насыпи будет

l = B/2 + hm.

Откладывают от оси в обе стороны расстояние B/2 для обозначения бровки и расстояние l для фиксации подошвы откосов.

От подошвы откладывают ширину бермы B' и резерва СДЕF.

Все точки закрепляют соответствующими геодезическими знаками (см. рис. 1).

Высотники под № 1 выставляют с помощью нивелира через 50 м на прямых участках с двух сторон дороги на границе полосы отвода. На горизонтальных и вертикальных круговых кривых выставляются через 25 м.

Осевые геодезические знаки под № 3 выставляют с помощью теодолита на оси дороги через 100 м на прямых участках и через 50 м на горизонтальных круговых кривых.

Геодезические знаки № 5 выставляются с помощью теодолита через 50 м на прямых участках дороги и через 20 м на горизонтальных и вертикальных круговых кривых.

Геодезический знак № 8 выставляется с помощью шаблона, имеющего заданный (проектный) уклон.

Геодезические знаки расставляются по следующей схеме, приведенной на рис. 3.

Рис. 3. Схема организации разбивочных работ при возведении насыпи:

1 - высотник насыпи; 3 - осевой геодезический знак; 5 - обозначение ширины насыпи; 8 - обозначение подошвы земляного полотна и уклона насыпи

2.2.2. Возведение земляного полотна на косогоре крутизной от 1:10 до 1:5

При разбивке поперечных профилей в насыпи (рис. 4) на местности закрепляют положение осевой точки О', проекции бровок А', А'1 и подошвы насыпи Б, Б1. Положение точек Б и Б1 может быть найдено, если отложить по наклонной местности отрезки О'Б и О'Б1. Эти отрезки находят по формулам.

О'Б1 = l1 =

и

О'Б = l2 =

где B  - проектная ширина земляного полотна;

h  - высота насыпи по оси;

1: m  - крутизна (уклон) откоса;

1:n  - уклон местности.

Рис. 4

Положение точек А, А1 находится путем откладывания по наклонной местности отрезков О'А'1 и О'А'. Эти отрезки вычисляются по формуле

О'А'1 = О'А' = B/2cosv,

где v - угол наклона местности.

Все точки закрепляют соответствующими геодезическими знаками (см. рис. 1).

Высотники под № 1 выставляют с помощью нивелира через 50 м на прямых участках с двух сторон дороги на границе полосы отвода. На горизонтальных и вертикальных круговых кривых высотники выставляются через 25 м.

Осевые геодезические знаки под № 3 выставляют с помощью теодолита на оси дороги через 100 м на прямых участках и через 50 м на горизонтальных круговых кривых.

Геодезические знаки № 5 выставляются с помощью теодолита через 50 м на прямых участках дороги и через 20 м на горизонтальных и вертикальных круговых кривых.

Геодезический знак № 8 выставляется с помощью шаблона, имеющего заданный (проектный) уклон.

Геодезические знаки расставляются по схеме, приведенной на рис. 3.

2.2.3. Возведение земляного полотна на косогоре крутизной от 1:5 до 1:3

При разбивке поперечных профилей в насыпи (рис. 5) на местности закрепляют положение осевой точки О, проекции бровок А', А'1 и подошвы насыпи Б, Б1. Положение точек Б и Б1 может быть найдено, если отложить по наклонной местности отрезки О'Б и О'Б1. Эти отрезки находят по формулам:

О'Б1 = l1 =

и

О'Б = l2 =

где B  - проектная ширина земляного полотна;

h  - высота насыпи по оси;

1: m  - крутизна (уклон) откоса;

1:n  - уклон местности.

Положение точек А, А1 находится путем откладывания по наклонной местности отрезков О'А'1 и О'А'. Эти отрезки вычисляются по формуле

О'А'1 = О'А' = B/2cosv,

где v - угол наклона местности.

Рис. 5

Все точки закрепляют соответствующими геодезическими знаками (см. рис. 1).

Высотники под № 1 выставляют с помощью нивелира через 50 м на прямых участках с двух сторон дороги на границе полосы отвода. На горизонтальных и вертикальных круговых кривых высотники выставляются через 25 м.

Осевые геодезические знаки под № 3 выставляют с помощью теодолита на оси дороги через 100 м на прямых участках и через 50 м на горизонтальных круговых кривых.

Геодезические знаки № 5 выставляются с помощью теодолита через 50 м на прямых участках дороги и через 20 м на горизонтальных и вертикальных круговых кривых.

Геодезический знак № 8 выставляется с помощью шаблона, имеющего заданный (проектный) уклон.

Геодезические знаки расставляются по следующей схеме, приведенной на рис. 3.

2.2.4. Разработка выемки глубиной до 5 м

При разбивке поперечных профилей в выемке (рис. 6) на местности закрепляют положение осевой точки О', точки А', А1' и бровки Б, Б1, т.е. профиль задается в виде трапеции БАА1Б1. Если поперечный уклон местности не больше 3 - 4°, то можно принять

О'А'1 = О'А' = B/2 + D,

где В - проектная ширина земляного полотна;

D     - ширина кювета поверху.

Величина D определяется по формуле

D = D1 + D2 + C = n·(hк - ho) + m·(hк - ho) + C,

где ho     - глубина выемки;

hк  - глубина кювета;

m   - коэффициент заложения откоса выемки;

n    - коэффициент заложения откоса кювета;

C   - ширина дна кювета.

Найденную величину О'А' откладывают в обе стороны от оси и полученные точки А', А'1 закрепляют кольями, на которых подписывают номер пикета, расстояние от оси и глубину выемки. Отмерив от этих точек величину заложения откоса mho, находят и закрепляют бровки выемки Б, Б1.

Рис. 6

Рис. 7. Схема организации разбивочных работ при разработке выемки:

2 - высотник срезки; 3 - осевой геодезический знак; 4 - обозначение водоотвода земляного полотна (дно кювета)

В процессе устройства выемки с помощью лекал проверяют правильность заложения откосов и глубину выемки. Когда выемку вырабатывают до отметки, не доходящей на 0,2 - 0,3 м до проектной поверхности, разбивают основные точки поперечного профиля земляного полотна и кюветов.

Все точки закрепляют соответствующими геодезическими знаками (см. рис. 1).

Высотники под № 2 выставляют с помощью нивелира через 50 м на прямых участках с двух сторон дороги на границе полосы отвода. На горизонтальных и вертикальных круговых кривых высотники выставляются через 25 м.

Осевые геодезические знаки под № 3 выставляют с помощью теодолита на оси дороги через 100 м на прямых участках и через 50 м на горизонтальных круговых кривых.

Осевые геодезические знаки под № 3 выставляют с помощью теодолита на оси дороги через 100 м на прямых участках и через 50 м на горизонтальных круговых кривых.

Геодезический знак № 4, обозначающий водоотвод земляного полотна (дно кювета), выставляется через 50 м на прямых участках дороги и через 20 м на горизонтальных и вертикальных круговых кривых. Надпись на знаке (например, 1,45 м) обозначает глубину срезки от основания геодезического знака до дна кювета. Схема организации разбивочных работ на захватке приведена на рис. 7.

2.2.5. Разработка выемки глубиной до 12 м

При разбивке поперечных профилей в выемке (рис. 8) на местности закрепляют положение осевой точки О', точек А', А'1 и бровки выемки Б, Б1, т.е. профиль задается в виде трапеции БАА1Б1. Наклонные расстояния от оси до бровок выемки подсчитывают по формулам:

в сторону понижения ската

БО' = l1 = (B/2 + D + mho)n/(n + m),

в сторону повышения ската

Б1О' = l2 = (B/2 + D + mho)n/(n - m),

где B - проектная ширина земляного полотна;

D  - ширина кювета поверху.

Величина D определяется по формуле

D = D1 + D2 + C = m1(hк - ho) + m(hк - ho) + C,

где hк   - глубина кювета;

ho    - глубина выемки по оси;

m    - коэффициент заложения откоса выемки;

m1   - коэффициент заложения откоса кювета;

1:n   - уклон местности;

C    - ширина дна кювета.

Рис. 8

Найденную величину О'А' откладывают в обе стороны от оси и полученные точки А', А'1 закрепляют кольями, на которых подписывают номер пикета, расстояние от оси и глубину выемки.

Положение точек А, А1 находится путем откладывания по наклонной местности отрезков О'А'1 и О'А'. Эти отрезки вычисляются по формуле

О'А'1 = О'А' = (B + 2D)/2cosv,

где v - угол наклона местности.

В процессе устройства выемки при помощи лекал проверяют правильность заложения откосов и глубину выемки. Когда выемку вырабатывают до отметки, не доходящей на 0,2 - 0,3 м до проектной поверхности, разбивают основные точки поперечного профиля земляного полотна и кюветов. Все точки закрепляют соответствующими геодезическими знаками (см. рис. 1).

Высотники под № 2 выставляют с помощью нивелира через 50 м на прямых участках с двух сторон дороги на границе полосы отвода. На горизонтальных и вертикальных круговых кривых высотники выставляются через 25 м.

Осевые геодезические знаки под № 3 выставляют с помощью теодолита на оси дороги через 100 м на прямых участках и через 50 м на горизонтальных круговых кривых.

Геодезический знак № 4, обозначающий водоотвод земляного полотна (дно кювета), выставляется через 50 м на прямых участках дороги и через 20 м на горизонтальных и вертикальных круговых кривых. Надпись на знаке (например, 1,45 м) обозначает глубину срезки от основания геодезического знака до дна кювета. Схема организации разбивочных работ на захватке приведена на рис. 7.

2.2.6. Возведение земляного полотна типа полувыемка-полунасыпь

При разбивке поперечных профилей (рис. 9) на местности закрепляют положение осевой точки О', проекции бровок А', А'1 и подошвы Б, Б1. Положение точек Б и Б1 может быть найдено, если отложить по наклонной местности отрезки О'Б и О'Б1. Эти отрезки находят по формулам:

О'Б1 = l1 =

О'Б = l2 =

где B  - проектная ширина земляного полотна;

ho  - глубина выемки в точке А1;

hн  - высота насыпи;

hk  - глубина кювета;

1:m1   - крутизна (уклон) откоса насыпи;

1:m2   - крутизна (уклон) откоса выемки;

1:n  - уклон местности.

D   - ширина кювета поверху;

C   - дно кювета.

Величина D определяется по формуле

D = D1 + D2 + С = m3hн + m2hk + С.

Рис. 9

Положение точек А, А1 находится путем откладывания по наклонной местности отрезков ОА'1 и ОА'. Эти отрезки вычисляются по формулам:

О'А'1 = (B + 2D)/2cosv,

ОА' = B+/2cosv,

где v - угол наклона местности.

Все точки закрепляют соответствующими геодезическими знаками (см. рис. 1).

Высотники под № 1 и № 2 выставляют с помощью нивелира через 50 м на прямых участках с двух сторон дороги на границе полосы отвода. На горизонтальных и вертикальных круговых кривых высотники выставляются через 25 м.

Осевые геодезические знаки под № 3 выставляют с помощью теодолита на оси дороги через 100 м на прямых участках и через 50 м - на горизонтальных круговых кривых.

Геодезические знаки № 5 выставляются с помощью теодолита через 50 м на прямых участках дороги и через 20 м - на горизонтальных и вертикальных круговых кривых.

Геодезический знак № 8 выставляется с помощью шаблона, имеющего заданный (проектный) уклон.

Геодезический знак № 4, обозначающий водоотвод земляного полотна (дно кювета), выставляется через 50 м на прямых участках дороги и через 20 м на горизонтальных и вертикальных круговых кривых. Надпись на знаке (например, 1,45 м) обозначает глубину срезки от основания геодезического знака до дна кювета. Схема организации разбивочных работ на захватке приведена на рис. 10.

Рис. 10. Схема организации разбивочных работ при разработке полунасыпи-полувыемки:

1 - высотник насыпи; 2 - высотник срезки; 3 - осевой геодезический знак; 4 - обозначение водоотвода земляного полотна (дно кювета); 5 - обозначение ширины насыпи; 8 - обозначение подошвы земляного полотна и уклона насыпи

По земляному полотну проводят исполнительную съемку. Инструментально восстанавливают продольную ось, и на каждом пикете проверяют ширину корыта, обочин, а также крутизну откосов. Производят контрольное нивелирование, и проверяют на всех пикетах и переломах продольного профиля отметки по оси и обеим бровкам. По окончании разбивочных работ для строительства оформляется акт о производстве геодезических разбивочных работ, что является разрешением для проведения строительно-монтажных работ.

Во время производства земляных работ должны быть приняты меры по обеспечению сохранности знаков разбивки. Все поврежденные в процессе работ знаки должны немедленно восстанавливаться.

3. ОТКЛОНЕНИЯ (±) ГЕОМЕТРИЧЕСКИХ ПАРАМЕТРОВ ПРИ УСТРОЙСТВЕ ЗЕМЛЯНОГО ПОЛОТНА

Таблица 4

Параметры

Допуски

Высотные отметки продольного профиля

50 мм

Расстояние между осью и бровкой земляного полотна

10 см

Поперечные уклоны

0,010

Крутизна откосов

10 %

Поперечные размеры резервов

5 см

Глубина резервов

5 см

Поперечные размеры кюветов, нагорных и других канав (по дну)

5 см

Глубина кюветов при условии обеспечения стока

5 см

4. ПОТРЕБНОСТЬ В ЛЮДСКИХ РЕСУРСАХ

Таблица 5

Наименование специальности

Количество

Инженер-геодезист

1

Техник-геодезист

1

Рабочий-мерщик IV разряда

2

Рабочий-мерщик III разряда

2

5. ПОТРЕБНОСТЬ В МАТЕРИАЛЬНЫХ РЕСУРСАХ

Таблица 6

Название приборов и инструментов

Количество

Теодолит 2Т30 (комплект)

1

Нивелир Н3-2КЛ (комплект)

1

Рулетка 50 м

1

Рулетка 10 м

2

Нивелирные рейки (комплект)

2

РАЗДЕЛ 2. УСТРОЙСТВО ОСНОВАНИЙ И ПОКРЫТИЙ ДОРОЖНЫХ ОДЕЖД

Технологическая карта № 9

УСТРОЙСТВО ДВУХСЛОЙНОГО ЩЕБЕНОЧНОГО ОСНОВАНИЯ АВТОМОБИЛЬНЫХ ДОРОГ ПО МЕТОДУ ЗАКЛИНКИ

1. ОБЛАСТЬ ПРИМЕНЕНИЯ

1.1. Технологическая карта разработана на устройство двухслойного щебеночного основания методом заклинки толщиной 30 см и шириной 9 м с применением распределителя дорожно-строительных материалов ДС-54, оборудованного рабочим органом щебнеукладчика. При отсутствии распределителя распределение щебня можно производить автогрейдером, оборудованным автоматической системой задания вертикальных отметок.

Для устройства нижнего слоя основания толщиной 17 см применяют щебень фракции 70 - 120 мм, для верхнего слоя толщиной 13 см - щебень фракции 40 - 70 мм, для расклинивания - щебеночную смесь фракции 5 - 20 мм.

Щебень должен удовлетворять требованиям действующей нормативной документации.

1.2. Конструкция основания принята в соответствии с альбомом «Типовые строительные конструкции, изделия и узлы серии 3.503-71/88 «Дорожные одежды для автомобильных дорог общего пользования». Выпуск 0, «Материалы для проектирования».

1.3. При устройстве двухслойного основания в состав работ входят:

·        распределение щебня для нижнего слоя основания;

·        уплотнение нижнего слоя основания;

·        распределение щебня для верхнего слоя основания;

·        уплотнение верхнего слоя основания;

·        распределение мелкого щебня (клинца) для расклинивания верхнего слоя основания;

·        уплотнение верхнего слоя основания по расклинивающей фракции.

1.4. Работы по устройству щебеночного основания выполняют при положительных температурах. Уплотнение щебня не рекомендуется производить в случае продолжительных осадков или переувлажнения слоя щебня и верхней части земляного полотна.

1.5. Во всех случаях применения технологической карты необходима привязка ее к местным условиям работы с учетом наличия дорожно-строительных машин и механизмов, уточнения объемов работ и калькуляции затрат труда.

2. ОРГАНИЗАЦИЯ И ТЕХНОЛОГИЯ ПРОИЗВОДСТВА РАБОТ

2.1. Перед устройством двухслойного щебеночного основания методом заклинки необходимо:

·        обеспечить готовность земляного полотна в соответствии с требованиями действующих строительных норм и правил, а также руководства по сооружению земляного полотна автомобильных дорог;

·        подготовить временные подъездные пути для подачи материалов к месту производства работ;

·        выполнить разбивочные работы, обеспечивающие соблюдение проектной толщины, ширины основания и поперечных уклонов;

·        обеспечить водоотвод;

·        устроить обочины для создания боковых упоров при уплотнении каменного материала.

2.2. Щебень доставляют на объект автомобилями-самосвалами в объеме, необходимом для устройства конструктивного слоя заданной толщины с учетом коэффициента запаса на уплотнение (в карте принято значение 1,3).

Работы по устройству двухслойного щебеночного основания (рис. 1) по методу заклинки ведутся на пяти захватках длиной 150 м каждая (рис. 2).

2.3. В разработанной технологической последовательности производства работ (табл. 1) на первой захватке выполняются следующие операции:

·        доставка щебня фракции 70 - 120 мм для устройства нижнего слоя основания автосамосвалами КамАЗ-55118;

·        распределение щебня нижнего слоя основания самоходным распределителем ДС-54.

При общей толщине двухслойного щебеночного основания 30 см нижний слой целесообразно устраивать толщиной 17 см для возможности использования щебня фракции 70 - 120 мм.

Рис. 1. Схема поперечного профиля двухслойного щебеночного основания


Рис. 2. Технологический план потока по устройству двухслойного щебеночного основания автомобильных дорог по методу заклинки


Щебень к месту укладки доставляют автосамосвалами КамАЗ-55118 и распределяют самоходным распределителем ДС-54.

Распределитель, оборудованный навесным рабочим органом, обеспечивает необходимую ровность укладываемого слоя и предварительное уплотнение щебня виброплитой. Перед началом работ распределитель устанавливают так, чтобы заслонки бункера находились над местом начала укладки щебня. Отвал распределителя устанавливают с учетом толщины укладываемого слоя и коэффициента запаса на уплотнение 1,3.

При неподвижном положении распределителя автосамосвал заезжает на специальные трапы и выгружает щебень в приемный бункер. После разгрузки и съезда с трапов автосамосвала начинают распределение материала полосами шириной 3 м.

По мере движения распределителя щебень поступает к отвалу, который распределяет его равномерно по всей ширине укладываемой полосы с обеспечением заданной толщины слоя. Начальное уплотнение щебня обеспечивается виброплитами. Для ограничения распределения материала и создания кромки покрытия служат ограждающие щиты и грунт присыпных обочин.

После распределения щебня, при необходимости, исправляют края уложенного слоя, тщательно выравнивают граблями сопряжение распределенных полос. Проверяют поперечный профиль основания и ровность его поверхности.

Как исключение (при отсутствии распределителя), распределение щебня можно производить автогрейдером, оборудованным автоматической системой задания вертикальных отметок. При этом сначала щебень разравнивают, а затем основание профилируют до заданных проектных значений.

2.4. На второй захватке выполняются работы по уплотнению нижнего слоя основания.

Подкатку основания осуществляют легкими гладковальцовыми катками ДУ-96 массой 7 т за 6 проходов по одному следу, начиная от обочины к оси дороги с перекрытием следа на 1/3 ширины вальца.

Укатку щебня производят тяжелыми комбинированными виброкатками ДУ-58А за 15 проходов катка по одному следу (точное количество проходов по одному следу определяют пробной укаткой).

Начинают укатку также от краев основания, смещаясь к оси дороги, перекрывая предыдущий след на 1/3 его ширины. После двух - трех проходов катка устраняют места просадок и образовавшихся дефектов.

В начале укатки, когда создается необходимая жесткость щебеночного слоя за счет взаимозаклинивания щебня, скорость движения катка должна быть 1,5 - 2 км/ч, в конце уплотнения она может быть повышена до максимальной скорости (6,5 км/ч), при которой повышается производительность и не происходит перегрузка мотора.

В сухую жаркую погоду после двух - трех проходов тяжелого катка, для обеспечения лучшей уплотняемости щебня, основание поливают водой с помощью поливомоечной машины МД-433-03 из расчета 15 - 25 л воды на 1 м2 поверхности. Необходимо избежать переувлажнения щебня и грунта земляного полотна. В случае переувлажнения или продолжительных дождей укатку следует приостанавливать.

Признаком законченного уплотнения является отсутствие подвижности щебня, при которой должна образоваться волна перед катком массой 10 - 13 т и след после прохода этого катка, при этом щебенка, брошенная на поверхность слоя, раздавливается (при недостаточном уплотнении она вдавливается катком в слой).

2.5. На третьей захватке выполняются следующие технологические операции:

·        доставка щебня фракции 40 - 70 мм для устройства верхнего слоя основания автосамосвалами КамАЗ-55118;

·        распределение щебня верхнего слоя основания самоходным распределителем.

Для устройства верхнего слоя основания толщиной 13 см применяют щебень фракции 40 - 70 мм. Технология его укладки аналогична изложенной в п. 2.3.

2.6. На четвертой захватке выполняются работы по уплотнению верхнего слоя основания.

Технология уплотнения верхнего слоя основания аналогична п. 2.4. настоящей технологической карты.

2.7. На пятой захватке выполняются следующие технологические операции:

·        доставка щебня фракции 5 - 20 мм для расклинцовки верхнего слоя основания;

·        распределение щебня по всей ширине основания автогрейдером ДЗ-122;

·        разметание расклинивающей фракции щеткой, смонтированной на поливомоечной машине МД-433-03;

·        уплотнение расклинивающей фракции щебня комбинированным вибрационным катком ДУ-58А.

На последнем этапе устройства основания производят его расклинцовку мелким щебнем фракции 5 - 20 мм. Щебень к месту укладки доставляют автосамосвалами КамАЗ-55118 и распределяют автогрейдером ДЗ-122 круговыми проходами по всей ширине основания, начиная от краев россыпи. Распределение щебеночной смеси фракции 5 - 20 мм производится из расчета 2,5 м3 на 100 м2.

После распределения щебеночную смесь разметают автомобильной щеткой, находящейся на поливомоечной машине для заполнения пустот верхнего слоя.

Расклиниваемый слой уплотняют тяжелым комбинированным вибрационным катком ДУ-58А за пять проходов по одному следу, предварительно произведя увлажнение слоя водой из расчета 10 - 12 л/м2.

Признаками окончания уплотнения служат отсутствие подвижности, прекращение образования волны перед катком массой 10 - 13 т и отсутствие следа, а щебенка, брошенная под валец катка, должна раздавливаться.

2.8. Качество основания из щебня должно соответствовать требованиям СНиП 3.06.03-85 «Автомобильные дороги».

Производство работ по устройству щебеночного основания по способу заклинки следует вести в соответствии с картой операционного контроля качества (табл. 3).


Таблица 1

Технологическая последовательность процессов с расчетом объемов работ и потребных ресурсов

№ процессов

№ захваток

Источник обоснования норм выработки (ЕНиРы и расчеты)

Описание рабочих процессов в порядке их технологической последовательности с расчетом объемов работ

Единица измерения

Количество работ

Производительность в смену

Потребность в машино-сменах

Затраты труда и заработная плата на захватку длиной 200 м

Норма времени, чел.-ч

Заработная плата, руб.-коп.

на захватку l = 150 м

на 1 км

на захватку l = 150 м

на 1 км

на единицу измерения

на полный объем работ

на единицу измерения

на полный объем работ

1

2

3

4

5

6

7

8

9

10

11

12

13

14

1

I

Расчет

Транспортировка щебня фр. 70 - 120 мм автомобилем-самосвалом КамАЗ-55118 на расстояние 10 км:

(9,26 + 9,6)/2·0,17·1,3·150·1,03 = 322

м3

322

2147

60,8

5,3

35,31

0,132

42-50

2-45

788-90

2

i

Расчет

Укладка щебня фр. 70 - 120 мм самоходным распределителем нижнего слоя основания толщиной 17 см:

(9,26 + 9,6)/2·0,17·1,3·150 = 322

м3

322

2147

608

0,53

3,53

0,0132

4,25

0-28,3

91-13

3

II

Расчет

Увлажнение нижнего слоя щебеночного основания из расчета 15 л на 1 м2 поливомоечной машиной МД-433-03 при дальности возки 3 км:

0,015·9,26·150 = 21

(322·1,6·0,03 = 15,0)

м3

15

100

68,0

0,22

1,47

0,079

1,19

1-47

22-05

4

II

Расчет

Подкатка нижнего слоя щебеночного основания самоходным гладковальцовым катком ДУ-96 за 6 проходов по одному следу:

9,26·150 = 1390

м2

1390

9267

2800

0,49

3,31

0,00286

3,97

0-05,6

77-84

5

II

Расчет

Уплотнение нижнего слоя основания комбинированным вибрационным катком ДУ-58А за 15 проходов по одному следу:

9,26·150 = 1395

м2

1390

9267

1780

0,78

5,21

0,0045

6,26

0-09,7

134-83

6

III

Расчет

Транспортировка щебня фр. 40 - 70 мм самосвалом КамАЗ-55118 на расстояние 10 км:

(9 + 9,26)/2·0,13·1,3·150·1,03 = 238

м3

238

1587

60,8

3,91

26,10

0,132

31,42

2-45

583-10

7

III

Расчет

Укладка щебня фр. 40 - 70 мм самоходным распределителем верхнего слоя основания толщиной 13 см:

(9 + 9,26)/2·0,13·1,3·150·1,03 = 238

м3

238

1587

608

0,39

2,61

0,0132

3,14

0-28,3

67-35

8

IV

Расчет

Увлажнение верхнего слоя щебеночного основания из расчета 15 л на 1 м2 поливомоечной машиной МД-433-03 при дальности возки 3 км:

0,015·9,0·150 = 20

(238·1,6·0,03 = 11)

м3

11

73

68,0

0,16

1,07

0,079

0,87

1-47

16-17

9

IV

Расчет

Подкатка верхнего слоя щебеночного основания самоходным гладковальцовым катком ДУ-96 за 6 проходов по одному следу:

9·150 = 1350

м2

1350

9000

2800

0,48

3,21

0,00286

3,86

0-05,6

75-60

10

IV

Расчет

Уплотнение верхнего слоя основания комбинированным вибрационным катком ДУ-58А за 15 проходов по одному следу:

9·150 = 1350

м2

1350

9000

1780

0,76

5,05

0,0045

6,08

0-09,7

130-95

11

IV

Расчет

Транспортировка клинца фр. 5 - 20 мм самосвалом КамАЗ-55118 на расстояние 10 км:

25·1350/1000 = 34

м3

34

227

60,8

0,56

3,73

0,132

4,49

2-45

83-30

12

V

Расчет

Россыпь клинца (щебень фр. 5 - 20 мм) толщиной 2,5 см автогрейдером ДЗ-122 за 4 прохода по одному следу:

9·150 = 1350

м2

1350

9000

8330

0,16

1,08

0,001

1,35

0-02,1

28-35

13

V

Расчет

Разметание клинца автомобильной щеткой поливомоечной машины МД-433-03 (площадь - 1350 м2)

м2

1350

9000

15000

0,09

0,6

0,00053

0,72

0-01

13-50

14

V

Расчет

Увлажнение клинца поливомоечной машиной МД-433-03 при дальности возки 3 км:

0,010·1350 = 13,5 ≈ 14

(150·9·0,025·1,6·0,03 = 1,6)

м3

2,0

13,3

68,0

0,03

0,2

0,079

0,16

1-47

2-94

15

V

Расчет

Укатка клинца комбинированным вибрационным катком ДУ-58А за 5 проходов по одному следу

м2

1350

9000

3300

0,41

2,73

0,0024

3,24

0-05,2

70-20

 

 

 

ИТОГО:

 

 

 

 

14,27

95,21

 

113,5

 

2186-21


Таблица 2

Состав отряда

Машины

Профессия и разряд рабочего

Потребность в машино-сменах

Потребность в машинах

Коэффициент загрузки

Количество рабочих

на захватку

на 1000 м

Самосвал КамАЗ-55118

Машинист IV разряда

9,77

65,14

10

0,98

10

Самоходный щебнераспределитель

Машинист VI разряда

0,92

6,14

1

0,92

1

Поливомоечная машина МД-433-03

Машинист IV разряда

0,5

3,34

1

0,83

1

Самоходный гладковальцовый каток ДУ-96

Водитель V разряда

0,97

6,52

1

0,97

1

Комбинированный вибрационный каток ДУ-58А

Машинист VI разряда

1,95

12,99

2

0,98

2

Автогрейдер ДЗ-122

Машинист VI разряда

0,16

1,08

1

0,16

1

 

ИТОГО:

14,27

95,21

16

 

16

Таблица 3

Технология операционного контроля качества работ при устройстве двухслойного щебеночного основания по методу заклинки

Основные операции, подлежащие контролю

Состав контроля

Метод и средства контроля

Режим и объем контроля

Лицо, осуществляющее контроль

Предельные отклонения от норм контролируемых параметров

Где регистрируются результаты контроля

1

2

3

4

5

6

7

Качество щебня

Влажность щебня

Лабораторный

В соответствии с ГОСТ 8269.0-97

Не реже одного раза в смену

Лаборант

Отклонение не более 10 % от оптимальной влажности

Журнал лабораторных работ

Распределение щебня

Ширина слоя, толщина слоя

Инструментальный

Измерительные линейка, рулетка, визирки

Не реже, чем через каждые 100 м

Мастер

Отклонения

по ширине ±10 см,

по толщине ±15 мм

Общий журнал работ

Уплотнение щебеночного основания

Плотность щебеночного основания

Визуальный

Контрольный проход катка массой 10 - 13 т

По всей длине контролируемого участка

Мастер

Отсутствие волн перед вальцом. Положенная под валец щебенка должна раздавливаться. Метод лунки

Общий журнал работ

Отметки по оси основания

Отметки по оси основания

Инструментальный

Нивелир

Промеры не реже, чем через 100 м

Геодезист

Отклонения до ±50 мм от проектных значений высотных отметок

Журнал технического нивелирования

Поперечный профиль и ровность поверхности основания

Поперечные уклоны

Инструментальный

1. Нивелир, нивелирная рейка

Промеры не реже, чем через 100 м

Геодезист, мастер

Отклонения от проектных значений в предел ах ±0,010

Журнал технического нивелирования

Ровность

2. Трехметровая рейка

 

 

 

 

 

3. Трехметровая рейка с клиновым промерником

Промеры не реже, чем через 100 м (на расстоянии 0,75 - 1 м от каждой кромки основания в пяти контрольных точках)

Геодезист, мастер

Просветы не должны превышать 10 мм

Или общий журнал работ

3. БЕЗОПАСНОСТЬ ТРУДА

К использованию допускаются машины в работоспособном состоянии.

Перечень неисправностей, при котором запрещается эксплуатация машин, определяется эксплуатационной документацией.

Использовать машины можно только в том случае, если температура окружающего воздуха соответствует указанной в эксплуатационной документации на машину.

До начала работы необходимо определить рабочую зону машины, границы опасной зоны, средства связи машиниста с рабочими, обслуживающими машину, и машинистами других машин.

При использовании машин должна быть обеспечена обзорность рабочей зоны с рабочего места машиниста.

Рабочая зона машины в темное время суток должна быть освещена.

При работе распределителя каменных материалов запрещается затягивать болты на включенных вибраторах; удалять ограждения и настилы и работать без них, выполнять ремонт и регулировку электроаппаратуры при работающем генераторе; держать включенным вибратор, если вибробрус не лежит на основании.

Подъем и опускание передней плиты бункера распределителя материалов следует производить только механизмом подъема, находиться при этом внутри бункера запрещается. Сборку, разборку и ремонт отдельных деталей установки можно производить после поднятия и установки их на опорные козлы.

Подавать автомобиль-самосвал с каменными материалами задним ходом для загрузки бункера укладчика или распределителя мелкого щебня разрешается только после подачи сигнала машинистом укладчика или мастером. Во время работы укладчика или распределителя рабочим запрещается находиться в бункере машины или кузове автомобиля-самосвала.

При работе укладчика и распределителя на насыпях запрещается подъезжать более чем на 1 м к бровке насыпи. Запрещается очищать бункер во время работы.

Запрещается во время работы машины регулировать толщину распределяемого или укладываемого слоя, а также регулировать виброплиты, поправлять или менять ремни вибраторов.

При производстве работ по устройству земляного полотна бульдозером руководствуются следующей технической литературой:

1. СНиП III-4-80. Техника безопасности в строительстве.

2. СНиП 12-03-2001. Безопасность труда в строительстве. Часть 1. Общие требования.

3. ТОИ Р-218-05-93. Типовая инструкция по охране труда для машиниста автогрейдера.

4. ТОИ Р-218-07-93. Типовая инструкция по охране труда для машиниста катка.

5. ТОИ Р-218-26-94. Типовая инструкция по охране труда для машиниста автополивомоечной машины.

6. Спельман Е.П. Техника безопасности при эксплуатации строительных машин и средств малой механизации. - М.: Стройиздат, 1986. - 271 с.: ил.

Технологическая карта № 10

УСТРОЙСТВО ОДНОСЛОЙНЫХ ЩЕБЕНОЧНЫХ (ГРАВИЙНЫХ) ОСНОВАНИЙ И ПОКРЫТИЙ АВТОМОБИЛЬНЫХ ДОРОГ ИЗ ПЛОТНЫХ СМЕСЕЙ

1. ОБЛАСТЬ ПРИМЕНЕНИЯ

Технологическая карта разработана на основе методов научной организации труда и предназначена для использования при разработке проектов производства работ и организации труда на строительном объекте.

Технологическая карта составлена на устройство щебеночных (гравийных) оснований и покрытий из плотных смесей толщиной 20 см.

К плотным смесям относят: щебеночно-песчаные, состоящие из щебня, природного или дробленого песка при различном их соотношении; гравийно-песчаные, состоящие из гравия и природного песка при различном их соотношении. Зерновой состав смесей назначается из условия получения слоя дорожной одежды максимальной плотности (п. 3.3.1 ГОСТ 25607-94).

В гравийный материал, содержащий более 50 % хорошо окатанных зерен, для лучшей его уплотняемости и повышения несущей способности слоя следует добавлять щебень (щебень из гравия) в количестве 20 - 30 % по массе.

Свойства щебня (гравия), входящего в состав смесей, должны удовлетворять требованиям ГОСТ 25607-94 «Смеси щебеночно-гравийно-песчаные для покрытий и оснований автомобильных дорог и аэродромов»; ГОСТ 8267-93 «Щебень и гравий из плотных горных пород для строительных работ».

Во всех случаях применения технологической карты необходима привязка ее к конкретным условиям.

2. ОРГАНИЗАЦИЯ И ТЕХНОЛОГИЯ ПРОИЗВОДСТВА РАБОТ

2.1. До начала работ по устройству основания (покрытия) должны быть выполнены все предшествующие работы по устройству земляного полотна, подстилающих слоев и водоотвода.

Земляное полотно или нижележащий подстилающий слой планируют автогрейдером за 1 - 2 прохода по одному следу и подкатывают катком на пневматических шинах за 2 - 3 прохода по одному следу.

2.2. Работы по устройству однослойного щебеночного основания (покрытия) из плотных смесей толщиной 0,2 м щебнераспределителем ДС-54 при транспортировании материала автомобилями-самосвалами КамАЗ-6520 на среднее расстояние 15 км ведутся в разработанной технологической последовательности процессов производства работ на трех захватках длиной по 150 м (табл. 1).

В перечне рабочих операций учтены работы по устройству присыпных обочин.

Основные объемы работ для устройства щебеночного (гравийного) основания (покрытия) и присыпных грунтовых обочин рассчитаны для конструктивного поперечника, представленного на рис. 1.

Рис. 1. Конструкция слоя основания (покрытия) с присыпными обочинами в поперечном профиле

2.3. Щебеночную (гравийную) оптимальную смесь вывозят автомобилями-самосвалами на дорогу и разгружают в самоходный распределитель ДС-54 (захватка I, рис. 2).

Самоходный распределитель дорожно-строительных материалов ДС-54 обеспечивает укладку щебня (гравия) с предварительным уплотнением.

Распределяется щебень по ширине укладываемой полосы плужным отвалом V-образной формы.

Положение отвала по высоте регулируется в трех точках: по краям и в середине.

Предварительное уплотнение осуществляется двумя рабочими органами: вначале совместным действием системы «вибробрус - выглаживающая плита», а затем - виброплитами, шарнирно соединенными с рамой рабочих органов.

2.4. Работы по устройству присыпных обочин выполняют в общем технологическом потоке вслед за распределением щебеночной (гравийной) смеси (захватка II, рис. 2) в следующей последовательности:

·        транспортировка и выгрузка грунта на обочины;

·        разравнивание и планировка грунта;

·        уплотнение грунта обочин.

2.4.1. В каждый автомобиль-самосвал КамАЗ-6520 загружают 7,5 м3 грунта и выгружают на обочины через 11,5 м вдоль покрытия.

Расстояние между центрами куч определяют по формуле

l = q/B·h·ρ,

где q - грузоподъемность автомобиля-самосвала, т;

B  - ширина (или средняя линия) полосы рассыпаемого материала, м;

h   - толщина слоя, м;

ρ   - плотность материала, т/м3.

2.4.2. Разравнивание и планировку грунта обочин производят автогрейдером ДЗ-122 за четыре прохода по одному следу, делая рабочие проходы в двух направлениях.

Первыми двумя проходами по одному следу выполняют грубое разравнивание грунта, при этом отвал автогрейдера срезает верхушки валиков и заполняет ими впадины. Работу ведут на ручном режиме управления. При движении автогрейдера на второй передаче отвал автогрейдера устанавливают в рабочее положение, при котором угол захвата составляет 45 - 50°, угол резания - до 50°, угол наклона отвала соответствует поперечному уклону обочин. При этом отвал поднимают на высоту разравниваемого слоя.

За третий проход производят окончательное разравнивание и предварительную планировку грунта с приданием проектного поперечного уклона. Эту работу выполняют автогрейдером в автоматическом режиме управления отвалом. Отвал устанавливают в рабочее положение, при котором угол захвата составляет 50 - 60°, угол резания - 45 - 50°, угол наклона отвала соответствует поперечному уклону. Толщину срезаемого слоя регулируют левым (неавтоматизированным) гидроцилиндром подъема и опускания отвала, при этом правый гидроцилиндр автоматически переместит конец отвала. Излишек грунта перемещают от края обочины к покрытию.

За четвертый проход выполняют окончательную планировку обочин в автоматическом режиме управления отвалом автогрейдера. Излишек грунта транспортируют от покрытия к краю обочины.

После планировки одной обочины отвал поднимают в транспортное положение, после чего производят поворот и переход на другую обочину.

После планировки контролируют шаблоном поперечный уклон обочины.

2.4.3. Уплотнение грунта обочин выполняют самоходными катками на пневматических шинах типа ДУ-101.


Рис. 2. Технологический план потока по устройству слоя основания (покрытия) из плотных смесей


Грунт уплотняют за 8 - 10 проходов катка по одному следу. Первые проходы начинают от кромки проезжей части, затем последующими проходами, смещаясь за каждый проход на 1/3 ширины катка, уплотняют обочины, не доходя 0,3 - 0,5 м до откоса. После этого уплотнение грунта обочины продолжают с перемещением от бровки земляного полотна к проезжей части.

При первых двух - трех проходах катка скорость движения составляет 2 - 3 км/ч, при последующих проходах скорость увеличивают до 5 км/ч.

Уплотнение грунта заканчивают, когда достигают заданного коэффициента уплотнения 0,98 - 1.

Обочины должны быть уплотнены до требуемого коэффициента уплотнения, а также должны иметь ровную поверхность. Поперечный уклон обочин должен обеспечивать сток воды.

2.5. Уплотнение щебеночного (гравийного) основания (покрытия) выполняют в три периода.

В первом периоде делают подкатку щебеночной (гравийной) смеси легкими гладковальцовыми катками массой 5 - 6 т за 5 - 6 проходов по одному следу. Скорость движения катков должна быть минимальной - 1,5 - 2 км/ч.

Подкатку начинают от краев основания с постепенным перемещением проходов к середине и перекрытием следов на 1/3 ширины вальца катка.

После первых проходов катка, в случае необходимости, дорожные рабочие добавляют и разравнивают щебеночную смесь в местах просадок.

Во втором периоде щебеночную смесь уплотняют тяжелыми катками на пневматических шинах ориентировочно за 15 - 25 проходов по одному следу.

Необходимое число проходов катка по одному следу определяют пробной укаткой.

Первые проходы делают по краям основания, последующие - постепенным смещением к середине основания и перекрытием предыдущего следа на 30 - 50 см.

Скорость движения катков при первых проходах - минимальная. При последующих проходах скорость повышают до возможной паспортной рабочей скорости. Давление воздуха в шинах 0,6 - 0,8 МПа в зависимости от класса прочности щебня. В сухую и жаркую погоду щебеночную смесь перед уплотнением и в процессе уплотнения поливают водой из поливомоечной машины. Необходимую норму розлива устанавливает представитель лаборатории.

В местах просадок дорожные рабочие граблями или киркой разрыхляют верхний слой основания, добавляют щебеночную смесь, планируют ее под рейку и оставляют под дальнейшую укатку.

Признаком достаточного уплотнения основания является отсутствие следа от прохода катка; щебенка, брошенная под валец катка, должна раздавливаться. Контроль плотности в полевых условиях выполняют методом лунки.

В тех случаях, когда отсутствует каток на пневматических шинах, щебеночную смесь уплотняют вальцовыми самоходными катками в такой последовательности:

·        в первом периоде уплотняют щебеночную смесь легкими (массой 6 т) или средними (массой 8 т) катками за 8 - 15 проходов катка по одному следу при скорости движения 1,5 - 2 км/ч;

·        во втором периоде щебеночную смесь уплотняют тяжелыми вальцовыми катками (массой 11 т и более) за 10 - 20 проходов катка по одному следу. Скорость движения катков на первых проходах 1,5 - 2 км/ч, при последующих проходах скорость повышают до паспортной.

В первом и втором периодах укатку ведут от краев с постепенным смещением проходов к середине основания и перекрытием предыдущего следа на 1/3 ширины вальца катка.

Если на поверхности основания появляются неровности и волны, назначают третий период укатки тяжелыми трехвальцовыми трехосными катками типа ДУ-9В за 5 - 6 проходов по одному следу.

Укатку ведут от краев с постепенным смещением проходов к середине и перекрытием следов на 1/3 вальца катка.

Уплотнение в третьем периоде заканчивают, когда от прохода катка не остается заметного следа; щебенка, брошенная под валец катка, должна раздавливаться. Качество уплотненного слоя контролируется методом лунки.

Технологическая последовательность процессов с расчетом объемов работ и потребных ресурсов приведена в табл. 1, 2.

Технологический план потока по устройству однослойного щебеночного основания (покрытия) из плотных смесей представлен на рис. 2.

Технология операционного контроля качества работ приведена в табл. 3.


Таблица 1

Технологическая последовательность процессов с расчетом объемов работ и потребных ресурсов

№ процессов

№ захваток

Источник обоснования норм выработки (ЕНиРы и расчеты)

Описание рабочих процессов в порядке их технологической последовательности с расчетом объемов работ

Единица измерения

Количество работ

Производительность в смену

Потребность в машино-сменах

Затраты труда и заработная плата на захватку длиной 150 м

Норма времени, чел.-ч

Заработная плата, руб.-коп.

на захватку l = 150 м

на 1 км

на захватку l = 150 м

на 1 км

на единицу измерения

на полный объем работ

на единицу измерения

на полный объем работ

1

2

3

4

5

6

7

8

9

10

11

12

13

14

1

I

Расчет

Планировка верха земполотна автогрейдером ДЗ-122 за 2 прохода по одному следу:

16,2·150 = 2430

м2

2430

16200

23500

0,10

0,69

0,00034

0,83

0-00,71

17-25

2

I

Расчет

Подкатка верха земполотна катком ДУ-101 на пневмошинах за 2 прохода по одному следу:

16,2-150 = 2430

м2

2430

16200

20250

0,12

0,8

0,0004

0,96

0-00,85

20-65

3

I

Расчет

Подвоз смеси автосамосвалами КамАЗ 6520 с выгрузкой в бункер щебнераспределителя:

(9 + 9,4)/2·0,2·1,3·150·1,03 = 370

м3

370

2465

69

5,36

35,72

0,116

42,9

2-15

795-50

4

I

Расчет

Укладка щебеночной смеси распределителем слоем толщиной 20 см

м3

370

2465

608

0,61

4,05

0,013

4,87

1-30

48-10

5

II

Расчет

Подвоз грунта автосамосвалами с выгрузкой на обочинах:

(3 + 3,4)/2·2·1,1·150·1,03 = 218

м3

218

1410

63

3,46

22,4

0,127

27,68

2-36

514-50

6

II

Расчет

Разравнивание и планировка грунта на обочинах автогрейдером ДЗ-122 за 4 прохода по одному следу:

3·2·150 = 900

м2

900

6000

6000

0,15

1,0

0,0013

1,2

0-02,9

26-10

7

II

Расчет

Увлажнение грунта из расчета 3 % от массы поливомоечной машиной МД-433-03:

218·1,7·0,03 = 11,1

т

11,1

74

68

0,16

1,09

0,117

1,31

2-14

23-75

8

II

Расчет

Уплотнение грунта на обочинах катком на пневмошинах ДУ-101 за 8 проходов по одному следу:

3·2·150 = 900

м2

900

6000

5926

0,15

1,01

0,0013

1,22

0-029

26-10

9

III

Расчет

Увлажнение щебня из расчета 3 % от массы поливомоечной машиной МД-433-03:

370·1,6·0,03 = 17,8

т

17,8

118,4

68

0,26

1,74

0,1176

2,09

2-16

385

10

III

Расчет

Уплотнение щебеночного слоя легким катком ДУ-96 за 6 проходов по одному следу:

9·150 = 1350

м2

1350

9000

2516

0,54

3,58

0,0032

4,3

0-06,3

85-05

11

III

Расчет

Уплотнение щебеночного слоя тяжелыми катками ДУ-101 (m = 18 т) за 15 проходов по одному следу

м2

1350

9000

1429

0,94

6,30

0,0056

7,56

0-12

162-00

 

 

 

ИТОГО:

 

 

 

 

 

 

 

 

 

1757-45


Таблица 2

Состав отряда

Машины

Профессия и разряд рабочего

Потребность в машино-сменах

Коэффициент загрузки

Количество рабочих

Примечание

на 1000 м2

на захватку

Автогрейдер ДЗ-122

Машинист VI разряда

1,74

0,25 (1)

0,25

1

 

Самоходный каток ДУ-101

Машинист VI разряда

7,83

1,21 (2)

0,606

2

 

Автосамосвал КамАЗ-6520

Водитель IV разряда

58,12

8,82 (9)

0,98

9

 

Щебнераспределитель

Машинист VI разряда

3,18

0,61 (1)

0,61

1

 

Поливомоечная машина МД-433-03

Водитель IV разряда

2,79

0,42 (1)

0,42

1

 

Самоходный каток ДУ-96

Машинист V разряда

3,71

0,54 (1)

0,54

1

 

 

 

Итого

15

 

15

 

Таблица 3

Технология операционного контроля качества работ при устройстве основания (покрытия) из плотных смесей

Основные операции, подлежащие контролю

Состав контроля

Метод и средства контроля

Режим и объем контроля

Лицо, осуществляющее контроль

Предельные отклонения от норм контролируемых параметров

Где регистрируются результаты контроля

1

2

3

4

5

6

7

Качество щебня

Влажность щебня

Лабораторный

В соответствии с ГОСТ 8269.0-97

Не реже одного раза в смену

Лаборант

Отклонение не более 10 % от оптимальной влажности

Журнал лабораторных работ

Распределение щебня

Ширина слоя, толщина слоя

Инструментальный

Измерительные линейка, рулетка, визирки

Не реже, чем через каждые 100 м

Мастер

Отклонения

по ширине ±10 см,

по толщине ±15 мм

Общий журнал работ

Уплотнение щебеночного основания

Плотность щебеночного основания

Визуальный

Контрольный проход катка массой 10 - 13 т

По всей длине контролируемого участка

Мастер

Отсутствие волн перед вальцом. Положенная под валец щебенка должна раздавливаться. Метод лунки

Общий журнал работ

Отметки по оси основания

Отметки по оси основания

Инструментальный

Нивелир

Промеры не реже, чем через 100 м

Геодезист

Отклонения до ±50 мм от проектных значений высотных отметок

Журнал технического нивелирования

Поперечный профиль и ровность поверхности основания

Поперечные уклоны

Инструментальный

1. Нивелир, нивелирная рейка

2. Трехметровая рейка

Промеры не реже, чем через 100 м

Геодезист, мастер

Отклонения от проектных значений в пределах ±0,010

Журнал технического нивелирования

Ровность

1. Трехметровая рейка с клиновым промерником

Промеры не реже, чем через 100 м (на расстоянии 0,75 - 1 м от каждой кромки основания в пяти контрольных точках)

Геодезист, мастер

Просветы не должны превышать 10 мм

Или общий журнал работ

3. БЕЗОПАСНОСТЬ ТРУДА

К использованию допускаются машины в работоспособном состоянии.

Перечень неисправностей, при котором запрещается эксплуатация машин, определяется эксплуатационной документацией.

Использовать машины можно только в том случае, если температура окружающего воздуха соответствует указанной в эксплуатационной документации на машину.

До начала работы необходимо определить рабочую зону машины, границы опасной зоны, средства связи машиниста с рабочими, обслуживающими машину, и машинистами других машин.

При использовании машин должна быть обеспечена обзорность рабочей зоны с рабочего места машиниста.

Рабочая зона машины в темное время суток должна быть освещена.

При работе распределителя каменных материалов запрещается затягивать болты на включенных вибраторах; удалять ограждения и настилы и работать без них, выполнять ремонт и регулировку электроаппаратуры при работающем генераторе; держать включенным вибратор, если вибробрус не лежит на основании.

Подъем и опускание передней плиты бункера распределителя материалов следует производить только механизмом подъема, находиться при этом внутри бункера запрещается. Сборку, разборку и ремонт отдельных деталей установки можно производить после поднятия и установки их на опорные козлы.

Подавать автомобиль-самосвал с каменными материалами задним ходом для загрузки бункера укладчика или распределителя мелкого щебня разрешается только после подачи сигнала машинистом укладчика или мастером. Во время работы укладчика или распределителя рабочим запрещается находиться в бункере машины или кузове автомобиля-самосвала.

При работе укладчика и распределителя на насыпях запрещается подъезжать более чем на 1 м к бровке насыпи. Запрещается очищать бункер во время работы.

Запрещается во время работы машины регулировать толщину распределяемого или укладываемого слоя, а также регулировать виброплиты, поправлять или менять ремни вибраторов. Для этого необходимо остановить машину.

При производстве работ по устройству земляного полотна бульдозером руководствуются следующей технической литературой:

1. СНиП III-4-80. Техника безопасности в строительстве.

2. СНиП 12-03-2001. Безопасность труда в строительстве. Часть 1. Общие требования.

3. ТОИ Р-218-05-93. Типовая инструкция по охране труда для машиниста автогрейдера.

4. ТОИ Р-218-07-93. Типовая инструкция по охране труда для машиниста катка.

5. ТОИ Р-218-26-94. Типовая инструкция по охране труда для машиниста автополивомоечной машины.

6. Спельман Е.П. Техника безопасности при эксплуатации строительных машин и средств малой механизации. - М.: Стройиздат, 1986. - 271 с.: ил.

Технологическая карта № 11

УСТРОЙСТВО ЩЕБЕНОЧНОГО ОСНОВАНИЯ, ОБРАБОТАННОГО В ВЕРХНЕЙ ЧАСТИ ПЕСКОЦЕМЕНТНОЙ СМЕСЬЮ МЕТОДОМ ПРОПИТКИ (ВДАВЛИВАНИЯ)

1. ОБЛАСТЬ ПРИМЕНЕНИЯ

1.1. Технологическая карта разработана на устройство щебеночного основания из щебня фракции 40 - 70 мм, обработанного в верхней части пескоцементной смесью по способу пропитки, с использованием для уплотнения самоходного катка на пневмошинах ДУ-100.

Пескоцементную смесь из песка и цемента М 400 готовят в грунтосмесительной установке (при расходе цемента 8 - 12 % от массы смеси и расходе воды 6 - 10 %). Принятая длина сменной захватки при устройстве основания составляет 200 м.

1.2. Конструкция основания принята по альбому «Типовые строительные конструкции, изделия и узлы серии 3.503-71/88 «Дорожные одежды для автомобильных дорог общего пользования». Выпуск 0, «Материалы для проектирования».

1.3. В технологической карте принята толщина основания в плотном теле 18 см (рис. 1) при глубине обработки пескоцементной смесью 6 см, толщина поверхностного слоя из чистого пескоцемента 2 см, ширина основания 9 м.

1.4. При устройстве щебеночного основания, обработанного в верхней части пескоцементной смесью, выполняют следующие операции:

·        подвозку и распределение щебня;

·        подготовку щебня к обработке пескоцементной смесью;

·        обработку щебня пескоцементной смесью по способу пропитки;

·        уплотнение основания;

·        уход за основанием.

1.5. Основание из щебня, обработанного пескоцементной смесью, устраивают в сухую погоду при температуре воздуха не ниже 5 °С.

1.6. Во всех случаях применения технологической карты необходима привязка к местным условиям производства работ с учетом имеющегося в наличии парка дорожно-строительных машин и механизмов, уточнение объемов работ и калькуляции затрат труда.

Рис. 1. Схема щебеночного основания, обработанного в верхней части песка цементной смесью по способу пропитки

2. ОРГАНИЗАЦИЯ И ТЕХНОЛОГИЯ ПРОИЗВОДСТВА РАБОТ

2.1. Перед устройством основания из щебня, обработанного пескоцементной смесью, необходимо:

·        обеспечить готовность земляного полотна (нижележащего слоя дорожной одежды) в соответствии с требованиями действующих строительных норм и правил;

·        подготовить временные подъездные пути для подачи материалов к месту производства работ;

·        произвести плановую и высотную разбивку основания, обеспечивающую соблюдение его проектной толщины, ширины и поперечных уклонов;

·        обеспечить водоотвод.

2.2. Работы по устройству щебеночного основания, обработанного в верхней части пескоцементной смесью, ведутся в разработанной технологической последовательности на трех захватках длиной по 200 м каждая.

2.3. На первой захватке выполняются следующие операции:

·        доставка щебня фракции 40 - 70 мм для устройства основания автосамосвалами;

·        распределение и разравнивание щебня автогрейдером по всей ширине основания;

·        профилирование слоя щебня автогрейдером.

В данной технологической карте щебень доставляют на участок автомобилями-самосвалами КамАЗ-55118 в объеме, необходимом для устройства конструктивного слоя заданной толщины с учетом коэффициента запаса на уплотнение 1,25 - 1,3, и выгружают на подготовленный нижележащий подстилающий или морозозащитный слой. Ориентировочно потребность щебня на 200 м основания определяют по формуле

Qщ = b·h·Kу·Kп·200,

где Qщ   - объем щебня, м3;

b   - ширина основания, м;

h     - условная толщина основания в плотном теле принята на 2 см меньше проектной, м;

Kу - коэффициент запаса на уплотнение щебня (1,25 - 1,30);

Kп - коэффициент потерь щебня при транспортировке и укладке (1,03).

Щебень выгружают двумя рядами параллельно продольной оси основания.

Разравнивание и планировку щебня производят автогрейдером ДЗ-122 за 4 прохода по одному следу, выполняя проходы по челночной схеме с рабочим ходом в одном направлении.

При первом и втором проходах по одному следу выполняют распределение и грубое разравнивание щебня, при третьем проходе - окончательное разравнивание. Во время четвертого прохода производят окончательное профилирование и планировку щебеночного слоя по проектным отметкам с учетом осадки слоя при уплотнении.

Первый, второй и третий проход автогрейдера по одному следу начинают от краев основания, двигаясь вдоль обочин и ориентируясь по высотникам разбивки, с постепенным перемещением к середине основания, перекрывая предыдущий след на 0,7 - 1,3 м. Образовавшиеся излишки щебня используют для заполнения пространства на поверхности основания.

Четвертый проход по одному следу начинают с середины основания, двигаясь вдоль оси с постепенным перемещением к обочинам. Излишки щебня также используют для заполнения углублений и пустот.

Каждый последующий проход по одному следу начинают после завершения проходов по всей ширине основания.

Отвал автогрейдера устанавливают в следующем положении:

·        при первом и втором проходах по одному следу: угол захвата 40 - 50°, угол резания до 40°, угол наклона 3 - 5°;

·        при третьем проходе: угол захвата 55 - 60°, угол резания 45 - 60°, угол наклона по проектному поперечному уклону основания;

·        при четвертом проходе: начинают планировку с углом захвата отвала 90°, затем угол захвата устанавливают на 60 - 65°, а угол резания до 40°, угол наклона соответствующим поперечному уклону основания.

2.4. На второй захватке выполняются следующие технологические операции:

·        увлажнение слоя щебня поливомоечной машиной;

·        подкатку щебеночного слоя легким катком.

Для выявления неровностей щебеночного слоя и для обеспечения проезда построечного транспорта щебень подкатывают легким вальцовым катком за 2-4 прохода по одному следу. В карте принята прикатка самоходным гладковальцовым катком ДУ-96. Первый проход катка осуществляют с захватом обочин для обеспечения упора основания.

Необходимо произвести увлажнение основания поливомоечной машиной из расчета 3 - 10 л/м2. В качестве поливомоечной машины принята МД 433-03.

2.5. На третьей захватке выполняются следующие технологические операции:

·        доставка пескоцементной смеси на участок автомобилями-самосвалами;

·        распределение пескоцементной смеси автогрейдером;

·        вдавливание пескоцементной смеси в щебеночный слой пневмокатками;

·        уплотнение основания катком на пневмошинах;

·        окончательное уплотнение основания гладковальцовым катком;

·        нанесение пленкообразующего материала на поверхность слоя основания;

·        уход за готовым слоем основания.

Пескоцементную смесь доставляют в необходимом количестве автомобилями-самосвалами (принят КамАЗ 55118) и выгружают на щебеночный слой двумя рядами.

Ориентировочно количество вводимой смеси определяют по пустотности щебня в плотном слое и заданной глубине обработки по формуле

Qп/ц = bl·(hпрП + hп/ц)·Kп,

где b    - ширина основания, м;

l    - длина захватки, м;

hпр   - глубина пропитки пескоцементной смесью, м;

hп/ц  - толщина пескоцементного слоя, м;

П    - пустотность щебня, доли единицы;

Kп   - коэффициент потерь смеси, принят равным 1,03.

После выгрузки на поверхность основания пескоцементную смесь разравнивают автогрейдером ДЗ-122 за 3 - 4 прохода по одному следу. Распределение смеси на всю ширину основания выполняют в соответствии с п. 2.3 настоящей карты.

Пескоцементную смесь, распределенную ровным слоем по поверхности щебня, вдавливают в пустоты верхней части щебеночного слоя за 2 - 3 прохода пневмокатка по одному следу по челночной схеме. Вдавливание смеси осуществляют немедленно после ее распределения во избежание высыхания тонкого слоя смеси. Эту операцию выполняют самоходным катком на пневматических шинах ДУ-100.

Длину уплотняемого участка (хода катка) принимают равной длине спланированного.

Вдавливание пескоцементной смеси начинают от краев основания с постепенным смещением проходов катка к середине основания и перекрытием предыдущего следа на 0,25 - 0,40 м. При этом скорость катка должна быть 1,5 - 2 км/ч и движение должно происходить плавно, без рывков.

Для достижения стандартной плотности основания его уплотняют катком ДУ-100 (на пневматических шинах) за 12 - 16 проходов по одному следу и доуплотняют легким гладковальцовым катком ДУ-96. Для создания упорной части по краям основания делают на 2 прохода больше по одному следу.

Укатку щебня начинают также от краев основания с постепенным смещением к середине по челночной схеме, перекрывая предыдущий след на 0,25 - 0,4 м.

При первых 4 - 5 проходах каток двигается со скоростью 2 - 4 км/ч. Последующие проходы выполняют со скоростью 8 - 10 км/ч. Давление воздуха в шинах при этом должно быть постоянным (0,6 - 0,8 МПа).

Окончательное количество проходов уточняют путем пробной укатки. Отсутствие следа от катка и волны на основании перед ним свидетельствует о необходимой плотности слоя.

Для доуплотнения верхней части основания и ликвидации неровностей от колес пневмокатка производят окончательное уплотнение самоходным гладковальцовым катком за 3 - 5 проходов по одному следу по челночной схеме.

Необходимо учитывать, что уплотнение основания, включая доставку, разравнивание и вдавливание пескоцементной смеси, ограничено сроками схватывания цемента и не должно превышать 3 ч, а при температуре менее 10 °С - не более 5 ч после введения в смесь воды.

Для увеличения сроков схватывания в пескоцементную смесь вводят добавки ПАВ.

Сразу после уплотнения основания на поверхность наносят пленкообразующие материалы - помароль, лак-этиноль или битумную эмульсию при норме розлива 0,6 - 0,8 л/м2.

Распределение пленкообразующего материала производят автогудронатором (принят ДС-39Б), подготовленным для розлива по заданной норме. Окончательное количество распределенного материала уточняется пробой на первых участках розлива.

Пленкообразующий материал распределяют ровным слоем по всей ширине основания, без пропусков.

Розлив производят сначала по одной, а затем по другой половине основания.

Перед подходом к началу участка автогудронатор должен набрать необходимую скорость, обеспечивающую норму розлива, при этом кран распределительного агрегата открывают за 1 - 1,5 м до начала полосы распределения.

Движение построечного транспорта можно открывать после набора основанием 70 % проектной прочности, но не ранее чем через 7 сут.

2.6. Качество основания из щебня, обработанного не на полную глубину пескоцементной смесью, должно соответствовать требованиям СНиП 3.06.03-85 «Автомобильные дороги». При выполнении работ по устройству щебеночного основания, обработанного пескоцементной смесью методом вдавливания, следует руководствоваться картой операционного контроля качества работ (табл. 3).

2.7. Технологическая последовательность процессов с расчетом объемов работ и потребных ресурсов приведена в табл. 1, состав отряда - в табл. 2.

Технологический план потока по устройству щебеночного основания, обработанного не на полную глубину пескоцементной смесью методом пропитки (вдавливания), приведен на рис. 2.


Рис. 2. Технологический план потока при устройстве щебеночного основания по способу пропитки верхней части пескоцементной смесью

Таблица 1

Технологическая последовательность процессов с расчетом объемов работ и потребных ресурсов

№ процессов

№ захваток

Источник обоснования норм выработки (ЕНиРы и расчеты)

Описание рабочих процессов в порядке их технологической последовательности с расчетом объемов работ

Единица измерения

Количество работ

Производительность в смену

Потребность в машино-сменах

Затраты труда и заработная плата на захватку длиной 200 м

Норма времени, чел.-ч

Заработная плата, руб.-коп.

на захватку l = 200 м

на 1 км

на захватку l = 200 м

на 1 км

на единицу измерения

на полный объем работ

на единицу измерения

на полный объем работ

1

2

3

4

5

6

7

8

9

10

11

12

13

14

I. Основные земляные работы (захватка l = 200 м)

1

 

Расчет

Транспортировка щебня фр. 40 - 70 мм самосвалом КамАЗ-55118 на расстояние 10 км:

9·0,16·1,3·1,03·200 = 386

м3

386

1930

60,8

6,35

31,74

0,132

50,95

2-45

945-70

2

 

Расчет

Разравнивание и предварительная планировка щебня автогрейдером ДЗ-122:

9·200 = 1800

м2

1800

9000

6150

0,29

1,46

0,0013

2,34

0-02,8

50-40

3

 

Расчет

Окончательное профилирование щебеночного слоя под укатку автогрейдером ДЗ-122

м2

1800

9000

13330

0,14

0,68

0,0006

1,08

0-01,3

23-40

4

 

Расчет

Увлажнение слоя щебеночного основания из расчета 3 % от массы щебня поливомоечной машиной МД 433-03 при дальности возки 3 км:

386·1,6·0,03 = 19

м3

19

95

68,0

0,28

1,34

0,079

1,50

1-47

27-93

5

 

Расчет

Подкатка щебеночного слоя гладковальцовым самоходным катком ДУ-96 за 4 прохода по одному следу:

9·200 = 1800

м2

1800

9000

4000

0,45

2,25

0,002

3,6

0-03,9

70-20

6

 

Расчет

Транспортировка пескоцементной смеси самосвалом КамАЗ-55118 на расстояние 10 км:

9·200·(0,06·0,35 + 0,02)·1,03 = 761146·1,75·0,03

м3

76

380

60,8

1,25

6,25

0,132

10,0

2-45

186-20

7

 

Расчет

Прием пескоцементной смеси, очистка кузовов самосвалов (дорожный рабочий II разряда)

чел.-ч

8

40

-

-

-

1

8

14-59

116-72

8

 

Расчет

Распределение пескоцементной смеси автогрейдером ДЗ-122 с планировкой поверхности слоя

м2

1800

9000

4700

0,38

1,91

0,0017

3,06

0-03,6

64-80

9

 

Расчет

Окончательное профилирование основания автогрейдером ДЗ-122 под укатку

м2

1800

9000

11430

0,16

0,79

0,0007

1,26

0-01,5

27-00

10

 

Расчет

Вдавливание пескоцементной смеси в щебень за 4 прохода по одному следу самоходным катком ДУ-100 на пневмошинах

м2

1800

9000

8890

0,2

1,00

0,0009

2,00

0-01,9

34-20

11

 

Расчет

Уплотнение основания самоходным катком ДУ-100 на пневматических шинах при 15 проходах по одному следу

м2

1800

9000

4000

0,45

2,25

0,002

3,6

0-04,3

77-40

12

 

Расчет

Окончательное уплотнение основания гладковальцовым самоходным катком ДУ-96 за 5 проходов по одному следу

м2

1800

9000

3330

0,54

2,70

0,0024

4,32

0-04,7

84-60

13

 

Расчет

Распределение по основанию защитного пленкообразующего материала автогудронатором ДС-39Б

0,001·1800·1 = 1,8

т

1,8

9

80

0,02

0,11

0,1

0,18

1-74

3-12

 

 

 

ИТОГО:

 

 

 

 

 

 

 

92,07

 

1715-57


Таблица 2

Состав отряда

Машины

Профессия и разряд рабочего

Потребность в машино-сменах

Потребность в машинах

Коэффициент загрузки

Количество рабочих

на захватку

на 1000 м

Самосвал КамАЗ-55118

Машинист IV разряда

7,6

38,0

8

0,95

8

Автогрейдер ДЗ-122

Машинист VI разряда

0,97

4,84

1

0,97

1

Поливомоечная машина МД 433-03

Водитель IV разряда

0,28

1,34

1

0,28

1

Гладковальцовый самоходный каток ДУ-96

Машинист V разряда

0,99

4,95

1

0,99

1

Самоходный каток на пневмошинах ДУ-100

Машинист VI разряда

0,65

3,25

1

0,65

1

Автогудронатор ДС-39Б

Машинист V разряда

0,02

0,11

1

0,02

1

 

Рабочий-дорожник II разряда

 

 

 

 

1

 

ИТОГО:

10,54

52,6

13

 

14

Таблица 3

Технология операционного контроля качества работ при устройстве щебеночного основания по способу пропитки верхней части пескоцементной смесью

Основные операции, подлежащие контролю

Состав контроля

Метод и средства контроля

Режим и объем контроля

Лицо, осуществляющее контроль

Предельные отклонения от норм контролируемых параметров

Где регистрируются результаты контроля

1

2

3

4

5

6

7

Разравнивание и планировка щебня

Ширина слоя, толщина слоя

Инструментальный

Линейка измерительная, рулетка, визирки

Не реже одного раза в смену

Мастер

Отклонения по ширине 610 см, по высоте 615 мм

Общий журнал работ

Обработка верхнего слоя щебня пескоцементной смесью

 

Лабораторный

 

Лаборант

 

Журнал лабораторных работ

1. Влажность пескоцементной смеси

1. В соответствии с ГОСТ 5180-84

Не реже одного раза в смену

1. Не более 35 % от оптимальной влажности

2. Прочность пескоцементной смеси

2. В соответствии с ГОСТ 23558-94

-«-

-«-

2. Не менее установленной марки

-«-

3. Однородность состава верхнего слоя

3. Метод рассева смеси, отобранной из основания

-«-

-«-

3. Отклонение однородности состава не должно превышать 15 %

 

Уплотнение основания

 

Визуальный

 

Мастер

 

Общий журнал работ

1. Плотность основания

1. Контрольный проход катка массой 10 - 13 т

1. По всей длине контролируемого участка

1. Раздавливание зерна щебня. Отсутствие волн перед вальцом и следа на поверхности основания

 

Инструментальный

 

 

 

 

2. Прочность основания

2. Склерометры для определения прочности методами неразрушающего контроля

2. Не реже одного раза в смену (после 7 сут твердения ПЦС)

Лаборант

2. Не менее установленной марки

Журнал лабораторных работ

 

Инструментальный

 

 

 

 

3. Высотные отметки по оси основания

3. Нивелир, рейка

3. Промеры не реже, чем через 100 м

Геодезист

3. Отклонения до 650 мм от проектных значений высотных отметок

Журнал технического нивелирования

4. Ровность

4. Трехметровая рейка с клиновым промерником

4. Промеры не реже, чем через 100 м на расстоянии 0,75 - 1 м от каждой кромки основания в пяти контрольных точках

Мастер

4. Просветы не должны превышать 10 мм

Журнал общих работ

5. Поперечные уклоны

5. Нивелир, рейка

5. Промеры не реже, чем через 100 м

Геодезист

5. Отклонения от проектных значений в пределах 60,01

Журнал технического нивелирования

Трехметровая рейка (уклономер)

-«-

Мастер

-«-

Журнал общих работ

Уход за основанием с применением пленкообразующего материала

Равномерность распределения пленкообразующего материала

Визуальный

Розлив по пленке площадью 20 × 20 см раствора фенолфталеина или соляной кислоты

Не менее одного раза в смену

Мастер, лаборант

Количество точек изменения окраски или вспенивания не более двух

Журнал общих работ

3. БЕЗОПАСНОСТЬ ТРУДА

При профилировании основания необходимо руководствоваться схемой профилирования, которая включает в себя детальную разработку каждого прохода автогрейдера.

Одновременная работа двух или нескольких автогрейдеров, идущих друг за другом, допускается при соблюдении между ними расстояния не менее 20 м.

При развороте автогрейдера в конце профилируемого участка, а также на крутых поворотах дороги движение их должно осуществляться на минимальной скорости.

При работе в ночное время у автогрейдера включается освещение, обеспечивающее хорошую видимость фронта работы и рабочих органов.

При осмотре автогрейдера двигатель должен быть заглушен, а рабочий орган опущен на грунт.

При производстве работ по устройству земляного полотна бульдозером руководствуются следующей технической литературой:

1. СНиП III-4-80. Техника безопасности в строительстве.

2. СНиП 12-03-2001. Безопасность труда в строительстве. Часть 1. Общие требования.

3. ТОИ Р-218-05-93. Типовая инструкция по охране труда для машиниста автогрейдера.

4. ТОИ Р-218-07-93. Типовая инструкция по охране труда для машиниста катка.

5. ТОИ Р-218-26-94. Типовая инструкция по охране труда для машиниста автополивомоечной машины.

6. Спельман Е.П. Техника безопасности при эксплуатации строительных машин и средств малой механизации. - М.: Стройиздат, 1986. - 271 с.: ил.

Технологическая карта № 12

УСТРОЙСТВО ОСНОВАНИЯ ИЗ «ТОЩЕГО» БЕТОНА КЛАССА В5 (М 75) С ИСПОЛЬЗОВАНИЕМ БЕТОНОУКЛАДЧИКА ДС-111

1. ОБЛАСТЬ ПРИМЕНЕНИЯ

1.1. Технологическая карта разработана на основе методов научной организации труда и предназначена для использования при составлении проектов производства работ и организации труда на строительстве автомобильных дорог.

1.2. Карта составлена на устройство основания дороги II категории с шириной проезжей части 7,5 м и высотой 20 см в плотном теле. В качестве ведущего механизма принят бетоноукладчик ДС-111, входящий в комплект машин ДС-110 завода «Брянский арсенал» с рабочей скоростью укладки бетонной смеси 2 м/мин, шириной распределения смеси 7,5 м, сменной производительностью 550 пог. м (длина захватки) или 4125 м2 основания. Сменная производительность бетоноукладчика основана поставками «тощего» бетона бетоносмесительной установкой СБ-109.

1.3. При работе с подвижными смесями с ОК = 1 - 4 см бетоноукладчик ДС-111 выполняет следующие операции: распределяет бетонную смесь на требуемые ширину и высоту покрытия, профилирует слой бетона, уплотняет его при помощи вибраторов, осуществляет формование и кромкообразование боковых граней. Работая с жесткими смесями, к которым относится «тощий» бетон, бетоноукладчик ДС-111 выполняет функции только бетонораздатчика, т.е. бетонная смесь укладчиком не уплотняется.

1.4. Доставленная автомобилями-самосвалами бетонная смесь разгружается непосредственно перед шнеком-распределителем бетоноукладчика на подстилающий слой основания или грунт земляного полотна автомобильной дороги.

1.5. Во всех случаях применения технологической карты необходима привязка ее к местным условиям. При этом следует уточнить потребное количество трудовых и материально-технических ресурсов, а также, в зависимости от дальности транспортировки бетонной смеси, определить расчетным путем потребное количество транспортных средств.

2. ОРГАНИЗАЦИЯ И ТЕХНОЛОГИЯ ПРОИЗВОДСТВА РАБОТ

2.1. До начала укладки смеси бетоноукладчиком ДС-111 должны быть выполнены следующие работы:

·        смонтирована, отлажена и подготовлена к работе смесительная установка СБ-109. Для обеспечения однородности выпускаемой смеси и предотвращения ее расслоения установку СБ-109 необходимо оборудовать бункером-накопителем;

·        устроен и тщательно спрофилирован на ширину не менее 7 м подстилающий слой основания или грунт земляного полотна;

·        установлены с двух сторон будущего основания копирные струны для работы бетоноукладчика ДС-111 в автоматическом режиме;

·        спланирована обочина и устроены въезды на земляное полотно и съезды с него для движения автомобилей-самосвалов.

2.2. Работу бетоноукладчика ДС-111 «тощим» бетоном обеспечивает установка непрерывного действия СБ-109 (расчетная производительность 120 м3/ч) с фактической производительностью 106 м3/ч.

2.3. Требования к «тощему» бетону класса В5 (М 75):

·        расход цемента 80 - 110 кг/м3;

·        максимальная крупность щебня - 70 мм;

·        рекомендуется применение щебня 2-х фракций: 5 - 40 и 40 - 70 мм;

·        вода затворения - 5 - 8 % от массы сухого заполнителя.

Требуемая жесткость бетонной смеси - 60 - 80 с по техническому вискозиметру.

Допускается применение добавок, замедлителей сроков схватывания типа ЛСТ (технических лигносульфонатов) при температуре воздуха свыше 20 °С.

Химдобавки вводятся в смесь в виде растворов с водой затворения.

2.4. Установка копирных струн выполняется в следующей последовательности:

·        восстанавливают и закрепляют ось дороги и бетонируемой полосы;

·        устанавливают нивелирные колышки;

·        устанавливают металлические стойки с поперечными штангами на расстоянии от 10 до 15 м друг от друга на прямых участках и 4 - 6 м - на кривых участках и виражах с двух сторон от будущей полосы основания, оптимальная высота установки струны - 70 см;

·        натягивают копирную струну сначала вручную, затем натяжной лебедкой (отклонение копирной струны от вертикальных отметок не должно превышать ±3 мм). Расстояние струн от кромки основания в плане 1,5 - 1,7 м;

·        контролируют качество установки копирных струн.

По завершении бетонирования основания осуществляют демонтаж копирных струн.

Работы по установке копирных струн выполняет звено рабочих в составе:

Дорожные рабочие: IV разряд - 1 чел.

III разряд - 1 чел.

II разряд - 1 чел.

I разряд - 1 чел.

Работой звена руководит инженер-геодезист. На него же возлагается работа с геодезическим инструментом. Звену выделяется грузовой автомобиль.

2.5. Бетонная смесь к месту укладки транспортируется автомобилем-самосвалом КамАЗ-55111 (грузоподъемность 13 т, объем кузова 6,6 м3).

Основные требования к перевозке смеси:

·        смесь в кузове автомобиля-самосвала обязательно должна быть накрыта пологом для предохранения ее от потерь влаги или переувлажнения;

·        доставка смеси должна осуществляться по часовому графику, разработанному с учетом производительности бетоноукладчика ДС-111;

·        время транспортирования жесткой бетонной смеси без добавок-замедлителей при температуре до 20 °С не должно превышать 1 ч, при температуре воздуха более 20 °С - 30 мин. При использовании добавок-замедлителей время транспортировки соответственно увеличивается до 1,5 ч и 45 мин.

2.6. Для предотвращения потерь влаги жесткой бетонной смесью с низким водосодержанием и обеспечения качественного уплотнения перед укладкой смеси подстилающий слой основания (или земполотна) увлажняют водой с использованием поливомоечной машины МД 433-03 из расчета:

0,5 л/м2 - при t° воздуха до 25 °С;

1,0 л/м2 - при t° воздуха 25 °С и выше.

2.7. Распределение и уплотнение «тощего» бетона должно производиться в один слой. Толщина слоя жесткой бетонной смеси, укатываемого катком, не должна превышать 22 см.

При использовании бетоноукладчика ДС-111 со скользящими формами для обеспечения качественного уплотнения катками на всю проектную ширину основания «тощий» бетон распределяют на ширину, превышающую проектную на 25 см с каждого свободного края.

2.8. Технология производственного процесса по устройству бетонного основания на прямолинейном участке дороги бетоноукладчиком ДС-111 состоит из следующих операций:

·        подготовки бетоноукладчика к работе;

·        подготовки участка к бетонированию;

·        укладки цементобетонной смеси бетоноукладчиком, в т.ч.: распределения смеси, регулировки толщины бетонного слоя, формирования профиля плиты, образования и отделки кромки бетонного покрытия. Еще раз отметим, что при применении «тощего» бетона бетоноукладчик ДС-111 смесь не уплотняет, а следовательно, вибраторы не действуют;

·        устройства рабочего шва;

·        ухода за бетоноукладчиком.

Подготовительные работы:

·        выбор ровного участка дороги не ближе 15 - 20 м от начала покрытия. Участок должен быть оборудован копирной струной для установки бетоноукладчика по заданному курсу и выведения его на автоматизированный режим работы при подходе к начальному участку бетонирования;

·        наладка рамы бетонирования. Рама бетоноукладчика является подвижным горизонтальным шаблоном, проходящим на заданной высоте над основанием, поэтому она должна быть установлена точно в той же плоскости, что и бетонируемое покрытие. В первую очередь гидроцилиндрами и ограничителями хода устанавливаются боковые рамы на одинаковое расстояние (3,75 м) от оси машины. Боковые рамы должны быть строго параллельны. Затем рама бетоноукладчика с помощью копирных струн устанавливается так, чтобы ее нижняя плоскость находилась на отметке устраиваемого покрытия;

·        наладка рабочих органов бетоноукладчика. Предварительная наладка производится относительно низа рамы бетоноукладчика.

Распределительный шнек бетоноукладчика наладки не требует, т.к. он жестко соединен с боковыми рамами и его положение зависит от них. Отвал шнека и вибробрус-дозатор выравнивают по струне, натянутой между нижними краями боковых частей рам.

Качающиеся отделочные брусья также выравнивают по струне, натянутой между нижними краями боковых рам. При этом поверхность брусьев должна на всем протяжении касаться струны. Передний край брусьев должен быть приподнят на 1 - 2° относительно заднего.

Положение выглаживающей плиты настраивается регулировочными винтами так, чтобы передняя кромка плиты была на 3 - 5 мм выше относительно задней, которая также устанавливается по струне. Окончательная наладка выглаживающей плиты осуществляется в процессе бетонирования.

После предварительной наладки рабочих органов относительно низа рамы все индикаторы уровня устанавливают на «0».

Установка боковых скользящих форм в шарниры боковых рам. Верхний конец формы тщательно подгоняют к краям боковой рамы во избежание утечки смеси. На нижней кромке боковой формы закреплена резиновая лента для предотвращения ее повреждения. Перед началом работы следует проверять износ резиновой ленты. Следует обратить внимание на то, что при устройстве однорядового покрытия с внутренней стороны боковых форм устанавливают стальные полосы для создания гладкой вертикальной кромки бетонного покрытия.

Точная настройка кромкообразователя осуществляется с помощью четырех регулировочных болтов. Расстояние между боковыми формами кромкообразователя должно быть на 2 - 4 см меньше проектной ширины покрытия, а высота опалубки кромкообразователя должна быть на 5 мм меньше толщины укладываемого слоя смеси. Кромкообразователь требует постоянной регулировки при изменении подвижности смеси.

Установка бетоноукладчика. Бетоноукладчик устанавливается так, чтобы центр шнека и качающегося отделочного бруса находились точно на оси основания. На главную раму устанавливаются консоли так, чтобы их внешние концы находились на расстоянии 20 - 25 см от копирной струны. На концах консолей размещают поперечину, на которую устанавливают датчики выдерживания курса и уровня.

В дальнейшем настройка рабочих органов и датчиков бетоноукладчика ДС-111 осуществляется с пульта управления, а окончательная настройка производится при пробном бетонировании, используя бетонную смесь рабочего состава.

Подготовка участка к бетонированию. До начала работы бетоноукладчика ДС-111 перед ним вручную бетонируют плиту шириной 7,5 м и длиной 2 - 3 м. Распределенную смесь уплотняют глубинными вибраторами и выравнивают поверхность покрытия. При снятой опалубке впереди забетонированного участка насыпают достаточное количество бетонной смеси, чтобы перед шнеком и качающимися брусьями бетоноукладчика образовался валик из смеси.

Пуск бетоноукладчика. Для пуска бетоноукладчика приподнимают его боковые формы кромкообразователя и вибраторы, включают передний ход агрегата. После прохода участка ручной укладки смеси под поднятыми вибраторами опускают боковые формы и кромкообразователи в нужное положение, которое корректируется при окончательной наладке рабочих органов.

До окончания полной наладки бетоноукладчика он должен двигаться на низкой скорости.

Укладка бетонной смеси бетоноукладчиком ДС-111. После завершения окончательной наладки машины бетоноукладчик машинистом-оператором переводится на работу в автоматизированном режиме со скоростью перемещения 2 м/мин. Машинист легко управляет всеми операциями, выполняемыми машиной. Контроль за всеми технологическими операциями осуществляется автоматически и вручную. Индикаторы уровня, хорошо видимые на платформе главной рамы, показывают машинисту относительное положение режущих, уплотняющих и профилирующих органов.

В процессе работы постоянно контролируется высота валика смеси перед качающимися отделочными брусьями: перед первичным брусом высота валика должна находиться в пределах 20 - 25 см, перед вторичным - 10 - 15 см.

В процессе работы бетоноукладчика необходимо своевременно убирать посторонние предметы, камни, строительный мусор как из-под движущихся гусениц, так и с выглаживаемой плиты, т.к. эти помехи приводят к образованию наплывов на поверхности бетонного покрытия.

Перечисленные работы выполняет бригада рабочих, состоящая из машиниста бетоноукладчика VI разряда, помощник машиниста - V разряда, бетонщиков - IV и III разряда по 2 человека и слесаря-ремонтника V разряда. Машинист, помощник машиниста и слесарь выполняют все работы, связанные с управлением, эксплуатацией и ремонтом бетоноукладчика. Бетонщики IV разряда исправляют дефектные места, осуществляют контроль за работой кромкообразователя и его регулировку, устанавливают по окончании работы бетоноукладчика рабочий шов по всей ширине покрытия. Два бетонщика III разряда с каждой стороны бетоноукладчика исправляют дефекты кромок, а в случае оплывания смеси на кромках покрытия устанавливают боковую опалубку и исправляют кромку фигурной металлической гладилкой.

Устройство рабочего шва. В конце смены (или при перерывах в бетонировании более 3 ч) устраивается рабочий шов в виде упорной доски на все поперечное сечение укладываемого покрытия. Упорная доска закрепляется штырями. Вдоль рабочего шва смесь дополнительно уплотняется трамбовкой. При необходимости смесь подсыпается на ширине полосой 50 см.

В начале смены доска убирается и свежая смесь укладывается впритык к затвердевшему бетону.

По окончании бетонирования бетоноукладчик ДС-111 переводят на ручное управление и отгоняют его вперед на расстояние 30 - 40 м, где выполняют его мойку, профилактический ремонт и подготовку к дальнейшей работе.

2.9. Для снижения уровня обезвоживания (высыхания) жесткой бетонной смеси через каждые 30 - 40 пог. м, пройденных бетоноукладчиком, производят прикатку поверхности основания легким самоходным комбинированным катком ДУ-97 за два прохода по одному следу.

2.10. Уплотнять «тощий» бетон следует самоходным вибрационным катком типа ДУ-84 (масса катка 14 т). Уплотнение производится на первых и заключительных проходах при выключенных вибраторах (2 прохода по одному следу), затем с вибрированием за 6 проходов по одному следу. Укатка производится от обочин к оси дороги с перекрытием следа на 1/3. Уплотненная смесь должна характеризоваться коэффициентом уплотнения не менее 0,98. При этом период времени от загрузки автомобиля-самосвала бетонной смесью до окончательного уплотнения не должен превышать 3 ч.

2.11. Наиболее эффективно уплотненное основание из «тощего» бетона перекрывать слоем асфальтобетонного покрытия сразу после завершения уплотнения. В этом случае уход за бетоном не требуется.

Если бетонное основание по производственным условиям сразу не перекрывается, то устройство покрытия производится для бетона класса В5 не ранее, чем через 2 недели.

Уход за бетонным основанием осуществляется путем нанесения на его поверхность пленкообразующих материалов типа помароль марок ПМ-86, ПМ-100А, ПМ-100АМ, лак-этиноль, битумные эмульсии, ВПМ (водоразбавляемый пленкообразующий материал) и т.д. Пленкообразующие материалы наносятся на поверхность «тощего» бетона сразу после завершения уплотнения бетона.

Расход пленкообразующих материалов должен быть не менее:

400 г/м2, при температуре воздуха ниже 25 °С;

600 г/м2, при температуре воздуха более 25 °С.

Пленкообразующие материалы поступают на стройку в готовом виде. Битумные эмульсии допускается приготавливать на базах.

Пленкообразующие материалы всех типов наносятся на поверхность бетона автогудронаторами. В настоящей технологической карте используется гудронатор СД-203.

2.12. Допускается уход за свежеуложенным бетоном посыпкой песка по его поверхности. Для этого поверхность бетона после окончания уплотнения укрывается влажной мешковиной или водонепроницаемыми материалами типа полиэтиленовой пленки. Через 12 ч влажная мешковина или пленка удаляется, и бетонное основание засыпается песком слоем 4 - 6 см. Песок первые 7 сут регулярно через 2 - 3 ч поливается распыленной струей воды из поливомоечной машины.

В основании из «тощего» бетона В5 (М 75) швы сжатия не устраиваются. При использовании «тощего» бетона более высоких марок швы сжатия устраивают только в свежеуложенном бетоне. Для этого применяются металлические Т-образные рейки специальной конструкции, обернутые полиэтиленовой пленкой, втапливаемые в уплотненную смесь катками, или деревянные бруски высотой 0,25Н основания, устанавливаемые при их надежном закреплении на подстилающий слой основания.

2.13. Технологическая последовательность процессов с расчетом объемов работ и потребных ресурсов приведена в табл. 1, состав отряда - в табл. 2. Технологический план потока по устройству основания из «тощего» бетона приведен на рис. 1. Технология операционного контроля качества работ при устройстве основания из «тощего» бетона приведена в табл. 3.


Рис. 1. Технологический план потока по устройству основания из «тощего» бетона М-75 для нежестких дорожных одежд с использованием бетоноукладчика ДС-111

Таблица 1

Технологическая последовательность процессов с расчетом объемов работ и потребных ресурсов

№ процессов

№ захваток

Источник обоснования норм выработки (ЕНиРы и расчеты)

Описание рабочих процессов в порядке их технологической последовательности с расчетом объемов работ

Единица измерения

Количество работ

Производительность в смену

Потребность в машино-сменах

Затраты труда и заработная плата на захватку длиной 550 м

норма времени, чел.-ч

заработная плата, руб.-коп.

на захватку l = 550 м

на 1 км

на захватку l = 550 м

на 1 км

на единицу измерения

на полный объем работ

на единицу измерения

на полный объем работ

1

2

3

4

5

6

7

8

9

10

11

12

13

14

1

I

Расчет

Разбивка створа нивелирных реек-колышков с двух сторон:

550 × 2 = 1100

пог. м

1100

2000

-

-

-

0,011

12,1

0-15,2

167-20

2

I

Расчет

Установка копирных струн с двух сторон:

550 × 2 = 1100

пог. м.

1100

2000

-

-

-

0,037

40,7

0-17,8

195-80

3

I

Расчет

Увлажнение подстилающего слоя основания поливомоечной машиной МД 433-03 при дальности возки 3 км в количестве 1 пог/м2 основания:

(7,5 × 550 × 1)/1000 = 4,13 м3

м3

4,13

7,5

68,0

0,06

0,11

0,079

0,33

1-47

6-07

4

I

Расчет

Транспортировка бетонной смеси автосамосвалом КамАЗ-55111 на расстояние 12 км:

550 × 7,5 × 0,2 × 1,03 = 850 м3

м3

850

1500

35,2

24,15

42,6

0,23

195,5

4-27

3629-50

5

I

Расчет

Очистка кузова автосамосвала КамАЗ-55111 от бетонной смеси вручную

чел.-ч

16

29,1

-

-

-

1

16

14-59

233-44

6

I

Расчет

Укладка бетонной смеси в основание бетоноукладчиком ДС-111: распределение, профилирование, откидка смеси от боковой скользящей опалубки вручную; укладка смеси вручную в начальной части основания; устройство рабочего шва в конце смены; исправление дефектов кромок основания вручную:

7,5 × 550 = 4125

м2

4125

7500

4800

0,86

1,56

0,012

49,5

0-22,6

932-25

8

I

Расчет

Подкатка слоя из «тощего» бетона легким самоходным катком ДУ-97 за 2 прохода по одному следу

м2

4125

7500

18180

0,23

0,41

0,00044

1,82

0-00,94

38-78

9

I

Расчет

Уплотнение бетонной смеси самоходным вибрационным катком ДУ-84 за 10 проходов по одному следу (3 - 7 проходы с включенным вибратором)

м2

4125

7500

4950

0,83

1,52

0,0016

6,6

0-03,4

140-25

10

I

Расчет

Уход за бетонным основанием нанесением пленкообразующего материала автогудронатором СД-203 за один проход

7,5 × 550 + 0,2 × 550 × 2 = 4345 м2

(0,6 × 4345 × 1)/1000 = 2,6 т

т

2,6

4,73

33,0

0,08

0,14

0,48

1,25

9-14

23-76

11

I

Расчет

Демонтаж копирных струн

пог. м

1100

2000

-

-

-

0,0069

7,59

0-08,7

95-70

Итого:

 

 

 

 

26,21

46,34

 

331,39

 

5462-75


Таблица 2

Состав отряда

Машины

Профессия и разряд рабочего

Потребность в машино-сменах

Потребность в машинах

Коэффициент загрузки

Количество рабочих

на 1000 м

на захватку

Поливомоечная машина МД 433-03

Машинист IV разряда

0,11

0,06

1

0,06

1

Автосамосвал КамАЗ-55111

Водитель IV разряда, рабочий II разряда

42,6

24,15

25

0,97

25

Бетоноукладчик ДС-111

Машинист VI разряда,

1,56

0,86

1

0,86

1

пом. машиниста V разряда,

1

бетонщик IV разряда,

2

бетонщик III разряда,

2

слесарь V разряда

1

Самоходный комбинированный каток ДУ-97

Машинист VI разряда

0,41

0,23

1

0,23

1

Самоходный вибрационный каток ДУ-84

Машинист VI разряда

1,52

0,83

1

0,83

1

Автогудронатор СД-203

Машинист V разряда,

0,14

0,08

1

0,08

1

пом. машиниста IV разряда

 

 

 

 

1

Итого

46,34

26,21

 

 

37

Таблица 3

Технология операционного контроля качества работ при устройстве основания из «тощего» бетона класса В5 (М 75) с использованием бетоноукладчика ДС-111 со скользящей опалубкой

Основные операции, подлежащие контролю

Состав контроля

Метод и средства контроля

Режим и объем контроля

Лицо, осуществляющее контроль

Предельные отклонения от норм контролируемых параметров

Где регистрируются результаты контроля

1

2

3

4

5

6

7

Установка копирных струн

Отметки нивелирных колышков; положение нивелирных колышков в плане, отметки копирных струн

Инструментальный

Нивелир, теодолит, стальная мерная рулетка

На каждом нивелирном колышке

Инженер-геодезист

Отклонение копирной струны от вертикальных отметок не должно превышать ±3 мм, проектные отметки в плане ±5 мм

Журнал геодезических работ

Бетонирование основания

Соблюдение технологических режимов бетонирования

Визуальный

Постоянно

Мастер

 

Общий журнал работ

 

Лабораторный

 

 

 

 

Жесткость бетонной смеси

В соответствии с ГОСТ 10181.1-00 (технический вискозиметр)

Не реже одного раза в смену

Лаборант

В пределах 60 - 80 с

Журнал контроля бетонных работ

Прочность при сжатии и на растяжение при изгибе

В соответствии с ГОСТ 10180-90 и ГОСТ 23558-94

Не реже одного раза в смену

Лаборант

Не менее проектного класса бетона

Журнал контроля бетонных работ

Морозостойкость бетона

В соответствии с ГОСТ 10060.1-95

При подборе состава и не реже одного раза в квартал

Инженер лаборатории

Снижение прочности бетона после испытания не более 5 %

Журнал контроля бетонных работ

Плотность уложенного бетона

Визуальный

Не менее 3 раз на участке в 1 км

Мастер

1. Щебенка под вальцом 10 - 13 т катка должна раздавливаться

Общий журнал работ

 

По всей длине участка

Мастер

2. Отсутствие следа и возникновения волн перед вальцом движущегося 10 - 13 т катка

Инструментальный

 

Лаборант

 

Ведомость степени уплотнения

1. Метод «лунки»

2. Прибор КП-120

Не менее 3 проб на участке в 1 км

Коэффициент уплотнения не менее 0,98

Ширина слоя, толщина слоя

Инструментальный

 

Мастер

 

Общий журнал работ

Измерительные рулетки, линейка

Не реже одного раза в смену

Отклонение по ширине ±5 см, по высоте ±15 мм

Высотные отметки по оси основания

Инструментальный

 

Геодезист

 

Журнал геодезических работ

Нивелир, рейки

Промеры не реже, чем через 100 м

Отклонение до ±50 мм от проектных значений высотных отметок

Поперечные уклоны

1. Нивелир, рейка

Промеры не реже, чем через 100 м

Геодезист

Отклонение от проектных значений в пределах ±0,010

Общий журнал работ

2. Трехметровая рейка, уклономер

-«-

Мастер

Ровность

Трехметровая рейка с клиновым промерником

Промеры на расстоянии 0,75 - 1 м от каждой кромки основания в пяти контрольных точках

Мастер

Величина просвета не должна превышать 5 мм

-«-

Уход за бетоном

Качество защитного пленочного покрытия

Визуальный

Нанесение 1 % раствора фенолфталеина или 10 % раствора соляной кислоты на участок покрытия 20 × 20 см

Не реже одного раза в смену

Мастер, лаборант

Покраснение или вспенивание поверхности основания не более 2 точек на 100 см2 поверхности пленки

Журнал ухода за бетоном

3. БЕЗОПАСНОСТЬ ТРУДА

К работе по устройству оснований из «тощего» бетона попускаются лица не моложе 18 лет, прошедшие предварительный медицинский осмотр, обученные по соответствующей программе, спавшие экзамены квалификационной комиссии и получившие удостоверения.

При работе бетоноукладочной машины необходимо соблюдать следующие требования: машину перевозить на специальном прицепе, при запуске необходимо соблюдать правила очередности включения трансмиссии и агрегатов, во время работы запрещается становиться на вибробрус и отделочный брус. Необходимо, чтобы на верхней площадке вибробруса не было бетонной смеси и посторонних предметов.

При производстве работ по устройству земляного полотна бульдозером руководствуются следующей технической литературой:

1. СНиП III-4-80. Техника безопасности в строительстве.

2. СНиП 12-03-2001. Безопасность труда в строительстве. Часть 1. Общие требования.

3. ТОИ Р-218-07-93. Типовая инструкция по охране труда для машиниста катка.

4. ТОИ Р-218-26-94. Типовая инструкция по охране труда для машиниста автополивомоечной машины.

5. Спельман Е.П. Техника безопасности при эксплуатации строительных машин и средств малой механизации. - М.: Стройиздат, 1986. - 271 с.: ил.

Технологическая карта № 13

УСТРОЙСТВО ЩЕБЕНОЧНОГО ПОКРЫТИЯ (ОСНОВАНИЯ) АВТОМОБИЛЬНЫХ ДОРОГ ПО СПОСОБУ ПРОПИТКИ БИТУМОМ

1. ОБЛАСТЬ ПРИМЕНЕНИЯ

1.1. Технологическая карта разработана на устройство щебеночного покрытия (основания) толщиной 20 см и шириной 9 м по способу пропитки вязким битумом на глубину 10 см с применением распределителя дорожно-строительных материалов ДС-54 (для основной фракции щебня) и ДС-49 (для последующих фракций щебня).

Для устройства покрытия (основания) толщиной 20 см применяют щебень фракции: 40 - 70 мм (основная), 20 - 40 мм, 10 - 20 мм и 5 - 10 мм.

Щебень должен удовлетворять требованиям ГОСТ 8267-93.

Битум должен удовлетворять требованиям ГОСТ 12801-98 и ГОСТ 22245-90.

1.2. Конструкция покрытия (основания) принята в соответствии с альбомом «Типовые строительные конструкции, изделия и узлы» серии 3.503-71/88 «Дорожные одежды для автомобильных дорог общего пользования». Выпуск 0. Материалы для проектирования».

1.3. При устройстве щебеночного покрытия по способу пропитки выполняют следующие работы: подвозку и распределение слоя щебня; уплотнение слоя щебня; розлив битума по поверхности слоя; распределение расклинивающей фракции щебня; уплотнение расклинивающей фракции щебня.

1.4. Работы по устройству щебеночного покрытия (основания) способом пропитки выполняют в сухую погоду при температуре воздуха не ниже +5 °С.

Уплотнение щебня основной фракции не рекомендуется проводить в случае продолжительных дождей или переувлажнения слоя щебня и земляного полотна.

1.5. Во всех случаях применения технологической карты необходима привязка ее к местным условиям работы с учетом наличия дорожно-строительных машин и механизмов, уточнения объемов работ и калькуляции затрат труда.

2. ОРГАНИЗАЦИЯ И ТЕХНОЛОГИЯ ПРОИЗВОДСТВА РАБОТ

2.1. Перед устройством щебеночного покрытия (основания) по способу пропитки необходимо:

·        обеспечить готовность земляного полотна (или нижележащего слоя дорожной одежды) в соответствии с требованиями действующих строительных норм и правил;

·        подготовить временные подъездные пути для доставки материалов к месту производства работ;

·        выполнить разбивочные работы, обеспечивающие соблюдение проектной толщины, ширины основания (покрытия) и поперечных уклонов;

·        обеспечить водоотвод.

2.2. Щебень доставляют на участок автосамосвалами в объеме, необходимом для устройства конструктивного слоя заданной толщины с учетом коэффициента запаса на уплотнение 1,25.

Битум подвозят к месту розлива автогудронатором, и к моменту распределения его доводят до требуемой температуры.

2.3. Работы по устройству щебеночного покрытия по способу пропитки (рис. 1) ведутся поточным методом на двух захватках длиной 200 м каждая (рис. 2).

Рис. 1. Конструкция дорожной одежды

2.4. На первой захватке выполняются следующие технологические операции:

·        доставка основной фракции щебня (40-70 мм) для устройства основания (покрытия) автомобилями-самосвалами КамАЗ 55118;

·        распределение щебня основной фракции универсальным распределителем ДС-54;

·        уплотнение слоя щебня фракции 40 - 70 мм.

При общей толщине щебеночного основания (покрытия) по способу пропитки 20 см слой из основной фракции щебня следует принимать с учетом коэффициента 0,9 к проектной толщине основания (покрытия) и увеличение объема щебеночной фракции в 1,25 раза на его уплотнение.

Щебень к месту укладки доставляют автосамосвалом КамАЗ-55118 и распределяют универсальным распределителем ДС-54.

Для обеспечения ровности кромок и заданной ширины покрытия (основания) устанавливают временные упоры в виде бордюров, брусьев и т.п. Высота упоров должна соответствовать толщине слоя.

Распределитель, оборудованный навесным рабочим органом щебнеукладчика, обеспечивает необходимую ровность укладываемого слоя и предварительное уплотнение щебня виброплитой. Перед началом работ заслонки бункера распределителя должны находиться над местом начала укладки щебня. Отвал распределителя устанавливают в рабочее положение с учетом толщины укладываемого слоя и коэффициента запаса на уплотнение (1,25).

При неподвижном положении распределителя автомобиль-самосвал заезжает на специальные трапы и выгружает щебень в приемный бункер. После разгрузки и съезда с трапов автосамосвала начинают распределение материала полосами шириной 3 м.

По мере движения распределителя щебень поступает к отвалу плужного типа, который распределяет его равномерно по всей ширине укладываемой полосы с обеспечением заданной толщины слоя. При выходе за пределы отвала щебень уплотняется виброплитами.


Рис. 2. Технологический план потока по устройству щебеночного слоя покрытия (толщиной 10 см) по способу пропитки вязким битумом


После распределения щебня по всей ширине основания его подготавливают к укатке. Исправляют, при необходимости, края уложенного слоя, тщательно выравнивают сопряжение полос покрытия (основания).

Ввиду того, что щебень предварительно уплотняется виброплитами щебнеукладчика, исключают подкатку легкими катками, а уплотнение щебня осуществляют тяжелыми катками с гладкими вальцами ДУ-98 массой 10,5 т.

Укатку щебня начинают от обочины к оси дороги с перекрытием предыдущего следа от катка на 1/3 его ширины за 5 проходов по одному следу. После двух - трех проходов катка устраняют места просадок, подсыпают щебень, разравнивают и оставляют под дальнейшее уплотнение.

В начале уплотнения, при создании необходимой жесткости щебеночного слоя за счет взаимозаклинивания щебня, скорость движения катка должна быть 1,5 - 2 км/ч, в конце уплотнения она может быть повышена до максимальной скорости (6,5 км/ч), при которой повышается производительность и не происходит перегрузка мотора.

Для обеспечения лучшей уплотняемости, щебень следует поливать при температуре воздуха выше 20 °С. Количество воды должно составлять 8 - 10 л/м2. В этом случае разливать битум следует только после просыхания щебня.

Признаком законченного уплотнения является отсутствие подвижности щебня, прекращение образования волны перед катком и отсутствие следа от катка. При этом должно происходить раздавливание щебенки, положенной на поверхность слоя (при недостаточном уплотнении она вдавливается в слой).

2.5. На второй захватке выполняются следующие технологические операции (табл. 1):

·        доставка щебня расклинивающих фракций автомобилем-самосвалом ЗИЛ-ММЗ-4508-03;

·        доставка и розлив вязкого битума автогудронатором СД-203;

·        распределение щебня расклинивающих фракций распределителем каменной мелочи;

·        уплотнение распределяемого слоя щебня тяжелыми катками.

После уплотнения основной фракции щебня приступают к пропитке покрытия (основания) битумом, распределению и уплотнению расклинивающих фракций щебня.

Щебень фракции 20 - 40 мм, 10 - 20 мм и 5 - 10 мм доставляют к месту укладки автосамосвалами ЗИЛ-ММЗ-4508-03. Объем каждой расклинивающей фракции щебня следует принимать равным 0,9 - 1,1 м3.

Розлив битума марки БНД 90/130, нагретого до температуры 150 °С, производят автогудронатором СД-203 по всей ширине основания (покрытия). Поверхность щебеночного слоя при этом должна быть чистой, без пыли и грязи. Расход битума следует принимать равным 1,0 - 1,1 л/м2 на каждый сантиметр толщины слоя пропитки и дополнительно 1,5 - 2,0 л/м2 для покрытия.

Немедленно после первого розлива битума по поверхности слоя основания (покрытия) распределяют первую расклинивающую фракцию щебня (20 - 40 мм). Распределение щебня осуществляют распределителем каменной мелочи ДС-49 полосами шириной по 3 м. После распределения щебня сразу приступают к его уплотнению тяжелыми гладковальцовыми катками ДУ-98 за 3 - 4 прохода по одному следу.


Таблица 1

Технологическая последовательность процессов с расчетом объемов работ и потребных ресурсов

№ процессов

№ захваток

Источник обоснования норм выработки (ЕНиРы и расчеты)

Описание рабочих процессов в порядке их технологической последовательности с расчетом объемов работ

Единица измерения

Количество работ

Производительность в смену

Потребность в машино-сменах

Затраты труда и заработная плата на захватку длиной 200 м

Норма времени, чел.-ч

Заработная плата, руб.-коп.

на захватку l = 200 м

на 1 км

на захватку l = 200 м

на 1 км

на единицу измерения

на полный объем работ

на единицу измерения

на полный объем работ

1

2

3

4

5

6

7

8

9

10

11

12

13

14

1

I

Расчет

Транспортировка щебня фракции 40 - 70 мм автосамосвалом КамАЗ-55118 на расстояние 10 км:

200·9·0,2·0,9·1,25·1,03 = 420

м3

420

2100

60,8

6,91

34,54

0,132

55,44

2-45

1029-00

2

I

Расчет

Укладка щебня фракции 40 - 70 мм самоходным распределителем щебня ДС-54 в одном слое

м3

2200

22000

320

6,88

68,75

0,025

55,0

0-54

1188-00

3

I

Расчет

Уплотнение щебеночного основания самоходным гладковальцовым вибрационным катком ДУ-98 за 5 проходов по одному следу

м2

1800

9000

4440

0,41

2,03

0,0018

3,24

0-03,9

70-20

4

II

Расчет

Первый розлив битума БНД 90/130 в количестве 5,75 л/м2 автогудронатором СД-203:

(1 × 9 × 200 × 5,75 × 1,03)/1000 = 10,7

т

10,7

53,5

35

0,31

1,53

0,46

4,92

8-76

93-73

5

II

Расчет

Транспортировка расклинивающего материала фракции 20 - 40 мм автосамосвалом ЗИЛ-ММЗ-4508-03 на расстояние 10 км:

(1,1 × 9 × 200 × 1,03)/100 = 20,4 м3

м3

20,4

102

40,6

0,5

2,51

0,2

4,08

3-11

63-44

6

II

Расчет

Распределение расклинивающего материала фракции 20 - 40 мм распределителем каменной мелочи ДС-49

м3

20,4

102

90

0,23

1,13

0,09

1,84

1-93

39-37

7

II

Расчет

Уплотнение щебеночного слоя с расклинивающим материалом фракции 20 - 40 мм самоходным гладковальцовым катком ДУ-98 за 4 прохода по одному следу:

9·200 = 1800 м2

м2

1800

9000

5330

0,34

1,69

0,0015

2,7

0-03,2

57-60

8

II

Расчет

Второй розлив битума БНД 90/130 в количестве 3,45 л/м2 автогудронатором СД-203:

(1 × 9 × 200 × 3,45 × 1,03)/1000 = 6,4

т

6,4

32

35

0,18

0,91

0,46

2,94

8-76

56-06

9

II

Расчет

Транспортировка расклинивающего материала фракции 10-20 мм автосамосвалом ЗИЛ-ММЗ-4508-03 на расстояние 10 км:

(1,1 × 9 × 200 × 1,03)/100 = 20,4

м3

20,4

102

40,6

0,5

2,51

0,2

4,08

3-11

63-44

10

II

Расчет

Распределение расклинивающего материала фракции 10 - 20 мм распределителем каменной мелочи ДС-49

м3

20,4

102

90

0,23

1,13

0,09

1,84

1-93

39-37

11

II

Расчет

Уплотнение щебеночного слоя с расклинивающим материалом фракции 10 - 20 мм самоходным гладковальцовым катком ДУ-98 за 4 прохода по одному следу

м2

1800

9000

5330

0,34

1,69

0,0015

2,7

0-03,2

57-60

12

II

Расчет

Третий розлив битума БНД 90/130 в количестве 2,3 л/м2 автогудронатором СД-203:

(1 × 2,3 × 9 × 200 × 1,03)/1000 = 4,3 т

т

4,3

21,5

35

0,12

0,61

0,46

1,98

8-76

37-67

13

II

Расчет

Транспортировка клинца фракции 5 - 10 мм автосамосвалом ЗИЛ-ММЗ-4508-03 на расстояние 10 км:

(1,0 × 9 × 200 × 1,03)/100 = 18,5

м3

18,5

92,5

40,6

0,46

2,28

0,2

3,7

3-11

57-54

14

II

Расчет

Распределение клинца фракции 5 - 10 мм распределителем каменной мелочи ДС-49

м3

18,5

92,5

90

0,21

1,03

0,09

1,67

1-93

35-71

15

II

Расчет

Разметание клинца фракции 5 - 10 мм технической щеткой поливомоечной машины МД 433-03

м2

1800

9000

15000

0,12

0,6

0,00053

0,95

0-01

18-00

16

II

Расчет

Уплотнение клинца фракции 5 - 10 мм самоходным гладковальцовым катком ДУ-98 за 3 прохода по одному следу

м2

1800

9000

7270

0,25

1,24

0,0011

1,98

0-02,4

43-20

 

 

 

Итого для покрытия

 

 

 

 

11,80

58,88

 

99,6

 

1880-79

 

 

 

Итого для основания

 

 

 

 

10,64

51,4

 

89,32

 

1689-27


Закончив уплотнение первой заклинивающей фракции щебня 20 - 40 мм, последовательно производят второй и третий розлив битума и распределение с уплотнением последующих расклинивающих фракций щебня (10 - 20 мм и 5 - 10 мм). Технология Распределения и уплотнения каждой из двух последних расклинивающих фракций с предварительным розливом битума аналогична вышеизложенной для первой фракции. Причем перед уплотнением последней расклинивающей фракции щебня размером 5 - 10 мм необходимо произвести разметание ее автомобильной щеткой, смонтированной на поливомоечной машине.

Розлив битума производят по следующей схеме: 50 % вяжущего от общего расхода разливают перед распределением первой расклинивающей фракции щебня; 30 % вяжущего - перед второй расклинцовкой и 20 % вяжущего - перед третьей расклинцовкой.

Признаком завершения уплотнения слоя покрытия (основания) являются те же показатели, что и для уплотнения слоя из основной фракции щебня.

2.6. После устройства слоя покрытия (основания) по способу пропитки вязким битумом необходимо регулировать движение транспорта по всей его ширине в течение 10 дней. Это обеспечивает успешное формирование ровного покрытия и дополнительную подкатку слоя. Причем движение построечного транспорта разрешается только после окончания укатки последней, наиболее мелкой фракции.

2.7. Качество покрытия (основания) из щебня, устроенного по способу пропитки, должно соответствовать требованиям СНиП 3.06.03.85 «Автомобильные дороги». Работы по устройству покрытия (основания) по способу пропитки следует выполнять в соответствии с картой операционного контроля качества (табл. 3).

Таблица 2

Состав отряда

Машины

Профессия и разряд рабочего

Потребность в машино-сменах

Потребность в машинах

Коэффициент загрузки

Количество рабочих

на захватку

на 1000 м

покрытие

основание

покрытие

основание

покрытие

основание

покрытие

основание

покрытие

основание

Самосвал КамАЗ-55118

Машинист V разряда

6,91

6,91

34,54

34,54

7

7

0,99

0,99

7

7

Самосвал ЗИЛ-ММЗ-4508-03

Машинист V разряда

1,46

1,0

7,3

5,02

2

1

0,73

1,0

2

1

Универсальный распределитель ДС-54

Машинист VI разряда

0,69

0,69

3,45

3,45

1

1

0,69

0,69

1

1

Автогудронатор СД-203

Машинист V разряда

Помощник машиниста VI разряда

0,61

0,49

3,05

2,44

1

1

0,61

0,49

2

2

Распределитель каменной мелочи ДС-49

Машинист VI разряда

0,67

0,46

3,29

2,26

1

1

0,67

0,46

1

I

Самоходный гладковальцовый вибрационный каток ДУ-98

Машинист VI разряда

1,34

1,09

6,65

3,69

2

1

0,67

1,0

2

1

Поливомоечная машина МД-433-03

Машинист VI разряда

0,12

 

0,6

 

1

-

0,12

-

1

-

 

Итого

11,80

10,64

58,88

51,4

15

12

 

 

16

13

Таблица 3

Технология операционного контроля качества работ при устройстве щебеночного покрытия (основания) по способу пропитки вязким битумом

Основные операции, подлежащие контролю

Состав контроля

Метод и средства контроля

Режим и объем контроля

Лицо, осуществляющее контроль

Предельные отклонения от норм контролируемых параметров

Где регистрируются результаты контроля

1

2

3

4

5

6

7

Распределение основной фракции 40 - 70 мм

Толщина снимаемого слоя грунта

Инструментальный

Измерительная линейка, визирка, рулетка

Не реже одного раза за смену

Мастер

Отклонение по ширине ±10 см, по высоте ±15 см

Общий журнал работ

Высотные отметки по оси основания

Нивелир, рейка

Промеры не реже, чем через 100 м

Геодезист

Отклонение до ±50 мм от проектных значений высотных отметок

Журнал технического нивелирования

Розлив вязкого битума

Температура органического вяжущего

Инструментальный

Термометр до 200 °С

При каждом розливе

Лаборант

В пределах допустимых температур для каждой марки битума

Лабораторный журнал

Расход вяжущего

Объемный метод

-

Бригадир

±5 % от установленного расхода

-

Распределение расклинивающих фракций щебня

Равномерное распределение материала

Визуальный

Постоянный

Мастер

-

Общий журнал работ

Послойное уплотнение основания

Плотность основания

Визуальный

По всей длине контролируемого участка

Мастер

Отсутствие волн перед вальцом и следа на поверхности основания

Раздавливание зерна щебня

Общий журнал работ

Поперечный профиль и ровность поверхности

Высотные отметки по оси основания

Инструментальный

Нивелир, рейка

Промеры не реже, чем через 100 м

Геодезист

Отклонение до ±50 мм от проектных значений высотных отметок

Журнал технического нивелирования

Поперечные уклоны

Трехметровая рейка, уклономер

Промеры не реже, чем через 100 м

Мастер

Отклонение от промерных значений в пределах ±0,010

Журнал общих работ

Ровность

Трехметровая рейка с клиновым промерником

Промеры не реже, чем через 100 м на расстоянии 0,75 - 1 м от каждой кромки основания в пяти контрольных точках

Мастер

Для дорог III категории просветы не должны превышать 7 мм, для дорог IV категории - 10 мм

Журнал общих работ

3. БЕЗОПАСНОСТЬ ТРУДА

К использованию допускаются машины в работоспособном состоянии.

Перечень неисправностей, при котором запрещается эксплуатация машин, определяется эксплуатационной документацией.

Использовать машины можно только в том случае, если температура окружающего воздуха соответствует указанной в эксплуатационной документации на машину.

До начала работы необходимо определить рабочую зону машины, границы опасной зоны, средства связи машиниста с рабочими, обслуживающими машину, и машинистами других машин.

При использовании машин должна быть обеспечена обзорность рабочей зоны с рабочего места машиниста.

Рабочая зона машины в темное время суток должна быть освещена.

При работе распределителя каменных материалов запрещается затягивать болты на включенных вибраторах; удалять ограждения и настилы и работать без них, выполнять ремонт и регулировку электроаппаратуры при работающем генераторе; держать включенным вибратор, если вибробрус не лежит на основании.

Подъем и опускание передней плиты бункера распределителя материалов следует производить только механизмом подъема, находиться при этом внутри бункера запрещается. Сборку, разборку и ремонт отдельных деталей установки можно производить после поднятия и установки их на опорные козлы.

Подавать автомобиль-самосвал с каменными материалами задним ходом для загрузки бункера укладчика или распределителя мелкого щебня разрешается только после подачи сигнала машинистом укладчика или мастером. Во время работы укладчика или распределителя рабочим запрещается находиться в бункере машины или кузове автомобиля-самосвала.

При работе укладчика и распределителя на насыпях запрещается подъезжать более чем на 1 м к бровке насыпи. Запрещается очищать бункер во время работы.

Запрещается во время работы машины регулировать толщину распределяемого или укладываемого слоя, а также регулировать виброплиты, поправлять или менять ремни вибраторов.

При производстве работ по устройству земляного полотна бульдозером руководствуются следующей технической литературой:

1. СНиП III-4-80. Техника безопасности в строительстве.

2. СНиП 12-03-2001. Безопасность труда в строительстве. Часть 1. Общие требования.

3. ТОИ Р-218-07-93. Типовая инструкция по охране труда для машиниста катка.

4. ТОИ Р-218-26-94. Типовая инструкция по охране труда для машиниста автополивомоечной машины.

5. Спельман Е.П. Техника безопасности при эксплуатации строительных машин и средств малой механизации. - М.: Стройиздат, 1986. - 271 с.: ил.

Технологическая карта № 14

УСТРОЙСТВО ВЕРХНЕГО СЛОЯ ОСНОВАНИЯ ДОРОЖНЫХ ОДЕЖД ИЗ ГРАВИЙНОЙ СМЕСИ ПО СПОСОБУ СМЕШЕНИЯ НА ДОРОГЕ

1. ОБЛАСТЬ ПРИМЕНЕНИЯ

Технологическая карта разработана на основе методов научной организации труда и предназначена для использования при составлении проектов производства работ и организации труда на строительном объекте.

Технологическая карта составлена на строительство оснований (покрытий) из гравийных смесей, обработанных органическими вяжущими.

По составу гравийная смесь должна быть оптимального состава. Если смеси не удовлетворяют требованиям, представленным к зерновому составу, то их необходимо обогащать путем добавления недостающих фракций.

Свойства гравийного материала, входящего в состав смесей, должны удовлетворять требованиям ГОСТ 25607-94 «Смеси щебеночно-гравийно-песчаные для покрытия и оснований автомобильных дорог и аэродромов»; ГОСТ 8267-93 «Щебень и гравий из плотных горных пород для строительных работ».

В качестве органических вяжущих применяют жидкие битумы марок МГ 70/130 и СТ 70/130; дорожные битумные эмульсии марок ЭБК-2; ЭБК-3 ГОСТ 18659-81 «Эмульсии битумные дорожные».

Способ смешения на дороге обеспечивает в отличие от пропитки лучшее перемешивание минерального материала с вяжущим, допускает применение более простого оборудования и местного (чаще всего гравийного) минерального материала.

Смешение на дороге автогрейдером выполняют для устройства покрытий на автомобильных дорогах IV категории, а также верхних слоев оснований на дорогах III - IV категорий.

Слои дорожной одежды, построенные способом смешения на дороге, имеют толщину 8 - 10 см. При большей толщине смешение делают в два приема.

Во всех случаях применения технологической карты необходима привязка ее к конкретным условиям.

2. ОРГАНИЗАЦИЯ И ТЕХНОЛОГИЯ ПРОИЗВОДСТВА РАБОТ

2.1. До начала работ по устройству основания (покрытия) должны быть выполнены все предшествующие работы по устройству земляного полотна, подстилающих слоев и водоотвода.

2.2. Работы по устройству гравийного основания (покрытия), обработанного битумной эмульсией способом смешения на дороге, ведутся в разработанной технологической последовательности процессов производства работ на двух захватках длиной 150 м (табл. 1).

В технологической карте предусмотрен вариант приготовления оптимальной гравийной смеси непосредственно на дороге обогащением основного материала путем добавления недостающих фракций.

В перечне рабочих операций учтены работы по устройству присыпных обочин.

Основные объемы работ для устройства гравийного основания (покрытия), обработанного битумной эмульсией по способу смешения на дороге, рассчитаны для конструктивного поперечника, представленного на рис. 1.

2.3. Очистка нижнего слоя основания от пыли и грязи поливомоечной машиной МД-433-03 предусмотрена за 2 прохода по одному следу.

2.4. Гравийную неоптимальную смесь выводят на основание и выгружают вдоль оси дороги.

Расстояние между центрами куч определяют расчетом:

                                                                 (2.1)

где q - грузоподъемность автомобиля-самосвала, т;

B  - ширина (или средняя линия) полосы рассыпаемого материала, м;

h   - толщина слоя, м;

ρ   - плотность материала, т/м3.

Затем выводят добавки (недостающие фракции) и выгружают их в отдельный параллельный валик. Расстояние между центрами куч рассчитывают по формуле (2.1).

2.5. Приготовление оптимальной гравийной смеси непосредственно на дорожном полотне производится автогрейдером за 6 проходов по одному следу.

2.6. При перемешивании однородной смеси с битумной эмульсией минеральный материал разравнивают на ширину, примерно на 1 м меньшую ширины основания (покрытия).

Вяжущее разливают автогудронатором в несколько приемов. Расход вяжущего за один розлив 1,5 - 2,0 л/м2.

После каждого розлива выполняют предварительное перемешивание гравийного материала с органическим вяжущим за 5 - 6 круговых проходов автогрейдера, который собирает материал в вал, затем разравнивает его.

При последнем розливе расход вяжущего составляет 1 - 1,5 л/м2. Вяжущее разливают выборочно для исправления мест с «сухой» смесью.

Окончательное перемешивание выполняют автогрейдером за 20 - 25 круговых проходов.

Общее число проходов автогрейдера при устройстве гравийного основания (покрытия), укрепленного битумной эмульсией смешением на дороге, составляет 40 - 50, а в отдельных случаях - 70 круговых проходов.

2.7. Приготовленную смесь разравнивают и профилируют автогрейдером по всей ширине основания (покрытия) за 5 - 7 круговых проходов по одному следу.

2.8. Работы по устройству присыпных обочин выполняют в общем технологическом потоке вслед за разравниванием и профилированием приготовленной смеси (захватка II, № процессов 14 - 17, рис. 1) в следующей последовательности:

·        надвижка грунта с откосов насыпи на обочины бульдозером (насыпи, как правило, отсыпают с запасом грунта на откосах с целью его дальнейшего использования при досыпке обочин);

·        разравнивание и планировка грунта обочин автогрейдером за 4 прохода по одному следу в двух направлениях;

·        уплотнение грунта обочин самоходным катком на пневматических шинах типа ДУ-101.

Рис. 1. Конструкция слоя основания (покрытия) с присыпными обочинами в поперечном профиле

Грунт уплотняют за 8 - 10 проходов катка по одному следу. Первые проходы начинают от кромки проезжей части, затем последующими проходами, смещаясь за каждый проход на 1/3 ширины вальца, уплотняют обочины, не доходя 0,3 - 0,5 м до откоса. После этого уплотнение грунта обочины продолжают с перемещением от бровки земляного полотна к проезжей части.

При первых двух - трех проходах катка скорость движения составляет 2 - 3 км/ч, при последующих проходах скорость увеличивают до 5 км/ч.


Таблица 1

Технологическая последовательность процессов с расчетом объемов работ и потребных ресурсов

№ процессов

№ захваток

Источник обоснования норм выработки (ЕНиРы и расчеты)

Описание рабочих процессов в порядке их технологической последовательности с расчетом объемов работ

Единица измерения

Количество работ

Производительность в смену

Потребность в машино-сменах

Затраты труда и заработная плата на захватку длиной 150 м

Норма времени, чел.-ч

Заработная плата, руб.-коп.

на захватку l = 150 м

на 1 км

на захватку l = 150 м

на 1 км

на единицу измерения

на полный объем работ

на единицу измерения

на полный объем работ

1

2

3

4

5

6

7

8

9

10

11

12

13

14

1

I

Расчет

Очистка поверхности нижнего слоя основания от пыли и грязи поливомоечной машиной МД-433-03

км

0,15

1

2

0,075

0,5

4

0,6

74-24

11-14

2

I

Расчет

Подвозка автосамосвалами КамАЗ 6520 первой части гравийной смеси с выгрузкой в вал вдоль оси дороги

м3

140,6

937,3

69

2

13,6

0,12

16,3

2-11

296-67

3

I

Расчет

Подвозка автосамосвалами КамАЗ 6520 второй части гравийной смеси (добавки) с выгрузкой в параллельный вал

м3

35,1

234,3

69

0,5

3,4

0,12

4,1

2-11

74-06

4

I

Расчет

Перемешивание материалов автогрейдером ДЗ-122 за 6 круговых проходов по одному следу

м2

1365

9100

11430

0,12

0,8

0,0007

0,96

0-02

27-30

5

II

Расчет

Подвозка битумной эмульсии автогудронатором ДС-142Б и введение первой порции вяжущего в смесь из расчета 2,5 л на 1 м2

т

3,4

22,8

42,1

0,08

0,54

0,19

0,65

7-17

24-38

6

II

Расчет

Предварительное перемешивание мин. смеси с вяжущим автогрейдером ДЗ-122 за 6 круговых проходов по одному следу

м2

1365

9100

11430

0,12

0,8

0,0007

0,96

0-02

27-30

7

II

Расчет

Подвозка битумной эмульсии автогудронатором ДС-142Б и введение второй порции вяжущего в смесь из расчета 2,5 л на 1 м2

т

3,4

22,8

42,1

0,08

0,54

0,19

0,65

7-17

24-38

8

II

Расчет

Предварительное перемешивание мин. смеси с вяжущим автогрейдером ДЗ-122 за 6 круговых проходов по одному следу

м

1365

9100

11430

0,12

0,8

0,0007

0,96

0-02

27-30

9

II

Расчет

Подвозка битумной эмульсии автогудронатором ДС-142Б и введение третьей порции вяжущего в смесь из расчета 2,5 л на 1 м2

т

3,4

22,8

42,1

0,08

0,54

0,19

0,65

7-17

24-38

10

II

Расчет

Предварительное перемешивание мин. смеси с вяжущим автогрейдером ДЗ-122 за 6 круговых проходов по одному следу

м2

1365

9100

11430

0,12

0,8

0,0007

0,96

0-02

27-30

11

II

Расчет

Подвозка битумной эмульсии автогудронатором ДС-142Б и введение четвертой порции вяжущего в смесь из расчета 2,1 л на 1 м2

т

2,9

19,1

42,1

0,07

0,46

0,19

0,55

7-35

21-32

12

II

Расчет

Окончательное перемешивание мин. смеси с вяжущим автогрейдером ДЗ-122 за 20 круговых проходов по одному следу

м2

1365

9100

2580

0,53

3-53

0,003

4,23

0-07

95-55

13

II

Расчет

Разравнивание и профилирование приготовленной смеси автогрейдером ДЗ-122 по всей ширине основания за 5 круговых проходов по одному следу

м2

1365

9100

11430

0,12

0,8

0,0007

0,96

0-02

27-30

14

II

Расчет

Надвижка грунта на обочины бульдозером ДЗ-171

м3

120,7

804,4

1950

0,06

0,41

0,004

0,5

0-09

10-86

15

II

Расчет

Разравнивание грунта на обочинах автогрейдером ДЗ-122 за 4 прохода по одному следу

км

0,3

2

6,7

0,04

0,3

1,19

0,36

22-89

6-87

16

II

Расчет

Увлажнение грунта на обочинах поливомоечной машиной МД-433-03 до оптимальной влажности при дальности возки 3 км в количестве 3 % от массы грунта

т

5,5

36,6

68

0,08

0,54

0,12

0,64

2-16

11-88

17

II

Расчет

Уплотнение грунта на обочинах самоходным катком на пневматических шинах ДУ-101 за 8 проходов по одному следу

м3

117,2

781

1025

0,11

0,76

0,0078

0,91

0-16

18-75

18

II

Расчет

Уплотнение органоминеральной смеси самоходным катком гладкими вальцами ДУ-96 за 5 проходов по одному следу

м2

1350

9000

3200

0,42

2,8

0,0025

3,38

0-05

67-50

Рис. 2. Технологический план потока по устройству верхнего слоя основания (толщиной 10 см) из гравийной смеси по способу смешения на дороге


2.9. Уплотнение слоя основания (покрытия) из гравийных смесей, обработанных органическими вяжущими материалами смешением на дороге, выполняют самоходными катками на пневматических шинах или катками с гладкими металлическими вальцами массой 6 - 10 т за 3 - 5 проходов по одному следу.

Уплотнение ведут от краев к середине с перекрытием предыдущего следа на 1/3 ширины вальца катка.

Во избежание прилипания органоминеральной смеси вальцы катков автоматически смачиваются водой.

Окончательное уплотнение и формирование построенного слоя происходят под воздействием колес автомобилей.

В течение 15 - 20 сут осуществляют уход за построенным покрытием при уплотнении катками с металлическими вальцами; в течение 5 - 10 сут - при уплотнении катками на пневматических шинах.

2.10. По окончании формирования слоя на покрытии необходимо устроить поверхностную обработку.

Если построенное основание оставляют без покрытия до следующего строительного сезона, по нему устраивают поверхностную обработку.

Технологическая последовательность процессов с расчетом объемов работ и потребных ресурсов приведена в табл. 1, 2.

Технологический план потока по устройству верхнего слоя основания из гравийной смеси по способу смешения на дороге представлен на рис. 2.

Технология операционного контроля качества работ приведена в табл. 3.

Таблица 2

Состав отряда

Машины

Профессия и разряд рабочего

Потребность в машино-сменах

Потребность в машинах

Коэффициент загрузки

Количество рабочих

Примечание

на захватку 150 м

на 1000 м2

Поливомоечная машина МД-433-03

Машинист IV разряда

0,153

1,03

1

0,155

1

 

Автосамосвал КамАЗ-6520

Водитель

2,5

17

3

0,83

3

 

Автогрейдер ДЗ-122

Машинист VI разряда

1,17

7,8

2

0,59

2

 

Автогудронатор ДС-142Б

Машинист V разряда, IV разряда

0,31

2,1

1

0,31

2

 

Бульдозер ДЗ-171

Водитель VI разряда

0,06

0,4

1

0,06

1

 

Каток ДУ-101

Машинист VI разряда

0,11

0,76

1

0,11

1

 

Каток ДУ-96

Машинист V разряда

0,42

2,8

1

0,42

1

 

 

 

Итого

 

10

 

11

 

Таблица 3

Технология операционного контроля качества работ при устройстве верхнего слоя основания дорожных одежд по способу смешения на дороге

Основные операции, подлежащие контролю

Состав контроля

Метод и средства контроля

Режим и объем контроля

Лицо, осуществляющее контроль

Предельные отклонения от норм контролируемых параметров

Где регистрируются результаты контроля

1

2

3

4

5

6

7

Качество минерального материала

Влажность минерального материала

Лабораторный

В соответствии с ГОСТ 8269.0-97

Не реже одного раза за смену

Лаборант

Не более 3 % от массы щебня

Журнал лабораторных работ

Распределение щебня

Ширина слоя, толщина слоя

Инструментальный

Измерительная линейка, рулетка, визирка

Не реже, чем через каждые 100 м

Мастер

Отклонение

по ширине ±10 см,

по толщине ±15 мм

Общий журнал работ

Уплотнение щебеночного основания

Плотность щебеночного Основания

Визуальный

Контрольный проход катка массой 10 - 13 т

По всей длине контролируемого участка

Мастер

Отсутствие волн перед вальцом

Общий журнал работ

Отметки по оси основания

Поперечные уклоны

Инструментальный

Нивелир

Промеры не реже, чем через 100 м

Геодезист

Отклонение до ±50 мм от проектных значений высотных отметок

Журнал технического нивелирования

Поперечный профиль и ровность поверхности основания

Поперечные уклоны

Инструментальный

1. Нивелир, нивелирная рейка

2. Трехметровая рейка

Промеры не реже, чем через 100 м

Геодезист, мастер

Отклонение от проектных значений в пределах ±0,010

Журнал технического нивелирования или общий журнал работ

Ровность

1. Трехметровая рейка с клиновым промерником

Промеры не реже, чем через 100 м (на расстоянии 0,75 - 1 м от каждой кромки основания в пяти контрольных точках)

Геодезист, мастер

Просветы не должны превышать 7 мм

3. БЕЗОПАСНОСТЬ ТРУДА

При профилировании основания необходимо руководствоваться схемой профилирования, которая включает в себя детальную разработку каждого прохода автогрейдера.

Одновременная работа двух или нескольких автогрейдеров, идущих друг за другом, допускается при соблюдении между ними расстояния не менее 20 м.

При развороте автогрейдера в конце профилируемого участка, а также на крутых поворотах дороги движение их должно осуществляться на минимальной скорости.

При работе в ночное время у автогрейдера включается освещение, обеспечивающее хорошую видимость фронта работы и рабочих органов.

При осмотре автогрейдера двигатель должен быть заглушен, а рабочий орган опущен на грунт.

При производстве работ по устройству земляного полотна бульдозером руководствуются следующей технической литературой:

1. СНиП III-4-80. Техника безопасности в строительстве.

2. СНиП 12-03-2001. Безопасность труда в строительстве. Часть 1. Общие требования.

3. ТОИ Р-218-05-93. Типовая инструкция по охране труда для машиниста автогрейдера.

4. ТОИ Р-218-07-93. Типовая инструкция по охране труда для машиниста катка.

5. ТОИ Р-218-26-94. Типовая инструкция по охране труда для машиниста автополивомоечной машины.

6. ТОИ Р-218-06-93. Типовая инструкция по охране труда для машиниста бульдозера.

7. Спельман Е.П. Техника безопасности при эксплуатации строительных машин и средств малой механизации. - М.: Стройиздат, 1986. - 271 с.: ил.

Технологическая карта № 15

СТРОИТЕЛЬСТВО ДВУХСЛОЙНЫХ АСФАЛЬТОБЕТОННЫХ ПОКРЫТИЙ АВТОМОБИЛЬНЫХ ДОРОГ

1. ОБЛАСТЬ ПРИМЕНЕНИЯ

Технологическая карта разработана на основе методов научной организации труда и предназначена для использования при разработке проектов производства работ и организации труда на строительном объекте.

Технологическая карта составлена на строительство двухслойного асфальтобетонного покрытия шириной 7,5 м с укрепительными (краевыми) полосами по 0,75 м из горячих смесей, отвечающих требованиям ГОСТ 9128-97 «Смеси асфальтобетонные, дорожные, аэродромные и асфальтобетон. Технические условия».

Для устройства верхнего слоя покрытия следует применять плотный, а для нижнего слоя - пористый асфальтобетон, обладающий шероховатой поверхностью, обеспечивающей сцепление его с верхним слоем.

Верхний слой асфальтобетонного покрытия принят 6 см, нижний - 7 см в соответствии с Типовыми проектными решениями серии 503-0-11 «Дорожные одежды автомобильных дорог общей сети».

В технологической карте принят механизированный способ выполнения работ с применением асфальтоукладчика ДС-181, автомобилей-самосвалов КамАЗ-55118 и гладковальцовых катков.

Покрытия из горячих асфальтобетонных смесей устраивают в сухую погоду весной и летом при температуре воздуха не ниже 5 °С, осенью - при температуре воздуха не ниже 10 °С.

Во всех случаях применения технологической карты необходима привязка ее к конкретным условиям производства работ.

2. ОРГАНИЗАЦИЯ И ТЕХНОЛОГИЯ ПРОИЗВОДСТВА РАБОТ

2.1. До начала работ по строительству асфальтобетонного покрытия должно быть полностью закончено строительство дорожного основания и принято представителями технического надзора органа управления.

2.2. Работы по строительству двухслойного асфальтобетонного покрытия в данной технологической карте ведутся поточным способом по разработанной технологической последовательности производства работ на двух захватках по 250 м. Длина захватки рассчитана с учетом сменной производительности асфальтобетонного завода (АБЗ) не менее 700 т.

2.3. При другой производительности АБЗ длину сменной захватки при строительстве асфальтобетонного покрытия определяют по формуле

l = Q/B·h·ρ,

где Q     - производительность АБЗ, т/смену;

B  - ширина покрытия с учетом ширины краевых полос, м;

h   - толщина покрытия, м;

ρ   - плотность асфальтобетона, т/м3.

2.4. На первой захватке выполняют следующие технологические операции:

·        очистку основания от пыли и грязи;

·        розлив битумной эмульсии (подгрунтовка основания).

2.4.1. Поверхность верхнего слоя основания до укладки асфальтобетонной смеси должна быть очищена от пыли и грязи за два прохода по одному следу поливомоечной машины типа МД-433-03.

2.4.2. Чистое и сухое основание подгрунтовывают битумной эмульсией или жидким битумом, которые распределяют автогудронатором ДС-39Б.

Норма расхода материалов устанавливается по табл. 1.

Жидкий битум распределяют за сутки до укладки нижнего покрытия; битумную эмульсию не менее чем за 4 ч. Этого времени достаточно для полного испарения разжижителя битума или воды после распада битумной эмульсии.

Таблица 1

Материал для розлива

Норма розлива, л2, при обработке

Основания из материалов, не обработанных органическими вяжущими

Основания из материалов, обработанных органическими вяжущими и асфальтобетонных покрытий

Битумная эмульсия 60-процентная

0,6 - 0,9

0,3 - 0,4

Жидкий битум СГ-70/130

0,5 - 0,8

0,2 - 0,3

Подгрунтовку основания, построенного с применением органических вяжущих, можно исключить, если интервал времени между его устройством и укладкой нижнего слоя покрытия составляет не более 2 сут и отсутствовало движение построечного транспорта.

2.5. На второй захватке выполняют основные технологические операции по устройству двухслойного асфальтобетонного покрытия в следующей последовательности:

·        подвозка горячей крупнозернистой асфальтобетонной смеси для нижнего слоя покрытия автомобилями-самосвалами;

·        выгрузка смеси в бункер асфальтоукладчика;

·        распределение смеси асфальтоукладчиком;

·        уплотнение нижнего слоя покрытия;

·        подвозка горячей мелкозернистой асфальтобетонной смеси для верхнего слоя покрытия автомобилями-самосвалами;

·        выгрузка смеси в бункер асфальтоукладчика;

·        распределение смеси асфальтоукладчиком;

·        уплотнение верхнего слоя покрытия.

2.5.1. Транспортировку асфальтобетонной смеси производят автомобилями-самосвалами КамАЗ-55118.

Продолжительность транспортирования горячих асфальтобетонных смесей должна устанавливаться из условия обеспечения их минимальной температурой при укладке и уплотнении, указанной в табл. 14 СНиП 3.06.03-85 «Автомобильные дороги». Асфальтобетонная смесь, имеющая температуру выше или ниже указанного в СНиП интервала, должна быть забракована и возвращена на АБЗ.

Во избежание остывания смеси при транспортировании в прохладную погоду кузовы автомобилей-самосвалов следует оборудовать двойными стенками для обогрева отходящими газами и закрывать непромокаемым пологом.

Края полога должны накрывать борта кузова и укрепляться на деревянной раме.

2.5.2. При выгрузке смеси в бункер асфальтоукладчика автомобиль-самосвал должен останавливаться в непосредственной близости перед асфальтоукладчиком, не отталкивая его назад.

В контакт с автомобилем-самосвалом должен входить асфальтоукладчик. Автомобиль-самосвал не должен оказывать давление на приемный бункер асфальтоукладчика.

Перед выгрузкой кузов автомобиля-самосвала следует слегка приподнять, чтобы смесь сползла к заднему закрытому борту. Такой прием позволяет выгрузить смесь в бункер асфальтоукладчика в виде единой массы после открытия заднего борта автомобиля-самосвала.

Следует отметить, что выгрузка асфальтобетонной смеси напрямую из кузова автосамосвала приводит к усадке асфальтоукладчика, в результате которой уменьшается толщина укладываемого слоя. По мере выработки смеси и снижения нагрузки на механизм толщина слоя увеличивается. В конечном итоге нарушается ровность полосы укладки и, как следствие, снижается качество уплотнения и ровность готового покрытия.

Для обеспечения равномерного непрерывного поступления смеси к укладчику следует использовать механизм типа «шатл-баги».

2.5.3. Асфальтоукладчик ДС-181 укладывает смесь на ширину от 3 до 7,5 м.

В зависимости от ширины покрытия определяют число и ширину укладываемых полос.

В данном случае при ширине проезжей части 7,5 м с учетом двух краевых полос по 0,75 м при общей ширине покрытия 9 м целесообразно укладывать две полосы по 4,5 м с учетом использования уширителей.

Асфальтоукладчик в процессе работы выполняет следующие технологические операции:

·        прием асфальтобетонной смеси из транспортных средств;

·        подачу асфальтобетонной смеси на подготовленное и уплотненное основание;

·        распределение смеси по ширине укладываемой полосы слоем заданной толщины;

·        профилировку асфальтобетонной смеси с требуемым поперечным уклоном и продольным профилем в соответствии с проектными отметками поверхности укладываемого покрытия;

·        предварительное уплотнение укладываемого слоя;

·        отделку (выглаживание) поверхности укладываемого покрытия.

Температура асфальтобетонных смесей при укладке в конструктивные слои дорожной одежды должна соответствовать требованиям ГОСТ 9128-97.

При работе одним укладчиком для обеспечения хорошего сопряжения полос по оси покрытия необходим периодический переход укладчика с одной полосы на другую (рис. 1). Оптимальная длина хода асфальтоукладчика устанавливается в зависимости от температуры воздуха (табл. 2).

В процессе производства работ следует выполнять следующие рекомендации:

·        при небольших перерывах в поступлении асфальтобетонной смеси не следует расходовать всю имеющуюся в укладчике смесь, а оставлять рабочие органы укладчика заполненными до прихода следующего автомобиля-самосвала;

·        при длительных перерывах вся смесь, имеющаяся в укладчике, должна быть уложена, чтобы не допустить ее остывания;

·        в конце смены или при длительных перерывах в течение смены необходимо подготовить конец уложенной полосы к устройству поперечного вертикального стыка для последующего продолжения работ.

Рис. 1. Схема перехода асфальтоукладчика с полосы на полосу:

I - длина укладываемой полосы;  - рабочий ход;  - холостой ход;  - последовательность укладки смеси на участках

Таблица 2

Температура воздуха, °С

Длина укладываемой полосы, м

На защищенных от ветра участках и в глубоких выемках

На открытых участках

5 - 10

30 - 60

25 - 30

10 - 15

60 - 100

30 - 50

15 - 25

100 - 150

50 - 80

> 25

150 - 200

80 - 100

Примечание. При высоких положительных температурах длина полосы укладки может равняться длине сменной захватки (но не более 300 м).

Поперечный стык выполняют двумя способами:

- простой стык;

- клиновой стык.

Выбор способа зависит оттого, будет или нет осуществлять по уложенной полосе движение транспорта в период между окончанием и возобновлением строительства.

В случае, если движение транспорта не предусмотрено, устраивают простой стык. Для этого при окончании смены в конце полосы укладывают упорную доску, закрепляя ее металлическими костылями. Смесь вручную подсыпают к доске и уплотняют катками. Причем необходимо, чтобы катки уплотняли смесь непосредственно до линии стыка. Для качественного уплотнения необходимо в конце полосы уложить доски для схода катка. Толщина досок должна равняться толщине уплотненного асфальтобетонного слоя.

При возобновлении работ доски убирают, место сопряжения разогревают горелками инфракрасного излучения. Край ранее уложенной смеси после ее разогрева смазывают горячим битумом.

Если по уложенному слою предусмотрено движение транспорта, то в конце уложенной полосы необходимо устроить поперечный клиновой стык (рис. 2).

Рис. 2. Клиновой стык:

1 - уложенный слой покрытия; 2 - упорная доска; 3 - поперечный клин; 4 - дорожное основание

Со стороны уложенной полосы формируется вертикальная кромка так же, как при устройстве простого стыка, с помощью упорной доски. Затем подсыпают асфальтобетонную смесь, формируя из нее клиновидный скат от верхней кромки доски к основанию. Чтобы движущийся транспорт не выбивал доску из покрытия, она должна быть ровной и иметь ту же толщину, что и уплотненный асфальтобетонный слой.

При возобновлении работ на участке необходимо удалить асфальтобетонный скат, снять упорную доску. Вертикальную кромку ранее уложенной полосы разогреть горелками инфракрасного излучения, смазать горячим битумом.

2.5.4. Уплотнение асфальтобетонной смеси следует начинать после ее укладки на полосе 8 - 10 м, соблюдая температурный режим, указанный в табл. 14 СНиП 3.06.03-85 «Автомобильные дороги».

В данной технологической карте предусмотрено уплотнение горячих асфальтобетонных смесей звеном самоходных катков с гладкими металлическими вальцами, которое состоит из: легких катков ДУ-50 массой 6 - 8 т и тяжелых - ДУ-49А массой 11 - 18 т.

Катки должны иметь гладкие, хорошо отшлифованные вальцы, что необходимо для получения качественной поверхности покрытия.

Для предотвращения прилипания смеси вальцы следует смачивать водой, смесью воды и керосина (1:1) или однопроцентным водным раствором отходов соапстока. Такая операция является обязательным условием качественного уплотнения и нормальной работы катка. Необходимо строго регулировать подачу антиадгезионных составов, излишний расход которых отрицательно сказывается на качестве асфальтобетонного слоя. Не следует применять для смазки вальцов соляровое масло и топочный мазут, растворяющие пленку битума на поверхности покрытия.

Общее число проходов гладковальцовых катков по одному следу зависит от состава смеси и погодных условий и составляет ориентировочно для легких - 2 - 4, тяжелых - 15 - 18. Число проходов устанавливают пробным уплотнением с проверкой плотности.

Уплотнение начинают легкими катками, заканчивают тяжелыми. При работе двумя асфальтоукладчиками катки должны двигаться от кромок к середине покрытия, затем от середины к кромкам, перекрывая каждый след катка на 20 - 30 см. При уплотнении первой полосы вальцы легкого катка не должны приближаться более чем на 10 - 15 см к кромке, обращенной к оси дороги. Эта полоса уплотняется тяжелым катком с перекрытием сопряжения на 20 - 30 см.

Уплотнение второй полосы (рис. 3) начинают тяжелым катком по продольному сопряжению с ранее уложенной первой полосой, а затем по традиционной схеме сначала легкими, затем тяжелыми катками от кромки покрытия.

Рис. 3. Схема уплотнения асфальтобетонной смеси при работе двумя асфальтоукладчиками (размеры в см):

 - номера проходов катка

При работе одним асфальтоукладчиком уплотнение второй свежеуложенной полосы начинают по продольному сопряжению с ранее уложенной полосой (рис. 4).

Уплотнение стыка следует начинать с наездом на «холодную» полосу на расстояние 50 см. Второй проход - с наездом 15 - 20 см. В таком случае основное уплотняющее воздействие оказывается на смесь, находящуюся в области стыка. Смесь подается в сторону стыка до тех пор, пока уровень свежеуложенной полосы не сравняется с уровнем соседней.

В начале процесса уплотнения скорость катков должна быть 1,5 - 2 км/ч, а после пяти - шести проходов по одному следу ее увеличивают до 3,5 км/ч.

При первом проходе гладковальцовых катков ведущие вальцы должны быть впереди.

Во избежание образования неровностей не следует останавливать катки на горячей асфальтобетонной смеси.

Рис. 4. Схема уплотнения асфальтобетонной смеси при работе одним асфальтоукладчиком (размеры в см):

 - номера проходов катка

После предварительного уплотнения (двух - трех проходов легкого катка) необходимо проверить поперечный уклон и ровность покрытия с помощью трехметровой рейки. Просвет между нижней плоскостью рейки и поверхностью покрытия не должен превышать 3 - 5 мм.

Обнаруженные неровности должны исправляться после первых же проходов катка. Одновременно должны устраняться и другие дефекты (раковины, зазоры, скопления щебня, трещины, наплывы и др.).

При исправлении неровностей необходимо:

·        вырубить дефектный участок;

·        обмазать края и дно вырубленного места («ящика») горячим вязким битумом;

·        заполнить «ящик» горячей асфальтобетонной смесью;

·        уплотнить.

Швы должны быть параллельны и перпендикулярны оси дороги.

Признаком достаточного уплотнения покрытия является отсутствие следа от прохода задних вальцов тяжелых катков. Контроль плотности асфальтобетонного слоя в процессе уплотнения рекомендуется осуществлять экспресс-методами.

Коэффициент уплотнения покрытий должен быть не ниже:

0,99 - для высокоплотного и плотного асфальтобетонов типов А и Б;

0,98 - для плотного асфальтобетона типов В, Г, Д, пористого и высокопористого асфальтобетонов.

Наиболее достоверные значения коэффициента уплотнения получают при испытании образцов (кернов), отобранных из покрытия.

В этом случае при составлении проекта производства работ необходимо после уплотнения нижнего слоя покрытия предусмотреть организационный перерыв, продолжительностью не менее двух смен, для лабораторных испытаний (рис. 6).

2.6. Технологическая последовательность процессов с расчетом объемов работ и потребных ресурсов приведена в табл. 3, 4.


Таблица 3

Технологическая последовательность процессов с расчетом объемов работ и потребных ресурсов

№ процессов

№ захваток

Источник обоснования норм выработки (ЕНиРы и расчеты)

Описание рабочих процессов в порядке их технологической последовательности с расчетом объемов работ

Единица измерения

Количество работ

Производительность в смену

Потребность в машино-сменах

Затраты труда и заработная плата на захватку длиной 250 м

Норма времени, чел.-ч

Заработная плата, руб.-коп.

на захватку l = 250 м

на 1 км

на захватку l = 250 м

на 1 км

на единицу измерения

на полный объем работ

на единицу измерения

на полный объем работ

1

2

3

4

5

6

7

8

9

10

11

12

13

14

1

I

Расчет

Очистка основания от пыли и грязи поливомоечной машиной МД-433-03 за 2 прохода по одному следу

км

0,25

1

2

0,125

0,5

4

1

74-24

18-56

2

I

Расчет

Подвозка и розлив битумной эмульсии автогудронатором ДС-39Б из расчета 0,8 л на 1 м2

т

1,8

7,2

29,6

0,06

0,24

0,54

0,97

10-16

18-29

3

II

Расчет

Транспортировка к/з а/б смеси для нижнего слоя покрытия автосамосвалами КамАЗ-55118 при дальности возки 25 км:

250·9·0,07·1,03·2,3 = 373,1

т

373,1

1492,5

53,8

6,9

27,7

0,15

55,97

2-75

1026-08

4

II

Расчет

Укладка смеси толщиной 7 см, шириной 9 м асфальтоукладчиком ДС-181

м2

2250

9000

4660

0,46

1,85

0,01

22,5

0-22

495-00

5

II

Расчет

Подкатка нижнего слоя покрытия легкими гладковальцовыми катками ДУ-50 за 4 прохода по 1 следу

м2

2250

9000

3200

0,7

2,8

0,003

6,75

0-05

112-50

6

II

Расчет

Уплотнение нижнего слоя тяжелыми гладковальцовыми катками ДУ-50 за 18 проходов по 1 следу

м2

2250

9000

1230

1,83

7,3

0,007

15,8

0-14

315

7

II

Расчет

Подвозка м/з а/б смеси для верхнего слоя покрытия автосамосвалами КамАЗ-55118 при дальности возки 25 км:

250·9·0,06·1,03·2,4 = 333,7

т

333,7

1334,9

53,8

6,2

24,8

0,15

50,1

2-75

917-68

8

II

Расчет

Укладка смеси толщиной 6 см, шириной 9 м асфальтоукладчиком ДС-181

м2

2250

9000

4860

0,46

1,85

0,01

22,5

0-22

495-00

9

II

Расчет

Подкатка верхнего слоя покрытия легкими гладковальцовыми катками ДУ-50 за 4 прохода по 1 следу

м2

2250

9000

3100

0,73

2,9

0,003

6,75

0-05

112-50

10

II

Расчет

Уплотнение верхнего слоя покрытия тяжелыми гладковальцовыми катками ДУ-49А за 18 проходов по 1 следу

м2

2250

9000

1250

1,8

7,2

0,006

13,5

0-14

315

ИТОГО:

 

 

189,84

 

3825-61


2.7. Технологический план потока по устройству двухслойного асфальтобетонного покрытия представлен на рис.

2.8. Технология операционного контроля качества работ приведена в табл. 5.

Таблица 4

Состав отряда

Машины

Профессия и разряд рабочего

Потребность в машино-сменах на захватку l = 250 м

Потребность в машинах

Коэффициент загрузки

Количество рабочих

Поливомоечная машина МД-433-03

Машинист IV разряда

0,1

1

0,1

1

Авто гудронатор ДС-39Б

Машинист V разряда

Машинист IV разряда

0,05

1

0,05

2

Автосамосвал КамАЗ-55118

Водитель

10,5

11

0,95

11

Асфальтоукладчик ДС-181

Машинист VI разряда асфальтобетонщик:

V разряд                     1

IV разряд                   1

III разряд                   3

II разряд                     1

I разряд                      1

0,92

1

0,92

8

Каток гладковальцовый ДУ-50

Машинист V разряда

1,14

2

0,57

2

Каток гладковальцовый ДУ-49А

Машинист VI разряда

2,9

3

0,97

3

Итого

 

19

 

27

Примечание. Рабочие бригады выполняют следующие работы.

Машинист асфальтоукладчика следит за соблюдением требуемой толщины и ширины слоя. Асфальтобетонщик V разряда вместе с асфальтобетонщиком IV разряда принимают смесь, замеряют ее температуру и визуально оценивают качество. Они также контролируют толщину укладываемого слоя, регулируют положение выглаживающей плиты и дают указания о порядке уплотнения смеси катками. Толщину слоя промеряют металлическим мерником после прохода укладчика и, в случае отклонения от требуемой, исправляют положение выглаживающей плиты.

Асфальтобетонщик IV разряда помогает в работе асфальтобетонщику V разряда.

Асфальтобетонщик III разряда следит за подачей смеси автомобилями-самосвалами в бункер укладчика, дает сигнал на подход автомобилей-самосвалов со смесью, следит за выгрузкой и очищает кузов от остатков смеси скребком или лопатой с удлиненной ручкой. После прохода укладчика асфальтобетонщики III разряда при необходимости устраняют неровности, удаляют недоброкачественную смесь. Ровность покрытия определяют 3-метровой рейкой после окончания уплотнения.

Участки покрытия, на которых под рейкой обнаружены просветы, исправляет асфальтобетонщик V разряда. Для этого он железными граблями слегка взрыхляет уложенную смесь, удаляет лишнюю на возвышениях или добавляет во впадины. Асфальтобетонщики I, II разрядов помогают ему и доставляют смесь.


Рис. 5. Технологический план потока по устройству двухслойного асфальтобетонного покрытия

Рис. 6. Технологический план потока по устройству двухслойного асфальтобетонного покрытия


Таблица 5

Технология операционного контроля качества работ при устройстве асфальтобетонного покрытия

Основные операции, подлежащие контролю

Состав контроля

Метод и средства контроля

Режим и объем контроля

Лицо, осуществляющее контроль

Предельные отклонения от норм контролируемых параметров

Где регистрируются результаты контроля

1

2

3

4

5

6

7

Качество устройства слоев

Поперечные уклоны

Инструментальный

Нивелир, нивелирная рейка, трехметровая рейка

Промер не реже, чем через каждые 100 м

Геодезист, мастер

Отклонение от проектных значений не более до 0,010

Общий журнал работ Журнал технического нивелирования

Ровность

Инструментальный

Трехметровая рейка с клиновым промерником, нивелир, нивелирная рейка

Промер не реже, чем через каждые 100 м

 

Мастер

Значение просветов в пределах до 5 мм

Общий журнал работ

Через каждые 5 ± 0,2 м на расстоянии 0,5 - 1,0 м от кромки проезжей части

Геодезист

Отклонения при шаге нивелирования:

5 м - 7 (5) мм

10 м - 12 (8) мм

20 м - 24 (16)мм

Журнал технического нивелирования

Коэффициент сцепления

Инструментальный

ППК-МАДИ

 

Мастер

Не менее 0,45

Общий журнал работ

Качество а/б смеси

Температура а/б смеси

Лабораторный

В соответствии с ГОСТ 9128-97

В кузове каждого автомобиля-самосвала

Асфальтобетонщики V и IV разрядов

Для асфальтобетонных смесей на вязких битумах не менее 120 °С

Общий журнал работ

Укладка а/б смеси

Ширина слоя

Инструментальный

Рулетка

Не реже, чем через каждые 100 м

Мастер

Отклонение от проектных значений ±10 см

Общий журнал работ

Толщина слоя

Инструментальный

Измерительная линейка, визирки

Не реже, чем через каждые 100 м

Мастер

Отклонение от проектных значений ±10 мм

Общий журнал работ

Высотные отметки по оси

Инструментальный

Нивелир, нивелирная рейка

Не реже, чем через каждые 100 м

Геодезист

Отклонение от проектных значений ±50 мм

Журнал технического нивелирования

Уплотнение

Коэффициент уплотнения

Лабораторный

В соответствии с ГОСТ 9128-97, ГОСТ 12801-98

В трех местах на 7000 м2

Лаборант

Не ниже 0,99 для плотных а/б из горячих смесей типов А, Б; 0,98 - для пористого, высокопористого а/б

Общий журнал работ

Качество асфальтобетона

Плотность

Лабораторный

В соответствии с ГОСТ 9128-97, ГОСТ 12801-98

В трех местах на 7000 м2

Лаборант

Продольное сопряжение должно быть ровным и плотным, а поперечное - перпендикулярно к оси

Журнал лабораторных работ

Качество продольных и поперечных сопряжений

Визуальный

Постоянно

Мастер

Общий журнал работ

Прочность сцепления слоев

Визуальный

Постоянно

Мастер

Общий журнал работ

3. БЕЗОПАСНОСТЬ ТРУДА

3.1. К работе по устройству асфальтобетонных покрытий допускаются лица не моложе 18 лет, прошедшие предварительный медицинский осмотр, а также обучение и инструктаж по безопасности труда.

3.2. Лица, допускаемые к эксплуатации дорожных машин (асфальтоукладчика, автогудронатора, катка), должны иметь удостоверение на право работы на них.

3.3. При работе машин по устройству покрытий необходимо соблюдать требования, изложенные в СНиП III-4-80.

3.4. При проведении работ необходимо принять меры по обеспечению безопасности движения. С этой целью на участках проведения работ до их начала устанавливают временные дорожные знаки, ограждения и направляющие устройства, а в необходимых случаях устраивают объезд. Ограждение места работ производят с помощью ограждающих щитов, штакетных барьеров, стоек, вешек, конусов, шнуров с цветными флажками, сигнальных огней. Установку технических средств организации движения производят в соответствии с ВСН 37-84.

Схемы организации движения и ограждения мест работ независимо от того, являются они типовыми или индивидуальными, а также сроки проведения работ утверждаются руководителем дорожной организации и согласовываются с органами ГИБДД.

При составлении схем организации движения в местах проведения дорожных работ необходимо обеспечить выполнение следующих требований:

·        предупредить заранее водителей транспортных средств и пешеходов об опасности, вызванной дорожными работами, и показать характер этой опасности;

·        четко обозначить направление объезда, имеющихся на проезжей части препятствий, а при устройстве объезда ремонтируемого участка - его маршрут;

·        создать безопасный режим движения транспортных средств и пешеходов на подходах и на участках проведения дорожных работ.

При работах, имеющих подвижный и краткосрочный характер, временные знаки можно размещать на переносных ограждающих барьерах, щитах, а также на автомобилях и самоходных дорожных машинах, участвующих в работе. В темное время суток дорожные машины и оборудование должны находиться за пределами земляного полотна. В случае невозможности выполнения этого требования дорожные машины должны быть ограждены с обеих сторон барьерами с сигнальными фонарями желтого цвета, зажигаемыми с наступлением темноты, с установкой барьеров на расстоянии 10 - 15 м от машины.

Выполнение требований по организации движения и техники безопасности в местах производства дорожных работ возлагается на инженерно-технический персонал, который непосредственно руководит производством работ (руководителя организации, главного инженера, начальника участка, прораба, мастера).

При производстве работ по устройству асфальтобетонного покрытия руководствуются следующей технической литературой:

1. СНиП III-4-80. Техника безопасности в строительстве.

2. СНиП 12-03-2001. Безопасность труда в строительстве. Часть 1. Общие требования.

3. ТОИ Р-218-13-93. Типовая инструкция по охране труда для машиниста укладчика асфальтобетона.

4. ТОИ Р-218-14-93. Типовая инструкция по охране труда машиниста автогудронатора.

5. ТОИ Р-218-07-93. Типовая инструкция по охране труда для машиниста катка.

Технологическая карта № 16

УСТРОЙСТВО ЦЕМЕНТОБЕТОННОГО ПОКРЫТИЯ ШИРИНОЙ 7,5 М И ТОЛЩИНОЙ 0,2 М С ИСПОЛЬЗОВАНИЕМ КОМПЛЕКТА МАШИН ДС-110

1. ОБЛАСТЬ ПРИМЕНЕНИЯ

1.1. Технологическая карта разработана на основе методов научной организации труда и предназначена для использования при разработке проектов производства работ и организации труда на строительстве автомобильных дорог.

1.2. Технологическая карта составлена на устройство однослойного цементобетонного покрытия дороги шириной 7,5 м и высотой 0,2 м в уплотненном состоянии. В качестве основных механизмов приняты бетоноукладчик ДС-111 с боковыми скользящими формами, бетоноотделочная машина (трубчатый финишер) ДС-104А, машина для нанесения пленкообразующих материалов ДС-105А, входящие в состав комплекта машин ДС-110 Брянского завода «Брянский арсенал». Ведущим механизмом является бетоноукладчик ДС-111 со скоростью укладки бетонной смеси 2 м/мин, сменной длиной захватки 550 м, или 4125 м2 покрытия.

1.3. Бетоноукладчик цементобетонной смеси ДС-111 предназначен для приема бетонной смеси из автосамосвалов на спрофилированное цементогрунтовое основание, ее распределения, уплотнения и создания вертикальной кромки плиты покрытия.

2. ОРГАНИЗАЦИЯ И ТЕХНОЛОГИЯ ПРОИЗВОДСТВА РАБОТ

2.1. До начала работы бетоноукладчика должны быть выполнены следующие работы:

·        спрофилировано под проектные отметки цементогрунтовое основание с необходимой прочностью, достаточной для движения автосамосвалов с бетонной смесью;

·        натянута с двух сторон копирная струна для работы бетоноукладчика ДС-111 в автоматизированном режиме;

·        устроено требуемое количество въездов на основание и съездов с него;

·        подготовлены временные дороги для подвоза бетонной смеси.

2.2. Часовая потребность в бетонной смеси составляет около 106 м3, поэтому работу бетоноукладчика может обеспечивать одна смесительная установка непрерывного действия СБ-109 (расчетная производительность 120 м3/час) с реальной сменной производительностью 850 м3/смену.

2.3. Бетонная смесь и бетон, применяющиеся при устройстве однослойного покрытия, характеризуются следующими свойствами:

·        класс бетона по прочности на сжатие - В 27,5;

·        класс бетона на растяжение при изгибе - Вtв 4,0;

·        марка бетона по морозостойкости - F200;

·        объем вовлеченного воздуха - 5 - 7 % (ГОСТ 26633-91);

·        подвижность смеси 1 - 3 (в среднем 2) см (ВСН 139-80);

·        водоцементное отношение не более 0,50.

2.4. При температуре свыше 20 °С для сохранения подвижности смесей при транспортировке рекомендуется применение пластифицирующих добавок типа мелассной упаренной последрожжевой барды (УПБ), технических лигносульфонатов (ЛСТ), модифицированных технических лигносульфонатов (ЛСТМ-2) и др.

Для обеспечения требуемой марки бетона по морозостойкости от F100 и выше необходимо использовать следующие воздухововлекающие добавки: смола нейтрализованная воздухововлекающая (СНВ), смола древесная омыленная (СДО), сульфанол (С), клей талловый пековый (КТП) и др.

Химические добавки вводятся в бетонные смеси в виде растворов с водой затворения.

2.5. При установке копирных струн выполняются следующие операции:

·        восстанавливают и закрепляют ось дороги;

·        устанавливают нивелирные колышки;

·        устанавливают металлические стойки с поперечными штангами на расстоянии не более 15 м друг от друга на прямых участках и на 4 - 6 м на криволинейных участках и виражах;

·        натягивают копирную струну на высоте 0,5 - 1,0 м над верхом земляного полотна сначала вручную, затем натяжной лебедкой (отклонение копирной струны от заданных вертикальных отметок не должно превышать ±3 мм). Копирная струна устраивается с двух сторон от бетонируемого покрытия;

·        контролируют качество установки копирной струны;

·        по завершению работ по бетонированию покрытия копирные струны демонтируют.

Работы по установке копирных струн выполняет звено дорожных рабочих:

IV разряда - 1 чел.

III разряда - 1 чел.

II разряда - 1 чел.

I разряда - 1 чел.

Работой звена руководит инженер-геодезист, выполняющий одновременно работу с геодезическим инструментом. Звену выделяется грузовой автомобиль.

2.6. Бетонная смесь к месту укладки транспортируется автомобилями-самосвалами КамАЗ-55111 (грузоподъемность 13 т, объем кузова - 6,6 м3). Основные требования к перевозке смеси:

- смесь в кузове автосамосвала обязательно должна быть накрыта пологом для предохранения ее от потерь влаги или переувлажнения;

- доставка смеси должна осуществляться по часовому графику, разработанному с учетом производительности бетоноукладчика ДС-111;

- время транспортирования бетонной смеси марки по удобоукладываемости П1 (ГОСТ 7473-94) не должно превышать 30 мин при температуре воздуха от 20 до 30 °С и 60 мин при температуре воздуха ниже 20 °С. При введении пластифицирующих добавок время транспортирования определяется лабораторной службой.

2.7. Технология производственного процесса по устройству бетонного покрытия на прямолинейном участке дороги бетоноукладчиком ДС-111 состоит из следующих операций:

·        подготовки бетоноукладчика к работе;

·        подготовки участка к бетонированию;

·        укладки цементобетонной смеси бетоноукладчиком в т.ч.: распределения смеси, регулировки толщины бетонного слоя с уплотнением смеси глубинными вибраторами, формирования профиля плиты, образования и отделки кромки бетонного покрытия, отделки поверхности покрытия;

·        устройства рабочего шва;

·        ухода за бетоноукладчиком.

2.8. Подготовительные работы включают в себя:

- выбор ровного участка дороги не ближе 15 - 20 м от начала покрытия. Участок должен быть оборудован копирной струной для установки бетоноукладчика по заданному курсу и выведения его на автоматизированный режим работы при подходе к начальному участку бетонирования;

- наладка рамы бетонирования. Рама бетоноукладчика является подвижным шаблоном, проходящим на заданной высоте над основанием, поэтому она должна быть установлена точно в той же плоскости, что и бетонируемое покрытие. В первую очередь гидроцилиндрами и ограничителями хода устанавливаются боковые рамы на одинаковое расстояние (3,75 м) от оси машины. Боковые рамы должны быть строго параллельны. Затем рама бетоноукладчика по копирным струнам устанавливается так, чтобы ее нижняя плоскость находилась на отметке верха устраиваемого покрытия;

- наладка рабочих органов бетоноукладчика. Предварительная наладка производится относительно низа рамы бетоноукладчика.

Распределительный шнек бетоноукладчика наладки не требует, т.к. он жестко соединен с боковыми рамами. Отвал шнека и вибробрус-дозатор выравнивают по струне, натянутой между нижними краями боковых частей рам.

Глубинные вибраторы в количестве 11 - 14 шт. устанавливаются следующим образом: зажимы двух крайних ослабляются и их нижние точки выставляются на расстоянии 15 см до нижней поверхности рамы. Зажимы закрепляются, между крайними вибраторами натягивается струна и по ней устанавливаются остальные вибраторы. Расстояние крайних вибраторов от боковой скользящей опалубки не должно превышать 15 - 20 см.

Качающиеся отделочные брусья также выравнивают по струне, натянутой между нижними краями боковых рам. При этом поверхность брусьев должна на всем протяжении касаться струны. Передний край брусьев должен быть приподнят на 1 - 2° относительно заднего.

Положение выглаживающей плиты настраивается регулировочными винтами так, чтобы передняя кромка плиты была на 3 - 5 мм выше относительно задней, которая также устанавливается по струне. Окончательная наладка выглаживающей плиты осуществляется в процессе бетонирования.

После предварительной наладки рабочих органов относительно низа рамы все индикаторы уровня устанавливают на «0».

Установка боковых скользящих форм в шарниры боковых рам. Верхний конец формы тщательно подгоняют к краям боковой рамы во избежание утечки смеси. На нижней кромке боковой формы закреплена резиновая лента для предотвращения ее повреждения. Перед началом работы следует проверять износ резиновой ленты. Следует обратить внимание на то, что при устройстве однорядового покрытия с внутренней стороны боковых форм устанавливают стальные полосы для создания гладкой вертикальной кромки бетонного покрытия.

Точная настройка кромкообразователя осуществляется с помощью четырех регулировочных болтов. Расстояние между боковыми формами кромкообразователя должно быть на 2 - 4 см меньше проектной ширины покрытия, а высота опалубки кромкообразователя должна быть на 5 мм меньше толщины укладываемого слоя смеси. Кромкообразователь требует постоянной регулировки при изменении подвижности смеси.

Установка бетоноукладчика. Бетоноукладчик устанавливается так, чтобы центр шнека и качающегося отделочного бруса находились точно на оси основания. На главную раму устанавливаются консоли так, чтобы их внешние концы находились на расстоянии 20 - 25 см от копирной струны. На концах консолей размещают поперечину, на которую устанавливают датчики выдерживания курса и уровня.

В дальнейшем настройка рабочих органов и датчиков бетоноукладчика ДС-111 осуществляется с пульта управления, а окончательная настройка производится при пробном бетонировании, используя бетонную смесь рабочего состава.

Подготовка участка к бетонированию. До начала работы бетоноукладчика ДС-111 перед ним вручную бетонируют плиту шириной 7,5 м и длиной 2 - 3 м. Распределенную смесь уплотняют глубинными вибраторами и выравнивают поверхность покрытия. При снятой опалубке впереди забетонированного участка насыпают достаточное количество бетонной смеси, чтобы перед шнеком и качающимися брусьями бетоноукладчика образовался валик из смеси.

Пуск бетоноукладчика. Для пуска бетоноукладчика приподнимают его боковые формы кромкообразователя и вибраторы, включают передний ход агрегата. При заполнении пространства под вибраторами бетонной смесью вибраторы опускают на 15 см и включают. После прохода вибраторами участка ручной укладки смеси опускают боковые формы и кромкообразователи в нужное положение, которое корректируется при окончательной наладке рабочих органов.

До окончания полной наладки бетоноукладчика он должен двигаться на низкой скорости.

Укладка бетонной смеси бетоноукладчиком ДС-111. После завершения окончательной наладки машины бетоноукладчик машинистом-оператором переводится на работу в автоматизированном режиме со скоростью перемещения 2 м/мин. Машинист легко управляет всеми операциями, выполняемыми машиной. Контроль за всеми технологическими операциями осуществляется автоматически и вручную. Индикаторы уровня, хорошо видимые на платформе главной рамы, показывают машинисту относительное положение режущих, уплотняющих и профилирующих органов.

В процессе работы постоянно контролируется высота валика смеси перед качающимися отделочными брусьями: перед первичным брусом высота валика должна находиться в пределах 20 - 25 см, перед вторичным - 10 - 15 см.

Глубинные вибраторы должны быть постоянно погружены в бетонную смесь. Характерным признаком уплотнения смеси является интенсивное выделение воздушных пузырьков в зоне действия вибраторов. По окончании бетонирования вибраторы должны тщательно очищаться от бетонной смеси.

В процессе работы бетоноукладчика необходимо своевременно убирать посторонние предметы, камни, строительный мусор как из-под движущихся гусениц, так и с выглаживающей плиты, т.к. эти помехи приводят к образованию наплывов на поверхности бетонного покрытия.

Перечисленные работы выполняет бригада рабочих, состоящих из машиниста бетоноукладчика VI разряда, пом. машиниста - V разряда, бетонщиков - IV и III разряда по 2 человека и слесаря-ремонтника V разряда. Машинист, помощник машиниста и слесарь выполняют все работы, связанные с управлением, эксплуатацией и ремонтом бетоноукладчика. Бетонщики IV разряда проверяют ровность покрытия трехметровой рейкой, исправляют дефектные места, осуществляют контроль за работой кромкообразователя и его регулировку, устанавливают по окончании работы бетоноукладчика рабочий шов по всей ширине покрытия. Два бетонщика III разряда с каждой стороны бетоноукладчика исправляют дефекты кромок, а в случае оплывания смеси на кромках покрытия устанавливают боковую опалубку и исправляют кромку фигурной металлической гладилкой.

Устройство рабочего шва. В конце смены (или при перерывах в бетонировании более 3 ч) устраивается рабочий шов в виде упорной доски на все поперечное сечение укладываемого покрытия. Упорная доска закрепляется штырями. Вдоль рабочего шва смесь дополнительно уплотняется трамбовкой. При необходимости смесь подсыпается на ширине полосой 50 см.

В начале смены доска убирается и свежая смесь укладывается впритык к затвердевшему бетону.

По окончании бетонирования бетоноукладчик ДС-111 переводят на ручное управление и отводят его вперед на расстояние 30 - 40 м, где производится его мойка, профилактический ремонт и подготовка к дальнейшей работе.

Отделка поверхности бетонного покрытия осуществляется бетоноотделочной машиной (трубчатым финишером) ДС-104А через 20 мин после завершения бетонирования. Предварительная отделка поверхности производится выглаживающими брусьями, которые заполняют пониженные и срезают повышенные части покрытия. Окончательная отделка - это функция профилирующих диагональных брусьев, формирующих проектный профиль поверхности покрытия. Вдоль выглаживающих труб размещена оросительная труба с быстровключающимися разбрызгивающими форсунками, которые включаются только в жаркую ветреную погоду и служат для орошения труб, а не поверхности бетона. Выглаживающая брезентовая лента, служащая для удаления излишков влаги и создания однородной шероховатости поверхности покрытия, шарнирно закреплена к раме финишера на двух кронштейнах с поперечиной. Вдоль выглаживающей ленты расположен трубопровод с соплами для смачивания брезента.

Курс машины выдерживается автоматически по копирной струне или вручную с пульта управления машины.

В системе автоматического выдерживания курса финишера используются два датчика при движении машины вперед и два - для движения назад.

Установка и настройка датчиков на автоматическое выдерживание курса выполняется в начале смены в следующей последовательности:

·        устанавливают машину точно по оси бетонируемого покрытия параллельно натянутой копирной струне;

·        устанавливают кронштейны-укосины с удлинительными рычагами так, чтобы наружные концы укосин не доходили до струны на 22 - 23 см. Болты крепления оставляют достаточно свободными;

·        на концах удлинительных рычагов устанавливают поперечины так, чтобы они были параллельны рулевым тягам колесных стоек;

·        устанавливают датчики на передние концы поперечин и соединяют разъемы кабелей;

·        руководствуясь показаниями индикаторных лампочек на пульте управления, перемещают в ту или другую сторону удлинительный рычаг до тех пор, пока поворотный переключатель датчиков не займет нулевое положение, на что укажет угасание индикаторных лампочек. Проверяют настройку передней и задней позиций управления с помощью селекторного переключателя датчиков на пульте управления;

·        после правильной установки датчиков относительно копирной струны закрепляют кронштейны-укосины и удлинительные рычаги;

·        регулируют длину раздвижных кронштейнов-тяг между поворотными рычагами и поперечинами, после чего закрепляют поперечины и датчики.

После установки и настройки датчиков на автоматическое выдерживание курса переключатель рулевого управления ставят в положение «автоматическое управление». К регулированию чувствительности датчиков приступают только в том случае, если машина стоит строго параллельно копирной струне.

Чувствительность датчиков определяют величиной свободного хода щупа до момента отработки штока гидроцилиндра. Величина свободного хода щупа, измеренная на расстоянии 25 - 30 см от оси качания щупа, должна составлять не более 3 - 10 мм.

Регулирование чувствительности датчиков производят в следующем порядке:

·        запускают двигатель для обеспечения в гидравлической системе постоянного давления;

·        регулируют клапаны расхода гидравлической жидкости переднего и заднего гидравлических рулевых цилиндров так, чтобы выдвижение и втягивание штоков гидроцилиндра происходило со скоростью 0,5 - 0,6 м/мин;

·        поворачивают селекторный переключатель рулевого управления в положение «вперед»;

·        поворачивают регулировочный винт датчика по часовой стрелке (для уменьшения свободного хода щупа) до появления колебаний на штоке гидроцилиндра;

·        медленно поворачивают винт в обратном направлении на 0,2 - 0,5 оборота так, чтобы колебания штока гидроцилиндра прекратились.

При таком положении работа датчиков будет наиболее чувствительной. Если такая настройка не будет обеспечивать требуемой скорости реагирования рулевого управления, то следует изменить настройку регулирования клапана расхода гидравлической жидкости с целью ускорения или замедления скорости движения штока гидроцилиндра и повторно отрегулировать чувствительность датчиков.

Гидроцилиндры системы выдерживания курса могут быть включены и с пульта управления, при этом включение с пульта управления прекращает действие соответствующего датчика.

В конце рабочего дня и во время непогоды датчики снимают и хранят в сухом месте.

В начале каждой смены устанавливают машину относительно струны и регулируют чувствительность датчиков, после чего с помощью натянутого шнура или струны проверяют прямолинейность нижней кромки выглаживающей трубы и приступают к установке рабочих органов в рабочее положение.

Отделка бетонного покрытия производится на участках длиной 20 - 40 м челночными проходами машины ДС-104А. Для этого низ выглаживающих труб устанавливается на отметке верха покрытия. В таком положении трубы поднимают и разворачивают в горизонтальной плоскости под углом 35 - 45° к оси забетонированного покрытия. Внешне концы труб в плане не должны доходить до кромок покрытия, чтобы предотвратить их разрушение при отделке поверхности покрытия, скорость машины 2 - 4 м/мин, при соприкосновении труб с поверхностью скорость увеличивают до 13 - 15 м/мин. В конце участка трубы поднимают, разворачивают относительно оси покрытия, плавно опускают их на покрытие и начинают движение назад. В зависимости от свойств смеси и температуры воздуха предварительная отделка поверхности выполняется за 2 или 4 прохода машины ДС-104А. При четырехпроходной схеме скорость машины варьируется в следующих пределах:

I проход (вперед) - 13 - 15 м/мин;

II проход (назад) - 16 - 20 м/мин;

III и IV проходы (вперед и назад) - 24 - 27 м/мин.

Окончательная отделка бетонного покрытия производится за один проход бетоноотделочной машины ДС-104А. В работу включаются диагональные выглаживающие трубы и выглаживающая брезентовая лента. При окончательной отделке выглаживающие трубы устанавливаются под углом 50 - 70° к оси покрытия, а внешние концы труб выдвигаются за пределы покрытия на 15 - 20 см. Выглаживающую ленту опускают на поверхность покрытия и начинают движение машины на малой скорости (2 - 4 м/мин). Одновременно на покрытие опускают и выглаживающие трубы, после чего скорость движения машины увеличивают до 15 - 16 м/мин. Для равномерного износа труб в конце рабочего дня трубы поворачивают в кронштейнах вокруг их горизонтальной оси на 30 - 40°. В конце смены машина ДС-104А отводится за пределы захватки. Выглаживающие трубы отсоединяются и снимаются, очищаются металлической щеткой или шлифовальной бумагой. Бетоноотделочную машину ДС-104А обслуживает машинист V разряда.

2.9. Уход за бетоном.

Для ухода за свежеуложенным бетонным покрытием методом нанесения пленкообразующих материалов используется машина ДС-105А. Машина ДС-105А является многофункциональной и помимо указанного технологического процесса выполняет следующие операции:

·        создает дополнительную шероховатость на поверхности покрытия после окончательной отделки его трубным финишером ДС-104А;

·        при выпадении осадков закрывает бетон полиэтиленовой пленкой, сматываемой с барабана, установленного на машине, и наматывает ее обратно механически по мере необходимости.

Подготовка машины ДС-105А к работе относительно копирных струн, установка и регулировка датчиков на чувствительность осуществляется аналогичным образом, как и для бетоноотделочной машины ДС-104А. Емкости машины заполняются пленкообразующим материалом, рабочие органы (распределительные сопла) подбирают на заданный расход пленкообразующего материала. Расстояние от сопл до поверхности бетона составляет 45 - 50 см. В качестве пленкообразующего материала применяется помароль марок ПМ-100А, ПМ-100АМ или другие материалы, имеющие физико-механические свойства, аналогичные помаролю. Пленкообразующие материалы доставляются специальным заправщиком и закачиваются в приемный бак машины ДС-104А вместимостью 1140 л.

Нанесение шероховатости. Поперечные полосы шероховатости на поверхность бетона наносятся в том случае, если она предусмотрена проектом. Шероховатость создается до розлива пленкообразующего материала. Шероховатость наносится на поверхность покрытия поперечной щеткой, подвешенной под главной рамой на двух направляющих. Положение щетки устанавливается гидроцилиндрами. Щетка должна отстоять от кромки покрытия так, чтобы ее концы были опущены на 3 - 4 мм ниже поверхности бетона. После перемещения щетки от одной кромки покрытия до другой машина перемещается вперед на ширину щетки. Затем щетка движется в обратном направлении, нанося шероховатость.

Шероховатость на поверхности бетона создают участками длиной 100 - 150 м за один проход машины. Затем машина возвращается на исходную позицию со скоростью 25 - 30 м/мин для выполнения работ по уходу за бетоном.

Уход за свежеуложенным бетоном осуществляется на участках длиной 100 - 150 м нанесением на поверхность покрытия и его боковые грани пленкообразующего материала за один - два прохода машины ДС-105А. Давление в системе распределителя при нанесении помароля должно быть в пределах 0,4 - 0,6 МПа. Скорость перемещения машины выбирают в зависимости от нормы розлива. Расход пленкообразующего материала должен быть не менее:

400 г/м2, при температуре воздуха ниже 25 °С;

600 г/м2, при температуре воздуха выше 25 °С.

При расходе пленкообразующего материала 400 г/м2 и нанесением его в один слой скорость машины ДС-105А составляет 14 - 16 м/мин, при нанесении помароля в 2 слоя скорость машины увеличивается до 28 - 32 м/мин. При повышенном расходе помароля 600 г/м2 скорость движения машины снижается до 8 - 10 м/мин для однослойного нанесения пленкообразующего материала и до 16 - 20 м/мин - для двухслойного. Розлив пленкообразующего материала машиной ДС-105А производится только при движении вперед. Скорость холостого хода (назад) составляет 25 - 30 м/мин. Места, пропущенные машиной, дополнительно обрабатываются пистолетом-распределителем вручную.

Норма расхода других пленкообразующих материалов указывается в действующих технических условиях.

В конце смены машина ДС-105А отводится вперед за пределы забетонированной захватки, где тщательно очищается, а распределительная система промывается керосином.

В условиях сухого и жаркого климата, особенно с ветрами, допускается после полимеризации пленки наносить на нее слой из песка толщиной не менее 5 см с последующим его увлажнением, если это предусмотрено проектом.

Машину ДС-105А обслуживает машинист V разряда.

2.10. Нарезка поперечных и продольных швов.

Для нарезки швов сжатия, расширения и других швов в затвердевшем бетоне настоящей технологической картой предусматривается использование нарезчика швов ДС-112 для нарезки поперечных швов и нарезчика ДС-115 для нарезки продольных швов. Расстояние между поперечными швами принято 6 м, продольный шов располагается по оси покрытия. Нарезка швов в затвердевшем бетоне производится при достижении им прочности 8 - 10 МПа. Время, необходимое для набора бетоном такой прочности, зависит от температуры окружающей среды. При повышенной температуре воздуха (25 - 30 °С) это время составляет около 6 ч; при температуре воздуха 15 - 25 °С - 16 - 20 ч; в прохладную погоду (5 - 15 °С) - 2 - 3 сут. Возможность нарезки пазов швов определяют пробной нарезкой. Если бетон имеет достаточную прочность, то при пробной нарезке кромки шва не должны выкрашиваться более 2 - 3 мм.

Для нарезки швов в затвердевшем бетоне нарезчиками ДС-112 и ДС-115 выполняются следующие операции:

·        разметка швов и подготовка нарезчиков;

·        нарезка поперечных швов нарезчиком ДС-112;

·        нарезка продольных швов нарезчиком ДС-115.

Разметка швов и подготовка нарезчиков. На одной из сторон покрытия шириной 7,5 м намечают линию движения колес нарезчика ДС-112 на расстоянии 1,52 м от кромки покрытия, а по середине покрытия наносят линию продольного шва. Если пленкообразующий материал является причиной пробуксовки колес нарезчиков, то по линии движения колес рассыпают песок. На каждый из 4-х шпинделей нарезчика ДС-112 ставят пакет алмазных режущих кругов. Пакет состоит из одного круга диаметром 320 мм и одного - двух кругов диаметром 250 мм. Нарезчик устанавливается так, чтобы режущие круги разместились над линией шва. Скорость вращения кругов должна быть 3100 об/мин. Скорость подачи режущих кругов зависит от прочности бетона и глубины шва и составляет 0,8 - 1,0 м/мин. Нарезку паза производят одним из двух способов: делают две прорези одновременно двумя расположенными параллельно кругами или две прорези поочередно одним кругом.

Для работы нарезчика ДС-115 на передний шпиндель устанавливают пакет из двух - трех алмазных кругов диаметром 250 мм, на второй шпиндель - круг диаметром 320 мм. Нарезчик устанавливают так, чтобы режущие круги и указатель курса разместились точно над линией шва.

Нарезка швов. Нарезчики швов ДС-112 и ДС-115 работают совместно с поливомоечными машинами, которые используются для подачи воды на охлаждение алмазных кругов в процессе резки пазов. При нарезке швов для повышения скорости резки и сохраняемости кругов рекомендуется применять смазывающе-охлаждающие жидкости (СОЖ) на основе современных синтетических моющих средств типа «Кристалл», «Прогресс», «Лотос» и т.д. СОЖ (водный раствор СМС с концентрацией 0,3 - 0,5 %) готовят на месте работ. Отдозированное количество СМС растворяют непосредственно в баке поливомоечной машины. Расход СОЖ или воды составляет для ДС-112 или ДС-115 около 3000 л на 1000 пог. м шва.

Скорость подачи нарезчика ДС-115 вперед в зависимости от прочности бетона и глубины шва составляет 1,5 - 1,7 м/мин. Шов нарезают на глубину не менее 1/4 толщины покрытия. Начальный участок нарезаемого шва осматривают, промеряют глубину и ширину шва и окончательно регулируют положение алмазных кругов.

Нарезанные продольный и поперечный швы промывают водой из шланга и при необходимости укрывают пергамином или другим листовым материалом для защиты от засорения.

После окончания работ по нарезке швов алмазные круги снимаются со шпинделей нарезчиков и сдаются на хранение.

Нарезчики швов ДС-112 и ДС-115 обслуживаются звеньями из 2 человек: машиниста IV разряда и его помощника - III разряда. Машинисты управляют нарезчиками, а помощники подключают и переносят шланги, промывают швы водой, готовят раствор СОЖ, при необходимости посыпают песок на линию движения колес, оказывают помощь машинистам.

2.11. Заполнение швов мастикой.

Заполнение нарезанных швов забетонированного покрытия готовыми мастиками производится заливщиком швов ДС-67. Швы заполняются резинобитумными, битумно-полимерными и другими мастиками, в т.ч. мастиками на основе резинобитумного вяжущего. Швы заполняются изоляционными материалами, как правило, немедленно после нарезки, но не позднее чем через 30 сут.

Заливщик ДС-67 смонтирован на автомобиле УАЗ-452Д и состоит из емкости для мастики, системы для ее подогрева, рабочего органа, промывочной емкости, компрессора, а также красконагнетательного бака и удочки с наконечниками и распылителями, служащими для подготовки швов.

Подготовка швов. Если швы заполняют сразу после нарезки и промывки, то они должны быть высушены. В другом случае, если швы заполняются через несколько суток, то они должны быть дополнительно очищены стальным крючком и ершом, а затем продуты сжатым воздухом с помощью удочки и специального наконечника. Одновременно сжатым воздухом очищаются прилегающие к шву полосы покрытия шириной 15 - 20 см. При этой операции используется вся мощность компрессора - 0,5 м3/мин или давлении 0,6 МПа.

Сначала продувают участок продольного шва, а затем поперечного, начиная от продольного шва. Для предотвращения вытекания изоляционного материала из шва у его торцов забиваются колышки (нащельники). На дно паза шва укладывают хлопчатобумажный шнур (для предотвращения протекания мастики), а сверху на паз накладывают веревку толщиной в 1,5 - 2 раза больше ширины шва, затем поверхность бетона вдоль шва посыпают (припудривают) тонким слоем минерального порошка. После посыпки порошком веревку убирают.

Подгрунтовка стенок и дна швов осуществляется, как правило, холодным разжиженным битумом с помощью удочки со специальным наконечником. Разжиженный бензином или керосином битум до вязкости 60 с заливается в красконагнетательный бак заливщика ДС-67. Сжатым воздухом, который нагнетается в бак до давления 0,4 МПа, битум подается к удочке и распыляется под давлением 0,6 МПа. В первую очередь грунтуется продольный шов, затем - поперечный.

Заполнение швов мастикой производят только в сухую погоду при температуре воздуха не менее +5 °С. Как правило, разогретую мастику до 160 - 180 °С привозят с базы и загружают в емкость заливщика. Рабочая температура мастики в емкости в процессе работы поддерживается жидкостно-топливной горелкой. Горелка работает на керосине, который подается сжатым воздухом от компрессора. Давление в топливном баке не должно превышать 0,3 МПа. Система подогрева контролируется по приборам, находящимся в кабине автомобиля. Температура мастики в 150-литровой емкости не должна превышать 180 °С.

Швы заполняют горячей мастикой через 2 - 3 ч после подгрунтовки стенок швов. Для этого используется рабочий орган, состоящий из емкости для мастики объемом 25 л, масляной рубашки, для поддержания температуры, сопла с клапаном и рычажным механизмом. Сопло рабочего органа вводят в паз на 3/4 глубины, открывают выходное отверстие и, перемещая сопло, заполняют шов мастикой выше уровня покрытия на 2 - 3 мм.

После остывания мастики в швах все ее наплывы срезают металлическим шпателем.

Перед каждой заправкой рабочего органа надо обязательно включать битумный насос на режим циркуляции для перемешивания мастики. Сопло и змеевик горелки необходимо своевременно очищать от нагара. Сопло очищается с помощью загнутой под углом 90° проволочной иглы.

В конце смены остаток мастики сливают в специальную емкость и через 3 мин емкость заливщика, битумный насос, мастикопровод и рабочий орган промываются керосином прокачкой насосом в течение не менее 12 мин. Для промывки перечисленных систем требуется около 30 л керосина, который хранится в промывочной емкости, установленной на заливщике ДС-67.

При движении по участку транспорта или выпадении осадков швы укрывают полиэтиленовой или битуминизированной пленками. Снимать укрытие со швов разрешается после начала отвердевания мастики, но не ранее, чем через 6 ч после заполнения шва.

Заливщик обслуживает звено из 3 человек: машиниста IV разряда и двух дорожных рабочих III разряда. Машинист заливщика выполняет обязанности водителя, следит за работой систем подогрева, обеспечивает подачу сжатого воздуха.

Рабочий III разряда заливает швы мастикой, следит за подогревом масла в масляной рубашке, заполняет рабочий орган горячей мастикой. Другой рабочий очищает швы и готовит их к заполнению мастикой, помогает, при необходимости, машинисту.

После окончания работ все оборудование промывают керосином.

2.12. Технологическая последовательность процессов с расчетом объемов работ и потребных ресурсов приведена в табл. 1. Состав отряда - в табл. 2.


Таблица 1

Технологическая последовательность процессов с расчетом объемов работ и потребных ресурсов

№ процессов

№ захваток

Источник обоснования норм выработки (ЕНиРы и расчеты)

Описание рабочих процессов в порядке их технологической последовательности с расчетом объемов работ

Единица измерения

Количество работ

Производительность в смену

Потребность в машино-сменах

Затраты труда и заработная плата на захватку длиной 550 м

Норма времени, чел.-ч

Заработная плата, руб.-коп.

на захватку l = 550 м

на 1 км

на захватку l = 550 м

на 1 км

на единицу измерения

на полный объем работ

на единицу измерения

на полный объем работ

1

2

3

4

5

6

7

8

9

10

11

12

13

14

1

I

Расчет

Разбивка пикетажа и установка нивелирных колышков по теодолиту с двух сторон проезжей части дороги:

550·2 = 1100

пог. м

1100

2000

-

-

-

0,011

12,1

0-16,8

184-80

2

I

Расчет

Установка копирных струн с двух сторон проезжей части дороги

пог. м

1100

2000

-

-

-

0,037

40,7

0-65,9

724-90

3

I

Расчет

Транспортировка бетонной смеси автосамосвалом КамАЗ-55111 на расстояние 12 км с выгрузкой на готовое основание:

550·7,5·0,2·1,03 = 850

м3

850

1545

35,2

24,15

43,9

0,23

195,5

4-27

3629-50

4

I

 

Очистка кузова самосвала КамАЗ-5511 от бетонной смеси

чел.

16

20,8

-

-

-

1,0

16,0

14-59

233-44

5

I

Расчет

Укладка цементобетонной смеси в покрытие бетоноукладчиком ДС-111: распределение, уплотнение, откидка смеси от боковой скользящей опалубки вручную; проверка ровности цементобетонного покрытия с исправлением небольших дефектов вручную; укладка смеси вручную в начальной части покрытия; устройство рабочего шва и отделка покрытия в начале и в конце смены:

7,5·550 = 4125

м2

4125

7500

4800

0,86

1,56

0,012

49,5

0-22,6

932-25

6

I

Расчет

Отделка поверхности бетонного покрытия бетоноотделочной машиной ДС-104А (трубчатым финишером):

7,5·550 = 4125

м2

4125

7500

5000

0,83

1,5

0,0016

6,6

0-03,1

127-88

7

I

Расчет

Уход за бетонным покрытием нанесением пленкообразующего материала с расходом 0,6 кг/м2 машиной ДС-105А за 2 прохода:

0,6·4125·1 = 2,48 т

550·7,5 + 550·0,2·2 = 4345

м2

4345

7900

5300

0,82

1,49

0,0015

6,52

0-03

130-35

8

II

Расчет

Нарезка поперечных швов нарезчиком ДС-112 в затвердевшем бетоне (через 6 м):

(550/6 - 1)·7,5 = 680

пог. м

680

1235

470

1,45

2,63

0,034

23,12

0-61

414-80

9

II

Расчет

Нарезка продольного шва нарезчиком ДС-115 в затвердевшем бетоне

пог. м

550

1000

390

1,41

2,56

0,041

22,55

0-73

401-50

10

II

Расчет

Заполнение мастикой поперечных швов заливщиком ДС-67

пог. м

680

1235

600

1,13

2,06

0,039

26,52

0-68,5

465-80

11

II

Расчет

Заполнение мастикой продольных швов заливщиком ДС-67

пог. м

550

1000

570

0,96

1,75

0,041

22,55

0-72

396-00

12

II

Расчет

Снятие копирных струн

пог. м

1100

2000

-

-

-

0,0069

7,59

0-08,7

95-70

 

 

 

ИТОГО:

 

 

 

 

31,61

57,45

 

429,25

 

7736-92


Таблица 2

Состав отряда

Машины

Профессия и разряд рабочего

Потребность в машино-сменах

Потребность в машинах

Коэффициент загрузки

Количество рабочих

на захватку

на 1000 м

1

2

3

4

5

6

7

Автосамосвал КамАЗ-55118

Водитель IV разряда

Рабочий II разряда

24,15

43,9

25

0,97

252

Бетоноукладчик цементобетонной смеси ДС-111

Машинист VI разряда

0,86

1,56

1

0,86

1

Пом. машиниста V разряда

 

 

 

 

1

Бетонщик IV разряда

 

 

 

 

2

Бетонщик III разряда

 

 

 

 

2

Слесарь V разряда

 

 

 

 

1

Трубчатый финишер ДС-104А

Машинист V разряда

0,83

1,5

1

0,83

1

Машина для нанесения пленкообразующего материала ДС-105А

Машинист V разряда

0,82

1,49

1

0,82

1

Нарезчик поперечных швов ДС-112

Машинист IV разряда

1,45

2,63

2

0,73

2

Пом. машиниста III разряда

 

 

 

 

2

Нарезчик продольных швов ДС-115

Машинист IV разряда

1,41

2,56

2

0,71

2

Пом. машиниста III разряда

 

 

 

 

2

Заливщик швов ДС-67

Машинист IV разряда

2,09

3,81

2

1,0

2

Рабочий III разряда

 

 

 

 

4

Рабочий IV разряда

 

 

 

 

1

Рабочий III разряда

 

 

 

 

1

Рабочий II разряда

 

 

 

 

1

Рабочий I разряда

 

 

 

 

1

 

ИТОГО:

31,61

57,45

34

 

54

Технологический план потока по устройству цементобетонного покрытия приведен на рис. 1.

Технология операционного контроля качества работ при устройстве цементобетонного покрытия приведена в табл. 3.

Таблица 3

Технология операционного контроля качества работ при устройстве цементобетонного покрытия шириной 7,5 м и толщиной 0,2 м с использованием комплекта машин ДС-110

Основные операции, подлежащие контролю

Состав контроля

Метод и средства контроля

Режим и объем контроля

Лицо, осуществляющее контроль

Предельные отклонения от норм контролируемых параметров

Где регистрируются результаты контроля

1

2

3

4

5

6

7

Установка копирных струн

Отметки нивелирных колышков, их положение в плане, отметки копирных струн

Инструментальный

Нивелир, теодолит, стальная мерная рулетка

На каждом нивелирном колышке

Инженер-геодезист

Отклонение копирной струны от вертикальных отметок не должно превышать ±3 мм. Проектные отметки в плане ±5 мм

 

Прием бетонной смеси

 

Инструментальный

 

 

 

 

 1. Подвижность бетонной смеси

1. Стандартный конус в соответствии с ГОСТ 10181.1-00

Не реже одного раза в смену

Лаборант

В пределах 1 - 3 см осадки конуса

Журнал контроля бетонных работ

2. Объем вовлеченного воздуха

2. Объемомер и поромер в соответствии с ГОСТ 10181.1-00

Не реже одного раза в смену и не менее 1 раза на каждые 200 м покрытия

-«-

Содержание воздуха по объему ±1 %

-«-

3. Прочность при сжатии и растяжении при изгибе

3. В соответствии с ГОСТ 10180-90

Не реже одного раза в смену

-«-

Не менее проектного класса бетона

-«-

4. Морозостойкость бетона

4. В соответствии с ГОСТ 10160.1-95

Не реже одного раза в квартал

Инженер лаборатории

Снижение прочности бетона после испытаний не более 5 %

-«-

Бетонирование покрытия

1. Соблюдение технологических режимов бетонирования

Визуальный

Постоянно

Мастер

 

Общий журнал работ

 

Инструментальный

 

 

 

 

2. Ширина покрытия, толщина покрытия

Рулетка измерительная, линейка металлическая

Не реже одного раза в смену

Мастер

Отклонения

по ширине ±5 см,

по высоте ±15 мм

-«-

Отделка поверхности покрытия трубчатым финишером

 

Инструментальный

 

 

 

 

1 Высотные отметки по оси покрытия

Нивелир, рейка

Промеры не реже, чем через 100 м

Геодезист

Отклонение до ±50 мм от проектных значений высотных отметок

Журнал геодезических работ

2. Поперечные уклоны

1. Нивелир, рейка

2. Трехметровая рейка, уклономер

-«-

Геодезист, мастер

Отклонение от проектных значений в пределах ±0,010

-«-

3. Ровность

Трехметровая рейка с клиновым промерником

Промеры на расстоянии 0,75 - 1 м от каждой кромки основания в пяти точках

Мастер

Величина просвета не должна превышать ±5 мм

Общий журнал работ

Уход за бетоном

 

Визуальный

 

Мастер, лаборант

 

Журнал ухода за бетоном

Качество защитного пленочного покрытия

Нанесение 1 % р-ра фенолфталеина или 10 % р-ра соляной кислоты на участок покрытия 20 × 20 см

Не менее двух раз в смену

Вспенивание или покраснение поверхности покрытия не более 2-х точек на 100 см2 поверхности пленки

После набора прочности

бетоном

 

Инструментальный

 

Геодезист

 

Журнал геодезических работ

Амплитудная неровность

Точный нивелир, рейка типа РН-3000

Участок длиной 300 - 400 м, замеры через 5 м на расстоянии 0,5 - 1 м от каждой кромки покрытия или края полосы движения

В соответствии со СНиП 3.06.03-85, табл. 17

Нарезка поперечных и продольных швов в затвердевшем бетоне

 

Лабораторный

 

 

 

 

1. Своевременность нарезки швов

Приборы для определения прочности бетона механическими методами неразрушающего контроля, соответствующие требованиям ГОСТ 22690-88

До набора прочности бетоном более 8 - 10 МПа

Мастер, лаборант

Разрушение кромок шва при пробной нарезке более 2 - 3 мм

Общий журнал работ

 

Визуальный

 

 

 

 

2. Установка режущих кругов

По натянутому капроновому шнуру Æ 5 мм

До начала нарезки и периодически в течение смены

Мастер

 

-«-

3. Установка нарезчика на линию шва

Визуальный

Пробное опускание всех кругов на линию шва

Перед началом нарезки шва

Мастер

Глубина верхней уширенной части шва ±5 мм; ширина верхней уширенной части шва ±1 мм

 

 

Инструментальный

 

 

 

4. Заглубление режущих кругов (промер глубины и ширины шва)

Мерник глубины и ширины шва, шаблон

Периодически в процессе нарезки

Мастер

 

Общий журнал работ

Заполнение швов покрытия мастиками

 

Визуальный

 

 

 

 

1. Подгрунтовка стенок и дна пазов швов (равномерность нанесения грунтовки)

(п.п. 1, 2.1, 2.3)

Постоянно

Мастер

 

Общий журнал работ

2. Заполнение швов мастикой

2.1. Наличие грунтовки

-«-

-«-

 

 

2.2. Температура нагрева мастики

2.3. Полнота заливки паза

Инструментальный

Термометр

Постоянно

-«-

 

 


Рис. 1. Технологический план потока по устройству цементобетонного покрытия (шириной 7,5 м и толщиной 0,2 м) с использованием комплекта машин ДС-110


3. БЕЗОПАСНОСТЬ ТРУДА

При работе бетоноукладочных машин необходимо соблюдать следующие требования: машины комплекта для скоростного строительства ДС-110 транспортируются на специальных прицепах. При запуске машин необходимо соблюдать правила очередности включения трансмиссии и агрегатов.

При совместной работе бетоноукладочной и бетоноотделочной машин расстояние между ними должно быть не менее 10 м. До остановки машин запрещается находиться между ними. Во время работ машин запрещается становиться на вибробрус и отделочный брус. Необходимо, чтобы на верхней площадке вибробруса (вибродоски) не было бетонной смеси и посторонних предметов. Выгружать бетонную смесь в бункер распределителя можно только после установки автомобиля-самосвала на ручной тормоз и подачи сигнала. Запрещается очищать стенки бункера во время его перемещения и движения машины.

При нарезке швов в затвердевшем бетоне машинист должен выполнять операции в защитных очках и при исправном защитном кожухе режущих дисков. Запрещается регулировать машину в процессе нарезки шва (при вращающихся дисках) и работать при зафиксированном положении диска.

При работе заливщика швов необходимо постоянно следить за состоянием предохранительных клапанов в системе подачи сжатого воздуха. Запрещается снимать крышку с заливщика швов при наличии давления воздуха в емкости, а также регулировать узлы смесительного агрегата или компрессора при работающем двигателе.

При производстве работ по устройству цементобетонного покрытия руководствоваться следующей технической литературой:

1. СНиП III-4-80. Техника безопасности в строительстве.

2. СНиП 12-03-2001. Безопасность труда в строительстве. Часть 1. Общие требования.

3. Спельман Е.П. Техника безопасности при эксплуатации строительных машин и средств малой механизации. - М.: Стройиздат, 1986. - 271 с.: ил.

Технологическая карта № 17

УСТРОЙСТВО ОДИНОЧНОЙ ПОВЕРХНОСТНОЙ ОБРАБОТКИ НА ВЯЗКИХ БИТУМАХ

1. ОБЛАСТЬ ПРИМЕНЕНИЯ

Технологическая карта разработана на основе методов научной организации труда и предназначена для использования при разработке проектов производства работ и организации труда на строительном объекте.

Технологическая карта составлена на устройство одиночной поверхностной обработки на вязких битумах традиционным способом, т.е. при раздельном распределении вяжущего и щебня.

Следует учитывать, что более высокое качество поверхностной обработки достигается при синхронном распределении материалов машинами типа «Чипсилер». Однако ограниченное распространение этих механизмов в дорожно-строительных организациях делает весьма актуальным традиционный способ устройства поверхностной обработки.

Поверхностная обработка - это способ создания шероховатой поверхности покрытия. Она также восстанавливает слой износа и является защитным слоем и, тем самым, продлевает срок службы дорожных покрытий.

При одиночной поверхностной обработке на очищенное от пыли и грязи покрытие разливают органическое вяжущее с последующим распределением черного щебня определенных фракций и его укаткой.

Необработанный щебень допускается применять на дорогах с интенсивностью движения менее 1000 авт./сут.

Вяжущее обеспечивает гидроизоляцию покрытия, приклеивание каменного материала к покрытию или основанию и соединение щебенок в единый слой.

Для выполнения этих функций могут быть использованы разные виды вяжущего:

- для подгрунтовки - битумные эмульсии марок ЭБК-1, ЭБК-2, отвечающие требованиям ГОСТ 18659-81 «Эмульсии битумные дорожные»;

- для обеспечения связей щебенок с покрытием и между собой - вязкие битумы марок БНД 60/90, БНД 90/130, БНД 130/200, отвечающие требованиям ГОСТ 22245-90 «Битумы нефтяные дорожные вязкие. Технические условия». Марка битума выбирается учетом дорожно-климатической зоны.

Щебень следует применять из трудношлифуемых горных пород с преимущественно кубовидной формой зерен, отвечающих требованиям, приведенным в табл. 1. Щебень должен быть чистым, не содержащим пыли и глины.

Таблица 1

Горные породы

Петрографические особенности исходной горной породы

Марки по ГОСТ 8267-93

Примечание

по износу

по прочности

Изверженные

Кристаллические без следов выветривания

И-I

1200

На дорогах всех категорий

Изверженные

Породы с кристаллической и порфировой структурой

И-II

1000

На дорогах II - IV категорий

Метаморфические

Породы с кристаллической структурой без следов выветривания

И-I

1200

На дорогах всех категорий

Осадочные

Породы с явно выраженной зернокристаллической структурой без следов выветривания

И-II

1000

На дорогах III, IV категорий

Щебень должен быть обработан органическим вяжущим материалом в установке по норме 1 - 1,5 % от массы щебня. Для обработки могут быть использованы битумы марок БНД 60/90, БНД 90/130, БНД 130/200, МГ 130/200, МГ 70/130 и др.

При устройстве одиночной поверхностной обработки на капитальных покрытиях применяют однородный по размерам щебень 10 - 15, 15 - 20 мм. Крупные зерна должны отличаться от мелких не более чем на 5 мм.

Основным требованием при выполнении поверхностной обработки является точное дозирование материалов в соответствии с нормами расхода, установленными СНиП 3.06.03-85 «Автомобильные дороги» (табл. 15).

Работы по устройству поверхностной обработки на вязких битумах следует выполнять при температуре воздуха не ниже 15 °С.

В технологической карте принят механизированный способ выполнения работ с применением авто гудронатора ДС-142Б распределителя WS 4100 Vario.

Во всех случаях применения технологической карты необходима привязка ее к конкретным условиям производства работ.

2. ОРГАНИЗАЦИЯ И ТЕХНОЛОГИЯ ПРОИЗВОДСТВА РАБОТ

2.1. До начала работ по устройству поверхностной обработки должно быть полностью завершено строительство дорожного покрытия и принято представителями технического надзора органа управления.

При устройстве поверхностной обработки в рамках ремонта автомобильной дороги необходимо предварительно выполнить заделку трещин, выбоин, исправление кромок и устранение других мелких повреждений.

2.2. Работы по устройству поверхностной обработки ведутся в разработанной технологической последовательности процессов производства работ (табл. 2) на двух захватках по 1350 м каждая.


Таблица 2

Технологическая последовательность процессов с расчетом объемов работ и потребных ресурсов

№ процессов

№ захваток

Источник обоснования норм выработки (ЕНиРы и расчеты)

Описание рабочих процессов в порядке их технологической последовательности с расчетом объемов работ

Единица измерения

Количество работ

Производительность в смену

Потребность в машино-сменах

Затраты труда и заработная плата на 1 захватку длиной 1350 м

Норма времени, чел.-ч

Заработная плата, руб.-коп.

на захватку l = 1350 м

на 1 км

на захватку l = 1350 м

на 1 км

на единицу измерения

на полный объем работ

на единицу измерения

на полный объем работ

1

2

3

4

5

6

7

8

9

10

11

12

13

14

1

I

Расчет

Очистка покрытия от пыли и грязи поливомоечной машиной МД-433-03

км

1,35

1

2

0,68

0,5

4

5,4

74-78

100-95

2

I

Расчет

Подвозка и розлив битумной эмульсии автогудронатором ДС-142Б из расчета 0,8 л на 1 м2 покрытия (подгрунтовка)

т

9,72

7,2

37,4

0,26

0,19

0,42

4,16

8-15

79-22

3

II

Расчет

Подвозка и розлив вязкого битума БНД 90/130 автогудронатором ДС-142Б из расчета 0,6 л на 1 м2

т

7,29

5,4

34,8

0,21

0,16

0,46

3,36

8-15

59-41

4

II

Расчет

Подвоз черненого щебня фр. 10 - 15 мм автосамосвалами КамАЗ-55111 с выгрузкой в бункер щебнераспределителя в количестве 1,2 м3/100 м2 покрытия

м3

145,8

108

74,7

1,95

1,45

0,11

16,04

1-99

290-14

5

II

Расчет

Распределение черненого щебня фр. 10 - 15 мм щебнераспределителем WS 4100 Vario

м2

12150

9000

31100

0,39

0,29

0,0003

3,65

0-01

121-50

6

II

Расчет

Уплотнение слоя самоходным катком на пневматических шинах ДУ-100 за 3 прохода по 1 следу

м2

12150

9000

12120

1,0

0,74

0,0007

8,51

0-01

121-50

7

II

Расчет

Уход за покрытием в течение 3 сут (ограничение скорости движения и регулирование его по полосам)

 

 

 

 

 

 

 

 

 

 

 

 

 

ИТОГО:

 

 

 

 

 

 

 

41,12

 

772-72


2.3. Скорость потока (длина сменной захватки) 1350 м/смену определена из условия, при котором объем вяжущего для основного розлива равен вместимости цистерны автогудронатора ДС-142Б, составляющей 7500 л.

2.4. На первой захватке выполняют следующие технологические операции:

·        очистка покрытия от пыли и грязи;

·        подгрунтовка покрытия битумной эмульсией.

2.4.1. Покрытие очищают от пыли и грязи за два прохода по одному следу поливомоечной машины типа МД-433-03. В первую очередь производят очистку самого покрытия, затем за один проход по каждой обочине пыль и мусор удаляют на откосы.

2.4.2. Подгрунтовка покрытия выполняется битумной эмульсией из расчета 0,8 - 1,2 л/м2 и должна быть закончена не менее чем за 4 ч до розлива вязкого битума. Этого времени достаточно для полного испарения воды после распада битумной эмульсии.

Подгрунтовку вяжущим свежеуложенного асфальтобетонного покрытия можно исключить, если поверхность его чистая.

2.5. На второй захватке выполняют основные технологические операции по устройству одиночной поверхностной обработки на вязких битумах:

·        розлив вяжущего;

·        транспортировку черненого щебня;

·        распределение черненого щебня;

·        укатку поверхностной обработки.

2.5.1. В зависимости от ширины покрытия, а также технических характеристик автогудронатора и распределителя щебня определяют число и ширину устраиваемых полос.

В данном конкретном случае при ширине проезжей части 7,5 м с учетом двух краевых полос по 0,75 м при общей ширине покрытия 9 м целесообразно устраивать 3 полосы по 3 м, что соответствует ширине распределения материала щебнераспределителем WS 4100 Vario.

2.5.2. Розлив вязкого битума для основного слоя выполняют автогудронатором ДС-142Б.

Расход вяжущего на 1 м2 обрабатываемой поверхности не должен превышать 0,5 - 0,7 л при использовании черненого щебня фракции 10 - 15 мм и 0,7 - 0,9 л, если применяется черненый щебень фракции 15 - 20 мм.

Этого количества вяжущего достаточно, чтобы заполнить щебеночное пространство на высоту, равную примерно 2/3 диаметра щебенок, обеспечивающую надежное сцепление с покрытием и исключающую выпотевание битума в период высоких летних температур.

Температура битума во время розлива должна быть:

- для марок БНД 60/90, БНД 90/130 в пределах 130 - 160 °С;

- для марки БНД 130/200 в пределах 100 - 130 °С.

2.5.3. Сменную захватку разбивают на участки розлива битума (рис. 1).

Рис. 1. Схема разбивки сменной захватки на участки розлива битума:

I - III - полосы распределения материала; 1 - разбивка оси полосы распределения; 2 - сигнальные флажки в конце участка розлива; 3 - защитный слой; 4 - автогудронатор

Длину этого участка целесообразно назначать, увязывая почасовые графики работы автогудронатора с распределителем щебня на захватке с учетом запаса производительности автогудронатора (рис. 2).

На захватке длиной 1350 м время работы щебнераспределителя составляет 3,12 ч, автогудронатора ДС-142Б - 1,68 ч. Интервал между этими операциями в конце захватки составит 1,44 ч, что недопустимо, поскольку распределенный битум за такой промежуток времени остывает и, как следствие, теряет свою подвижность и клеящую способность.

Для предотвращения остывания битума необходимо предусматривать остановки автогудронатора через каждые 270 м на 0,28 ч (~ 17 мин), которые целесообразно совмещать с вынужденными остановками для загрузки щебнераспределителя.

2.5.4. Автогудронатор устанавливают в рабочее положение в 2 - 3 м от границы обрабатываемого участка. Такой задел необходим, так как при наборе скорости автогудронатора, равно как и при торможении, нарушается норма распределения вяжущего.

Для обеспечения качества устраиваемого слоя этот участок подхода к границе производства работ также, как и аналогичный, перед остановкой автогудронатора следует закрыть защитным слоем: толем, плотной бумагой (рис. 1).

Начальную и конечную границу участка розлива намечают сигнальными флажками, устанавливаемыми на обочине. В конце участка розлива при прохождении первого (предупредительного) флажка готовятся к перекрытию кранов, а у второго флажка на конечной границе быстро их перекрывают и останавливают автогудронатор.

После окончания розлива защитные материалы убирают.

На участках с продольным уклоном во избежание растекания вяжущего розлив производят при движении автогудронатора на подъем.

Закончив розлив на одной полосе, автогудронатор возвращают к началу захватки и разливают вяжущее на второй, следя за тем, чтобы на стыке полос не было излишков битума или пропусков. Для этого по оси каждой из устраиваемых полос обозначают ориентиры для водителя (см. рис. 1).

Норма розлива контролируется автоматической системой распределения битума.

2.5.5. Черненый щебень доставляют на участок работ автомобилями-самосвалами КамАЗ-55111.


Рис. 2. Технологический план потока по устройству одиночной поверхностной обработки на вязких битумах


Автомобиль-самосвал задним ходом въезжает на разгрузочный мостик и, выгрузив щебень в приемный бункер щебнераспределителя, отъезжает.

Щебень по конвейеру попадает в передний распределительный бункер и с помощью шнека равномерно распределяется по всей ширине бункера и через щель равномерно рассыпается по разлитому вяжущему, при этом колеса распределителя проходят по рассыпанному щебню. По окончании россыпи щебня на одной полосе участка распределитель возвращают к началу и распределяют щебень на второй полосе.

Норма россыпи черненого щебня устанавливается в соответствии с требованиями СНиП 3.06.03-85 «Автомобильные дороги» и составляет (табл. 3):

Таблица 3

Нормы расхода материалов при устройстве одиночной поверхностной обработки на вязких битумах

Фракции щебня, мм

Расход щебня

Расход битума, л/м2

кг/м2

м3/100 м2

10 - 15

15 - 20

1,2 - 1,4

0,5 - 0,7

15 - 20

20 - 25

1,3 - 1,5

0,7 - 0,9

Россыпь щебня по заданной норме достигается регулированием скорости вращения шнеков, барабана, выдающего материал, и скорости передвижения распределителя на первом пробном участке россыпи за 1 - 2 попытки.

Вслед за распределением щебня исправляют дефектные места.

В местах, где образовались излишние скопления вяжущего (жирные пятна), скребком срезают слой щебня с битумом, из леек распределяют вяжущее, засыпают это место новым щебнем и распределяют его слоем в одну щебенку.

2.5.6. Прикатку черненого щебня наиболее целесообразно выполнять катком на пневматических шинах за 4 - 5 проходов по одному следу с нагрузкой на колесо не менее 1,5 т и давлением в шинах 0,7 - 0,8 МПа. Для одноразмерного щебня достаточно двух проходов по одному следу.

Задача укатки - уложить и прижать щебень к вяжущему.

Лучшая шероховатость слоя обеспечивается прикаткой пневматическим катком, исключающим дробление или вдавливание щебня в основу.

Для предотвращения прилипания смеси в процессе укатки вальцы катков смачивают водой, смесью воды и керосина (1:1) или 1 %-ным водным раствором соапстока.

2.5.7. При устройстве поверхностной обработки в рамках ремонта автомобильной дороги необходимо обеспечить бесперебойное движение транспорта.

В этом случае дорожные работы следует производить сначала на I полосе ремонтируемого участка, пропуская транспорт по II и III полосам, затем поочередно закрывают II и III полосы, организовывая движение по двум свободным (рис. 3).

Рис. 3. Схема размещения технических средств организации движения в местах производства дорожных работ:

I - III - очередность устройства поверхностной обработки; 1 - сигнальные фонари или световозвращающие элементы; 2 - ограждающие барьеры; 3 - направляющие конусы; 4 - разметка проезжей части; 5 - кромка краевой укрепительной полосы; 6 - зона дорожных работ; Lотг - длина отгона зоны дорожных работ

2.5.8. Движение при наличии объезда закрывают на сутки, при его отсутствии на 8 ч.

В течение первых 2 - 3 сут эксплуатации необходимо ограничивать скорость движения автомобилей до 40 км/ч и регулировать его по ширине проезжей части.

Уход за поверхностной обработкой состоит в наметании сброшенных щебенок, исправлении сухих мест и углублений, в добавке вяжущего, а в местах избытка вяжущего - в добавке мелкого «белого» щебня.

2.6. Технологическая последовательность процессов по устройству одиночной поверхностной обработки на вязких битумах с расчетом объемов работ и потребных ресурсов приведена в табл. 2, 4.

2.7. Технологический план потока по устройству одиночной поверхностной обработки приведен на рис. 2.

2.7.1. Предлагается следующий график работы автогудронатора при наличии объезда или на участке нового строительства: после распределения вязкого битума (захватка II), количество которого соответствует вместимости цистерны автогудронатора ДС-142Б, предусмотрена его заправка битумной эмульсией для подгрунтовки покрытия (захватка I).

На заправку автогудронатора битумной эмульсией в количестве 7,5 т необходимо 1,55 ч (рис. 1):

Hвр·Q + l/V = 0,14·7,5 + 20/40 = 1,55 ч,

где Hвр   - норма времени на наполнение цистерны автогудронатора по ЕНиР § Е 17-5, ч/т;

Q  - вместимость цистерны автогудронатора, т;

l    - расстояние доставки вяжущего, км;

V  - скорость движения автогудронатора, км/ч.

На захватке I автогудронатор работает 2,08 ч с учетом дозаправки 2,2 т.

Автогудронатор загружен 6,48 ч или 0,81 смены.

2.7.2. При необходимости обеспечения бесперебойного движения транспорта в двух направлениях на участке производства дорожных работ коэффициент загрузки автогудронатора на объекте значительно ниже.

Подгрунтовку очередной полосы следует начинать после открытия движения по вновь уложенному слою.

2.7.3. Технология операционного контроля качества работ при устройстве одиночной поверхностной обработки приведена в табл. 5.

Таблица 4

Состав отряда

Машины

Профессия и разряд рабочего

Потребность в машино-сменах на захватку l = 250 м

Потребность в машинах

Коэффициент загрузки

Количество рабочих

Поливомоечная машина МД-433-03

Машинист IV разряда

0,68

1

0,68

1

Автогудронатор

Машинист V разряда

Дорожные рабочие:

IV разряда

III разряда

II разряда

0,47

1

0,47

2

Автосамосвал КамАЗ-55111

Водитель

1,95

2

0,98

2

Щебнераспределитель WS 4100 Vario

Машинист VI разряда асфальтобетонщик

Дорожный рабочий IV разряда

0,39

1

0,39

11

Каток на пневматических шинах ДУ-100

Машинист VI разряда

1

1

1

1

Итого

 

6

 

11

Примечание. Рабочие бригады выполняют следующие работы.

Машинисты самоходных машин управляют машинами в процессе работ, заправляют машины горючим и водой, готовят их к работе в начале смены и очищают в конце.

Дорожный рабочий III разряда работает в течение смены при щебнераспределителе, дает сигнал на подход автомобилей-самосвалов, ведет учет доставленного щебня, следит за равномерным распределением щебня.

Дорожные рабочие IV, III и II разрядов - 2 выставляют на обочинах сигнальные флажки, намечают шпильками оси полос розлива, выставляют ограждение участка работ, укрывают бумагой участки готовой обработки, граничащие с участками розлива, убирают бумагу после розлива эмульсии. Кроме того, рабочие заняты на устранении дефектных мест, в процессе работы они проволочными щетками сметают наслоения щебня, выравнивают его на кромках покрытия, удаляют жирные пятна и т.д.

Дорожный рабочий IV разряда является старшим и отвечает за качество работ по распределению щебня. В процессе работы он определяет дефектные места и заделывает их, следит за качеством продольных сопряжений.

Машинист автогудронатора подготавливает автогудронатор к розливу, распределяет битумную эмульсию, заполняет автогудронатор битумной эмульсией, обеспечивает ежедневный уход за автогудронатором.

Машинист поливомоечной машины подготавливает машину к работе и очищает покрытие от пыли и грязи.

Машинист катка работает на уплотнении щебня, заправляет горючим и готовит к работе в начале смены.

Машинист щебнераспределителя, подготовив машину к работе, распределяет щебень вслед за розливом битумной эмульсией.

Таблица 5

Технология операционного контроля качества работ при устройстве одиночной поверхностной обработки на вязких битумах

Основные операции, подлежащие контролю

Состав контроля

Метод и средства контроля

Режим и объем контроля

Лицо, осуществляющее контроль

Предельные отклонения от норм контролируемых параметров

Где регистрируются результаты контроля

1

2

3

4

5

6

7

Качество материала

Сцепление пленки вяжущего с щебнем

Лабораторный

По ГОСТ 12801-98

Не реже 1 раза в смену

Лаборант

 

Журнал лабораторных работ

Однородность и чистота щебня

Визуальный

Постоянно

Мастер

 

Общий журнал работ

Розлив битума

Температура битума в автогудронаторе

Инструментальный

Термометр

В каждом автогудронаторе

Мастер

Для БНД 60/90; 90/130 - 130 - 160 °С;

для БНД 130/200 - 100 - 130 °С

Общий журнал работ

 

Равномерность распределения битума

Инструментальный

Взвешивание распределенного материала на площади 0,25 м2

Не реже 1 раза в смену

Мастер

0,5 - 0,7 л/м2

Общий журнал работ

Россыпь черненого щебня

Однородность щебня

Визуальный

Постоянно

Мастер

±5 мм

Общий журнал работ

 

Равномерность распределения щебня

Визуальный

Постоянно

Прораб

 

Общий журнал работ

Уход за поверхностной обработкой

Ограничение скорости

Визуальный Ограждения, сигнальные знаки

Постоянно

Мастер, прораб

До 40 км/ч

Общий журнал работ

Регулирование движения по ширине

Визуальный Ограждения, сигнальные знаки

Постоянно

Мастер, прораб

-

Общий журнал работ

Определение коэффициента сцепления

Инструментальный

ППК-МАДИ

В конце смены на готовом участке

Мастер, лаборант

- для легких условий движения ≥ 0,45;

- для затрудненных условий движения ≥ 0,5;

- для опасных условий движения ≥ 0,6

Общий журнал работ

Определение глубины впадин шероховатости

Инструментальный

Метод «песчаное пятно»

В конце смены на готовом участке

Мастер, лаборант

- для легких условий движения ≥ 0,35;

- для затрудненных условий движения ≥ 0,4;

- для опасных условий движения ≥ 0,45

Общий журнал работ

3. БЕЗОПАСНОСТЬ ТРУДА

3.1. К работам по устройству покрытий с шероховатой поверхностью допускаются лица не моложе 18 лет, прошедшие предварительный медицинский осмотр, а также обучение и инструктаж по безопасности труда в соответствии с ГОСТ 12.0.004-90.

3.2. Лица, допускаемые к эксплуатации дорожных машин и оборудования, используемых при устройстве поверхностной обработки, должны иметь удостоверение на право работы на них.

3.3. Все работающие должны пользоваться средствами индивидуальной защиты, предусмотренными действующими нормами и по защитным свойствам соответствующими виду и условиям работ, а также применяемым материалам.

3.4. Место устройства покрытий с шероховатой поверхностью должно быть ограждено в соответствии с требованиями ВСН 37-84.

3.5. При работе машин по устройству покрытий необходимо соблюдать требования, изложенные СНиП III-4-80.

3.6. При проведении работ необходимо принять меры по обеспечению безопасности движения. С этой целью на участках проведения работ до их начала устанавливают временные дорожные знаки, ограждения и направляющие устройства, а в необходимых случаях устраивают объезд. Ограждение места работ производят с помощью ограждающих щитов, штакетных барьеров, стоек, вешек, конусов, шнуров с цветными флажками, сигнальных огней. Установку технических средств организации движения производят в соответствии с ВСН 37-84.

Схемы организации движения и ограждения мест работ независимо от того, являются они типовыми или индивидуальными, а также сроки проведения работ утверждаются руководителем дорожной организации и согласовываются с органами ГИБДД.

При составлении схем организации движения в местах проведения дорожных работ необходимо обеспечить выполнение следующих требований:

·        предупредить заранее водителей транспортных средств и пешеходов об опасности, вызванной дорожными работами и показать характер этой опасности;

·        четко обозначить направление объезда имеющихся на проезжей части препятствий, а при устройстве объезда ремонтируемого участка - его маршрут;

·        создать безопасный режим движения транспортных средств и пешеходов на подходах и на участках проведения дорожных работ.

При работах, имеющих подвижный и краткосрочный характер, временные знаки можно размещать на переносных ограждающих барьерах, щитах, а также на автомобилях и самоходных дорожных машинах, участвующих в работе. В темное время суток дорожные машины и оборудование должны находиться за пределами земляного полотна. В случае невозможности выполнения этого требования, дорожные машины должны быть ограждены с обеих сторон барьерами с сигнальными фонарями желтого цвета, зажигаемыми с наступлением темноты, с установкой барьеров на расстоянии 10 - 15 м от машины.

Выполнение требований по организации движения и техники безопасности в местах производства дорожных работ возлагается на инженерно-технический персонал, который непосредственно руководит производством работ (руководителя организации, главного инженера, начальника участка, прораба, мастера).

При производстве работ по устройству земляного полотна бульдозером руководствуются следующей технической литературой:

1. СНиП III-4-80. Техника безопасности в строительстве.

2. СНиП 12-03-2001. Безопасность труда в строительстве. Часть 1. Общие требования.

3. ТОИ Р-218-07-93. Типовая инструкция по охране труда для машиниста катка.

4. ТОИ Р-218-26-94. Типовая инструкция по охране труда для машиниста автополивомоечной машины.

5. Спельман Е.П. Техника безопасности при эксплуатации строительных машин и средств малой механизации. - М.: Стройиздат, 1986. - 271 с.: ил.

Технологическая карта № 18

УСТРОЙСТВО ДВОЙНОЙ ПОВЕРХНОСТНОЙ ОБРАБОТКИ С ПРИМЕНЕНИЕМ КАТИОННЫХ БИТУМНЫХ ЭМУЛЬСИЙ

1. ОБЛАСТЬ ПРИМЕНЕНИЯ

Технологическая карта разработана на основе методов научной организации труда и предназначена для использования при разработке проектов производства работ и организации труда на строительном объекте.

Технологическая карта составлена на устройство двойной поверхностной обработки с использованием катионных битумных эмульсий при раздельном распределении вяжущего и щебня.

Следует учитывать, что более высокое качество поверхностной обработки достигается при синхронном распределении материалов машинами типа «Би-мажор». Однако их ограниченное распространение в дорожно-строительных организациях делает весьма актуальным традиционный способ устройства двойной поверхностной обработки.

Поверхностная обработка - наиболее распространенный способ повышения шероховатости дорожных покрытий. Она позволяет также восстанавливать слой износа и, тем самым, продлевать срок службы дорожного покрытия.

При двойной поверхностной обработке розлив вяжущего выполняют в два приема с распределением щебня и его уплотнением после каждого розлива.

Этот способ поверхностной обработки применяют при высокой интенсивности движения на дорогах, а также на цементобетонных покрытиях.

Вяжущее обеспечивает гидроизоляцию покрытия, приклеивание каменного материала к покрытию и соединение щебенок в единый слой.

При устройстве поверхностной обработки с использованием битумных эмульсий следует применять преимущественно катионные эмульсии ЭБК-1, ЭБК-2. Эмульсии должны выдерживать испытание на сцепление плёнки вяжущего с щебнем по ГОСТ 18659-81 «Эмульсии битумные дорожные».

При устройстве поверхностной обработки с применением катионных битумных эмульсий следует использовать щебень, не обработанный предварительно органическими вяжущими.

Щебень следует применять из трудношлифуемых горных пород с преимущественно кубовидной формой зерен, отвечающих требованиям, приведенным в табл. 1. Щебень должен быть чистым, не содержащим пыли и глины.

Таблица 1

Горные породы

Петрографические особенности исходной горной породы

Марки по ГОСТ 8267-93

Примечание

по износу

по прочности

Изверженные

Кристаллические без следов выветривания

И-I

1200

На дорогах всех категорий

Изверженные

Породы с кристаллической и порфировой структурой

И-II

1000

На дорогах II - IV категорий

Метаморфические

Породы с кристаллической структурой без следов выветривания

И-I

1200

На дорогах всех категорий

Осадочные

Породы с явно выраженной зернокристаллической структурой без следов выветривания

И-II

1000

На дорогах III, IV категорий

Для первой россыпи применяют щебень фракций 15 - 20 или 20 - 25 мм, для второй соответственно - фракций 5 - 10 или 10 - 15 мм.

Основным требованием при выполнении поверхностной обработки является точное дозирование материалов, в соответствии с нормами расхода, установленными СНиП 3.06.03-85 «Автомобильные дороги» (табл. 15).

Работы по устройству поверхностной обработки на битумных эмульсиях допускается выполнять при температуре воздуха не ниже 5 °С.

При температуре воздуха ниже 20 °С следует применять эмульсии с концентрацией битума 55 - 60 % и температурой 40 - 50 °С.

При температуре воздуха выше 20 °С подогревать эмульсию не следует, а концентрация битума может быть снижена на 50 %.

В технологической карте принят механизированный способ выполнения работ с применением автогудронатора СД-203 и распределителя щебня WS 4100 Vario. Вместимость цистерны автогудронатора - 10000 л, бункера щебнераспределителя - 5 т.

Во всех случаях применения технологической карты необходима привязка ее к конкретным условиям производства работ.

2. ОРГАНИЗАЦИЯ И ТЕХНОЛОГИЯ ПРОИЗВОДСТВА РАБОТ

2.1. До начала работ по устройству поверхностной обработки должно быть полностью завершено строительство дорожного покрытия и принято представителями технического надзора органа управления.

При устройстве поверхностной обработки в рамках ремонта автомобильной дороги необходимо предварительно выполнить заделку трещин, выбоин, исправление кромок и устранение других повреждений.

2.2. Работы по устройству двойной поверхностной обработки ведутся в разработанной технологической последовательности процессов производства работ, представленной в табл. 2.

2.3. Скорость потока (длина сменной захватки) 1000 м/смену определена из условия наиболее полного использования автогудронатора СД-203 в течение смены (рис. 1).

2.4. Работы по устройству двойной поверхностной обработки с применением битумной эмульсии следует производить по чистой увлажненной водой (из расчета 0,5 л/м2) поверхности.

Покрытие очищают от пыли и грязи за два прохода по одному следу поливомоечной машины МД-433-03. В первую очередь производят очистку самого покрытия, затем за один проход по каждой обочине пыль и мусор удаляют на откосы.


Таблица 2

Технологическая последовательность процессов с расчетом объемов работ и потребных ресурсов

№ процессов

№ захваток

Источник обоснования норм выработки (ЕНиРы и расчеты)

Описание рабочих процессов в порядке их технологической последовательности с расчетом объемов работ

Единица измерения

Количество работ на захватку l = 1000 м

Производительность в смену

Потребность в машино-сменах на захватку l = 1000 м

Затраты труда и заработная плата на захватку длиной 1350 м

Норма времени, чел.-ч

Заработная плата, руб.-коп.

на единицу измерения

на полный объем работ

на единицу измерения

на полный объем работ

1

2

3

4

5

6

7

8

9

10

11

12

1

 

Расчет

Очистка покрытия от пыли и грязи поливомоечной машиной МД-433-03 за 2 прохода по одному следу

км

1

2

0,5

4

4

74-24

74-24

2

 

Расчет

Поливка покрытия водой поливомоечной машиной МД-433-03 из расчета 0,5 л/м2

т

4,5

100

0,045

0,08

0,36

1-48

6-66

3

 

Расчет

Подвозка быстрораспадающейся битумной эмульсии автогудронатором СД-203 и первый розлив вяжущего в количестве 30 % от нормы, т.е. 0,8 л/м2 (при концентр, битума в эмульсии 50 %)

т

7,2

33,3

0,22

0,48

3,46

9-31

67-03

4

 

Расчет

Подвозка щебня фр. 15 - 20 мм автосамосвалами КамАЗ-55111 с выгрузкой в бункер щебнераспределителя WS 4100 Vario при дальности транспортировки 10 км

м3

126

74,7

1,69

0,11

13,86

1-99

250-74

5

 

Расчет

Первая россыпь щебня щебнераспределителем WS 4100 Vario из расчета 70 % от нормы, т.е. 1,4 м3 на 100 м2

м3

9000

31100

0,29

0,0003

2,7

0-006

54-00

6

 

Расчет

Уплотнение слоя тяжелым катком на пневматических шинах ДУ-100 за 3 прохода по 1 следу

м2

9000

12120

0,74

0,0007

6,3

0-01

90-00

7

 

Расчет

Подвозка быстрораспадающейся эмульсии автогудронатором СД-203 и второй розлив вяжущего из расчета 70 % от нормы, т.е. 2,2 л/м2

т

19,8

41,1

0,48

0,38

7,52

7-39

146-32

8

 

Расчет

Подвозка щебня фр. 5 - 10 мм автосамосвалами КамАЗ-55111 с выгрузкой в бункер щебнераспределителя WS 4100 Vario при дальности транспортировки 10 км

м<

54

74,7

0,72

0,11

5,94

1-99

107-46

9

 

Расчет

Вторая россыпь щебня щебнераспределителем WS 4100 Vario из расчета 30 % от нормы, т.е. 0,6 м3 на 100 м2

м2

9000

34600

0,26

0,0002

U8

0-005

45-00

10

 

Расчет

Уплотнение слоя тяжелым катком на пневматических шинах ДУ-100 за 3 прохода по 1 следу

м2

9000

12120

0,74

0,0007

6,3

0-01

90-00

11

 

Расчет

Уход за слоем износа и регулировка движения по ширине проезжей части в течение первых 2 - 3 суток при ограничении скорости автомобилей до 40 км/ч

-

-

-

-

-

-

-

-

 

 

 

ИТОГО:

 

 

 

 

 

52,24

 

931-45

Рис. 1. Технологический план потока по устройству двойной поверхностной обработки с использованием быстрораспадающихся катионных битумных эмульсий


2.5. Розлив эмульсии и распределение щебня производят за два раза в такой последовательности:

·        розлив эмульсии в количестве 30 % нормы;

·        россыпь 70 % нормы щебня;

·        розлив остального количества эмульсии (70 % нормы);

·        распределение оставшихся от нормы 30 % щебня;

·        укатка слоя двойной поверхностной обработки.

2.5.1. В зависимости от ширины покрытия, а также технических характеристик автогудронатора и распределителя щебня определяют число и ширину устраиваемых полос.

В данном конкретном случае при ширине проезжей части 7,5 м с учетом двух краевых полос по 0,75 м при общей ширине покрытия 9 м целесообразно устраивать 3 полосы по 3 м, что соответствует ширине распределения материала щебнераспределителем WS 4100 Vario.

2.5.2. Розлив битумной эмульсии выполняют авто гудронатором ДС-142Б.

Расход вяжущего на 1 м2 обрабатываемой поверхности должен соответствовать нормам, установленным СНиП 3.06.03-85 «Автомобильные дороги».

Нормативный расход битумной эмульсии обеспечивает заполнение остаточным вяжущим межщебеночного пространства на высоту, обеспечивающую надежное сцепление с покрытием и исключающую выпотевание битума в период высоких летних температур.

2.5.3. При составлении почасовых графиков следует учитывать, что, в силу различной производительности автогудронатора и щебнераспределителя, часто имеет место недопустимо длительный интервал между операциями по распределению вяжущего и щебня.

В данном конкретном случае (рис. 1) на захватке длиной 1000 м время работы щебнераспределителя составляет 2,32 ч, автогудронатора СД-203 - 1,76 ч. Интервал между этими операциями в конце захватки составит 0,56 ч, что недопустимо, поскольку за такой промежуток времени процесс распада битумной эмульсии может завершиться полностью или частично.

Во избежание этого необходимо предусматривать остановки автогудронатора через каждые 200 м на 0,11 ч (~ 7 мин), которые целесообразно совмещать с вынужденными остановками для загрузки щебнераспределителя.

2.5.4. Автогудронатор устанавливают в рабочее положение в 2 - 3 м от границы обрабатываемого участка. Такой задел необходим, так как при наборе скорости автогудронатора, равно как и при торможении, нарушается норма распределения вяжущего.

Для обеспечения качества устраиваемого слоя этот участок подхода к границе производства работ, так же как и аналогичный, перед остановкой автогудронатора следует закрыть защитным слоем: толем, плотной бумагой.

Начальную и конечную границу участка розлива намечают сигнальными флажками, устанавливаемыми на обочине.

В конце участка розлива при прохождении первого (предупредительного) флажка готовятся к перекрытию кранов, а у второго флажка на конечной границе быстро их перекрывают и останавливают автогудронатор.

После окончания розлива защитные материалы убирают.

На участках с продольным уклоном во избежание растекания вяжущего розлив производят при движении автогудронатора на подъем.

Закончив розлив на одной полосе, автогудронатор возвращают к началу захватки и разливают вяжущее на второй, следя за тем, чтобы на стыке полос не было излишков битумной эмульсии или пропусков. Для этого по оси каждой из устраиваемых полос обозначают ориентиры для водителя.

Норма розлива контролируется автоматической системой распределения вяжущего.

2.5.5. Щебень доставляют на участок работ автомобилями-самосвалами КамАЗ-55111.

Автомобиль-самосвал задним ходом въезжает на разгрузочный мостик и, выгрузив щебень в приемный бункер щебнераспределителя, отъезжает.

Щебень по конвейеру попадает в передний распределительный бункер и с помощью шнека равномерно распределяется по всей ширине бункера и через щель равномерно рассыпается по разлитому вяжущему, при этом колеса распределителя проходят по рассыпанному щебню. По окончании россыпи щебня на одной полосе участка распределитель возвращают к началу и распределяют щебень на второй полосе.

Норма россыпи щебня устанавливается в соответствии со СНиП 3.06.03-85 «Автомобильные дороги» и составляет (табл. 3):

Таблица 3

Нормы расхода материалов при устройстве двойной поверхностной обработки

Фракции щебня, мм

Расход щебня, м3/100 м2

Расход эмульсии, л2, при концентрации битума, %

60

50

15 - 20

Первая россыпь 1,1 - 1,3

1,5 - 1,8

1,8 - 2,2

5 - 10

Вторая россыпь 0,7 - 1,0

1,3 - 1,5

1,5 - 1,8

Примечание. При устройстве поверхностной обработки с применением катионных битумных эмульсий следует использовать щебень, не обработанный предварительно органическими вяжущими, при использовании анионных эмульсий - преимущественно черненый щебень.

Россыпь щебня по заданной норме достигается регулированием скорости вращения шнеков, барабана, выдающего материал, и скорости передвижения распределителя на первом пробном участке россыпи за 1 - 2 попытки.

Вслед за распределением щебня исправляют дефектные места.

В местах, где образовались излишние скопления вяжущего (жирные пятна), скребком срезают слой щебня с эмульсией, из леек распределяют вяжущее, засыпают это место новым щебнем и распределяют его слоем в одну щебенку.

2.5.6. Прикатку щебня наиболее целесообразно выполнять катком на пневматических шинах за 4 - 5 проходов по одному следу с нагрузкой на колесо не менее 1,5 т и давлением в шинах 0,7 - 0,8 МПа. Для одноразмерного щебня достаточно двух проходов по одному следу.

Задача укатки - уложить и прижать щебень к вяжущему.

Лучшая шероховатость слоя обеспечивается прикаткой пневматическим катком, исключающим дробление или вдавливание щебня в основу.

Для предотвращения прилипания смеси в процессе укатки вальцы катков смачивают водой, смесью воды и керосина (1:1) или 1-процентным водным раствором соапстока.

2.5.7. При устройстве поверхностной обработки в рамках ремонта автомобильной дороги необходимо обеспечить бесперебойное движение транспорта.

В этом случае дорожные работы следует производить сначала на I полосе ремонтируемого участка, пропуская транспорт по II и III полосам, затем поочередно закрывают II и III полосы, организовывая движение по двум свободным (рис. 2).

2.5.8. Движение при наличии объезда закрывают на сутки, при его отсутствии - на 8 ч.

В течение первых 2 - 3 сут эксплуатации необходимо ограничивать скорость движения автомобилей до 40 км/ч и регулировать его по ширине проезжей части.

Уход за поверхностной обработкой состоит в наметании сброшенных щебенок, исправлении сухих мест и углублений, в добавке вяжущего, а в местах избытка вяжущего - в добавке мелкого «белого» щебня.

2.6. Технологическая последовательность процессов по устройству двойной поверхностной обработки с применением катионных битумных эмульсий с расчетом объемов работ и потребных ресурсов приведена в табл. 2, 4.

Рис. 2. Схема размещения технических средств организации движения в местах производства дорожных работ:

I - III - очередность устройства поверхностной обработки; 1 - сигнальные фонари или световозвращающие элементы; 2 - ограждающие барьеры; 3 - направляющие конусы; 4 - разметка проезжей части; 5 - кромка краевой укрепительной полосы; 6 - зона дорожных работ; Lотг - длина отгона зоны дорожных работ

Таблица 4

Состав отряда

Машины

Профессия и разряд рабочего

Потребность в машино-сменах на захватку l = 250 м

Потребность в машинах

Коэффициент загрузки

Количество рабочих

Поливомоечная машина МД-433-03

Машинист IV разряда

0,545

1

0,545

1

Автогудронатор

Машинист V разряда,

Машинист IV разряда

0,7

1

0,7

2

Автосамосвал КамАЗ-55118

Водитель

2,41

3

0,8

3

Щебнераспределитель WS 4100 Vario

Машинист VI разряда

0,55

1

0,55

1

Каток на пневматических шинах ДУ-100

Машинист VI разряда

1,48

2

0,74

2

Итого

 

8

 

8

2.7. Технологический план потока по устройству двойной поверхностной обработки при наличии объезда или на участке нового строительства приведен на рис. 1.

2.8. Технология операционного контроля качества работ при устройстве одиночной поверхностной обработки приведена в табл. 5.

Таблица 5

Технология операционного контроля качества работ при устройстве двойной поверхностной обработки с применением катионных битумных эмульсий

Основные операции, подлежащие контролю

Состав контроля

Метод и средства контроля

Режим и объем контроля

Лицо, осуществляющее контроль

Предельные отклонения от норм контролируемых параметров

Где регистрируются результаты контроля

1

2

3

4

5

6

7

Качество материала

Сцепление пленки вяжущего с щебнем

Лабораторный

По ГОСТ 18659-81

Не реже 1 раза в смену

Лаборант

По ГОСТ 18659-81

Журнал лабораторных работ

Однородность и чистота щебня

Визуальный

Постоянно

Мастер

 

Общий журнал работ

Розлив вяжущего

Температура битумной эмульсии в автогудронаторе

Инструментальный

Термометр

В каждом автогудронаторе

Мастер

Для БНД 60/90; 90/130 - 130 - 160 °С;

для БНД 130/200 - 100 - 130 °С

Общий журнал работ

Равномерность распределения битумной эмульсии

Инструментальный

Взвешивание распределенного материала на площади не менее 0,25 м2

Не реже 1 раза в смену

Мастер

При первой россыпи 1,8 - 2,2 л/м2; при второй россыпи 1,5 - 1,8 л/м2

Общий журнал работ

Россыпь щебня

Однородность щебня

Визуальный

Постоянно

Мастер

±5 мм

Общий журнал работ

Равномерность распределения щебня

Визуальный

Постоянно

Прораб

-

Общий журнал работ

Уход за поверхностной обработкой

Ограничение скорости

Визуальный

Ограждения, сигнальные знаки

Постоянно

Мастер, прораб

До 40 км/ч

Общий журнал работ

Регулирование движения по ширине

Визуальный

Ограждения, сигнальные знаки

Постоянно

Мастер, прораб

-

Общий журнал работ

Определение коэффициента сцепления

Инструментальный

ППК-МАДИ

В конце смены на готовом участке

Мастер, лаборант

- для легких условий движения ≥ 0,45;

- для затрудненных условий движения ≥ 0,5;

- для опасных условий движения ≥ 0,6

Общий журнал работ

Определение глубины впадин шероховатости

Инструментальный

Метод «песчаное пятно»

В конце смены на готовом участке

Мастер, лаборант

- для легких условий движения ≥ 0,35;

- для затрудненных условий движения ≥ 0,4;

- для опасных условий движения ≥ 0,45

Общий журнал работ

3. БЕЗОПАСНОСТЬ ТРУДА

3.1. К работам по устройству покрытий с шероховатой поверхностью допускаются лица не моложе 18 лет, прошедшие предварительный медицинский осмотр, а также обучение и инструктаж по безопасности труда в соответствии с ГОСТ 12.0.004-90.

3.2. Лица, допускаемые к эксплуатации дорожных машин и оборудования, используемых при устройстве поверхностной обработки, должны иметь удостоверение на право работы на них.

3.3. Все работающие должны пользоваться средствами индивидуальной защиты, предусмотренными действующими нормами и по защитным свойствам соответствующими виду и условиям работ, а также применяемым материалам.

3.4. Место устройства покрытий с шероховатой поверхностью должно быть ограждено в соответствии с требованиями ВСН 37-84.

3.5. При работе машин по устройству покрытий необходимо соблюдать требования, изложенные в СНиП III-4-80.

3.6. При проведении работ необходимо принять меры по обеспечению безопасности движения. С этой целью на участках проведения работ до их начала устанавливают временные дорожные знаки, ограждения и направляющие устройства, а в необходимых случаях устраивают объезд. Ограждение места работ производят с помощью ограждающих щитов, штакетных барьеров, стоек, вешек, конусов, шнуров с цветными флажками, сигнальных огней. Установку технических средств организации движения производят в соответствии с ВСН 37-84.

Схемы организации движения и ограждения мест работ независимо от того, являются они типовыми или индивидуальными, а также сроки проведения работ утверждаются руководителем дорожной организации и согласовываются с органами ГИБДД.

При составлении схем организации движения в местах проведения дорожных работ необходимо обеспечить выполнение следующих требований:

- предупредить заранее водителей транспортных средств и пешеходов об опасности, вызванной дорожными работами и показать характер этой опасности;

- четко обозначить направление объезда имеющихся на проезжей части препятствий, а при устройстве объезда ремонтируемого участка - его маршрут;

- создать безопасный режим движения транспортных средств и пешеходов на подходах и на участках проведения дорожных работ.

При работах, имеющих подвижный и краткосрочный характер, временные знаки можно размещать на переносных ограждающих барьерах, щитах, а также на автомобилях и самоходных дорожных машинах, участвующих в работе. В темное время суток дорожные машины и оборудование должны находиться за пределами земляного полотна. В случае невозможности выполнения этого требования, дорожные машины должны быть ограждены с обеих сторон барьерами с сигнальными фонарями желтого цвета, зажигаемыми с наступлением темноты, с установкой барьеров на расстоянии 10 - 15 м от машины.

Выполнение требований по организации движения и техники безопасности в местах производства дорожных работ возлагается на инженерно-технический персонал, который непосредственно руководит производством работ (руководителя организации, главного инженера, начальника участка, прораба, мастера).

При производстве работ по устройству земляного полотна бульдозером руководствуются следующей технической литературой:

1. СНиП III-4-80. Техника безопасности в строительстве.

2. СНиП 12-03-2001. Безопасность труда в строительстве. Часть 1. Общие требования.

3. ТОИ Р-218-07-93. Типовая инструкция по охране труда для машиниста катка.

4. ТОИ Р-218-26-94. Типовая инструкция по охране труда для машиниста автополивомоечной машины.

5. Спельман Е.П. Техника безопасности при эксплуатации строительных машин и средств малой механизации. - М.: Стройиздат, 1986. - 271 с.: ил.

Технологическая карта № 19

РЕГЕНЕРАЦИЯ ДОРОЖНОЙ ОДЕЖДЫ МЕТОДОМ ХОЛОДНОГО РЕСАЙКЛИНГА С ПРИМЕНЕНИЕМ РЕСАЙКЛЕРА WR 2500 И СМЕСИТЕЛЬНОЙ УСТАНОВКИ WM 400

1. ОБЛАСТЬ ПРИМЕНЕНИЯ

1.1. Технологическая карта разработана на основе методов научной организации труда и предназначена для использования при разработке проектов производства работ и организации труда при строительстве, реконструкции и капитальном ремонте автомобильных дорог.

1.2. Карта составлена на регенерацию дорожной одежды, укрепляемой цементно-водной суспензией, методом холодного ресайклинга при реконструкции дороги с шириной проезжей части 7 м. Реконструируемая дорога характеризуется следующими дефектами: ямочностью, выбоинами, келейностью и другими дефектами асфальтобетонного покрытия и основания. Общая толщина регенерируемого слоя дорожной одежды 20 см, включая выравнивающий слой (или слой усиления) толщиной 6 см (рис. 1).

Рис. 1. Конструкция дорожной одежды

В качестве ведущего механизма принят комплект машин фирмы «Wirtgen», состоящий из ресайклинга WR 2500 и мобильной смесительной установки с рабочей скоростью регенерирования 5 м/мин, сменной длиной захватки 600 м или 4000 м2 основания.

Состав отряда вспомогательных механизмов включает: катки BW 161 AC, VP 200 и BW 216, автогрейдер ДЗ-122, универсальную машину КО806-06 для подвоза воды и увлажнения поверхности, автоцементовоз ТЦ-12, гудронатор ДС-39Б, автосамосвал КамАЗ-55111.

1.3. Ресайклер WR 2500 в комплекте со смесительной установкой WM 400 предназначен для дробления, измельчения материалов конструкционных слоев существующей дорожной одежды, приготовления и равномерного введения в смесь цементобетонной суспензии, перемешивания всех компонентов укрепленных смесей.

Ресайклер позволяет также обрабатывать укрепленные смеси органическими вяжущими (битум, вспененный битум или битумная эмульсия) или комплексными вяжущими, состоящими из минеральных органических компонентов.

2. ОРГАНИЗАЦИЯМ ТЕХНОЛОГИЯ ПРОИЗВОДСТВА РАБОТ

2.1. До начала работы ресайклера WR 2500 и смесительной установки WM 400 должны быть выполнены следующие работы:

·        в лабораторных условиях подобраны оптимальные составы укрепленных смесей на основе материалов конструкции всех слоев существующей дорожной одежды и конкретного минерального вяжущего, определены физико-механические свойства укрепленных смесей, которые должны удовлетворять требованиям ГОСТ 23558-94 «Смеси щебеночно-гравийно-песчаные и грунты, обработанные неорганическими вяжущими материалами, для дорожного и аэродромного строительства. Технические условия». При работе с органическими вяжущими следует руководствоваться ГОСТ 30491-97 «Смеси органоминеральные и грунты, укрепленные вяжущими, для дорожного и аэродромного строительства»;

·        очищена поверхность основания (покрытия) существующей дороги;

·        устроен выравнивающий слой (или слой усиления), толщина которого определяется проектом;

·        закреплена правая кромка основания колышками для определения контура движения ресайклера.

2.2. Поверхность существующего покрытия очищается от пыли и грязи универсальной машиной типа КО 806-06, оснащенной механической щеткой. Очистка поверхности может проводиться как в сухом, так и в увлажненном состоянии.

2.3. Для устройства выравнивающего слоя или слоя усиления применяется щебень фракции 5 - 40 мм. Для дорог IV - V технических категорий разрешается применение слабопрочных известняков-ракушечников. Фракция щебня 5 - 40 мм рекомендуется для создания условий наиболее благоприятных для работы ресайклера WR 2500.

2.4. Распределение и профилирование выравнивающего слоя толщиной 6 см производится автогрейдером ДЗ-122 за 6 проходов по ширине дороги при рабочем ходе в одном направлении.

Спрофилированный слой щебня подкатывается самоходным вибрационным катком BW 216 за 4 прохода по одному следу. Масса катка BW 216 составляет 16 т, с включенным вибратором - 35 т. Щебень уплотняется в следующем режиме: первый и последний проходы без включения вибратора, второй и третий - с включенным вибратором.

2.5. В связи с отсутствием у ресайклера WR 2500 автоматизированной следящей системы за курсом движения и высотными отметками, направление его движения при первой проходке закрепляется колышками, расположенными по правому краю дороги по ходу движения машины. Колышки устанавливаются на прямолинейном участке дороги через 10 м, на кривых - через 4 - 5 м. В разбивочных работах принимает участие инженер-геодезист.

При следующих проходах ресайклера ориентиром является правая кромка регенерированной полосы.

2.6. Для обеспечения беспрерывной работы комплекта машин мобильная смесительная установка WM 400 должна регулярно обеспечиваться подвозкой цемента и воды. Общая вместимость двух бункеров цемента смесительной установки составляет 25 т, вместимость бака воды - 8,5 т.

В данной технологической карте доставка цемента предусмотрена автоцементовозом ТЦ-12 с цистерной вместимостью 6 м3 и скоростью передвижения 40 км/ч. Подвозка воды осуществляется универсальной машиной КО 806-06 с объемом бака для воды 8 м3. Синхронизируя скорости рабочего хода ресайклера и автоцементовоза с универсальной машиной КО 806-06, разгрузка цемента и воды в бункера смесительной установки может производиться во время работы комплекта.

2.7. Комплект машин: ресайклер WR 2500 и мобильная смесительная установка WM 400 могут использоваться для стабилизации грунтов (повышение их несущей способности), измельчения твердых материалов (грунта, каменных материалов, асфальтобетона), холодного ресайклинга существующей дорожной одежды, когда после фрезерования используются все 100 % материалов, а также при новом строительстве, используя метод смешения на дороге.

Смесительная установка WM 400 представляет собой цельнометаллическую передвижную конструкцию, на которой размещены бункера для хранения цемента, емкость - для воды, система шнеков и труб с дозирующими устройствами для подачи цемента и воды в смеситель непрерывного действия для приготовления цементоводной суспензии, непосредственно смеситель, насос и шланг для подачи суспензии в распределительную систему ресайклера WR 2500. Производительность смесителя по цементоводной суспензии - до 500 л/мин.

Смесительная установка WM 400 оснащена двигателем внутреннего сгорания с генератором для обеспечения электроэнергией электродвигателей шнеков, смесителя, насосов и дозаторов. WM 400 не имеет автономного двигателя для передвижения по трассе, но снабжена рулевым управлением для ориентации во время работы. WM 400 приводится в движение ресайклером WR 2500 за счет жесткой сцепки, объединяющей машины в единый агрегат.

Качественное перемешивание водоцементной суспензии, подача оптимального количества в регенерируемый слой, дозирование цемента и воды в зависимости от естественной влажности материалов и заданной плотности, контроль за расходом материалов и т.д. обеспечивает бортовая система ЭВМ установки WM 400.

2.8. Ресайклер WR 2500 расположен на шасси сварной конструкции, составной частью которого является водяной бак для вспенивания битума. Колеса закреплены на направляющих круглого сечения. Машина может гидравликой подниматься и спускаться на этих направляющих в рабочее и транспортное положение. Каждое колесо ресайклера приводится во вращение своим гидродвигателем, что обеспечивает машине легкое управление и маневренность. Ресайклер имеет четыре передачи для рабочего и транспортного режимов движения. Как правило, рабочая скорость ресайклера варьируется в пределах 2 - 12 м/мин, что зависит от вида и прочности регенерируемых материалов.

Основным рабочим органом ресайклера является фрезерный барабан диаметром 860 мм. К поверхности барабана приварены держатели для резцов с круглым стержнем. Конструкция резцедержателей позволяет, используя слесарный инструмент, заменять вышедшие из строя резцы на месте работы. Ресайклер обеспечен четырьмя компонентами различных резцов, предназначенных для разных типов перерабатываемого материала. С учетом высоты установленных резцов диаметр 1480 мм, что определяет максимальную высоту фрезеруемого слоя - 500 мм. Специальные краевые сегменты с резцами позволяют получать чистые стенки отфрезерованной полосы.

Фрезерный барабан заключен в герметичную рабочую камеру с изменяемым объемом, что повышает качество измельчения материалов и практически ликвидирует выброс пыли в окружающую среду.

Рабочая камера имеет шумоизоляцию, которая значительно снижает уровень создаваемого ею шума. Ширина фрезерного барабана, а, следовательно, и регенерируемой полосы 2438 мм. За фрезерным барабаном расположен регулируемый по высоте зачистной отвал, который улучшает качество перемешивания, создает ровную поверхность сфрезерованного материала за ресайклером.

Ресайклер имеет две автономные системы по подаче и распределению на всю ширину фрезеруемой полосы цементоводной суспензии, подаваемой из WM 400 и органического вяжущего в жидком состоянии - из битумовоза. При работе с органическими вяжущими битумопроводы обогреваются для поддержания рабочей температуры битума (180 - 200 °С). Для распределения цементоводной суспензии на соответствующей гребенке расположено восемь форсунок, для органического вяжущего - 16. Оператор ресайклера WR 2500 имеет возможность с пульта управления при необходимости перекрыть одну или группу форсунок.

Для обеспечения долгосрочной и бесперебойной работы ресайклера WR 2500 следует иметь в виду:

- при прочности каменных материалов более 800 (по дробности) резцы фрезерного барабана изнашиваются значительно интенсивнее;

- при работе ресайклера в городских условиях и на дорогах I и II технических категорий толщина регенерируемого асфальтобетонного слоя не должна превышать 12 - 13 см, если толщина асфальтобетонного слоя превышает указанные величины, то предварительно избыток слоя по высоте должен быть срезан дорожными фрезами;

- оптимальная высота регенерируемого слоя 25 - 30 см;

- водоцементное отношение в пределах 0,5 - 1,0;

- максимальное количество вводимого цемента более 6 % от массы регенерируемого слоя. Если для достижения марок укрепленных смесей более М60 необходимо вводить цемента более 6 %, то это достигается двумя проходами ресайклера по одному следу.

При проходе ресайклера двух или более полос по ширине основания смежные полосы перекрывают от 10 до 30 см с одновременным отклонением одной форсунки для подачи суспензии при повторном проходе (рис. 2). Ресайклер регенерирует дорожную одежду в одном направлении, и рабочая скорость, указанная в настоящей техкарте, составляет 5 м/мин. Скорость обратного (холостого) хода составляет 18 - 25 м/мин.

Ресайклер WR 2500 и смесительная установка WM 400 обслуживают два звена, состоящих из машиниста VI разряда, помощника машиниста V разряда и двух дорожных рабочих III разряда.

2.9. После начала работы ресайклера за ним с интервалом 4 - 5 м по регенерируемой полосе (между колес ресайклера) с такой же скоростью движется вибрационный каток BW 161 АС (масса катка - 9,5 т, при включенном вибраторе - 27,2 т) для прикатки разрыхлительной смеси и предотвращения интенсивного влагоиспарения, особенно при повышенной температуре воздуха. Одновременно каток подготавливает сфрезерованный слой под профилирование автогрейдером ДЗ-122. Эта технологическая операция осуществляется за два прохода катка по одному следу.

Рис. 2. Схема работы ресайклера WR 2500

Длина участка регенерируемого основания, исходя из сроков начала схватывания цемента, обычно составляет 120 - 150 м (для данной техкарты принято 120 м). При ширине основания 7 м ресайклер совершает три проходки. Длина сменной захватки может составлять 500 - 800 м (нами принята захватка длиной 600 м).

2.10. По завершении регенерации на одном участке ресайклер передвигается на следующий. Прикатанная поверхность основания профилируется автогрейдером ДЗ-122, оснащенным автоматической системой слежения за вертикальными отметками. Профилирование проходов завершается после 8 проходов автогрейдера при рабочем ходе в одном направлении.

2.11. Уплотнение основания осуществляется звеном катка, состоящего из трех механизмов: каток BW 161 АС, пневмокаток VP 200 (масса 8,5 т без балласта, с балластом - 18 т), вибрационный каток BW 216. Схема движения катков приведена на рис. 3. В первую очередь основание уплотняют катки BW 161 АС и VP 200. Каток BW 161 АС начинает уплотнение от правого края дороги. За ним, левее, с перекрытием следа катка BW 161 АС на 1/3 и выравнивая интервал 5 м, движется каток VP 200. Уплотнив полосу длиной 120 м (длина участка), катки задним ходом возвращаются к началу полосы (два прохода по одному следу) и, переместившись к оси основания, продолжают уплотнять основание. При этом каток BW 161 АС на 1/3 перекрывает предыдущий след катка VP 200. В это время каток BW 216 продолжает уплотнение основания, ориентируясь на его правый край.

Рис. 3. Схема уплотнения основания катками

После уплотнения полосы, проходящей через ось основания, катки начинают работу с левого края по прежней схеме.

Каждый каток совершает 6 проходов по одному следу. При этом каток BW 161 АС работает по схеме: первый проход - без вибратора, 2 - 6 проходы - с включенным вибратором; каток BW 216 первые и последние два прохода - без вибратора, третий и четвертый проходы - с включенным вибратором.

2.12. Для предотвращения образования волосяных трещин на поверхности регенерируемого слоя необходимо готовое основание дополнительно увлажнить водой из расчета 0,6 - 0,8 л/м2, а затем прикатать катком VP 200 за два прохода по одному следу.

2.13. По завершении уплотнения регенерированного слоя основания по его поверхности производится розлив битумной эмульсии автогудронатором ДС-36Б из расчета 0,6 - 0,9 л/м2, после чего на подготовленное основание устраивается асфальтобетонное покрытие. Толщина слоя асфальтобетона определяется проектом.

Если по техническим причинам укладка асфальтобетона невозможна, то нанесенная битумная эмульсия является средством ухода за укрепленными смесями. При этом организуется технологический перерыв продолжительностью 7 - 10 сут. За этот промежуток времени основание должно набрать прочность при сжатии не менее 70 % от проектной марки, после чего можно укладывать асфальтобетонное покрытие.

2.14. Технологическая последовательность процессов с расчетом объемов работ и потребных ресурсов приведена в табл. 1. Состав отряда - в табл. 2.

Технологический план потока по регенерации дорожной одежды методом холодного ресайклинга приведен на рис. 4.

Технология операционного контроля качества работ - в табл. 3.


Таблица 1

Технологическая последовательность процессов с расчетом объемов работ и потребных ресурсов

№ процессов

№ захваток

Источник обоснования норм выработки (ЕНиРы и расчеты)

Описание рабочих процессов в порядке их технологической последовательности с расчетом объемов работ

Единица измерения

Количество работ

Производительность в смену

Потребность в машино-сменах

Затраты труда и заработная плата на захватку длиной 600 м

Норма времени, чел.-ч

Заработная плата, руб.-коп.

на захватку l = 600 м

на 1 км

на захватку l = 600 м

на 1 км

на единицу измерения

на полный объем работ

на единицу измерения

на полный объем работ

1

2

3

4

5

6

7

8

9

10

11

12

13

14

1

I

Расчет

Очистка существующего покрытия от пыли и грязи универсальной машиной КО 806-06:

7·600 = 4200

м2

4200

7000

26600

0,16

0,26

0,0003

1,26

0-00,6

25-20

2

I

Расчет

Подвозка щебня фракции 5 - 40 мм автосамосвалами КамАЗ-5511 на расстояние 15 км в количестве:

7·600·0,06·1,3·1,03 = 340 м3

м3

340

570

36,8

9,24

15,49

0,22

74,8

4-08

1387-20

3

I

Расчет

Распределение и профилирование слоя щебня толщиной 6 см автогрейдером ДЗ-122 за 6 проходов по ширине дороги при рабочем ходе в одном направлении:

7·600 = 4200 м2

м2

4200

7000

7270

0,58

0,96

0,0011

4,62

0-02,4

100-80

4

II

Расчет

Подкатка распределенного слоя щебня самоходным вибрационным катком BW 216 за 4 прохода по одному следу:

7·600 = 4200 м2

м2

4200

7000

5330

0,79

1,31

0,0015

6,3

0-03,2

134-40

5

II

Расчет

Подвозка цемента М400 цементовозом ТЦ-12 в количестве 5 % от массы регенерируемого слоя толщиной 20 см для смесительной установки WM 400:

7·600·0,2·2,3·1,03·0,05 = 100

т

100

167

33,6

2,98

4,97

0,24

24,0

5-15

515-00

6

II

Расчет

Подвозка воды универсальной машиной КО 806-06 на расстояние 10 км в количестве 0,7·100 = 70 м3, исходя из водоцементного отношения 0,7 для смесительной установки WM 400

м3

70

117

35,2

1,99

3,32

0,23

16,1

4-27

298-90

7

II

Расчет

Ресайклинг существующей дорожной одежды с выравнивающим слоем на общую толщину 20 см с одновременным измельчением, подачей водоцементной суспензии через смесительную установку WM 400 и перемешиванием материала с перекрытием предыдущего слоя на 10 см:

(2,4·3 - 0,1·2)·600 = 4200

м2

4200

7000

4600

0,91

1,52

0,01

42,0

0-19,4

814-80

8

II

Расчет

Подкатка разрыхленного сфрезерованного укрепленного материала между колесами ресайклера катком BW 161 АС за два прохода по 1 следу:

1,3·3·600 = 2340

м2

2340

3900

17400

0,13

0,22

0,00046

1,08

0-01

23-10

9

II

Расчет

Профилирование поверхности прикатанного слоя дорожной одежды автогрейдером ДЗ-122 за 8 проходов по всей ширине дороги при рабочем ходе в одном направлении:

7·600 = 4200

м2

4200

7000

7270

0,58

0,96

0,0011

4,62

0-02,4

100-80

10

II

Расчет

Уплотнение сфрезерованного слоя катком при последовательном движении друг за другом за 6 проходов, в т.ч.: комбинированный каток BW 161 АС (последние 5 проходов с включенным вибратором),

м2

4200

7000

2500

1,68

2,8

0,0032

13,44

0-06,2

260-40

 

 

 

пневмокаток VP 200 и

м2

4200

7000

3630

1,16

1,93

0,0022

9,24

0-04,7

197-40

 

 

 

вибрационный каток BW 216 (3 и 4 проходы с включенным вибратором)

м2

4200

7000

3630

1,16

1,93

0,0022

9,24

0-04,7

197-40

11

II

Расчет

Распределение воды универсальной машиной КО 806-06 по поверхности готового основания из расчета расхода воды 0,8 л/ м2:

0,8·4200/1000 = 3,4 м3

м3

3,4

5,67

35,2

0,1

0,16

0,23

0,78

4-27

14-52

12

II

Расчет

Уплотнение увлажненного основания катком VP 200 для предотвращения образования волосяных трещин за 2 прохода по одному следу

м2

4200

7000

11100

0,38

0,63

0,00072

3,02

0-01,5

63-00

13

II

Расчет

Подвозка Lср = 10 км и розлив битумной эмульсии или другого пленкообразующего материала автогудронатором ДС-39Б из расчета 0,7 л/м2:

0,7·4200·1·1,03/1000 = 3,03

т

3,0

5,0

10

0,3

0,5

0,48

1,44

9-14

27-42

 

 

 

ИТОГО:

 

 

 

 

22,14

36,96

 

211,94

 

4160-64

Рис. 4. Технологический план потока по регенерации дорожных одежд методом холодного ресайклинга


Таблица 2

Состав отряда

Машины

Профессия и разряд рабочего

Потребность в машино-сменах

Потребность в машинах

Коэффициент загрузки

Количество рабочих

на захватку

на 1000 м

Универсальная машина КО 806-06

Машинист IV разряда

2,25

3,74

3

0,75

3

Автосамосвал КамАЗ-55111

Машинист IV разряда

9,24

15,49

10

0,92

10

Автогрейдер ДЗ-122

Машинист VI разряда

1,16

1,92

2

0,58

2

Самоходный вибрационный каток BW 216

Машинист VI разряда

1,95

3,24

2

0,98

2

Цементовоз ТВ-12

Машинист VI разряда

2,98

4,97

3

0,99

3

Ресайклер WR 2500 и смесительная установка WM 400

Машинист VI разряда

0,91

1,52

1

0,91

2

Пом. машиниста V разряда

 

 

 

 

2

Дорожный рабочий III разряда

 

 

 

 

4

Самоходный вибрационный каток BW 161 АС

Машинист IV разряда Рабочий III разряда

1,81

3,02

2

0,90

2

Самоходный пневмокаток VP 200

Машинист VI разряда

1,54

2,56

2

0,77

2

Автогудронатор ДС-39Б

Машинист V разряда

0,3

0,5

1

0,3

1

Пом. машиниста IV разряда

 

 

 

 

1

 

ИТОГО:

22,14

36,96

26

 

34

Таблица 3

Технология операционного контроля качества работ по регенерации дорожных одежд методом холодного ресайклинга

Основные операции, подлежащие контролю

Состав контроля

Метод и средства контроля

Режим и объем контроля

Лицо, осуществляющее контроль

Предельные отклонения от норм контролируемых параметров

Где регистрируются результаты контроля

1

2

3

4

5

6

7

Регенерация дорожной одежды

Соблюдение технологических режимов регенерации 1. Расход вяжущего

2. Расход воды

3. Плотность укрепленной смеси

Визуальный

Бортовая система ЭВМ смесительной установки WM 400

Постоянно

Мастер, оператор WM 400

±3 % от заданной массы на м3 смеси

Общий журнал работ

4. Влажность смеси

5. Ширина основания, толщина регенерируемого слоя (в разрыхленном и уплотненном состоянии)

Инструментальный

Рулетка измерительная, линейка металлическая

Не реже, чем через 100 м

Мастер

Отклонение по ширине ±5 см, по высоте ±15 мм

Общий журнал работ

Уплотнение укрепленного основания

 

Лабораторный

 

 

 

 

Плотность укрепленного основания (покрытия)

1. Метод «лунок»

2. Прибор БПД-КМ

Не менее одного раза в смену

Мастер, лаборант

Коэффициент уплотнения 0,98

Общий журнал работ

 

Визуальный

-«-

-«-

Отсутствие следа или образования волн перед вальцом при прохождении контрольного участка катком массой 10 - 13 т

-«-

Отделка поверхности основания (покрытия)

 

Инструментальный

 

 

 

 

Высотные отметки по оси основания (покрытия)

Нивелир, рейка

Не реже, чем каждые 100 м

Геодезист

Не более ±50 мм от проектных значений

Журнал геодезических работ

Поперечные уклоны

1. Нивелир, рейка

-«-

Геодезист

До ±0,010 от проектных значений

-«-

2. Трехметровая рейка, уклономер

-«-

Мастер

 

Общий журнал работ

Ровность

Трехметровая рейка с клиновым промерником

-«-

Просвет над рейкой на расстоянии 0,75 - 1 м от каждой кромки проезжей части в 5 контрольных точках, расположенных друг от друга на расстоянии 0,5 м

Мастер

Не более ±10 (5) мм

Общий журнал

работ

Качество укрепленных смесей

 

Лабораторный

 

 

 

 

Прочность при сжатии и при растяжении

Изготовление образцов из регенерируемых слоев на дороге

Не реже одного раза в смену

Лаборант

Не менее проектной марки

Журнал контроля укрепленных смесей

Морозостойкость

-«-

При подборе составов и не менее одного раза на 10 км

Инженер-лаборант

Снижение прочности образцов не более 25 %

-«-

3. БЕЗОПАСНОСТЬ ТРУДА

К работе допускаются лица не моложе 18 лет, прошедшие предварительный медицинский осмотр, обученные по соответствующей программе, сдавшие экзамены квалификационной комиссии и получившие удостоверения.

При работе машин посторонним лицам запрещается находиться сзади по ходу машины ближе 15 м.

Смену фрез ротора следует производить после остановки двигателя.

При производстве работ по устройству земляного полотна бульдозером руководствуются следующей технической литературой:

1. СНиП III-4-80. Техника безопасности в строительстве.

2. СНиП 12-03-2001. Безопасность труда в строительстве. Часть 1. Общие требования.

3. ТОИ Р-218-05-93. Типовая инструкция по охране труда для машиниста автогрейдера.

4. ТОИ Р-218-07-93. Типовая инструкция по охране труда для машиниста катка.

5. ТОИ Р-218-26-94. Типовая инструкция по охране труда для машиниста автополивомоечной машины.

6. Спельман Е.П. Техника безопасности при эксплуатации строительных машин и средств малой механизации. - М.: Стройиздат, 1986. - 271 с.: ил.

Приложение 1

РАСЧЕТЫ ПРОИЗВОДИТЕЛЬНОСТИ МАШИН

Расчет 1

БУЛЬДОЗЕР

Эксплуатационная производительность при резании и перемещении грунта:

П = 3600kвV/tц, м3/ч,

где kв - коэффициент использования бульдозера по времени, kв = 0,8 - 0,9;

V - объем грунта перед отвалом в плотном теле, м3,

здесь B - длина отвала, м;

b - высота отвала, м;

kп - коэффициент, учитывающий потери грунта и зависящий от дальности перемещения, kп = 1 - 1,1;

kр - коэффициент разрыхления грунта, kр = 1,1 - 1,35;

tц - время цикла, с,

tц = tк + tтр + tхх + 20,

здесь tк - время копания и набора призмы грунта, с, tк = lк/Vк;

lк - длина пути резания, lк = 6 - 10 м;

vк - скорость движения при резании грунта, Vк = 0,4 - 0,5 м/с;

tтр - время транспортирования, с,

tтр = lтр/Vтр,

lтр - длина пути транспортирования, м;

Vтр - скорость транспортирования, Vтр = 0,7 - 0,83 м/с;

tхх - время холостого хода, с,

tхх = lтр/Vхх,

Vхх - скорость при обратном ходе, для колесных машин не менее 2,8 м/с, для машин с полужесткой и балансирной подвеской гусениц - не более 1,9 м/с, а с эластичной и балансирно-звеньевой подвеской - не более 4 м/с.

Расчет 2

РЫХЛИТЕЛЬ

Эксплуатационная производительность при резании и перемещении грунта:

П = 3600kвV/tц, м3/ч,

где kв - коэффициент использования рыхлителя по времени, kв = 0,85 - 0,9;

V - объем разрыхленного грунта;

V = BhэфL,

здесь B - ширина полосы разрыхления, м,

B = kп[b + 2hэфctgv + z(n - 1)],

kп - коэффициент перекрытия, kп = 0,75;

b - ширина наконечника;

v - угол скола, v = 15 - 16°;

z - шаг зубьев;

n - число зубьев;

hэф - эффективная глубина рыхления, м, hэф = (0,6 - 0,8)h;

h - глубина рыхления;

L - длина пути рыхления, м;

tц - продолжительность цикла, с;

tц = tp + 20;

здесь tр - время рыхления, с, tр = lр/Vр;

lр - длина пути рыхления, м;

Vp - средняя скорость рыхления, Vр.

Расчет 3

АВТОГРЕЙДЕР

Эксплуатационная производительность при профилировании участка:

П = 3600LBkв/t, м3/ч,

где L - длина участка, м;

B - длина отвала, м;

kв - коэффициент использования автогрейдера по времени, kв = 0,8 - 0,9;

t - время, необходимое для профилирования участка дороги длиной L, с,

здесь n1, n2, …, ni - число проходов, выполняемых соответственно при зарезании, перемещении и отделке;

V1, V2, …, Vi - скорости соответственно при зарезании, перемещении и отделке, м/с; зарезание грунта производят на скорости 0,83 - 1,1 м/с, перемещение 0,83 - 1,67 м/с, отделка 0,83 - 1,1 м/с;

tпов - время вспомогательных операций, необходимых для поворота автогрейдера или его отвала на 90° на концах рабочего участка, tпов = 60 - 150 с.

Расчет 4

СКРЕПЕР

Эксплуатационная производительность, м3/ч:

П = 3600Vkнkв/(kрtц),

где V - геометрическая вместимость ковша, м3;

kн - коэффициент наполнения ковша, kн = 0,9 - 1,1;

kв - коэффициент использования скрепера по времени, kв = 0,8 - 0,9;

kр - коэффициент разрыхления грунта, kр = 1,1 - 1,35;

tц - время цикла, с,

tц = tнаб + tтр + tраз + tхх + 30,

здесь tнаб - время копания и набора грунта, tнаб = lнаб/Vнаб, lнаб - путь набора, lнаб = 20 - 30 м;

Vнаб - скорость набора, Vнаб = 0,5 - 0,7 м/с;

tтр - время транспортирования, с, tтр =lтр/Vтр;

Vтр - скорость транспортирования составляет 0,8 скорости порожнего скрепера;

tраз - время разгрузки, с, tраз = lраз/Vраз;

lраз - путь разгрузки, м;

Vраз - скорость разгрузки, Vраз = 0,83 - 1,1 м/с;

tхх - время холостого хода, с, txx = lтр/Vxx;

Vxx - скорость порожнего скрепера.

Расчет 5

ЭКСКАВАТОР

Эксплуатационная производительность, м3/ч:

П = 3600qkнkв/kрtц,

где q - вместимость ковша, м3;

kн - коэффициент наполнения ковша, kн = 0,75 - 1,4;

kв - коэффициент использования машины по времени, kв = 0,9 - 0,95;

kр - коэффициент разрыхления, kр = 1,1 - 1,5;

tц - время цикла, с,

tц = tкоп. + 2tпов. + tвыгр. + 20,

здесь tкоп. = 6 - 10 с;

tпов. = α/360n,

n - обороты платформы, об./с;

tвыгр. = 2 - 5 с.

Расчет 6

КАТКИ

Производительность машин (в м3/смену) непрерывного действия - трамбующей машины, катков, виброкатков и виброплит:

где B - ширина полосы уплотнения (катка или сцепа), м;

b - ширина перекрытия смежных полос уплотнения, м;

V - средняя рабочая скорость движения, км/ч;

H - толщина слоя эффективного уплотнения, м;

T - продолжительность смены, ч;

kв - коэффициент использования времени смены, kв = 0,85 - 0,95;

m - необходимое число проходов по одному следу.

Производительность трамбующей плиты (в м3/смену):

где n - число ударов плиты в минуту;

a - размер опорной поверхности плиты.

Расчет 7

АВТОМОБИЛЬ-САМОСВАЛ

Производительность автомобилей-самосвалов:

P = TKq/(21/v + t),

где T = 8 ч - продолжительность рабочей смены;

K = 0,85 - коэффициент внутрисменной загрузки;

q - грузоподъемность машины, т;

v = 20 км/ч - средняя скорость движения;

t = 0,2 ч - время простоя под погрузкой и разгрузкой.

Расчет 8

ПОЛИВОМОЕЧНАЯ МАШИНА

Производительность поливомоечной машины:

P = TKQ/(2l/v + t1 + t2),

где T = 8 ч - продолжительность смены;

K = 0,85 - коэффициент внутрисменного использования;

Q = 6000 л - вместимость цистерны;

l - дальность возки, км;

v = 20 км/ч - средняя скорость;

t1 = 0,16 ч - время, затрачиваемое на заполнение цистерны водой из водоема насосом со скоростью 1800 л/мин (или 0,10 ч) с учетом времени, затрачиваемого на присоединение и отсоединение шланга (0,06 ч);

t2 - время, затрачиваемое на слив (или розлив) воды.

Расчет 9

АСФАЛЬТОУКЛАДЧИК

Производительность асфальтоукладчика:

Пэ = 60Bvρhkв,

где B - ширина укладываемого слоя, м;

v - рабочая скорость машины, м/мин;

ρ - плотность укладываемой асфальтобетонной смеси, т/м3;

h - толщина укладываемого слоя, м;

kв - коэффициент использования машины по времени, kв = 0,6 - 0,9.

Расчет 10

АВТОГУДРОНАТОР

Производительность автогудронатора:

Пэ = 3600Vцkв/Tц,

где Vц - полезный объем цистерны, л;

kв - коэффициент использования машины по времени;

Tц - продолжительность рабочего цикла, с;

Tц = t1 + t2 + t3 + t4 + t5 + t6,

где t1 - время наполнения цистерны вяжущим материалом, t1 = 600 - 900 с;

t2 - время транспортирования вяжущего материала к месту распределения, с,

t2 = L/v1,

где L - расстояние от битумохранилища до объекта, м;

v1 - транспортная скорость груженого автогудронатора, м/с,

v1 = 11,11 м/с (40 км/ч);

t3 - продолжительность розлива битума, с;

t3 = Vц/(vрqB),

vр - рабочая скорость автогудронатора, м/с, vр = 0,83 - 6,83 м/с;

q - норма розлива вяжущего, л/м2;

B - ширина розлива, м, B = 4,0 м;

t4 - время, необходимое для переезда машины от объекта к битумохранилищу, с,

t4 = L/v2,

v2 - скорость движения порожнего автогудронатора, м/с, v2 = 16,67 - 23,61 м/с;

t5 - время на маневрирование автогудронатора на объекте и базе, с,

t5 = 240 - 360 с;

t6 - время на подготовку автогудронатора к работе, с,

t6 = 300 - 360 с.

Расчет 11

РАСПРЕДЕЛИТЕЛЬ КАМЕННЫХ МАТЕРИАЛОВ

Непрерывного действия:

Пэ = Bvhkв,

где B - ширина обрабатываемой полосы, м;

v - рабочая скорость машины, м/ч;

h - толщина слоя распределяемого материала, м;

kв - коэффициент использования машины по времени.

Циклического действия:

Пэ = 60Vkв/Tц,

где V - объем бункера, м3;

Tц - продолжительность рабочего цикла, мин;

Tц = t1 + t2 + t3,

где t1 - продолжительность распределения материала, мин;

t1 = V/(Bhv);

t2 - продолжительность погрузки, мин;

t3 - вспомогательное время на подготовку машины к работе, мин.

Приложение 2

РАСЧЕТ ЗАРАБОТНОЙ ПЛАТЫ РАБОЧИХ В СООТВЕТСТВИИ С ТАРИФНЫМ СОГЛАШЕНИЕМ В ДОРОЖНОМ ХОЗЯЙСТВЕ

Разряд

Межразрядный коэффициент

В месяц без 1,8182

В месяц с 1,8182

В час без 1,8182

В час с 1,8182

15 % разъездной

20 % разъездной

1

1

979,40

1780,75

5,87

10,68

0,88

1,17

2

1,36

1331,98

2421,81

7,99

14,52

1,20

1,60

3

1,59

1557,25

2831,38

9,34

16,98

1,40

1,87

4

1,73

1694,36

3080,69

10,16

18,47

1,52

20,03

5

1,82

1782,51

3240,96

10,69

19,44

1,60

2,14

6

2

1958,80

3561,49

11,75

21,36

1,76

2,35

Приложение 3

ОПРЕДЕЛЕНИЕ ДЛИНЫ СМЕННОЙ ЗАХВАТКИ ЧАСТНОГО ПОТОКА

Способ 1

Определение длины захватки по директивному сроку строительства участка дороги:

 (м/смену),

где Lтр - длина строящегося участка дороги, м;

T - директивный срок строительства для производства линейных работ, в сменах.

Способ 2

Определение длины захватки по среднесменному объему грунта:

 (м/смену),

где qсм - средний сменный объем грунта по осредненному поперечнику земляного полотна на участке линейных работ, м;

Hср - средняя рабочая отметка осредненного поперечника земляного полотна на участке линейных работ, м;

Bср - средняя линия трапеции осредненного поперечника земляного полотна, м (рис. 1).

 (м3/смену),

где V - общий объем земляных работ на линейном участке, м3;

Kв - 0,80 - 0,90 - коэффициент внутрисменного использования рабочего времени для различных землеройных машин.

Рис. 1. Осредненный поперечник земляного полотна для участка линейных работ

Примечание. Осредненный поперечник земляного полотна для участка линейных работ (рис. 1) предполагает возведение земляного полотна с присыпными обочинами. При этом насыпь отсыпают несколько шире (на «mx» с каждой стороны), чем предусмотрено проектной отметкой и ниже на величину «x»

где m - показатель заложения откосов;

h - толщина дорожной одежды, м;

a - проектная ширина обочины, м;

io - величина уклона обочины;

ik - величина уклона корыта (верхней части земляного полотна).

Способ 3

Определение длины захватки по производительности ведущей землеройной машины:

 (м/смену),

где П - производительность ведущей машины по ЕНиР или расчету, м3;

n - количество ведущих машин (возможно 2 и более машин).

Длина захватки, определенная по одному из этих способов, должна быть в пределах от 100 до 250 м для землеройных машин.

При планировочных работах длина захватки обычно находится в пределах от 400 до 800 м.

Способ 4

Для участков сосредоточенных работ определяют сменный темп:

 (м/смену),

где Vс - полный объем сосредоточенных работ на участке, м3;

Tс - директивный срок строительства, выделенный для производства сосредоточенных работ, в сменах.

После определения lзах и qсм производят расчет рабочей технологической карты.

При производстве работ по устройству земляного полотна бульдозером руководствуются следующей технической литературой:

1. СНиП III-4-80. Техника безопасности в строительстве.

2. СНиП 12-03-2001. Безопасность труда в строительстве. Часть 1. Общие требования.

3. ТОИ Р-218-05-93. Типовая инструкция по охране труда для машиниста автогрейдера (прицепного грейдера).

4. ТОИ Р-218-07-93. Типовая инструкция по охране труда для машиниста катка.

5. ТОИ Р-218-26-94. Типовая инструкция по охране труда для машиниста автополивомоечной машины.

6. ТОИ Р-218-06-93. Типовая инструкция по охране труда для машиниста бульдозера.

7. ТОИ Р-218-08-93. Типовая инструкция по охране труда для машиниста скрепера.

8. ТОИ Р-218-25-94. Типовая инструкция по охране труда для машинистов одноковшовых гусеничных и пневмоколесных экскаваторов.

9. Спельман Е.П. Техника безопасности при эксплуатации строительных машин и средств малой механизации. - М.: Стройиздат, 1986. - 271 с.: ил.

СОДЕРЖАНИЕ

Общая часть. 1

Раздел 1. Сооружение земляного полотна автомобильных дорог. 3

Технологическая карта № 1 Возведение насыпи земляного полотна автомобильных дорог из грунта боковых резервов бульдозером.. 3

Технологическая карта № 2 Возведение насыпи земляного полотна автомобильных дорог из грунта притрассовых карьеров скрепером.. 15

Технологическая карта № 3 Возведение насыпи земляного полотна автомобильных дорог высотой до 1,5 м с разработкой грунта в карьере экскаваторами ЭО-4225 и транспортировкой автомобилями-самосвалами. 30

Технологическая карта № 4 Устройство выемки глубиной 1 м с разработкой грунта скреперами. 43

Технологическая карта № 5 Возведение насыпи земляного полотна автомобильных дорог высотой 9 м с разработкой грунта в карьере экскаваторами ЭО-4225 и транспортировкой автомобилями-самосвалами. 52

Технологическая карта № 6 Возведение земляного полотна типа полувыемка-полунасыпь. 64

Технологическая карта № 7 Устройство выемки глубиной 5 м с разработкой грунта экскаваторами ЭО-4225 и транспортировкой автомобилями-самосвалами. 75

Технологическая карта № 8 Геодезические работы при устройстве земляного полотна. 85

Раздел 2. Устройство оснований и покрытий дорожных одежд. 99

Технологическая карта № 9 Устройство двухслойного щебеночного основания автомобильных дорог по методу заклинки. 99

Технологическая карта № 10 Устройство однослойных щебеночных (гравийных) оснований и покрытий автомобильных дорог из плотных смесей. 109

Технологическая карта № 11 Устройство щебеночного основания, обработанного в верхней части пескоцементной смесью методом пропитки (вдавливания) 119

Технологическая карта № 12 Устройство основания из «тощего» бетона класса В5 (М 75) с использованием бетоноукладчика ДС-111. 128

3. Безопасность труда. 139

Технологическая карта № 13 Устройство щебеночного покрытия (основания) автомобильных дорог по способу пропитки битумом.. 139

Технологическая карта № 14 Устройство верхнего слоя основания дорожных одежд из гравийной смеси по способу смешения на дороге. 148

Технологическая карта № 15 Строительство двухслойных асфальтобетонных покрытий автомобильных дорог. 156

Технологическая карта № 16 Устройство цементобетонного покрытия шириной 7,5 м и толщиной 0,2 м с использованием комплекта машин ДС-110. 169

Технологическая карта № 17 Устройство одиночной поверхностной обработки на вязких битумах. 185

Технологическая карта № 18 Устройство двойной поверхностной обработки с применением катионных битумных эмульсий. 195

Технологическая карта № 19 Регенерация дорожной одежды методом холодного ресайклинга с применением ресайклера WR 2500 и смесительной установки WM 400. 204

Приложение 1 Расчеты производительности машин. 215

Приложение 2 Расчет заработной платы рабочих в соответствии с тарифным соглашением в дорожном хозяйстве. 219

Приложение 3 Определение длины сменной захватки частного потока. 220

 



© 2013 Ёшкин Кот :-)