Информационная система
«Ёшкин Кот»

XXXecatmenu

ГОСТ Р 52063-2003

ГОСУДАРСТВЕННЫЙ СТАНДАРТ РОССИЙСКОЙ ФЕДЕРАЦИИ

НЕФТЕПРОДУКТЫ ЖИДКИЕ

Определение группового углеводородного состава
методом флуоресцентной индикаторной адсорбции

ГОССТАНДАРТ РОССИИ
Москва

Предисловие

1 РАЗРАБОТАН Техническим комитетом по стандартизации ТК 31 «Нефтяные топлива и смазочные материалы» (ОАО «ВНИИНП»)

ВНЕСЕН ТК 31 «Нефтяные топлива и смазочные материалы»

2 ПРИНЯТ И ВВЕДЕН В ДЕЙСТВИЕ Постановлением Госстандарта России от 29 мая 2003 г. № 173-ст

3 ВВЕДЕН ВПЕРВЫЕ

4 Настоящий стандарт представляет собой аутентичный текст АСТМ Д 1319-99 «Метод определения углеводородного состава жидких нефтепродуктов с помощью флуоресцентной индикаторной адсорбции»

СОДЕРЖАНИЕ

ГОСТ Р 52063-2003

ГОСУДАРСТВЕННЫЙ СТАНДАРТ РОССИЙСКОЙ ФЕДЕРАЦИИ

НЕФТЕПРОДУКТЫ ЖИДКИЕ

Определение группового углеводородного состава
методом флуоресцентной индикаторной адсорбции

Liquid petroleum products.
Test method of hydrocarbon types by fluorescent indicator adsorption

Дата введения 2004-01-01

1 Область применения

1.1 Настоящий стандарт распространяется на жидкие нефтепродукты, выкипающие ниже 315 °С, и устанавливает метод определения флуоресцентной индикаторной адсорбцией объемной доли углеводородов: ароматических - от 5 % до 99 %; олефиновых - от 0,3 % до 55,0 %; насыщенных - от 1,0 % до 95,0 %. При других объемных долях компонентов точность метода не определяют.

Образцы, содержащие темноокрашенные компоненты, мешающие регистрации хроматографических зон, не анализируют.

1.2 Настоящий метод предназначен для анализа полностью выкипающих продуктов.

Обобщенные данные показали, что точностные показатели неприменимы к узким нефтяным фракциям, выкипающим до 315 °С, так как наблюдается большой разброс результатов.

1.3 Возможность применения этого метода для продуктов, получаемых из угля, сланца или битуминозных песков, не установлена.

1.4 Показатели точности метода установлены при испытании неэтилированных топлив, не содержащих кислородсодержащие добавки. Поэтому данный метод не применяют при испытании автомобильных бензинов, содержащих свинцовые антидетонационные и кислородсодержащие добавки (оксигенаты), или те и другие, за исключением указанных в 1.5.

1.5 Метанол, этанол, метил-трет-бутиловый эфир не мешают определению группового состава в концентрациях, обычных для товарных смесей. Эти кислородсодержащие компоненты смешения не обнаруживаются данным методом, так как они элюируются спиртовым десорбентом. Другие кислородсодержащие соединения проверяют индивидуально. Результаты анализа образцов с кислородсодержащими компонентами смешения должны быть скорректированы при окончательной обработке результатов анализа [11].

1.6 Требования безопасности приведены в приложении А.

1.7 Стандартными следует считать значения, установленные в единицах СИ.

Примечание - При определении объемной доли олефиновых углеводородов менее 0,3 % следует применять другие методы [1].

2 Нормативные документы

В настоящем стандарте использованы ссылки на нормативные документы, указанные в приложении Б.

3 Термины

3.1 Определения

3.1.1 ароматические углеводороды: Моноциклические и полициклические ароматические углеводороды; ароматические олефины; некоторые диены; соединения, содержащие серу и азот или высококипящие кислородсодержащие соединения (за исключением перечисленных в 1.5).

3.1.2 олефины: Олефины; циклоалкены и некоторые диены.

3.1.3 насыщенные углеводороды: Алканы и циклоалканы.

4 Сущность метода

4.1 Сущность метода состоит в прохождении пробы (приблизительно 0,75 см3) через специальную стеклянную адсорбционную колонку с активированным силикагелем. Небольшой слой силикагеля содержит смесь флуоресцентных красителей.

Когда вся проба адсорбируется на силикагеле, в колонку добавляют спирт для десорбции пробы. В соответствии со своей адсорбционной способностью углеводороды разделяются на ароматические, олефиновые и насыщенные.

Вместе с разделением углеводородов различных типов происходит распределение флуоресцентного индикатора с образованием селективно окрашенных зон насыщенных, олефиновых и ароматических углеводородов, видимых в ультрафиолетовом свете. По длине окрашенных зон рассчитывают объемную долю каждой группы углеводородов.

5 Значение и применение

5.1 Суммарная объемная доля насыщенных, олефиновых и ароматических углеводородов является важным фактором при оценке качества нефтяных фракций, используемых в качестве сырья для компонентов смешения при получении бензина и для процессов каталитического риформинга, а также важна для характеристики нефтяных фракций и продуктов каталитического риформинга, термического и каталитического крекинга, используемых при получении моторных, авиационных топлив и топлив, приведенных в [2].

6 Помехи

6.1 Наличие в образцах углеводородов С5 и более легких приводит к ошибкам при большой объемной доле насыщенных углеводородов, а также при малой объемной доле ароматических и олефиновых углеводородов. Такие образцы следует депентанизировать [3].

7 Аппаратура

7.1 Адсорбционные колонки

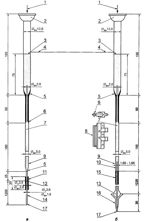
Адсорбционные колонки представляют собой стеклянные трубки, состоящие из секции загрузки с капиллярной шейкой, секции разделения и аналитической секции. Трубки для адсорбционных колонок могут быть как с точным диаметром (по IР-конструкции), так и стандартными (рисунок 1).

7.1.1 Внутренний диаметр аналитической части колонки при использовании трубки точного диаметра должен быть от 1,60 до 1,65 мм; при проверке трубки с помощью столбика ртути длиной 100 мм отклонение не должно превышать 0,3 мм в любой части аналитической секции. Герметичность различных частей колонки обеспечивают длинноконусные соединения. Силикагель удерживается в колонке маленьким кусочком стекловаты, расположенным между шаром и муфтой сферического соединения 12/2, закрывающим выход из аналитической секции колонки. Конец колонки, соединяющийся с муфтой 12/2, должен быть внутренним диаметром 2 мм. Шар и муфту необходимо закрепить таким образом, чтобы конец колонки располагался вертикально и не соскальзывал во время набивки колонки и при проведении испытания.

7.1.2 Допускается использовать адсорбционную колонку со стандартными стенками трубки (рисунок 1а). При использовании такой трубки в качестве аналитической секции колонки необходимо выбрать трубку постоянного диаметра и обеспечить герметичность соединения секции разделения и аналитической секции. Трубку со стандартными стенками не калибруют, но с помощью обычного толщиномера проверяют наружный диаметр по всей длине трубки. При отклонении измеренного диаметра от заданного диаметра на 0,5 мм и более трубку не используют.

а - стандартная колонка; б - колонка с точным диаметром; 1 - нагнетаемый газ; 2 - сферический шлиф 28/12;
3 - загрузочная секция; 4 - уровень, до которого набивают силикагель; 5 - длинный конус; 6 - шейка; 7 - окрашенный гель;
8 - устройство измерения длины зон (необязательное); 9 - секция разделения; 10 - капиллярная трубка точного диаметра;
11 - виниловая трубка диаметром 3,3 мм; 12 - конец трубки наружным диаметром 3,5 мм и внутренним диаметром 2 мм;
13 - сферический шлиф 12/2; 14 - трубка со стандартной стенкой наружным диаметром 3,0 мм и внутренним диаметром 1,5 мм;
15 - аналитическая часть колонки; 16 - конец трубки; 17 - конец трубки, вытянутый в капилляр

Рисунок 1 - Типы адсорбционных колонок

Для удержания геля (сорбента) в колонке конец трубки аналитической секции необходимо вытянуть в виде тонкого капилляра. Другой конец аналитической секции колонки с помощью виниловой трубки длиной 30 мм следует соединить с секцией разделения, убедившись в том, что обе стеклянные секции касаются друг друга.

Для обеспечения герметичности уплотнения стыка стеклянной трубки с виниловой трубкой верхний конец трубки аналитической секции нагревают до тех пор, пока он не станет достаточно горячим для расплавления виниловой трубки. На горячий конец стеклянной трубки натягивают виниловый шланг.

Для герметичности соединения можно прикрепить виниловый шланг к стеклянной трубке и плотно обмотать его мягкой проволокой.

7.2 Устройство измерения длины окрашенных зон

Границы окрашенных зон отмечают на стеклянной колонке стеклографом, а длину зоны измеряют метрической масштабной линейкой, расположив колонку горизонтально. Можно измерять длину зон, закрепив линейку около колонки в вертикальном положении, при этом линейка должна быть снабжена четырьмя подвижными индикаторными скобками (рисунок 1) для маркировки границ зон и измерения длины каждой зоны.

7.3 Источник ультрафиолетового излучения

Применяют источник с излучением в области 365 нм, обычно состоящий из одного или двух блоков 915 мм или 1220 мм, смонтированных вертикально вдоль колонки.

Для получения наилучшей флуоресценции источник излучения необходимо отрегулировать.

7.4 Электровибратор для отдельной колонки или подставки, на которой закреплены несколько колонок.

7.5 Медицинский шприц вместимостью 1 см3, ценой деления 0,01 или 0,02 см3, длиной иглы 102 мм. Можно использовать иглы № 18, 20 или 22.

7.6 Регулятор давления двухступенчатый, диапазон давления 0 - 103 кПа.

8 Реактивы и материалы

8.1 Силикагель, соответствующий требованиям, изложенным в таблице 1.

Таблица 1 - Требования к силикагелю

Наименование показателя

Норма

Площадь поверхности, м2

430 - 530

рН 5 %-ной водной суспензии

5,5 - 7,0

Массовая доля потерь при воспламенении при 955 °С

4,5 - 10,0

Железо в виде Fe2О3, сухая основа, ррт, не более

50

Массовая доля частиц, %, не более:

оставшихся на сите*) номер:

60 (250 мкм)

0,0

80 (180 мкм)

1,2

100 (150 мкм)

5,0

прошедших сквозь сито номер 200 (75 мкм)

15,0

*) Требования к ситам приведены в [5] и [6].

Площадь поверхности силикагеля определяют по [4].

Для определения рН силикагеля калибруют рН-метр стандартными буферными растворами с рН 4 и рН 7. Помещают 5 г образца силикагеля в стакан вместимостью 250 см3. Добавляют 100 см3 воды, перемешивают суспензию магнитной мешалкой 20 мин и определяют рН. Перед применением силикагель сушат в неглубоком сосуде при 175 °С в течение 3 ч. Переносят высушенный горячий силикагель в герметичный (воздухонепроницаемый) сосуд и защищают его после этого от атмосферной влаги.

Примечание - Было обнаружено, что некоторые партии силикагеля, которые соответствуют спецификациям, вызывают затухание границ олефиновых углеводородов. Причина этого явления неизвестна, но она влияет на правильность и точность результата.

8.2 Флуоресцентный индикаторный окрашенный силикагель

Стандартный силикагель, окрашенный смесью перекристаллизованного красителя Петрол Рэд АБ4 (Petrol Red АВ4) и порций олефиновых и ароматических красителей, очищенных способом хроматографической адсорбции и осажденных на силикагель.

Окрашенный силикагель хранят в темном месте в атмосфере азота. В таких условиях окрашенный силикагель может храниться не менее пяти лет. При необходимости небольшие порции окрашенного силикагеля переносят в рабочий сосуд, из которого его отбирают для анализа.

8.3 Изоамиловый спирт (3-метил-1-бутанол) объемной доли 99 % (приложение А).

8.4 Изопропиловый спирт (2-пропанол) объемной доли 99 %, [7] (приложение А).

8.5 Сжатый газ - воздух (или азот), подаваемый в верхнюю часть колонки при контролируемом давлении в диапазоне 0 - 103 кПа (приложение А).

8.6 Ацетон, х. ч., свободный от остатка после испарения (приложение А).

8.7 Буферные растворы, рН 4 и 7.

9 Отбор проб

9.1 Для проведения испытаний отбирают представительную пробу и хранят при температуре от 2 °С до 4 °С [8].

10 Подготовка образца

10.1 Образцы, содержащие С3 или более легкие углеводороды, более 5 % углеводородов С4 или более 10 % углеводородов С4 и С5, должны подвергаться депентанизации [3].

11 Подготовка аппаратуры

11.1 Аппаратуру устанавливают в затемненном месте для удобства наблюдения границ зон. При многочисленных определениях аппаратуру собирают на стойке для закрепления колонок. В состав аппаратуры входят система гребенок (распределительный коллектор) со шлифами для подачи газа в колонки, а также источник ультрафиолетового излучения.

12 Проведение испытания

12.1 Колонку подвешивают на свободно посаженный зажим, находящийся непосредственно под сферическим шлифом секции загрузки. Во время вибрации колонки по всей ее длине небольшими порциями добавляют силикагель через стеклянную воронку до половины секции загрузки. Останавливают вибратор и добавляют слой окрашенного силикагеля высотой 3 - 5 мм. Включают вибратор. Продолжают добавлять силикагель до тех пор, пока плотно набитый силикагель не заполнит секцию загрузки на 75 мм. Во время вибрации колонку вытирают по всей длине влажной тканью. Это способствует снятию статического электричества и лучшей набивке колонки. После заполнения колонки продолжают вибрацию еще в течение 4 мин.

Примечание - Можно подготовить одновременно несколько колонок, установив их на раме или стойке, к которой присоединяется электрический вибратор.

12.2 Заполненную колонку устанавливают на стойке, находящейся в затемненной комнате или в затемненном месте; если используют стационарную масштабную метрическую линейку, прикрепляют нижний конец колонки к стационарной линейке клейкой лентой.

12.3 Охлаждают пробу и медицинский шприц до температуры 2 - 4 °С. Отбирают (0,75 ± 0,03) см3 пробы с помощью шприца и вводят пробу в загрузочную секцию на 30 мм ниже поверхности силикагеля.

12.4 Загрузочную секцию заполняют изопропиловым спиртом до шлифового соединения. Присоединяют колонку к распределительному газовому коллектору и в течение 2,5 мин подают газ под давлением 14 кПа, продвигая жидкость вниз по колонке. В течение следующих 2,5 мин увеличивают давление до 34 кПа, а затем регулируют его таким образом, чтобы общее время продвижения пробы составляло 1 ч. Обычно для проб типа бензина необходимо давление газа от 28 до 69 кПа, для реактивных топлив - от 69 до 103 кПа. Давление газа зависит от плотности набивки колонки силикагелем и молекулярной массы пробы. Как правило, достаточное время перемещения пробы 1 ч. однако для высокомолекулярных проб может потребоваться более длительное время.

12.5 После продвижения красной границы зоны спирта и ароматических углеводородов на 350 мм в аналитическую секцию колонки быстро отмечают границы зон углеводородов каждого типа, наблюдаемых в ультрафиолетовом свете (Предупреждение. Нахождение под прямыми ультрафиолетовыми лучами вредно для здоровья, и операторы должны по возможности избегать подобного контакта, особенно это относится к глазам), и снимают показания. Для нефлуоресцентной зоны насыщенных углеводородов отмечают край фронта загружаемой пробы, а также точку первого максимума интенсивности желтой зоны флуоресценции; в качестве верхней границы второй зоны (зоны олефиновых углеводородов) отмечают точку, в которой впервые появляется интенсивная голубая флуоресценция; в качестве верхней границы третьей зоны (зоны ароматических углеводородов) отмечают верхний конец красноватой или коричневой зоны. Для идентификации границ пользуются рисунком 2.

При испытании бесцветных дистиллятов граница зоны спирта и ароматических углеводородов четко определяется красным кольцом красителя. Однако примеси, присутствующие в продуктах крекинга, придают ему коричневую окраску, которую можно рассматривать как часть зоны ароматических углеводородов, за исключением тех случаев, когда отсутствует зона голубой флуоресценции. Тогда коричневое кольцо рассматривают как часть следующей зоны, находящейся ниже.

При работе с образцами топлива, смешанного с оксигенатами, может появиться другая красная зона на несколько сантиметров выше красноватой или коричневой границы зоны спирта и ароматических углеводородов (рисунок 3). Ею следует пренебречь.

1 - нижняя часть; 2 - фронт элюирования; 3 - чистая жидкость; 4 - первая интенсивная желтая флуоресценция;
5 - первая интенсивная голубая флуоресценция; 6 - красное кольцо; 7 - верхняя часть; 8 - зона ароматических углеводородов;
9- зона олефинов; 10 - зона насыщенных углеводородов

Рисунок 2 - Схема идентификации хроматографических границ

1 - нижняя часть; 2 - фронт элюирования; 3 - чистая жидкость; 4 - первая интенсивная желтая флуоресценция;
5 - первая интенсивная голубая флуоресценция; 6 - красно-коричневое кольцо; 7 - дополнительное красное кольцо;
8 - верхняя часть; 9 - зона ароматики; 10 - зона олефинов; 11 - зона насыщенных углеводородов

Рисунок 3 - Схема идентификации хроматографических границ в образцах топлив, смешанных с оксигенатами

Если границы зон отмечены указательными планками, записывают результаты измерений.

12.6 Если образец продвинулся к низу колонки еще на 50 мм, снимают второй ряд показаний, отмечая зоны в порядке, обратном приведенному в 12.5, для сведения к минимуму погрешностей из-за продвижения границ во время снятия показаний.

Если зоны отмечают стеклографом, то можно применять два цвета для отделения каждого ряда измерений расстояний, которые проводят в конце испытания, когда аналитическая секция укладывается на подставку. Записывают измерения, если границы отмечались указательными планками.

12.7 Ошибочные результаты могут быть получены из-за недостаточного уплотнения силикагеля или неполного вымывания углеводородов.

При анализе с применением колонок точного диаметра незаконченное вымывание можно обнаружить по общей длине нескольких зон, которые должны быть не менее 500 мм.

Для колонки со стандартными стенками указанный выше критерий не может быть использован, так как внутренний диаметр аналитической секции колонок разный по всей длине колонки.

Примечание - Для образцов, содержащих значительное количество соединений, выкипающих при температуре выше 204 °С, вместо изопропилового спирта рекомендуется использовать изоамиловый спирт.

12.8 Сбрасывают давление газа, отсоединяют колонку. Для извлечения отработанного силикагеля из колонки с точным диаметром переворачивают ее над сливом и вставляют в широкий конец колонки длинный кусок медицинской трубки № 19 со срезанным под углом 45° концом. Противоположный конец колонки через отрезок медной трубки диаметром 6 мм*) с помощью резиновой трубки соединяют с водопроводным краном и промывают сильной струей воды. Затем колонку промывают ацетоном, свободным от остатка после испарения, и высушивают под вакуумом.

*) Для защиты тонкого конца колонки.

13 Расчет

13.1 Для каждой серии измерений вычисляют объемную долю углеводородов с точностью до 0,1 %;

ароматические углеводороды = (La/L) ´ 100,                                                                (1)

олефиновые углеводороды = (L0/L) ´ 100,                                                                    (2)

насыщенные углеводороды = (Lн/L) ´ 100,                                                                   (3)

где Lа - длина зоны ароматических углеводородов, мм;

L0 - длина зоны олефиновых углеводородов, мм;

Lн - длина зоны насыщенных углеводородов, мм;

L - сумма Lа + L0 + Lн.

Определяют соответствующие средние арифметические значения для каждого типа углеводородов и вносят их в отчет (14.1). При необходимости корректируют результат (по наибольшему значению) таким образом, чтобы сумма компонентов составляла 100 %.

13.2 Пользуясь уравнениями (1, 2 и 3), рассчитывают объемные доли углеводородов в образцах, не содержащих свободные оксигенаты. Эти уравнения верны для образцов, которые состоят из углеводородов.

Для образцов с кислородсодержащими компонентами (1.5) объемную долю углеводородов С¢ вычисляют по формуле

С¢= С(100 - B)/100,                                                               (4)

где С¢ - объемная доля типов углеводородов в анализируемом образце, %;

С - объемная доля типов углеводородов в образце, не содержащем оксигенты, %;

В - общая объемная доля кислородсодержащих компонентов смешения в образце, определенная по [9], %.

14 Обработка результатов

14.1 Записывают среднее арифметическое значение для каждого типа углеводорода с точностью до 0,1 %. Объемную долю оксигенатов (при их наличии) вычисляют по разности 100 % и суммы объемных долей углеводородов.

14.1.1 Для проб, прошедших депентанизацию, результат рассчитывают по части пробы от С6 и выше. Можно провести анализ выделенных углеводородов С5 и более легкой части пробы по [10] на присутствие олефинов и насыщенных углеводородов. Используя эти значения и объемные доли легкой и тяжелой фракций, рассчитывают распределение типов углеводородов в образце.

15 Точность метода

15.1 Оценка приемлемости результатов (95 %-ная доверительная вероятность)

15.1.1 Сходимость

Расхождения результатов последовательных испытаний, полученных одним и тем же оператором, на одном и том же оборудовании, при постоянных рабочих условиях, на идентичном испытуемом материале, в течение длительного времени, при нормальном и правильном проведении испытания, не должны превышать указанные в таблицах 2 или 3 значения более чем в одном случае из двадцати.

Таблица 2 - Точностные характеристики образцов, не содержащих оксигенаты

Тип углеводородов

Объемная доля, %

Уровень в зоне

Сходимость

Воспроизводимость

Ароматические углеводороды

5

0,7

1,5

15

1,2

2,5

25

1,4

3,0

35

1,5

3,3

45

1,6

3,5

50

1,6

3,5

55

1,6

3,5

65

1,5

3,3

75

1,4

3,0

85

1,2

2,5

95

0,7

1,5

99

0,3

0,7

Олефиновые углеводороды

1

0,4

1,7

3

0,7

2,9

5

0,9

3,7

10

1,2

5,1

15

1,5

6,1

20

1,6

6,8

25

1,8

7,4

30

1,9

7,8

35

2,0

8,2

40

2,0

8,4

45

2,0

8,5

50

2,1

8,6

55

2,0

8,5

Насыщенные углеводороды

1

0,3

1,1

5

0,8

2,4

15

1,2

4,0

25

1,5

4,8

35

1,7

5,3

45

1,7

5,6

50

1,7

5,6

55

1,7

5,6

65

1,7

5,3

75

1,5

4,8

85

1,2

4,0

95

0,3

2,4

Таблица 3 - Точностные характеристики образцов, содержащих оксигенаты

Тип углеводородов

Диапазон измерения

Объемная доля, %

Сходимость

Воспроизводимость

Ароматические

13 - 40

1,3

3,7

Олефиновые

4 - 33

0,2578 Х0,6

0,8185 Х0,6

Насыщенные

45 - 68

1,5

4,2

Примечание - Х-объемная доля олефинов, %.

15.1.2 Воспроизводимость

Расхождение двух единичных и независимых результатов, полученных разными операторами, в разных лабораториях, на идентичном испытуемом материале, в течение длительного времени, при нормальном и правильном проведении испытания, не должно превышать указанных в таблицах 2 или 3 значений более чем в одном случае из двадцати.

15.1.3 Значения сходимости и воспроизводимости, приведенные в таблице 2, используют только для образцов, не содержащих оксигенаты.

Приведенные в таблице 3 значения сходимости и воспроизводимости используют для образцов, содержащих оксигенаты.

15.2 Отклонение

Отклонение не может быть определено из-за отсутствия стандартных образцов, необходимых для определения отклонений по описанной в стандарте методике.

Примечание - Показатели точности, установленные в таблице 3, были определены для образцов, которые не были депентанизированы.

ПРИЛОЖЕНИЕ А
(справочное)

Требования безопасности

А.1 Требования безопасности охраны здоровья, связанные с применением настоящего стандарта, устанавливает пользователь.

Характеристики наиболее опасных реактивов:

изоамиловый и изопропиловый спирты,

ацетон, жидкие нефтепродукты - воспламеняемы, опасны для здоровья;

сжатый воздух - газ под высоким давлением.

А.2 Следует принять во внимание, что сжатый газ подается под высоким давлением.

А.3 При проведении анализа следует по возможности избегать воздействия ультрафиолетовых лучей, особенно на глаза, и прикосновения к колонке при маркировке хроматографических зон.

ПРИЛОЖЕНИЕ Б
(обязательное)

Перечень нормативных документов, использованных в настоящем стандарте

[1]     АСТМ Д 2710 Метод определения бромного числа нефтепродуктов электрометрическим титрованием

[2]     АСТМ Д 1655 Спецификация на авиационные турбинные топлива

[3]     АСТМ Д 2001 Метод децентанизации бензина и нафты

[4]     АСТМ Д 3663 Метод определения поверхности площади катализаторов

[5]     Е 11 Спецификация на сита из металлической ткани для испытаний

[6]     БС 410 Спецификация на сита (Британский институт стандартов)

[7]     АСТМ Д 770 Спецификация на изопропиловый спирт

[8]     АСТМ Д 4057 Руководство по ручному отбору проб нефтей и нефтепродуктов

[9]     АСТМ Д 4815 Газохроматографический метод определения МТБЭ, ЭТБЭ, ТАМЭ, ДИПЭ, трет-амилового спирта и спиртов С1 - С4 в бензине

[10]   АСТМ Д 2427 Газохроматографический метод определения содержания углеводородов С2 - С3 в бензинах

[11]   АСТМ Д 5599 Метод определения оксигенатов в бензине с применением пламенно-ионизационного детектора по кислороду

Ключевые слова: ароматические углеводороды; флуоресцентная индикаторная адсорбция (ФИА); типы углеводородов; олефиновые углеводороды; насыщенные углеводороды



© 2013 Ёшкин Кот :-)