Информационная система
«Ёшкин Кот»

XXXecatmenu

МИНИСТЕРСТВО ЭНЕРГЕТИКИ И ЭЛЕКТРИФИКАЦИИ СССР

ГЛАВЭНЕРГОРЕМОНТ

 

РУКОВОДСТВО
ПО ЭКСПЛУАТАЦИИ
ЛЕСОВ, ПОДМОСТЕЙ И ЛЮЛЕК
ДЛЯ РЕМОНТА
ПАРОВЫХ КОТЛОВ

 

 

МОСКВА 1974

 

 

УТВЕРЖДАЮ:

Главный инженер
Главэнергоремонта

В.И. КУРКОВИЧ

24 августа 1972 г.

 

 

СОДЕРЖАНИЕ

1. Общая часть. 2

1.1. Назначение Руководства. 2

1.2. Определения конструкций. 2

2. Технические условия на изготовление. 4

2.1. Материалы.. 4

2.2. Общие требования к изготовлению.. 8

2.3. Сварка. 10

2.4. Термообработка. 11

2.5. Окраска. 11

2.6. Правила приемки после изготовления и методы контроля. 12

3. Установка и разборка лесов, площадок, подмостей, люлек и платформ.. 16

3.1. Общие требования. 16

3.2. Установка и разборка лесов, площадок, подмостей, люлек и подъемных платформ в топке и газоходах. 17

3.3. Установка опорных лесов и площадок в топке с плоским подом.. 17

3.4. Установка опорных лесов и площадок в топке с холодной воронкой. 18

3.5. Разборка лесов и площадок. 19

3.6. Установка лесов в помещении цехов и на территории электростанций. 19

3.7. Установка и разборка подвесных лесов и площадок в топке котла. 19

3.8. Установка и разборка люлек с пневматическим и ручным приводом в топке котла. 19

4. Техника безопасности при эксплуатации. 21

4.1. Общие требования. 21

4.2. Эксплуатация лесов и площадок. 21

4.3. Эксплуатация люлек и подъемных платформ.. 23

5. Транспортирование и хранение. 25

Приложение 1 Типовые опорные леса ТУЛ-1. 25

Приложение 2 Наряд. 32

Приложение 3 Акт приемки. 34

Приложение 4 Протокол измерений и наблюдений. 35

1. ОБЩАЯ ЧАСТЬ

1.1. Назначение Руководства

1.1.1. Руководство предназначено для персонала, выполняющего ремонт энергетического оборудования электростанций, и содержит указания по выбору материалов, изготовлению, эксплуатации опорных и подвесных лесов и площадок, подмостей, люлек и подъемных платформ.

1.1.2. Руководство1 составлено на основании Правил техники безопасности при обслуживании теплосилового оборудования электростанций («Энергия», 1968), правил Госгортехнадзора СССР, СНиП III-А.11-70 и обобщения передового опыта электростанций, ремонтных предприятий Главэнергоремонта и энергосистем.

1 Руководство не распространяется на деревянные леса.

При составлении Руководства учтены замечания ремонтных организаций, предприятий и электростанций - Белоруссэнергоремонта, Мосэнергоремонта, Пермэнергоремонта, Ростовского отделения ЦКБ Главэнергоремонта, Сибэнергоремтреста, Средазэнергоремонта, Туркменэнергоремонта, Узбекэнергоремонта, Уралэнергоремонта, Харьковэнергоремонта, Центрказэнергоремонта, завода Эстонэнергоремонта, Южказэнергоремонта, Южэнергоремонта, Ярэнергоремонта, завода «Котлоочистка», ПРП Главюжэнерго, РНР «Энергоремонт», Латвглавэнерго, ЦПРП Ленэнерго, Литовской, Прибалтийской, Старобешевской ГРЭС.

1.1.3. Требования, изложенные в Руководстве, являются обязательными для персонала электростанций, ремонтных предприятий и заводов Минэнерго СССР.

1.2. Определения конструкций

1.2.1. Опорные и подвесные леса и площадки, подмости, люльки и подъемные платформы являются временными вспомогательными устройствами, обеспечивающими работу на высоте при ремонте и строительстве.

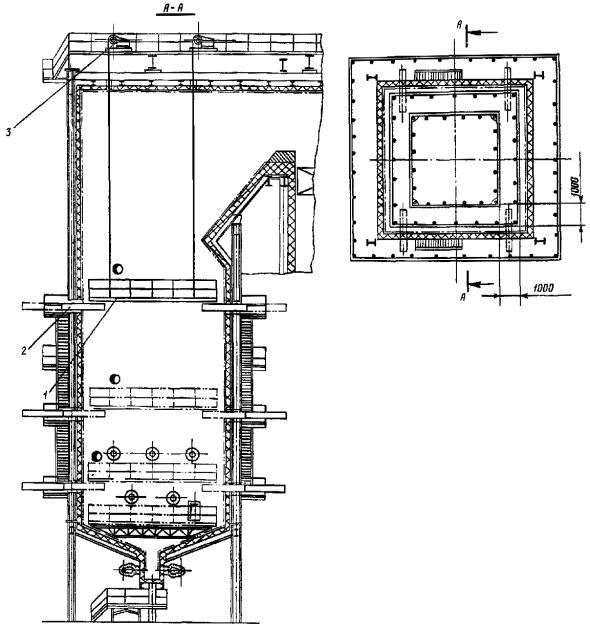
1.2.2. Опорные леса (рис. 1) представляют собой пространственную разборную многоярусную конструкцию с настилами, опирающуюся на пол или грунт, а в котлах - на под или стенки холодной воронки.

1.2.3. Подвесные леса (рис. 2) представляют собой пространственную разборную многоярусную подвесную конструкцию с настилами, подвешенную на металлических струнах.

1.2.4. Опорные и подвесные площадки (рис. 3) укладываются или подвешиваются на существующих элементах оборудования или сооружений (например, в котлах - на трубы ширм, двусветных экранов и т.п.).

1.2.5. Подмости (рис. 4) представляют собой опорную одноярусную разборную или цельносварную площадку, расположенную на высоте до 1,5 м.

1.2.6. Люльки с ручным или пневматическим приводом (рис. 5) представляют собой подъемную разборную рабочую площадку, применяемую при небольших ремонтных работах в топках котлов и при наружных работах. Люльки подвешиваются на стальных канатах.

1.2.7. Подъемно-опорные платформы (рис. 6) представляют собой разборные рабочие площадки, применяемые для ремонта поверхностей нагрева в топках котлов. Платформы собираются по периметру топки, после чего поднимаются на необходимую высоту и опираются на специальные выдвижные кронштейны.

Рис. 1. Установка опорных лесов в топках котлов:

а - леса с фермой в пережиме; б - леса с фермой и откидной балкой в пережиме; в - леса на поду; г - леса в конвективной шахте; д - укладка настилов по периметру топки; е - укладка сплошного настила на фермах;

1 - ферма; 2, 21 - башмак; 3 - вставка; 4, 11, 19 - стойка; 5, 6 - ригель; 7, 8 - настил; 9, 10 - поручень; 12, 13 - борт; 14, 20 - лестница; 15 - ограждение лестницы; 16 - фиксатор; 17 - талреп; 18 - откидная балка

Рис. 2. Установка подвесных лесов в топке котла:

1 - разборная струна; 2 - крепление струны; 3 - ригель; 4 - настил по периметру; 5 - ограждение; 6 - борт; 7 - лестница; 8 - крепление лесов к трубам котла

2. ТЕХНИЧЕСКИЕ УСЛОВИЯ НА ИЗГОТОВЛЕНИЕ

2.1. Материалы

2.1.1. Материалы для изготовления элементов опорных и подвесных лесов и площадок, подмостей, люлек и подъемных платформ должны удовлетворять требованиям ГОСТ и техническим условиям на изготовление и поставку.

2.1.2. Для сварных конструкций следует применять мартенвскую сталь ВСт3кп (ГОСТ 380-71) в листовом, профильном и круглом прокате, водогазопроводные трубы без резьбы и муфт (ГОСТ 3262-62), бесшовные горячекатаные (ГОСТ 8732-70) и электросварные трубы (ГОСТ 10704-63*) из стали 10кп и 20кп (ГОСТ 1050-60**).

Трубы для изготовления элементов конструкций должны быть прямыми, без вмятин, раскрытых швов, трещин и других дефектов, нарушающих их прочность. Стальной прокат перед выдачей в производство должен быть выправлен. Поверхность стали после правки не должна иметь вмятин, забоин и других повреждений. Кривизна прямых элементов не должна превышать 1 мм на 1 м длины.

Рис. 3. Установка опорных и подвесных площадок на ширмах в котле:

1 - лестница-площадка; 2 - подвесные площадки; 3 - опорные площадки

2.1.3. Для электродуговой сварки следует применять электроды Э42А. Электроды должны удовлетворять требованиям ГОСТ 9467-60.

2.1.4. Болты и шпильки применять из стали Ст.3, Ст3кп и Ст.5 (ГОСТ 380-71), группа А.

Материал гаек и шайб в проекте не оговаривается и выбирается изготовителем; временное сопротивление материала должно быть не ниже 34 кгс/мм2.

2.1.5. Готовые изделия, выпускаемые промышленностью, должны удовлетворять следующим требованиям:

- зажимы для стальных канатов - ГОСТ 13186-67;

- приводные роликовые и втулочные цепи - ГОСТ 10947-64*;

- стальные канаты - ГОСТ 3241-70;

- стальные коуши - ГОСТ 2224-72.

2.1.6. Стальные канаты грузолюдского назначения должны быть двойной свивки, с органическим сердечником из оцинкованной проволоки высшей марки. Могут применяться канаты легкой, средней или жесткой групп, правой крестовой свивки или левой односторонней, раскручивающиеся и нераскручивающиеся.

Сращивание стальных канатов, а также применение канатов, имеющих петлеобразные изгибы и изломы, запрещается.

Браковка находящихся в работе стальных канатов производится согласно приложению 6 «Правил устройства и безопасности эксплуатации грузовых кранов» Госгортехнадзора СССР, 1970.

2.1.7. Качество и основные характеристики материалов и готовых изделий должны быть подтверждены заводом-поставщиком в соответствующих сертификатах.

Рис. 4. Подмости

2.1.8. Применение стали, электродов, сварочной проволоки и готовых изделий, не имеющих сертификатов или паспортов, разрешается только после проведения лабораторных исследований в объеме, установленном ГОСТ, и выявления их качества, марок и соответствия действующим стандартам, техническим условиям и требованиям проекта.

2.1.9. Для изготовления настилов из дерева должна применяться древесина только хвойных пород не ниже 2-го сорта, удовлетворяющая требованиям ГОСТ 8486-66. Настилы из дерева должны выполняться из полусухой вполне здоровой древесины без косослоя, трещин, продольной сучковатости, внутренней гнили и червоточины.

Качество лесоматериалов, применяемых для устройства деревянных настилов, должно быть проверено инженерно-техническими работниками. Толщина досок, применяемых для изготовления настилов, должна быть не менее 40 мм. Элементы конструкции и изделия, подверженные опасности возгорания в процессе эксплуатации, должны быть пропитаны огнестойким составом или периодически поливаться водой из шланга за 1 - 2 ч до начала ремонтных работ.

Рис. 5. Подвеска люлек в котле:

а - подвеска люлек за каркас котла; б - подвеска люлек за ширмы котла; 1 - люлька; 2 - стальные канаты; 3 - шланг для подачи воздуха к пневматическому приводу; 4 - подставка

Рис. 6. Установка подъемно-опорной платформы в топке котла:

1 - разборная платформа; 2 - выдвижной кронштейн; 3 - электрическая лебедка

2.2. Общие требования к изготовлению

2.2.1. Каждая конструкция должна обеспечивать:

а) безопасность работы;

б) возможность быстрой сборки и разборки;

в) возможность внести ее в топку или газоходы через лаз или проем;

г) возможность проверки креплений лесов при их приемке перед допуском людей к работе;

д) надежность и устойчивость при установке;

е) взаимозаменяемость элементов;

ж) технологичность изготовления.

Для удобства подбора при установке и складировании элементы должны иметь маркировку.

2.2.2. Элементы конструкции опорных и подвесных лесов и площадок, подмостей, люлек и подъемных платформ должны изготовляться в соответствии с «Инструкцией по проектированию, изготовлению и эксплуатации стальных конструкций грузоподъемных, грузозахватных и сборочных монтажных приспособлений и подмостей»  (ЦБТИ, Москва, 1964), а приводы люлек и платформ - в соответствии с техническими условиями МРТУ 34-001-68.

Перечисленные конструкции относятся к категории временных сооружений и не подлежат ведению Госгортехнадзора СССР, но должны быть выполнены в соответствии с его правилами и иметь паспорт и акт приемки предприятия-изготовителя.

2.2.3. Леса, площадки, люльки и подъемные платформы должны изготовляться по проектам, утвержденным главным инженером электростанции или соответствующего ремонтного предприятия. Проект должен иметь расчет на прочность и устойчивость данной конструкции.

2.2.4. Для изготовления подмостей высотой до 1,5 м достаточно утверждения начальника соответствующего цеха или участка работ.

2.2.5. Конструкции должны изготавливаться в полном соответствии с документацией, утвержденной в установленном порядке, требованиями действующих стандартов и технических условий.

Все отступления от документации должны быть согласованы с организацией, разработавшей проект лесов и люлек. Замена принятых в проекте марок сталей, а также изменение конструкций деталей и узлов допускаются по письменному разрешению проектной организации и только при условии, если не уменьшается прочность и устойчивость конструкции, которые должны быть проверены расчетом.

2.2.6. В случае необходимости изменения нагрузок прочность конструкции должна быть проверена расчетом.

2.2.7. Комплектующие изделия, применяемые при изготовлении конструкций, должны соответствовать установленным на них стандартам и техническим условиям.

2.2.8. Высота проходов на лесах в свету должна быть не менее 1,8 м, а ширина - не менее 0,9 м.

2.2.9. Проемы в настиле лесов для выхода с лестниц должны быть ограждены с трех сторон, проемы для приемки и перемещения грузов должны быть ограждены с четырех сторон.

2.2.10. Настилы лесов должны иметь с наружной и внутренней сторон ограждения, состоящие из двух горизонтальных элементов на высоте 0,5 и 1,0 м, и борта высотой не менее 150 мм. Ограждения со стороны стены или экрана топки не ставятся, если расстояние от стоек лесов до стены менее 200 мм.

Металлические или деревянные щиты и доски должны иметь упоры, предотвращающие сдвиг.

2.2.11. Металлические подмости цельносварные и разборные должны изготовляться из труб или профильного проката и стального рифленого листа.

2.2.12. Деревянные подмости должны изготовляться из лесоматериалов хвойных пород не ниже 2-го сорта, удовлетворяющих по качеству требованиям данного Руководства (см. п. 2.1.9).

2.2.13. Подмости должны быть рассчитаны на максимально возможные нагрузки и не иметь зазоров, допускающих падение инструмента и материалов. Подмости должны иметь ограждения высотой 1 м с трех сторон и борта высотой 150 мм.

2.2.14. Настил должен изготовляться из досок толщиной не менее 40 мм или деревянных щитов такой же толщины, или стального листа.

2.2.15. Щиты деревянных настилов и все элементы деревянных конструкций соединяются гвоздями, с оборотной стороны гвозди загибаются двойным загибом с утапливанием концов.

2.2.16. Металлические щиты настилов на лесах и полы в люльках и платформах должны иметь выпуклости (рифленость или шероховатость, сделанную электросваркой), предохраняющие от скольжения.

2.2.17. Для подвесных лесов поддерживающие элементы конструкции должны изготовляться из прокатной, а подвесные струны - из арматурной стали (см. п. 2.1.2). После изготовления эти элементы должны быть испытаны. Результаты испытания следует оформить актом. При расчетах принимается восьмикратный запас прочности.

2.2.18. Крючья для подвески лесов и площадок следует заранее испытать статической нагрузкой, превышающей рабочую в 2 раза, причем крючья должны находиться под нагрузкой не менее 15 мин. Результаты испытания оформить актом.

2.2.19. Для подъема и спуска люлек и платформ необходимо применять стальные канаты. Размеры стальных канатов, поднимающих люльки и платформы, должны быть проверены расчетом, при этом принимается не менее чем девятикратный запас прочности.

2.2.20. Люльки и платформы после изготовления необходимо испытать при статической нагрузке, превышающей расчетную на 50 %, и динамической нагрузке, превышающей расчетную на 10 %. О результатах испытаний должен быть составлен акт.

2.2.21. Люльки должны иметь с четырех сторон барьеры (ограждения) высотой 1200 мм и борта высотой 150 мм; платформы должны иметь ограждения высотой не менее 1000 мм и борта высотой 150 мм.

2.2.22. Ручные лебедки, служащие для подъема и опускания люлек и платформ, должны соответствовать расчетным нагрузкам и оборудоваться тормозами с безопасными рукоятками.

2.2.23. Прикрепление стального каната к люлькам и платформам должно производиться способом, исключающим его перетирание и излом.

2.2.24. Трубы, уголки и другой прокатный металл, идущий на изготовление деталей и узлов, должен быть прямым, без вмятин и других дефектов, снижающих прочность. Кривизна прямых элементов не должна превышать 1 мм на 1 м длины.

2.2.25. Размеры, допуски и степень чистоты поверхностей деталей должны соответствовать указаниям на рабочих чертежах, свободные размеры, не имеющие допусков на чертежах, выполняются по 7-му классу точности (ОСТ 1010).

2.2.26. Все детали, поступающие на сборку узлов независимо от места их изготовления, должны иметь маркировку и клеймо контролера. Детали, на которые невозможно нанести клеймо, должны иметь документ, удостоверяющий их качество.

2.2.27. Заготовка элементов конструкций и их сварка должны производиться по шаблонам и в кондукторах.

2.3. Сварка

2.3.1. Сварка должна производиться электродами Э42А (ГОСТ 9467-60).

2.3.2. Узлы лесов относятся к разряду ответственных конструкций и поэтому сварка их должна производиться только дипломированными сварщиками, прошедшими аттестацию в соответствии с Правилами аттестации сварщиков, утвержденными Госгортехнадзором СССР 22 июня 1971 г.

2.3.3. Сварку узлов производить в кондукторах, сварку ферм - на стендах, обеспечивающих необходимую точность сборки. При сборке не допускаются искажения геометрических форм собираемых деталей.

2.3.4. Поверхности стыкуемых (свариваемых) деталей на расстоянии до 20 мм от кромки должны быть очищены от грязи, коррозии, масла и пр.

2.3.5. При сборке конструкций необходимо обеспечить зазоры между свариваемыми деталями для ручной электродуговой сварки для всех типов сварных соединений, и швов по ГОСТ 5264-69.

Запрещается закладывать увеличенные зазоры кусками проволоки, электродами или полосками тонколистового металла.

Запрещается принудительный натяг деталей при сварке и подгонка при сборке. Все изъяны и неровности, имеющиеся на деталях и препятствующие правильной сборке, должны быть устранены.

2.3.6. В сварных швах не допускаются трещины, поры, раковины, шлаковые включения, окислы, незаплавленные кратеры, а также прожоги и подрезы основного металла.

2.3.7. По окончании сварки швы должны быть зачищены до металлического блеска, а поверхности свариваемых элементов очищены от шлака, брызг, подтеков и пр.

2.3.8. Контроль за качеством сварных соединений должен осуществляться внешним осмотром с обстукиванием молотком весом 0,5 кг не менее 50 % протяженности швов, сварные швы особо ответственных элементов должны проверяться УЗД или другими неразрушающими методами контроля.

2.3.9. Сварные швы должны иметь форму и размеры, соответствующие указаниям рабочих чертежей. Угловые швы могут быть плоскими, выпуклыми или вогнутыми, но во всех случаях размером шва считается катет вписанного в сечение шва равнобедренного треугольника.

Во всех типах сварных соединений должна быть обеспечена плавность перехода швов в основной металл.

2.4. Термообработка

2.4.1. Все детали, в чертежах которых есть соответствующие указания, должны быть подвергнуты термообработке.

2.4.2. Детали, прошедшие термообработку, подлежат проверке на твердость.

2.4.3. Некачественную термообработку любой детали разрешается исправлять не более одного раза. После повторной термообработки деталь контролируется повторно.

2.4.4. После термообработки на детали не должно быть закалочных трещин, неравномерной твердости, превышающей допускаемую, коробления и других дефектов.

2.4.5. Контроль за глубиной цементации детали должен вестись на образце, изготовленном из однородного металла.

2.4.6. Образец, укладываемый в цементационный ящик, должен иметь клеймо контролера.

2.4.7. Детали после термической обработки должны быть очищены от окалины, масла и других загрязнений.

2.4.8. Гибка крюков для ригелей должна производиться при температуре 900 - 1100 °С (от ярко-красного до желтого цвета каления) и прекращаться при температуре не ниже 700 °С (красный цвет каления). Скорость охлаждения деталей после окончания обработки должна исключать закалку, коробление, трещины и надрывы.

2.5. Окраска

2.5.1. Грунтовка и окраска металлических деталей, узлов и всего изделия должны производиться после приемки их контролером. Приемку грунтовки и окраски следует производить дополнительно после ее выполнения, элементы из дерева не окрашиваются.

2.5.2. Материалы для грунтовки и окраски стальных конструкций и их качество (вязкость, срок высыхания) должны удовлетворять требованиям действующих стандартов и технических условий и удостоверяться сертификатами заводов-поставщиков.

Окончательная окраска должна соответствовать требованиям ГОСТ 9894-61, класса III, группы А.

2.5.3. Перед окраской покрываемые поверхности должны быть тщательно очищены от ржавчины, окалины, грязи, жирных пятен и других загрязнений, а также от влаги, снега и льда. Все элементы стальных конструкций должны быть отгрунтованы на месте их изготовления.

2.5.4. При нанесении грунтовки необходимо проверять качество очистки стальных конструкций.

Соприкасающиеся плоскости заводских и монтажных соединений (узлов), оговоренные в чертежах, не грунтуются и не окрашиваются.

2.5.5. Поверхность должна быть окрашена двумя слоями. Краска наносится тонкими ровными слоями без пропусков, пятен и подтеков. При окраске пневматическими распылителями сжатый воздух должен быть очищен от влаги, масла и пыли.

2.5.6. Все элементы лесов, кроме торцов, стоек, гнезд, крюков, ригелей и поручней, должны быть окрашены в два слоя краской БТ-177 (ГОСТ 5631-70).

2.5.7. Каркас люльки и ограждения окрашиваются в голубой цвет; верхний пояс ограждения, ограничитель высоты подъема люльки, ловители в сборе, механизм подъема, натяжные грузы и болты заземления - в красный цвет.

2.6. Правила приемки после изготовления и методы контроля

Общие указания

2.6.1. Каждый узел металлоконструкций должен быть подвергнут контролю. При приемке контролер обязан проверить:

а) материалы по сертификатам завода-поставщика или актам лаборатории предприятия;

б) наличие всех деталей и узлов в соответствии с чертежом общего вида;

в) качество внешней отделки;

г) качество сварки и сборки;

д) взаимозаменяемость деталей и узлов;

е) техническую документацию, прилагаемую к изделию;

ж) соответствие размеров, указанных в чертежах, допускам и отклонениям, предусмотренным стандартами и техническими условиями.

2.6.2. После проверки всех элементов конструкций и испытания должна быть произведена контрольная сборка (контрольная сборка подмостей не производится). О проведении контроля и приемки должен быть составлен акт.

Опорные леса1 и площадки

1 См. приложение 1.

2.6.3. При изготовлении узлы и детали опорных лесов и площадок должны подвергаться приемке и контролю согласно пп. 2.6.1 и 2.6.2 настоящего Руководства.

2.6.4. Из каждой изготовленной партии узлов и деталей лесов и площадок 1 % их количества (но не менее 5 шт.) должен быть проверен и испытан, а все лестницы и фермы для лесов подвергаются проверке и испытаниям.

2.6.5. Стойки должны быть проверены на:

а) прямолинейность (допустимое отклонение не должно превышать 1,5 мм по всей длине);

б) соосность карманов и продольной оси стойки (допустимое отклонение не должно превышать 0,5 мм);

в) отклонение углового размера расположения проушин относительно одной базовой проушины по окружности (допустимое отклонение не должно превышать ±30');

г) перпендикулярность торца стойки к ее продольной оси - (отклонения не допускаются).

д) качество сварного шва (непровары и другие дефекты сварки не допускаются).

Стойки испытываются в течение 10 мин на продольный изгиб статической нагрузкой, приложенной по оси стойки, величиной не менее 1500 кг. Стойка шарнирно крепится по высоте к стенкам котла или к неподвижным конструкциям. Остаточные деформации не допускаются.

2.6.6. Металлические щиты должны быть проверены на:

а) разность диагоналей щита (допустимое отклонение не должно превышать 5 мм);

б) неплоскостность - (не более 3 мм).

Щиты должны быть испытаны равномерно распределенной нагрузкой 250 кгс/м2 и сосредоточенной нагрузкой 130 кгс, приложенной к середине кромки щита. Время каждого испытания не менее 5 мин. Остаточные деформации не допускаются.

2.6.7. Ригели должны быть проверены на:

а) отклонение штырей от общей вертикальной плоскости (допустимое отклонение не должно превышать 0,5 мм);

б) прямолинейность (допустимое отклонение не должно превышать 2 мм по всей длине).

Ригели испытать сосредоточенной нагрузкой 165 кгс, приложенной в их середине. Время каждого испытания не менее 5 мин. Остаточные деформации не допускаются.

2.6.8. Поручни должны быть проверены на:

а) отклонение расположения штырей от общей вертикальной плоскости (допустимое отклонение не должно превышать 0,5 мм);

б) прямолинейность (допустимое отклонение не должно превышать 2 мм по всей длине).

Поручни испытать в течение 5 мин нагрузкой 70 кгс, приложенной в середине. Остаточные деформации не допускаются.

2.6.9. Лестницы должны быть проверены на:

а) неплоскостность (не более 3 мм);

б) разность диагоналей (не более 3 мм).

Тетива лестниц испытывается сосредоточенным грузом 200 кг, подвешенным к середине лестницы, положенной горизонтально на опоры.

Ступени лестниц испытываются сосредоточенным грузом 200 кгс, подвешиваемым поочередно к середине каждой ступени, при этом лестница устанавливается под углом 60° к плоскости пода или земли. Продолжительность испытаний тетивы и каждой ступени 5 мин. Остаточная деформация не допускается.

2.6.10. Фермы должны быть проверены на:

а) пропеллерность - не более 5 мм по всей длине;

б) смещение вертикальных осей стаканов от продольной и вертикальной осей фермы (допустимое смещение не должно превышать 0,5 мм);

в) перпендикулярность осей отверстий продольной оси фермы (не более 2°);

г) межцентровые расстояния стаканов для стоек (допустимое отклонение не должно превышать ±1 мм).

На специально изготовленном стенде фермы испытываются в течение 10 мин сосредоточенной нагрузкой, приложенной в стаканах (величина нагрузки определяется по приложению 1 - рис. 14). Остаточные деформации не допускаются.

2.6.11. Контрольная сборка опорных лесов и площадок должна производиться один раз после изготовления на специальном стенде у стены зданий или в котле по схеме, составленной согласно чертежу общего вида.

Леса устанавливаются высотой в три яруса, считая первым настил, уложенный на фермы. В местах соединения стоек леса должны крепиться к надежным конструкциям (к каркасам или экранным трубам).

Контрольная сборка опорных лесов должна производиться без особых усилий (без применения кувалд и пр.), при этом должны проверяться:

а) правильность установки всех узлов внешним осмотром;

б) вертикальность установки стоек при помощи отвеса (угол наклона должен быть не более 1°).

в) легкость соединения ригелей, поручней (барьеров) и бортов со стойками;

Рис. 7. Устройство деревянных настилов на лесах:

1 - стойка; 2 - ригель; 3 - щиты; 4 - ограждение

г) плотность прилегания крюков лестницы к ригелям, а нижних концов - к щитам (настилам);

д) надежность установки и закрепления стоек;

е) надежность закрепления ограждения проемов, на ригелях и настилах (щитах);

ж) укладка бортов, исключающая возможность выпадания инструмента, кусков материала и пр.;

з) настилы на лесах и подмостях должны иметь ровную поверхность с зазорами между щитами (досками) не более 10 мм. Не допускаются заклинивание щитов со стойками и наложение одного щита на другой.

Соединение щитов (досок) внахлестку допускается только по их длине, причем концы стыкуемых элементов, скошенные под углом 45°, должны быть расположены на опоре и перекрывать ее не менее чем на 200 мм в каждую сторону (рис. 7).

2.6.12. Контрольная сборка после осмотра должна быть испытана нагрузкой 250 кгс/м2 по верхнему ярусу в течение 10 мин. После испытания сборку разобрать. Все элементы должны разбираться без значительных усилий.

В элементах проверить сварные швы, отсутствие остаточных деформаций, изменение геометрических форм и размеров. Обнаруженные дефекты должны быть устранены и испытания повторены.

О результатах испытаний необходимо составить акт.

Подвесные леса и площадки

2.6.13. Подвесные леса и площадки должны подвергаться контролю и испытаниям согласно пп. 2.6.1, 2.6.2 настоящего Руководства.

2.6.14. Контрольная сборка подвесных лесов и площадок должна производиться у стены здания или в котле по схеме, составленной согласно чертежу общего вида, один раз после изготовления. Леса устанавливаются на всю требуемую для работы высоту. В местах соединения струн подвесные леса должны крепиться к надежным конструкциям.

2.6.15. При контрольной сборке подвесные леса и площадки должны быть проверены согласно п. 2.6.11,а, г, д, ж, з настоящего Руководства и дополнительно проверены на:

а) вертикальность подвески струн при помощи отвеса;

б) легкость соединения ригелей, барьеров и бортов со струнами;

в) надежность подвески и закрепления струн.

Контрольная сборка подвергается испытанию согласно п. 2.6.12 настоящего Руководства.

Люльки и подъемные платформы

2.6.16. При изготовлении узлы и детали люлек1 и подъемных платформ должны подвергаться контролю и испытаниям согласно пп. 2.6.1, 2.6.2 настоящего Руководства.

1 Люльки с пневматическим приводом изготавливает Перловский опытный завод. Заказы направлять по адресу: Москва, 1-я ул. Энтузиастов, 15, трест «Энергомеханизация» Главэнергомеханизации Минэнерго СССР.

Собранные люльки и подъемные платформы проверить в соответствии с пп. 2.6.17 - 2.6.32 настоящего Руководства.

2.6.17. В каркасе люльки допускаются следующие отклонения:

а) разности диагоналей всех плоскостей каркаса - не более ±3 мм;

б) габаритных размеров: ширины ±5 мм; высоты ±5 мм.

2.6.18. При сборке болты и гайки должны быть затянуты до отказа. Головки болтов и гаек должны плотно прилегать к опорным поверхностям всей плоскостью.

2.6.19. Червячные пары привода и барабаны должны вращаться легко, без заеданий и ударов; шум при вращении должен быть равномерным (собачки тормоза при этом должны быть выведены из зацепления).

2.6.20. Пол подвешенной люльки должен находиться в горизонтальном положении, а подъемные (рабочие) канаты должны быть натянуты вертикально и параллельно между собой.

2.6.21. Подъем и опускание люльки и платформы должны быть плавными, без рывков и заеданий.

2.6.22. Полумуфта при переключении с пневмопривода на ручной должна свободно без заеданий перемещаться по валу.

2.6.23. Палец должен легко спускаться вниз при нажатии рычага устройства имитации обрыва рабочего каната, обеспечивая свободный поворот сектора со шкивом.

2.6.24. Штоки в механизмах ограничения хода и воздухораспределителя должны быть тщательно притерты к втулкам корпуса (зазоры не допускаются).

2.6.25. Соединения резиновых шлангов с пневматическими механизмами должны быть надежными и плотными.

2.6.26. Ограничитель хода и воздухораспределитель в собранном виде должны быть проверены на герметичность сборки и качество притирки штока. Зазоры не допускаются. Испытание должно производиться при давлении 6 кгс/см2 в течение 30 мин.

2.6.27. Червячные пары привода, пальцы, барабаны, редукторы, собачки и прочие элементы должны быть изготовлены в соответствии с указаниями на чертежах (допуски, посадки, термическая обработка и степень чистоты).

2.6.28. После приемки все рабочие поверхности приводов, ловителей и устройств имитации обрыва рабочего каната должны быть защищены от коррозии смазкой солидолом.

2.6.29. Крышки устройства для смазки и болты заземления должны быть окрашены в красный цвет.

2.6.30. Предприятие, изготовившее люльку или платформу, должно дать гарантию нормальной работы привода, ловителей и устройства имитации обрыва в течение 12 мес. со дня ввода в эксплуатацию при соблюдении правил, предусмотренных в п. 2.6.3.

2.6.31. Приводы перед установкой на люльку или платформу необходимо обкатать вхолостую в течение 2 ч (1 ч в правую и 1 ч в левую стороны) с целью достижения легкости вращения, опоры валов и другие трущиеся детали (кроме тормозных) смазать.

2.6.32. Ручные лебедки для подъема люлек и платформы должны быть изготовлены в соответствии с паспортными данными и техническими характеристиками, указанными в документации.

2.6.33. После изготовления собранные люльки и платформы должны быть проверены и испытаны. При осмотре особое внимание обратить на правильность и надежность крепления приводов, ловителей и других узлов. При статическом испытании нагрузкой, превышающей расчетную на 50 %, люлька поднимается на высоту 100 - 200 мм и выдерживается в таком положении в течение 10 мин. После этого люлька опускается и проверяется состояние ее узлов (каркаса, привода, ловителей и т.д.) и деталей. Остаточная деформация не допускается. При динамическом испытании нагрузкой, превышающей расчетную на 10 %, необходимо равномерно опускать и поднимать люльку (без соприкосновения с полом) с целью проверки взаимодействия узлов, приводов, особенно тормозных устройств. При испытании ловителей провести не менее трех имитаций обрыва каждого грузового (рабочего) каната, при каждом испытании подстраховочный канат должен быть зажат ловителями.

После испытаний люльки и платформы необходимо опустить и проверить состояние их узлов и деталей. Обнаруженные при испытаниях дефекты следует устранить и испытание повторить. О результатах испытаний должен быть составлен акт.

2.6.34. Перед первым применением люлек и подъемных платформ на электростанции произвести их подъем и опускание с полной нагрузкой на всю высоту топки котла с целью определения основных параметров технической характеристики, т.е. скорости подъема и опускания.

3. УСТАНОВКА И РАЗБОРКА ЛЕСОВ, ПЛОЩАДОК, ПОДМОСТЕЙ, ЛЮЛЕК И ПЛАТФОРМ

3.1. Общие требования

3.1.1. Установка лесов и других сооружений внутри топки и в газоходах разрешается после проверки надежности отключения котла, водяного экономайзера, линий подвода мазута и пара к форсункам, линий подвода газа к горелкам, перекрытия первичного и вторичного воздуха к горелкам и воздуховодов от работающих котлов и магистралей. Электродвигатели тягодутьевых машин должны быть отключены и на их выключателях вывешены плакаты «Не включать - работают люди». Необходимо получить наряд на допуск к работе. Наряд на допуск к работе - это письменное распоряжение, определяющее место, время и условия проведения ремонтных работ, необходимые меры безопасности, состав бригады и лиц, ответственных за безопасность работы. Форма наряда приведена в приложении 2.

3.1.2. Ремонтные работы в топке и газоходах должны производиться после их очистки от шлака и золы. Для предохранения работающих внутри топки от возможного падения шлака, кирпичей и других предметов над местом работ следует устанавливать защитные приспособления в виде перекрытий, щитов (настилов). Работающие внутри топки в газоходах должны быть в касках на мягкой подкладке. Места работы должны быть хорошо освещены.

3.1.3. При необходимости срочного проведения ремонтных работ и установки лесов, площадок и других сооружений без предварительной очистки топки и газоходов ответственный руководитель вместе с мастером обязан до начала работы убедиться в отсутствии в них нависших глыб шлака, повреждений обмуровки стен, перекрытий и сводов, грозящих падением, и в отсутствии в топке, бункерах и газоходах скоплений горячей золы.

Шлаковые и зольные бункера при любых обстоятельствах должны быть полностью очищены от шлака и золы.

Для работы в топке котла над холодной воронкой предварительно сделать сплошной настил, уложенный на металлические балки, фермы и т.п.

3.1.4. Установка и разборка лесов и других сооружений осуществляется под руководством и наблюдением производителя работ или мастера с соблюдением порядка и последовательности, указанных в проекте или на схеме.

3.1.5. Производитель работ, руководящий установкой и разборкой лесов и других сооружений, должен:

а) тщательно ознакомиться с проектом;

б) составить схему установки;

в) составить спецификацию необходимых элементов;

г) принять со склада согласно спецификации комплект деталей и узлов с тщательной отбраковкой поврежденных элементов.

3.1.6. К установке и разборке лесов и других сооружений допускаются рабочие, прошедшие медицинский осмотр и ознакомленные с правилами техники безопасности. В специальном журнале следует сделать соответствующую запись с распиской рабочего.

3.1.7. Каждый рабочий должен получить указания о последовательности установки, крепления и разборки сооружения.

3.1.8. Леса и другие сооружения допускаются к эксплуатации только после полного окончания их установки и приемки по акту комиссией, назначенной главным инженером электростанции.

Результат осмотра лесов и других сооружений должен быть записан в журнал производства работ с обязательным указанием о допуске рабочих.

3.1.9. На люльках и подъемных платформах должны вывешиваться плакаты с указанием грузоподъемности, а на лесах - с указанием равномерно распределенной и сосредоточенной нагрузок.

3.1.10. Доступ людей в зону, где производится установка и разборка сооружений, должен быть закрыт.

3.1.11. При приемке в эксплуатацию установленные леса и другие сооружения должны быть проверены на соответствие чертежам и схемам.

3.1.12. За состоянием лесов и других сооружений должно быть установлено систематическое наблюдение. Ежедневно перед началом смены и после окончания работы мастер или руководитель работ на объекте должен проверять их состояние.

3.1.13. Подъем груза на леса и другие сооружения должен производиться по сигналу лица, аттестованного как сигнальщик.

3.2. Установка и разборка лесов, площадок, подмостей, люлек и подъемных платформ в топке и газоходах

3.2.1. Для проведения ремонтных работ на высоте до 2 м должны устанавливаться подмости, на высоте 2 м и более - сооружаться леса, площадки или устанавливаться люльки и подъемные платформы. Работать на случайных подставках (бочках, ящиках и т.д.) не разрешается.

3.3. Установка опорных лесов и площадок в топке с плоским подом

3.3.1. Опоры для стоек должны устанавливаться на поверхности пода, предварительно очищенного от золы и шлака. Под каждую пару опор в поперечном направлении укладывается целая (неразрезная) подкладка из доски толщиной не менее 5 см.

Рис. 8. Установка стоек:

1 - стойка; 2 - ригель

Запрещается выравнивать подкладку при помощи кирпичей, камней, обрезков металла, клиньев и других предметов.

Трубчатые стойки следует устанавливать на опоры, прикрепленные к подкладкам. После установки каждой пары стоек проверить их вертикальность, соблюдая при этом перпендикулярность осей проушин (рис. 8). После этого приступать к установке следующей пары стоек.

В проушины стоек необходимо укрепить ригели и на них укладывать настилы из щитов или доски согласно схеме. Щиты и настилы должны иметь ровную поверхность. Щели более 10 мм на щитах и настилах не допускаются. На настилах с обеих сторон рабочей площадки устанавливать борта.

Стойки необходимо крепить к экранным трубам котла за проушины на уровне настилов при помощи фиксаторов и талрепов, над настилом на высоте 0,5 и 1 м установить перила.

Руководитель работ или мастер должен проверить первый ярус лесов и только после этого дать указание на установку следующего яруса.

На свободные концы стоек установить стойки верхнего яруса, и технологическая последовательность сборки повторяется.

3.4. Установка опорных лесов и площадок в топке с холодной воронкой

3.4.1. На зачищенную поверхность наклонных стен холодной воронки котла под опоры ферм следует подложить подкладки из досок, на которые установить фермы.

Следующую ферму устанавливать и соединять с первой ригелями и далее аналогично до следующей стены топки.

После установки ферм проверить их горизонтальность по уровню. Необходимо следить за тем, чтобы торцы стаканов ферм были на одном уровне. Для упрощения и ускорения установки ферм следует пользоваться шаблонами.

После установки ферм и ригелей на них укладывается сплошной настил из щитов. В два ряда по периметру топки устанавливаются вставки и в них стойки. В верхние проушины стоек укрепляются ригели и на них укладывается настил из щитов или досок второго яруса, далее сборка лесов производится согласно п. 3.3.1.

При большой глубине топки можно применять откидные балки, связанные с фермами, которые своими башмаками опираются на поверхность холодной воронки. Сборка лесов производится в той же последовательности.

3.4.2. Для сообщения между ярусами необходимо устанавливать лестницы, которые должны крепиться крюками за поперечные ригели, а другим концом опираться на настил нижнего яруса. Проем выхода с лестницы на следующий ярус должен иметь трехстороннее ограждение.

3.5. Разборка лесов и площадок

3.5.1. До начала работ технический персонал должен осмотреть подлежащие разборке леса и площадки и дать указания о последовательности, способе разборки и мерах безопасности. К разборке лесов разрешается приступать только после уборки со всех ярусов мусора и инструмента.

3.6. Установка лесов в помещении цехов и на территории электростанций

3.6.1. Опорные леса при наружных работах и в цехах электростанций должны устанавливаться и разбираться в последовательности, описанной выше, но с некоторыми дополнительными требованиями.

3.6.2. Если леса устанавливаются в помещении, то предварительно подготовить площадку (убрать мусор и посторонние предметы). При наружной установке спланировать и утрамбовать поверхность грунта и обеспечить отвод дождевой воды.

3.6.3. Леса должны крепиться к металлическим конструкциям, колоннам или стенам здания в местах соединения стоек по всей высоте лесов. Устойчивость и жесткость лесов, стоящих отдельно от здания, должны обеспечиваться подкосами и растяжками.

3.6.4. Леса, установленные у проезда и в местах подъема грузов, должны быть защищены от возможных ударов и сдвигов.

3.6.5. Над входом в здание, у которого установлены леса, должен быть сверху навес, а с боковых сторон - сплошная обшивка досками. Навес и боковая обшивка должны выступать за габариты лесов не менее чем на 1 м.

3.6.6. При сооружении лесов вблизи линий электропередачи должны быть приняты меры безопасности. Линии электропередачи, расположенные на расстоянии менее 5 м от металлических лесов, должны быть (на время сборки или разборки лесов) сняты, обесточены или заключены в деревянные короба, а оттяжки троллейных и других проводов в зоне лесов - заключены в резиновые шланги.

3.7. Установка и разборка подвесных лесов и площадок в топке котла

3.7.1. Струны подвесных лесов необходимо собирать в топке котла и через отверстия в потолке котла поднимать вверх. Поднятые струны крепятся к каркасу котла.

3.7.2. В нижние проушины струн, установленных в два ряда по стене топки котла, укрепить продольные и поперечные ригели. При этом необходимо соблюдать вертикальность струн и перпендикулярность осей проушин. На ригели уложить настил из щитов первого яруса. На настил с обеих сторон рабочей площадки установить борта. Струны крепить к экранным трубам котла за проушины на уровне настилов при помощи фиксаторов и талрепов. Над настилом на высоте 0,5 и 1 м установить перила (ограждения). Сборку последующих ярусов производить в том же порядке, как и первый ярус, а разборку - в обратном порядке.

3.7.3. Подвесные леса должны быть заземлены.

3.7.4. Установленные подвесные леса допускаются к эксплуатации только после их испытания распределенной нагрузкой 250 кгс/м2, приложенной в нижнем ярусе. О результатах испытания составить акт и сделать запись в журнале лесов или в журнале производства работ с обязательным указанием о допуске рабочих на леса.

В комиссию по приемке лесов должны быть включены инженер-инспектор по технике безопасности и ответственный руководитель работ. Акт, составленный по форме, которая приведена в приложении 3, должен быть утвержден главным инженером электростанции.

3.8. Установка и разборка люлек с пневматическим и ручным приводом в топке котла

3.8.1. Сборку люлек производить на поду топки или на настиле над холодной воронкой котла. Собранную люльку устанавливать на подставках около ремонтируемой стены. Закрепить на подвесках рабочие и подстраховочные канаты, и их свободные концы опустить вниз через соответствующие отверстия в потолке котла. Далее свободные концы рабочих канатов пропустить через каркас люльки и навить пять раз на оба канатоведущих приводных барабана механизма подъема (рис. 9 и 10). Внизу на концы рабочих канатов подвесить груз. Концы подстраховочных канатов пропустить через ловители, находящиеся в каркасе люльки, а внизу на их свободные концы подвесить груз.

3.8.2. После каждой установки и испытания статической нагрузкой, превышающей расчетную на 50 %, люлька допускается к эксплуатации.

Рис. 9. Люлька с пневматическим приводом:

1 - каркас; 2 - пневматический привод; 3 - ловитель; 4 - рабочий канат; 5 - подстраховочный канат; 6 - фиксатор

3.8.3. Для проверки надежности работы подстраховочных устройств (ловителей) необходимо провести не менее двух испытаний, заключающихся в имитации обрыва каждого рабочего каната, при этом допускаемый путь свободного падения люльки не должен превышать 200 мм. При испытании нахождение людей в люльке не допускается.

Рис. 10. Схема запасовки рабочего каната:

1 - барабаны механизма подъема; 2 - ловитель; 3 - рабочий канат; 4 - подстраховочный канат; 5 - натяжные грузы

Разборка люльки производится в обратном порядке.

О результатах испытания составить акт и сделать запись в журнале производства работ с обязательным указанием о допуске рабочих.

В комиссию по приемке люлек должны быть включены инженер-инспектор по технике безопасности и ответственный руководитель работ. Акт должен быть утвержден главным инженером электростанции.

3.8.4. Люлька с ручным приводом собирается и испытывается аналогично.

4. ТЕХНИКА БЕЗОПАСНОСТИ ПРИ ЭКСПЛУАТАЦИИ

4.1. Общие требования

4.1.1. Ежедневно перед началом работ и после их окончания руководитель или мастер должен ознакомиться с записями в журнале производства работ и проверить:

а) закрепление ферм, особенно в котлах с крутым скатом холодной воронки (до 15°);

б) устойчивость и надежность крепления опорных лесов;

в) крепление подвесных лесов, люлек и платформ;

г) заземление сооружений;

д) страхующие средства (ловители) на люльках и платформах, для чего дважды произвести имитацию обрыва каждого рабочего каната;

е) на люльках и платформах наличие зажимов для крепления рабочего каната к подстраховочному на случай обрыва; на люльках должно быть 8 зажимов, на платформах - 16.

Замеченные неисправности устранить.

4.2. Эксплуатация лесов и площадок

4.2.1. Ответственный руководитель работ должен ознакомиться с допускаемыми нагрузками на леса и площадки и дать соответствующие указания всем работникам.

4.2.2. При обнаружении дефектов и недоделок находиться на лесах и входить на конструкции, не принятые по акту, не разрешается. Разрешение на вход выдает мастер или ответственный руководитель работ.

4.2.3. При высоте опорных и подвесных лесов более 6 м должно быть не менее двух настилов: рабочий (верхний) и защитный. При выполнении работ одновременно с двух настилов, находящихся на разных ярусах, число их должно быть не менее трех. Работы на нескольких ярусах по одной вертикали без промежуточных настилов между ними не допускаются.

4.2.4. Настилы лесов после окончания работ, а также периодически во время работы необходимо очищать от мусора, перед каждым перемещением настилов на другой ярус - освобождать их от материалов, мусора и закрывать доступ на леса. Запрещается находиться людям под настилом во время его снятия.

4.2.5. Равномерно распределенная нагрузка на настил не должна превышать 200 кгс/м2. Полная нагрузка на леса допускается из расчета работы на одном ярусе при равномерно распределенной нагрузке 200 кгс/м2. Нагрузка на настиле по фермам в середине топки вне рабочих площадок в среднем не должна превышать 100 кгс/м2.

4.2.6. Допускаемое скопление людей на площадках ярусов определяется расчетом. Скопление людей на настиле сверх установленного проектом не допускается.

4.2.7. Поднимать на леса и ставить на настил грузы массой более 130 кг не разрешается.

4.2.8. Подъем людей на леса, а также их спуск допускаются только по лестницам, закрепленным верхним концом за поперечные ригели, а нижним - опирающимся на настил нижнего яруса. Уклон лестниц не должен превышать 60°. Запрещается спуск людей по стойкам, струнам, ригелям и стальным канатам. Не разрешается загромождать подходы к лестницам.

4.2.9. Заносить кислородные баллоны на леса, подмости и люльки можно только по особому разрешению ответственного руководителя работ.

4.2.10. При ведении работ в котле с лесов, площадок, люлек и платформ рабочие места должны быть хорошо освещены прожектором, установленным в удобном и недоступном для работающих месте. При недостаточном освещении разрешается пользоваться переносными лампами на напряжение 12 В.

4.2.11. Леса, расположенные у проездов и в местах подъема грузов, должны быть защищены от возможных ударов и сдвигов.

4.2.12. Спуск груза на настил должен производиться на наименьшей скорости, плавно, без толчков.

4.2.13. Леса и площадки, работа с которых не производится, необходимо поддерживать в исправности. При каждом возобновлении работ они должны быть приняты повторно с составлением акта.

4.2.14. Во время эксплуатации лесов, площадок и подмостей установить систематическое наблюдение за состоянием их соединений и креплений, которое должно быть поручено опытному слесарю.

4.2.15. При работе на высоте с опорных и подвесных лесов, площадок и подмостей должны соблюдаться следующие правила:

а) не разрешается ничего бросать вниз;

б) длинномерные тяжелые предметы разрешается спускать на канатах через блоки, а мусор - по специальным лоткам, желобам или мусоропроводу;

в) материалы, инструмент и другие предметы должны укладываться в ящики, сумки или специальные места;

г) при подъеме и спуске инструмент должен быть уложен в ящики или сумку;

д) настилы должны периодически очищаться от мусора и остатков материала;

е) скопление на настилах людей в одном месте (собрания, экскурсии, учебные занятия) не разрешается.

4.3. Эксплуатация люлек и подъемных платформ

4.3.1. Ежедневно перед работой необходимо проверять состояние люлек, подъемных платформ и канатов и проводить испытание по имитации обрыва рабочего каната.

4.3.2. Поднятую к месту ремонта люльку или платформу закрепить фиксаторами к неподвижным конструкциям (экрану топки, металлоконструкциям, стенам зданий и т.п.).

4.3.3. Крепление шлангов и сварочного кабеля осуществлять путем обмотки их вокруг верхнего пояса каркаса люльки или платформы.

4.3.4. При обрыве рабочего каната, когда ловитель, передав нагрузку на подстраховочный канат, удерживает люльку или платформу на данной высоте, рабочий канат необходимо закрепить на подстраховочном канате с помощью зажимов (рис. 11) и, освободив ловитель, опустить люльку или платформу. Для дальнейшей работы необходимо заменить канат.

4.3.5. Проходы под подвешенными люльками и платформами должны быть закрыты или защищены сплошными настилами и обозначены знаками, предупреждающими об опасности.

4.3.6. Запрещается соединять между собой люльки с помощью переходных мостиков.

4.3.7. Трение и переломы канатов и цепей о выступающие конструкции не допускаются.

4.3.8. Люльки и платформы, с которых работа не производится, должны быть опущены.

4.3.9. Запрещается доступ к лебедкам лиц, не имеющих непосредственного отношения к выполняемым работам.

4.3.10. Лебедки, служащие для подъема и опускания люлек и платформ, устанавливаемые на поду (земле) или на котле, должны быть загружены балластом весом не менее двойной рабочей нагрузки. Балласт во избежание смещения должен быть закреплен на раме лебедки. Лебедки, устанавливаемые на люльках, должны быть прикреплены болтами к раме.

4.3.11. Подъемно-опорные платформы с ручным приводом, используемые при ремонтных работах в топках котлов, должны иметь лебедки, установленные вне котла. По команде сигнальщика платформа поднимается до нужной высоты и с четырех сторон через стенки котла выставляются опорные кронштейны (их прочность должна быть проверена расчетом при четырехкратном запасе прочности). Платформы опираются на кронштейны и только после этого ремонтному персоналу разрешается производить на них работы.

Рис. 11. Схема крепления рабочего каната к подстраховочному в случае обрыва:

1 - подстраховочный канат; 2 - рабочий канат; 3 - зажим; 4 - ловитель; 5 - каркас люльки

4.3.12. У люлек с пневматическим приводом перед присоединением должны быть продуты шланги; присоединять и отсоединять их разрешается только после прекращения подачи воздуха. Включать пневматические приводы разрешается после установки их в рабочее положение. Для крепления шлангов к штуцерам и ниппелям должны применяться стяжные инвентарные хомуты. Запрещается крепить шланги проволокой и подключать их непосредственно к магистрали. После окончания работ шланги должны быть сняты с люлек и платформ и храниться отдельно.

4.3.13. Нагрузки на люльку не должны превышать проектные. Скопление людей и груза в одном месте люльки, вызывающее перегрузку одного из канатов, не допускается. Механизмы для подъема материалов и инструмента на должны передавать не люльку дополнительные нагрузки, не предусмотренные проектом.

4.3.14. Зазор между ремонтируемой поверхностью нагрева и каркасом люльки, устанавливаемый при фиксации люльки к трубам поверхностей нагрева, не должен превышать величину, предусмотренную проектом. Люлька должна быть заземлена при помощи кабеля. На каркасе должен быть закреплен рубильник, отключающий сварочный ток при холостом ходе сварочного трансформатора.

4.3.15. Категорически запрещается работа на люльке:

а) с грузом, превышающим грузоподъемность люльки;

б) если состояние канатов (рабочих и подстраховочных) не отвечает требованиям Госгортехнадзора СССР по технике безопасности (наличие обрывов проволоки, вмятин, барашков, коррозии и т.д.);

в) если отсутствует надежное заземление люльки при производстве с нее электросварочных работ;

г) при наличии в топке вредных газов;

д) при температуре в топке выше 60 °С;

е) при плохом освещении мест работы;

ж) при изменении геометрической формы каркаса, нарушении болтовых соединений и сварных швов металлоконструкций.

4.3.16. По окончании работ люльки должны быть опущены и отключены от питания воздухом.

5. ТРАНСПОРТИРОВАНИЕ И ХРАНЕНИЕ

5.1. Элементы лесов, люлек и других сооружений и устройств следует хранить в сухом помещении на стеллажах, защищенных от попадания пыли и золы.

5.2. Строповка при погрузке готовых элементов должна выполняться приемами, исключающими образование остаточных изгибов и вмятин. Строповка цепями запрещается. При перевозке мелкие однотипные элементы следует увязывать в пакеты или складывать в контейнеры.

5.3. При хранении элементов лесов, люлек и других устройств на складе и при транспортировании должны соблюдаться следующие требования:

а) элементы должны быть разложены по маркам;

б) элементы должны укладываться на подкладки, а между элементами должны быть прокладки;

в) расстояние между подкладками и прокладками должно исключать образование остаточного прогиба инструкций;

г) элементы должны быть уложены устойчиво;

д) элементы не должны соприкасаться с полом;

е) на элементах не должна застаиваться вода.

Приложение 1

ТИПОВЫЕ ОПОРНЫЕ ЛЕСА ТУЛ-1

Проект типовых опорных лесов, разработанный ЦКБ Главэнергоремонта, позволяет проектировать леса для топок котлов любых размеров из одних и тех же узлов и деталей.

Типовые опорные леса ТУЛ-1 (рис. 12) изготовляются на Красноуральском механическом заводе, что исключает необходимость их изготовления на месте, серийное изготовление лесов в заводских условиях гарантирует высокую точность, быстроту и культуру производства за счет применения станков, приспособлений, штампов, кондукторов и т.п.

Порядок выполнения проекта лесов с применением типовых узлов:

а) по заданным размерам топки котла (в плане) и необходимому количеству ярусов разрабатывается общий вид или схема установки лесов с учетом допустимого зазора между стойками лесов и экранными трубами;

б) по заданным нагрузкам производится расчет лесов;

в) разрабатываются дополнительно нетиповые узлы и детали;

г) разрабатывается техническая документация (пояснительная записка, технические требования к изготовлению, испытанию и эксплуатации).

По общему виду или схеме и составленной спецификации заказывается на заводе необходимое количество узлов и деталей.

Техническая характеристика типовых опорных лесов ТУЛ-1

Высота установки лесов из типовых узлов, м............................................................... 16

Высота одного яруса лесов, м........................................................................................... 2

Шаг установки стоек перпендикулярно стене и ширине рабочей площадки, м................................................................................................................... 1,02 и 1,5

Расстояние от оси экранных труб до оси стоек, мм........................... 200 - 400

Допускаемая равномерно распределенная нагрузка, кгс/м2....................... 200

Допустимое количество ярусов, загружаемых равномерно распределенной нагрузкой 200 кгс/м2................................................................................................ 1

Допускаемая сосредоточенная нагрузка на настил и ригель, кгс............................. 130

Допускаемая нагрузка на настил по фермам в нерабочей зоне (средняя), кгс/см2 100

Вес типовых узлов, кг:

ферма длиной 7,5 м................................................. 133

ферма длиной 6,0 м................................................. 107

стойка длиной 2,0 м............................................... 11,3

ригель длиной 1,5 м................................................. 6,5

ригель длиной 1,0 м................................................. 4,5

настил длиной 1,5 м............................................... 15,0

настил длиной 1,0 м............................................... 10,0

ограждение 1,5 м.................................................... 12,7

ограждение 1,0 м...................................................... 8,4

раскосы......................................................................... 9

опорные башмаки..................................................... 15.

Леса выполняются из типовых узлов: стоек, ригелей, щитов, лестниц, ограждений лестниц, бортов, фиксаторов, талрепов, опорных башмаков и ферм (рис. 13) и представляют собой каркасную пространственную разборную многоярусную конструкцию, соединенную ригелями без применения болтов. Леса рассчитаны на высоту установки не более 9 ярусов.

Стойки устанавливаются в топках с холодной воронкой на фермах, с наклонным и горизонтальным подом - на опорах, предназначенных для равномерного распределения нагрузок на под.

Фермы представляют собой сварную конструкцию, выполненную из угловой стали. Фермы запроектированы длиной 6; 6,5; 7 и 7,5 м.

Опора состоит из опорного листа, ребер жесткости и стойки с патрубками.

При большой глубине топки котла с холодной воронкой предусмотрена установка откидной балки. Откидная балка имеет башмак, который опирается на стенку холодной воронки.

Стойки лесов с шириной площадки 1,02 и 1,5 м выполнены из стальной трубы, к которой приварены гнезда (проушины) для крепления ригелей и перил, и соединены между собой ригелями по ярусам. Ярусы покрываются стальными щитами (настилами).

Ригели выполнены из стальной трубы, на торцах которой приварены загнутые штыри из прокатной стали круглого профиля. Ригель является связующим элементом лесов, а также опорным элементом щита (настила).


А - А

Рис. 12. Типовые разборные леса ТУЛ-1:

а - схема установки лесов в топке котла; б - узел соединения фермы с башмаком; в - узел соединения фермы с откидной балкой

1 - ферма; 2 - стойка; 3 - ригель; 4 - настил; 5 - поручень; 6 - лестница; 7 - башмак; 8 - откидная балка; 9 - диагональные и поперечные связи

Рис. 13. Типовые узлы разборных лесов ТУЛ-1:

а - стойка; б - настил; в - ригель; г - поручень; д - лестница; е - ферма; ж - откидная балка; з - башмак Л-23; и - башмак Л-24


Наименование

Обозначение

Параметры узлов разборных лесов

L, мм

Масса, кг

Стойка

Л-1

Л-2

2200

960

12,2

6,3

Настил

Л-7

Л-8

1080

1560

11,8

16,5

Ригель

Л-5

Л-6

940

1420

4,6

6,7

Поручень

Л-9

Л-10

940

1420

2,3

3,1

Лестница

Л-13

-

2,3

Откидная балка

Л-26

-

14,7

Башмак

Л-23

-

11,2

Л-24

-

14,5

 

Обозначение

Параметры фермы

L, мм

l1, мм

l2, мм

l3, мм

Масса, кг

Л-32

7720

1500

1500

1500

160

Л-34

6280

1020

1500

1020

117

Л-35

6760

1020

1500

1500

125

Л-36

7300

1020

1020

1500

139

Рис. 14. Нагрузки на узлы ферм от опорных лесов:

а - фермы без откидных балок; б - фермы с откидными балками; в - схема расположения ферм в топке котла;

1 - ферма; 2 - башмак; 3 - откидная балка; 4 - стойка; 5 - холодная воронка котла

Нагрузки на фермы при возведении опорных лесов в топке котлов на полную высоту 8 ярусов (16 м)

 

Схема

Ширина лесов

L, м

Длина ферм

l, м

Расстояние между стойками, м

Нагрузка на фермы, кгс

 

P1

P2

P3

P4

P5

P6

P7

P8

P9

Rг

Rв

а

б

 

I

6,0

6,0

1,02

1,5

630

840

680

680

840

630

-

-

-

2560

2150

 

II

6,0

6,0

-

1,5

840

1160

980

1160

840

-

-

-

-

2970

2490

 

III

6,5

6,5

1,02

1,5

640

840

790

790

840

640

-

-

-

2700

2270

 

IV

7,0

7,0

1,02

1,5

640

750

680

790

680

750

640

-

-

2950

2465

 

V

7,5

7,5

1,02

1,5

600

750

600

700

700

600

750

600

-

3180

2670

 

VI

7,5

7,5

-

1,5

840

1160

980

980

1160

840

-

-

-

3550

2290

 

VII

8,0

6,0

1,02

1,5

550

850

700

800

800

700

850

550

-

3175

2120

 

VIII

8,0

6,0

-

1,5

550

885

830

830

830

885

550

-

-

2870

2590

 

IX

8,5

6,5

1,02

1,5

550

850

700

800

800

700

850

550

-

3500

2350

 

X

9,0

7,0

1,02

1,5

550

850

600

700

800

700

600

850

550

3750

2550

 

Примечания: 1. В таблицу включены наиболее нагруженные фермы (см. рис. 14,в) № 2 - (n - 1). 2. Rг, Rв - горизонтальная и вертикальная реакции. 3. При подсчете нагрузок учтен коэффициент перегрузки 1,1.

 

Борта выполнены из стального листа и вилок, приваренных по краям.

Лестница выполнена сварной из стальных труб и предназначена для перехода людей с одного яруса на другой.

Щит представляет собой сварную конструкцию, состоящую из гофрированного листа толщиной 1,2 мм, ребер жесткости гнутого профиля толщиной 1,6 мм и упоров, которые служат для фиксации щитов на ригелях.

Рис. 15. Выбор нагрузок на поверхность стен холодной воронки котла от опорных лесов:

1 - ферма; 2 - башмак; 3 - стойка; 4 - стенки холодной воронки

Rв = Р1 + Р2 + Р3 = 2980 кгс;

Нормальная реакция

Нагрузка на опорную поверхность холодной воронки котла Rn ≈ 5000 кгс.

Настил из щитов укладывается также и на фермах, для чего в гнезда ферм устанавливаются вставки, которые имеют проушины для ригелей. Указанные ригели, кроме того, создают дополнительную связь между фермами. После укладки настилов устанавливаются борта, поручни и лестницы с ограждениями. Для устойчивости лесов стойки в каждом стыке (на каждом ярусе) крепятся к трубам экрана топки фиксаторами или талрепами.

При установке лесов только по одной стороне топки крайние стойки укрепляются раскосами. Для ориентировочного определения нагрузок от лесов можно пользоваться рис. 15 и сводными таблицами, указанными на рис. 14, 16.

В комплект лесов входят:

а) техническая документация:

- паспорт;

- чертежи общих видов;

- инструкция по эксплуатации, уходу, установке и разборке;

Рис. 16. Выбор нагрузок на под топки котла от опорных лесов:

а, б - схемы расположения лесов в котлах; в - схема расположения лесов в котле (план);

1, 2 - башмак; 3 - котел

Нагрузка на под котла от лесов высотой 16 м

Обозначение

Величина, кгс

Схема рис. 16,а

Схема рис. 16,б

Р1

540

760

Р2

697

988

Р3

562

870

Р4

620

-

Р5

540

-

Примечания: 1. В таблице приведены самые нагруженные стойки (см. рис. 16,в) 2 ÷ (n - 1). 2. При подсчете нагрузок учтен коэффициент перегрузки 1,1.

- техническое описание;

- акт приемки лесов в эксплуатацию;

б) узлы и детали согласно спецификации общего вида установки.

Паспорт должен содержать:

а) краткое описание;

б) техническую характеристику;

в) комплектность;

г) наименование министерства и главного управления;

д) наименование предприятия-изготовителя;

е) наименование и обозначение изделия;

ж) подпись приемщика;

з) номер технических условий.

Запасные части и инструмент не поставляются.

Приложение 2

Электростанция _____________________________________________________________

Цех _______________________________________________________________________

НАРЯД № ____

Порученная работа ________________________________________________________

                                                                                  (объект, место и содержание работы)

___________________________________________________________________________

___________________________________________________________________________

Условия производства работы _________________________________________________

___________________________________________________________________________

(перечислить необходимые мероприятия по подготовке рабочих мест и меры безопасности)

Особые условия _______________________________________-_____________________

Начало работы _________ ч _______ мин _______ дн ________ мес 197_ г.

Ответственным руководителем назначается _____________________________________

                                                                                                            (фамилия, инициалы, должность)

Производителем работ (наблюдающим) назначается ______________________________

___________________________________________________________________________

(фамилия, инициалы, должность, разряд)

Наряд выдал ________________ дн _________ мес 19__ г.

Член бригады _____________________ чел ___________________________________

                                                                                                                             (фамилия, инициалы)

___________________________________________________________________________

(число рабочих, кроме производителя работ)

Ответственный руководитель _________________________________________________

                                                                                                                 (подпись)

Указанные выше условия производства выполнены _____ ч ____ мин _____________ дн _____________ мес 19__ г.

Остаются в работе ________________________________________________________

                                                                    (оборудование, расположенное вблизи места работ

___________________________________________________________________________

и находящееся под напряжением, давлением, высокой температурой, взрывоопасное и т.д.)

Ответственное лицо оперативного персонала __________________________________

                                                                                                                                          (подпись)

Оперативный персонал других цехов ________________________________________

                                                                                                                   (название цеха, подпись)

Выполнение условий производства работ проверил; с оборудованием, оставшимся в работе, ознакомлен __________________________________________________________

                                                                                               (подпись)

Производитель работ (наблюдающий) ________________________________________

                                                                                                                                  (подпись)

Изменение в составе бригады

Введены в состав бригады (фамилия, инициалы, разряд)

Выведены из состава бригады (фамилия, инициалы, разряд)

Дата и время

Ответственный руководитель (подпись)

 

 

 

 

 

 

 

 

 

 

 

 

 

 

 

 

 

 

 

 

 

 

 

 

Оформление ежедневного повторного допуска к работе, окончания работы, перевода на другие рабочие места

Наименование рабочих мест

Допуск к работе

Окончание работы

С содержанием наряда ознакомлен, принятые меры безопасности проверены

Бригада выведена, наряд сдан

Дата, время

Допускающий (подпись)

Производитель работ (подпись)

Дата, время

Производитель работ или ответственный руководитель (подпись)

Начальник смены или машинист цеха или блока (подпись)

 

 

 

 

 

 

 

 

 

 

 

 

 

 

 

 

 

 

 

 

 

 

 

 

 

 

 

 

Работа по наряду полностью окончена ________ ч ________ мин ______ дн ____ мес

19__ г.

Ответственный руководитель _______________________________________________

                                                                                                                        (подпись)

Рабочие места осмотрены, наряд закрыт ______ ч ________ мин _______ дн ____ мес

19__ г.

Ответственное лицо оперативного персонала __________________________________

                                                                                                                                          (подпись)

Приложение 3

 

УТВЕРЖДАЮ:

Директор ____________________________

      (наименование предприятия-изготовителя)

_____________________________________

(подпись и фамилия)

м.п. «__» ______________ 19__ г.

АКТ ПРИЕМКИ

___________________________________________________________________________

(наименование и индекс изделия)

___________________________________________________________________________

изготовленного для __________________________________________________________

                                                                                                    (ГРЭС или ТЭЦ)

от «__» ___________ 19__ г. __________________________________________________

На основании приказа _____________________________________________________

(руководитель предприятия-изготовителя) ______________________________________

от «__» ______________ 19__ г. № ______________

Комиссия в составе __________________________________________________________

                                                                                         (фамилии участников)

___________________________________________________________________________

в период с «__» _________ по «__» ________ 19__ г. провела испытания _____________

___________________________________________________________________________

(наименование и индекс изделия)

в соответствии с программой испытаний, утвержденной руководителем предприятия-изготовителя «__» ___________ 19__ г.

1. Заключение комиссии ___________________________________________________

___________________________________________________________________________

(предложение о возможности предъявления изделия к приемочным испытаниям)

2. Краткие сведения об изделии _____________________________________________

а) на основании чего проектировалось изделие ________________________________

___________________________________________________________________________

б) ______________________________________________________________________

(кем и когда разработан и утвержден проект)

___________________________________________________________________________

в) _______________________________________________________________________

(назначение проекта)

___________________________________________________________________________

г) _______________________________________________________________________

(краткое описание конструкции изделия)

___________________________________________________________________________

д) _______________________________________________________________________

(общие виды чертежей)

___________________________________________________________________________

е) _______________________________________________________________________

( фотографии изделия в период испытаний)

___________________________________________________________________________

___________________________________________________________________________

3. Основные параметры изделия _____________________________________________

___________________________________________________________________________

___________________________________________________________________________

4. Условия проведения испытаний, испытания проводятся согласно программе испытаний _________________________________________________________________

___________________________________________________________________________

5. Перечень дефектов, обнаруженных при проведении испытаний; причины их появления; меры, принятые для их устранения: __________________________________

___________________________________________________________________________

___________________________________________________________________________

___________________________________________________________________________

Примечания: __________________________________________________________

___________________________________________________________________________

___________________________________________________________________________

Обнаруженные дефекты устранены и испытание повторено.

6. Выводы и предложение комиссии _________________________________________

___________________________________________________________________________

(наименование и индекс изделия)

___________________________________________________________________________

___________________________________________________________________________

7. Приложения:

а) протокол измерений и наблюдений1;

б) чертежи общих видов;

в) фотографии;

г) акт приемки;

д) паспорт.

Подписи

Председатель комиссии _______________________________

Члены комиссии _____________________________________

Представитель проектной организации __________________

1 Форма протокола приведена в приложении 4.

Приложение 4

ПРОТОКОЛ ИЗМЕРЕНИЙ И НАБЛЮДЕНИЙ

Испытание проводилось на специальном стенде, установленном

___________________________________________________________________________

(указать место установки)

согласно программе испытаний ________________________________________________

___________________________________________________________________________

(кем составлена и утверждена)

___________________________________________________________________________

После приемки изделие ____________________________________________________

                                                                                                  (наименование и индекс)

в сборе подвергалось статическому и динамическому испытаниям в соответствии с действующими «Правилами техники безопасности при обслуживании теплосилового оборудования электростанций» и «Строительными нормами и правилами», часть III, раздел А, глава 11 «Техника безопасности в строительстве» (СНиП III-А.11-70).

а) Статические испытания:

___________________________________________________________________________

___________________________________________________________________________

б) Динамические испытания:

___________________________________________________________________________

___________________________________________________________________________

При осмотре деталей, узлов и всего изделия ___________________________________

___________________________________________________________________________

(деформации не обнаружено, обнаружено, выявлены дефекты, указать какие)

___________________________________________________________________________

Обнаруженные дефекты устранены и испытание повторено

___________________________________________________________________________

___________________________________________________________________________

Подписи:

Председатель комиссии  ______________________

Члены комиссии              ______________________

Представитель проектной

организации                      ______________________

 

 



© 2013 Ёшкин Кот :-)