Информационная система
«Ёшкин Кот»

XXXecatmenu

ГОСТ Р 50820-95

ГОСУДАРСТВЕННЫЙ СТАНДАРТ РОССИЙСКОЙ ФЕДЕРАЦИИ

 

ОБОРУДОВАНИЕ ГАЗООЧИСТНОЕ
И ПЫЛЕУЛАВЛИВАЮЩЕЕ

МЕТОДЫ ОПРЕДЕЛЕНИЯ ЗАПЫЛЕННОСТИ
ГАЗОПЫЛЕВЫХ ПОТОКОВ

 

 

ГОССТАНДАРТ РОССИИ

Москва

 

Предисловие

1 РАЗРАБОТАН и ВНЕСЕН Техническим Комитетом по стандартизации ТК 264 «Оборудование газоочистное и пылеулавливающее»

2 ПРИНЯТ И ВВЕДЕН В ДЕЙСТВИЕ Постановлением Госстандарта России от 27.09.95 № 489

3 ВВЕДЕН ВПЕРВЫЕ

 

СОДЕРЖАНИЕ

1 область применения. 2

2 нормативные ссылки. 2

3 условные обозначения параметров и размеров. 2

4 средства измерений, вспомогательные устройства и растворы реактивов. 4

5 порядок подготовки к проведению измерений. 4

6 порядок проведения измерений. 8

7 правила обработки результатов измерений. 9

8 оценка погрешности определения запыленности. 10

9 требования безопасности. 12

Приложение а. Трубки пылезаборные. 12

Приложение б. Штуцера (патрубки) 14

Приложение в. Шлюзовой затвор для отбора проб под давлением.. 15

Приложение г. Аппаратура для определения запыленности методом внутренней фильтрации. 16

Приложение д. Аппаратура для определения запыленности методом внешней фильтрации. 17

Приложение ж. Расчет поправочного коэффициента к.. 22

Приложение и. Пример расчета погрешности определения запыленности газа. 22

 

ГОСТ Р 50820-95

ГОСУДАРСТВЕННЫЙ СТАНДАРТ РОССИЙСКОЙ ФЕДЕРАЦИИ

ОБОРУДОВАНИЕ ГАЗООЧИСТНОЕ И ПЫЛЕУЛАВЛИВАЮЩЕЕ

МЕТОДЫ ОПРЕДЕЛЕНИЯ ЗАПЫЛЕННОСТИ ГАЗОПЫЛЕВЫХ ПОТОКОВ

Scrubber and duster equipment.
Methods for determination of dust load of gas-and-dust streams

Дата введения 1996-07-01

1 ОБЛАСТЬ ПРИМЕНЕНИЯ

Настоящий стандарт устанавливает методы определения запыленности (массового содержания взвешенных частиц) газопылевых потоков (газов), отходящих от стационарных источников загрязнения при скорости газов не менее 4 м/с, давлении - до 0,2 МПа и температуре не более 400 °С.

Нормы точности измерений - по ГОСТ 17.2.4.02.

Методы определения запыленности, изложенные в настоящем стандарте, позволяют определить влияние газопылевых потоков (газов) на безопасность окружающей среды для жизни, здоровья и имущества населения.

Стандарт пригоден для целей сертификации.

2 НОРМАТИВНЫЕ ССЫЛКИ

В настоящем стандарте использованы ссылки на следующие стандарты:

ГОСТ 17.2.4.02-81 Охрана природы. Атмосфера. Общие требования к методам определения загрязняющих веществ

ГОСТ 17.2.4.06-90 Охрана природы. Атмосфера. Методы определения скорости и расхода газопылевых потоков, отходящих от стационарных источников загрязнения

ГОСТ 17.2.4.07-90 Охрана природы. Атмосфера. Методы определения давления и температуры газопылевых потоков, отходящих от стационарных источников загрязнения

ГОСТ 17.2.4.08-90 Охрана природы. Атмосфера. Методы определения влажности газопылевых потоков, отходящих от стационарных источников загрязнения

ГОСТ 10-88 Нутромеры микрометрические. Технические условия

ГОСТ 166-89 Штангенциркули. Технические условия

ГОСТ 2405-88 Манометры, вакуумметры, мановакуумметры, напоромеры, тягомеры и тягонапоромеры. Общие технические условия

ГОСТ 3399-76 Трубки медицинские резиновые. Технические условия

ГОСТ 5962-67 Спирт этиловый ректификованный. Технические условия

ГОСТ 7502-89 Рулетки измерительные металлические. Технические условия

ГОСТ 9932-75 Реометры стеклянные лабораторные. Технические условия

ГОСТ 18599-83 Трубы напорные из полиэтилена. Технические условия

ГОСТ 28498-90 Термометры жидкостные стеклянные. Общие технические требования. Методы испытаний

3 УСЛОВНЫЕ ОБОЗНАЧЕНИЯ ПАРАМЕТРОВ И РАЗМЕРОВ

Б - атмосферное давление воздуха, Па;

d - диаметр входного сечения наконечника пробоотборного устройства, мм;

К - поправочный коэффициент при неизокинетичном отборе пробы;

Рг - давление (разрежение) газа в месте отбора пробы, Па;

Рр - разрежение газа у диафрагмы реометра, Па;

tг - температура газа в месте отбора пробы, °С;

tр - температура газа у реометра, °С;

Vp - расход отбираемого газа по реометру, дм3/мин;

п - количество точек измерения;

i - порядковый номер точки измерения;

v - скорость газа, м/с;

vi - скорость газа в i-й точке измерения, м/с;

vн - скорость газа во входном сечении пылезаборной трубки, м/с;

z - запыленность газа, г/м3*;

* Во всех случаях запыленность приводят к нормальным условиям газа: давлению 0,101 МПа и температуре 0 °С

zi - запыленность газа в i-й точке измерения, г/м3;

δ - максимальная погрешность, %;

ρ0 - плотность газа при нормальных условиях, кг/м3;

ρр - плотность газа при калибровке диафрагмы реометра, кг/м3;

s - среднее квадратическое отклонение;

t - время отбора пробы, мин;

dч - диаметр частиц пыли, мкм;

ρч - плотность пыли, кг/м3;

μ - динамическая вязкость газа, Па/с;

ск - поправка Кеннингема-Милликена;

Кин - инерционный параметр;

m - масса пыли, осевшей на пылеуловителе (привес), г;

т1 - масса пыли, осевшей в заборной трубке при внешней фильтрации, г;

Dm - поправка на изменение массы контрольных бумажных фильтров, г;

vpi; tрi; pрi - параметры пылегазового потока за промежуток времени;

j - количество зарегистрированных в журнале промежутков времени;

 - относительное среднее квадратическое отклонение (ОСКО) определения скорости газа в газоходе;

 - ОСКО, обусловленное неизокинетичностью отбора газа;

 - ОСКО, определяемое погрешностью от наклона оси пылезаборной трубки к оси потока;

 - ОСКО, определяемое погрешностью от загрузки измерительного сечения пылезаборным устройством;

 - ОСКО, определяемое погрешностью от неточности установки пылезаборной трубки в точках измерений;

 - ОСКО от осреднения запыленности потока;

 - ОСКО от осаждения пыли в канале пылезаборной трубки;

 - ОСКО от неполного улавливания пыли фильтрующим устройством;

 - ОСКО определения массы уловленной пыли;

 - ОСКО определения температуры газа;

 - ОСКО определения давления газа;

 - ОСКО измерения атмосферного давления воздуха;

 - ОСКО определения расхода газа через пылеуловитель.

4 СРЕДСТВА ИЗМЕРЕНИЙ, ВСПОМОГАТЕЛЬНЫЕ УСТРОЙСТВА И РАСТВОРЫ РЕАКТИВОВ

Трубки напорные конструкции НИИОГАЗ по ГОСТ 17.2.4.06.

Трубки пылезаборные, комплект (приложение А).

Пылеуловитель.

Термометр стеклянный жидкостный по ГОСТ 28498.

Микроманометры класса точности 1,0

Реометр стеклянный лабораторный РДС-4 по ГОСТ 9932.

Барометр класса точности не ниже 1,0.

U-образные жидкостные манометры по ТД и дифференциальные манометры.

Секундомер механический.

Весы лабораторные ВЛР-200М класса точности 2,0.

Штангенциркуль по ГОСТ 166.

Нутромер микрометрический по ГОСТ 10.

Рулетка металлическая по ГОСТ 7502.

Манометры (вакуумметры) показывающие класса точности 1,5 по ГОСТ 2405.

Шкаф сушильный.

Эксикатор.

Фильтры мембранные аэрозольные типа АФА.

Побудители тяги - воздуходувки, аспираторы, эжекторы.

Средства определения давления и температуры газа по ГОСТ 17.2.4.07, влажности - по ГОСТ 17.2.4.08.

Трубки медицинские резиновые типа 1 по ГОСТ 3399 или полиэтиленовые по ГОСТ 18599.

Спирт этиловый по ГОСТ 5962, водный раствор плотностью 0,8095 г/см3 для обеспечения работы микроманометров.

Допускается заменять средства измерений на аналогичные, не уступающие вышеуказанным по метрологическим характеристикам.

5 ПОРЯДОК ПОДГОТОВКИ К ПРОВЕДЕНИЮ ИЗМЕРЕНИЙ

5.1 Выбор измерительного сечения

5.1.1 При выборе измерительного сечения в газоходе должны быть соблюдены условия в соответствии с требованиями ГОСТ 17.2.4.06, ГОСТ 17.2.4.07 и настоящего стандарта.

5.1.2 Предпочтительнее производить измерения в вертикальных участках газохода, в которых крупные фракции пыли не оседают на стенках газохода под действием силы тяжести.

5.1.3 К стенке газохода в измерительном сечении привариваются патрубки (штуцера) длиной 20 - 50 мм, диаметром не менее 36 мм для ввода напорных и пылезаборных трубок, диаметром не менее 20 мм - для ввода термометров (или термопар) и диаметром 4 мм - для измерения статического давления (разрежения). Патрубки закрывают завинчивающимися крышками (приложение Б).

5.1.4 Участок газохода с измерительным сечением следует оборудовать рабочей площадкой и (в случае необходимости) лестницей к ней. Площадка и лестница должны быть защищены заградительными устройствами (при работе на высоте) и освещены в соответствии с требованиями стандартов ССБТ. На площадке необходимо предусмотреть место для хранения и размещения измерительной аппаратуры; размер площадки должен обеспечивать возможность удобной и безопасной работы обслуживающего персонала численностью не менее двух человек.

5.1.5 На рабочей площадке должны быть смонтированы розетки для подачи напряжения 12 или 36 В, необходимого для обогрева пылезаборных трубок и питания осветительной лампы, розетки для подключения электроаспиратора или газодувки. При использовании эжектора должна быть подведена линия сжатого воздуха с давлением 0,6 МПа.

5.1.6 Напорные и пылезаборные трубки вставляются в пробки (фиксирующие устройства), которые при введении их в газоход туго зажимают в штуцере. При разрежении газа менее 0,01 МПа и давлении более 0,02 МПа, а также при работе с токсичными газами вместо пробок применяют специальные шлюзовые затворы с сальниковым уплотнением (приложение В).

5.2 Выбор метода определения запыленности

5.2.1 Для определения запыленности пробу газа пропускают через пылеуловитель.

5.2.2 В зависимости от места размещения пылеуловителя различают два метода определения запыленности:

метод внутренней фильтрации - пылеуловитель расположен внутри газохода;

метод внешней фильтрации - пылеуловитель расположен вне газохода.

Метод внутренней фильтрации применяется при отборе проб влажных газов, наличии в газах агрессивных компонентов и смол, высокой адгезионной способности пыли.

Схемы установок приведены на рисунках 1 и 2.

Аппаратура для метода внутренней фильтрации приведена в приложении Г, для метода внешней фильтрации - в приложении Д.

5.3 Требования к пылеуловителям

5.3.1 Пылеуловитель должен обеспечивать улавливание пыли с эффективностью не менее 99,5 %.

5.3.2 Пылеуловитель должен обладать достаточной термостойкостью, стойкостью к воздействию кислот и щелочей, минимальной гигроскопичностью. Он должен сохранять механическую прочность в условиях работы под разрежением или давлением. Масса пылеуловителя должна быть минимальной.

5.3.3 Рекомендации по выбору наиболее распространенных пылеуловителей приведены в таблице 1.

Схема установки для определения запыленности газа методом внутренней фильтрации

1 - патрон со стекловолокном; 2 - реометр; 3 - термометр; 4 - патронодержатель; 5 - напорная трубка; 6 - подсос воздуха; 7 - сброс конденсата; 8 - микроманометр

Рисунок 1

Схема установки для определения запыленности газа методом внешней фильтрации

1 - отборная трубка; 2 - реометр; 3 - термометр; 4 - напорная трубка; 5 - микроманометр; 6 - подсос воздуха; 7 - сброс конденсата

Рисунок 2

Таблица 1

Тип осадителя пыли

Температура газа, °С, не более

Запыленность, г/м3

Максимальный привес фильтра, г

Метод внутренней фильтрации

Патрон со стекловолокном

400

0,01 - 15,0

До 2,0

Мембранные фильтры или фильтры типа АФА

60

0,02

Не более 0,1

Метод внешней фильтрации

Патрон с бумажной гильзой

1

0,01 - 100

До 10,0

Патрон с тканевым фильтром

350

50,0

До 80

Циклон с последующим фильтром

350

15,0

До 10

Мембранные фильтры или фильтры типа АФА

60

0,02

Не более 0,1

5.3.4 При определении запыленности газа методом внутренней фильтрации в качестве пылеуловителя применяют фильтровальные патроны с объемной набивкой из непарафинированного стекловолокна (рисунок Г1). После слоя из стекловолокна устанавливают слой из прокаленного асбестового волокна, удерживаемый сеткой из латуни или нержавеющей стали. Фильтровальный патрон с помощью шнурового асбеста плотно, чтобы не было подсоса газа, закрепляют в патронодержателе (рисунок Г2). Патронодержатель заканчивается трубкой диаметром 8 - 10 мм и длиной, позволяющей устанавливать фильтровальный патрон во всех точках измерений.

Асбестовое волокно для набивки фильтровального патрона предварительно прокаливают в муфельной печи при температуре около 400 °С. Перед проведением измерений стекловолокно набивают в патроны. Плотность набивки стекловолокна должна создавать при расходе газа около 20 дм3/мин гидравлическое сопротивление патронов 5 - 35 кПа.

Патрон со стекловолокном доводят до постоянной массы посредством сушки в сушильном шкафу при температуре 105 °С с последующим взвешиванием на аналитических весах с точностью до 0,1 мг. Продолжительность сушки 1 ч. Перед взвешиванием патрон охлаждают в эксикаторе с силикагелем до комнатной температуры.

Процедуру повторяют до тех пор, пока масса фильтра при трех последовательных взвешиваниях не станет постоянной.

При концентрации пыли менее 1 г/м3 применяют мембранные или аэрозольные фильтры типа АФА, устанавливаемые в фильтро-держатель (рисунок Г3). С обратной стороны фильтра предусмотрена опорная сетка.

Если в газе кроме пыли имеются частицы органических веществ, для определения содержания неорганической пыли в газе органические вещества из пылеуловителя предварительно должны быть экстрагированы.

5.3.5 При определении запыленности газа методом внешней фильтрации в качестве пылеуловителя применяют патроны с гильзой из фильтровальной бумаги или с тканевым фильтром (рисунок Д1 и Д2). Для предотвращения конденсации влаги патрон снабжают электрообогревом и теплоизоляцией.

Бумажные фильтры изготовляют из фильтровальной бумаги (рисунок Д3) и применяют при температуре проходящего газа, не превышающей 150 °С. Если количество пыли в газе превышает допустимое для бумажного фильтра, применяют тканевые фильтры. Для газов температурой до 110 °С применяют ворсистые шерстяные ткани, температурой до 140 °С - лавсан и до 350 °С - ткань из стекловолокна.

При концентрации пыли менее 1 г/м3 могут быть применены плоские мембранные или аэрозольные фильтры типа АФА, вставленные в фильтродержатель (рисунок Д4). При запыленности газов более 15 г/м3 перед фильтром может быть установлен циклон (рисунок Д5). Этот циклон присоединяется к пылезаборной трубке на резьбе с помощью накидной гайки или через короткий резиновый шланг. Фильтры соединяются с пылезаборной трубкой или с циклоном через резиновую пробку с отверстием.

При применении бумажных фильтров их выдерживают в течение 1 сут на воздухе. Параллельно со взвешиванием рабочих фильтров взвешивают пачку контрольных фильтров (обычно 10 шт.). После запыления фильтры вновь выдерживают в весовой комнате в течение 1 сут и также взвешивают вместе с контрольными. В соответствии с изменением массы контрольных фильтров вносят необходимые поправки к массе запыленного фильтра.

Приготовленный бумажный фильтр надевают на резиновую пробку и вставляют внутрь патрона. После присоединения патрона к пылезаборной трубке установку проверяют на герметичность.

Фильтры типа АФА доводить до постоянной массы перед взвешиванием не требуется.

При использовании циклона его необходимо предварительно разобрать, проверить качество уплотнительных прокладок и вычистить изнутри.

5.4 Требования к пылезаборным трубкам

5.4.1 Конструкция трубки должна создавать минимальные возмущения газового потока во входном сечении, что обеспечивается установкой наконечников. Профили наконечников приведены на рисунке А2.

5.4.2 Пылезаборные трубки и наконечники к ним следует изготовлять из нержавеющей стали или латуни.

5.4.3 Простая пылезаборная трубка (рисунок А1) не имеет приспособлений для измерения статического давления газового потока. Изокинетичность пробоотбора обеспечивается выбором соответствующего входного сечения наконечника и регулированием расхода отбираемого газа.

Простые пылезаборные трубки применяют при небольших колебаниях скорости газового потока во времени (до 15 %) и незначительном содержании в газе частиц размером более 10 мкм.

5.4.4 При колебаниях скорости газового потока во времени более 15 % и содержании в газе крупных частиц применяются пылезаборные трубки нулевого типа (рисунок A3). В этих трубках для соблюдения изокинетичности отбора разность статических давлений, измеряемых соответственно внутри канала трубки (равного по площади сечения входному отверстию) или у входного отверстия и вне его (в газовом потоке, омывающем трубку) должна поддерживаться равной нулю.

6 ПОРЯДОК ПРОВЕДЕНИЯ ИЗМЕРЕНИЙ

6.1 Собранную установку проверяют на герметичность. Для этого, установив по реометру расход 10 - 20 дм3/мин, плотно закрывают входное отверстие пылезаборной трубки. В этом случае при герметичности установки (до измерительной диафрагмы) расход газа должен упасть до нуля.

6.2 Перед проведением измерений предварительно определяют поле скоростей газа по измерительному сечению согласно ГОСТ 17.2.4.06.

6.3 При отсутствии крупных частиц пыли (более 10 мкм) и равномерном распределении скоростей газа по измерительному сечению (неравномерность скоростей газа не превышает 15 %) отбор проб может проводиться в одной точке измерительного сечения (обычно в центре).

В остальных случаях необходимо отбирать пробы в тех же точках, где определяют скорость газа согласно ГОСТ 17.2.4.06.

6.4 Отбор проб осуществляется при фиксированном расходе газа, обеспечивающем условия изокинетичности во входном сечении пылезаборного устройства.

6.5 Диаметр входного сечения наконечника (d), мм, (при внешней фильтрации) вычисляют по формуле

                                                                      (1)

где vi - скорость газа в точке измерения (отбора пробы), м/с.

6.6 Расход отбираемого газа по реометру (Vр), дм3/мин, вычисляют по формуле

                                   (2)

где d - диаметр входного сечения наконечника или пылезаборного устройства (при внутренней фильтрации), мм;

Б - атмосферное давление воздуха, Па;

Рг - давление (+) или разрежение (-) газа в месте отбора пробы, Па;

Tг - температура газа в месте отбора пробы, °С;

ρо - плотность газа при нормальных условиях, кг/м3;

ρр - плотность газа, принятая при калибровке диафрагмы реометра, кг/м3;

tp - температура газа у реометра, °С;

Рр - разрежение газа у диафрагмы реометра, Па.

6.7 При отборе пробы на запыленность методом внешней фильтрации пылезаборную трубку со сменным наконечником вводят в газоход так, чтобы входное отверстие наконечника находилось в заданной точке измерительного сечения и было направлено по потоку газа. После прогрева пылезаборного устройства в газоходе в течение 15 мин трубку поворачивают входным отверстием навстречу газовому потоку (допустимое отклонение от соосности 5°).

6.8 В случае внешней фильтрации пылезаборную трубку и фильтровальный патрон предварительно прогревают с помощью намотанных на них электроспиралей до температуры, исключающей конденсацию водяных паров при отборе пробы, после чего пылезаборную трубку вводят в газоход и устанавливают в выбранной точке сечения газохода навстречу газовому потоку.

6.9 Включив побудитель тяги устанавливают по реометру заданные расход газа и разрежение у измерительной диафрагмы.

Результаты измерений фиксируются в журнале, рекомендуемая форма которого приведена в приложении Е.

Изменения показаний приборов в ходе отбора пробы регистрируют с указанием времени, когда они произошли.

6.10 Продолжительность отбора пробы устанавливают в зависимости от запыленности газа, производительности побудителя тяги и типа пылеуловителя. При большой запыленности газа (более 1 г/м3) отбор пробы, как правило, должен продолжаться 10 - 20 мин. С уменьшением запыленности газа время отбора возрастает. Привес бумажной гильзы, обусловленный уловленной пылью, должен быть не менее 0,1 г, иначе понижается точность измерения.

6.11 При смене бумажных фильтров (внешняя фильтрация) патрон предварительно отсоединяют от побудителя тяги, не отключая обогрева. Пыль, попавшую из фильтра на поверхность пробки, следует счистить с поверхности и ссыпать в фильтр. Пылезаборную трубку надо периодически прочищать тонкой проволокой с узелком на конце. Пыль, вычищенную из трубки, необходимо собрать и взвесить, чтобы в дальнейшем ввести поправку при расчете запыленности. Вынутый из патрона бумажный фильтр с пылью закрывают так, чтобы пыль из него не могла высыпаться. Перед взвешиванием запыленные фильтры оставляют в весовой комнате на сутки.

6.12 При внутренней фильтрации с использованием патронов со стекловолокном необходимо следить за тем, чтобы при извлечении патронов из газохода пыль не высыпалась из носика патрона. Патроны после отбора пробы доводят до постоянной массы (см. 2.3.4).

7 ПРАВИЛА ОБРАБОТКИ РЕЗУЛЬТАТОВ ИЗМЕРЕНИЙ

7.1 Запыленность газа (z), г/м3, приведенную к нормальным условиям, при отборе пробы в одной точке измерительного сечения вычисляют по формуле

                                      (3)

где т - масса пыли, осевшей на пылеуловителе (привес), г;

m1 - масса пыли, осевшей в заборной трубке при внешней фильтрации (см. 3.11), г;

Dm - поправка на изменение массы контрольных бумажных фильтров, г;

t - время отбора пробы, мин.

При измерении с использованием трубки нулевого типа запыленность вычисляют по формуле

                              (4)

где Vpj, tpj, Ppj - параметры пылегазового потока за промежуток времени tj;

j - количество зарегистрированных в журнале промежутков времени tj.

7.2 Запыленность газа (z), г/м3, при отборе проб в нескольких точках измерительного сечения вычисляют по формуле

                                                           (5)

где п - количество точек измерения;

i - порядковый номер точки измерения;

zi - запыленность газа в i-й точке измерения, г/м3;

vi - скорость газа в i-й точке измерения, м/с.

7.3 При невозможности соблюдения изокинетичности при отборе проб следует вводить поправку в полученные результаты измерения по формуле

                                                            (6)

где zl - запыленность, полученная при несоблюдении изокинетичности, г/м3;

К - поправочный коэффициент.

Расчет коэффициента К приведен в приложении Ж.

8 ОЦЕНКА ПОГРЕШНОСТИ ОПРЕДЕЛЕНИЯ ЗАПЫЛЕННОСТИ

8.1 В общем случае погрешность определения запыленности газопылевых потоков, отходящих от стационарных источников загрязнения, включает в себя:

погрешность определения скорости газа в измерительном сечении;

погрешность от неизокинетичности отбора газа;

погрешность от угла наклона пылезаборной трубки к оси потока;

погрешность от загрузки измерительного сечения пылезаборным устройством;

погрешность от неточности установки пылезаборной трубки в точках измерений;

погрешность осреднения запыленности потока;

погрешность от осаждения пыли в канале пылезаборной трубки (для внешней фильтрации);

погрешность от неполного улавливания пылеуловителем;

погрешность определения массы уловленной пыли;

погрешность определения физических характеристик газа (температуры, давления) и атмосферного давления воздуха;

погрешность определения расхода газа через пылеуловитель.

8.2 Максимальная погрешность (δ) с доверительной вероятностью 95 % при нормальном законе распределения не превысит удвоенного значения среднего квадратического отклонения (s)

δ = ±2s.                                                                  (7)

8.3 Относительное среднее квадратическое отклонение определения запыленности вычисляют по формуле

               (8)

где  - относительное среднее квадратическое отклонение (ОСКО) определения скорости газа в газоходе;

 - ОСКО, обусловленное неизокинетичностью отбора газа;

 - ОСКО, определяемое погрешностью от наклона оси пылезаборной трубки к оси потока;

 - ОСКО, определяемое погрешностью от загрузки измерительного сечения пылезаборным устройством;

 - ОСКО, определяемое погрешностью от неточности установки пылезаборной трубки в точках измерений;

 - ОСКО от осреднения запыленности потока;

 - ОСКО от осаждения пыли в канале пылезаборной трубки;

 - ОСКО от неполного улавливания пыли фильтрующим устройством;

 - ОСКО определения массы уловленной пыли;

 - ОСКО определения температуры газа;

 - ОСКО определения давления газа;

 - ОСКО измерения атмосферного давления воздуха;

 - ОСКО определения расхода газа через пылеуловитель.

8.4 Оценка составляющих погрешности определения запыленности

8.4.1 Погрешность определения расхода газа через измерительное сечение, температуры, давления газа и атмосферного давления воздуха - по ГОСТ 17.2.4.06, ГОСТ 17.2.4.07.

8.4. Погрешность от неизокинетичности отбора газа для частиц диаметром менее 5 мкм пренебрежимо мала. Пример расчета погрешности для частиц размером более 5 мкм приведен в приложении И.

8.4.3 Погрешностью от угла наклона оси пылезаборной трубки к оси потока, не превышающего 5°, можно пренебречь.

8.4.4 Погрешностью от загрузки измерительного сечения пылезаборным устройством при отношении площади, занимаемой пылезаборным устройством, к площади измерительного сечения, не превышающим 5 %, можно пренебречь.

8.4.5 Погрешностью от неточности установки пылезаборной трубки в заданных точках измерений при выполнении требований 3.7 пренебрегают.

8.4.6 Погрешность осреднения запыленности потока при допущении, что распределения поля скоростей и поля запыленностей одинаковы, приведена в таблице 2.

Таблица 2

Фирма измерительного сечения

Количество точек намерения

Погрешность осреднения запыленности потока, %, при расстоянии от места возмущения потока до измерительного сечения в эквивалентных диаметрах

1

2

3

5

6

Круг

4

20

16

12

6

3

8

16

12

10

5

2

12

12

8

6

3

2

Прямоугольник

4

24

20

15

8

4

16

12

8

6

3

2

8.4.7 Погрешность от осаждения пыли в канале пылезаборной трубки характерна только для метода внешней фильтрации и при выполнении требований 3.10 ею пренебрегают.

8.4.8 Погрешность от неполного улавливания пылеуловителем не превышает 0,5 %.

8.4.9 Погрешность определения массы уловленной пыли зависит от следующих факторов:

погрешности весов;

влажности чистого и запыленного фильтра;

количества уловленной фильтром пыли и при выполнении требований настоящего стандарта не превысит 1,0 %.

8.4.10 Погрешность определения расхода газа через пылеуловитель равна погрешности расходомерного устройства.

9 ТРЕБОВАНИЯ БЕЗОПАСНОСТИ

Требования безопасности - по ГОСТ 17.2.4.06.

ПРИЛОЖЕНИЕ А

(справочное)

ТРУБКИ ПЫЛЕЗАБОРНЫЕ

Простая пылезаборная трубка

1 - корпус; 2 - шейка; 3 - наконечник; 4 - стальная трубка Æ 4 - 6 мм; 5 - нихромовая обмотка; 6 - асбестовая изоляция; 7 - изолирующая шайба

Рисунок А1

Простая пылезаборная трубка выполнена из нержавеющей стали или латуни. Трубка изогнута под углом 90°. Радиус кривизны должен быть в 3 раза больше внешнего диаметра трубки. Пробоотборная трубка снабжается электрическим (реже паровым) обогревом. При температуре нагрева стенок трубки выше температуры газа уменьшается осаждение пыли на ее стенках. При высоком влагосодержании газов необходим обогрев для предотвращения конденсации водяных паров. В таблице А1 приведены рекомендуемые параметры электрообмотки для пылезаборных трубок.

Таблица А1

Длина трубки, м

Сечение проволоки, мм2

Длина провода, м

Количество проволок

0,75

1

1,1

1

1,0

1

1,4

1

1,5

1

2,1

2

2,0

0,9

2,6

2

Наконечники для пылезаборных трубок

С обратным конусом

С прямым конусом

Рисунок А2

Пылезаборная трубка нулевого типа

Рисунок A3

Наконечники выполнены из коррозионностойкого материала (обычно из нержавеющей стали или латуни). Внутренняя и внешняя поверхности наконечников отшлифованы

Профиль наконечников показан на рисунке А2. Диаметр входного отверстия наконечника с обратным конусом должен быть не менее 6 мм, а с прямым конусом внутренний диаметр трубки не менее 4 мм.

Диаметр на входе наконечника (d) контролируется с точностью 0,1 мм. Допуск на эллипсность составляет 0,05 мм. Отверстие и внутренняя поверхность носика должны быть концентрическими. Допуск на концентричность составляет 0,005.

Угол а должен составлять не более 15°, предпочтительно значение - 10.

Максимальная толщина стенки наконечника f связана с диаметром соотношением f = 0,25d.

Выступ, который образуется в месте соединения наконечника с трубкой, должен быть не более 0,1 мм.

Трубка нулевого типа, показанная на рисунке A3, имеет дополнительные каналы для измерения статического давления газа снаружи и внутри трубки.

Отверстия каналов для измерений статического давления расположены в прямолинейной части трубки в непосредственной близости к наконечнику. Диаметр отверстий или ширина щелей составляет от 0,5 до 2 мм. Импульсные трубки статического давления не должны создавать неровностей на внешней поверхности пылезаборной трубки.

Равенство полного давления внутри и снаружи трубки не гарантирует изокинетичности отбора, так как гидравлические сопротивления снаружи и внутри носика неодинаковы. Поэтому трубка должна быть откалибрована. Должен быть определен диапазон ее применения, в котором разница между динамическим давлением снаружи и внутри трубки не превышает 10 % внешнего динамического давления

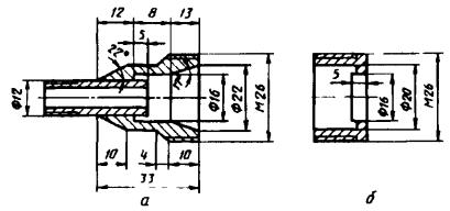
ПРИЛОЖЕНИЕ Б

(справочное)

ШТУЦЕРА (ПАТРУБКИ)

Штуцер для измерения скорости и запыленности газа

1 - крышка; 2 - газовая труба

Рисунок Б1

Штуцер для измерения температуры газа

1 - крышка; 2 - газовая труба

Рисунок Б2

Штуцер для измерения давления газа

1 - газовая труба

Рисунок Б3

ПРИЛОЖЕНИЕ В

(справочное)

Шлюзовой затвор для отбора проб под давлением

1 - задвижка; 2 - штуцер; 3 - бобышка; 4 - заборная трубка; 5 - стеклянный фильтр; 6 - газоход

Рисунок В1

ПРИЛОЖЕНИЕ Г

(справочное)

АППАРАТУРА ДЛЯ ОПРЕДЕЛЕНИЯ ЗАПЫЛЕННОСТИ МЕТОДОМ ВНУТРЕННЕЙ ФИЛЬТРАЦИИ

Фильтровальные патроны

1 - слой стекловолокна; 2 - слой асбестового волокна; 3 - металлическая сетка (луженая)

Рисунок Г1

Патронодержатель

а - корпус; б - накидная гайка

Рисунок Г2

Держатель мембранных фильтров АФА

Рисунок Г3

ПРИЛОЖЕНИЕ Д

(справочное)

АППАРАТУРА ДЛЯ ОПРЕДЕЛЕНИЯ ЗАПЫЛЕННОСТИ МЕТОДОМ ВНЕШНЕЙ ФИЛЬТРАЦИИ

Патрон с бумажным фильтром

1 - корпус; 2 - резиновая пробка; 3 - электрообогрев; 4 - колпак; 5 - фильтр из асбестовой ваты; 6 - трубка; 7 - тепловая изоляция; 8 - бумажная фильтровальная гильза

Рисунок Д1

Патрон с тканевым фильтром

1 - корпус; 2 - резиновая пробка; 3 - хомутик; 4 - фильтровальный мешок; 5 - стакан; 6 - электрообогрев; 7 - тепловая изоляция; 8 - контакты; 9 - втулка текстолитовая

Рисунок Д2

Раскрой бумажного фильтра

Рисунок Д3

Бумажные фильтры склеивают из фильтровальной бумаги с помощью следующего состава, г: декстрина - 105; сахара - 20; алюминиевых квасцов - 3,6; фенола - 0,5; воды - 100. Сахар и квасцы растворяют в 0,1 дм3 воды при температуре 40 - 50 °С, затем добавляют декстрин и хорошо перемешивают, нагревают до 75 - 80 °С и выдерживают в течение 5 - 10 мин. После этого добавляют фенол.

Для склеивания бумажных фильтров может быть использован также канцелярский казеиновый клей.

Держатель для фильтров АФА

1 - диффузорный участок; 2 - мембранный фильтр; 3 - накидная гайка; 4 - опорная сетка; 5 - конфузорный участок

Рисунок Д4

Циклон

1 - входной патрубок с накидной гайкой; 2 - корпус циклона; 3 - крышка с выхлопной трубой; 4 - бункер для пыли

Рисунок Д5

ФОРМА ЖУРНАЛА ДЛЯ ЗАПИСИ РЕЗУЛЬТАТОВ ИЗМЕРЕНИЙ ЗАПЫЛЕННОСТИ

Предприятие ________________ Температура газа в газоходе, °С __________________

Дата измерений _____________  Разрежение (давление) в газоходе. Па _____________

Место отбора пробы _________   Атмосферное давление воздуха, Па _______________

Плотность газа при рабочих условиях, кг/м _______

Точки измерений

Время отбора

Показание реометра, дм3/мин

Температура газа перед диафрагмой, °С

Разрежение перед диафрагмой, Па

Расход газа через трубку, м3

Привес фильтра, г

Концентрация пыли, г/м3

начало

конец

 

 

 

 

 

 

 

 

 

ПРИЛОЖЕНИЕ Ж

(справочное)

РАСЧЕТ ПОПРАВОЧНОГО КОЭФФИЦИЕНТА К

Поправочный коэффициент К, учитывающий неизокинетичность отбора, вычисляют по формуле

                                             (1)

где vн - скорость газа во входном сечении пылезаборной трубки, м/с;

Kин - инерционный параметр.

Инерционный параметр вычисляют по формуле

                                                       (2)

где dч - диаметр частиц пыли, мкм;

ρч - плотность пыли, кг/м3;

ск - поправка Кеннингема-Милликена;

μ - динамическая вязкость газа, Па/с;

На рисунке Ж1 приведены значения К для некоторых отношений  и различных диаметров частиц пыли dч.

Рисунок Ж1

ПРИЛОЖЕНИЕ И

(справочное)

ПРИМЕР РАСЧЕТА ПОГРЕШНОСТИ ОПРЕДЕЛЕНИЯ ЗАПЫЛЕННОСТИ ГАЗА

1. ОСКО определения скорости газа  = 0,03.

2. Погрешность от неизокинетичности отбора газа ±0,5 % или  = 0,0025.

3. Погрешность осреднения запыленности потока ±2 % или  = 0,01.

4. ОСКО от неполного улавливания пыли пылеуловителем  = 0,01.

5. ОСКО определения массы уловленной пыли  = 0,005.

6. Погрешность определения расхода газа через пылеуловитель ±2 % или  = 0,01.

7. ОСКО определения температуры, давления газа и атмосферного давления воздуха при использовании средств измерения с погрешностью, не превышающей ±1 % в верхней части диапазона измерений.

Тогда ОСКО определения запыленности

Максимальная погрешность с доверительной вероятностью 95 %

 или ±8 %.

Ключевые слова: оборудование газоочистное, оборудование пылеулавливающее, газопылевые потоки, методы определения запыленности

 

 



© 2013 Ёшкин Кот :-)