The plates of spike fastening for railway Р65 and Р75 rails. Design and dimensions 

Информационная система
«Ёшкин Кот»

XXXecatmenu

ГОСУДАРСТВЕННЫЙ СТАНДАРТ СОЮЗА ССР

ПОДКЛАДКИ КОСТЫЛЬНОГО
СКРЕПЛЕНИЯ К ЖЕЛЕЗНОДОРОЖНЫМ
РЕЛЬСАМ ТИПОВ Р65 и Р75

КОНСТРУКЦИЯ И РАЗМЕРЫ

ГОСТ 8194-75

ГОСУДАРСТВЕННЫЙ КОМИТЕТ СССР
ПО УПРАВЛЕНИЮ КАЧЕСТВОМ ПРОДУКЦИИ И СТАНДАРТАМ
Москва

ГОСУДАРСТВЕННЫЙ СТАНДАРТ СОЮЗА ССР

ПОДКЛАДКИ КОСТЫЛЬНОГО СКРЕПЛЕНИЯ
К ЖЕЛЕЗНОДОРОЖНЫМ РЕЛЬСАМ ТИПОВ Р65 и Р75

Конструкция и размеры

The plates of spike fastening for railway
P65 and P75 rails. Design and dimensions.

ГОСТ
8194-75*

Взамен
ГОСТ 8194-66

* Переиздание (май 1990 г.) с Изменениями № 1, 2, 3, утвержденными в сентябре 1976 г., августе 1980 г., январе 1983 г., (ИУС 11-76, 11-80, 5-83)

Постановлением Государственного комитета стандартов Совета Министров СССР от 18 июня 1975 г. № 1575 срок действия установлен

с 01.01.76

Проверен в 1987 г. Постановлением Госстандарта от 08.06.87 № 1886 срок действия продлен

до 01.01.93

1. Настоящий стандарт распространяется на подкладки Д65, СД65 и ДН65 костыльного скрепления к железнодорожным рельсам типов Р65 и Р75.

(Измененная редакция, Изм. № 3).

2а. Подкладки Д65 и ДН65 применяются в рельсовых скреплениях на деревянных шпалах и брусьях и обеспечивают наклон рельсовых нитей внутрь колеи.

(Введен дополнительно, Изм. № 3).

2. Подкладки СД65 применяются в конструкциях железнодорожного пути, где не требуется наклон рельсовых нитей.

Подкладки ДН65 применяются на кривых участках пути.

(Измененная редакция, Изм. № 3).

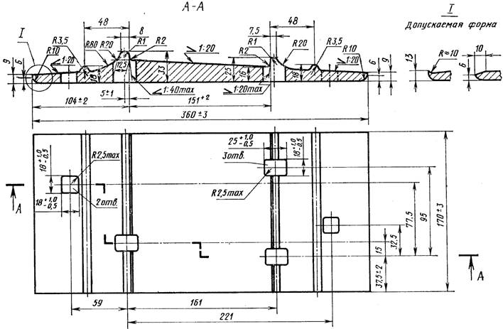
3. Конструкция и размеры подкладок Д65 должны соответствовать указанным на черт. 1, подкладок СД65 - на черт. 2, подкладок ДН65 - на черт. 3.

(Измененная редакция, Изм. № 3).


Размеры отверстий указаны со стороны продавливания.

Черт. 1

Описание: Untitled-1

Размеры отверстий указаны со стороны продавливания.

Черт. 2

Черт. 3


Условное обозначение подкладки Д65:

Подкладка Д65 ГОСТ 8194-75

То же, подкладки СД65:

Подкладка СД65 ГОСТ 8194-75

То же, подкладки ДН65:

Подкладка ДН65 ГОСТ 8194-75

(Измененная редакция, Изм. № 2, 3).

4. Технические требования - по ГОСТ 3280-84.

(Измененная редакция, Изм. № 3).

5. Масса подкладок указана в приложении к настоящему стандарту.

6. Радиусы закруглений, не указанные на чертежах, выполняются размером 2 - 6 мм.

5, 6 (Введены дополнительно, Изм. № 1).

7. Предельные отклонения по толщине подкладки не должны превышать ±1 мм, а по расстоянию между осями отверстий - ±0,5 мм, по непараллельности и неперпендикулярности осей отверстий по отношению к ребордам и на уклон верхней поверхности подкладок ±1°.

8. Размеры, на которые не установлены предельные отклонения, в готовых подкладках не контролируются, но должны обеспечиваться технологией.

7, 8. (Измененная редакция, Изм. № 3).

ПРИЛОЖЕНИЕ

Справочное

ПЛОЩАДЬ СЕЧЕНИЯ ПРОКАТА И МАССА ПОДКЛАДОК

Условное обозначение подкладок

Площадь сечения профиля, см2

Масса, кг

1 м проката

одной подкладки

Д65

59,57

46,94

7,66

СД65

56,24

44,14

7,22

ДН65

60,70

47,64

7,83

Масса подкладок определена исходя из номинальных размеров и плотности стали 7850 кг/м3.

(Измененная редакция, Изм. № 1, 2, 3).

 

 



© 2013 Ёшкин Кот :-)