Информационная система
«Ёшкин Кот»

XXXecatmenu

ГОСУДАРСТВЕННЫЙ СТАНДАРТ СОЮЗА ССР

 

БАШМАК ТОРМОЗНОЙ КОЛОДКИ
|ПОВОРОТНЫЙ ДЛЯ ВАГОНОВ
ЖЕЛЕЗНЫХ ДОРОГ КОЛЕИ 1524 мм

ТЕХНИЧЕСКИЕ УСЛОВИЯ

 

ГОСТ 1204-67
(СТ СЭВ 2555-80)

 

 

ГОСУДАРСТВЕННЫЙ КОМИТЕТ СССР ПО СТАНДАРТАМ

Москва

 

ГОСУДАРСТВЕННЫЙ СТАНДАРТ СОЮЗА ССР

БАШМАК ТОРМОЗНОЙ КОЛОДКИ
ПОВОРОТНЫЙ ДЛЯ ВАГОНОВ
ЖЕЛЕЗНЫХ ДОРОГ КОЛЕИ 1524 мм

Технические условия

Rotable brake shoe holder of the brake
shoe for vehiclef of 1524 mm gauge.
Specifications

ГОСТ
1204-67*

(СТ СЭВ 2555-80)

Взамен
ГОСТ 1204-58

* Переиздание (февраль 1980 г.) с изменениями № 1 и 2, утвержденными в ноябре 1969 г. и январе 1980 г. (ИУС 1-1970, 2-1980).

(Измененная редакция, Изм. № 3).

Утвержден Комитетом стандартов, мер и измерительных приборов при Совете Министров СССР 13 декабря 1967 г. Срок введения установлен

с 01.07 1968 г.

Проверен в 1979 г. Срок действия продлен

до 01.01 1985 г.

Несоблюдение стандарта преследуется по закону

Настоящий стандарт распространяется на поворотные башмаки тормозных колодок для пассажирских и грузовых вагонов, вагонов электропоездов и дизельпоездов магистральных железных дорог колеи 1520 мм.

Стандарт соответствует СТ СЭВ 2555-80 в части основных размеров башмаков для вагонов колеи 1520 мм (см. приложение).

Требования настоящего стандарта являются обязательными.

(Измененная редакция, Изм. № 2, 3, 4).

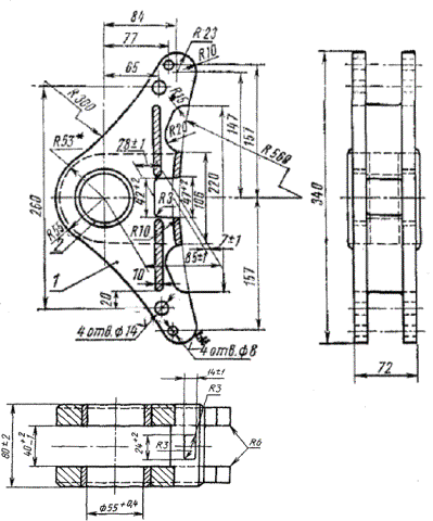
1. ОСНОВНЫЕ РАЗМЕРЫ

1.1. Основные размеры башмаков должны соответствовать указанным на чертеже.

Теоретическая масса (без втулок) - 7 кг.

* Размер для справок.

1 - башмак; 2 - втулка

Условное обозначение башмака:

Башмак ГОСТ 1204-67

(Измененная редакция, Изм. № 2, 4).

2. ТЕХНИЧЕСКИЕ ТРЕБОВАНИЯ

2.1. Башмаки должны изготовляться в соответствии с требованиями настоящего стандарта по чертежам, утвержденным в установленном порядке.

2.2. Башмаки должны изготовляться из отливок стали марок 15Л, 20Л, 25Л, 20ГЛ, 20ФЛ, 20Г1ФЛ группы II по ГОСТ 977-88.

По согласованию с потребителем отливки могут выплавляться бессемеровским способом.

(Измененная редакция, Изм. № 1, 2, 4).

2.3. Отливки башмаков должны быть подвергнуты отжигу или нормализации.

Исправление дефектов в башмаках заваркой должно производиться электродами типа Э42А или Э50А по ГОСТ 9467-75.

2.4. Виды, количество, размеры и расположение дефектов литья на башмаках, которые могут быть допущены без исправления или подлежат исправлению, способы исправления, а также необходимость повторной термической обработки после исправления дефектов должны быть согласованы между изготовителем и потребителем.

(Измененная редакция, Изм. № 2).

2.5. Отклонения на размеры отливок, не ограниченные допусками, должны быть выполнены по ГОСТ 26645-85 и указаны в технических требованиях чертежа.

(Новая редакция, Изм. № 4).

2.6. Башмаки должны изготовляться с втулками. Втулки должны изготовляться в соответствии с нормативно-технической документацией.

По требованию заказчика допускается изготовление башмаков без втулок.

2.7. Каждый башмак по поверхности сопряжения его с тормозной колодкой по R 560 мм должен проверяться шаблоном или эталонной колодкой.

Покачивание шаблона на башмаке или башмака на эталонной колодке не допускается. Шаблон или аттестованная колодка должны контактировать не менее чем с одной из крайних поверхностей каждого конца и с одной из средних поверхностей башмака.

На указанных поверхностях допускаются местные зазоры до 1,5 мм, на остальных поверхностях допускаются сквозные зазоры не более 0,5 мм.

(Измененная редакция, Изм. № 4).

2.8. (Исключен, Изм. № 2).

2.9. Предприятие-изготовитель обязано в течение трех лет со дня отгрузки потребителю безвозмездно заменять вышедшие из строя башмаки при условии соблюдения потребителем правил их эксплуатации, монтажа и хранения.

3. МАРКИРОВКА, ТРАНСПОРТИРОВАНИЕ И ХРАНЕНИЕ

3.1. На боковой стороне каждого башмака должен быть нанесен товарный знак или условный номер предприятия-изготовителя и две последние цифры года изготовления.

3.2. Поверхность втулок башмаков должна быть покрыта универсальной среднеплавкой смазкой (солидол жировой) по ГОСТ 1033-79.

3.3. Каждая партия башмаков должна сопровождаться документом, содержащим:

а) дату выпуска;

б) количество башмаков;

в) номер настоящего стандарта.

3.4. Башмаки должны храниться в закрытом помещении.

ПРИЛОЖЕНИЕ

Справочное

Информационные данные о соответствии ГОСТ 1204-67 СТ СЭВ 2555-80

Требования

ГОСТ 1204-67

СТ СЭВ 2555-80

Регламентирование типов и размеров башмаков тормозных колодок

Регламентирование основных размеров и технических требований тормозных башмаков вагонов железных дорог колеи 1524 мм

(ИУС № 7 1983 г.)

Регламентирование типов и размеров башмаков тормозных колодок вагонов железных дорог колеи 1435 и 1520 мм.

Приложение ведено дополнительно, Изм. № 3).

СОДЕРЖАНИЕ

 

 



© 2013 Ёшкин Кот :-)