Информационная система
«Ёшкин Кот»

XXXecatmenu

МЕТОДИЧЕСКАЯ ДОКУМЕНТАЦИЯ В СТРОИТЕЛЬСТВЕ

ГПК НИИ Сантехниипроект

РЕКОМЕНДАЦИИ
ПО ПРОТИВОДЫМНОЙ ЗАЩИТЕ
ПРИ ПОЖАРЕ
(к СНиП 2.04.05-91*)

МДС 41-1.99

Москва 2001

ПРЕДИСЛОВИЕ

1. РАЗРАБОТАНЫ ГПК НИИ СантехНИИпроект.

Авторы - канд. тех. наук Б.В. Баркалов, инженеры В.А. Орлов, Т.И. Садовская.

2. ОДОБРЕНЫ Научно-техническим советом ГПК НИИ СантехНИИпроект и рекомендованы к изданию.

СОДЕРЖАНИЕ

ВВЕДЕНИЕ

Настоящие Рекомендации разработаны в соответствии с требованиями СНиП 2.04.05-91* «Отопление, вентиляция и кондиционирование».

Рекомендациями по противодымной защите людей при пожаре в зданиях следует руководствоваться при проектировании общественных, жилых, производственных, административно-бытовых и складских зданий.

В 1-м разделе Рекомендаций изложена уточненная методика расчета систем дымоудаления из коридоров зданий, разработанная институтом.

При определении потерь давления по массовой скорости, кг/см2, и скоростному давлению, Па, в воздуховодах систем удаления дыма из помещений, в которых непосредственно произошел пожар, необходимо руководствоваться формулами, приведенными в 1-м разделе Рекомендаций.

Во 2-м разделе приведены материалы, разработанные на основании теоретических исследований ВНИИПО МВД России и МНИИТЭП, подтвержденных натурными испытаниями на опытных пожарах в многоэтажных жилых зданиях Москвы.

1. ПРОТИВОДЫМНАЯ ЗАЩИТА КОРИДОРОВ ЗДАНИЙ

1.1. Удаление дыма при пожаре следует проектировать для обеспечения эвакуации людей из помещений здания в начальной стадии пожара, возникшего в одном помещении:

а) из коридоров жилых, общественных, административно-бытовых и производственных зданий в соответствии с требованиями СНиП 2.04.05, 2.08.01, 2.08.02, 2.09.02, 2.09.04 и 2.11.01;

б) из коридоров жилых, общественных, административно-бытовых, производственных зданий высотой более 26,5 м;

в) из коридоров длиной более 15 м, не имеющих естественного освещения световыми проемами в наружных ограждениях (далее - без естественного освещения), производственных зданий категорий А, Б и В с числом этажей 2 и более.

Требование не распространяется на коридор, если для всех помещений, имеющих двери в этот коридор, проектируется непосредственное удаление дыма.

Противодымную защиту многофункциональных зданий и комплексов в Москве следует проектировать в соответствии с МГСН 4.04.

1.2. Удаление дыма из коридоров следует проектировать системами с искусственным побуждением. К одной системе допускается присоединять не более двух дымовых шахт. Дымовые клапаны следует размещать на дымовых шахтах под потолком коридора (прил. 1 - 6).

Допускается присоединять дымовые клапаны к шахтам на ответвлениях, принимая не более двух ответвлений от каждой шахты на этаже. При расчете системы следует принимать: температуру поступающего дыма - 300 °С, удельный вес дыма - 6 Н/м3, плотность дыма - 0,61 кг/м3.

Радиус действия дымового клапана - 15 м; в одну из сторон допускается принимать 20 м. Длина коридора, обслуживаемого одним дымоприемным устройством, принимается не более 30 м.

1.3. Количество дыма, кг/с, удаляемого из коридоров через дымовые клапаны, следует рассчитывать по формулам:

для жилых зданий

Gд = 0,95ВН1,5;                                                       (1)

для общественных, административно-бытовых и производственных зданий

Gд = 1,2ВН1,5Кд;                                                     (2)

где В - ширина большей створки двери при выходе из коридора или холла на лестничную клетку или наружу, м;

Н - высота двери, м; при Н < 2 м принимается Н = 2 м, при H > 2,5 м принимается H = 2,5 м;

Кд - коэффициент относительной полноты и продолжительности открывания дверей из коридора на лестничную клетку или наружу; при эвакуации 25 чел. и более через одну дверь принимается равным 1, при эвакуации менее 25 чел. - 0,8.

1.4. Потери давления в открытом дымовом клапане, Па, рассчитывают по формуле

                                                      (3)

где x1 - коэффициент сопротивления входа в дымовой клапан и в шахту, с коленом 90° принимается равным 2,2, с коленом 45° - 1,32;

x2 - коэффициент сопротивления в месте присоединения клапана к шахте или ответвления от нее, принимается по справочнику [1];

Vr - массовая скорость дыма в проходном сечении (F) клапана, кг/(с×м2);

Vr = Gд/F;

массовую скорость дыма в проходном сечении клапана рекомендуется принимать 7 - 10 кг/(с×м2).

r - плотность дыма, при температуре 300 °С принимается 0,61 кг/м3.

1.5. Потери давления на трение и местные сопротивления, Па, определяются по формуле

                                   (4)

где Kтр - коэффициент, учитывающий содержание в дыме твердых частиц, принимаемый 1,1. Если величина потерь давления на трение Rтр дана в кгс/м2, то при расчетах в Па принимается Kтр = 1,1 × 9,81 = 10,8;

Rтр - потери давления на трение, кг/м2, по справочнику [1] для эквивалентного диаметра участка воздуховода или шахты, соответствующие величине скоростного давления при массовой скорости дыма или газов на этом участке воздуховода или шахты; допускается принимать по таблице 1 Рекомендаций;

Кc - коэффициент для шахт и воздуховодов; из бетона - 1,7, из кирпича - 2,1, для шахт со стенками, оштукатуренными по стальной сетке, - 2,7, для стальных воздуховодов - 1,0. Для других материалов коэффициент определяется по табл. 22.11, 22.12 справочника [1];

l - длина шахты или воздуховода, м, включая длину колен, отводов, тройников и др.;

Vr - массовая скорость дыма в воздуховодах и шахтах, кг/(с×м2);

r - плотность дыма, кг/м3.

Таблица 1

Потери давления на трение в стальных воздуховодах

Скоростное давление в воздуховоде или шахте, Па

Потери давления на трение Rтр, кгс/м2, на 1 м в воздуховодах поперечным сечением, м2

0,25

0,35

0,5

0.7

1

2

3

4

5

30

0,10

0,09

0,06

0,06

40

0,13

0,11

0,08

0,07

50

0,16

0,14

0,10

0,09

60

0,19

17

0,12

0,11

70

0,22

0,19

0,17

0,12

80

0,25

0,22

0,16

0,14

90

0,28

0,24

0,18

0,16

100

0,31

0,27

0,20

0,17

110

0,34

0,29

0,22

0,19

120

0,37

0,32

0,24

0,20

130

0,39

0,34

0,26

0,21

140

0,42

0,37

0,27

0,22

150

0,45

0,39

0,29

0,25

160

0,48

0,41

0,31

0,26

170

0,51

0,45

0,33

0,28

180

0,54

0,47

0,35

0,30

190

0,57

0,49

0,37

0,31

200

0,62

0,54

0,40

0,33

1.6. Расход воздуха, подсасываемого через неплотности закрытого дымового клапана, кг/с, на 2-м участке определяется по формуле

Gк1 = 0,0112   (АР)0,5,                                               (5)

где А - площадь проходного сечения клапана, м2;

Р - потери давления при проходе воздуха через неплотности притворов закрытого клапана, Па, принимаются по расчету сопротивления первого участка системы, Р = Р1 + Р2.

1.7. Количество дыма в устье дымовой шахты с учетом подсоса воздуха через неплотности закрытых клапанов со 2-го по верхний этаж здания, кг/с, определяется в первом приближении по формуле

Gу1 = Gд + Gк1(N - 1),                                                 (6)

где Gд, Gк1 - количество дыма по формуле (1) или (2) и расход воздуха через закрытый клапан по формуле (5);

N - число этажей в здании, в которых предусматривается удаление дыма.

1.8. Потери давления в дымовой шахте, Па, при расходе газов в устье шахты Gу1, кг/с, определяем при среднем скоростном давлении в шахте по формуле

Pу1 = 10,8RтрКсНэ(N - 1) + 0,1(N - 1)hд.ср + Р1 + Р2,                        (7)

где Rтр - потери давления на трение, кгс/м2, при среднем скоростном давлении hд.ср, Па;

Кс - коэффициент по п. 1.5;

Нэ - высота этажа здания, м;

N - число этажей в здании;

hд.ср = (hд1 + hд.у)0,5;

hд1 = (Gд/Fш)2/(2 × 0,61) - на 1-м участке;

hд.у = (Gу1/Fш)2/(2rу) - в устье шахты;

rу = Gу1[Gд/0,61 + (Gу1 - Gд)/1,2];

Р1 - по формуле (3), Па;

Р2 - потери давления на 1-м участке, Па.

Массовую скорость газов в устье шахты рекомендуется принимать не более 15 кг/(с×м2).

1.9. Расход воздуха, кг/с, подсасываемого через закрытый дымовой клапан на верхнем этаже здания при давлении газов в устье шахты Ру1, Па, определяется по формуле

Gк2 = 0,0112(АРу1)0,5,                                                 (8)

где А - по п. 1.6, Ру1 - по п. 1.8.

1.10 Поступление воздуха в дымовую шахту через закрытые дымовые клапаны и дыма через открытый клапан на 1-м этаже, кг/с, определяется во втором приближении по формуле

Gу2 = (Gк1 + Gк2)0,5(N - 1) + Gд,                                            (9)

где Gк1, Gк2 - соответственно по п. 1,6 и 1,9;

N - число этажей в здании;

Gд - количество дыма, кг/с, по п. 1.3.

1.11. Сопротивление участка воздуховода от дымовой шахты до вентилятора - Рвс, Па, рассчитывается по формуле (4) при расходе Gу2.

1.12. Потери давления системы на всасывании, Па, до вентилятора (отрицательное статическое давление) определяются по формуле

Pу2 = Pу1 + Рвс,                                                         (10)

где Pу1 - по формуле (7) и Рвс - по п. 1.5.

1.13. Подсосы воздуха через неплотности воздуховодов, кг/с, определяются при давлении Pу2 и по табл. 2 Рекомендаций

Gп = К(G1П1l1) + G2П2l2,                                               (11)

где G1, G2 - удельный расход воздуха Gуд×103, кг/(с×м2) на 1 м2 внутренней поверхности воздуховода (табл. 2);

G1 = Gуд; G2 = Gуд

П1, П2 - периметры участков отсасывающей сети воздуховодов по внутреннему сечению, м;

l1, l2 - длина участков сети воздуховодов, м;

К - коэффициент для прямоугольных воздуховодов, равен 1,1.

Таблица 2

Удельный расход воздуха на 1 м2 внутренней поверхности воздуховода Gуд × 103, кг/(с×м2)

Класс воздуховода

Отрицательное статическое давление в месте присоединения воздуховода к вентилятору, Па

200

400

600

800

1000

1200

1400

1600

1800

2000

2200

П

0,4

0,6

0,8

1,0

1,2

1,3

1,5

1,6

1,8

1,9

2,0

Н

1,2

1,9

2,5

3,1

3,6

4,0

4,5

4,8

5,4

5,7

6,0

1.14. Общий расход газов до вентилятора, кг/с

Gсум = Gу2 + Gп.                                                       (12)

1.15. Потери давления в сети до вентилятора Рв, Па, с учетом подсасываемого воздуха через неплотности воздуховодов определяются по формуле

Рв = Ру2[1 + (Gcум/Gу1)2]0,5                                                 (13)

1.16. Плотность смеси воздуха и газов перед вентилятором, кг/м3, рассчитывается по формуле

rcум = Gсум/[Gд/0,61 + (Gсум - Gд)/1,2],                                    (14)

а температура смеси газов T = (353 - 273rcум)/rcум.

1.17. Рекомендуется применять вентилятор с положением кожуха 270° и отдельно стоящую выхлопную трубу. При наличии избыточного давления вентилятора против требуемого по расчету рекомендуется установка конфузора на выхлопной трубе. Из поддона выхлопной трубы предусматривается отвод конденсирующейся влаги, и влаги, попадающей при дождях. Зонт над выхлопной трубой не устраивается.

1.18. Потери давления в выхлопной трубе Рвых рассчитываются по п. 1.5 и суммируются с потерями на всасывании, Па, для определения общих потерь давления в сети

Рсум = Рв + Рвых.                                                       (15)

1.19. Определяется естественное давление газов при общей высоте шахты Нш и выхлопной трубы Нвых, Па

Рес = Нш[gн - (rcум + rд)4,95] + Нвых(gн - rcум9,81),                    (16)

где rд - плотность дымовых газов, при удалении из коридоров принимать 0,61 кг/м3;

rcум - плотность дымовых газов, удаляемых из здания, кг/м3;

gн - удельный вес наружного воздуха в теплый период года по параметрам Б, Н/м3, рассчитывается по формуле gн = 3463/(273 + tн); здесь tн - температура наружного воздуха.

1.20. Потери давления в сети дымоудаления с учетом естественного давления газов, Па, определяются по формуле

Рвен = Рсум - Рес,                                                          (17)

где Рсум - по п. 1.18, Рес - по п. 1.19.

1.21. Вентилятор для удаления газов выбирается по условным потерям давления Рус, Па, приведенным к плотности стандартного воздуха, и по суммарному расходу дымовых газов Lв, м3/ч, на выходе из вентилятора. Рус и Lв определяются по формулам:

Рус = 1,2Рвен/rcум;                                                       (18)

Lв = 3600Gсум/rcум;                                                    (19)

По окончании расчета следует уточнить требуемое давление вентилятора для удаления дыма при возникновении пожара на верхнем этаже здания без учета естественного давления.

1.22. Для производственных, общественных и административно-бытовых зданий дымовые шахты и воздуховоды следует, как правило, выполнять класса «П» (плотные) из стальных листов на сварке сплошным швом; дымовые шахты допускается выполнять из строительных материалов, плотность их должна быть не ниже класса «Н» (нормальные) по СНиП 2.04.05-91*.

1.23. Для удаления дыма следует предусматривать установку радиальных вентиляторов, включая радиальные крышные вентиляторы. Выброс дыма в атмосферу необходимо выполнять через трубы без зонтов на высоте не менее 2 м от кровли из горючих и трудногорючих материалов.

Допускается выброс дыма на меньшей высоте с защитой кровли негорючими материалами на расстоянии не менее 2 м от края выбросного отверстия. Перед вентилятором, как правило, следует предусматривать установку обратных клапанов.

1.24. Вентиляторы систем вытяжной противодымной вентиляции следует размещать в отдельных помещениях от других систем.

Ограждающие конструкции помещения должны иметь противопожарные перегородки с пределом огнестойкости 0,75 ч.

Допускается размещение вентиляторов вытяжных противодымных систем на кровле и снаружи здания, кроме районов с расчетной температурой наружного воздуха минус 40 °С и ниже (параметры Б). Вентиляторы, установленные снаружи, должны быть защищены от посторонних лиц сетчатыми ограждениями.

Пример 1. Рассчитать противодымную защиту коридоров 17-этажного жилого дома в г. Иванове.

Исходные данные:

Температура наружного воздуха в теплый период года 27 °С (параметры Б). Дверь для выхода на лестничную клетку имеет ширину 0,9 м, высоту 2,2 м. Высота этажа 2,8 м, шахта дымоудаления выполнена из бетона.

Решение:

1.Определяем расход дыма по формуле (1)

Gд = 0,95 × 0,9 × 2,21,5 = 2,79 кг/с = 10044 кг/ч.

2. Принимаем дымовой клапан КДМ-2 (прил. 2) размером 800´500 мм с проходным сечением 0,35 м2 и шахту размером 800´500 мм. Массовая скорость дыма в клапане на 1-м участке (клапан открыт) Vr = 2,79/0,35 = 8,0 кг/(с×м2) и в шахте

Vr = 2,79/0,4 = 6,98 кг/(с×м2).

3. Определяем потери давления в дымовом клапане на 1-м этаже по формуле (3)

Р1 = 2,5 × 8,02/(2 × 0,61) = 131 Па,

где x1 + x1 = 2,5.

4. Потери давления на трение на 1-м участке шахты из бетона при Кс = 1,7 и скоростном давлении hд1 = 6,982/(2 × 0,61) = 40 Па рассчитаны по табл. 1 и формуле (4)

Р2 = 10,8 × 0,1 × 1,7 × 2,8 = 5,2 Па,

где Sx = 0.

5. Определяем подсос воздуха через неплотности закрытого дымового клапана на 2-м этаже здания по формуле (5) при отрицательном давлении

Р1 + Р2 = 131 + 5,2 = 136,2 Па;

Gк1 = 0,0112(0,35 × 136,2)0,5 = 0,077 кг/с.

6. Количество газов в устье дымовой шахты определяем по расходу дыма при равномерном подсосе воздуха через 16 закрытых дымовых клапанов в первом приближении по формуле (6)

Gу1 = 2,79 + 0,077 × 16 = 4,02 кг/с.

7. Потери давления в дымовой шахте, Па, при расходе газов в устье шахты Gу1, кг/с, определяем при среднем скоростном давлении в шахте по формуле (7)

Ру1 = 10,8 × 0,13 × 1,7 × 2,8 × 16 + 0,1 × 16 × 55 + 131 + 5,2 = 330 Па,

где Rтр = 0,13 кгс/м2 по табл. 1 при скоростном давлении 55 Па;

Кс = 1,7 по п. 1.5;

hд.ср = (hд1 + hд.у) × 0,5 = (40 + 70) × 0,5 = 55 Па;

hд1 = (2,79/0,4)2/(2 × 0,61) = 40 Па на 1-м участке;

hд.у = (4,02/0,4)2/(2 × rу) = (10,05)2/(2´0,72) = 70 Па в устье шахты;

rу = 4,02/[2,79/0,61 + (4,02 - 2,79)/1,2] = 0,72 кг/м3;

Р1 = 131 Па;

Р2 = 5,2 Па.

8. Подсос воздуха через закрытый дымовой клапан на 17-м этаже при Ру1 = 330 Па определяем по формуле (8)

Gк2 = 0,0112(0,35 × 330)0,5 = 0,12 кг/с.

9. Подсос воздуха в шахту через 16 закрытых клапанов и дыма через открытый клапан на 1-м этаже (Gд = 2,79 кг/с) определяем по формуле (9) (второе приближение принимается за окончательный результат)

Gу2 = (0,077 + 0,12) × 0,5 × 16 + 2,79 = 4,37 кг/с.

10. Для присоединения шахты к вентилятору принят воздуховод сечением 600´600 мм, длиной 7 м с двумя отводами. При этом потери давления составляют:

Рвс = 10,8 × 0,25 × 7 + 0,5 × 2 × 102 = 121 Па

при скоростном давлении в воздуховоде (4,37/0,36)2/(2 × 0,72) = 102 Па и Rтр = 0,25 кгс/м2.

11. Определяем потери давления системы на всасывании по формуле (10)

Ру2 = 330 + 121 = 451 Па.

12. Определяем подсосы воздуха через неплотности всасывающей части сети при разрежении перед вентилятором 451 Па по формуле (11)

Gп = 1,1(0,0021 × 2,6 × 2,8 × 16 + 0,00065 × 2,4 × 7) = 0,282 кг/с,

где 0,0021 кг/(с×м2) - по табл. 2 для шахты из бетона;

0,00065 кг/(с×м2) - по табл. 2 для стального воздуховода.

13. Общий расход смеси воздуха и дыма перед вентилятором по формуле (12)

Gсум = 4,37 + 0,282 = 4,65 кг/с.

14. Потери давления, на всасывании с учетом подсоса воздуха через неплотности воздуховодов определяем по формуле (13)

Рв = 451×[1 + (4,65/4,02)2] × 0,5 = 527 Па.

15. Плотность газов перед вентилятором рассчитываем по формуле (14)

rсум = 4,65/[2,79/0,61 + (4,65 - 2,79)/1,2] = 0,76 кг/м3.

Температура газов перед вентилятором по п. 1.16 равна:

Т = (353 - 273 × 0,76)/0,76 = 192 °С.

16. Для удаления газов наружу принимается радиальный вентилятор с положением кожуха 270°, соединенный диффузором с дымовой трубой длиной 5 м диаметром 710 мм (сечением 0,4 м2). Массовая скорость выхлопа газов через дымовую трубу Vr = 4,65/0,4 = 11,63 кг/(с×м2) и скоростное давление составит 11,632/(2 × 0,76) = 89 Па.

Потери давления на выхлопе по формуле (4) равны:

Pвых = 10,8 × 0,18 × 5 + 2,0 × 89 = 188 Па.

17. Суммарные потери давления в сети по формуле (15) равны:

Pcум = 527 + 188 = 715 Па.

18. Естественное давление газов при высоте дымовой шахты 45 м и трубы 5 м при удельном весе наружного воздуха в теплый период года gн = 3463/(273 + 27) = 11,54 Н/м3 и плотности удаляемого газа 0,76 кг/м3 определяем по формуле (16)

Рес = 45[11,54 - (0,76 + 0,61) × 4,95] + 5(11,54 - 0,76 × 9,81) = 234 Па.

19. Потери давления в системе с учетом естественного давления газов определяем по формуле (17)

Рвен = 715 - 234 = 481 Па.

20. Напор вентилятора по условным потерям давления определяем по формуле (18)

Русл = 1,2 × 481/0,76 = 760 Па.

21. Производительность вентилятора по формуле (19) равна:

Lв = 3600 × 4,65/0,76 = 22026 м3/ч.

Пример 2. Рассчитать противодымную защиту коридоров 20-этажного общественного здания в Москве.

Исходные данные:

Коридор длиной 30 м с двумя входами на лестничные клетки через двери высотой 2,2 м шириной 0,9 м. Высота этажа 3,6 м. Расчетная температура наружного воздуха в теплый период года 28,5 °С (параметры Б).

Решение:

1. Определяем расход дыма при пожаре по формуле (2) при одной открытой двери на лестничную клетку, считая, что выход из второй двери невозможен по условиям пожара. Коэффициент Кд = 1,0

Gд = 1,2 × 0,9 × 2,21,5 × 1,0 = 3,52 кг/с.

2. К установке на каждом этаже коридора под потолком принимаем дымовой клапан КПК-1 (прил. 3) размером 800´500 мм с проходным сечением 0,4 м2 и дымовую шахту из листовой стали 800´600 мм (dэкв = 685 мм).

Массовая скорость дыма в клапане на 1-м участке (клапан открыт) равна:

Vr = 3,52/0,4 = 8,8 кг/(с×м2),

массовая скорость дыма в шахте Vr = 3,52/0,48 = 7,33 кг/(с×м2).

3. Определяем потери давления в дымовом клапане на 1-м этаже по формуле (3)

Р1 = 2,5 × 8,82/(2 × 0,61) = 158,7 Па,

где x1 + x2 = 2,5.

4. Потери на трение на 1-м участке шахты из листовой стали при Кc = 1,0 и скоростном давлении hд1 = 7,332/(2 × 0,61) = 44 Па рассчитаны по табл. 1 и формуле (4)

Р2 = 10,8 × 0,1 × 1,0 × 3,6 = 3,9 Па,

где Sx = 0.

5. Определяем подсос воздуха через неплотности закрытого дымового клапана на 2-м этаже здания по формуле (5) при отрицательном давлении

Р1 + Р2 = 158,7 + 3,9 = 162,6 Па;

Gк1 = 0,0112(0,4 × 162,6)0,5 = 0,091 кг/с.

6. Расход газов в устье дымовой шахты в первом приближении определяем по расходу дыма и при равномерном подсосе воздуха через 19 закрытых дымовых клапанов по формуле (6)

Gу1 = 3,52 + 0,091(20 - 1) = 5,25 кг/с.

7. Потери давления в дымовой шахте, Па, при расходе газов в устье шахты Gу1, кг/с, определяем при среднем скоростном давлении в шахте по формуле (7)

Ру1 = 10,8 × 0,15 × 1,0 × 3,6 × 19 + 0,1 × 19 × 63 + 162,6 = 393 Па,

где Rтр = 0,15 кгс/м2 по табл. 1 при скоростном давлении 63 Па;

Кс = 1,0 по п. 1.5;

hд.ср = (hд.1 - hд.у)×0,5 = (44 + 82)×0,5 = 63 Па;

hд.1 = 44 Па;

hд.у = (5,25/0,48)2/(2rу) = 10,942/(2 × 0,73) = 82 Па;

rу = 5,25/[3,52/0,61 + (5,25 - 3,52)/1,2] = 0,73 кг/м3;

Р1 + Р2 = 162,6 Па.

8. Подсос воздуха через закрытый дымовой клапан на 20-м этаже при Ру1 = 393 Па определяем по формуле (8)

Gк2 = 0,0112(0,4 × 393)0,5 = 0,14 кг/с.

9. Подсос воздуха в шахту через 19 закрытых клапанов и дыма через открытый клапан на 1-м этаже Gд = 3,52 кг/с определяем по формуле (9)

Gу2 = (0,091 + 0,14) × 0,5 × (20 - 1) + 3,52 = 5,71 кг/с.

10. Для присоединения шахты к вентилятору принят воздуховод диаметром 800 мм, длиной 5 м с одним отводом под 90°. При этом потери давления по формуле (4) составят:

Рвс = 10,8 × 0,15 × 5 + 0,35 × 89 = 39 Па.

при скоростном давлении в воздуховоде (5,71/0,5)2/(2 × 0,73) = 89 Па и Rтр = 0,15 кгс/м2.

11. Определяем потери давления системы на всасывании по формуле (10)

Ру2 = 393 + 39 = 432 Па.

12. Определяем подсосы воздуха через неплотности всасывающей сети при разряжении перед вентилятором 432 Па по формуле (11)

Gп = 1,1(0,0006 × 2,8 × 3,6 × 19) + 0,0006 × 2,5 × 5 = 0,134 кг/с,

где 0,0006 кг/(с×м2) по табл. 2 для стального воздуховода.

13. Общий расход смеси воздуха и дыма перед вентилятором по формуле (12) равен:

Gсум = 5,71 + 0,134 = 5,84 кг/с.

14. Потери давления на всасывании с учетом подсоса воздуха через неплотности воздуховодов по формуле (13) равны:

Рв = 432[1 + (5,84/5,25)2] × 0,5 = 483 Па.

15. Плотность газов перед вентилятором по формуле (14) равна:

rсум = 5,84/[3,52/0,61 + (5,84 - 3,52)/1,2] = 0,76 кг/м3.

Температура газов перед вентилятором по п. 1.16 равна:

Т = (353 - 273 × 0,76)/0,76 = 191 °С.

16. Для удаления газов наружу принимается радиальный вентилятор с положением кожуха 270°, соединенный диффузором с дымовой трубой диаметром 800 мм длиной 5 м. Массовая скорость выброса газов через дымовую трубу Vr = 5,84/0,5 = 11,68 кг/(с×м2) и скоростное давление составит 11,682/(2 × 0,76) = 90 Па.

Потери давления на выхлопе по формуле (4)

Рвых = 10,8 × 0,15 × 5 + 2,0 × 90 = 188 Па.

17. Суммарные потери давления в сети по формуле (15) равны:

Рсум = 483 + 188 = 671 Па.

18. Естественное давление газов при высоте дымовой шахты 70 м и выхлопной трубы 5 м, при удельном весе наружного воздуха в теплый период года в Москве gн = 3463/(273 + 28,5) = 11,49 Н/м3 и плотности удаляемого газа 0,76 кг/м3 определяем по формуле (16)

Рес = 70[11,49 - (0,76 + 0,61)´4,95] + 5(11,49 - 0,76 × 9,81) = 350 Па.

19. Потери давления в системе с учетом естественного давления газов определяем по формуле (17)

Рвен = 671 - 350 = 321 Па.

20. Напор вентилятора по условным потерям давления по формуле (18) равен:

Рус = 1,2 × 321/0,76 = 507 Па.

21. Производительность вентилятора по формуле (19)

Lв = 3600 × 5,84/0,76 = 27663 м3/ч.

Дымовые клапаны рекомендуется выбирать по прил. 1 - 6.

2. ПРОТИВОДЫМНАЯ ЗАЩИТА ЛИФТОВЫХ ШАХТ, ЛЕСТНИЧНЫХ КЛЕТОК И ТАМБУР-ШЛЮЗОВ

2.1. Для защиты людей от дыма при пожаре следует, согласно п. 5.15 СНиП 2.04.05 проектировать подачу наружного воздуха:

а) в лифтовые шахты при отсутствии у выхода из них тамбур-шлюзов в зданиях с незадымляемыми лестничными клетками всех типов;

б) в незадымляемые лестничные клетки 2-го типа;

в) в тамбур-шлюзы при незадымляемых лестничных клетках 3-го типа;

г) в тамбур-шлюзы перед лифтами в подвальном этаже общественных, административно-бытовых и производственных зданий;

д) в тамбур-шлюзы перед лестницами в подвальных этажах с помещениями категории В.

2.2. При расчете противодымной зашиты согласно п. 5.17 СНиП 2.04.05 следует принимать:

а) температуру наружного воздуха и скорость ветра для холодного периода года (параметры Б); если скорость ветра в теплый период года больше, чем в холодный, расчеты должны быть проверены на теплый период года (параметры Б). Скорость ветра в холодный и теплый периоды года следует принимать не более 5 м/с; большие скорости допустимо принимать при обосновании;

б) направление ветра на фасад, противоположный эвакуационному выходу из здания;

в) избыточное давление в шахтах лифтов, в незадымляемых лестничных клетках 2-го типа и тамбур-шлюзах - по отношению к давлению наружного воздуха на наветренной стороне здания - не менее 20 Па;

г) давление на закрытые двери на путях эвакуации - не более 150 Па;

д) площадь одной большей створки при двустворчатых дверях;

е) кабины лифтов, находящиеся на нижнем этаже, с открытыми дверями.

2.3. Для противодымной защиты согласно п. 5.18 СНиП 2.04.05 следует предусматривать:

а) установку радиальных или осевых вентиляторов в отдельных помещениях от вентиляторов другого назначения с противопожарными перегородками, имеющими предел огнестойкости 0,75 ч. Допускается размещать вентиляторы на кровле и снаружи зданий, кроме районов с температурой наружного воздуха минус 40 °С и ниже (параметры Б) с ограждением для защиты от доступа посторонних лиц;

б) воздуховоды из негорючих материалов с пределом огнестойкости 0,5 ч;

в) установку обратного клапана у вентилятора;

г) приемные отверстия для наружного воздуха, размещаемые на расстоянии не менее 5 м от выбросов дыма.

2.4. Приточная противодымная вентиляция лестнично-лифтового узла «А».

Приточная противодымная вентиляция узла «А» проектируется для лифтовой шахты согласно п. 2.1,а настоящих Рекомендаций.

Люди эвакуируются из здания по лестничной клетке 1-го типа через наружную зону. Наружный воздух подается только в лифтовую шахту.

2.4.1. Давление воздуха в лифтовой шахте на 1-м этаже следует определять по формуле, Па.

Рш1 = Рвес = Рк1 = 0,7 × V2r + 20,                                      (20)

где Рвес = Рк1 - дано для других планировок;

V - расчетная скорость ветра для холодного периода года (параметры Б) по п. 2.2, а;

r - плотность наружного воздуха, кг/м3, при расчетной температуре наружного воздуха (параметры Б) по СНиП 2.04.05.

2.4.2. Расход наружного воздуха, кг/ч, подаваемого в лифтовую шахту, следует определять по формуле

Gш = Gш1 + [Gср - 5(tн + 25)](N - 1),                                     (21)

где Gш1 - расход наружного воздуха, кг/ч, при открытых дверях лифтовых шахт на первом этаже и открытой двери на выходе из здания.

При Z-образном тамбуре на входных дверях здания при ширине створки 0,6 м*:

_____________

* При ширине створки более 0,6 м расход воздуха следует умножить на 1,67В (В - ширина створки двери).

Gш1 = 2950 + 103(8,8Рш1 - 12)0,5 - при 2 лифтах;                         (22)

Gш1 = 4350 + 103(12,95Рш1 - 11,5)0,5 - при 3 лифтах;                     (23)

При прямом тамбуре и ширине створки дверей 0,6 м:

Gш1 = 1930 + 103(11Рш1 - 10)0,5 - при 2 лифтах;                          (24)

Gш1 = 3230 + 103(18,5Рш1 - 12)0,5 - при 3 лифтах;                          (25)

Gср - средний расход воздуха, кг/ч, поступающий в здание из лифтовых шахт на каждом этаже со 2-го по верхний

Gср = 1050 + 5,2Рш10,5 + 20(N - 1) + 30(n - 4);                            (26)

Рш1 - давление воздуха в шахте лифта на 1-м этаже, Па, по формуле (20);

N - число этажей в здании;

n - среднее число дверей на одном этаже для выхода в коридор.

2.4.3. Давление, создаваемое вентилятором, подающим воздух в лифтовую шахту, Па, определяется по формуле

Рвен.ш = DРс + Рш1 + Nh(gн - gш),                                            (27)

где DРс - потери давления в системе вентиляции от точки приема наружного воздуха до входа воздуха в лифтовую шахту, Па;

h - высота этажа в здании, м;

gн - gш - разность удельных весов наружного воздуха и воздуха в лифтовой шахте, Н/м3, принимается в зависимости от температуры наружного воздуха tн по табл. 3.

Таблица 3

Разность удельных весов воздуха, Н/м3, для лестничных клеток и лифтовых шахт

tн, °С

-45

-35

-25

-15

-10

-5

gн - gш

1,7

1,5

1,1

0,85

0,7

0,56

tш, °С

-16

-7,5

-4

-2,5

+4

+8

tш - температура воздуха в лестничной клетке и лифтовой шахте.

Пример 3. Планировка А. Определить расход наружного воздуха, подаваемого в лифтовые шахты 16-этажного жилого дома (рис. 1 и 2, а). В секции 2 лифта. На каждом этаже в коридор выходят 8 дверей. Расчетная температура воздуха минус 30 °С, скорость ветра 5 м/с, высота этажа 3 м, на выходе из здания прямой тамбур, ширина створки дверей 0,7 м.

Решение:

1. Определяем давление в лифтовой шахте на 1-м этаже по формуле (20)

Рш1 = 0,7 × 52 × 1,453 + 20 = 45,0 Па;

r = 353/(273 + tн) = 353/(273 - 30) = 1,453 кг/м3.

2. Находим расход наружного воздуха, выходящего через открытые двери лифтов и здания, по формуле (24)

Gш1 = [1930 + 103(11 × 45 - 10)0,5] × 1,67 × 0,7 = 28000 кг/ч.

3. Определяем средний расход воздуха на каждом этаже по формуле (26)

Gcр = 1050 + 5,2 × 450,5 + 20(16 - 1) + 30(8 - 4) = 1505 кг/ч.

4. Расход воздуха, подаваемого в лифтовые шахты, определяем по формуле (21)

Gш = 28000 + [1505 - 5(-30 + 25)](16 - 1) = 50950 кг/ч = 42458 м3/ч.

5. Определяем необходимое давление вентилятора для подачи наружного воздуха в лифтовые шахты по формуле (27)

Рвен = DРс + 45 + 16 × 3(1,5 + 1,1)0,5 = DРс + 107,4 Па.

2.5. Приточная противодымная вентиляция лестнично-лифтового узла «Б».

Приточную противодымную вентиляцию узла Б следует проектировать с подачей общего расхода наружного воздуха в лестничную клетку и лифтовую шахту.

2.5.1. Общий расход воздуха, кг/ч, подаваемый в незадымляемую лестничную клетку 2-го типа Gк и в лифтовую шахту Gш, следует определять по формуле

Gоб = Gк + Gш = Gср(N - 1) + Gдв + Gд,                                (28)

где Gср - средний расход наружного воздуха, выходящего через неплотности лифтовой шахты со 2-го по верхний этаж включительно, определяемый по рис. 3 в зависимости от давления в лифтовой шахте на 1-м этаже, Рш1, температуры наружного воздуха и этажности здания.

Gдв - расход воздуха, выходящего через открытую входную дверь из здания, кг/ ч, определяют по формулам:

при прямом тамбуре: Gдв = 2875АРвес0,5;                                                       (29)

при Z-образном тамбуре: Gдв = 2075АРвес0,5;                                                 (30)

Gд - расход дыма, кг/ч, удаляемого вытяжной противодымной вентиляцией из этажа пожара, определяемый по разделу 1 Рекомендаций;

А - площадь входных дверей в здание, м2;

Р - давление воздуха в вестибюле, находят по формуле (20), Па.

2.5.2. Разность давлений в лестничной клетке и лифтовой шахте DРк.ш. = Рк - Рш на уровне верхнего этажа зависит от принятого способа подачи воздуха в лестничную клетку и лифтовую шахту:

а) при подаче общего расхода воздуха в лестничную клетку, с отводом части его в лифтовую шахту, разность давлений рекомендуется принимать 60-150 Па (рис. 2, б, пример 4);

б) при независимой подаче воздуха в лестничную клетку и лифтовую шахту разность давлений DРк.ш рекомендуется принимать от 90 до минус 20 Па (рис. 2, в, пример 5).

2.5.3. Давление воздуха, Па, в лифтовой шахте на уровне 1-го этажа для однозонной лестничной клетки следует определять по формулам:

при 2-х лифтах: Рш1 = 2Рвес - 0,1DРк.ш;                                                   (31)

при 3-х лифтах: Рш1 = 1,56Рвес - 0,067DРк.ш;                                         (32)

при 4-х лифтах: Рш1 = 1,4Рвес - 0,053DРк.ш;                                           (33)

2.5.4. Расход воздуха, который необходим для создания подпора в лестничной клетке, Gк, кг/ч, определяется по рис. 4.

2.5.5. Расход воздуха для лифтовой шахты Gш, кг/ч, определяем по разности между общим расходом и расходом в лестничную клетку

Gш = Gоб - Gк.

2.5.6. Давление воздуха, Па, создаваемое вентилятором, подающим воздух в лестничную клетку 2-го типа, следует определять по формуле

Рвен.к = Рвен.ш + DРк.ш,                                              (34)

где Рвен.ш - определяется по формуле (27);

DРк.ш - по п. 2.5.2.

Пример 4. Планировка Б. 17-этажный жилой дом с незадымляемой лестничной клеткой 2-го типа. В секции дома 2 лифта и 4 квартиры на каждом этаже. Температура наружного воздуха -25 °С, скорость ветра в холодный период года 5 м/с (параметры Б). Воздух подается в лестничную клетку и из нее часть воздуха отводится в лифтовую шахту (рис. 1 и 2, б).

Решение:

1. Определяем давление воздуха в вестибюле по формуле (20)

Рвес = 0,7 × 52 × 1,423 + 20 = 45 Па.

2. По п. 2.5.2 принимаем разность давлений в лестничной клетке и лифтовой шахте DРк.ш = 100 Па.

3. По формуле (31) определяем давление воздуха на 1-м этаже в лифтовой шахте

Рш1 = 2 × 45 - 0,1 × 100 = 80 Па.

По рис. 3,б при Рш1 = 80 Па, tн = -25 °С и 4 квартирах на этаже находим средний расход воздуха через неплотности лифтовой шахты и закрытые двери лифтов Gcр = 1430 кг/ч.

4. По формуле (30) при Z-образном тамбуре с дверями площадью А = 1 × 2,2 = 2,2 м2 определяем расход воздуха через открытую входную дверь здания

Gдв = 2075 × 2,2 × 450,5 = 30623 кг/ч.

5. По формуле (28) находим общий расход воздуха, подаваемого в лестничную клетку:

Gоб = 1430(17 - 1) + 30623 + 10044 = 63547 кг/ч.

Расход воздуха, компенсирующий расход дыма на этаже пожара, принимаем по примеру 1 раздела 1 Рекомендаций: Gд = 10044 кг/ч.

6. По рис. 4, б при Рш1 = 80 Па и DРк.ш = 100 Па находим расход наружного воздуха, необходимый для создания подпора в лестничной клетке

Gк = 24500 кг/ч = 20417 м3/ч.

Расход воздуха, который необходимо пропустить из лестничной клетки в лифтовую шахту, определяем по разности полученных расходов

Gш = 63547 - 24500 = 39047 кг/ч = 32539 м3/ч.

7. Давление, создаваемое вентилятором для подачи воздуха в лестничную клетку, определяем по формуле (34) с учетом потери давления в воздуховодах DРс.

Рвен.к = 80 + 17 × 3,0 × 1,1 + 100 + DРс = 236 + DРс.

Вентилятор следует выбирать по аэродинамической характеристике при стандартной температуре транспортируемого воздуха 20 °С и r = 1,2 кг/м3.

Пример 5. Планировка Б. Рассчитать приточную противодымную вентиляцию с независимой подачей наружного воздуха в лестничную клетку и лифтовую шахту по условиям примера 4 (рис. 1 и 2, в).

Решение:

1. При Рвес = 45 Па и принятой согласно п. 2.5.2, разности давлений DРк.ш = 40 Па определяем по формуле (31) Рш1 = 2 × 45 - 0,1 × 40 = 86 Па.

2. По рис. 3, б при tн = -25 °С и 4 дверях (квартирах) на каждом этаже находим Gср = 1470 кг/ч.

3. Определяем суммарный расход воздуха по формуле (28), см. п. 5 примера 4

Gоб = 1470 × (17 - 1) + 30623 + 10044 = 64187 кг/ч

4. По рис. 4, б при Рш1 = 86 Па и DРк.ш = 40 Па находим расход воздуха в лестничную клетку Gк = 17500 кг/ч = 14583 м3/ч.

5. Расход воздуха, который необходимо подать непосредственно в лифтовую шахту, равен:

Gш = 64187 - 17500 = 46687 кг/ч = 38906 м3/ч.

6. Давление, создаваемое вентилятором, подающим воздух в лифтовую шахту, определяем по формулам (27) и (31), Па

Рвен.ш = 86 + 17 × 3,0 × 1,1 + Рс = 142 + Рс.

7. Полное давление вентилятора, подающего воздух в лестничную клетку, определяем по формуле (34), Па

Рвен.к = 142 + 40 + Рс = 182 + Рс.

2.6. Приточная противодымная вентиляция лестнично-лифтового узла В.

Приточная противодымная вентиляция узла В с отдельными выходами из коридора на лестничную клетку и лифтовой холл проектируется с раздельной подачей наружного воздуха в лестничную клетку и лифтовую шахту.

2.6.1. Давление воздуха Рш1, Па, в лифтовой шахте на первом этаже в зданиях 11 этажей и более определяем по формулам:

при 2-х лифтах: Рш1 = 25 + 1,9Рвес - 0,22DРк.ш;                                                   (35)

при 3-х лифтах: Рш1 = 15 + 1,7Рвес - 0,2DРк.ш;                                                     (36)

при 4-х лифтах: Рш1 = 5 + 1,4Рвес - 0,18DРк.ш;                                                     (37)

где Рвес - давление в вестибюле по формуле (20);

DРк.ш = Рк - Рш - по п. 2.5.2 при соблюдении максимальной разности давлений, указанной в табл. 4.

Таблица 4

Максимальная разность давлений DРк.ш для планировки В

Число этажей в здании

Число лифтов

Число дверей на этаже

к-ш "Р" Давлении воздуха в вестибюле Р, Па

20

40

60

80

100

120

10-14

2

2

8

16

152

128

133

100

110

70

95

40

75

12

57

-17

15-20

2

3

8

16

140

105

125

90

110

70

95

50

68

30

40

10

21-27

4

8

123

110

98

85

72

59

Полное давление вентилятора, подающего воздух в лифтовые шахты, определяется по формуле (27), а для вентилятора, подающего воздух в лестничную клетку, - по формуле (34). Общий расход воздуха Gоб, кг/ч, подаваемый в незадымляемую лестничную клетку 2-го типа и в лифтовые шахты, определяется по формуле (28). Gср определяется по рис. 5 в зависимости от давления в лифтовой шахте на первом этаже Рш1. При этом расход воздуха для подачи в лестничную клетку определяется по рис. 6, в лифтовую шахту - по разности между общим расходом и расходом в лестничную клетку

Gш = Gоб - Gл.

2.6.2. В том случае когда лестничная клетка разделена на две зоны с внутренним переходом между зонами, расчет подпора в лестничную клетку и лифтовую шахту рекомендуется выполнять нижеследующим методом. Давление в лифтовой шахте на первом этаже определяется по формуле, Па

Рш1 = А + ВРвес - СDРк.ш,                                              (38)

где А, В, С - коэффициенты по табл. 5;

Рвес - давление воздуха в вестибюле по формуле (20);

DРк.ш - разность давлений между лестничной клеткой и лифтовой шахтой на уровне верхнего этажа лестничной клетки или «рассечки» (рис. 2 г, д, е, ж)

DРк.ш = Рк.нз.в - Рш.нз.в;                                                     (39)

При числе этажей в нижней зоне лестничной клетки более 10 разность давлений DРк.ш не должна превышать предельные значения, указанные в табл. 4.

Таблица 5

Коэффициенты для определения давления Рш, Па, при планировке В

Число этажей в зоне

Коэффициенты А, В, С в формуле (19) при числе лифтов

2

3

4

А

В

С

А

В

С

А

В

С

5

10,0

1,6

0,6

7,5

1,52

0,65

5

1,44

0,7

7

12,5

1,72

0,47

8,5

1,58

0,5

5

1,44

0,52

9

15,0

1,84

0,33

10,0

1,64

0,35

5

1,44

0,35

11 и более

25,0

1,9

0,22

15,0

1,7

0,2

5

1,44

0,18

Общий расход воздуха, поступающий в лестничную клетку и лифтовую шахту нижней зоны здания, определяется по формуле (28).

Средний расход Gср на каждом этаже со второго по верхний для нижней зоны здания определяется по табл. 6.

Таблица 6

Средний расход воздуха на каждый этаж нижней зоны здания со второго по верхний Gср, кг/ч, при планировке В

DРк.ш, Па, на «уровне рассечки»

Значение Gср, кг/ч, при Рш1, Па

30

60

90

120

150

180

150

1910

2165

2400

2640

2900

3140

45

1890

2100

2330

2580

2720

2920

25

1820

2070

2300

2560

2700

2900

-20

1560

1800

2070

2320

2570

1860

Расход воздуха для подачи в нижнюю зону лестничной клетки Gк.нз, кг/ч, определяется по рис. 7. Для подачи в лифтовую шахту Gш.нз кг/ч, - по формуле

Gш.нз = Gоб - Gк.нз.                                                   (40)

Давление воздуха в верхней части нижней зоны лестничной клетки («уровень рассечки») определяется по формуле

Рк.нз.в = Рш1 + DРк.ш – Nзh(gн - gш),                                        (41)

где Рш1 - по формуле (38);

DРк.ш - по п. 2.5.2, б;

Nзh - число этажей в зоне и высота этажа;

gн - gш - разность удельных весов наружного и внутреннего воздуха, принимается по табл. 3.

Давление воздуха в верхней части верхней зоны лестничной клетки определяют по формуле

Рк.вз.в = Рк.нз.в - 0,03Рш1 + 1(Nз - 5).                                       (42)

По давлению Рк.вз.в и давлению в лифтовой шахте Рш1, рассчитанному по формуле (38), определяют расход воздуха для верхней зоны лестничной клетки, кг/ч, по формуле

Gк.вз = 11500 + 44/Рк.вз.в - 21(Рш1 - 235) + 1060(Nз - 5).                (43)

По рис. 8 определяют средний расход воздуха Gcр.вз, кг/ч на каждый этаж верхней зоны здания.

Расход воздуха для верхней зоны лифтовой шахты определяют по формуле

Gш.вз = Gcр.взNз + Gд - Gк.вз.                                             (44)

Общий расход воздуха, подаваемый в лифтовые шахты, определяют по формуле

Gш = Gш.нз + Gш.вз.                                                      (45)

Общий расход воздуха, подаваемого в лестничную клетку, определяют по формуле

Gк = Gк.нз + Gк.вз.                                                        (46)

Полное давление вентилятора, Па, определяют по формулам:

а) для шахт лифтов

Рвен. = DРс + Рш1 + Nh(gн - gш);                                         (47)

б) для верхней зоны лестничной клетки

Рвен. = DРс + Рк.вз + Nh2(gн - gш);                                      (48)

в) для нижней зоны лестничной клетки

Рвен. = DРс + Рк.нз + Nзh2(gн - gш);                                     (49)

где DРс - потери в сети воздуховодов обвязки вентилятора, Па;

N - число этажей в здании;

Nз - число этажей в нижней зоне здания;

Н - высота этажа, м;

gн - gш - разность удельных весов наружного и внутреннего воздуха, Н/м3, определяется по табл. 3;

Рш1 - давление воздуха в лифтовой шахте на 1-м этаже, Па.

Расчет приточной противодымной вентиляции лестнично-лифтового узла Г аналогичен расчету узла В.

Пример 6. Планировка В. Рассчитать подачу воздуха в лестничную клетку и лифтовую шахту 18-этажного административного здания.

Лестничная клетка имеет рассечку между девятым и десятым этажами с внутренним переходом из одной зоны в другую, рис. 2, г - 2, ж.

В здании 3 лифта, число дверей на этаже - 16, высота этажа 3,3 м. Расход дыма, удаляемого из этажа пожара, Сд = 10000 кг/ч. Климатические характеристики местности: tн = -25 °С, скорость ветра 5 м/с.

Решение:

1. Находим давление в вестибюле по формуле (20)

Рвес = 0,7 × 52 × 1,423 + 20 = 45 Па.

2. Расход воздуха через входную дверь площадью 2,2 м2 при Z-образном тамбуре определяем по формуле (30)

Gдв = 2075 × 2,2 × 450,5 = 30623 кг/ч.

3. Принимаем разность давлений между лестничной клеткой и лифтовой шахтой на уровне рассечки: DРк.ш = 40 Па и по формуле (38) и табл. 6 определяем давление в лифтовой шахте на 1-м этаже

Рш1 = 10 + 1,64 × 45 - 0,35 × 40 = 70 Па.

4. По давлению в лифтовой шахте на 1-м этаже Рш1 = 70 Па и разности давлений с лестничной клеткой на уровне рассечки DРк.ш = 40 Па по табл. 6 находим средний расход воздуха на каждый этаж нижней зоны здания со 2-го по 9-й этаж: Gср = 2160 кг/ч.

5. Общий расход воздуха для нижней зоны здания определяем по формуле (28)

Gсум = 2160(9 - 1) + 30623 + 10000 = 57900 кг/ч.

6. По рис. 7 определяем расход воздуха, который нужно подать в нижнюю часть лестничной клетки до рассечки, при разности давлении Рк.ш = 40 Па и давлении в шахте Рш1=70 Па путем интерполяции для Nз = 9 находим Gк.нз = 21000 кг/ч.

7. Давление воздуха в верхней части нижней зоны лестничной клетки «уровень рассечки» определяем по формуле (41)

Рк.нз.в = 70 + 40 - 9 × 3,3 × 1,1 = 77 Па.

8. Расход воздуха, который должен поступить в здание через нижнюю часть лифтовой шахты, определяем по формуле (40)

Gш.нз. = Gсум - Gк.н.з = 57900 - 21000 = 36900 кг/ч.

9. Находим давление в верхней части верхней зоны лестничной клетки по формуле (42)

Рк.вз.в. = 77 - 0,03 × 70 + (9 - 5) = 80 Па.

10. По формуле (43) находим расход воздуха в верхнюю зону лестничной клетки

Gк.вз = 11500 + 44 × 80 - 21(70 - 235) + 1060(9 - 5) = 22725 кг/ч.

11. По рис. 8 определяем средний расход воздуха на каждый этаж верхней зоны здания, при давлении в лифтовой шахте Рш1 = 70 и давлении Рк.вз.в. = 80 Па Gср = 2700 кг/ч.

12. По формуле (44) определяем расход воздуха для верхней зоны лифтовой шахты

Gш.вз. = 2700 × 9 + 10000 - 22725 = 11575 кг/ч.

13. Общий расход воздуха, подаваемый в здание через лифтовые шахты, определяем по формуле (45)

Gш = 36900 + 11575 = 48475 кг/ч = 40396 м3/ч.

14. Общий расход воздуха, подаваемого в лестничную клетку, находим по формуле (46)

Gк = 21000 + 22725 = 43725 кг/ч = 36436 м3/ч.

15. Полное давление воздуха, которое должен обеспечить вентилятор:

а) для шахты лифтов

Рвен = DРс + 70 + 18 × 3,3 × 1,1 = DРс + 135 Па;

б) для верхней зоны лестничной клетки

Рвен = DРс + 80 + 18 × 3,3 × 2 × 1,1 = DРс + 211 Па;

в) для нижней зоны лестничной клетки

Рвен = DРс + 77 + 9 × 3,3 × 2 × 1,1 = DРс + 142 Па;

2.7. Противодымная защита тамбур-шлюзов.

2.7.1. Приточный воздух подается в тамбур-шлюзы при входе в незадымляемую лестничную клетку 3-го типа.

2.7.2. Расход наружного воздуха в тамбур-шлюз лестничной клетки 3-го типа на этаже пожара следует определять из расчета подачи 4700 м3/ч или 5640 кг/ч на 1 м2 площади открытой створки двери тамбур-шлюза.

2.7.3. Расход наружного воздуха, кг/ч, в тамбур-шлюзы закрытыми дверями остальных этажей следует рассчитывать по формуле

G = 3157 × Ащ(20 + 0,7V2 × r)0,5(N - 1),                                   (50)

где Ащ - площадь, м2, неплотностей и щелей в притворах дверей тамбур-шлюзов, м2;

V - скорость ветра, м/с, наружного воздуха в холодный период года при параметрах Б, но не более 5 м/с;

r - плотность наружного воздуха, кг/м3, в холодный период года при параметрах Б;

N - число этажей лестничной клетки.

2.7.4. Следует рассчитать расход воздуха через неплотности закрытых клапанов на всех этажах здания, кроме этажа пожара, по формуле (5) раздела 1 Рекомендаций при среднем избыточном давлении в подающем воздуховоде и через неплотности воздуховодов по табл. 2. Если расход воздуха через неплотности закрытых клапанов меньше требуемого для тамбур-шлюзов по формуле (50), то его следует обеспечить неполным закрытием клапанов или другими способами при наладке системы.

Подачу наружного воздуха во время пожара в тамбур-шлюзы перед лестничными клетками 3-го типа рекомендуется предусматривать от специального вентилятора, нагнетающего воздух в вертикальную шахту с установленными на каждом этаже автоматическими клапанами, открываемыми по сигналу дымового датчика, размещенного в коридоре. В качестве приточного клапана рекомендуется использовать дымовой клапан.

Производительность приточной системы, м3/ч, лестничной клетки 3-го типа определяется как сумма расхода воздуха, подаваемого в тамбур-шлюз на этаже пожара, расхода воздуха в остальные тамбур-шлюзы с закрытыми клапанами по формуле (50) и утечки воздуха через неплотности воздуховодов.

2.7.5. Приток наружного воздуха в тамбур-шлюз перед лестницей в подвальном помещении категории В следует рассчитывать при одной открытой двери из тамбур-шлюза в подвальный этаж при расходе воздуха 4700 м3/ч на 1 м2 площади двери.

2.7.6. Расход наружного воздуха в тамбур-шлюз перед лифтовой шахтой в подвальных этажах следует рассчитывать при закрытых дверях по формуле (50).

Пример 7. Определить расход воздуха для подачи в тамбур-шлюз (двери закрыты), расположенный перед лифтовой шахтой в подвальном этаже.

Тамбур-шлюз имеет на входе дверь размером 1´2 = 2 м2 и дверь в лифтовую шахту размером 0,8´2 = 1,6 м2. Притворы имеют щели шириной 2 мм, общей площадью [(1 + 2)2 + (0,8 + 2)2]0,002 = 0,0232 м2. Расчетная температура воздуха –25 °С, плотность воздуха 353/273 - 25 = 1,423 кг/м3. Скорость ветра 5 м/с.

Расход определяем по формуле (50)

G = 3157 × 0,0232 × (20 + 0,7 × 52 × 1,423)0,5/1,2 = 409 м3/ч.

Untitled-1

Рис. 1. Планировки А, Б, В и Г лестнично-лифтовых узлов

1 - лестница в незадымляемой лестничной клетке 1-го типа с переходом через наружную зону; 2 - лестница в незадымляемой лестничной клетке 2-го типа; 3 - лифтовой холл; 4 - коридор; 5 - принимаемая в расчет открытая дверь на этаже пожара; 6 - шахта дымоудаления; 7 - дверь, закрытая при пожаре; 8 - типовой этаж; 9 - первый этаж; 10 - лифтовая шахта; 11 - лифт; 12 - дверь для выхода из здания

Untitled-1

Untitled-1

Рис. 2. Принципиальные схемы подачи наружного воздуха в незадымляемые лестничные клетки 2-го типа и лифтовые шахты

а - в лифтовую шахту при незадымляемой лестничной клетке 1-го типа; б - в незадымляемую лестничную клетку 2-го типа, с пропуском части воздуха в лифтовую шахту; в - в незадымляемую лестничную клетку и лифтовую шахту отдельными системами; г, д, е, ж - в незадымляемые лестничные клетки 2-го типа с рассечками; 1 - лифтовая шахта; 2 - лестничная клетка; 3 - вентилятор; 4 - вентиляционный канал; 5 - рассечка; 6 - вестибюль

Untitled-1

Рис. 3. Средний расход воздуха Gср, кг/ч, на каждый этаж со 2-го по верхний в зависимости от давления воздуха в лифтовой шахте на 1-м этаже Рш1, Па, числа дверей на этаже и температуры наружного воздуха в холодный период года (параметры Б) для 1 - 14-этажного (а), для 15 - 20-этажного (б) и 21 - 27-этажного (в) здания

Номер кривой

1

2

3

4

5

6

7

8

9

Для рис. 3,а и 3

Число дверей

16

8

4

Температура, °С

-45

-25

-5

-45

-25

-5

-45

-25

-5

Номер кривой

10

11

12

13

14

15

Для рис. 3

Число дверей

8

4

Температура, °С

-45

-25

-5

-45

-25

-5

Untitled-1

Untitled-1

Untitled-1

Рис. 4. Планировка Б. Расход воздуха Gк, кг/ч, для незадымляемой лестничной клетки 2-го типа в зависимости от разности давлений между лестничной клеткой и лифтовой шахтой DРк.ш, Па, на верхнем этаже и от давления в лифтовой шахте на 1-м этаже Рш1, Па

Число

Номер кривой, соответствующий давлению в лифтовой шахте на 1-м этаже Рш1, Па

этажей

лифтов

1

2

3

4

5

6

7

8

9

10

11

12

13

14

15

10 - 14, рис. 4, а

2

240

180

120

60

3

180

130

80

30

15 - 20, рис. 4, б

2

240

180

120

60

3

180

130

80

30

21 - 27, рис. 4, в

3

190

140

90

40

4

140

80

20

Untitled-1

Рис. 5. Планировка В. Средний расход воздуха Gср, кг/ч, на каждый этаж со 2-го по верхний в зависимости от DРк.ш и Рш1, Па

Число

Кривые разности давлений Дщ в зависимости от давления в лифтовой шахте на 1-м этаже Р, Па

этажей

дверей

1

2

3

4

5

6

7

8

9

10

11

12

13

14

15

10 - 14

16

150

40

-20

Пример Рш1 = 70 Па, G = 2000 кг/ч; DРк.ш = 40 Па

8

150

40

-20

15 - 20

16

150

40

-20

8

150

40

-20

21 - 25

16 - 8

150

40

-20

Untitled-1

Рис. 6. Планировка В. Расход воздуха Gк, кг/ч, в лестничную клетку 2-го типа в зависимости от разности давлений DРк.ш на уровне верхнего этажа и давления в лифтовой шахте на 1-м этаже Рш1, Па

Число

Номер кривой, соответствующий давлению в лифтовой шахте на 1-м этаже Рш1, Па

этажей

лифтов

дверей

1

2

3

4

5

6

7

8

9

10

11

12

13

10 - 14

2

8

190

30

110

2

16

190

30

110

15 - 20

2

8

250

150

60

3

16

160

20

21 - 27

2

8

164

24

Untitled-1

Рис. 7. Планировка В. Расход наружного воздуха Gк.нз, кг/ч, в нижнюю зону лестничной клетки 2-го типа при Рш1, равном 1 - 190 Па; 2 - 110 Па; 5 - 30 Па; 4 - предельный расход воздуха при 7 этажах в зоне; 5 - то же, при 11 этажах в зоне с внутренним переходом между зонами; 7 - число этажей

Untitled-1

Рис. 8. Планировка В. Средний расход наружного воздуха, кг/ч, для верхней зоны здания из 5 или 13 этажей с внутренним переходом в нижнюю зону в зависимости от давления воздуха в лифтовой шахте на 1-м этаже Рш1 и давления в верхней зоне на верхнем этаже Рк.вз.в, равном для кривой 1 - 220, 2 - 180, 3 - 150, 4 - 90 и 5 - 60 Па

ПРИЛОЖЕНИЕ 1

ОСНОВНЫЕ ТЕХНИЧЕСКИЕ ДАННЫЕ ПРОТИВОПОЖАРНЫХ ДЫМОВЫХ КЛАПАНОВ

№ п. п.

Параметр

КДМ-2

КЛК-1

КПВС-1

КПД-4

КПУ-1М

1

Предел огнестойкости, мин, не менее

60

90

60

60

60

2

Приведенное сопротивление дымогазопроницанию при температуре 20 °С в закрытом положении клапана кг-1×м-1, не менее

8000/Fкл

3

Инерционность срабатывания, с, не более

2

30

60

2

20

4

Номинальное напряжение переменного тока частотой 50 Гц, В

220

5

Потребляемая мощность, Вт

100

15

25

19

8

6

Масса клапана в зависимости от типоразмерного ряда, кг

не менее

13

4

4

-

6

не более

17

100

80

10

72

Эксплуатация указанных клапанов должна осуществляться в закрытых помещениях, кроме помещений категорий А и Б по пожаровзрывоопасности.

Все вышеуказанные дымовые клапаны прошли испытания во ВНИИПО МВД России, на основании которых выданы сертификаты соответствия и пожарной безопасности, а также лицензии на право использования знака соответствия пожарной безопасности.

ПРИЛОЖЕНИЕ 2

КЛАПАН ДЫМОВОЙ КДМ-2

ЗАО «ВИНГС-М»

143900, Московская обл., г. Балашиха-3, а/я 7,
тел/факсы (095)529-76-39, 521-32-56, 523-05-49

ТУ 4854-003-11758775-94

Схема конструкции клапана КДМ-2

1 - корпус клапана; 2 - заслонка; 3 - электромагнит; 4 - сердечник электромагнита; 5 - регулируемая скоба; 6 - ось поворота заслонки; 7 - пружина; 8 - уплотнитель; 9 - концевой выключатель; 10 - штырь; 11 - кронштейн; 12 - резиновый амортизатор

В миллиметрах

Ширина

Высота

Длина

Проходное сечение, м2

550

440

165

0,3

700

500

165

0,2

Клапан оснащен автоматически и дистанционно управляемым электромагнитным или электромеханическим приводом. По заявке Заказчика поставляются декоративные решетки, а также изготовляются клапаны других установочных размеров (минимальный размер 350´300 мм, более 800´600 мм - в сборке кассетного типа).

Электрическая схема подключения клапана КДМ-2 с электромагнитным приводом

ЭМП - электромагнитный привод; ЭМ - электромагнит; КВ - концевой выключатель; Л1, Л2 - лампы световой сигнализации; Т - тумблер включения/выключения электропитания; РВ, КРВ - реле времени, контакт реле времени; ППК - прибор приемно-контрольный

Электрическая схема подключения клапана КДМ-2 с приводом «Веlimо»

ЭМП - электромеханический привод «Веlimо»; М - электродвигатель; Л1, Л2, Л3 - лампы световой сигнализации; Т - тумблер включения/выключения электропитания; Р, КР - реле, контакт реле; ППК - прибор приемно-контрольный

ПРИЛОЖЕНИЕ 3

КЛАПАН ДЫМОВОЙ КПК-1

ТОО «ВИНГС»

141080, Московская обл., г. Юбилейный, МКРН 3, а/я 13,
тел/факс (095)515-07-91

ТУ 4854-84-015-11758775-99

Конструктивная схема клапана КПК-1

Стеновой дымовой клапан

1 - механизм привода; 2 - заслонка; 3 - корпус; 4 - термовспучивающийся уплотнитель; 5 - решетка

Типоразмерный ряд внутренних и установочных размеров поперечного сечения клапанов КПК-1

№ п. п.

Условное обозначение клапана КПК-1

Типоразмерный ряд внутренних размеров поперечного сечения клапана (А´В´L), мм

Типоразмерный ряд условных установочных размеров клапана дымоудаления (D´C´L), мм

1

КПК-1.010.01

150´150´230

270´270´230

2

КПК-1.010.02

200´200´230

320´320´230

3

КПК-1.010.03

250´250´230

370´370´230

4

КПК-1.010.04

300´300´230

420´420´230

5

КПК-1.010.05

400´400´230

520´520´230

6

КПК-1.010.06

500´500´230

620´620´230

7

КПК-1.010.07

600´600´230

720´720´230

8

КПК-1.010.08

800´800´230

920´920´230

9

КПК-1.010.09

1000´1000´230

1120´1120´230

10

КПК-1.010.10

1200´1200´230

1320´1320´230

11

КПК-1.010.11

1500´1500´230

1620´1620´230

12

КПК-1.010.12

2000´2000´230

2120´2120´230

13

КПК-1.010.13

500´700´230

620´820´230

По специальным заказам изготовляются клапаны с промежуточными значениями размеров поперечного сечения, указанных в типоразмерном ряде с шагом 50 мм. Клапан оснащен автоматически и дистанционно управляемым электроприводом, который устанавливается по заказу внутри или снаружи корпуса. Заказ клапана производится по формуле

КПК-1.010                      хх хх х

С d e

где С - указатель размера клапана по таблице типоразмерного ряда; d - указатель типа привода (ЭМ - электромагнитный привод, ЭП - электромеханический привод); е - указатель назначения (Д - дымовой, О - огнезадерживающий). По заказу комплектуется декоративной решеткой.

Принципиальная электросхема клапана КПК-1

Untitled-1

ПРИЛОЖЕНИЕ 4

КЛАПАН ДЫМОВОЙ КПВС-1.Д

ОТКРЫТОЕ АКЦИОНЕРНОБ ОБЩЕСТВО
«ВОЗДУХОТЕХНИКА»

121471, Москва, ул. Рябиновая, 40, тел. 447-01-11, факс 448-53-01

ТУ 4863-182-04612941-98                                                          Чертеж: РК-293

РК-294

Untitled-1

Код

Обозначение

Сечение, мм

Длина, мм

Количество створок, шт.

Масса, кг

5КЛАС02930Ц

РК-293

150´150

200

1

5,1

5КЛАС02931Ц

-01

200´200

6,4

5КЛАС02932Ц

-02

250´250

7,6

5КЛАС02933Ц

-03

300´300

8,8

5КЛАС02934Ц

-04

350´350

10,2

5КЛАС02940Ц

РК-294

400´400

180

2

14,8

5КЛАС02941Ц

-01

500´500

19,1

5КЛАС02942Ц

-02

600´600

23,6

5КЛАС02943Ц

-03

800´800

220

35,0

5КЛАС02944Ц

-04

1000´1000

280

49,7

Клапан оснащен автоматически и дистанционно управляемым электромеханическим приводом. По специальным заказам клапаны изготовляются с промежуточными значениями размеров сечения с шагом 50 мм в пределах от 150 до 1000 мм. Заказ клапана производится по формуле

КЛВС-1У(А´В),

где У - указатель назначения (Д - дымовой, О - огнезадерживающий); А´В - поперечное сечение клапана.

Электросхема клапана КПВС-1

Untitled-1

КВ1, КВ2 - концевые выключатели; КД1, КД2 - кнопки дистанционного управления; Р - блок реле с нормально разомкнутыми контактами Р1 и Р2; ЭП - электродвигатель привода; Л1, Л2 - световые индикаторы

ПРИЛОЖЕНИЕ 5

КЛАПАН ДЫМОВОЙ КПД-4

000 «ВЕЗА»

105203, Москва, ул. 16-я Парковая, д. 5,
тел/факс 461-60-33, 461-25-14, 461-14-41

ТУ 4863-020-40149153-99

Untitled-1

1 - корпус; 2 - лопатка; 3 - электромагнит; 4 - конечный переключатель

Ширина b

Высота h

Длина l

500

500

160

700

500

160

500

700

160

Клапаны сохраняют работоспособность при вертикальной установке и расположении электромагнита сверху. Клапан оснащен автоматически и дистанционно управляемым электромагнитным приводом. По заказу комплектуется декоративной решеткой. Заказ клапана производится по формуле

КПД-4-А´В-С-Н-Р,

где А´В - поперечное сечение клапана; С - вариант «А» с двумя фланцами, вариант «Б» с одним фланцем; Н - номинальное напряжение 24 или 220 В; Р - при комплектации решеткой.

Электрические схемы подключения клапана КПД-4 с электромагнитом

Untitled-1

ЭМ - электромагнит, РК1 - контакт блока автоматического пожаротушения (в комплект поставки не входит); РК2 - контакт реле времени (в комплект поставки не входит); КН - кнопка дистанционного открытия клапана (в комплект поставки не входит); РК3 - контакты концевого переключателя для сигнализации положения лопатки клапана («закрыто» - «открыто»); Л1, Л2 - лампы сигнализации положения лопатки клапана (в комплект поставки не входят)

ПРИЛОЖЕНИЕ 6

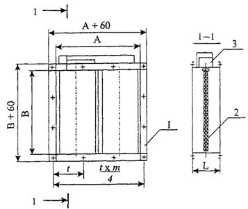
КЛАПАН ДЫМОВОЙ КПУ-1М

ТУ 4863-031-40149153-99

ООО «ВЕЗА»

105203, Москва, ул. 16-я Парковая, д. 5
тел./факс 491-60-33, 461-25-14, 461-14-41

Untitled-1

1 - корпус; 2 - лопатка; 3 - исполнительное устройство

Размеры, мм

Кол-во лопаток, шт.

Масса, кг

А

В

t

m

L

100

100

130,0

4

300

1

6,0

150

150

180,0

4

300

1

7,0

200

200

230,0

4

300

1

8,0

250

250

140,0

8

300

1

9,5

300

300

165,0

8

300

1

11,0

400

400

143,3

12

300

2

15,0

500

500

132,5

16

300

2

19,0

600

600

157,5

16

300

2

24,0

800

800

166,0

20

300

4

35,0

1000

1000

171,6

24

300

4

47,5

1200

1200

205,0

28

300

6

71,5

Клапан оснащен автоматически и дистанционно управляемым электромагнитным или электромеханическим приводом. По заявке Заказчика поставляется декоративно ограждающая сетка, монтажная рама для крепления клапана к строительной конструкции.

При заказе клапанов следует указать: клапан дымовой КПУ-1М, размер А´В, тип привода, напряжение питания 24 или 220 В.

Электрические схемы подключения исполнительных устройств клапана КПУ-1М

а) электропривод фирмы «Белимо»

Электродвигатель LF-230-S (LF-24-S)

Для LF 230-S: при отключении привода от сети контакты переключателя должны раскрыться не менее чем на 3 мм.

Для LF 24-S: подсоединение через трансформатор.

Электродвигатель

ВF-230 (ВF-24) - до 18 Нм;

NF-230-S - до 8 Нм

 

 

АF 230-S - до 15 Нм

 

 

(АF 24-8)

Контактная группа

Untitled-1

б) электромагнитный привод

ЭМ - электромагнит

РК1 - контакт блока автоматического пожаротушения (в комплект поставки не входит)

РК2 - контакт реле времени (в комплект поставки не входит)

РК3 - контакты концевого переключателя для сигнализации положения лопатки клапана («закрыто» - «открыто»)

КН - кнопка дистанционного открытия клапана (в комплект поставки не входит)

Л1; Л2 - лампы сигнализации положения лопатки клапана (в комплект поставки не входят)

ЛИТЕРАТУРА

1. Справочник проектировщика. Внутренние санитарно-технические устройства. Часть 3. Вентиляция и кондиционирование воздуха. Книга 2. - М.: Стройиздат, 1992.

2. СНиП 2.04.05-91*. Отопление, вентиляция и кондиционирование.

3. СНиП 2.08.01-89*. Жилые здания.

4. СНиП 2.08.02-89*. Общественные здания и сооружения.

5. СНиП 2.09.02-85*. Производственные здания.

6. СНиП 2.09.04-87*. Административные и бытовые здания.

7. СНиП 2.11.01-85*. Складские здания.

8. СНиП 21-01-97*. Пожарная безопасность зданий и сооружений.

9. МГСН 4.04-94. Многофункциональные здания и комплексы.



© 2013 Ёшкин Кот :-)