Информационная система
«Ёшкин Кот»

XXXecatmenu

Таблица 18

ПРИМЕРЫ ПЛАНИРОВОЧНЫХ РЕШЕНИЙ САНИТАРНО-ГИГИЕНИЧЕСКИХ ПОМЕЩЕНИЙ

Уборная

Ванная комната

Совмещенный санузел

Раздельный санузел

Размещение элементов оборудования

Минимальные размеры

*) Без учета допуска 20 - 30 мм на установку ванны.


Рис. 37. Решение санитарно-гигиенических помещений повышенной комфортности в квартирах жилища I категории.

I - планы квартир жилой части комплекса школы оперного искусства Г. Вишневской по ул. Остоженка (Управление Моспроект-2, М18. Руководитель авторского коллектива Посохин М., архитекторы Плеханов М. и Левитина А); а - план нижнего уровня 4-комнатной квартиры, б - план верхнего уровень 4-комнатной квартиры, в - план 5-комнатной квартиры.

II - план 3-комнатной квартиры жилого дома с использованием планировочной структуры серии Пд1М-АН (МНИИТЭП, М1. Архитекторы Григорьев С., Надысев А., Шаморгин Ю. и другие).

III - план 3-комнатной квартиры жилого комплекса «Золотые ключи» по ул. Минской (МНИИТЭП, Управление Моспроект-2. Руководитель авторского коллектива Григорьев Ю., архитекторы Надысев А., Принтц Т. и другие).

Рис. 38. Одноквартирный жилой дом с дополнительными помещениями (Архитектор Михе А.):

а - план 1 этажа, б - план 2 этажа.

Условные обозначения:

СМА - автоматическая стиральная машина; СМА* - автоматическая стиральная машина с функцией сушки белья.

1 - гладильная доска; 2 - гладильная машина (или стол для глажения белья); 3 - мойка

Рис. 39. Примеры размещения постирочной в квартирах жилища I категории.

а - в отдельном помещений без освещения или с освещением вторым светом (смежном с кухней и санузлом); б, в - в отдельном помещении с естественным освещением (смежном с кухней).

ДОПОЛНИТЕЛЬНЫЕ ТРЕБОВАНИЯ К КВАРТИРАМ ДЛЯ ИНВАЛИДОВ И ПРЕСТАРЕЛЫХ

4.14. При разработке проектов специализированного квартирного жилища, предназначенного для проживания престарелых и инвалидов следует обращать внимание на специфику размещения квартир для данного контингента проживающих, нормирование площадей квартир, минимально допустимые площади и габариты отдельных помещений, а также оборудование санитарно-гигиенических помещений и организацию входов в них.

4.15. Специализированное квартирное жилище для престарелых и инвалидов может быть запроектировано в виде:

жилых домов для престарелых и для семей с инвалидами (неколясочниками) - до 9-и этажей включительно;

жилых домов для семей с инвалидами-колясочниками - до 5-и этажей включительно;

групп квартир (или одной квартиры) для престарелых и семей с инвалидами (неколясочниками) - не выше девятого этажа жилого дома;

групп квартир (или одной квартиры) для семей с инвалидами-колясочниками - на первом этаже жилого дома (без устройства лифта для пожарных подразделений);

групп квартир (или одной квартиры) для семей с инвалидами-колясочниками - на этажах жилого дома со второго по пятый включительно (с устройством лифта для пожарных подразделений в соответствующей секции или коридорном доме).

4.16. Нормирование площадей специализированных квартир для инвалидов по таблице 4 МГСН 3.01-96 основано на эргономических требованиях к параметрам квартир и отдельных помещений для инвалидов с различным характером патологических отклонений (при заселении К = N, где К - количество комнат, а N - количество проживающих).

В нормируемые площади квартир не включаются площади летних помещений, холодных кладовых, а также площади приквартирных тамбуров.

Минимальные площади специализированных квартир для инвалидов-колясочников приняты, исходя из эргономических требований, связанных с передвижением в квартире инвалида на кресло-коляске, выполнение им различных бытовых процессов, а также размещения специального оборудования.

Примеры решения квартир для инвалидов-колясочников приведены на рис. 40.

4.17. Минимальные площади специализированных квартир для престарелых принята, исходя из предоставления одиноким и семьям из двух человек соответственно однокомнатной квартиры (38 м2) или двухкомнатной (44 м2). Примеры решения квартир приведены на рис. 34 а, 16 д, е.

4.18. Верхний предел площади специализированных квартир каждого типа нормируется аналогично верхним пределам площадей квартир жилища II категории. При этом суммируются площадь квартиры данного типа по нижнему пределу и величина, составляющая 5 % от этой площади, процент увеличения площади квартир по отдельная типам может быть и выше, но суммарные показатели площадей квартир по дому в целом по сравнению с суммой их площадей по нижним пределам не должна превышать 5 %.

Предусмотрена возможность увеличения верхнего предела площадей квартир для семей с инвалидами-колясочниками на величину холла (не более 12 м2) для размещения в ней подъемника и лестницы при организации входа в квартиру непосредственно с придомовой территории.

4.19. Площади и габариты отдельных помещений, предназначенных для проживания инвалидов-колясочников, принимаются, исходя из площадей отдельных функциональных зон, параметры которых определяются с учетом возможности передвижения инвалида на кресло-коляске.

Площадь кухни в квартирах для семей с инвалидами-колясочниками вне зависимости от числа комнат в квартире следует принимать не менее 9 м2, а ее ширину при одностороннем напольном расположении оборудования - 2,3 м, при двухстороннем, в том числе угловом - 2,9 м (рис. 41).

При двухстороннем размещении кухонного оборудования уменьшение ширины кухни до 2,8 м возможно за счет применения настольного оборудования.

Все кухонное оборудование должно устанавливаться с учетом зон деятельности инвалида, передвигающегося на кресло-коляске. Например, горизонтальная рабочая плоскость должна быть на высоте не более 75 см от уровня пола.

Ширину передней следует предусматривать не менее 1,6 м, что обеспечивает возможность хранения кресло-коляски. Кроме того, в квартире может быть дополнительная кладовая для хранения уличной кресло-коляски (рис. 40 в).

В квартирах для престарелых и для семей с инвалидами необходимо предусматривать летние помещения: в квартирах для семьи с инвалидом-колясочником это может быть лоджия или терраса глубиной не менее 1,4 м (рис. 42 а - в), а в квартирах для престарелых или для семей с инвалидами (неколясочниками) - любое из летних помещений глубиной не менее 0,9 м.

4.20. Оборудование санитарных узлов должно предусматривать возможность перемещения инвалида с кресло-коляски в ванну и на унитаз (рис. 42 г). С этой целью устанавливаются поручни, штанги, поворотные (или откидные) сиденья или гидравлические подъемники, а отметка верха унитаза от уровня пола принимается равной 0,5 м.

4.21. Для свободного перемещения престарелых и инвалидов в специализированных квартирах и домах, а также при входах в них следует стремиться к исключению перепадов уровней на путях передвижения, предусматривая пандусы, при невозможности их устройства - подъемники (рис. 34). В квартирах следует исключать пороги или уменьшать их высоту до величины не более 2,5 см.

4.22. При проектировании в доме квартир, предназначенных для проживания инвалидов по зрению, следует предусматривать мероприятия по тактильной отделке стен и полов на путях эвакуации, входных дверей и дверей квартир. Необходимы также специальная организация и оборудование отдельных зон в квартире, например. для труда и для приготовления пищи (рис. 43).

Рис. 40. Примеры решения квартир для инвалидов-колясочников.

I - в жилых домах серии П44 (МНИИТЭП, М1. Архитекторы Надысев А., Принтц Т.): а - 1-комнатная квартира, б - 2-комнатная квартира.

II - в жилом комплексе с обслуживанием и центром реабилитации для молодых инвалидов (МНИИТЭП, М2, стадия «проект». Архитекторы Дадья В., Полетаев Ю. и другие): в - 2-комнатная квартира; г - 3-комнатная квартира.

Рис. 41. Решение кухонь в квартирах для инвалидов на кресло-колясках с учетом зон доступности.

I - зоны доступности для инвалидов на кресло-колясках: А - вид сверху; Б - вид сбоку; В - вид спереди; 1 - при неподвижном положении; 2 - при наклоне, __ - для женщин; _ _ _ - для мужчин. II - схемы планов кухонь с напольным оборудованием: а - с односторонней расстановкой; б - с двухсторонней расстановкой. III - схемы планов кухонь с настольным оборудованием: в - с односторонней расстановкой; г - с двухсторонней расстановкой.

Примечание. Зоны доступности даны по материалам «Рекомендаций по проектированию окружающей среды, зданий и сооружений с учетом потребностей инвалидов и других маломобильных групп населения. Вып. 1. Общие положения».

Рис. 42. Оборудование специализированного квартирного жилища.

I - примеры решений летних помещений в квартирах для инвалидов-колясочников: а, б, в - схемы планов летних помещений; г - схема разреза. II - пример решения санузла (серии П44) 1, 2, 3, 5 - опорные поручни, 4 - сиденье.

Рис. 43. Примеры оборудования в жилище для слепых и средства ориентирования.

I - зона для работы: 1 - стол; 2 - шкаф; 3 - тара; 4 - светильник; 5 - стул. II - элементы оборудования: а - неослепляющее освещение; б - эластичная облицовка светильника; в - обработка углов, г - плоскостной, сенсорный и шнуровой выключатели. III - средства ориентирования: д - на лестнице; е - на двери, в том числе при входе в квартиру; ж - на стеклянной двери входа в жилой дом; и - тактильный указатель номера этажа.

ЖИЛЫЕ ЯЧЕЙКИ ОБЩЕЖИТИЙ

4.23. Общежития для студентов и аспирантов следует проектировать из жилых ячеек.

Жилые ячейки общежитий для студентов и аспирантов следует проектировать, обеспечивая необходимый уровень комфорта проживания в результате реализации в жилой ячейке хозяйственно-бытовых процессов (в том числе приготовление и прием пищи, размещение личных вещей), а в жилой комнате кроме сна и отдыха - возможности осуществления индивидуальных занятий.

Поэтому при проектировании общежитий указанных типов, прежде всего, следует обращать внимание на минимально необходимый состав жилой ячейки, ее минимальную вместимость, дифференциацию жилой площади в зависимости от количества проживающих в жилой комнате, минимальный набор оборудования санитарно-гигиенических помещений.

4.24. В составе жилой ячейки общежития проектируется жилые помещения - одна или две жилых комнаты, а также подсобные помещения - санитарно-гигиенические (совмещенный санузел или туалет и ванная комната), передняя и встроенные шкафы. Кроме того, может быть выполнена кухня или кухня-ниша.

Вместимость жилой ячейки для одиночек определяется заданием на проектирование и при этом в двух жилых комнатах может проживать не более 6 человек, то есть не белее 3 человек в каждой комнате.

Вместимость жилой ячейки для семейных не должна быть более 3 человек. То есть такую жилую ячейку следует проектировать из расчета проживания двух человек - супругов (или родственников) или трех человек - супружеской пары с ребенком (или неполной семьи - родителя с двумя детьми).

Если в составе жилой ячейки проектируется кухня (или кухня-ниша), то ее площадь должна быть не менее 5 м2.

Для жилых ячеек, в которых проживают одиночки, кухни могут проектироваться на несколько жилых ячеек, но число проживающих в этих ячейках не должно быть более 12 человек. При этом площадь кухни определяется из расчета 1,0 м2 на одного человека, но должна быть не менее 5 м2.

Примеры решения жилых ячеек приведены на рис. 44.

4.25. Площади жилых комнат общежитий в составе жилых ячеек принимаются в зависимости от числа проживающих с учетом размещения рабочего места для каждого проживающего.

Таким образом, проектируя жилую комнату на двух или трех человек из расчета 7,5 м2 площади на проживающего, ее площадь должна быть соответственно не менее 15 или 22,5 м2. Если же по заданию на проектирование в составе жилых ячеек предусматриваются комнаты, предназначенные для проживания 1 человека, то площадь такой жилой комнаты должна быть не менее 10 м2.

Примеры решения жилых комнат общежития приведены на рис. 45 и 44.

4.26. Размещение санитарно-гигиенических помещений в каждой жилой ячейке позволяет качественно повысить уровень их комфорта.

Для одиночек в жилых ячейках на два человека и более следует предусматривать раздельный санузел, включающий уборную и ванную комнату (или душевую). В жилой ячейке для семейных, а также на одного человека может быть выполнен как раздельный, так и совмещенный санузел.

Вне зависимости от числа проживающих - от одного до шести человек - в санузлах в жилых ячейках устанавливается не менее одного умывальника и унитаз.

Необходимость оборудования санузлов ванной или душевым поддоном определяется заданием на проектирование. В санузлах жилых ячеек для семейных рекомендуется установка ванны.

Примеры решения санитарно-гигиенических помещений в составе жилых ячеек приведены на рис. 44.

Рис. 44. Жилые ячейки общежитий.

I - для одиночек: а - на 6 человек; б - на 4 человек; в, г, д - на одного человека. II - для семейных: е - на супружескую пару с ребенком, ж - на двух человек.

Рис. 45. Жилые комнаты общежитий.

а, б - пример решения жилой комнаты на двух человек; в, г - пример решения жилой комнаты на трех человек.

ПОМЕЩЕНИЯ ОБЩЕСТВЕННОГО НАЗНАЧЕНИЯ В СПЕЦИАЛИЗИРОВАННЫХ КВАРТИРНЫХ ЖИЛЫХ ДОМАХ

4.27. При проектировании обслуживания в составе специализированных квартирных жилых домов минимальную номенклатуру помещений следует принимать в зависимости от контингента проживающих: престарелых или же семей с инвалидами.

4.28. В структуре специализированных квартирных жилых домов (СКЖД) для одиноких престарелых и семей из двух престарелых проектируются центры социального обслуживания (ЦСО), в состав функций которых входят: организация питания, культурно-массовой работы, оказание медицинской помощи и проведение занятий лечебной физкультурой, предоставление возможности посильного труда, организация бытового обслуживания (в составе отделения дневного пребывания), социальная помощь на дому (отделение социальной помощи), предоставление материальной и различных видов организационно-правовой помощи (отделение срочной социальной помощи). Для реализации административно-хозяйственной деятельности ЦСО предусматривается соответствующая группа помещений.

4.29. При определении минимального состава помещений ЦСО в СКИД для одиноких престарелых и семей из двух престарелых следует руководствоваться табл. 19 настоящего Пособия.

Данный состав помещений следует предусматривать при работе ЦСО как по закрытой системе - обслуживание только проживающих в специализированном жилом доме (или комплексе), так и по частично открытой - обслуживание, наряду с проживающими в указанном доме (или комплексе), одиноких престарелых и инвалидов, проживающих на прилегающей территории.

Площадь помещений общественного назначения в расчете на одного проживающего в СКЖД различной вместимости должна быть не менее указанной в табл. 5 МГСН 3.01-96 «Жилые здания». Дополнительную площадь помещений ЦСО при его работе по частично открытой системе следует предусматривать заданием на проектирование.

Пример размещения помещений общественного назначения в составе специализированного квартирного жилого дома для одиноких престарелых и семей из двух престарелых приведен на рис. 46.

4.30. Необходимость помещений бытового обслуживания (элементов комплексного пункта службы быта, стола заказов, парикмахерской) следует определять, учитывая размещение в зоне пешеходной доступности соответствующих элементов сети бытового обслуживания.

Таблица 19

МИНИМАЛЬНЫЙ СОСТАВ ПОМЕЩЕНИЙ ОБЩЕСТВЕННОГО НАЗНАЧЕНИЯ (ЦСО) В СПЕЦИАЛИЗИРОВАННЫХ КВАРТИРНЫХ ЖИЛЫХ ДОМАХ ОДИНОКИХ ПРЕСТАРЕЛЫХ И СЕМЕЙ ИЗ ДВУХ ПРЕСТАРЕЛЫХ1)

Наименование помещений

Число проживающих

50

100

150

200

1. Вестибюльно-входная группа

1.1. Вестибюль

О

О

О

О

1.2. Гардероб для пенсионеров дневного пребывания

О

О

О

О

1.3. Санузел

Р

Р

Р

Р

2. Помещения административно-хозяйственного назначения

2.1. Кабинет директора

О

О

О

О

2.2. Комната секретаря

О

О

2.3. Отдел кадров

О

О

О

О

2.4. Бухгалтерия

О

О

О

О

2.5. Касса

О

О

О

О

2.6. Санузел3)

Р

Р

2.7. Помещение для водителя автомашин

Р

Р

Р

Р

2.8. Кладовая инвентаря и оборудования

О

О

О

О

2.9. Комната отдыха персонала

О

О

О

О

2.10. Помещение для постов охранной и пожарной сигнализации

О

О

О

О

3. Помещения для культурно-массовой работы

3.1. Гостиные или кружковые

О

О

О

О

3.2. Комнаты для тихих занятий

О

О

О

О

3.3. Библиотека

О

О

О

О

3.4. Зрительный зал с эстрадой

О

О

О

3.5. Зал

О

О

О

3.6. Комната лектора

О

О

3.7. Санузел3)

Р

Р

Р

Р

4. Столовая-раздаточная

4.1. Обеденный зал

О

О

О

О

4.2. Кухня-доготовочная

О

О

О

О

4.3. Холодильный цех и хлеборезка

О

О

4.4. Мойка столовой посуды

О

О

О

О

4.5. Мойка кухонной посуды и тары полуфабрикатов

О

О

О

О

4.6. Загрузочная

О

О

О

О

4.7. Кладовая

О

О

О

О

4.8. Санузел для персонала

О

О

О

О

4.9. Комната отдыха для персонала с душевой

О

О

О

О

4.10. Умывальная для пенсионеров4)

О

О

О

О

4.11. Санузел3)

Р

Р

Р

Р

5. Помещения для занятий трудовой деятельностью

5.1. Пункт выдачи работы на дом

О

О

Р

Р

5.2. Учебный класс

О

О

О

5.3. Мастерские

О

О

5.4. Кладовые материалов

О

О

5.5. Кладовые готовых изделий

О

О

5.6. Комната инструктора

О

О

5.7. Санузел3)

Р

Р

Р

Р

6. Помещения медпункта и для занятий лечебной физкультурой

6.1. Кабинет медсестры5)

О

О

О

О

6.2. Процедурная

О

О

О

6.3. Кабинет врача

О

О

О

6.4. Помещения для занятий лечебной физкультурой5)

О

О

О

О

6.5. Раздевалки с душевыми

О

О

6.6. Кабинет врачей-консультантов

О

О

6.7. Кабинет физиотерапии

О

О

6.8. Комната инструктора

Р

Р

О

О

6.9. Санузел

О

О

О

О

7. Помещения бытового обслуживания

7.1. Стол заказов

Р

О

О

7.2. Парикмахерская

О

О

О

7.3. Пункт приема белья в стирку

Р

Р

О

О

7.4. Пункт приема обуви в ремонт

Р

Р

О

О

7.5. Пункт приема одежды в ремонт

Р

Р

О

О

7.6. Санузел3)

Р

Р

Р

Р

8. Отделение социальной помощи на дому (ОСП)

8.1. Кабинеты заведующих

О

О

О

О

8.2. Комната отдыха персонала

Р

Р

Р

Р

8.3. Кладовая инвентаря и оборудования

О

О

О

О

8.4. Санузел3)

Р

Р

Р

Р

9. Отделение срочной социальной помощи

9.1. Приемная

О

О

О

О

9.2. Комната посетителей

Р

Р

Р

О

9.3. Комната дежурного службы

О

О

О

О

9.4. Комната для работы специалистов

Р

Р

О

О

9.5. Кладовая

О

О

О

О

9.6. Санузел3)

Р

Р

Р

Р

10. Гараж-стоянка6)

О

О

О

О

Примечания.

1. Помещения, обозначенные знаком «О», являются обязательными, знаком «Р» - рекомендуемыми.

2. Санузлы допускается проектировать объединенными для 1, 2, 7, 8 и 9 групп, а также для 1, 3, 4 и 5 групп.

3. Рекомендуется выполнять в нише при входе в обеденный зал.

4. При числе проживающих в доме 50 чел. - допускается объединение с кабинетом врача.

5. При числе проживающих в доме 50 чел. - допускается объединение с залом для культурно-массовых мероприятий.

6. Количество машиномест для автомашин, обслуживающих ЦСО, определяется заданием на проектирование.

7. Группы помещений 1 - 7 входят в состав отделения дневного пребывания.

Рис. 46. Помещения обслуживания в составе специализированного квартирного жилого дома для престарелых и семей из двух престарелых (МНИИТЭП, М4, стадия «проект». Архитекторы Датюк В. и Ландиховская В.; научное сопровождение Генкина И. и Яхкинд С.).

а - жилая часть; б - центр социального обслуживания.

План 1 этажа: 1 - парикмахерская; 2 - библиотека; 3 - административные помещения; 4 - зал столовой; 5 - производственные помещения столовой; 6 - отделение социальной помощи; 7 - комната дневного пребывания; 8 - комната отдыха, 9 - мастерская; 10 - кладовая; 11 - медицинские кабинеты; 12 - помещение ЛФК с раздевалкой; 13 - актовый зал; 14 - стол заказов; 15 - выездные службы быта; 16 - квартира для инвалида-колясочника.

4.31. В структуре специализированного квартирного жилого дома для семей с инвалидами проектируется комплекс обслуживания, в состав которого входят следующие функции социально-трудовой реабилитации: организация культурно-массовой работы и создание условий для труда инвалидов, оказание медицинской помощи и проведение спортивно-оздоровительных процедур, организация бытового обслуживания, предоставление материальной, организационно-правовой и психологической помощи. Для реализации административно-хозяйственной деятельности комплекса обслуживания предусматривается соответствующая группа помещений.

4.32. При определении минимального состава помещений общественного назначения в специализированных квартирных жилых домах для семей с инвалидами следует руководствоваться табл. 20 настоящего Пособия.

Данный состав помещений следует предусматривать при обслуживании как по закрытой системе - только для проживающих в специализированном жилом доме (или комплексе), так и по частично открытой - проживающих в указанном доме (или комплексе), а также инвалидов, проживающих на прилегающей территории.

Площадь помещений общественного назначения в расчете на одного проживающего в специализированных квартирных жилых домах для семей с инвалидами различной вместимости должна быть не менее указанной в табл. 5 МГСН 3.01-96 «Жилые здания».

Кроме того, в составе помещений общественного назначения может предусматриваться центр медико-социальной реабилитации, номенклатура и площади помещений которого определяются заданием на проектирование.

Пример размещения помещений общественного назначения в составе жилого комплекса для молодых инвалидов приведен на рис. 17.

Таблица 20

МИНИМАЛЬНЫЙ СОСТАВ ПОМЕЩЕНИЙ ОБЩЕСТВЕННОГО НАЗНАЧЕНИЯ СПЕЦИАЛИЗИРОВАННЬХ КВАРТИРНЫХ ЖИЛЫХ ДОМАХ ДЛЯ СЕМЕЙ С ИНВАЛИДАМИ1)

Наименование помещений

Число проживающих

50

100

150

200

1. Вестибюльно-входная группа

1.1. Вестибюль

О

О

О

О

1.2. Гардероб1)

О

О

О

О

1.3. Санузел2)

Р

Р

Р

Р

1.4. Помещение для хранения уличных колясок

О

О

О

О

1.5. Помещение для хранения детских колясок

О

О

О

О

2. Помещения административно-хозяйственного назначения

2.1. Кабинет директора

О

О

О

О

2.2. Комната секретаря

О

О

2.3. Отдел кадров

О

О

О

О

2.4. Бухгалтерия

О

О

О

О

2.5. Касса

О

О

О

О

2.6. Санузел2)

2.7. Помещение для водителя автомашин

Р

Р

Р

Р

2.8. Кладовая инвентаря и оборудования

О

О

О

О

2.9. Комната отдыха персонала

О

О

О

О

2.10. Помещение для постов охранной и пожарной сигнализации

О

О

О

О

3. Помещения для культурно-массовой работы

3.1. Зрительный зал с эстрадой

О

О

О

3.2. Зал

О

О

О

3.3. Кинопроекционная

О

О

О

3.4. Радиоузел

О

О

О

О

3.5. Комната лектора

О

О

3.6. Гостиные или кружковые

О

О

О

О

3.7. Комнаты для тихих занятий

О

О

О

О

3.8. Библиотека

О

О

О

О

3.9. Санузел2)

О

О

О

О

4. Столовая-раздаточная3)

4.1. Обеденный зал

О

О

О

О

4.2. Кухня-доготовочная

О

О

О

О

4.3. Холодный цех и хлеборезка

О

О

4.4. Мойка столовой посуды

О

О

О

О

4.5. Мойка кухонной посуды и тары полуфабрикатов

О

О

О

О

4.6. Загрузочная

О

О

О

О

4.7. Кладовая

О

О

О

О

4.8. Комната отдыха персонала с душевой

О

О

О

О

4.9. Санузел для персонала

О

О

О

О

4.10. Умывальник для посетителей4)

О

О

О

О

4.11. Санузел для посетителей2)

Р

Р

Р

Р

4.12. Магазин-кулинария

Р

Р

Р

Р

6. Помещения медицинского обслуживания

6.1. Кабинет медсестры5)

О

О

О

О

6.2. Процедурная

О

О

О

6.3. Кабинет врача терапевта

О

О

О

6.6. Кабинет врачей консультантов

Р

О

О

6.7. Кабинет физиотерапии

О

О

О

О

6.8. Санузел

О

О

О

О

7. Помещения для занятий лечебной физкультурой

7.1. Универсальный зал для спортивных игр и занятий общей физической подготовкой

О

О

О

О

7.2. Зал для занятий на тренажерах

Р

Р

О

О

7.3. Раздевалки с душевыми

О

О

О

О

7.4. Санузел

О

О

О

О

7.5. Комната инструктора

О

О

О

О

7.6. Инвентарная

О

О

О

О

8. Помещения бытового обслуживания

8.1. Пункт приема белья в стирку

Р

Р

О

О

8.2. Пункт приема обуви в ремонт

Р

Р

О

О

8.3. Ремонт ортопедической обуви и протезов

Р

Р

Р

Р

8.3. Парикмахерская

Р

Р

Р

Р

8.4. Стол заказов

Р

Р

О

О

8.5. Помещение выездной почты и сберкасса

Р

Р

О

О

8.6. Санузел2)

Р

Р

Р

Р

9. Гараж-стоянка6)

О

О

О

О

Примечания.

1. Помещения, обозначенные знаком «О», являются обязательными, знаком «Р» - рекомендуемыми.

2. Допускается проектировать санузлы объединенными для помещений 1, 2 и 7 групп, а также для помещений 1 и 3 групп.

3. По заданию на проектирование допускается кафе, состав помещений уточняется технологическим заданием.

4. Рекомендуется выполнять в нише при входе в обеденный зал.

5. При числе проживающих в доме 50 чел. - допускается объединение с кабинетом врача-терапевта.

6. Количество машиномест для автомашин, обслуживающих помещения общественного назначения специализированного квартирного жилого дома для семей с инвалидами, определяется заданием на проектирование.

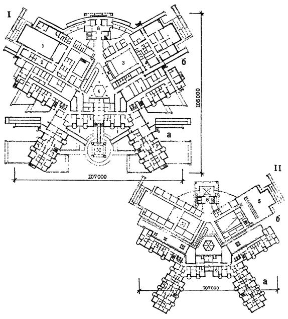
Рис. 47. Помещения обслуживания в составе жилого комплекса с обслуживанием и центром реабилитации для молодых инвалидов (МНИИТЭП, М2, стадия «проект». Архитекторы Дадья В. и Полетаев А.).

I - план 1 этажа; II - план 2 этажа.

а - жилая часть; б - центр медико-социальной реабилитации.

1 - спортивный зал; 2 - раздевалка; 3 - актовый зал; 4 - рекреация; 5 - эксплуатируемая кровля; 6 - коммуникационный узел блока обслуживания; 7 - квартира для семьи с инвалидом-колясочником.

ПОМЕЩЕНИЯ ОБЩЕСТВЕННОГО НАЗНАЧЕНИЯ В ОБЩЕЖИТИЯХ

4.33. В условиях строительства в Москве специфика проектирования помещений общественного назначения в общежитиях связана с проживанием в них как одиночек, так и семейных студентов и аспирантов. При этом конкретное процентное соотношение численности одиночек и семейных принимается по заданию на проектирование.

Определение номенклатуры элементов обслуживания связано также и с необходимостью формирования:

полной системы обслуживания - при строительстве отдельно стоящих общежитий, не связанных с вузовскими комплексами или комплексом общежитий;

сокращенной системы обслуживания - как правило, при строительстве общежитий в реконструируемых вузовских комплексах или комплексах общежитий, имеющих сложившуюся систему общественного обслуживания.

4.34. Проектируемые в структуре общежития (отдельного здания или комплекса) помещения общественного назначения должны предусматривать реализацию следующих основных функций: организацию культурно-массовых мероприятий, отдыха, учебных и спортивных занятий, питания, медицинского и бытового обслуживания. Кроме того, в структуре общежития предусматривается также группа помещений административно-хозяйственного назначения, а в общежитиях с жилыми ячейками для семейных - помещения для кратковременного пребывания детей.

4.35. При определении состава помещений общественного назначения в общежитиях различной вместимости для студентов и аспирантов следует руководствоваться табл. 21 настоящего Пособия.

Площади помещений общественного назначения в расчете на одного проживающего при формировании полной системы обслуживания общежития следует принимать не менее указанной в табл. 6 МГСН 3.01-96 «Жилые здания».

Верхний предел площади помещений общественного назначения в общежитиях не ограничивается и определяется заданием на проектирование, исходя из специфики общежития.

Если новое общежитие проектируется в составе существующего комплекса общежитий, то площади помещений общественного назначения в расчете на одного проживающего уточняются в задании на проектирование с учетом уже имеющихся в комплексе.

Таблица 21

МИНИМАЛЬНЫЙ СОСТАВ ПОМЕЩЕНИЙ ОБЩЕСТВЕННОГО НАЗНАЧЕНИЯ В ОБЩЕЖИТИЯХ

Наименование помещения

Число проживающих

25

50

100

200

400

600

800

1000

1200

1. Вестибюльно-входная группа

О

О

О

О

О

О

О

О

О

2. Помещения административно-хозяйственного назначения

2.1. Комната заведующего общежитием

О

О

О

О

О

О

О

О

О

2.2. Комната заведующего хозяйством

О

О

О

О

О

2.3. Комната паспортистки

О

О

О

О

2.4. Мастерская слесаря

О

О

О

О

О

2.5. Мастерская электрика

О

О

О

2.7. Мастерская столяра

О

О

2.8. Кладовые:

2.8.1. чистого белья2)

О

О

О

О

О

О

О

О

О

2.8.2. грязного белья

О

О

О

О

О

О

2.8.3. хозяйственного инвентаря

О

О

О

О

О

О

О

О

2.8.4. личных вещей

О

О

О

О

О

О

2.8.5. уборочного инвентаря

О

О

О

О

О

О

О

2.9. Санузел

О

О

О

О

О

О

О

О

О

3. Помещения для культурно-массовых мероприятий, отдыха, учебных и спортивных занятий

3.1. Зал-аудитория с кулуарами3)

О

О

О

О

О

О

О

О

О

3.2. Комнаты отдыха

О

О

О

О

О

3.3. Комнаты для учебных занятий

О

О

О

О

О

О

О

О

3.4. Помещения для работы кружков4)

О

О

О

О

О

О

О

О

О

3.5. Помещения для спортивных занятий

О

О

О

О

О

О

О

О

3.6. Кладовая спортивного инвентаря

О

О

О

О

О

О

О

О

О

3.7. Библиотека с читальным залом и хранилищем

О

О

О

О

О

3.8. Санузлы

Р

Р

Р

Р

Р

Р

Р

Р

Р

4. Помещения питания

4.1. Столовая5)

О

О

О

4.2. Кафе5)

О

О

О

5. Помещения бытового обслуживания

5.1. Помещения для стирки, сушки и глажения одежды

Р

Р

Р

Р

Р

Р

Р

Р

Р

5.2. Пункт приема обуви в ремонт

Р

Р

Р

Р

Р

Р

О

О

5.3. Приемный пункт химчистки

Р

Р

Р

Р

Р

Р

О

О

5.4. Пункт проката

Р

Р

Р

Р

Р

Р

О

О

6. Помещения для кратковременного пребывания детей6)

6.1. Комната отдыха

О

О

О

О

О

О

О

О

О

6.2. Игровая

О

О

О

О

О

О

О

О

О

6.3. Передняя

О

О

О

О

О

О

О

О

О

6.4. Кухня

О

О

О

О

О

О

О

О

О

6.5. Санузел

О

О

О

О

О

О

О

О

О

7. Помещения медицинского обслуживания

7.1. Изолятор

Р

О

О

О

О

О

О

7.2. Медпункт

О

О

О

О

О

О

О

О

О

Примечания.

1. Помещения, обозначенные знаком «О», являются обязательными, знаком «Р» - рекомендуемыми.

2. В общежитиях вместимостью 25 - 100 чел. кладовые для белья допускается объединять.

3. В общежитиях вместимостью 25 - 200 чел. зал-аудиторию с кулуарами допускается объединять с комнатами для отдыха.

4. В общежитиях вместимостью 25 чел. в помещении для работы кружков допускается проведение спортивных занятий.

5. Состав помещений кафе и столовой следует принимать по технологическому заданию.

6. Помещения являются обязательными при наличии в общежитии жилых ячеек для семейных.

ХОЗЯЙСТВЕННЫЕ ПОМЕЩЕНИЯ

4.36. Помещения хозяйственного назначения в составе многоквартирных жилых домов (кроме блокированных) подразделяются на обязательные и рекомендуемые.

4.37. К обязательным помещениям хозяйственного назначения относятся помещение для хранения уборочного инвентаря, оборудуемое мойкой и трапом, а в специализированных квартирных жилых домах для семей с инвалидами-колясочниками - помещение для хранения уличных кресло-колясок.

Обязательной в вестибюлях секций (домов) является также зона для последующей установки подъемника при наличии в них перепадов уровней.

4.38. К рекомендуемым помещениям хозяйственного назначения многоквартирных жилых домов (кроме блокированных) относятся хозяйственные кладовые, колясочные, а также помещения для работы с населением, для охраны дома или для консьержки, встроенные (или встроенно-пристроенные) гаражи-стоянки для жителей дома (рис. 30).

Примеры размещения помещений колясочных, консьержки и охраны приведены на рис. 48, хозяйственных кладовых в подземных этажах многоквартирных жилых зданий - на рис. 49.

4.39. К рекомендуемым помещениям хозяйственного назначения в структуре одноквартирного жилого дома или квартиры блокированного жилого дома относятся встроенные, встроенно-пристроенные и пристроенные помещения хозяйственных кладовых (в том числе неотапливаемые), оранжереи, охраны, гаража-стоянки без мойки и ремонта автомобилей (рис. 1, 2, 38). Площадь этих дополнительных помещений следует включать как в площадь, так и в общую площадь одноквартирного дома (или квартиры блокированного дома) согласно принятым правилам подсчета площадей по приложению 2 МГСН 3.01-96.

Рис. 48. Примеры размещения помещения охраны и колясочных в многоквартирных жилых домах:

а, б, в - варианты размещения в рядовой секции серии Пд4* (МНИИТЭП, стадия проект, М4); г - жилом доме по 1-му Колобовскому пер., д. 18-24 (Управление Моспроект 2, М18, стадия проект. Руководитель авторского коллектива Посохин М., архитекторы Плеханов М. и Левитина А.): 1 - помещение консьержки, 2 - помещение охраны; 3 - колясочная, 4 - шкаф уборочного инвентаря, 5 - вестибюль, 6 - помещения общего назначения, 7 - мусорокамера.

Описание: Описание: Описание: 1

Рис. 49. Хозяйственные кладовые в многоквартирных жилых домах:

а, б - серия КОПЭ (АО Моспроект); в - серия Пд4 (МНИИТЭП).

1 - хозяйственные кладовые; 2 - гаражи-стоянки.

СПИСОК НОРМАТИВНЫХ ДОКУМЕНТОВ

1. МГСН 3.01-96 «Жилые здания».

2. Дополнение № 1 к МГСН 3.01-96 «Реконструкция и модернизация пятиэтажных жилых домов первого периода индустриального домостроения».

3. «Инструкция по разработке раздела «Охрана окружающей среды» проектной документации на стадиях ТЭО, проект (рабочий проект) для строительства в г. Москве»/Мосгосэкспертиза. - М., 1994.

4. НРБ-96 «Нормы радиационной безопасности».

5. СНиП 2.04.05-85 «Водопровод и канализация».

6. СНиП 2.08.02-89* «Общественные здания».

7. МГСН 4.04-94 «Многофункциональные здания и сооружения».

8. МГСН 5.01-94* «Стоянки легковых автомобилей».

8. МГСН 4.10- 97 «Здания банковских учреждений».

9. МГСН 2.02-97 «Допустимые уровни ионизирующего излучения и радона на участках застройки».

10. МГСН 4.09-97 «Здания органов социальной защиты населения».

11. МГСН 4.12-97 «Лечебно-профилактические учреждения».

12. МГСН 4.13-98 «Предприятия розничной торговли».

13. МГСН 1.01-98 «Нормы и правила проектирования, планировки и застройки г. Москвы». Части 1 и 2.

В работе использованы материалы кандидатов архитектуры Н.В. Федоровой, З.К. Петровой, Р.А. Абрамовой, Л.М. Агаянц и Х.Р. Бутусова.



© 2013 Ёшкин Кот :-)