Информационная система
«Ёшкин Кот»

XXXecatmenu

СОДЕРЖАНИЕ

САНИТАРНО-ГИГИЕНИЧЕСКИЕ ТРЕБОВАНИЯ

3.11. Круг требований, определяющих экологические качества жилой среды и- направленных на обеспечение комплекса мероприятий по ее регулированию и защите жилища, в настоящее время значительно расширяется в том числе в связи с необходимостью реализации при проектировании положений "Инструкции по охране окружающей среды".

В первую очередь это требования, учитывающие региональные особенности Москвы и обеспечивающие защиту жилища от вредных воздействий внешней среды (в том числе повышенного уровня шума и вибрации, негативного влияния источников природного и техногенного происхождения - радона, ионизирующего излучения и других, а также загрязнения, вызванного использованием отдельных строительных материалов). Эти требования следует учитывать при проектировании жилых зданий.

3.12. Одним из эффективных средств защиты от транспортного шума являются планировочно-шумозащищенные жилые дома. Для конкретных градостроительных ситуаций могут проектироваться планировочно шумозащищенные жилые дома различных типов (с учетом приложения 4 МГСН 3.01-96). На рис. 13 показаны примеры планировочно шумозащищенных секций и фрагмент коридорного дома.

3.13. Комплекс мер по радонозащите следует предусматривать при наличии поступления радона на отведенном под застройку земельном участке, выявленного согласно МГСН 2.02-97.

В перечень мероприятий, ограничивающих проникновение радона в жилые помещения из техподполья (или подземного этажа) здания и направленных на нейтрализацию этого газа, а также исключающих пути его поступления, входят, в первую очередь, интенсивное проветривание подполья и тщательная герметизация щелей и стыков-конструкций.

3.14. Для ограничения облучения от источников природного и техногенного ионизирующего излучения и принятия решения о строительстве объекта на участке необходимо иметь информацию о состоянии гамма-фона и наличии радиоактивного излучения на этом участке в соответствии с требованиями, изложенными в НРБ-96 и МГСН 1.01-98.

3.15. Выбор строительных и отделочных материалов следует осуществлять, исключая применение материалов, представляющих опасность для здоровья человека, уменьшая загрязнение воздушной среды жилища продуктами излучения и деструкции этих строительных материалов. Отбор материалов следует производить при наличии данных о радиационном контроле и сертификатов органов здравоохранения, а также других документов, содержащих физико-химические показатели этих материалов, обеспечивающие безопасность их эксплуатации в зависимости от температурно-влажностного режима помещений и продолжительности срока использования.

3.16. Кроме того для повышения уровня гигиенического комфорта при разработке проектов московского жилища следует обратить внимание на ограничения при определении высот помещений квартир в мансардном этаже (или верхних этажах с наклонными ограждающими конструкциями) и правила подсчета площадей этих помещений, номенклатуру типов жилища с кухнями (или кухнями-нишами без естественного освещения, требования к остекляемым летним помещениям, а также к параметрам внеквартирных коммуникаций в секционных и коридорных жилых домах (рис. 14).

3.17. Минимальные высоты и правила подсчета площадей помещений с наклонными ограждающими конструкциями.

Пространство комнаты с наклонными ограждающими конструкциями, имеющее высоту от пола до наклонного потолка менее 2,5 м: от 1,9 м до 2,5 м - при углах наклона к горизонту от 30° до 45°; от 1,6 м до 2,5 м - при углах наклона к горизонту от 45° и более - используется ограниченно, в особенности при небольших углах наклона ограждающих конструкций и, как правило, для установки элементов мебели.

Однако понижение высоты помещения с наклонными ограждающими конструкциями (от 1,6 до 2,5 м или от 1,9 до 2,5 м - при соответствующих углах наклона потолка к горизонту) допускается не более, чем на 50 % площади этого помещения.

Площадь помещения с наклонными ограждающими конструкциями (S) в зависимости от углов их наклона к горизонту и минимально нормируемых высот от пола до наклонного потолка (h) подсчитывается следующим образом (рис. 15):

,

где а - глубина помещения, имеющего высоту не менее 2,5 м;

b - ширина помещения;

с - глубина части помещения, имеющая высоту до 2,5 м, но не менее 1,6 м при углах наклона к горизонту 45° и более (или 1,9 м при углах наклона к горизонту от 30° до 45°);

d - глубина части помещения. имеющая высоту менее 1,6 м при углах наклона к горизонту 45° и более (или 1,9 м при углах наклона к горизонту от 30° до 45°).

При расчете площадь части помещения, имеющая размера (d х b), не учитывается.

При углах наклона потолка к горизонту менее 30° площадь помещения рекомендуется подсчитывать также, как и для помещений. имеющих наклон потолка к горизонту от 30° до 45°. При этом высота менее 2,5 м может быть не более, чем на 50 % площади этого помещения.

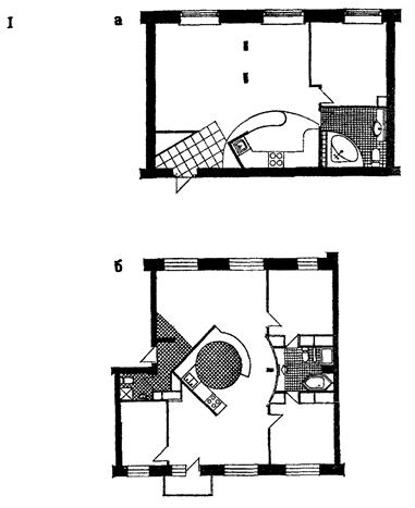
3.18. Кухни или кухни-ниши без естественного освещения могут проектироваться (рис. 16):

в одноквартирных жилых домах и всех типах квартир жилища I категории - при наличии дополнительного места для приема пищи в столовой, гостиной или при наличии второй кухни с естественным освещением (с местом для приема пищи);

в жилых ячейках общежитий и квартирах типов 1М, 2М в жилище II категории.

Кухни (или кухни-ниши без естественного освещения обязательно должна быть оборудованы электроплитами и приточно-вытяжной вентиляцией с механическим побуждением.

3.19. Остекление летних помещений может быть запроектировано как в квартирах, так и в одноквартирных домах. В таблице 5 приведены условия, при которых балконы, лоджии или террасы могут остекляться в жилых домах различных типов.

На рис. 17 приведены примеры остекления летних помещений в жилых домах секционного типа.

Рис. 13. Примеры решений жилых домов с планировочными приемами шумозащиты.

I - Т-образная 10-квартирная секция для застройки южной, восточной и западной сторон магистрали: а - план типового этажа;

II - 2-квартирная секция неограниченной ориентации для застройки любой стороны магистрали (МНИИТЭП. М4. Архитекторы: Датюк В., Богуславский Р.): б - план типового этажа;

III - коридорный жилой дом неограниченной ориентации для застройки любой стороны магистрали: в - план типового этажа; г - планы двухэтажных 3-комнатных квартир (МНИИТЭП. М4, проектное предложение. Архитектор Бочаров Г.).

Рис. 14. Предельная длина вне квартирных коридоров и ширина световых карманов по условиям естественного освещения:

1 - через лестничную клетку; 2 - через лифтовой холл; 3 - с торца коридора и через световой карман (в том числе холл, лифтовой холл, лестничную клетку); 4, 5 - через световые карманы (в том числе холлы, лифтовые холлы, лестничные клетки); 6 - с одного торца коридора; 7 - с двух торцов коридора.

Рис. 15. Мансарды и этажи с наклонными ограждающими конструкциями.

I - взаимосвязь углов наклона конструкций и минимально допустимых высот помещений с наклонными ограждающими конструкциями (схемы разрезов).

II - схемы разрезов и планов к правилам подсчета площадей помещений с наклонными ограждающими конструкциями.

а - глубина помещения с высотой не менее 2,5 м;

b - ширина помещения;

с - глубина части помещения с высотой до 2,5, но не менее 1,6 м при углах наклона к горизонту 45° и более (или 1,9 м - при углах наклона к горизонту от 30 до 45°);

d - глубина части помещения с высотой менее 1,6 м при углах наклона к горизонту 45° и более (или 1,9 м - при углах наклона к горизонту от 30 до 45°);

h - минимально нормируемая высота помещения от пола до наклонного потолка: 1,6 м при углах наклона к горизонту 45° и более; 1,9 м - при углах наклона к горизонту от 30° до 45°.

Рис. 16. Примеры решений кухонь-ниш и кухонь без естественного освещения.

I - в жилище I категории: а - 1-комнатная квартира (Архитекторы Уборевич-Боровский Б. и Вязьмин А.); б - 3-комнатная квартира (Архитекторы Вануни А., Малащонок Л. и Захаров Н.).

II - в жилище II категории: в - 1-комнатная квартира (МНИИТЭП, проектное предложение); г, д - 1- и 2-комнатные квартиры серии на широком шаге поперечных несущих стен (МНИИТЭП, М4. проектное предложение. Архитекторы Горчаков В. и Староносова Е.); е - 2-комнатная квартира серии М6 (ЭКО) (МНИИТЭП, МЗ, проектное предложение. Архитектор Кан В.) ; ж - жилая ячейка общежития.

Таблица 5

ОСТЕКЛЕНИЕ ЛЕТНИХ ПОМЕЩЕНИЙ (БАЛКОНОВ, ЛОДЖИЙ, ТЕРРАС) В КВАРТИРАХ И ОДНОКВАРТИРНЫХ ДОМАХ

Тип жилого дома

Отметка пола верхнего этажа, м

Тип помещения с остекляемым летним помещением

Дополнительные требования

Санитарно-гигиенические

Противопожарные

Секционный

До 15,3

Жилые

Подсобные

Дополнительные

Обеспечение инсоляции – ее продолжительности и числа инсолируемых комнат в

Нет

Коридорный (галерейный)

До 68,5 включительно

 

зависимости от типа квартиры и места

 

Блокированный

Не ограничивается

 

постановки дома.

 

Одноквартирный

 

 

Обеспечение КЕО

 

Секционный

15,3 и более до 68,5

Жилые

Подсобные

Дополнительные

 

Второй эвакуационный выход из квартиры (согласно п. 3.22 МГСН 3.01-96) через летнее неостекленное помещение квартиры или вторую лестничную клетку в доме)

Рис.17. Остекление летних помещений квартир секционных жилых домов.

I - схемы остекления летних помещений в квартирах с отметкой пола более 15,3 м: а - при жилых, подсобных или дополнительных помещениях (в секции с незадымляемой лестничной клеткой 2-го типа), б - при жилых, подсобных или дополнительных помещениях (в секции с незадымляемой лестничной клеткой 1-го типа), в, г - при жилых или подсобных помещениях при наличии в квартире второго эвакуационного выхода (или второй незадымляемой лестничной клетки в секции).

II - примеры остекления лоджий при кухнях; д - в 2-комнатной квартире 3 - 7-этажных блок-секций системы "Бекерон" (МНИИТЭП, М5. Архитекторы Аникин В., Епифанова Е.); е - в 3-комнатной квартире 5 - 9-этажных блок-секций системы "Призма" (МНИИТЭП, М5. Архитекторы Аникин В., Григорьев Ю., Епифанова О. и другие).

ПРОТИВОПОЖАРНЫЕ ТРЕБОВАНИЯ

3.20. При обеспечении требований противопожарной безопасности в жилище достижению разнообразия объемно-планировочных решений жилых зданий способствуют следующие положения:

вариантность применения типов лестничных клеток как основных путей эвакуации в секционных жилых зданиях при площади квартир (жилых ячеек общежитий ) до 550 м2 на этаже секции в зависимости от отметки пола верхнего этажа;

вариантность решения вторых путей эвакуации для квартир (жилых ячеек общежитий) в жилых зданиях секционного типа;

возможность увеличения суммарной площади квартир до 800 м2 на этаже секции при применении компенсирующих противопожарных мероприятий;

применение в коридорных жилых зданиях с отметкой пола верхнего этажа не более 46,1 м незадымляемых лестничных клеток 2-го или 3-го типов (в том числе без естественного освещения);

решение путей эвакуации и устройство внутриквартирных лестниц в многоэтажных (многоуровневых) квартирах.

На формирование структуры жилых зданий и решение их отдельных элементов влияют требования к устройству подъезда пожарных автолестниц и автоподъемников, к проектированию хозяйственных кладовых, каминов и саун, а в жилых домах с квартирами для инвалидов - требования к устройству пожарных лифтов.

3.21. Если в проектируемом жилом здании все квартиры имеют окна, ориентированные на противоположные фасады, то подъезд пожарных автолестниц и автоподъемников может быть запроектирован:

только к одной стороне - продольному фасаду, формируемому из рядовых секций;

к двум сторонам - двум фасадам (со стороны внешнего или внутреннего угла) поворотной секции, имеющей двухстороннюю блокировку.

При наличии в жилом здании квартир с окнами, выходящими только на один фасад, обязательными являются подъезды автолестниц и автоподъемников с двух сторон этого здания. Подъезд для них только с одной стороны допускается при условии оборудования жилого здания системами противопожарной защиты согласно МГСН 4.04-94.

3.22. Пути эвакуации в жилых зданиях проектируются, исходя из определенных граничных параметров.

К минимально нормируемым относятся:

ширина вне квартирных коридоров, составляющая при длине коридора до 40 м - 1,4 м; свыше 40 м - 1,6 м (требование распространяется на проектирование всех типов жилых домов, в том числе с квартирами для семей с инвалидами и для престарелых);

ширина марша пандуса - 1,2 м;

ширина маршей вне квартирных лестниц, ведущих на жилые этажи зданий различных типов, - 1,05 м;

ширина маршей внутриквартирных лестниц - 0,8 м.

Максимально нормируемый уклон маршей лестниц, ведущих на жилые этажи, для зданий различных типов вне зависимости от их этажности составляет 1:1,75.

В общежитиях, кроме того, нормируется длина пути эвакуации на этаже, которая определяется по таблице 1 МГСН 3.01-96 как расстояние от двери жилой ячейки (или поэтажного помещения общественного назначения) до ближайшей лестничной клетки или выхода наружу.

3.23. Применение лестничных клеток различных типов в секционных жилых зданиях в качестве основных путей эвакуации позволяет достигать большого разнообразия архитектурно-планировочных решений этих зданий.

При выборе типов лестничных клеток следует иметь в виду ограничения, связанные с суммарной площадью квартир (жилых ячеек общежитий) на этаже и с отметкой пола верхнего этажа жилого здания.

Отметки пола верхнего этажа жилого здания определяются от уровня проезжей части ближайшего к дому проезда до уровня пола последнего этажа независимо от того, является ли этот этаж жилым или нежилым (в том числе мансардным), первым или вторым (а также другим) уровнем квартиры.

При площади квартир (жилых ячеек общежитий) на этаже секции до 550 м2 в жилом здании следует проектировать один эвакуационный выход из каждой квартиры (жилой ячейки) на следующие типы лестниц при отметке пола не более (табл. 6, 7 и 8):

68,5 м (до 25 этажей включительно) - на незадымляемую лестничную клетку 1-ого типа;

46,1 м (до 17 этажей включительно) - на незадымляемую лестничную клетку 2-го типа с выходом на нее через тамбур (вне квартирный коридор или лифтовой холл) или незадымляемую лестничную клетку 3-го типа с подпором воздуха в тамбур-шлюзе при пожаре;

26,5 м (до 10 этажей включительно) - на обычную лестничную клетку 1-го типа;

26,5 м (до 10 этажей включительно) - на обычную лестничную клетку 2-го типа с верхним естественным освещением через световые проемы в покрытии;

6,9 м (до 3 этажей включительно) - на обычную лестничную клетку 2-го типа с верхним естественным освещением через светопроемы площадью не менее 3,75 м2, при устройстве в квартирах 2-го и 3-го этажей балконов или лоджий с глухим простенком шириной не менее 1,2 м, а также просвета между маршами не менее 0,7 м.

Если в жилом здании с отметкой пола верхнего этажа не более 26,5 м (до 10 этажей включительно) проектируется обычная лестничная клетка 2-го типа с верхним естественным освещением, то необходимо также предусматривать:

защитные сетки под светопроемами в покрытии;

площадь светопроемов - не менее 11,5 м2;

световую шахту на всю высоту лестничной клетки с площадью горизонтального сечения не менее 4 м2;

выходы из квартир на лестничную клетку через вне квартирный коридор, холл или тамбур;

в каждой квартире балкон или лоджию с выходом на наружную лестницу, поэтажно соединяющую их до отметки пола не более 4,1 м (2-й этаж);

автоматическую пожарную сигнализацию в квартирах и вне квартирных коридорах;

открывание створок (фрамуг) в светопроемах дистанционными устройствами или вручную.

Этот тип лестничной клетки не допускается проектировать в общежитиях и специализированных квартирных жилых домах для престарелых и семей с инвалидами.

Примеры планировочных решений секционных жилых домов с лестницами различных типов приведены на рис. 18, 19.

3.24. Второй эвакуационный выход из квартиры (жилой ячейки и поэтажных помещений общественного назначения общежитий) в жилых зданиях секционного типа может быть запроектирован в следующих вариантах (табл. 9):

выход на балкон (или лоджию) с глухим простенком не менее 1,2 м;

поэтажный переход по балконам (или лоджиям) шириной не менее 0,6 м через воздушную зону в смежную секцию;

выход на лестницу 3-го типа. ведущую до этажа с отметкой пола не более 15,3 м (6-й этаж);

выход из вне квартирного коридора на лестницу 3-го типа, ведущую до этажа с отметкой пола не более 4,1 м (2-й этаж), с учетом требований табл. 1 МГСН 3.01-96;

выход через лифтовой холл на лестницу 3-го типа, ведущую до этажа с отметкой пола не более 4,1 м (2-й этаж).

Кроме того вместо перечисленных выше вариантов эвакуационных выходов из квартир в жилом доме при отметке пола верхнего этажа не более 46,1 м может проектироваться выход на дополнительную незадымляемую лестничную клетку 2-го типа, в том числе без естественного освещения.

Примеры решения второго эвакуационного выхода из квартир в домах с незадымляемыми лестничными клетками различных типов показаны на рис. 20.

Второй эвакуационный выход является обязательным только для квартир (жилых ячеек и поэтажных помещений общественного назначения общежитий), отметка пола которых составляет 15,3 м и более. То есть в жилом здании при применении любого типа лестничной клетки второй эвакуационный выход из квартир (жилых ячеек и поэтажных помещений общественного назначения общежитий), расположенных ниже этой отметки, не требуется.

Однако следует иметь в виду, что в секции с незадымляемой лестничной клеткой, решение второго эвакуационного выхода зависит от принятого основного пути эвакуации.

Так, при применении в секции незадымляемой лестничной клетки 1-го типа (если отметка пола верхнего этажа составляет более 46,1 м) в каждой квартире достаточно выполнить только балкон (или лоджию) с глухим простенком 1,2 м.

При применении в секции незадымляемой лестничной клетки 2-го или 3-го типа (если отметка пола верхнего этажа составляет не более 46,1 м) второй эвакуационный выход из квартиры может быть решен различными способами в зависимости от предпочтительного архитектурно-планировочного решения.

Для таких секций в качестве второго эвакуационного выхода, например, может быть использован поэтажный переход по балконам или лоджиям из квартиры (жилой ячейки общежития) через воздушную зону в смежную секцию или же спуск по лестнице 3-го типа (как в торце секции, так и в других ее частях). Возможен и вариант, когда в одних квартирах (жилых ячейках) предусматриваются поэтажные переходы через воздушную зону, а в других - спуски по лестнице 3-го типа. Если же в каждой квартире (жилой ячейке общежития) предусматривается только балкон (или лоджия) с глухим простенком шириной не менее 1,2 м, то в секции должна быть выполнена еще и дополнительная лестница 3-го типа со спуском до этажа с отметкой пола 4,1м (2-й этаж), а выход на эту лестницу должен быть через лифтовой холл.

Кроме того, имеются ограничения по использованию лестницы 3-го типа, а также незадымляемой лестничной клетки 2-го типа (в том числе без естественного освещения) в качестве второго эвакуационного выхода.

Незадымляемая лестничная клетка 2-го типа (в том числе без естественного освещения) не может быть использована в качестве второго эвакуационного выхода в общежитиях и специализированных квартирных жилых домах вне зависимости от их этажности, а в других типах жилых зданий - при отметке пола верхнего этажа более 46,1 м (до 17 этажей включительно).

В специализированных квартирных жилых домах для престарелых и для семей с инвалидами, кроме того, не допускается применение лестницы 3-го типа как при летних помещениях квартир, так и при лифтовых холлах.

3.25. Применение лестничных клеток различных типов в коридорных жилых зданиях в качестве путей эвакуации может быть достаточно разнообразным. Их выбор в соответствии с требованиями пп. 3.23 и 3.24 зависит от суммарной площади квартир (жилых ячеек общежитий) на этаже и отметки пола верхнего этажа жилого здания. Варианты решения путей эвакуации для жилых зданий коридорного типа приведены в таблице 10.

3.26. В качестве путей эвакуации в жилых зданиях коридорного типа могут быть использованы и незадымляемые лестничные клетки без естественного освещения.

Незадымляемая лестничная клетка 2-го типа без естественного освещения (или с естественным освещением) в качестве второго пути эвакуации может быть применена вместо лестницы 3-го типа в коридорном жилом здании с суммарной площадью квартир (жилых ячеек общежитий) не более 550 м2 на этаже и отметке пола верхнего этажа не более 46,1 м.

При площади квартир (жилых ячеек общежитий) на этаже более 550 м2 и отметке пола верхнего этажа не более 26,5м (до 10 этажей включительно) незадымляемые лестничные клетки 2-го или 3-го типа без естественного освещения могут быть применены вместо обычных лестничных клеток 1-го типа. При этом количество незадымляемых лестничных клеток 2-го или 3-го типа без естественного освещения не должно быть более 50 % от общего количества лестничных клеток.

В коридорных жилых зданиях с отметкой пола верхнего этажа не более 46,1 м (до 17 этажей включительно) при площади квартир (жилых ячеек общежитий) на этаже более 550 м2 применяются незадымляемые лестничные клетки 1-го типа (не менее 50 % от общего количества лестничных клеток), а остальные - незадымляемые 2-го или 3-го типа, которые могут быть без естественного освещения (или же с естественным освещением).

Общим требованием при применении незадымляемых лестничных клеток является вход через тамбур (или лифтовой холл) в жилых зданиях с отметкой пола более 26,5 м.

В коридорных жилых зданиях с отметкой пола верхнего этажа не более 26,5 м взамен лестничных клеток 1-го типа при площади квартир (жилых ячеек общежитий) на этаже более 550 м2 может быть применена обычная лестничная клетка 2-го типа с верхним естественным освещением с комплексом противопожарных мероприятий, аналогичная лестничной клетке, применяемой в домах секционного типа той же этажности. При этом количество обычных лестничных клеток 2-го типа с верхним естественным освещением не должно быть более 50 % от общего количества лестничных клеток.

3.27. Компенсирующие противопожарные мероприятия в жилом здании в виде автоматической пожарной сигнализации (при отметке пола верхнего этажа не более 26,5 м ) или автоматического пожаротушения (при отметке пола верхнего этажа более 26,5 м) следует предусматривать в тех случаях, когда суммарная площадь квартир на этаже секции или на этаже коридорного жилого дома с лестницей 3-го типа составляет от 550 м2 до 800 м2.

При этом сохраняются требования пп. 3.21 (с учетом п. 3.22) и 3.23 МГСН 3.01-96.

Однако такое увеличение суммарной площади жилища на этаже не может быть осуществлено при проектировании общежитий для студентов и аспирантов, а также специализированных квартирных жилых домов для престарелых и инвалидов.

3.28. Многоэтажные (многоуровневые) квартиры могут проектироваться в жилых зданиях с отметкой пола верхнего этажа (в той числе мансардного) до 68,5 м включительно.

Выход на лестничную клетку из многоэтажных (многоуровневых) квартир может быть выполнен через этаж. На этажах, где такой выход не предусмотрен, в каждой квартире должен быть запроектирован балкон (или лоджия) с глухим простенком шириной не менее 1,2 м, или переход через воздушную зону в смежную секцию, или спуск по лестнице 3-го типа.

Данные требования по организации эвакуационных выходов для этажей многоуровневых квартир следует применять при проектировании многоквартирных жилых домов секционного, коридорного и коридорно-секционного типов. Однако эти требования не распространяются на проектирование одноквартирных домов и квартир блокированных жилых домов.

На рис. 21 показаны схемы разрезов двухуровневых и трехуровневых квартир с эвакуационными выходами из них, а также пример решения двухуровневой квартиры.

Внутриквартирные лестницы могут проектироваться одно-, двух- или трехмаршевыми, в том числе с забежными ступенями, а также винтовыми (рис. 22).

3.29. Требования к хозяйственным кладовым, размещаемым в первом, цокольном и подвальном этажах, сформулированы в п. 3.29 МГСН 3.01-96. Эти требования не распространяются на проектирование хозяйственных кладовых в одноквартирных и блокированных жилых домах.

Примеры планировочных решений хозяйственных кладовых в многоквартирных жилых домах приведены в иллюстрациях к разделу 4.

3.30. Сауны в квартирах или одноквартирных домах жилища I категории могут быть выполнены, если в проекте предусматриваются мероприятия и оборудование согласно п. 3.31 МГСН 3.01-96. Объем парильной предусматривается не более чем на 2 человека. Вентиляция для каждой парильной должна быть автономная с естественным побуждением - с притоком из смежного помещения под печь и вытяжкой из нижней зоны.

На рис. 23 приведены примеры размещения сауны в одноквартирном жилом доме и в квартире многоэтажного жилого дома.

3.31. Камины на твердом топливе (рис.24) могут быть запроектированы в квартирах, размещаемых на последних этажах многоквартирных секционных, коридорных и коридорно-секционных домов, а также домов смешанных планировочных структур.

Требованием, обязательным для любых типов каминов, проектируемых в квартире, является устройство автономных дымоходов, проходящих через помещения данной квартиры.

В одноквартирных домах камины могут быть запроектированы на любом этаже. В квартирах блокированных жилых домов камины также могут проектироваться на любом этаже в тех случаях, если этот этаж не располагается над этажом (этажами) другой квартиры.


Таблица 6

ПРИМЕНЕНИЕ ЛЕСТНИЧНЫХ КЛЕТОК РАЗЛИЧНЫХ ТИПОВ В КАЧЕСТВЕ ОСНОВНЫХ ПУТЕЙ ЭВАКУАЦИИ В СЕКЦИОННЫХ ЖИЛЫХ ЗДАНИЯХ

 

обычная лестничная клетка

незадымляемая лестничная клетка

1-го типа

2-го типа

1-го типа

2-го типа

3-го типа

схема разреза

схема плана секции

схема ЛУ или ЛЛУ


Таблица 7

СХЕМЫ ОБЫЧНЫХ ЛЕСТНИЧНЫХ КЛЕТОК

обычные лестничные клетки

1-го типа

2-го типа

Условные обозначения :

- входы в квартиры

- световой фонарь

- световая шахта

Рис. 18. Примеры секций с обычной лестничной клеткой 1-го типа.

а - фрагмент плана типового этажа секции жилого дома И-1509 (МНИИТЭП, М4. Архитекторы Датюк В., Богуславский Р. и другие); б, в - фрагменты секций.

Таблица 8

СХЕМЫ НЕЗАДЫМЛЯЕМЫХ ЛЕСТНИЧНЫХ КЛЕТОК

незадымляемые лестничные клетки

1-го типа

2-го типа

3-го типа

Условные обозначения:

 - входы в квартиры;

 - подпор;

 - дымоудаление.

Рис. 19. Примеры планировочных решений с незадымляемыми лестничными клетками.

I - планы типовых этажей с незадымляемыми лестничными клетками 1-го типа: а - 22-этажная секция серии Пд3 (МНИИТЭП, М3. Архитекторы Зобнин А. и другие); б - 25-этажный односекционный жилой дом И-521А (МНИИТЭП, М2. Архитектор: Саруханян Р.);

II - планы типовых этажей с незадымляемыми лестничными клетками 2-го типа: в - секция серии Пд1М (МНИИТЭП, М1. Архитекторы Надысев А., Никитин А.); г - 16-этажная секция серии П3М (МНИИТЭП, М3. Архитекторы: Россихин В., Розанова В.).

 



© 2013 Ёшкин Кот :-)