Информационная система
«Ёшкин Кот»

XXXecatmenu

СОВЕТ ЭКОНОМИЧЕСКОЙ ВЗАИМОПОМОЩИ

СТАНДАРТ СЭВ

СТ СЭВ 4409-83

ЕДИНАЯ СИСТЕМА ПРОЕКТНО-КОНСТРУКТОРСКОЙ ДОКУМЕНТАЦИИ СЭВ

ЧЕРТЕЖИ СТРОИТЕЛЬНЫЕ

ПРАВИЛА ВЫПОЛНЕНИЯ ЧЕРТЕЖЕЙ ДЕРЕВЯННЫХ КОНСТРУКЦИЙ

Постановлением Государственного комитета ССОР по делам строительства от 12 декабря 1984 г. № 207 стандарт Совета Экономической Взаимопомощи СТ СЭВ 4409-83 «Единая система проектно-конструкторской документации СЭВ. Чертежи строительные. Правила выполнении чертежей деревянных конструкций»

введен в действие непосредственно в качестве государственного стандарта СССР

в народном хозяйстве СССР

с 01.01.86

в договорно-правовых отношениях по сотрудничеству

с 01.01.86

СОВЕТ ЭКОНОМИЧЕСКОЙ ВЗАИМОПОМОЩИ

СТАНДАРТ СЭВ

СТ СЭВ 4409-83

 

Единая система проектно-конструкторской
документации СЭВ

ЧЕРТЕЖИ СТРОИТЕЛЬНЫЕ

Правила выполнения чертежей деревянных конструкций

 

 

Группа Т52

 

Настоящий стандарт СЭВ устанавливает правила выполнения рабочих чертежей деревянных строительных конструкций зданий и сооружений всех видов.

1. ОБЩИЕ ПОЛОЖЕНИЯ

1.1. Чертежи деревянных конструкций необходимо выполнять с соблюдением общих требований стандартов СЭВ ЕСКД, в том числе СТ СЭВ 3335-81.

1.2. В состав чертежей деревянных конструкции, как правило, включают:

1) чертежи элементов деревянных конструкции, предназначенные для их изготовления в заводских условиях или на строительной площадке;

2) чертежи деревянных конструкций, предназначенные для производства строительно-монтажных работ.

2. ЧЕРТЕЖИ ЭЛЕМЕНТОВ ДЕРЕВЯННЫХ КОНСТРУКЦИЙ

2.1. Чертежи выполняют, как правило, в следующих масштабах:

- сборочные (обзорные) чертежи - 1:10; 1:20; 1:50;

- чертежи выносных элементов и деталей - 1:1; 1:2; 1:5; 1:10; 1:20.

2.2. Правила выполнений линий на чертежах - по СТ СЭВ 1178-78. При этом выполняют сплошной прямой:

толстой линией - видимые контуры на видах и разрезах;

очень толстой линией - клееные соединения и арматуру в конструкциях.

Утвержден Постоянной Комиссией по сотрудничеству в области стандартизации

Дрезден, декабрь 1983 г.

2.3. Условное графическое обозначение дерева в сечении следует изображать в соответствии с СТ СЭВ 860-78. При необходимости изображения других древесных материалов допускается пользоваться дополнительными графическими условными обозначениями.

2.4. Изображения соединений и крепежных деталей следует выполнять в соответствии с СТ СЭВ 138-81 и СТ СЭВ 1978-79. Дополнительные упрощенные и условные изображения в соединениях приведены в таблице.

Наименование соединения

Изображение

Упрощенное

Условное

На шпонках

 

 

 

На скобах

 

На коннекторах

2.5. Допускается элементы деревянных конструкций на сборочных чертежах изображать упрощенно или схематически, дополняя их выносными элементами в более крупном масштабе с необходимой степенью детализации.

2.6. На чертежах элементов приводят размеры и другие необходимые данные по изготовлению и контролю.

2.7. На чертежах при необходимости приводят указания по антисептированию, био- и огнезащите.

Примеры выполнения чертежей элементов деревянных конструкций приведены в Информационном приложении 1.

3. ЧЕРТЕЖИ ДЕРЕВЯННЫХ КОНСТРУКЦИЙ

3.1. Чертежи выполняют, как правило, в следующих масштабах:

- чертежи схем расположения элементов - 1:50; 1:100; 1:200;

- фрагменты - 1:50; 1:100;

- выносные элементы - 1:2; 1:5; 1:10; 1:20.

3.2. На схемах расположения элементы деревянных конструкций изображают схематически - одной линией или контуром.

3.3. При выполнении схем расположения элементы конструкций изображают одной линией по оси элемента, в местах монтажных соединений допускается линию прерывать. Элементы, которые не могут быть изображены одной линией (столбы и прогоны в сечении и др.), выполняют контуром или условными знаками (¨, I, +, ¢).

3.4. При выполнении элементов конструкций на схемах расположения контурами все элементы изображают по их внешним граням.

3.5. При изображении элементов конструкций на схемах расположения применяют следующие типы линии:

для элементов, выполняемых в одну линию, - сплошную очень толстую линию;

для элементов, выполняемых контуром или условными графическими знаками, - сплошную толстую линию.

3.6. При изображении элементов конструкций на схемах расположения контуром применяют следующие типы линий:

- на видах - тонкую сплошную линию;

- в сечении - толстую сплошную линию.

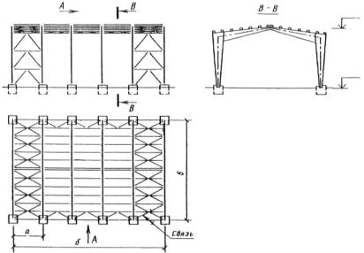
3.7. Пример выполнения схемы расположения элементов деревянной конструкции приведен в Информационном приложении 2.

3.8. Пример чертежа анкеровки деревянных конструкций приведен в Информационном приложении 3.

ИНФОРМАЦИОННОЕ ПРИЛОЖЕНИЕ 1

ПРИМЕРЫ ВЫПОЛНЕНИЯ ЧЕРТЕЖЕЙ ЭЛЕМЕНТОВ ДЕРЕВЯННЫХ КОНСТРУКЦИЙ

Деревянная составная балка на шпонках

Черт. 1

Узлы деревянных конструкций

 

а - клееное узловое соединение (1 - продольный элемент верхнего пояса, 2 и 3 - раскосы,
4 - соединительный элемент с фасонкой); б - гвоздевое узловое соединение (1 и 2 - раскосы,
3 - продольный элемент нижнего пояса)

Черт. 2

ИНФОРМАЦИОННОЕ ПРИЛОЖЕНИЕ 2

ПРИМЕР ВЫПОЛНЕНИЯ СХЕМЫ РАСПОЛОЖЕНИЯ ЭЛЕМЕНТОВ
ДЕРЕВЯННОЙ КОНСТРУКЦИИ

Черт. 3

 

 



© 2013 Ёшкин Кот :-)