Информационная система
«Ёшкин Кот»

Скачать базу одним архивом
Скачать обновления
История создания базы
Карта сайта

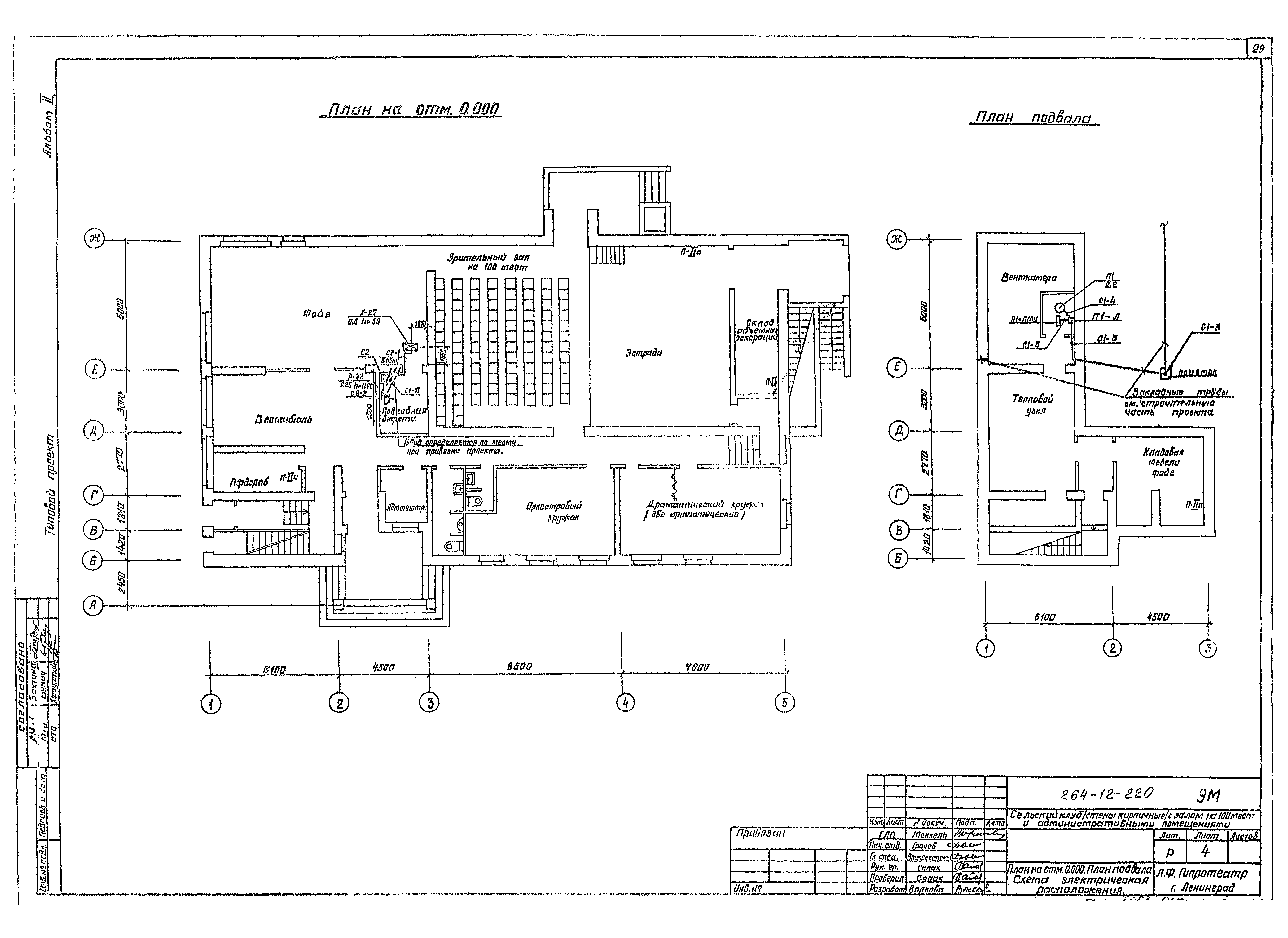
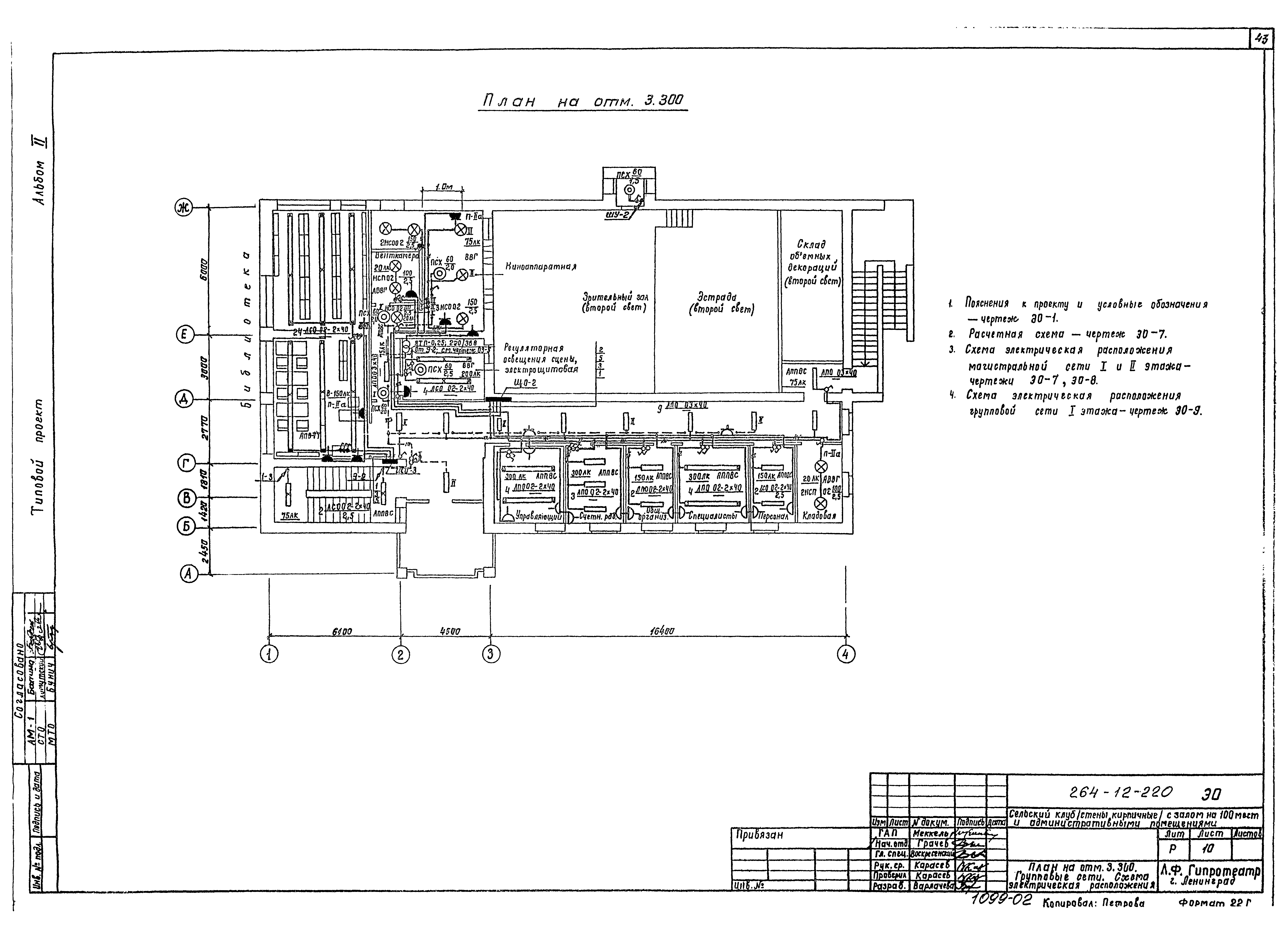
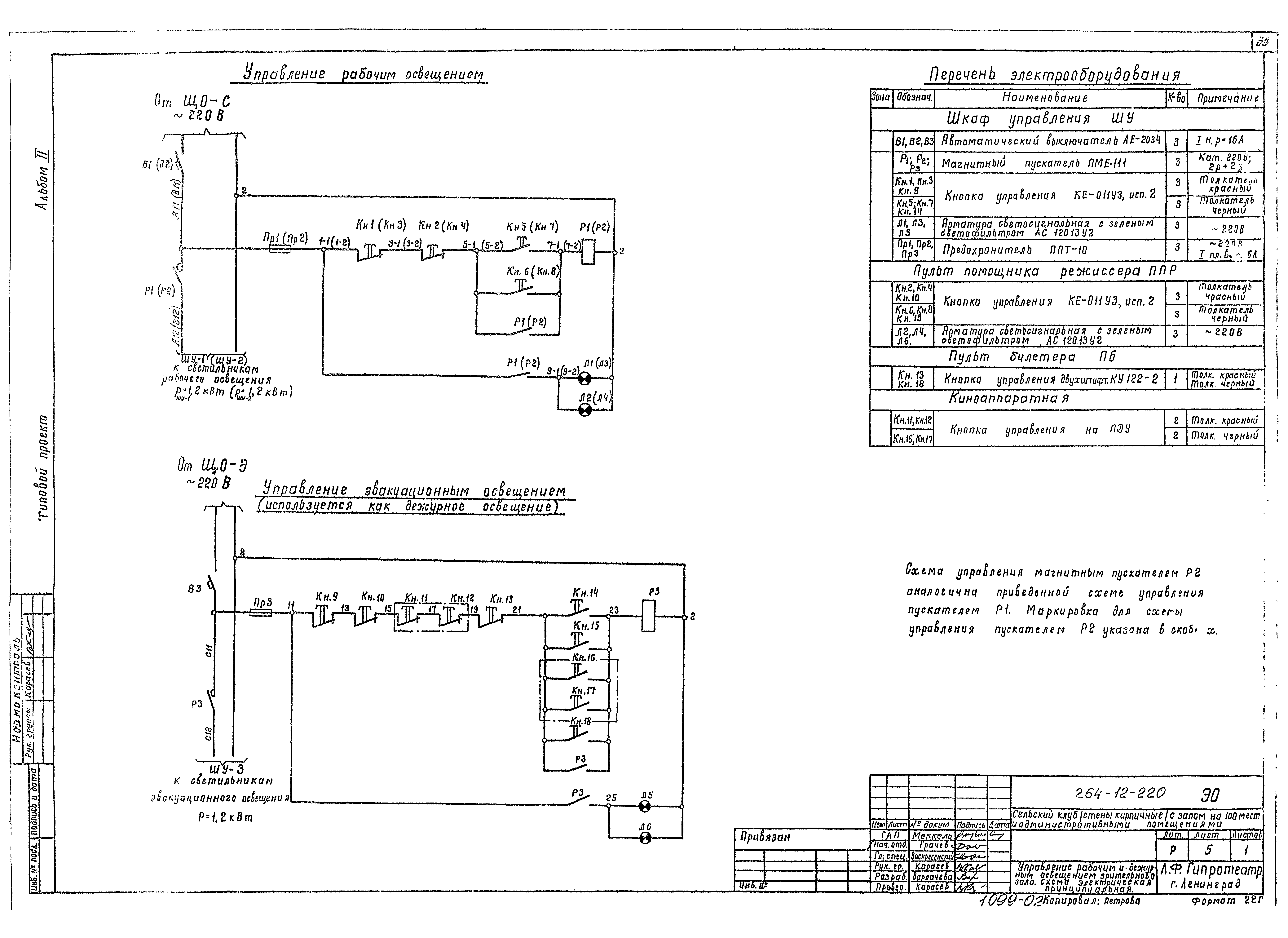
Скачать Типовой проект 264-12-220 Альбом II. Отопление и вентиляция. Водопровод и канализация. Электроснабжение. Силовое электрооборудование. Электроосвещение здания. Освещение сцены. Автоматизация сантехустройств. Электрооборудование водяного пожаротушения

Дата актуализации: 10.08.2017

Типовой проект 264-12-220

Альбом II. Отопление и вентиляция. Водопровод и канализация. Электроснабжение. Силовое электрооборудование. Электроосвещение здания. Освещение сцены. Автоматизация сантехустройств. Электрооборудование водяного пожаротушения

Обозначение: Типовой проект 264-12-220
Обозначение англ: 264-12-220
Статус:действует
Название рус.:Альбом II. Отопление и вентиляция. Водопровод и канализация. Электроснабжение. Силовое электрооборудование. Электроосвещение здания. Освещение сцены. Автоматизация сантехустройств. Электрооборудование водяного пожаротушения
Дата добавления в базу:05.05.2017
Дата актуализации:05.05.2017
Разработан: Ленинградский филиал Гипротеатра
Утверждён:13.11.1980 Госгражданстрой (Gosgrazhdanstroy 319)
Расположен в:Техническая документация Строительство Справочные документы Типовые строительные конструкции, изделия и узлы Общероссийский строительный каталог Общественные здания в городах и поселках городского типа Зрелищные и культурно-просветительские учреждения. Здания для органов управления и общественных организаций Зрелищные и культурно-просветительские учреждения Клубы, дома культуры, центры досуга, залы танцевальные, залы игровых автоматов
Типовой проект 264-12-220Типовой проект 264-12-220Типовой проект 264-12-220Типовой проект 264-12-220Типовой проект 264-12-220Типовой проект 264-12-220Типовой проект 264-12-220Типовой проект 264-12-220Типовой проект 264-12-220Типовой проект 264-12-220Типовой проект 264-12-220Типовой проект 264-12-220Типовой проект 264-12-220Типовой проект 264-12-220Типовой проект 264-12-220Типовой проект 264-12-220Типовой проект 264-12-220Типовой проект 264-12-220Типовой проект 264-12-220Типовой проект 264-12-220Типовой проект 264-12-220Типовой проект 264-12-220Типовой проект 264-12-220Типовой проект 264-12-220Типовой проект 264-12-220Типовой проект 264-12-220Типовой проект 264-12-220Типовой проект 264-12-220Типовой проект 264-12-220Типовой проект 264-12-220Типовой проект 264-12-220Типовой проект 264-12-220Типовой проект 264-12-220Типовой проект 264-12-220Типовой проект 264-12-220Типовой проект 264-12-220Типовой проект 264-12-220Типовой проект 264-12-220Типовой проект 264-12-220Типовой проект 264-12-220Типовой проект 264-12-220Типовой проект 264-12-220Типовой проект 264-12-220Типовой проект 264-12-220Типовой проект 264-12-220Типовой проект 264-12-220Типовой проект 264-12-220Типовой проект 264-12-220Типовой проект 264-12-220Типовой проект 264-12-220Типовой проект 264-12-220Типовой проект 264-12-220Типовой проект 264-12-220Типовой проект 264-12-220Типовой проект 264-12-220Типовой проект 264-12-220Типовой проект 264-12-220Типовой проект 264-12-220Типовой проект 264-12-220Типовой проект 264-12-220Типовой проект 264-12-220Типовой проект 264-12-220Типовой проект 264-12-220Типовой проект 264-12-220Типовой проект 264-12-220Типовой проект 264-12-220Типовой проект 264-12-220Типовой проект 264-12-220Типовой проект 264-12-220Типовой проект 264-12-220Типовой проект 264-12-220Типовой проект 264-12-220Типовой проект 264-12-220Типовой проект 264-12-220Типовой проект 264-12-220Типовой проект 264-12-220Типовой проект 264-12-220Типовой проект 264-12-220

© 2013 Ёшкин Кот :-) Карта сайта