Информационная система
«Ёшкин Кот»

Скачать базу одним архивом
Скачать обновления
История создания базы
Карта сайта

Скачать Типовой проект 901-3-251.88 Альбом II. Архитектурные решения. Конструкции железобетонные. Конструкции металлические. Строительные изделия. Организация строительства. Технология производства. Отопление и вентиляция. Силовое электрооборудование. Автоматизация. Электрическое освещение. Связь и сигнализация

Дата актуализации: 10.08.2017

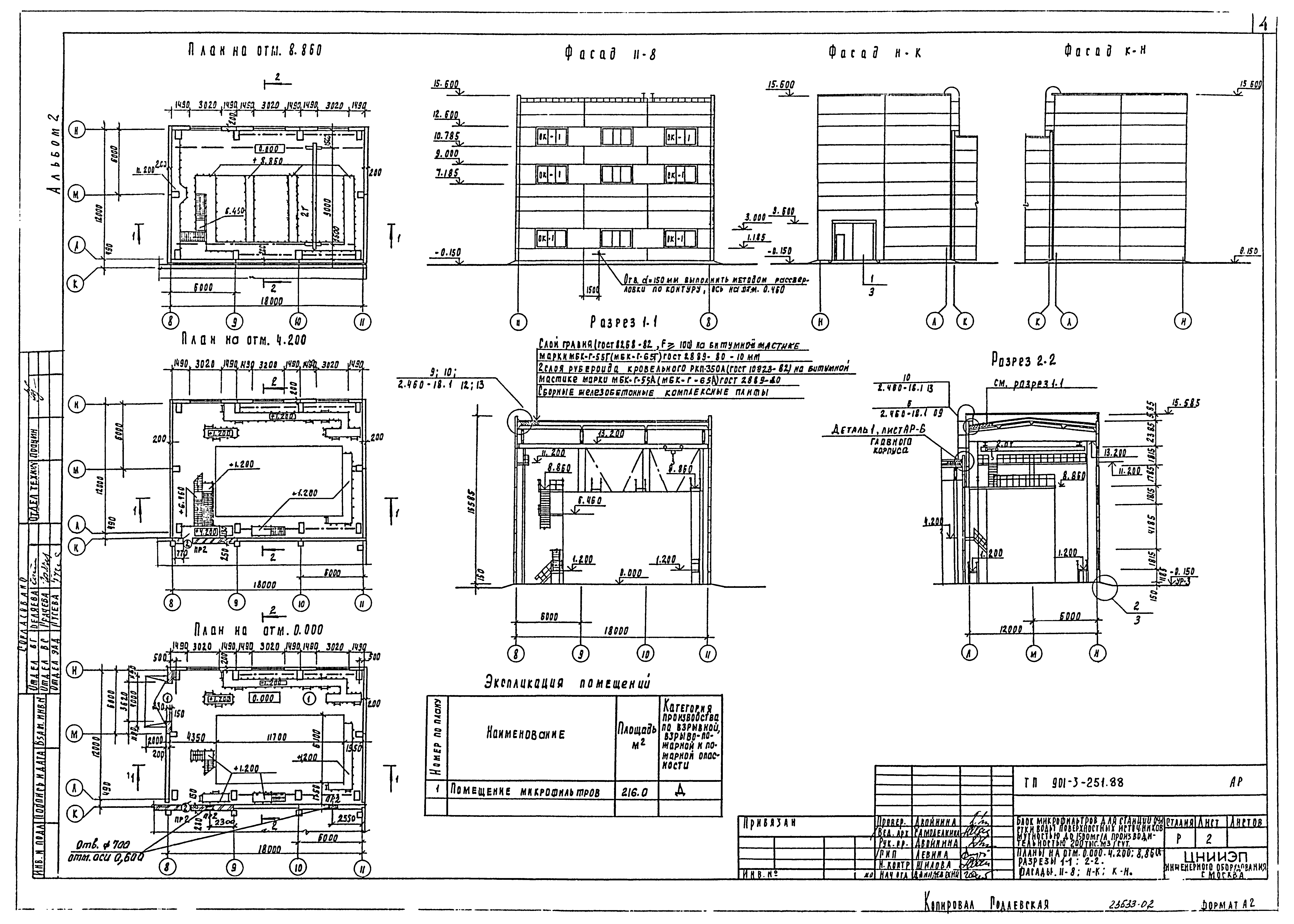
Типовой проект 901-3-251.88

Альбом II. Архитектурные решения. Конструкции железобетонные. Конструкции металлические. Строительные изделия. Организация строительства. Технология производства. Отопление и вентиляция. Силовое электрооборудование. Автоматизация. Электрическое освещение. Связь и сигнализация

Обозначение: Типовой проект 901-3-251.88
Обозначение англ: 901-3-251.88
Статус:не определен законодательством
Название рус.:Альбом II. Архитектурные решения. Конструкции железобетонные. Конструкции металлические. Строительные изделия. Организация строительства. Технология производства. Отопление и вентиляция. Силовое электрооборудование. Автоматизация. Электрическое освещение. Связь и сигнализация
Дата добавления в базу:05.05.2017
Дата актуализации:05.05.2017
Дата введения:30.06.2003
Разработан: ЦНИИЭП инженерного оборудования
Утверждён:29.07.1986 Госгражданстрой (Gosgrazhdanstroy 242)
Издан: ЦИТП Госстроя СССР (CITP, Gosstroy (USSR) 1989 г. )
Расположен в:Техническая документация Строительство Справочные документы Типовые строительные конструкции, изделия и узлы Общероссийский строительный каталог Промышленные предприятия, здания и сооружения Здания и сооружения санитарно-технические Водоснабжение Очистные сооружения Станции очистки воды
Заменяет собой:
Типовой проект 901-3-251.88Типовой проект 901-3-251.88Типовой проект 901-3-251.88Типовой проект 901-3-251.88Типовой проект 901-3-251.88Типовой проект 901-3-251.88Типовой проект 901-3-251.88Типовой проект 901-3-251.88Типовой проект 901-3-251.88Типовой проект 901-3-251.88Типовой проект 901-3-251.88Типовой проект 901-3-251.88Типовой проект 901-3-251.88Типовой проект 901-3-251.88Типовой проект 901-3-251.88Типовой проект 901-3-251.88Типовой проект 901-3-251.88Типовой проект 901-3-251.88Типовой проект 901-3-251.88Типовой проект 901-3-251.88Типовой проект 901-3-251.88Типовой проект 901-3-251.88Типовой проект 901-3-251.88Типовой проект 901-3-251.88Типовой проект 901-3-251.88Типовой проект 901-3-251.88Типовой проект 901-3-251.88Типовой проект 901-3-251.88Типовой проект 901-3-251.88Типовой проект 901-3-251.88Типовой проект 901-3-251.88Типовой проект 901-3-251.88Типовой проект 901-3-251.88Типовой проект 901-3-251.88Типовой проект 901-3-251.88Типовой проект 901-3-251.88Типовой проект 901-3-251.88Типовой проект 901-3-251.88Типовой проект 901-3-251.88Типовой проект 901-3-251.88Типовой проект 901-3-251.88Типовой проект 901-3-251.88Типовой проект 901-3-251.88Типовой проект 901-3-251.88Типовой проект 901-3-251.88Типовой проект 901-3-251.88Типовой проект 901-3-251.88Типовой проект 901-3-251.88Типовой проект 901-3-251.88Типовой проект 901-3-251.88Типовой проект 901-3-251.88Типовой проект 901-3-251.88Типовой проект 901-3-251.88Типовой проект 901-3-251.88Типовой проект 901-3-251.88Типовой проект 901-3-251.88Типовой проект 901-3-251.88Типовой проект 901-3-251.88Типовой проект 901-3-251.88Типовой проект 901-3-251.88Типовой проект 901-3-251.88Типовой проект 901-3-251.88

© 2013 Ёшкин Кот :-) Карта сайта