Информационная система
«Ёшкин Кот»

Скачать базу одним архивом
Скачать обновления
История создания базы
Карта сайта

Скачать СТО 5225-005-63796247-2016 Системы ограничиващих ограждений АВТОДОР на автомобильных дорогах

Дата актуализации: 10.08.2017

СТО 5225-005-63796247-2016

Системы ограничиващих ограждений "АВТОДОР" на автомобильных дорогах

Обозначение: СТО 5225-005-63796247-2016
Обозначение англ: STO 5225-005-63796247-2016
Статус:действует
Название рус.:Системы ограничиващих ограждений "АВТОДОР" на автомобильных дорогах
Дата добавления в базу:05.05.2017
Дата актуализации:05.05.2017
Оглавление:1. Область применения
2. Технические требования
   2.1. Основные параметры и характеристики (свойства)
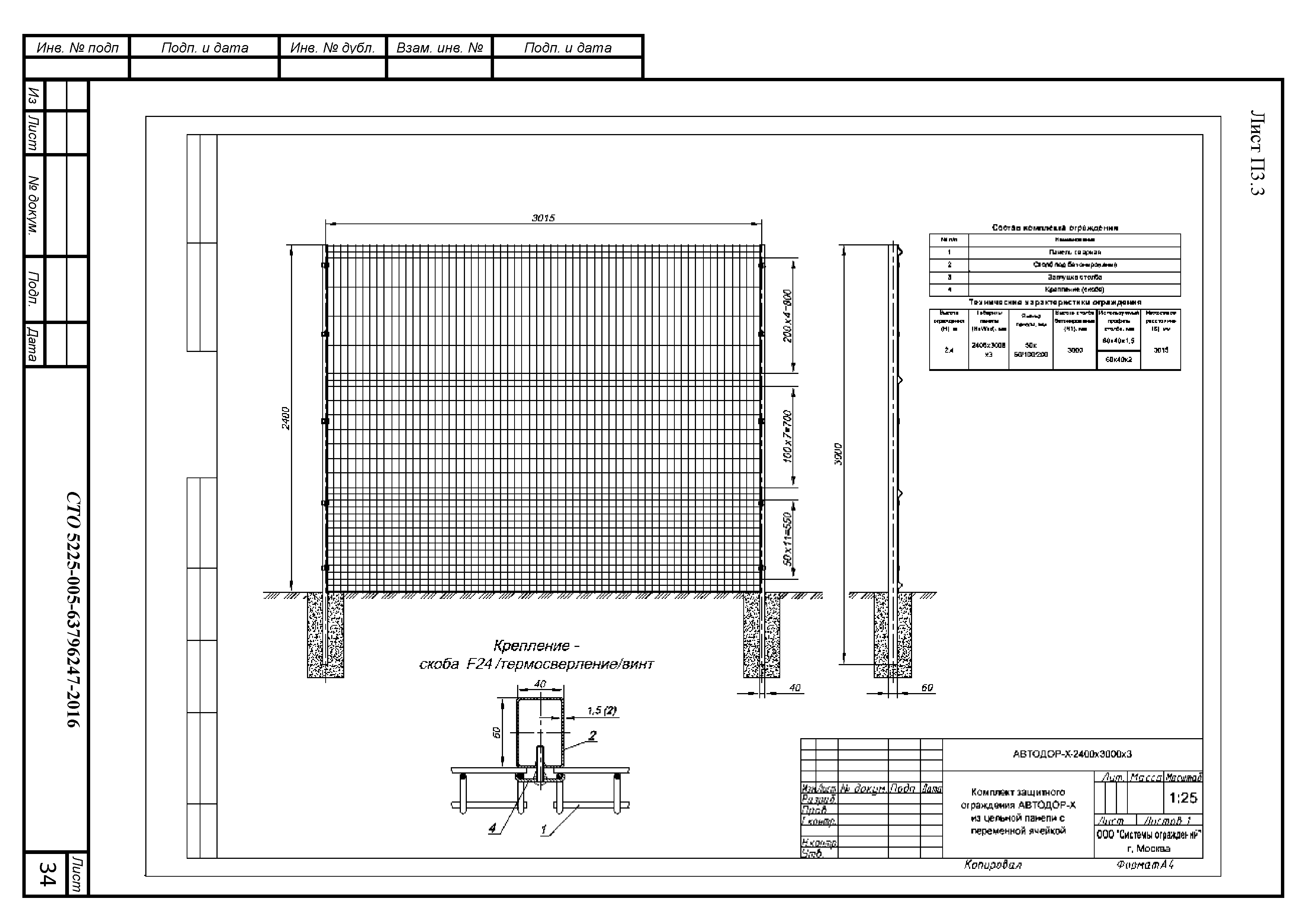
   2.2. Характеристики ограждений серии "АВТОДОР"
   2.3. Требования к сырью, материалам, покупным изделиям
   2.4. Требования к качеству продукции
   2.5. Комплектность
   2.6. Маркировка
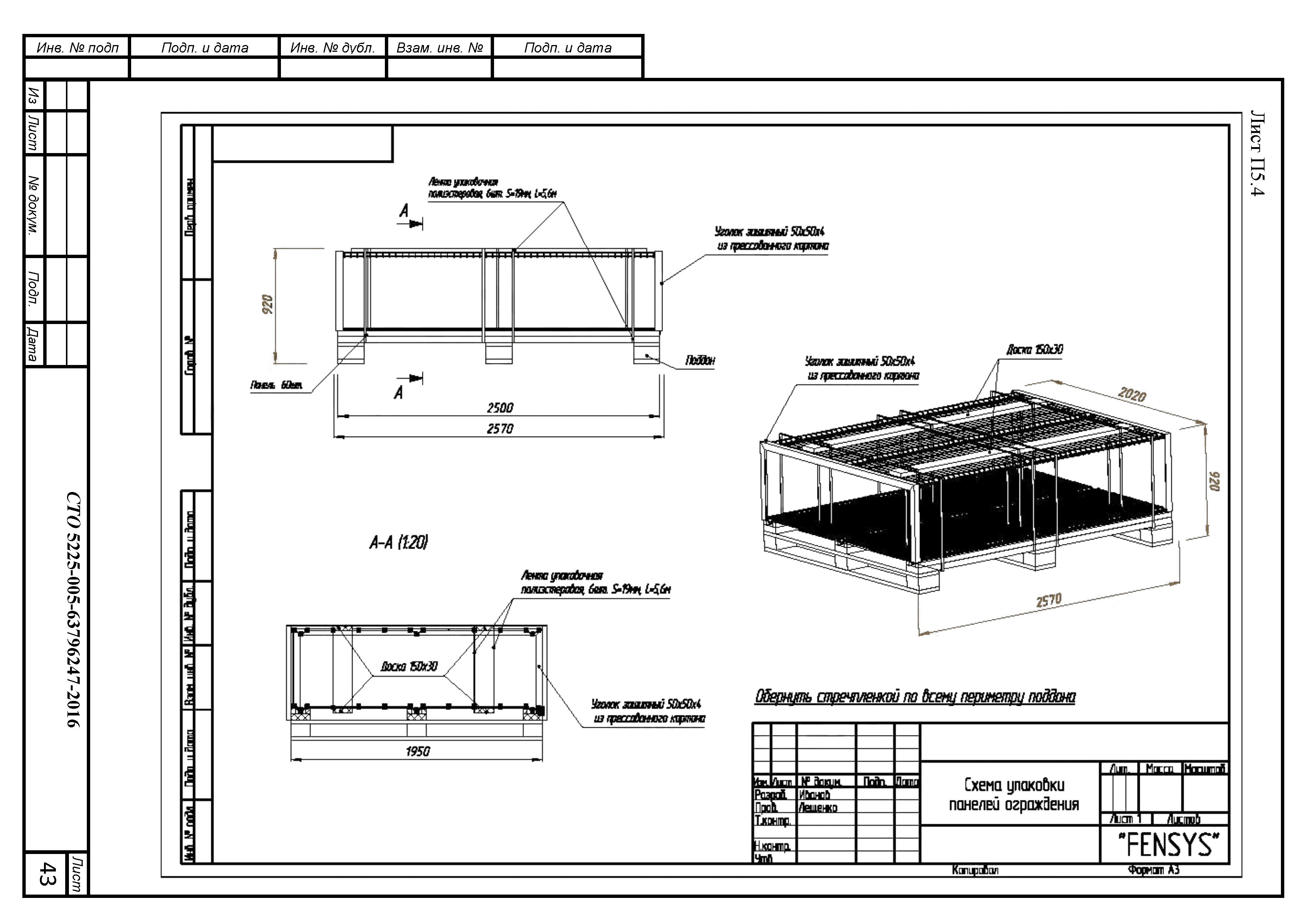
   2.7. Упаковка
3. Требования безопасности
4. Требования охраны окружающей среды
5. Правила приемки
6. Методы контроля
7. Транспортирование и хранение
8. Монтаж ограждения
9. Указания по эксплуатации
10. Гарантии изготовителя
Приложение 1 (обязательное). Перечень документов, на которые даны ссылки в данном СТО
Приложение 2 (обязательное). Перечень приборов и оборудования для контроля продукции
Приложение 3 (обязательное). Чертежи систем ограждений
Приложение 4 (рекомендуемое). Схемы устройства заземления систем ограждений
Приложение 5 (обязательное). Схемы упаковки элементов систем ограждений
Приложение 6 (рекомендуемое). Перечень принятых сокращений, термины и определения
Лист регистрации изменений и дополнений
Разработан: ООО Системы ограждений ФЕНСИС
ООО РЕКСТРОМ-К
Утверждён:01.08.2016 ООО Системы ограждений ФЕНСИС
02.08.2016 ООО РЕКСТРОМ-К
Расположен в:Техническая документация
Нормативные ссылки:
СТО 5225-005-63796247-2016СТО 5225-005-63796247-2016СТО 5225-005-63796247-2016СТО 5225-005-63796247-2016СТО 5225-005-63796247-2016СТО 5225-005-63796247-2016СТО 5225-005-63796247-2016СТО 5225-005-63796247-2016СТО 5225-005-63796247-2016СТО 5225-005-63796247-2016СТО 5225-005-63796247-2016СТО 5225-005-63796247-2016СТО 5225-005-63796247-2016СТО 5225-005-63796247-2016СТО 5225-005-63796247-2016СТО 5225-005-63796247-2016СТО 5225-005-63796247-2016СТО 5225-005-63796247-2016СТО 5225-005-63796247-2016СТО 5225-005-63796247-2016СТО 5225-005-63796247-2016СТО 5225-005-63796247-2016СТО 5225-005-63796247-2016СТО 5225-005-63796247-2016СТО 5225-005-63796247-2016СТО 5225-005-63796247-2016СТО 5225-005-63796247-2016СТО 5225-005-63796247-2016СТО 5225-005-63796247-2016СТО 5225-005-63796247-2016СТО 5225-005-63796247-2016СТО 5225-005-63796247-2016СТО 5225-005-63796247-2016СТО 5225-005-63796247-2016СТО 5225-005-63796247-2016СТО 5225-005-63796247-2016СТО 5225-005-63796247-2016СТО 5225-005-63796247-2016СТО 5225-005-63796247-2016СТО 5225-005-63796247-2016СТО 5225-005-63796247-2016СТО 5225-005-63796247-2016СТО 5225-005-63796247-2016СТО 5225-005-63796247-2016СТО 5225-005-63796247-2016СТО 5225-005-63796247-2016СТО 5225-005-63796247-2016

© 2013 Ёшкин Кот :-) Карта сайта