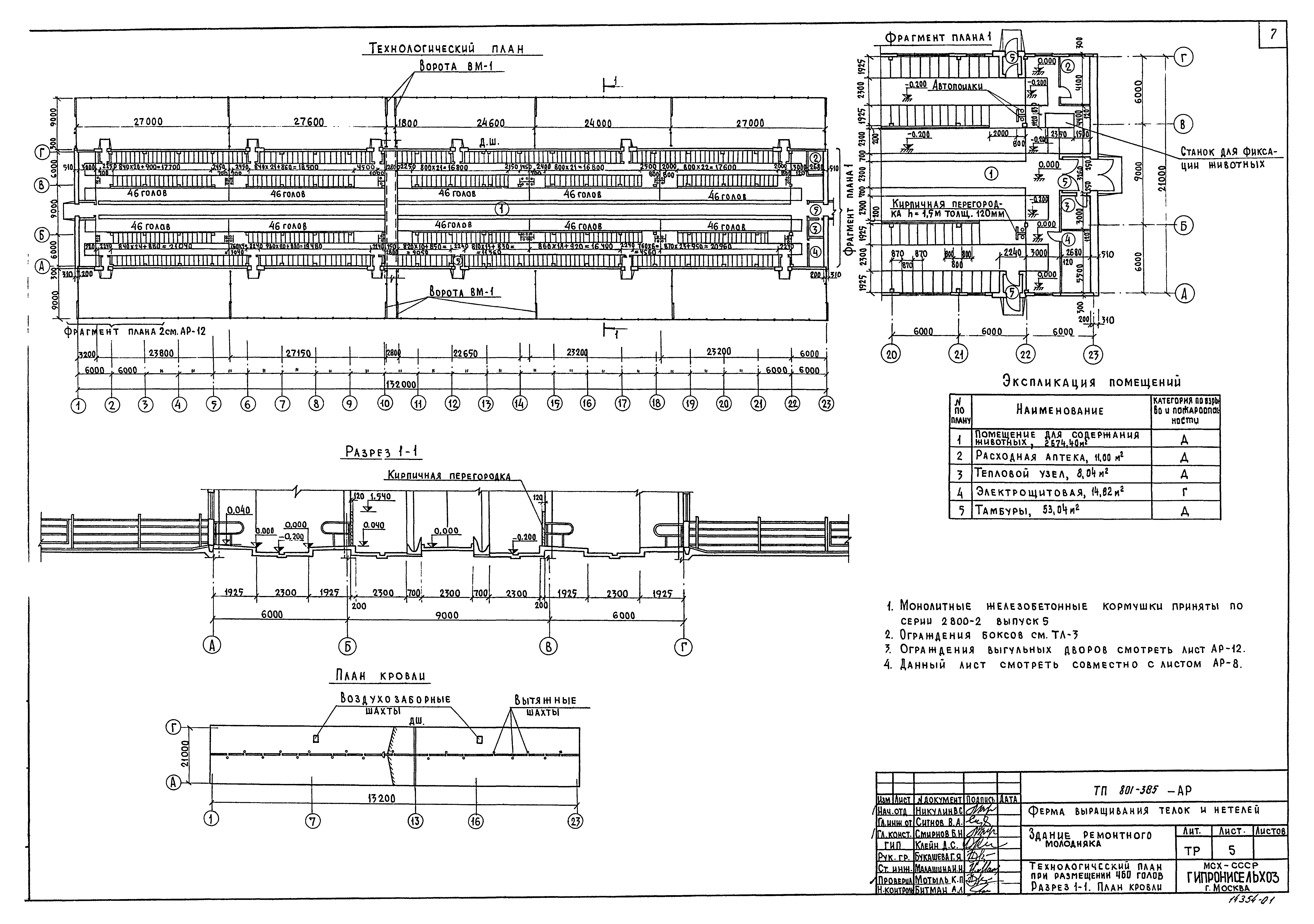
Скачать Типовой проект 801-385 Альбом I. Архитектурно-строительные, технологические, санитарно-технические, электротехнические чертежиДата актуализации: 10.08.2017 Типовой проект 801-385
Альбом I. Архитектурно-строительные, технологические, санитарно-технические, электротехнические чертежиОбозначение: | Типовой проект 801-385 | Обозначение англ: | 801-385 | Статус: | действует | Название рус.: | Альбом I. Архитектурно-строительные, технологические, санитарно-технические, электротехнические чертежи | Дата добавления в базу: | 05.05.2017 | Дата актуализации: | 05.05.2017 | Разработан: | Гипронисельхоз Минсельхоза СССР
| Утверждён: | 12.03.1976 Минсельхоз СССР (USSR Minselkhoz )
| Издан: | ЦИТП Госстроя СССР (CITP, Gosstroy (USSR) 1977 г. )
| Расположен в: |
|
                                                   
|