Информационная система
«Ёшкин Кот»

Скачать базу одним архивом
Скачать обновления
История создания базы
Карта сайта

Скачать Методическое пособие. Разработка методических указаний по проектированию типовых технических решений ограждающих звукоизолирующих конструкций

Дата актуализации: 10.08.2017

Методическое пособие. Разработка методических указаний по проектированию типовых технических решений ограждающих звукоизолирующих конструкций

Статус:действует
Название рус.:Методическое пособие. Разработка методических указаний по проектированию типовых технических решений ограждающих звукоизолирующих конструкций
Дата добавления в базу:05.05.2017
Дата актуализации:05.05.2017
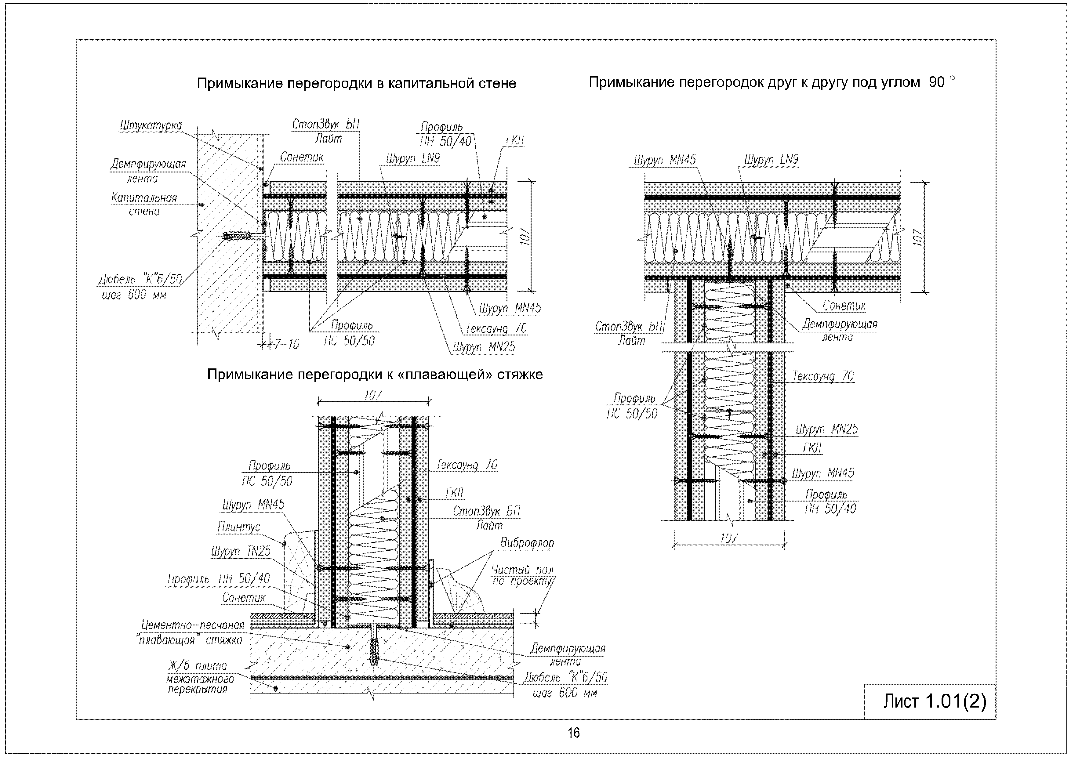
Область применения:Содержащиеся в Методическом пособии типовые инженерные решения рекомендованы для применения при проектировании и строительстве, в том числе при реконструкции и реставрации жилых, общественных и производственных зданий и сооружений любого назначения, с целью улучшения звукоизоляции ограждающих конструкций.
Оглавление:Введение
Область применения
Раздел 1. Общие положения. Нормативы и методики
   Общие положения
   Нормативы и методики
   Перечень схем ограждающих конструкций и помещений для возможного применения
Раздел 2. Звукоизолирующие каркасные перегородки
   Перегородки на одинарном каркасе
   Перегородки на двойном каркасе
   Перегородки на специальном каркасе
Раздел 3. Бескаркасные перегородки и межквартирные стены
   Звукоизолирующие межквартирные стены с облицовкой
   Звукоизолирующие перегородки и межквартирные стены без облицовки
Раздел 4. Звукоизолирующие обшивки стен
Раздел 5. Звукоизолирующие обшивки потолков
Раздел 6. Звукоизолирующие конструкции полов
Приложение А. Перечень акустических материалов и конструктивных элементов
Приложение Б. Нормативные данные (выписка из СП 51.13330.2011 "СНиП 23-03-2003 "Защита от шума")
Приложение В. Методика расчета звукоизоляции внутренних ограждающих конструкций жилых и общественных зданий
Разработан: НИИСФ РАА и СН
АО Гипрогеолстрой
ФГБОУ ВО НИУ МГСУ
Расположен в:Техническая документация Строительство Справочные документы Директивные письма, положения, рекомендации и др.
Нормативные ссылки:

© 2013 Ёшкин Кот :-) Карта сайта