Информационная система
«Ёшкин Кот»

Скачать базу одним архивом
Скачать обновления
История создания базы
Карта сайта

Скачать Типовой проект 264-12-65/75.2 Альбом I. Архитектурно-строительные чертежи

Дата актуализации: 10.08.2017

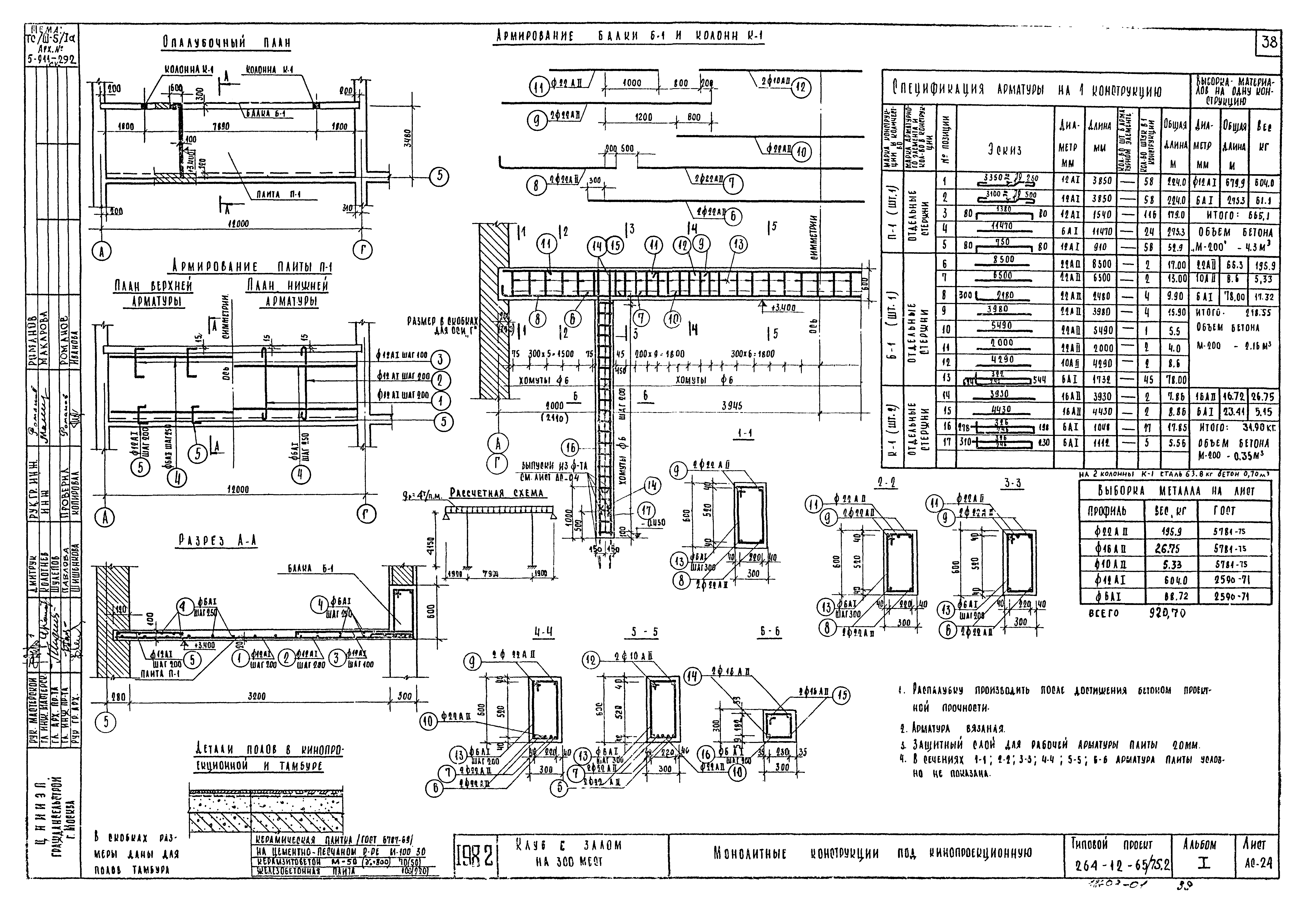
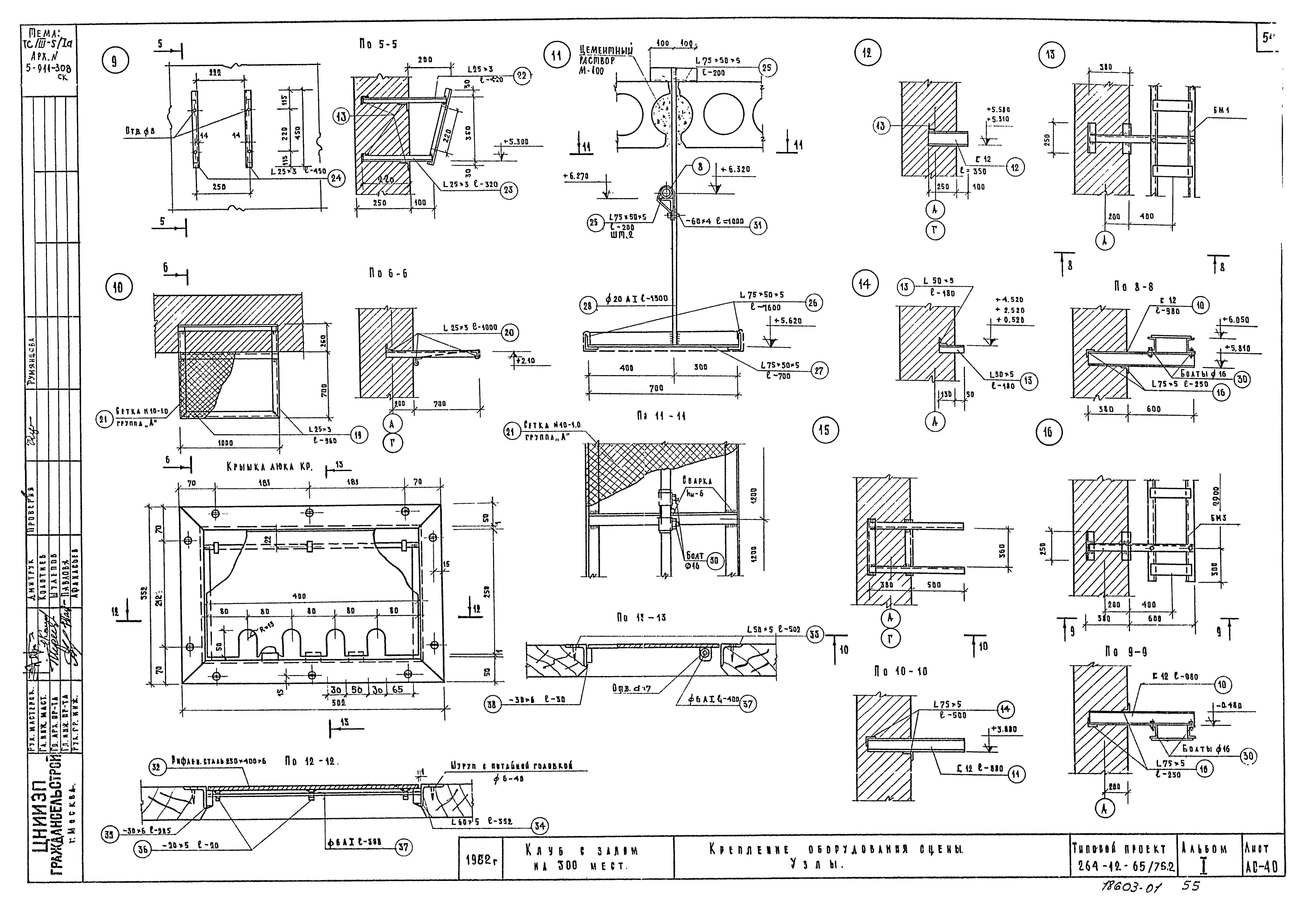
Типовой проект 264-12-65/75.2

Альбом I. Архитектурно-строительные чертежи

Обозначение: Типовой проект 264-12-65/75.2
Обозначение англ: 264-12-65/75.2
Статус:не действует
Название рус.:Альбом I. Архитектурно-строительные чертежи
Дата добавления в базу:01.02.2017
Дата актуализации:05.05.2017
Дата введения:01.05.1987
Разработан: ЦНИИЭП граждансельстрой
Утверждён:28.10.1968 Госстрой РСФСР (Russian Federation Gosstroy 8)
Расположен в:Техническая документация Строительство Справочные документы Типовые строительные конструкции, изделия и узлы Общероссийский строительный каталог Общественные здания в городах и поселках городского типа Зрелищные и культурно-просветительские учреждения. Здания для органов управления и общественных организаций Зрелищные и культурно-просветительские учреждения Клубы, дома культуры, центры досуга, залы танцевальные, залы игровых автоматов
Заменяет собой:
  • Типовой проект 264-12-65/75
Типовой проект 264-12-65/75.2Типовой проект 264-12-65/75.2Типовой проект 264-12-65/75.2Типовой проект 264-12-65/75.2Типовой проект 264-12-65/75.2Типовой проект 264-12-65/75.2Типовой проект 264-12-65/75.2Типовой проект 264-12-65/75.2Типовой проект 264-12-65/75.2Типовой проект 264-12-65/75.2Типовой проект 264-12-65/75.2Типовой проект 264-12-65/75.2Типовой проект 264-12-65/75.2Типовой проект 264-12-65/75.2Типовой проект 264-12-65/75.2Типовой проект 264-12-65/75.2Типовой проект 264-12-65/75.2Типовой проект 264-12-65/75.2Типовой проект 264-12-65/75.2Типовой проект 264-12-65/75.2Типовой проект 264-12-65/75.2Типовой проект 264-12-65/75.2Типовой проект 264-12-65/75.2Типовой проект 264-12-65/75.2Типовой проект 264-12-65/75.2Типовой проект 264-12-65/75.2Типовой проект 264-12-65/75.2Типовой проект 264-12-65/75.2Типовой проект 264-12-65/75.2Типовой проект 264-12-65/75.2Типовой проект 264-12-65/75.2Типовой проект 264-12-65/75.2Типовой проект 264-12-65/75.2Типовой проект 264-12-65/75.2Типовой проект 264-12-65/75.2Типовой проект 264-12-65/75.2Типовой проект 264-12-65/75.2Типовой проект 264-12-65/75.2Типовой проект 264-12-65/75.2Типовой проект 264-12-65/75.2Типовой проект 264-12-65/75.2Типовой проект 264-12-65/75.2Типовой проект 264-12-65/75.2Типовой проект 264-12-65/75.2Типовой проект 264-12-65/75.2Типовой проект 264-12-65/75.2Типовой проект 264-12-65/75.2Типовой проект 264-12-65/75.2Типовой проект 264-12-65/75.2Типовой проект 264-12-65/75.2Типовой проект 264-12-65/75.2Типовой проект 264-12-65/75.2Типовой проект 264-12-65/75.2Типовой проект 264-12-65/75.2Типовой проект 264-12-65/75.2Типовой проект 264-12-65/75.2Типовой проект 264-12-65/75.2

© 2013 Ёшкин Кот :-) Карта сайта