Информационная система
«Ёшкин Кот»

Скачать базу одним архивом
Скачать обновления
История создания базы
Карта сайта

Скачать ГОСТ Р 57271.6-2016 Менеджмент вспомогательных процессов в управлении недвижимостью. Часть 6. Измерение площадей и объемов в управлении недвижимостью

Дата актуализации: 10.08.2017

ГОСТ Р 57271.6-2016

Менеджмент вспомогательных процессов в управлении недвижимостью. Часть 6. Измерение площадей и объемов в управлении недвижимостью

Обозначение: ГОСТ Р 57271.6-2016
Обозначение англ: GOST R 57271.6-2016
Статус:принят
Название рус.:Менеджмент вспомогательных процессов в управлении недвижимостью. Часть 6. Измерение площадей и объемов в управлении недвижимостью
Название англ.:Facility management. Part 6. Area and space measurement in facility management
Дата добавления в базу:01.02.2017
Дата актуализации:05.05.2017
Дата введения:30.11.2016
Дата окончания срока действия:01.12.2017
Область применения:Стандарт соответствует основным принципам планирования и проектирования, управление зонами и пространствами помещений, финансового анализа, а также бенчмаркинга в области управления недвижимостью. Стандарт распространяется на измерение площадей и объемов имеющихся в собственности или арендуемых помещений, а также зданий на стадии проектирования и разработки) Приведенными в настоящем стандарте принципами следует руководствоваться при применении международных стандартов, работе с зарубежными партнерами и анализе данных международных документов. В остальных случаях при выполнении измерений площади и объема необходимо в первую очередь руководствоваться национальными требованиями в этой области.). Стандарт обеспечивает основу для измерения площадей по внутренним и наружным размерам здания. Помимо этого в нем установлены условия и методы измерения площадей и объемов в зданиях и/или в частях зданий независимо от их функционального назначения.
Оглавление:1 Область применения
2 Нормативные ссылки
3 Термины и определения
4 Методы и единицы измерения
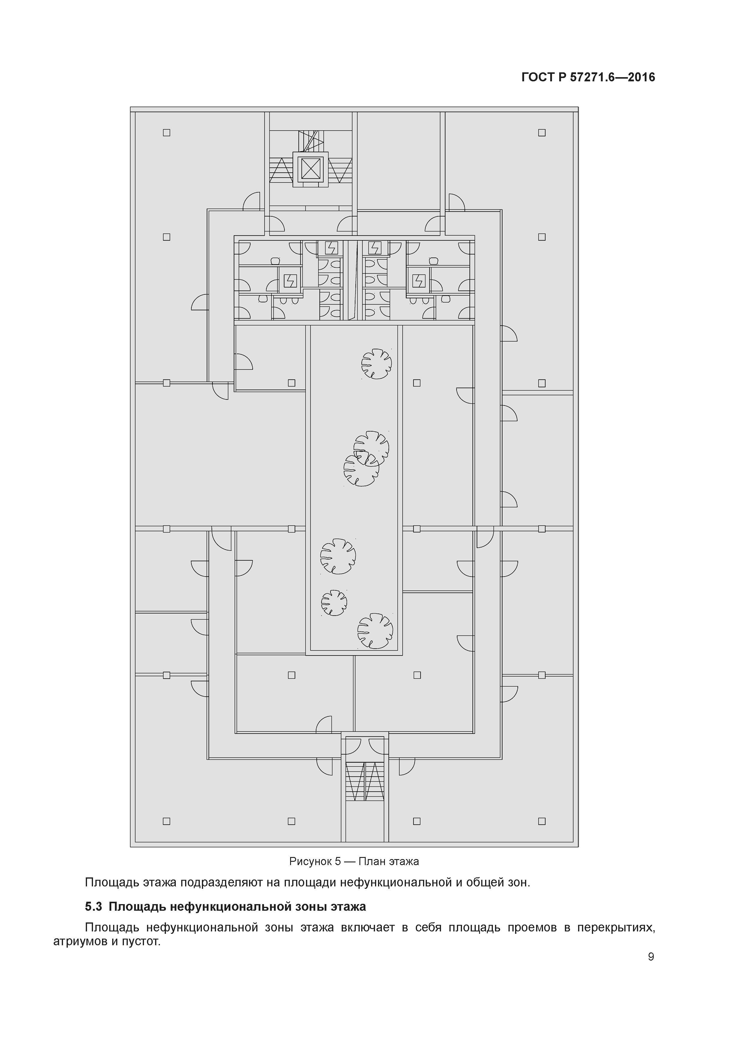
5 Структура измерения площадей и объемов сооружений
6 Измерения площади и объема вне здания
Приложение А (обязательное) Матрица зон
Приложение В (обязательное) дополнительные примеры
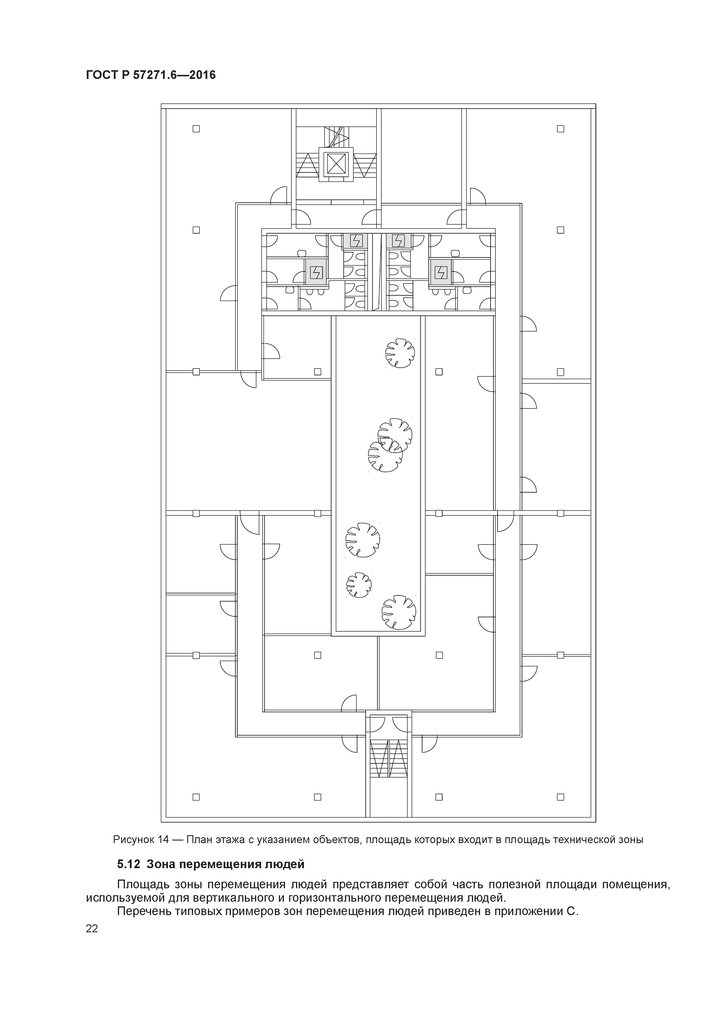
Приложение С (справочное) Примеры технических зон, зон перемещения людей, бытовых зон и основных зон
Приложение ДА (справочное) Сведения о соответствии ссылочных европейских стандартов национальным стандартам Российской Федерации
Библиография
Разработан: ОАО НИЦ КД
Утверждён:30.11.2016 Федеральное агентство по техническому регулированию и метрологии (1861-ст)
Издан: Стандартинформ (2016 г. )
Расположен в:Техническая документация Электроэнергия СОЦИОЛОГИЯ. УСЛУГИ. ОРГАНИЗАЦИЯ ФИРМ И УПРАВЛЕНИЕ ИМИ. АДМИНИСТРАЦИЯ. ТРАНСПОРТ Организация фирм и управление ими Научные исследования и разработки Экология СОЦИОЛОГИЯ. УСЛУГИ. ОРГАНИЗАЦИЯ ФИРМ И УПРАВЛЕНИЕ ИМИ. АДМИНИСТРАЦИЯ. ТРАНСПОРТ Организация фирм и управление ими Научные исследования и разработки
Нормативные ссылки:
ГОСТ Р 57271.6-2016ГОСТ Р 57271.6-2016ГОСТ Р 57271.6-2016ГОСТ Р 57271.6-2016ГОСТ Р 57271.6-2016ГОСТ Р 57271.6-2016ГОСТ Р 57271.6-2016ГОСТ Р 57271.6-2016ГОСТ Р 57271.6-2016ГОСТ Р 57271.6-2016ГОСТ Р 57271.6-2016ГОСТ Р 57271.6-2016ГОСТ Р 57271.6-2016ГОСТ Р 57271.6-2016ГОСТ Р 57271.6-2016ГОСТ Р 57271.6-2016ГОСТ Р 57271.6-2016ГОСТ Р 57271.6-2016ГОСТ Р 57271.6-2016ГОСТ Р 57271.6-2016ГОСТ Р 57271.6-2016ГОСТ Р 57271.6-2016ГОСТ Р 57271.6-2016ГОСТ Р 57271.6-2016ГОСТ Р 57271.6-2016ГОСТ Р 57271.6-2016ГОСТ Р 57271.6-2016ГОСТ Р 57271.6-2016ГОСТ Р 57271.6-2016ГОСТ Р 57271.6-2016ГОСТ Р 57271.6-2016ГОСТ Р 57271.6-2016ГОСТ Р 57271.6-2016ГОСТ Р 57271.6-2016ГОСТ Р 57271.6-2016ГОСТ Р 57271.6-2016ГОСТ Р 57271.6-2016ГОСТ Р 57271.6-2016ГОСТ Р 57271.6-2016ГОСТ Р 57271.6-2016ГОСТ Р 57271.6-2016ГОСТ Р 57271.6-2016ГОСТ Р 57271.6-2016ГОСТ Р 57271.6-2016ГОСТ Р 57271.6-2016ГОСТ Р 57271.6-2016

© 2013 Ёшкин Кот :-) Карта сайта