Скачать Типовые проектные решения Альбом. Приложение Б.1. Помещения общего пользования и квартиры типового этажаДата актуализации: 10.08.2017 Типовые проектные решения
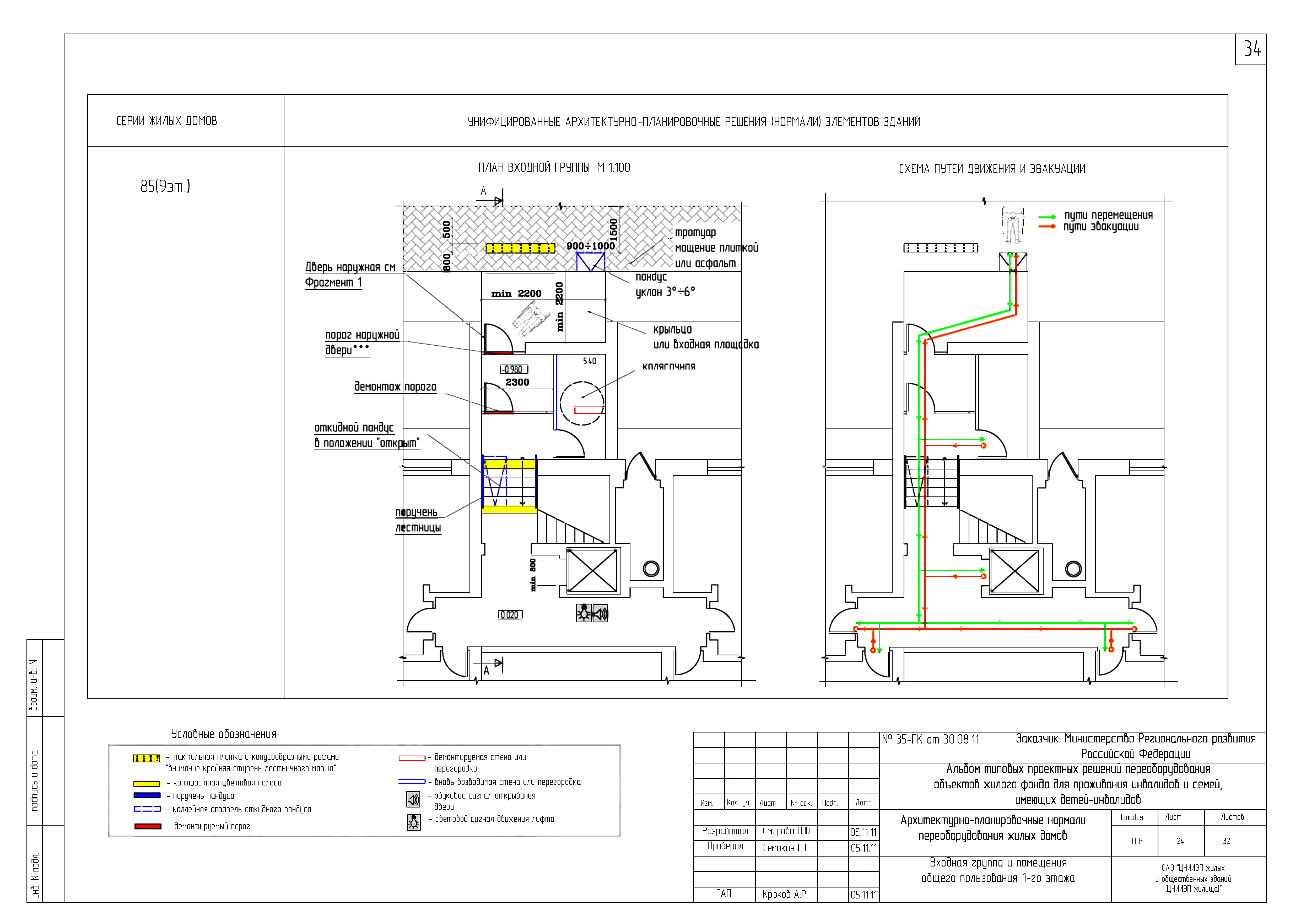
Альбом. Приложение Б.1. Помещения общего пользования и квартиры типового этажаОбозначение: | Типовые проектные решения | Статус: | cправочные материалы, мп, тпр | Название рус.: | Альбом. Приложение Б.1. Помещения общего пользования и квартиры типового этажа | Дата добавления в базу: | 01.02.2017 | Дата актуализации: | 05.05.2017 | Дата введения: | 15.12.2011 | Область применения: | Альбом содержит типовые проектные решения помещений квартир: жилых - общих комнат (гостиных) и спален; вспомогательных (подсобных) - прихожих, коридоров, встроенных шкафов, кладовых, кухонь, ванных, санузлов; летних - балконов, лоджий | Разработан: | ЦНИИЭП жилища
| Утверждён: | 15.12.2011 ЦНИИЭП жилища (TsNIIEPzhilishcha )
| Расположен в: |
|
                                            
|