Информационная система
«Ёшкин Кот»

Скачать базу одним архивом
Скачать обновления
История создания базы
Карта сайта

Скачать Типовые проектные решения Альбом. Приложение А.1. Входные группы и помещения общего пользования 1-го этажа

Дата актуализации: 10.08.2017

Типовые проектные решения

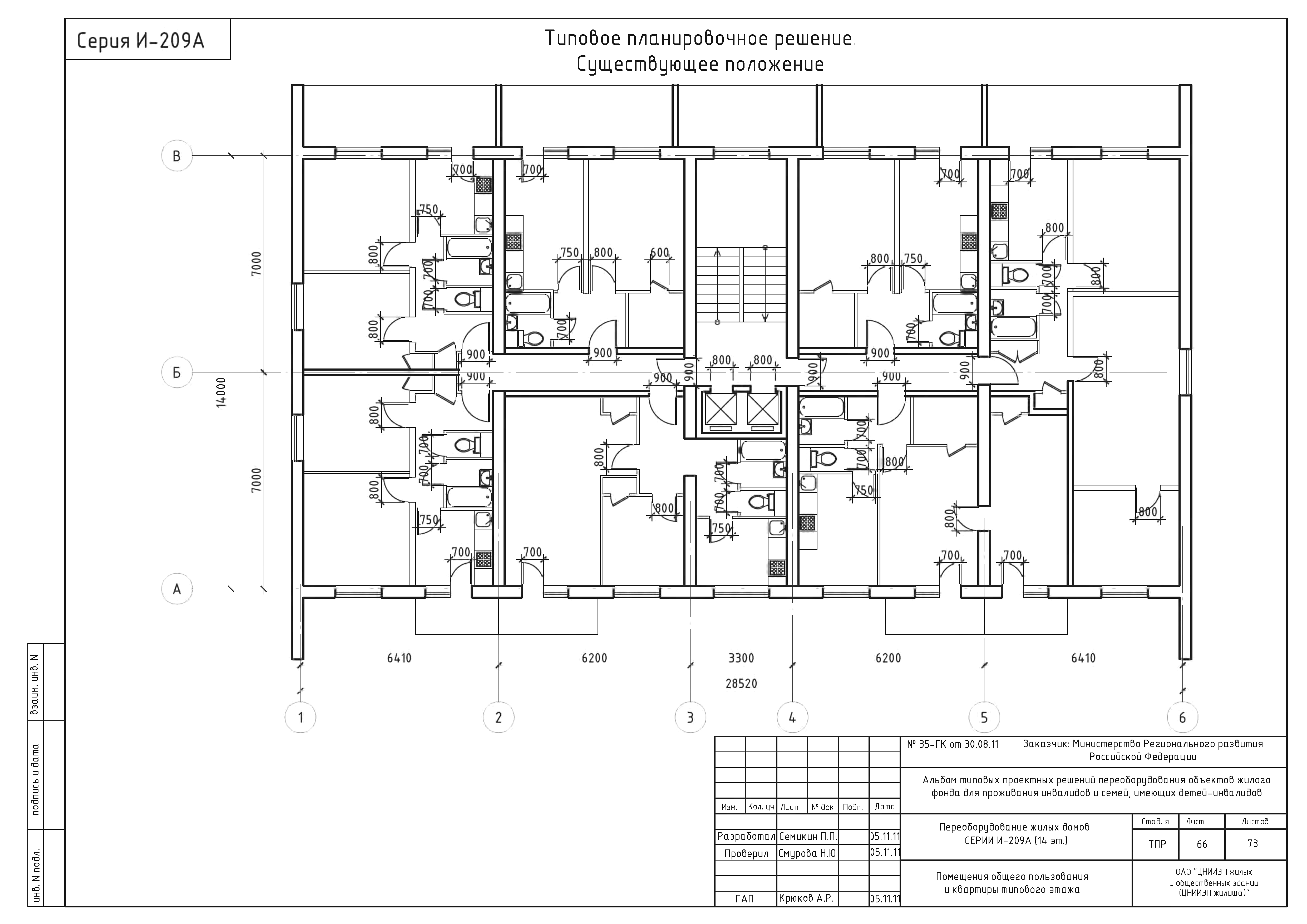
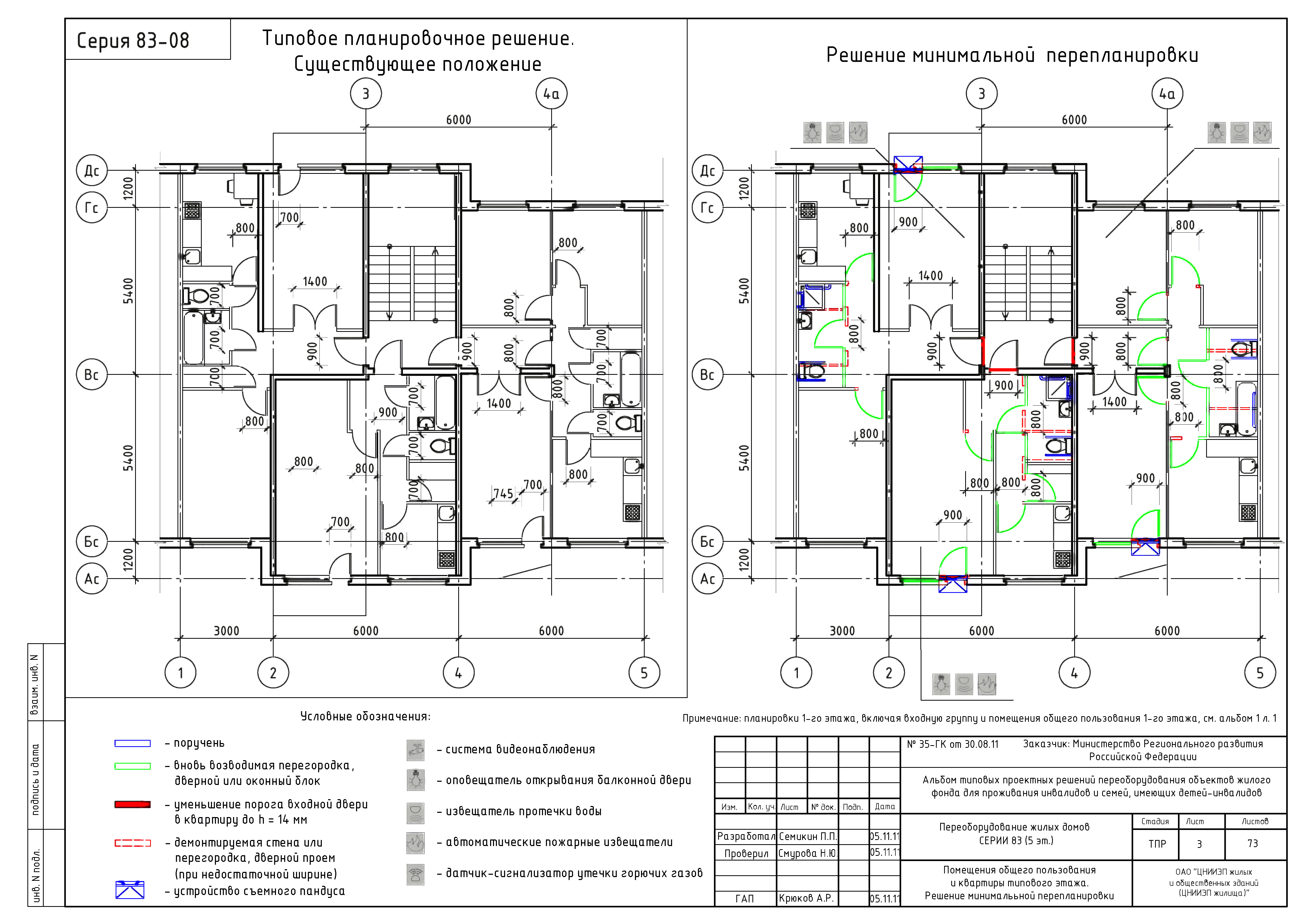
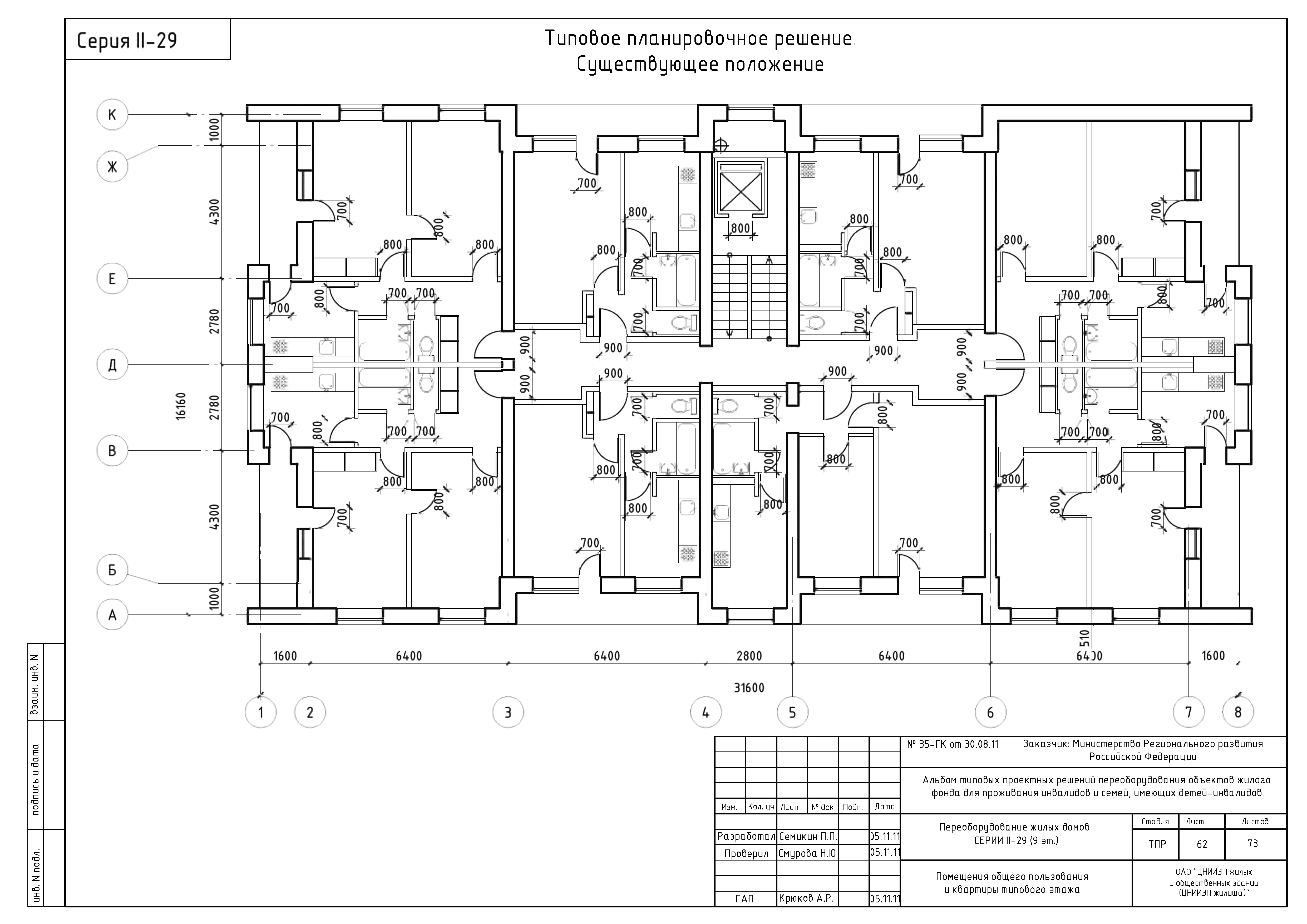
Альбом. Приложение А.1. Входные группы и помещения общего пользования 1-го этажа

Обозначение: Типовые проектные решения
Статус:cправочные материалы, мп, тпр
Название рус.:Альбом. Приложение А.1. Входные группы и помещения общего пользования 1-го этажа
Дата добавления в базу:01.02.2017
Дата актуализации:05.05.2017
Дата введения:15.12.2011
Область применения:Альбом содержит типовые проектные решения придомовой территории в контуре отмостки наружных стен и входной площадки; входной площадки или крыльца с лестницей и пандусом; помещений общего пользования; первая лестничная площадка или первая лестнично-лифтовая площадка
Разработан: ЦНИИЭП жилища
Утверждён:15.12.2011 ЦНИИЭП жилища (TsNIIEPzhilishcha )
Расположен в:Техническая документация Строительство Справочные документы Типовые строительные конструкции, изделия и узлы Разработанные другими министерствами, ведомствами и организациями
Типовые проектные решения Типовые проектные решения Типовые проектные решения Типовые проектные решения Типовые проектные решения Типовые проектные решения Типовые проектные решения Типовые проектные решения Типовые проектные решения Типовые проектные решения Типовые проектные решения Типовые проектные решения Типовые проектные решения Типовые проектные решения Типовые проектные решения Типовые проектные решения Типовые проектные решения Типовые проектные решения Типовые проектные решения Типовые проектные решения Типовые проектные решения Типовые проектные решения Типовые проектные решения Типовые проектные решения Типовые проектные решения Типовые проектные решения Типовые проектные решения Типовые проектные решения Типовые проектные решения Типовые проектные решения Типовые проектные решения Типовые проектные решения Типовые проектные решения Типовые проектные решения Типовые проектные решения Типовые проектные решения Типовые проектные решения Типовые проектные решения Типовые проектные решения Типовые проектные решения Типовые проектные решения Типовые проектные решения Типовые проектные решения Типовые проектные решения Типовые проектные решения Типовые проектные решения Типовые проектные решения Типовые проектные решения Типовые проектные решения Типовые проектные решения Типовые проектные решения Типовые проектные решения Типовые проектные решения Типовые проектные решения Типовые проектные решения Типовые проектные решения Типовые проектные решения Типовые проектные решения Типовые проектные решения Типовые проектные решения Типовые проектные решения Типовые проектные решения Типовые проектные решения Типовые проектные решения Типовые проектные решения Типовые проектные решения Типовые проектные решения Типовые проектные решения Типовые проектные решения Типовые проектные решения Типовые проектные решения Типовые проектные решения Типовые проектные решения Типовые проектные решения Типовые проектные решения Типовые проектные решения Типовые проектные решения Типовые проектные решения

© 2013 Ёшкин Кот :-) Карта сайта