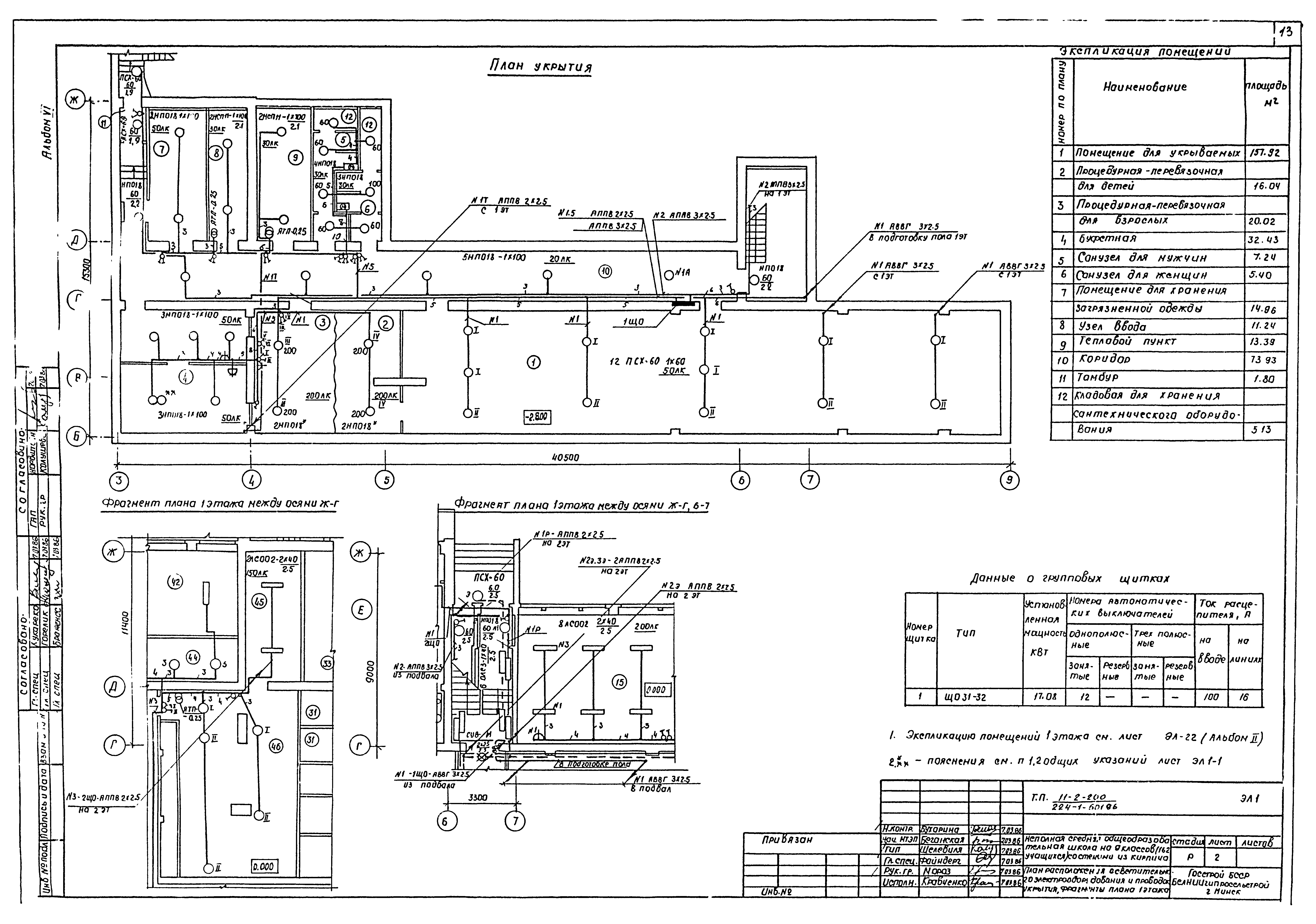
Скачать Типовой проект 224-1-501.86 Альбом VI. Проектная документация на перевод служебных помещений подвала для использования под ПРУДата актуализации: 10.08.2017 Типовой проект 224-1-501.86
Альбом VI. Проектная документация на перевод служебных помещений подвала для использования под ПРУОбозначение: | Типовой проект 224-1-501.86 | Обозначение англ: | 224-1-501.86 | Статус: | действует | Название рус.: | Альбом VI. Проектная документация на перевод служебных помещений подвала для использования под ПРУ | Дата добавления в базу: | 01.02.2017 | Дата актуализации: | 05.05.2017 | Разработан: | БелНИИгипросельстрой
| Утверждён: | 15.07.1986 Госстрой БССР (BSSR Gosstroy 125)
| Издан: | ЦИТП Госстроя СССР (CITP, Gosstroy (USSR) 1987 г. )
| Расположен в: |
|
              
|