Информационная система
«Ёшкин Кот»

Скачать базу одним архивом
Скачать обновления
История создания базы
Карта сайта

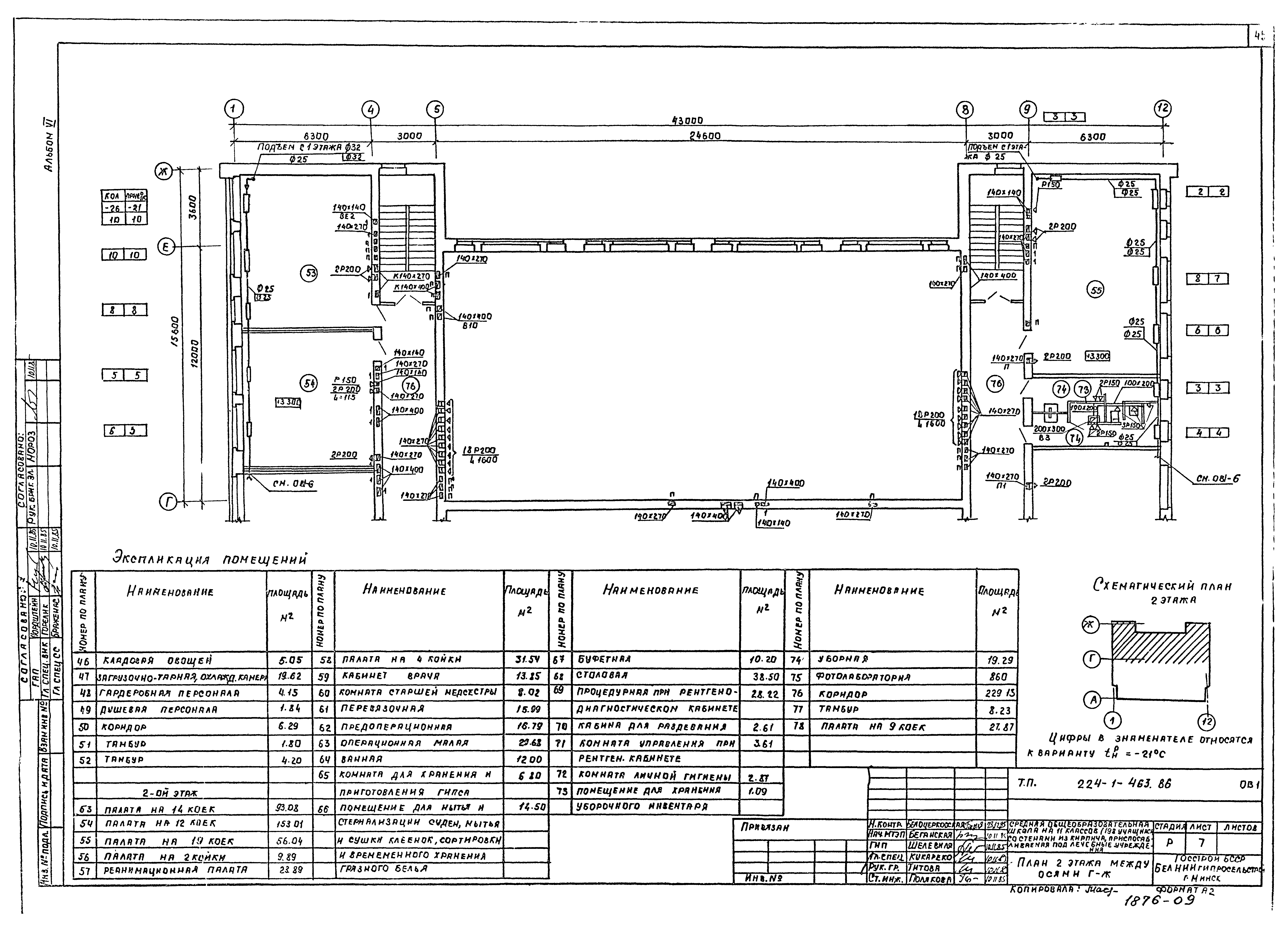
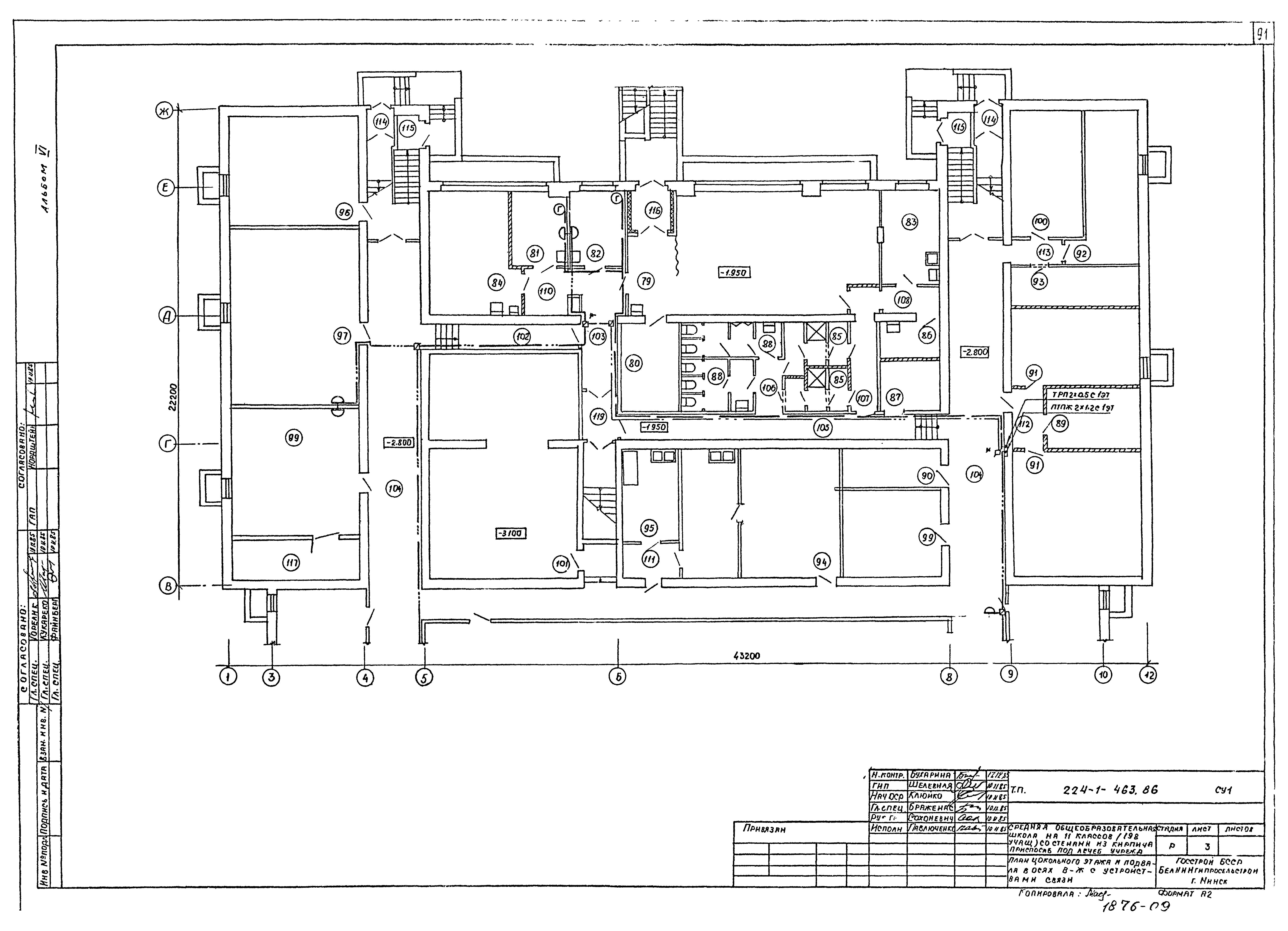
Скачать Типовой проект 224-1-463.86 Альбом VI. Проектная документация на перевод бытовых помещений подвала для использования под ПРУ и на перевод помещений школы для использования под больницу хирургического профиля

Дата актуализации: 10.08.2017

Типовой проект 224-1-463.86

Альбом VI. Проектная документация на перевод бытовых помещений подвала для использования под ПРУ и на перевод помещений школы для использования под больницу хирургического профиля

Обозначение: Типовой проект 224-1-463.86
Обозначение англ: 224-1-463.86
Статус:действует
Название рус.:Альбом VI. Проектная документация на перевод бытовых помещений подвала для использования под ПРУ и на перевод помещений школы для использования под больницу хирургического профиля
Дата добавления в базу:01.02.2017
Дата актуализации:05.05.2017
Разработан: БелНИИгипросельстрой
Утверждён:29.12.1985 Госстрой БССР (BSSR Gosstroy 225)
Издан: ЦИТП Госстроя СССР (CITP, Gosstroy (USSR) 1987 г. )
Расположен в:Техническая документация Строительство Справочные документы Типовые строительные конструкции, изделия и узлы Общероссийский строительный каталог Общественные здания для строительства в сельской местности Школы и внешкольные учреждения Общеобразовательные школы
Типовой проект 224-1-463.86Типовой проект 224-1-463.86Типовой проект 224-1-463.86Типовой проект 224-1-463.86Типовой проект 224-1-463.86Типовой проект 224-1-463.86Типовой проект 224-1-463.86Типовой проект 224-1-463.86Типовой проект 224-1-463.86Типовой проект 224-1-463.86Типовой проект 224-1-463.86Типовой проект 224-1-463.86Типовой проект 224-1-463.86Типовой проект 224-1-463.86Типовой проект 224-1-463.86Типовой проект 224-1-463.86Типовой проект 224-1-463.86Типовой проект 224-1-463.86Типовой проект 224-1-463.86Типовой проект 224-1-463.86Типовой проект 224-1-463.86Типовой проект 224-1-463.86Типовой проект 224-1-463.86Типовой проект 224-1-463.86Типовой проект 224-1-463.86Типовой проект 224-1-463.86Типовой проект 224-1-463.86Типовой проект 224-1-463.86Типовой проект 224-1-463.86Типовой проект 224-1-463.86Типовой проект 224-1-463.86Типовой проект 224-1-463.86Типовой проект 224-1-463.86Типовой проект 224-1-463.86Типовой проект 224-1-463.86Типовой проект 224-1-463.86Типовой проект 224-1-463.86Типовой проект 224-1-463.86Типовой проект 224-1-463.86Типовой проект 224-1-463.86Типовой проект 224-1-463.86Типовой проект 224-1-463.86Типовой проект 224-1-463.86Типовой проект 224-1-463.86Типовой проект 224-1-463.86Типовой проект 224-1-463.86Типовой проект 224-1-463.86Типовой проект 224-1-463.86Типовой проект 224-1-463.86Типовой проект 224-1-463.86Типовой проект 224-1-463.86Типовой проект 224-1-463.86Типовой проект 224-1-463.86Типовой проект 224-1-463.86Типовой проект 224-1-463.86Типовой проект 224-1-463.86Типовой проект 224-1-463.86Типовой проект 224-1-463.86Типовой проект 224-1-463.86Типовой проект 224-1-463.86Типовой проект 224-1-463.86Типовой проект 224-1-463.86Типовой проект 224-1-463.86Типовой проект 224-1-463.86Типовой проект 224-1-463.86Типовой проект 224-1-463.86Типовой проект 224-1-463.86Типовой проект 224-1-463.86Типовой проект 224-1-463.86Типовой проект 224-1-463.86Типовой проект 224-1-463.86Типовой проект 224-1-463.86Типовой проект 224-1-463.86Типовой проект 224-1-463.86Типовой проект 224-1-463.86Типовой проект 224-1-463.86Типовой проект 224-1-463.86Типовой проект 224-1-463.86Типовой проект 224-1-463.86Типовой проект 224-1-463.86Типовой проект 224-1-463.86Типовой проект 224-1-463.86Типовой проект 224-1-463.86Типовой проект 224-1-463.86Типовой проект 224-1-463.86Типовой проект 224-1-463.86Типовой проект 224-1-463.86Типовой проект 224-1-463.86Типовой проект 224-1-463.86Типовой проект 224-1-463.86Типовой проект 224-1-463.86Типовой проект 224-1-463.86Типовой проект 224-1-463.86Типовой проект 224-1-463.86Типовой проект 224-1-463.86Типовой проект 224-1-463.86Типовой проект 224-1-463.86Типовой проект 224-1-463.86Типовой проект 224-1-463.86Типовой проект 224-1-463.86Типовой проект 224-1-463.86Типовой проект 224-1-463.86Типовой проект 224-1-463.86

© 2013 Ёшкин Кот :-) Карта сайта