Информационная система
«Ёшкин Кот»

Скачать базу одним архивом
Скачать обновления
История создания базы
Карта сайта

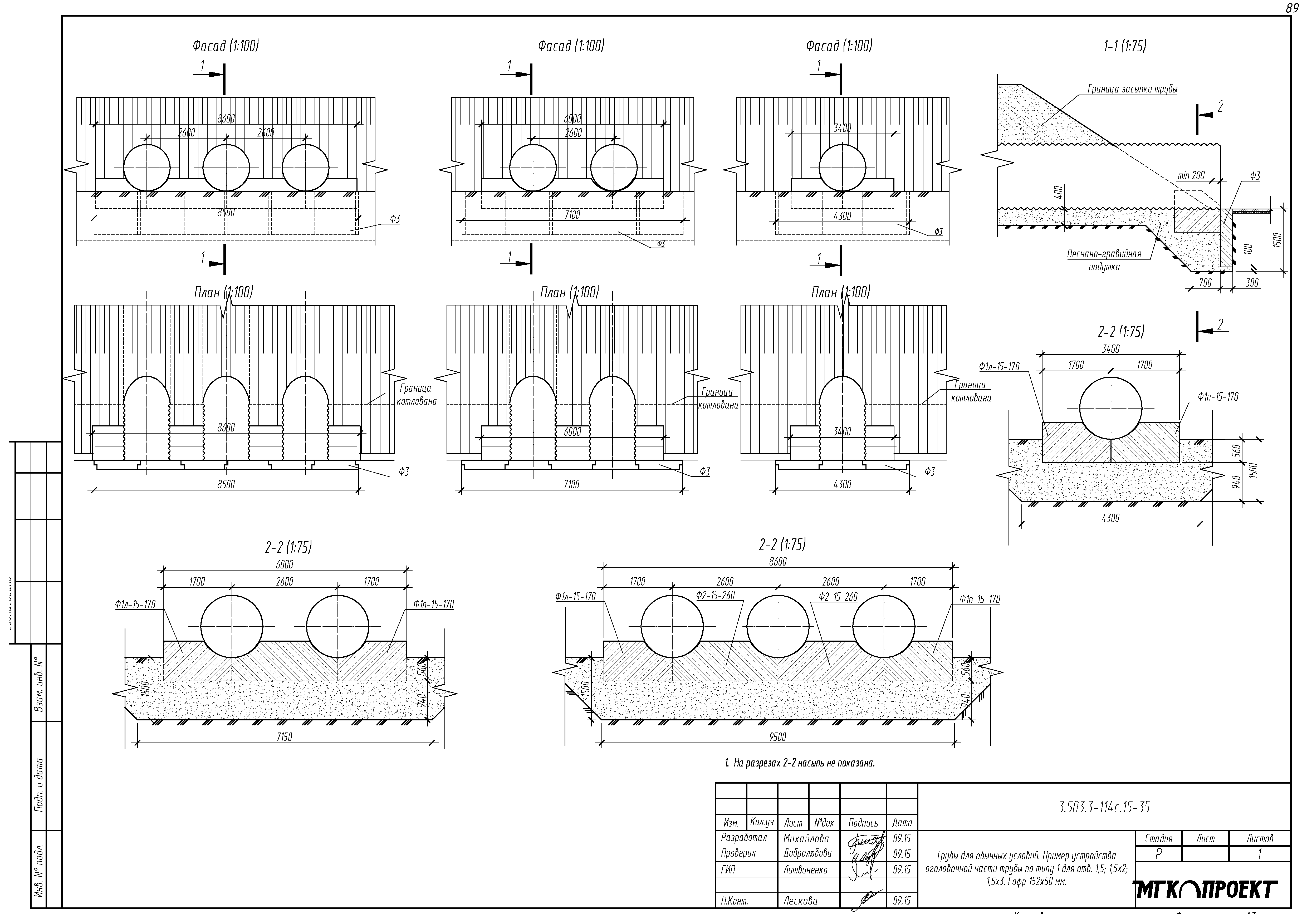
Скачать Серия 3.503.3-114с.15 Выпуск 1. Материалы для проектирования

Дата актуализации: 10.08.2017

Серия 3.503.3-114с.15

Выпуск 1. Материалы для проектирования

Обозначение: Серия 3.503.3-114с.15
Обозначение англ: Series 3.503.3-114с.15
Статус:заменен
Название рус.:Выпуск 1. Материалы для проектирования
Дата добавления в базу:01.02.2017
Дата актуализации:05.05.2017
Дата введения:14.09.2016
Разработан: ООО МГК Проект
Утверждён:01.09.2015 ООО МГК (11)
Расположен в:Техническая документация Строительство Справочные документы Типовые строительные конструкции, изделия и узлы Общероссийский строительный каталог Строительные конструкции, изделия и узлы зданий и сооружений для всех видов строительства Конструкции и изделия сооружений и оборудования зданий Надземные сооружения Конструкции и сооружения транспорта Дорожные водопропускные и водоотводные сооружения
Чем заменён:
  • Серия 3.503.3-115с.16 «Трубы спиральновитые гофрированные металлические отверстием от 0,5 м до 3,0 м с параметрами гофрированного листа 68х12, 114х25,125х26 и 150х50 мм на автомобильных дорогах общего пользования с учетом дорожно-климатических зон»
Серия 3.503.3-114с.15Серия 3.503.3-114с.15Серия 3.503.3-114с.15Серия 3.503.3-114с.15Серия 3.503.3-114с.15Серия 3.503.3-114с.15Серия 3.503.3-114с.15Серия 3.503.3-114с.15Серия 3.503.3-114с.15Серия 3.503.3-114с.15Серия 3.503.3-114с.15Серия 3.503.3-114с.15Серия 3.503.3-114с.15Серия 3.503.3-114с.15Серия 3.503.3-114с.15Серия 3.503.3-114с.15Серия 3.503.3-114с.15Серия 3.503.3-114с.15Серия 3.503.3-114с.15Серия 3.503.3-114с.15Серия 3.503.3-114с.15Серия 3.503.3-114с.15Серия 3.503.3-114с.15Серия 3.503.3-114с.15Серия 3.503.3-114с.15Серия 3.503.3-114с.15Серия 3.503.3-114с.15Серия 3.503.3-114с.15Серия 3.503.3-114с.15Серия 3.503.3-114с.15Серия 3.503.3-114с.15Серия 3.503.3-114с.15Серия 3.503.3-114с.15Серия 3.503.3-114с.15Серия 3.503.3-114с.15Серия 3.503.3-114с.15Серия 3.503.3-114с.15Серия 3.503.3-114с.15Серия 3.503.3-114с.15Серия 3.503.3-114с.15Серия 3.503.3-114с.15Серия 3.503.3-114с.15Серия 3.503.3-114с.15Серия 3.503.3-114с.15Серия 3.503.3-114с.15Серия 3.503.3-114с.15Серия 3.503.3-114с.15Серия 3.503.3-114с.15Серия 3.503.3-114с.15Серия 3.503.3-114с.15Серия 3.503.3-114с.15Серия 3.503.3-114с.15Серия 3.503.3-114с.15Серия 3.503.3-114с.15Серия 3.503.3-114с.15Серия 3.503.3-114с.15Серия 3.503.3-114с.15Серия 3.503.3-114с.15Серия 3.503.3-114с.15Серия 3.503.3-114с.15Серия 3.503.3-114с.15Серия 3.503.3-114с.15Серия 3.503.3-114с.15Серия 3.503.3-114с.15Серия 3.503.3-114с.15Серия 3.503.3-114с.15Серия 3.503.3-114с.15Серия 3.503.3-114с.15Серия 3.503.3-114с.15Серия 3.503.3-114с.15Серия 3.503.3-114с.15Серия 3.503.3-114с.15Серия 3.503.3-114с.15Серия 3.503.3-114с.15Серия 3.503.3-114с.15Серия 3.503.3-114с.15Серия 3.503.3-114с.15Серия 3.503.3-114с.15Серия 3.503.3-114с.15Серия 3.503.3-114с.15Серия 3.503.3-114с.15Серия 3.503.3-114с.15Серия 3.503.3-114с.15Серия 3.503.3-114с.15Серия 3.503.3-114с.15Серия 3.503.3-114с.15Серия 3.503.3-114с.15Серия 3.503.3-114с.15Серия 3.503.3-114с.15Серия 3.503.3-114с.15Серия 3.503.3-114с.15Серия 3.503.3-114с.15Серия 3.503.3-114с.15Серия 3.503.3-114с.15Серия 3.503.3-114с.15Серия 3.503.3-114с.15Серия 3.503.3-114с.15Серия 3.503.3-114с.15Серия 3.503.3-114с.15Серия 3.503.3-114с.15Серия 3.503.3-114с.15Серия 3.503.3-114с.15Серия 3.503.3-114с.15Серия 3.503.3-114с.15Серия 3.503.3-114с.15Серия 3.503.3-114с.15Серия 3.503.3-114с.15Серия 3.503.3-114с.15Серия 3.503.3-114с.15Серия 3.503.3-114с.15Серия 3.503.3-114с.15Серия 3.503.3-114с.15Серия 3.503.3-114с.15Серия 3.503.3-114с.15Серия 3.503.3-114с.15Серия 3.503.3-114с.15Серия 3.503.3-114с.15Серия 3.503.3-114с.15Серия 3.503.3-114с.15Серия 3.503.3-114с.15Серия 3.503.3-114с.15Серия 3.503.3-114с.15Серия 3.503.3-114с.15Серия 3.503.3-114с.15Серия 3.503.3-114с.15Серия 3.503.3-114с.15Серия 3.503.3-114с.15Серия 3.503.3-114с.15Серия 3.503.3-114с.15Серия 3.503.3-114с.15Серия 3.503.3-114с.15Серия 3.503.3-114с.15Серия 3.503.3-114с.15Серия 3.503.3-114с.15Серия 3.503.3-114с.15Серия 3.503.3-114с.15Серия 3.503.3-114с.15Серия 3.503.3-114с.15Серия 3.503.3-114с.15Серия 3.503.3-114с.15Серия 3.503.3-114с.15Серия 3.503.3-114с.15

© 2013 Ёшкин Кот :-) Карта сайта