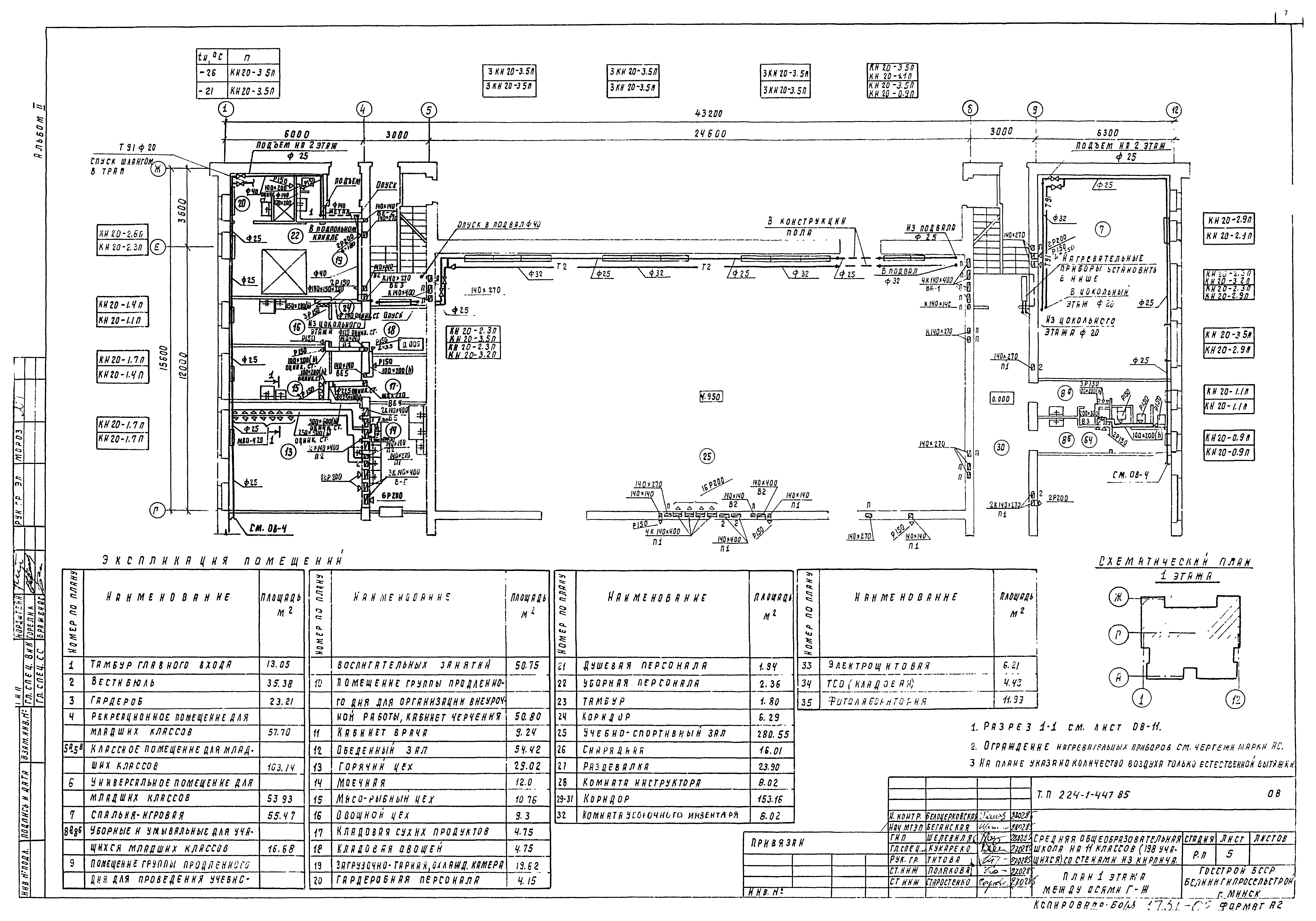
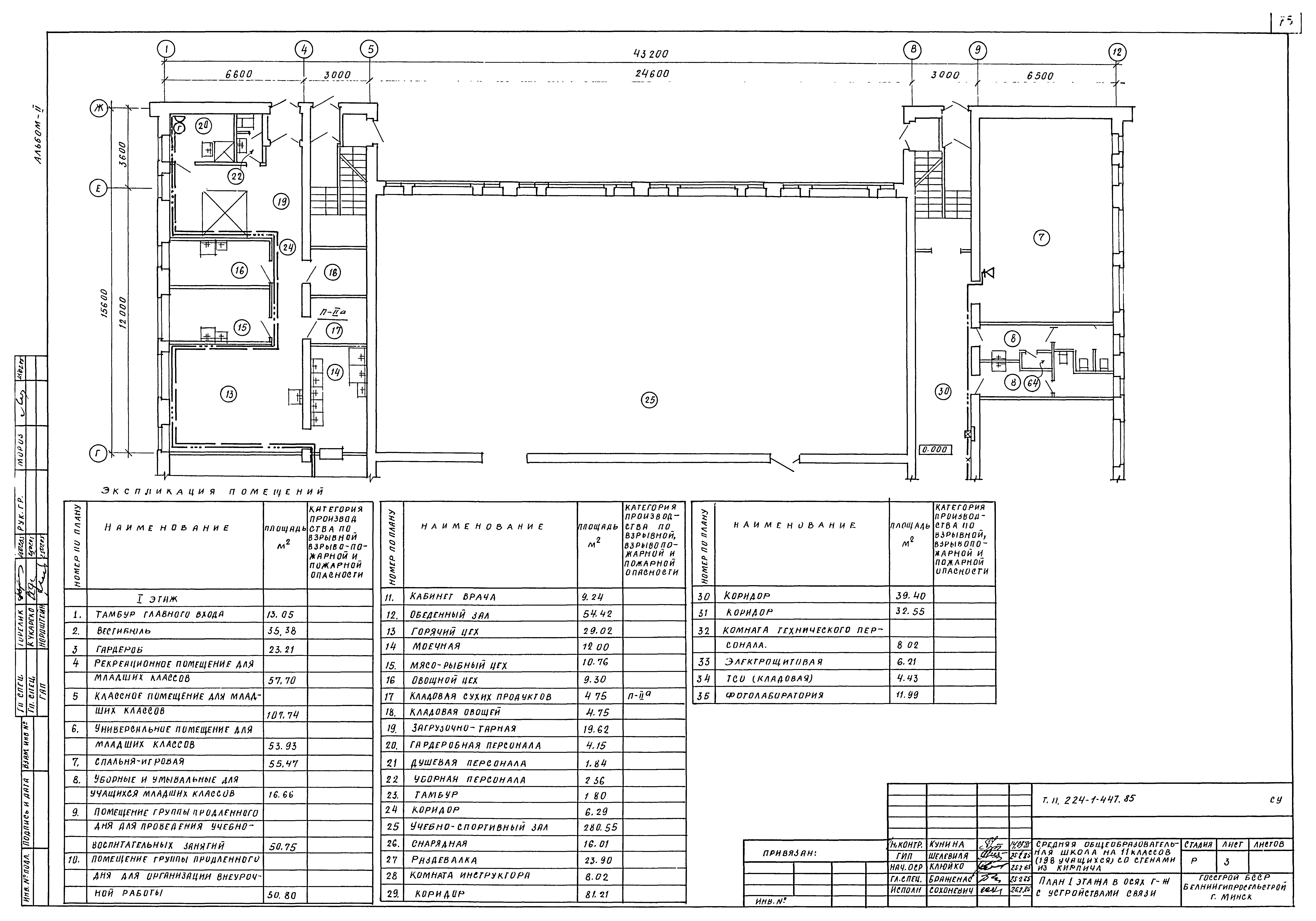
Скачать Типовой проект 224-1-447.85 Альбом II. Внутренний водопровод и канализация, отопление и вентиляция, электротехническая часть, кинотехнология, устройства связиДата актуализации: 10.08.2017 Типовой проект 224-1-447.85
Альбом II. Внутренний водопровод и канализация, отопление и вентиляция, электротехническая часть, кинотехнология, устройства связиОбозначение: | Типовой проект 224-1-447.85 | Обозначение англ: | 224-1-447.85 | Статус: | действует | Название рус.: | Альбом II. Внутренний водопровод и канализация, отопление и вентиляция, электротехническая часть, кинотехнология, устройства связи | Дата добавления в базу: | 01.02.2017 | Дата актуализации: | 05.05.2017 | Разработан: | БелНИИгипросельстрой
| Утверждён: | 15.03.1985 Госстрой БССР (BSSR Gosstroy 35)
| Издан: | ЦИТП Госстроя СССР (CITP, Gosstroy (USSR) 1986 г. )
| Расположен в: |
|
                                                                                           
|