Информационная система
«Ёшкин Кот»

Скачать базу одним архивом
Скачать обновления
История создания базы
Карта сайта

Скачать Типовой проект 224-1-441.85 Альбом III. Электротехнические чертежи

Дата актуализации: 10.08.2017

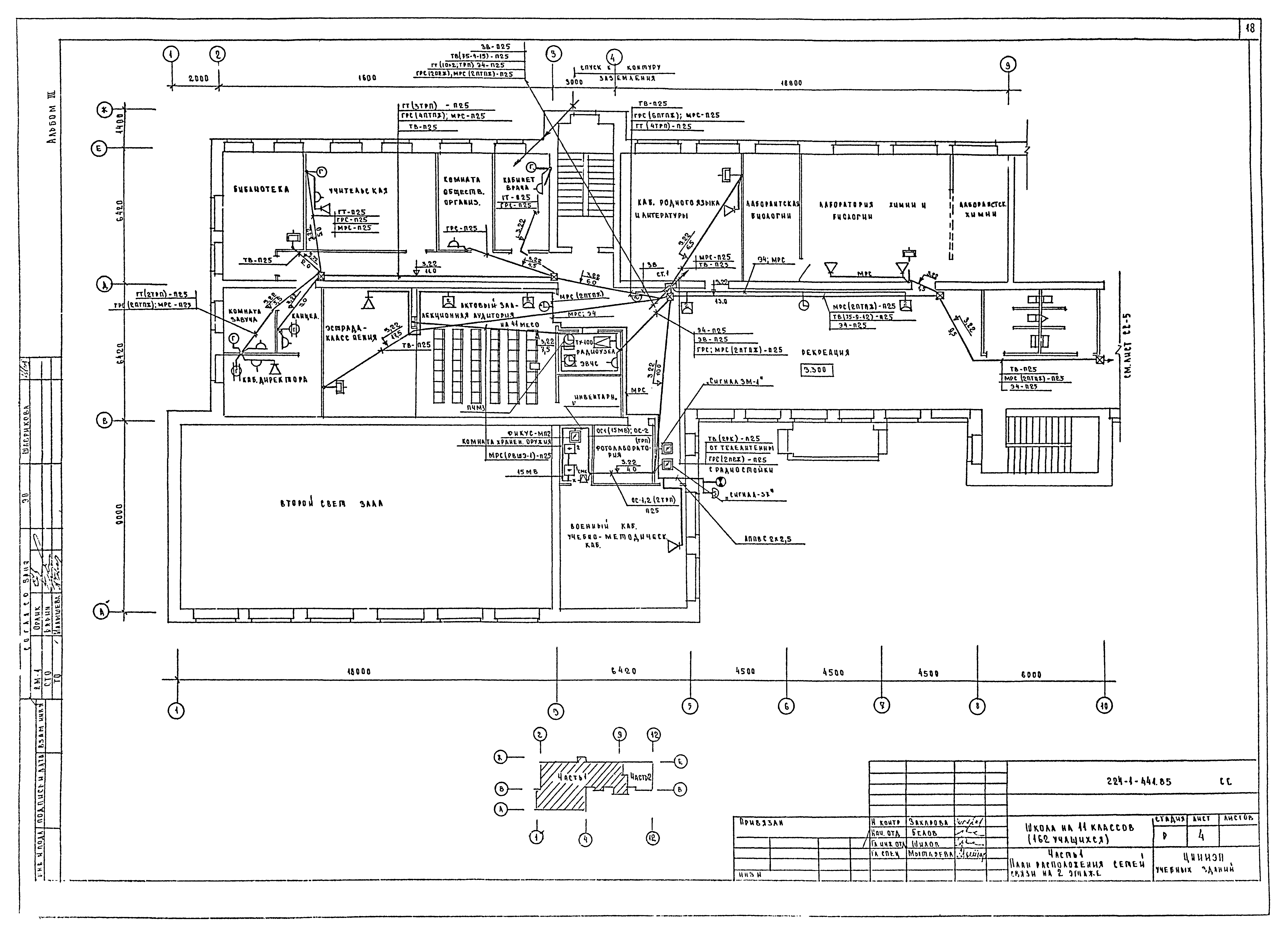
Типовой проект 224-1-441.85

Альбом III. Электротехнические чертежи

Обозначение: Типовой проект 224-1-441.85
Обозначение англ: 224-1-441.85
Статус:не определен законодательством
Название рус.:Альбом III. Электротехнические чертежи
Дата добавления в базу:01.02.2017
Дата актуализации:05.05.2017
Дата введения:27.09.1985
Разработан: ЦНИИЭП учебных зданий
Утверждён:17.08.1984 Госгражданстрой (Gosgrazhdanstroy 231)
Издан: ЦИТП Госстроя СССР (CITP, Gosstroy (USSR) 1988 г. )
Расположен в:Техническая документация Строительство Справочные документы Типовые строительные конструкции, изделия и узлы Общероссийский строительный каталог Общественные здания для строительства в сельской местности Школы и внешкольные учреждения Общеобразовательные школы
Типовой проект 224-1-441.85Типовой проект 224-1-441.85Типовой проект 224-1-441.85Типовой проект 224-1-441.85Типовой проект 224-1-441.85Типовой проект 224-1-441.85Типовой проект 224-1-441.85Типовой проект 224-1-441.85Типовой проект 224-1-441.85Типовой проект 224-1-441.85Типовой проект 224-1-441.85Типовой проект 224-1-441.85Типовой проект 224-1-441.85Типовой проект 224-1-441.85Типовой проект 224-1-441.85Типовой проект 224-1-441.85Типовой проект 224-1-441.85Типовой проект 224-1-441.85Типовой проект 224-1-441.85Типовой проект 224-1-441.85Типовой проект 224-1-441.85Типовой проект 224-1-441.85

© 2013 Ёшкин Кот :-) Карта сайта