Информационная система
«Ёшкин Кот»

Скачать базу одним архивом
Скачать обновления
История создания базы
Карта сайта

Скачать ОСТ 14-34-198-86 Специальные габариты подвижного состава и приближения строений для железнодорожных путей колеи 1520 (1524) мм предприятий черной металлургии

Дата актуализации: 10.08.2017

ОСТ 14-34-198-86

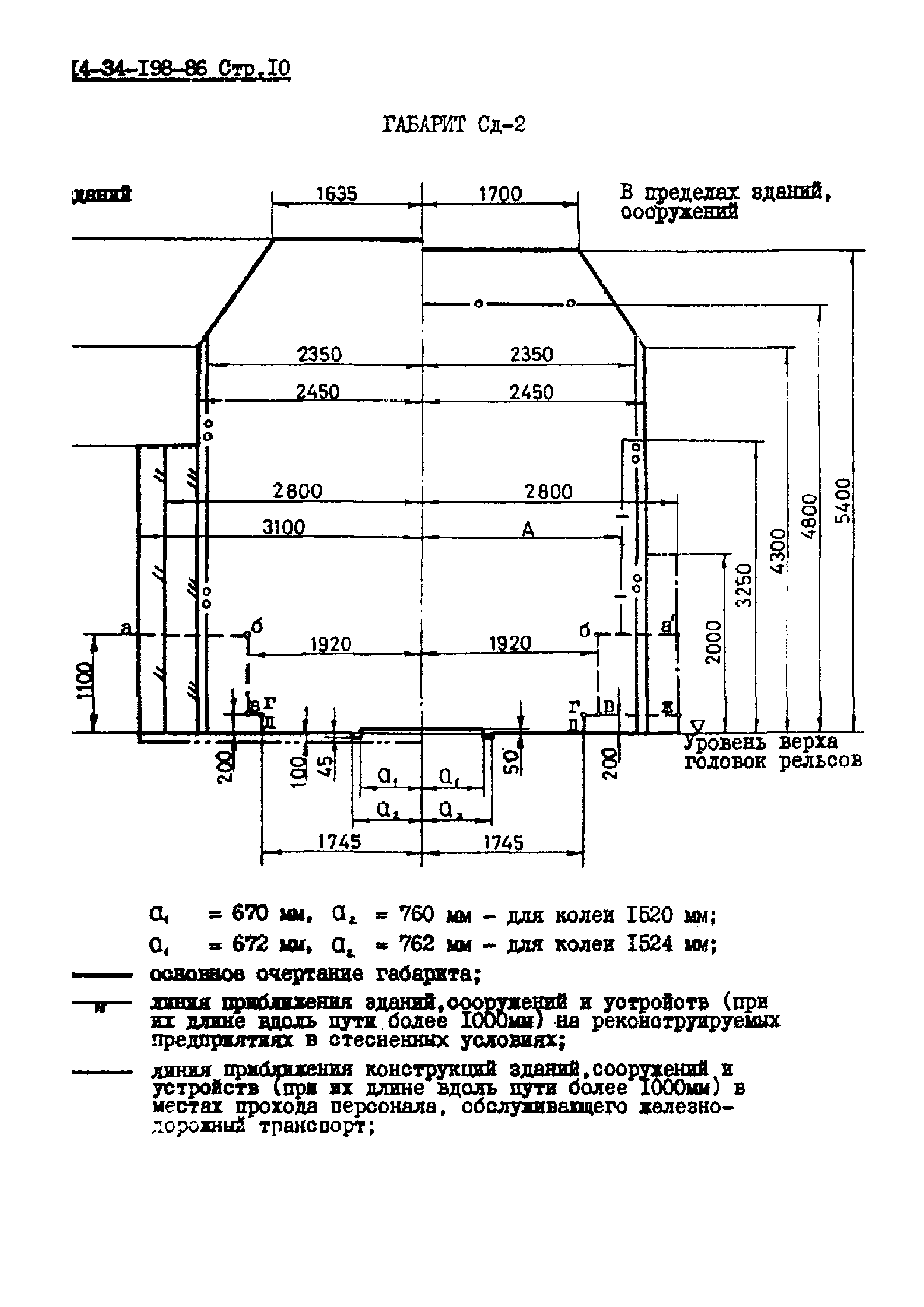
Специальные габариты подвижного состава и приближения строений для железнодорожных путей колеи 1520 (1524) мм предприятий черной металлургии

Обозначение: ОСТ 14-34-198-86
Обозначение англ: OST 14-34-198-86
Статус:не определен законодательством
Название рус.:Специальные габариты подвижного состава и приближения строений для железнодорожных путей колеи 1520 (1524) мм предприятий черной металлургии
Дата добавления в базу:01.02.2017
Дата актуализации:05.05.2017
Дата введения:30.06.2003
Область применения:Стандарт распространяется на специальные габариты подвижного состава и приближения строений для железнодорожных путей колей 1520 (1524) мм предприятий черной металлургии, для которых по условиям технологического процесса не могут быть выдержаны требования ГОСТ 9238-83
Оглавление:1 Основные положения
2 Габариты подвижного состава
3 Габариты приближения строений
4 Изменения размеров габаритов приближения строений в кривых участках пути
5 Определение строительных и проектных очертаний специального подвижного состава и габаритные требования при заказе нового подвижного состава
6 Порядок применения габаритных норм при реконструкции железнодорожных путей, сооружений и устройств
Приложение 1 (обязательное). Нормы изменений габаритов приближения строений в кривых участках пути
Приложение 2 (справочное). Минимально допустимые зазоры между сооружениями или устройствами и габаритом подвижного состава или подвижным составом
Разработан: Ленгипромез Минметаллургии СССР
Утверждён:14.11.1986 Министерство черной металлургии СССР (1263)
Принят:09.07.1986 Министерство путей сообщения СССР (USSR Ministry of Railroads ЦТехСт-23/2)
29.09.1986 Госстрой СССР (1-195)
Расположен в:Техническая документация Строительство Стандарты Отраслевые стандарты и технические условия Отраслевые стандарты
Нормативные ссылки:
ОСТ 14-34-198-86ОСТ 14-34-198-86ОСТ 14-34-198-86ОСТ 14-34-198-86ОСТ 14-34-198-86ОСТ 14-34-198-86ОСТ 14-34-198-86ОСТ 14-34-198-86ОСТ 14-34-198-86ОСТ 14-34-198-86ОСТ 14-34-198-86ОСТ 14-34-198-86ОСТ 14-34-198-86ОСТ 14-34-198-86ОСТ 14-34-198-86ОСТ 14-34-198-86ОСТ 14-34-198-86ОСТ 14-34-198-86ОСТ 14-34-198-86ОСТ 14-34-198-86ОСТ 14-34-198-86ОСТ 14-34-198-86ОСТ 14-34-198-86ОСТ 14-34-198-86ОСТ 14-34-198-86ОСТ 14-34-198-86ОСТ 14-34-198-86ОСТ 14-34-198-86ОСТ 14-34-198-86ОСТ 14-34-198-86ОСТ 14-34-198-86ОСТ 14-34-198-86ОСТ 14-34-198-86ОСТ 14-34-198-86ОСТ 14-34-198-86ОСТ 14-34-198-86ОСТ 14-34-198-86ОСТ 14-34-198-86ОСТ 14-34-198-86ОСТ 14-34-198-86ОСТ 14-34-198-86ОСТ 14-34-198-86ОСТ 14-34-198-86ОСТ 14-34-198-86ОСТ 14-34-198-86ОСТ 14-34-198-86ОСТ 14-34-198-86ОСТ 14-34-198-86

© 2013 Ёшкин Кот :-) Карта сайта