Скачать Типовой проект 503-4-13 Альбом I. Общая пояснительная записка. Технология производства. Технологические коммуникацииДата актуализации: 10.08.2017 Типовой проект 503-4-13
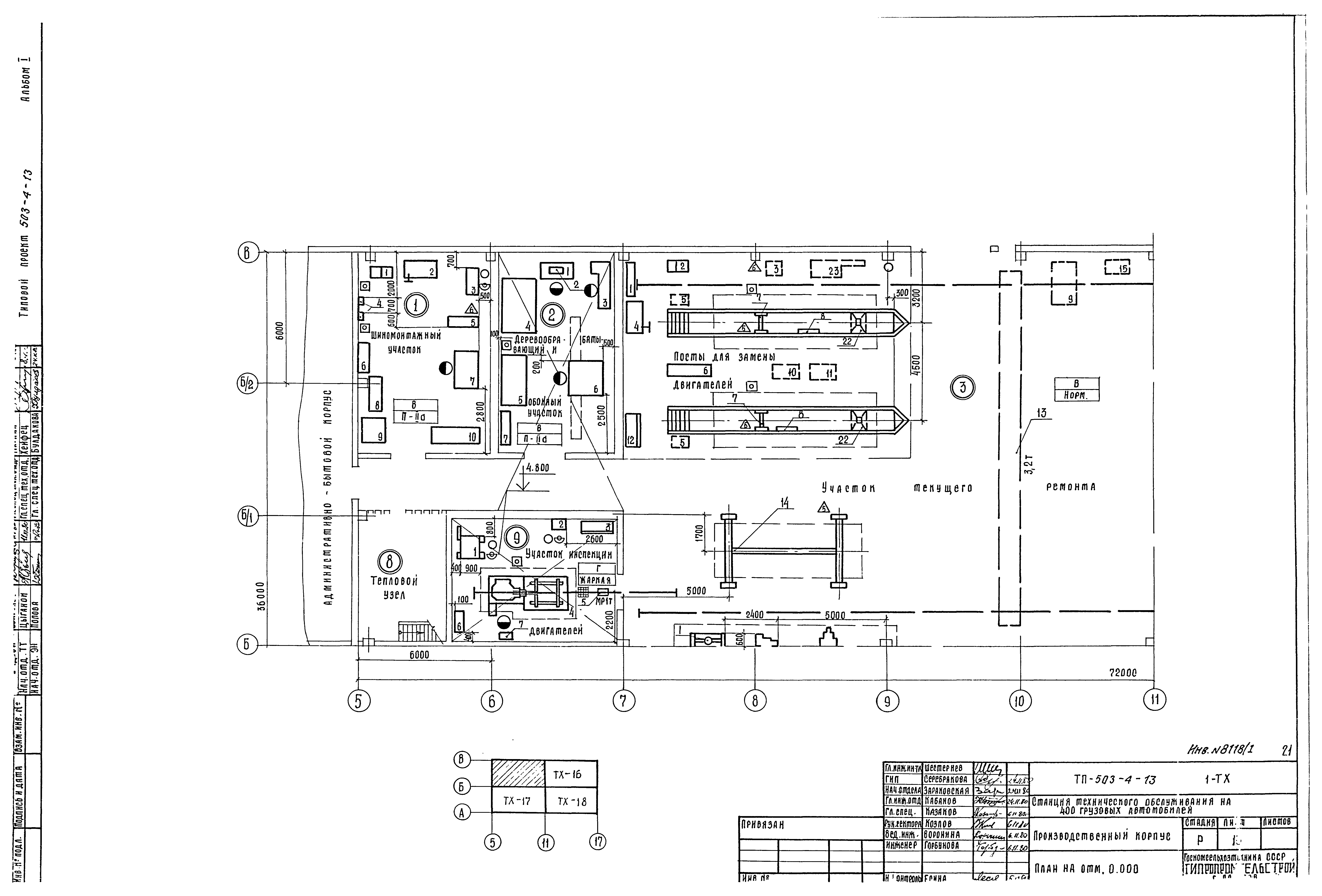
Альбом I. Общая пояснительная записка. Технология производства. Технологические коммуникацииОбозначение: | Типовой проект 503-4-13 | Обозначение англ: | 503-4-13 | Статус: | действует | Название рус.: | Альбом I. Общая пояснительная записка. Технология производства. Технологические коммуникации | Дата добавления в базу: | 01.02.2017 | Дата актуализации: | 05.05.2017 | Разработан: | Гипропромсельстрой
| Утверждён: | 25.05.1980 Госкомсельхозтехника СССР (36)
| Издан: | ЦИТП Госстроя СССР (CITP, Gosstroy (USSR) 1982 г. )
| Расположен в: |
|
                                 
|