Информационная система
«Ёшкин Кот»

Скачать базу одним архивом
Скачать обновления
История создания базы
Карта сайта

Скачать Типовой проект 503-9-12.86 Альбом II. Электрическое освещение. Силовое электрооборудование. Автоматизация. Связь и сигнализация. Автоматическая пожарная сигнализация

Дата актуализации: 10.08.2017

Типовой проект 503-9-12.86

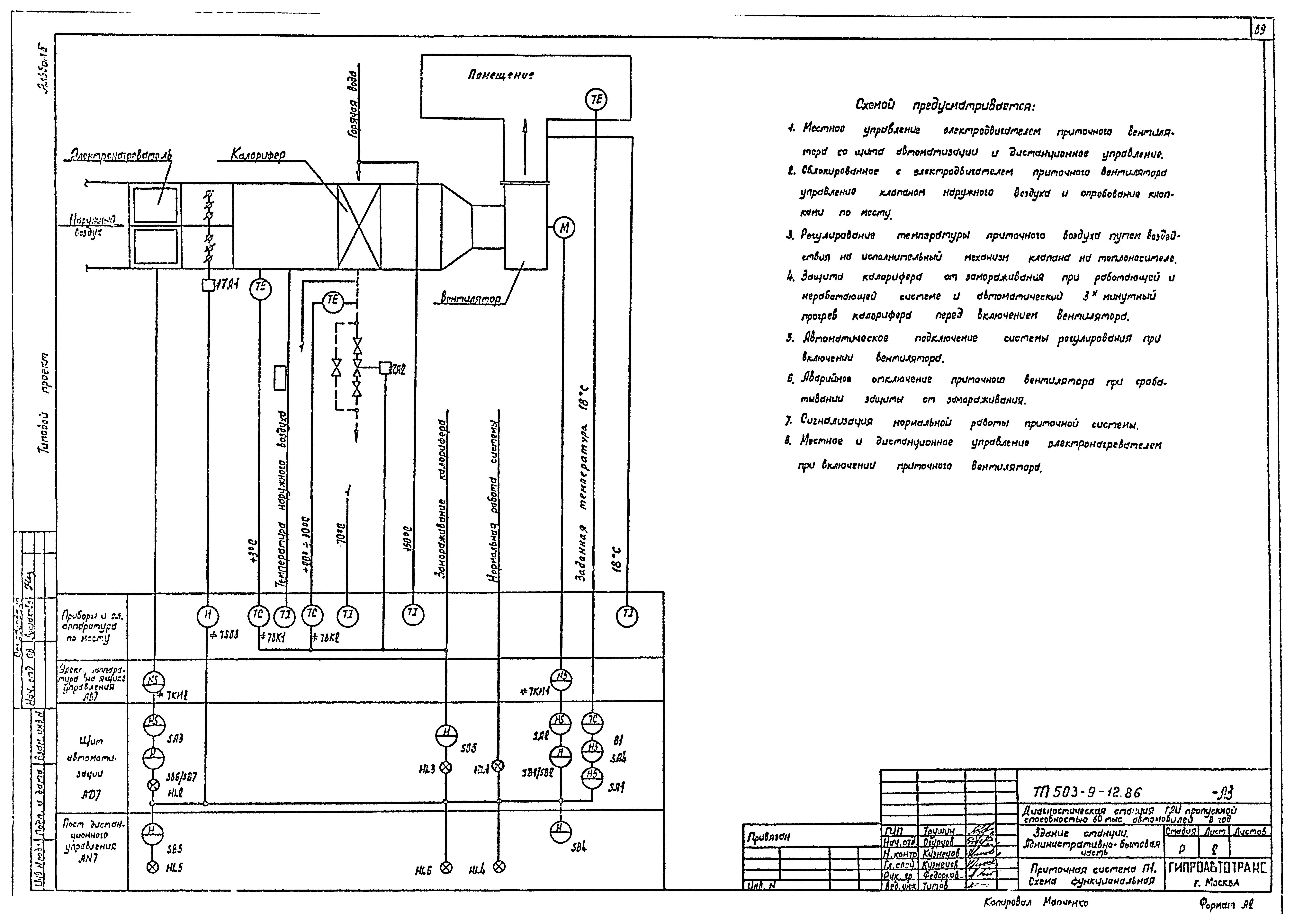
Альбом II. Электрическое освещение. Силовое электрооборудование. Автоматизация. Связь и сигнализация. Автоматическая пожарная сигнализация

Обозначение: Типовой проект 503-9-12.86
Обозначение англ: 503-9-12.86
Статус:действует
Название рус.:Альбом II. Электрическое освещение. Силовое электрооборудование. Автоматизация. Связь и сигнализация. Автоматическая пожарная сигнализация
Дата добавления в базу:01.02.2017
Дата актуализации:05.05.2017
Разработан: Гипроавтотранс
Утверждён:16.09.1985 Министерство внутренних дел СССР (USSR Ministry of Internal Affairs 134-85)
Издан: ЦИТП Госстроя СССР (CITP, Gosstroy (USSR) 1986 г. )
Расположен в:Техническая документация Строительство Справочные документы Типовые строительные конструкции, изделия и узлы Общероссийский строительный каталог Промышленные предприятия, здания и сооружения Предприятия, здания и сооружения транспорта Транспорт автомобильный Здания и сооружения разные
Типовой проект 503-9-12.86Типовой проект 503-9-12.86Типовой проект 503-9-12.86Типовой проект 503-9-12.86Типовой проект 503-9-12.86Типовой проект 503-9-12.86Типовой проект 503-9-12.86Типовой проект 503-9-12.86Типовой проект 503-9-12.86Типовой проект 503-9-12.86Типовой проект 503-9-12.86Типовой проект 503-9-12.86Типовой проект 503-9-12.86Типовой проект 503-9-12.86Типовой проект 503-9-12.86Типовой проект 503-9-12.86Типовой проект 503-9-12.86Типовой проект 503-9-12.86Типовой проект 503-9-12.86Типовой проект 503-9-12.86Типовой проект 503-9-12.86Типовой проект 503-9-12.86Типовой проект 503-9-12.86Типовой проект 503-9-12.86Типовой проект 503-9-12.86Типовой проект 503-9-12.86Типовой проект 503-9-12.86Типовой проект 503-9-12.86Типовой проект 503-9-12.86Типовой проект 503-9-12.86Типовой проект 503-9-12.86Типовой проект 503-9-12.86Типовой проект 503-9-12.86Типовой проект 503-9-12.86Типовой проект 503-9-12.86Типовой проект 503-9-12.86Типовой проект 503-9-12.86Типовой проект 503-9-12.86Типовой проект 503-9-12.86Типовой проект 503-9-12.86Типовой проект 503-9-12.86Типовой проект 503-9-12.86Типовой проект 503-9-12.86Типовой проект 503-9-12.86Типовой проект 503-9-12.86Типовой проект 503-9-12.86Типовой проект 503-9-12.86Типовой проект 503-9-12.86Типовой проект 503-9-12.86Типовой проект 503-9-12.86Типовой проект 503-9-12.86Типовой проект 503-9-12.86Типовой проект 503-9-12.86Типовой проект 503-9-12.86Типовой проект 503-9-12.86Типовой проект 503-9-12.86Типовой проект 503-9-12.86Типовой проект 503-9-12.86Типовой проект 503-9-12.86Типовой проект 503-9-12.86Типовой проект 503-9-12.86Типовой проект 503-9-12.86Типовой проект 503-9-12.86Типовой проект 503-9-12.86Типовой проект 503-9-12.86Типовой проект 503-9-12.86Типовой проект 503-9-12.86Типовой проект 503-9-12.86Типовой проект 503-9-12.86Типовой проект 503-9-12.86Типовой проект 503-9-12.86Типовой проект 503-9-12.86Типовой проект 503-9-12.86Типовой проект 503-9-12.86Типовой проект 503-9-12.86Типовой проект 503-9-12.86Типовой проект 503-9-12.86Типовой проект 503-9-12.86Типовой проект 503-9-12.86Типовой проект 503-9-12.86Типовой проект 503-9-12.86Типовой проект 503-9-12.86Типовой проект 503-9-12.86Типовой проект 503-9-12.86Типовой проект 503-9-12.86Типовой проект 503-9-12.86Типовой проект 503-9-12.86Типовой проект 503-9-12.86Типовой проект 503-9-12.86Типовой проект 503-9-12.86

© 2013 Ёшкин Кот :-) Карта сайта