Скачать Технологические схемы очистных и подготовительных работ на угольных шахтах. Часть III. ЭлектроснабжениеДата актуализации: 10.08.2017
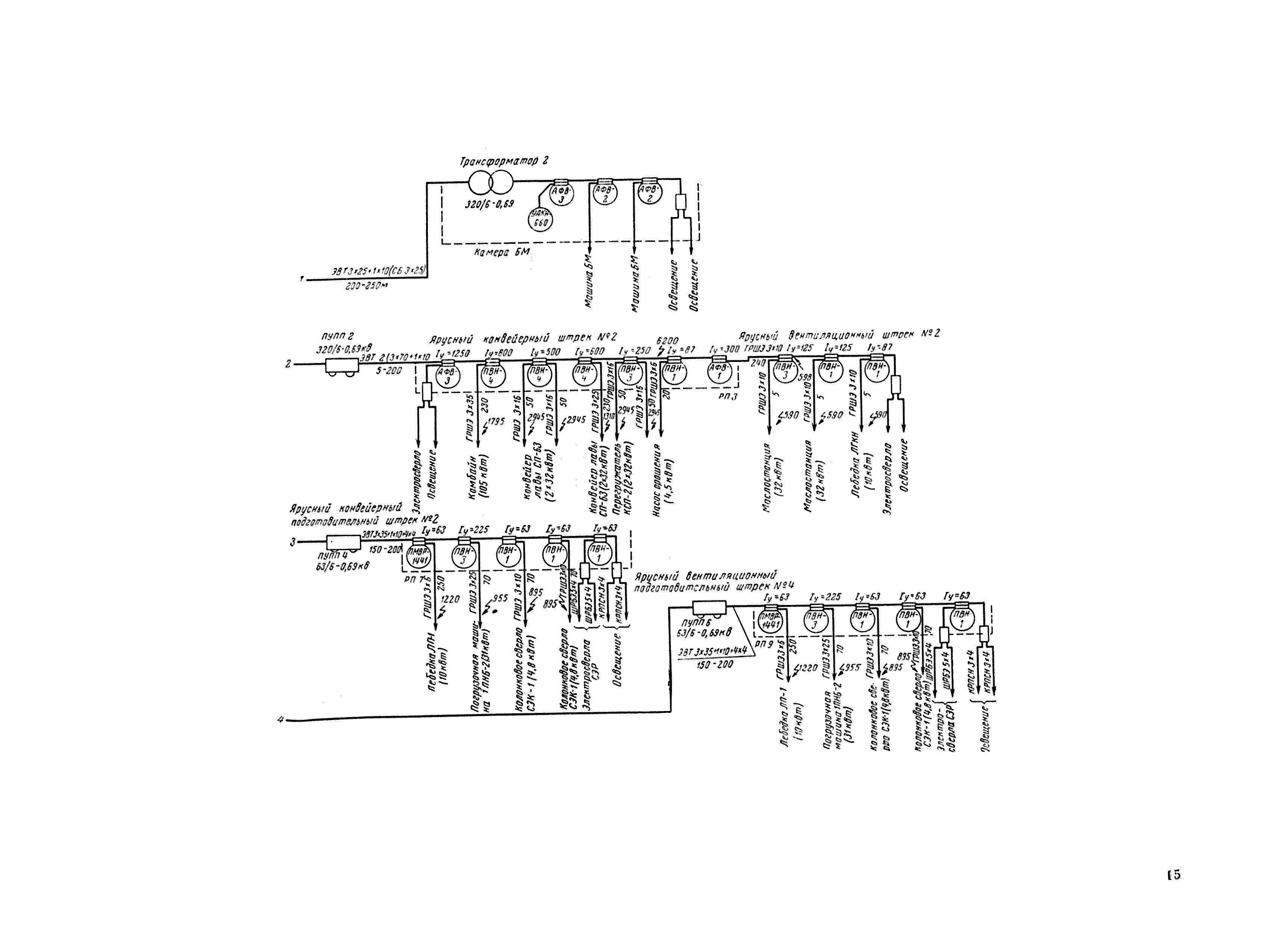
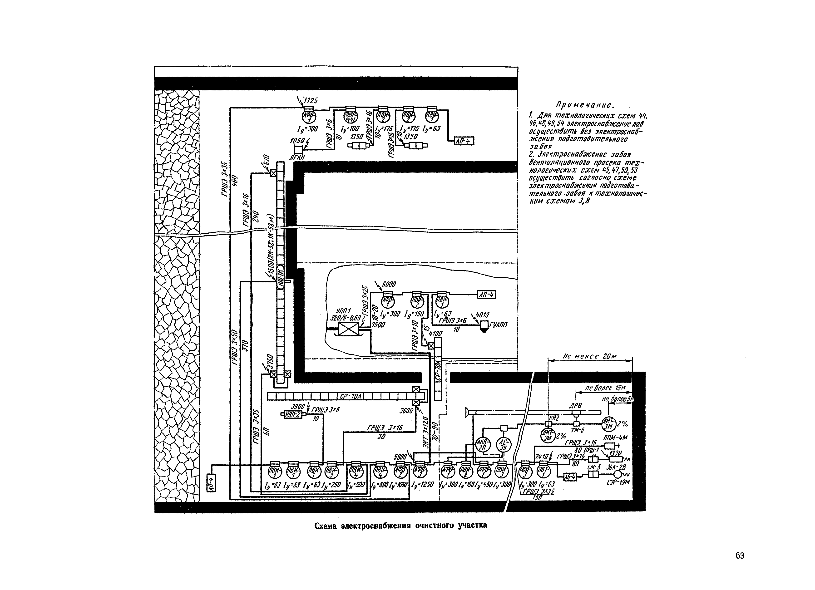
Технологические схемы очистных и подготовительных работ на угольных шахтах. Часть III. ЭлектроснабжениеСтатус: | cправочные материалы, мп, тпр | Название рус.: | Технологические схемы очистных и подготовительных работ на угольных шахтах. Часть III. Электроснабжение | Дата добавления в базу: | 01.02.2017 | Дата актуализации: | 05.05.2017 | Область применения: | В альбоме содержаться принципиальные схемы электроснабжения, спецификации на электрооборудование и материалы, справочные таблицы, то, что необходимо при конкретном проектировании и монтаже электрооборудования участков. | Оглавление: | Введение Примерные схемы электроснабжения для очистных и подготовительных работ Методика расчета системы электроснабжения участка угольной шахты Как пользоваться схемами электроснабжения Схемы электроснабжения для технологических схем № 1, 2, 7, 29 Схемы электроснабжения для технологических схем № 3, 8 Схемы электроснабжения для технологических схем № 4, 35 Схемы электроснабжения для технологических схем № 5, 19, 30 Схемы электроснабжения для технологической схемы № 6 Схемы электроснабжения для технологической схемы № 9 Схемы электроснабжения для технологической схемы № 11 Схемы электроснабжения для технологических схем № 12, 13, 14 Схемы электроснабжения для технологических схем 16, 18, 20, 28, 32 Схемы электроснабжения для технологических схем № 21, 22, 23 Схемы электроснабжения для технологических схем № 24, 25, 31 Схемы электроснабжения для технологических схем № 17, 26, 27 Схемы электроснабжения для технологических схем № 33, 34 Схемы электроснабжения для технологических схем № 38, 39, 40 Схемы электроснабжения для технологической схемы № 41 Схемы электроснабжения для технологической схемы № 42 Схемы электроснабжения для технологических схем № 44, 45, 46, 47, 48, 49, 50, 53, 54 Схемы электроснабжения для технологических схем № 51, 52 Приложение 1 Приложение 2 | Разработан: | Центрогипрошахт Днепрогипрошахт Карагандагипрошахт Донгипрошахт Сибгипрошахт
| Утверждён: | Министерство угольной промышленности СССР (USSR Ministry of the Coal Industry )
| Издан: | Издательство Недра (1972 г. )
| Расположен в: |
| Нормативные ссылки: | |
                                                                                   
|