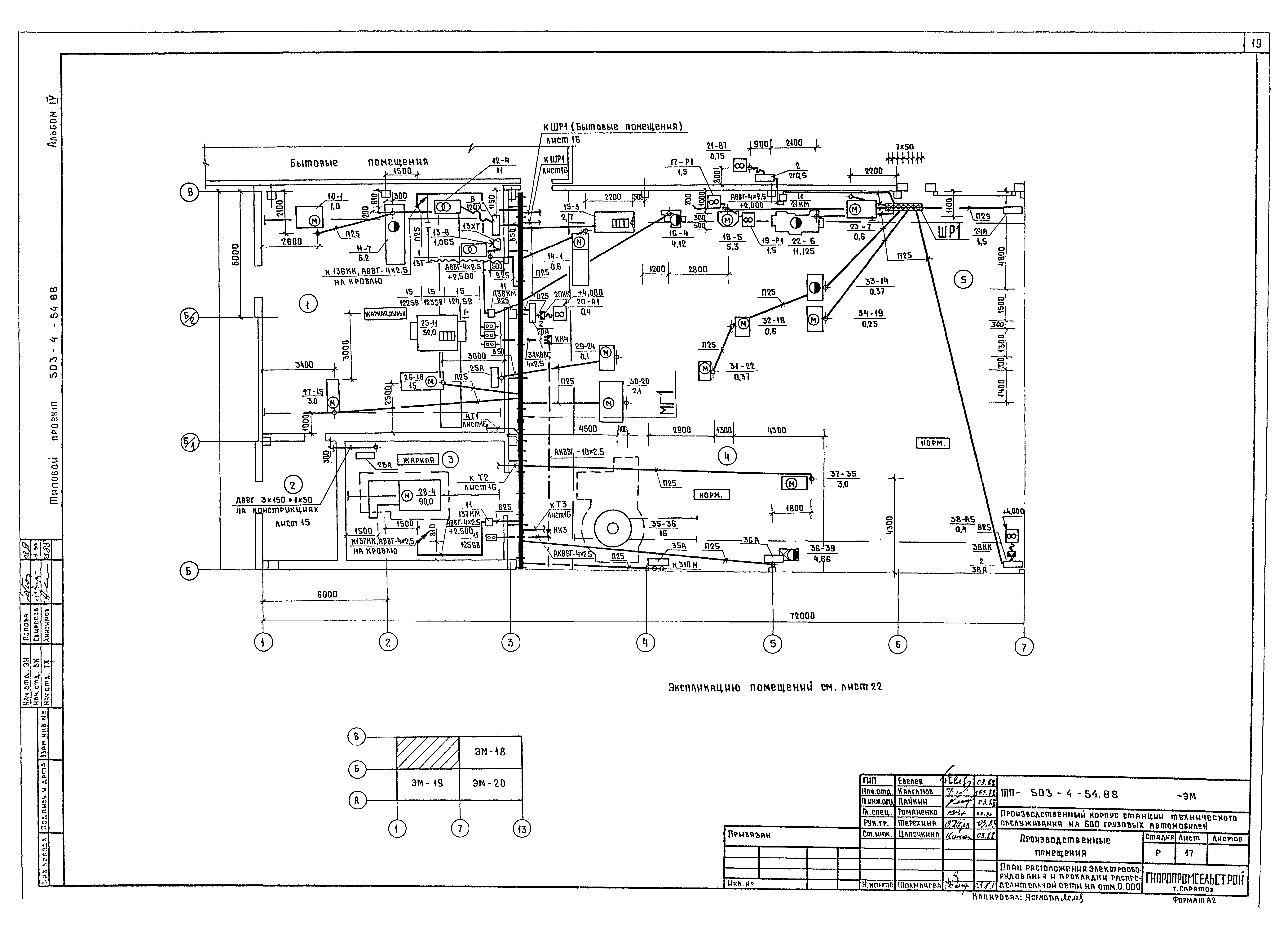
Скачать Типовой проект 503-4-54.88 Альбом IV. Производственные помещения. Силовое электрооборудование. Электрическое освещение. Автоматизация производства. Связь и сигнализация. Пожарно-охранная сигнализация. Чертежи заданий заводам-изготовителям на электрооборудование, КИП и автоматикуДата актуализации: 10.08.2017 Типовой проект 503-4-54.88
Альбом IV. Производственные помещения. Силовое электрооборудование. Электрическое освещение. Автоматизация производства. Связь и сигнализация. Пожарно-охранная сигнализация. Чертежи заданий заводам-изготовителям на электрооборудование, КИП и автоматикуОбозначение: | Типовой проект 503-4-54.88 | Обозначение англ: | 503-4-54.88 | Статус: | действует | Название рус.: | Альбом IV. Производственные помещения. Силовое электрооборудование. Электрическое освещение. Автоматизация производства. Связь и сигнализация. Пожарно-охранная сигнализация. Чертежи заданий заводам-изготовителям на электрооборудование, КИП и автоматику | Дата добавления в базу: | 01.02.2017 | Дата актуализации: | 05.05.2017 | Разработан: | Гипропромсельстрой
| Утверждён: | 01.04.1988 Гипропромсельстрой (119)
| Издан: | ЦИТП Госстроя СССР (CITP, Gosstroy (USSR) 1989 г. )
| Расположен в: |
| Заменяет собой: | | Нормативные ссылки: | |
                                                       
|