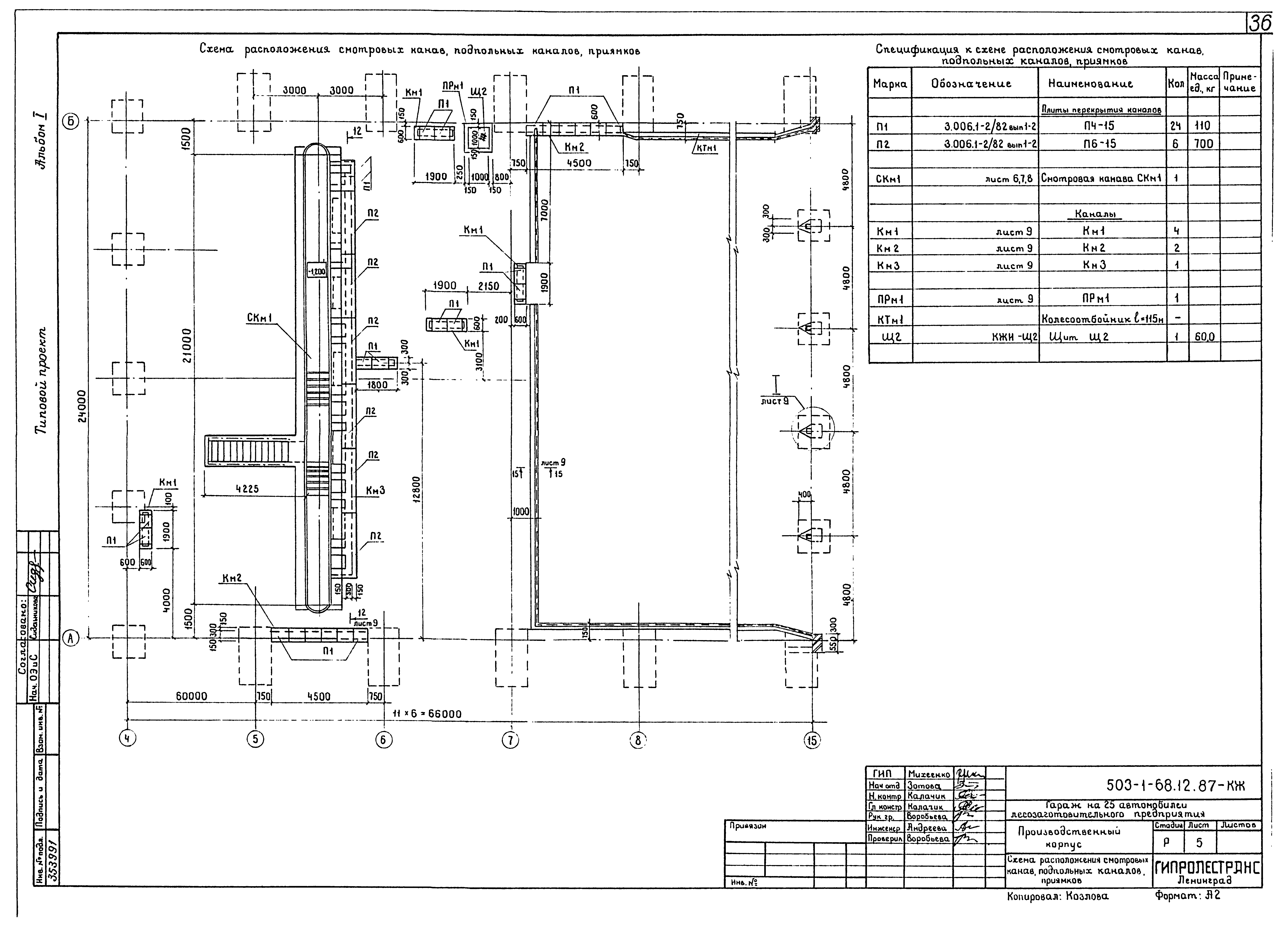
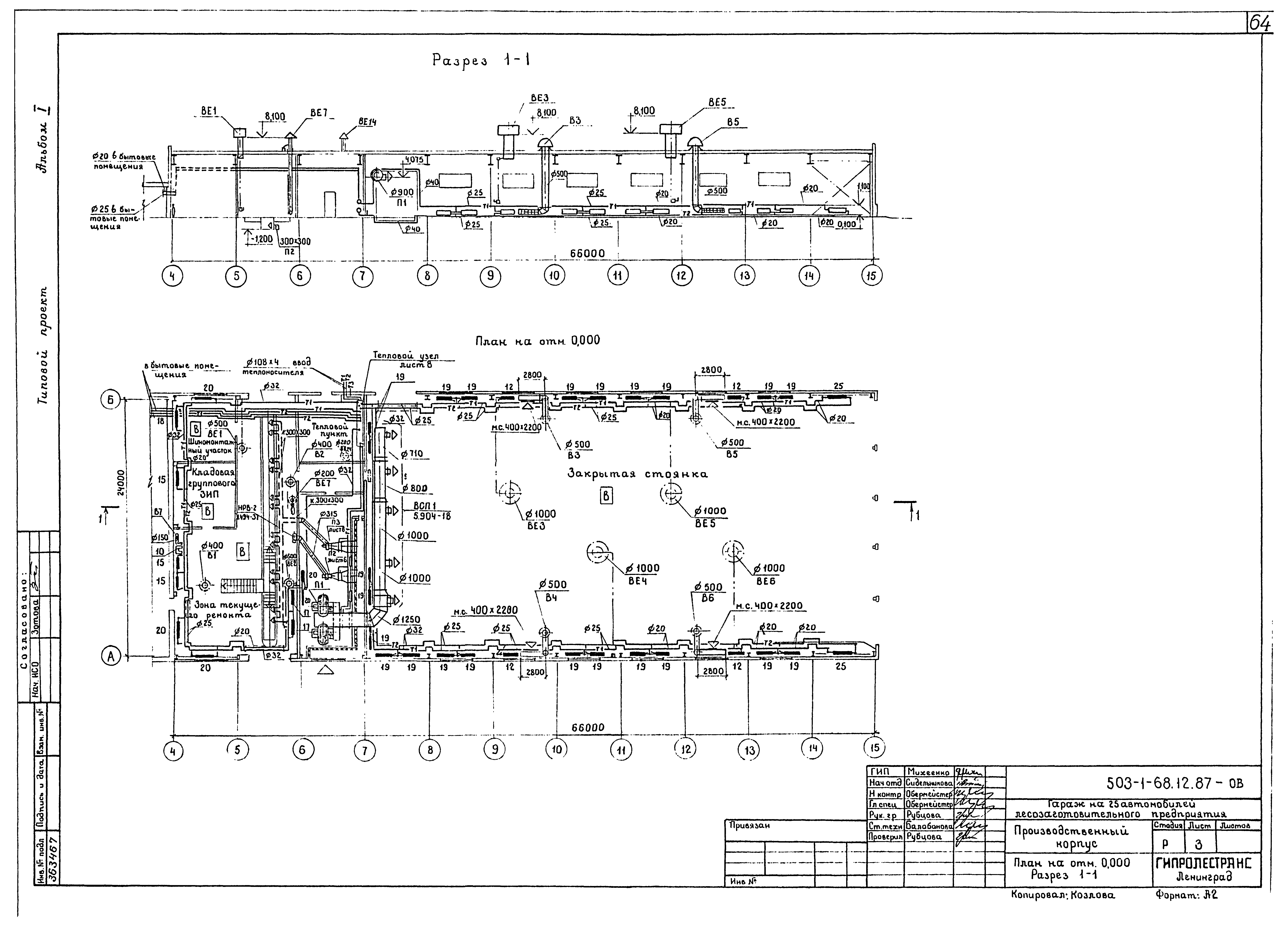
Скачать Типовой проект 503-1-68.12.87 Альбом I. Общая пояснительная записка. Технология производства, силовое электрооборудование, связь и сигнализация, пожарная сигнализация, архитектурные решения, конструкции железобетонные, конструкции металлические, архитектурно-строительные решения, отопление и вентиляция, автоматизация отопления и вентиляции, внутренние водопровод и канализация. ЧертежиДата актуализации: 10.08.2017 Типовой проект 503-1-68.12.87
Альбом I. Общая пояснительная записка. Технология производства, силовое электрооборудование, связь и сигнализация, пожарная сигнализация, архитектурные решения, конструкции железобетонные, конструкции металлические, архитектурно-строительные решения, отопление и вентиляция, автоматизация отопления и вентиляции, внутренние водопровод и канализация. ЧертежиОбозначение: | Типовой проект 503-1-68.12.87 | Обозначение англ: | 503-1-68.12.87 | Статус: | не определен законодательством | Название рус.: | Альбом I. Общая пояснительная записка. Технология производства, силовое электрооборудование, связь и сигнализация, пожарная сигнализация, архитектурные решения, конструкции железобетонные, конструкции металлические, архитектурно-строительные решения, отопление и вентиляция, автоматизация отопления и вентиляции, внутренние водопровод и канализация. Чертежи | Дата добавления в базу: | 01.02.2017 | Дата актуализации: | 05.05.2017 | Дата введения: | 08.12.1987 | Разработан: | Гипролестранс
| Утверждён: | 08.12.1987 Минлесбумпром СССР (USSR Minlesbumprom 205)
| Расположен в: |
| Заменяет собой: | - Типовой проект 503-1-2
- Типовой проект 503-299
|
                                                                                    
|