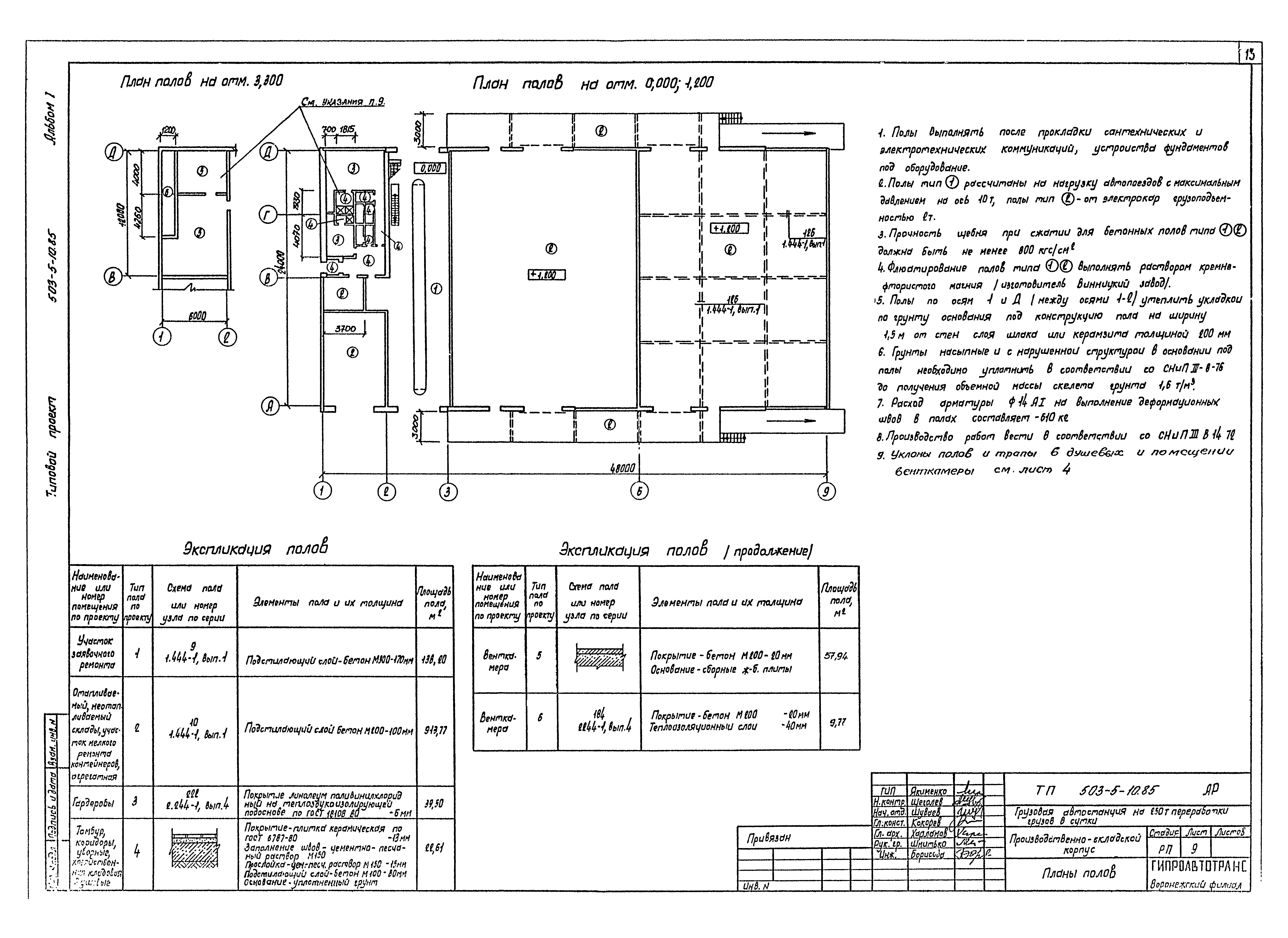
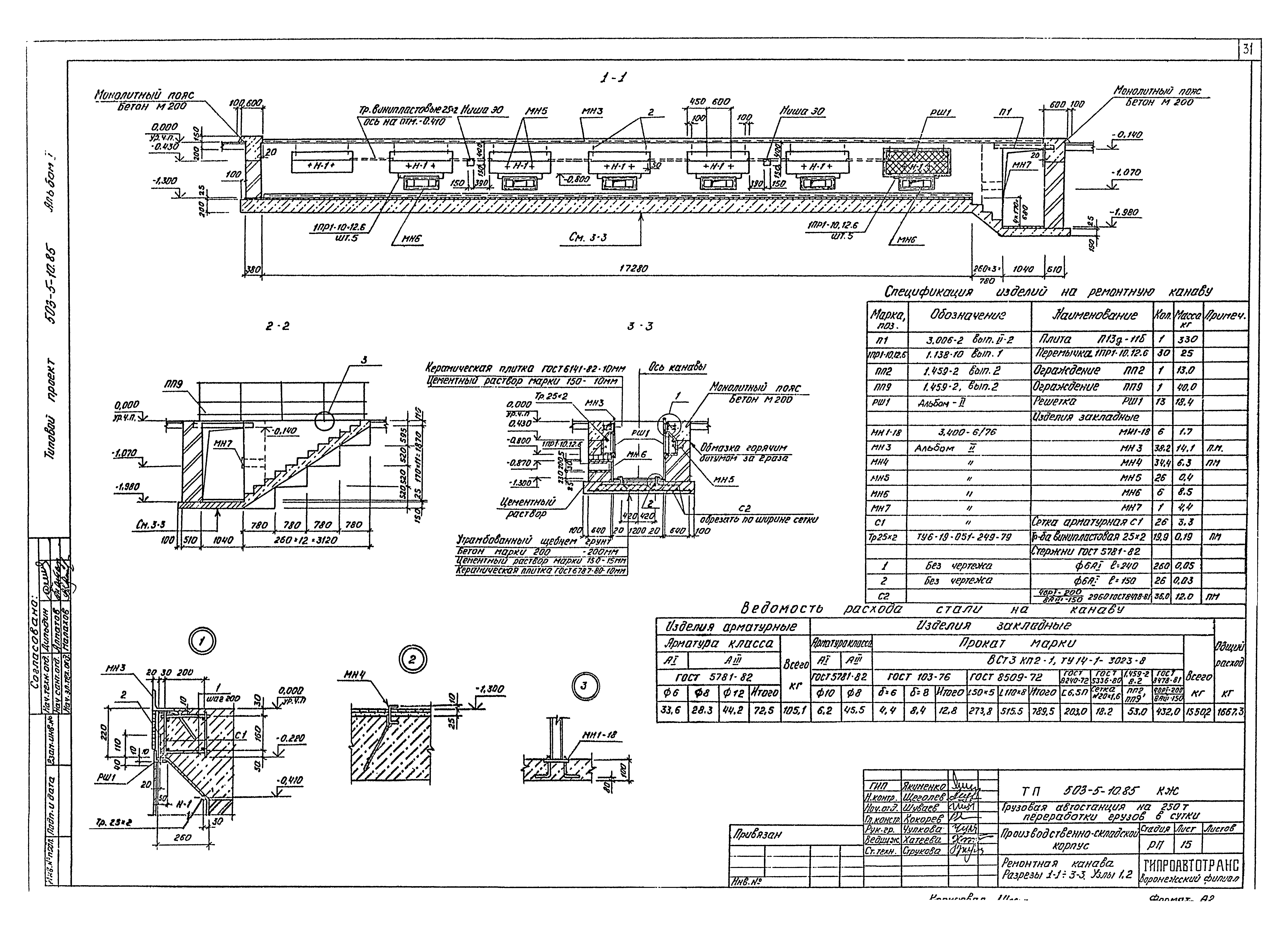
Скачать Типовой проект 503-5-10.85 Альбом I. Технологические чертежи. Архитектурные решения. Конструкции железобетонные и металлические. Отопление и вентиляция, внутренний водопровод и канализацияДата актуализации: 10.08.2017 Типовой проект 503-5-10.85
Альбом I. Технологические чертежи. Архитектурные решения. Конструкции железобетонные и металлические. Отопление и вентиляция, внутренний водопровод и канализацияОбозначение: | Типовой проект 503-5-10.85 | Обозначение англ: | 503-5-10.85 | Статус: | действует | Название рус.: | Альбом I. Технологические чертежи. Архитектурные решения. Конструкции железобетонные и металлические. Отопление и вентиляция, внутренний водопровод и канализация | Дата добавления в базу: | 01.02.2017 | Дата актуализации: | 05.05.2017 | Разработан: | Воронежский филиал Гипроавтотранс
| Утверждён: | 15.05.1984 Минавтотранс РСФСР (Russian Federation Minavtotrans 27)
| Издан: | ЦИТП Госстроя СССР (CITP, Gosstroy (USSR) 1986 г. )
| Расположен в: |
|
                                                                 
|