Информационная система
«Ёшкин Кот»

Скачать базу одним архивом
Скачать обновления
История создания базы
Карта сайта

Скачать Типовой проект 503-9-10.85 Альбом I. Технологические и архитектурно-строительные решения

Дата актуализации: 10.08.2017

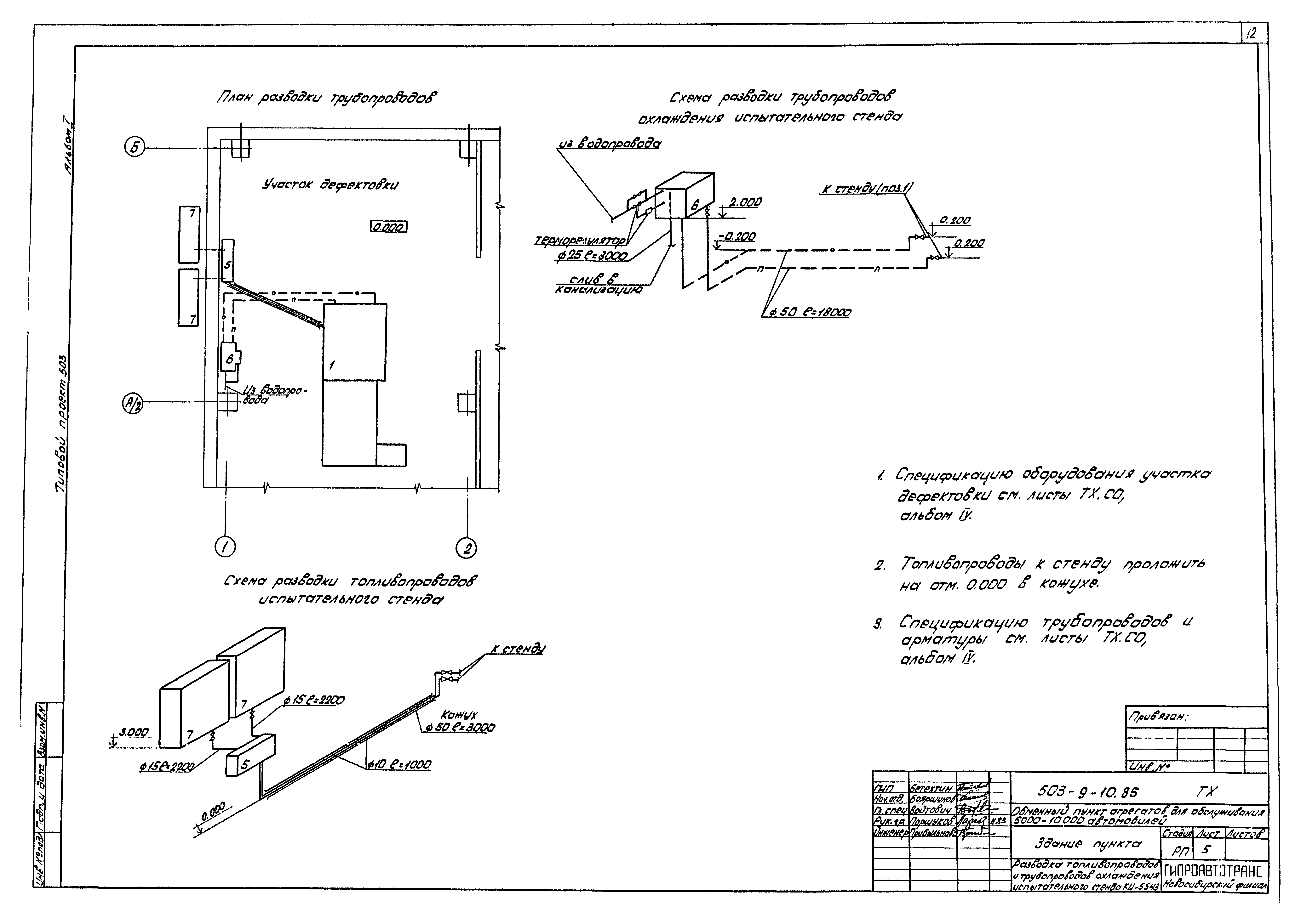
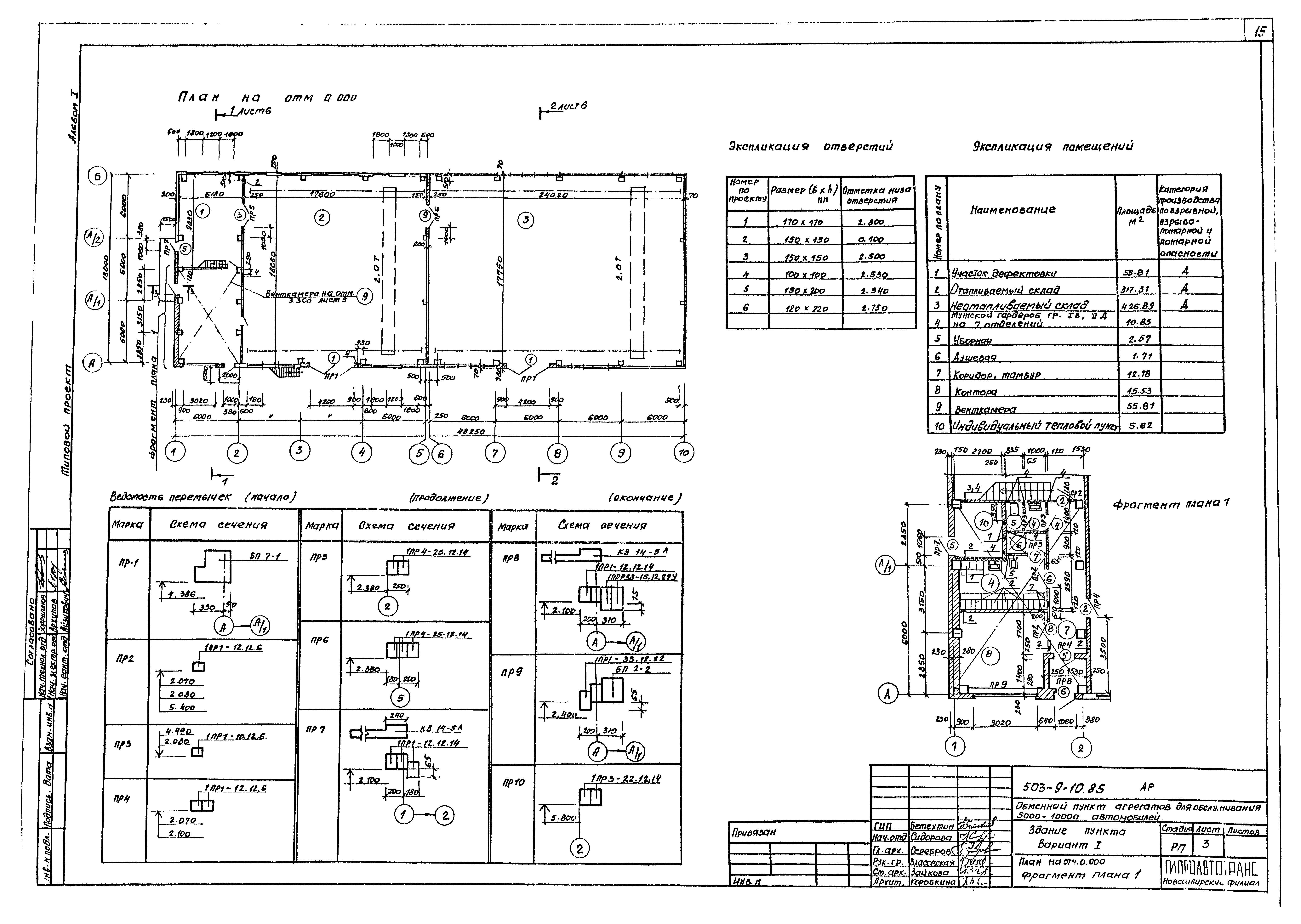
Типовой проект 503-9-10.85

Альбом I. Технологические и архитектурно-строительные решения

Обозначение: Типовой проект 503-9-10.85
Обозначение англ: 503-9-10.85
Статус:не определен законодательством
Название рус.:Альбом I. Технологические и архитектурно-строительные решения
Дата добавления в базу:01.02.2017
Дата актуализации:05.05.2017
Дата введения:19.07.1984
Разработан: Новосибирский филиал Гипроавтотранса
Утверждён:19.07.1984 Минавтотранс РСФСР (Russian Federation Minavtotrans 50)
Издан: ЦИТП Госстроя СССР (CITP, Gosstroy (USSR) 1987 г. )
Расположен в:Техническая документация Строительство Справочные документы Типовые строительные конструкции, изделия и узлы Общероссийский строительный каталог Промышленные предприятия, здания и сооружения Предприятия, здания и сооружения транспорта Транспорт автомобильный Здания и сооружения разные
Типовой проект 503-9-10.85Типовой проект 503-9-10.85Типовой проект 503-9-10.85Типовой проект 503-9-10.85Типовой проект 503-9-10.85Типовой проект 503-9-10.85Типовой проект 503-9-10.85Типовой проект 503-9-10.85Типовой проект 503-9-10.85Типовой проект 503-9-10.85Типовой проект 503-9-10.85Типовой проект 503-9-10.85Типовой проект 503-9-10.85Типовой проект 503-9-10.85Типовой проект 503-9-10.85Типовой проект 503-9-10.85Типовой проект 503-9-10.85Типовой проект 503-9-10.85Типовой проект 503-9-10.85Типовой проект 503-9-10.85Типовой проект 503-9-10.85Типовой проект 503-9-10.85Типовой проект 503-9-10.85Типовой проект 503-9-10.85Типовой проект 503-9-10.85Типовой проект 503-9-10.85Типовой проект 503-9-10.85Типовой проект 503-9-10.85Типовой проект 503-9-10.85Типовой проект 503-9-10.85Типовой проект 503-9-10.85Типовой проект 503-9-10.85Типовой проект 503-9-10.85Типовой проект 503-9-10.85Типовой проект 503-9-10.85Типовой проект 503-9-10.85Типовой проект 503-9-10.85Типовой проект 503-9-10.85Типовой проект 503-9-10.85Типовой проект 503-9-10.85Типовой проект 503-9-10.85Типовой проект 503-9-10.85

© 2013 Ёшкин Кот :-) Карта сайта