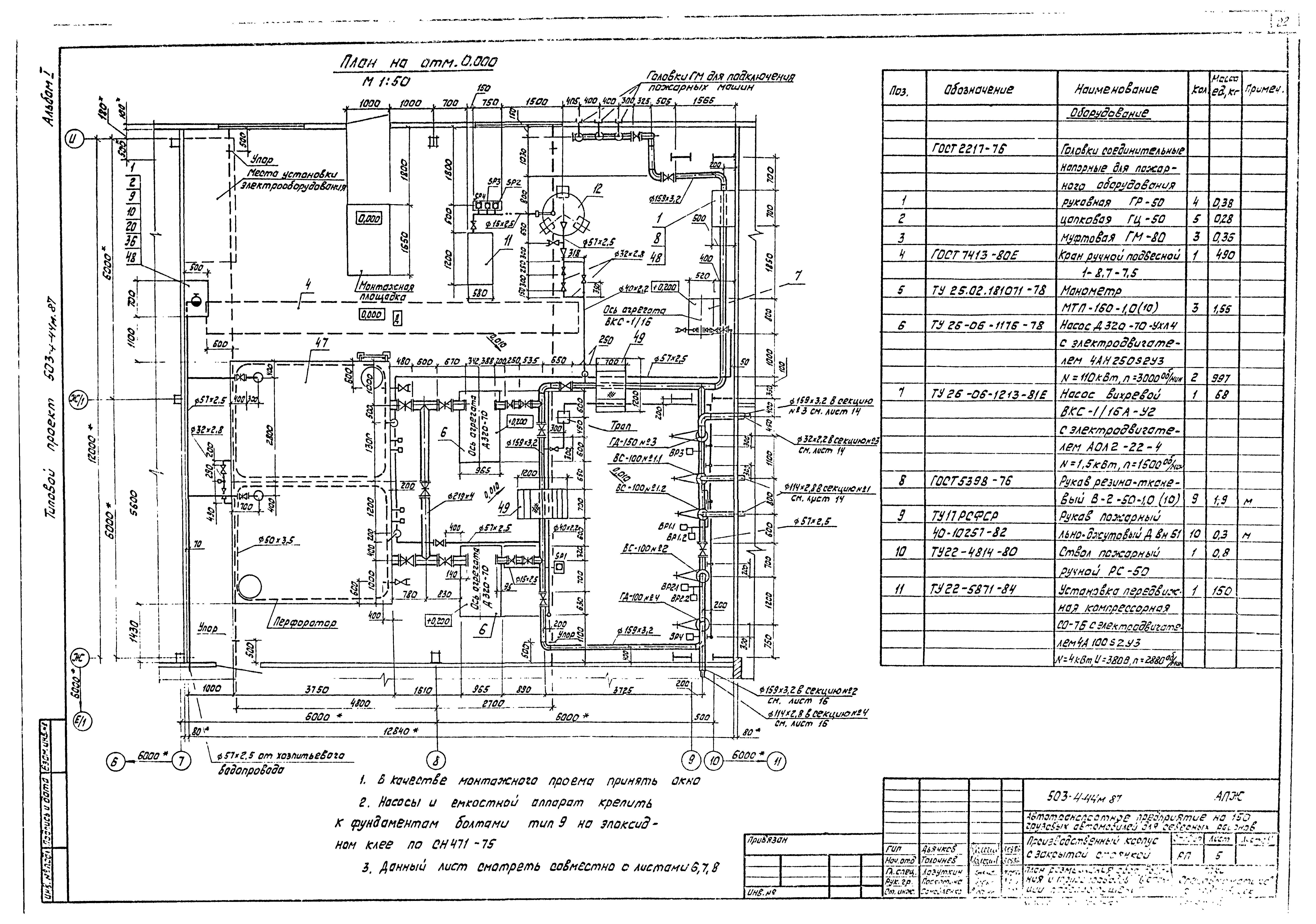
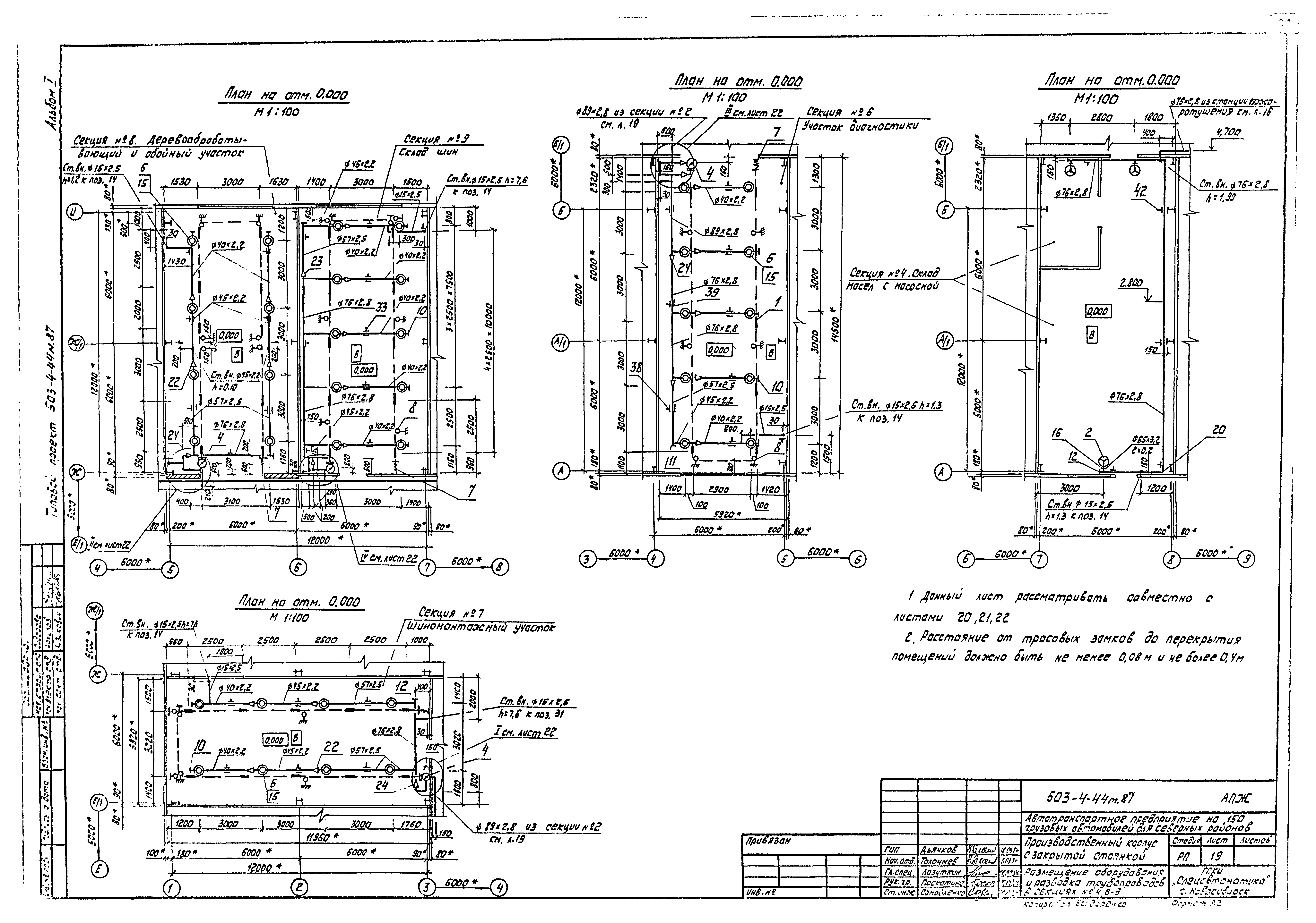
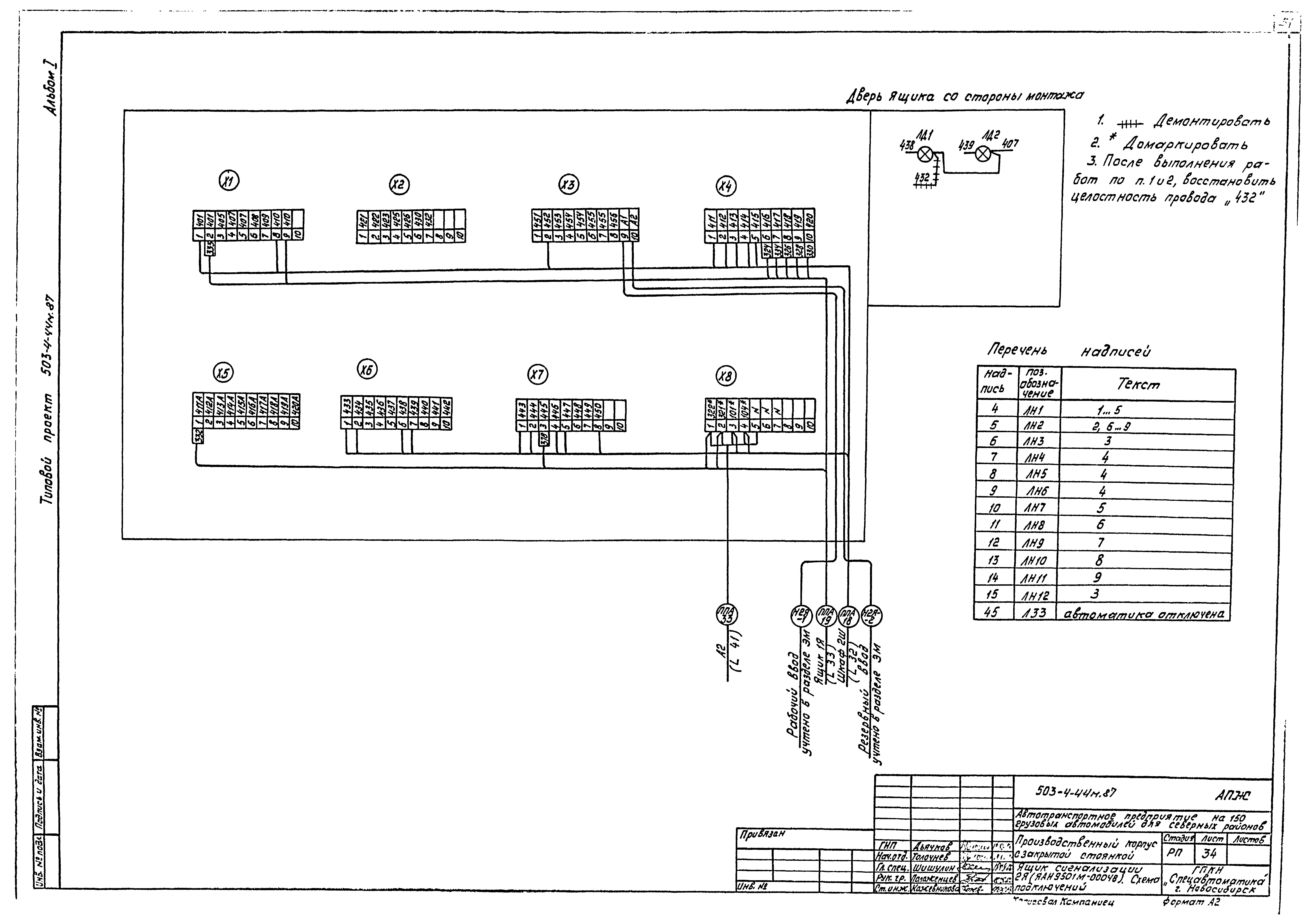
Скачать Типовой проект 503-4-44м.87 Альбом I. Пояснительная записка, технология производства, автоматическое пожаротушениеДата актуализации: 10.08.2017 Типовой проект 503-4-44м.87
Альбом I. Пояснительная записка, технология производства, автоматическое пожаротушениеОбозначение: | Типовой проект 503-4-44м.87 | Обозначение англ: | 503-4-44м.87 | Статус: | не определен законодательством | Название рус.: | Альбом I. Пояснительная записка, технология производства, автоматическое пожаротушение | Дата добавления в базу: | 01.02.2017 | Дата актуализации: | 05.05.2017 | Дата введения: | 30.12.1986 | Разработан: | Новосибирский филиал Гипроавтотранса
| Утверждён: | 30.12.1986 Минавтотранс РСФСР (Russian Federation Minavtotrans 24)
| Издан: | ЦИТП Госстроя СССР (CITP, Gosstroy (USSR) 1988 г. )
| Расположен в: |
|
                                                           
|